Cohen_Alex_Nathanel_PortfolioV6

Page 1


Alex Nathanel Cohen

Portfolio | 2020 - 2024

Material, Light and Shadow studies, Fiambala, Catamarca, Argentina.

SELECTED WORKS

Graduate

Envisioning CEB for Fiambalá Thesis

Mind the Gap: Migrant + Refugee Shelter (+Group)

Tactical Regeneration: Waterfront Climate Resilience Hub (+Group)

Mixed Use Building: The Intersectional

Food Bank: The Integrator

Undergraduate

K-3 - K-5: Social Integration

Professional, Competition & Volunteer

Internship: Single Family House Remodel (+Group)

Buildner Design Competition: Tsunami Shelter (+Group)

Seattle Design Festival: Person to Person (+Group)

Tactile and Material studies at the College of Built Environments, 2021.

About:

I was born in the U.S. and raised in the Argentinian Northwest, later studying architecture for a semester at Torcuato Di Tella University in Buenos Aires. I earned a Bachelor of Arts in Architectural Design (2022) at the University of Washington, and recently a Master of Architecture (2024). My interest in architecture started in my early childhood as my mother designed and led the construction of the house I grew up in. Currently, I’m drawn by all scales of self-sufficient, participatory and equitable design. Besides architecture, I’m also passionate about photography, sketching, watercoloring, hiking and playing soccer. I’m eager to keep diversifying my knowledge of the professional architecture world.

Rhythmic and Dappled Shadow Studies, University District, Seattle, WA.
Multiplicity of Machinery, Gasworks Park, Seattle, WA.
Architectural Photography class (2022) with Becky Reinhold. Industrial and Urban Landscapes at Ballard and University District in Seattle, Washington.

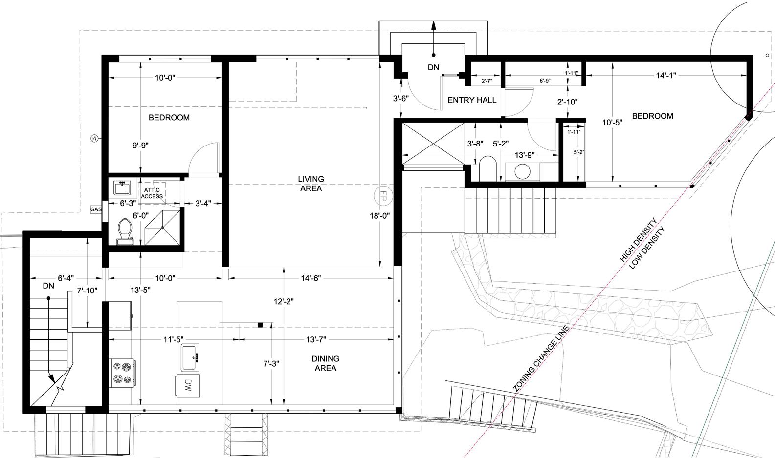
Envisioning CEB for Fiambalá

Thesis | Winter-Spring 2024

Chair: Elizabeth Golden | Commitee: Alex Anderson

Location: Fiambalá, Catamarca, Argentina.

This thesis investigates the process to encourage compressed earth block (CEB) adoption in Fiambala, Argentina addressing the local government, architects, and community members. The need for introducing CEB stems from shifting the demand for

easily accessible masonry units away from import-dependent concrete blocks and fired bricks. The thesis asks how to implement CEB through a study that enables localarchitects to suggest the material to the municipal government.

Also, the target population is renters and co-habiting married couples requiring a residence in the local community. The results include a consideration framework and a hypothetical urban, architectural and detail level proposal.

FRONTAL ANDEAN CORDILLERA
FIAMBALÁ SIERRA
FIAMBALÁ
Approach to the town’s main square: Beato Mamerto Esquiu.
Approach to Site on a summer mid-day
Process arriving to Compressed Earth Block. Photographs on the left are courtesy of Roberto Cohen, 2003. On the right, Fiambalá Cabin Complex, 2019 and Rammed Earth block, 2023.

Reasons behind CEB introduction.

Dead end street, adobe drying uses, site section looking east, December 2023.
Natural Water Resources uses
Fig. 67: Site proposal area and vicinity.
DOMESTIC LITHIUM MINING
CONSTRUCTION
GRAPEVINE AND OLIVE TREE CROPS

Future addition and modification options.

Left to right: Plan Program and Envelope response development.

Envisioning the approach to a shop front-adapted residential building.

Shared grapevine farming, direct visual/activity connection.

Left to right: (1) Modular Space Blocks, (2) Standard Porch, (3) +Orchard and porch, (4) +Orchard and Bedroom, (5) +Bedroom and kit./liv./din., (6) +Second level and Courtyard
Key: Exterior Coolth / Heat Bathroom Bedroom Orchard Kitchen + Living + Dining (KLD)

MIND THE G A P

Mobilities Studio | Fall 2023

Team: Hannah Cayen, Tessa Vollrath, & Judy Liu

Instructor: Brian McLaren, Frank C. Ching, Claudia Pagani, & Gjis Pyckevet

Location: Ostiense, Rome, Italy

Mind the Gap is a masterplan project that explores human movement patterns as a nexus between local Romans and immigrants. The main priority is the flow of people through the site and the integration of migrants into the local community.

Public support places include a welcome center, refugee shelter, performative and commercial space addressing the social emergency. The project weaves urban space with structures for the gradual transition of migrants into Ostiense.

Movement and Activity exploration
Ostiense
The bare approach to Ostiense Station
Existing Eataly conditions
MIGRANT +
REFUGEESHELTER

Fall 2023

Rome studio

Include my part of the project and the group board (include everything that’s on the board) also this one includes a model spread to show progress from conceptual to final idea.

Process model: Refugee + Migrant Shelter Massing layout
Process model Eddies and circulation

TACTICAL REGENERATION

Near Future Circular City Studio | Spring 2023

Team: M. Bernardino, N. Gregorius, M. Hoffman, B. Labuguen, A. Ross, & M. O’Connor Lenth.

Instructor: Catherine De Almeida & Gundula Proksch

Location: South Park, Seattle, Washington

This is an interdisciplinary group project that focuses on the application of just transition towards a circular economy framework on 5 test plots. Also it focuses on mitigation as a strategy to address climate and streetscape impacts on the

neighborhood community of South Park. The sub-group scale explores tactics that respond to river and rain contaminants in the flood-prone location My contribution to the sub-group’s test plot includes collective leadership, direction and graphic production.

THE INTERSECTIONAL

Arch. Integration Studio II | Fall 2022

Instructor: Julia Nagele

Location: Rainier Beach, Seattle, Washington

20 The Intersectional is a 5-story building planned around an eastfacing courtyard and an intersection. This project is a mixeduse multi-family residential and commercial building project that offers sidewalk-engaged ground floor retail and public

plazas. The street-facing commercial and public spaces, along with sustainable elements, engage pedestrians and residents at a previously underutilized corner of S. Henderson Street and Rainier Ave South.

THE INTEGRATOR FOOD BANK

THE INTERSECTIONAL SITE A IMMEDIATE CONTEXT

RB COMMUNITY CENTER SOUTH SHORE K-8 SCHOOL SUGIYAMA HIGH SCHOOL

RB HIGH SCHOOL

S. HENDERSON ST. S. HENDERSON
4: Porosity and Bridge Unity Massing Process
Cafe Outdoor Seating
Approach to Plaza from Intersection
Aerial Perspective: East-facing Plaza
West View from Rainier Avenue
Aerial View of East Facade and Rooftop Terrace

THE INTEGRATOR

Arch. Integration Studio III | Winter 2022

Instructor: Narjes Abbasabadi

Location: Rainier Beach, Seattle, Washington

The integrator is a food bank and community hub ttjat advances the local community’s wellbeing and food security in an environmtally and urban responsive space. The project implements farming to address food insecurity in the

neighborhood including leafy greens (indoors) and berries (outdoors). Permeable paving, stormwater collection and solar panels provide water and energy self-sufficiency, reducing long term cost for the community and the environment.

1. Massing, Solar and Setbacks
4. Greenhouse Placement
2. Sidewalk Priority
5. Roof Variation and Solar Influences
3. Pedestrian shelter spaces
Energy: Shading Devices Water: Permeable Pavement & Bio-Swales
Grocery / Food Pantry
East-facing Plaza
Lounge looking West
Lobby, Dining Indoor Waiting
Southwest Approach from Rainier Ave. South
Model-making process: Level 2 - Southwest Aerial
North Facade
West Facade
South Facade

SOCIAL INTEGRATION

ARCH 401B | Winter 2021

Instructors: Anjali Grant

Location: Mount Baker, Seattle, Washington

This project integrates the Reggio Emilia early learning approach. The main goal of the project is for children to acquire the tools to independently find their identities by socializing with others as they become integrated into their surrounding community. There is also an exploration of the daily life of its primary users, 3 to 5-year-olds.

Frequent adult users include the children’s parents, teachers, and the surrounding Mount Baker neighborhood community on the weekends. As a Reggio childcare community center, the transparencies along the vertical envelope increase the visual connection between the classrooms and the neighborhood’s society.

Atrium and Growing space
Play / Socialize Space
Mezzanine Reading Space
Semi-public Plaza + Food Orchard
Classroom + Atelier
Kitchen and Dining Space
Classroom + Atelier
Kitchen Lunch / Hand-washing
Play / Socialize Area

REMODELING PROJECT

Paul Michael Davis Architects | Summer 2021

Team: Paul Michael Davis and Amanda Kindregan

Location: Seattle, Washington

This remodeling project consisted of adding an inhabitable extension and a possible remodeled space to a single-family house located by Puget Sound. My contribution to the project was through schematic design by working on rendering, digital model-making on SketchUp, and plan-editing with AutoCAD.

Original Site: Buildable Area Massing diagram
Remodel Southeast Isometric View
Remodel South Isometric View
Approach Facade
Exterior View from Puget Sound

I worked on prioritizing the largest window openings on the waterfront side to bring in Puget Sound. Moreover, the wooden nexus between the existing building and the new addition helps differentiate the addition versus the existing building through materiality changes.

The project’s purpose was to adapt the existing structure to a growing family. We explored how to re-think the kitchen and living room connectedness while adding an extra bedroom for the owners to have more accesibility as they grew older.

Interior Perspectives showing living room and kitchen experience

HUNGRY FOR WOOD

Buildner Design Competition | Spring 2022

Team: Sina Araya, Trong Luong & Erick Valdez

Location: Hoquiam, Washington

The pavilion, which takes the form of a tsunami-resistant tower, is located at the southern edge of a hill serving as a levee. The project integrates a performance space, local art gallery and observatory tower to contributeto the community at Hoquiam. All the drawings were produced collectively with every member alternating tasks.

LISTENING SKIN

Seattle Design Festival | Summer 2025

Team: A. Ayala, M. Caldwell, L. Chauduri, L. Dolezal, S. Kang, K. Smith and S. Walton

Location: South Lake Union, Seattle, Washington

This installation is currently under construction and will be presented this weekend at the Seattle Design Festival. The wooden structure with steel connectors frame the recycled fishing net which becomes an instant source of feedback for people to sit on or move around. A person’s mark is left in the installation as the net is transformed by being expanded through use. The design exploration involved on site building feedback, multiple media, workshops with teams discussions.

Construction feedback design (upper two photos by Logan Dolezal)
Process, tensile tests and texture

BOARDING HIGH SCHOOL

DLR GROUP | WINTER 2025

Team: P. Brown, C. Bell, T. Ganey, A. Damus, K. Schoenborn, A. Jain, J. Reynolds, Z. Chai, V. Finney, F. Sanchez-Montes, N. Cross, O. Webster, T. Shorett-Jackson & T. Koellmann

Location: Jakarta, West Java, Indonesia

A K-8 through K-12 boarding school campus for 800 students with a multi-regional design team. The project balanced from local to international material finishes and formal expression. This was a schematic design project

where I contributed through renders, program plan and facade layout. I mainly contributed to 4 of the buildings but participated in all of them, focusing on the academic/ residential envelope and contextual visual representation.

Convocation
Academic Building Site plan at x scale
Image Courtesy of Zhexiong Chai

WELCOME CENTER

DLR GROUP | WINTER 2025

Team: A. Jain, P. Brown, Z. Chai

Location: Jakarta, West Java, Indonesia

This is a 2 bedroom faculty apartment building for the school’s staff including teachers and principales with their families.

Achieving natural corridor air ventilation, access to fresh air and schematic shading and rainwater protection strategies were a few of this project’s goals. Accesibility for people with stair use limitations was prioritized with downstairs access to 4 units.

edit text. explain handing it off but also crucial to the beginning.

Cross section at x scale
Left to right, Roof, Underground, and First Floorplans + Program at x scale
Approach to Admissions and office spaces (Courtesy of Zhexiong Chai)
Program

FACULTY HOUSING

DLR GROUP | WINTER 2025

Team: C. Bell, A. Jain, Z. Chai, V. Finney, & N. Cross, Location: Jakarta, West Java, Indonesia

This is a 2 bedroom faculty apartment building for the school’s staff including teachers and principales with their families. Achieving natural corridor air ventilation, access to fresh air and schematic shading and rainwater protection strategies were a few of this project’s goals. Accesibility for people with stair use limitations was prioritized with downstairs access to 4 units.

I focused on minimizing high passive solar heat gains due to the sub-equatorial location of the site through large eaved roofs. Rainwater protection is achieved through the sloped roof and eaves, including the use of a water resistant wood finish. The windows of these 2-bed faculty apartments were also enlarged vertically. However, in order to counteract a monumental building perception, the concrete edges horizontalize and ground it.

FACULTY HOUSING STUDIOS

DLR GROUP | WINTER 2025

Team: C. Bell, Z. Chai, & N. Cross, Location: Jakarta, West Java, Indonesia

As a studio apartment building, and following the 2 bedroom apartments, this is building houses permanent teaching staff. The building has 42 units which can accomodate couples, up to 84 residents. Vertical louvers, balconies and hanging vines help break the building’s concrete monumentality. The interior courtyard facilitates a fresh air corridor to cool the units.

My contribution involved facade exploration, material choice, plan and program digital model layout. Additionally, the exploration of front facade alternatives facilitated incorporating vine plants and warmer wood expressions. The building’s facade language uses elements that carve it and emphasize its horizontality, dividing its levels. It’s courtyard facing windows also allow indirect dayligh to increase natural illumination in the apartment units.

Contact: 206-902-8985

Email: nathacohen@gmail.com | alexnc99@uw.edu

Turn static files into dynamic content formats.

Create a flipbook
Issuu converts static files into: digital portfolios, online yearbooks, online catalogs, digital photo albums and more. Sign up and create your flipbook.