

![]()


ANA PAULA LAZO ESCATE COD 20221353

Estudiante de Arquitectura

20221353@aloe ulima edu pe +51 941 958 133

S O B R E M Í :
Ana Paula Lazo Escate es una chica de 19 años, quien ha destacado en la etapa escolar. Desea diseñar y dirigir grandes obras, tanto nacionales como internacionales. Espera seguir aprendiendo en el siguiente ciclo y pulir sus futuras maquetas con los nuevos conocimientos que irá adquiriendo en este proceso.
:
Primaria Colegio Santa Rita de Casia (marzo, 2009 / diciembre, 2016)
Secundaria Colegio Santa Rita de Casia (marzo, 2017/ diciembre 2021)
Pregrado Universidad de Lima (abril, 2022/ actualidad)
S O F T W A R E D E D I S E Ñ O :
Autocad
Revit
Adobe photoshop
Adobe Illustrator
Adobe InDesign
S O F T W A R E S :
Microsoft Office
Rstudio
I D I O M A S :
Español
Inglés
Francés
Portugués
R E C O N O C I M I E N T O S :
Tercio superior en el colegio los 5 años de secundaria
Primer puesto en el concurso de marketing "Desafío UP MKT edición 2020" otorgado por las Universidad del Pacífico
Diploma en Excel y Word otorgado por IDCL AMERICAS
Diploma en Francés ADO A2 otorgado por la Alianza francesa de Lima
C H A R L A S A C A D É M I C A S :
Metodologías proyectuales Lugar: ciudad, paisaje y territorio /presencial- Universidad de Lima/ 23 de mayo 2022
Presentación de los libros "LIMAQ, N os 9 y 10"/ presencial- Universidad de Lima/ 14 de abril 2023
Reflexiones acerca de la Accesibilidad Universal en Arquitectura/ presencial- Universidad de Lima/ 2 de junio 2023
Espacios para usuarios con discapacidad/ presencial- Universidad de Lima/ 12 de junio 2023
Metodologías proyectuales "El rol de la forma como parte del proceso de diseño en la arquitectura"/ virtual- Universidad de Lima/ 14 y 15 de junio 2023
PROYECTO DE ARQUITECTURA IV

| PROYECTO DE ARQUITECTURA V
| Análisis de la zona de estudio | Pag. 4
T1 T2, T3 T4, T5 I ODS 3, 5, 9, 10 11, 13, 15
T1 T2 T3 T4 T5 . ODS 3, 5, 9 10 11 13, 15 E2
| Espacio público y dicotomías de privacidad | Pag. 5
| Edificio de uso mixto y espacios públicosEmplazamiento | Pag. 6
T1, T2, T3, T4, T5 I ODS 3 5 9, 0, 11, 3 15
| Edificio de uso mixto y espacios públicosVolumetría y planos 1 | Pag. 7
T1, T2 T3, T4 T5 I ODS 3 5 9, 10, 1 , 13, 15
| Edificio de uso mixto y espacios públicosVolumetría y planos 2 | Pag. 8
T1, T2 T3 T4 T5 . ODS 3, 5, 9 10 11 13, 15
| Planimetría y corte fugado| Pag. 9, 10 y 11
T1, T2 T3 T4 T5 ODS 3, 5, 9 10 11 13, 15
| Entrega final | Pag. 12, 13 y 14
T1, T2 T3 T4 T5 ODS 3, 5, 9 10 11 13, 15
| Conclusión | Pag. 15
T1, T2 T3, T4, T5 I. ODS 3 5 9, 10, 1 , 13, 15
|Consolidado de matrícula y charla 14EA| Pag. 16
| Cursos matriculados portafolio| Pag. 17
| HISTORIA Y TEORÍA DE LA ARQUITECTURA II
| Renacimiento: Santo Spirito y San’t Andrea de Mantua| Pag. 18
T2 T4 T5 ODS 4, ODS 11 ODS 15 ODS 16
| Palazzos: Farnese y Rucellai | Pag. 17
T2 T4, T5 ODS 4 ODS 11, ODS 15, ODS 16
ACONDICIONAMIENTO AMBIENTAL I
| Análisis de asoleamiento con software | Pag. 20
T2, T3 I. ODS 11 ODS 13 ODS 17
| Refugio en Puno | Pag. 21
T2, T3 I ODS 1 , ODS 13, ODS 17
ESTRUCTURAS I
| Vectores y mecánica, momento de una fuerza, centro de gravedad y centroide, sist. de equilibrio | Pag. 22
T2 T3 T6 ODS 1 ODS 2, ODS 4, ODS 9
| Marcos, sist. de fuerzas internas, DFC y DMF, sist. de fuerzas internas, momento de inercia y armaduras | Pag. 23
T2 T3, T6 ODS 1 ODS 2, ODS 4 ODS 9
INSTALACIONES I
|Laboratorio 1 y 2 | Pag. 24
T2 T5
|Laboratorio 3 y 4 | Pag. 25
T2, T5
Contraportada| Pag. 26

En el primer encargo del ciclo se realizó un primer contacto con el eje a analizar, el cual estaba compuesto por la plaza Butters, Jr. Arica, el óvalo Balta, la av Nicolás de Piérola y Jr. Centenario. Para este trabajo vertical se organizó por medio de un análisis de variables que destacaban por la zona:
Contaminación
Materialidad
Uso de suelo
Señalización
Uso del usuario




Después de analizar la zona se realizaron 4 entregables en los que se demostraba las fallas del entorno y cómo con estrategia se podía afrontar aquello. Para ello, como equipo, implementamos nodos complementarios como la redistribución de la plaza butters, la implementación de un mercado para la interacción entre comerciantes y consumidores Más adelante, se colocó objetivamente el metropolitano por debajo de la ciudad y un estacionamiento subterráneo para lograr crear un espacio de recreación encima de. Finalmente, por el lado del malecón se propuso una distribución mucho más interesante para el usuario. Este ejercicio fue preciso para aplicar lo aprendido en el siguiente encargo. Av. Nicolás de Piérola, Barranco

Esc 1/75
Encargo:
En el segundo encargo se pidió diseñar y reconfigurar un espacio que funcionara como espacio público. Este debía contener 4 unidades de SS HH, una batería de pozas de agua, un mirador que llegase al NPT +4 00m, espacios con sombra y asientos.
Ubicación:
Esquina del Óvalo Balta y Jr. Progreso

Maqueta final esc:1/75
Se propuso iniciar a partir de la creación de una grilla, la cual ayudó a dimensionar los cubículos de los baños y la posición que ocuparía en el proyecto. Después, para integrar el mirador utilizamos la misma forma cuadrada que creaban las unidades para envolverlas con la rampa que conectaría hacia el pedestal Asimismo, en la parte superior, se colocó un techo sol y sombra de forma que protegiera de la luz del sol directa Finalmente, se decidió que continuase el mismo sol y sombra por el primer piso y que los vanos jugaran al mismo tiempo con las copas de los árboles.
Planta esc: 1/ 75


sol y sombra Área de descanso
Cortes esc: 1/ 75



EDIFICIODEUSO
Emplazamiento- Esc 1/500

11,ODS 13,ODS 15
Encargo:
En el tercer encargo se requirió buscar y analizar referentes de centros culturales con el fin de definir el programa arquitectónico dividido en cultural, comercial y oficinas. Además, la volumetría comenzaba a tomar forma Se decidió optar por una galería de arte
Proceso volumétrico
Identificar ejes del terreno
Buscar distintivo

Juego de alturas y volados



Maqueta volumétrica esc:1/500




EDIFICIODEUSO
11,ODS 13,ODS 15 MIXTOYESPACIOSPÚBLICOS | RIBAT1,T2,T3,T4,T5
Volumetría y planos 1- Esc: 1/200

Encargo: Puente lote A
En el cuarto encargo se definieron espacios como los estacionamientos subterráneos, los cuales derivarían la posición de las columnas. Por otro lado, el programa arquitectónico se fue consolidando en las áreas propuestas
Estacionamiento sótano 1 esc: 1/200


Fachadas lote A y B



Programa arquitectónico primera planta esc 1/500

Volumetría y planos 2- Esc: 1/200

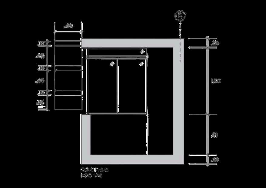
Encargo:
En el quinto encargo se intervinieron las fachadas de cada lote dependiendo del tipo de uso de cada uno. En el caso del lote A pertenecía a un espacio semipúblico la fachada principal por eso se le hicieron vanos un poco más abiertos, mientras que en el lote B se colocó una celosía más tupida para darle más privacidad a los comensales del restaurante.







Planimetría y corte fugado

En la entrega final de planos del lote A se encargó presentar todas las plantas, 3 cortes, 2 elevaciones, un plot plan con sombras y plantas de sótano



EDIFICIODEUSO
11,ODS 13,ODS 15 MIXTOYESPACIOSPÚBLICOS
Planimetría y corte fugado

En la entrega final de planos del lote B se encargó presentar todas las plantas, 3 cortes , 2 elevaciones y un plot plan con sombras
Plot plan esc 1/200




EDIFICIODEUSO
Planimetría y corte fugado
Encargo corte fugado
Además, se encargó realizar un corte fugado donde se pudiera apreciar la mayoría de relaciones espaciales y la parte más importante de uno de los dos proyectos. Se eligió el lote A por tener triples alturas

11,ODS 13,ODS 15


Entrega final- Esc: 1/100
Entrega final esc: 1/100 Lote A





Entrega final- Esc: 1/100
Entrega final esc: 1/100 Lote B





Entrega final- Esc: 1/100

Entrega final esc: 1/100 Lote A y B





Conclusionesdelcurso
En el ciclo 2024-1 fue un ciclo donde se tuvo más acercamientoalacarreradeArquitectura,fueretador. Incorporé nuevos conceptos como discernir entre lo público y privado, dándole a cada uno su nivel de privacidad Además se aprendió acerca de la vinculación entre lo estructural con el diseño, ya que muchas veces se tuvo que adecuar el proyecto a algo másrealista.Finalmente, elnuevotema queconsidero es uno de los más importantes es el de los estacionamientos subterráneos. El curso fue más real que otros ciclos y eso ayudó a mejorar mi nivel de exigenciaycapacidad.





Nombre del curso
Proyecto de Arquitectura V
Sección
525
Nombre del profesor
Sebastian Tejeda de Romaña/ Tamara Flores Forsyth
Sumilla del curso
Proyecto de Arquitectura V, es una asignatura obligatoria Teórico-Práctica, que forma parte del Taller Vertical Su desarrollo temático gira en torno al diseño de un objeto arquitectónico o un conjunto de objetos arquitectónicos vinculados o tributarios a un espacio público urbano.
Objetivos
1. Enfatizar el rol de la arquitectura dentro del paisaje.
2 Considerar el rol de los usuarios dentro de la configuración del paisaje urbano
3 Conceptualizar la relación entre espacio público, espacio semipúblico y espacio privado
4. Objetivos de Desarrollo Sostenible
ODS: Página 2 de 5
Lucha contra la pobreza (ODS 3,9,11)
Cuidado del planeta (ODS 13,15)
Respeto a la diversidad (ODS 5,10) 5. Temas RIBA desarrollados en la asignatura:
Tema 1: Salud y seguridad en la vida
Tema 2: Práctica ética y profesional
Tema 3: Estructura, construcción y recursos
Tema 4: Historia, teoría y metodologías
Tema 5: Pedagogías de diseño y expresión arquitectónica

Comentario 14EA
En la charla de la 14ta exposición de la carrera de arquitectura, la presentación que me pareció interesante fue la del taller 10 con la casa Ronald Mc donald, puesto que hablaron acerca de como integrar la arquitectura para todos por medio de lo sensorial y relaciones espaciales. Mencionaron que se utilizaron árboles con diferentes olores y texturas para poder guiar mejor al usuario. Finalmente, recalco de la exposición que como arquitectos no solo debemos enfocarnos en la parte artística, sino también la parte humana para poder crear arquitectura para todos.



CURSO SECCIÓN DOCENTE
HISTORIA Y TEORIÍA DE LA ARQUITECTURA II
ACONDICIONAMIENTO AMBIENTAL I
INSTALACIONES I ESTRUCTURASI 522 521 525 523
GALANTINI VELARDE, KATERINA PAOLA
LANATTA ORTIZ, VANIA
VALLEJO HERRERA, JOSE SEBASTIAN CABRERALAU,ÁNGELADELPILAR
Temas RIBA y ODS
ODS: 4, 11, 15, 16
RIBA: 2, 4, 5

Sección: 522
Docente: Katerina Galantini
Velarde/ Jose Luis Vertiz
Periodo: 2024-1
Estudiante: Ana Paula Lazo
Escate
Según Alonso Pereira (2012) La iglesia del Santo Spirito está emplazada en Florencia, cerca al río Arno.
FORMA Y ESPACIALIDAD
Según Alonso Pereira (2012) en el renacimiento se trabajaba con figuras simples y elementales, ya que esto proporcionaba un control métrico sobre las formas Por ejemplo, en la iglesia del Santo Spirito se aprecia el cuadrado como pieza principal:


Según Ching et al (2011) Brunelleschi colocó un entablamento arriba de la clave de los arcos como se puede ver en la figura 3, esto serviría como unión. Por otro lado, le agregó una arcada que bordeara toda la cruz latina, para así centrarse en los pilares del crucero, más adelante. Cabe resaltar que usó la proporción 1:2:3:4:5 partiendo de un cubo del crucero.
MATERIALIDAD Y SISTEMA CONSTRUCTIVO
Según Saíz (2020) la iglesia estaba hecha de piedra y mármol Además, se le implementó una franja de piedra gris a los arcos para que no quedasen desproporcionados en altura. Por otro lado, el suelo está compuesto por baldosines de mármol, los cuales marcan el espacio.

En la primera actividad se tenía que analizar una obra de Brunelleschi y una de Alberti donde se explicara la ubicación, la forma y espacialidad de la obra, su materialidad y sistema constructivo, a través de una infografía
UBICACIÓN
Se encuentra en el centro histórico en la ciudad de Mantua, al norte de Italia
FORMA Y ESPACIALIDAD
Según Alonso Pereira (2012) adentrándose a la basílica, lo primero que uno nota es la utilización de arcadas por toda la nave. Y es que Alberti se basó en el arco del triunfo romano. Por otra parte, Alberti innovó con un nuevo orden, Ching. et al (2011) lo menciona como orden gigante.
ELEMENTOS INTERNOS




ELEMENTOS EXTERNOS



Escalinata Cuadrado Arco del triunfo romano
MATERIALIDAD Y SISTEMA CONSTRUCTIVO
La basílica mayormente está compuesta por piedra Serena, pero recubierta de mármol.


Esta actividad fue interesante porque después de mucho tiempo volvíamos a ver la arquitectura clásica, pero ya establecida como una regla. Entre ambas obras, la que más me interesó fue la iglesia de Santo Spirito por seguir milimétricamente las proporciones del cuadrado, dividiéndolo en 2, y 4
ANÁLISIS PLANTA
UBICACIÓN
Piazza Farnese, 67, Roma, Italia

FECHA DE EJECUCIÓN
1515-1589
DIRIGIDO PARA
El cardenal Aejandro Farnese
ARQUITECTOS
Iniciado por Antonio Da Sangallo Culminado por Miguel Ángel

ESPACIALIDAD
Ordencompuesto

PLAZA FARNESE
El cardenal Farnese decidió ubicar la entrada en sentido contrario a la via Giulia, porque esta quitaba parte del jardín. Según Rowe y Satkowski (2013) tiempo después se creó la plaza Farnese para que el punto de atención fuera solo el palacio.
Ventanas
Logia
Pórtico
Pilastrasadosadas
Patio
Escaleraprincipal
Bóvedasdecañón
Vestíbulo
Según Rowe y Satkowski (2013) la distribución del Palazzo Farnese recibía con una entrada almohadillada que conducía hacia el vestíbulo con forma basílical, y posterior a ello, un patio rodeado de arcadas con un orden toscano en el piano Terra y continuaba con un orden jónico en el piano Nobile Por otra parte, en el lado posterior se implementó la logia de Giacomo della Porta, la cual derivaba al jardin.
ESPACIALIDAD
Según Roth (2007), los espacios se encuentran organizados a partir de un patio central, ubicado en la planta baja, circundado por arcos sostenidos por pilastras Esta es una idea influenciada de los romanos (domus romana). Por lo general, el primer piso (piano terra) es destinado al uso público (comercio), dejando los últimos (piano nobile, ático) para el uso de la familia (Roth, 2007 ).
RELACIÓN EDIFICIO - CALLE

UBICACIÓN
Vía della Vigna Nuova 18 Firenze, Florencia, Italia

ANÁLISIS FACHADA FECHA DE EJECUCIÓN 1446 - 1450

Pianoterra ático
Proporción
Cornisa hecha por MiguelÁngel
Escudo de la familia
Farnese
frontones
triangulares y curvilíneos alternados
En varios Palazzos una de las características más resaltantes era el almohadillado en la fachada; sin embargo, según Rowe y Satkowski (2013) este solo fue colocado en la entrada y en las esquinas. Por otra parte, se usó la piedra travertino y el ladrillo para el resto de la edificación
MONUMENTALIDAD
Por otra parte, según Rowe y Satkowski (2013) las ventanas eran ediculares, este aspecto resaltaba más por las pilastras adosadas que tenían a cada lado; donde, asimismo, presentaba una doble moldura que exacerbaba su monumentalidad, la cual según Roth (2007) se lograba a partir de una arquitectura que reflejase poder.
Este trabajo consistió en dibujar dos palacios del Renacimiento del S. XV y compararlo con el Palacio Farnese de Roma, en este caso se eligió el Palazzo Rucellai. Además, se realizó un ensayo explicando sus diferencias y semejanzas
Según Kostof (1988), la fachada genera una buen vínculo con el entorno, debido a que existe una armonía entre la altura y el ancho, asimismo, esta congenialidad se da por la proporción de sus elementos y, sobre todo, por las crujías (a-a-b-a-a-ba). Por otro lado, parte del encargo fue crear una relación entre este edificio y las demás propiedades de Rucellai.
(a) a) (b) (a) a) (b) (a)
ARQUITECTOS
ANÁLISIS DETALLE
Ventanasbíforas
MATERIALIDAD

Según Roth (2007), Serealiza un acabado de almohadillado con ladrillo, este es una tradición de Florencia, sin embargo, la degradación por niveles fue algo innovador; aquello ayudaba a distinguir los niveles. Por otro lado, se continuó el uso de la piedra serena
Entablamento

El uso de pilastras desarrolló detalles escenciales como formar un orden modular o retícula en la fachada (Ching, 2011) o representar la inspiración clásica, recreando su composición, en donde las pilastras son apoyos para los elementos horizontales (Kostof, 1988) Por otra lado, no se usaron columnas, ya que para Alberti no eran estructurales
Aprendí que cada palacio se ha realizado según las necesidades del dueño, por ejemplo, en el palacio Farnese se tuvo que adaptar el entorno a la plaza, mientras que en el palacio Rucellai se aprovechó la zona de emplazamiento tal y como es. Por otra parte, se aprendió a reconocer el almohadillado, los frontones, los pianos, etc

21 de Marzo / 12-2pm

12
HORA: 13 pm AC MUT: -55° ALTURA: 72°
HORA: 14 pm
ACIMUT: -69° ALTURA: 60°

A feizar=0 90m
A tura ventana= 1.50
A tura p so a techo= 2 40






Sección: 521
Docente: Vania Lanatta Ortiz
Periodo: 2024-1
Estudiante: Ana Paula Lazo Escate
Temas RIBA Y ODS :
ODS:3, 4, 9, 11, 12, 13
Temas RIBA:2, 3, 5
Comentario: En este curso pude aprender a diseñar cuidando el bienestar del usuario y siendo sostenibles tomando en consideración el clima y al mismo tiempo aprovechándolo.






Este fue uno de mis ejercicios favoritos, puesto que se realizaron varias pruebas para poder evitar el deslumbramiento o la luz solar directa. Aprendí a utilizar Revit para crear sistemas de protección contra el sol sin tener que tapar por completo la vista hacia el exterior. Me ayudará mucho en mis siguientes proyectos preprofesionales, así como en la vida laboral.
ORIENTACIÓN DE ESPACIOS
COMPACTO (menor intercambio energético)
Muros de adobe:
Se regula el intercambio térmico entre exterior e interior evitando picos y retrasa el momento en el cual el pico de temperatura exterior se siente en el interior Además se emplea el muro trombe, orientado hacia el este para recibir radiación durante la mañana y calentar la sala. Asimismo, se colocará por el oeste para calentar las habitaciones durante la noche

Muro de adobe
Sobrecimiento
Canaleta:

Al encontrarnos en un clima lluvioso se colocará una canaleta al final del techo, el cual se encarga de drenar el agua a un lugar alejado de la casa donde pueda caer sin generar problemas o filtraciones.

Invernadero:
Se encuentra ubicado en la parte central de la vivienda permitiendo que capte sol por el techo y que caliente los dormitorios por la noche, ya que están contiguos a este
Captación por techo:
El proyecto tiene un techo inclinado de tejas negras para generar inercia térmica, este captará el calor del día y lo retendrá mediante los componentes del mismo. Por otro lado, el invernadero al estar bajo una ventana por la que entra el sol ayudará a captar calor fácilmente


Ventilación subterránea:

GANANC AS NTERNAS



ACCESO INDIRECTO
Protecc ón ngreso de v entos

Techo verde:
Encima de los dormitorios se habilitará vegetación que ayude a captar el sol por el día, mientras que en la noche, la tierra (por tener gran inercia térmica) logrará expulsar calor

Colocado en la sala para mejorar la eficiencia energética y la calidad del aire interior, aprovechando la temperatura constante del subsuelo para enfriar o calentar el aire
Este ejercicio fue grupal, por lo que era más fácil poder tener más ideas al momento de diseñar esta vivienda de clima frío. Lo que más me gustó de este trabajo fuer escoger las estrategias para poder cuidar las ganancias internas, además que Puno resultó ser todo un reto para nosotros porque nunca antes habíamos diseñado un espacio de clima frío.
BARRERA DE VEGETACIÓN CONTRA V ENTOS: V entos fuertes de este y sur

Antecámara:

El espacio de antecámara funciona con el propósito de evitar la pérdida máxima de energía retenida del ambiente. Se trata de evitar que los vientos mayores de la zona enfríen la temperatura interior.

Temas RIBA y ODS:
Lucha contra la pobreza (ODS 9)
Tema 2: Práctica ética y profesional ‐
Tema 3: Estructura, construcción y recursos
Tema 6: Habilidad empresarial
El curso inició con el tema de vectores, en el cual se aprendió acerca de su módulo (magnitud), dirección (recta por donde pasa) y sentido (a dónde se dirige) Este tema vino de la mano con conceptos previamente aprendidos como las leyes trigonométricas y las 3 leyes de Newton

El siguiente tema que se aprendió fue el centro de gravedad donde en un plano cartesiano se hallaba a través de coordenadas X, Y y Z el centro de la figura
Sección: 523
Docente: Jose Sebastian Vallejo
Herrera
Periodo: 2024-1
Estudiante: Ana Paula Lazo Escate
Comentario: El curso de estructuras fue uno de los más claves en este ciclo, puesto que me brindó una visión más amplia acerca de cómo funcionan las edificaciones y a qué esfuerzos responden Fue sencillo de entender
El segundo tema aprendido fueron los momentos, los cuales se dividen en 2 tipos escalar y vectorial, ello sirvió bastante para resolver los demás ejercicios del ciclo Se retomaron temas que se vieron en el curso de Física como el sentido horario y antihorario, a mi parecer este tema me ayudó bastante a que se fije el concepto Asimismo, aplicamos un nuevo método llamado “Método de Sarrus” o “Método del serrucho”

En esta etapa del curso se introdujo el tema cómo reaccionan las fuerzas en un patín o en un apoyo fijo En el caso del patín actúan 1 y en un cable 2.


Luego, se abarcó el tema de marcos, el cual nos muestra elementos unidos por pernos Para resolver los ejercicios se usaron los conceptos de DCL donde se suman las fuerzas en X y Y

Posterior al tema anterior, se tomó en cuenta las cargas aplicadas en una viga, este tema me pareció el más interesante porque es posible aplicarlo en los proyectos que a futuro diseñaré y fue preciso para la entrega de este ciclo.
Más adelante se aprendió el tema de sistemas se fuerzas internas, donde las componentes cambiaban a N (fuerza normal), V (fuerzas cortantes) y M (momentos flexionantes). También, se utilizó el DCL y las fuerzas distribuidas

Aprender sobre el momento de inercia fue crucial para entender cómo las estructuras resisten las fuerzas aplicadas. Además, se retomaron temas como centro de gravedad y se introdujo el Teorema de Steiner, en el cual fijamos a cuánta distancia se encuentra del eje X o Y del centro de la figura Aparte, se enseñó el tema de armaduras, el cual se divide por dos métodos, por secciones o por nudos


Temas RIBA y ODS:
Lucha contra la pobreza (ODS 3, 6, 7, 12)
Tema 1: Salud y seguridad en la vida
Tema 2: Práctica, ética y profesional
Tema 3: Estructura, construcción y recursos
Tema 6: Habilidad empresarial
LABORATORIO 1: Redes de agua 1

Sección: 525
Docente: Ángela del Pilar Cabrera
Lau
Periodo: 2024-1
Estudiante: Ana Paula Lazo Escate
¿Qué aprendí?
En este ciclo, gracias al curso de Instalaciones, aprendí todo el sistema de agua y desagüe que hacen posible habitar un edificio, además esto me dio una visión amplia de donde ubicar los espacios con aparatos que requieran agua.
LABORATORIO 2: Redes de agua 2


MATERIALES/ APARATOS
Tiza roja y azul
Triplay de madera
PROCEDIMIENTO
En el primer laboratorio del ciclo lo primero que aprendimos fue a ubicar a qué lado va el agua fría (derecha) y el agua caliente (izquierda) con una distancia mínima de 20 cm de separación, a excepción del inodoro que solo posee agua fría al lado izquierdo Primero, ubicamos los ejes de cada aparato empezando por la ducha con una altura de salida de agua a 2m, luego, el inodoro con una salida de 15 cm de alto y por último, el lavatorio a 0.55m.
CONCLUSIONES
Gracias a este ejercicio se logró comprender con mayor claridad las alturas y distancias que hay que tener en cuenta para colocar cada aparato. Inclusive, se identificó rápidamente a qué lado correspondía el agua fría y la caliente, aunque suene sencillo, de igual modo logra fijar los conceptos.

MATERIALES/ APARATOS
Válvulas esféricas
C



Unión universal Tubos
Cortatubos
Codos
Primero se ubicó la válvula general con sus respectivas uniones y codos, luego se colocaron las válvulas verticales para el lavadero de la cocina, lavandería, lavadero de lavandería y terma. Posterior a ello, se agregó una válvula de baño, las salidas de inodoro y ducha Durante el proceso algunos tubos no coincidían con la longitud requerida, para recortarlo utilizamos un cortatubos
CONCLUSIONES
Después de realizar el laboratorio 2, se entendió con mayor precisión cómo funciona la red de agua que viene desde la calle, pasa por la cisterna expulsada por su bomba hacia el techo donde se encuentra el tanque elevado y finalmente es distribuida el agua hacia los diferentes aparatos de toda la casa, incluida la terma. Me gustó la manera que se llevó a cabo, ya que se puede comparar cómo es de diferente la red en cada desagüe
LABORATORIO 3: Cajas de registro




MATERIALES/ APARATOS
Ladrillo de arcilla
Tubo de 4'’
PROCEDIMIENTO

Arena gruesa
Primero, con una escuadra, wincha y tiza dibujamos la silueta de la caja de registro 1, alrededor de esta ubicamos ladrillos que hicieran el papel de la caja, a continuación hicimos lo mismo al frente (max 12 metros) Finalmente se le agregó una capa de arena para que la montante tuviera una pendiente del 1%
CONCLUSIONES
En este ejercicio se logró comprender cómo funcionan las conexiones entre montantes y especialmente, para qué sirve la pendiente y la colocación de arena.
LABORATORIO 4: Red de desagüe



MATERIALES/ APARATOS
Montantes 4'’
Tubo de 4'’ y 2'’
PROCEDIMIENTO
Yee 2'’ y 4'’ “Sombreritos de ventilación”
Trampa P
A través de un ejemplo, empezamos colocando los aparatos que se ubicaban debajo del soporte de madera, como: la salida de desagüe del inodoro y lavatorio Luego, se insertaron los tubos de ventilación.
CONCLUSIONES
Finalmente, después de haber realizado el ejercicio, fue simple entender las conexiones de desagüe a 45°, inclusive probamos con una “chapa” si es que funcionaba y efectivamente salió como se ve en la imagen.

COD 20221353
