oh

Page 1

Dossier vivienda mínima

Palomino Rodriguez Luciana Pamela

Tabla de contenido

Elevación

01 03

CortesPlanos

En AutoCad e illustrator En AutoCad e illustrator
Ubicación Descripción de la zona En AutoCad e illustrator 02 04

“La belleza perece en la vida pero es inmortal en el arte”.

Da Vinci

—Leonardo

Ubicación Ubicación

Portugal

País y Ciudad Carvoeiro

Un pueblito turístico a la orilla de la playa.

Ciudad

Calles

Terreno Terreno

Terreno

Vistas y medidas

Perímetro: Área: 36 metros 80 metros Vista frontal Vista lateral derecha

SOCIAL

ZONA
ZONA DE SERVICIO ❑ Kitchen ❑ Sala Primera planta

Zonificación Zonificación

ZONA PRIVADA ZONA DE SERVICIO ❑ Baño ❑ Dormitorios Segunda planta ❑ Balcón

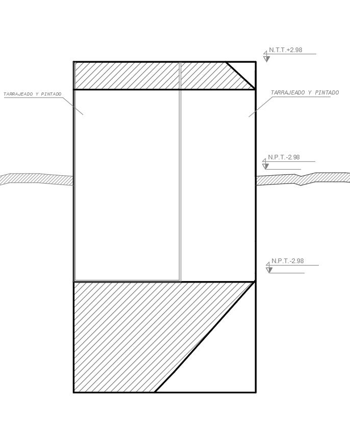
Corte A-ACorte A-A

El corte A-A pasa a través de la cocina y sala en primer piso, y por el dormitorio y balcón en sótano

Corte B-BCorte B-B

El corte B-B pasa a través de la cocina en el primer piso, y por el dormitorio en el sótano

Corte C-CCorte C-C

El corte C-C pasa a través de la sala en el primer piso, y por el baño en el sótano

Elevación lateral derecha

Elevación Elevación

principal

Render ExteriorRender Exterior

En esta sección se presentan renders de la casa, fue levantada en SketchUp para después ser renderizada en V-ray

de díade día

Turn static files into dynamic content formats.

Create a flipbook
Issuu converts static files into: digital portfolios, online yearbooks, online catalogs, digital photo albums and more. Sign up and create your flipbook.
oh by Luci Ro_ - Issuu