
1 minute read
PROJECT 03 The Gallery
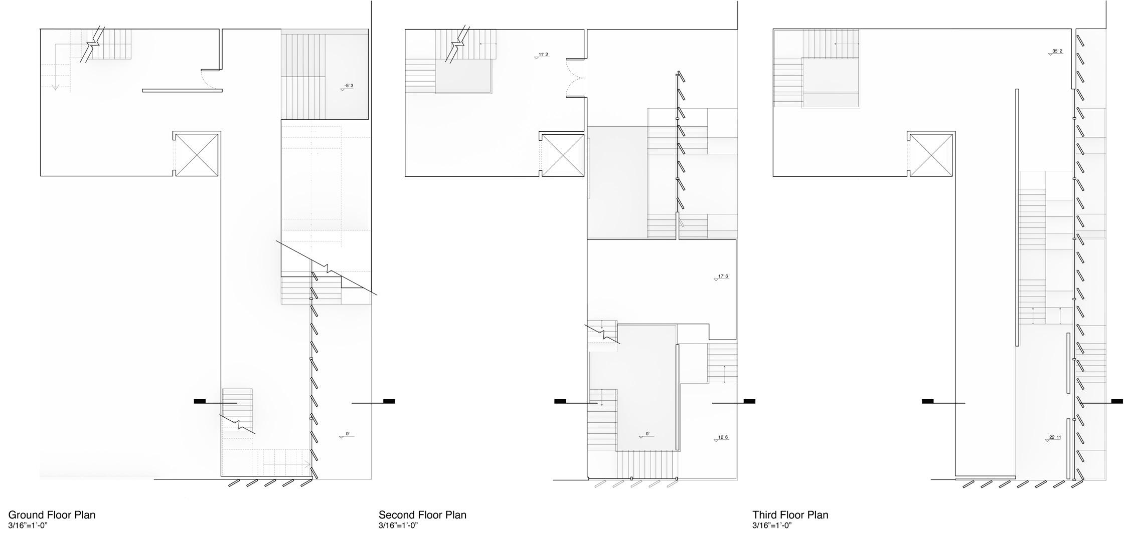
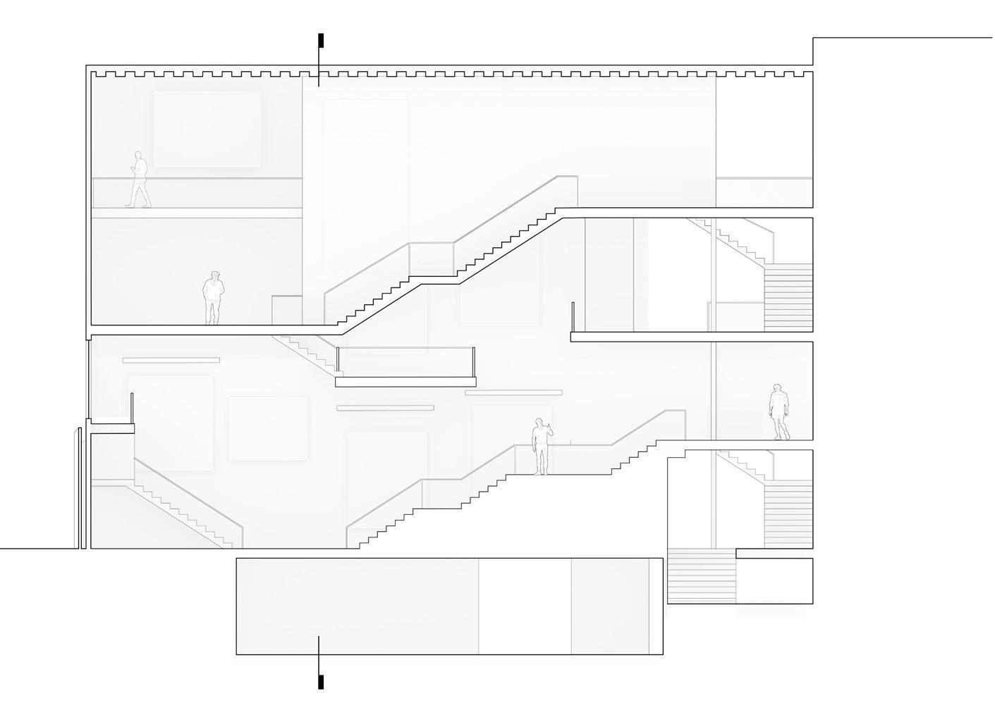
The Gallery focuses on the spatial concept of private and public space through the use of screening and translucency. The part of the façade with translucent glass is the entrance and the public gallery. The public gallery on the first floor is the most open, which people can see the large-scale installation art in the exhibition hall while walking on the road and interact with them on the stairs. As the circulation is guided by the stairs, the light transmittance of the facade material becomes lower and lower, and the exhibition hall gradually changes from a public space to a private collection.
Date: April, 2022
Advertisement
Media: Museum paper, foam core, plastic Size: 24 x 10 inch











Project 04
The Floating Pyramid
The floating pyramid is an architectural complex with performance space and an open market for the neighborhood. The shape of the inverted pyramid is inspired by the Maliki Floating School designed by Kunlé Adeyemi of NLÉ Architects. Rotating the primary structure of the A-frame 180 degrees structure of the Floating Pyramid, which is composed of primary structure, secondary structure, and lattice following a grid system through the form of tectonics. Through the analysis of the sound suit by Nick Cave, the envelope and material of the building is inspired by the artwork

Date: September, 2022
Media: Museum paper, plastic, basswoodstick Size: 12 x 12 inch





