Amr Maged Portflio-2024

Page 1

ARCHITECTURE PORTFOLIO

AMR MOHAMED MAGED

SCOPE OF WORK : VILLA UNIT CONCEPT DESIGN-3D DESIGN-VISUALIZATION

PROJECT LOCATION : ABU DHABI-SOUTH SHAMKHA

KING ABDULLAH ECONOMIC
HOUSING PROJECT

SCOPE OF WORK : UNIT DESIGN-3D DESIGN-VISUALIZATION

PROJECT LOCATION : ABU DHABI-SOUTH SHAMKHA

KING ABDULLAH ECONOMIC
HOUSING PROJECT

SCOPE OF WORK : CONCEPT DESIGN-3D DESIGN-VISUALIZATION

PROJECT LOCATION : SAUDAI ARABIA

We have defined clear meeting places at every location where there is an interface with surrounding areas of the city. We have also merged traffic-related and green elements. The master plan will therefore naturally become integrated into its context and attract a wide variety of user groups

the main Purpose of the garden is Gathering

The Building Around it And make A green Spot in The center of the city

SITE PLAN

AL ZALFI CENTRAL PARK

SCOPE OF WORK : ARCHITECTURAL DESIGN PLANS -FACADE DESIGN-3D DESIGN-VISUALIZATION

PROJECT LOCATION : ABU DHABI-TEL MOREEB

1.MOTEL UNITS

TEL MOREEB –CYCLE TRACK
Type C - Motel Type B - Motel Type A - Motel
Retail Retail Workshop/ Bicycle Rent Ground Floor 2.COMMERCIAL-MEDICAL Outdoor Cafe F & B First Floor Male Toilet Female Toilet Storage Pantry Reception Clinic Staff Office Visitor Center (Admission Office) TEL MOREEB –CYCLE TRACK

SCOPE OF WORK : FACADE DESIGN-3D DESIGN-VISUALIZATION

PROJECT LOCATION : EGYPT-HURGHADA

G-CRIBS COMPOUND

SCOPE OF WORK : CONCEPT DESIGN-BIM MODELING-VISUALIZATION

PROJECT LOCATION: MOROCCO

-PERSPECTIVES

GLORIA HOTEL PROJECT
-PLANS

SCOPE OF WORK :3D DESIGN & MODELING-VISUALIZATION

PROJECT LOCATION: MORROCO-TANJA

TAMJA 5 STAR HOTEL

SCOPE OF WORK : CONCEPT DESIGN-3D DESIGN & MODELING-VISUALIZATION

PROJECT LOCATION: SAUDI ARABIA

-PERSPECTIVES

AL KAIKE HOTEL

AMOLOJ HOTEL

SCOPE OF WORK :3D DESIGN & MODELING-VISUALIZATION

PROJECT LOCATION: SAUDI ARABIA

AL NOZHA HOTEL

SCOPE OF WORK :3D DESIGN & MODELING-VISUALIZATION

PROJECT LOCATION: SAUDI ARABIA

AL MANSOURI HOTEL

SCOPE OF WORK :3D DESIGN & MODELING-VISUALIZATION

PROJECT LOCATION: SAUDI ARABIA

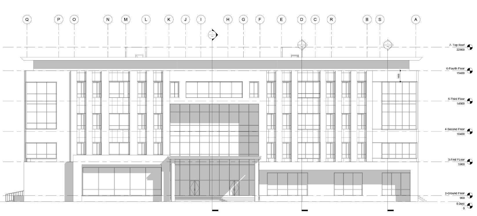
SCOPE OF WORK : ARCHITECTURAL DESIGN PLANS -FACADE DESIGN-3D DESIGN-VISUALIZATION

PROJECT LOCATION : FUJAIRAH

The form for the building has been created taking the inspiration from different levels of the mountains in Fujairah. The core of the building has been pushed back to create a shaded space in the center. The idea is to maximize the exposure to the outside world to create views for all users of the building from their workspaces FORM

Scope of Work :

The Non-Process Buildings serving the process packages include the following:

• Main headquarters/administration building

• Main Substation (Transco-compatible)

• Central Control Building (CCB)

• Main gatehouse

• Mosque

• Other Industrial Buildings

The purpose of this report is master planning the land hosting the non process buildings, both non-industrial and industrial buildings serving the project. The repo Substation.

LNG
ADNOC FUJAIRAH
1-MAIN HQ BUILDING
GENERATION
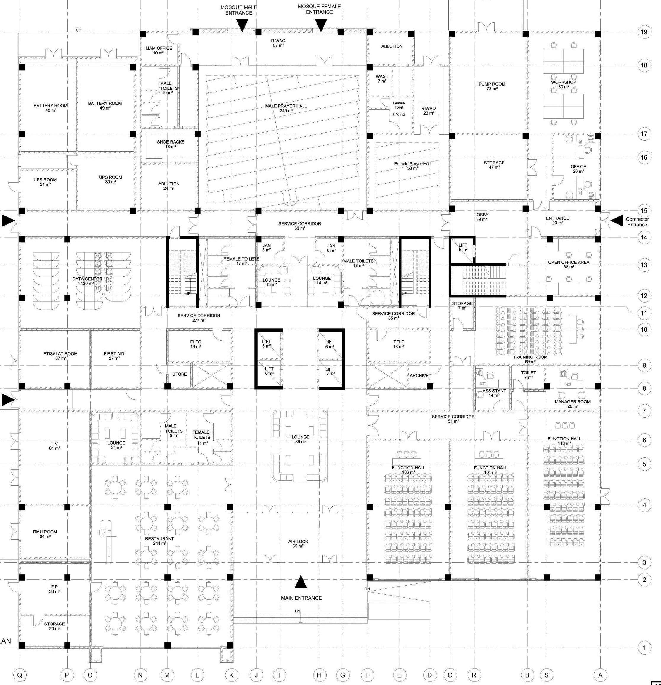
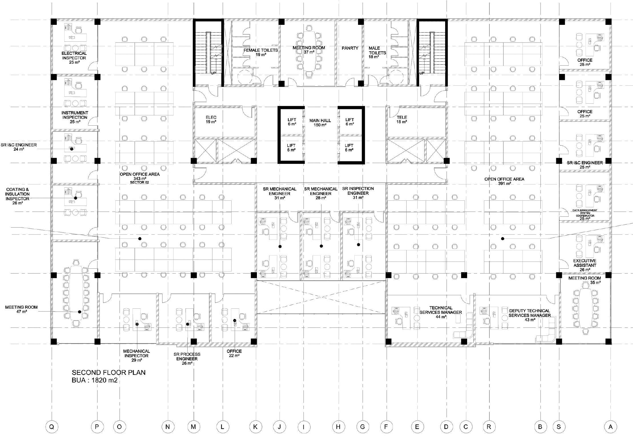
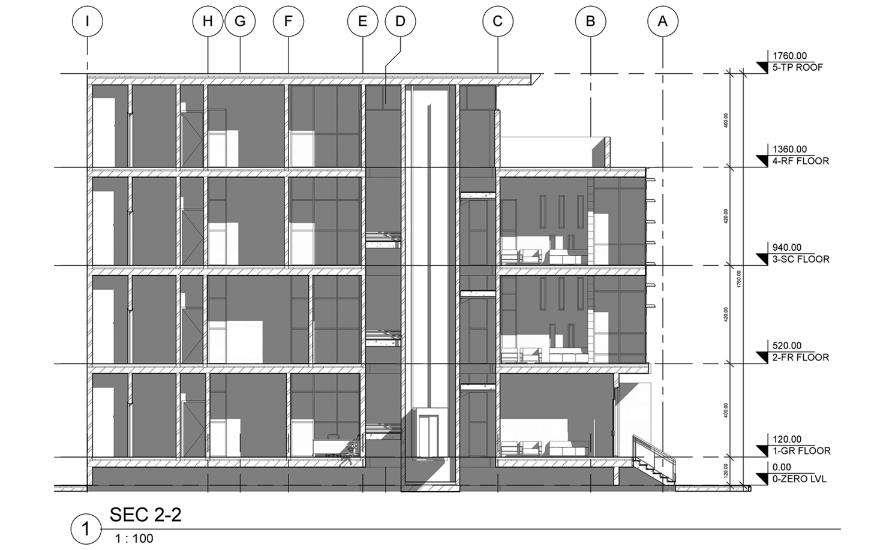
Ground Floor Plan FLOOR PLANS ADNOC FUJAIRAH LNG TYPICAL FLOOR PLAN ROOF FLOOR PLAN FORM TRANSFORMATION
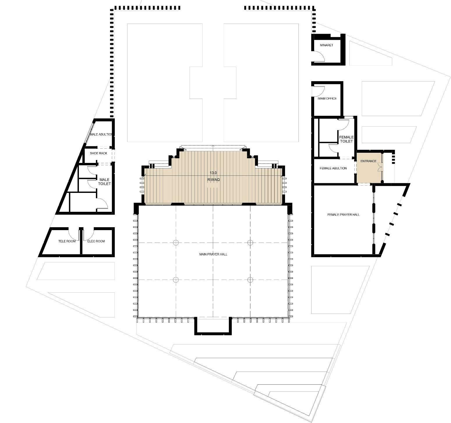
2.MOSQUE
Entrance
Main
Female Entrance Riwaq Main Prayer Hall Female Prayer Hall
ADNOC FUJAIRAH LNG
Minaret

SCOPE OF WORK : ARCHITECTURAL DESIGN PLANS -FACADE DESIGN-3D DESIGN-VISUALIZATION

PROJECT LOCATION : ABU DHABI-SOUTH SHAMKHA

OMAR ALKATHERI RESIDENTIAL BUILDING

SCOPE OF WORK : CONCEPT DESIGN-BIM MODELING-VISUALIZATION

PROJECT LOCATION: UAE - DUBAI

AL RAYAN OFFICE BUILDING

SCOPE OF WORK : CONCEPT DESIGN-BIM MODELING-VISUALIZATION

PROJECT LOCATION: UAE - DUBAI

MANSOURI OFFICE BUILDING

SCOPE OF WORK : CONCEPT DESIGN-BIM MODELING-VISUALIZATION

PROJECT LOCATION: UAE - DUBAI

AL KHORAFI HQ ALTERNATIVES

SCOPE OF WORK :FAÇADE DESIGN- 3D DESIGN-VISUALIZATION

PROJECT LOCATION : UAE-DUBAI

MIXED USE SHOWROOM

SCOPE OF WORK : 3D DESIGN-VISUALIZATION

PROJECT LOCATION : UAE-DUBAI

MEDICAL CENTER

SCOPE OF WORK : DESIGN DEVELOPMENT -3D DESIGN-BIM MODELING PROJECT

LOCATION: UAE – ABU DHABI

AL RAWDAH RESIDENTIAL BUILDING

SCOPE OF WORK : CONCEPT DESIGN-3D DESIGN & MODELING-VISUALIZATION

PROJECT LOCATION: UAE-ABU DHABI-AL REEM ISLAND

AL
OBAID TOWERS

SCOPE OF WORK : ARCHITECTURAL DESIGN PLANS -FACADE DESIGN-3D DESIGN-VISUALIZATION

PROJECT LOCATION : ABU DHABI-SOUTH SHAMKHA

OMAR ALKATHERI RESIDENTIAL BUILDING

SCOPE OF WORK : SCOPE OF WORK : CONCEPT DESIGN-3D DESIGN & MODELINGVISUALIZATION

PROJECT LOCATION: ABU DHABI-MASSNOUA ISLAND

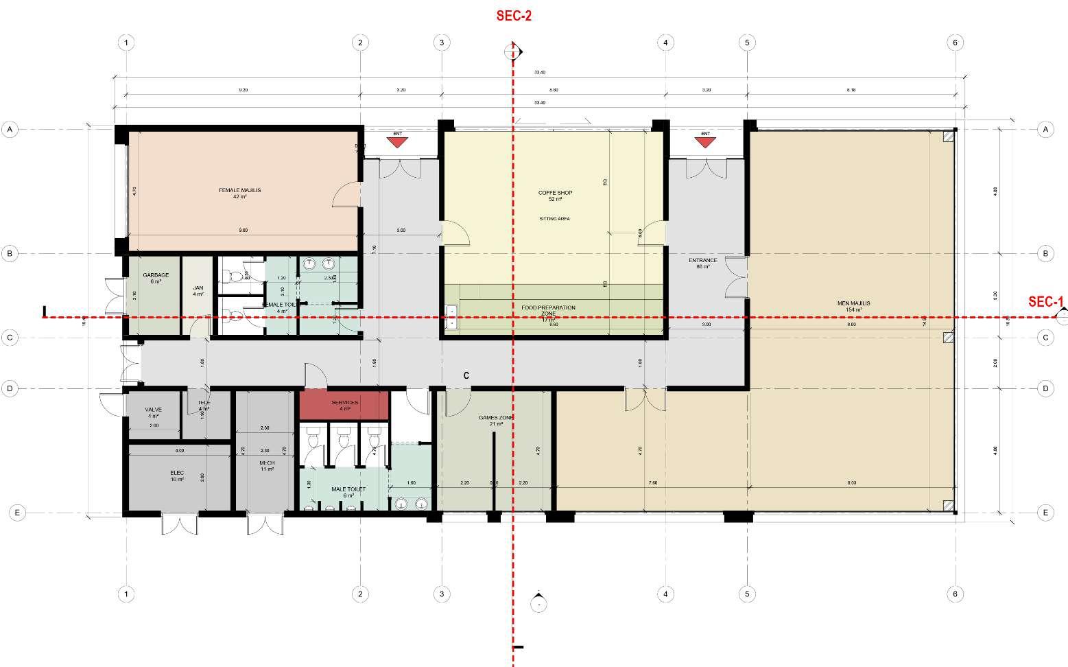
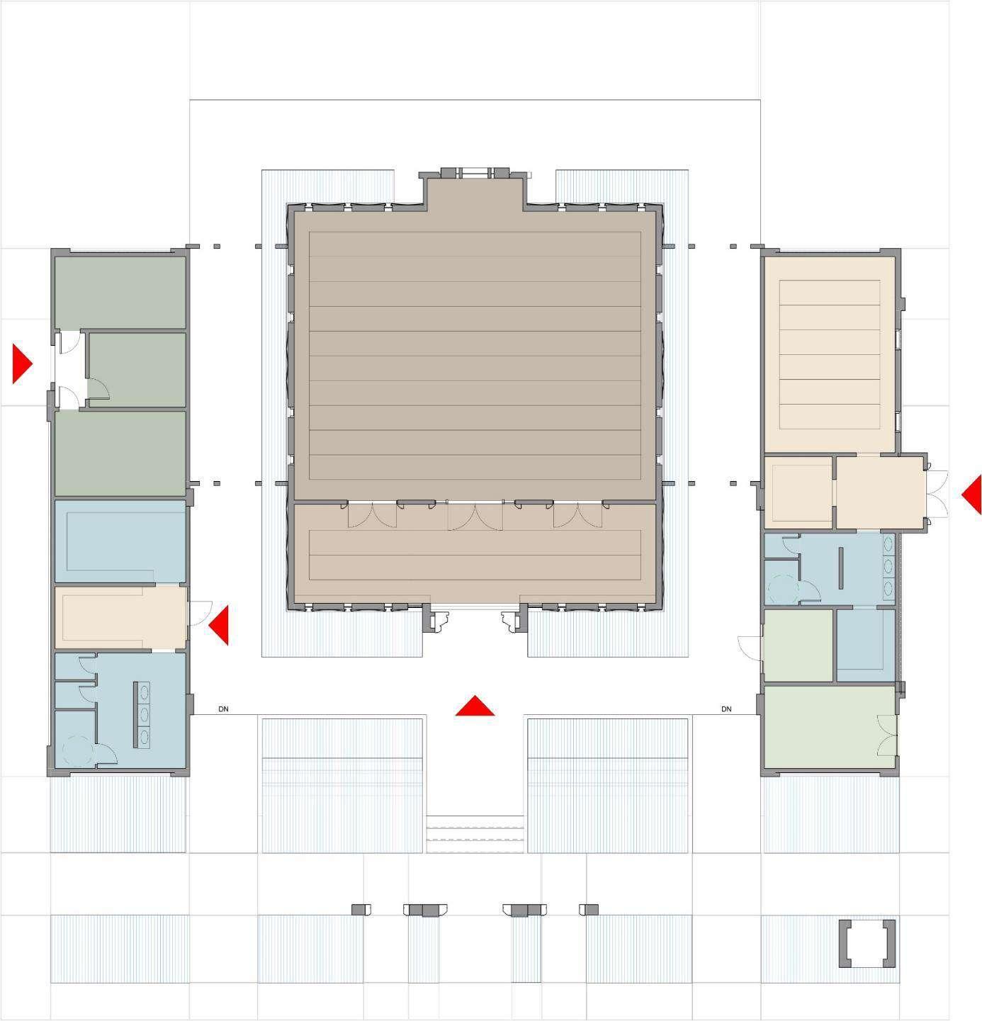
GATEWAY MALE ABLUTION MAIN PRAYER HALL

FEMALE PRAYER HALL & ABLUTION

The concept for the Mosque circles around the idea of “ Purity and Peace”

Designed keeping in mind the serenity the atmosphere demands, the purity of the colors and shapes used to create the design speaks for itself by creating a sense of peace for the worshippers.

The simplicity of the design allows the worshippers to calm their mind and focus on offering their prayers.

The design journey begins at the “Gateway” which is both philosophical in its presence and acts a literal entry way into the premises. The isolated archway which forms the “ Gateway” helps to create a sense of enclosure without the physical enclosure. The reflective pools and the gentle cascade at the entrance sets the ambience for the worshippers.

The ablution area has been isolated from the main prayer hall for ease of maintenance and create a journey for the worshippers.

The ascent to reach the main prayer hall which is at a higher level than the entrance gateway is representative of leaving behind the day to day world and moving into the spiritual universe.

The female prayer hall is located to the right of the main prayer hall with a dedicated entrance to maintain the privacy and also mimics the essence of the entrance of the main prayer hall.

2 1 4 3 MAIN PRAYER HALL 260 sqm STORAGE 26 sqm IMAM OFFICE 12 sqm RIWAQ 86 sqm SHOE RACK 20 sqm ELEC ROOM 23 sqm TELECOM 17 sqm MECH 27 sqm M.ABULTION 26 sqm M.TOILET 33 sqm F.ABULTION 10 sqm F.ENTRANCE 15 sqm SHOE.RACK 12 sqm FEMALE PRAYER HALL 62 sqm F.TOILET 22 sqm MAIN ENTRANCE ABULTION -ENTRANCE MEP 2 1 4 3 ADLI MOSQUE- (ABU DHABI LUXURY ISLAND )
1 2 3 4
1 2 3
4
Façade unit is refer to the spirit light coming out when you open and read the holy Quran
ADLI MOSQUE- (ABU DHABI LUXURY ISLAND ) -PERSPECTIVES

SCOPE OF WORK : 3D DESIGN-BIM MODELING-VISUALIZATION

PROJECT LOCATION: ABU DHABI

ALI HAMEL
MOSQUE

SCOPE OF WORK : CONCEPET DESIGN -3D DESIGN-BIM MODELING-VISUALIZATION

PROJECT LOCATION: TAJOURA-LIBYA

TAJOURA MOSQUE

SCOPE OF WORK : CONCEPT DESIGN-3D DESIGN-VISUALIZATION

PROJECT LOCATION: ABU DHABI

AWQAF MOSQUE COMPETITION

ENEC (EMIRATES NUCLEAR ENERGY COOPERATION )

STAFF ACCOMMODATION

OUR SCOPE IS THE FULL ARCHITECTURAL DESIGN FOR THE FOLLOWING BUILDINGS :

• BARAKAH CENTER

• MAJILIS

• MOSQUE

SCOPE OF WORK : ARCHITECTURAL DESIGN PLANS -FACADE DESIGN-3D DESIGN-VISUALIZATION

PROJECT LOCATION : ABU DHABI-

1-BARAKAH CENTER

-FLOOR PLAN

2-MAJILIS -FLOOR PLAN

2-MAJILIS -ELEVATIONS

3-MOSQUE -FLOOR PLAN

ENEC (EMIRATES NUCLEAR ENERGY COOPERATION ) STAFF ACCOMMODATION

SCOPE OF WORK : CONCEPT DESIGN-BIM MODELING-VISUALIZATION PROJECT LOCATION:

SAUDI ARABIA-RIYADH

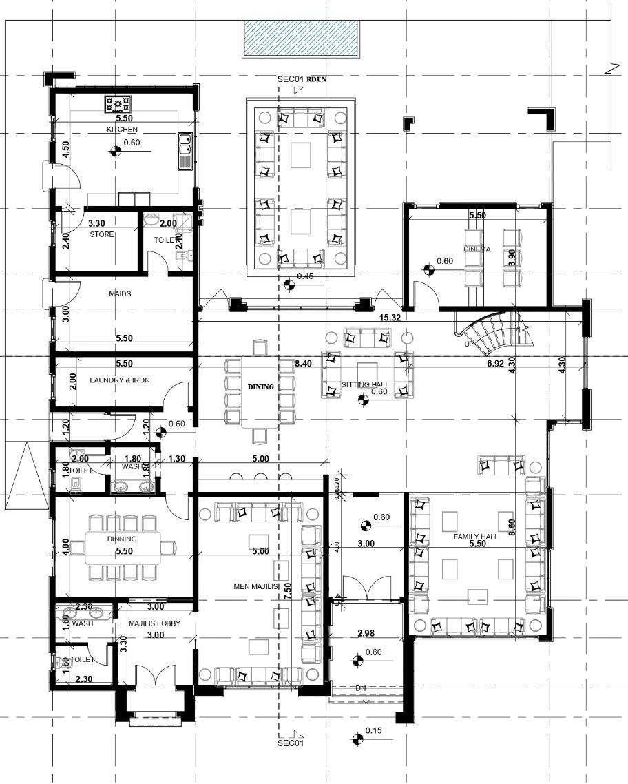
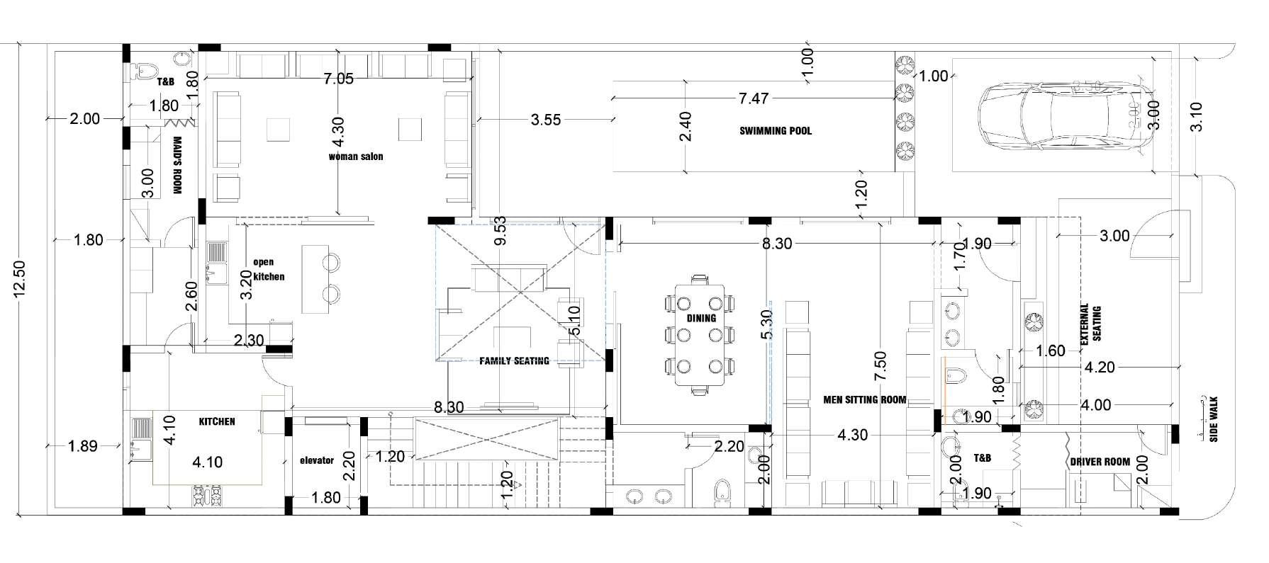
VILLA COMPOUND
-UNIT DESIGN

SCOPE OF WORK : CONCEPT DESIGN-BIM MODELING-VISUALIZATION

PROJECT LOCATION: SAUDI ARABIA-RIYADH

MODERN VILLA02

NEW CLASSIC VILLA 01

SCOPE OF WORK : CONCEPT DESIGN-3D DESIGNVISUALIZATION

PROJECT AREA : 800 M2

Location: ABU DHABI -AL SHAMKHA SOUTH

MODERN VILLA 05

SCOPE OF WORK : CONCPET DESIGN-3D DESIGN &MODELING-VISUALIZATION

PROJECT AREA : 600 M2

CLASSIC VILLA 01

LOCATION: SOUTH SHAMKHA-ABU DHABI

SCOPE OF WORK : CONCEPT DESIGN-3D MODELING-VISUALIZATION

PROJECT AREA : 800 M2

MEDITERRANEAN VILLA

LOCATION : AL MUSHRIF –ABU DHABI

SCOPE OF WORK : CONCEPT DESIGN-3D DESIGN-VISUALIZATION

PROJECT AREA : 1300 M2

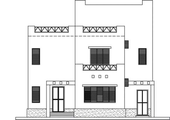
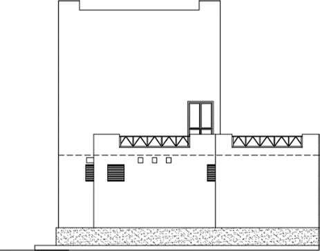
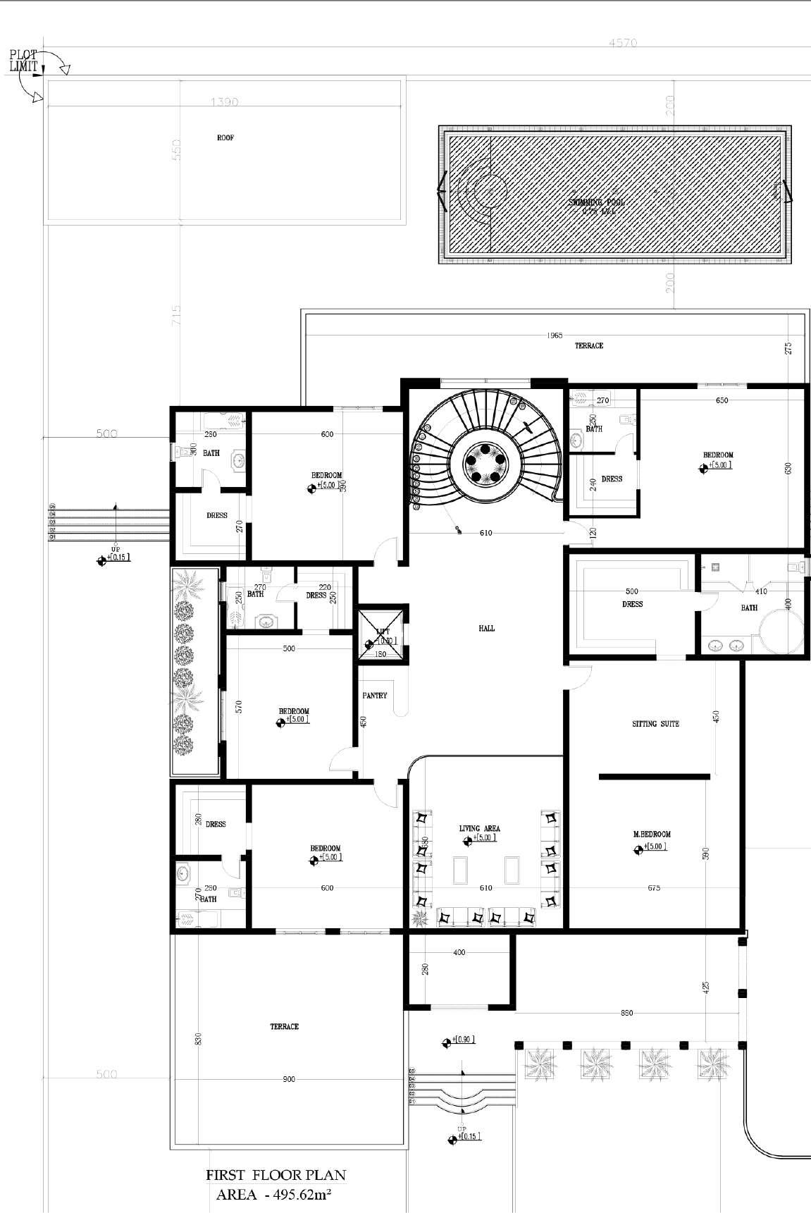
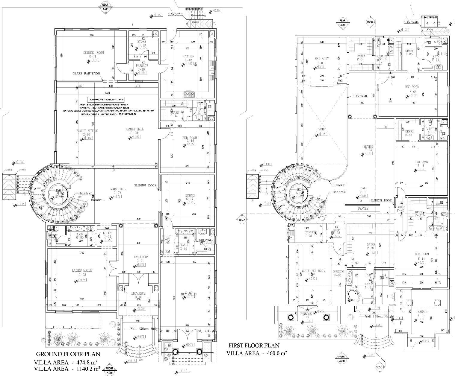
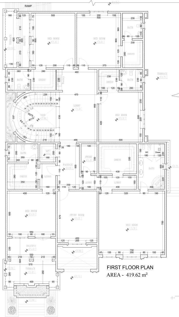
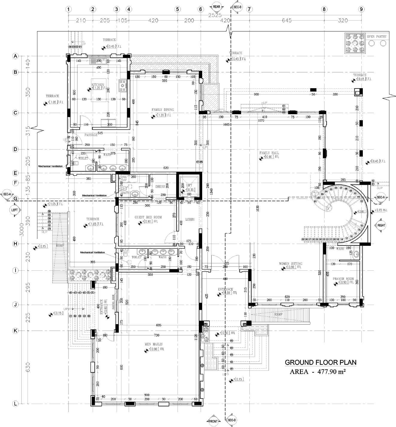
SCOPE OF WORK : CONCEPT DESIGN-3D DESIGN-VISUALIZATION

PROJECT AREA : 1300 M2

ISALMIC VILLA

SCOPE OF WORK : CONCEPT DESIGN-3D DESIGN-VISUALIZATION

PROJECT AREA : 1300 M2

Location: UAE-ABU DHABI-MBZ

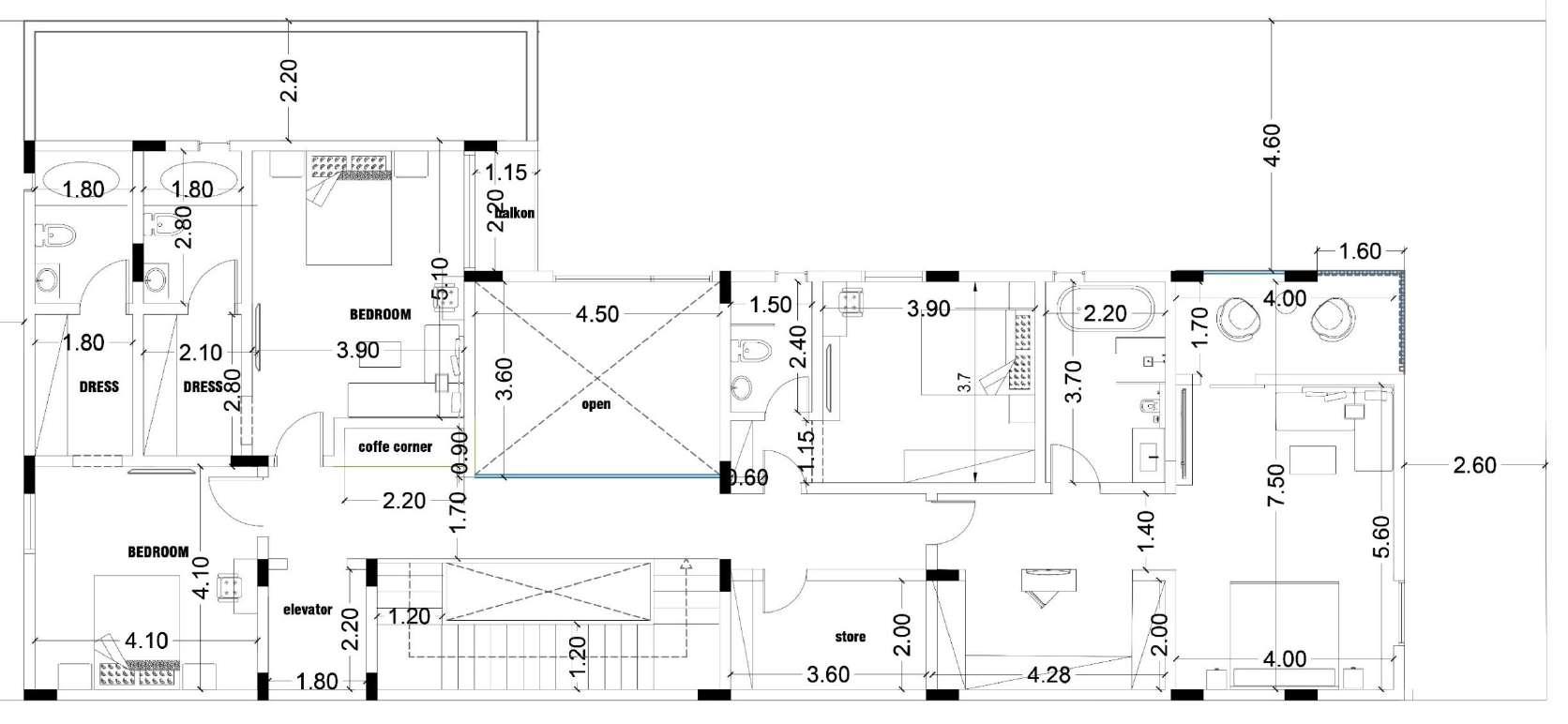
NEW CLASSIC VILLA 02

SCOPE OF WORK : CONCEPT DESIGN-3D DESIGN-VISUALIZATION

PROJECT AREA : 800 M2

Location: ABU DHABI -AL SHAMKHA SOUTH

CLASSIC VILLA 02

MODERN VILLA 03

SCOPE OF WORK : CONCEPT DESIGN-3D DESIGN-VISUALIZATION

PROJECT AREA : 600 M2

Location: UAE-ABU DHABI

MODERN VILLA 04

SCOPE OF WORK : CONCEPT DESIGN-3D DESIGN-VISUALIZATION

PROJECT AREA : 650 M2

Location: ABU DHABI -AL SHAMKHA SOUTH

Turn static files into dynamic content formats.

Create a flipbook
Issuu converts static files into: digital portfolios, online yearbooks, online catalogs, digital photo albums and more. Sign up and create your flipbook.