Abdelmonem Ibrahim - Architecture Portfolio 2023

Page 1

Portfolio Abdelmonem Ibrahim 2023 ARCHITECTURE

Abdelmonem Ibrahim

Architekt | BIM Specialist

12059 Berlin, Deutschland

amoniem.ibrahim@gmail.com

linktr.ee/abdelmonem

+(49) 15257331803

Ausbildung

MA. in Architecture DIA Bauhaus

Oct. 2018 - März 2021

Hochschule Anhalt, Dessau, Deutschland

Erasmus Program

Oct. 2019 - Jan. 2020

University of Liverpool, Liverpool, UK

Bachelor of Architectural Engineering

Oct. 2006 - Aug. 2011

Zagazig University, Sharkia, Ägypten

Sprachen

Workshops

Evolving Permutations/ Generative Design

DigitalFutures 2022/ Juni 2022

Performance-based Building Massing

DigitalFutures 2021/ Juni 2021

Photogrammetry Based Generative Design

CAADRIA2021/ März 2021

AI In+form: Bio-inspired Solar Designs

CAADRIA2021/ April 2021

HI-Cy:Hybrid Intelligence Cy-Matters

DigitalFutures 2020/ Juni 2020

Referenzen

Piotr Musierowicz - Geschäftsführer - WERK PM Architektur GmbH

musierowicz@werkpm.de

Marco Mondello - Teamleiter BIM bei CKSA & Lecturer at Hochschule Anhalt

Linkedin

Sameh Balo - Architekt bei 2ABauArt GmbH

s.balo@2a-bauart.de

Deutsch Englisch Arabisch Muttersprache A1 A2 B1 B2 C1 C2 A1 A2 B1 C1 C2 B2

Berufserfahrung

AgroSolar Europe GmbH - Berlin, Deutschland

Aug. 2022 - Juli. 2023

Agri photovoltaic system / Baugenehmigung, Visualisierung

Erstellung von Zeichnungen für Baugenehmigungsanträge.

Zusammenarbeit mit dem leitenden Architekten an über 10 Projekten Deutschlandweit.

Zusammenarbeit mit Technikern, Umweltgutachtern und Projektmanagern, um eine klare Kommunikation und einheitliche Zeichnungen für das Projekt zu gewährleisten.

Errichtung einer effizienten Ordnerstruktur für die technischen Abteilungsdateien.

2A BauArt - Berlin, Deutschland

Okt. 2021 - März. 2022

Wohnhäuser, Seniorenwohnungen / Visualisierung

Selbstständige Visualisierung und Animation architektonischer Inhalte für Wohnhäuser und Seniorenwohnungen.

Mitarbeit und Erstellung von Architekturzeichnungen für Wohngebäude LPH 1-4 HOAI.

Erstellen von BIM-Modellen, Verwaltung von BIMcloud.

Inform AG - Leipzig, Deutschland

Mai 2020 - Dez. 2020

Wohngebäude / Visualisierung

Renovierung von Wohnhäusern LPH 1-5 HOAI.

Erstellen von Architekturzeichnungen und 3D-Visualisierung für Wohnprojekte.

Erstellen von BIM-Modellen, Verwaltung von BIMcloud.

Art Vision Architects - Kairo, Ägypten

Jan 2016 - Sep. 2018

Wohngebäude, Büroräume, Hotels, Bildungsbauten / Visualisierung

Mitarbeit und Entwurfsgestaltung in verschiedenen Projekten.

Unterstützung bei Wettbewerben und Machbarkeitsstudien.

Erstellung von Architekturzeichnungen für Wohngebäude, Schulbauten und Hochschulen Projekten LPH 1-4 HOAI.

Yara Societe Construction - Conakry, Guinea

Okt 2014 - Oct 2015

Leitung von Bauarbeiten LPH 5-9 HOAI für 2 Großprojekte.

Acht Wohntürme mit insgesamt 360 Wohnungen auf 17 Etage, Budget von 30$ Mil.

Conakry Hauptmarkt mit 16 Büros und 800 Geschäften, Gesamtfläche ca. 55000 Quadratmeter und Budget von +50$ Mil

Vision Consultants - Kairo, Ägypten

Juli 2012 - Okt 2014

Wohngebäude / Innenräume / Visualisierung

Erstellung von Architekturzeichnungen und 3D-Visualisierung für Wohngebäude, Kulturbauten.

BIM

Archicad

Revit

Vectorworks

Parametric

Rhino

Grasshopper

Dynamo

Modeling

3D Max

Autocad

Sketch up

Render Engines

Vray

Unreal Engine

Twinmotion

Post production

Photoshop

Indesign

Davinci Resoulver

Allgemein

Office suite

Derzeit lernen

Python

C# html

css

Computerkenntnisse

CONTENTS

Der Stern

Residential, LP1-4, Professional 2022

Chemnitz Haus

Residential, LP1-4, Renovation, 2020

Modern Villa

Residential, Professional 2018

Beirut Hotel Room

Interior - Competetion, 2018

Der Stern

Prinzregentenstraße, Berlin, Germany

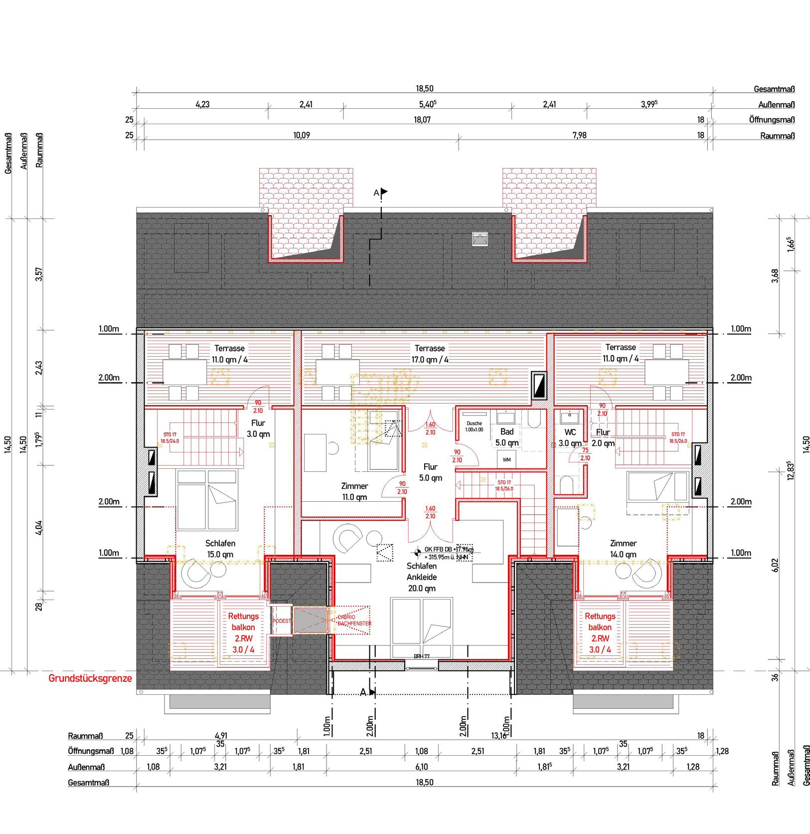
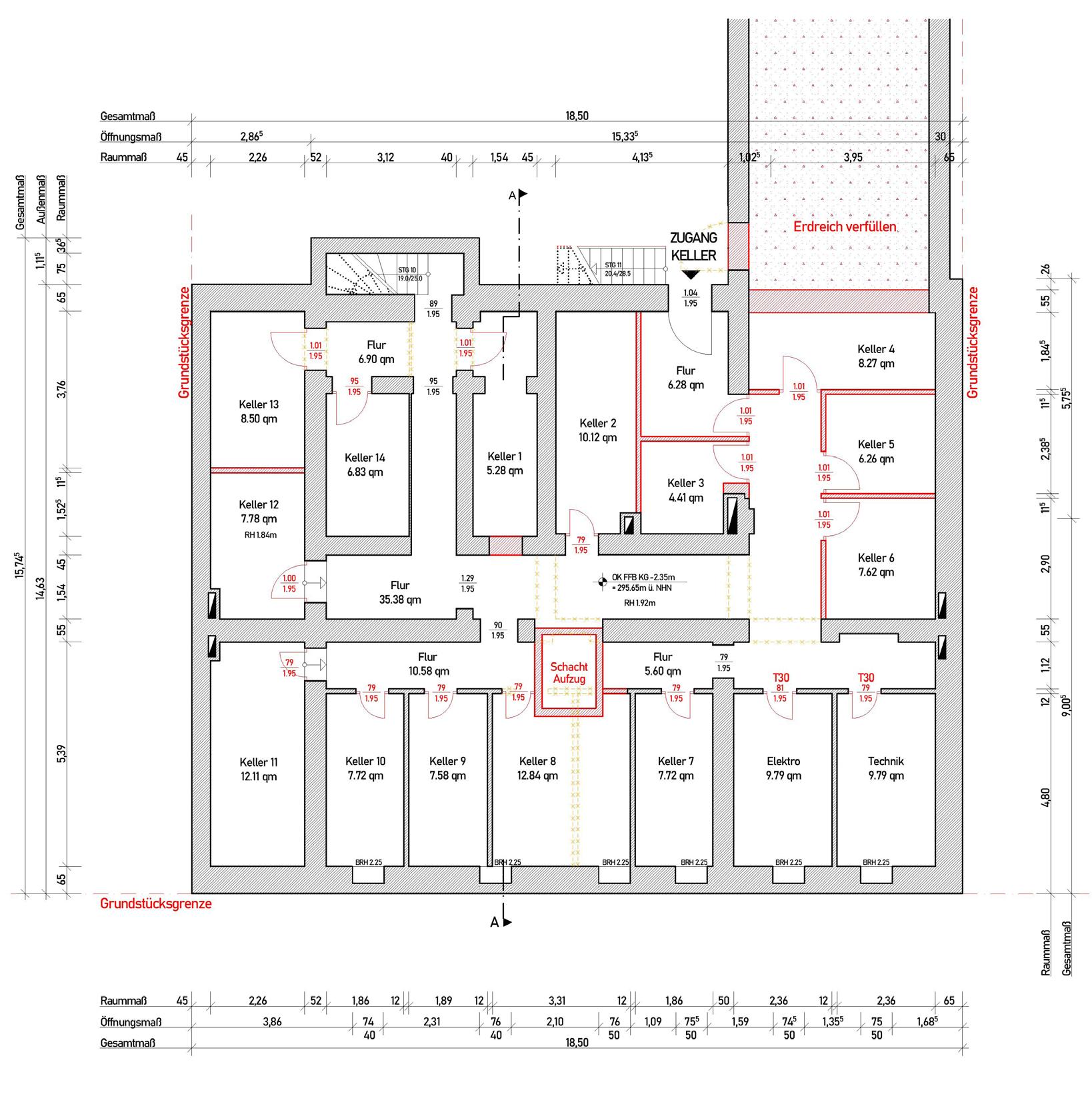
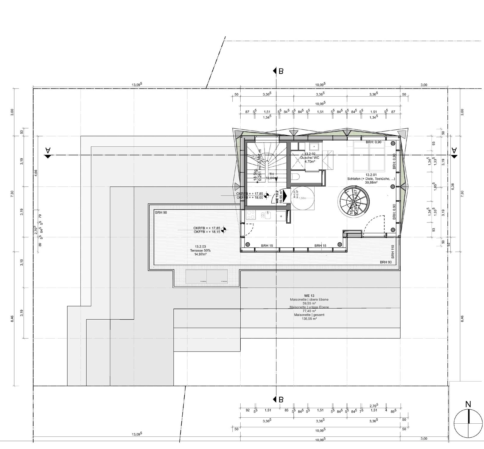
Der Stern is an innovative building that combines ground-floor office spaces with a diverse range of residential units across its six stories above. The standout feature of this gem is its striking facade, designed to resemble a glistening diamond within an inviting interior courtyard. My role involved crafting a bold and distinctive facade that not only met aesthetic goals but also seamlessly integrated with the building’s structural requirements. The result is a facade that captures attention and adds a touch of brilliance to Berlin’s urban landscape.

During this project, I got a good understanding of the Baunutzungsverordnung and Bauordnung Berlin and how to create a good design while also complying with the local legislations, and how to maximize the property value.

Leveraging my expertise in Building Information Modeling (BIM), I played a crucial role in modeling the complex geometry of the facade. I used Rhino and Grasshopper to create a precise digital representation, ensuring a seamless translation to the construction phase using Vectorworks.

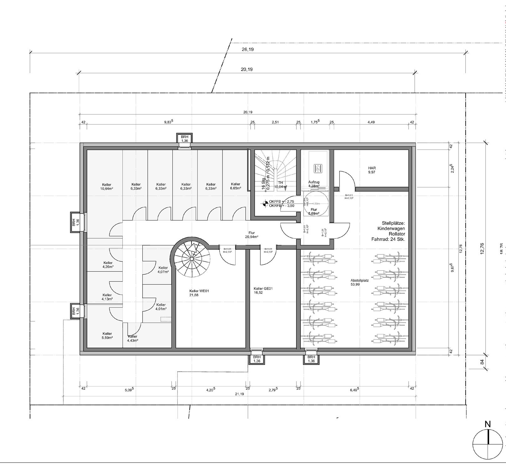
Kellergeschoss Grundriss

Erdgeschoss Grundriss

1. OG Grundriss 2. OG Grundriss
3. OG Grundriss 4. OG Grundriss
5. OG Grundriss 6. OG Grundriss
Ansicht Nord Ansicht Ost
to
Click the Youtube Icon
watch the animation

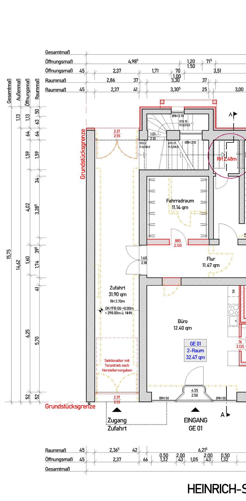
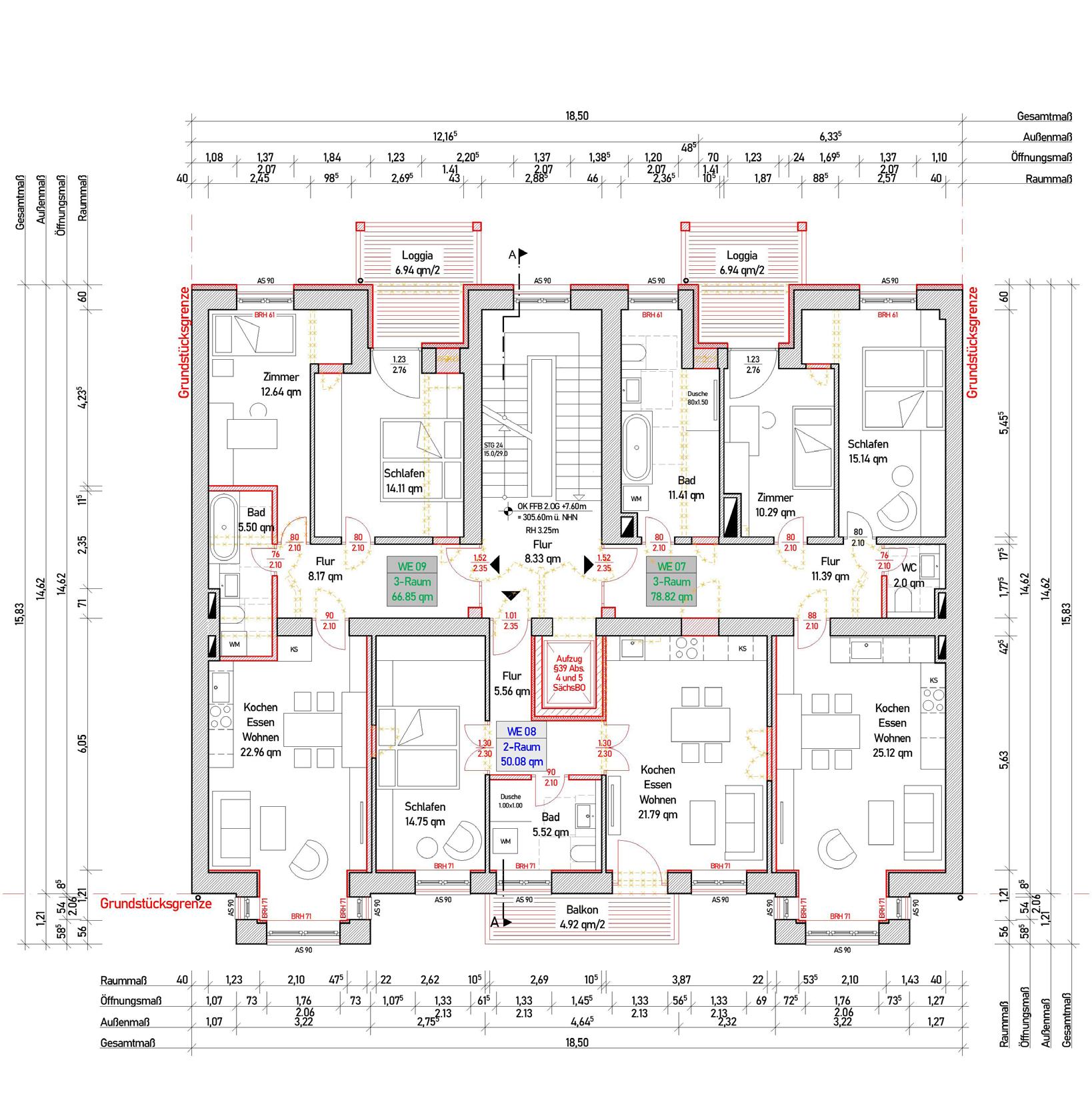
Chemnitz Haus

Bauvertrag / Renovation Project

Chemnitz, Germany

As part of this challenging renovation project for an aging building, I collaborated closely with the senior architect to document the existing structure. Our initial efforts involved conducting on-site measurements to gather precise data about the building's current state. Using ArchiCAD, I then translated this data into a detailed BIM model, capturing the building's exact conditions.

In this project I introduced the ArchiCAD teamwork framework. which was in its first use at the office, I managed to set it up, and teach other fellow cleages how to use it properly. This allowed our team to engage in real-time file editing, fostering a dynamic and synchronized workflow. As a result, our collective efficiency soared, and we achieved remarkable progress.

Strassenansicht

The renovation phase was equally demanding, requiring the development of comprehensive drawings that outlined our design vision. Working diligently, I utilized ArchiCAD's powerful tools to create Bauvertrag drawings, ensuring that our design aligned seamlessly with the existing structure and met all necessary specifications

Kellergeschoss Grundriss Erdgeschoss

1. OG Grundriss Erdgeschoss Grundriss
2. OG Grundriss
3. OG Grundriss

Dach Grundriss

Dachboden Grundriss

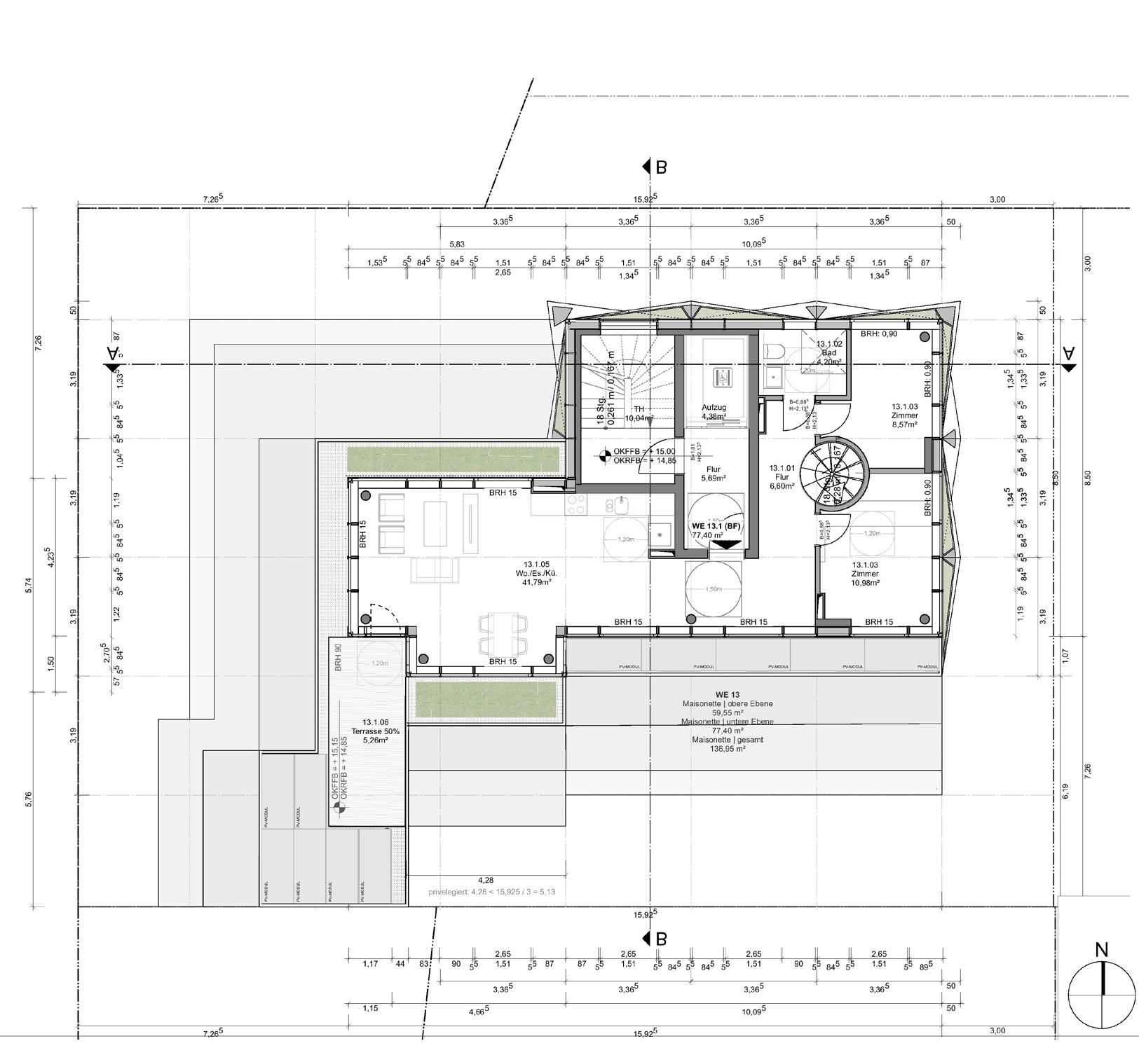
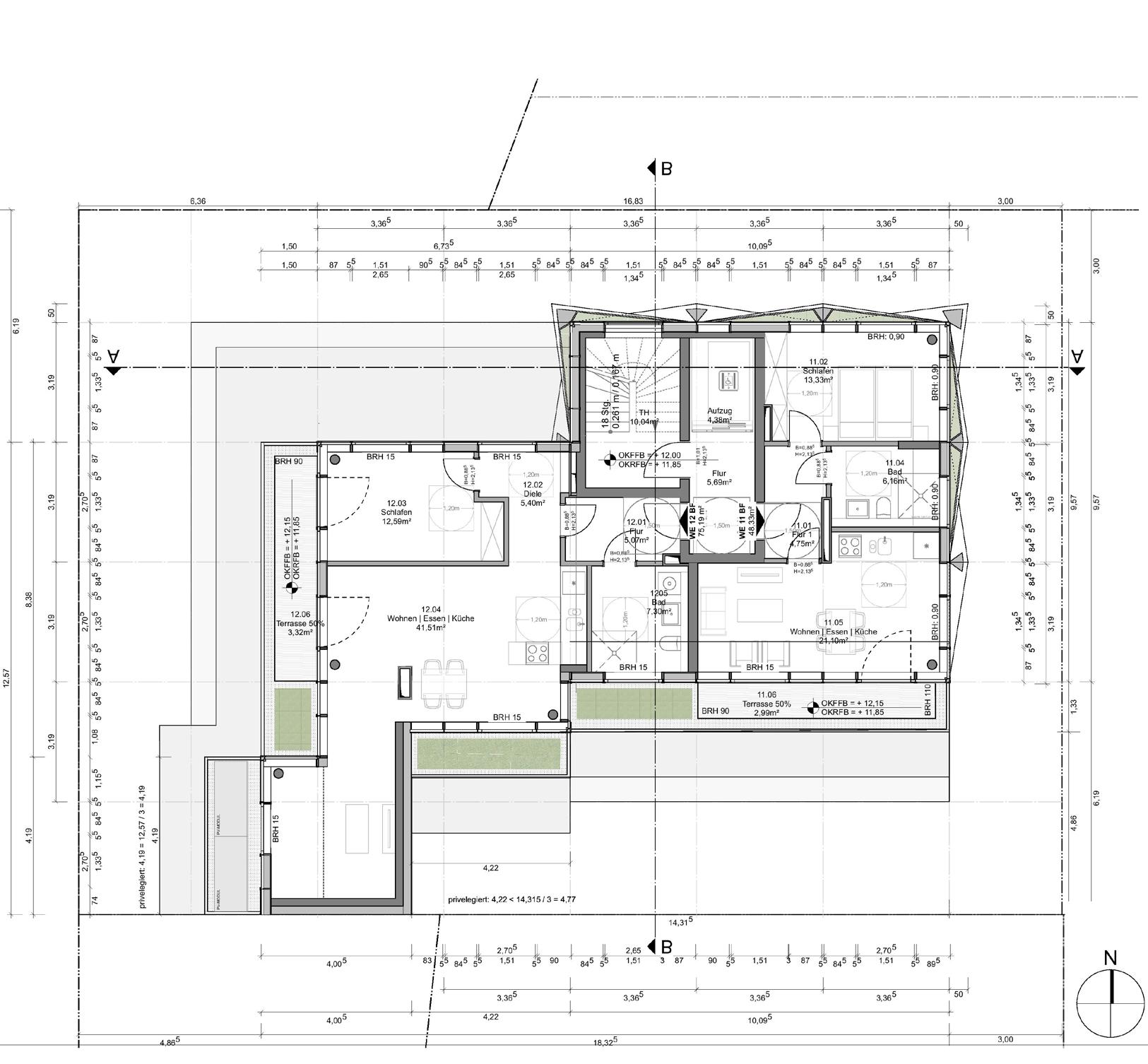
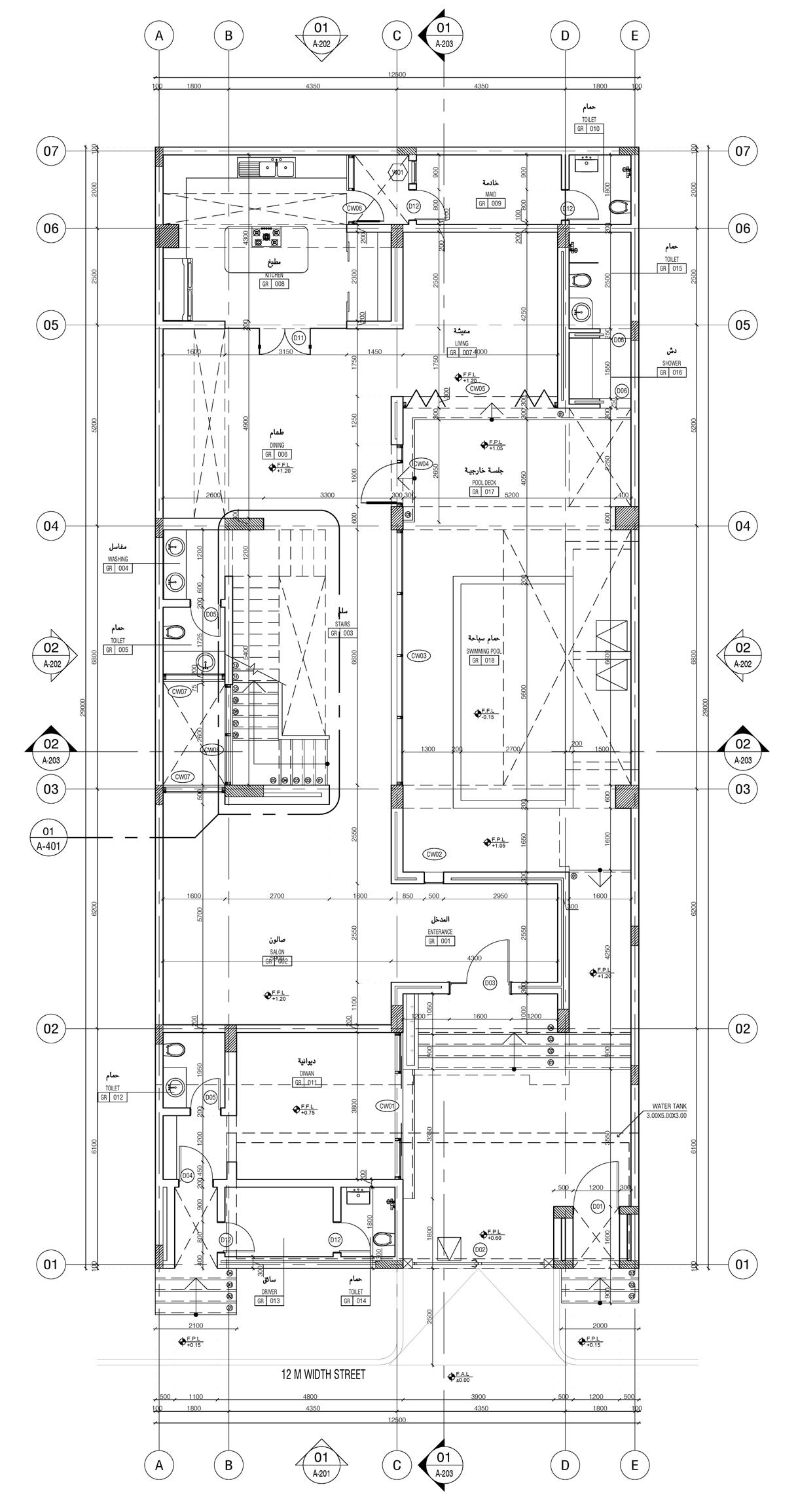
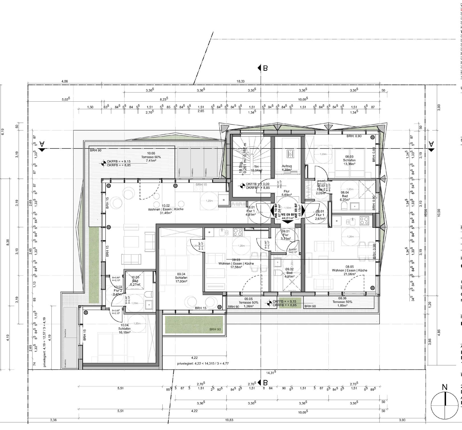
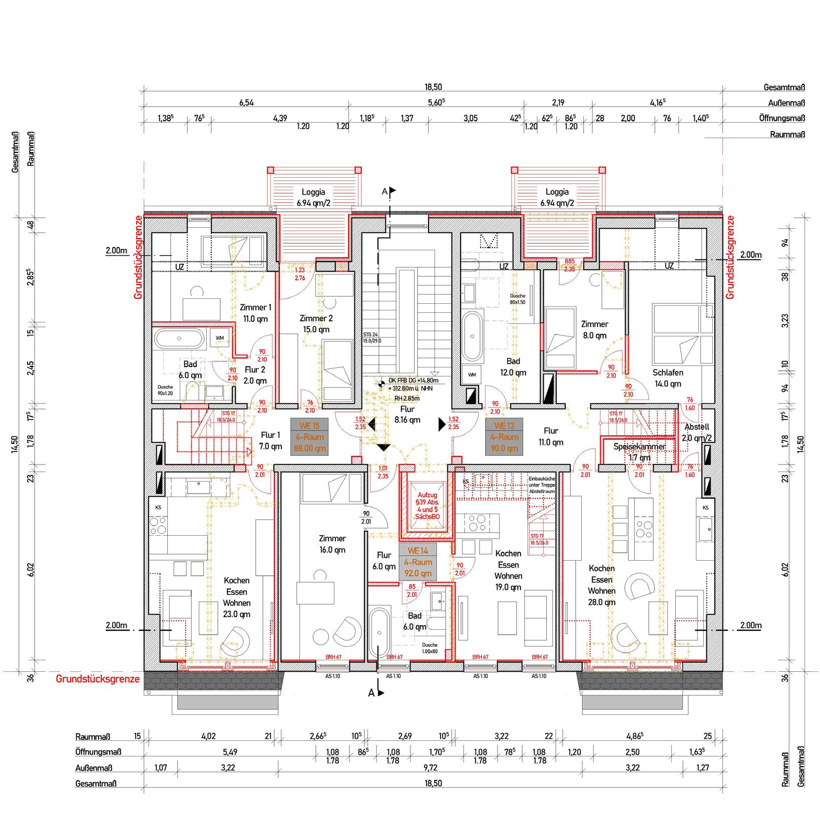
Modern Villa in Saudi Arabi

Our project encompasses the creation of a stunning modern villa situated in the heart of Saudi Arabia. Designed to cater to the unique lifestyle and preferences of a Saudi family, this two-story residence above the ground floor exudes contemporary elegance and sophistication.

The entire design process was executed using Autodesk Revit. As the lead architect on this endeavor, I undertook the crucial role of coordinating the construction of the digital model, ensuring seamless collaboration across multiple departments. This harmonious interplay extended to structural engineering, HVAC (Heating, Ventilation, and Air Conditioning), and electrical systems.

Salon Stairs Dining Kitchen Living HK Diwan
Ground Floor

Utilizing BIM was pivotal in achieving our goal of delivering a villa that perfectly aligns with our client's vision and requirements. This allowed us to work cohesively, enabling every department to contribute to the design, detect and resolve potential clashes or discrepancies, and ensure that the villa met the highest standards of functionality and aesthetics.

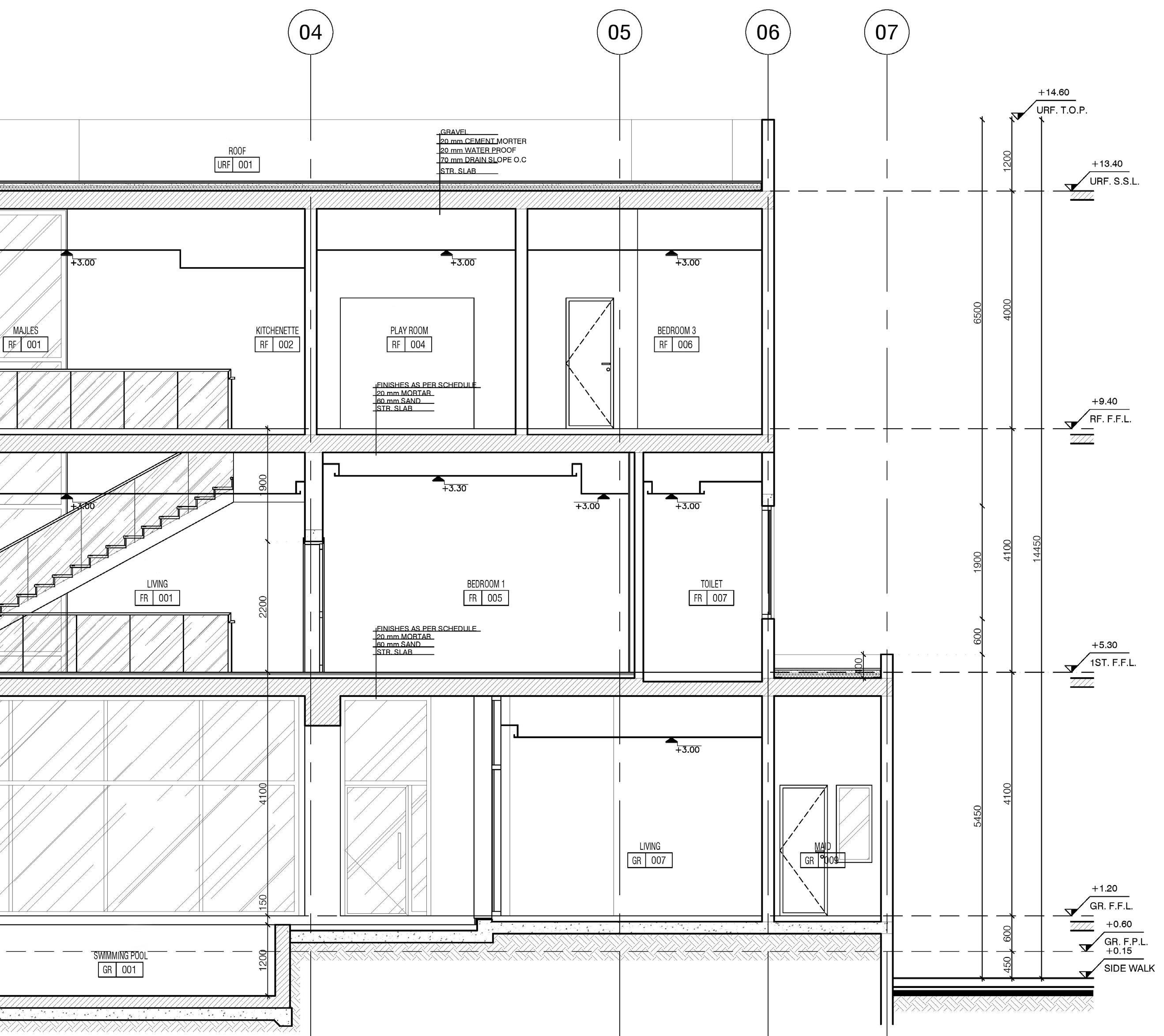
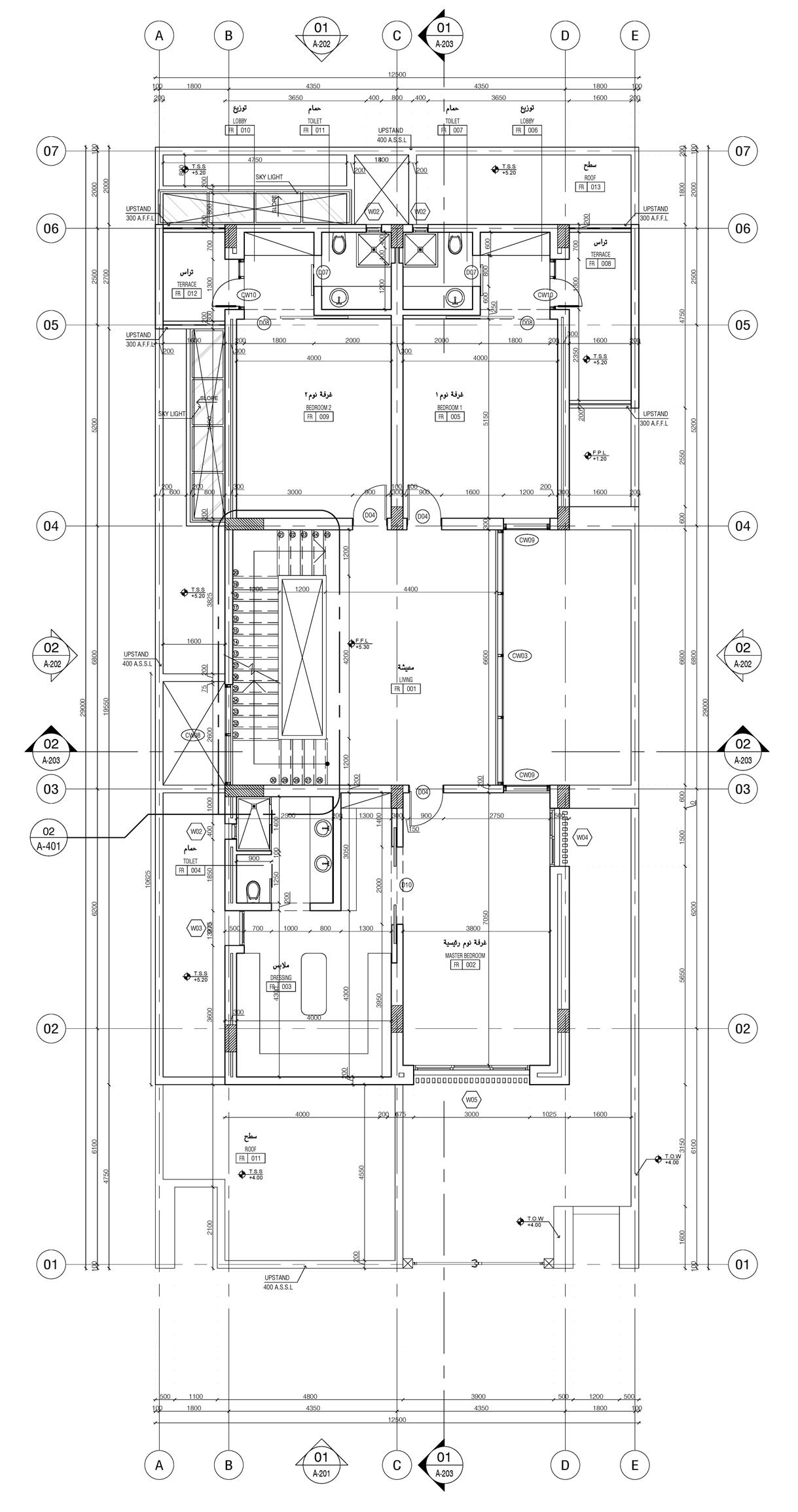
Main Br. Stairs First Floor Dressing Living Br.1 Br. 2

At the heart of this project was a profound commitment to our client. The villa's design not only captures the essence of modern architecture but also caters to the distinct lifestyle and cultural nuances of our Saudi family. Every facet of the villa, from its spacious interiors to its inviting outdoor spaces, has been meticulously crafted to align with our client's desires and needs.

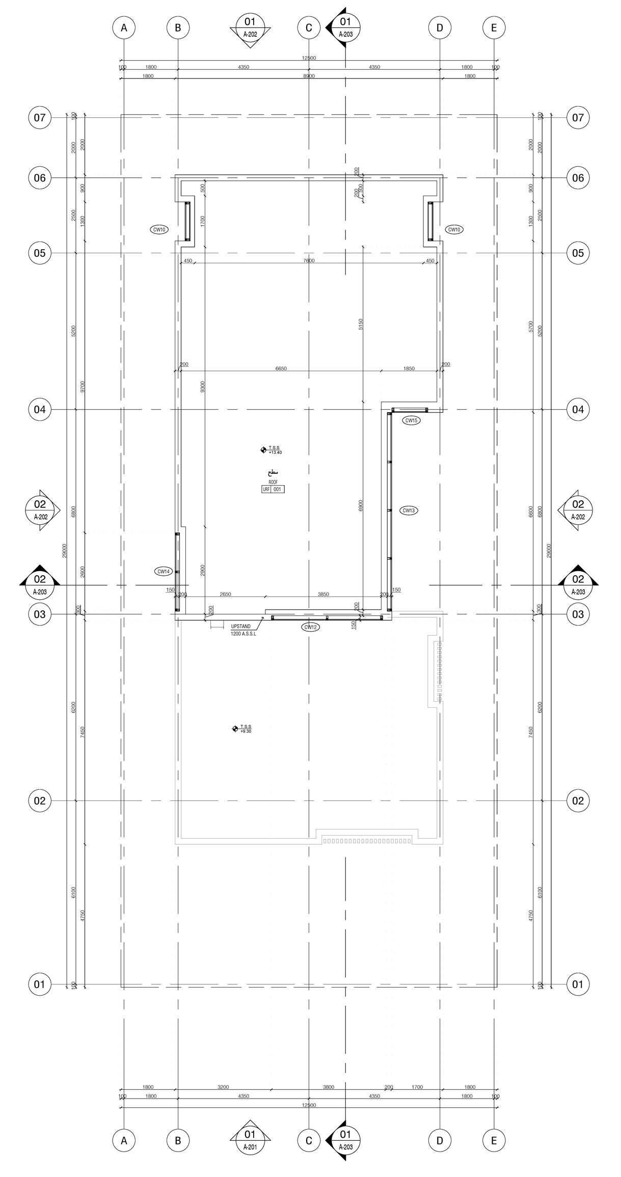
Roof
Floor GYM Gaming Br.3
Second

The culmination of our efforts is a modern villa that seamlessly blends elegance, functionality, and innovation. This home reflects the aspirations of a Saudi family while incorporating the latest advancements in architectural design and construction. It stands as a testament to the power of collaboration, where Autodesk Revit and BIM facilitated the realization of a vision, resulting in a dwelling that harmoniously encapsulates the essence of modern living in Saudi Arabia.

Villa Model Prespective
Ground Floor Plan First Floor Plan Second Floor
Floor Plan Roof Floor Plan Site Plan
Section 1-1

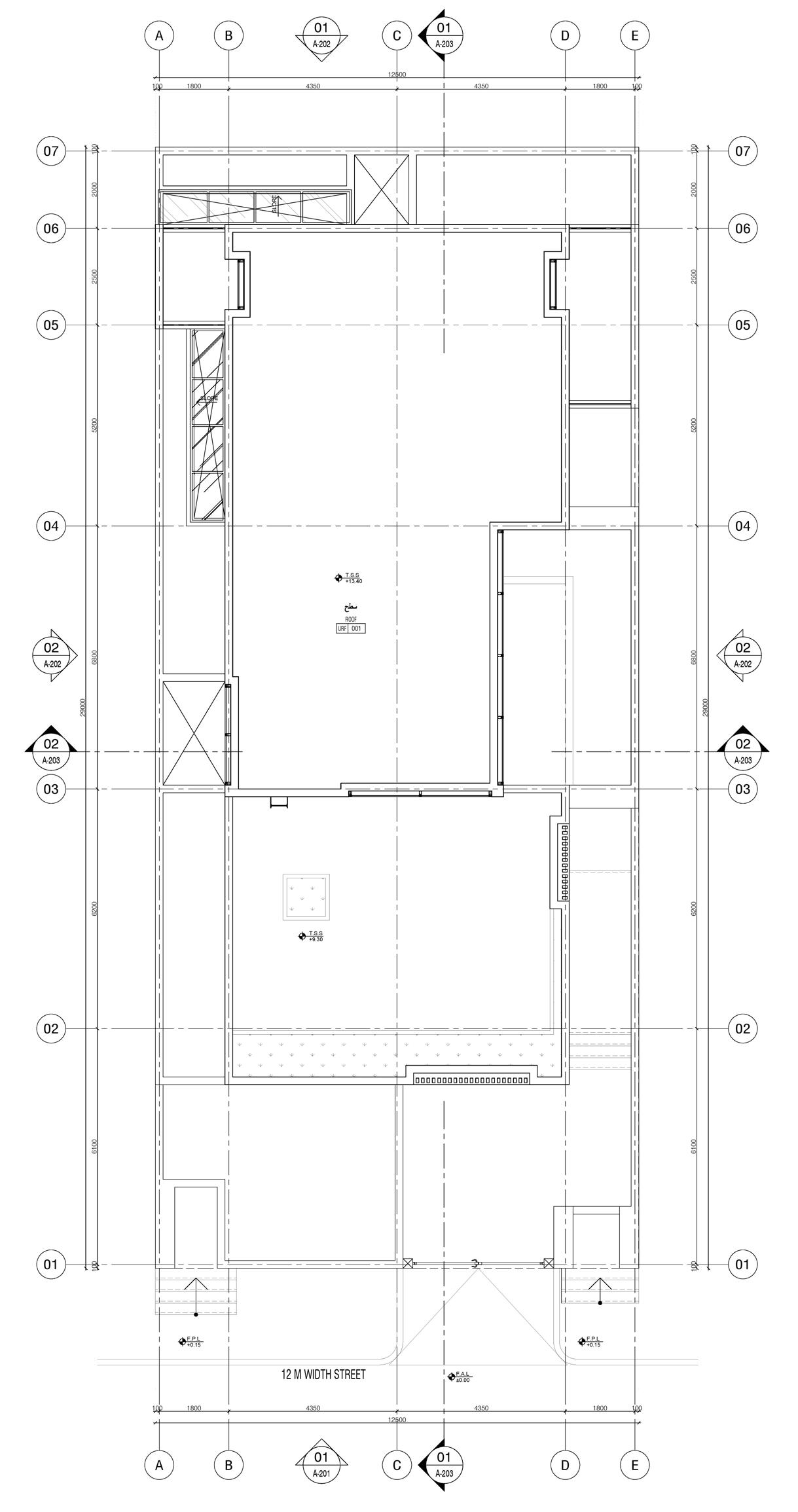
Beirut Hotel Room

Beirut, Lebanon

The client was a new lifestyle hotel/co-living establishment, looking for fresh ideas for the interior design of their rooms. they targeted customers are new age technologically savvy millennial travelers who are looking for a home-like and transformational experience while travelling.

The Hotel is located in Beirut, the capital city of lebanon. The hotel typical floor was divided to sevral rooms looking either to the outside facentatiog view or the inner cbeutiful court. The design shows a conceptual guidlines to how the rooms interior maydevolep, establishing some main princibals to follow.

Typical Floor Plan

the use of good space zoning for the different activities the end user may need during his stay. for that different little spaces were created to host all those activities. taking in mind to be as flexible to hast as many possible activities as it can.

Room Plan

The efficiency played a huge part in the design. the design regarded that all the furniture has minimum contact footprint to the floor facilitating the daily washing activities and minimizing the time required to put the room back to order.

Entertainment / Work Station

Balcony
Bed
Storage Bath
C D
B A

Storage

Bags Storage

Mirror

Main Storage

Safe

Air condition duct

Work Station

Books/ Local Guides

TV / Screen

Laptop/ PC

Chair

View B Section A Section C Section D

the colors were chosen to form the beautiful landscape surrounding the place from the limestone colors, to the blue sea waters, and to give a bright and warm home-like atmosphere to the end-user.

Thank you
https://linktr.ee/abdelmonem

Turn static files into dynamic content formats.

Create a flipbook
Issuu converts static files into: digital portfolios, online yearbooks, online catalogs, digital photo albums and more. Sign up and create your flipbook.