PORTFOLIO OF ALEXANDER MEYER

Page 1

ALEX MEYER SELECTED WORKS

TABLE OF CONTENTS

7800 BURLESON ROAD RESIDENTIAL COMPLEX

VIOLET CROWN AMPHITHEATER

2802 EDGEWATER DRIVE LAKESIDE RESIDENCE

606 CLIFF DRIVE COURTYARD RESIDENCE

CIRCUIT OF AMERICA CASITAS

THE OFFICE AT THE BACKYARD

EAST RIVERSIDE CAMPBRIAN EAST PHASE II

TRAVIS COUNTY NORTH CAMPUS + TRAVIS FLATS

ROLLINGWOOD III + PARKING GARAGE

CIBOLO CROSS RETAIL CENTER

DOMAIN 8 + PARKING GARAGE

NORTH LOOP AT NORTH LOOP

THE AVENUE MIXED-USE TOWER

DUBAI TOWN CENTER PAVILION

5 - 10 11- 20 21 - 32 33 - 40 41 - 44 45 - 50 51 - 58 59 - 62 63 - 68 69- 72 73 - 74 75 - 76 77 - 78 79 -80

PORTFOLIO OF ALEXANDER MEYER | EMAIL: ALEXPAULMEYER@GMAIL.COM | T: 913.526.4414

3

PORTFOLIO OF ALEXANDER MEYER | EMAIL: ALEXPAULMEYER@GMAIL.COM | T: 913.526.4414

4

PORTFOLIO OF ALEXANDER MEYER | EMAIL: ALEXPAULMEYER@GMAIL.COM | T: 913.526.4414

5
7800 BURLESON ROAD RESIDENTIAL COMPLEX 6-BUILDING MULTIFAMILY

Podium Level - - 615 0 615 0 1,164 0 - - 615 0 3,009 0

Level 1 20,231 17,447 10,463 8,786 9,703 8,181 20,284 16,966 7,942 6,510 10,463 8,786 79,086 66,676

Level 2 20,187 17,388 10,463 8,786 9,703 8,181 20,284 16,966 8,668 7,178 10,463 8,786 79,768 67,285

Level 3 20,187 17,388 10,463 8,786 9,703 8,181 20,284 16,966 8,668 7,178 10,463 8,786 79,768 67,285

Level 4 20,187 17,388 10,463 8,786 9,703 8,181 20,284 16,966 8,668 7,178 10,463 8,786 79,768 67,285

Gross Square Footage (GSF) 80,792 - 42,467 - 39,427 - 82,300 - 33,946 - 42,467 - 321,399 -

Usable Square Footable (USF) - 69,611 - 35,144 - 32,724 - 67,864 - 28,044 - 35,144 - 268,531

USF/GSF Efficiency 86.16% 82.76% 83.00% 82.46% 82.61% 82.76% 83.55%

UNIT MIX & COUNT

Unit Type

1 Bedroom \ 1 Bath (ANSI B)

1 Bedroom \ 1 Bath (ANSI B) (HV)

1 Bedroom \ 1 Bath (ANSI A)

2 Bedroom \ 2 Bath (ANSI B)

2 Bedroom \ 2 Bath (ANSI B) (HV)

2 Bedroom \ 2 Bath (ANSI A)

3 Bedroom \ 2 Bath (ANSI B)

3 Bedroom \ 2 Bath (ANSI A)

Total Unit Count

Total Bedroom Count

UNIT TYPE

1 Bedroom \ 1 Bath

2 Bedroom \ 2 Bath 1,000

3 Bedroom \ 2 Bath

PARKING TYPE

Standard (8'-6" x 18'-0")

Standard (9'-0" x 18'-0")

Compact (7'-6" x 15'-0")

Van ADA (11'-0" x 18'-0" + Aisle)

ADA (9'-0" x 18'-0" + Aisle)

Parking Provided

Unit : Parking Spot Ratio

Bedroom : Parking Spot Ratio

NOTE: ALL AREA MEASUREMENTS MADE IN SQUARE FOOTAGE (SF)

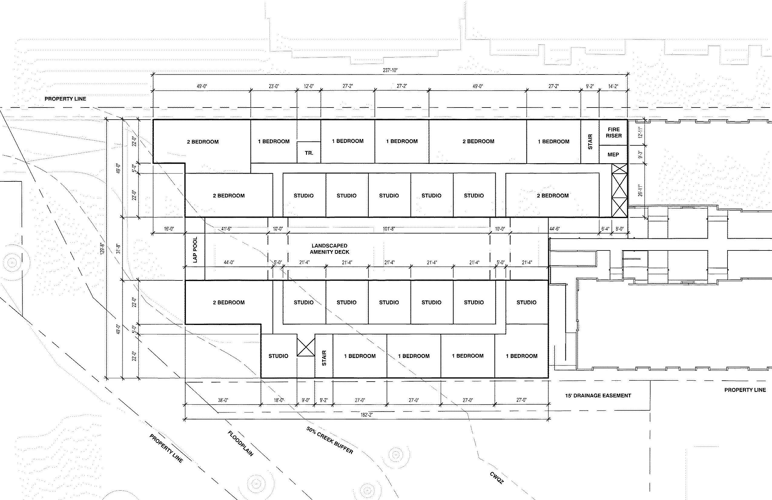
PORTFOLIO OF ALEXANDER MEYER | EMAIL: ALEXPAULMEYER@GMAIL.COM | T: 913.526.4414 6 DESIGN CONCEPT PROJECT BREAKDOWN + AXONOMETRIC 7800 BURLESON ROAD - PROJECT BREAKDOWN BUILDING AREAS Level Name Bldg 1 Bldg 2 Bldg 3 Bldg 4 Bldg 5 Bldg 6 All GSF USF GSF USF GSF USF GSF USF GSF USF GSF USF GSF USF
PORTFOLIO OF ALEXANDER MEYER | EMAIL: ALEXPAULMEYER@GMAIL.COM | T: 913.526.4414 7 DESIGN CONCEPT ENTRANCE / BUILDING 1 PERSPECTIVE
PORTFOLIO OF ALEXANDER MEYER | EMAIL: ALEXPAULMEYER@GMAIL.COM | T: 913.526.4414 8 DESIGN CONCEPT BUILDINGS 5 & 6 PERSPECTIVE
PORTFOLIO OF ALEXANDER MEYER | EMAIL: ALEXPAULMEYER@GMAIL.COM | T: 913.526.4414 9 18 33 186 7 1865 860 186 9 861 1861 186 7 18 18 619 1862 186 1 622 1 625 8626 18 7 18 28 8629 186 0 1863 8632 1 634 18 35 186 6 18 38 186 18 40 1 641 186 5 1 646 8647 1 648 186 9 18 0 865 186 2 18 54 655 865 186 18 60 8661 186 2 186 3 186 4 1 665 18 6 8667 1866 669 18 71 18 72 18 73 1 674 18 5 8677 186 4 1 695 1 696 8697 8698 186 18 00 187 1 870 187 3 187 6 18 07 1870 18 09 1871 871 8712 18 04 8805 18 06 188 7 880 1 809 1881 1 623 186 4 BUILDING 02 BUILDING 01 BUILDING 03 BUILDING 04 BUILDING 05 BUILDING 06 BURLESONROAD 150' CREEK BUFFER (CWQZ) PER COA 300' CREEK BUFFER (CWQZ) PER COA DRAINAGE EASEMENT 58' RIGHT-OF-WAY EASEMENT FROM THE EXISTING CENTERLINE IN ACCORDANCE WITH ASMP (LDC 25-6-55) PROPERTY LINE LIMIT OF ZONE "X" PER SURVEY DRAINAGE EASEMENT 100YR CITY OF AUSTIN AND FEMA FLOOD PLAIN 100' CREEK BUFFER (CWQZ) PER COA STAIR B03.01 ELEVATOR STAIR B4.01 TRASH & RECYCLING ENCLOSURE STAIR B6.02 STAIR B5.02 POOL WATER QUALITY DETENTION POND PROPERTY LINE STAIR B2.01 PROPERTYLINE PROPERTY LINE TRASH & RECYCLING ENCLOSURE STAIR B03.02 STAIR B1.03 ELEVATOR ELEVATOR STAIR B1.02 ELEVATOR 50' CREEK BUFFER (CWQZ) PER COA AIRPORT OVERLAY BOUNDARY STAIR B2.02 ELEVATOR PROPERTYLINE FENCE BLDG LINE ABOVE STAIR B5.01 STAIR B6.01 STAIR B4.02 ELEVATOR STAIR B1.01 OVERALL MASTER PLAN

NOTED. 8. PENETRATIONS AND JOINTS IN PROTECTED BY AN APPROVED ASSEMBLY DESIGNED TO RES NO LESS THAN THE RATING OF IS INSTALLED. CONTRACTOR PENETRATING ITEM AND SUBM 9. CONTRACTOR SHALL BE RESP DELEGATED DESIGN ASPECTS 10. ALL FLOORS, WALLS, COLUMN SLABS SHALL BE ARCHITECTU OTHERWISE

PLAN GENERAL NOTES

PORTFOLIO OF ALEXANDER MEYER | EMAIL: ALEXPAULMEYER@GMAIL.COM | T: 913.526.4414 10 PLAN
REFER TO ENLARGED PLANS FOR ADD REFER TO STRUCTURAL DRAWINGS FO (CMU). REFER TO SHEET A102 FOR ADDITIONA REQUIREMENTS. REFER TO SHEET A701 FOR PARTITION REFER TO SHEET A801 FOR MATERIALS REFER TO SHEET A804 FOR DOOR SCH GYPSUM BOARD SCOPE: GYPSUM BOA SPECIFICATIONS AT SPACES SCHEDUL SCHEDULED TO RECEIVE GYPSUM BOA GYPSUM BOARD SHALL BE HUNG AND WALLS WILL NOT RECEIVE GYPSUM BO METAL FRAMING AT EXTERIOR WALLS SHALL BE 6" FRAMING AT 16" O.C. SLOPE ELEVATED CONCRETE EXTERIO TOWARDS THE EDGES OF THE WALKW CONCRETE PODIUM AND ALL ELEVATED RECEIVE A CLEAR WATER, OIL AND STA SOLVENT BASED. BASIS OF DESIGN PR REFER TO STRUCTURAL FOR LOCATION REFER TO SLAB EDGE PLANS FOR SLAB PLAN LEGEND SEE SHEET A701-702 FOR EXTE INTERIOR ASSEMBLIES UNIT DOCUMENTATION _ SEE S BALCONY TYPES SEE SHEET: WINDOW TAG WALL TAG DOOR TAG ROOM TAG B1.101 B1.101 ADDRESSED ROOM NU 1101 B# Building Number Unit Door Room Number Building Number Unit Number Building Number Building Room Number Floor Number GENERAL NOTES 1. THESE DRAWINGS AND SPECI CHEN STUDIO, LP AND SHALL OTHER PURPOSE EXCEPT BY STUDIO, LP. 2. MATERIALS AND WORKMANSH SPECIFICATIONS, RELEVANT F AND CODES, AND THE REQUIR AUTHORITIES. 3. THESE DRAWINGS MUST NOT PRECEDENCE AND SHALL BE JOB SITE. 4. PLAN DIMENSIONS GIVEN ARE CENTERLINE OF MULLION, OR OTHERWISE NOTED. 5. WALLS SHOWN IN ALIGNMENT SURFACES. 6. THE DRAWINGS SHALL BE REA MECHANICAL, ELECTRICAL, PL DRAWINGS AND SPECIFICATIO INSTRUCTIONS OR SKETCHES OF THE CONTRACT. ANY DISCR SUPERINTENDENT AND BERCY WITH ANY WORK. 7. TYPICAL DETAILS MAY NOT NE UNLESS OTHERWISE
copyright 2021 bercy chen studio LP OVERALL BLD 01 -LVL 2 D W PLAN LEGEND SEE SHEET A701-702 FOR EXTERIOR AND INTERIOR ASSEMBLIES UNIT DOCUMENTATION SEE SHEET: A280's BALCONY TYPES _ SEE SHEET: A264 WINDOW TAG WALL TAG DOOR TAG ROOM TAG B1.101 B1.101 ADDRESSED ROOM NUMBER TAG 1101 B# Building Number U Unit Door Room Number Building Number Unit Number Building Number Building Room Number Floor Number GENERAL NOTES 1. THESE DRAWINGS AND SPECIFICATIONS ARE THE PROPERTY OF BERCY CHEN STUDIO, LP AND SHALL NOT BE REPRODUCED OR USED FOR ANY OTHER PURPOSE EXCEPT BY WRITTEN AGREEMENT WITH BERCY CHEN STUDIO, LP. 2. MATERIALS AND WORKMANSHIP SHALL BE IN ACCORDANCE WITH THE SPECIFICATIONS, RELEVANT FEDERAL, STATE, AND LOCAL STANDARDS AND CODES, AND THE REQUIREMENTS OF ALL OTHER GOVERNING AUTHORITIES. 3. THESE DRAWINGS MUST NOT BE SCALED. WRITTEN DIMENSIONS TAKE PRECEDENCE AND SHALL BE VERIFIED BY THE CONTRACTOR
JOB SITE. 4. PLAN DIMENSIONS GIVEN ARE
FACE OF FINISH
UNLESS OTHERWISE NOTED. 5. WALLS SHOWN IN ALIGNMENT ARE IN ALIGNMENT
SURFACES. 6. THE DRAWINGS SHALL BE READ
CONJUNCTION
ELECTRICAL, PLUMBING,
CONSULTANTS' DRAWINGS AND SPECIFICATIONS
INSTRUCTIONS
NO
IS
9.
10.
AND UNDERSIDES OF SLABS SHALL BE ARCHITECTURAL EXPOSED CONCRETE UNLESS NOTED OTHERWISE
NOTES
AT THE
FROM THE
MATERIAL
WITH INISHED
IN
WITH STRUCTURAL, MECHANICAL,
AND OTHER
AND WITH SUCH OTHER WRITTEN
OR SKETCHES AS MAY BE ISSUED DURING THE COURSE OF THE CONTRACT. ANY DISCREPANCY SHALL BE REPORTED TO THE SUPERINTENDENT AND BERCY CHEN STUDIO, LP BEFORE PROCEEDING WITH ANY WORK. 7. TYPICAL DETAILS MAY NOT NECESSARILY BE CUT ON PLANS, BUT APPLY UNLESS OTHERWISE NOTED. 8. PENETRATIONS AND JOINTS IN FIRE RATED ASSEMBLIES SHALL BE PROTECTED BY AN APPROVED FIRE RESISTANT JOINT OR PENETRATION ASSEMBLY DESIGNED TO RESIST THE PASSAGE OF FIRE FOR A PERIOD
LESS THAN THE RATING OF THE FLOOR, WALL, OR ROOF IN WHICH IT
INSTALLED. CONTRACTOR SHALL DEFINE ASSEMBLY BASED ON PENETRATING ITEM AND SUBMIT FOR APPROVAL.
CONTRACTOR SHALL BE RESPONSIBLE FOR COORDINATION OF DELEGATED DESIGN ASPECTS OF THE WORK.
ALL FLOORS, WALLS, COLUMNS, SLAB EDGES
DIMENSIONS ARE TO FINISH FACE, CENTERLINE OF MULLION, OR CENTERLINE OF COLUMN UNLESS NOTED OTHERWISE. REFER TO ENLARGED PLANS FOR ADDITIONAL INFORMATION. REFER TO STRUCTURAL DRAWINGS FOR CONCRETE MASONRY UNIT CONSTRUCTION (CMU). REFER TO SHEET A102 FOR ADDITIONAL INFORMATION REGARDING FIRE RATING REQUIREMENTS. REFER TO SHEET A701 FOR PARTITION TYPES. REFER TO SHEET A801 FOR MATERIALS SCHEDULE AND ROOM FINISH SCHEDULE. REFER TO SHEET A804 FOR DOOR SCHEDULE. GYPSUM BOARD SCOPE: GYPSUM BOARD IS INSTALLED AND FINISHED PER THE SPECIFICATIONS AT SPACES SCHEDULED TO RECEIVE FINISH. AT PARTITIONS SCHEDULED TO RECEIVE GYPSUM BOARD BUT THAT ARE NOT TO BE FINISHED, THE GYPSUM BOARD SHALL BE HUNG AND FIRE TAPED ONLY. INSIDE FACE OF EXTERIOR WALLS WILL NOT RECEIVE GYPSUM BOARD UNLESS NOTED OTHERWISE. METAL FRAMING AT EXTERIOR WALLS BEHIND SPANDRELS AND PRECAST CONCRETE SHALL BE 6" FRAMING AT 16" O.C. architecture. planning. interior design. construction. 1111 E. 11th Street, Suite 200 Austin, TX 78702 tel 512.481.0092 fax 512.476.7664 www.bcarc.com PROJECT NUMBER b e c y c h e n s u d o L P KEYPLAN SCALE: NTS 7800 BURLESON ROAD AUSTIN,TX 78744 OVERALL PLAN -BLDG 2 & 3 -LEVEL 2 2020-03 BURLESON 6/20/2022 7800 Burleson QOZB, LLC UNIT SCHEDULE LEVEL COUNT 1 LEVEL 02 1 2 2 LEVEL 02 45 A01: 45 45 LEVEL 02 33 B01: 33 33 LEVEL 02 3 C01: 3 3 TOTAL: 83 83 No. DESCRIPTION DATE ISSUED FOR PERMIT 6/20/2022 ADDRESSED ROOM NUMBER TAG 1101 Building Number Unit Number Floor Number PROTECTED BY AN APPROVED FIRE RESISTANT JOINT OR PENETRATION ASSEMBLY DESIGNED TO RESIST THE PASSAGE OF FIRE FOR A PERIOD NO LESS THAN THE RATING OF THE FLOOR, WALL, OR ROOF IN WHICH IT IS INSTALLED. CONTRACTOR SHALL DEFINE ASSEMBLY BASED ON PENETRATING ITEM AND SUBMIT FOR APPROVAL. 9. CONTRACTOR SHALL BE RESPONSIBLE FOR COORDINATION OF DELEGATED DESIGN ASPECTS OF THE WORK. 10. ALL FLOORS, WALLS, COLUMNS, SLAB EDGES AND UNDERSIDES OF SLABS SHALL BE ARCHITECTURAL EXPOSED CONCRETE UNLESS NOTED OTHERWISE PROJECT NUMBER ISSUE DATE DRAWN BY CHECKED BY KEYPLAN SCALE: NTS AM AM 7800 BURLESON ROAD AUSTIN,TX 78744 A202.V3 OVERALL PLAN -BLDG 4 -LEVEL 2 2020-03 BURLESON 6/20/2022 6/20/2022 TRUE NORTH PLAN NORTH REF: SCALE: 1/16" = 1'-0" 1 OVERALL BLD. 04 -LVL 2 No. DESCRIPTION DATE ISSUED FOR PERMIT 6/20/2022 DRAWINGS AND SPECIF INSTRUCTIONS OR SKET OF THE CONTRACT. ANY SUPERINTENDENT AND WITH ANY WORK. 7. TYPICAL DETAILS MAY N UNLESS OTHERWISE NO 8. PENETRATIONS AND JO PROTECTED BY AN APPR ASSEMBLY DESIGNED T NO LESS THAN THE RAT IS INSTALLED. CONTRAC PENETRATING ITEM AND 9. CONTRACTOR SHALL BE DELEGATED DESIGN AS 10. ALL FLOORS, WALLS, CO SLABS SHALL BE ARCHIT OTHERWISE PLAN LEG SEE SHEET A701-702 INTERIOR ASSEMBL UNIT DOCUMENTAT BALCONY TYPES WINDOW TA WALL TAG DOOR TAG ROOM TAG B1.101 B1.101 ADDRESSED 1101 B# Building Num Room Number Building Number Unit Number Building Number Building Room Num Floor Number PLAN NOTES DIMENSIONS ARE TO FINISH COLUMN UNLESS NOTED OT REFER TO ENLARGED PLAN REFER TO STRUCTURAL DR (CMU). REFER TO SHEET A102 FOR REQUIREMENTS. REFER TO SHEET A701 FOR REFER TO SHEET A801 FOR REFER TO SHEET A804 FOR GYPSUM BOARD SCOPE: GY SPECIFICATIONS AT SPACES SCHEDULED TO RECEIVE GY GYPSUM BOARD SHALL BE WALLS WILL NOT RECEIVE METAL FRAMING AT EXTERIO SHALL BE 6" FRAMING AT 16 11/5/2022 8:17:24 PM TRUE NORTH PLAN NORTH REF: SCALE: 1/16" 1'-0" A301.V4 1 OVERALL BLD. 5&6 -LVL 2 BUILDING 1 BUILDINGS 2 & 3 BUILDINGS 5 & 6 BUILDING 4 MULTIFAMILY UNIT LAYOUT

VIOLET CROWN AMPHITHEATER

COMPLETE REMODEL LAKEHOUSE

PORTFOLIO OF ALEXANDER MEYER | EMAIL: ALEXPAULMEYER@GMAIL.COM | T: 913.526.4414

11
PORTFOLIO OF ALEXANDER MEYER | EMAIL: ALEXPAULMEYER@GMAIL.COM | T: 913.526.4414 12 DESIGN CONCEPT AERIAL PERSPECTIVE
PORTFOLIO OF ALEXANDER MEYER | EMAIL: ALEXPAULMEYER@GMAIL.COM | T: 913.526.4414 13 DESIGN CONCEPT A.002 03/12/2020 01/21/2020 Conceptual Package 03/12/2020 Conceptual Package SITE PLAN 71 HIGHWAY SITE PLAN LEGEND RIDE SHARING LOT B 13 888 SF 56 SPOTS EVENT/VIPLAWN 15000SF RIDE SHARING LOT C 13 888 SF 56 SPOTS THEINN AT WHITE ROCKS 80KEYS20000SF/ LEVEL 12 LEVELS240000SF GBA DANCEHALL 112,000SF LEVEL L E S Y A S F O O D 8 0 0 0 S F 1 L E V E L MEADOW E H T 6-HOLE PAR-3 SHORT COURSE 10.20 AC CORPORATEOFFCEI 40000SF LEVEL 15LEVELS600000SFGBA CORPORATEOFFICEI 40000SF/LEVEL 15LEVELS600000SFGBA PARKINGGARAGEI2400SPOTS57720SF/LEVEL 12LEVELS656640SFGBA PARKINGGARAGEI2400SPOTS57720SF LEVEL 12LEVELS656640SFGBA R ED RAHS I GN TOL A 31 888 FS 65 STOPS VALET PARKINGLOT46195SF168SPOTS BUILDING STRUCTURE MONUMENT SIGN PEDESTRIAN PATH NATURE PRESERVE EXISTING LIVE OAK EVENT LAWN VENUE OPERATIONS FIRE LANE PATH GOLF COURSE WATER QUALITY POND ROAD / PARKING 6 1 2 3 4 5 TRUCK TURNAROUND REFERENCE SHEET A.003 FOR AMPHITHEATER PLAN SITE PLAN LEGEND BUILDING STRUCTURE MONUMENT SIGN PEDESTRIAN PATH NATURE PRESERVE EXISTING LIVE OAK EVENT LAW N VENUE OPERATIONS F RE LANE PATH GOLF COURSE W ATER QUALITY POND ROAD / PARKING SITE PLAN LEGEND BUILDING STRUCTURE MONUMENT S GN PEDESTRIAN PATH NATURE PRESERVE EXISTING LIVE OAK EVENT LAW N VENUE OPERATIONS F RE LANE PATH GOLF COURSE W ATER QUALITY POND ROAD PARK NG SITE PLAN LEGEND 1 SITE PLAN 1” = 120’- 0” 03/12/2020 01/21/2020 Conceptual Package 03/12/2020 Conceptual Package 71 HIGHWAY SITE PLAN LEGEND RIDE SHARING LOT B 13 888 SF 56 SPOTS EVENT/VIPLAWN 15000SF RIDE SHARING LOT C 13 888 SF 56 SPOTS THEINN AT WHITE ROCKS 80KEYS20000SF/ LEVEL 12 LEVELS240000SF GBA DANCEHALL 112,000SF LEVEL L E S Y A S F O O D 8 0 0 0 S F 1 L E V E L MEADOW E H T 6-HOLE PAR-3 SHORT COURSE 10.20 AC CORPORATEOFFCEII 40000SF/LEVEL15LEVELS600000SFGBA CORPORATEOFFICEI 40000SF/LEVEL 15LEVELS600000SFGBA PARKINGGARAGEI2400SPOTS57720SF/LEVEL 12LEVELS656640SFGBA R I ED RAHS I GN TOL A 31 888 FS 65 STOPS VALET PARKINGLOT46195SF168SPOTS BUILDING STRUCTURE MONUMENT SIGN PEDESTRIAN PATH NATURE PRESERVE EXISTING LIVE OAK EVENT LAWN VENUE OPERATIONS FIRE LANE PATH GOLF COURSE WATER QUALITY POND ROAD / PARKING 6 1 2 3 4 5 TRUCK TURNAROUND REFERENCE SHEET A.003 FOR AMPHITHEATER PLAN SITE PLAN LEGEND BUILDING STRUCTURE MONUMENT S GN PEDESTRIAN PATH NATURE PRESERVE EX STING LIVE OAK EVENT LAW N VENUE OPERATIONS F RE LANE PATH GOLF COURSE W ATER QUALITY POND ROAD PARKING SITE PLAN LEGEND BUILDING STRUCTURE MONUMENT S GN PEDESTRIAN PATH NATURE PRESERVE EX STING LIVE OAK EVENT LAW N VENUE OPERATIONS F RE LANE PATH GOLF COURSE W ATER QUALITY POND ROAD / PARKING SITE PLAN LEGEND SITE PLAN BARTON CREEK HABITAT PRESERVE THE NATURE CONSERVANCY 10 MILES 5 MILES 1 MILE DOWNTOWN 10 MILES SHIELD RANCH CONSERVATION EASEMENT 15 MILES SOUTHWESTPKWY WILLIAMCANNONDR BARTONCREEKBLVD GALLERIAPKWY HAMILTONPOOLRD RM 224 RM 620 HILL COUNTRY GALLERIA SHOPS AT THE GALLERIA SPANISH OAKS COUNTRY CLUB ROUGH HOLLOW SWEETWATER BARTON CREEK COUNTRY CLUB WEST LAKE HILLS TARRYTOWN LAKEWAY DRIPPING SPRINGS OAK HILL COLORADORIVER BARTONCREEK OVERALL MASTER SITE PLAN + CONTEXT MAP
PORTFOLIO OF ALEXANDER MEYER | EMAIL: ALEXPAULMEYER@GMAIL.COM | T: 913.526.4414 14 DESIGN CONCEPT ENTRANCE & VIP DECK LEVEL PLANS A.001 1/32”= 1’-0” 03/12/2020 01/21/2020 Conceptual Package 03/12/2020 VIP LEVEL VIP LEVEL FLOOR PLAN 1/32” = 1’-0” A.004                                         copyright 2020 bercy chen studio LP                                         1 ENTRY LEVEL FLOOR PLAN 1/32” = 1’-0” ENTRANCE LEVEL VIP DECK LEVEL
PORTFOLIO OF ALEXANDER MEYER | EMAIL: ALEXPAULMEYER@GMAIL.COM | T: 913.526.4414 15 A.001 1/32”= 1’-0” 01/21/2020 Conceptual Package 03/12/2020 VIP LEVEL VIP LEVEL FLOOR PLAN 1/32” = 1’-0”
                                         copyright 2020 bercy chen studio LP 1 ORCHESTRA TIER & STAGE LEVEL FLOOR PLAN 1/32” = 1’-0”                       DESIGN CONCEPT MAIN LAWN & STAGE LEVEL PLANS MAIN LAWN LEVEL STAGE LEVEL
A.004
16                                          A.001 1/32”= 1’-0” 03/12/2020 01/21/2020 Conceptual Package 03/12/2020 BOH/LOADING LEVEL BACK OF HOUSE B1 LEVEL FLOOR PLAN 1/32” = 1’-0” A.008 copyright 2020 bercy chen studio LP 1 BACK OF HOUSE B2 LEVEL FLOOR PLAN 1/32” = 1’-0”                               LOWER PIT LEVEL STAGE BUILDING BASEMENT DESIGN CONCEPT LOWER PIT & STAGE BUILDING BASEMENT LEVEL PLANS
PORTFOLIO OF ALEXANDER MEYER | EMAIL: ALEXPAULMEYER@GMAIL.COM | T: 913.526.4414
DESIGN CONCEPT
RAKE / SLOPE SECTION DIAGRAM

DESIGN CONCEPT

AMPHITHEATER ENTRANCE PERSPECTIVE

bercy chen studio lp

VIOLET CROWN AMPHITHEATER 3/6/2020

Seating Accomodation

Location

Area (sf) Allowable Area Per Occupant Occupants

Lawn Left 10,150 5 2,030

Lawn Central 12,340 5 2,468 Lawn Right 10,150 5 2,030

Subtotal Lawn Tier 32,640 5 6,528

Mezzanine Tier 1 4,016 - 629

Mezzanine Tier 2 4,097 - 573

Mezzanine Tier 3 4,314 - 577

Mezzanine Tier 4 4,314 - 577

Mezzanine Tier 5 4,097 - 573

Mezzanine Tier 6 4,016 - 629

Subtotal Mezzanine Tier 24,854 - 3,558

Orchestra Tier 1 3,447 - 535

Orchestra Tier 2 3,289 - 493

Orchestra Tier 3 3,197 - 467

Orchestra Tier 4 3,197 - 467

Orchestra Tier 5 3,289 - 493

Orchestra Tier 6 3,447 - 535

Subtotal Orchestra Tier 19,866 - 2,990

Orchestra Mosh Pit 12,482 5 2,496

VIP Boxes in Bowl 14,524 - 192

VIP Boxes on Concourse 14,171 15 945

VIP Lounge 6,809 15 454

Subtotal VIP Seating 14,647 - 1,591

Total Amphitheater Size 196,710 - -

Total Net Occupants - - 17,163

Impervious Surface Calculation

Location

Area Pervious Area Impervious Area

1 Entrance Plaza 22,379 5,000 17,379

Lobby Concession VIP 24,114 0 24,114 Concession circulation 10,155 0 10,155

Lawn Tier 32,640 0 32,640 Lawn Tier circulation 7,282 0 7,282

Mezzanine Tier 24,854 6,827 18,027

Mezzanine Tier Circulation 12,573 0 12,573

Mezzanine VIP Boxes 2,022 1011 1,011 5 Orchestra Tier 19,866 7,076 12,790

Orchestra VIP Boxes 1,951 976 976 Orchestra Tier Circulation 13,787 0 13,787

PORTFOLIO OF ALEXANDER MEYER | EMAIL: ALEXPAULMEYER@GMAIL.COM | T: 913.526.4414 20 WHITE ROCKS 1/13/2020 Seating Accomodation Space Area (sf) Allowable Area Per Occupant Occupants Lawn left 10,097 5 2,019 Lawn central 12,337 5 2,467 Lawn right 10,097 5 2,019 IMPERVIOUS AREA COVERAGE PERVIOUS AREA COVERAGE IMPERVIOUS SEATING COVERAGE IMPERVIOUS STRUCTURE COVERAGE
2
3
4
Rain
Control
6 Orchestra
7 Stage
Loading dock
Total Gross Developed Area
C - CURRENT WHITE ROCKS 1/13/2020 Seating Accomodation Space Area (sf) Allowable Area Per Occupant Occupants Lawn left 10,097 5 2,019 Lawn central 12,337 5 2,467 Lawn right 10,097 5 2,019 Subtotal Lawn Tier 32,531 6,506 Mezzanine Tier 1 4,030 8 504 IMPERVIOUS AREA COVERAGE PERVIOUS AREA COVERAGE IMPERVIOUS SEATING COVERAGE IMPERVIOUS STRUCTURE COVERAGE WHITE ROCKS 1/13/2020 Seating Accomodation Space Area (sf) Allowable Area Per Occupant Occupants Lawn left 10,097 5 2,019 Lawn central 12,337 5 2,467 Lawn right 10,097 5 2,019 Subtotal Lawn Tier 32,531 6,506 Mezzanine Tier 1 4,030 8 504 Mezzanine Tier 2 4,634 8 579 Mezzanine Tier 3 4,855 8 607 Mezzanine Tier 4 4,845 8 606 Mezzanine Tier 5 4,635 8 579 Mezzanine Tier 6 4,007 8 501 MEZZANINE TIER 1 MEZZANINE TIER 2 LAWN LEFT 4030 SF 4634 SF 2205 SF 10097 SF TRA TIER 1 EN IMPERVIOUS AREA COVERAGE PERVIOUS AREA COVERAGE IMPERVIOUS SEATING COVERAGE INE TIER ATION LAWN TIER CIRCULATION IMPERVIOUS STRUCTURE COVERAGE WHITE ROCKS 1/13/2020 Seating Accomodation Space Area (sf) Allowable Area Per Occupant Occupants Lawn left 10,097 5 2,019 Lawn central 12,337 5 2,467 Lawn right 10,097 5 2,019 Subtotal Lawn Tier 32,531 6,506 Mezzanine Tier 1 4,030 8 504 MEZZANINE TIER 1 LAWN LEFT 4030 SF 10097 SF RAIN GARDEN 1250 SF IMPERVIOUS AREA COVERAGE PERVIOUS AREA COVERAGE IMPERVIOUS SEATING COVERAGE ORCHESTRA TIER CIRCULATION MEZZANINE TIER CIRCULATION LAWN TIER CIRCULATION IMPERVIOUS STRUCTURE COVERAGE 1 AMPHITHEATER - IMPERVIOUS COVER DIAGRAM LAWN TIER LEFT 10,150 SF LAWN TIER CENTRAL 12,340 SF LAWN TIER RIGHT 10,150 SF ENTRANCE PLAZA 22,379 SF LOBBY VIP/CONCESSION 24,114 SF MEZZANINE TIER 1 4,016 SF MEZZANINE TIER 2 4,097 SF MEZZANINE TIER 3 4,314 SF MEZZANINE TIER 3 4,314 SF MEZZANINE TIER 4 4,097 SF MEZZANINE TIER 5 4,016 SF ORCHESTRA TIER 1 3,447 SF ORCHESTRA TIER 2 3,289 SF ORCHESTRA TIER 3 3,197 SF ORCHESTRA TIER 4 3,197 SF CONTROL RM 300 SF ORCHESTRA TIER 5 3,289 SF ORCHESTRA TIER 6 3,447 SF STAGE 9,030 SF RAIN GARDEN RAIN GARDEN 2 IMPERVIOUS COVER CALCULATION IMPERVIOUS STRUCTURE COVERAGE IMPERVIOUS SEATING COVERAGE IMPERVIOUS COVERAGE PERVIOUS COVERAGE CUT / FILL + IMPERVIOUS COVERAGE DIAGRAM
garden 2,628 2,628 0
room 300 0 300
/ Mosh Pit 12,482 7,730 4,752
9,030 0 9,030
647 0 647
196,710 31,248 165,463

2802 EDGEWATER DRIVE LAKESIDE RESIDENCE

COMPLETE REMODEL LAKE HOUSE

PORTFOLIO OF ALEXANDER MEYER | EMAIL: ALEXPAULMEYER@GMAIL.COM | T: 913.526.4414

21

SITE SURVEY & ZONING INFORMA

ZONING OVERVIEW

Property Information Site Area: Jurisdiction: County: Floodplain: Creek Buffer: Zoning: Overlay: Max. Height: Units per Lot: Setbacks Front Yard: Street Side Yard: Interior Side Yard: Rear Yard: Shoreline:

.437 acres (19,035 sf) Austin LTD Travis County COA 25-year Floodplain CWQZ

LA (Lake Austin Residential) Lake Austin Overlay 35 ft (Above the Finish Grade) 1 dwelling unit 40 ft 25 ft 10 ft 20 ft 25 ft

ADOPTED CODE

(1) International Building Code 2015 (2) International Residential Code 2015 (3) Uniform Plumbing Code 2015 or as adopted (4) International Mechanical Code 2015 (5) National Electrical Code 2014 (6) International Energy Conservation Code 2015 (7) International Fire Code 2015 or as adopted (8) International Fuel Gas Code 2015

PORTFOLIO OF ALEXANDER MEYER | EMAIL: ALEXPAULMEYER@GMAIL.COM | T:
22
913.526.4414
-
N

20'4

15'3

11'10 3'8

0'11" 16'9 19'1 10'0

12'7 10'4

34'9

10'5

4'6 17'3 13'9 16'1

10'2 3'8 14'10

3'11

14'1

3'10

22'7 16'0 11'7 9'2

8'7 7'7 4'1 12'9

13'9

PORTFOLIO OF ALEXANDER MEYER | EMAIL: ALEXPAULMEYER@GMAIL.COM | T: 913.526.4414

56'8 56'8

8'0

5'11 WH

R 7'1

D W

A/C 4'1

15'9 23'5 17'6 16'1 12'1 7'6 4'8 3'6 12'10

12'6 16'3 7'3 7'7 10'5

6'9 5'3

11'7 13'10

51'9 51'9 16'11

4'1 15'4

14'8

23 AS-BUILT
PLAN N
SURVEY
F/P
PORTFOLIO OF ALEXANDER MEYER | EMAIL: ALEXPAULMEYER@GMAIL.COM | T: 913.526.4414 24 DESIGN CONCEPT SITE PLAN COVERED PATIOSECOND DECK ABOVE FIRE PLACE WH MASTER BEDROOM 06 MASTER BATHROOM 07 MASTER CLOSET 08 LAUNDRY CLOSET 11 BATHROOM 12 BEDROOM 13 CLOSET 16 BEDROOM PRIVATE STUDY 05 KITCHEN 02 LIVING ROOM DINING 03 BATHROOM 17 W/D ENTRY FOYER 01 HALL 04 HALL 10 TOILET CLOSET 14 A/C 25' SHORELINE SETBACK SHORELINE 40' FRONT YARD SETBACK 25' FRONT YARD SETBACK SPA 4-CAR PARKING PLATFORM ABOVE AT GRADE WITH ROAD GRASS LAWN / "BEACH" STEPPING, LANDSCAPED TERRACES COVERED ENTRY PATIO LAKE AUSTIN 10' SIDE YARD SETBACK BOAT HOUSE STORAGE SEPTIC FIELD BELOW 10' SIDE YARD SETBACK EDGEWATER DRIVE WATER FEATURE & LANDSCAPED BUFFER N
PORTFOLIO OF ALEXANDER MEYER | EMAIL: ALEXPAULMEYER@GMAIL.COM | T: 913.526.4414 25 DESIGN CONCEPT FLOOR PLANS RR 18 SHADED, PENTHOUSE UPPER DECK 25' SHORELINE SETBACK 40' FRONT YARD SETBACK 25' FRONT YARD SETBACK FLAT METAL ROOF SYSTEM GRILL
160 sf 210 sf 440
230 sf 265 sf 210 sf 550 sf 140 sf 25 sf GROUND LEVEL UPPER LEVEL COVERED PATIO SECOND DECK ABOVE FIRE PLACE WH MASTER BEDROOM 06 MASTER BATHROOM 07 MASTER CLOSET 08 LAUNDRY CLOSET 11 BATHROOM 12 BEDROOM 13 CLOSET 16 BEDROOM 15 PRIVATE STUDY 05 KITCHEN 02 LIVING ROOM DINING 03 BATHROOM 17 W/D ENTRY FOYER 01 HALL 04 HALL 10 TOILET 09 CLOSET 14 A/C 25' SHORELINE SETBACK 40' FRONT YARD SETBACK 25' FRONT YARD SETBACK SPA 4-CAR PARKING PLATFORM ABOVE AT GRADE WITH ROAD GRASS LAWN "BEACH" STEPPING, LANDSCAPED TERRACES COVERED ENTRY PATIO BOAT HOUSE / STORAGE SEPTIC FIELD BELOW WATER FEATURE & LANDSCAPED BUFFER 2,230 sf 5,545 sf 30% TOTAL
AREA TOTAL
AREA MAXIMUM I.C. PERCENTAGE N
GROUND LEVEL (ENTRANCE) Entry Foyer and Hall Kitchen Living Room / Dining Laundry / Closet and Hall Master Bedroom Master Bathroom and Closet Guest Bedrooms and Bathrooms Office UPPER LEVEL Restroom
sf
INTERIOR
IMPERVIOUS

NORTH SOUTH (ENTRANCE)

AERIAL AXONOMETRICS

PORTFOLIO OF ALEXANDER MEYER | EMAIL: ALEXPAULMEYER@GMAIL.COM | T: 913.526.4414

26
DESIGN CONCEPT
TOPOGRAPHICAL SECTION
PORTFOLIO OF ALEXANDER MEYER | EMAIL: ALEXPAULMEYER@GMAIL.COM | T: 913.526.4414 DESIGN CONCEPT NORTH-SOUTH

DESIGN CONCEPT

PORTFOLIO OF ALEXANDER MEYER | EMAIL: ALEXPAULMEYER@GMAIL.COM | T: 913.526.4414
PERSPECTIVE RENDERING FROM ENTRANCE

DESIGN CONCEPT

PORTFOLIO OF ALEXANDER MEYER | EMAIL: ALEXPAULMEYER@GMAIL.COM | T: 913.526.4414 30
PERSPECTIVE RENDERING FROM LAKE
PORTFOLIO OF ALEXANDER MEYER | EMAIL: ALEXPAULMEYER@GMAIL.COM | T: 913.526.4414 31
ARCHITECTURE PRECEDENTS
Juvet Landscape Hotel | Jensen & Skodvin Villa Meijendel | VVKH architecten
32 CONSTRUCTION COST ESTIMATE
PORTFOLIO OF ALEXANDER MEYER | EMAIL: ALEXPAULMEYER@GMAIL.COM | T: 913.526.4414

606 CLIFF DRIVE COURTYARD RESIDENCE

NEW CONSTRUCTION SPEC HOUSE

PORTFOLIO OF ALEXANDER MEYER | EMAIL: ALEXPAULMEYER@GMAIL.COM | T: 913.526.4414

33
PORTFOLIO OF ALEXANDER MEYER | EMAIL: ALEXPAULMEYER@GMAIL.COM | T: 913.526.4414 34 DESIGN CONCEPT AERIAL PERSPECTIVE RENDERING
PORTFOLIO OF ALEXANDER MEYER | EMAIL: ALEXPAULMEYER@GMAIL.COM | T: 913.526.4414 35 Oven DW 325 - 0 524 -0 " 525 05250 52 - 0 6250 5 50 CLIFF DRIVE 16' ALLEY PROPERTY LINE (E) TREE TO BE REMAIN (26" CEDAR ELM) SETBACK LINE (E) TREE TO BE REMOVED (9" ELM) (E) TREE TO REMAIN (21" LIVE OAK) PORTION H.P. = +526' 525' 5 13/16" PORTION H.P. 525' 0 3/8" BENCHMARK ELEVATION PORTION H.P. 67 66 57 69 64 29 (E) TREE TO BE REMOVED (10" ELM) (E) TREE TO BE REMOVED (30" LIVE OAK) (E) TREE TO BE REMOVED (15" LIVEOAK) (E) CURB OVERHEAD UTILITY POLE A110 2 R 50 " R5 -0" UTILITIES METERS LOCATION POOL EQUIPMENT STORAGE 524' 9 5/16" 523' - 11 5/16" 523' 0" 525' 2 3/8" SETBACK PORT ON 1 40 - 0" SETBACK PORT ON 2 40 - 0" SETBACK PORT ON 3 35 - 2" FRONT YARD SETBACK 25 - 0 FRONT YARD I.C: 2.8% (88 SF) 526' 3 3/4" 525' 6 9/16" FULL CRZ R 26 - 0 1 4 C R Z R 66 1/2CRZR13 -0 " F U L L C R Z R 21'0" 1 CRZ R 5 - 3 1/2CRZR106 S28°22'17"W 49.52' (S28°06'03"W 49.53') S62°44'44"E 80.00' (S62°36'14"E 80.31') N62°41'01"W 79.93' (N62°44'44"W 80.07') (N30°55'03"E 39.43') N30°55'03"E 39.40'' IRON PIPE FOUND BEARS S30°31'56"W -2.75' S62°36'08"E 56.19' (S62°44'44"E
NN30°55'03"E 10.04 (N30°55'03"E 59.76') N62°36'08"W
(N62°44'44"W 58.00')
NOTE: provide fire-blocking from the wall top plate to the underside of the roof sheathing, when no soffit or gable vent openings are installed where applicable to roof eaves. LINE OF SETBACK EDGE OF (E) ASPHALT ALLEY, V.I.F. PROVIDE EXPANSION JOINT AT EDGE OF (E) ALLEY AND (N) DRIVEWAY IN R.O.W. CONCRETE DRIVEWAY AREA IN ROW: 6 SF GARAGE 2'8" 2'0" 6'0" 2'0" 2'8" PL R 50 15'4" 2 12 1/4" 12" DN 1/4" 12" DN 1/4" 12" DN DRIVEWAY L.P. SLOPE VARIES, 1"/12" MAX 525' 10" BUILDING LINE DESIGN CONCEPT OVERALL SITE PLAN
56.19')
58.18'
S58°29'33"E 17.37'
PORTFOLIO OF ALEXANDER MEYER | EMAIL: ALEXPAULMEYER@GMAIL.COM | T: 913.526.4414 36 DN U.C. Wine Refrigerator Oven DN DW 6250 5 250 525 04250 525 0LAN GENERAL NOTES ENSIONS ARE TO FINISH FACE, CENTERLINE OF MULLION, GRID, OR CENTERLINE OF LUMN UNLESS NOTED OTHERWISE. ER TO ENLARGED PLANS FOR ADDITIONAL INFORMATION. ER TO STRUCTURAL DRAWINGS FOR CONCRETE MASONRY UNIT CONSTRUCTION U). ER TO SHEET A102 FOR ADDITIONAL INFORMATION REGARDING FIRE RATING QUIREMENTS. IN CASES WHERE DIMENSIONS ARE PROVIDED ALONG WITH ALIGNMENT NOTATION OR ALIGNMENT CRITERIA, THE ALIGNMENT NOTATION/CRITERIA SHALL GOVERNAS DIRECTION FOR MATERIAL PLACEMENT AND FINISHING. ALIGNMENT NOTATION IS INTENDED TO FACILITATE CONTRACTOR’S DECISION MAKING IN THE FIELD WHEN CUMULATIVE TOLERANCES CREATE DIMENSIONAL VARIATIONS FROM CONSTRUCTION DOCUMENTS. ANY OMISSIONS PER CONFLICTS WITHIN THE DRAWINGS, NOTES OR DETAILS SHALL BE REPORTED TO THE ARCHITECT BEFORE PROCEEDING WITH WORK. CONTRACTOR SHALL VERIFY ALL EXISTING CONDITIONS AND DIMENSIONS AND NOTIFY 1 A402 1 A401 A302 1 A303 A301 A301 3 1 GARAGE 101 ALLEY CLIFF DR POOL MASTER BEDROOM 112 MASTER BATH 113 DINING 108 KITCHEN 107 COAT CLOSET 104 MASTER CLOSET 114 CORRIDOR 109 STAIR 111 PANTRY 106 LAUNDRY 102 ENTRY 103 HVAC LIVING 110 POWDER 105 LINE OF SETBACK FRONT PORCH PRIVATE DECK 11 1/4" POOL EQUIPMENT STORAGE A303 2 Range A B C D E F H 4 4 3 3 1 1 2 2 2 A401 2 A402 3 A401 1 A501 3 A501 1 A502 2 A502 A302 3 A302 4 A303 1 A302 5 A302 2 2 A405 2 A501 A301 524' 4" 524' 4 7/16" 18'10" 5'5" 11' 0" 11' 0" 11' 0" 5' 8" 4" 3' 0 1/2" 3" 3' 1" 3' 10" 3 A502 A601 525' 0" 523' 11 13/16" 523' 4 7/16" A710 1 A710 12 G A710 13 A710 14 A601 1 A600 1 101A 101B 114 113A 105 103 102A 109 110 G102 104 106 109 112A G103 G101 102B 102C 113B 113C W1 W1 W1 A1 A1 W1 W2 W2 W2 W2 W1 W1 W1 P1 P2 P4 P5 P2 WD-2 WD-3 CONC-1 LINE OF ROOF OVERHANG ABOVE W1 523' 5 13/16" 523' - 3 3/16" 523' 7 1/2" 2' 0" (2) TREADS @ 12" EA PLANTER P10 WATER HEATER HVAC CONDENSOR UNITS ON CONC PAD, SIZE PAD AS REQ'D 14 101' 6" 21' 6" 10' 0" 24' - 0" 9' 8" 12' 0" 16' 8" 7' 8" 4'7 1/2" 9' 11" 1'2" 4'7" 1' 10" 2' 1" 5' 6 3/4" 11' 3 1/2" 5'0" 4'5 1/4" 5' 7 1/2" 4'10" 8'3 1/2" 8'1 1/2" 24' 6" PERVIOUS PAVERS SHOWN HATCHED BR-1 BRICK FENCE 1' 6" 24' 6" 1' 0" (1) TREAD P1 525' 10" UTILITIES METERS LOCATION 525' 0" 525' 0" 524' 1 7/8" 3'0" 1 A403 2 A403 3 A403 4 A403 1 A404 SINGLE OPERABLE DOOR 4 3/8" 3'0" DECK TO BE FIRE-RATED PER CODE 15'10" G FLO TRUE NORTH PLAN NORTH REF: SCALE: 1/4" = 1'-0" 1 GROUND FLOOR PLAN FLOOR-MOUNT BATH FILLER W/ HANDSHOWERKOHLER K-T97328-4-CP POLISHED CHROME SELECTION BY OWNER 1 FAUCET W/ MIXER KOHLER K-13462 POLISHED CHROME SELECTION BY OWNER 6 UNDERMOUNT LAVATORY TOTO USA, Inc. LT931 WHITESELECTION BY OWNER 6 KITCHEN FAUCET KOHLER CRUE SINLGE-HANDLE SEMI-PROFESSIONALPOLISHED CHROME SELECTION BY OWNER 1 UNDERMOUNT KITCHEN SINK RUVATI RVH8350 STAINLESS STEEL SELECTION BY OWNER 1 SHOWER HEAD & MIXING VALVE KOHLER K-TS14422-3-CP SELECTION BY OWNER 1 LINEAR SHOWER DRAIN SELECTION BY OWNER 1 No. DESIGN CONCEPT GROUND
PLAN
FLOOR
PORTFOLIO OF ALEXANDER MEYER | EMAIL: ALEXPAULMEYER@GMAIL.COM | T: 913.526.4414 37 1 A402 A401 A302 1 A303 A301 A301 3 1 2 142 SF ACCESSORY SPACE CLOSET 206 CLOSET 203 BEDROOM #2 207 BEDROOM #1 202 MEDIA ROOM 208 CORRIDOR 201 BATH 205 BATH 204 VERANDA A303 2 57 SF BATH A B C D E F H 4 4 3 3 1 1 2 2 2 A401 2 A402 3 A401 A302 3 A302 4 A303 1 A302 5 A302 2 2 A405 A301 3 1 A405 18'10" 5'5" 21' 6" 10' 0" 24' 0" 9' - 8" 12' 0" 16' - 8" 7' 8" 11'3 1/2" 3' - 1" 2" 3' 1" 3'0 1/2" 8 T R E A D S @ 1 1 1 2 E A 78 LINE OF SETBACK G 202 203 204A 205A 206 207 208 210 211A 84 8 201 211B 205B A1 A1 A1 W1 W1 W1 W1 W1 W1 W1 W1 W2 W2 W2 P2 P3 A303 4 R2 ' 01/2"WALKLINE T R E A D 30 9 1/16 @WALKLINE ROOF DECK 209 E Q E Q 4' 6" 11' 0" L2 L2 L2 L2 L2 E Q E Q 45 1 5 1 6 11 5 / 8 T Y P L2 66 1 / 4 3' 0 1/2" 6' 8 11/16" 4' - 3" 8' 7 1/2" 70' 0" LINE OF ROOF OVERHANG ABOVE 8" 9' 2 3/4" 2 3/4" 6' - 10" 4" 4" 3' 2" 51 3 / 4 48 3 4 51 1 1 2 2' 4" 51 3 / 4 39 3 / 4 40 3 / 4 MTL SCUPPER MTL SCUPPER MTL SCUPPER 44 1 / 2 3' 2" 2' 9" 1' - 11" 7' 0" 2' - 6" 4 01 D1 E Q E Q WD-2 WD-2 FLOOR FINISH 2 A406 4 A406 A403 2 A403 3 A403 1 A404 10 UNCOVERED DECK 1 51 0 LAN GENERAL NOTES ENSIONS ARE TO FINISH FACE, CENTERLINE OF MULLION, GRID, OR CENTERLINE OF LUMN UNLESS NOTED OTHERWISE. ER TO ENLARGED PLANS FOR ADDITIONAL INFORMATION. ER TO STRUCTURAL DRAWINGS FOR CONCRETE MASONRY UNIT CONSTRUCTION U). ER TO SHEET A102 FOR ADDITIONAL INFORMATION REGARDING FIRE RATING QUIREMENTS. IN CASES WHERE DIMENSIONS ARE PROVIDED ALONG WITH ALIGNMENT NOTATION OR ALIGNMENT CRITERIA, THE ALIGNMENT NOTATION/CRITERIA SHALL GOVERNAS DIRECTION FOR MATERIAL PLACEMENT AND FINISHING. ALIGNMENT NOTATION IS INTENDED TO FACILITATE CONTRACTOR’S DECISION MAKING IN THE FIELD WHEN CUMULATIVE TOLERANCES CREATE DIMENSIONAL VARIATIONS FROM CONSTRUCTION DOCUMENTS. ANY OMISSIONS PER CONFLICTS WITHIN THE DRAWINGS, NOTES OR DETAILS SHALL BE REPORTED TO THE ARCHITECT BEFORE PROCEEDING WITH WORK. CONTRACTOR SHALL VERIFY ALL EXISTING CONDITIONS AND DIMENSIONS AND NOTIFY ARCHITECT OF DISCREPANCIES THAT MAY AFFECT THE EXECUTION OF THE WORK, IN S FLO TRUE NORTH PLAN NORTH REF: SCALE: 1/4" = 1'-0" 1 SECOND FLOOR PLAN No. DESIGN CONCEPT SECOND FLOOR PLAN
PORTFOLIO OF ALEXANDER MEYER | EMAIL: ALEXPAULMEYER@GMAIL.COM | T: 913.526.4414 38 DESIGN CONCEPT GROUND FLOOR PERSPECTIVE RENDERINGS
PORTFOLIO OF ALEXANDER MEYER | EMAIL: ALEXPAULMEYER@GMAIL.COM | T: 913.526.4414 39 DESIGN CONCEPT GROUND FLOOR PERSPECTIVE RENDERINGS
PORTFOLIO OF ALEXANDER MEYER | EMAIL: ALEXPAULMEYER@GMAIL.COM | T: 913.526.4414 DESIGN CONCEPT SECOND FLOOR PERSPECTIVE RENDERINGS

CIRCUIT OF AMERICAS CASITAS

SECONDARY RESIDENCES AT COTA F1

PORTFOLIO OF ALEXANDER MEYER | EMAIL: ALEXPAULMEYER@GMAIL.COM | T: 913.526.4414

41
PORTFOLIO OF ALEXANDER MEYER | EMAIL: ALEXPAULMEYER@GMAIL.COM | T: 913.526.4414 42 bercy chen studio CIRCUIT OF THE AMERICAS CASITAS | CONCEPTUAL DESIGN STUDY | 2021.04.06 2 FOYER 02 HALL 03 4-CAR GARAGE / LOUNGE 01 WORKSHOP KITCHENETTE 06 LAUNDRY 05 CLOSET 04 GROUND FLOOR PLAN LOWER PATIO 14 LIVING / DINING ROOM 09 KITCHEN 08 HALL 07 MASTER BATHROOM 12 MASTER BEDROOM 11 MASTER CLOSET 13 POWDER ROOM 10 SECOND FLOOR PLAN UPPER PATIO 21 BEDROOM 17 BEDROOM 19 CLOSET 20 CLOSET 18 THIRD FLOOR PLAN HALL 15 BATHROOM 16 GROUND FLOOR PLAN SECOND FLOOR PLAN THIRD FLOOR PLAN DESIGN CONCEPT FLOOR PLANS

AXONOMETRICS

|
43
PORTFOLIO OF ALEXANDER MEYER
EMAIL: ALEXPAULMEYER@GMAIL.COM | T: 913.526.4414
THE AMERICAS
bercy chen studio CIRCUIT OF THE AMERICAS CASITAS CONCEPTUAL DESIGN STUDY 2021.04.06 bercy chen studio CIRCUIT OF THE AMERICAS CASITAS CONCEPTUAL DESIGN STUDY 2021.04.06 4 AXON VIEW 2 bercy chen studio CIRCUIT OF
CASITAS CONCEPTUAL DESIGN STUDY 2021.04.06
6
DESIGN
AXON VIEW 3 bercy chen studio CIRCUIT OF THE AMERICAS CASITAS CONCEPTUAL DESIGN STUDY 2021.04.06
AXON VIEW 4
CONCEPT

DETACHED TOWNHOME MASSING - VIEW 1

DETACHED TOWNHOME MASSING - VIEW 1

bercy chen studio

CIRCUIT OF THE AMERICAS CASITAS CONCEPTUAL DESIGN STUDY | 2021.04.06 7

bercy chen studio CIRCUIT OF THE AMERICAS CASITAS | CONCEPTUAL DESIGN STUDY | 2021.04.06 7

PORTFOLIO OF ALEXANDER MEYER | EMAIL: ALEXPAULMEYER@GMAIL.COM | T: 913.526.4414

DESIGN CONCEPT AXONOMETRICS

THE OFFICES AT THE BACKYARD

COMMERCIAL OFFICE

PORTFOLIO OF ALEXANDER MEYER | EMAIL: ALEXPAULMEYER@GMAIL.COM | T: 913.526.4414

45
PORTFOLIO OF ALEXANDER MEYER | EMAIL: ALEXPAULMEYER@GMAIL.COM | T: 913.526.4414 46 DESIGN CONCEPT GROUND FLOOR PLAN VITALS CAY ECO RESORT | THE BAHAMAS | 46 1 2 3 4 D C B 5 6 A 7 MAIL ROOM 100 LOBBY 101 ELEV 02 112 ELEV EQUIP 110 MECH/ ELEC 106 STAIR 02 114 JAN 105 TELE 107 FIRE RISER 109 ELEC 108 ELEV 01 111 STAIR 01 113 LEASE SPACE 116 LEASE SPACE 115 CORRIDOR 102 LINE OF OVERHANG ABOVE, TYP. WOMEN'S 103 MEN'S 104 30' - 0" 30' - 0" 30' - 0" 30' - 0" 30' - 0" 30' - 0" 30'0" 20'0" 30'0" Scale 1111 E. 11th street, suite 200 :: austin, tx 78702 :: tel 512.481.0092 fax 512.476.7664 bercy chen studio LP PLAN 1/16" = 1'-0" GROUND FLOOR PLAN BACKYARD OFFICES 08/01/19
PORTFOLIO OF ALEXANDER MEYER | EMAIL: ALEXPAULMEYER@GMAIL.COM | T: 913.526.4414 47 DESIGN CONCEPT SECOND FLOOR PLAN VITALS CAY ECO RESORT | THE BAHAMAS | 47 2 4KM 1 1 2 3 4 D C B 5 6 A 7 ELEV LOBBY 201 CORRIDOR 202 ELEV 02 212 WOMEN'S 203 MEN'S 204 MECH/ ELEC 206 STAIR 02 214 JAN 205 TELE 207 ELEV 01 211 STAIR 01 213 LEASE SPACE 215 DATA 210 LINE OF OVERHANG ABOVE, TYP. 30' - 0" 30' - 0" 30' - 0" 30' - 0" 30' - 0" 30' - 0" 30'0" 20'0" 30'0" Scale 1111 E. 11th street, suite 200 :: austin, tx 78702 :: tel 512.481.0092 fax 512.476.7664 bercy chen studio LP PLAN 1/16" = 1'-0" SECOND & THIRD FLOOR PLAN BACKYARD OFFICES 08/01/19
PORTFOLIO OF ALEXANDER MEYER | EMAIL: ALEXPAULMEYER@GMAIL.COM | T: 913.526.4414 48 DESIGN CONCEPT
PORTFOLIO OF ALEXANDER MEYER | EMAIL: ALEXPAULMEYER@GMAIL.COM | T: 913.526.4414 49 DESIGN CONCEPT PERSPECTIVE RENDERING
PORTFOLIO OF ALEXANDER MEYER | EMAIL: ALEXPAULMEYER@GMAIL.COM | T: 913.526.4414 50 DESIGN CONCEPT

EAST RIVERSIDE CAMBRIAN PHASE II

MULTIFAMILY TOWER

PORTFOLIO OF ALEXANDER MEYER | EMAIL: ALEXPAULMEYER@GMAIL.COM | T: 913.526.4414

51
PORTFOLIO OF ALEXANDER MEYER | EMAIL: ALEXPAULMEYER@GMAIL.COM | T: 913.526.4414 52
DESIGN CONCEPT ENTRANCE PERSPECTIVE

OVERALL MASTER SITE PLAN + CONTEXT MAP

DESIGN CONCEPT
01 A301 01 A302 01 A303
DESIGN CONCEPT BASEMENT LEVEL PLAN
01 A301 01 A302 01 A303
GROUND LEVELPLAN
DESIGN CONCEPT
01 A301 01 A302 01 A303
DESIGN CONCEPT SECOND LEVEL PLAN

THIRD - NINTH LEVEL PLAN

01 A301 01 A302 01 A303
DESIGN CONCEPT
PORTFOLIO OF ALEXANDER MEYER EMAIL: ALEXPAULMEYER@GMAIL.COM T: 913.526.4414 58 GUARDRAIL CAST-IN-PLACE CONCRETE STUCCO STUCCO CAST-IN-PLACE CONCRETE WINDOW GUARDRAIL STUCCO STUCCO CAST-IN-PLACE CONCRETE CMU WALL 25'-6" RESIDENTIAL LEVEL 36'-0" RESIDENTIAL LEVEL 46'6" RESIDENTIAL LEVEL 57'-0" RESIDENTIAL LEVEL 67'-6" RESIDENTIAL LEVEL 78'-0" RESIDENTIAL LEVEL 88'-6" RESIDENTIAL LEVEL 99'-0" RESIDENTIAL LEVEL 109'-6" RESIDENTIAL LEVEL 120'-0" T.O. STRUCTURE 15'-0" GARAGE LEVEL 5'-0" GARAGE LEVEL -9'-0" GARAGE LEVEL -19'-0" GARAGE LEVEL B1 0'-0" GROUND LEVEL CMU WALL GUARDRAIL CAST-IN-PLACE CONCRETE CAST-IN-PLACE CONCRETE WINDOW CURTAIN WALL STUCCO CAST-IN-PLACE CONCRETE STUCCO CURTAIN WALL -4'-0" ENTRY LEVEL 25'-6" RESIDENTIAL LEVEL 36'-0" RESIDENTIAL LEVEL 46'6" RESIDENTIAL LEVEL 57'-0" RESIDENTIAL LEVEL 67'-6" RESIDENTIAL LEVEL 78'-0" RESIDENTIAL LEVEL 88'-6" RESIDENTIAL LEVEL 99'-0" RESIDENTIAL LEVEL 109'-6" RESIDENTIAL LEVEL 120'-0" T.O. STRUCTURE 15'-0" GARAGE LEVEL 5'-0" GARAGE LEVEL -9'-0" GARAGE LEVEL -19'-0" GARAGE LEVEL B1 0'-0" GROUND LEVEL GUARDRAIL CAST-IN-PLACE CONCRETE STUCCO CURTAIN WALL STUCCO CAST-IN-PLACE CONCRETE STUCCO CAST-IN-PLACE CONCRETE CMU WALL WINDOW -4'-0" ENTRY LEVEL BUILDING ELEVATIONS

TRAVIS COUNTY NORTH CAMPUS + TRAVIS FLATS

COMMERCIAL MIXED-USE

PORTFOLIO OF ALEXANDER MEYER | EMAIL: ALEXPAULMEYER@GMAIL.COM | T: 913.526.4414

59
60 OVERALL MASTER PLAN
PORTFOLIO OF ALEXANDER MEYER | EMAIL: ALEXPAULMEYER@GMAIL.COM | T: 913.526.4414
PORTFOLIO OF ALEXANDER MEYER | EMAIL: ALEXPAULMEYER@GMAIL.COM | T: 913.526.4414 61 ARCHITECTURAL PHOTOGRAPHY + RENDERING
NORTH CAMPUS
TTRAVIS COUNTY
PORTFOLIO OF ALEXANDER MEYER | EMAIL: ALEXPAULMEYER@GMAIL.COM | T: 913.526.4414 ARCHITECTURAL PHOTOGRAPHY + RENDERING TRAVIS FLATS APARTMENTS

ROLLINGWOOD III + PARKING GARAGE

COMMERCIAL OFFICE

PORTFOLIO OF ALEXANDER MEYER | EMAIL: ALEXPAULMEYER@GMAIL.COM | T: 913.526.4414

63

PORTFOLIO OF ALEXANDER MEYER | EMAIL: ALEXPAULMEYER@GMAIL.COM | T: 913.526.4414

64 OVERALL MASTER PLAN D D T FF=531.0 GF G F GF
PORTFOLIO OF ALEXANDER MEYER | EMAIL: ALEXPAULMEYER@GMAIL.COM | T: 913.526.4414 65 OFFICE EXTERIORS ARCHITECTURAL PHOTOGRAPHY + RENDERINGS
PORTFOLIO OF ALEXANDER MEYER | EMAIL: ALEXPAULMEYER@GMAIL.COM | T: 913.526.4414 66 ARCHITECTURAL PHOTOGRAPHY + RENDERING OFFICE LOBBY INTERIORS + EXTERIOR
PORTFOLIO OF ALEXANDER MEYER | EMAIL: ALEXPAULMEYER@GMAIL.COM | T: 913.526.4414 67 OFFICE INTERIORS + GARAGE SCREEN ARCHITECTURAL PHOTOGRAPHY + RENDERINGS
PORTFOLIO OF ALEXANDER MEYER | EMAIL: ALEXPAULMEYER@GMAIL.COM | T: 913.526.4414 68
DESIGN CONCEPT PARKING GARAGE SCREEN OPTIONS

CIBILO CROSSING RETAIL CENTER

COMMERCIAL RETAIL + RESTAURANTS

PORTFOLIO OF ALEXANDER MEYER | EMAIL: ALEXPAULMEYER@GMAIL.COM | T: 913.526.4414

69
OVERALL MASTER PLAN
PORTFOLIO OF ALEXANDER MEYER | EMAIL: ALEXPAULMEYER@GMAIL.COM | T: 913.526.4414 71 ARCHITECTURAL PHOTOGRAPHY RETAIL EXTERIORS
PORTFOLIO OF ALEXANDER MEYER | EMAIL: ALEXPAULMEYER@GMAIL.COM | T: 913.526.4414 72 ARCHITECTURAL PHOTOGRAPHY RETAIL EXTERIORS

DOMAIN 8 + PARKING GARAGE

COMMERCIAL OFFICE

PORTFOLIO OF ALEXANDER MEYER | EMAIL: ALEXPAULMEYER@GMAIL.COM | T: 913.526.4414

73
PORTFOLIO OF ALEXANDER MEYER | EMAIL: ALEXPAULMEYER@GMAIL.COM | T: 913.526.4414 74 UP UP 4 5 6 D D F F G G 9 10 11 12 13 J J C C B B 1 2 3 C.9 C.9 A A 3.9 5.1 6.3 8.2 9.7 1.4 7.5 E E H H C.7 7 8 DOMAIN 8 OFFICE 11601 ALTERRA PARKWAY TRUE NORTH PLAN NORTH DESIGN CONCEPT GROUND FLOOR PLAN + AXONOMETRIC 8-FLOORS OF OFFICE ON 4-FLOORS OF PARKING GARAGE LEASABLE SPACE: 290,000 SF

NORTH LOOP AT NORTH LAMAR

COMMERCIAL MIXED-USE

PORTFOLIO OF ALEXANDER MEYER | EMAIL: ALEXPAULMEYER@GMAIL.COM | T: 913.526.4414

75
PORTFOLIO OF ALEXANDER MEYER | EMAIL: ALEXPAULMEYER@GMAIL.COM | T: 913.526.4414 76 DESIGN CONCEPT PERSPECTIVE RENDERINGS

THE AVENUE MIXED-USE TOWER

APARTMENT INTERIORS

PORTFOLIO OF ALEXANDER MEYER | EMAIL: ALEXPAULMEYER@GMAIL.COM | T: 913.526.4414

77
PORTFOLIO OF ALEXANDER MEYER | EMAIL: ALEXPAULMEYER@GMAIL.COM | T: 913.526.4414 78 DESIGN CONCEPT RENDERING + AXONOMETRICS 1-BEDROOM UNIT FINISH TYPE B 2-BEDROOM UNIT FINISH TYPE A

DUBAI TOWN CENTER PAVILION

SHADE + ART STRUCTURE

PORTFOLIO OF ALEXANDER MEYER | EMAIL: ALEXPAULMEYER@GMAIL.COM | T: 913.526.4414

79
PORTFOLIO OF ALEXANDER MEYER | EMAIL: ALEXPAULMEYER@GMAIL.COM | T: 913.526.4414 80 DESIGN CONCEPT RENDERING + PERSPECTIVES
STREET CORNER VIEW
FRONT & SIDE ELEVATION VIEW

THE END FOR NOW THANKS FOR READING PORTFOLIO

OF ALEXANDER MEYER

PORTFOLIO OF ALEXANDER MEYER | EMAIL: ALEXPAULMEYER@GMAIL.COM | T: 913.526.4414

81

Turn static files into dynamic content formats.

Create a flipbook
Issuu converts static files into: digital portfolios, online yearbooks, online catalogs, digital photo albums and more. Sign up and create your flipbook.