PROYECTO COORPORATIVO-DISEÑO INTERIORES

Page 1

AGENCIA DE VIAJES D I S E Ñ O D E I N T E R I O R E S
DISEÑO DE INTERIORES GRUPO 1-3 PRESENTA: CALDERÓN ESCALANTE, SOFÍA ELIZABETH (201901808) MONTERROSA MERCADILLO, AMELIA DENISSE (202000521) JENNIFER GERALDINE DURÁN ZELAYA,202001153 ARLÉN PEÑA CEDEÑO,202000888 DOCENTE: ARQ. MÓNICA MARÍA ÁVALOS MOLINA
TRAVEL CLICK&T
AGENCY TRIP.CO

CONCEPTO DE DISEÑO

WANDERLUS

"Un deseo irrefrenable por explorar y

Proyecto coorporativo que tiene la finalidad de a espacios que generen confort al usuario, ajustá además de facilitar al usuario la realización de s colaboradores, manteniendo un ambiente equili la oficina se encuentra saturada de objetos.

Tconocer el mundo"

armonizar la sencillez de la arquitectura moderna de alto perfil, logrando así ndose a sus necesidades. Por lo que se propone un diseño arquitectónico, sus tareas, deberá propiciar la comunicación fluida y efectiva entre los brado, donde los usuarios se sientan a gusto y no exista la sensación de que

DISEÑO

DE
MEMORIA

MOODBOARD

Comodidad Seguridad Paz Placer

STYLEBOARD

Travel agency

RECEPCIONISTA

Recibir visitas, atende recibir y clasificar el Cantidad de emplead

EMPLEADOS DE ATENCIÓN

Registran, organizan Atención al cliente. Cantidad de emplead

PERFIL DE

USUARIOS

GERENTE

Planear y dirigir el tra monitorear su desem Cantidad de emplead

r llamadas telefónicas, correo diario. os: 3

AL CLIENTE archivan información.

abajo de los empleados, mpeño, recibir clientes. dos: 1

PERSONAL DE LIMPIEZA

Realizar las labores brindar comodidad a Cantidad de emplead

CLIENTES

Reunirse con el gere discutir planes de via Cantidad de visitante

de aseo y limpieza para los empleados. dos: 2 nte y/o empleados y aje. es máxima: 8

CONSTRUCTIVO

PLANO PPAL.ACCESO

ESPACIOS

RECEPCIÓN ATENCIÓN AL CLIENTE SERVICIOS SANITARIOS SALA DE REUNIONES GERENCIA

ÁREA DE SERVICIO CAFETERÍA

1. 2. 3. 4. 5. 6. 7.

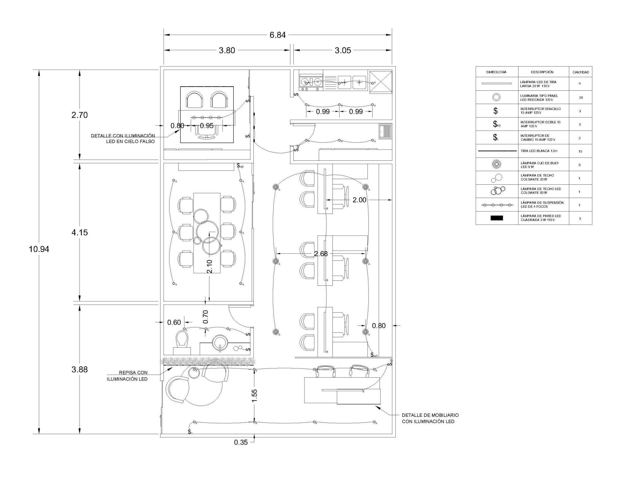
LUMINARIAS

PLANO PPAL.ACCESO

ESPACIOS

RECEPCIÓN ATENCIÓN AL CLIENTE SERVICIOS SANITARIOS SALA DE REUNIONES GERENCIA

ÁREA DE SERVICIO CAFETERÍA

1. 2. 3. 4. 5. 6. 7.
MOBILIARIO DISTRIBUCIÓN

RECEPCIÓN

PALETA DE COLORES

TEXTURAS

ATENCIÓN AL CLIENTE

PALETA DE COLORES

TEXTURAS

SALA DE REUNIONES

PALETA DE COLORES

PALETA DE COLORES

TEXTURAS

GERENCIA

PALETA DE COLORES

TEXTURAS

CAFETERÍA

PALETA DE COLORES

TEXTURAS

ÁREA DE SERVICIO

PALETA DE COLORES

TEXTURAS
DIN0 1-3

Turn static files into dynamic content formats.

Create a flipbook
Issuu converts static files into: digital portfolios, online yearbooks, online catalogs, digital photo albums and more. Sign up and create your flipbook.