





![]()








LANDSCAPED MONTANA VIEWS
7.393 ACRES WITH WATER & NO RESTRICTIONS
MULTIPLE OUTBUILDINGS AND LARGE SHOP COVERED BACK PATIO
WELL MAINTAINED & UPDATED HOME







GAS STOVE & DOUBLE OVEN
LARGE ISLAND W/ SINK
FILTERED WATER AT LARGE SINK
CUSTOM BUILT-IN STORAGE
CUSTOM HAMMERED METAL HOOD




GAS FIREPLACE
OPEN LAYOUT
RECESSED LIGHTING
LARGE WINDOWS
CEILING FAN
CUSTOM HARD
TEXTURED WALLS
SURROUND SOUND





CUPBOARDS & 2 LARGE COAT CLOSETS
SINK & EXTRA COUNTERTOP SPACE CLOTHES RACK
SPACE FOR FREEZER OR IRONING BOARD
CUSTOM PULLOUT SHELVES

DOUBLES AS MUD ROOM



LING FAN

RROUND SOUND
STOM WALK-IN
OSET W/ BUILT-IN ORAGE
MARY BATH ACHED
RPET
S A KING SIZED BED
RGE WINDOWS X 15'




LARGE DOUBLE VANITY
TOILET CLOSET (WITH BIDET)
LARGE WALK-IN TILED SHOWER (2 SHOWER HEADS)
LARGE JETTED TUB
LARGE WINDOWS
EXTRA RADIENT HEAT



SURROUND SOUND PERFECT ROOM FOR A SITTING AREA OR BOOK NOOK


JACK AND JILL
BATHROOM
EACH SIDE HAS PERSONAL VANITY AREA
POCKET DOORS
TUB/SHOWER COMBO
LINEN CLOSET & WALK-IN CLOSET



LARGE WINDOWS PROVIDING AMPLE NATURAL LIGHT AND VIEWS
LARGE CLOSET W/ CUSTOM SHELVING
CARPET 12' X 14'



LARGE WINDOWS PROVIDING AMPLE NATURAL LIGHT AND VIEWS
2 LARGE CLOSETS
CARPET 13' X 14'



9' X 14' 8' VAULTED CEILINGS
LARGE WINDOW
CARPET
11' X 9'
LARGE WINDOW PERFECT FOR HOME OFFICE/HOBBY ROOM

26' X 29'











11' X 9' | HAS ELECTRIC | DESIGNATED GARDEN AREA















7.393 ACRES - NO RESTRICTIONS
GATED PRIVATE GRAVEL ROAD
SERENE AREA - BUT STILL MINUTES FROM BILLINGS AMENITIES
UNDERGROUND SPRINKLERS FRONT AND BACK OF THE HOUSE
HOSE HOOKUP FOR SIDE PATCH THAT HAS NO UGS
3 WATER SPIGOTS
8 DITCH WATER SHARES
FENCED, SEPARATE FENCED PASTURES
SHOP
32'X47'
NEW LIGHTS IN SHOP
EXTERIOR MOTION SENSER LIGHTS WITH ON/OFF SWITCH
AIR COMPRESSOR TANKS
EXTRA RV STORAGE
4 WAY HORSE STALL SHELTER
AUTOMATIC WATER - HEATED
HAY STORAGE SHED
GARDEN AREA & SHED
SHED IS 11'X9'
ELECTRIC
COVERED PATIO
14'X16'
CEILING FAN & RECESSED LIGHTING
SURROUND SOUND
PLUMBED FOR GAS BBQ



Est. 5 minutes to Eaglerock Golf Course PROPERTY LINES ARE APPROXIMATE - 7.393 TOTAL ACRES

Est. 10 Minutes to Billings Heights Est. 20 Minutes to Downtown Billings





ELECTRIC: YELLOWSTONE VALLEY CO-OP
GAS: 500 GALLON, OWNED PROPANE TANK (LEWISTOWN PROPANE)
GARBAGE: REPUBLIC - PICK UP ON FRIDAYS
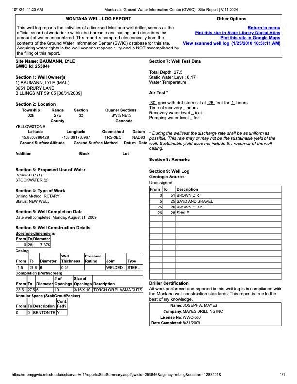
WATER: DOMESTIC WELL & STOCK WELL
SEPTIC TANK - SEE PERMIT
GEOTHERMAL HEATING & COOLING
SCHOOLS: ELEMENTARY: PIONEER MIDDLE: PIONEER HIGHSCHOOL: SHEPHERD
TOTAL SQ FT: 3,495
7.393 ACRES
GATED PRIVATE GRAVEL ROAD
ATTACHED 2 CAR GARAGE
CUSTOM CHARM THROUGHOUT THE ENTIRE HOME
WOOD TRIM IS HANDCRAFTED
WOOD DOORS & RUSTIC HICKORY CABINETS










