ALAN MARTINEZ PORTFOLIO

Page 1


ARCHITECTURE PORTFOLIO

ALAN MARTINEZ I PRAIRIE VIEW A&M I M.ARCH. ARCHITECTURE GRADUATE

Curriculum Vitae

SELECTED WORKS

Trans-Global Solutions

Independence Heights Library

Harvard Street Residence

P.V. Arch. Reference Library

EXPERIENCE

09/2022-Present

10/2021-09/2022

10/2020-10/2021

04/2019-10/2020

04/2015-05/2019

EDUCATION

2022-2023

2018-2022

2016-2018

SKILLS

Autodesk

Rendering

Adobe CC

3D Modeling

Microsoft Office

Bluebeam

LANGUAGES

ALAN MARTINEZ CURRICULUM VITAE

Goree Architects - Project Associate II

-Prepare plans and drawings in collaboration with architectural team.

Rezcom, Inc. - Project Associate

-Start and finish full set of architectural, civil, and structrual drawings.

3h Engineering, Inc. - Structural Designer

-Prepare structural and civil residential construction drawings.

FedEx Ground - Courier Driver

-Operate company vehicles and provide efficient delivery.

Cypress Fairbanks ISD - Support Staff Program Manager

-Coach and direct employees to ensure quality programming when serving in manager or coaching roles.

Prairie View A&M University Master of Architecture

Prairie View A&M University Bachelor of Science in Architecture

Lonestar College Associates of Science

Revit I AutoCAD I Formit

Lumion I Enscape I Twinmotion

Photoshop I InDesign I Illustrator

Revit I SketchUp I Rhino

Word I PowerPoint I Excel

DC-5 WAREHOUSE

TGS CEDAR PORT DC 2

±496,421 SF (Expandable) | Rail-Served or Cross Dock

4407 E. Grand Parkway S., Baytown, TX 77523

Located in Baytown, TX, the TGS DC-5 Warehouse is a 609,427 SF industrial tilt-wall facility. It is part of TGS Cedar Port Inustrical Park, the largest master-planned, rail- and barge-served industrial park in the U.S. This cross-dock warehouse features 101 ocerhead doors, with the potential to add another 101 though knock-out panels on the opposite side. The building reaches a height of 50’ at the top of the parapet.

JOHN SIMONS PARTNER

713.275.9634 john.simons@partnersrealestate.com

GRAY GILBERT, SIOR PARTNER

713.301.7252 gray.gilbert@partnersrealestate.com

CHRIS HARO PARTNER

713.275.9620 chris.haro@partnersrealestate.com

DC-4 SPEC OFFICE

The DC 4 Spec Office was constructed and completed in December 2024 as the first addition to the DC 4 warehouse shell. This warehouse spans 1,218,956 SF and now includes a two story, 8,236 SF office space. It is situated within the TGS Cedar Port Inudustrial Park.

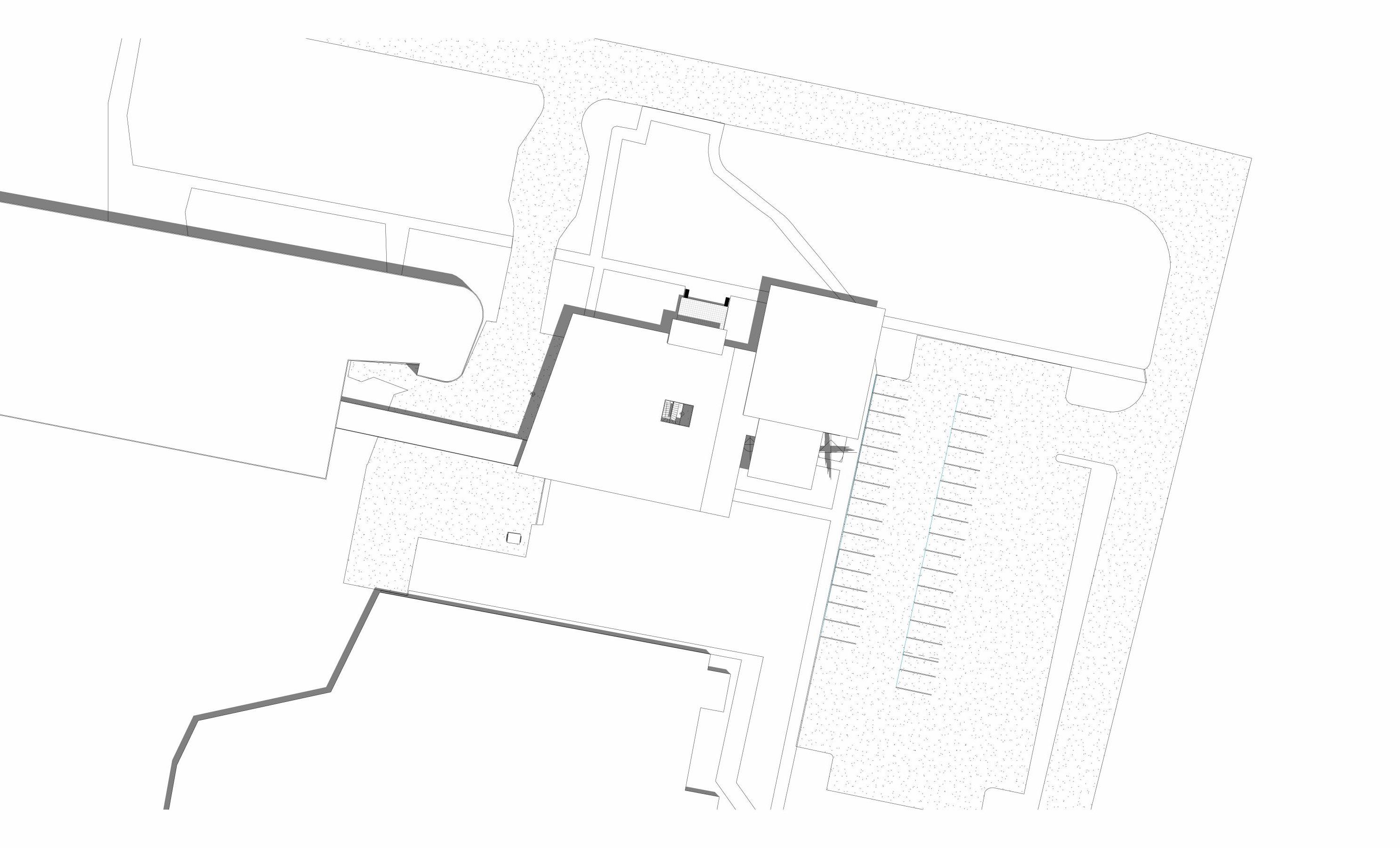
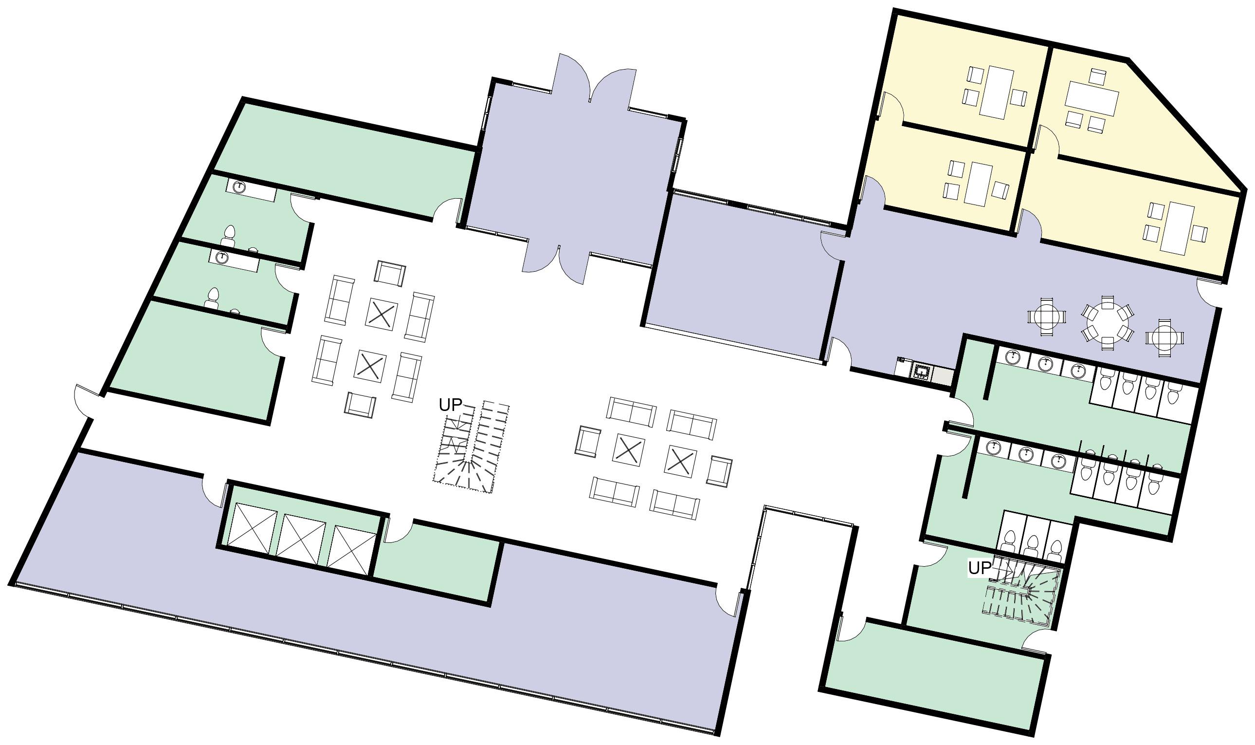
INDEPENDENCE HEIGHTS LIBRARY

A proposed library in the Independence Heights community of Houston, TX. The site is nearby the Metrorail red line station as well as the Northline transportation center, which provides daily routes to residents in the immediate and greater neighborhoods of Houston. The challenge of designing a new library in the area is to unite the community by providing a space for interaction.

DESIGN IDEA

The concept intended was to invite users by creating a welcoming space. The solid and void facade is meant to attract those who are passing by either side of the building on their commute. The public amenities are exposed to the outside with curtain walls to attract people passing by. The library is comprised of two levels, a computer room, a cafe, an outdoor gathering space, and a reflection pond.

ROTATE SHIFT

LEGEND

Administration

Youth Teen Cafe

Multi-room

Browsing

Adult

1ST FLOOR

2ND FLOOR

HARVARD ST. RESIDENCE

Harvard St. residence is a proposed townhome development located in the Greater Heights area in Houston, TX. This is a permitted project that I started and completed. Construction documents included architectural, civil, and structural plans that were submitted to the city of Houston. All graphics and renders were developed by me.

BATH
2 CAR GARAGE
BEDROOM 1
BATH
W.I.C.
DINING

KITCHEN

LIVING ROOM

BEDROOM 2

MASTER BEDROOM

MASTER BATH

W.I.C.
W.I.C.
W.I.C.
BATH
LAUNDRY
RIGHT SIDE ELEVATION
LEFT SIDE ELEVATION

REAR ELEVATION

FRONT ELEVATION

EXTERIOR ELEVATIONS

SCALE : 1/4" = 1'-0"

EXTERIOR ELEVATIONS

SCALE : 1/4" = 1'-0"

P.V. ARCHITECTURE REFERENCE LIBRARY

The proposed structure is an architecture reference library located east of the existing architecture building and north of the fabrication center. This site posed many challenges that gave shape and life to the building. Existing trees on the site were not allowed to be cut down naturally shaping parts of the building by working around the trees. Materials were chosen based off school policies and also trying to connect with the existing buildings through materials. Sidewalks played a factor in the form as well.

DESIGN CONCEPT

Finding a way to relate to the site and surrounding buildings was a great challenge. Existing trees, sidewalks, and building geometries were all taken into consideration when creating the floor plan and facade. Instead of seeing them as constraints I saw them as an opportunity to create something meaningful. The architecture building and fabrication center have angled vertical shapes that influenced the west facade. The sidewalk constraints gave a linear horizontal and vertical shape to the rest of the building all while working around the existing trees. Curtain walls were used so that students can celebrate the trees that surround the building.

BASE EXTRUDE EXCAVATE

1ST FLOOR

2ND FLOOR

3RD FLOOR

ALAN MARTINEZ I PRAIRIE VIEW A&M I M.ARCH. ARCHITECTURE GRADUATE

Turn static files into dynamic content formats.

Create a flipbook
Issuu converts static files into: digital portfolios, online yearbooks, online catalogs, digital photo albums and more. Sign up and create your flipbook.