Allison Schwartz Portfolio

Page 1


Syracuse University

B. Arch 2025

Allison Schwartz

EDUCATION

Syracuse University School of Architecture | Bachelor of Architecture

GPA 3.6 | Dean’s List - eight semesters | Chancellor’s Scholarship

Syracuse Abroad | London, GB

Sustainability on Trial: Environmental Justice in Northern Europe

Syracuse Architecture NYC Program

SUNY ESF | Sustainable Construction Management Minor

Construction Estimating, Materials Marketing , Environmental Impact Analysis, Renewable Materials, Capstone (PM)

RELATED EXPERIENCE

Architecture Intern | IKM Inc. | Pittsburgh, PA

• produced renderings in Enscape and Photoshop + exterior construction details while modeling in Revit for projects focused in healthcare and K-12 programs

Expected May 2025 Spring 2023

Expected May 2025

June 2024 - Aug. 2024

• researched products, specifications, and communicated with product representatives for lighting design proposals included in client meetings

• participated in on-site analysis and construction site visits to healthcare and collegiate projects

• discussed preliminary massings strategies for K-12 fieldhouse using Revit, Rhino, and Sketchup

Urban Voids Drawing Class Workshop | Architensions | New York, NY December 2023

Architecture Intern | Bottega17 | Florence, IT

• completed final competition submission while adhering to deadlines for mixed-use high school campus by modeling with Rhino + drafting in AutoCAD for renderings and physical models

• modeled in Rhino exisitng church from the approx. 1500s using analog drawings

• discussed and sketched through precedents for preliminary design of church rennovations

LEADERSHIP

Resident Advisor | Office of Student Living | Syracuse, NY

Architecture Peer Advisor | School of Architecture

Food Recovery Network | Executive Board Member

Social Media and Outreach Coordinator

Student Supervisor | Graham Dining Hall | Syracuse, NY

Future Designers for Syracuse | Social Media

Content Creator

SKILLS

Drawing Visualization

Software

AutoCAD | Manual Drafting | Hand Sketching

Rhinocerous | Adobe Photoshop | VRay | Lumion | Grasshopper

May 2023 - June 2023

Manufacturing Apr. 2022 - Present

Adobe Illustrator | Adobe InDesign | BlueBeam Nov. 2021 -Aug. 2022

3D Printing | Laser Cutting | Wood | Foam Core | Paper Aug. 2021 - Jan. 2023 Fall 2023 Nov. 2020 - May 2022

Nov. 2021 - Dec. 2022

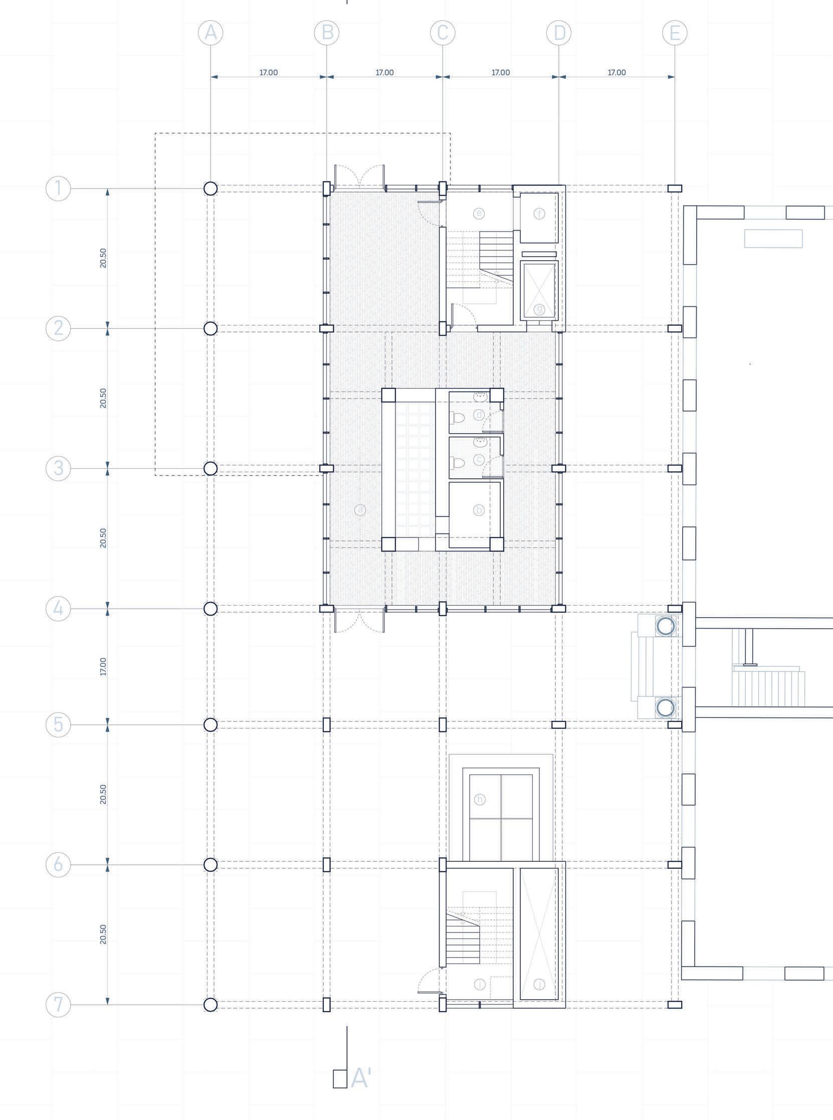
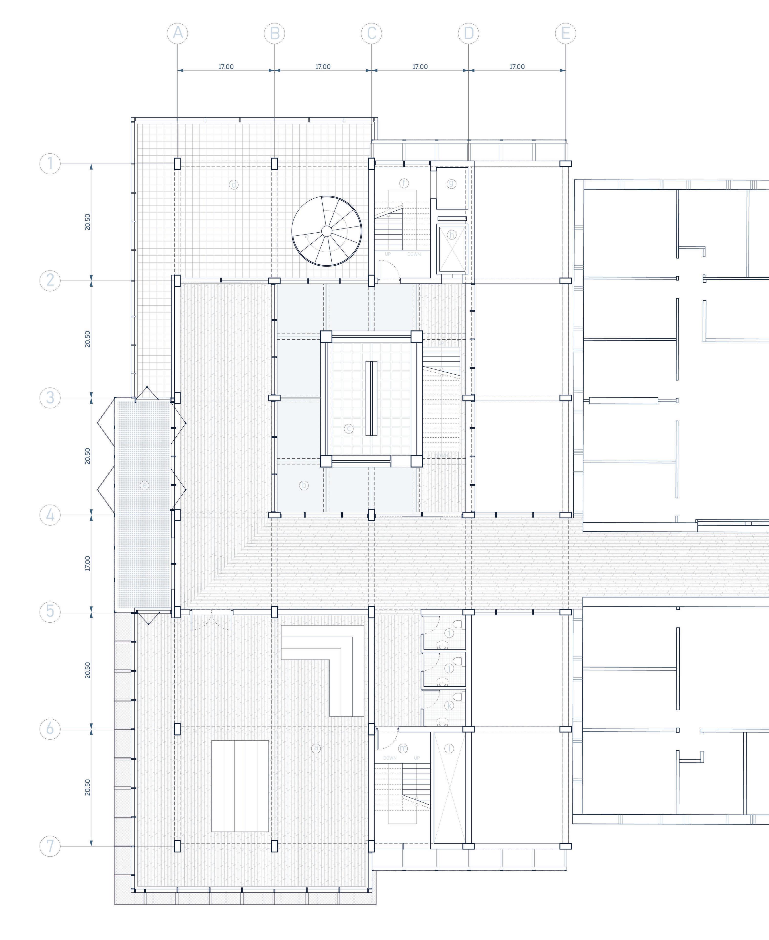
01 Perforated Inversion of Slocum Hall

Spring 2024

Lawrence Davis

Syracuse, NY

Using mass timber, this project expands off of the exisiting facade of Slocum Hall. The structure appears in a typical grid with the gallery and review volumes interupting the intensity of the grid with double height spaces facilitated by transfer beams.

The book core of the library has been condensed to allow for open seating arrangements for the studying and social aspects of architecture school. The core also creates a structural gradient with the columns becoming smaller until the exterior screen. This screen mirrors the hatches placed on the windows and floors of Slocum Hall to communicate the visual branding of the School of Architecture on the exterior.

Rhinocerous, V-Ray, Adobe Illustrator, Photoshop

structure

enclosure

3rd Floor

a Terrace

b Study Space

c Balcony

d Review Space

Slocum Hall (existing)

Proposed “library core” as a translation of Slocum Hall’s exisitng open atrium, creating a dialectic inversion between the exisiting and proposed spatial relationship

Pillai + Schwartz
Pillai + Schwartz

existing

inside Slocum Hall
Pillai + Schwartz

02 Remembering “Old” Billingsgate

with Hanbyul Oh and Graham Warren

Spring 2023

Vanessa Lastrucci

Amber Bartosh

London, England

After becoming familiar with Old Billingsgate as a building, we furthered our understanding of its relevance as a historic site. Our interventions have questioned the role of memory devoid of and dependent on intangible and tangible aspects of humanity’s marks throughout time.

The question that guided our process returned to the idea- what does the word “Billingsgate” want to be defined as today with already 1,000 years of meaning? How does it want to be remembered into the 21st century? And, what can it be defined as in the future?

Rhinocerous, Adobe Ilustrator, Adobe Photoshop, Adobe Aero, Lumion, Vellum, Basswood, ProCreate

Warren + Schwartz

As we build for today in speculation of the future, we are also creating history. This marketplace is our response to the omnipotent passage of time that ultimately puts all of our work in the past.

“Tradition is not the worship of ashes but the preservation of fire.”
- Gustav Mahler

The form of the arch was built and reconfigured throughout the site for centuries and symbolizes a place of gathering and exchange

Old Billingsgate

Billingsgate Fish Market

PROPOSED

PUBLIC

Billingsgate

Billingsgate Market

The ghosted arch structure of the proposed memorial acts as a symbol to the cultural history of the site lost to privitization.

Blynesgate
Byllynsgate
Bellens gate

Proposed

Warren

Main metal rebar sculptural support

Density of lateral bracing increases gradually towards the top of the memorial to obscure the larger structural members

Oh + Warren + Schwartz
Warren + Schwartz

03 B17 Education Center

Summer 2023 Internship at Bottega17

Design Competition in Via Torino of the Municipality of Aosta | 2nd Place Florence, IT

The design proposal was the combination of high school discplines relating to both art and engineering in Northern Italy. The project work ranged from modeling the stair cores in Rhino, creating AutoCAD templates for the maquette, and producing linework for the submission boards towards the final stages of the competition submission.

Rhinocerous, V-Ray, Adobe Photoshop, AutoCAD

rendered post internship

04 Life Sciences Facade Optimization

Spring 2024

Syracuse, New York

The existing Life Sciences building at Syracuse University has high energy loads as an extensive lab space and roof greenhouse. In thinking about how to decrease the building’s carbon footprint beyond its initial design, we researched methods of integrating energy efficiency into the facade

This culminated in exploring the limitations of current solar panel screening devices in conjunction with speculative technology that could integrate mechanical members to keep the panel surfaces in alignment with sunpaths for “total” optimization.

Rhinocerous, Adobe Illustrator, Athena Impact Estimator, Grasshopper

As Built About Mitrex

https://www.ellenzweig.com/work/syracuse-university-life-sciences-building/

https://nbkterracotta.com/products-services/terrart/terrart-large/ TERRART® Tiles

Mitrex is a company based in Canada specializing in building-integrated photovoltaics (BIPVs) that utilize the sun to generate electricity through their solar glass and solar facade technologies. BIPVs are advantageous because they can replace the outer layer of the structure while the solar technology can be concealed behind it. Solar panels are typically building-applied photovoltaics (BAPVs) that cannot be concealed and require more space which limits their use, often relegated to roofs, poles, or the ground.

The solar facade has four separate, yet thin layers (glass/customizable facing, solar cells, back sheet, and aluminum honeycomb) which allow for lightweight, customizable, high-strength panels. They also offer a wide range of surface treatments via their facing which can take on the aesthetics of several materials from brick, wood, to even personalized graphics with varying levels of wattage production. Additionally, they can come in a variety of shapes, sizes, configurations, and orientations from flat tiles to fins and circles to hexagons. The layer of solar cells is also customizable and provides thermal resistance and noise control while ensuring durability and safety. Overall, the system can be used as a solar facade, noise barrier, siding, or spandrel panel.

Mitrex Color Samples

Existing Redesign

Red illustrates the current amount of direct sunlight entering the lab and classroom spaces - attributing to heat gain and glare.

Proposed interior operable vertical louvres allow for direct, indirect, or the near absence of sunlight as controlled by the building occupants.

Brittis-Tannenbaum

Redesign with Solar Panels

While solar panels are generally deemed as “sustainable”, we do want to acknowledge the amount of energy that goes into their production, mineral extraction, and the transportation emissions from these extraction sites worldwide is very detrimental at the scale of the global supply chain.

To acknowledge this is the ATHENA analysis, “Project Extra Materials” accounts for the materials as raw objects that comprise solar panels to gain the closest estimate as possible using this software.

Operable Louvre System

+ Schwartz

Aluminum Honeycomb Sheet
Solar Backsheet
Photovoltaic Panels
Colored Cladding Panels

Optimization

05 Landmark Preservation Committee Civic Center

Fall 2023

New York, NY

This proposed version of a new LPC Headquarters uses values outlined in formal documentation and points of debate in hearings. These include materiality, scale, and proportion. Through this proposal, we strategically question what is “appropriate” for expansions in the historic district of Greenwich Village.

This sculptural form uses brick, a ubiquitous material found in historic buildings, to subvert the original masonry facade of an abandoned clinic while doubling its usable space.

Rhinocerous, Grasshopper, V-Ray, Adobe Illustrator

Subversion of the historic facade takes place visually through the parametric rotation of brick.

Brittis-Tannenbaum + Schwartz

Brittis-Tannenbaum + Schwartz

Brittis-Tannenbaum

The bricks are exisitng facade subverted
The texture facades and
This material masonry facade garden and

Ground Floor Hearing Hall

of brick references the “anonymous antiquity” of and alleys in Greenwich Village.

material acts as a protective shell, encasing the existing facade while claiming the streetscape as sculpture and exterior seating as observed throughout the district.

are rotated on an axis of 15-90o. From human scale, the facade and acitvty within is simultaneously exposed and as one’s perspective changes.

Observation Deck + Terrace

Brittis-Tannenbaum + Schwartz
+ Schwartz

Early massing models beginning to consider public space engagement while doubling useable space for community program requirements.

Schwartz

Catalogue of Historic Features at Snug Harbor in Stanton Island, NY

Imaging the “El” in Greenwich Village, NY circa. 1920

06 Urban Voids Drawing Workshop with Architensions

Fall 2023

Nick Roseboro

Alessandro Orsini

Urban Voids analyzes the historical changes in the riverfront of the UN complex. Previous housing developments, hospitals, and parks have been privatized as the area gained international political importance.

The drawn concept of urban voids aims to document the phenomenon of traditionally public buildings, like the Ford Foundation Atrium, remaining empty due to the privitization of spaces in the city.

Rhinocerous, Mixed-Media, Adobe Illustrator, Photoshop

Turn static files into dynamic content formats.

Create a flipbook
Issuu converts static files into: digital portfolios, online yearbooks, online catalogs, digital photo albums and more. Sign up and create your flipbook.