TESIS II TRABAJO DE FIN DE CARRERA II FLORES - PACHERRE

Page 1


PORTAFOLIO ACADÉMICO PORTAFOLIO ACADÉMICO

ARQ. SUAREZ VILLASIS, MARTIN

ARQUITECTURA

“Diseño de un Complejo Deportivo arquitectura sostenible para los ciudad de Piura 2024”

ALEMÁN HO, MEIKIN

PACHERRE ROMÁN, ALLAN

VENTURA ARÉVALO, NADIA

T R A B A J O D E F I N T R A B A J O D E F I N D E C A R R E R A I I D E C A R R E R A I I

ALEMÁN HO, MEIKIN

“DISEÑO DE UN COMPL “DISEÑO DE UN COMPL SOSTENIBLE PARA LOS SOSTENIBLE PARA LOS

VENTURA ARÉVALO, NADIA T E S I S I I T E S I S I I

PACHERRE ROMÁN, ALLAN

DEPORTISTAS DE LA CIUDAD DE PIURA 2024”

DEPORTISTAS DE LA CIUDAD DE PIURA 2024”

01 01 02 02 03 03

SOBRE NOSOTROS

¿Quiénes somos?

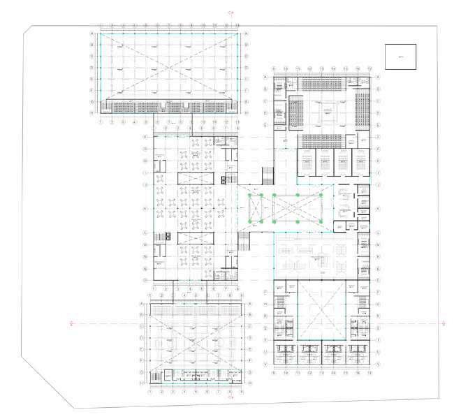
ESTUDIO PREVIO PLANTAS

Descripción breve del análisis previo para la realización del proyecto.

Representación del proyecto.

CONTENIDO CONTENIDO

04 04 05 05 06 06

CORTES Y DETALLES

Sección principal del poryecto y detalles constructivos de este.

ELEVACIONES RENDERS

Representación plana de fachadas del proyecto.

Modelado 3D del proyecto.

Estudiante de décimo ciclo de la Facultad de Arquitectura Urbanismo y Arte de la Universidad Privada Antenor Orrego, en proceso final de formación académica y profesional.

Me considero una persona persistente para las diferentes actividades académicas y laborales.

Mi objetivo principal es complementar mis conocimientos teóricos de la universidad ejerciendo la carrera y formando parte de equipos en proyectos enfocados en el desarrollo de mi ciudad.

Estudiante de décimo ciclo de la Facultad de Arquitectura Urbanismo y Arte de la Universidad Privada Antenor Orrego, en la última fase de mi desarrollo académico y próximo a iniciar la etapa profesional.

Me considero una persona resiliente al afrontar la adversidad de forma constructiva y como un aporte de experiencia para el futuro.

Mi objetivo principal es aportar los conocimientos y habilidades obtenidos en mi proceso académico a la sociedad.

Pacherre Román, Allan Paul

SEUBICAENEL

PROYECTO

DEPARTAMENTODEPIURA

PROVINCIADEPIURA

DISTRITODEVEINTISEISDEOCTUBRE

SEGÚNCENSO2017,ELDISTRITOCUENTA

CONUNAPOBLACIONDE165,779HAB

CALLE3

AV.PROLONGACIONGRAU

Uso de la geometrización para el orden los volúmenes

Es un proyecto que nace del concepto de la actividad física realizada por el ser humano, desde una actividad simple como caminar, a una comleja como realizar algún deporte.

El movimiento constante fue la idea rectora para el desarrollo de la infraestructura

PLANTAS PLANTAS

PLANTA DE TECHOS
SEGUNDA PLANTA

PLANTA SÓTANO

CORTE

LONGITUDINAL A

CORTE LONGITUDINAL B

DETALLES DETALLES

DETALLES DE ESTRUCTURA METÁLICA

DETALLES DETALLES

DETALLES DE JARDINERAS

DETALLES DE RAMPA

ELEVACIÓN FRONTAL

ELEVACIÓN LATERAL

Turn static files into dynamic content formats.

Create a flipbook
Issuu converts static files into: digital portfolios, online yearbooks, online catalogs, digital photo albums and more. Sign up and create your flipbook.
TESIS II TRABAJO DE FIN DE CARRERA II FLORES - PACHERRE by Allan Pacherre - Issuu