Aliaa Adel Othman- Architectural Portfolio

Page 1

Aliaa Adel ArchitecturalOthmanPortoflio

E: B.Sc.AliaaA:M:aliaaadel30@gmail.com226-978-8258Waterloo,ONAdelOthman(Arch.),M.Sc.(Arch.),Ph.D.(Arch.)

3D Models

Projects Interior Design Projects

Private

List of ProjectsArchitectural

Residence Office Building Extension Residential Condominium Live/ Work House Private ResidenceSienceHotelHotel and Reasearch Center Renovation of Resdiential Apartment Interior Design for Resdiential Apartment

Projects

l

Studio: Architectural Firm, Egypt l

l Plan

Year: 2010 l

l

Main Facade

Software: Autocad l Floor

Private Residence

Role: Design development l

l

2022 l

l Software:

Ground Floor Plan

Office Building Extension

l Studio:

IPLAN/ Toronto Metropolitan University, Ontario l

Revit & Enscape l

Main Elevation

l Year:

Design development with working drawing l

l Role:

l Year:

IPLAN/ Toronto Metropolitan University, Ontario l

l Software:

l

Revit & Enscape l 3rd Floor Plan Secttion a-a

Office Building Extension

l Studio:

2022 l

Role: Design development with working drawing l

l

Office Building Extension

Rentable Area Plans

l Year: 2022

l Role: Design development drawing

l Studio: IPLAN/ Toronto Metropolitan University, Ontario

l Software: Revit Enscape

l

with working

l

&

l

Demolished Phase

Office Building Extension

Studio: IPLAN/ Toronto Metropolitan University, Ontario l

l

Software: Revit & Enscape l Exterior Views

l

l

Role: Design development with working drawing l

l

Year: 2022 l

Software: Revit & Enscape l Ground Floor Plan Section

l

l

Role: Design development with working drawing l

Year: 2022 l

Live/ Work House

l

Studio: IPLAN/ Toronto Metropolitan University, Ontario l

l

1st Floor Plan

l Studio:

l Year:

Exterior Views

2022 l

Live/ Work House

l Role:

Design development with working drawing l

Revit & Enscape l

l Software:

IPLAN/ Toronto Metropolitan University, Ontario l

Section B-B

l Studio: IPLAN/ Toronto Metropolitan University, Ontario l

Sience and Reasearch Center

Third Floor Plan

l Year: 2022 l

l Role: Design development and Ontario Building Code Lead l

l Software: Revit & Enscape l

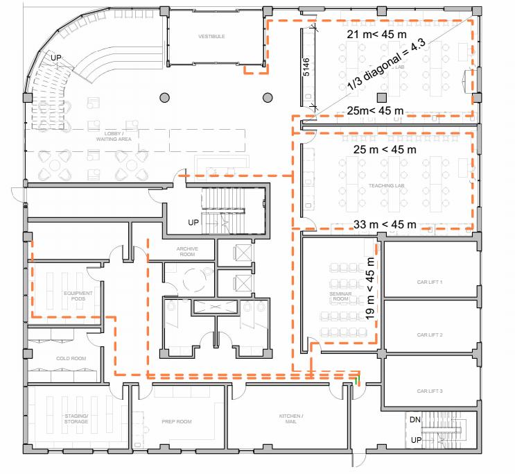
Sience and Reasearch Center

l Role: Design development and Ontario Building Code Leadl

l Software: Revit & Enscape

l

Calculating the travel distance

l

Fire Resistance Rating

Interconnected Floors

l

Interior Atrium

l Studio: IPLAN/ Toronto Metropolitan University, Ontario

l Year: 2022

Private Residence l Studio: BASSEL AZZAM Architect, Cambridge, Ontario l l Year: 2022 l l Role: Created 3D models and produced renderings l l Software: Sketchup & Enscape l Exterior Views Site Plan

Residential Condominium l Studio: BASSEL AZZAM Architect, Cambridge, Ontario l l Year: 2021 l l Role: Created 3D models and produced renderings l l Software: Sketchup & Enscape l Site ExteriorPlanViews

Hotel l Studio: BASSEL AZZAM Architect, Cambridge, Ontario l l Year: 2020 l l Role: Created 3D models and produced renderings l l Software: Sketchup & Enscape l Exterior Views Site Plan

Hotel l Studio: BASSEL AZZAM Architect, Cambridge, Ontario l l Year: 2020 l l Role: Created 3D models and produced renderings l l Software: Sketchup & Enscape l Exterior Views Site Plan

Design

Interior for

Resdiential Apartment l Studio: Architectural Firm, Egyptl l Year: 2022 l l Role: Created 3D models and produced renderings l l Software: Sketchup & Enscape l Interior Views Floor Plan

of Resdiential Apartment l Studio: Arcbazar, USl l Year: 2017 l l Role: Created 3D models and produced renderings l l Software: Sketchup & Enscape l

Floor

Interior Views Plan

Renovation

Turn static files into dynamic content formats.

Create a flipbook