Alexa Rodriguez - Architecture Portfolio - Dibujo y Presentación - RIBA Part 1 - ULima 2022-1

Page 1

Facultad de Ingeniería y Arquitectura

Carrera de Arquitectura - Área de Comunicaciones

Ciclo 2022-1

PLANIMETRIA INICIAL

CG1-CG7-CG9

ENCARGO

Se encargó buscar un referente de tipo gimnasio con una cantidad de m2 que no superen los 1000 m2. En base a ello se deberá realizar el plano de ubicación del MVCS (Terreno 1:500, sección de vías 1:200 o 1:250, esquema de localización, cuadro normativo y de áreas), y planos de replanteo de anteproyecto (plantas, 2 cortes y 2 elevaciones)

OBJETIVOS

Reconocer y graficar:

1 Información para el emplazamiento de una edificación Datos físicos y normativos del terreno.

2 Información de anteproyecto en el formato oficial de plano de ubicación del MVCS

3. Información para el replanteo general de los componentes de una edificación a nivel de anteproyecto

01
Calificación:16/20 Dificultad:10/10

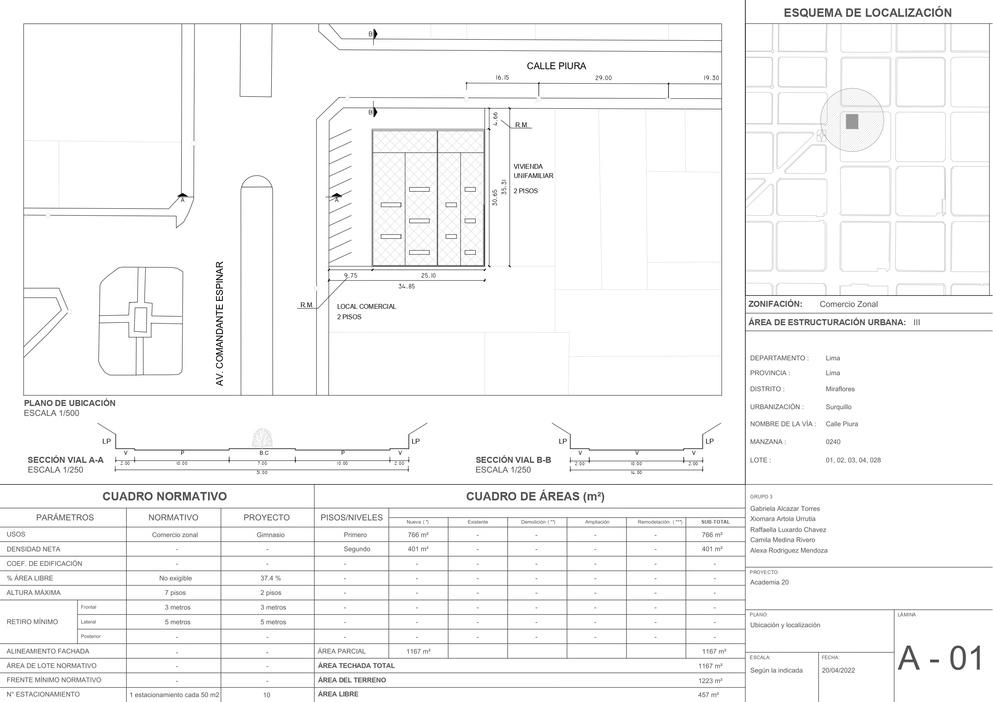
Se buscó la localización del proyecto en google maps para contar con una noción de los alrededores. Una vez situado el proyecto fue importante conocer nuestros vecinos más cercanos y las calles principales adyacentes al terreno. De esta manera se podría ejecutar los cortes de vías a detalle (contando jardineras, veredas y sardineles) Asi mismo se tuvo que situar la edificación respetando los retiros municipales de 5 metros que se pedían En cuanto al techo, que es lo único que se muestra en este plano en cuanto a la construcción, se tuvo que emplear degrade de intensidades de hatch para mostrar los diferentes niveles con el que contaba el proyecto. Por otro lado se tuvo que llenar el cuadro normativo con información obtenida desde el mismo cad y datos sacados de internet

PLANO DE UBICACIÓN Y LOCALIZACIÓN 01

PLANTA PRIMER NIVEL

Se tuvo que adaptar la planta original del proyecto para que calce con las medidas del terreno respetando el retiro establecido de 5 metros Asi mismo, se tuvo que plantear un espacio de estacionamiento e indicar sobre la planta cual era el ingreso principal Fue importante mantener diferentes capas de valoracion para lograr identificar con claridad la altura de los elementos que aprecen en planta, asi como los muros, escaleras y ventanas que se cortan Por otro lado, dado que se quería brindar la mayor cantidad de información posible, se tuvo que dibujar en líneas proyectadas la ubicación de los tijerales, asi como las dobles alturas. La lámina presentada da pie a mejora en cuanto a la diagramación y tamaños del membrete

02

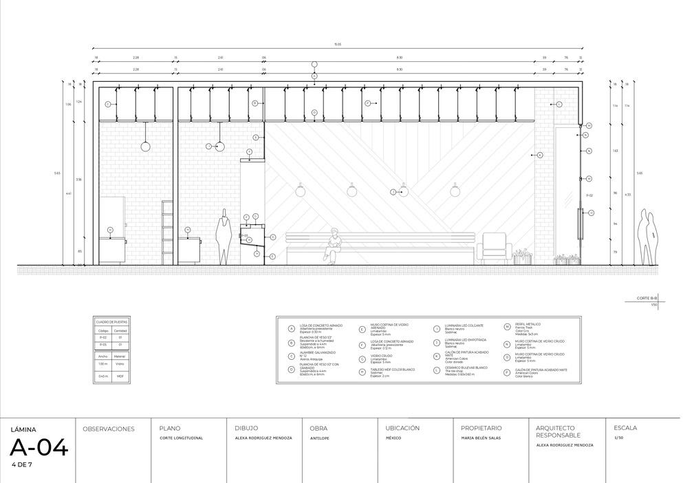
CORTE A-A

Tomando de referencia la planimetria obtenida, se dibujaron dos cortes: uno transversal y otro longitudinal. El trazaddo del techo supuso un reto ya que en los planos encontrados, debido a una pobre valoración, no se dejaba entender en su totalidad. Es por ello que se tuvo que investigar mediante a fotos referenciales el detalle de este y la posición de los cielos rasos y tijerales. Asi mismo, se identificaron los diferentes espacios que el gimnasio tiene y acotar debidamente sus medidas en cuanto a altura. De igual manera, en esta lámina todavia se estaba experimentando el tamaño y diagramación de la lámina, de la cual el membrete presenta mayores fallas.

03
TRABAJO COMPLETO

DETALLE DE CERRAMIENTOS

CG1-CG7-CG8-CG9-CG11

ENCARGO

Complementando con la entrega previa, se encargó una planimetria a escala 1:50 con señaléticas de detalle de componentes: 2 cortes nuevos, plantas con cuadro de acabados y elevaciones. Además, se deberá desarrollar en escala 1:25: 2 cortes escantillón (incluyen sus respectivas elevaciones) con encuentros constructivos por escantillón

OBJETIVOS

1 Reconocer y graficar plantas, cortes y elevaciones de proyecto.

2 Identificar (nombrar y/o codificar) los elementos y componentes e indicarlos adecuadamente a nivel de expediente de proyecto

3. Identificar (nombrar y/o codificar) los elementos y componentes e indicarlos adecuadamente para cortes escantillón y encuentros constructivos

02
Calificación:17/20 Dificultad:10/10

PLANTA PRIMER NIVEL

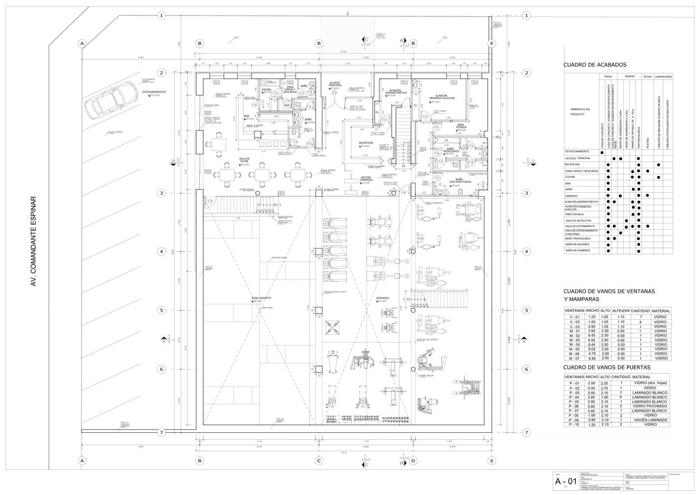
Se brindó la opción a re entregar los planos que presentaban errores, de lo cuales se nos pedia mayor precisión en cuanto a detalle Es por ello que se optó por una señalética que marcaban la materialidad y componentes que se distribuían a través de la planta Siendo complementado por cuadros de vanos (ventanas, puertas y mamparas) y de acabados, los cuales entraban a mayor detalle de información técnica. Cabe mencionar que todos los componentes arquitectónicos fueron enumerados respectivamente, debido a que esta información nos seria útil para un futuro trabajo

01

Se tuvo que adaptar la planta original del proyecto para que calce con las medidas del terreno respetando el retiro establecido de 5 metros Asi mismo, se tuvo que plantear un espacio de estacionamiento e indicar sobre la planta cual era el ingreso principal Fue importante mantener diferentes capas de valoracion para lograr identificar con claridad la altura de los elementos que aprecen en planta, asi como los muros, escaleras y ventanas que se cortan Por otro lado, dado que se quería brindar la mayor cantidad de información posible, se tuvo que dibujar en líneas proyectadas la ubicación de los tijerales, asi como las dobles alturas. La lámina presentada da pie a mejora en cuanto a la diagramación y tamaños del membrete

02
CORTE C-C Y D-D

CORTE ESCANTILLÓN

Se realizó un corte escantillón en donde se muestra el detalle de materialidad y empalmes del techo con el muro de concreto. Fue necesario investigar un poco más el tema constructivo de los tijerales para saber que partes estabamos cortando y que se debía señalar Considero que se alcanzó un buen nivel de detalle y expresión gráfica; sin embargo se pudo mejorar la escala de los textos y el tamaño del membrete.

03
TRABAJO COMPLETO

ACABADOS INTERIORES CG1-CG7-CG9

ENCARGO

A partir de esta entrega, los trabajos a ejecutar serán de manera individual. Se tuvo que escoger un referente para el diseño de 1 baño del proyecto que se ha ido entregada en las entregas pasadas. La planimetría a entregar es en escala 1/25 e incluye: planta de distribución, planta de trazado de pisos, planta de FCR y cortes/ elevaciones.

OBJETIVOS

Reconocer y graficar la siguiente información de un espacio a nivel de detalle:

1 Planta de distribución

2. Planta de trazado de pisos

3 Planta de FCR

4 4 Cortes / elevaciones

03

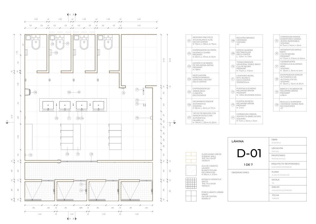
PLANTA DE DISTRIBUCIÓN

Debido a que las dimensiones de los baños del proyecto eran o muy pequeños o muy grandes, se tuvo que hacer algunos ajustes para que todo el grupo trabajara sobre un baño con medidas que se adecuaran al ejercicio. En mi caso, decidi trabajar sobre los baños de hombres situados en el segundo piso Se realizó un cambio total en cuanto a la distribución, de modo que presentará una propuesta más interesante que me permita utilizar más acabados. A su vez, se tuvo que investigar sobre proveedores que brindaran el mobiliario necesario, asi como una gama de palleta de colores y texturas para los acabos empleados en piso y paredes. La planta que se muestra es de distribución y esta me ayudó a colocar los aparatos sanitarios de tal forma que tenga un encuentro más estetico con los porcelanatos empleados Asi mismo, aprendí a seleccionar los acabados con dimensiones que se adapten a mi proyecto, de manera que se evita el cartagoneo y se maximiza el material adquirido.

01

Para la presentación de la planta FCR se buscó jugar con diferentes niveles, dado que la altura del baño lo permitia. Se emplearon paneles de yeso a 2 55m y 2 40m elevados del piso Debido a que se queria que las luces led alumbren más de cerca la zona de lavatorios, donde se encuentran los espejos, se empleo una menor altura; además que marca esa división de espacios entre baños y camerinos. De igual manera para marca el inicio de otro espacio se empleo la misma estrategia para la zona de duchas. Considero que mi propuesta es interesante y me permitió comprender que dimensiones de planchas utilizar para evitar el cartagoneo y reducir costos.

02
PLANTA FCR

CORTE LONGITUDINAL

Para dar a entender de una manera más clara la distribución de espacios, se tuvo que presentar 4 cortes. En estos se muestra con mayor detalle los mobiliarios, acabados y cambios de niveles del cielo raso. En cuanto a revestimientos, utilicé 1 tipo de mosaicos importados que mantenían la misma paleta cromática; asi mismo, en el corte señaló el comienzo del trazado, acción que tmb se repite en planta. Para lograr un mejor entendimiento de lo mostrado se hizo uso uso de un cuadro de referencias y diferentes colores para señalización referidas en la leyenda Considero que la planimetría presentada para este encargo fue una de las mejores que entregué en todo el curso De igual manera, se empieza a ver mi mejora en cuanto a presentación de láminas y valoración

03
TRABAJO COMPLETO

COMPONENTES ARQUITECTÓNICOS

ENCARGO

Complementando con la entrega pasada se nos pidió escoger 1 escalera y ventana, puerta o mampara del proyecto trabajado, sobre el cual en base a un referente, tendriamos que replantear su diseño y acabados. La planimetria a entregar será en escala 1/25, para plantas, cortes y elevaciones; mientras que para detalles o encuentros constructivos se hará uso de una escala mayor, 1/10

OBJETIVOS

Reconocer y graficar información de detalle de componentes arquitectónicos de un proyecto:

1 Detalle de ventanas

2. Detalle de mamparas

3 Detalle de puertas

4 Detalle de escalera

04
CG1-CG7-CG9

PLANTA ESCALERAS

La escalera seleccionada fue del primer piso; se replanteo el diseño por una con tirantes metálicos fijadas al techo y una estructura en general de acero color negro con tablones de madera. Debido a la escala empleada se tuvieron que obviar algunos detalles que se mostrarían en la lámina a mayor escala En estas planta se busca mostrar la cantidad de pasos por niveles, la ubicación de su estructura y posición de las barandas La materialidad y piezas se señalan y son referidas a un cuadro de referencias.

01

DETALLES ESCALERA

Para lograr un entendimiento más claro de cómo funciona el diseño propuesto para las escaleras, fue necesario mostrar los detalles constructivos y empalmes Se presentaron 6 detalles: uno que muestra el marco metálico con el tablon de madera para los pasos, los anclajes de la estructura de la escalera hacia el muro y tirantes; la fijación del paso al contrapaso, la de los tirantes hacia el techo, la de las barandas hacia los tirantes y muros Si bien obtuve un aprendizaje completo, considero que pude mejorar la presentación de esta lámina, ya que los detalles al ser tan reducidos se llegaban a perder y hasta a perder sentido. En definitiva todavía podía trabajar más en las escalas de los textos para que encuadren mejor con los dibujos

02

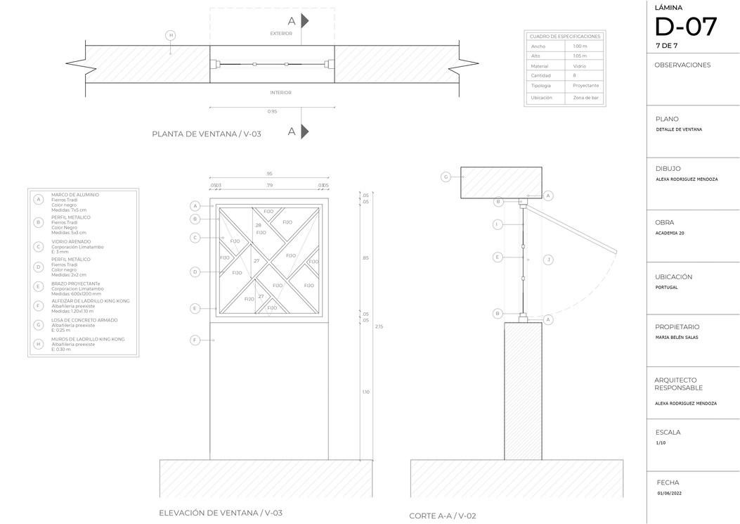
DETALLE DE VENTANA PROYECTANTE

Se realizó el detalle de los 3 tipos de ventanas presentes en el proyecto: batientes, proyectantes y pivotantes. Para cada una se planteo un diseño diferente basado en un referente En la lámina que se muestra se hace uso de un vidrio arenado que hace contraste con los marcos de aluminio color negro y la trama que estos generan Asi mismo se incluye planimetría que muestra el detalle en corte y planta, en donde se marca el recorrido de la ventana Para lograr una presentación más ordenada se hizo uso de un cuadro de referencias e indicaciones pequeñas, como textos y cotas, sobre los dibujos

03
TRABAJO COMPLETO

SINTESIS INDIVIDUAL

CG1-CG5-CG7-CG8-CG9

ENCARGO

A manera de cierre de curso, se encargó buscar un referente de tipo cafetería con una cantidad de m2 que oscile entre los 500-800 m2 En base a ello se deberá realizar unos entregables en escala 1/50 para las plantas, cortes (2) y elevación; mientras que para dibujos de mayor detalle se usará una escala mayor en 1/25 o más según se necesite para las plantas de barra de atención c/ sus respectivos cortes y detalles de encuentros constructivos

OBJETIVOS

Demostrar los conocimientos adquiridos para la elaboración de planos de presentación de proyectos; asi como la correcta indicación de componentes de:

1 Plantas de proyecto

2. Cortes de proyecto

3. Elevación principal

4 Detalle de barra o área de atención

05

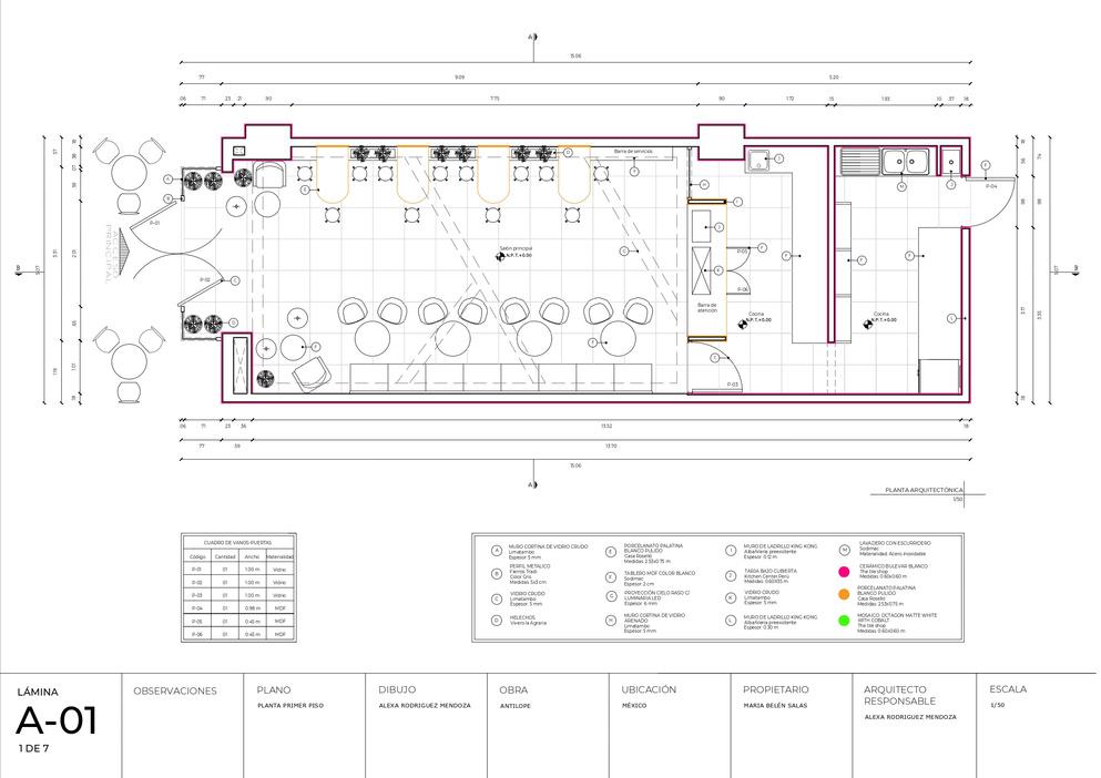
PLANTA PRIMER NIVEL

El proyecto seleccionado cuenta con 80 m2 y es de una planta, la cual de sitribuye en 3 zonas, el comedor exterior, el comedor interior y la cocina, donde se encuentra la barra de atención a la cual detallaremos en una escala mayor. Asi mismo, el proyecto hace uso de una serie de acabados: mármol, porcelanto y pintura; incluso los módulos de atención y algunas mesas cuentan con este tipo de revestimientos. Por otro lado se señaló la proyección de cielo raso, el cual caracteriza a su salón principal por la trama con la que cuenta. Para esta etapa del ciclo considero que ya había mejorado en cuanto al tamaño de membretes y de textos, valoración y orden en cuánto a presentación

01

CORTE LONGITUDINAL

Se realizaron 3 cortes: dos longitudinales y uno transversal El corte mostrado considero que es el mejor logrado en cuanto a detalle y presentación Se señalaron los elementos fijos, colocación del cielo raso y mosaicos empleados para la pared; asi mismo se señala las partes base del módulo de atención, ya que su detalle es parte de otro entregable Todos lo apuntado es referido a un cuadro que explica cada material con su proveedor

02

DETALLE DE BARRA DE ATENCIÓN

Dado que la barra está compuesta de varias piezas se tuvo que realizar acercamientos para mostrar los detalles constructivos, empalmes y materialidad Se mostró desde diferentes ángulos, corte transversal y longitudinal, desde escala 1/25; mientras que los detalles fueron en 1/10 De estos se presentaron 5, los cuales son referidos desde los cortes más grandes: anclaje del mostrador a la losa y detalle de la colocación del vidrio, empalme de tarja bajo cubierta, y anclajes de los cajones de melamina. Me siento muy orgullosa de como resultó mi planimetría en cuánto a nivel gráfico como en presentación

03
TRABAJO COMPLETO

INFORMACIÓN ADICIONAL COMENTARIO FINAL

REFLEXIÓN FINAL

Culminado el ciclo considero que poseo las habilidades necesarias para presentar mis proyectos mediante herramientas que permitan un entendimiento claro y completo El uso de una correcta valoración, tamaño de letra y buena diagramación de las láminas fueron elementos claves para obtener buenos resultados compensados por calificaciones altas. Cabe mencionar que se evidencia un evolución de mejora continua en cuanto al trabajo presentado, lo cual fue posible después de semanas de críticas tanto impresas como virtuales El curso me ha permitido obtener una gama más amplia de referentes y empresas de las cuales puedo tomar inspiración o hasta emplear para futuros proyectos de la carrera. Sin duda alguna este termino siendo uno de mis cursos favoritos, el cual me brindó un aprendizaje que me forma en asuntos que empleare no solo en otros cursos, sino también en el campo laboral

06
Valoraciónfinal:10/10

ALEXA RODRIGUEZ MENDOZA

Estudiante de Arquitectura

Estudiante de tercer año de arquitectura, cursando el sexto ciclo en la Universidad de Lima Me considero una persona dedicada a su trabajo, ordenada, y asertiva. Poseo mucho interés en el rubro de construcción; especialmente en el diseño que no solo sean estético, sino que a su vez prioricen el confort del usuario Considero que mi formación en el deporte me volvió bastante disciplinada en los ámbitos de estudios; es por ello que siempre cuento con mucho compromiso y disposición para el trabajo; asi como apertura para la mejora continua

Idiomas

Español | Lengua materna

Inglés | Certificación en FCE

Francés | DELF B1

Reconocimientos

Colegio Reina de los Ángeles| 2019: Encendido de la antorcha olímpíca, deportista detacada en natación

Colegio Reina de los Ángeles| 2019: Tercio Superior, puesto de toda secundaria

Universidad de Lima| 2021-2022: Quinto superior de la carrera.

Primaria | 2009-2014: Colegio Reina de los Ángeles

Secundaria| 2015-2019: Colegio Reina de los Ángeles

Pregrado| 2020-Actualidad: Universidad de Lima

Programas

Adobe Illustrator 2022

Adobe Photoshop 2020

Revit 2022

Autocad 2022

Sketchup 2022

Vray 2022

Twinmotion 2022

Materias en curso

Fotografía

Proyecto de Arquitectura V

Dibujo y presentación de proyectos Acondicionamiento Ambiental I Instalaciones I

Formación Académica
CONTACTO lelerodriguez777@gmail com Arqlexa 997 142 281 Av Los Inkas 156, La Molina

INFORMACIÓN DEL CURSO

Curso

Dibujo y presentación de proyectos

Sección 524

Docente

Juan Carlos Domenack Calvo

Sumilla

Es una asignatura teórico-práctica donde se desarrollará gráficamente la representación de proyectos y detalles arquitectónicos (planos de obra) Se aplicarán técnicas de dibujo asistido por computadora para la representación de proyectos arquitectónicos hasta el nivel de detalles de arquitectura y construcción, de acuerdo a la normativa técnica establecida. En la segunda parte se despliegan otros recursos digitales e impresos para la presentación profesional de proyectos de arquitectura

Objetivo general

Suministrar a los alumnos de instrumentales conceptuales y operativo que les permita expresar conceptos y planteamientos de diseño con coherencia, rigor técnico e impacto visual

Objetivos específicos

1 Dotar de los fundamentos conceptuales y técnicos a los alumnos para la expresión eficaz del Proyecto Arquitectónico como herramienta fundamental de la construcción arquitectónica

2. Dotar de los fundamentos conceptuales y técnicos a los alumnos para la expresión del detalle arquitectónico - constructivo, como fundamento parte del campo del diseño arquitectónico, de la construcción, la administración y la gestión de obras

Turn static files into dynamic content formats.

Create a flipbook
Issuu converts static files into: digital portfolios, online yearbooks, online catalogs, digital photo albums and more. Sign up and create your flipbook.
Alexa Rodriguez - Architecture Portfolio - Dibujo y Presentación - RIBA Part 1 - ULima 2022-1 by Alexa Rodriguez Mendoza - Issuu