TKU.EA3.SPRING Social Housing Lin Kuan Fu Portfolio

Page 1

眷村模式下的社會住宅
淡江大學 建築系 林冠甫
新眷村
1
創作者:林冠甫 指導老師:葉志正
2 概念發展 目次 01 02 03 眷村歷史發展 04 05 量體生成與住宅單元 空間組成與組織 圖面資料 效果圖 06

眷村歷史發展

國民政府遷台

中心新村

台灣人口激增

國民政府遷台帶來兩百萬軍民從大陸撤退 到台灣。

政府將遷台居民安置到台灣各處,居民自建 或是沿用舊有住宅當成棲生之所,產生眷村

遷台軍人

各地零散居民

跟隨軍隊一起撤退到台 灣的軍人,除了高級軍官 難以帶自己的家眷。 隨著戰事到處奔波,流離 失所,再遷移過程和自己 的家人或是親戚多失散。

在台無依靠而組成大家庭

居民
3

現代中心新村文化園區

人數增加眷村擴張 眷村形成生活圈 眷村老化消逝 產生文化園區 大量居民遷台,人口數大 量擴張。 居民增加眷村成為生活 圈,並且產生活動與聚集
政府將遷台居民安置到台灣各處,居民自建 或是沿用舊有住宅當成棲生之所,產生眷村
隨著居民老化及眷村改 建,居民撤出眷村。 眷村改造成文化園區,成 為大眾聚集的景點。
4

一個戶外可用的空間,但 是無法遮擋視野。

隱私性高 共用性低 共用性高 隱私性低 向外延伸出圍牆 主屋私密性提升,劃分出
原有建築像上加蓋
的空間,隔絕性低,但
概念發展 5
產生最私密的空間,下 方空間便較為開放。 種植植物界定空間 界定出一個有人使用
對公共空間有益。
屋簷延伸生界定空間 產生一個可以使人用 的空間,人人皆可以使 用。

私領域擴張 向外產生一個與鄰居交流的空 間,這個空間是被人及非永久 物體所界定。

公領域中的半私密 被私領域擴張所界定出來的剩 餘空間,其中存在的人或植物所 界定。

眷村街道
最原始道路,私領域與公領域 切割分明。 6

大街交流玩耍 串門子、飄香四溢 提供周遭區域商業服務

7

量體生成與住宅單元

初始量體

打斷眷村街道的連續性,並且在眷村 群中顯得十分巨大不友善。

量體退縮並且串聯眷村路徑

將量體退縮使其對眷村較為友善,並 且將路徑引入,並且繞行整個量體,並 產生公共空間。

透過種植植栽牆界提高居民的隱私空 間,並從中穿出公共空間,讓活動被閱 讀,提升立面趣味,並增加室內外的生 活品質。

種植植栽牆
8
可面相大街以及隔壁鄰 居,產生互動,並同時確 保自己的空間。 確保使用者在內部的隱 私性。 私人空間 將外部空間引入內部空間 9

產生一個街邊的桌子,並將空間轉 向戶外,變成街道空間的一部分,但 是人然界定出原有的空間。

可面相大街以及隔壁鄰 居,產生互動,並同時確 保自己的空間。 將外部空間引入內部空間 將內部空間推向空間 10

空間組成與組織 空間需求

周遭有許多學校以及住宅區,有眾多飲食的需 求,但是周遭卻無這樣的空間,希望結合文化 園區的空間把商業引入,服務周遭。

步行10分鐘坡地圖

餐廳 文創商店 不定期市集 4間 2間 ?間 1間 飲料店 300M 學校與教育空間 醫院
11
遊客 居民 商店空間 市集廣場 小家庭住宅 小家庭住宅 老年人住宅 青壯年住宅 青壯年住宅 青壯年住宅 空間組織圖 12

居民組成

由於現代單人住宅對於廚房及餐廳的需求不大,故共用並且回應 眷村串門子及公共灶爐的事情。

北投區居民人口比例
青 壯 年 住 宅 老 年 住 宅 小 家 庭 住 宅 960平方米 24平方米 6平方米 1000平方米 300平方米 客廳 餐廳 廚房 浴室 陽台 書房
13
一個單位30平方米
公 共 設 施 24平方米 1000平方米 1200平方米 共1450平方米 商 店 300平方米 市 集 廣 場 330平方米 4090平方米 14
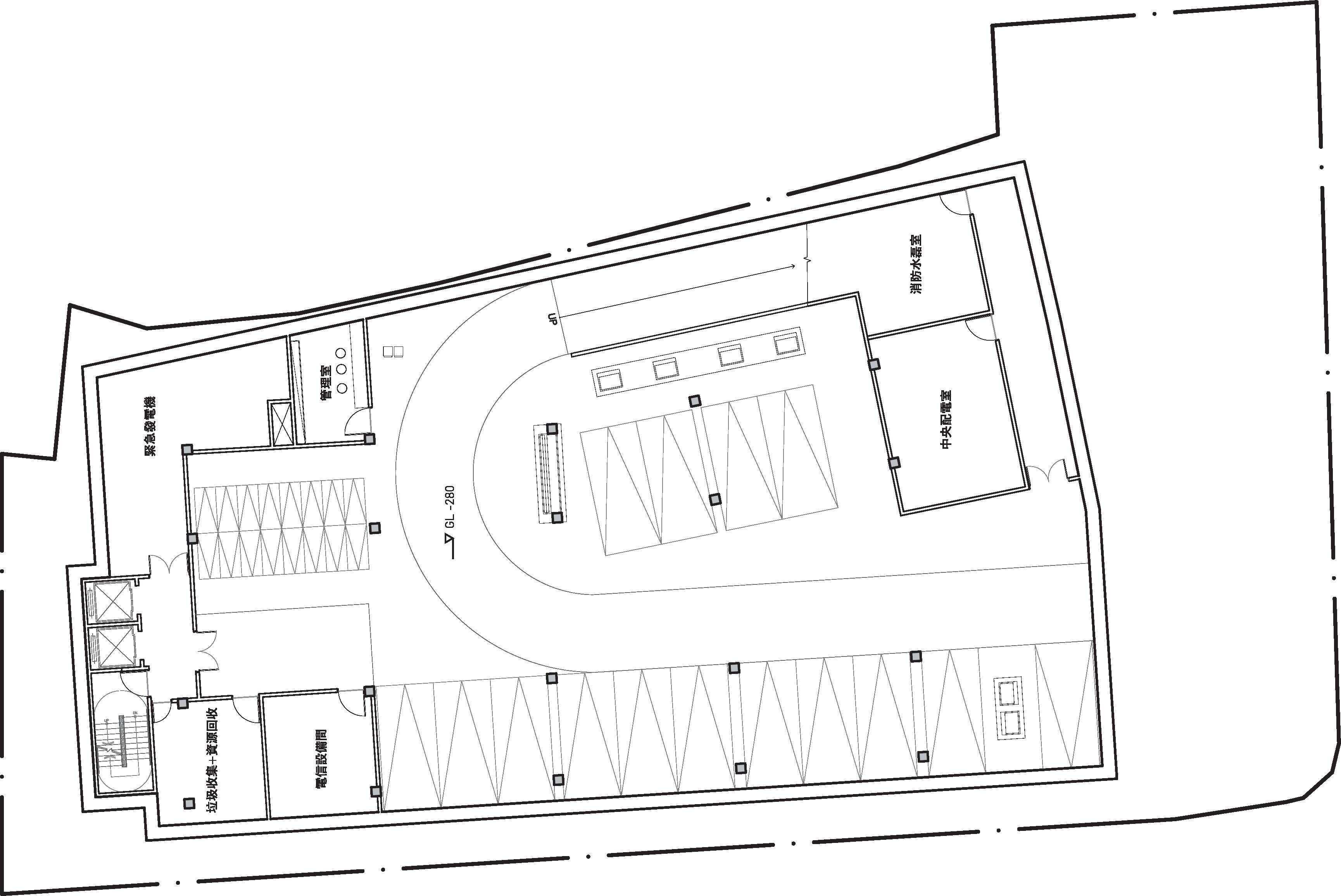
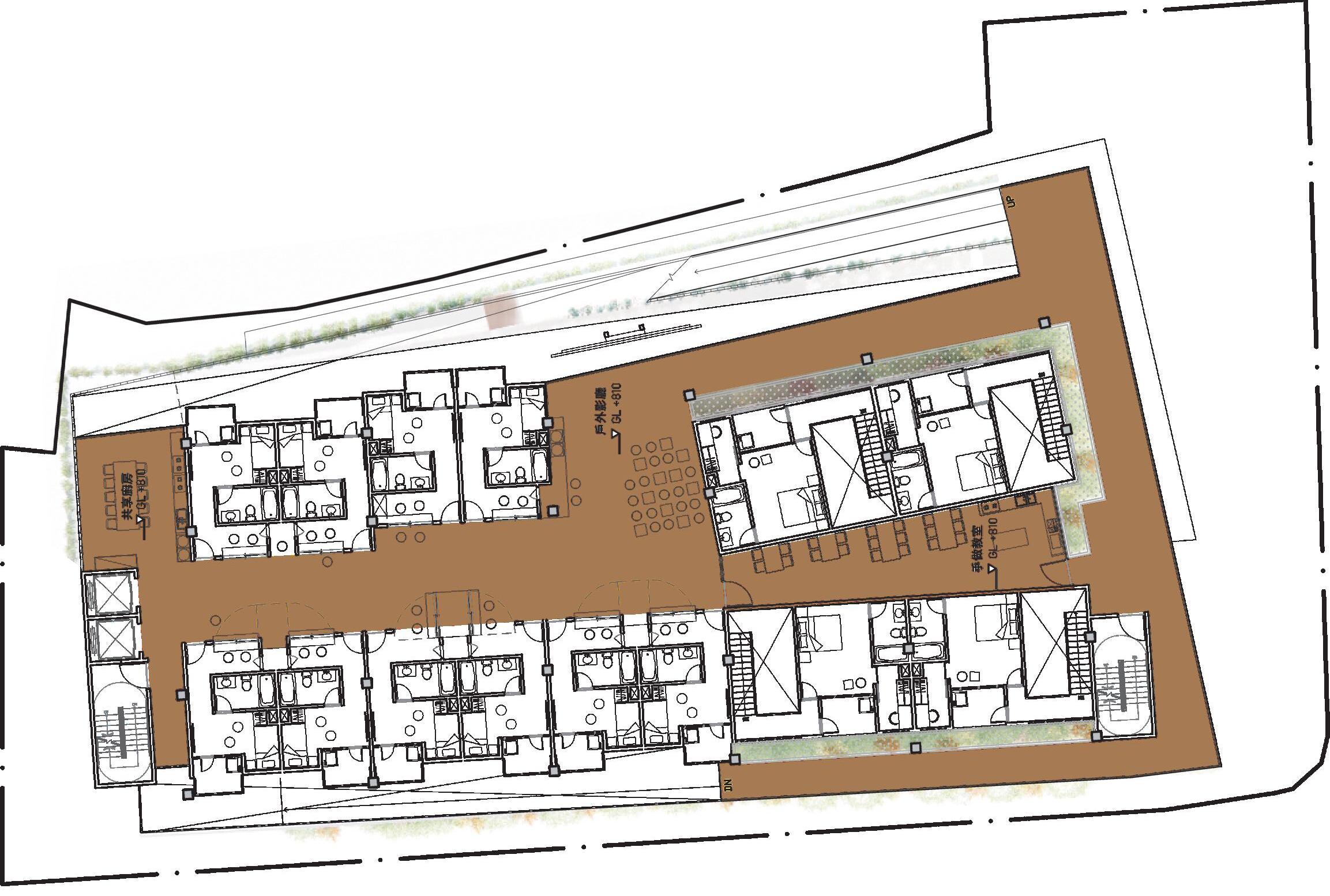
N 0 300 600 900 B1 PLAN 15
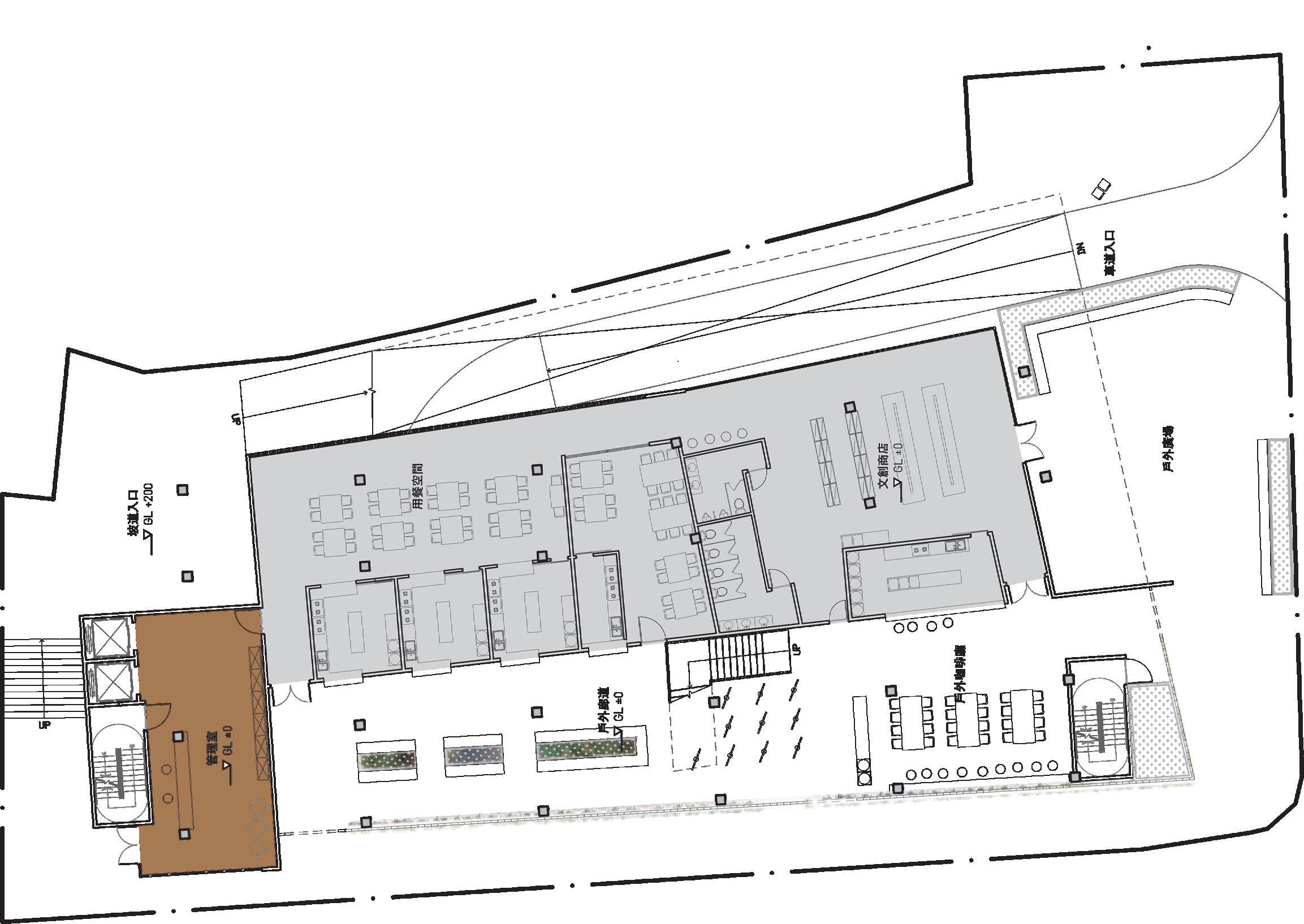
900 N 0 300 600 1F PLAN 16
300 600 900 17
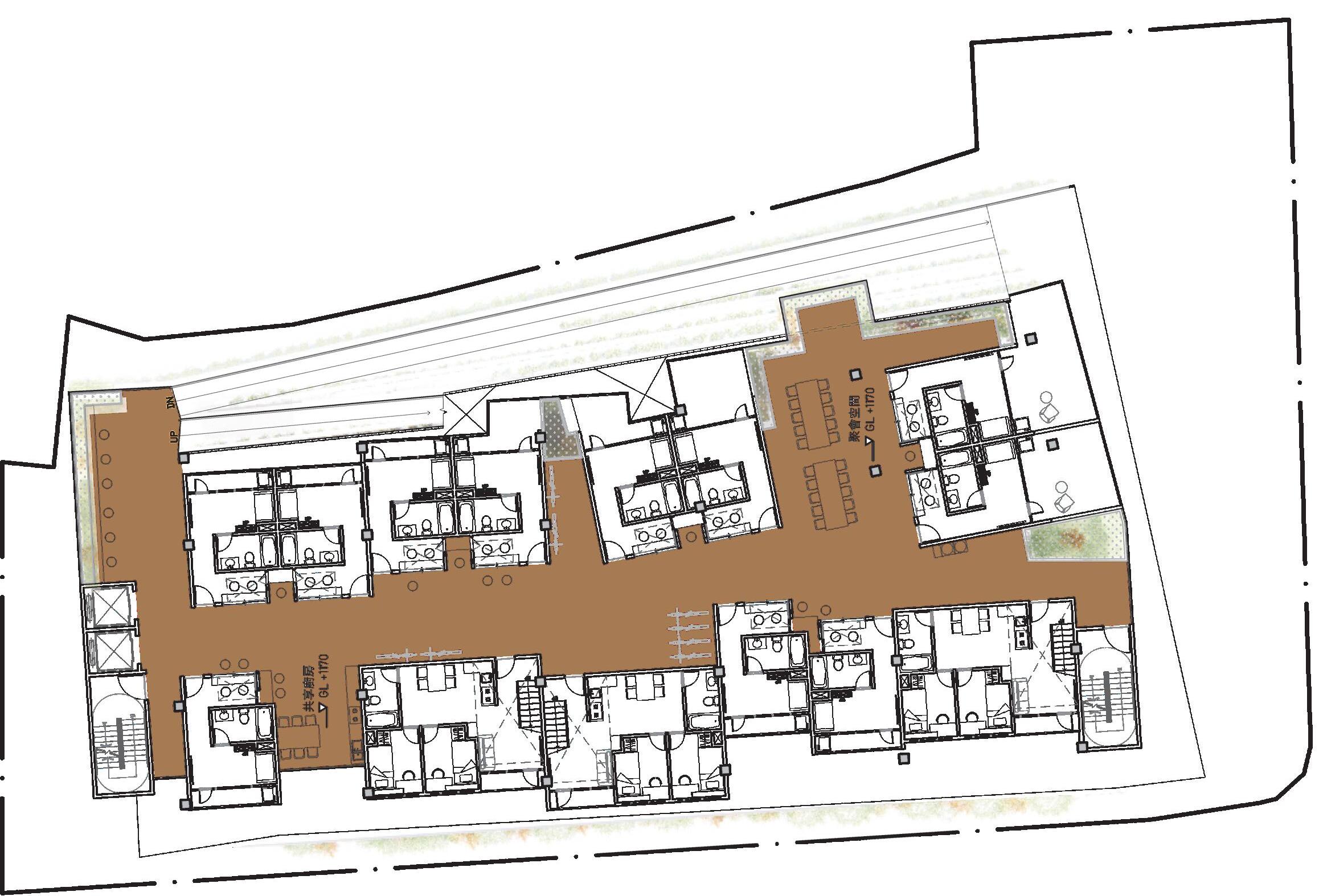
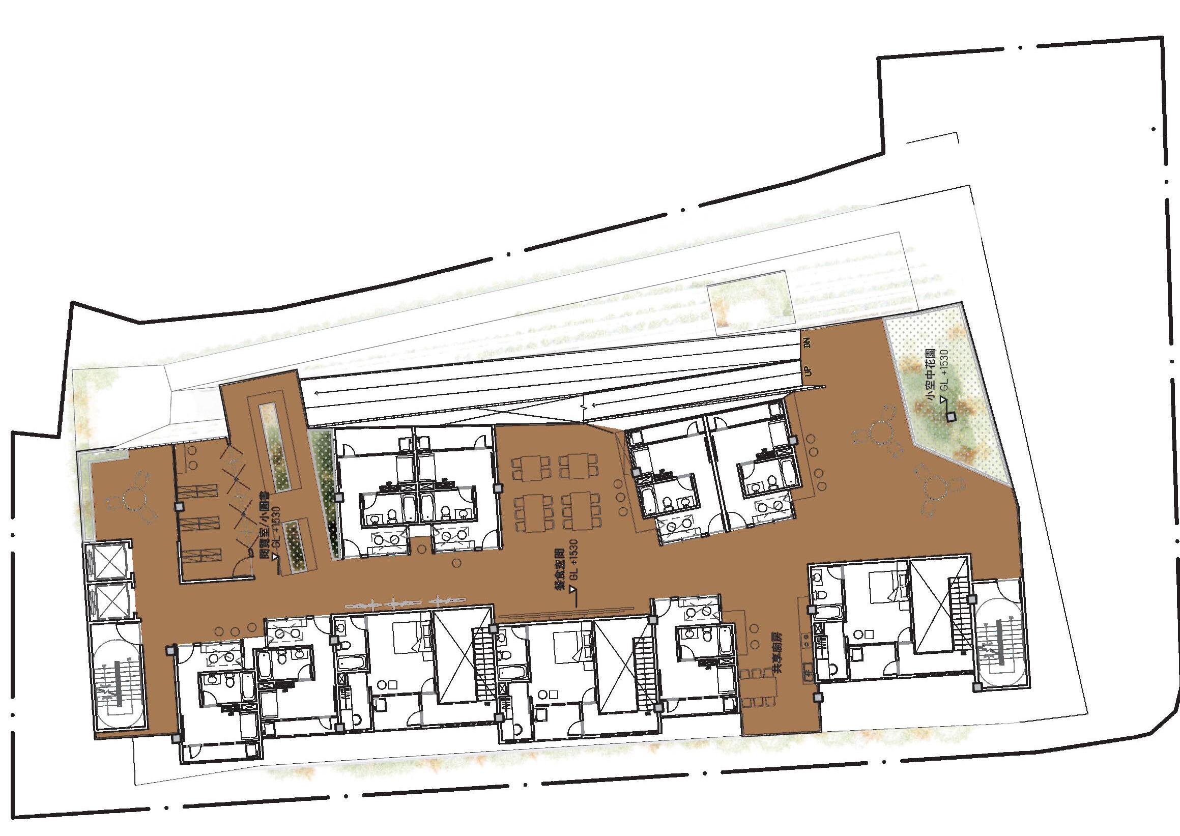
N 0 300 600 3F PLAN 900 18
N 0 300 600 4F PLAN 900 19
N 0 300 600 5F PLAN 900 20
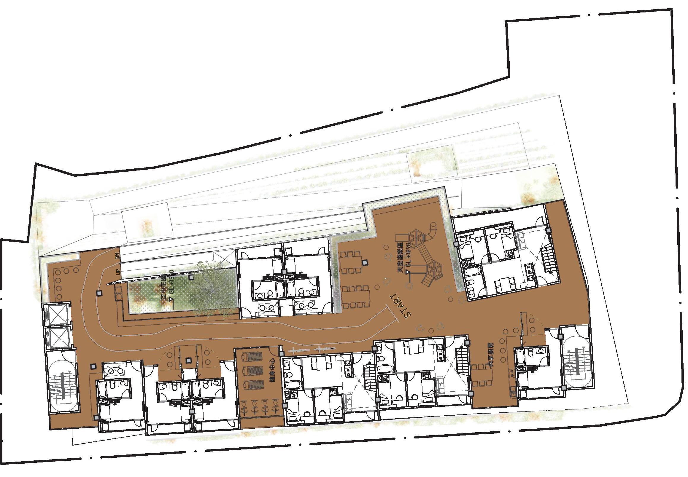
N 0 300 600 6F PLAN 900 21
N 0 300 600 7F PLAN 900 22
23
0 300 600 900 A-A’ SECTION 24
0 300 600 900 A-A’ SECTION 25
0 300 600 900
SECTION 26
C-C’
27
0 300 600 900 WEST ELEVATION 0 300 600 900 NORTH ELEVATION 28
29
0 300 600 900 EAST ELEVATION 0 300 600 900 SOUTH ELEVATION 30
31
32
33
34
35
36
37
38
39
40
issuu.com

Turn static files into dynamic content formats.

Create a flipbook
Issuu converts static files into: digital portfolios, online yearbooks, online catalogs, digital photo albums and more. Sign up and create your flipbook.
TKU.EA3.SPRING Social Housing Lin Kuan Fu Portfolio by Lin Alex - Issuu