مباني ثقافية جاذبة

Page 1

انتقطنم يف ةرورض ءانبلا ثاحبأ زكارم مادخت���سلا ةيملاع ةدوع ةريخلأا ة���نولأا يف ظ���حلان سيل كلذب دصقاو ، ءانبلا ي���ف ةيعيبطلا داو���ملا ينابملا يف كلذك لب ، ةريغصلا ينابملا يف طقف لكايهلا ي���ف ب���شخلا مادخت���سا ل���ثم ة���مخضلا وهو فورعم ببسلاو ةيلاعلا تارامعلل ةيئا���شنلإا تاريثأت اهل نوكي لا نأ داكت ةيعيبطلا داوملا نوك . ةئيبلا ىلع ةيبلس داوملا لاخدلا ةدا���ج تلاواحم كانه ا���نتقطنم يف ض���عب ن���كل د���يدج ن���م ءا���نبلا ى���لإ ة���يعيبطلا مغرلاب ةبولطملا ةعر���سلاب نوكت لا دق تلاوا���حملا انكلاهت���سا لعجي راح خانم تاذ ةقطنم ا���ننأ نم .ايبسن ايلاع ةقاطلل داوملا ن���م يه ة���يعيبطلا داو���ملا نأ فور���عملاو ةدح نم ليلقتلا يف لاعف لك���شب مهاست يتلا لزعلا داومو يعيبطلا رجحلاو نيطلا لثم ةرارحلا تائمل اهب ءا���نبلا مت داوم اهمظعمو ،ة���يعيبطلا .انتقطنم يف نينسلا ةدا���عإ ر���خأت ءارو ة���هيجو باب���سا ع���بطلاب كا���نه ةنايص ىلإ جاتحت ةدام هنوك الثم نيطلا مادختسا .راطملأا لوطه مساوم يف ةصاخ ةرمتسم ةيرود ينابملا يف ةيناسرخلا فق���سلأا لامعت���سا نأ امك لبق نم عانتقلاا نم ديزم ىلإ جاتحي لازام ةينيطلا ينابملاف . ا���نكمم ناك نإو ه���لوبقل ني���سدنهملا ي���عيبطلا ب���شخلاب فق���ست ت���ناك ة���ينيطلا تارمكلاو فق���سلأاب نرو���ق اذإ نزولا ف���يفخ و���هو مادخت���سا نإ���ف ك���لذ ى���لإ ة���فاضلإاب ،ةينا���سرخلا يلاع ربتعي انتقطنم يف مويلا ةيبشخلا فقسلأا . ةحلسملا ةناسرخلاب نروق ام اذإ ايبسن ةفلكتلا يه اهظحلاا ت���نك ا���م امئاد ي���تلا باب���سلأا د���حأ نيطلاب ءانبلا نأ نو���عقوتي سانلا ن���م ر���يثكلا نأ تنم���سلأاب ءانبلا ن���م ةفلكت لقأ نو���كي نأ ب���جي ريثأت يحتف ن���سح يرصملا سدنهملل ناك امبرو .ءارقفلا ةرامعب نيطلا ءانبلا نرق امدنع كلذ ى���لع ريغ رهظت تنمسلأاو نيطلاب ءانبلا نيب ةنراقملاف لمرلا ةفلكتو اه���سفن يه ةلامعلا ةفلكتف “ كلذ قرفلا نو���كي امبرو ، ةد���حاو يه ءا���ملاو ص���حبلاو .تنمسلأا وأ نيطلا اهسفن ةداملا رع���س يف طقف ام اذإ ركذي لاو اطي���سب نوكي د���ق قرفلا ي���لاتلابو سيل اذهو . ن���يطلاب ءا���نبلاب ةربخلا ةرد���ن ا���نفضأ ن���سح يرامعملاب فا���طملا ىهتنأ د���قلف ب���يرغب نكلو ءار���قفلل س���يل نيطلاب ءا���نبلا ى���لإ ي���حتف . نيرسوملاو ءاينغلأل ثحبلاب انتقطنم ي���ف مويلا نوبلاطم نحن ك���لذل يف ةيعيبطلا داو���ملا مادخت���سلا ةينقت لولح نع نمو ، ة���هج نم ةلوقعم ا���هتفلكت نو���كت ءا���نبلا داجيلإ ةينقت لولح ن���ع ثحبن نأ بجي ىرخأ ة���هج ةيعانصلا داوملا مادخت���ساب ةبسانم ةيئانب لولح .ةئيبلا ىلع يبلس ريثأت لقأ نوكت تنمسلاا لثم موقت ثاحبأ زكارم كانه تناك اذإ لاإ كلذ انل متي لا داو���ملا هذ���ه ى���لع برا���جتو ثا���حبأ ءار���جإ ى���لع . سانلل ةرسيم اهلعجو اهريوطتو ريثكلا دروتسن نحن زكارملا هذه بايغ يفو مويلا ىدم امامت ملعن لا ن���حنو ءانبلا ةمظنأو داوم ن���م ام لج نأ مز���جأ داكأو انخانمو ا���نتئيبل ا���هتمءلام انتئيب لا بسانت لا ءانب ةمظنأو داوم نم هدروت���سن سيل ك���لذلو ، ة���يداصتقلاا ا���نفورظ لاو ا���نخانم لاو يف ةبوعص نم انينابم ي���ف يناعن نأ بيرغلا ن���م .يضارتفلاا اهرمع ىلع ةظفاحملاو يفو اهتنايص ريرحتلا سيئرو رشانلا 03 Albenaa ءانبلا 03 ةيحاتتفلإا
116 116 00 Albenaa ءانبلا 00 ريرحتلا سيئرو رشانلا ليلخا ابأ هللا دبع ميهاربإ سدنهلما ينفلا جارخلإا ةينارمعلا نوؤشلل ءانبلا ةلجم :عيزوتلاو تاكارتشلاا 11421 ضايرلا 522 ب . ص ةيدوعسلا ةيبرعلا ةكلملما 465 9749 ، 464 2556 ت ضايرلا 464 6348 سكاف info@albenaamag.com .نادلبلا لك يف تادنتسلما لك نع ةظوفحمرشنلا قوقح تلااقلماب ةدراولا تاططخلماو رو صلاو تامولعلماو ءارلآا ةلجلما هذهب ةفلتخلما تاعور شلماو تا ساردلاو ثوحبلاو ،ايلك وأ ايئزج اهر شن ةداعإ وأ ،اهنم سابتقلااب حم سي لا ىلع لوصلحا دعب لاإ ،تناك ا مهم ةقيرط يأب ا هنيزخت وأ .ريرحتلا سيئر نم ةيباتك ةقفاوم :ةدحاولا ةخسنلا رعس ايدوعس لااير 30 ةيدوعسلا ةيبرعلا ةكلملما يتيوك رانيد 2.5 تيوكلا ةينيرحب ريناند 9 نيرحبلا ايتارامإ امهرد 30 ةيبرعلا تاراملإا ةلود ايرطق لااير 30 رطق اينامع لااير 9 نامع ايرصم اهينج 60 رصم رلاود 8 نانبل يندرأ رانيد 2 ندرلأا وروي 6 اينالمأ وروي 6 اسنرف ينيلرتسا هينج 6 ارتلنجا رلاود 8 ىرخلأا لودلا عيمجو ةدحتلما تايلاولا ISSN: 1319 - 206 X 383 ددعلا ،نوعبرلأاو ةثلاثلا ةنسلا م 2023 سرام/ـه1444 نابعش تايوتحملا 4 8 10 22 34 44 54 انتقطنم يف ةرورض ءانبلا ثاحبأ زكارم ةددجتملا ةقاطلاب لمعي امور يف 2030 وبسكإ ضرعم ةبذاج ةيفاقث ينابم ايفارغونثلإا فحتم ةليمجلا نونفلل قنيجوك فحتم ةعسوت غنوك غنوه رصق فحتم نونفلل جنودوب فحتم ناهوو ةبتكم ، بتكلل يداو ةيحاتتفلإا عيراشملا رابخأ 3 ةبذاج ةيفاقث ينابم

The World’s Largest Urban Solar Farm: Master Plan for Expo 2030 in Rome Explores Energy-Sharing

05 Albenaa ءانبلا 05
04 Albenaa ءانبلا 04 ةقاطلا طاقتللا راهنلا تاعاس ةليط ةيسمشلا اهحاولا قلغتو حتفت يتلا ةيعانطصلاا راجشلأا تائم نم نوكتت و ءاسفسيفلاك ضرعلما ةقاطلا عيزوت ةكبش ططخم ودبي ىلعلأا نم ينميلا ىلعأ يف رهظيو رخبتلا ةطساوب درابلا ءاوهلا جاتنلا صصخو ضرعلما يف ىنبم ىلعأ وهو » يئيبلا ماظنلا« حانجب ةكبشلا طبترت امك . ضرعلما راوزل للاظلا ريفوتلو ةيسمشلا : ممصملا
Ratti Associati,
Burdett, ايلاطيإ ، امور : عقوملا 2م 150،000 : ةيلامجلاا ةحاسملا م 2022 : ةيلولأا ةساردلا نم ءاهتنلإا يف 2030 وبسكإ ضرعم ةددجتملا ةقاطلاب لمعيامور عيراشلما رابخأ
Architect : CRA-Carlo
together with architect Italo Rota and urbanist Richard

From the Architect Report: TInternational design and innovation office CRA-Carlo Ratti Associati, together with architect Italo Rota and urbanist Richard Burdett, is unveiling the master plan for Rome’s bid to host the World Expo in 2030. The project uses renewable energy as the basis for a 21st-century urban commons, with every country contributing to a solar farm that would power the exhibition site and decarbonize the surrounding neighborhoods. All pavilions in the Italian capitalincluding the revamped “Vele” complex by Santiago Calatrava - are designed to be fully reusable, turning the area into an innovation district after the event.

Expo 2030 Roma will take place in Tor Vergata, a vast area in the municipality of Rome that is home to the eponymous university – one of the leading academic hubs in Italy – as well as a densely inhabited residential district. However, the neighborhood has gone through a phase of neglect in recent decades. The master plan aims to reverse that process through sustainable, long-term development. After the 2030 World Expo, all the event pavilions will be used for different functions, giving shape to a new innovation district in the Italian capital. The master plan was developed with several partners, including ARUP for sustainability, infrastructure, and costing, LAND for landscape design, and Systematica for mobility strategy. The master plan’s vision of the Expo Solar Park ensures that the event will not only reinvigorate the neighborhood, but help decarbonize it. The solar farm in Rome covers an area of 150,000 square meters and boasts a production capacity of 36 megawatt-peak, making it the largest urban, publicly accessible solar farm in the world. It is composed of hundreds of unique “energy trees” that open and close their panels throughout the day, harvesting energy while also offering visitors ample shade. From above, this infrastructure gives the entire Expo site a signature mosaic look. This complex energy grid is complemented by the “Eco-system 0.0” pavilion, the tallest building of the Expo, which provides cooling through evaporation.

“Expo 2030 Roma aims to break new ground for World’s Fairs and other large-scale events,” says Carlo Ratti, founding partner of CRA and director of the MIT Senseable City Lab. “Our master plan experiments with collective city-making processes, new energy-sharing strategies, and inclusive urban transformations that go well beyond the temporal and spatial confines of the event.”

“We conceived this project like a feasible utopia – one that aims to be a catalyst for new projects and ideas. The main driver behind this goal is to let natural ecosystems and technological inventions work in sync, just like human and natural energy would make each other more intense,” architect Italo Rota says. “This new approach to temporary events could become the foundation of a new model for urban development.”

The master plan divides the Expo 2030 Roma site into three main areas – the City, the Boulevard, and the Park, in a westto-east layout between the artificial world and the natural world that must exist in harmony if we are to be successful at combating climate change. The layout is characterized by a gradual transition from urban to natural as one moves from west to the east. The City in the West functions as the Expo Village, and will become an extension of the University of Tor Vergata’s campus after the event. The Boulevard, the central pedestrian axis, is a pathway through all of the national pavilions. Finally, the Park in the east is covered with lush vegetation and accentuated by thematic buildings, including “Pale Blue Dot,” a pavilion to disseminating knowledge about the natural world.

07 Albenaa ءانبلا 07
ةيسمشلا ةقاطلا طاقتللا ةيعانطصلااراجشلأا ةكبشل ىلعلأا نم روظنم . امور ةنيدملل ةعبات تافاشتكلااو 2م 150،000 ةحاسم ىلع ةيسمشلا ةطحملا ماقت فوسةطحم ربكأ كلذب حبصتل ءابرهكلا نم طاواجيم 36 جتنتل . ملاعلا يف ينارمع قاطن لخاد ىنبت ةيسمش حتفت يتلا ةيعانطصلاا راجشلأا تائم نم ةطحملا نوكتتطاقتللا راهنلا تاعاس ةليط ةيسمشلا اهحاولا قلغتو . ضرعملا راوزل للاظلا ريفوتلو ةيسمشلا ةقاطلا ءاسفسيفلاك ضرعملا عيزوت ةكبش ططخم ودبي ىلعلأا نميف ىنبم ىلعأ وهو » يئيبلا ماظنلا« حانجب ةكبشلا طبترتو . رخبتلا ةطساوب درابلا ءاوهلا جاتنلا صصخو ضرعملا
06 Albenaa ءانبلا 06 يننسلا تارشعل ةلمهم تلظ ةيلاعلا ةفاثكلا تاذ ةينكسلا ءايحلأا نمددع اهيف دجوت امك ايلاطيإ يف ةدئارلا ةيميلعتلا تاييمداكلأا نم ربتعت ةعماجىلع ةقطنلما يوتتحو امور ةيدلب لخاد ضرعلما عقي نواعتلاب CRA-Carlo Ratti Associati بتكم فشكنع ، urbanist Richard Burdett و architect Italo Rota نم لك عم .امور يف 2030وبسكإ يملاعلا ضرعملل ماعلا ططخملا ةيبلتل ةددجتملا ةقاطلا ىلع دامتعلااب عورشملا زيمتيطيطختلل قلطنمك ةقاطلا نم ضرعملا تاجايتحا لودلا لك كراشت ثيحب ، نيرشعلاو دحاولا نرقلا يف ةقاطلاب ضرعملا ديوزتل ةيسمش ةطحم ءانب يف ةضراعلا دحلا فدهب اهب ضرعملاب ةطيحملا ءايحلأا ديوزت كلذكو . نوبركلا تاثاعبنا نم امم ،اهلامعتسا ةداعإ متي ثيحب ةحنجلأا لك تممص امك.تافاشتكلااو عادبلال ةقطنم ىلإ ضرعملا ةقطنم لوحيس ، امور ةيدلب لخاد ةعساو ةقطنم يف ضرعملا عقيتايميداكلأا نم ربتعت ةعماج ةقطنملا هذه يف عقتو نمددع اهيف دجوت امك ،ايلاطيإ يف ةدئارلا ةيميلعتلا تارشعل ةلمهم تلظ ةيلاعلا ةفاثكلا تاذ ةينكسلا ءايحلأا . نينسلا نم ءايحلأا هذه عاضوأ نيسحت ىلإ ماعلا ططخملا فدهي. ديعبلا دملأا ىلع اهريوطتو ةمادتسلاا قيقحت للاخ ةفاك لامعتسا ةداعإ متي فوس ضرعملا ءاهتنا دعبعادبلال ةقطنم حبصتل ةديدج فئاظول ةحنجلأاو تايلاعفلا اهيف ةمادتسلاا قيقتحو ءايحلأا عاضوأ ينستح ىلإ ماعلا ططخلما فدهي . ديعبلا دملأا ىلع اهريوطتو ضرعلما ىلإ يدؤت امور لخاد رواحم عيراشلما رابخأ
09 Albenaa ءانبلا 09 . طيحملا ينارمعلا جيسنلل يعامتجلاا خيراتلل ةنوفدملا ةدعاقلا :ءازجأ ةعبرأ نم ىنبملا فلأتيتوحنملا ينفلا لكشلا تاذ ةكرحلا تاراسمو ، ايئزج اريخأو ، ضرلأا قوف رهظت يتلا ةعبرملا ةصنملاو ، . يناوطسلأا يرئادلا لكشلا وذ يرضحلا بصنلا غنوك غنوه رصق فحتم : ثلاثلا عورشملا Rocco Design Associates بتكم فحتملا ممصغنوك غنوه يف فحتملا عقيوهو ةينيصلا راثلأاو نفلل ديدج زكرم وه فحتملاةيفاقثلا West Kowloon ةقطنم ريوطت نم ءزج 900 نم رثكأ فحتملا مضي ، غنوك غنوه يف )WKCD( ةنيدملا يف يخيراتلا نيكب رصق فحتم نم ةعطق ىلولأا ةجردلا نم ةيرثأ ةعطق 160 كلذ يف امب ، ةمرحملا .ةينطو ازونك ربتعت ، غنوك غنوهل ديدج ملعم نوكيل ىنبملا ممص.نيصلل يفاقثلا خيراتلاب ةديدجلا لايجلأا طبرت ةصنمو .ايروتكيف ءانيم ىلع ةعساو تلالاطإب ىنبملا عتمتيىلإ ينيصلا ثارتلا حور بلج ميمصتلا ىنبتيةيناكملا ميهافملا ريسفت ةداعإو ، ةرصاعملا ريهامجلا للاخ نم ةرصاعم ةيرامعم ةغلب ةميدقلا ةينيصلا ، يخيراتلا نيكب رصق يف امك ةينفلأا نم ةلسلس .ىنبملا ربع راوزلا بذج ىلإ فدهت ةنيدملا ىلع ةيماروناب تلالاطإ ثلاثلا ةينفلأاا رفوت.ةفلتخم تاهاجتا يف ةطيحملا قطانملاو هتحت نم تاغارفلا جومتملا يزنوربلا فحتملا فقس ددحييخيراتلا نيكب رصقل ةيبهذلا فقسلأا نم مهلتسم وهو ، دتمي يذلا يسأرلا ةكرحلا روحم عم ىشامتيو لماكتيو بلجيو يسأرلا لاصتلاا كلذب ززعيل ، ىنبملل لماكلا عافترلااب رصنعك فقسلا اذه لمعي . لخادلا ىلإ يعيبطلا ءوضلا تايطغتلا ىلإ ةينف ةسمل فيضي ، يتحنو يهيجوت ةلوقصملا ةيناسرخلا تايضرلأاو ناردجلل ةيرجحلا ياهغنش ، نونفلا فحتم : عبارلا عورشملا بتكم فحتملا ممصJean NOUVEL – Ateliers Jean Nouvel .ةينيصلا ياهغنش ةنيدم يف فحتملا عقيعورشملا نع صاخ ريرقت ممصملا يرامعملا بتكقاطن لكشي فحتملا نأ ىري وهف هتركف هيف حرش . قاطنلا اذه دودح جراخ هتفيظو دتمت يئاضف ةيلاع ةينورتكلإ ةريبك تاشاش ىلع فحتملا دمتعيتارهاظتو تاضورعم نم فحتملا لخاد وه ام لك ثبت دنوب ياهغنش ةقطنم يهو ةرواجملا ةقطنملا ىلإ . .ضبانلا ةنيدملا زكرم ربتعت ةيراجت ةقطنم يهو ممصملا اهيلع قلطأ ةيجاجز ةيفلخ ةهجاو فحتملل. وبغناوه رهن ىلع لطتو ريبكلا جاجزلا ناهوو ةبتكم ، بتكلل يداو : سماخلا عورشملا MVRDV بتكم ةبتكملا ممصةينيصلا ناهوو ةنيدم يف ةبتكملا عقتةبتكم ميمصت ةقباسمب ممصملا بتكملا زافنمو .ةينيصلا ناهوو ةنيدم يف ةديدج ةيزكرم نيصلا يف تابتكملا ربكأ نم ةدحاو حبصت نأ عقوتملا ريغو ةيديلقتلا فئاظولا نيب عورشملا عمجيةساردلل ةعونتم تاحاسم عم تابتكملل ةيديلقتلا . ثحبلاو ةءارقلاو ةشيعملل وهبو لمعت ةريبك تاحتف ثلاث ربع هطيحمب ىنبملا لصتيىنبملا لكش لفتحي ، ىنبملا جراخ ةايحلل دهاشمك ةئاملا تاذ“ ناهوو ةنيدم عقومب تاهجاولا يثلاث اديدج املعم هنم لعجي امم ، نيرهن ءاقتلا دنع ”ةريحب . ناهوو يف افورعم ، ناهوو ةيفارغج نم هتاراشإ ءانبلا موهفم ذخأيطقف لكشلا يف سيل راهنلأل ةيتحنلا ةوقلاب لفتحيو ةيغارفلا هتازيممو يلخادلا هعباط يف اضيأ نكلو ةفلتخملا ىنبملا تاعافترا للاخ نم حمليو .هئانب داومو .ةطيحملا ينابملا ىلإ دنع ناهوو عقوم ةركف يلخادلا موهفملا ززعيةيعيبطلا رظانملا اهب طيحت يتلاو راهنلأا ءاقتلا ةيلبج حوفس هدحت يداوك لخادلا ودبيف ،.ةنيدملل ةيتحنلا طوطخلا بتكلل ةجردتملا تافرشلا رضحتستو يضرلأا قباطلا يف ةعساو ةماع ةحاسم عم ، يداولل .مويلا لاوط اهب راوزلل مدخست

Cultural Building Design

08 Albenaa ءانبلا 08 يوتسم عفر يف اماه ابناج ةيفاقثلا ينابملا لكشتةيفاقث زكارمو فحاتمو ةماع تابتكم نم سانلا يعو ةجيتن اديدج ادعب مويلا ةيفاقثلا ينابملا ذخأتو رملأا تابساحلاو تنرتنلاا لاجم يف ةلصاحلا تاروطتلل نم للقتو ينابملا هذه سفانت تنرتنلاا لعج يذلا نكمي ينابملا هذه همدقت ام مظعمف ،اهيلع لابقلأا ةيفحتم ضورعو بتك نم تنرتنلاا ىلع هتدهاشم . لصاوتت لئاسوو تامولعمو اهلعجيل ينابملا نم عونلا اذه ميمصت رود يتأيةليمج ةرامعو راكفأ للاخ نم روهمجلل ةبذاج ينابم ينابملا هذه رود يف رظنلا ةداعإ للاخ نمو ، ةباذج ةلمكم نوكتل لب تنرتنلإل اسفانم اهرود نوكيلا ثيحب تاهجوتلا لك يف ةفرعملاو ةفاقثلا ميدقت يف اهل .ةيناسنلااو ةيملعلا ةحاتم ينابملا هذه نوكت نأ وه راكفلأا هذه مهأ نمةحوتفمو اهيلإ لوصولا لهس مهنم ةبيرق سانلل . مهب ةبحرمو ىلإ ةفاضلإاب ينابملا هذه مدقت نأ كلذك يرورضلا نمندملا نارمع يف مهاست نأو ةيونعم ميق يفاقثلا اهرود . ندملا ناكسل ةيركف زومر لمحت ملاعمك هعم لعافتتو : ددعلا اهضرعتسي يتلا عيراشملا ةيفاقثلا عيراشملا ةعباتم ءانبلا ةلجم يف لواحن راكفأ لمحي ام اهنم راتخن نأ لواحنو بثك نع ةديدجلا . ةيعون تاذ ةرامعو ةيفاقث ينابمل عيراشم 5 ضرعتسن ددعلا اذه يفو نيصلا يف اهمظعم ، ةبتكمو فحاتم 4 نم ةنوكم ةيرامعم بتاكم لبق نم ةممصم ينابم اهنكلو .ةفورعم ةيملاع ايفارغونثلإا فحتم : لولأا عورشملا ممصملا زافNAPUR Architect Ltd. Lead Architect, Author:FERENCZ, MarcelDLA ةيملاع ةقباسم للاخ نم عورشملا اذه ميمصتب . نييملعلا نييرامعملا رابك اهيف كراش اينامور ، تسبداوب يف فحتملا عقيهنم ةئاملاب نوتس عقي ثيحب فحتملا ىنبم ممصقوف ىنبملا نم رهظي ام امنيب ضرلأا ىوتسم تحت نيردحنم لكشت ةلئام ةلتك نع ةرابع وهف ضرلأا . ضرلأا ىوتسم دنع نايقتلي نيرضخأ نيب طبري ربعمو ةباوب نوكي نأ فحتملل كلذ حيتيو. فحتملا اهيف عقي يتلا ةقيدحلاو ةنيدملا هتئيب عم فحتملا مجسنيل ىنبملا حطس عرز امك.ةطيحملا ةيعيبطلا قوف رهاظلا ءزجلا يف ةفافشلا تاهجاولا زيمتتهذه تيطغ ،ةيلخاد ةديج ةءاضإب حمستل ضرلأا تاءاحيإ تاذ فراخز تاذ ةيندعم ةكبشب تاهجولا . ةيملاع ىرخأو ةيرجم لوصأ تاذ ةيفارغونثإ ىنبملا طابترا نع ريبعتلا يف ممصملا قفوللاتلا ةركف للاخ نم يعيبطلا رضخلأا هطيحمب ىنبملا ةلتك طبر يف قفو امك ،عورزملا حطسلاو ضرلأا ىوتسم دنع نيلتلا ءاقتلا للاخ نم ةنيدملاب طبري ةكرح روحم عم ةيف يقتلت ةحاس نلاكشيل . ةنيدملاب فحتملا ىوتسم تحت ىنبملا ةحاسم نم ريبك ءزج ءافخا متةيئانبلا ةلتكلا نم ليلقتل 2م 33،000غلبت يتلاو ضرلأا ةلتك مجسنتلو ، ضرلأا قوف اهلك تناك اذإ ةمخضلا . ايبلس اهيلع رثؤت لاو ءارضخلا تاءاضفلا عم ىنبملا قنيجوك فحتم ةعسوت : يناثلا عورشملا ةليمجلا نونفلل بتكم عورشملا ممصNeri&Hu Design and Research Office نيصلا ، جنايز يف فحتملا عقينوكت نأ عورشملا ةبحاص ةهجلا ةبغر تناك دقليقرشلا لخدملا دنع ةديدج ةيرامعم ةنوقيأ ةعسوتلا .فحتملل لكشت ةيئانب ةلتك ميمصت ةركف ممصملا حرتقاةيبلتل طقف سيل ةيداشرا ةملاع نوكت يرضح بصن اهفئاظوو فحتملل ةديدجلا ةعسوتلا تابلطتم امئاد ازمر لكشتل اضيأ نكلو ، ةيراجتلاو ةيفاقثلا ةبذاج ةيفاقث ينابم Attracting
ليخلا ابأ للهادبع ميهاربإ : دادعإ
11 Albenaa ءانبلا 11 ةقيدلحاو ةنيدلما ينب طبري رممو ةباوبك نوكي نأ ىنبملل قفرب ةينحنلما طوطلخا حيتت

New Museum of Ethnography

10 Albenaa ءانبلا 10 © Palkó György ايفارغونثلإا
بتكملا اهيف زاف ةيملاع ةقباسم يف فحتملا ىنبم حرط متزئاوجلا نم ديدعلا ىلع ديدجلا فحتملا ىنبم زاح امك ، ممصملا ابوروأ يف ريبك يفاقث يرضح ريوطت نم اءزج فحتملا دعيو Liget Budapest Project ىمسي تقولا سفن يف ةطيسبو ةيكيمانيد طوطخب ميمصتلا زيمتيامك،اهيف عقي يتلا City Park ةقيدح ةئيب عم مجسنم وهو . .ةطيحملا ةيرضحلا ةقطنملا عم لصاوتلا ميمصتلا ققحي نم ةيرثأ ةعطق فلأ 250 مضت ةعومجم ىلع فحتملا يوتحي، ملاعلا ناكرأ نم نكر لك نمو تابراكلا لابج ضوح ربعمو ةباوبك نوكي نأ ىنبملل قفرب ةينحنملا طوطخلا حيتت.ةقيدحلاو ةنيدملا نيب طبري ، ضرلأا حطس ىوتسم تحت ىنبملا نم ةئاملاب نوتس عقيىلع ةدوجوملا ماسقلأا ةيفافشو عورزملا فحتملا حطس لضفبو ربتعي ثيح ، ةيعيبطلا هتئيب عم ديدجلا فحتملا مجسني ضرلأا راوز رظتنت ةعتمم ةيعمتجم ةحاسم بشعلاب عورزملا حطسلا .ريبكلا يفاقثلا يرضحلا ريوطتلا اهنأكو ضرلأا يوتسم نع ةلئام ةرهاظلا فحتملا ةلتك ودبتفحتملا زيمتيو ، ةكباشتملا للاتلا نم نيردحنم لكشت رظانملا تاذ حطسلا ةقيدح طيحم لوح فتلت ةيجاجز تاهجاوب ، ةيعيبطلا نم برقي ام نم نوكتت اهنأ يهو ةديرف ةيصاخ تاهجاوللةعونصم ةطقنم طوطخ نع ةرابع يهو ، لسكب نويلم فصن نم ةراتخملا ةيفارغونثلإا فراخزلا ىلع دمتعت ةيندعم ةكبش نم .ةيلودلا تاعومجملاو يرجملا فحتملا رزيللاب ةعوطقم موينملأ ةكبش يف لسكبلا تادحو لاخدإ مت.ىنبملاب اهنم 2000 نم رثكأ ليصوت متو ، صاخ توبور ةطساوب اهنم 20 ةيفارغونثإ تاءاحيإ نم ةريغصلا تابعكملا نوكتت امنيب ةرصاعم ةيلود ريسفت ةداعإ يه اهنم 20 و ، ةيرجم لوصأ تاذ .ةيفارغونثلإا فراخزلل نم ديزملا قيقحت لازي لا ، يخيراتلا ثارتلا لقن بناج ىلإفادهلأا نيب نم ةيثحبلاو ةينهملا رظنلا تاهجوو تاعوضوملا .هتمهم كلذ دكؤت امك ، فحتملل ةيولولأا تاذ ، راوزلا عم لصاوتلل ةديدج صرفل هتاغارف فحتملا حتفيسيضاملا نم راكفلأاو رهاوظلاو ةيمويلا ءايشلأا ضرع حيتي امم بنج ىلإ ابنج رضاحلاو
فحتم
: ممصملا Architect : NAPUR Architect Ltd. Lead Architect, Author: FERENCZ, Marcel DLA اينامور ،تسبادوب : عقوملا 2م 33،000 : ةيلامجلاا ةحاسملا م 2022 : ذيفنتلا نم ءاهتنلإا
13 Albenaa ءانبلا 13 ةطيلمحا ةيرضلحا ةقطنلما عم لصاوتلا ميمصتلا ققحي امك،اهيف عقي يتلا City Park ةقيدح ةئيب عم مجسنم وهو . تقولا سفن يف ةطيسبو ةيكيمانيد طوطخب ميمصتلا زيمتي © Palkó György
12 Albenaa ءانبلا 12 ةكباشتلما للاتلا نم نيردحنم لكشت اهنأكو ضرلأا يوتسم نع ةلئام ةرهاظلا فحتلما ةلنك ودبت
© Palkó György © Palkó György

From the Architect Report:The multiple award-winnig new museum building which is part of Europe’s largest urbancultural development called Liget Budapest Project has dynamic yet simple lines simultaneously harmonised with the park environment and communicating with the surrounding urban area. The City Park (Városliget) is a familiar venue for the Museum of Ethnography: its collection debuted here at the 1896 Millennium Exhibition.The collection, which now comprises 250 thousand items from the Carpathian Basin and from every corner of the world, has been hosted by various facilities since its establishment in 1872, but never in its history did it operate in a building designed specifically to cater to its needs. The current location, which once was home to the Hungarian Curia, is far from being suitable to meet the requirements of a museum, and is severely limited in terms of space and opportunities. As a result of the international design competition, successful construction,and completion, the Museum of Ethnography was finally given a new home in a truly modern building of an all-round world-class standard that will satisfy professional requirements, while catering to the needs of the collection and visitors alike. According to the decision of an international jury, the competition was won by the Hungarian architectural studio, Napur Architect,whose building is distinguished by a dynamic yet simple design harmonised with the natural environment of the park while communicating with the urban texture of its surroundings. The gently curving lines enable the building to function as a gateway and a passage linking the city and the park. Sixty percent of the structure is under ground level, and thanks to the landscaped roof and the transparency of the sections over the ground, the new museum is adapted to its environment

in its scale too. The grass-covered roof area will be a pleasant community space awaiting visitors to Városliget.The spectacular trademark of the building is the glass curtainwall surrounding the landscaped roof garden, reminiscent of two intertwined hillsides, with a unique characteristic, consisting of nearly half a million pixels, a raster made by metal grid based on ethnographic motifs selected from the museum’s Hungarian and international collections. The pixels were inserted into a laser-cut aluminum grid by a special robot, more than 2,000 of which are attached to the building. The small cubes were made up of 20 Hungarian and 20 international contemporary reinterpretations of ethnographic motifs.The Museum of Ethnography is already recognized as one of the most exciting contemporary building in the continent. The new functions and flexible spaces of the modern and stateof-the-art museum building will facilitate the understanding of the historical heritage embodied by the collection as well as the various aspects of contemporary society. Besides passing down this historical heritage, the realisation of more recent professional and research themes and perspectives continues to be among the priority objectives of the museum, as confirmed by its mission. The creatively built spaces will open up new opportunities to communicate with visitors, enabling the presentation of the everyday objects, phenomena and ideas of the past and the present side by side. The purposebuilt museum was designed with maximum consideration for the required functions, and thus facilitates the large-scale, modern, user-friendly operation of the institution to a significant degree, along with the visually enticing and diverse display of mankind’s material and spiritual heritage, as well as the collection comprising Hungarian and international material.

15 Albenaa ءانبلا 15
يلوط عاطق ةيلوط ةهجاو
حطسلا
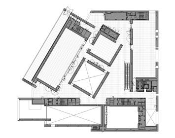
14 Albenaa ءانبلا 14 يضرأ تتح رودلا يضرلأا رودلا لولأا رودلا يناثلا رودلا
17 Albenaa ءانبلا 17 تمو صاخ توبور ةطساوب رزيللاب ةعوطقم موينلمأ ةكبش يف لسكبلا تادحو لاخدإ تم ةيفارغونثإ تاءاحيإ نم ةريغصلا تابعكلما نوكتتو.ىنبلماب اهنم 2000 نمرثكأ ليصوت حطسلا ةقيدح طيحم لوح فتلت يتلا ةيجاجزلا هتاهجاوب فحتلما زيمتي
© Palkó György © Palkó György © Palkó György © Palkó György
16 Albenaa ءانبلا 16 ةراتخم ةيفارغونثإ فراخز ىلع دمتعت ةيندعم ةكبش نم ةعونصم ةيطقن طوطخ نع ةرابع يهو ، لسكب نويلم فصن نم برقي ام نم نوكتت اهنأ يهو ةديرف ةيصاخ تاهجاولل
© Palkó György
بنج ىلإ ابنج رضالحاو يضالما نم راكفلأاو رهاوظلاو ةيمويلا ءايشلأا ضرع حيتي امم ، راوزلا عم لصاوتلل ةديدج اصرفل هتاغارف فحتلما حتفيس ملاعلا ناكرأ نم نكر لك نمو تابراكلا لابج ضوح نم ةيرثأ ةعطق فلأ 250 مضت ةعومجم ىلع فحتلما يوتحي © Palkó György
© Palkó
19 Albenaa ءانبلا 19
© Palkó György
György
18 Albenaa ءانبلا 18
© Palkó György © Palkó György © Palkó György © Palkó György
21 Albenaa ءانبلا 21 ةقيدلحاو ةنيدلما ينب طبري ربعمو ةباوبك نوكي نأ ىنبملل قفرب ةينحنلما طوطلخا حيتت © Palkó György
20 Albenaa ءانبلا 20
23 Albenaa ءانبلا 23 : ممصملا Architect : Neri&Hu Design and Research Office نيصلا ، جنايز : عقوملا 2م 1،990 : ةيلامجلاا ةحاسملا م 2021 : ذيفنتلا نم ءاهتنلإا
هيفرتلاو معاطملل دادتماك حطسلا لمعي و ءاعو لكش ىلع فوجم جردمك حطسلا ممص ضورعلل ةصنمك اضيأ لمعي امنيب ، ةفلتخلما ةطشنلأل ناكمو روهمجلل حوتفم ىدتنمو
© Zhu Runzi © Zhu Runzi

The Urban Monument

Qujiang Museum of Fine Arts Extension

22 Albenaa ءانبلا 22 قنيجوك فحتم ةعسوت ةليمجلا نونفلل
© Zhu Runzi © Zhu Runzi
25 Albenaa ءانبلا 25 ةيراجتلاو ةيفاقثلا فحتلما ةعسوت تابلطتم ةيبلتلل طقف سيل ةيداشرإ ةملاع نوكت يرضح بصن لكشت ةيئانب ةلتك ميمصت ةركف ممصلما حرتقا ماعلا عقولما © Zhu Runzi
24 Albenaa ءانبلا 24 ماعلا عقوملل ةيولع ةطقل ليكشتلاو ، ةيتحنلا ةرامعلا تاذ ةدعاقلا نيب .اهقوف عقي يذلا يرئادلا ةلاص مضيو ،ديدجلا ىنبملا بصنلا جوتيءاوهلا يف تارضاحم جردمو يناثلا قباطلا يف .هقوف قلطلا ءارمح ةيرجح تادحو نم تاهجاولا نوكتتفوفص ىلع تبترو ساملا عيطقتك تعطق .اهللاخ نم يعيبطلا ءوضلا ذافنل ىنبمل يبرغلا يلامشلا فرطلا يف رمم يدؤيقباطلا يف حطسلا ىلإ ةرشابم يلاحلا فحتملا لكش ىلع فوجم جردمك ممص يذلا ، يناثلا معاطملل ريبك دادتماك حطسلا لمعي .ءاعو روهمجلل حوتفم ىدتنمك لمعي امك .هيفرتلاو اضيأ لمعي امنيب ، ةفلتخملا ةطشنلأل ناكمو .ضورعلل ةصنمك يف ةليمجلا نونفلل Qujiang فحتم عقيدقل ، Xi’an's Datang Everbright ةنيدم نوكت نأ عورشملا ةبحاص ةهجلا ةبغر تناك لخدملا دنع ةديدج ةيرامعم ةنوقيأ ةعسوتلا .فحتملل يقرشلا ممصملا حرتقا ، جمانربلا تابلطتمل ةباجتساويرضح بصن لكشت ةيئانب ةلتك ميمصت ةركف تابلطتم ةيبلتل طقف سيل ةيداشرا ةملاعو ةيفاقثلا اهفئاظوو فحتملل ةديدجلا ةعسوتلا امئاد ازمر لكشتل اضيأ نكلو ، ةيراجتلاو . طيحملا ينارمعلا جيسنلل يعامتجلاا خيراتلل ةقطنملا يف ضرع تلااص دجاوتل ارظنليلقتلا ىلع ميمصتلا لمع ، عقوملل ةرواجملا للاخ نم ديدجلا ىنبملا ةلتك مجح ريثأت نم .اهليصافتو ةلتكلل ةينأتم ةسارد ةدعاقلا :ءازجأ ةعبرأ نم ىنبملا فلأتيلكشلا تاذ ةكرحلا تاراسمو ، ايئزج ةنوفدملا رهظت يتلا ةعبرملا ةصنملاو ، توحنملا ينفلا اكشلا وذ يرضحلا بصنلا اريخأو ، ضرلأا قوف . يناوطسلأا يرئادلا ةناسرخلاب اهلمكأب ةدعاقلا بيطشت متةدعاقلا تممص امك ، عقوملا يف ةبوبصملا .روهمجلل ةحوتفم ةحاسك ايئزج ةنوفدملا ممصملا ظفاح ، لولأا قباطلا لخدم دنعلزنت يتلا ةيلصلأا ةضيرعلا تاجردلا ىلع ايئزج . ضرلأا ىوتسم تحت ةحاسب طبترتل لفسلأ ىلع ةبلصلا ةيناسرخلا ةدعاقلا يوتحتءاقبلإا مت يتلا معطملاو فحاتملا تاحاسم لثم ةديدج فئاظو ىلع يوتحت امك ، اهيلع ةطشنأ عم لماكتت يتلا ،تامامحلاو تلاحملا .رواجملا ةاشملا عراش قلطنت ةكرحتملا مللاسلا نم ةلسلس يدؤتيف فحتملا تاغارف ىلإ يضرلأا قباطلا نم مت دقلو . ) B2 ( يناثلا يضرأ تحتلا قباطلا ينف لكش لخاد ةكرحتملا مللاسلا ءافخإ قباوطلا يثلاث يئوض رئب اهيطغيو ، يتحن ققحت ايئزج ةنوفدملا ةحاسلا ةدعاق دنع يوق ريثأت وذ لاكش ةصنملا ةرشابم ةنوفدملا ةدعاقلا قوف موحتسمشلا تارساك نم ةكبش نم نوكتتو ىوتسم يطغت ةيجاجز تاحتف تاذ ةيرجحلا تلاحملا ىوتسم نع ريبعتلا مت دقلو .تلاحملا لصفلا ىلع ديكأتل ةقلعم ةهجاوك دصق نع ©
Zhu Runzi

From the Architect Report: The Qujiang Museum of Fine Arts is located at the beginning section of Xi’an’s Datang Everbright City, south of the famed Giant Wild Goose Pagoda. The client asked for a new architectural icon at the East Entry of the museum. In response to the brief, Neri&Hu’s proposal takes the idea of a monolithic urban monument as the guiding concept to not only satisfy the museum’s newly expanded cultural and commercial functions, but to also serve as an anchor and a durable symbol of social history for the surrounding urban fabric. Since the vicinity of the site is occupied by existing galleries, the design intervention minimizes the impact of the new building through careful consideration for the architectural massing and detailing. The building is composed of four parts: the partially sunken Base, the Sculptural Walk circulation enclosure, the elevated podium Platform, and lastly the Monument. The entire base is finished with cast-in-place concrete. Partially sunken from the level of the existing plaza, the base is conceived as a continuous ground for the public. At the entry to the first floor, Neri&Hu has partially retained the original wide steps. The steps descend down to connect to a sunken piazza. The solid concrete base contains the former museum spaces and restaurant which have been retained, along with newly inserted functions such as retail spaces and public restrooms. These inserted functions complement the activities of the adjacent pedestrian street. From the ground level plaza, a series of escalators lead to the underground museum on the B2 level. The escalators are concealed within a sculptural form, featuring spaces of sectional play between compression and expansion, capped with a triplestory light well at the base of the sunken piazza, providing a sense of drama and intrigue. Hovering just above the sunken base, is the Platform which is expressed as a post and lintel construction; a grid of stone columns and glass curtain walls supporting a floating roof house retail spaces. This retail level is intentionally expressed as a curtain wall to highlight the separation between the carved language of the base, and the circular sculpted massing of the civic potency above.Capping the new building is the Monument, which housesa lounge on the second floor and an outdoor amphitheater above. The elevation is composed of diamondshaped red travertine masonry units arranged at intervals to accentuate the transmissivity of light. On the northwest end of the existing museum building, a passage leads directly to the second-floor outdoor terrace, conceived as a hollowedout bowl shaped amphitheater. The terrace acts as a grand extension to the dining and entertainment programs of the lounge. This space acts as a forum which is open to the public as a venue for various activities, while also serving as a platform for private performances and catwalks.

27 Albenaa ءانبلا 27
© Zhu Runzi © Zhu Runzi © Zhu Runzi
26 Albenaa ءانبلا 26 طيلمحا ينارمعلا جيسنلل يعامتجلاا خيراتلل مئاد زمر ىنبلما ةلتك لكشت
© Zhu Runzi
2 1 3 5 4 6 7 8 9 ةحاسيئابرهك ملستلاحمىهقمءانفتارضاحم جردمتامامحتامدختلالآا فرغ3 4 5 5 6 1 1 4 5 6 2 2 1 2 3 3 4 5 5 ىهقلما ىلع عاطق تلالمحاو جردلما ىلع عاطق تلالمحاو جردلما ىلع عاطق ملسلا ىلع عاطق ةيلامشلا ةهجاولا ةيقرشلا ةهجاولا ةيبرغلا ةهجاولا ةيبونلجا ةهجاولا 29 Albenaa ءانبلا 29
28 Albenaa ءانبلا 28 2 1 3 5 4 6 7 8 9 10 ةحاسيئابرهك ملستلاحمىهقمءانفتارضاحم جردمتامامحتامدختلالآا فرغفحتم2 3 3 3 7 7 8 8 8 9 9 2 1 3 3 8 8 8 8 8 8 9 9 10 2 1 3 4 5 5 6 1 يضرأ تتح رودلا يضرلأا رودلا 2 يضرأ تتح رودلا لولأا رودلا حطسلا رود
31 Albenaa ءانبلا 31 اهللاخ نم يعيبطلا ءوضلا ذافنل فوفص ىلع تبترو سالما عيطقتك تعطق ىلع ءارمح ةيرجح تادحو نم تاهجاولا نوكتت
© Zhu Runzi
30 Albenaa ءانبلا 30
© STUDIO FANG © STUDIO FANG
© STUDIO FANG
33 Albenaa ءانبلا 33 ©
حطسلا جردم لكشي يذلا لئالما فقسلاو ةيرجلحا سمشلا تارساك تاذ هتاهجاوو تلالمحا ىوتسم
Zhu Runzi
32 Albenaa ءانبلا 32
35 Albenaa ءانبلا 35 © Rocco Design © Rocco Design نكمي ثيح ، فحتملل يعامتجلاا بلقلا ةينفلأا لكشتنونفلاو ةينفلا تاضورعملا ةشقانمل عمجتلا راوزلل . ةطيحملا رظانملاب عاتمتسلااو ، ةضورعملا ةريبك ةحاس ربع راوزلا رمي ، ىنبملا نم بارتقلاا دنعتلاافتحا ضورعو ةينف لامعأ فيضتست نأ نكمي ةعفترم ةحاسلاب فحتملا لخدم حانج طيحيو .ةيديلقت تاصقرو ىلإ هنم فويضلا لخدي ،ةمرحملا ةنيدملا باوبأب اركذم فرعتلاو ةشدردلاو ءاخرتسلاا مهنكمي ثيح ،عساو وهب .ةضورعملا ةينفلا لامعلأا ىلع ، هتحت نم تاغارفلا جومتملا يزنوربلا فقسلا ددحييخيراتلا نيكب رصقل ةيبهذلا فقسلأا نم مهلتسم وهو دتمي يذلا يسأرلا ةكرحلا روحم عم ىشامتيو لماكتيو يسأرلا لاصتلاا كلذب ززعيل ، ىنبملل لماكلا عافترلااب فقسلا اذه لمعي . لخادلا ىلإ يعيبطلا ءوضلا بلجيو ىلإ ةينف ةسمل فيضي ، يتحنو يهيجوت رصنعك .ةلوقصملا ةيناسرخلا تايضرلأاو ناردجلل ةيرجحلا تايطغتلا ضراعملا نم تايوتسم ةثلاث ربع يسأرلا روحملا دتميو اذه .ةيلامجلاا ضرعلا تاحاسم نم عبرم رتم 7800 رفوت يتلا دوعت يتلا فحتلا نم ةعومجم ضرعلا تلااص ضرعتامب )دلايملا دعب 226 ىلإ 420 نم ( نيج ةرسأ دهع ىلإ يفرخزلا نفلاو ةردانلا بتكلاو طخلاو مسرلا كلذ يف .مشيلا رجحو ةيزنوربلاو ةيبهذلا رصانعلاو ضورع ىلع يوتحت ضرعلا تلااص مظعم نأ نيح يفعافترلاا جودزم ايعيضوم اضرعم كانه ، ايبسن لجلأا ةليوط اهريودت متي ضورع ىلع يوتحيس عبارلا قباطلا يف ةززعملاو ةيكراشتلا ضراعملا كلذ يف امب ، رركتم لكشب .رفوللا فحتم نم تاضورعملا و اينقت ادعقم 400 ـل عستت تارضاحم ةعاق ىلع فحتملا لمتشيةطشنأ فرغو ملافأ ضورعو ةماع جمارب فيضتستو . يضرلأا قباطلا يف ارجتمو امعطمو : ممصملا Architect : Rocco Design Associates (RDA) غنوك غنوه : عقوملا 2م 30،000 : ةيلامجلاا ةحاسملا م 2022 : ذيفنتلا نم ءاهتنلإا

Hong Kong Palace Museum

34 Albenaa ءانبلا 34 نجوك نجوه يف ايروتكيف ءانيم ىلع لطيو نونفلا ةقيدح راوجب هنم يبرغلا فرطلا يف عقيو)WKCD( ةيفاقثلا West Kowloon ةقطنم ريوطت نم ءزج لكشي يذلا فحتملل تاطقل ءزج وهو ةينيصلا راثلأاو نفلل ديدج زكرم وه فحتملا)WKCD( ةيفاقثلا West Kowloon ةقطنم ريوطت نم نم ةعطق 900 نم رثكأ فحتملا مضي ، غنوك غنوه يف يف امب ، ةمرحملا ةنيدملا يف يخيراتلا نيكب رصق فحتم .ةينطو ازونك ربتعت ىلولأا ةجردلا نم ةيرثأ ةعطق 160 كلذ ديدج ملعمو ، يندم زكرم نوكيل ىنبملا ممصخيراتلاب ةديدجلا لايجلأا طبرت ةصنمو ، غنوك غنوهل ةيبيرجتو ةيلعافت ضراعم فيضتستو .نيصلل يفاقثلا .راثلآا ىلع اديدج اءوض يقلت ةيفاقثلا ةقطنملا نم يبرغلا فرطلا يف ىنبملا عقيةعساو تلالاطإب عتمتي ثيح،نونفلا ةقيدح راوجب WKCD .ايروتكيف ءانيم ىلع ريهامجلا ىلإ ينيصلا ثارتلا حور بلج ميمصتلا ىنبتيةينيصلا ةيناكملا ميهافملا ريسفت ةداعإو ، ةرصاعملا نم ةلسلس للاخ نم ةرصاعم ةيرامعم ةغلب ةميدقلا فحتملا يوتحي ثيح ، يخيراتلا نيكب رصق يف امك ةينفلأا .ىنبملا ربع راوزلا بذج ىلإ فدهت ةينفأ ةثلاث ىلع غنوه جيسن ىلإ ىنبملل يسأرلا ريوطتلا ريشيربكأ اضيأ رفوي امك ، زنتكملاو فيثكلا يرضحلا غنوك ىلع ةيعيبط رظانم تاذ قطانمو ةحوتفم ةحاسم . ضرلأا ىوتسم ةنيدملا ىلع ةيماروناب تلالاطإ ثلاثلا ةينفلأاا رفوتهجتيف .ةفلتخم تاهاجتا يف ةطيحملا قطانملاو يف Xiqu زكرم هاجتاب ةللاطإ عم ، قرشلا وحن لخدملاءانف هجتيو .ةيفاقثلا West Kowloon ةقطنم نم يقرشلا فرطلا رفويل ، بونجلا هاجتاب ةيجراخلا ةحاسلاو يبونجلا ءانفلا اذه لعجي امم ، ريهشلا غنوك غنوه قفأ ىلع تلالاطإ راوزلل ءانفلا هجتي امنيب .فحتملا يف ابذج عقاوملا رثكأ دحأ ءانفلا رحبو واتنلا ةريزج ىلع لطيل، برغلا هاجتاب يولعلا يبرغلا .ديعبلا قفلأا يف يبونجلا نيصلا غنوك غنوه رصق فحتم

From the Architect Report:RDA’s Hong Kong Palace Museum, a flagship project of the West Kowloon Cultural District (WKCD) development, has officially opened. As a new centre for Chinese art and antiquities in Hong Kong, the building will be home to more than 900 objects from the Beijing Palace Museum in the Forbidden City, including 160 Class A artefacts considered national treasures. The building is conceived as a civic hub and new landmark for Hong Kong, as well as a platform to connect new generations with China’s cultural history. It will host interactive and experiential exhibitions, casting new light on antiquities.

The 30,000-square-metre building sits at the western tip of WKCD adjacent to the Art Park, where it commands sweeping views over Victoria Harbour. The design embraces the spirit of bringing Chinese heritage to modern audiences, reinterpreting ancient Chinese spatial concepts in a contemporary architectural language. Based on the notion of spatial exploration through sequential courtyards in the Beijing Palace itself, HKPM stacks three atria that draw visitors up through the building. The vertical stacking references Hong Kong’s dense and compact urban fabric, and also preserves as much open space and landscaped areas on the ground level as possible.

The three atriums offer panoramic vistas of the city and surroundings in different directions. The entrance atrium is oriented towards the east, with a vista towards the Xiqu Centre at the eastern end of the West Kowloon Cultural District. The South Atrium and outdoor viewing deck are rotated towards the south, offering visitors commanding views of Hong Kong’s iconic skyline and is set to become one of the museum’s most “Instagrammable” spots. The uppermost Western Atrium is yet again rotated towards the west, with views of Lantau Island and the South China Sea in the distance. The atria make the social heart of the Museum, where guests can gather to discuss the art on display, enjoy views over the surroundings, and contemplate the art they have seen. They can experience the present city in an unparalleled way and envision the future with the Lantau reclamation project now being promoted.

Approaching the building, visitors pass through a grand elevated plaza that can host installations and performances of traditional ceremonies and dance. The Museum’s entrance pavilion frames the plaza, recalling the gates of the Forbidden City. Beyond, guests enter a vast lobby where they can relax, chat, and learn about the exhibitions on view. An undulating bronze ceiling articulates the space, referencing the gold Beijing Palace roofs, unfolding to accompany a circulation spine that extends the full height of the building, enhancing vertical connectivity and bringing natural light streaming down from above. This ceiling acts as an orientating and sculptural element, adding accent to the space’s refined palette of stone and polished concrete walls and floors. The spine winds through three levels of galleries that offer 7,800square-metres of total exhibition space. The galleries will display a collection of objects from as early as the Jin dynasty (AD 226–420) including painting, calligraphy, rare books, and decorative art including gold, bronze, and jade items.

While most of the galleries have displays that are relatively longterm, a double-height thematic gallery on the fourth floor will house displays that are rotated frequently, and may embrace innovative curatorial experiences, including participatory and technologically enhanced exhibitions. This is also a venue where treasures from different countries—including exhibits from the Louvre in the opening exhibition—can be displayed in dialogue with the treasures from Beijing

The Museum also includes a 400-seat lecture theatre that hosts public programs and film screenings, activity rooms, and a ground-floor restaurant and shop that create an active edge on the Art Park and harbourfront walkways.

37 Albenaa ءانبلا 37
ثلاثلا ةينفلأا ينب ةقلاعلا حضوي عاطق ميهافلما ريسفت ةداعإو ، ةرصاعلما ريهاملجا ىلإ ينيصلا ثارتلا بلج ميمصتلا ىنبتي ينكب رصق يف امك ةينفلأا ةثلاث للاخ نم ةرصاعم ةيرامعم ةغلب ةيمدقلا ةينيصلا ةيناكلما ىنبلما ربع راوزلا بذج ىلإ ةينفلأا فدهتو ) ىلعلأا يف( يخيراتلا
36 Albenaa ءانبلا 36 ةينطو ازونك ربتعت ىلولأا ةجردلا نم ةيرثأ ةعطق 160 كلذ يف ابم ، ةمرلمحا ةنيدلما يف يخيراتلا ينكب رصق فحتم نم ةعطق 900 نم رثكأ فحتلما مضي ينصلل يفاقثلا خيراتلاب ةديدلجا لايجلأا طبرت ةصنمو ، غنوك غنوهل ديدج ملعمو ، يندم زكرم نوكيل ىنبلما ممص
© Rocco Design ©Hong Kong Palace Museum ©Hong Kong Palace Museum
39 Albenaa ءانبلا 39 لخدلما ىلع عاطق ةيلخادلا ةينفلأا ينبةيسأرلا ةقلاعلا حيضوتل تامسجم ةيجرالخا ةلتكلا لكشل تامسجم ةيميلعتلا دراولما زكرم -2 ضرعلا تلااص -4 يولعلا يضرلأا رودلا ) ءانف ( وهب -5 معطلما -1 ليلخا قابس يدان ةئيه جردم -3 يبونلجا ءانفلا -6 ةيجراخ ةللاطإ -7 يبرغلا ءانفلا -8 2 4 4 4 4 4 4 4 5 1 3 7 8 6 ضرعلا تلااص .ءانف تارضاحم ةعاق ةطشنأ فرغ ءارضخ حطسأ ةحاس تلاحم معطم تامدخو قفارم
38 Albenaa ءانبلا 38 لفسلأا يضرلأا رودلا يناثلا رودلا. ثلاثلا رودلا عبارلا رودلا سمالخا رودلا لولأا رودلا يولعلا يضرلأا رودلا بتاكم -1 1 وهب -2 ضرع تلااص -1 1 1 1 2 ضرع تلااص -1 1 1 1 2 1 يبرغ ءانف -2 ةلاص -1 ةيجراخ ةللاطإ -3 3 يبونج ءانف -2 ضرع تلااص -1 ةيجراخ ةللاطإ -3 2 1 1 1 3 2 4 5 5 5 3 1 ضرعلا تلااص .ءانف تارضاحم ةعاق ةطشنأ فرغ ءارضخ حطسأ ةحاس تلاحم معطم تامدخو قفارم ةصاخ ةلاص -2 ةيميلعتلا دراولما زكرم -4 هيفرت تاحاسمو معطم -5 ةصاخ ةلاص -1 ليلخا قابس يدان ةئيه جردم -3 2 4 5 1 3 ينثحابلا فرغ -2 فحتلما ةحاس -4 ركاذتلا عيب -5 ضرع ةلاص -1 وهب -3 ضرعلا تلااص .ءانف تارضاحم ةعاق ةطشنأ فرغ ءارضخ حطسأ ةحاس تلاحم معطم تامدخو قفارم
يبونلجا ءانفلا يبونلجا ءانفلا ملس يبونلجا ءانفلا ملس © Rocco Design © Rocco Design
© Edmon Leong
40 Albenaa ءانبلا 40 ©
©
ززعيل ىنبملل لماكلا عافترلااب دتيم يذلا يسأرلا ةكرلحا روحم عم ىشامتيو لماكتيو يخيراتلا ينكب رصقل ةيبهذلا فقسلأا نم مهلتسم وهو ، هتتح نم تاغارفلا جومتلما يزنوربلا فقسلا ددحي ةلوقصلما ةيناسرلخا تايضرلأاو ناردجلل ةيرجلحا تايطغتلا ىلإ ةعئار ةينف ةسلم فيضي ، يتحنو يهيجوت رصنعك فقسلا اذه لمعي . لخادلا ىلإ يعيبطلا ءوضلا بلجيو يسأرلا لاصتلاا كلذب
Rocco Design
Rocco Design
هيف راوزلا ةكرحو يولعلا يضرلأا رودلا يف) يقرشلا ءانفلا( لخدلما وهب
©Hong Kong Palace Museum
قفلأا يف يبونلجا ينصلا رحبو واتنلا ةريزج ىلع ةيجرالخا هتللاطإو ىبرغلا ءانفلل ناتطقل © Edmon Leong © Edmon Leong 43 Albenaa ءانبلا 43
42 Albenaa ءانبلا 42 هيف ةيسأرلا ةكرلحاو يبونلجا ءانفلا ©Freeman Lau
© Rocco Design © Rocco Design © Rocco Design
© Rocco Design
45 Albenaa ءانبلا 45 : ئفادلا ضيبلأا تينارلجا راجحأ نم تاراتكه ةعبرأ نم فلأتي ءانب وه نونفلا فحتم ةيماملاا لابقتسلاا ةحاس اهمامأو ةسيئرلا ةهجاولا نونفلل جنودوب فحتم
: ممصملا Architect : Jean NOUVEL – Ateliers Jean Nouvel نيصلا ، ياهغنش : عقوملا 2م 40،000 : ةيلامجلاا ةحاسملا م 2021 : ذيفنتلا نم ءاهتنلإا ©
Museum Of Art Pudong
Chen Hao
44 Albenaa ءانبلا 44
47 Albenaa ءانبلا 47 لابقتسلاا وهب .ريبك ليوط ةقطنم يف ةيبرغلا ةيبناجلا ةشاشلا نوكتسقوف مجحلا ةريبك ايارمل ضرعم نع ةرابع دنوبلا .نيبكارتم نيقباط .يبرغلا بناجلا ةشاش ةجمرب متيستاحاسم نع ةرابع ةيبرغلا ةشاشلا نوكتس.راهنلا للاخ ضرع ناكم وأ تيبثت ةحاسمك ةيبرغلا ةيبناجلا ةشاشلا ةجمرب متتس.ليللاو ءاسملا للاخ ويديف ثادحأ حسمل ةلآ يبرغلا بناجلا ةشاش نوكتس.ةجودزم امارونابو ، دنوبلا ةقطنم .ةمدختسملا ةءاضلإا بسح نوكتس ةجودزملا امارونابلا هذهاساكعنا ةيبرغلا ةيبناجلا ةشاشلا نوكتسيرود لكشب اهبيكرت متي يتلا ةينفلا لامعلأل .ةمدختسملا ةءاضلإا ىلع ادامتعا فحتملا راوز ةكرحو ثادحلأا ةشاشلا لقنتس. دنوبلا روهمجل نم ىرت يتلا ةيبرغلا ةيبناجلا ةشاشلا نوكتسينانفو روصلا ينانفل ةعئار ةادأ دنوبلا ةقطنم نوبحي نيذلا نيينيصلا نينانفلل ةصاخ ، بيكرتلا .ةريبكلا داعبلأاب مسرلا ةقطنم نم ةرهاظلا ةيبرغلا ةشاشلا ضرفتسنم ةفلتخملا اهتاساكعنا للاخ نم اهدوجو دنوبلا . ضيبلأا نوللا .ريبكلا جاجزلل ةيلعف ةيؤر يه ةيبرغلا ةشاشلاةرابع يه ، ىشمملا نم اءدب ، ةيبرغلا ةشاشلاةديدج روص للاخ نم ريهامجلا راهبلا ةآدأ نع .دنوب ياهغنش ةقطنم يؤر عم لخادتت نرقلا نف ىلع اًدهاش ةيبرغلا ةشاشلا ربتعت. نيرشعلاو يداحلا ليفون ناج © Chen Hao
46 Albenaa ءانبلا 46 : لفون ناج يرامعملا بتك فحتملا اذه لوح . قاطن وه غنودوب نفلا فحتم.غنودوب نف فحتم يه قاطنلانم تاراتكه ةعبرأ نم فلأتي ءانب وه قاطنلا.ئفادلا ضيبلأا تينارجلا راجحأ .وبغناوه رهن برغلا نم قاطنلا دحيثيح ، ءاملا يف لفسلأا ىلإ قاطنلا ضفخني.اضايب رثكأ رجحلا حبصي ، هايملا قوف ةقهاشلا ءاضيبلا ةيسأرلا هترامعبام برقأ نوكتل معطم ةفرش ىلع قاطنلا يوتحي عاتمتسلاا نم سانلا نكمتي ىتح براوقلا ىلإ نكمي .دنوب ياهغنش ةقطنمب باجعلإا نم ديزمب ارظنم لكشت ةيلاع راجشأ هب طيحتو قاطنلا دحت.مخض حاير زجاحو ادحو ، اجومم ايعيبط ةطساوب ةرواجملا جاربلأا نع قاطنلا لصف متي.راجشلأا نم ةنوكم حاير تادصم انكاد اراطإ راجشلأا نم نوكملا حايرلا زجاح دجوي.)قاطنلا ( فحتملا زربي اكيمس ةريبكلا اهتفاح عم ةيلاعلا راجشلأا رظنم لكشيلكش ىلع ةعساش ةيطيرش ةقيدح ، ةطيحملا ىلع يوتحت رتم 700 يلاوح اهلوط غلبي V فرح رخلآا ضعبلاو )لبق نم ادوجوم ناك اهضعب (راجشأ .ةفلتخم عاونأ نم ةيلاع راجشأ يه ليثامتلا تحتو يعيبطلا دهشملا اذه لخاد.هنم يفلخلا ءزجلا يف ةيراهنو ةيليل تارانإ كانه .ةرجشملا ةقيدحلا لخاد ةينفلا لامعلأا عضو متيس، فحتم نع ةرابع اهلك يه قاطنلا نلأ ارظن ةحاس يف ةينف لامعأ اضيأ كانه نوكيس امكىشمملا يفو ، تافرشلا يفو ، ةيماملأا لابقتسلاا .ةيرحبلا ةهجاولا ىلع لطملا ةحاسلل نوكيس ، فحتم وه قاطنلا نلأ ارظنةفاضلإاب ةهباشتم ضرع تاصنم تافرشلاو ةيماملأا .راجشلأا ضاوحأ ىلإ قاطنلا تايضرأ ةيطغت راجحأ ةعيبط نوكتسةلباق ريغ نوكتل ( ضرلأا قوف ةفيفط تازورب تاذ وأ ةزراب وأ ةمعان ( طئاوحلا ىلع ةعونتمو ، )قلازنلال .)نايحلأا ضعب يف ةنشخ ةفلتخم ماجحأب ةريبك حاولأ نع ةرابع راجحلأا.ةززحم حطسأبو .ندعملاب تاثلثملل ةداحلا فاوحلا نطبتس.رملأا مزل اذإ ضرعملا فرغ ذفاون قلاغا نكميةحوتفملا ذفاونلا ىلع ةعرشأ قيلعت متيس.تباث لظ ءاشنإو ءوضلا ةيفصتل تاحاسمو يولعلا قباطلا يف فرغلا ءاضتس.ةيعيبط ةيولع ةءاضإب ةهدرلا يف ضرعلا .قاطنلا عقوم ددحت تاملاع تاشاشلا ربتعتفحتملا قوف ةدحاو ، ناتيدومعلا ةشاشلا اتملاع عقت.هنازربتو عقوملا ناددحتو ، ةيوهتلا جرب ىلعأ ىرخلأاو قلخي امم رزيللا ةعشأب لايل نيتشاشلا طبر متي.فحتملا قوف ءوضلا نم ةعطاقتم اطوطخ ىلع ةلطملا يبرغلا بناجلا ةشاش لثمتس.اريبك اثدح دنوب ياهغنش ةقطنم ةجودزم ةهجاو نع ةرابع ةيبرغلا ةشاشلا نوكتس.جاجزلا نم نوكتس دنوب ياهغنش ىلع ةيبرغلا ةشاشلا. ايارم ةباثمب .ةعقوتم ريغ دنوبلا يف يبرغلا بناجلا ةشاش نوكتس.روص نع ةرابع يبرغلا بناجلا ةشاش نوكتستاساكعنا نوكتس دنوبلا ىلع ةيبرغلا ةشاشلا. دنوبلا ةقطنم يف لصاح وه امل قودنص نع ةرابع يبرغلا بناجلا ةشاش نوكتس -
© . ةيلخادلا فحتلما تاغارفل ةفلتخم تاطقل
Chen Hao
©
Chen Hao
© Chen Hao

For Shanghai For the Bund For Pudong

Based on an urban domain, a medium and screens

The Invention of a Large Glass

- Museum of Art Pudong is a domain.

- The domain is Museum of Art Pudong.

- The domain is a medium consisting of four hectares of warm white granite stones.

- The domain is bordered in the west by water, the Huangpu River.

- The domain actually drops straight down to the water, with the stone becoming whiter there.

- In its white sheerness, towering over the water, the domain creates a restaurant loggia as close as possible to the boats for people to be able to further admire the Bund.

- The domain is bordered, surrounded by tall trees that form an undulating landscape and a huge rim, a huge windbreak.

- The domain is separated from the neighbouring towers by this windbreak of trees.

- The windbreak of trees creates a thick dark frame that brings out the bright airiness of the museum domain.

- The undulating landscape, with its large surrounding rim, is a vast V-shaped linear garden approximately 700m long showcasing trees (some of them removed from the clutches of the new museum) – tall trees of different species.

- In the landscape there will be statues and, at the back of the landscape, lights that change from day to night.

- artworks will be positioned in the wooded landscape.

- Because the domain is a museum, there will also be artworks on the stone field, on the forecourt, on the terrace and on the waterfront walkway.

- Because the domain is a museum, the forecourt and terraces will have plinths of the same texture as well as tree planters.

- The domain’s medium will be flamed over the floor (slight non-slip relief) and mixed on the walls (smooth or flamed or very occasionally roughened).

- The stones are essentially large different-size panels with a raindrop pattern.

- The sharps points of the triangles will be lined with metal.

- The windows of the exhibition rooms will be able to be shuttered if necessary.

- The open windows will be hung with a fine sail to filter the light and create fixed shade.

- The rooms on the top floor and the exhibition space in the atrium will be lit with natural overhead lighting provided by micro sheds.

- The screens mark out the domain.

- The two vertical screen-signs, one above the museum and one on top of the ventilation tower, mark off the site and indicate and highlight a break.

- The two screens are linked at night by laser beams creating intersecting lines of light above the museum.

-The western side screen on the Bund will be a major event.

- The western side screen on the Bund will be mutating.

- The western side screen on the Bund will be a twin façade of glass.

- The western side screen on the Bund will be mirrors.

- The western side screen on the Bund will be unpredictable.

- The western side screen on the Bund will be images.

- The western side screen on the Bund will be reflections.

- The western side screen on the Bund will be a big long box.

- The western side screen on the Bund will be a gallery of large-scale mirrors over two superimposed floors.

- The western side screen on the Bund will be programmed.

- The western side screen on the Bund will be installation spaces o- performance spaces, during the day.

- The western side screen on the Bund will be programmed as a video space, during the evening and at night.

- The western side screen on the Bund will be a machine for surveying the Bund, a twin panorama.

- this twin panorama, depending on the lighting used.

- The western side screen on the Bund will be a reflection of the artworks superimposed periodically over the view of the Bund, depending on the lighting used.

- excitement and the museum’s visitors.

- The western side screen seen from the Bund will be an incredible tool for image artists and installation artists, especially for Chinese artists who like large dimensions.

- The western side screen seen from the Bund will impose its presence through its various shades of white:

1. The white of the sail between the two façades, a fine patterned sail that gently texturizes the landscape to make it easier for people to seize.

49 Albenaa ءانبلا 49
© Chen Hao © Chen Hao © Chen Hao

2. A total or partial white that provides an unobstructed view over the first two or three metres.

3. The white of the various lights, of the LEDs behind the mirrors.

4. The white of the installations or artworks.

5. The white of the background which is designed to show images and visitors most effectively.

- The western side screen on the Bund side, starting at the walkway, is an actual vision of the Large Glass.

- The western side screen on the Bund side, starting at the walkway, is a joker designed to fascinate the crowd through fresh new images that disrupt the view of Shanghai and the Bund.

- The western side screen on the Bund side is a testament to the art of the 21st century.

48 Albenaa ءانبلا 48 دنوب ياهغنش ةقطنم ىلع تلالاطإ جرالخا ىلع تاحتفلا رفوتس امك ةيعيبط ةيولع ةءاضإب ةهدرلا يف ضرعلا ةحاسمو تاغارفلاو فرغلا ءاضت © Chen Hao
ةركفلل ةضيرعلا طوطلخا
ةسيئرلا ةهجاولا ةيفللخا ةهجاولا عاطق عاطق رهنلا ىلع ةلطلما ) ريبكلا جاجزلا ( ةيفللخا ةيجاجزلا ةهجاولا ةيعيبطلا ةءاضلإل ةيلوط تاحتف © Chen
© Chen Hao ©
لابقتسلاا وهب 51 Albenaa ءانبلا 51
Hao
Chen Hao
يناثلا رودلا لولأا رودلا يضرلأا رودلا يضرأ تتح رودلا ثلاثلا رودلا عبارلا رودلا حطسلا ماعلا عقولما 50 Albenaa ءانبلا 50
وبغناوه رهن ىلع برغلا نم هدحيو دنوب ياهغنش ةقطنم يف فحتلما عقي 53 Albenaa ءانبلا 53
52 Albenaa ءانبلا 52
© Chen Hao
55 Albenaa ءانبلا 55 ناهوو ةنيدم يف افورعم املعم هنم لعجي امم ةايحلل دهاشمك جرالخا ىلع لطت ةريبك تاحتفب ىنبلما زيمتي
54 Albenaa ءانبلا 54 © MVRDV بتكلل يداو ناهوو ةبتكم ةيزكرم ةبتكم ميمصت ةقباسمب ممصملا بتكملا زافحبصت نأ عقوتملا نمو .ةينيصلا ناهوو ةنيدم يف ةديدج . نيصلا يف تابتكملا ربكأ نم ةدحاو نيب عبرم رتم فلأ 140 هتحاسم غلبت يذلا عورشملا عمجيتاحاسم عم تابتكملل ةيديلقتلا ريغو ةيديلقتلا فئاظولا . ثحبلاو ةءارقلاو ةشيعملل وهبو ةساردلل ةعونتم لمعت ةريبك تاحتف ثلاث ربع هطيحمب ىنبملا لصتييثلاث ىنبملا لكش لفتحي ، ىنبملا جراخ ةايحلل دهاشمك ءاقتلا دنع ”ةريحب ةئاملا تاذ“ ناهوو ةنيدم عقومب تاهجاولا . ناهوو يف افورعم اديدج املعم هلعجي امم ، نيرهن رسج راوجب ةياغلل يئرم عقوم يف ناهوو ةبتكم عقتعمجتسو ،ناهوو يف ةيزكرملا لامعلأا ةقطنم يف Baofeng يملعلا راكتبلاا نع لاضف ، تامولعملا تامدخو تايبدلأا نيب .ثحبلا دراومو يجولونكتلاو ةمدخ ماظن نيسحت ىلع ةديدجلا ةبتكملا لمعتس امكةيفيظولا تاجايتحلاا ةيبلتو ، ناهوو يف ةماعلا تامولعملا داصتقلاا زيزعت عم ، راكتبلااو لصاوتلاو ملعتلاو ةءارقلل .ةنيدملل يرضحلا لفتحيو ، ناهوو ةيفارغج نم هتاراشإ ءانبلا موهفم ذخأييف اضيأ نكلو طقف لكشلا يف سيل راهنلأل ةيتحنلا ةوقلاب للاخ نم حمليو .هئانب داومو ةيغارفلا هتازيممو يلخادلا هعباط .ةطيحملا ينابملا ىلإ ةفلتخملا ىنبملا تاعافترا
books
LIBRARY : ممصملا Architect : MVRDV نيصلا ،ناهوو : عقوملا 2م 140،000 : ةيلامجلاا ةحاسملا م 2023 : ةقباسملا نم ءاهتنلإا ةبتكلما طيحم ىلع لطت يتلا ةريبكلا تاحتفلا ةركفل يحيضوت مسر
A canyon of
: WUHAN
57 Albenaa ءانبلا 57 اهتلاامعتساو اهتانوكمو ةبتكملل ةفلتخلما تايوتسلما حضوي مسر تامولعلما تامدخو تايبدلأا ينب عمتجو ،ناهوو يف ةيزكرلما لامعلأا ةقطنم يف Baofeng رسج راوجب ةياغلل يئرم عقوم يف ناهوو ةبتكم عقت © MVRDV
56 Albenaa ءانبلا 56 ةفلتخم تاهاجتا يف ةريثم تلالاطإ 3 تاذ ذفاون ثلاث دجوت:لاصفنم ارظنم ةحتف لك لوانتت .ةنيدملا دصرت ىنبملا نم امنيب ؛ ةيزكرملا لامعلأا ةقطنم ىلع لطت ذفاونلا لوطأف لباقملا هزتنملا ىلع ةيماروناب ةعساو ةضفخنم ةذفان لطت امم ، ةرواجملا ةحاسلا قناعت ةينحنم ةليوط ةذفان دجوت امك .لخادلا يف ةيويحلا ةطشنلأا نع ةحمل ةراملل رفوي راهنلأا ءاقتلا دنع ناهوو عقوم ةركف يلخادلا موهفملا ززعي.ةنيدملل ةيعيبطلا رظانملا اهب طيحت يتلا ةيتحنلا طوطخلا بتكلل ةجردتملا تافرشلا رضحتستنكمي يضرلأا قباطلا يف ةعساو ةماع ةحاسم عم ، يداولل .مويلا لاوط اهب عاتمتسلاا راوزلل تافرشلا لخاد ةحنجلأا هبشت يتلا تاغارفلا يوتحتقطانملل يداولا ددحيامك ةبتكملل ةفلتخملا جماربلا ىلع ةءارق قطانم نم ؛اهلكش ةيلخادلا براجتلاو ةفلتخملا نم ءزجك بتك ففرأو ، ةيعامج لمع قطانمو ، ةئداه لثمت ةيروحم ةحاسم ةءارقلا يداو دعيو ، ،يلخادلا ليكشتلا . ىنبملا لخاد ةفرعملا عمجتوءاقتلا :MVRDV ةكرشل سسؤملا كيرشلا ، جير ناف بوكاج لوقي.”اعم ةيعيبطلا رظانملا رصانع ضعب عمتجت لوخدلا دنع“ .ةساردلل اهمادختسا نكمي يتلا باضهلا نم ةلسلس كانهف ناكم ىلإ تمدقت املكو .ةيبعش رثكلأا قطانملا اهربكأ يبلي امم ، اءوده رثكأ ةءارقلاو ةساردلا تاحاسم تناك ىلعأ .راوزلا تاجايتحا انيدلف :ماهللال امهم اردصم ناهوو سيراضت تناك دقل،ىرخأ ةيحان نمو ،تاريحبلا وحن ةيقفلأا ةيؤرلا ةركف ةيحان نم هذه .ةيلاعلا تاعافترلاا تاذ ةنيدملا وحن يسأر رظنم انيدل . ةركفلا هذه ىلعىنبملا زكري ، ةنيدملا لباقم ةعيبطلا يه .“ عمجتلل اريثمو ابذاج اناكم هلعجي اذه نأ دقتعأو ةقيدحلا يفو .لخادلا ىلإ راوزلا ريبكلا يلخادلا يداولا بذجياهرودب ققحت ةديج ةيخانم فورظ ةعارزلا ققحتس ةطيحملا راجشلأا رفوتس ثيح ،ديعبلا ىدملا ىلع ةمادتسم ةنايص سمشلا ةعشلأ ضرعتت يتلا قطانملا يف ديربتلا ةليوطلا ىنبملا نم يبرغلا يلامشلا نكرلا للظيس امك ، ةديدشلا ةيسيئرلا ةماعلا قطانملا ىلع ظفاحتو ةنايصلا نم ليلقلا ةيلصلأا تاتابنلا بلطتتهايم ةيفصت ىلع لمعت يهو ، ماعلا رادم ىلع اهتيويح .فيصلا رهشأ يف ةيرارحلا رزجلا ريثأت نم للقتو ، راطملأا ةقاطلا كلاهتسا ليلقتل تاءارجلإا نم ديدعلا ذاختا متتارساك ىنبملا ةهجاو لمتشت ثيح .راحلا ناهوو خانم يف مامأ تارساكلا مجحديزيو ، بتكلا فوفر هبشت سمش . ليلظتلا نم ردق ربكأ ىلإ جاتحت يتلا تاحتفلا ريفوتل اريبك اقمع لكشتل فلخلل ىنبملا ةدعاق دترت،ةيعيبطلا ةيوهتلا ريفوتل ةيكذ قرطب ذفاونلا حتفتو . للاظلا ،ةقاطلا تابلطتم ليلقتل لاعف ةرانإ ماظندوجو ىلإ ةفاضلإاب ةبتكملا فقسأ يف ةجمدملا ةيسمشلا حاوللأا دوزت امنيب . ةددجتملا ةقاطلاب ىنبملا ةيلخادلا تلاامعتسلاا نم بناج حضوي لخدلما ةهج نم يروظنم مسر ةيلخادلا تلاامعتسلاا نم بناج حضوي ةيفللخا ةهلجا نم يروظنم مسر © Sora Images فقسلا تاءانحنلا اعبت ةفوفصلما ةيسمشلا حاوللأاو ىنبلما فقس ليصافت نم بناج

From the Architect Report: MVRDV has won the competition to design a new central library for Wuhan, China. Poised to become one of the largest libraries in China, the 140,000-square-metre project combines traditional and non-traditional functions with diverse study, living room, reading, and studio spaces. The building connects to its surroundings via three large openings that will act as visual displays of life inside the building, sparking curiosity and intrigue. This distinctive, three-faced flowing shape celebrates the position of the “city of 100 lakes” at the confluence of two rivers, and will become a new recognisable landmark for Wuhan.Located at a highly visible site next to the Baofeng overpass in Wuhan’s Central Business District, the Wuhan Library will integrate literature, information services, as well as scientific and technological innovation and research resources.

The new library will improve Wuhan’s public information service system, and meet functional needs in terms of reading, learning, communication, and innovation, while enhancing the city’s urban economy.The building concept takes its cues from the geography of Wuhan, celebrating the sculptural force of the rivers not only in its form but also in its interior character, spatial qualities, and materials. It references the different heights of the surrounding buildings in its form, with three dramatic picture windows facing the city at different vantage points. Each opening addresses a discrete view: the tallest of the three windows faces the CBD’s skyline; a low, wide window offers panoramic views of the park opposite; and a long, curving window embraces the adjacent plaza, offering passers-by a glimpse of the vibrancy inside.

The interior concept further reinforces the notion of Wuhan’s position at the confluence of rivers, surrounded by the city landscape. The stepped terraces of books invoke the sculptural lines of a canyon, with a broad ground-floor public space that visitors can enjoy throughout the day. Pavilion-like spaces on the terraces contain the library’s different programme and the canyon gives shape to different zones and interior experiences, with quiet reading areas, group work areas, and bookshelves as part of its topography. The reading canyon is a pivotal space, and represents a confluence of knowledge coming together inside the building.

“Going inside, certain landscape elements come together,” says Jacob van Rijs, founding partner of MVRDV. “There is a series of plateaus that can be used for studying. The biggest one will be for the more popular areas. The higher up you go, the quieter the study and reading spaces will be, serving the needs of visitors. The topography of Wuhan was an important source of inspiration: we have this idea of a horizontal view towards the lakes and on the other hand, we have this more vertical view towards the city with the high rises. This is nature versus the city, and the building is somehow focusing on this. I think this makes it an exciting place to gather.”At an urban level, the grand interior canyon draws visitors inside. In the surrounding park, planting will complement Wuhan’s climate conditions to ensure long-term sustainable maintenance. Tall trees provide cooling in areas that experience intense sunlight, while the main public areas are shaded by the northwest corner of the building. Native vegetation requires little maintenance and maintains a year-round vibrancy, while filtering the water in the rainy season and reducing the heat island effect during hot summer months.The building’s façade incorporates louvres in a bookshelflike pattern, communicating the building’s function as they shade the interior. These louvres are more densely packed in the places that need the most shade from the sun; meanwhile, the building’s plinth is set back to create large cantilevers that offer shade. Openable elements for natural ventilation, combined with the use of smart devices and an efficient lighting system further reduce the building’s energy demands, while solar panels incorporated into the library’s flowing roof shapes provide the building with renewable energy.

59 Albenaa ءانبلا 59 مسجلما نم بناج
58 Albenaa ءانبلا 58 ميمصتلا ريوطت تاوطخ ةبتكلما ىنبم لخاد بتكلا يداو ةركف حضوي مسجم
61 Albenaa ءانبلا 61 © MVRDV © MVRDV اهطيحبم اهتقلاعو ةبتكلما لكش دجوت ةفلتخم ريظانم
60 Albenaa ءانبلا 60 © Sora Images
63 Albenaa ءانبلا 63 © MVRDV © MVRDV ةبتكلما مسجلم جرالخا نم ةفلتخم تاطقل
62 Albenaa ءانبلا 62 © MVRDV © MVRDV ةيلخادلا تاغارفلا ميمصت حضوت ةيلخاد ريظانم

Turn static files into dynamic content formats.

Create a flipbook
Issuu converts static files into: digital portfolios, online yearbooks, online catalogs, digital photo albums and more. Sign up and create your flipbook.
مباني ثقافية جاذبة by مجلة البناء - Issuu