
1 minute read
TECHKEYS DECKS


Advertisement





Studio Guide
Assoc. Prof. Thyagarajan C
Asst. Prof. Gregory M Anto
Prof. Srinivas S G
Prof. Manoj Ladhad
Asst. Prof. Surendran Alone
Studio Brief
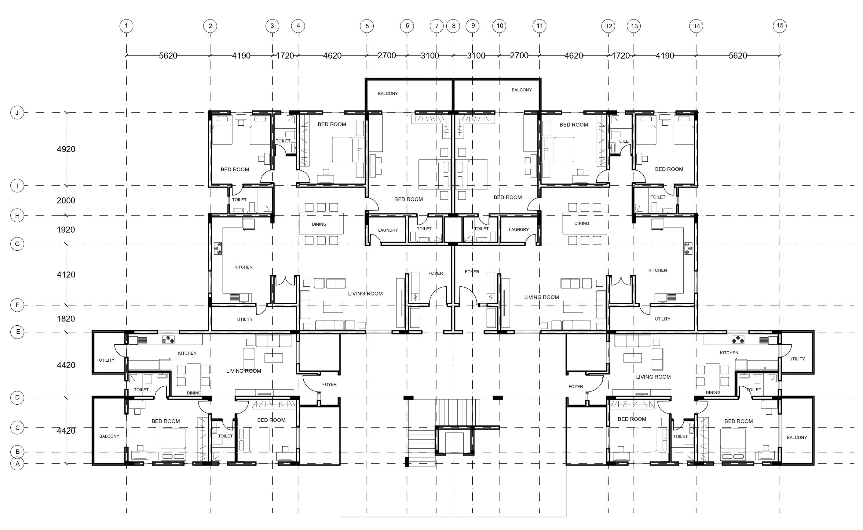
The studio places a strong emphasis on accurately converting design drawings into clear and accurate drawings that would make execution of work on site easier. The goal was to comprehend how clearly a project should be described so that it would be simple to read and carry out on the site. The project chosen here is housing from semester 4. The need for well thought of details and skill of representing that through drawings such as unit plans, electrical layouts, toilet drawings, kitchen layouts, and wall sections etc is focused upon.
Working Drawings Housing


Column Marking
Excavation Drawing



General Notes
• · Grade of concrete - M20
• · Mix ratio –
• Cement : Sand : Aggregates - 1: 1.5 :3
• · Peripheral steel - 16mm
• · Inner steel - 12mm
BEAM
Slab Layout


Project Title : Techkey’s Decks






Project Title : Techkey’s Decks











Project Title : Techkey’s Decks







