Revit portfolio

Page 1


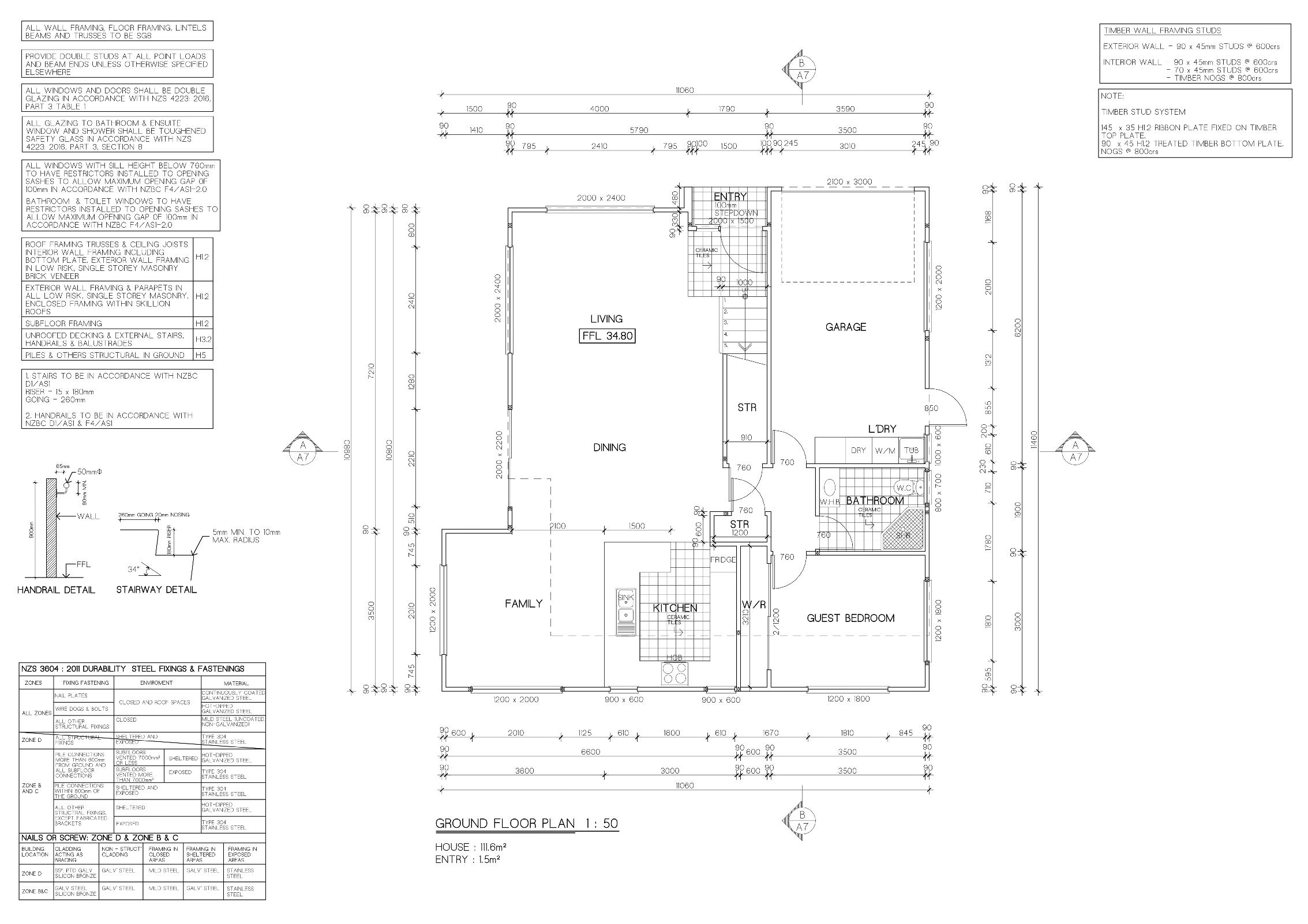
TRONGJITWIKRAI RESIDENCE

COMPANY: EMACS GROUP LTD.

LOCATION: PERTH, DALKEITH CITY, WA.

PROJECT TYPE: 3STAR RESIDENTIAL TOWN HOUSE.

SOFTWARE: AUTODESK REVIT (2020)

PROJECT DESCRIPTION:

This was a high-end residential project which was done during my work experience in New Zealand for an Australian client as a part of our office projects. The shown drawing is the Site Plan for the entire residence design. The Site plan consists of all the necessary details as per the council standards and guidelines.

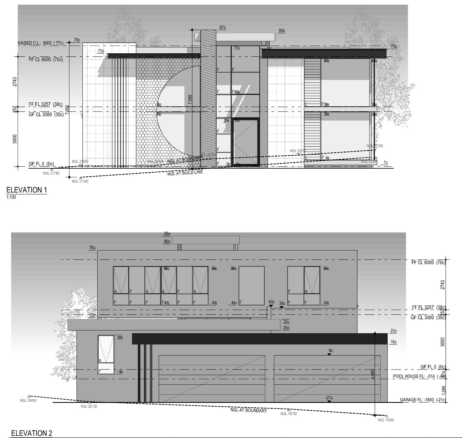
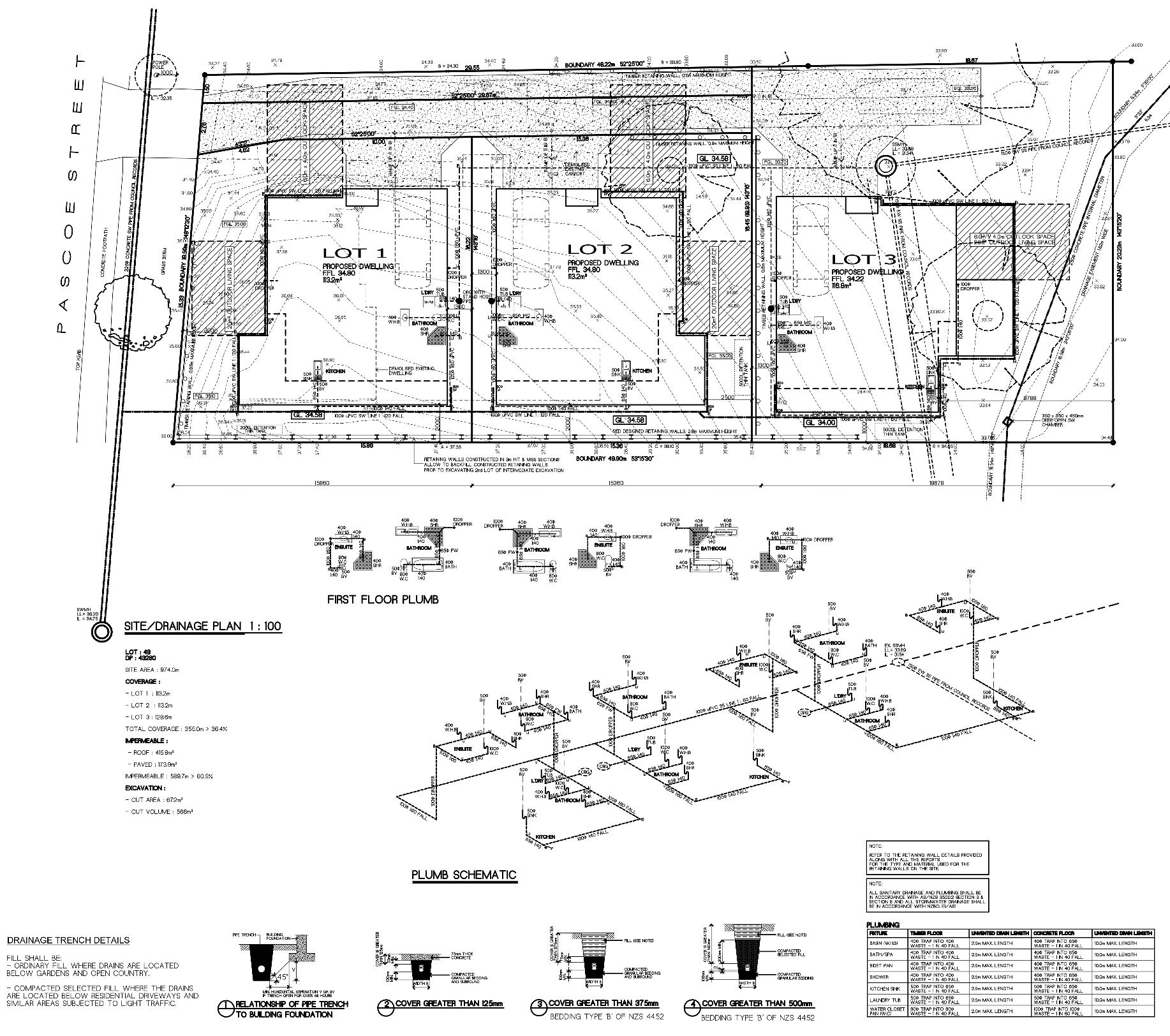
PROJECT 02

COMPANY: VISTAARCHIECTS LTD.

LOCATION:AUCKLAND, NEW ZEALAND.

PROJECT TYPE: RESIDENTIAL DEVELOPMENT.

SOFTWARE:AUTODESK REVIT (2021)

PROJECT DESCRIPTION:

This was a residential development project which was done during my work experience in New Zealand for a client as a part of our office projects. The shown drawing is the Site Plan for the entire residence design. The Site plan consists of all the necessary details as per the Auckland council standards and guidelines. The client had a land area about 974 sqm which was sub-divided and designed into 3 lots which consists of 3 residences.

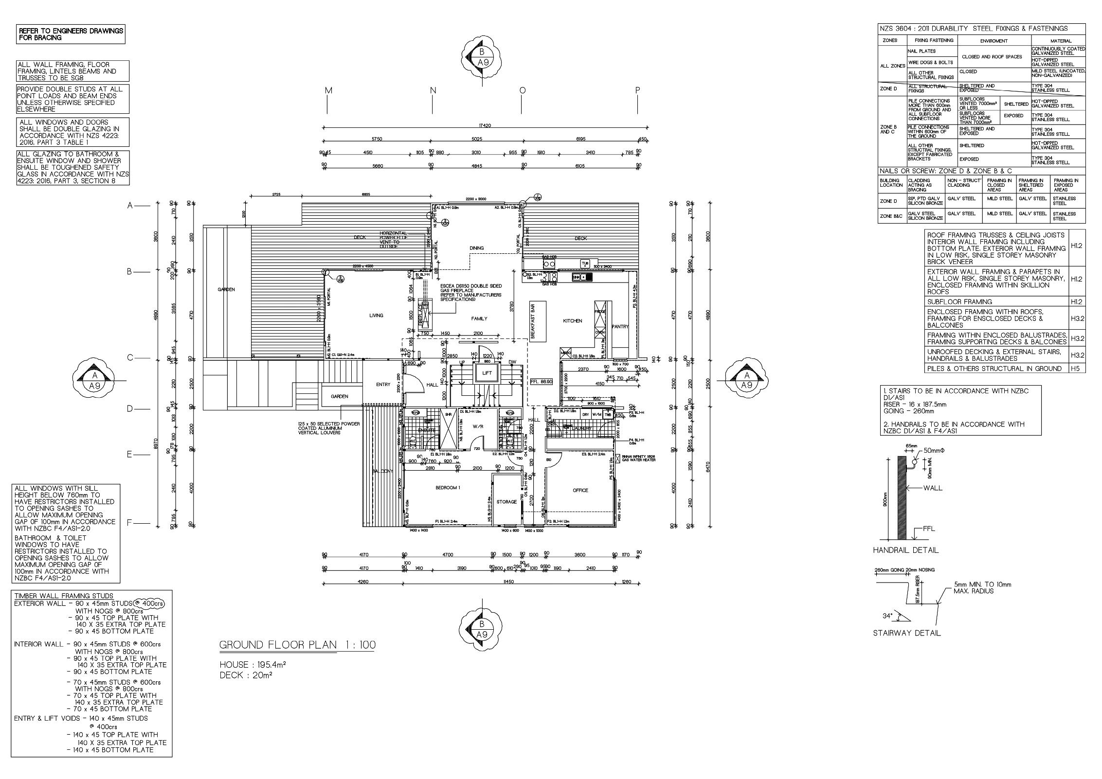
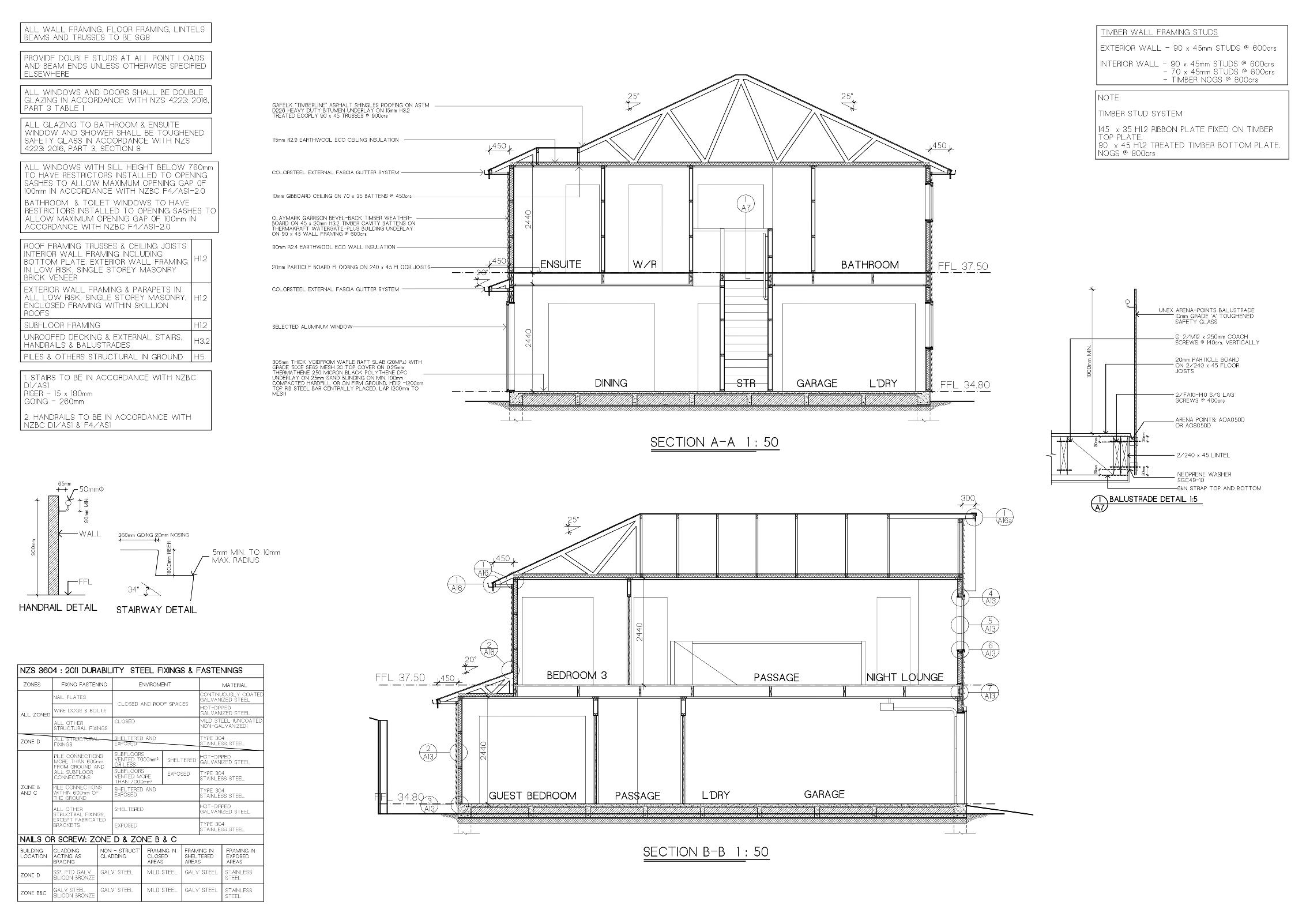
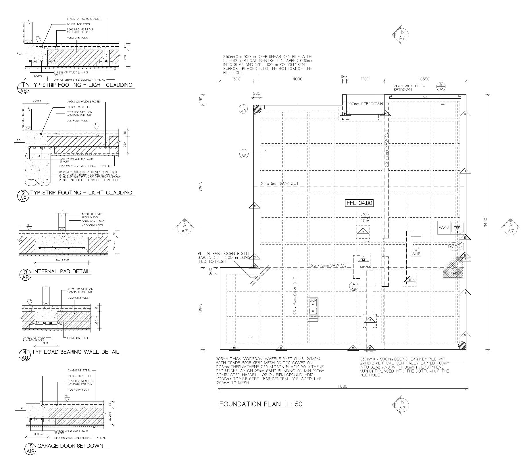
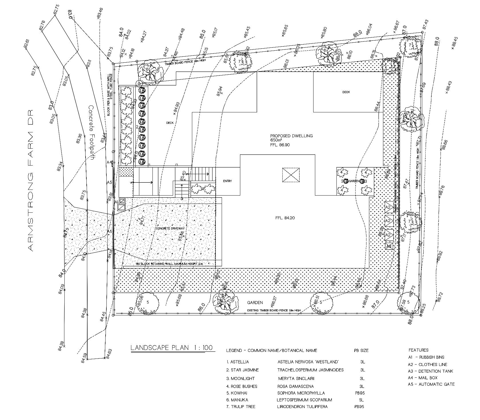
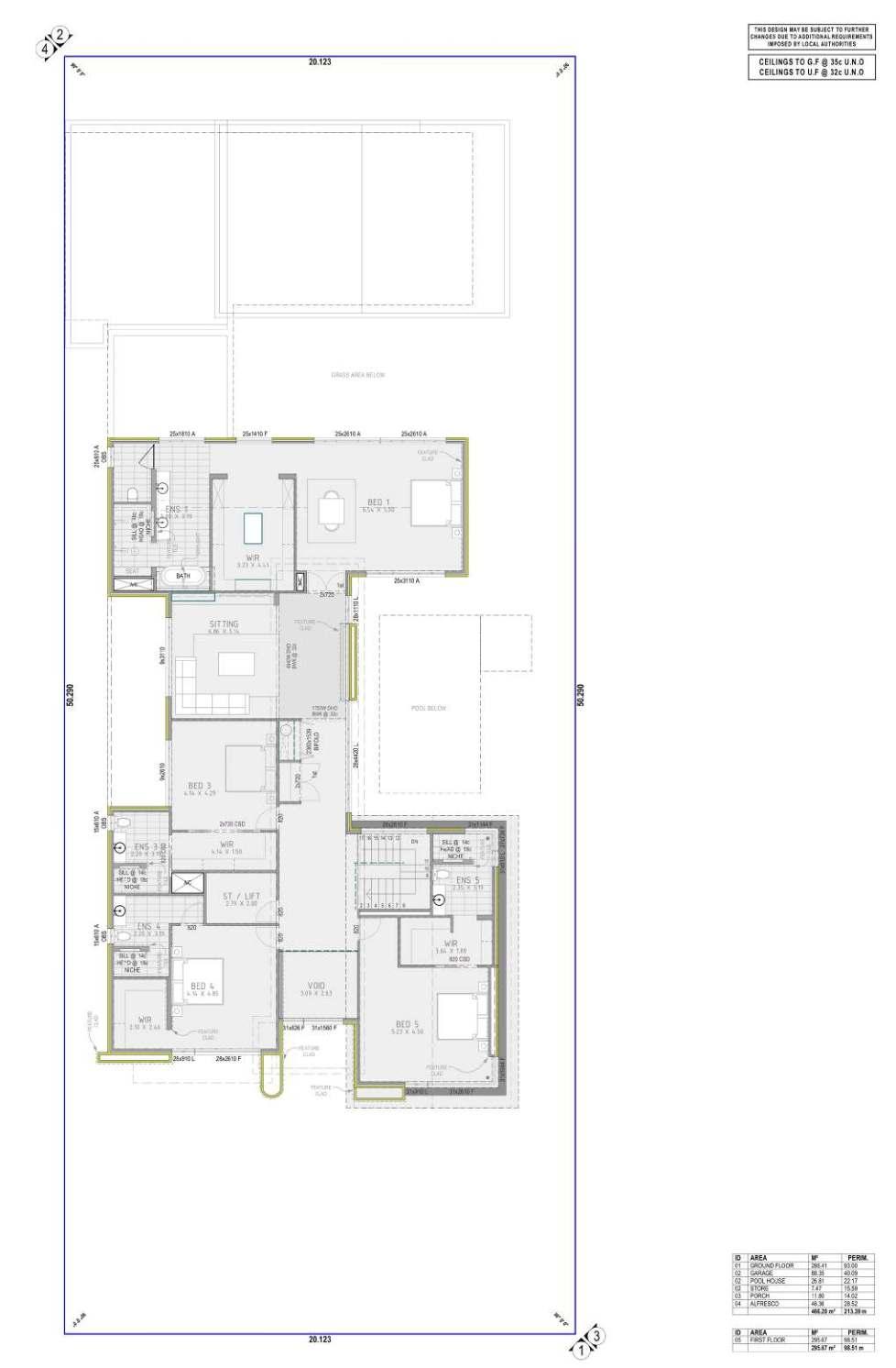
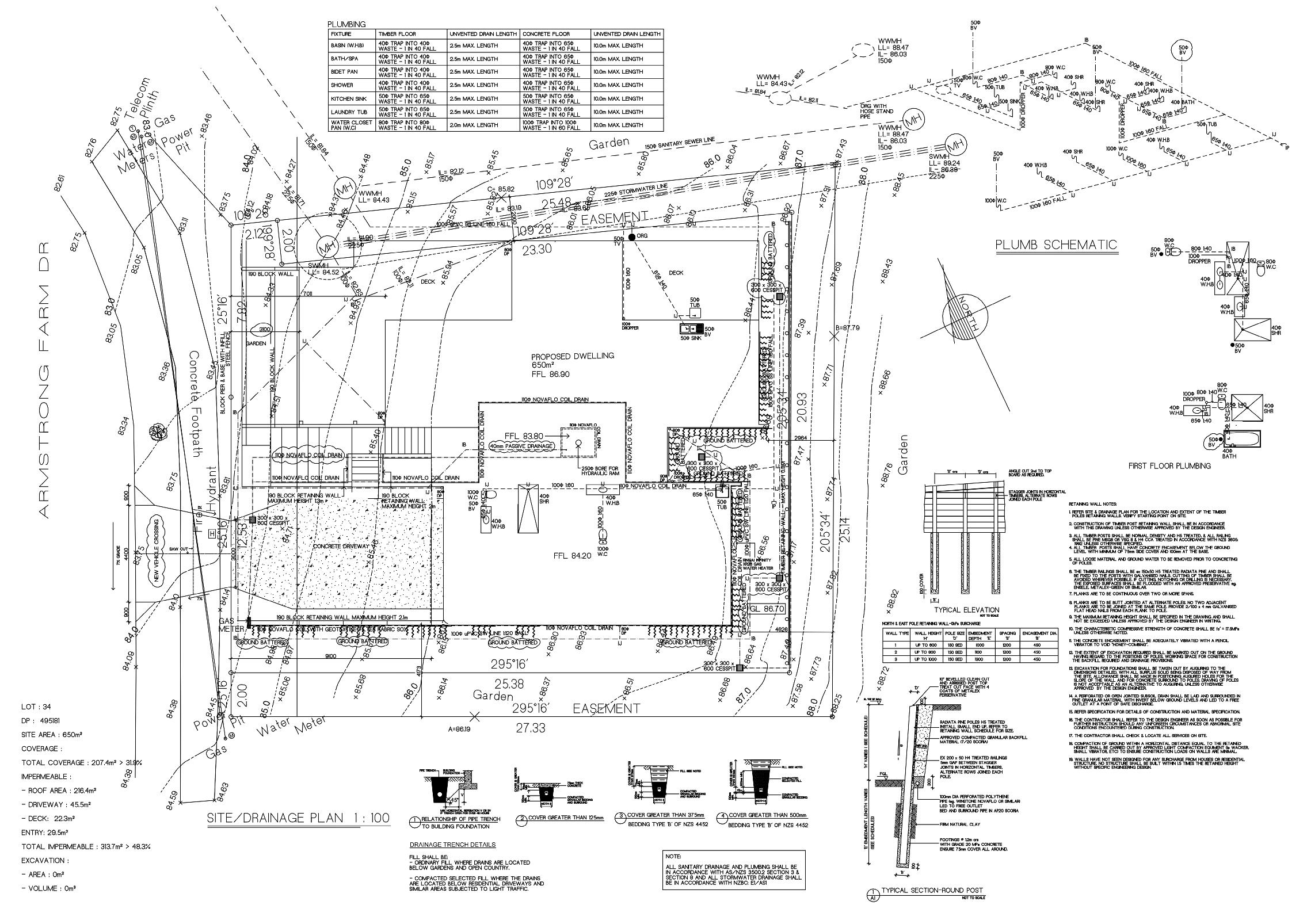
PROJECT 03 DETAILS

MR. ARVIN PATEL RESIDENCE

COMPANY: VISTAARCHITECTS LTD.

LOCATION:AUCKLAND, NEW ZEALAND.

PROJECT TYPE: RESIDENTIAL.

SOFTWARE: REVIT (2021-2022)

PROJECT DESCRIPTION:

This was a residential development project which was done during my work experience in New Zealand for a client as a part of our office projects.The shown drawing is the Section Plan for the entire residence design. The Site plan on the next sheet and other sheets consists of all the necessary details on the floor plan as per the Auckland council standards and guidelines.The client had a land area about 650 sqm which was sub-divided and designed into a residence plot with all new amenities.

Turn static files into dynamic content formats.

Create a flipbook
Issuu converts static files into: digital portfolios, online yearbooks, online catalogs, digital photo albums and more. Sign up and create your flipbook.