AGL | Teaching

Page 1

TEACHING | PEDAGOGY

Portfolio Ana Gabriela Loayza

M.Arch II | Harvard GSD

ARCHITECT | TECHNOLOGIST | EDUCATOR ANA GABRIELA LOAYZA

aga.loayza@gmail.com +1 (617) 642 6899

Ana is an architect exploring combinations of design, science, and technology for the built environment. Her perspective of architecture as inhabitable systems invites research in human-machine interactions, computation, and engineering in cross-scalar projects.

She is part-time faculty at the Architecture Department of Rhode Island School of Design. She is also a thesis research faculty at Universidad Peruana de Ciencias Aplicadas.

Driven professional with international experience in research and project development (6+ years), having practised at renowned architecture firms, such as Ateliers Jean Nouvel. Engaged in independent practice, she has worked in the design of residential, corporate, social, and installation projects.

She is recipient of different academic and professional awards.

She loves the ocean and surfing.

agloayza.com

ADVANCED DESIGN STUDIO SERIES

The Advanced Studio sequence confronts the organism and the machine, two entities of different origin: one natural and the other man-made. The studio places architecture and design processes in between this conceptual confrontation, to critically absorb, analyze and apply characteristics from both categories into architectural design.

This epistemological window to the organism and the machine, will drive the search for new alternative futures across typologies, addressing an urban-architecture scale, rethinking psico-social scenarios, piecing together the built environment, and extending sustainable interactions internally and externally.

ARCHITECTURE SUPERABSORBED
Artifact: Information network simulator Based on Druzhba Sanatorium Changsong Li

ARTIFACT

An hybrid building exploring organic or mechanical functions. This excercise familiarizes the student with technical and organic language that is later appied into the studio project.

[Up]

Artifact: Wood processing U Based on Toyo Ito U house Alex Wenstrup

[Left]

Artifact: Belt, exhibition, move. Based on NY Guggenheim museum Mengfei Sun

[Right]

Artifact: Hyper-specific inflammation facade. Farm and greenhouse. David Swan

RHODE ISLAND SCHOOL OF DESIGN

Department of Architecture spring 2022

MATTERS OF ORGANISM AND MACHINES

SUPERABSORBED I

ADVANCED DESIGN STUDIO

Option Studio | 13 students.

Level: Master of Architecture, Bachelor of Architecture.

Following Superabsorbed’s conceptual thread, the studio places design processes in between the ideas of ‘organsims’ and ‘machines’, to critically absorb and apply characteristics from any of both categories into the architectural search for new production spaces in Providence, RI.

Through abstraction, research, and combinatory operations, the class engages in notions of urban-architecture interventions, sustainability, production processes and use of AI computational logics. The final project explores form that host innovative lines of production for food, composting, distribution, art, etc. within the scope of light industry facilities and community led hubs.

David Swan & Sneha Lakshmi (M.Arch 23) The Kitchen Sink and Everything Else

THE KITCHEN SINK AND EVERYTHING ELSE

The understanding of slabs as machines takes physical form in a plug-and-play strategy, where kitchen components are inserted and/or withdrawn from the slab, following vendors’ production and equipment needs. StyleGAN is used in a generative logic to tests different spatial distributions and equipment allocation. All plugging modules join a base slab that unifies all floors.

David Swan & Sneha Lakshmi (M.Arch 23) A ghost kitchen hub. Provdence, RI

The connector slab, however, is not a standardized element, but it is the result of a negotiation between functional needs of regularity, workers and visitors promenades, and the fluid insertion of outdoor space into the indoor space.

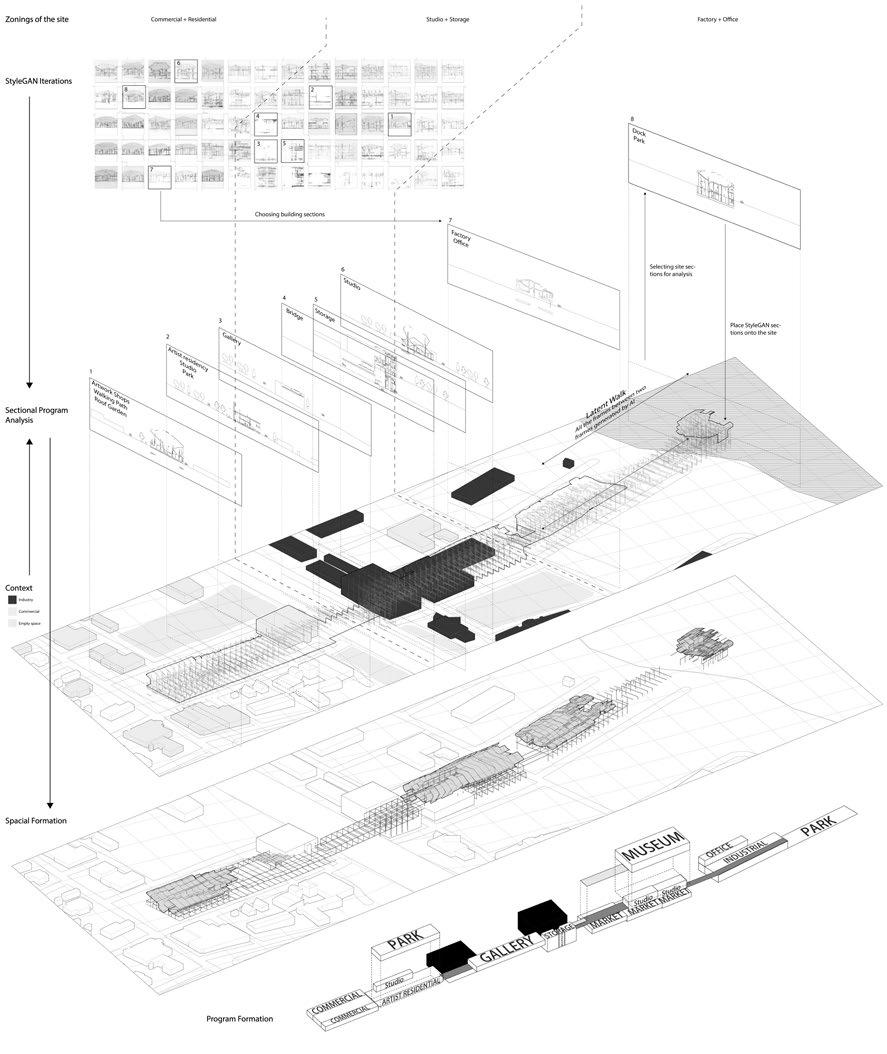
GLASS FACTORY. HYBRIDIZED.

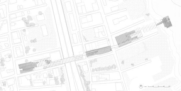
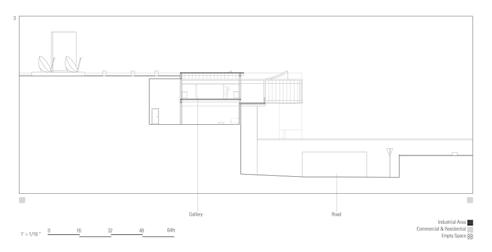
Assisted through Artificial Intelligence, a sequence of sections is generated with StyleGan 2 from the learning and merging of thousands of sections (commercial + residential + industrial + public spaces). From the training results, generated images are obtained by deconstructing video as key-frames, identified as potential responses to urban conditions, and then matched to those existing sectional conditions of the city. This condition-to-response logic converts time frames into spatial frames and AI sections into architecture, later delivering an elongated mix-use block that penetrates through the residential, commercial and industrial zones, connecting them to the neighborhood

Changons Li, Lyin Chen, Xiao Yang (M.Arch 23) Glass recycling plant. Provdence, RI

The building displays two structural expressions: framework + fluent curving volume. The frame structures the building regularly and the fluent curving acts as a parasite, which provides a diverse spatial experience and public space. Three large “parasites” concentrate on the three main programs: commercial and residential, artists’ studios, and industrial recycling. They function as lounge, hallway, and exhibition spaces, attracting people and bring the local into this mix-use factory.

PROCESSING DEATH

This Death Processing facility mechanically moves the deceased across the linear process of Natural Organic Reduction; simultaneously, family and visitors experience the site as an organic space, where the landscape is experienced as a personal and emotional process.

Ella Knigh, Aliah Werth Body Compost Plant. Providence, RI

Image training inspired by local views resulted in a series of experiences that could pair appropriately with different programs across the site. We interpreted one such image as the juxtaposition of soil behind glass – resulting in a programmed space where over many years, the soil mound would grow. The project has potential to become an active piece of land art for as long as the facility operates.

ALGAE ARCHITECTURES: GENERATIVE LANDSCAPE

The project pursues two lines of inquiry. First, it questions the seasonal response of seaweed processing for textile production within an elongated typology, as a lightweight element in a peninsula. The second line questions how AI can be used to generate a landscape for the algae to grow, supported by stylegan and Pix2Pix simulations.

Alez Wenstrup, Zane Abu Hamdan Algae-based textile plant. Providence, RI

The encounter of architectural intuition and computational logic, of controlled form as architecture and organic form as landscape, happens through the same base unit, manipulated to achieve different arrangements.

RHODE ISLAND SCHOOL OF DESIGN Department of Architecture FALL 2022

MACHINE. ASSEMBLAGE.

SUPERABSORBED II

ADVANCED DESIGN STUDIO

Option Studio | 12 students.

Level: Master of Architecture, Bachelor of Architecture.

The studio places Architecture as subject to philosophical, historical, and technological notions around the Machine. Operations, logics, and associations to this category will be brought into the studio to drive disciplinary pursuits of Architecture as a system. Machines and Industrial Architecture will be the studio’s laboratory, as we explore spaces for production and work in the 21st century.

Topics on systems theory, industrial archeology, production within urban life, and elements of technology will be addressed in both research and design stages. In parallel, students will engage in a critical use of Machine Learning (AI) and Augmented Reality (AR), as computational tools to assist their design logics and proposals.

[
work in progress
] [
By: Abigail Zola, tian Li, George Acosta, jin Chung, Quinta Fenghe Liao, Skylar Perez.
]

Department of Architecture spring 2022

RHODE ISLAND SCHOOL OF DESIGN MODELS

3D CULTURE AND DIGITAL MEDIA

ARCHITECTURE COURSE

Option Studio assigned by preference | 13 students. Level: Graduate. Master of Architecture Co-teach with Amelyn Ng and Aaron Tobey

This course centers around the digital model as a multivalent medium for architectural discourse, shifting from the representation of built form and delimitations of the architectural software.

This course recognizes that expertise in multiple digital modeling software -from Rhino to Building Information Modeling (BIM)—is as imperative as are skills to manipulate, undermine, link, automate and hack the media dominating the discipline of architecture.

Through a series of creative prompts engaging the computational principles that underpin all digital modeling software, students are encouraged to explore workflows, automation and output between software and material. The course engages the digital model as sample, system, and database as well as continually interrogates the translation of information across model and image.

PHASE I: UNMODELING THE HOME

For the first stage, houses in Providence became points of departure for a series of artifacts that sought to question the assumptions, narratives and politics around the home. Intensive 3D-work challenged the idea of the model home and the status of the architectural model as an “ideal” or canonical form. Models themselves were treated as subjective documents that dive into realms of abstraction and dialogue with reality.

[img. up]

Home dualisms by Minho Kwon

How to turn a house into a home. Tayu Tyng Eclectic storylines Jasmine Flowers Farmhouse fiction Gregory Goldstone Wedding wraps Aleza Epstein

PHASE II: UNMODELING THE MODEL

The second half focused on developing 3D works and images that challenge the status of the model: its techniques and processes. What kinds of conventions, assumptions, oddities, and forms of authorship are propagated by our analog and digital tools? Can a model index its own making process? Can the model itself become a counter-inventory, an instruction or evidentiary object, a producer of other knowledge?

[img. up] work by Jazmine Flowers and Jacob Boatman

This work addresses the encounter of professional work and personal conflicts contextualized by privatized labor. In a both analogue and digital practice simulation, topics such as resolution, file corruption, body-machine interface, and copyright infringement intersect a two-people workflow that resembles a battleship-cum dynamic, wherein parties take turns processing model files, guarding the non-disclosure of the operations registrar until the end, and going through various design softwares in an effort to make the model and its digital origins obvious.

Exchange & Sabotage

A gender-neutral materiality

A pen ploter negotiation Felicia Neuhof & Julia Woznicki

Using non-convenional methods for 3d modeling, such as 3d scanning, hand drawing, picture editing, digital collage, the artifacts question gender associations to documentation and tectonics of a home. Preserving the preference for meshes over nurbs, the work argues for a gender neutral model through the virtues of inexactitud, non-control, entrophic quads, and dependancy of unperfect models.

Aleza Epstein & Gregory Goldstone

The interpretation of a Pen plotter as a model and machine sparks a series of cross-operations between human authors and ploter automation, registed in collages, drawings, and photomontages.

CORE TRACK UPC

UNIVERSIDAD PERUANA DE CIENCIAS APLICADAS

2015-2017. LIMA, PERU

The Core Studio IV: Architecture and Function introduced technical, logical and creative aspect of function in a public building, while addressing the revitalization of neglected or potential public spaces in the city.

UNIVERSIDAD PERUANA DE CIENCIAS APLICADAS - PERU

School of Architecture 2015 - 2017

CORE STUDIO IV ARCHITECTURE AND FUNCTION

BACHELOR OF ARCHITECTURE DEGREE | 2ND YEAR

12 students class

Level: Undergraduate. Bachelor of Architecture. 5 years.

This core studio inquires in Lima’s public realm notions and the revitalization of public space from the lenses of the urban-architecture scale, an approach that focuses in the connection between the urban space and the architectural object, using landscaping as bridge.

The studio is runned under the format of architecture competition with two stages in which the learning experience drives the student from the analytical to the conceptual, from the generic to the particular, from team to individual work.

Stage I : A park (Revitalization of urban spaces into Urban Commons)

Stage II: A public building within the Park

Following an urban analysis stage with focus in areas with unexplored potential, students join in teams to develop the first stage project, a public park with a program and theme that varies each semester. The second stage responds to the schematical design of one of

The Park, as a public space is proposed as a variable theme along semesters. Teams would address issues of landscape and image of culture, national institutions, finance, arts, etc.

The migration museum project formalized historical and iconic elements from different ethnic groups that arrived to Peru during the 19th and early 20th century.

[1] Rural migration museum [2] Japenese migration museum

The Peruvian Agency of Tourism project seeked for a response to institutional image needs regarding the internal and external perceptions of a country.

[3] PromPeru Agency

A Cultural Center conveys the dynamics of a commercial, residential, and historic district of high intensity transit.

[ Above ] PromPeru Institutional Building. By F. Alburqueque.

[ Below ] Cultural Center. By Li Unancha

[Left Below ] PromPeru Institutional Building. By Vitor.

UNIVERSIDAD PERUANA DE CIENCIAS APLICADAS - PERU

School of Architecture 2022-01

THESIS INVESTIGATION I & II FRAMEWORKS FOR UNDERGRADUATE THESIS

BACHELOR OF ARCHITECTURE DEGREE | 5TH YEAR

Mandatory for the Architecture program | Classes of 12 students. Level: Undergraduate Bachelor of Architecture. 5 years.

This course is part of Bacherlor of Architecture program and foresees the conceptual, technical, normative and contextual aspects to consider prior to the design stage of the architecture thesis project.

The thesis formualtion course navigates the ideation process departing from personal motivations and explorative intentions, within the framework of planning, analysis and sythesis.

TOPICS

Some of the themes advised during 2022:

Health Gerontology and Geriatric Residence for Elder groups with emphasis in Permeable Architecture - Huanuco, Peru.

Flexible Architecture Applications in the Design of a Regular Basic Primary and Secondary School in Carabayllo - Lima, Peru.

Mental Health Care Facility at Villa El Salvador - Lima, Peru

Housing Education

High Density Residential Block

Productive housing typologies: a case for the North of Peru.

Shelter for Children victims of violence in Peru’s Hihglands - Ayacucho, Peru.

Permeability in a School of Performing Arts. Comas - Lima.

Public Space: Diffused limits. A district library in Northern Lima. Lima - Peru.

Sensorial Spaces for a Special Education Center - Lima, Peru.

University housing: cases on permeability, translucency, and flexibility - Lima, Peru.

SYSTEMS RESEARCH

. LECTURES

Approaches in architecture as inhabitable systems, compounds of interactive and chaging parts shaping the built environment.

RESEARCH

SYSTEM. SOLUTION. QUESTIONS ON SYSTEM - SOLUTION METHODOLOGIES

Lecture on Systems Theory and Design Lehigh Universtiy, Universidad Peruana de Ciencias Aplicadas, RISD.

This lecture presents design operations from the lenses of Systems and Systems theory through a series of case studies adressing design, architectural, and social responses to time-site specific problems.

This theoretical and practical navigation points to a general understanding of systems thinking, dives into mental models for problem analysis, and deconstruct paradigms about design methodologies.

Does the task of ‘building a better world’ depends on a hopeful optimistic view or on more critical and scientific mindsets?

MACHINE. ARCHITECTURE. STUDIES ON MACHINE PERCEPTIONS IN ARCHITECTURE

Lecture on mechanical windows to Architecture. RISD.

This in-progress research presents coincidences between machine notions and architecture along historic and theoretical windows. It seeks to narrate and dismantle potential logics and associations of mechanization to the discipline, spacemaking, and criteria driving design operations.

AGLOAYZA.COM SEE
MORE

Turn static files into dynamic content formats.

Create a flipbook
Issuu converts static files into: digital portfolios, online yearbooks, online catalogs, digital photo albums and more. Sign up and create your flipbook.
AGL | Teaching by Ana Gabriela Loayza - Issuu