


















![]()



















A shared resource for design professionals and anyone building or renovating. Browse our extensive sample library of over 100sqm, enjoy design education and connect or collaborate with our members The Architecture + Design Library also offers individuals/businesses a space to run their business and/or meet clients.
Our Wanaka Branch has been open for 4 years in October and are now planning our second branch to open in Dunedin in 2025. Long term plan is five Architecture + Design Library’s spread across New Zealand.
VERITY LAWRENCE
Founder + Marketing Director

PENNY CALDER
Founder + Managing Director
REBECCA SIMPSON
Host + Library Manager Wanaka
A) A person/company who supplies +/ installs the products that go into creating a building You will want to ask us about becoming a Brand Member and having your products in display in our architectural library.
B) You require somewhere to work from, utilising an office / desk / meeting room or our training/workshop space.





PUBLIC: Monday to Friday, 9am - 5pm (or make an appointment)
MEMBERS*: 24/7
*Ongoing monthly + annual memberships


Come and check out our space and see if this is a resource you would use.
The ADL team is here to give you a quick tour of our sample library, answer any initial questions you might have and then point you in the right direction for your future use of the Architecture + Design Library. Tues: 10am - 2pm Thurs: 10am - 2pm Sat: 10am - 2pm*
*Every second Saturday of each month






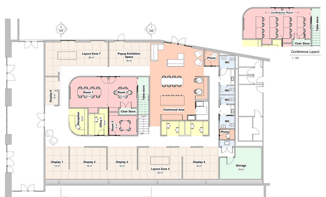
AD Library was designed to provide a shared resource for anyone working in the construction industry as well as anyone building or renovating. Initially a trade only space, we have now opened our doors to the public as specifying professionals are not the only ones struggling to source all the materials required for a build.
We have brought together over 60 brands in our 100 sqm's of sample library to enable a more efficient and enjoyable way to design your home, business, kitchen etc.
Enquire about our various membership options so that you have access to this essential resource for the duration of your project.






It gives you greater access to our sample library.
Use the different areas of the Architecture + Design Library as your client facing space to meet with clients and reps.
Gain colleagues, a support system and a place to share knowledge and business life Become a part of the ADL community.
Be the first to hear about design education and events
A one stop ‘shop’ for your build or renovation.
With a one month membership you get an hours orientation with one of the ADL team to discuss your project or gain product knowledge.
Come and play, get inspired and see your home come to life!
Consult + Month Membership - $175

- $2,070
- $207
- $60







AD Library has over 60 brands using our sample library as their own mini showroom in Wanaka to reach their clients.
We have brought together everything you would require to create a building from the roof to the floor, from the bathroom to the kitchen and everything in between.
It is about getting your brand at the forefront of both professionals and homeowners minds. It is about our members being able to touch, feel and see your products and their finishes in an easy to access space.
Do you want to be part of this new concept? Get in touch today to discuss:
Available space + a Licence to Display
Hosting Design Education at ADL
Using our facilities to meet or host clients and events
Email penny@adlibrary.nz or call 022 175 4933 for more information.





Our Pop Up space at the front of the library is available for brands or individuals to showcase their products or launch a new collection.
A project is not complete without beautiful art so we have a continuous flow of artwork gracing our walls.
If you are interested in being the next Pop Up or Exhibition ask us about available dates!

We have multiple options from temporary use (hot desk) to your own permanent desk that includes storage and credits for meeting rooms.
Daily Rate: $45

Weekly Rate: $175, with $85 worth of meeting room credit p/week. Hot Desk Bundle: 10 passes* for $450
Terms and conditions apply, see website for details
Want a space you can call your own with a member of staff or two? Ask us about office availability or go on our waitlist.
Price: from $250 p/week with $155 worth of meeting room credit p/week


Our meeting room caters for four to twenty people. Audio and visual equipment available.
Need somewhere for a quick catch up with a client over a coffee As a member you have access to lots of areas around the library to host your clients.
Grab 10 passes* for our meeting room for $300
Terms and conditions apply, see website for details
Tea and coffee are always available but if you need something extra let us know and we can send you a list of our local recommendations.
