9-27 Portfolio

Page 1

UPDATED: 9/27/2023 A

DESIGN PORTFOLIO

ADDISON LENTZ

L

CONTENTS

M S O C I A L H O T E L SOCIAL HOTEL

DETAILS, ELEVATIONS, VERTICAL PLANS, ENLARGED PLANS

V TA B L O C K A VTA BLOCK ELEVATIONS, MODULAR UNIT PLANS

C O M PE T I T I O N I M AG E R Y COMPETITION IMAGERY

ADAPTIVE REUSE OF C A SCINA LOSS ANO

HONG KONG CONCEPT

D R AW I N G S DRAWINGS

A B O U T M E ABOUT ME

I DID NOT GROW UP WANTING TO BE AN ARCHITECT. I WAS BROUGHT UP CRAFTING WITH MY GRANDMA; BUILDING AND PAINTING BIRDHOUSES, REUPHOLSTERING FURNITURE, FLATTENING SILVERWARE FOR WINDCHIMES, AND THE LIST GOES ON. I HAVE ALWAYS LOVED CREATING AND PROBLEM-SOLVING, AND IT IS IN THESE TALENTS THAT, DURING MY FIRST YEAR OF COLLEGE, FOUND MY LOVE FOR ARCHITECTURE.

THROUGH THE DESIGN COURSES I TOOK DURING MY UNDERGRADUATE EDUCATION, I FOUND A PASSION FOR SUSTAINABLE DESIGN, AND THE URGENCY TO PURSUE SOLUTIONS TO THE CHALLENGES WE FIND OURSELVES IN AS A PLANET.

WHEN I’M NOT WORKING ON COMPETITION ENTRIES OR WORKING, I FILL MY TIME WITH COOKING, PHOTOGRAPHY, MUSIC (A LIFELONG PURSUIT), AND LONG WALKS TO EXPLORE THE CITY.

1 5 9
15

I WAS ON THIS PROJECT FULLTIME FROM JANUARY-MAY OF 2023. DURING THIS TIME, WE MOVED FROM CD1 TO PERMIT SUBMITTALS; MY DEEP INVOLVEMENT WITH THIS PROCESS ALLOWED ME TO LEARN SO MUCH ABOUT THE PLANNING AND PERMITTING PROCESS.

THIS PROJECT WAS ATYPICAL FOR BDE ON A NUMBER OF LEVELS, FROM THE SCALE, TO THE USE, TO THE INTRICACIES OF THE FACADE MATERIALS AND ASSEMBLIES.

THIS ALLOWED EACH MEMBER OF OUR SMALL TEAM TO BE VERY INVOLVED IN THE DESIGN AND COORDINATION PROCESS, WHILE MAINTAINING TIGHT DEADLINES AND EFFICIENT WORKFLOWS.

MY ROLE ON THIS PROJECT ENTAILED HELPING WITH DETAIL DEVELOPMENT (FOR CONDITIONS WE DIDN’T HAVE IN THE OFFICE STANDARDS), COORDINATING LIGHTING AND PANEL PLACEMENT IN THE FACADE, DEVELOPING STAIR SECTIONS AND CORRESPONDING AXONOMETRIC VIEWS, AND COORDINATING MODELS FOR THE AMENITY SPACES WITH INTERIOR DESIGN AND THE TRADES.

M
S O C I A L H O T E L SOCIAL HOTEL
1

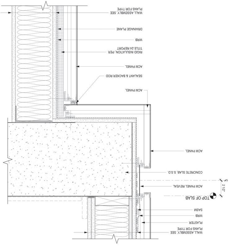
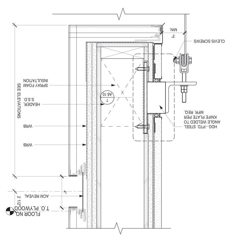
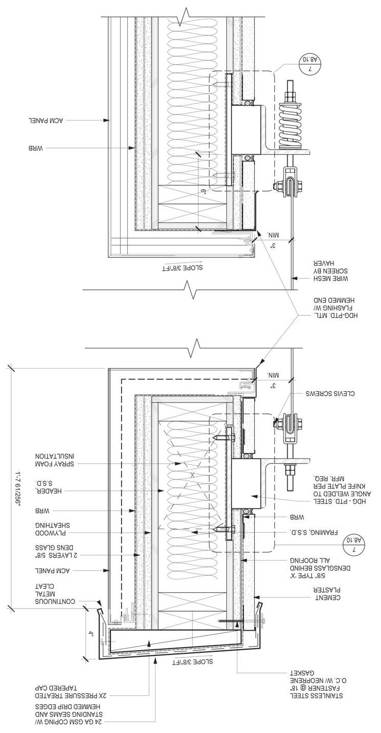
THE DETAILS TO THE LEFT ARE AMONG THOSE I WAS MOST INVOLVED WITH DEVELOPING. EXTENSIVE MATERIAL RESEARCH WENT INTO THESE AS THE SCREEN PARAPETS AND (ALMOST) ALL-ACM PANEL FACADE ARE NOT CONDITIONS WE HAD OFTEN IN THE OFFICE. I GOT TO WORK WITH OUR DETAIL SPECIALISTS TO BRING THESE ASSEMBLIES FROM CONCEPT TO REVIT, WHICH HELPED ME BRING MY TECHNICAL UNDERSTANDING TO A NEW LEVEL.

THE ELEVATIONS TO THE RIGHT ARE THE RESULT OF EXTENSIVE COORDINATION WITH A LIGHTING CONSULTANT TO CREATE A BARLIGHT SYSTEM THAT WAS THEN INTEGRATED INTO THE FACADE ASSEMBLY.

DEVELOPING THESE RENDERED ELEVATIONS IN REVIT TO GET THE PANELS SHOWING CORRECTLY WITH THE LIGHTING MODEL WAS A UNIQUE LEARNING EXPERIENCE, WHICH HELPED ME BETTER UNDERSTAND REVIT AND HOW TO WORK WITHIN THE SOFTWARE’S CONSTRAINTS TO ACHIEVE THE DESIRED GRAPHIC OUTCOME.

VERTICAL JOINT - 4” ACM PANEL TO 2” ACM PANEL ROOF SCREEN - PARAPET METAL SCREEN AT ACM PANEL REVEAL OUTSIDE CORNER - ACM PANEL TO PLASTER
2
ACM REVEAL AT SLAB OVERHANG

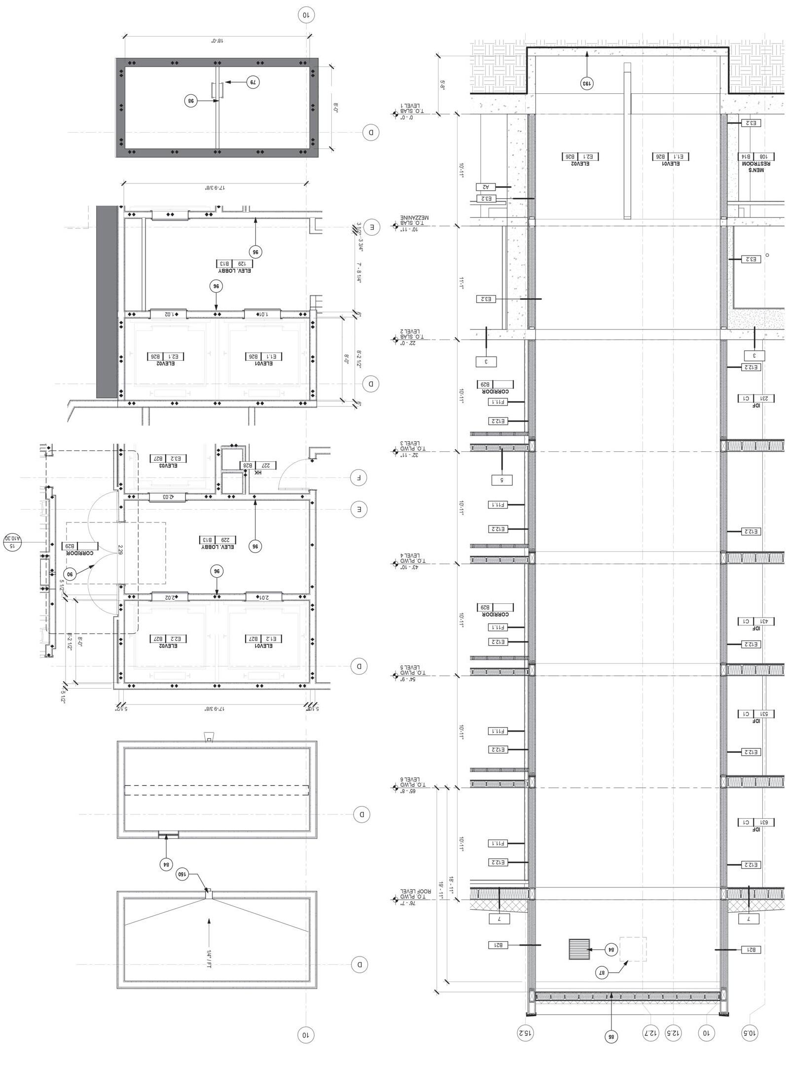
THE VERTICAL PLANS WERE A UNIQUE COORDINATION CHALLENGE, BECAUSE OF THE NUMBER OF UTILITY ROUTES REQUIRED FOR THE AMENITY SPACES ON THE GROUND FLOOR AS WELL AS THE EXTENSIVE MECHANICAL AND PLUMBING SYSTEMS REQUIRED TO SERVICE THE 100+ HOTEL ROOMS. THIS ASPECT OF THE PROJECT PUSHED ME TO DEVELOP MY CODE KNOWLEDGE TO REFLECT ACCESSIBILITY REQUIREMENTS AND FIRE SAFETY RATINGS.

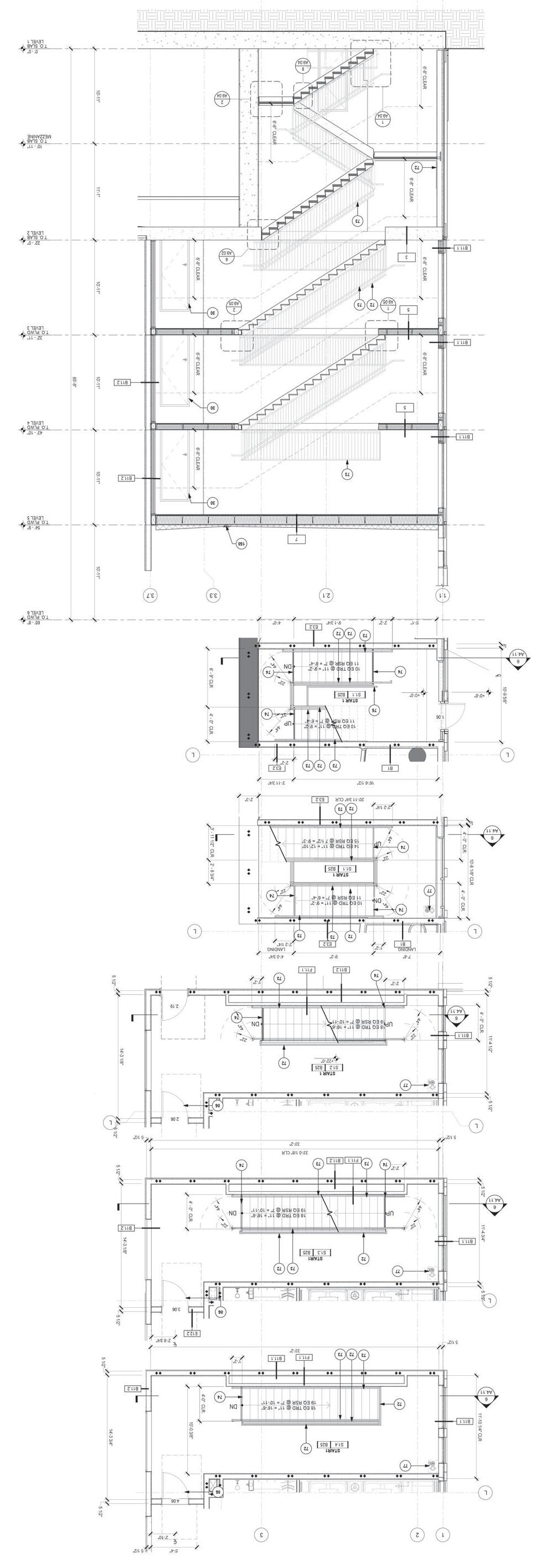
IN ADDITION TO THE COORDINATION WORK I DID ON THIS PROJECT, I GOT SIGNIFICANT TECHNICAL EXPOSURE TO HOW TO DRAW STAIR SYSTEMS IN REVIT, AS WELL AS THE CODE REQUIREMENTS THAT A SUCCESSFUL SYSTEM WORKS WITHIN.

STAIR 1 SECTION AND
LEVEL 1 LEVEL 1M LEVEL 2 LEVEL 3 LEVEL 4
PIT PLAN ROOF UPPER ROOF ELEVATORS 1
PLANS
LEVELS 2-6 LEVELS 1-1M
& 2 - E/W SECTION AND PLANS
3
NORTH-FACING LOBBY/ENTRY AREA -- AXONOMETRIC VIEW WITH CORRESPONDING WALL SECTION

MY WORK IN THE COORDINATION AND DEVELOPMENT OF THE AMENITY SPACES WAS VALUABLE EXPOSURE TO RETAIL AND HOSPITALITY AREAS, WHERE PREVIOUSLY THE BULK OF MY EXPERIENCE WAS IN STRICTLY RESIDENTIAL ASPECTS SUCH AS UNIT PLANS.

ADDITIONAL RENDERINGS

4
KITCHEN 1ST FLOOR MEETING ROOMS RESTAURANT AND BAR LOBBY / CHECK-IN VIEWFROMBAYSHOREFREEWAY
AERIALVIEWFROMSOUTH

V TA B L O C K A VTA BLOCK

I WAS ON THIS PROJECT FROM MY FIRST DAY AT BDE, AND MY WORK ON IT WAS A THOROUGH INTRODUCTION TO THE ACTUAL WORK WE DO IN PRACTICE. I WAS 100% ON THIS FROM APRILDECEMBER OF 2022, WHEN IT GOT PUT ON INDEFINITE HOLD DUE TO FUNDING-RELATED STALLING.

MY INVOLVEMENT IN THIS PROJECT SPANNED ALL DRAWING SETS, FROM PROJECT INFORMATION, TO UNIT PLANS, TO WALL ASSEMBLY DETAILS, AND EVERYTHING IN BETWEEN, AS WE TOOK THIS DESIGN FROM EARLY DDs TO PERMIT SUBMITTALS IN THE MONTHS I WAS ON IT.

I ALSO GOT MY FIRST EXPOSURE TO CONSULTANT COORDINATION THROUGH MY WORK ON THIS, ESPECIALLY AFTER A DECISION BY THE DEVELOPER INITIATED A COMPLETE REDESIGN OF THE ENTIRE TOP THREE FLOORS OF THE TOWER. I GOT TO GO BACK TO MY LANDSCAPEARCHITECTURE ROOTS WITH HEAVY COORDINATION FOR THE PODIUM-LEVEL AMENITIES, AND I GOT TO EXPLORE MY INTEREST IN STRUCTURES WITH THE COORDINATION FOR A UNIQUE BALCONY ASSEMBLY WE EXPERIMENTED WITH AND ULTIMATELY IMPLEMENTED.

OVERALL, THIS PROJECT WAS A HUGE LEARNING EXPERIENCE AND A VERY COMPREHENSIVE INTRODUCTION TO THE FIELD, AND IT WILL ALWAYS BE CLOSE TO MY HEART (WHETHER IT COMES OUT OF THE HOLD OR NOT).

5
NORTHEASTNORTHWEST SOUTHEASTSOUTHWEST

SITEELEVATION-WESTSITEELEVATION-EAST

SITEELEVATION-SOUTH

6

PICTURED TO THE LEFT ARE A SERIES OF INTERIOR COURTYARD ELEVATIONS. WHILE THE BLACK-AND-WHITE AND RENDERED IMAGES ARE COMMONPLACE, THE “HIGHLIGHTER” ELEVATIONS ARE NOT AS COMMON. THESE ARE MATERIAL ELEVATIONS, AND WE IMPLEMENTED THEM TO ANSWER COMMON QUESTIONS THAT WOULD COME TO US IN RFIs DURING GMP SETS.

THESE ELEVATIONS WERE DEVELOPED ACROSS THE FIRM’S RECENT PORTFOLIO TO PROVIDE CONTRACTORS WITH ACTUAL SQUARE FOOTAGE FOR EXTERIOR MATERIALS SUCH AS PLASTER, SIDING, AND METAL PANELS. THIS EXTRA LAYER OF INFORMATION ALLOWS THE RENDERED ELEVATIONS TO EXPLICITLY LAY OUT PAINT COLORS, WHILE AVOIDING ANY CONFUSION ABOUT THE MATERIAL UNDER THE PAINT.

THESE MATERIAL ELEVATIONS ALLOWED OUR TEAM TO BE MORE EFFICIENT, WHICH KEPT OUR BILLABLE HOURS IN CHECK WHILE ALSO GAINING MORE ACCURATE PRICING IN BIDS FROM CONTRACTORS.

PICTURED BELOW: BLACK-AND-WHITE AND RENDERED ELEVATIONS FOR THE CAFE AND MIXED-USE RETAIL SPACE AT AND BELOW THE PODIUM-LEVEL OF THE TOWER

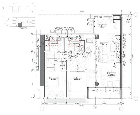
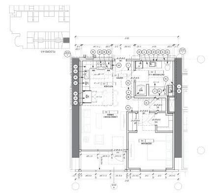
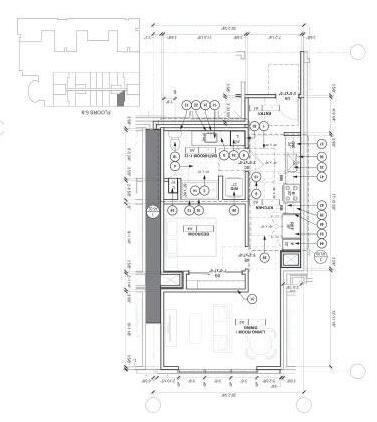
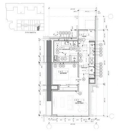
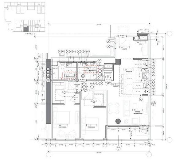
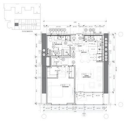
THE DEVELOPMENT OF UNIT PLANS WAS ONE OF MY FIRST SIGNIFICANT TASKS ON THIS PROJECT.

ORIGINALLY, THE BUILDING WAS ALL GOING TO BE BUILT ON-SITE; HOWEVER, OUR CLIENT DECIDED MID-CDs THAT THEY WANTED TO DEDICATE THE TOP THREE FLOORS OF THE TOWER TO A CASE STUDY FOR FUTURE PROJECTS.

OUR TASK WAS TO REDESIGN THE TOP THREE LEVELS OF UNITS, COORDINATING PRIMARILY WITH MEP AND STRUCTURAL CONSULTANTS, TO ALLOW FOR MODULAR KITCHENS AND BATHROOMS. THESE WERE TO BE BUILT IN A FACTORY IN TEXAS, THEN SHIPPED TO THE SITE AND CRANED INTO PLACE. ALL FINISHES AND APPLIANCES WOULD BE INSTALLED AT THE FACTORY (WITH THE EXCEPTION OF THE TOILETS), AND THEN UPON SITE-INSTALLATION, THE CONTRACTORS WOULD MAKE THE NECESSARY CONNECTIONS TO THEIR SYSTEMS.

THE INTENT OF THIS WAS TO SEE WHAT KINKS AROSE DURING THIS PROCESS, AND MORE BROADLY, FOR THE DEVELOPER TO DETERMINE IF THIS WAS A FEASIBLE, COSTEFFECTIVE STRATEGY TO EMPLOY ON SIMILAR PROJECTS IN THE FUTURE.

ULTIMATELY, WE SETTLED ON THREE KITCHEN TYPES: LINEAR (SHOWN IN THE S2 PLANS), L-SHAPED (SHOWN IN THE A3 PLANS), AND ISLAND (SHOWN IN THE B2 PLANS), WHILE BATHROOM LAYOUTS REMAINED LARGELY TYPICAL WITH THE MOST SIGNIFICANT DIFFERENCES BEING IN DIMENSIONS FROM THE STUDIOS TO THE LARGER UNITS.

8
UNITB2.0 UNITB2.0-P UNITA3.0 UNITUNITA3.1-P S2.0-P UNITS2.0

T I V E R E U S E O F C A S C I N A L O S S A N O

ADAPTIVE REUSE OF CASCINA LOSSANO

SITUATED BETWEEN THE PROVINCES OF PAVIA AND MILAN, SANT’ALESSIO CON VIALONE IS A PEACEFUL TOWN CHARACTERISED BY A CENTURIES-OLD AGRICULTURAL TRADITION. WITH ITS ORIGINAL ORIGIN DATING BACK TO THE 18TH CENTURY, CASCINA LOSSANO BELONGS TO THE SYSTEM OF RURAL AGGLOMERATIONS THAT CHARACTERIZE THE MUNICIPAL TERRITORY.

IT IS REQUIRED TO PRESERVE THE ORIGINAL VOLUMES OF THE HISTORICAL BUILDINGS, INCLUDING THE MANOR HOUSE, FARMER’S HOUSE, AND PORCH. REGARDING THE MOST RECENT CONSTRUCTIONS, THE ONLY ONE THAT WILL BE FULLY PRESERVED AND IN WHICH IT WILL BE POSSIBLE TO INTERVENE WILL BE THE STABLE. THE REST OF THE STRUCTURES, DEVOID OF HISTORICAL RELEVANCE AND IN A DEEP STATE OF DETERIORATION, WILL BE DEMOLISHED, GIVING EACH DESIGNER THE OPPORTUNITY TO PROPOSE THEIR TOTAL OR PARTIAL RECONSTRUCTION. OUTDOOR SPACES CAN BE TRANSFORMED AND REDESIGNED IN ORDER TO INTEGRATE COMMON FUNCTIONS AND RECREATIONAL FACILITIES.

A D A
P
* * S U B M I T T E D 9 / 2 2 / 2 0 2 3
**SUBMITTED 9/22/2023
9
1 0 10

TANGJIAWANSHEN

THIS PROJECT WAS INITIALLY A COMPETITION CONCEPT FOR COMPACT HOUSING. ENTRANTS COULD PICK ANY CITY IN THE WORLD, AND DESIGN ALONG THE PREMISE OF SUPPORTING AND/OR INCREASING URBAN DENSITY.

GIVEN ITS REPUTATION AS ONE OF THE MOST DENSELY-POPULATED URBAN CENTERS IN THE WORLD, I CHOSE TO SITE MY PROJECT IN HONG KONG.

H O N G K O N G C O M P E T I T I O N C O N C E P T HONG KONG COMPETITION CONCEPT * * U N S U B M I T T E D **UNSUBMITTED
SHENZHEN HONG KONG LANTAU ISLAND HONG KONG ISLAND SHENZHEN BAY SOUTH CHINA SEA MACAU QI’AO ISLAND NANLANG ZHUHAI
1 2 12
1” = 40’ WEST-FACING SECTION 1 3 13

SOFTWARES USED

INITIAL CONCEPT RHINO GRASSHOPPER

FORM ACTUALISATION RHINO.INSIDE.REVIT

PRIMARY DEVELOPMENT REVIT

FACADE DESIGN GRASSHOPPER REVIT RENDERS TWINMOTION

POST-PROCESSING PHOTOSHOP LIGHTROOM ILLUSTRATOR

NORTH-FACING ELEVATION 1” = 40’
90’
1 4 14
90’
1 5 15
1 6 16

Turn static files into dynamic content formats.

Create a flipbook
Issuu converts static files into: digital portfolios, online yearbooks, online catalogs, digital photo albums and more. Sign up and create your flipbook.