ARCHITECTURE PORTFOLIO

Page 1

ACHUTAM GIRI
ARCHITECTURAL PORTFOLIO
B.ARCHITECTURE PURWANCHAL
6TH SEMESTER
CAMPUS

Achutam giri

+977 9804070388

achutamirig@gmail.com

22/03/2024

TotheManager, WonawandAssociatesarchitect, Kathmandu

RespectedSir/Madam,

Iamcurrentlya3rd-yeararchitecturestudentpursuingmybachelor'sdegreeat PurwanchalCampus(ERC),Dharan Iamwritingtoexpressmyinterestinworkingasan internatyourfirm,whichispartofourpracticuminthe7thsemester.Iameagerto applymydesignskillsandtechnicalknowledgetoyourfirmasIwanttodevelopthese qualitieshere.

Duringmyjourneythrougharchitectureschool,Ihavedevelopedastrongpassionfor designandarchitecture.Thishasmotivatedmetopursuevariousopportunitiestogain practicalexperiences Ihavebeeninvolvedinvariousactivitiessuchasindividualdesign, drafting,sketching,rendering,literature,casestudies,designcompetitionsandsoon, bothindividuallyandaspartofateam,whereIhonedmyrelatedskills Additionally,I haveworkedasavolunteerandanorganiseratthePurwanchalArchitectureExhibition 2024whichbroadenedmyknowledgetowardsarchitecture

Iamparticularlydrawntoyourcompany'sreputationforinnovativedesignpractices.I amexcitedabouttheopportunitytoworkwithyourteamandlearnfromthetalented professionalsatyourfirm.ThisisaformalletterfortheapplicationofanInternship positioninyourfirm.Iamreadyforthechallengesthatwillallowmetocontinue expandingmyskillsetandknowledgebase.Ihopemyexperience,inadditiontomy educationalachievements,wouldmakemeavaluablememberofyourarchitectureteam Icannurturemytalentsinanesteemedworkenvironment,renderingmyservicewith utmostsincerity Mostimportantly,Iwillcontinuelearningandgainingknowledgeas muchaspossible

Ithankyouforacceptingmyapplication.Pleasefindmyresumeandportfolioattached foryourreview.IlookforwardtotheopportunitytodiscusshowIcancontributetoyour designteamfurther.

Yourssincerely,

PROFILE Undergraduate Architecture student at IOE Purwanchal campus I consider myself a reponsible,friendly and orderly person . I am seeking internship with good learning enviroment where i can explore myself CONTACT ME VOLUNTEER EXPERIENCE EDUCATION TRIBHUWAN UNIVERSITY DHARAN AADARSHA COLLEGE 2018 - 2019 LANGUAGE Nepali English COMPUTER SKILLS ACHUTAM GIRI ARCHITECTURE STUDENT Bachelor in architecture, in progress JANAK SMRITI SEC.SCHOOL 2005 - 2017 Hindi ACHUTAM GIRI | CURRICULUM VITAE Organizer in Purwanchal architecture exhibition Voluteered in freehand and model making class 9804070388 achutamirig@gmail.com Dharan -8,sunsari 2

PROJECTS

ACADEMICS

3rd SEMESTER

ACADEMICS

6TH SEMESTER

ACADEMICS

4TH SEMESTER

ACADEMICS

5TH SEMESTER

1.RESIDENCE (4-9)

02.INDUSRTY (10-15)

03.SCHOOL (16-20)

04.COMMERICAL (21-26)

1.RESIDENCE

4

Residence

PROJECT TILE: RESIDENCE

ARCHITECTURAL DESIGN STUDIO

LOCATION : DHARAN

RESIDENCE IS A DESIGN IN RESPONSE TO THE CLIMATE OF DHARAN . THE OCCUPATION OF THE CLIENT IS CONSIDERED A TEACHER BY PROFESSION. I ASSUMED 5 USERS FOR MY PROGRAM FORMULATIONS WHICH INCLUDES WIFE, TWO DAUGHTER AND GRANDMOTHER WHERE MOTHER IS HOUSE WIFE, CHILDREN GO TO SCHOOL AND GRANDMOTHER IS 60 YEARS OLD WHO IS BUSY ON READING BOOK ,DOING PUJA AND SOO ON. I DESIGNED A RESIDENCE ACCORDING.

DESIGN :THE ADDITION OF COURT BRINGS SPACE AND AIR INTO THE HOUSE. ALSO CONNECTS THE INDOORS WITH A BEAUTIFUL LANDSCAPE OUTDOORS.

ACADEMICS 3rd SEMESTER
lifting site profile for massing cutting mid portion for courtyard for proper lighting & ventilation raising mass to enjoy visual scene from inside 5

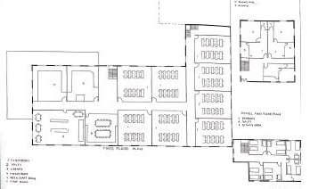
LEGENDS

MASTER PLAN

ENTRY 1

LOBBY 2.

LIVING SPACE 3. KITCHEN &DINING SPACE 4. 5.MASTER BEDROOM

6. BEDROOM

7. WC

8. CHANGING SPACE

9. HOME THEATER 10 GYM

FIRST FLOOR PLAN

RESIDENCE ACADEMICS 3rd SEMESTER 5 7 6 3 2 1. 7 4 7
6 6 7 8 9 10
6

ELEVATION

SOUTH ELEVATION

NORTH ELEVATION

R E S I D E N C E
EAST ELEVATION
ACADEMICS 3rd SEMESTER 7
WEST ELEVATION

3D VIEWS

R E S I D E N C E ACADEMICS 3rd SEMESTER
8

3D VIEWS

ACADEMICS 3rd SEMESTER R E S I D E N C E
9

2.SUGAR INDUSTRY

ACADEMICS 6TH SEMESTER 10

SUGAR INDUSTRY

PROJECT TILE: SUAGR INDUSTRY

ARCHITECTURAL DESIGN STUDIO VI

LOCATION : BIRATNAGAR

SUGAR CANE INDUSTRY IS A SIGNIFICANT COMPONENT OF GLOBAL AGRICULTURE AND AGARO-INDUSTRIAL SECTORS,PRIMIARILY CENTERED AROUND THE CULTIVATION AND PROCESSING OF SUGARCANE FOR SUGAR PRODUCTION.THE IMPACT SUGAR INDUSTRY IS LOCATED AT AMAHABELHA , SUNSARI AT THE FRINGE AREA NEARBY SUGARCANE PRODUCING AREA INDUSTRY RUN FROM 4 TO 5 MONTHS OF A YEAR FROM THE 2500 TONES OF CANE

CAPABLE OF PRODUCE 29.1% OF BAGASSE,3.22% OF MUD,4.6% OF MOLASSES AND 10% OF SUGAR PER DAY.THIS INDUSTRY CONSUME

2500 TON OF CANEPER DAY ANDPRODUCE 250 TON OF SUGAR PER DAY . THE BY PRODUCT IS USED FOR CO-GENERATION AND FOR MANUFACTURING OF 100,000 NUMBER OF SUGARCRETE PER DAY .

DESIGN :BUILDING ARE PLACED ALONG THE SITE PHERIPHERY CREATIONS SENSE OF ENCLOSURE. THE ADDITION OF GAZEBO ALSO CONNECTS THE INDOORS WITH A BEAUTIFUL LANDSCAPE OUTDOORS.

DESIGN DEVELOPMENT AND CONCEPTUAL

SITEAND EXISTINGROAD INITIALZOININGOF LANDFOCUSING POSSIBLEENTRYAND OPENSPACE AARANGEMENTOF BLOCKACCORDINGTO SHAPEOFSITE RESPONSETOWINDAND SUNDBYCREATINGAWAY
ACADEMICS 6TH SEMESTER 11

MASTER PLAN

ACADEMICS 6TH SEMESTER 12 SUGAR
INDUSTRY

ELEVATION

ACADEMICS

4TH SEMESTER

SEMESTER I N D U S T R Y
ACADEMICS 6TH
EAST ELEVATION SOUTH ELEVATION NORTH ELEVATION
13
WEST ELEVATION

3D VIEWS

ACADEMICS 6TH SEMESTER I N D U S T R Y
14
ACADEMICS 6TH SEMESTER I N D U S T R Y
15
3D VIEWS

03. SCHOOL

16 ACADEMICS 4TH SEMESTER

PROJECT TILE: SCHOOL DESIGN

ARCHITECTURAL DESIGN STUDIO IV

LOCATION : DHARAN

THE CHALLENGE WAS TO DESIGN A SCHOOL IN PART OF DHARAN SELECTING SUITABLE LOCAL MATERIAL .THE SCHOOL INCLUDES PRIMARY AND SECONDARY LEVEL CLASSES CAFE ADMIN AUDITORIUM ,GYM .THE LAYOUT OF THE SCHOOL BUILDINGS AND FACILITIES SHOULD BE FUNCTIONAL AND EFFICIENT, ALLOWING FOR EASY MOVEMENT OF STUDENTS AND STAFF BETWEEN CLASSROOMS, COMMON AREAS, AND OUTDOOR SPACES.CLASSROOMS SHOULD BE DESIGNED TO OPTIMIZE LEARNING, WITH CONSIDERATIONS FOR NATURAL LIGHT, ACOUSTICS, VENTILATION, AND FLEXIBILITY OF FURNITURE ARRANGEMENTS TO ACCOMMODATE DIFFERENT TEACHING METHODS.

DESIGN

THE SPATIAL PLANNING OF THE SCHOOL IS DONE TO RECIEVE AMPLE AMOUNT OF NATURAL LIGHT DESIGN AROUND THE CENTRAL COURTYARD WITH A LOT INTERACTIVE SPACES

ACADEMICS 4TH SEMESTER S C H O O L
massing programs in blocks arranging blocks to give a feeling of enclosure cortyard acting to control microo climate and gathering space 17

LEGENDS

ENTRY 1 .

PARKING 2

ADMIN 3

PRIMARY BLOCK 4

E HALL BLOCK

QUATER BLOCK

HOSTEL BLOCK

18
S C H O O L
ACADEMICS 4TH SEMESTER

ELEVATION

EAST ELEVATION NORTH ELEVATION EAST ELEVATION SOUTH ELEVATION

3D VIEWS

20 ACADEMICS 4TH SEMESTER S C H O O L

3D VIEWS

20 ACADEMICS 4TH SEMESTER S C H O O L
04.
ACADEMICS 5TH SEMESTER 21
COMMERCIAL

C O M M E R C I A L

PROJECT TILE: COMMERICALDESIGN

ARCHITECTURAL DESIGN STUDIO V LOCATION : DHARAN

COMMERCIAL BUILDING PROJECT AIMS TO CREATE MODERN,FUNCTIONAL COMMERCIAL SPACES THATS MEETS DEMANDS OF MODERN BUSINESS AND CONSUMERS CATERING NECESSARY AMENITIES AND SERVICES AS POSSIBLE.THE DESIGN IS SUSTAINABLE AND ENVIRONMENTALLY FRIENDLY WHICH OFFERS WIDE RANGE OF FACILITIES AND SERVICES INCLUDING

RETAIL SHOP,SERVICES FACILITIES,ENTERTAINMENT FACILITIES,DINING OPTIONS PROVIDING A COMPREHENSIVE SHOPPING AND LEISURE EXPERIENCES.

FORM DEVELOPMENT ACADEMICS 5TH SEMESTER 22
C O M M E R C I A L ACADEMICS 5TH SEMESTER 23
BASEMENT PLAN
MASTER PLAN

ELEVATION

ACADEMICS 5TH SEMESTER
24 C O M M E R C I A L

3D VIEWS

C O M M E R C I A L ACADEMICS 5TH SEMESTER 24
PROJECT AND WORK PROJECT AND WORK 25 M I S C E L L A N E O U S
PHOTOGRAPHY PHOTOGRAPHY

THANKYOU

Turn static files into dynamic content formats.

Create a flipbook
Issuu converts static files into: digital portfolios, online yearbooks, online catalogs, digital photo albums and more. Sign up and create your flipbook.