

The St. Regis Cap Cana
Alejandro Acébal / Canney Arquitectos & Asociados

The St. Regis Cap Cana
Alejandro Acébal / Canney Arquitectos & Asociados
Ubicado en la costa este de República Dominicana, dentro del exclusivo desarrollo turístico inmobiliario y hotelero de Cap Cana, en la provincia La Altagracia. Con vistas sobre el Mar Caribe, la propiedad está ubicada dentro del reconocido Campo de Golf Punta Espada. Es el primer hotel de la línea St. Regis desarrollado en el país, parte de las líneas Clásicas de Lujo de Marriott Hotel & Resorts, donde la vanguardia, el lujo discreto y el servicio especializado son algunos de los conceptos básicos que fundamentan la marca.
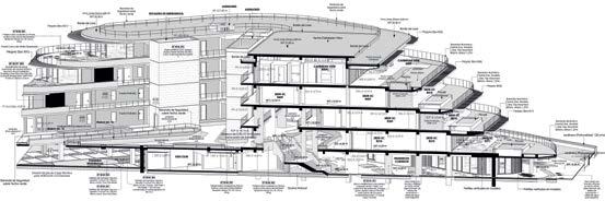
Con una volumetría inspirada en la composición de un campo de golf, el proyecto se eleva en 6 niveles aterrazados y con techos verdes que buscan integrarse con el campo de golf y los farallones que lo rodean. De formas horizontales y a la vez sinuosas, la orientación de los volúmenes que lo conforman buscan siempre aprovechar al máximo las bellas vistas que el entorno ofrece.
Cuenta con 200 habitaciones hoteleras y 70 unidades residenciales desarrolladas en aproximadamente 125,000 m2 constructivos, y con una serie de amenidades exclusivas de la marca tales como salones de eventos, 3 restaurantes, 2 bares, club de cigarros, Spa, gimnasio, 4 áreas de piscinas y playa privada.




Seccion 3D bloque B Seccion 3D bloque C
Planta arquitectónica amueblada de conjunto L2
Elevación general
Elevación general


Proyecto:
The St. Regis Hotel and Residences
Ubicación:
Cap Cana República Dominicana
Arquitectura:
Acebal Canney Arquitectos & Asociados
Arq. Alejandro Acebal Canney
Colaboradores
:
Laura Leger, Jessy Tatis, Leonor Cordero, Vicky Pérez, Stefany Taron, Vanessa Heredia, Lourdes Montes de Oca, Pamela Polanco, María Andreína Pérez, Nathaly Araujo y Silvia Caradonna
Promotores:
Pioneer Fondos de Inversión y Campagna Ricart y Asociados
Contratista General:
Campagna Ricart & Asociados
Ing. Dino Campagna
Colaboradores:
Julio Bobadilla, Pedro Fernández, Álvaro
Espaillat, Virginia Cruz, Gianmarco Campagna, Ana Almonte, Laura Pérez Mestre, Raúl Pérez, Starlin Morel
Diseño de Interior:
Chapi Chapo Design
Alexandra Guzmám (AG Interiores)
Colaboradores:
María Elena Liriano, María Liliana Ortiz Fernández, María Laura Báez, Paola Méndez, Karla Rodríguez, Marlene
Quiñones
Project Management:
TLDI
Colaboradores:
Wilfredo Rodríguez, Radhamés Soto, Alberto Hervás
Diseño de Ingenierías y Contratistas:
Reginald García (estructura)
Cemca (aires acondicionados)
Grupo Eléctrico Dominicano (instalaciones eléctricas)
Piarcon (instalaciones sanitarias)
Sinercon (obras estructurales)
Marcos Iglesias (estructuras en fachadas)
Ciprián Ingeniería y Cielos Acústicos (estructuras ligeras)
Consport (piscinas y espejos de agua)
Symantel (domótica)
Allugav (cerramientos y barandas)