

Alejandro Acebal
La Villa Dye Fore 1 se ubica en los predios de los campos de golf Dye Fore, una zona privilegiada y lujosa dentro de Casa de Campo.
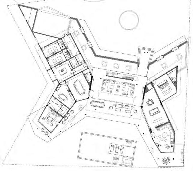
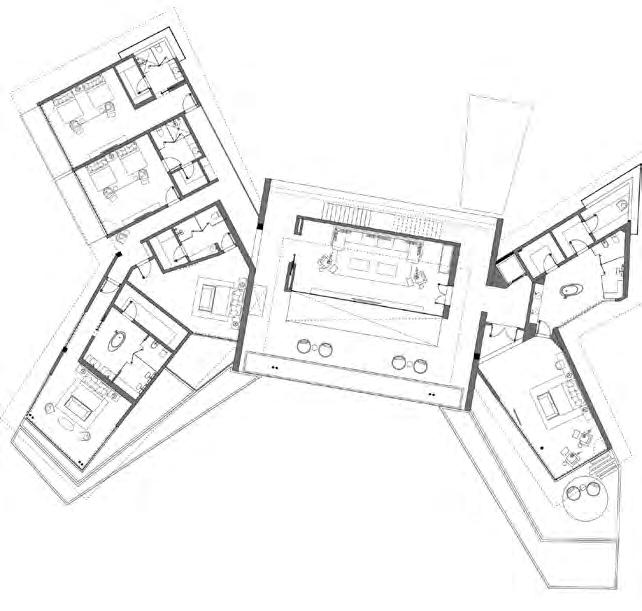
El emplazamiento de la villa es muy especial, porque tiene como premisa principal, destacar las vistas del Río Altos de Chavón y el Campo de Golf antes mencionado. Es por esto que la forma irregular de la planta a manera de equis, responde a la geometría caprichosa del solar, la cuál se utilizó como una oportunidad para que todos los espacios disfrutaran de vistas espectaculares desde cualquier rincón del hogar.
La aproximación se genera gracias a unos muros emblemáticos de piedra que invitan al acceso de la villa, los cuales dividen el mundo exterior del programa que alberga el proyecto. Luego de acceder a través de unos largos espejos de agua, el usuario se encuentra el corazón de la villa, donde se encuentran los espacios de carácter social más importantes para los integrantes de la familia. La sala, la terraza y el estudio destacan en jerarquía y altura, además de ser los elementos conectores del resto de los espacios y niveles del proyecto.
Otra premisa del diseño arquitectónico, se basó en la creación de espacios fluidos y conectados, ya sea de manera física o visual, que proporcionan al usuario una experiencia acogedora y envolvente. Y por último no podía faltar la incorporación del elemento agua dentro del diseño y en todos sus niveles; al estar lejos del mar se buscó incorporar espejos de agua bordeando gran parte del nivel 1 para traer esa sensación al usario, así como también en el nivel 2, el espejo de agua a lo largo de la majestuosa pasarela refleja el cielo y los campos de golf.
















Proyecto
Dye Fore 1
Año
2017-2018
Dirección
Parcela No. 84, Sector Dye Fore.
Casa de Campo, La Romana.
Área del Solar
3,297.24 m2
Área total de Construcción
2,049.16 m2
Diseño Arquitectónico
AC Arquitectos & Asociados
Arq. Alejandro Acébal Canney
Colaboradores
Arq. Nathaly Araujo
Arq. María A. Pérez
Arq. Leonor Cordero
Diseño de interiores
Tina y Víctor Levy
Diseño Estructural
Ing. Daniel Camarena (EEC Ingeniería)
Eléctrico e Iluminación
Ing. Iván Jiménez (STM)
Diseño Sanitario
Ing. Magda Duarte (VD&A)
Sistema de A/A
Ing. Orlando Carmenates (Refripartes)
Diseño Paisajístico
Ing. Daniel Azpurua
Contratista General
KAL 33, Ing. Daniel Azpurua
Supervisión
AC Arquitectos & Asociados