ABOUBAKER ELEMDANI
ARCHITECTURE PORTFOLIO
2016 - 2025
PROFESSIONAL WORK

Dar Al Omran
Dar Al Omran
Dar Al Omran
Jouzy Consulting Engineers
Dar Al Omran




01. 04. 05. 02. 03.


![]()
ARCHITECTURE PORTFOLIO
2016 - 2025
PROFESSIONAL WORK

Dar Al Omran
Dar Al Omran
Dar Al Omran
Jouzy Consulting Engineers
Dar Al Omran




01. 04. 05. 02. 03.


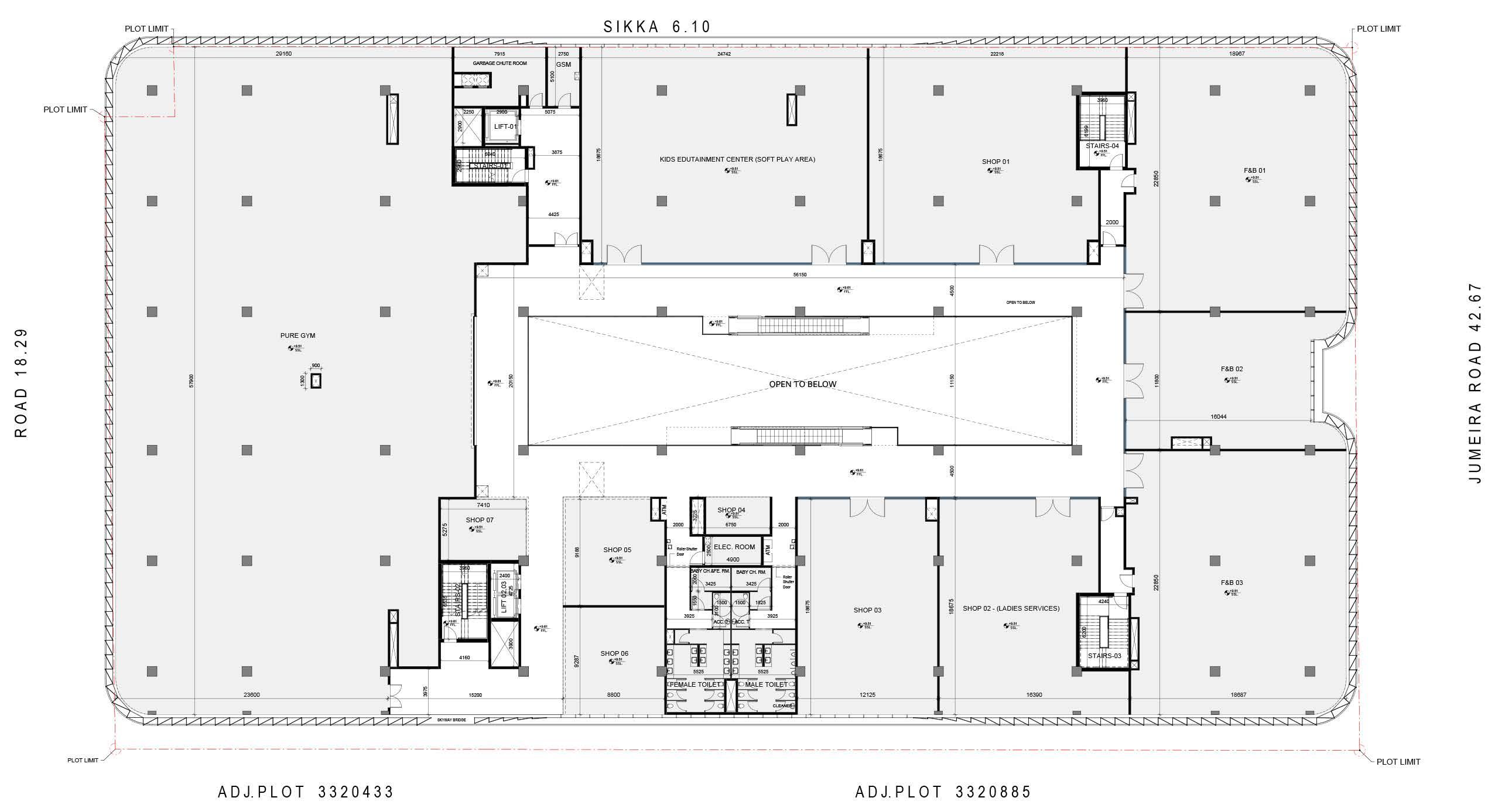
Company: Dar Al Omran
Location: Jumeirah, Dubai, UAE
Type: Renovation + Design and supervision
BUA: 21000 m2
Role:
- Lead a team of junior architects and drafters from LOD 100 to 300 to deliver all necessary drawings for client & authorities review
- Coordinate with MEP and structural engineers.












Company: Dar Al Omran
Location: Al Anbar, IRAQ
Type: Hotel, Clinic, Mall & Sport Complex Design and supervision
BUA: 41500 m2
Role:
- Lead a team of junior architects and drafters from LOD 200 to 350 to deliver all necessary drawings for client & authorities review.
- Coordinate with MEP and structural engineers


















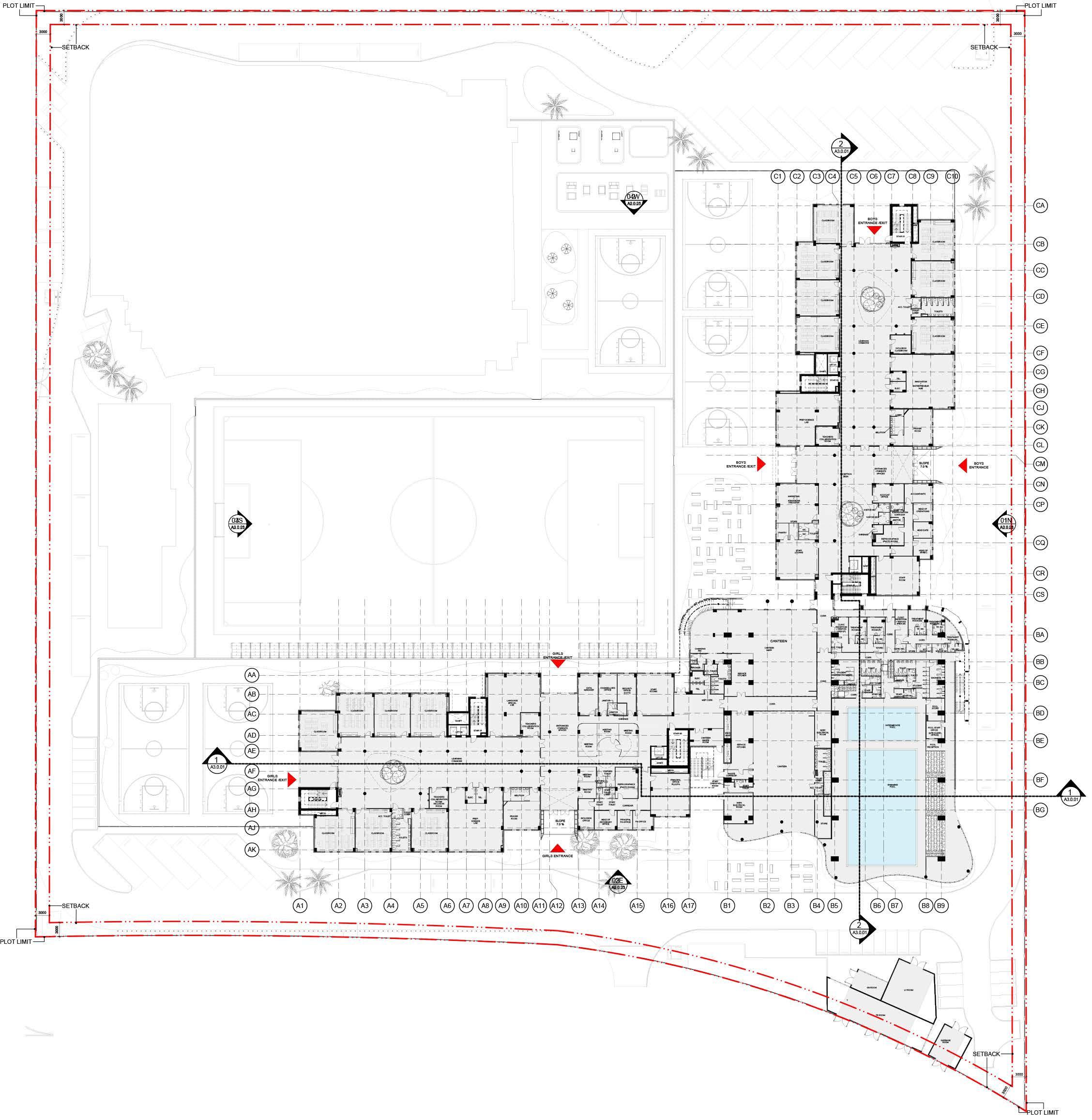
Company: Dar Al Omran
Location: Al Barsha, Dubai, UAE
Type: Early years to High School Design and supervision
BUA: 30800 m2
Participated with other architects in design and drawings submissions to client & authorities (LOD 100 to 350) - BIM Management & BIM Coordination.



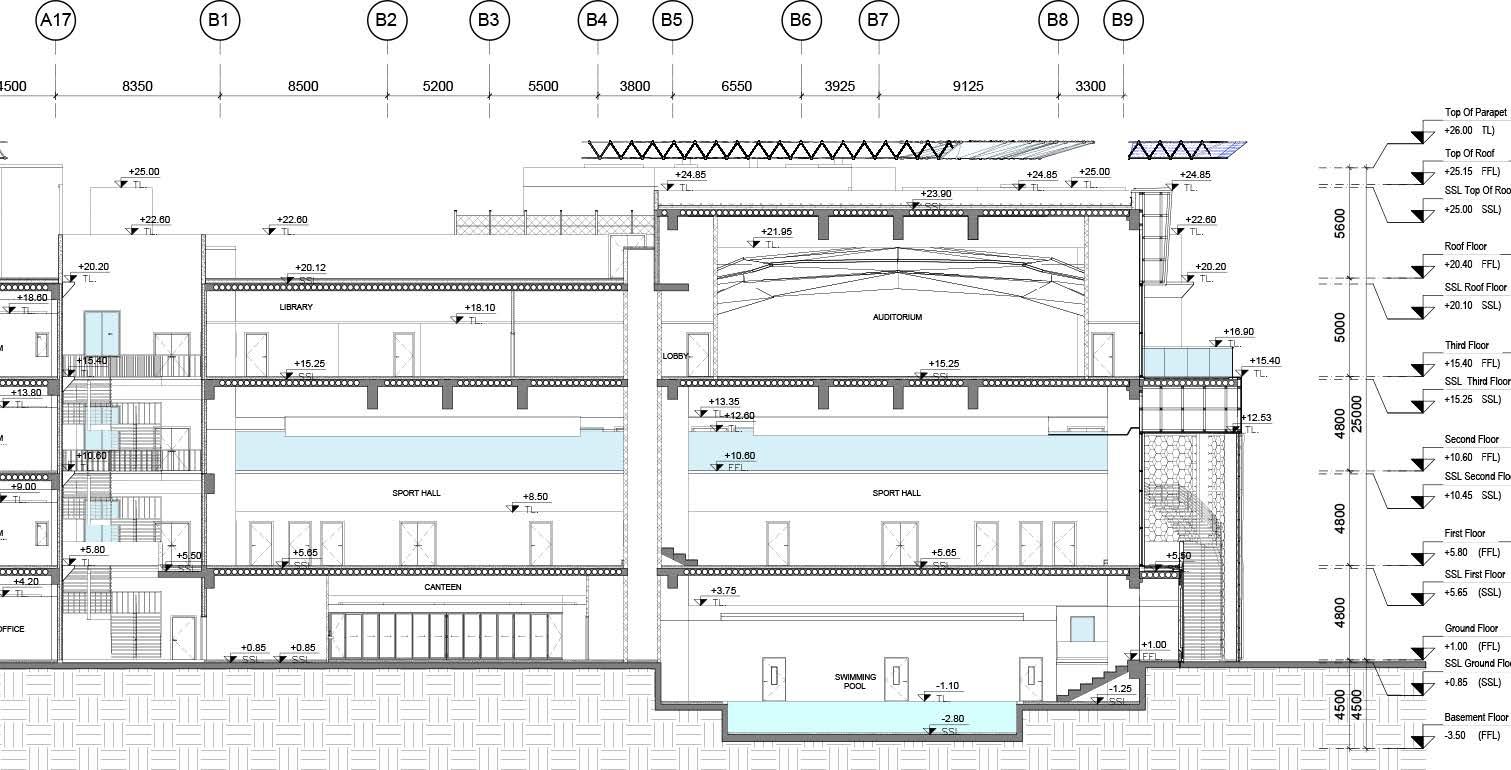
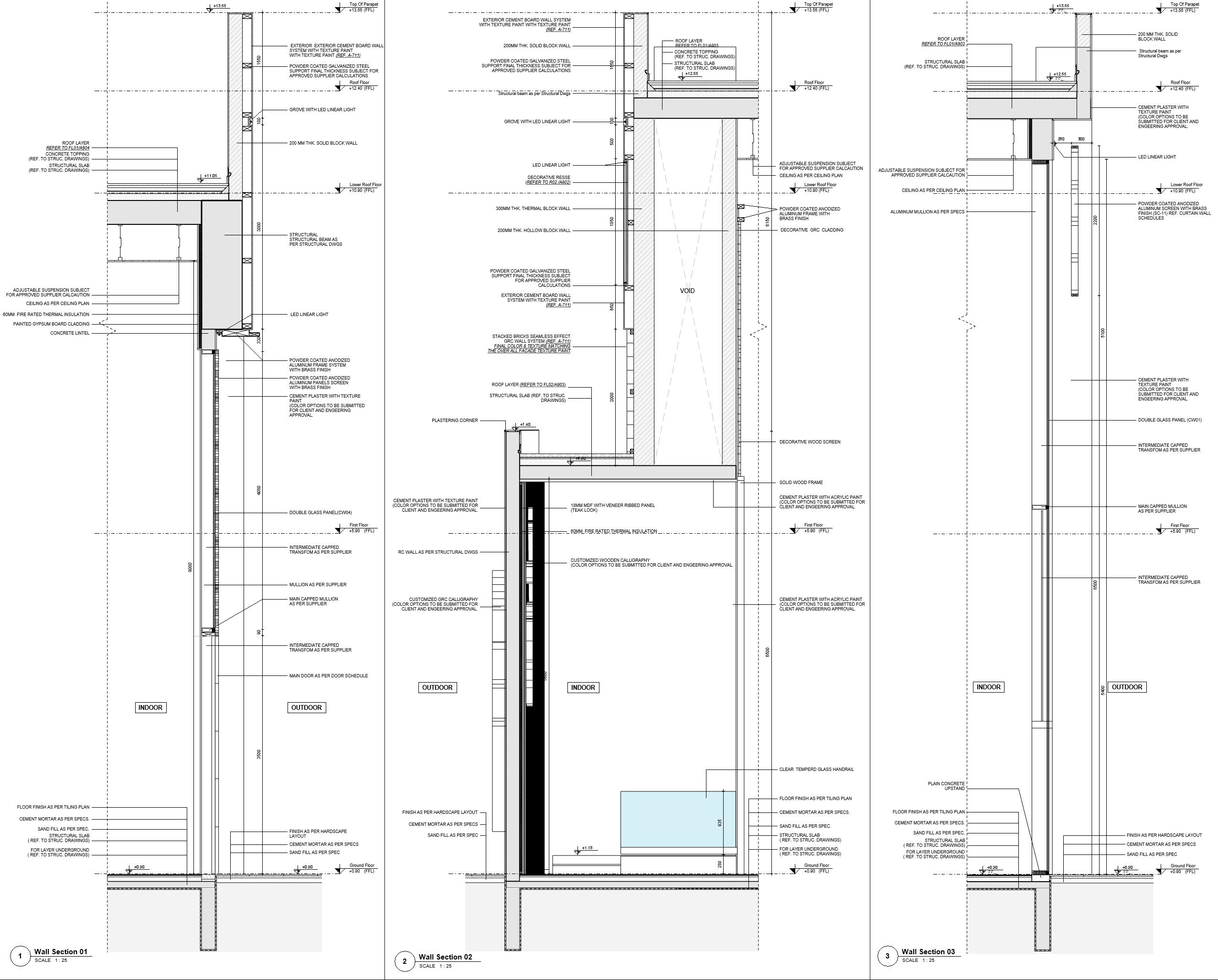
Sections & Site Photos (Revit) (LOD 350)





A-A

Section B-B


Company: Jouzy Consulting Engineers
Location: Al Jurf, Abu Dhabi, UAE
Type: Design and supervision
BUA: 46500 m2
Role:
Designed, modeled and rendered the entire community center luxury developement “AlJurf”. the project features restaurants, a game zone, full-service clinic and an outdoor plaza, spanning to detailed design.

center in the heart of Abu Dhabi’s new restaurants, F&B outlets, a supermarket, spanning from the pre-concept phase











Company: Dar Al Omran
Location: Dubai, UAE
Plot Area: 4306 m2
Role:
- Lead a team of junior architects and drafters from to deliver all necessary drawings for client & authorities review.
- Coordinate with MEP and structural engineers
- Lead and guide visualization team.

Space Program & Zoning I Site Layout - Option-02

Minaret
Male Prayer Hall
Female Prayer Hall
Entrance Hall
Female Entrance
Female Services
Kids Area
Servant Room
Substation
Imam House
Moazen House
Male Services
The notion of Islamic Garden is integrated within the design from a programmatic and experiential perspectives as it was signified both in the Mosque Arrival and Sahan, as well as the views towards the Mihrab.
The mosque volume is envisaged as an intricate lantern that allows light in at day, and glows at night, which offers guidance as a landmark and celebrates the value and significance of light in Islam and the Holy Quran.
Space Program & Zoning I Site Layout - Option-02
First Floor Perspective


















Extras (Drawing & Sketches)







