Portfolio-Abdullah AL-Harrah

Page 1

IARC

The Innovation Architectural & Research Center is a gathering area for architects to develop architectural sustainability in the Kingdom of Saudi Arabia and presents the latest architectural discoveries through laboratories and workshops to produce the highest architectural standards in sustainability.

This project was chosen as the best graduation project in the field of Architecture Engineering at Al Yammamah University Magazine 2023.

structure

Environment strategy

Resort

The project is a resort on Umluj Island in the Red Sea. This project focuses on the idea of the building and linking the external corridors with the surrounding elements such as a hotel, chalets, etc.

The project was presented in the architectural exhibition as the best project of the year.

Tradition Urban

This project is to revive an old area in the center of Riyadh. This area contains ancient buildings that must be preserved and built around them, such as streets, residential and commercial buildings, etc. This project focuses on the distribution of building blocks.

The project was presented in the architectural exhibition as the best project of the year.

Gymnasium

The project is a sports club at Al-Yamamah University. This project focuses on Integration System.

Land scape

The project is in Al-Yamamah University, renovating the university plaza aims to create a good sustainable environment in the campus space. It focuses on maintaining a good aesthetic and visually pleasurable spaces, as well as better social gathering areas. While maintain the function that assists the goal of the university and improving sustainability and quality experience.

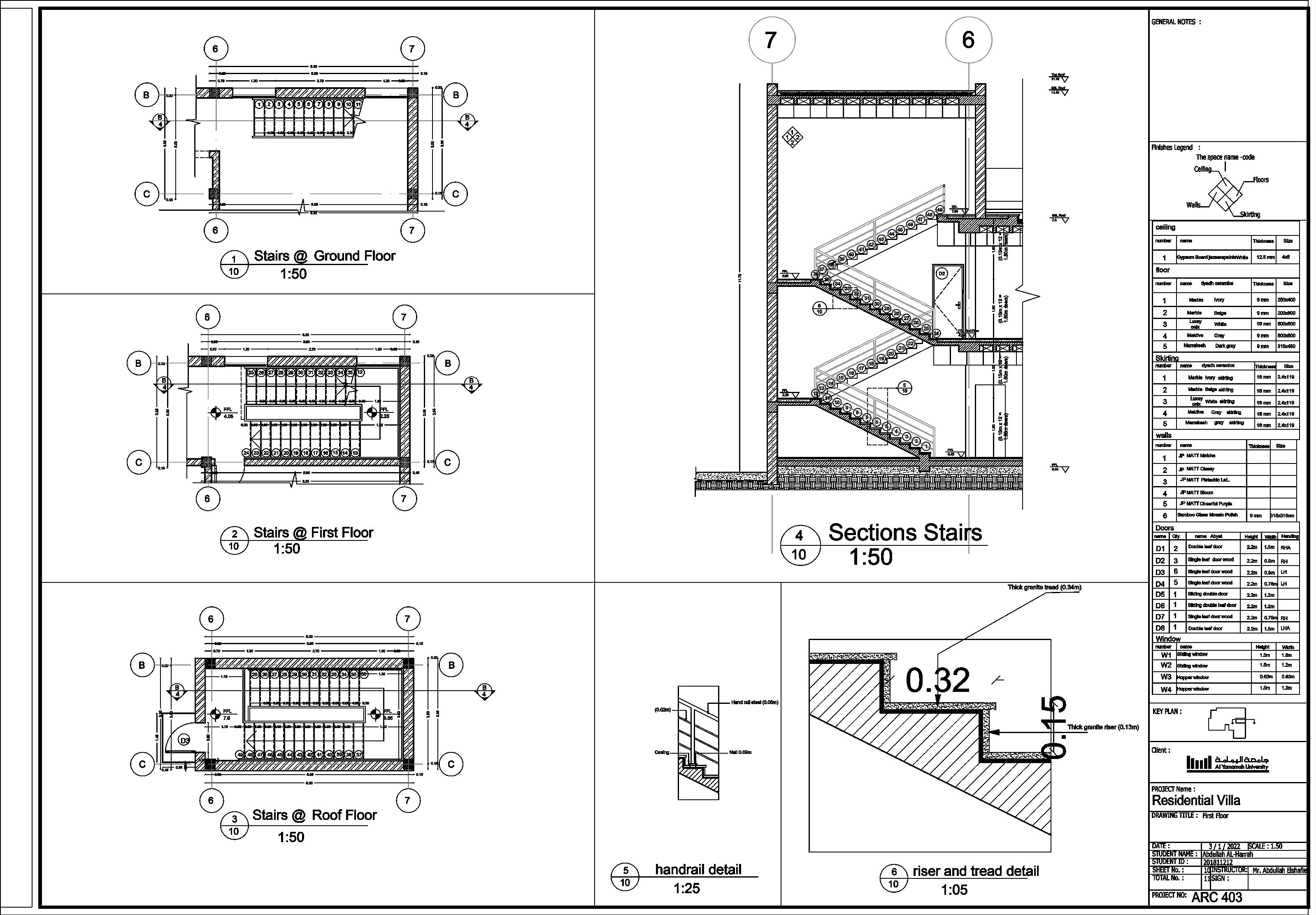
IFC & Shop Drawing

These are some of the drawings I have done for a villa project in 2021

A B C D E

First Floor 1:50

A B C D E

BT BT SCALE : STUDENT ID INSTRUCTOR: DATE : PROJECT NO: STUDENT NAME : SHEET No. : TOTAL No. : SIGN : Mr. Abdullah Elshafie DRAWING TITLE PROJECT Name GENERAL NOTES : Finishes Legend : Floors Ceiling Walls Skirting The space name -code Residential Villa ARC 403 Abdullah AL-Harrah 201811212 1.50
0.15 0.15 0.15 5.95 1.85 1.85 1.85 3.55 3.55 1.85 1.80 3.00 1.85 5.95 0.15 3.00 3.00 4.20 1.35 2.95 0.30 1.20 2.80 10.55 15.90 6.15 15.91 20.65 19.50 0.30 1.20 2.95 0.10 0.63 0.08 0.30 0.15 5.40 0.15 3.15 1.20 2.40 1.20 0.80 0.10 1.80 0.10 2.45 6.30 1.05 1.20 0.20 0.90 0.90 0.60 5.75 3.40 0.50 1.20 0.50 1.20 0.60 0.60 4.55 5.75 2.25 0.64 1.20 0.50 1.00 0.10 1.70 3.40 5.15 5.70 0.75 0.79 0.90 2.20 1.80 4.60 3.35 0.60 0.90 0.05 0.10 0.90 0.75 0.75 0.70 2.20 1.05 2.25 1.03 0.63 2.75 0.75 1.25 2.45 1.30 1.33 0.30 3rd bedroom 4th bedroom 2nd bedroom wc wc wc closet master bedroom 1 2
1 2 3 4 5 6 7
2.45 0.10 0.10 1.70 2.45 5.05 2.15 0.80 0.08 0.63 1.35 1.20 1.65 2.95 0.10 0.10 0.10 3 1.70 25 13 14 15 16 17 18 19 20 21 22 23 24 26 27 28 29 30 31 32 33 34 35 12 0.30 0.30 0.30 0.30 0.30 0.30 0.30 0.30 0.30 0.30 0.30 0.30 0.30 0.30 0.30 0.30 0.30 0.30 0.30 0.30 0.30 0.30 FFL 4.05 0.05 0.30 5.35 2 4 1 2 5 6 1 5 1 5 1 1 1 5 1 1 1 5 1 1 5 6 1 5 5 6 1 5 0.10 0.30 0.10 0.10 0.30 0.10 0.10 0.30 0.05 0.30 0.05 0.05 0.30 0.05 0.10 0.10 0.10 FFL 4.05 FFL 4.05 FFL 4.05 FFL 4.05 FFL 4.05 2 1 1 2 2.50 1.22 5.10 D2 D3 D2 D3 D7 D4 D4 2.15 1.30 1.30 0.30 D6 KEY PLAN Client : N First Floor
3 4 5 6 7
W2 W2 W2 W1 0.63 W4 W4 W2 W3 W3 2 4 1 2 5 1 2 4 1 2 11 5 1 5 1 FFL 2.25 1 3 1 floor 2 3 4 5 Thickness Size number Ivory 9 mm 250x400 Marble name 1 ceiling Thickness Size number 12.5 mm 4x6 MATT name Beige 9 mm 200x600 Marble White Luxey onix Gray 9 mm 600x600 Maldive 10 mm 600x600 1 walls 2 3 4 5 6 number Matcha name Classy Pistachio Lat.. Bloom Cheerful Purple Gypsum Board Dark gray 9 mm 315x460 Marrakesh Skirting Thickness Size number name jazeerapaintsWhite 9 mm 315x315cm riyadh ceramics 1 2 3 4 5 Ivory 18 mm 2.4x119 Marble Beige Marble White Luxey onix Gray Maldive gray Marrakesh riyadh ceramics 18 mm 2.4x119 18 mm 2.4x119 18 mm 2.4x119 16 mm 2.4x119 Thickness Size Bamboo Glass Mosaic Polish Doors name Abyat D1 D2 D3 D4 D5 1.5m Double leaf door Single leaf door wood 0.9m Window Height Width number name W1 W2 W3 Sliding double leaf door W4 Single leaf door wood D6 0.9m 1.2m 0.75m 1.2m Sliding double door Sliding window Hopper window Sliding window Hopper window 1.8m 1.5m 1.2m 1.5m 0.63m 0.63m 1.3m 1.5m name Qty. 2 3 6 5 1 1 Height Width 2.2m 2.2m 2.2m 2.2m 2.2m 2.2m Handing RHA RH LH LH Single leaf door wood D7 1 2.2m D8 1 2.2m 1.5m Double leaf door LHA MATT MATT MATT MATT JP JP JP JP JP 0.75m Single leaf door wood RH skirting skirting skirting skirting skirting 3 / 1 2022 7 1 6 1

Turn static files into dynamic content formats.

Create a flipbook
Issuu converts static files into: digital portfolios, online yearbooks, online catalogs, digital photo albums and more. Sign up and create your flipbook.