Abbie Baxter - Interior Design Portfolio

Page 1


Education

BachelorofScienceinInteriorDesign3.45/4.00GPA

•CouncilofInteriorDesignAccreditation

•MississippiStateUniversity,Starkville,MsAugust2022

•Minor:Architecture

•GraduatecoursesinMFAinHistoricPreservation

Skills

ComputerSkills

Photoshop

Illustrator

InDesign

MicrosoftWord

MicrosoftPowerpoint

Revit

Enscape

DesignSkills

HandRendering

ManualDrafting

SpacePlanning

Sketching

•Chicago,IL

•NewYorkCity,NY

•SanFrancisco,CA

•Atlanta,GA

•Dallas,TX

•Savannah,GA

•Bareieldstudentcompetition2ndplaceSpring2021

About

NEXTBeauty’sisahighendmakeup companylocatedinNewYorkCity.Next pridesitselfondiversityandishighly involvedinthelocalManhattanculture. Theheadquartersrelectsthecompany ethosbyprovidingemployeeswitha multitudeofrelaxedworkareasforevery situation.

Concept

NEXTBeauty’sManhattanoficeis inspiredbythecontrastbetweenthe naturalandbuiltenvironment.This ideaisillustratedbytheimageofa wildlowergrowingupthroughacrackin concrete.Thisimageisseenthroughthe spacebywayofnaturalformslayered overanindustrialdesign.

•Workplacesmustequallysupport individualwork,aswellasgroup work.

•Anemployeeshouldbeableto quicklygofromworkingaloneto sharingtheirthoughtswithina groupsetting.Thisisaccomplished byhavingmultipletypesof workspacesinanarea

•Usingacousticalpartitionsaround individualworksettingshelpsnot onlywithsound,butalsoprovides privacytoemployees.

•Allsuccessfulspacesinthe workplacearemulti-functional. Spacesshouldbepracticaland servediversegroupsofpeople.

•Providingluidspaceswith lexablefurniturethatcanbe arrangedintoany conigurationneededand allowsspacestoservemore thanonepurpose.

•Open+enclosedspacestake bothconceptsandcombine them.

•Peopleshouldhavecontrol overtheirworkspace,to provide maximumcomforttoall employees.

•Thereshouldbemoreopen andenclosedworkspaces.

•Openworkspacesshouldbe luidenoughtogofroma “me”toa“we”spaceatany givenmoment.

Reception

Furniturelayoutallowsgueststositinsmallgroupswithoutfeelingclaustrophobic.

Ceilingcloudsaidinnoisecontrol.

Patternonceilingcloudsdesignedtoresemblecracksinconcrete.

Roundedstairrelatestoconceptofthenaturalvs.builtenvironment.

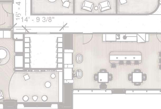
OpenWorkArea

Spacedesignedtoprovideemployeeswithavarietyofdifferenttypesofworkspacestochoosefrom. Meetingspacesintheareaarelexibleandcanmovedtomeettheneedsofeveryemployee.

Ampletechnologyhasbeenprovidedateverytypeofworkspace. Ceilingandlooringchangedeinetheworkspace.

MeetingArea

Residentialinspiredopenmeetingarea. Curvedceilinghelpstodeinethespacebyloweringtheceilingheightandcreatingamoreintimate spaceforemployeestomeetortakeabreak.

Nextbrandingalongwallshowcasescompanyproducts. Flooringchangesdeinemeetingspaces,enclaves,andworkareas.

RetailMock-Up

Retailmock-upspaceprovidesemployeeswithanareatoshowcasetheirproductsandtoseethe merchandisingoftheirstoresaroundthecountry.

Circulartablesprovideaspacetoshowcasenewproducts,whilethebackwallprovidesaspacefor therestoftheproducts.

MirroredvanitiesprovideaspaceforguestoremployeestoexperimentwithNEXTBeauty products,andexperiencetheproductsthemselves.

WorkCafe

Yellowandwhitetilesresemblebrokenconcreteanddeineeachseatingarea. Plantersofferagreenspaceandcreateacontrastbetweenthenaturalworldandthe builtenvironment.

Openceilingaddsextraspaceandnaturallightingintheworkcafe.

About Concept

RedRockBehavioralHealthClinicislocatedin ClevelandOH.RedRockisaninnovativeclinic thatspecializesintherehabilitationofthosewho strugglewithdrugaddictionandanxiety disorders.Theuseofexibledesignallow physicianstofocusonvalue-basedcareto patientsrangingfromtheagesoftwotoeighteen.

RedRockBehavioralHealthClinicwasateam projectwith2members.Personalresponsibilities include,spaceplanning,relectedceilingplan, buildRevitmodel,renderingperspectives.

Theconceptforthisprojectwasinspiredby ceramicsandtheprocessinwhichtheygo throughtobetransformedintoworksofart.Much likethetransitionclaygoesthroughinorderto formsomethingentirelynewandbeautiful,the patientsofRedRockareguidedbyphysiciansto addresstheirissuesandlearntodealwiththem.

Reception

Flooringandceilingdetailvisuallyguideguesttoreceptiondesk. Naturalformsthroughoutspacesupportconcept. Ceilingcloudoverreceptiondeskpromoteswayindingandacoustics.

Sensorywallandbookshelfprovideactivitiesforchildrenwhile waiting.

Neutralcolorsusedthroughoutspacetoprovidecalmingatmosphere. Multipleseatingoptionsprovidespaceforgroupsorsinglepersonwaiting.

KidsZone

Antimicrobialmaterialsusedthroughoutspace. CurvingPanelelementsupportsconcept. TreyceilingandLEDlightchannelallowsforasofterlightingoption.

BreakRoom

Breakroomlocatedonexteriorwindowstoprovidenaturallighting.

MultipleSeatingtypesprovidedforstaff.

AboutTheHighstreetHotelisaboutiquehotel locatedinMiamiFl.TheHotelislocatedin a4story35,000SFbuildingintheheartof Miami.TheHotelhasamenitiessuchasa restaurant,coffeebar,spa,apartments, andarooftopbar.

TheHighstreetHotelwasateamproject with4members.Personalresponsibilities include,spaceplanning,buildRevitmodel, renderingperspectives,completeone rendereddigitalwalk-through.

Concept

TheHighstreetHotelisinspiredby BroadwayMusicals.Eyecatchingelements drawinresidentsandvisitorstofeelasif inthesettingofamusical.Flooring throughoutleveloneisconsistentthrough spacestocreatecohesionandlowwhen movingfromspacetospace.

FrontFacade

ReceptionDesk

Lobbydesignincorporateselementsfromtheaterinterior.

Flooringdesigncreatesvisuallowtoreceptiondesk.

Draperyarounddeskincorporatestheaterelementandcreatesfocalpoint.

RestaurantRendering

Eyecatchingcolorscreatevibrantandjoyful environment

Boldgeometricpatternsinspiredbythe1960’s andthemusical.

NEWHORIZON

SpaReception

Colorsandtexturesinspaareindicativeof Africansavanna. Naturalmaterialscreatesarelaxingenvironment foreachguest.

ByTheHighstreetHotel

Cofferedceilingcreatesawarmandintimate spaceforguests. Levelsoflightingallowguestscontrolofthe space.

GuestroomRendering

AtTheHighstreetHotel

ApartmentRendering

ArchitecturaldetailsinspiredbytraditionalEnglishdesigns. BirdLightingrelatesbacktoconcept. Playfulcolorsandpatternsbalancetraditionaldetails.

Swim-UpBar

RooftopAxonometric

RooftopBarlocatedunderdome.

Performanceareaprovidetoshowcaselocaltalent.

Domeovertherooftopbarisinspiredby themanydomedroofsinGreece.

Boldbluecolorusedthroughouttherooftop connectsthebartothemusicalMammaMiaand toitssettingofGreece.

CoveredSeatingandPool

CoveredseatingprovidesshadefromtheFloridasunshine. Pooloffersswim-upbarandloungeseatingthatsitsonaledgejustinthewater.

AboutAlloyisahighenddepartmentstore whoselagshipislocatedinan8,000SF spaceindowntownToronto,Canada. Torontoisahighlydiverse,inclusive,and forwardthinkingcity,whichrelectthe ethosofAlloy.Thestorefocus’onmenand womensclothingandaccessories,butalso hasasmallcigarlounge.

Concept

Theconceptforthedepartmentstoreis mining,andwhatiscreatedwhentwo differentnaturalmetalsaremelteddown andmixed,akaan“alloy”.Miningisthetop industryofOntario.Theseminesproduce largeamountsofcopperandtin,which canbemeltedtogethertocreatebronze. Theseelementsareimplementedinthe designthroughtheuseofnaturalforms andmetallicwalls,pairedwith minimalisticixtures.

RECEIVING

ROOM

SCARVES

R.ROOMW. LOUNGE

EYEWEAR

FirstFloorBubbleDiagram

STOCK ROOM

FURSGRAND STAIR

FITTING ROOM

SecondFloorBubbleDiagram

FloorPlanLegend

1.Vestibule

2.ElevatorLobby

3.Fragrance

4.Wallets

5.Belts,Gloves,Scarves

6.Handbags

7.Eyewear

8.Lounge

9.Watches

10.Hats

11.FineJewelery

12.Restroom

13.CashWrap

14.StockRoom

15.Receiving

Metallicwallcoveringimplementsconcept. Accentwallinloungeareacreatesan“Instagramable”moment,while stillrelectingconcept.

Linearlightingaroundceilingandbuilt-incaseshighlightsproducts.

Hardanglesthroughoutdesignrepresentrocks. CashWrap

Ceilingdesignresemblesceilingofcave,whilealsohelpingwith acoustics.

Shapeofspaceisinspiredbythetypicaldesignofanundergroundmine. Humidiierandventilationsystemforcigarslocatedinceiling. Warmerlightingandmaterialsprovideamoreintimatesettingforlounge.

WhiskeyandCigarLounge

Turn static files into dynamic content formats.

Create a flipbook
Issuu converts static files into: digital portfolios, online yearbooks, online catalogs, digital photo albums and more. Sign up and create your flipbook.