Aaliyah Foley Interior Design Portfolio

Page 1

POR

SELECTED WORKS 2019-2021 I N T E R I O R A R C H I T E C T U R E
AALIYAH
TFO LIO FOLEY

AALIYAH FOLEY

Throughout my life I have always wanted to choose a career that served others, as helping others brings me great joy. Additionally, I have always been a creative individual and found it very easy to self-express through various forms of art from a young age. That’s why it was crucial for me to follow a path that blends the two together. Allowing me the ability to be creative and serve others simultaneously. I feel a responsibility to use my talent and abilities to create spaces that work for all. I believe that every person deserves to experience great design and no one should ever be negatively impacted by the design that surrounds them. For that reason, I chose design.

GET IN TOUCH Aaliyahfoley0123@gmail.com 763. 999. 0369
ABOUT ME

01 02 03 04 05

COCA-COLA

OFFICE

COMMERCIAL RESIDENTIAL 06 07 08 09 10

PARADE HOME

SAX LUXURY

PURSE SHOP

SCOTTSDALE

ASC

WEST HAVEN

EDUCATION

ST. PETE CAFE

INTERNATION AL VACATION HOME

DOSHI & O’BRIEN

BATHROOM

VACATION BEDROOM

OTHER WORKS

OFFICE

Coca-Cola is looking to relocate their headquarters from Atlanta to Chicago. They hired me to create a space that would accommodate and work for all employees. This space serves a variety of tasks such as meetings, daily offices, brand development and more.

Project goals included promoting creativity and healthy work life.

MAY 2021 COCA-COLA
COMMERCIAL 01

B R A N D V A

L U E S

LOUNGE

MEETING ROOMS

OFS Denero Walnut OFS Lona Lounge
INSPO
293' - 6 23/32" 69' - 7 13/32" 157' - 11 1/32" 66' - 0 3/16" 44' - 8 13/16" 24' - 10 11/16" 26' - 3 27/32" 32' - 4 3/32" 31' - 11 1/2" 64' - 6 19/32" 29'2 7/32" 79'6 27/32" 30'6 29/32" 14' - 8" 14' - 3 5/8" 25' - 0" 10' - 0" 27' - 0" 6' - 0 3/8" 19' - 4 23/32" 16' - 3" 16' - 3" 12' - 6"7' - 6"14' - 6" 22' - 0" 1 3 4 '7 1 7 / 3 2 " 87' - 4 11/32" 55' - 10 29/32" 134' - 0 3/32" 1 4 9 '5 7 / 3 2 Scale Project number Date Drawn by Checked by 1" = 30'-0" 5/12/2021 6:08:09 PM 103 DIMENSIONED FLOOR PLAN 2020 COCA-COLA HEADQUARTERS 05. 04. 2021 AF JM No. Description Date 1" = 30'-0" 1 Level 1 DIMENSIONED FLOOR PLAN

COCA-COLA HEADQUARTERS

A B C D E F G H Scale Project number Date Drawn by Checked by 1" = 30'-0" 5/12/2021 5:59:23 PM 103 DIMENSIONED FLOOR PLAN 2020
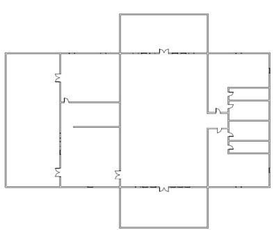
05. 04. 2021 AF JM No. Description Date 1" = 30'-0" 1 Level 1 DISPLAY OPEN OFFICES OPEN OFFICES GYM GAMEROOM CAFE LOUNGE OPEN WORKSPACE LOUNGE OPEN WORKSPACE FORUM SEATING LARGE CONFERENCE SMALL CONFERENCE TRAINING ROOM WORK ROOMS OFFICE OFFICE OFFICE OFFICE STORAGE OFFICE M BATH W BATH MEETING MEETING MEETING MEETING LARGE MEETING MOTHERS ROOM MR 3 MR 2 ELEVATORS MENS BATH WOMENS BATH COLLABORATION RECEPTION BEVERAGE STATION ENCLAVES RESORCE ROOM OUT OF CONTRACT REC SPACES ALONE TOGETHER NON WORK OPEN AREA/ TOGETHER LEGEND: ZONING PLAN

NOTES:

CUSTOM WOOD WALL PANNELING

1” X 1” PORCELAIN MOSAIC TILE IN MATTE

4” x 4” MOSAIC WHITE SQUARE TILES 2 FLEX MOVABLE STOOLS 1 2 3 4

OPEN OFFICES

ENCLAVES E1 CAFE
CARNEGIE MENTOR LUNA MICRO BUBBLY CARNEGIE MENTOR LUNA MASON POTTER CARNEGIE COPA LAWFORD CARNEGIE MENTOR CARNEGIE MENTOR CARNEGIE MENTOR FOURM SEATING
OPEN
LOUNGE WORKSPACE OFS Lean To OFS Lona Lounge

PURSE SHOP

For this spaceI I was tasked to create a retail store in Los Angeles, California. The goal of this project was to design in a luxury purse shop and compliment the interior with a branding package.

MARCH 2021 SAX LUXURY
COMMERCIAL 02

LOCATED IN LOS ANGELES CALIFORNIA

AN EXISTING BUILDING WAS SELECTED AND REMODELED IN A BUSY SHOPPING AREA. THIS LOCATION WAS SELECTED DUE TO THE AMOUNT OF TOURISM AND EXPECTED SALES. IN ADDITION TO THE FASHION INFLUENCE WITHIN THE LOCAL COMMUNITY. THE GOAL WITH THIS PROJECT WAS TO REACH A VARIETY OF USERS THROUGH DESIGN AND BRANDING.

NOTES:

1. CONTRACTOR TO FIELD VERIFY EXISTING CONDITIONS AND DIMENSIONS

2. ALL EXISTING COLUMNS TO STAY

3. REPLACE ALL ENTRY AND EXIT DOORS

4. REMOVE AND DONATE ALL EXISTING DOORS

5. REMOVE AND DONATE EXISTING FLOORING MATERIALS

6. REMOVE AND DONATE ALL EXISTING FIXTURES

7. REPLACE MISSING OUTLETS AND LIGHT SWITCHES

8. MOVE EXISTING BATHROOMS

9. ADD NEW MOTHERS ROOM

10. MODIFY BREAK ROOM WALLS TO ALSO SERVE AS STORAGE FOR INVENTORY

11. UPDATE SECURITY SYSTEM

THE DESIGN WAS INTENDED TO FEEL BOTH ELEGANT AND SOPHISTICATED WHILE ALSO REPRESENTING A SIMPLISTIC AND MODERN FEEL. FASHION IS FOR EVERYONE, AND SO ARE OUR PRODUCTS. PURSE DESIGN IS NOT LIMITED TO AN AGE, INCOME OR GENDER AND IT WAS IMPORTANT THAT WE KEEP A STRONG BALANCE OF MINIMALISM AND EQUALITY IN OURPRODUCT LINES AND BUILDING DESIGN.

12. ADD RAMP IN BACK OF BUILDING/ LOADING DOC

13.NEW BUILT-INS TO BE INSTALLED

14. RECEPTION WALL TO BE QUARTZ

15. FLOORING TO BE USED ON WALLS SPECIFIED

16. LIGHTING STRIPS TO BE INSTALLED ABOVE WALL PANELING DETAILS

LEGEND EXTERIOR WALL INTERIOR WALL COLUMN BUILT-INS FLOOR PLAN DRAWN BY AALIYAH FOLEY PROJECT NUMBER 1001

BRANDING SHEET

PRIMARY LOGO

ALTERNATIVE LOGOS

MOOD

GOURMET LE FRENCH

ABCDEFGHIJKLMNOPQRSTUVWXYZ

0123456789

COLOR PALETTE FONTS

CUSTOM LED STRIP

CUSTOM WOOD PANELING SHEETS

CUSTOM BUILT-INS FOR DISPLAY

DISPLAY RACK FOR CLOTHING

EXISTING CONCRETE COLUMNS

CUSTOM BUILT-INS FOR DISPLAY

OTTOMANS FOR SEATING OR PRODUCT DISPLAY

CUSTOM WOOD PANELING SHEETS

MIRROR WITH BLACK FINISH DISPLAY RACK FOR CLOTHING GLASS DISPLAY

QUARTZ SLAB WALL CUSTOM WALL
LIGHT
RECEPTION GLASS DISPLAY TABLE
CUSTOM
TABLE

ASC

Scottsdale Ambulatory Surgical

Center is located in Scottsdale, Arizona. This healthcare facility offers same day operations to members of the community. Ascs are becoming increasingly popular due to convenience, ease and cost savings. A key factor of this project was designing not only for the patients but their families.

MARCH 2021 SCOTTSDALE
COMMERCIAL 03

CONCEPT

Opuntia macrocentra (plant)

Known as prickly pair catus

For this project a minimal neutral pallet of white and woods were selected. Pulling inspiration from the Arizona natural landscape such as cacti, succulents and sunsets. We specifically pulled from elements of prickly pear cacti such as the shape and lines you will see in the plant. We used a variation of greens and purples for finish selections. It was important to bring the outdoors in and emphasize natural lighting while incorporating the element of biophilia. Overall this space aimed to be open, airy and clean.

SCOTTSDALE MISSION

Scottsdale ambulatory surgical center is a space that welcomes all users to be seen for same day surgery operations and experience exceptional service and medicine in the most comfortable space possible. We aim to offer a unique experience that provides ease and comfort while receiving necessary care. We also believe that your support team matters and we value the incorporation of your loved ones in your experience with us and recovery.

RESEARCH

ASCs have improved surgical experiences for patients by providing a more convenient option that often reduces a patients stress level. They are highly regulated to ensure qualityand safety of patients.

ASCs are not rural health clinics, urgent care centers or ambulatory care centers that provide diagnostic or primary health care services. ASCs treat only patients who have already seen a health care provider and selected surgery as the appropriate treatment for their condition. ASCs are not physicians’ offices either.

Additionally ASCs tend to be much smaller in size and are community based small businesses (70% of ASCs have less than 20 employees). Patients benefit from their size, since doctors and nurses can pay close, personal attention to each individual patient.

WEST HAVEN EDUCATION

West Haven intermediate education is a public facility for local Utah children grades 5-8. This facility needed it’s media center and classrooms redesigned to better suit students and encourage active learning. This project dived into color theory research and the benefits of biophilia on learning.

MARCH 2021
COMMERCIAL 04

CONCEPT

LIFE
CLASSROOM TUTORING CENTER STUDENT COMMON AREA MEDIA CENTER FLOOR PLAN CALLOUT 3 A1 2 A1 LEGEND B A C D E F
SHAPE MOVEMENT GROWTH

FURNISHINGS PLAN ROOMS

LEGEND

2 A1 A- D CLASSROOMS

STUDENT ROOMS

E STUDENT STUDY COMMONS F TUTORING CENTER

STEELCASE VERB CHEVRON DESK F2

STEELCASE FLEX SLIM TABLE F15

STEELCASE SCOOP STOOL F30

STEELCASE ENEA CAFE STOOL F31

STEELCASE BUOY F36

STEELCASE FLEX MARKERBOARD WITH STAND F38

STEELCASE DAVOS SMALL BENCH F39 CUSTOM WOOD TABLE F37

STEELCASE CAMPFIRE BIG TABLE F40

STEELCASE NODE TRIPOD BASE F4

STEELCASE SOTO MONITOR BRIDGE F37

STEELCASE FLEX MARKERBOARD WITH STAND WITH STAND F41

STEELCASE GESTURE CHAIR WITH HEADREST F1

STEELCASE EDGE SERIES MARKER BOARD F5

STEELCASE FLEX MARKERBOARD F6

STEELCASE VERB RECTANGLE TABLE F11

STEELCASE FLEX SLIM TABLE F14

STEELCASE OCULUS CHAIR F41

STEELCASE BIVI DEPOT F42

STEELCASE KITCHEN F43

I SPACES OTHER
A B C D E F
TOGETHER
SPACES

ELEVATION CLASSROOM KITCHEN

ELEVATION STUDENT COMMON AREA

ST. PETES CAFE

St. Pete’s Cafe in St. Pete, Florida is open for business and ready to serve breakfast and brunch! Take your order to-go or stay a while and enjoy the peaceful and calm atmosphere.

AUGUST 2021
COMMERCIAL 05

Natural

F1 F2 F3 F4 F5 INSPO F6
CLIENT REQUESTS
seating
Indoor & outdoor
lighting
Bright & airy
Natural materials

HOME

Iowa Parade of Homes designed for the Moorman family. This home is located in Springville, Iowa and will serve as the family’s forever home. It was crucial to meet each family member’s needs and create a beautiful space that would age well with the family.

MARCH 2021 PARADE
RESIDENTIAL 06

CONCEPT

Moorman family of six is looking to build a new home. The space will be in Springfield Iowa, a city in Linn County.

Inspired by Jillissas personal style of mid century modern meets farmhouse. With an emphasis on architectural features and focusing on a minimal, clean and modern color palette. Consisting of neutrals and pops of greens.

This will be the familys forever home and needs to work for each member including their newest addition Allie, their family pet who will serve as Karters service dog. It’s important that this home is also suited to entertain guests. The family values quality time together and communal spaces while also wanting unique and custom spaces for each family member. This home needs to grow as their family does and should be as comfortable and timeless as possible.

Husband and wife Brooks and Jillissa mid 30’s Childreen Kayla 11 years old Kolson 9 years old Karter 7 years old Kensley 5 years old
R U S T I C M O D E R N A I R Y S I M P L E C A L M

CLIENT REQUESTS

Two offices

In home gym

Two living rooms

Two washers and two dryers

Two dishwashers

Large laundry rooms with islands or ample counter space

Kitchen with lots of storage and prep space

Pantry and additional kitchen storage

Mud room or second entrance for children

A guest room or suite for mother in law

An outdoor space

A three car garage

Walk In closets

Acoustic music room

A space for a prayer board

Custom storage and fridge for Karters

medications

Separate vanities for Brooks and Jillissa

Wood and carpet

Lots of windows No bright colors or reds

White walls and trim Light linens
Modern Farmhouse Architecture
Blacks Greys Browns Greens Blues
Mid century modern
Whites
PRIMARY SUITE

EMERGENCY ROUTE EMERGENCY EXIT WINDOW

SMOKE DETECTOR FIRE EXTINGUISHER

EMERGENCY PHONE FIRST AID STAIRS

NOTES:

1. SAFEST PLACE FOR STROM SHELTERING IS IN LOWEST LEVEL

2. EMERGENCY MEETING

LOCATION ACROSS THE STREET AT JOHNSON FAMILYS HOME

4’ 8” 1’ 11” 2’ 6” 1’ 6” 2’ 6” 2’ 6” 1’ 11” 1’ 11” 1’ 6” 2’ 9” 1’ 6” 1’ 11” 4’ 6” 1’ 9” 3’ 8” BLACK BASE
FIGURE = 5’7” FEILD VERIFY EXISTING CONDITIONS AND DIMENTIONS GOLD PULLS BUILD.COM
CABINETS SCALE
WHITE UPPER CABINETS
PENDANT LIGHT
4’ 6” 1’ 9” 3’ 8” 1’ 11” 1’ 11” 1’ 11” 1’ 11” 3’ 2”
KOHLER FAUCET AND SINK SAMSUNG FRIDGE
WOOD FRONT ON ISLAND CAMBRIA
ELLA COUNTERTOP AND WATERFALL TARGET UTENSIL CUP
MAGNOLIA
CUTTING BOARD CLE WHITE GLOSS CERAMIC SUBWAY TILES
PENDANT LIGHTING WHITE UPPER CABINETS
WISHWASHER BUILTINS
MAY 2021 VACATION HOME International vacation home located on Lake Malawi, Malawi. This African inspired home will be owned by the Anderson family of 4. The family will visit each summer and will rent the home out during their working months to create passive income. The family wanted a relaxing space that matched local homes with an American twist. RESIDENTIAL 07

CLIENT OVERVIEW

The Anderson family is looking to build a seasonal vacation home for their family in Malawi, Africa. The home will be right on Lake Malawi and will be used by the couple and their two teenage children. They also plan to rent the home out during their working months to friends and tourists for passive income.

The home needs to be fully furnished while keeping in mind that renters will be using the space. They are looking to support local business and artists and have asked me to research and select companies accordingly. They are inspired by the local design but have a few ideas for the space and inspirational images that they have provided.

CONCEPT

ZONING PLAN

CLOSET BED ROOM BATH ROOM PATIO ENTRY DINING ROOM KITCHEN LIVING ROOM HALLWAY
ACCESSIBLE FOR ALL GUESTS PASSIVE INCOME RELAXING GETAWAY SUPPORT LOCAL BUSINESS
PRIMARY BATH

Letter of Agreement

Dear Mr and Mrs. Anderson,

I would like to thank you both for trusting me through the design process of your new vacation home located on Lake Malawi, Malawi. I am ecstatic that you have entrusted me to create such a unique and special space for your family. Your partnership with Aaliyah Foley Design brings a team who is dedicated and experienced in the hospitality industry that is well suited for your project. My company values accessible, sustainable and diverse design and we aim to give your family just that.

We value the inclusion of our clients during the entire design process and promise to keep you connected during all stages of the project. Additionally, the design process of your international vacation home will be managed by our designated project manager who will also work closely with your family and our qualified team.

A summary of the services to be performed include Preliminary drawings and specifications

Preparing elevations of spaces with built-ins such as the kitchen and bathrooms

Prepare conceptual construction plans

Gather and purchase all FF&E selections for the project

Communicate with needed contractors, architects and other required professionals

Produce a 3d model

Produce final renders of the 3d model/ conceptual ideas

In regards to compensation your project shall be billed per sq. ft at the cost disclosed per your contract with an additional $25.00 hourly rate. Additionally, all travel expenses needed for myself or our team including airfare, lodging and dining shall be paid no later than 1 month prior to traveling. Upon singing a $1,000 retainer will be required.

Additional fees will be discussed and billed accordingly.

Thank you, Aaliyah Foley

COMPANY WEBSITE

COMPANY CONTACT

mamamalawi.com

PREPARED BY Aaliyah Foley

ISSUE DATE 04.12.21

LOCATION Dining Room

LABEL WD2

QUANTITY

PRICE e$39,500

QR CODE

Info@mamamalawi.com

MANUFACTURER

PRODUCT TYPE

PRODUCT NAME

PRODUCT NUMBER

FINISH

DIMENSIONS

DESCRIPTION

NOTES

Mama Malawi

Residential Wall Decor

Binga Wall Basket L

locally harvested materials – such as wild grasses, small vines, and palm leaves dyed with tree bark are turned into Binga baskets

Binga Baskets are traditionally woven by the women of the Binga district in Zimbabwe and are decorative pieces for your household. Basket walls are hip and happening and they form a nice income for Tonga women who weave them.

Binga baskets are woven using the over and under style of ‘simple’ weaving and a 16 inch diameter basket can take around 3 days to complete. The baskets are finished using a coiled rim with a distinctive herringbone pattern.

These baskets are named for the remote Binga district – home to the displaced baTonga people. In the early 1960’s, their fertile lands on the Zambezi river shore were permanently buried in water during construction of the world’s largest man-made lake.

PRIMARY SUITE

S D S D S D EXIT/ ENTRANCE EMERGENCY PATH FIRE EXTINGUISHER SMOKE DETECTOR CARBON MONOXIDE DETECTOR FIRST AID KIT
LIFE SAFTEY PLAN
S D c

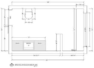
DOSHI & O’BRIAN BATHRROM

Owen O’brien and Deepa Doshi are a young couple looking to add a guest bath on their first level.

This space will be used by Deepa’s parents while visiting. Deep’s mother is disabled and this space needs to be ADA accessible for her. They did not want to sacrifice design aesthetics for accessibility and wanted a spa-like feeling in this space.

NOV 2020
RESIDENTIAL 08

CONSTRUCTION PLAN

ACCESSABILITY

NOTES CONTINUED 4.WALL HUNG VANITY FOR ADA ACCESSIBILITY 5.SHOWER SEAT FOR ADA ACCESSIBILITY 6.GRAB BARS TO BE INSTALLED FOR BOTH TOILET AND SHOWER ACCESSIBILITY 7.PULL VANITY KNOBS FOR ACCESSIBILITY 8.SEAMLESS WOOD FLOORING TO PREVENT TRIPPING OR LIMITING WHEELCHAIR ACCESS 9.(T1) HEATED TEAK WOOD FLOORING (NOT TO BE INSTALLED IN SHOWER) 10.HEATED TEAK WOOD FLOORING CONTROLS TO BE INSTALLED ON THE BATHROOM EXTERIOR WALL IN THE HALLWAY 11.(T2) SHOWER FLOORING TO COLLECT WATER BETWEEN WOOD PIECES, GRAY WATER WILL THEN BE USED TO FLUSH THE TOILET 12.SINK WATER WILL ALSO BE USED AS GREYWATER TO FLUSH THE TOILET 13.TOILET WILL HAVE AN AUTOMATIC FLUSH FEATURE 14.WATER-RESISTANT CEILING PAINT FOR ANTI PEELING PROPERTIES 15.(A)KOHLER DROP-IN SINK 16.(B)KOHLER SINK FAUCET 17.(C)KOHLER TOILET 18.(D)KOHLER TOILET PAPER DISPENSER 19.(E)KOHLER SHOWER HEAD NOTES 1.CONTRACTOR TO FIELD VERIFY EXISTING CONDITIONS AND DIMENSIONS 2.ALL MATERIALS TO BE WAREHOUSED FOR 2 WEEKS PRIOR TO INSTALLATION 3.REMOVE AND DONATE EXISTING MATERIALS TO HABITAT FOR HUMANITY A B C D E
FLOOR PLAN
NOTES CONTINUED 4.LOCATED ON THE HOMES FIRST FLOOR 5.THE EXISTING LIBRARY WAS CONVERTED INTO THE BATHROOM 6.THE WINDOW FACES THE EAST OF THE HOME 7.WINDOW TO BE REPLACED IN SHOWER FOR AMPLE NATURAL LIGHTING 8.SKYLIGHT FOR AMPLE NATURAL LIGHT 9.POCKET DOOR TO MAXIMIZE ADA TURN AROUND SPACE 10.FLOOR TO CEILING CUSTOM CUT GLASS SHOWER WALL LEGEND EXISTING WALL NEW WALL NEW WINDOW NEW POCKET DOOR NOTES 1.CONTRACTOR TO FIELD VERIFY EXISTING CONDITIONS AND DIMENSIONS 2.ALL MATERIALS TO BE WAREHOUSED FOR 2 WEEKS PRIOR TO INSTALLATION 3.REMOVE AND DONATE EXISTING MATERIALS TO HABITAT FOR HUMANITY
FAMILY TOTAL SAVINGS WATER
LIGHT SAVINGS
SAVINGS

CUSTOM WALL HUNG ADA COMPLIANT VANITY WITH MARBLE TOP KOHLER SINK FAUCET

CUSTOM RECLAIMED FLOATING SHELVES

CUSTOM TEAKWOOD HEATED FLOORING

CUSTOM TEAKWOOD FLOORING/WATER COLLECTION PANELS

MARBLE SHOWER

KOHLER SHOWER HEAD

RENDERED FURNISHINGS PLAN
KOHLER
KOHLER TOILET ROLL DISPENSER POCKET DOOR CONCRETE WALL FINISH GRAB BAR 1 2 3 4 5 6 7 8 9 10 11 12 1 2 3 4 5 6 7 8 9 10 11 12 12 12
TOILET

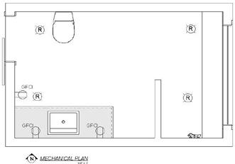
MECHANICAL PLAN

NOTES

A.CONTRACTOR TO FIELD VERIFY EXISTING CONDITIONS AND DIMENSIONS

B.ALL MATERIALS TO BE WAREHOUSED FOR 2 WEEKS PRIOR TO INSTALLATION

NOTES:

1. CONTRACTOR TO FIELD VERIFY EXISTING CONDITIONS AND DIMENSIONS

2 . SCALE FIGURE IS 5’-7”

3. CONCRETE WALLS

4. CUSTOM WALL HUNG ADA COMPLIANT VANITY

5. KOHLER DROP IN SINK

6. KOHLER SINK FAUCET

7. HUNG RECTANGLE OIL RUBBED CHROME MIRROR

6’-3” 2’-8” SCALE: 1/2” = 1’-0”
NOTES CONTINUED C. ALL LIGHTS ARE LED POWERED D. GCFI OUTLET WHEN 6’ OR LESS FROM WATER SOURCE LEGEND RECESSED LIGHT VENT FAN UNDER SHELF LIGHT GFCI OUTLET WIRING

VACATION HOME BEDROOM

Located in Missoula, Montana this beautiful vacation home is nestled in the mountains and surrounded by nature. The Peterson’s are requesting design assistance in renovating their primary bedroom. They’re looking for this space to be minimalistic while combining Julie and Brad’s two design styles : Mid-Century Modern and Scandinavian.

OCT 2021
RESIDENTIAL 09

CLIENT REQUESTS

CLOSED STORAGE SPACE FOR SEASONAL OUTDOOR WEAR

SEATING FOR SNOW GEAR DRESSING

SEATING FOR MORNING COFFEE

NATURAL MATERIALS

DARK SELECTIONS

MID-CENTURY MODERN

SCANDINAVIAN

INSPIRATION

Andes Live Edge King Bed Curvilinear Mid-Century 2-Light Long Sconce Caravon LED Wall Sconce Huntsman Carl Hansen & Son Oiled Walnut & Cognac Leather Chair Spinneybeck Brown Cowhide Rug Foss Adjustable Walnut Cocktail Table Bentwood Walnut Round Mirror Custom Framed Buffalo Wall Art Pierced Leather Pillow Alpaca White Designer Pillow Scandinavian Modern Throw Pillow Jacey Grey Rug A B C D E F G H I J K A L B C D E F G I J K L H
FURNISHINGS SELECTION

2019-2021

ADDITIONAL

HAND RENDERS & CERAMICS

In addition to design, I have had a passion for pottery for many years. I have found some calm in day to day life while getting my hands dirty working with clay.

Ceramics has taught me to “center” not only in throwing but to center myself.

I’m a huge advocate for ceramics as a form of art therapy or just a “reset” for anyone. I have also included some of my favorite interior design hand renders created by a variety of techniques such as stippling.

10
THANK YOU FOR VIEWING GET IN TOUCH Aaliyahfoley0123@gmail.com 763. 999. 0369

Turn static files into dynamic content formats.

Create a flipbook
Issuu converts static files into: digital portfolios, online yearbooks, online catalogs, digital photo albums and more. Sign up and create your flipbook.