Costa Rica y la arquitectura prodigiosa de lo verde

Page 1


Editorial Libro Libre, arquitecto Bruno Stagno, Costa Rica. Foto de Oscar Abarca.

ARCHIVOS DE ARQUITECTURA ANTILLANA

Director/Editor

Gustavo Luis Moré

Coeditor Invitado

Luis Diego Barahona

Consultor de Diseño

Massimo Vignelli

Diseño Gráfico

Noly Navarro

Fotografía

Oscar Abarca

Ricardo Briones

Miriam Calzada

Gerente Administrativa

María Cristina de Moré

Gerente de Ventas

Patricia Reynoso

Secretaría

Raquel Suero

Correctora de Estilo

María Cristina de Moré

Preprensa e Impresión

Editora Corripio, S.A.

Suscripción, venta y publicidad

Santo Domingo

Patricia Reynoso

Tel 809 687 8073

Fax 809 687 2686

Miami

Laura Stefan

305 471 0409

Carolina Piernavieja

305 715 7354

San Juan

Emilio Martínez

787 726 7966

Comité Internacional

América Latina y Gran Caribe

Antillas Francesas: Gustavo Torres, Serge Letchimy, Jack Sainsily, Bruno Carrer

Argentina: Ramón Gutiérrez, Mario Sabugo, Julio Farfán

Brasil: Roberto Segre, Ruth Verde Zein, Hugo Segawa

Chile: Humberto Eliash, Sonia Tschorne, Sebastián Irarrázabal, Horacio Torrent

Colombia: Silvia Arango, Carlos Niño Murcia, Alberto Saldarriaga Roa, Claudia Fadul, Daniel Bermúdez

Costa Rica: Bruno Stagno, Luis Diego Barahona

Cuba: Mario Coyula, Eduardo Luis Rodríguez, José Antonio Choy, Omar López

El Salvador: Francisco Rodríguez

Guatemala: Blanca Niño Norton

Jamaica: Patrick Stanigar, Jaquiann Lawson, Patricia Green

México: Carlos Flores Marini, Louise Noelle Mereles, Ernesto Alva, Jaime García, Eliana Martínez

Panamá: Silvia Vega, Eduardo Tejeira Davis, Sebastián Paniza

Puerto Rico: Manuel Bermúdez, Segundo Cardona, Luis Flores, Emilio Martínez, Ricardo Medina, Andrés Mignucci, Jorge Rigau, Enrique Vivoni

Rep. Dominicana: Rafael Calventi, José Enrique Delmonte, Mauricia Domínguez, Eugenio Pérez Montás, Esteban Prieto Vicioso, Omar Rancier, Lowell Whipple

Trinidad y Tobago: Mark Raymond, Jenifer Smith

Venezuela: Ramón Paolini, William Niño, Enrique Larrañaga, Martín Padrón, Acier Calvo

Estados Unidos de América

Honolulu: William Chapman

Miami: Andrés Duany y Elizabeth Plater-Zyberk, Roberto Behar

New York: Joaquín Collado, Rafael Albert, Germán Pérez

Washington D.C.: Aurelio Grisanti, Francisco Ruíz

Comunidad Europea

Austria: Mayra Winter

España: Antonio Vélez Catrain, Lluis Hortet, Oswaldo Román, Víctor Pérez Escolano

Francia: Patricia Tolentino, Kyra Ogando

Italia: Carmen A. Corsani, George Latour Heinsen, Stefano Topuntoli, Julia Vicioso

AAA © es una edición cuatrimestral. Publicada en enero, mayo y septiembre. Santo Domingo: Número 25, septiembre 2006.

Para envío de colaboraciones, cartas o informaciones favor contactar al editor en: Gustavo Luis Moré / AAA, E.P.S. P-4777, 7801 NW 37th. St. Miami Florida 33166 USA. Dirección oficinas de redacción: Calle Benigno Filomeno Rojas #6, Penthouse 7 Norte, Torre San Francisco. Santo Domingo, República Dominicana.

Tel.: 809 687 8073. Fax: 809 687 2686.

E-mail: glmore@tricom.net. Sitio Internet: www.archivosdearquitecturantillana.com

Permitida la reproducción parcial siempre que se admita la fuente.

El editor no se hace responsable de los conceptos emitidos por los articulistas. Publicación registrada con el No. 83238 del 15/4/96 en la Secretaría de Estado de Industria y Comercio de la República Dominicana ©. ISSN 1028-3072.

La arquitectura prodigiosa de lo verde

Gustavo Luis Moré

Edificio Holcim

Bruno Stagno

El Barrio de la Bicocca en Milán: Un centro histórico para la periferia

Gregotti Associati International

Unitec Campus Zapopan, México

GVA y Asociados

Proyecto urbano para el Sector de Lakua en Vitoria-Gasteiz, País Vasco

Antonio Vélez Catrain

DoCoMoMo Dominicano: Willemstad, Curazao

Ronny Lobo

de la Bicocca en Milán: Un centro histórico para la periferia

Proyecto urbano para el Sector de Lakua en Vitoria-Gasteiz, País Vasco

Costa Rica y la arquitectura

prodigiosa de lo verde

Con esta edición de AAA 025, alcanzamos dos grandes objetivos. El primero, dedicar una sección importante del contenido de AAA a un especial sobre la arquitectura costarricense contemporánea, especial que tuvimos en agenda por varios años. La oportunidad se hizo propicia al conocer el libro de reciente publicación Nuevas Líneas de la Arquitectura Contemporánea Costarricense de la autoría del joven arquitecto Luis Diego Barahona, editor de la revista Líneas, del Colegio de Arquitectos de Costa Rica. Durante nuestra estancia en el X SAL, en Oaxtepec, México, el amigo argentino naturalizado costarricense Jorge Grané nos habló de esta iniciativa, y tuvo la gentileza de servirnos de enlace. A él nuestra gratitud.

Este libro de Barahona –quien junto al fotógrafo Oscar Abarca nos ha dado su apoyo solidario como editor asociado- es determinante por varias razones. Claro que evidencia el grado de adelanto de la escena actual en Costa Rica pero sobre todo, demuestra, desde la distancia, la democratización de una práctica cada vez más abierta, más participativa. También refleja la pujanza de la empresa privada como principal motor de la economía local, algo que parece ser común a muchos de los países de la región. Cada vez es menos frecuente encontrar proyectos públicos encabezando la lista de las obras notables. Esta es una noticia si no alarmante, al menos decepcionante, ya que en principio, mucha de la arquitectura histórica de representatividad social ha sido llevada a cabo por las autoridades religiosas, los gobiernos centrales y los ejercicios municipales. Este fenómeno espera por una eventual aproximación académica que le vincule a los hechos socio políticos y económicos que sin lugar a dudas le dan origen.

El inventario de obras seleccionadas para la edición de AAA ha sido realizado por varios arquitectos y obedece a intereses programáticos muy diversos. Como se podrá observar, se trata mayormente de proyectos de carácter institucional. Pequeñas y medianas empresas que comisionan sus sedes por medio de transformaciones a instalaciones existentes, o edificios de nueva planta son el caso más frecuente. La vivienda no escapa a las especulaciones formales típicas de una cultura de clima templado que se apropia de materiales industriales y artesanales con igual facilidad para orquestar sus propuestas. La atención al tema del sincretismo ambiental, uno de los flujos de estudio desarrollados por el ejemplar Bruno Stagno en su Instituto de Arquitectura Tropical -y que ha encontrado su aplicación por medio de innumerables proyectos y obras construídas- parece que ha permeado el ambiente de la práctica en general, una apreciación que requeriría del paso del tiempo para ser comprobada cabalmente.

Costa Rica acude a la escena internacional con estas propuestas y con este libro. Esperamos que sea un proceso capaz de continuar hasta obtener una densidad conceptual propia. Este país de gente pacífica y trabajadora, entregada al desarrollo integral de su sociedad, así lo merece.

El segundo objetivo que cumplimos es dar seguimiento a la edición AAA 018 preparada en mayo del 2004, dedicada a cubrir la iniciativa del concurso para el proyecto del Parque Central de Santiago. En ella presentamos, a manera de introducción, una serie de reportajes efectuados por la pareja de Ana Porcella y Lowell Whipple, sobre los jardines privados y los árboles singulares más destacados de la región. Este número resultó tener una aceptación extraordinaria entre la comunidad de paisajistas y urbanistas del país. No sólo por esto, sino por el significativo aporte que este tipo de publicaciones puede ofrecer a la cultura del verde y del espacio público en la República Dominicana, decidimos encomendar a dos destacadísimos fotógrafos la tarea de retratar algunos de los especímenes de mayor atractivo en el paisaje inmediato.

Ricardo Briones se ha pasado la vida de excursión en excursión, fotografiando la abundante biodiversidad de la naturaleza dominicana. Sus obras demuestran un profundo amor y conocimiento de ella, una atención admirable a sus detalles, diríamos que un don especial para ver a través de las formas y colores en total complicidad con la flora y la fauna de nuestro país. Es por esto que, después de terminar su trabajo en nuestra edición anterior (AAA 024 ), absolutamente dedicada a la arquitectura de la ciudad de Santo Domingo, le planteamos la posibilidad de realizar este reportaje sobre la “arquitectura” de los árboles dominicanos. Su positiva reacción fue contagiosa y aquí ven el resultado. Miriam Calzada es una consumada artista del lente cuyas imágenes, expuestas en dos muestras personales, la primera en la empresa DPI en noviembre-diciembre del 2000, y la segunda en el Museo de Arte Moderno en enero-abril 2006, pusieron en primer plano su sensibilidad por la vegetal belleza de estos magníficos personajes de la flora nacional. Miriam, siempre tan amable, acudió a nuestro auxilio a la primera petición, y nos regaló una serie de fotos espectaculares. A ambos, nuestro aprecio infinito por su calidad artística y su gran humanidad.

Continuamos la edición con 3 proyectos de gran escala, realizados por estudios de arquitectura destacados, en 3 lugares muy diferentes del globo. El barrio de la Bicocca, en Milán, es sin lugar a dudas el receptáculo de obras arquitectónicas de mayor envergadura realizado en Italia en las últimas décadas. Un barrio estructurado por la idea de constituir una especie de centralilidad periférica, es además el laboratorio de ensayo para edificaciones institucionales de gran relevancia, diseñadas en su totalidad por el estudio de Vittorio Gregotti y asociados. La segunda obra es la del barrio Lakúa, en Vitoria, España. En proceso de realización desde hace más de una década, es un sector urbano dedicado mayormente a la vivienda. El esquema, orquestado por Antonio Vélez Catrain, en Madrid, demuestra el agudo sentido de una mano maestra en la escala de los bloques, en su relación con el espacio público y en la definición de las edificaciones del conjunto. Por último, el campus de la UNITEC en Zapopán, realizado por la firma GVA, localizada en Guadalajara, evidencia igualmente la síntesis

entre espacios públicos de admirable escala por medio de la interacción de piezas de arquitectura de hermosa factura y diseño.

El amigo curazoleño Ronny Lobo, presidente electo de la Federación de Asociaciones de Arquitectos del Caribe (FCAA), nos regala un artículo de su propia pluma, sobre el proceso seguido en el desarrollo arquitectónico de esta fascinante isla del Caribe sur. Esperamos seguir, de igual manera, brindando entregas similares de cada uno de los territorios de la región.

Esta edición inaugura la serie de afiches AAA, que serán obsequiados a nuestros suscriptores o vendidos independientemente a través de nuestra red de representantes y puestos de venta. Hemos querido aprovechar al máximo el elocuente trabajo de Ricardo Briones y de Miriam Calzada para realizar este afiche sobre La Prodigiosa Arquitectura de lo Verde, título que se nos sugirió con la lectura de lo Pasos Perdidos, una de las novelas más admiradas del enorme escritor cubano Alejo Carpentier. Como podrá leerse en uno de los párrafos que hemos seleccionado -junto a otros de notables autores- para acompañar las imágenes del especial, Carpentier escribe sobre “la prodigiosa música de lo verde”...

Gracias a Jeannette Miller y a Mario Dávalos por sus textos escritos para este especial. Gracias a José Alcántara Almánzar y a Pedro Delgado Malagón por sus oportunas referencias a algunos de los autores citados.

025/47

El Arq. Luis Diego Barahona y el fotógrafo Oscar Abarca, de Costa Rica, coeditores invitados de AAA025. www.ldbarquitectura.com www.zermakfotografia.com

La arquitectura prodigiosa de lo verde

Sterculia apetala
La Anacahuita de Mamoru Matsunaga en el Botánico

La arquitectura prodigiosa de lo verde

Lo verde. Color que se traduce en una filosofía vital. Heráldica de un reino vivo, de un reino natural que existe a expensas del hombre, como los otros reinos. ¿O somos nosotros quienes existimos a expensas de él?

Ese equilibrio tan frágil, cada vez más precario, se debate entre la subsistencia y la devoción. Varias naciones tildadas de “fallidas” hoy sucumben por haber violado ese balance sagrado entre la existencia humana y su infraestructura natural. Etiopía. Somalia. Haití...

Hemos querido militar en esta auténtica revolución que defiende lo natural: hemos querido confirmar la prioridad del trabajo del planeta como arquitecto, antes que la del arquitecto como planeta.

Un árbol es un milagro. El paso del tiempo le robustece y le arraiga. Destinado sin embargo a sucumbir, antes construye su ingeniería portentosa de troncos, de ramas y de hojas, también de flores y de frutos. Ofrece al mundo su forma y con ella define un espacio, una escultura en torno a la cual vivir. Un lugar para habitar, según un poeta argentino, “a salvo de la orfandad”. Hay árboles de montaña, otros de llanura, otros de costa. Otros, demasiado dóciles sometidos a la ciudad, al rigor de las plazas, calles y avenidas.

Los hay de formas inverosímiles, de troncos verticales o de retorcidas geometrías. Los he visto de copas amplias como enormes sombrillas, que nos regalan profundas sombras, o de frentes limpias y sutil crestería que hacen apenas un guiño oscuro en la tierra. Unos quieren señorear las sabanas con su verde plumaje y su rumor de vientos suaves. Algunos son anfitriones perfectos de aves, de musgos, de todo un protocolo de huéspedes inesperados. Otros se rodean de sus congéneres y forman un bosque húmedo y pluvial.

¿Cómo no estremecerse frente a una colosal ceiba, o a un inmenso samán? ¿Cómo no admirar la infinita variedad de palmas que señorean toda la geografía, como líneas que quisieran conectar la tierra con el cielo? ¿Cómo no asombrarnos ante las violentas acuarelas de flamboyanes, jacarandas, almendros y robles? ¿Cómo no sucumbir ante la noción de que su arquitectura le precede, obediente de un proyecto dibujado celularmente, origen de sorpresas interminables...?

¿No es acaso la redondez del samán frente al Ayuntamiento de Santiago tan cúpula como el Panteón romano, o tan prodigio como Santa María del Fiore? ¿No son los contrafuertes de la anacahuita del Botánico tan barrocos como los de Santa María della Salute en la Serenissima? ¿No son los excesos de los guayacanes de Paya tan rococós como Vierzeheiligen en Munich? ¿No son los arabescos de los ébanos verdes de Constanza tan mudéjares como la Alhambra en Granada? ¿No será esa libre morfología de los Grigris tan moderna como Fallingwater?

Pero el intelecto posee una armadura tenaz. El ojo sólo admira lo que reconoce. Entregarse al amor de lo verde es un triunfo, una porfía. Es el despojo del pudor y el abrazo de la pasión. Entender el árbol sólo como materia prima, sacrificando su cuerpo para la industria humana, es reducirle su dimensión a la banalidad de las escuadrías de la madera en el torpe proceder de las sierras. Por esto le retratamos, le traemos a la cultura del espacio, que es, irremediablemente, la cultura del arquitecto.

Con el talento incondicional de Ricardo Briones, y la dulzura de Miriam Calzada -quien me iluminó por primera vez con sus fotos- sembramos esta fronda de imágenes con la esperanza de cosechar la sensibilidad dormida o de deleitar la complicidad ya despierta. Les acompañan una suerte de sutiles observadores de este reino silente, otros poetas del verbo tales como Fernández de Oviedo, Martí, Mistral, Machado, Carpentier, Moreno Jimenes, Miller, Dávalos e Incháustegui Cabral quienes se han encargado de musicalizar esta partitura andante.

La Prodigiosa Arquitectura de lo Verde es la posibilidad de acudir a una fiesta de futuro, de apostar a una visión abierta e incluyente, de descubrir ese paisaje de lo sublime que nos perdona a diario con su mansa compañía.

Estas páginas están dedicadas a la memoria de Don Gustavo Tavares, Miguelángel de los jardines antillanos.

A la derecha, fotografías de GLM del jardín de Don Gustavo Tavares en Villa Pancha, Santiago de los Caballeros. Este hermoso lugar, hoy localizado en pleno centro de la Ciudad Corazón, fue iniciado por su madre Doña María Grieser hacia el 1925. Es considerado por los conocedores el más perfecto ejemplar de paisajismo en la rica cultura del jardín santiaguero. Sobre éste ver el artículo de Clara Portela con fotos de Lowell Whiple en AAA15.

Antología de la Flora y Fauna de Santo Domingo en Cronistas y Viajeros (Siglos

XV-XX)

Historia General y Natural de las Indias (1535-1557)

Gonzalo Fernández de Oviedo

Libro IX

Capítulo VIII

Del roble de aquesta isla Española e otras partes destas Indias. En esta isla Española y otras, y en la Tierra Firme, hay muy grandes robles naturales e como los de España, e de muy recia madera; e la hoja es así como los robles de Castilla. Destos y de otro árbol que tractaré en el capítulo siguiente, se hacen los husos y ejes e ruedas de los ingenios de azúcar en esta Isla, e las vigas para las prensas, que son muy luengas e gruesas e a cuatro esquinas labradas, de septenta e ochenta pies de luengo e de diez e seis palmos en cuadro o redondo e cintura, después de labrada la viga. Que es muy grand cosa, e son piezas muy hermosas de ver por su groseza e longitud; e como tengo dicho, es muy fuerte e buena madera, y a mi ver, y la tengo por una de las más lindas que hay en el mundo; lo cual nos han enseñado agora, nuevamente, la silla episcopal e las otras que con ellas están en el coro de la iglesia mayor desta cibdad de Sancto Domingo de la isla Española, que son desta madera e de la que se dirá, en el siguiente capítulo, del caobán. Y digo que, a mi parescer, son sillas que en el coro de las iglesias de toledo e Sevilla metropolitanas, serían estimadas e tenidas en mucho; porque los asientos e espaldar destas sillas son deste roble, y la guarnición e colupnas e perfiles de caobán, e labradas de excelentes perfiles esculturas, al romano, de medio relieve; e queda lo que es de roble, de una color más que pardo e muy vecina a color blanco o como plateado, e lo que es de caobán, muy colorado, que es como un morado que tira a la color de púrpura. En fin, a mis ojos ello es rica madera e la mejor cosa que he visto para semejante edificio e para cualquier cosa en que la quisieren poner. Pero para labrar este roble, se requiere que esté mucho tiempo cortado e enjuto e curado, porque de sí es humidísimo e ha de tener salida toda aquella agua e estar muy curado. E si hobiere diez años que se cortó, es muy bueno; e si más, muy mejor.

Capitulo XI

Del árbol llamado Ceiba, en especial, e otros árboles grandes. En los capítulos donde se tractó del roble e del caobán, se dijo de su grandeza, y en la Tierra Firme hay muchos árboles desos e de otros mayores. Y en verdad, si yo hablase estas cosas sin haber tantos testigos de vista, con temor lo diría; pues que la costumbre de los murmuradores no se contenta con repunar a lo que de sí propio parece dubdoso; mas aun a lo que es notorio, contradicen. Mas como sé de mi condición e obra que hablo verdad, no es inconveniente que el inorante me muerda, porque menos sangre sacan los perros que ladran al viento. Digo pues, que a una legua de la cibdad del Darién, por otro nombre llamada Santa María del Antigua, pasa un río harto ancho e muy hondo, que se llama el Cutí. E los indios,

antes que aquella tierra ganasen cristianos, tenían echado por puente un árbol grueso que atravesaba aquel río de parte a parte, que tomaba toda la altitud desde la una barranca a la otra, y estaba en parte que continuamente le pasábamos para ir a las minas e a nuestras haciendas, y era muy luego e grueso aquel árbol; más había tiempo que estaba allí, e íbase abajando en la mitad dél; e aunque pasábamos por encima, era un trecho dél, dando el agua cerca de la rodilla, y siempre cada año se bajaba poco a poco más, a causa que el río robaba la tierra de las barrancas en que el palo estribaba. Por lo cual, el año de mill e quinientos e veinte y dos, seyendo yo justicia y capitán en aquella cibdad, hice echar otro árbol, pocos pasas más abajo del susodicho, que la Natura proveyó de criarle junto a la una barranca e costa del río. E cortado cuasi todo, fue derribado, quedando alguna cosa por cortar al pie (porque por allí le alimentase la tierra en su propio nacimiento, e se conservase más tiempo e mejor); e caído, atravesó todo el río, e sobró de la otra parte, más de cincuenta pies; e el río tenía de anchura más de ciento. Este árbol tenía, donde más grueso era, diez y seis palmos o más, y quedó encima del agua más de dos cobdos sin tocar en ella, fecho muy buena puente. Al cual hice echar barrotes, a trechos, e sobre aquéllos, un pasamano; así quel, por la una parte, tenía una haranda, e era gentil puente.

E al caer que cayó la cabeza del árbol e dio a la otra parte del río, derribó e desgajó otros árboles e ramas de los otros que estaban el la otra parte del río, e descubrió ciertas parras de uvas (de las que se hizo mención en el capítulo primero del libro precedente, y eran de las negras y muy buenas para ser salvajes; de las cuales comimos muchas, más de cincuenta hombres que allí estábamos Este árbol que he dicho, a respeto de otros muchos que en aquella tierra hay y en otras partes de la Tierra Firme, era delgado, non obstante que así, caído como estaba, no dejaba de crescer, porque como le quedó parte de la raíz, por allí se alimentaba, e cada año era menester limpiar e cortar los pimpollos y ramas que echaba en el trecho que tomaba la puente o el río; e la cima e copa que estaba en tierra, estaba en tierra, estuvo siempre fresca e verde.

Libro X

Capítulo II

Del árbol llamado Guayacán, con que se cura el mal de las búas. Dos árboles hay muy notables y excelentes en estas islas e aun en la Tierra Firme. Porque, así como es común el mal de las búas en todas estas partes, quiere la misericordia divina que así sea el remedio comunicado, e se halle para curar esta dolencia. Pero aunque en otras partes se halle esta enfermedad, el origen donde los cristianos vieron las búas, y experimentaron e vieron curarlas y experimentar el árbol del guayacán, fue en esta isla Española. El otro se llama palo sancto, y éste hay en la isla de Borinquen, llamada agora por los españoles Sanct Joan; e cuando della se hable, se dirá del palo sancto.

Así que, tornando al guayacán, yo le he visto en esta y en otras islas, e también en la Tierra Firme, en la provincia que los indios llaman Nagrando. Y pues en esta isla Española hobieron los españoles conocimiento deste árbol, póngole aquí, aunque en otras partes se halle; e quiero decir lo que es muy notorio, así en las Indias como en muchas partes del mundo donde le han llevado, tras la misma enfermedad, para remedio della. E hay tantos árboles guayacanes en estas Indias, que pienso yo que son menos los pinos de tierra de Cuenca, e aun todos los otros de España, en número.

Los Pasos Perdidos

(Fragmentos)

...El desmedido estiramiento de ciertas palmeras escuálidas, el despunte de ciertas maderas que sólo lograban asomar una hoja, arriba, luego de haber absorbido las savia de algunos troncos, eran fases diversas de una batalla vertical de cada instante, dominada señeramente por los árboles más grandes que yo hubiera visto jamás. Árboles que dejaban muy abajo, como gente rastreante, a las palmas más espigadas por la penumbras, y se abrían en cielo despejado, por encima de toda lucha, armando con sus ramas unos boscajes aéreos, irreales, como suspendidos en el espacio, de los que colgaban musgos transparentes, semejantes a encajes lacerados. A veces, luego de varios siglos de vida, uno de esos árboles perdía las hojas, secaba sus líquenes, apagaba sus orquídeas. Las maderas le encanecían, tomando consistencia de granito rosa, y quedaba erguido, con su ramazón monumental en silenciosa desnudez, revelando las leyes de una arquitectura casi mineral, que tenía simetrías, ritmos, equilibrios, de cristalizaciones. Chorreado por las lluvias, inmóvil en las tempestades, permanecía allí, durante algunos siglos más, hasta que, un buen día, el rayo acababa de derribarlo sobre el deleznable mundo de abajo. Entonces, el coloso, nunca salido de la prehistoria, acaba por desplomarse, aullando por todas las astillas, arrojando palos a los cuatro vientos, rajado en dos, lleno de carbón y fuego celestial, para mejor romper y quemar todo lo que estaba a sus pies. Cien árboles perecían en su caída, aplastados, derribados, desgajados, tirando de lianas que, al reventar, se disparaban hacia el cielo como cuerdas de arcos. Y acababa por yacer sobre el humus milenario de la selva, sacando de la tierra unas raíces tan intrincadas y vastas que dos caños, siempre ajenos, se veían unidos, de pronto, por la extracción de aquellos arados profundos que salían de sus tinieblas destrozando nidos de termes, abriendo cráteres a los que acudían corriendo, con la lengua melosa y los garfios de fuera, los lamedores de hormigas...

...Así, he descubierto, de pronto, en un segundo fulgurante, que existe una Danza de los Árboles. No son todos los que conocen el secreto de bailar en el viento. Pero los que poseen la gracia, organizan rondas de hojas ligeras, de ramas, de retoños, en torno a su propio tronco estremecido. Y es todo un ritmo el que se crea en las frondas; ritmo ascendente e inquieto, con encrespamientos y retornos de olas, con blancas pausas, respiros, vencimientos, que se alborozan y son torbellino, de repente, en una música prodigiosa de lo verde. Nada hay más hermoso que la danza de un macizo de bambúes en la brisa. Ninguna coreografía humana tiene la euritmia de una rama que se dibuja sobre el cielo. Llego a preguntarme a veces si las formas superiores de la emoción estética no consistirán, simplemente, en un supremo entendimiento de lo creado. Un día, los hombres descubrirán un alfabeto en los ojos de las calcedonias, en los pardos terciopelos de la falena, y entonces se sabrá con asombro que cada caracol manchado era, desde siempre, un poema...

...Al pie de los paredones verdes, grises, negros, cuyas cimas parecen diluirse entre brumas, los helechos sacuden el leve cierzo que los esmalta. Asomado a una oquedad en la que apenas pudiera ocultarse un niño, contemplo una vida de líquenes, de musgos, de pigmentos plateados, de herrumbres vegetales, que es, en escala minúscula, un mundo tan complejo como el de la gran selva de abajo. Hay tantas vegetaciones distintas, en un palmo de humedad, como especies se disputan allá el espacio que debiera bastar para un solo árbol. Este plancton de la tierra es como una pátina que se espesa al pie de una cascada caída de muy alto, cuyo constante hervor de espumas ha cavado un estanque en la roca.

Son como gramíneas membranosas, cuyas ramas tienen una mórbida redondez de brazo y de tentáculo. Las hojas enormes, abiertas como manos, parecen de flora submarina, por sus texturas de madrépora y de alga, con flores bulbosas, como faroles de plumas, pájaros colgados de una vena, mazorcas de larvas, pistilos sanguinolentos, que les salen de los bordes por un proceso de erupción y desgarre, sin conocer la gracia de un tallo. Y todo eso, allá abajo, se enrevesa, se enmaraña, se anuda, en un vasto movimiento de posesión, de acoplamiento, de incestos, a la vez mostruoso y orgiástico, que es suprema confusión de las formas. “Estas son las plantas que han huido del hombre en un comienzo -me dice el fraile. Las plantas rebeldes, negadas a servirle de alimento, que atravesaron ríos, escalaron cordilleras, saltaron por sobre los desiertos, durante milenios y milenios, para ocultarse aquí, en los últimos valles de la Prehistoria”. Con mudo estupor me doy a contemplar lo que en otras partes es fósil, se pinta en hueso o duerme, petrificado, en las vetas de la hulla, pero sigue viviendo aquí, en una primavera sin fecha, anterior a los tiempos humanos, cuyos ritmos no son acaso los del año solar, arrojando semillas que germinan en horas, o por el contrario, demoran medio siglo en parar un árbol.

Inclinado sobre el caldero demoníaco, me siento invadido por el vértigo de los abismos; sé que si me dejara fascinar por lo que aquí veo, mundo de lo prenatal, de lo que existía cuando no había ojos, acabaría por arrojarme, por hundirme, en ese tremendo espesor de hojas que desaparecerán del planeta, un día, sin haber sido nombradas, sin haber sido recreadas por la Palabra –obra, tal vez, de dioses anteriores a nuestros dioses, dioses a prueba, inhábiles en crear, ignorados porque jamás fueron nombrados, porque no cobraron contorno en las bocas de los hombres...

Arriba a la izquierda, la famosa Ceiba de Licey al Medio; a la derecha un ejemplar de Cotoperi (Melicoccus jimenezii); abajo sucesivamente un Guayacán y una Caoba.

Pino, Pino Criollo o Pino de Cuaba Pinus occidentalis

La Anacahuita del Botánico (Sterculia apetala)

La foto superior de Ricardo Briones muestra la estructura del expresivo tronco, domado por la mano experta de Mamoru Matsunaga. A la derecha, un detalle de Miriam Calzada de los poderosos contrafuertes.

“Encuentro”
Fotografía de Miriam Calzada
Bambusa vulgaris
La Catedral de Bambúes de Mamoru Matsunaga en el Botánico

Rebelión Vegetal

y otros poemas menos amargos

Héctor Inchaustegui Cabral

Canto VI

Noche tras noche vine a verme.

Sujetas las manos por el sueño, en la mitad del camino de la muerte, mi futuro pensamiento adivinando, Caminando por la orilla fluctuante de la Historia, tierras de leyendas bordeando, de leyendas no nacidas todavía.

No fue la selva, la alianza del árbol con la fiebre y con la ameba, los tenebrosos entendidos de las altas gramíneas y el mosquito, la connivencia de las lianas tenaces y la hormiga, de las feroces plantas carniceras y los monos que llevan en la sangre, agazapados, los parásitos que pintan de amarillo los ojos de los hombres, que hacen estallar el hígado y el bazo.

No fue la selva

Ni sus podridas hojas humeantes, Ni las verdes aguas que se anidan En un millón de raíces acunadas; no fue la sombra pegajosa de los altos plátanos ufanos; no fue la trampa, mortal, de los venenos que se dan en ingenuas campánulas azules, ni el perfume de sus flores asesinas, ni el aroma enemiga de las frutas que acendran mansamente sus ponzoñas bajo pieles de rosa disfrazadas, entre dulces encantos escondidas, sirenas que muestran al viajero azúcares que matan, rojos que apagan la luz de la mirada, amarillos que ciegan los nervios que afloran a la piel, que tapian el oído, que borran el gusto de la boca, que hacen olvidar el camino del regreso, que el espíritu enajenan haciendo del hombre mala bestia, acosado por la sed entre las aguas, que llora y grita de espanto y de dolor, rompiendo un silencio oleaginoso que es más triste que su llanto, mucho más lastimero que el grito que sale

de su torcida boca babeante, entre labios que sin morir ya están podridos, los dientes arrancados de su sitio, la saliva una pasta de gusanos que la lengua se comen ferozmente; por la nariz dos secas lombrices amarillas, las orejas cubiertas de lepra y sarpullido.

Sin poderse vale, envenenado, perseguido por la risa de los loros, prisionero de bejucos falaces con espinas, hundiéndose en fango descompuesto que eructa espuma gris, gases que apestan y enloquecen.

No fue la selva que borró la siembra de maíz, el cuadrado que encerraba la esclavitud de los dóciles frijoles, el camino que llevaba a los maderables árboles solemnes, porque ¿quién lo sabe? el hombre venció con soplete y con puñal, con fuego azul, con filos y con sierras, la resbalosa terquedad de las selvas y pantanos, lanzando a la batalla gigantescos cangrejos de metal, aceradas orugas incansables, miriadas de caballos de motor, buques que hacen del lodo su elemento, férreos topos que represan las corrientes de las aguas, destruyendo al tenaz inútil fruto, matando la semilla y el renuevo, y allí donde estuvo fecundidad desenfrenada, en donde se asentaba violenta vida vegetal, organizada a espaldas del hombre, contra el hombre pronunciada, el hombre y sus hijos y sus nietos, sembraron lirios y cayenas, la dulce cañavera que se viste de fiesta con penachos que recuerda los asaltos, y son de paz sus pendones y banderas; el presumido híbrido maíz, el trigo señorón, civilizado;

la aldeana batata, tan formal; el encendido ají, linterna que en la sierra alumbra toda digestión que se respete; las gramíneas mayores que el cuello adornan con grano y con espiga; las cítricas esferas con que juega pelota el desayuno; las manzanas piel de niña, los mangos umbrosos y cansados, cuanto sirve de alimento al hombre y a las bestias, fuente, cornucopia de fácil vitamina, mina de dócil mineral asimilable, río de salud, lago de sabores, mas en que se encrespan los aromas y pefumes, cielo que da no luceros y planetas, ni errabundos cometas y rayos y centellas sino limpias energías, carnes al que crece, resignación a los que sienten las alas de la muerte en las orejas; fuerza y hueso y sangre al óvulo de lo hondo de la madre fecundado; poder al que gobierna a sus iguales, al santo santidad, a los que luchan potencia a músculo y cerebro; ciencia al médico, ardor a juventud, sagacidad a Don Mercurio prepotente, aceite para la lámpara que encienden, cada noche, místicos, poetas, los filósofos sublimes, los que cantan, los que hacen vibrar las cuerdas extendidas, los que extienden colores en la tela, los que dan vida a mármoles y bronces, los que labran las columnas y techan las casas sacrosantas, los que hacen la ley y la respetan, los que inventamos a dios para ponernos a salvo en su divina sombra protectora, ¿qué haremos ahora que la muerte se adelanta matándonos de hambre;

qué haremos sin árbol y sin trigo, sin verdor, los vegetales todos rebelados, la tierra sin protección contra el granizo, sin piel que del viento la defienda, sin raíz que se aferre al mantillo que se lleva el arroyo que pasa por entre sus brazos; qué haremos sin ti Dios, sin palma de martirio ni frente coronada de laurel, sin robles y sin mirto, sin heráldica palma envanecida, sin los cedros que cubrieron las paredes de los sublimes palacios derrumbados, sin una rosa a qué cantar, sin adelfas, sin un clavel apasionado, sin una espina que recuerde que la vida, cobra, sin olvido, su tributo, el precio exacto del amor, lo que vale una esperanza engalanada, lo que cuesta creer contra los cierto en un mundo de formulas exactas, cuanto significa la ignorancia de la mano izquierda, la fe en lo que no sabemos y sentimos, la caridad hacia nosotros mismos, el saber que no morimos de la definitiva muerte de la carne?

Los Flamboyanes del Botánico Delonix regia
Fotografía de Miriam Calzada
Uno de los 4 Laureles, Higuillos o Álamos del Parque Colón Ficus religiosa

Campo

La tarde está muriendo como un hogar humilde que se apaga.

Allá, sobre los montes, quedan algunas brasas.

Y ese árbol roto en el camino blanco hace llorar de lástima.

¡Dos ramas en el tronco herido, y una hoja marchita y negra en cada rama!

¿Lloras?... Entre los álamos de oro, lejos, la sombra del amor te aguarda.

Raíces de Laurel de la India, Jardín Botánico Ficus nitida
El Roble del Altar de la Patria Tabebuia rosea
El Roble, Péndola o Roble Prieto (Catalpa longissima) del Parque María Trinidad Sánchez en la Calle Las Mercedes de Santo Domingo.
La Caoba
del Fuerte San José
Swietenia mahagoni
La Javilla o Jabilla en la Plaza del Conservatorio Hura crepitans
El Samán de los Miura en el Teatro Nacional Samanea saman

La gracia de tu rama verdecida

Árbol, buen árbol, que tras la borrasca te erguiste en desnudez y desaliento, sobre una gran alfombra de hojarasca que removía indiferente el viento...

Hoy he visto en tus ramas la primera hoja verde, mojada de rocío, como un regalo de la primavera, buen árbol del estío.

Y en esa verde punta que está brotando en ti de no sé dónde, hay algo que en silencio me pregunta o silenciosamente me responde.

Sí, buen árbol; ya he visto como truecas el fango en flor, y sé lo que me dices; ya sé que con tus propias hojas secas se han nutrido de nuevo tus raíces.

Y así también un día, este amor que murió calladamente, renacerá de mi melancolía en otro amor, igual y diferente.

No; tu augurio risueño, tu instinto vegetal no se equivoca: Soñaré en otra almohada el mismo sueño, y daré el mismo beso en otra boca.

Y, en cordial semejanza, buen árbol, quizá pronto te recuerde, cuando brote en mi vida una esperanza que se parezca un poco a tu hoja verde...

La Fiesta del Árbol

Domingo Moreno Jimenes

El silencio es más grande que todas las diatribas humanas; permite no obstante, que mi voz lo deshaga con tal de que tú continúes en alto “por todos los siglos de los siglos” oh árbol!, cuya tradición de victoria crece en el horizonte de los más apartados confines, de las más remotas civilizaciones, de los más ignorados pueblos!

Yo sé que la noche tiene sus calmas y sus luces, pero el ruiseñor también es la luz y la alondra siempre la alondra!

Permite que así como amo a la rosa te ame a ti que prolongas la vista de los pelícanos hacia las nubes. Hasta que no pernocté en una selva no supe tu gracia oh! luna, ni tu fuerza, oh! rayo, ni tu mudez oh! gris.

Duerme el viajero en el bohío del campesino agreste y ya no es la luz de la mañana ni el beso de la amada que lo despierta sino el canto de los pájaros, y ese olor odorante de la selva virgen que se desprende en el rumor de fiesta del crepúsculo matutino como un inicial resplandor de éxtasis!...

Oh cielo alto!

y más alto y más erguido por coronar la frente de los árboles...

Sé que la flor dura apenas un día y tú te prolongas a través de las generaciones

¡oh ceiba de Colón!

en cuyo tronco el grito de mi niñez estalló con júbilo y más tarde la cólera de mis días viriles fueron un holocausto

¡oh tú que recibiste el eterno arrullo de las oceánidas del Ozama

y los ultrajes de Yanquilandia!

Ahora el polvo y el humo te azotan y yo sigo mi esquife de plata que no tiene brújula, presiento el gesto de las aves y esquivo el dardo de los insectos! en tus ramas no hay nidos ni en tu corteza insignias insignes.

Ojalá nos hubiera tragado la mar antes que permitir que la más seca de tus hojas fuera tocada o la más estéril de tus raíces rota!

Yo sé que comencé a sentir el dolor de la Patria en la momia de tu corteza caída.

Ya no entran las carabelas al Ozama a traer el olivo y a los distantes buques que por la rada pasan ya no podemos saludar con éxito, ni dejar de sentir un agudo presentimiento hasta ante la goleta que viene de Jamaica cargada de cocolos!

Por mucho tiempo el arte de la marinería, será piratería para nosotros. Culpa ha sido del viento, que no de la brújula. Oh árbol, por ti he abandonado el bosque y la ciudad y ahora me encuentro en pleno océano que es como quien dice en pleno infinito; pero tú me perdonarás porque los sueños no tienen patria ni los ideales horizontes... Desde este recodo de Sabaneta, saludo el advenimiento del mayo espléndido y me inclino reverente ante estas aulas compañeras y ante esta escuela albante con sus vocesitas de niños felices y su puerta, -siempre su puerta!- de par en par abierta, al sol.

“Cotuí”
Fotografía de Miriam Calzada
Ceiba en las llanuras de San Pedro de Macorís.
Ceiba pentandra
La Ceiba de Licey al Medio Ceiba pentandra
Mauro Ricardo y Manuel Emilio Briones Víctor en el tronco de esta Ceiba de 850 años de edad.
Los Guayacanes de Paya, Baní Guaiacum
Almendros de Playa de la César Nicolás Penson
Terminalia catappa

Arbol de mi alma

Como un ave que cruza el aire claro siento hacia mí venir tu pensamiento y acá en mi corazón hacer su nido. Ábrese el alma en flor: tiemblan sus ramas como los labios frescos de mancebo en su primer abrazo a una hermosura: cuchichean las hojas: tal parecen lenguaraces obreras y envidiosas, a la doncella de la casa rica en preparar el tálamo ocupadas: ancho es mi corazón, y es todo tuyo: todo lo triste cabe en él, y todo cuanto en el mundo llora, y sufre, y muere! De hojas secas, y polvo, y derruidas ramas lo limpio: bruño con cuidado cada hoja, y los tallos: de las flores los gusanos del pétalo comido separo: oreo el césped en contorno Y al recibirte, oh pájaro sin mancha apresto el corazón enajenado!

Tamarindo en el Centro Español de Santiago
Tamarindus indica
Las Palmas Cana del Malecón
Sabal domingensis
Palma Real Roystonea hispaniolana

Tres árboles

Gabriela Mistral

Tres árboles caídos quedaron a la orilla del sendero. El leñador los olvidó, y conversan, apretados de amor, como tres ciegos.

El sol de ocaso pone su sangre viva, en los hendidos leños, ¡Y se llevan los vientos la fragancia de su costado abierto!

Uno, torcido, tiende su brazo inmenso y de follaje trémulo hacia otro, y sus heridas como dos ojos son llenos de ruego.

El leñador los olvidó. La noche vendrá. Estaré con ellos. Recibiré en mi corazón sus mansas resinas. Me serán como de fuego. Y mudos y ceñidos nos halle el día en un montón de duelo.

Árbol yo

Jeannette Miller

Cuando el viento viene y un rumor de voces me guía en medio de la yerba, y avanzo, y cada vez más las hojas crecen hasta sentir mis piernas que son ahora pasto de Dios, ancho aliento de tierra en mi ruta quemada… Cuando empujo mi cuerpo dando saltos pequeños para evadir la voz, y desciendo con miedo, y el miedo se hace paz, placer, ritmo y señal, cuerpo agitado con poros que laten en silencio, ardo en entrega con este cielo ancho sin posibles recortes.

Del

árbol

y del hombre

Nimia Vicens

Ahora estoy con el árbol

Besador de la brisa

Cazador de los pólenes viajeros

Mano en caricia abierta de hojas hacia el cielo desde su mundo exacto circunscrito al rumor.

Sobre la superficie inmensa de este mundo —planta piedra y ceniza— cuán pequeño el espacio del árbol

Y qué alto de ramas y verdad y poesía

Y de Dios...

Y raíces

dónde acunó en tersura la semilla y arraigó de la entraña de la tierra su proyectado mundo de frescura

Si casi cabría el corazón del hombre con su semilla de trémula esperanza con la raíz incierta de su pie descalzo

Pero... el hombre

El pobre hombre no es como el árbol

El árbol no conoce el dolor, de la espera y la duda

Crece sin prisa hacia la flor y el fruto

A esperar la hermosura.

Mangle o Mangle Blanco

Laguncularia racemosa

Mangle Rojo
Rhizophora mangle
Flor de Mangle

La paciencia y el agua

Verde como un zapato sobre el agua. Su paso espeso crece, su voz densa mece

Los ojos y la sombra y la voz sobre un río Y una alfombra de lianas.

Flora camina y se queja espantada. Tropieza con la fertilidad gigante de su panza, Y cada golpe suyo

Sobre el agua pare poemas.

Lleva encima una pena y una raíz y una casa ancha Lleva puertas verdes y túneles y lamento Rompe con vergüenza el cemento Y con paciencia porosa, habla.

Uva de Playa en Las Terrenas. Coccoloba uvifera
El Yagrumo del Alcázar de Colón. Cecropia schreberiana
Chachá o Tcha-Tcha en Gazcue Albizia lebbeck

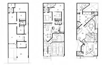
Nuevas Líneas de la Arquitectura

Contemporánea Costarricense

2000-2005

Coeditor invitado: Luis Diego Barahona Fotografías: Oscar Abarca

Luis Diego Barahona

Nuevas Líneas

de la Arquitectura

Contemporánea

Costarricense 2000-2005

Primera edición 2006

Editora Líneas

176 págs.

Costa Rica

ISBN 9968-9993-3-4

Nuevas líneas sin precedentes en Costa Rica

El reconocimiento otorgado actualmente a la Arquitectura Contemporánea Costarricense no tiene precedentes. Las obras creadas del 2000 al 2005 en Costa Rica evidencian el auge del diseño arquitectónico dentro del sector cultural nacional. Este progreso es consecuencia del apogeo en la construcción –posterior a la crisis de los ochenta- y de una creciente cantidad de arquitectos y medios de divulgación masiva. Las propuestas de calidad han sido descubiertas, dando lugar a discusiones y a un mayor conocimiento de la producción arquitectónica.

Estilísticamente, el presente texto no pretende definir agrupaciones de arquitectos y menos de los efímeros estilos comerciales. La propuesta editorial se divide en dos bloques -8 viviendas y 12 edificios- y retoma la experiencia del libro Arquitectura Contemporánea Costarricense, las monografías y congresos de Líneas y las publicaciones de la revista Habitar. La investigación y visita permanente a las obras arquitectónicas costarricenses enriquece una selección rigurosa y exhaustiva, donde los proyectos publicados sobresalen por características particulares descritas en cada caso y ejemplifican las tendencias actuales del desarrollo arquitectónico costarricense. En términos generales destacan las obras que fueron concebidas con una intención clara de generar una conexión continua con el contexto natural, un respeto por la escala humana, un racionalismo funcional en la distribución de espacios y el gusto por el detalle tectónico sin emplear tecnología de primer mundo.

Inserción latinoamericana. Miquel Adrià en la revista 2G -Arquitectura Latinoamericana- menciona que Costa Rica es una excepción dentro del contexto centroamericano e incluye en la revista Arquine una lectura de Jorge Grané sobre la realidad contemporánea costarricense. La situación actual muestra a Costa Rica como parte de un panorama emergente latinoamericano. Esta perspectiva se ejemplifica con la presencia de obras locales dentro de las listas de los proyectos finalistas en las recientes bienales iberoamericanas, como el Santuario Habitable de Rolando Barahona y el Centro Creativo de Víctor Cañas. Asimismo, destaca el espacio asignado a Bruno Stagno en conjunto con Frank O. Gehry para representar la producción centroamericana en la pasada Bienal de Venecia.

La ciudad costarricense. La arquitectura y el urbanismo costarricenses están determinados por una sumatoria de influencias internacionales y sólidas bases democráticas, sociales y contextuales. Las obras de calidad son construidas en un territorio con gran cantidad de microclimas y vinculadas al lugar, el clima, la luz y la topografía. La escala modesta y humana de una considerable cantidad de los proyectos construidos en Costa Rica determina la historia local donde la arquitectura monumental y fascista es prácticamente nula. El desarrollo de las teorías urbanas locales ha sido un ejercicio similar a menor escala de los planteados en otros países.

En la actualidad la mancha urbana unifica una sola metrópoli compuesta por los cuatro centros de las provincias que conforman el Gran Área Metropolitana –San José, Alajuela, Heredia y Cartago-. Urge por tanto desarrollar y sumar más análisis sobre la ciudad. Actualmente son escasos los estudios urbanos y se hace cada vez más necesaria la presentación de una historia de la ciudad costarricense con la rigurosidad propia de la crítica urbana internacional.

La reciente visita de Enrique Peñalosa a Costa Rica evidenció el interés por parte de las entidades gubernamentales y municipales por analizar, valorar y

aplicar parte de la experiencia bogotana de hacer ciudad. El espacio público da pasos sólidos y actualmente se da continuidad al Plan Nacional de Desarrollo Urbano e inician propuestas que nacen del sector privado como San José Posible –presentado por el Instituto de Arquitectura Tropical- y Micrópolis -investigación dirigida por Líneas

A esta experiencia se suma la declaratoria que asigna a San José como Ciudad Iberoamericana de la Cultura 2006. Este reto genera la fusión de esfuerzos entre la Municipalidad de San José y el Ministerio de Cultura, Juventud y Deportes. Surge por tanto un nuevo interés por rescatar una ciudad, donde ya se había iniciado el debate para lograr una reactivación del casco central y consolidar el proceso de repoblamiento del centro de la capital. Todo lo mencionado se ubica dentro de la mirada atenta de los medios de comunicación masiva, los cuales han incrementado considerablemente el espacio referente a la ciudad a partir del 2005.

Cada región con su Mcdonalización. Paralelamente, en la ciudad costarricense, se ha conformado un estilo de vida con características particulares. En Costa Rica la “Mcdonalización” citada por Zaida Muxi se conoce como “Estilo Rostipollos”, alusivo a un restaurante de comida rápida que por sus características formales y estilísticas define claramente esta tendencia. El “Estilo Rostipollos” inicia con el “Efecto Marriot” en el 2000 y en el plano urbano genera conjuntos intramuros de viviendas de clase alta. Con el desarrollo de esta tendencia se omite el barrio y se propone una artificialidad en la atmósfera que remite más a ambientes “Tipo Miami”, que a las integraciones de los componentes urbanos de las ciudades europeas. Esta situación hace que incremente el efecto de las horas pico –principalmente hacia el sector oeste de la ciudad- y separa los diversos sectores de la sociedad. Los planteamientos carecen en muchos casos de la calidad espacial y humana que mencionan Carlos Morales y Carlos Mijares en sus publicaciones.

La realidad costarricense muestra una disminución en la inversión en proyectos de vivienda de clase media y baja, contrastando con este nuevo estilo de vida presente en el sector más adinerado de la sociedad. Esta situación debe abarcarse en los proyectos de vivienda privados y no sólo fortalecer el creciente desarrollo de torres de condominios. El problema no está relacionado con el tamaño de las unidades habitaciones –discusión presente en ciudades como Tokio o Barcelona-. Actualmente la complejidad mayor radica en las proporciones entre salarios y condiciones para obtener crédito. Esta situación ha incrementado el alquiler y la postergación en la adquisición de vivienda propia por parte de un alto porcentaje de los habitantes locales.

Al presente es reconocible que las nuevas líneas de la arquitectura contemporánea costarricense se expresan por medio de gestos vinculados al contexto y evidencian una reacción modernista. Los arquitectos incluidos en la presente muestra reaccionan ante las tipologías de ensueño y las radicales propuestas de explotación ecoturísticas. Estos últimos planteamientos se insertan en un contexto donde el país se vende al mundo como un sitio sin ingredientes artificiales, el cual se ha abierto de manera evidente a la explotación de zonas naturales por parte de inversionistas extranjeros, principalmente norteamericanos.

Arquitectura bioclimática. La influencia del discurso sobre el debate de la arquitectura bioclimática en Costa Rica ha sido influenciada directamente por Bruno Stagno y su Instituto de Arquitectura Tropical. Posteriormente se ha consolidado la maestría sobre esta temática impartida en la Universidad

Casa de Playa, arquitecto Víctor Cañas. Santuario Habitable, arquitecto Rolando Barahona. Casa Calvo, arquitecto Javier Salinas. Horizonte Emergente, arquitecto Rolando Barahona. Casa Holmes, arquitecto Víctor Cañas. Casa Gillet, arquitecta Jackeline Gillet.

Agencia de Publicidad Jotabequ, arquitecto Jaime Rouillón.

Oficinas GBM, arquitecto Rolando Barahona. Edificio Holcim, arquitecto Bruno Stagno.

Edificio Elmizú, arquitecto Víctor Cañas.

Vista panorámica del Valle Central, San José, Costa Rica.

de Costa Rica y es común escuchar debates sobre bioclimatismo en las escuelas y congresos de arquitectura costarricenses. Los retos hacia el futuro surgen en el ámbito de la generación de tecnologías que favorezcan el diseño bioclimático y en una rigurosidad de las comprobaciones técnicas en sitio. La energía urbana cuenta con un espacio casi nulo dentro del debate arquitectónico. Por lo tanto, debe adicionarse al tema del bioclimatismo, el enfoque energético-urbano, favoreciendo en gran medida las soluciones alternativas generadas y producidas en Costa Rica.

Sobre publicaciones y conferencias internaciones de arquitectura. Las publicaciones sobre arquitectura costarricense son escasas y ha tenido un pujante auge durante el lustro en estudio. El punto de inicio de la era contemporánea de las publicaciones fue el libro de Historia de la Arquitectura de Costa Rica. Actualmente se publican monografías de arquitectura, la revista Habitar –relanzada en el 2003- y la creación de revistas comerciales.

A finales de la década de los noventa surgieron las Bienales de Arquitectura y Urbanismo de Costa Rica y la organización de congresos internacionales de arquitectura. El Colegio de Arquitectos, dos universidades (Del Diseño y Veritas), el Instituto de Arquitectura Tropical y los congresos Líneas, han generado un ritmo de eventos continuos de conferencias con invitados internacionales de gran nivel. La labor y cantidad de coloquios de calidad deben incrementar y fortalecer los resultados de estos esfuerzos tan escasos pero continuos dentro del contexto nacional. Por otro lado, algunos de los arquitectos con producción en Costa Rica se han vinculado a congresos internacionales o han realizado múltiples conferencias en el extranjero, como es el caso de Víctor Cañas, Rolando Barahona y Bruno Stagno.

Lenguajes claros en épocas de seducción. El popular autor de los libros económicos de Taschen Philip Jodidio describe a las firmas de arquitectura contemporáneas como la versión actual de los movimientos de principio del Siglo XX. Costa Rica, a diferencia de esta situación, plantea un conjunto de obras diseñadas por un sector de arquitectos conscientes con el medio y presupuestos modestos -en muchos casos-, pero con una honestidad propia de la mejor arquitectura latinoamericana. Las corrientes actuales continúan un proceso iniciado en los noventas y presenta a la ampliación del Aeropuerto Juan Santamaría (Alajuela, 2000) como el punto de inflexión

hacia la consolidación de las nuevas líneas de la arquitectura contemporánea costarricense.

Conceptualmente, los lenguajes arquitectónicos costarricenses oscilan entre dos nuevas líneas: el expresionismo formal y la búsqueda permanente por la adaptación contextual. La primera línea es influenciada por las corrientes que partieron del movimiento moderno latinoamericano y se expresa por medio de masas arquitectónicas que no llegan a ser estrafalarias o recargadas. Estas formas han evolucionado y se acercan en algunos casos a las corrientes minimalistas contemporáneas y las líneas neoplásticas holandesas.

La segunda línea contiene la relación entre obra arquitectónica y contexto. Resulta una actitud honesta y continua. En la actualidad es liderada por una creciente corriente bioclimática, pero determinada por la comunicación constante del proyecto con el medio contextual donde se sitúa. Esta valoración contempla tanto el clima, como los contextos naturales, históricos, sociales, culturales y económicos. Ambas líneas se fortalecen por una búsqueda de la calidad tectónica propia del medio y un gusto y desarrollo exhaustivo de los detalles constructivo-arquitectónicos como en el caso de la obra de Jaime Rouillón y Rolando Barahona. En este tema destaca el inicio de una mayor vinculación entre profesiones de arquitectura e ingeniería, algo que Cecil Balmond favorece y menciona constantemente.

El futuro. El panorama hacia el futuro podría presentar una explosión en los medios de comunicación masiva del tema de la ciudad y una urgencia por fortalecer la crítica, jurados y publicaciones de arquitectura contemporánea costarricense. Las obras arquitectónicas deberán ser cada vez más rigurosas en la conceptualización, puesto que sus planteamientos contarán con una repercusión casi inmediata en el medio cultural costarricense. La calidad constructiva de estos proyectos está creciendo y se visualiza un respeto por la tecnología y economía local al momento de efectuar el diseño arquitectónico. Será de gran valor iniciar un desarrollo y evolución del diseño con la luz y penumbra, así como una creciente valoración e incentivos en el desarrollo de la percepción y psicología del espacio.

El diseño interno está conformando sus listas de recién graduados e instruyen una fuerza laboral y creativa que enriquecerá los procesos de diseño

arquitectónico. El trabajo en equipo determina gran porcentaje de la calidad de las propuestas planteadas en el presente libro y sin duda, los diseñadores internos deberán sumarse con más fuerza dentro del contexto arquitectónico nacional. En este aspecto, es oportuno mencionar la creación y fortalecimiento de tiendas de diseño de mobiliario y de diseño industrial, condición que permite concretar la totalidad de la atmósfera de las propuestas arquitectónicas de vanguardia.

La información proveniente de las redes informáticas internacionales referente a las nuevas tendencias está siendo filtrada en mayor o menor grado por los arquitectos costarricenses. Esta situación favorece el incremento en el criterio al momento de proyectar arquitectura. Por tal motivo, resulta oportuno incentivar el fortalecimiento de las listas de títulos que ofrecen las librerías y bibliotecas dedicadas a cubrir la producción arquitectónica internacional.

Dentro de la perspectiva próxima, se visualiza un crecimiento exponencial en los graduados de arquitectura y una consolidación en la temática de la adaptación al contexto, así como un avance en los estudios bioclimáticos y una depuración en las expresiones formales. A su vez, urge un aumento en el desarrollo de las propuestas de vivienda para clase media y baja; crear y fortalecer una disciplina de concursos de arquitectura y fortalecer la investigación técnica vinculante con los desarrollos constructivos. Es fundamental equilibrar la explosión en la construcción de condominios e invertir en edificaciones de gran escala que colaboren con el desarrollo de la vivienda en todo el país.

Por último, y quizá el reto inmediato de mayor envergadura para la arquitectura contemporánea costarricense es volver habitable sectores claves y puntuales de la ciudad. El desarrollo de estas incisiones puntuales otorgará a la ciudad un conjunto de variables urbano vanguardistas, que definirán la base de la Ciudad de San José del 2050. Estas propuestas deben incluir y ser aplicadas por diversos sectores de la sociedad. Resulta, por tanto, oportuno mantener un debate permanente entre los arquitectos y el país. De esta manera se irán concretando los objetos específicos de los diversos proyectos urbanos. Las nuevas líneas de las ciudades contemporáneas costarricenses deben, de manera urgente, conformar un sólido compromiso nacional sin precedentes en Centroamérica.

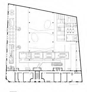
Edificio Holcim

Bruno Stagno

Edificio Holcim

Dentro de un contexto rocoso y árido, la propuesta de Bruno Stagno para Holcim consistió esencialmente en un edificio sensible con el medio, con un esquema funcional claro y una aplicación de materiales relacionados en forma directa con los productos de construcción que la empresa elabora. El conjunto principal de edificios conforma un esquema de patio central, regado por aspersores automatizados, rodeado de edificios lineales con protecciones climáticas en fachadas y cubiertas. El concreto expuesto en gran parte del edificio contrasta con los elementos ligeros, como lonas y papelería, colocados de manera transversal a las elevaciones principales.

Al ingresar por la parte este del edificio, se camina por una plaza con aberturas con agua que manifiestan el carácter conceptual del edificio. Al acceder por esta superficie se aprecia el patio interno y, al fondo, el edificio que remata con una lona expresionista en su parte superior, gesto formal apreciado desde la lejanía del edificio. Esta cubierta protege un espacio de terraza, abierto en sus costados y las oficinas administrativas, gerencias y cafetería en sus plantas inferiores. Destaca el diseño de paisaje, donde se proyectaron una serie de pantallas verticales con vegetación –similar al edificio Tribu-. Las situaciones formales y de disposición en el sitio lograron caracterizar el edificio y fortalecer su permeabilidad visual y noble impacto con el ambiente.

El edificio Holcim se aleja de la imagen tradicional de los edificios corporativos, al vincularse en forma permanente con el entorno. Dentro de la propiedad se reforestó con la siembra de 500 árboles y las rocas del sitio se aplicaron en el diseño. Sobresale la precisión conceptual y correcta aplicación de los elementos tectónicos, que fortalecen la propuesta estructural y funcional.

Planta de conjunto Bocetos analíticos en planta y en sección

Planta alta

Planta de cubiertas

Elevación oeste

Elevación norte

Elevación sur Cortes

Arquitecto

Bruno Stagno, Arquitectos y Asociados

Asistente

Carlos Araya

Ingeniero estructural

Juan Carlos Sotela, FTL Design Engineering Studio

Ingeniero mecánico

Juan Luis Flores

Constructor

Rae Ingenieros S.A.

Área construida

3.896 m2

Área lote 14 hectáreas

Paisajista

Jimena Ugarte

Costo

US$ 3.000.000

Ubicación

San Rafael, Alajuela. Fecha 2004

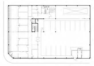
Agencia de Publicidad Tribu

Bruno Stagno

Agencia de Publicidad Tribu

El eje urbano donde se sitúa la Agencia de Publicidad Tribu evidencia uno de los principales sectores de crecimiento del oeste del Área Metropolitana. El proyecto, cercano al edificio Holcim –del mismo arquitecto- y de las Bodegas de Estructuras Ros, de Rolando Barahona, se expresa por medio de un volumen puro y seis pantallas vegetales en sus cuatro fachadas.

El meritorio logro de construir un proyecto que, a solicitud del cliente, requería un costo de $400 por metro cuadrado, definió la estructura prefabricada de concreto modulada en 10 x 10 metros.

El planteamiento funcional de la distribución del edificio especifica un espacio de triple altura, a manera de atrio de ingreso, seguido por una escalera central y espacios aledaños de trabajo, que se fugan hacia las fachadas de vidrio y las pantallas vegetales. Estos elementos naturales generan sombra y reducen la carga térmica interna y están conformados por una estructura metálica con plantas trepadoras de la familia Thumbergias Grandifloras, una clase de planta que no pierde la hoja y florea todo el año. Esta vegetación se refleja y suma a las reproducciones de imágenes contextuales presentes en las fachadas de volumen de vidrio que conforma el edificio.

El espacio interno es fluido y organiza en planta libre las estaciones de trabajo modulares, de fácil reacomodo. La cafetería, que se encuentra hacia el sector posterior del edificio, presenta ventanales/pizarra para comunicar ideas gráficas en sus superficies y contiene salientes en madera, similares al entarimado que está sobre el ingreso principal del proyecto.

Planta de conjunto Boceto planta

Planta mezzanine Planta general

Elevaciones

Cortes frontal y lateral

Planta primer nivel

Planta segundo nivel

Agencia de Publicidad Tribu

Arquitectura

Bruno Stagno Arquitecto y Asociados

Arquitecto

Bruno Stagno

Asistente

Carlos Araya

Ingeniero estructural

Luis Zamora

Ingeniero mecánico

Juan Luis Flores

Ingeniero eléctrico

Claudio Soto

Empresa constructora

Edificar S.A.

Diseño 2003

Construcción

2003-2004

Área construida

2.823 m2

Área lote

20.000 m2

Costo

US$ 1.128.500

Ubicación

San Antonio de Belén, Heredia

Bruno Stagno

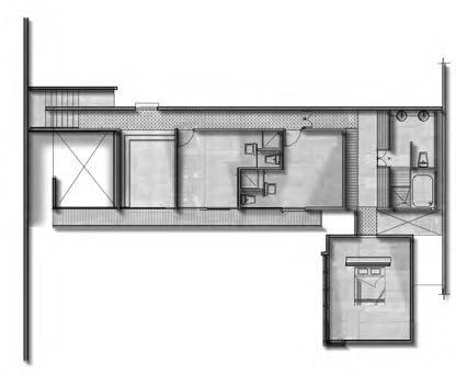
Editorial Libro Libre

El proyecto se ubica a escasos 300 metros de la zona central de Escazú y corresponde a un edificio de pequeña escala, destinado a albergar la Editorial Libro Libre. La vinculación con el contexto inmediato se evidencia en el trabajo de la escala y la relación directa con el árbol presente en el terreno, elemento natural que sirve de remate visual de las fugas desde el interior del edificio.

Las pieles del proyecto son la suma de transparencias y reflejos, tamizados con las láminas de Plycem, las cuales enlazan el paisaje de la zona. La exploración constructiva llevó a los diseñadores a plantear el machihembrado vertical, situación atípica en la utilización del material. A las texturas de fachada se agrega la fragmentación de las cubiertas y la perenne relación con el entorno natural.

Los parasoles se adjuntan a varias fachadas, lo que da una cómoda sombra en el interior de la editorial. El espacio interno se caracteriza por ser funcional, de planta arquitectónica clara y práctica, donde el espacio se liga con los ejes que fugan hacia el exterior.

Planta de conjunto Bocetos analíticos Secciones
Plantas primer y segundo niveles
Elevaciones este y sur
Elevaciones oeste y norte

Editorial Libro Libre

Arquitecto

Bruno Stagno

Diseño arquitectónico

Bruno Stagno

Arquitecto & Asociados

Asistente

Carlos Araya

Ingeniero eléctrico

Claudio Soto

Constructor

Chang Díaz & Asociados

Premios

Mención Honorífica

y Premio Metalco VI Bienal de Arquitectura de Costa Rica 2002

Año de diseño

2000

Año de construcción

2001

Área construida

185 m2

Área lote

2.850 m2

Costo

US$ 96.000

Agencia de Publicidad Jotabequ

Jaime Rouillón

Agencia de Publicidad Jotabequ

Dentro de un contexto histórico en el centro de la ciudad de San José, la Agencia de Publicidad Jotabequ seleccionó el edificio Solera para ubicar sus nuevas instalaciones. Este edificio se inserta en un conjunto urbano patrimonial al lado del edificio de la Antigua Aduana -al norte- y la antigua terminal de Ferrocarril al Atlántico –al oeste-.

Conceptualmente el edificio es hermético hacia el exterior, dejando elementos puntuales que manifiestan sutilmente lo que sucede en el interior. Al ingresar el espacio patrimonial envuelve gestos, articulaciones, fragmentos, colores y materiales. Este expresionismo formal fue contemplado para incentivar la creación, el diseño y todo sobre el tema principal del proyecto: la publicidad.

Al ingresar por una holgada rampa de concreto, se muestra parte del volumen contenido que pronto destacará sobre la totalidad del espacio interno. El área principal está conformada por múltiples sitios de trabajo para los diseñadores con mesas y computadoras conectadas a red hacia la cubierta, cajas de vidrio con sillones de cine para cuatro personas y una sala ovalada. Todos estos elementos se organizan en una planta libre interconectada con dos pasillos que poseen pantallas laterales de vidrio esmerilado para bosquejar ideas.

En un segundo nivel –un mezzanine existente- alberga el espacio de comedor y un cuarto de máquinas. A éste se asciende por dos escaleras en caracol de concreto ubicados como remates arquitectónicos del área principal.

El volumen envuelto en una malla metálica alberga cuatro salas de reuniones y formalmente recuerda las tendencias iniciadas por Archigram y secundados por arquitectos europeos de colocar patas metálicas a los volúmenes habitables. Estructuralmente este ducto de salas polifuncionales, se apoya de manera independiente al resto del edificio. Dicha situación plasma el interés del arquitecto de no apoyar la estructura nueva sobre la existente.

Con un concepto claro e innegable –similar al propuesto en el Bufete Olleresta obra resulta uno de los puntos más altos en el expresionismo vanguardista de la arquitectura costarricense a inicios del nuevo siglo. Prueba de ello fue el otorgamiento a Jaime Rouillón del Gran Premio Nacional de Arquitectura por este diseño en la VI Bienal de Arquitectura y Urbanismo de Costa Rica en el año 2002.

Emplazamiento Agencia de Publicidad Jotabequ Croquis de conjunto

Primer nivel

Segundo nivel

Secciones
Elevación oeste
Elevación este

Colaboradores

Arq. Jaime Rouillón

Arq. Isidro Ramírez

Arq. Steven Eeckhout

Dis. John Osborne

Arq. Juan José Cambre

Premiaciones

Gran Premio Bienal y Primer Premio en Categoría de Proyectos Patrimoniales (VI Bienal de Arquitectura y Urbanismo 2002)

Cálculo estructural

IECA

Instalación eléctrica

Ingenia, Ingelectra, Circuito

Instalación mecánica

Ingelectra, Termoaire

Constructora

SERPROCO, RAE

Diseño interno

Jaime Rouillón

Arquitectura

Mobiliario

Euromobilia

Arq. Jaime Rouillón

Arq. Irene Acuña

Iluminación

Arc Light, Jaime Rouillón Arquitectura

Paisajismo

Javier Marten

Carlos Gil

Dibujo

Leslie Jara

Área

3000m2

Bufete Oller

Jaime Rouillón

Bufete Oller

Ubicado cerca del centro de San José, el Bufete Oller se encuentra en un sector en franco deterioro. La zona vivió a mediados del siglo XX una época de desarrollo gracias al empleo de los servicios de la Estación del Ferrocarril al Pacífico, edificación patrimonial ubicada a escasos 100 metros del bufete. El proyecto corresponde a un planteamiento de remodelación de uno de los galerones del conjunto urbano. Expresa una conceptualización clara, evidenciada con una fachada casi totalmente hermética visualmente y un espacio interno diseñado con materiales y gesticulaciones arquitectónicas que remite conceptualmente al diseño posterior del arquitecto para la Agencia de Publicidad JBQ.

La programación funcional delimita la obra en tres cuerpos claramente diferenciados. El estacionamiento bajo techo, las oficinas y salas de reuniones y un tercer espacio de doble altura destinado a los asistentes del edificio para abogados. La estructura original como las cerchas metálicas se conservaron expuestas y fueron acentuadas pintándolas de color rojo. Los ductos de aire acondicionado están visibles y climatizan el edificio excepto el parqueo de automóviles. Una obra con acentuaciones de luz en el espacio interno, formas curvas y ovaladas que remiten a una época contemporánea y materiales expuestos -como el concreto y la madera- sumado a las texturas resultantes, hacen de esta obra un ejemplo de gran calidad dentro de las nuevas propuestas de diseño interno costarricense.

Bufete Oller

Cliente

Lic. Pedro Oller

Colaboradores

Arq. Jaime Rouillón

Arq. Isidro Ramírez

Constructora

RAE

Cálculo estructural

IECA S.A.

Instalación eléctrica

Circuito S.A.

Instalación mecánica Termoaire S.A.

Diseño interno

Jaime Rouillón Arquitectura

Área

700m2

Ubicación

San José Fecha

1998-2000

Baticueva

Jaime Rouillón

Baticueva

Detrás de una fachada pura y cerrada –similar al Bufete Oller y la Agencia de Publicidad JBQ- la Baticueva es un espacio diseñado para estar. En el nivel volumétrico se compone de dos cuerpos arquitectónicos unidos y, a la vez, divididos por un patio y un puente. La obra presenta una calidad y precisión técnica y constructiva poco común en Costa Rica. Las paredes laterales se erigieron en concreto expuesto, y las fachadas internas son superficies de vidrio verde, colocadas en pendiente. La atmósfera del proyecto Baticueva se expresa por medio de la cromática en grafito oscuro, y el contraste permanente con los vidrios de las elevaciones y pisos.

El programa consiste en espacios de estar. En el primer volumen se ubicaron el estacionamiento, área de cocina, centro de entretenimiento –home theater-, biblioteca y baño. El segundo espacio, posterior al patio, contiene la colección de motos y, en un cuerpo metálico apoyado en los extremos más distantes, se planteó el área para el billar, un bar y el baño. La placa que contiene la frase Carre diem -filosofía que en varios momentos ha enfatizado el actor Robin Williams- genera la composición del piso del patio central y se añade al espíritu de sorpresa y calidad tectónica, presentes en el interior de este proyecto, que evidencia el compromiso del arquitecto Rouillón con el diseño del espacio.

Planta primer nivel
Planta segundo nivel
Planta de sótano

Baticueva

Arquitecto

Jaime Rouillón

Diseño arquitectónico

Jaime Rouillón Arquitectura

(Jaime Rouillón, Isidro Ramírez)

Área de construcción

700 m2

Materiales

Acero, vidrio aislante temperado, concreto expuesto

Interior

Enchapes de madera Sycamore

Ingeniería estructural

Gino Guido

Ingeniería eléctrica

Ingenya

(Manuel Bonilla, Alberto Bonilla)

Ingeniería mecánica

Termoaire

(Mauricio Romero, Felipe Terán)

Asistentes

José Colombari

Jorge Arias

Dibujo

Daniel Villalobos

Marvin Quesada

Contratista

Van der Laat y Jiménez

(Ing. Rodrigo Van der Laat, Paulo Bianchini).

Contratista metálico

Estructuras Ros (Roger González)

Contratista electromecánico

LS Electromecánica

(Marcos Saravia)

Diseño de iluminación

Jaime Rouillón

Iluminación

Arte en Luz

Mobiliario

Artiv

Diseño interno

Jaime Rouillón

Ubicación

Trejos Montealegre, Escazú, Costa Rica

Fecha

2005

Edificio Elmizú

Víctor Cañas

El edificio Elmizú se ubica en una zona de viviendas de un piso con características reiterativas, por lo que el proyecto destaca en su contexto inmediato. Mantiene una escala urbana y es parte del cambio de la zona, donde rápidamente se convierte en oficinas. El edificio constituye la remodelación y ampliación de una casa existente, donde el cliente necesitaba dividir el uso en un apartamento en planta baja y oficinas para un ingeniero en metalurgia en planta alta.

A la planta baja se ingresa por un espacio transitorio, donde un alero soportado por un par de columnas en diagonal invitan a ingresar al apartamento. Éste respeta la distribución de espacios originales y mejora únicamente los que requería. Se adjunta un espacio de doble altura, el cual corresponde a la recepción de las oficinas.

Las oficinas tienen dos áreas definidas. Al frente se ubica la oficina privada del ingeniero con vista a las montañas del sur del Valle Central. Esta se ilumina con luz cenital y tamiza el área de trabajo con parrillas de madera. Un puente, con piso de vidrio, comunica la sala de conferencias con la oficina principal. Las oficinas se apoyan sobre la conformación estructural existente. Para no cargar más de lo necesario la cimentación de la casa original, se diseñó la estructura de la cubierta separada del entrepiso y se empleó columnas tubulares de acero que soportan una cubierta liviana que flota sobre las oficinas.

Planta de sitio

Corte longitudinal

Plantas primer, segundo y tercer niveles
Fachada principal

Edificio Elmizú

Cliente

Ing. Elmer Arias

Premio

I Trienal de Arquitectura de Panamá, Centroamérica y el Caribe, I Premio Categoría Diseño

Arquitectónico

Colaboradores

Ricardo Chávez

Mónica Coto

Shirley Campos

Constructora Vimsa

Cálculo estructural

Ing. Juan Carlos Ortiz

Iluminación

High Light de Costa Rica

Instalaciones eléctricas

Ing. Roberto Vargas

Instalaciones mecánicas

Ing. Elmer Arias

Paisajismo

Laura de Arias

Ublicación

La Uruca

Fecha

2001

Restaurante Ginger

Víctor Cañas

Restaurante Ginger

La fusión entre espacio interior y exterior es permanente en la propuesta de Víctor Cañas para el Restaurante Ginger.

Se creó un área para comensales, que fluye alrededor del bar y funge como una isla central que genera un espacio definido por ventanales y puertas de vidrio, que al abrirse y cerrarse crean disposiciones de uso variables, vinculadas en forma permanente con el entorno inmediato natural. El área interior resulta un espacio con un carácter más formal que la terraza localizada en el exterior. Al ingresar al restaurante, gracias a la conexión visual con las copas de los árboles, la sensación de flotar se apodera del visitante. El acceso al proyecto se puede hacer por una escalera metálica que se introduce entre las ramas de los árboles o por medio de una rampa posterior –especial para discapacitados- localizada en la parte alta del terreno.

El esquema de distribución arquitectónica consiste en un volumen de servicio que apoya en todo momento al espacio abierto donde está el área de comensales y el bar. La estructura de acero soporta la cubierta y la terraza. Los elementos de columnas verticales y en diagonal logran un dinamismo presente desde el primer contacto visual con el proyecto, relacionados con las múltiples direcciones que se encuentran en la naturaleza de los árboles adjuntos.

Planta de conjunto Corte Fachada principal

Restaurante Ginger

Diseño arquitectónico

Cañas Collado Consultores Cálculo estructural

Ing. Ricardo Solano

Instalaciones eléctricas

Ing. Roberto Vargas

Instalaciones mecánicas

Ing. Luis Sequeira

Ubicación

Playa Herradura, Guanacaste. Fecha 2003

Oficinas Administrativas de

Tico Pollo

Juan Lalinde y Paola Franceschi

Oficinas Administrativas de Tico Pollo

Localizado dentro de un amplio terreno de la empresa Tico Pollo, el edificio propuesto para las oficinas administrativas evidencia la tendencia de diseñar una caja sencilla y pura, con gesticulaciones volumétricas de lectura clara, en especial en los planos de la cubierta. El programa consiste básicamente en cuatro oficinas, gerencia, sala de reuniones, recepción, sala de espera, cocina pequeña y baños.

El planteamiento formal en fachadas (este y oeste) consiste en un control de radiación solar, por medio de elementos de madera que actúan como parasoles y amplios ventanales en el área de acceso, que admiten la fusión permanente con el contexto inmediato natural. Una escalera metálica, ubicada hacia el oeste, desplaza el eje de los parasoles y se mezcla con el árbol junto al proyecto, escenario que genera un espacio informal en las afueras de la sala de reuniones. El eje funcional de circulación potencia la fuga visual interna, tamizada por los elementos de cerramientos con paneles ligeros.

Los materiales empleados en el diseño responden a una vinculación inmediata con la piedra encontrada en el sitio y, a nivel conceptual, remite a las estaciones del tren ubicadas en las cercanías de la obra. Éstas poseían un carácter de sencillez formal y eran construidas con una plataforma, para generarle altura al nivel de piso terminado.

Planta de conjunto
Planta principal
Vista isométrica Fachada oeste Corte transversal

Oficinas Administrativas de Tico Pollo

Diseño e inspección

Lalinde y Franceschi

Arquitectos

Juan Lalinde

Paola Franceschi

Oficinas

Tico Pollo, Ciruelas de Alajuela

Dibujo

Diego González

Montaje

Mario Vargas

Iluminación

Tecno Lite

Fachadas exteriores

Rocazul y AMS Decks

Diseño del paisaje

Soledad Peña

Estudio de Fotografía Zermak

Luis Diego Barahona

Estudio de Fotografía Zermak

El Estudio Zermak surge como una ampliación de la vivienda del fotógrafo. El proyecto se inserta en una zona residencial frente a unos terrenos con pronunciadas pendientes y una pequeña zona boscosa. La propuesta articula la casa y el proyecto con un pasillo que se genera en el ingreso de madera y finaliza con un entarimado y mesa de reuniones. Al avanzar por este eje, se puede ingresar al sur de la vivienda original y al norte del estudio, acceso que se fuga hacia las prolongadas escaleras que vinculan con el parque del frente.

El espacio requiere ser sombrío en beneficio de las actividades propias del lugar. El cuarto oscuro evidencia un cubo en fachada, el cual contiene la pila interna para los químicos. Un baño con una abertura discreta vertical ilumina un espejo para los modelos. Al continuar se encuentra el espacio de cómputo y un volumen mayor al final alberga el ciclorama. Las cubiertas se trabajaron en losa de concreto, lo que incitó de manera directa el manejo de volúmenes, los cuales incidían en las luces y sombras –vínculo conceptual entre arquitectura y fotografía-. De igual forma, los blancos propuestos para la totalidad del proyecto favorece los claroscuros.

Una abertura en cubierta ilumina el ingreso, espacio que continúa la viga de acero que invita al ingreso desde la fachada este de la propiedad. Desde el punto de vista geométrico, la obra está proporcionada en sección áurea, en su planta y en su fachada. El estudio funge como un proyecto de escala modesta con un control exhaustivo del detalle arquitectónico y constructivo.

Planta arquitectónica casa existente

Fachadas estudio de fotografía de Zermak

Estudio de Fotografía Zermak

Cliente

Oscar Abarca

Colaboradores

Luis Arroyo

Kellesta Salazar

Cálculo estructural

Ing. Rodolfo Cruz

Instalación eléctrica

Ing. Claudio Soto

Instalación mecánica

Ing. Rodolfo Cruz

Construcción

Carlos Jiménez

Dibujo

Luis Arroyo

Área

56 m2

Oficinas GBM

Rolando Barahona

Oficinas GBM

El Paseo Colón ha sido, desde hace décadas, uno de los principales ejes urbanos de la ciudad capital. Por tal motivo la inserción de esta remodelación dentro del ambiente consiste en uno de los escasos ejemplos de la arquitectura contemporánea costarricense en el medio urbano.

La propuesta para albergar las oficinas radica en una remodelación del primer nivel de un edificio existente y el replanteamiento de la fachada principal. La solución fue una redefinición interna y externa de la piel del edificio.

En el espacio interno, el vestíbulo principal y el pasillo hacia las oficinas se replantearon con elementos metálicos, vidrio, espejos y luminarias que se reflejan sobre las paredes y los cielos rasos (plafones) de metal. El mobiliario de recepción se diseñó y se duplicó gracias a una pared con espejo en su totalidad. Los baños se remodelaron con un contraste de paredes y puertas metálicas con superficies color rojo. Las escaleras que bordean el ascensor se multiplicaron visualmente con espejos verticales en las aristas internas.

El edificio contenía en su interior un espacio central de similar altura al de la obra original. Este sitio fue protegido del clima con una cubierta plástica traslúcida, en forma piramidal y, para efectos de albergar en planta baja las impresoras, se construyó un entrepiso con superficie de acabado de vinilo color gris. Los espacios internos -en especial las oficinas- localizados en el sector sur del proyecto, se beneficiaron con las pantallas semitraslúcidas de la fachada principal, situación que disminuyó de manera considerable el ruido de los vehículos, lo cual, a la vez, favoreció un ambiente de trabajo con mayor calidad humana y espacial.

Planta primer nivel
Fachada principal de GBM

Oficinas GBM

Arquitectura y amueblado

Arq. Rolando Barahona-Sotela

Colaboradora

Arq. Gabriela Rodríguez Víquez

Consultor estructural

Estructuras Guzmán S.A.

Ing. Adán Guzmán O

Consultor eléctrico

ELECMEZA- Ing. Fernando Zamora

Ing. Alberto Vargas R.

Consultor mecánico

Ing. William Bolaños

Construcción

Constructora PROYCON

Ing. Luis Roberto Sáenz Suplidor muebles

EUROMOBILIA,

Ing. Sergio Ayala

Ubicación

Paseo Colón, San José. Costa Rica

Fecha

2004

Taller y Oficinas Estructuras Ros y Soluciones

Estructurales Ace-ros

Rolando Barahona

Taller y Oficinas Estructuras Ros y Soluciones Estructurales Ace-ros

El edificio del Taller y Oficinas Ros representa uno de los escasos ejemplos de arquitectura industrial en Costa Rica. El programa de la empresa, dedicada a la importación, almacenaje y construcción de elementos estructurales de acero, es sencillo en programa y amplio en área de cobertura.

El proyecto se ubica en una zona alejada del entorno urbano, lo que favorece las conexiones visuales y ambientales con el sitio, lo que diluye el efecto de ruido generado por el taller. Dentro del conjunto, el proyecto es un cuerpo definido, contenido por dos planos de vegetación de bambú, los cuales se diseñan como pantallas verticales prolongadas. A nivel de zonificación interna general, el esquema empleado se traduce en dos espacios macro de taller, con un cuerpo de oficinas y servicios en el medio, el cual rompe con la continuidad visual y permite observar desde la presidencia y gerencia hacia gran parte del taller.

Al ingresar al proyecto, un elemento escultórico da la bienvenida y remite a la vinculación del arquitecto con el arte contemporáneo. Luego se encuentra un área exterior, donde se colocan elementos de acero. Al fondo aparece el edificio principal, fugándose a lo largo de 100 metros de profundidad. La disposición en corte transversal muestra el desplazamiento del eje central de la estructura de cubierta, la cual permite, por medio de unas aberturas en su parte posterior, el flujo de luz y aire caliente. Esta situación mantiene un microclima interno cómodo para el trabajo y extrae el aire viciado por la soldadura, las pulidoras y la pintura a compresión.

El diseño estructural de los cerramientos laterales colaboran con el soporte de dos grúas que, en forma continua, transportan el material dentro del recinto. Los materiales utilizados son, principalmente, aceros expuestos con fuerza creativa lograda por medio de decisiones de diseño cromáticas y funcionales. Los tonos neutros permiten una serenidad macro que contrastan con las acentuaciones de color, que fungen como estimulantes energéticos en los colaboradores del taller.

Plantas segundo y tercer niveles Corte

Taller y Oficinas Estructuras

Ros y Soluciones

Estructurales Ace-ros

Arquitectura y amueblado

Arq. Rolando Barahona-Sotela Colaboradora

Arq. Gabriela Rodríguez Víquez

Diseño estructural

Estructuras Guzmán S.A.

Ing. Adán Guzmán O. Diseño eléctrico

ELECMEZA

Ing. Fernando Zamora, Ing. Alberto Vargas R. Diseño mecánico

Ing. William Bolaños. Construcción

DYSATEC S.A.

Ing. Jorge Quesada

Fabricante e instalador de estructuras de acero

Estructuras Ros

Ing.Roger González

Muebles

EUROMOBILIA, Altea, Bo Concept

Acabados

Metalco, Schall Trend,High Light, Mapar,Vid Tec, Deco Blinds. Sistema constructivo metal, bloque expuesto, vidrio y poli carbonato Área construida

Taller 3.960 m2, oficinas 465 m2 en 3 niveles

Ubicación

San Rafael, Alajuela Fecha

2005

Casa Calvo

Javier Salinas

Casa Calvo

Insertada en un contexto residencial de baja calidad arquitectónica, la Casa Calvo favorece en gran medida la vista hacia el sur, donde se ubica una determinante pantalla verde que rompe de manera formal con el resto de sus vecinos. El acceso por el costado permite separar el volumen principal de la vivienda de la propiedad aledaña y, a la vez, enmarca la vista natural al momento de salir. Una vez que se ingresa, inicia el juego de espacios cerrados y abiertos, los cuales dialogan siempre con elementos naturales como el agua o la vegetación.

La distribución está definida principalmente por dos niveles. En la planta baja se ubican la sala, comedor, cocina, pilas, piscina y sitios cercanos. En la segunda planta, los dormitorios y baños. En el planteamiento funcional destaca la posición estratégica de la cocina, la sala de doble altura, la relación del dormitorio principal con la vista del paisaje exterior y la exposición hacia el cielo del baño principal.

Con un lenguaje contemporáneo de evidente influencia neoplástica –más que minimalista– la residencia se expresa por medio de muros blancos con cuidadosas aberturas y sisas, que permiten fusionar los espacios internos con los externos y adaptar la vivienda con el clima y contexto natural del país. Un discreto achurado en madera –en el cielo raso y en las escaleras– contrastan y logran el equilibrio visual con los muros blancos y los pisos de concreto.

Planta Casa Calvo Elevación frontal Corte

Diseño arquitectónico

Arq. Javier Salinas Guerrero Colaboradores

Arq. Ondina Coto

Arq. Fabián Mora

Arq. Luis Monge

Arq. Hernán Mora

Arq. Laura Soto

Ingeniero civil

Ing. Gustavo Monge

Ingeniero eléctrico

Ing. Claudio Soto

Ubicación

Granadilla, Costa Rica

Fecha 2003

Casa Calvo

Casa Rapaccioli

Javier

Casa Rapaccioli

Ubicada en Curridabat, la Casa Rapaccioli está compuesta por una vivienda y un apartamento. En fachada, el estacionamiento queda afuera de la casa y al ingresar a la vivienda, fluye un espacio abierto que contiene un espejo de agua y organiza las áreas sociales de la casa, así como las escaleras llevan hacia el área privada en un segundo nivel.

Desde el punto de vista conceptual, la disposición espacial es clara y se manifiesta de una manera directa en el empleo de materiales constructivos y diseño de texturas. En la planta baja dos planos verticales en concreto cubren las áreas sociales y sobresalen sobre el jardín posterior. Las transparencias de estos espacios internos se vinculan de manera directa con los jardines y el muro de gaviones que delimita la propiedad. El vidrio de estas zonas contrasta con las maderas laminadas utilizadas en la planta alta, donde se ubican los dormitorios y el eje de circulación que los conecta.

La disposición formal es de tensiones arquitrabadas. Los espacios son definidos por una armonía de ejes compositivos equilibrados de manera transversal. Esto define la disposición de las aberturas y las relaciones formales, al igual que la jerarquía del volumen del dormitorio principal que sobresale en fachada.

Planta de conjunto Planta segundo nivel

Casa Rapaccioli

Diseño arquitectónico y de mobiliario

Arq. Javier Salinas G.

Arq. Fabián Mora

Dis. Hernán Mora

Diseño estructural

Javier Salinas

Salinas Arquitectos

Ing. eléctrico

Ing. Claudio Soto Gamboa

Área total 620 m2

Área construida 450 m2

Ubicación

Curridabat

Fecha 2004

Casa de Playa

Víctor Cañas

Casa de Playa

La Casa de Playa mostrada es un hito en la trayectoria del arquitecto Cañas. Suma la experiencia obtenida a lo largo de más de una década diseñando casas de playa en Guanacaste, y la depuración formal expresiva de una escuela que está en favor del respeto y la vinculación permanente con el lugar. La ubicación en la cúspide de una colina y su amplio programa arquitectónico le permite una conformación en planta articulada, prolongada y con una visual periférica privilegiada por las playas costarricenses.

Una plaza circular antecede a la vivienda e inicia el contacto con el océano Pacífico y las formas blancas de las playas, que contrastan y acentúan con el color rojo de la puerta de acceso principal. Al ingresar se inicia un juego de espacios articulados en sus texturas y cualidades espaciales. Una serie de pisos en madera, concreto y losetas de piedra sobresalen entre un conjunto de escaleras y piedras de canto. Aparece la sala como punto fundamental en la composición general, la cual se fusiona –a nivel del piso terminado– con la piscina/terraza. Éste se convierte en uno de los aspectos más poéticos de la propuesta, al unir la piscina con el mar e incluirle la posibilidad de caminar sobre el agua de la alberca, efecto que ocasiona la sensación permanente de transitar sobre el océano.

Los dormitorios, áreas de estar, cocina y baños se añaden a los laterales de este cuerpo. Un volumen en concreto atraviesa el ventanal y concluye en un mirador en voladizo, efecto que remite a la Casa de Montaña Ramírez –también obra del arquitecto– y de los Folies de Tschumi. Esta situación se repite en el entarimado que se encuentra en las afueras del dormitorio principal. Dos de los baños principales –uno del dormitorio principal y otro del apartamento– fueron planteados de manera innovadora y ambos aplicaron materiales de acabados blancos. El primero fusiona el piso de la ducha con el resto del baño, lo que provoca que el agua se diluya por toda la superficie. En el caso del baño del apartamento, la ducha es dejada en su totalidad al descubierto con un ventanal lateral hacia el exterior. En el nivel estructural sobresale la calidad del mirador en voladizo, la escalera de vidrio sujetada por un elemento de la parte superior –el cual no llega a apoyarse al suelo– y los ventanales y sus respectivos elementos metálicos de apoyo, los cuales distribuyen las fuerzas de una manera atípica y compleja por su continuidad tridimensional. Esta situación de cerramiento permite dejar total libertad entre el espacio principal de la sala y la fusión de la piscina con el mar.

Fachada norte

Corte sala-piscina

Corte sala-cocina-estudio

Planta Casa de Playa

Casa de Playa

Diseño arquitectónico

Arq. Víctor Cañas

Colaboradores

Arq. Andrés Cañas,

Arq. Ricardo Chávez

Cálculo estructural

Ing. Ricardo Solano

Instalaciones eléctricas

Ing. Roberto Vargas

Instalaciones mecánicas

Ing. Elmer Arias

Diseño técnico piscina

Juan Roca

Diseño electrónico

Niels Pinagel

Iluminación

Arte en Luz, Artiv Design, Life Style

Diseño ventanales

Arq. Andrés Cañas, Arq. Rodolfo Vargas

Construcción

Constructom

Casa Holmes

Víctor Cañas

Casa Holmes

La relación directa entre el sitio y la obra arquitectónica es un concepto profesado por Carlos Mijares, uno de los principales maestros de Víctor Cañas. Esta vinculación permanente refleja una comprensión del lugar, aplicada de manera visible en el diseño y concepción de la Casa Holmes.

Ubicada en una ladera en las cercanías del conjunto de viviendas Laguna Vista –obras del mismo arquitecto-, la propuesta ganadora del Gran Premio VII Bienal de Arquitectura y Urbanismo de Costa Rica 2004 se asienta sobre una gran roca existente, que se potencia a nivel visual en la parte posterior de la cocina y el pasillo que comunica con el dormitorio principal. El esquema funcional lo define un prolongado eje. El ingreso principal está dispuesto en el medio de este tramo longitudinal y permite que, al acceder a la residencia, la vista hacia el mar se apodere en forma constante del visitante.

La sala principal se une con la terraza por medio de ventanales que, al abrirlos, disponen espacios nuevos. Estos, a su vez, se adjuntan a la piscina que se fusiona con el mar y en la cual cae una cascada artificial, generada en un espejo de agua que se encuentra junto al dormitorio principal. Destaca la fuga presente desde esa alcoba hacia los tres niveles de agua: espejo, piscina y mar. El baño principal es un volumen de vidrio que permite la comunicación visual con el entorno de la montaña. La presencia de esta caja de vidrio crea el dinamismo formal de la fachada lateral. Los dormitorios secundarios se ubican al sur de la casa. Debajo de estos espacios se construyó un apartamento, que se comunica con el resto de la casa por una escalera de caracol.

Para permitir una fuga continua hacia el mar de Playas del Coco y las montañas adjuntas, en la Casa Holmes se emplearon grandes ventanales con el mínimo de estructura de soporte, y barandales en la terraza con fijaciones puntuales de metal. La disposición de parasoles metálicos controla gran parte de la radiación solar de la tarde y las cubiertas ligeras fungen como planos discretos y sutiles, que contrastan con la pendiente de la montaña y se reflejan en la piscina.

Planta de conjunto Planta de sótano Cortes

Casa Holmes

Diseño arquitectónico

Arq. Víctor Cañas

Arq. Ricardo Chávez

Arq. Andrés Cañas

Arq. Ana Ulloa

Arq. Rodolfo Ramírez

Diseño estructural

Ing. Ricardo Solano

Diseño eléctrico

Ing. Roberto Vargas Dengo Diseño mecánico

Ing. Elmer Arias

Iluminación

Stefano Alessandri (Tecnoica)

Construcción

Tom Terry (Constructom) Galardón

Gran Premio VII Bienal de Arquitectura y Urbanismo de Costa Rica

Ubicación

Playas del Coco, Guanacaste

Fecha 2004

Casa Gillet

Jacqueline Gillet

Casa Gillet

La vivienda, proyectada y habitada por la arquitecta Jacqueline Gillet, se ubica en una ladera de las montañas de Santa Ana, al oeste de la ciudad capital. La vista hacia el valle es privilegiada y potenciada por medio de transparencia y un entarimado que comunica la escalera de acceso con la entrada principal de la vivienda.

A nivel contextual, el proyecto está insertado en una pronunciada pendiente, con gran cantidad de vegetación. La propuesta plantea la inserción de la casa en el medio natural, al añadir la construcción a la ladera y su protección con un muro de gaviones, que define el remate visual interno de la vivienda y equilibra con la vista en sentido contrario del valle.

El esquema de planta libre permite una fluidez visual de espacios entre el sector de la cocina y comedor con la sala, y entre la sala de estar y el entarimado exterior. Esta comunicación directa favorece que, al abrir las puertas transversales, el aire caliente fluya por el efecto de la ventilación cruzada. Esta situación genera una sensación de comodidad térmica y una comunicación permanente entre el espacio interno y el exterior. Las cubiertas de alero prolongado y pendientes evidentes hacia los perímetros, equilibran los gestos de protección climática con la continuidad y claridad de la línea horizontal.

Los materiales como la madera y el concreto expuesto sobresalen en las fachadas y las texturas de los pisos. La disposición formal es de clara lectura y presenta un balance entre los ejes que componen las elevaciones, con elementos puntuales como el barandal curvo y los planos de malla metálica colocados en el entarimado.

Planta de conjunto Fachada
Elevación lateral Corte

Casa Gillet

Diseño arquitectónico

Arq. Jacqueline Gillet

Asistente

Joseali Porras Salazar

Diseño de muebles

Arq. Jacqueline Gillet

Estructura metálica

Juan Carlos Ortiz

Ubicación

Santa Ana Fecha 2002

Casa Mc Crea Salguero

Hans Pechtel

Casa Mc Crea Salguero

Situada en un contexto climático caluroso, la Casa Mc Crea Salguero complementa un pequeño conjunto de domicilios creados por el arquitecto. La propiedad y las viviendas están ocupadas por familiares y se insertan en un medio con vegetación frondosa y abundante. En contraste con el verde de la naturaleza, las casas se diseñaron con una cromática que oscila en la gama del rojo.

La obra en estudio se encuentra en primer plano al ingresar a la propiedad y define el área social en la planta baja y el sector privado en la planta alta. Al ingresar en la casa el espacio se fuga hacia los ventanales, que con libertad muestran la riqueza natural. Al continuar, se desciende a la izquierda hacia la sala y a la derecha hacia la cocina, alturas de niveles de piso vinculadas en forma directa con la topografía del lote.

En planta alta, un discreto pasillo con aberturas puntuales hacia el exterior organiza de manera racional una planta donde los dormitorios se encuentran en los extremos. Sobre la sala está la alcoba principal, similar a la del hijo. Ambos espacios fortalecen las fugas visuales por medio de un ángulo agudo perceptible en los volúmenes externos. La estructura metálica es expuesta y de producción nacional. Los cerramientos en lámina metálica ondulada y la malla soldada unen con el concreto expuesto, aplicado sobre todo en las texturas de pisos.

Planta alta

Elevación sur Planta de techos

Elevaciones este, norte y oeste.

Casa Mc Crea Salguero

Arquitecto

Hans Pechtel Ramírez

Ingeniero estructural

Tomas Monestel Malavassi

Ingeniero mecánico

William Bolaños Alpízar

Ingenieros eléctricos

Fernando Zamora Carvajal

Alberto Rodríguez

Constructor

Hans Pechtel Ramírez

Ubicación

Ciudad Colón

Fecha 2003

Horizonte Naciente

Casa Q & B

Rolando Barahona-Sotela

Horizonte Naciente

Casa Q & B

La propuesta para esta vivienda, ubicada en una región montañosa, está compuesta por un eje funcional horizontal con acentuaciones y conexiones continuas entre la arquitectura y el contexto natural. Las fugas visuales surgen de manera transversal a la vivienda e inician al ingresar por un acceso determinado por dos planos girados y en pendiente, construidos en madera. Estos elementos contrastan con las paredes neutras –propias del arquitectoy rompen la horizontalidad del eje superior de la elevación principal.

El área central contiene la sala y está separada del exterior por un plano vertical metálico de mediana altura. El elemento agua es integrado por medio de un estanque entre la casa y el patio, que se fusiona con la naturaleza del lugar y se alimenta por agua pluvial en caída libre. Al transitar por la casa es visible la resolución exhaustiva de los detalles arquitectónicos y estructurales de materiales como metal, madera, concreto y vidrio. Los espacios se anexan al eje principal y los sectores se zonificaron a ambos laterales de ese ámbito central. A un costado se encuentran los dormitorios y sala de televisión con un jardín privado como remate visual al pasillo. Hacia el otro costado, la cocina, comedor, cochera y espacios anexos; todos comunicados con la naturaleza exterior. El baño de visitas y el estudio se adjuntan en forma transversal al espacio principal, transcrito en fachada posterior por gesticulaciones formales en cubierta.

El sonido, presente a lo interno y en gran parte del patio, armoniza un espacio que juega de manera constante con el diseño lumínico y de mobiliario, para generar una atmósfera continua de estimulación positiva a nivel sensorial.

Corte transversal
Planta de conjunto

Horizonte Naciente

Casa Q & B

Arquitectura, jardines y amueblado

Arq. Rolando Barahona-Sotela Colaboradora

Arq. Gabriela Rodríguez Víquez

Consultor estructural Estructuras Guzmán S.A.

Ing. Adán Guzmán O.

Consultor eléctrico

ELECMEZA- Ing. Fernando Zamora,

Ing. Alberto Vargas R.

Consultor mecánico

Ing. William Bolaños

Construcción

Ing. Nora Brenes Baudrit

Arq. Rudy Piedra

Suplidor muebles

Bo Concept, PANELEX/ ARAN Italia

Sistema constructivo

Metal , madera , bloque, concreto, vidrio y poli carbonato.

Área Construída

650 m2

Ubicación

Tres Ríos, Cartago

Fecha

2004

Santuario Habitable

Casa 1

Rolando Barahona-Sotela

Santuario Habitable Casas 1 y 2

Santuario Habitable es un conjunto de dos viviendas cercanas construidas para dos hermanas y ubicadas en las laderas de las montañas al oeste de la ciudad capital. La propuesta resultó finalista en la IV Bienal Iberoamericana de Arquitectura 2004 y es de los escasos proyectos ubicados intramuros de índole contemporáneo. La localización dentro del contexto relaciona las casas directamente con la naturaleza y por la pendiente entre ellas se vinculan manteniendo una independencia y autonomía formal y funcional.

El objetivo primordial es la generación de espacios que introduzcan energía a sus habitantes por medio de una conexión permanente con el medio natural. El proyecto ha sido concebido en tonalidades neutros y construido con concreto expuesto, muros de piedra quebrada, estructuras metálicas contrastadas con los plafones oscursos, techos de teja de barro gris y pisos de madera cultivada. Estos materiales se reflejan y fusionan con el paisaje gracias a la ventanería de color gris y el efecto de la incidencia de los rayos del sol. El planteamiento dispuso los proyectos frente a un valle rodeado de montañas, lo cual genera una vinculación con el medio y paralelamente una introspección que invita a la meditación. En fachada las casas resultan volúmenes con cubiertas prolongadas que permiten una visual con el entorno natural desde su espacio interno. La casa menor muestra una techumbre que se eleva desde un punto de inicio fusionado al suelo y proyectada hacia el cielo, comunicando la arquitectura con lo intangible.

Casas 1 y 2 : Planta de conjunto

Casa 1: Planta de conjunto Planta alta Mezzanine

Santuario Habitable Casa 2

Rolando Barahona-Sotela

Santuario Habitable

Casas 1 y 2

El lenguaje arquitectónico incluye espacios austeros y transparentes con geometrías claras y una rigurosa calidad en el detalle tectónico. Una versión contemporánea de patio central funge como punto de convergencia del sol y la lluvia en caída libre. El elemento agua se incluye en la casa menor por medio de un estanque con ranas-mascota que da una atmósfera calma a la mayoría de espacios interiores. La luz es valorada y empleada continuamente en las moradas. La luz natural es tamizada con parasoles de policarbonato, barandales de lámina perforada y cristales polarizados. La luz artificial está graduada y dirigida por controles inteligentes, los cuales generan ambientes sutiles y libres dentro de los espacios fluidos y continuos de las viviendas.

Santuario Habitable resulta un espacio que acerca al ser humano con su contexto energético que propicia el estímulo a los sentidos. La claridad conceptual y calidad constructiva hacen de esta obra uno de los proyectos más sobrios, estilizados y valiosos de la arquitectura contemporánea costarricense.

Casa 2 : Planta de conjunto
Fachada sur
Cortes casas 1 y 2

Santuario Habitable

Casas 1 y 2

Arquitectura, jardines y amueblado

Arq. Rolando Barahona-Sotela

Asistente

Arq. Gabriela Rodríguez

Diseño estructural

Ing. Adán Guzmán

Diseño eléctrico

Ing. Fernando Zamora

Diseño mecánico

Ing. William Bolaños

Sistema inteligente

TECHzone S.A.,

Ing. Roberto Gutiérrez

Construcción

Constructora PROYCON

Muebles, cocinas y baños

Euromobilia, Schall Trend, Mapar e Incesa

Sistema constructivo

Metal, concreto armado y muros de piedra

Área construida

Casa 1

490 m2

Casa 2

360 m2

El Barrio de la Bicocca en Milán:

Un centro histórico para la periferia

Gregotti Associati International

El Barrio de la Bicocca en Milán: Un centro histórico para la periferia

La cuestión de las áreas industriales no utilizadas ha extendido su propio significado en toda Europa hasta producir un nuevo modo de actuación en la planificación urbana y territorial. Estas recientes condiciones abren nuevos horizontes a la planificación del territorio, al grado de acoger una ocasión histórica de transformación concreta que no se presentará más en muchos años, similarmente en algunos aspectos, al momento del equipamiento industrial de las ciudades y a las consecuencias que esto ha tenido en los últimos dos siglos. Bernardo Secchi ha comparado esta ocasión histórica para la renovación de la ciudad europea con el fenómeno de la confiscación de los bienes eclesiásticos que desde octubre del 1789 permitió dotar a nuestras ciudades, a través del cambio radical de uso de grandes complejos monumentales, de una serie de importantes servicios colectivos.

El objetivo del Progetto Grande Bicocca es la reutilización de una gran área industrial en decadencia, constituyendo un nuevo polo de centralidad en la zona metropolitana al noreste de Milán, polo caracterizado por la variedad -o uso mixto- de funciones y la presencia de actividades de investigación y de enseñanza universitaria. Se trata de una de las más vastas intervenciones orgánicas de reestructuración urbana operadas en Europa en los últimos 30 años, y ciertamente la más estratégica en la ciudad de Milán. El primer acto fundamental, la apertura del recinto industrial a la ciudad, ha presentado el problema de la creación de un nuevo sentido; luego se presentan los temas derivados del contacto con el entorno inmediato, de los sistemas de accesibilidad de los servicios y naturalmente, en primer plano, la definición del carácter morfológico y de uso de esta nueva y privilegiada área metropolitana que se constituye. A esto debe agregarse la perspectiva de construir la Bicocca también como nodo referencial y polo de centralidad en la confrontación de las transformaciones de otras vastas áreas industriales que caracterizan todo el noroeste de Milano. Tal nodo podrá representar además una referencia decisiva para la polarización del campo ya urbanizado y densamente productivo al norte de la ciudad.

En una palabra, el proyecto de la gran Bicocca tiende a ser un verdadero y propio centro histórico de la periferia difusa, o mejor, una contribución a una visión policéntrica de las áreas metropolitanas milanesas en términos de su carácter, de su identidad y de las articulaciones urbanas tanto formales como de uso, tratando de crear, con su diseño, una continuidad de escala, de proximidad y de densidad asumiendo las aceptadas ventajas de la ciudad consolidada.

Entre el lleno de la ciudad tradicional y el vacío disperso de objetos de la ciudad moderna aquí se define entonces una tercera condición: Los espacios abiertos del proyecto Bicocca son casi todos públicos, formando secuencias encadenadas de ambientes diferenciados; a la simplicidad de los volúmenes externos se corresponde una complejidad interna resultante de la flexibilidad de los usos; una cuota importante de la superficie edificada se logra mediante la reestructuración y asimilación morfológica de lo existente; la escala de los bloques industriales ha permitido instaurar una nueva jerar-

Planta de conjunto, barrio Bicocca, Milán, Italia.

quía entre calles, plazas, arquitectura; el reconocimiento de las partes y la orientación perceptual han sido cuestiones puestas en el primer plano del asentamiento. Desde el punto de vista de la discusión sobre el diseño urbano, el proyecto de la gran Bicocca se propone como forma de la recomposición, de la reordenación, de la organicidad del conjunto y de cada una de sus partes respecto a sí misma: un punto de vista suficientemente fuera de moda que hemos reinterpretado no como reconciliación, sino como reconstrucción.

Como se sabe, existen posiciones diversas sobre esta cuestión que no comparten el principio de continuidad y en consecuencia de recomposición, aunque éste represente la tradición más antigua, la única que haya dejado, en esta disciplina, los testimonios más importantes y convincentes. No puedo tampoco decir que, según la tradición moderna, el plano de la Bicocca haga referencia a una sociedad idealmente recompuesta. Más sencillamente, es un llamado a usar las condiciones tanto institucionales como del mercado que ofrezca la localización, para construir una propuesta que sea algo más que una respuesta colaborativa o retratística respecto a las condicionantes de la ideología del mercado, que pretenda ser la simulación de un reordenamiento ideal del presente, el establecimiento de un punto de vista que nos permita observarlo. De hecho, la globalización de los flujos, la flexibilidad productiva social de nuestros tiempos debiera reclamarle a los lugares manifestarse en su especificidad, para ofrecer elementos de referencia sin los que el sistema no podría funcionar. Cuando todo fluye y gira, los puntos fijos se convierten en esenciales para medir el cambio, por tanto, los lugares deben revelar su identidad de manera tal que el sistema global discontinuo y móbil pueda funcionar y crear alternativas.

Un centro histórico de la periferia debe estar caracterizado por 7 condiciones, que representan al mismo tiempo una posición en el debate y la regulación –o la desregulación- del diseño para la expansión urbana:

1. La suficiente articulación de los destinos de uso y los servicios, y la presencia interna de una infraestructura superior, de valor territorial, que haga imprescindible el intercambio con las demás partes de la ciudad y del área.

2. Una utilización socialmente diferenciada por actividad, capacidad de compra, mezcla de origen, de edad, de condición.

3. El cuidadoso diseño del uso de suelo y la gestión de los espacios abiertos y colectivos: calles, plazas, verdes y senderos, etc.: el espacio de la relación entre lo construído es tan importante como la calidad de lo mismo que se construye.

4. Un sistema de movilidad que permita el acceso claro y diferenciado sin acumular movimientos no deseados.

5. Un diseño urbano ordenado por un preciso principio de asentamiento, de clara lectura, suficientemente sólido para constituir un sistema rico y vinculante de relaciones entre las partes.

6. Una estructura capaz de ordenar y hacer reconocible las partes e identificar los espacios y sus variables de vinculación, en varios niveles de profundidad.

7. Un centro histórico tiene sentido por su localización y por prestar servi-

cios relevantes a nivel territorial. Es en relación con el área del norte de Milán que el proyecto Bicocca, localizado en un punto de cornisa al borde de la ciudad consolidada, que resultan lógicas la presencia de la Universidad, de un teatro lírico, y de la sede de algunas grandes empresas de portada internacional.

En nuestro caso el sistema de la cuadrícula está intersectado y hecho más específicamente complejo por una serie de otros elementos. El primero de ellos está constituído por la dimensión excepcional de la cuadra base (140 x 140 m), requiriendo una discusión de la noción misma de la manzana urbana, de tal modo que a su interior pueda darse un conjunto de plazas y espacios públicos peatonales. Esto torna el sistema de asentamiento elegido como aquél del centro histórico de Venecia, si bien no podría ser más diverso estilísticamente.

El segundo elemento está constituído por el hecho de que las secuencias morfológicas asumen un sentido posterior con los agregados de uso en torno a los que está planeada. En fin, un sistema que articula la estructura con las diversas condiciones del entorno del proyecto: al oeste el sistema paralelo de los grandes viales, y al este los andenes de la estación de trenes.

Una especial atención se le ha dado al diseño de los espacios abiertos. Nuestra propia concepción del diseño urbano está fundada en la convicción de que los espacios, entre las cosas, son más importantes que las cosas mismas, que la idea de posición y de relación constituyen elementos fundamentales en el diseño de la ciudad. Plazas, calles, el parque de la colina artificial que se ha construído, los espacios verdes y en general los vacíos entre las cosas, son la gramática de esta concepción. La simplicidad, el orden, el organicismo y la precisión son las cualidades necesarias para lograr este objetivo. Contrariamente a la opinión común, mientras más preciso, simple, orgánico, adaptado y ordenado sea el resultado, es más dispuesto a la interpretación de uso en el tiempo y en suma, a sus futuras modificaciones físicas.

Construir una arquitectura civil, simple, sin la espera del aplauso, es lo que hemos tratado de hacer en la Bicocca en el delicado tránsito de los principios a los hechos construídos. Algo que representa un problema es la pretensión de que todo lo construído, contrario a la condición urbana normal, deba ser arquitectura. No se supone que toda construcción deba ser arquitectura, así como todos los discursos o los escritos no deben ser literatura. Esta es, sin embargo, la contradictoria condición contemporánea: la ausencia de la edilicia corriente y noble, común, que abandonada a sí misma, se dispone en el pozo más profundo de la indiferencia. Quizás lo que hemos pensado y construído para la Bicocca podrá algún día ser considerado edilicia de calidad del siglo XX, y esto será, para nosotros, un gran éxito: “…el orgullo de la Modernidad”, escribía el gran crítico italiano de los años ’80 Edoardo Persico.

La realización del proyecto de la gran Bicocca está lejos de ser terminada, no tan sólo por lo que se refiere a la construcción edilicia sino por el crecimiento de su vida y las modificaciones que ésta podrá inducir en su entorno inmediato y en el área metropolitana en el momento en que ésta reconozca en pleno, la existencia de este nuevo lugar y de su función urbana y territorial.

Vittorio Gregotti Mayo 2006

En esta página Edificio Siemmens. En la página siguiente Edificio Pirelli.

En la página anterior Edificio de la Universidad

En esta página Edificio

Arcimboldi.
Edificio CNR.
Edificio R+S

Página anterior edificio de oficinas.

En esta página Complejo habitacional.

El Barrio de la Bicocca

Comisionado por

Grupo Pirelli

Equipo de diseño en el primer periódo del concurso 1986

Gregotti Associati International:

Augusto Cagnard

Pierluigi Cerri

Vittorio Gregotti

Colaboradores

Spartaco Azzola

Stefano Bellinzona

Cristina Calligaris

Piero Carlucci

Rita Cattaneo

Andrea Chiari

Gaggia, Davide Cornago

Giulia Depero

Sylvie Donnadieu

Mauro Galantino

Donato Severo

Renzo Vallebuona

Consultores

Andrea Aparo (ENEA)

Ezio Antonini, Asesor legal

Nefri Costa

Computación

Ruggero Boscu

Finanzas

Enrico Cicotti

Estudio de suelo

Graziella Marcotti

Ingeniería e infraestructura

Tekne

Transportación

Giugliemo Zambrini

Equipo de diseño en el segundo período del concurso 1988

Gregotti Associati International:

Augusto Cagnardi

Pierluigi Cerri

Vittorio Gregotti

Colaboradores

Antonio Angelillo

Franco Bertossi

Sergio Butti

Francesca Cadeo

Cristina Calligaris

Rita Cattaneo

Luciano Claut

Paolo Colao

Marco Contini

Davide Cornago

Giulia Depero

Mauro Galantino

Claire Gazeau

Raffaele Ghillani

Gaetano Gramegna

Lorenzo Lotti

Andrea Mambrini

Stefano Parodi

Sergio Pascolo

Claudia Pedacci

Carlo Pirola

Michele Reginaldi

Christiane Sattler Zicari

Consultores

Gerente de poyecto

Franco Maffeis

Asesor legal

Ezio Antonini

Arco (property advisor)

Técnico especialista de sistemas

Aster

Computación

Ruggero Boscu

Estudio de suelo

Graziella Marcotti

Sergio D’Agostino

Paisajismo

Paolo Pejrone

Ingeniería e infraestructura

Tekne

Transportación

Giugliemo Zambrini

Unitec Campus Zapopan, México

UNITEC Campus Zapopan

Amigabilidad con el medio ambiente y el ser humano

Frente a la reciente y aún incipiente construcción sustentable producida en México, destaca el nuevo campus educativo de la UNITEC en Guadalajara, donde la tendencia hacia la sustentabilidad es una realidad tangible. Aquí presentamos un proyecto precursor en materia de campi universitarios que hará historia en México. En la profesión de la arquitectura en el mundo han permeado los conceptos de Sustentabilidad, Green Architecture y Green Building, para referirse a aquellos enfoques que permiten entablar un diálogo fructífero entre la arquitectura y la naturaleza, y potenciar la polémica sobre la ecología y la sustentabilidad sobre bases científicas.

En México algunos sectores están reaccionando a esta tendencia mundial y se están diseñando y construyendo los primeros complejos arquitectónicos con base en estudios bioclimáticos, que aplican conceptos básicos que tienden hacia una arquitectura sustentable. La UNITEC Campus Zapopan es uno de estos conjuntos precursores de la tendencia ambiental en México.

Planta de conjunto.

Planta de conjunto edificio académico.
Edificio académico, planta baja.
Edificio administrativo, planta baja Planta biblioteca
Elevación Edificio académico.
Elevación Biblioteca.
Fachada principal.
Elevación Edificio de aulas.
Sección Edificio de aulas.

GVA y Asociados desarrolló para la Universidad Tecnológica de México, la Unitec Campus Zapopan, con capacidad para 8,000 estudiantes, de preparatoria y 16 licenciaturas, con la intención de realizar un proyecto amigable con el medio ambiente y el ser humano; fundamentado en los conceptos de Arquitectura Sustentable, derivada de los Estudios Bioclimáticos y la Tecnología, con los que se logran el mayor confort y las mejores condiciones de aprendizaje, para la nueva comunidad académica del Campus.

Las dimensiones del Campus

El Sitio, se localiza al poniente de la Zona Metropolitana del Guadalajara próximo al bosque de la primavera, de donde recibe vientos frescos adecuados de lluvia y cantidades abundantes de asoleamiento, en una superficie de 6.5 hectáreas de terreno (100%); 28,000 m2 de construcción; el estacionamiento cubre el 40% del Sitio y las áreas verdes el 20%; el Campus Zapopan está ubicado en un emplazamiento anexo al Anillo Periférico, desde el cual se percibe una volumen horizontal de concreto, cristal y panelería de fibras vegetales, y una fuente y escalinata de ingreso. Este núcleo de la fachada, alberga la Administración y la Rectoría del campus, así como el Salón de Usos Múltiples (SUM) para 350 espectadores, el cual cuenta con avanzadas tecnologías y donde se desarrollan, en condiciones óptimas, los más variados sucesos académicos locales y teleconferencias de cobertura nacional.

Las características

Esta “piel” y volumen cerrado que aloja la Administración sirve de transición entre la plaza de ingreso y el resto del Campus, permitiendo amortiguar las condiciones de ruido del periférico, estrategia que beneficia a todas las áreas del complejo universitario. Perpendicular a este volumen se desarrolla la columna vertebral del proyecto, sobre el eje oriente – poniente, donde se previó una plaza vestibular ajardinada, que recibe los vientos regionales del Bosque de la Primavera; estos humedecidos a través del bosque, pasan por la vegetación del propio Campus, aportando enfriamiento evaporativo a la plaza y vientos de superficie, mediante la evaporotranspiracion; permitiendo una agradable sensación para los estudiantes, maestros y personal administrativo; los vientos se canalizan igual a los patios de las edificaciones de las aulas de Preparatoria y Licenciaturas, además de atenuar la ganancia por efecto de albedo solar de las superficies diseñadas. El Campus Zapopan está dividido en dos grandes volúmenes de aulas, perimetrales a la plaza central; alojando la preparatoria y licenciaturas de UNITEC, estos edificios se conectan por puentes peatonales al edificio académico, según diseño. Las 84 aulas y los 41 laboratorios se localizan alrededor de microambientes con patios cuyo asoleamiento y ventilación, fue minuciosamente analizado y controlado en función de los requerimientos de programa.

La Síntesis de especialidades

La UNITEC Campus Zapopan es un centro educativo, que conjuga una síntesis de diseño mediante los estudios bioclimáticos y la arquitectura de paisaje; que realizó “Peridian de México”, con el objetivo de conjuntar un mayor confort y el contraste de las imágenes de los verdes amigables, con una arquitectura institucional que incorpora la sustentabilidad e imagen racionalista, contemporánea.

La planeación ambiental consistió en una aplicación de técnicas bioclimáticas, orientadas al aprovechamiento de los recursos del Agua, la Mitigación Ambiental y el Confort Humano, que resultan en mitigación al impacto ambiental y en Ahorro de Energía, resultando un proceso con sustentabilidad del complejo edificado.

El concepto de Mitigación ambiental comprende los siguientes rubros:

• Infiltración y Recarga a mantos freáticos. Según normas NOM-002 y 003

• Atenuación al cambio de uso de suelo mejorando el microclima vía la reforestación local.

• Permeabilidad al viento de superficie por orientación del diseño

• Planta de tratamiento de agua residual para todo el consumo del Campus

• Reuso de agua tratada en los servicios del Campus y aprovechamiento de los mismos

• Reuso de los excedentes de agua tratada para riego.

• Mitigación de polvos y partículas (tolvaneras) por aplicación de cubresuelos y pavimentos

• Mitigación al impacto Sónico mediante la vegetación seleccionada y la disposición volumétrica del proyecto.

El concepto de Ahorro de Energía se lleva a cabo por las siguientes previsiones:

• Iluminación Natural Balanceada

• Iluminación Artificial Ahorradora

• Climatización Natural en Aulas y áreas estudiantiles

• Climatización Artificial Eficiente en áreas administrativas.

• Ahorro general del Agua mediante sus diferentes reciclados.

Por lo que la ecuación se resuelve como:

Sustentabilidad del Conjunto = Mitigación ambiental + Ahorro.

GVA y Asociados ha realizado estudios y aplicaciones bioclimáticas en otros proyectos educativos, como el de la UNITEC Campus Cumbres en Monterrey, Nuevo León.

Unitec Campus Zapopan

Propietario

Universidad Tecnológica de México

Ubicación

Periférico Pte. 7900, Zapopan, Jalisco

Fecha de terminación

Septiembre de 2004

Arquitectura

GVA y Asociados

Arq. Jaime Gómez Vázquez Aldana

Arq. José Manuel Gómez

Vázquez Aldana

Arq. Andrés Gómez Levy

Arq. Juan Carlos Gómez Castellanos

Arq. Miguel Gómez Angulo

Equipo de arquitectura

Arq. Francisco González García

Arq. Arturo José Mena López

Arq. Germán Álvarez Plancarte

Arq. Karina Orozco Valadez

Estudio Bioclimático

GVA y Asociados

M. D. B. Víctor Silva Contreras

Arquitectura de Paisaje

Peridian de México

Arq. Juan Manuel Cortés Acosta

Arq. Juan Pablo Gómez

Arq. Elena Guzmán Cisneros

Señalética

Idée Diseño Gráfico Ambiental

D. G. Mónica Ladrón de Guevara

Arq. Ivonne Romero Morfín

Diseño Estructural

Correa Hermanos

Ingeniería m. e. p.

Grupo Cuen Energy

Construcción

Constructora Sierra San José

Constructora ARVA

Grupo CASGO

Grupo M

Fotografía

Mito Covarrubias

Proyecto urbano para el Sector de Lakua en Vitoria-Gasteiz, País Vasco

Enclave urbano de Lakua en la ciudad de Vitoria, al norte puede verse el cauce del río Zadorra.

Propuesta de las Edificaciones Residenciales del Sector 1, previas a la ejecución del Proyecto.

Imagen en planta propuesta al inicio del proceso para el conjunto de edificaciones del Sector 1. (Esquema en Planta y en Perspectiva)

Lakua, Vitoria

Vitoria (Gastéiz en la lengua local), fundada en el 1181, la mayor ciudad de la provincia de Alava, es hoy la capital del País Vasco. Al llegar la institucionalización de los gobiernos autónomos en España, en la primera etapa democrática tras el franquismo, los vascos decidieron que esta ciudad sería la sede de su parlamento y de su gobierno. Bilbao, capital de la provincia de Vizcaya seguiría siendo la gran urbe y San Sebastián (Donostia), capital de Guipúzcoa la ciudad costera, fronteriza y festiva cuyo carácter sigue manteniendo en la actualidad. Desde hace más de dos siglos Vitoria, en un enclave con notable dureza del clima en la etapa invernal, es entre todas las ciudades españolas, junto con Palma de Mallorca, la que goza de fama bien ganada de ciudad noble, cómoda y bien dotada. En las cuatro últimas décadas su crecimiento ha sido muy veloz, al convertirse en la ciudad administrativa y representativa de la autonomía vasca. Ha pasado en ese tiempo de los 52.000 habitantes a alcanzar en la actualidad los 250.000.

Sin embargo ese crecimiento se ha producido, ejemplarmente en todo el territorio español, encauzado en un sólido y riguroso planeamiento, que hace de ella un modelo de actuación que persiguen muchas otras en este país. Por supuesto hay que tener en cuenta que uno de los elementos que ha beneficiado ese proceso acertado ha sido la próspera economía vasca que asume las cotas más altas de desarrollo en toda España. Limítrofe con Castilla, con Logroño y con Navarra, la provincia de Alava se encuentra en un cruce de culturas, producciones agrícolas e industriales, que distinguen claramente a su capital, Vitoria, del resto de las grandes poblaciones de esa región.

Resumen Histórico de Lakua Lakua, dentro de Vitoria, al norte, es un polígono de una extensión total de 466 hectáreas cuya primera etapa de planeamiento se remonta a los primeros años 70. Hoy la totalidad de su suelo está urbanizado y prácticamente edificado, según el planeamiento revisado en 1985 y constituyó en ese momento un paso decisivo para alojar el crecimiento vertiginoso de la población entre los años 70 y 2000. En 1977 fue objeto de un importante concurso de ideas para conformar y preparar para la edificación la más extensa zona en los bordes de la ciudad. Fruto de esa convocatoria, que despertó un gran interés de los urbanistas y arquitectos entonces, fue la formalización de una propuesta para una de las super-manzanas del polígono, que desarrolló Rafael Moneo, y que nunca, por razones muy diversas, llegó a construirse. Otros nombres muy destacados de la profesión presentaron sus propuestas: José Antonio Coderch, Carlos Ferrán y Eduardo Mangada y Manuel de Solá Morales, José Antonio Corrales y Fernández-Longoria entre otros.1

En el año 1984, respetando la implantación de una de las super-manzanas según el Proyecto de Rafael Moneo, y los trazados viarios ya configurados, Ramón López de Lucio, director del equipo que revisaba el Plan General de Ordenación, desarrolló, con la colaboración de quien escribe este texto, un detalle –a nivel de propuesta urbana– para todo el Sector de Lakua, planteando una progresiva y matizada incorporación de la naturaleza a las zonas edificadas mediante un parque lineal serpenteante –que seguía la tradición de los grandes senderos arbolados de la ciudad– y la gradación de densidades de edificación y de viviendas hasta terminar en el cauce del río Zadorra,

límite natural, al norte, del suelo urbano. Lakua, además, en su contacto con el núcleo urbano consolidado, albergaba en una de sus manzanas, la sede del Gobierno Vasco, lo que obviamente otorgaba a cualquier planteamiento de desarrollo urbanístico, un plus de representatividad y calidad y lo más importante: garantías de nueva centralidad.2 Solamente una de las super-manzanas había sido desarrollada al nivel de Anteproyecto (por Rafael Moneo) y por tanto la Propuesta Urbana para Lakua de 1985 pudo configurarse, en la realidad, bajo los parámetros y pautas establecidos por el equipo de López Lucio y Vélez Catrain. No toda la superficie de Lakua fue objeto de Planificación Pormenorizada por el mismo equipo, pero sí un 75% de ella, que ha terminado por constituirse en un importante ensanche de la capital vasca.

Escalas del proyecto y colaboradores

Hemos tenido la fortuna de haber desarrollado un barrio de la ciudad, participando en todas las escalas del Planeamiento y del Proyecto, desde los primeros ensayos de zonificación, los parques, jardines y tratamiento del viario, hasta los detalles constructivos para 522 viviendas que ya están totalmente construidas en el llamado Sector 13, en la zona más al sur, constituyendo una unidad formal de gran impacto urbano y formando parte del eje E-0 que desencadena la sede del Gobierno Vasco.

Este proyecto, al que AAA dedica ahora gentilmente estas páginas, es consecuencia inmediata del Plan Parcial para el Sector 14 que inmediatamente después de la aprobación de la revisión de 1985 encargó el Ayuntamiento de Vitoria al mismo equipo. En ese planeamiento detallado, ya se definían de modo bastante intencionado las características esenciales de los tipos edificatorios residenciales: patios arbolados privados en el interior de las manzanas de vivienda vinculados visualmente al espacio público; fuerte definición de las esquinas y alineaciones; orientaciones prioritarias E-0 para todas las viviendas; plantas bajas porticadas; dotación comercial o de oficinas y unas alturas moderadas para los bloques residenciales.

El proyecto de edificios residenciales se desarrolló a lo largo de los años 1990 al 1993, y el sector 1 quedó totalmente edificado –salvo las parcelas para equipamiento que hoy esperan destino y uso– en 1999. De estos edificios, dos de ellos (los bloques lineales situados en el extremo Oeste) albergan viviendas de protección pública y una de las manzanas cerradas se destinó a vivienda protegida en régimen de cooperativa, quedando las tres restantes destinadas a la promoción privada.5

Las parcelas del extremo Este tienen ambas características singulares: de ellas la situada al Norte tiene un desarrollo curvo en uno de sus vértices para adaptarse al viario ya realizado en el momento del proyecto, y la que se sitúa al Sur, ambas enfrente del edificio de la sede del Gobierno Vasco, a un equipamiento social relevante que aún no se ha promovido.Transcurridos más de diez años de la finalización de los primeros edificios del Sector 1, es forzoso reconocer la deuda contraída tras las reflexiones que a finales de los ochenta provocaron en los arquitectos que trabajábamos en Europa las publicaciones “rossianas” que nos hablaban del rigor geométrico; del equilibrio compositivo; de la arquitectura de la ciudad frente a la de los edificios.Todavía nos sigue pareciendo que esa atención prioritaria a la estrategia urbana era más acertada que la preocupación por el objeto aislado y lo ocurrente en las formas y en la imagen del tejido residencial, esencia de toda urbe.

No es posible pasar por la descripción de esta intervención urbana sin hacer una mención destacada al arquitecto municipal Eduardo Tabuenca

de la Peña, quien siguió paso a paso, desde su responsabilidad en la gestión urbanística de la ciudad, todas las etapas antes descritas y que aportó –además de su entusiasmo y su atención- importantes acotaciones y matices que han contribuido decisivamente a lo que estimamos que ha sido un correcto resultado.

Características a destacar de la propuesta y del resultado en la ciudad

Se apostó por la ciudad serena, la ciudad sin estridencias, la continuidad y la severidad. La imagen edificada responde a parámetros más de la escala urbana que de la escala edificatoria. Solamente algunos aspectos de detalle (esquina curva en el ángulo N-E; cubiertas de sección elíptica ejecutadas en cobre, tratamiento de terrazas en esquinas o áticos y la inserción de algunos tipos de viviendas duplex en altura y media con frente a calles peatonales) inciden en la percepción del barrio y testimonian la preocupación por el desarrollo tipológico sin quebrantar los criterios unitarios planteados para el conjunto. Ha sido en todo momento más importante el resultado equilibrado del barrio, que la adscripción a la novedad o a la singularidad. Es una arquitectura planteada para el silencio, en el que se ofrecen a la calle las fachadas más regulares y moduladas, dando a los interiores aquellas que muestran más diversidad y matices. Solamente tres materiales se emplearon en la envoltura de los edificios: ladrillo visto, revoco blanco y las ya mencionadas cubiertas de cobre que han mostrado un más que adecuado funcionamiento y envejecimiento.

Como detalle curioso, que puede comprobarse en las fotografías que se incluyen en esta publicación, citamos el que el propio ayuntamiento nos encargó la propuesta constructiva para el acristalamiento de las terrazas en esquina que previsiblemente algunos propietarios acabarían por instalar –cosa que ha sucedido– y que sin duda han contribuido al enriquecimiento del aspecto actual de los edificios. La edificación es intencionada y decididamente sobria, con muy limitadas concesiones que se concentran fundamentalmente en el tratamiento de los patios interiores y en el diseño y cuidado de los accesos a los núcleos de comunicación vertical.

Lakua hoy

Es un conjunto de manzanas, ensartadas por un parque de trayectoria curvilínea y con variaciones en su anchura, que va aportando visiones muy diversas de tipos residenciales que van desde la rigurosidad de los bloques del Sector 1 hasta conjuntos lineales de viviendas adosadas, apareadas o en hilera, torres volcadas hacia el Este con el horizonte inmediato del parque6, o agrupaciones compactas de viviendas desarrolladas en poca altura. Si algún desacuerdo hay que exhibir frente al resultado es el de una densidad excesivamente baja como promedio (70 viviendas/ha) que obliga –por respeto a los parámetros vigentes de la Ley del Suelo– a excesivos espacios vacíos entre las edificaciones oponiéndose a la continuidad del tránsito peatonal a lo que contribuye también la proliferación de espacios destinados a equipamientos, que en una ciudad como Vitoria, muy dotada en estos aspectos, tardan en completar el tejido. Afortunadamente la corporación municipal, con un gran esfuerzo económico, contribuye decisivamente al tratamiento vegetal de las zonas libres y del viario y a su mantenimiento, lo cual, como puede comprobarse por las imágenes fotográficas, es un soporte indispensable para la nobleza del barrio.

Madrid, 16 de junio de 2006

Notas

1) En el libro Vitoria, Capital del País Vasco editado por el Ayuntamiento de Vitoria, coordinado por Ramón López de Lucio se recoge una crónica detallada del planeamiento urbano de la ciudad y en concreto del Polígono de Lakua.

2) Estos aspectos quedan ilustrados por los planos generales en perspectiva vista de pájaro y en planta que se incluyen en esta publicación y cuya esmerada elaboración fue responsabilidad del arquitecto Santiago Escudier.

3) El Sector 1, al que se refiere esta parte del texto, puede verse sombreado en los planos generales mencionados en la nota 2.

4) Se incluye entre las imágenes un esbozo inicial del planteamiento propuesto para las edificaciones del Sector 1.

5) En los proyectos de edificación residencial intervino como colaborador local el arquitecto Eduardo Martín Gómez y el proyecto de Urbanización que contiene el desarrollo del Parque lineal en sus tramos centrales, se realizó en colaboración con el arquitecto, también de Vitoria, Fernando Bajo Martínez de Murguía.

6) En la imagen gráfica, recogiendo la maqueta de la ordenación de tres supermanzanas septentrionales, atravesadas por el parque, se puede verificar esta diversidad de tipos y alturas.

Plantas, secciones y alzados de los edificios de los bloques longitudinales del Sector 1, situados en el extremo oeste de la supermanzana.

Sección tipo por las viviendas tipo “duplex” situadas en una de las alas de las manzanas cerradas.

Esquema en planta de las edificaciones y manzanas residenciales del Sector 1.

Planta de conjunto de Manzana Semicerrada y Bloque Longitudinal del Sector 1.

Vista de pájaro de la propuesta urbana para el Polígono de Lakua incluida en el Plan General de Ordenación Urbana de Vitoria de 1986.

Maqueta del desarrollo detallado, en una segunda etapa (1993) de sectores más septentrionales de Lakua.

Willemstad, Curazao

De no haber sido por el interés de los holandeses de extender sus dominios en busca de sal para su industria pesquera en 1634, la capital de Curazao sería hoy comparable a cualquier ciudad latinoamericana como La Habana o Cartagena con su arquitectura española colonial, o a Georgetown con su típica influencia inglesa. Yo no estaría hablando holandés y papiamento, nuestra lengua nativa sería probablemente el español o el inglés. O quizás, incluso francés, si Francia hubiese tenido éxito en sus tres intentos por conquistar Curazao entre 1673 y 1713. Pero los holandeses conquistaron de los españoles seis islas: Curazao, Aruba, Bonaire, San Martín, San Eustaquius y Saba. Curazao, la más grande de las seis, y la más importante desde la época de la colonia, tiene la mayor influencia holandesa tanto en su cultura como en su industria, su comercio y más específicamente en su arquitectura. Gracias a su arquitectura de auténticas características holandesas, Willemstad ha sido nominada en 1997 por las Naciones Unidas, como Ciudad Patrimonio Mundial. Las dos mitades de la ciudad, Punda y Otrabanda, ubicadas a cada lado de Anna Bay, la entrada del Puerto, forman un conjunto de extraordinaria belleza. Punda ha sido siempre el centro de negocios, mientras que Otrabanda ha sido residencial. Un muro fue construido alrededor de Punda por motivos de seguridad. El espacio tan limitado que se generó forzó luego a los ingenieros holandeses a planificar un sistema de cuadrícula. Otrabanda, por el contrario, creció de manera más espontánea de acuerdo a las necesidades de los habitantes. Esto, combinado con la variedad en la topografía del terreno, hizo de Otrabanda un lugar maravilloso para vivir.

Después de un largo período de abandono del centro de la ciudad, la reconstrucción de Willemstad se inició en 1980. Se creó un importante marco legal que garantizara, por parte de los profesionales involucrados, la preservación del legado histórico y la revitalización de la ciudad. La Fundación para la Restauración de los Monumentos, creada en 1954, inició con un proyecto a manera de plan piloto, al cual le sucedieron muchas otras restauraciones en el centro de la ciudad. En 1991 la institución gubernamental para la vivienda pública, Fundashon Kas Popular, organizó un concurso para casas y comercios en un área muy depreciada de Otrabanda. Tuve el honor de ganar este concurso asociado a mi colega venezolano, Domenico Silvestro.

El área de construcción estaba rodeada de importantes monumentos. Una de las desventajas de los edificios históricos es la limitación que imponen a los arquitectos para ser creativos en su afán de búsqueda de una arquitectura contemporánea local. Muchos arquitectos prefieren copiar de lo tradicional sabiendo que la gente gusta de la belleza histórica. Esto es algo que rechazo profundamente. Algunos arquitectos incluso opinan que la arquitectura es un arte de imitación; por mi parte considero que copiar las formas clásicas en edificios contemporáneos es injusto para los mismos monumentos históricos ya que crea una falsa historia, no creíble. Nuestro proyecto en Otrabanda explora las cualidades espaciales existentes en las edificaciones

del lugar, e inicia un diálogo honesto con lo antiguo, usando formas y detalles contemporáneos. Esto es indiscutiblemente más arriesgado, especialmente porque no sabemos cómo será aceptado por el público en general, pero llevará sin dudas a un resultado más auténtico con el tiempo. Descubrimos que Otrabanda estaba compuesta de edificios individuales, distintos todos el uno del otro y organizados bajo un patrón más bien espontáneo. Nos adaptamos a este patrón con respuestas a cada edificio vecino. Usamos formas tradicionales y materiales como el concreto, ventanas de madera y techos holandeses de tejas. Pero es al aplicar de manera diferente estos materiales tradicionales donde la arquitectura contemporánea se distingue de la antigua. No negamos el hecho de que en el pasado los habitantes de Otrabanda vivían prácticamente en las calles, por eso recreamos este fenómeno al incluir en nuestro diseño espacios comunes al aire libre. Pintamos los edificios en todos los colores del arcoiris, continuando con la tradición popular local la cual he apoyado desde mis primeras obras. De esta manera creamos un vecindario con un sentir local, pero claramente reconocible como contemporáneo en su arquitectura. Durante los años ochenta varios monumentos importantes fueron restaurados y renovados. Un arquitecto de la nueva generación, Anko van der Woude, preparó muchas de estas restauraciones. Demostró cómo muchos nuevos elementos pueden ser usados en edificios históricos sin perjudicarlos. Buenos ejemplos de cómo lo auténticamente nuevo puede existir al lado de lo auténticamente viejo, son la restauración del teatro El Templo, actual Departamento de Justicia y el Hotel Venezuela, actual Museo Marítimo. Otro importante proyecto de restauración ha sido la renovación y extensión de una vieja mansión en Otrabanda para el Registro Público, diseñado por el arquitecto Frans Piket y la arquitecta de interiores Taisa Clemens. Este proyecto fue galardonado con el primer premio en restauración en la Bienal organizada por la Federación de Asociaciones de Arquitectos Caribeños en Martinica en el 2002.

Debido a la falta de fondos del gobierno holandés, las restauraciones por parte de las instituciones gubernamentales y de la Fundación de Restauración de Monumentos fueron suspendidas en los años ’90. Afortunadamente, algunas restauraciones importantes fueron realizadas por iniciativa privada. El empresario holandés Jacob Gelt Dekker por ejemplo, compró y renovó un barrio completo de Otrabanda llamado Kura Hulanda, para establecer allí el primer hotel de calidad en esta área que desde hacía mucho tiempo estaba depreciada. Con todo el respeto que merecen las personas ivolucradas en este proyecto, me apena que mucha de la autenticidad del lugar se perdió en el proceso de reconstrucción de los monumentos que desaparecieron, sin haber tratado de incorporarles arquitectura contemporánea. Si analizamos a fondo la reconstrucción de las dos casas de madera, que en su época fueron ubicadas de manera extraordinaria entre los edificios de piedra, podremos notar que están hoy construidas con un marco de aluminio galvanizado y que sólo están cubiertas con una fina capa de madera.

Vista de Punda, con Scharloo, con su Biblioteca Pública, diseñada por Tom Janga.

La arquitectura del último siglo Muy similar a lo que ocurrió en las demás islas colonizadas, el gobierno estaba centralizado y dirigido desde la Madre Patria, y la forma de construir era determinada por la misma. Se desarrolló una forma de construcción de origen holandés pero adaptada al clima del lugar. Esta arquitectura mostró una importante coherencia hasta el año 1930. En el 1900, el estilo Art Nouveau suramericano con su aire de grandeza, se desarrolló en los barrios más nuevos. Cornelis Bakker emigra desde Canadá en 1939 y constituye el primer arquitecto titulado existente en Curazao. Fue contratado por el Departamento de Obras Públicas, donde yo comencé mi carrera años más tarde. Bakker diseñó la mayoría de los más importantes edificios públicos y escuelas entre 1939 y 1952. Conocí a su hijo de manera inesperada en la conferencia de la UIA en Turquía en el 2005. El mismo vive y trabaja como arquitecto en Cánada. La CPIM (más tarde Royal Shell) comenzó una refinería en 1915, gracias a la magnífica ubicación protegida del puerto. Esta compañía fue en su tiempo la más grande en el mundo por el número de sus diferentes productos. No era solamente el pilar más importante en la economía de la isla sino que además tuvo una fuerte influencia en su arquitectura.

Bakker, quien dejó sus trabajos en el gobierno en 1944 para trabajar con la CPIM, también diseñó las casas para los empleados de la compañía. El edificio de la Shell y los edificios del gobierno constituyeron ejemplos perfectos para los habitantes locales construir sus viviendas. Estaban todos adaptados al clima del lugar, con grandes vuelos y techos a gran altura diseñados cuidadosamente para que hubiese buena ventilación y entrada de luz. Ben Smit, quien se asoció a Bakker en 1950, tiene también un impresionante número de edificios hasta el 1971. Entrenado en Holanda, construía de acuerdo a las reglas de la arquitectura moderna, pero adaptada al trópico y climáticamente eficiente. La tradición de estudiar arquitectura en la Madre Patria aún se conserva, debido a las excelentes becas ofrecidas por el gobierno y la ventaja del idioma. En los años ’70, el arquitecto local Tom Janga diseñó varios proyectos para el gobierno e instituciones públicas. Su obra más importante fue la Biblioteca Pública en el barrio de Scharloo. Esta misma constituye un buen ejemplo de edificio contemporáneo adaptado a las condiciones del clima y ubicado en un lugar histórico. Mientras en el período comprendido entre los años ’40 y ’60, sólo los más importantes arquitectos de la isla, Cees Bakker y Ben Smit, a los cuales se les unieron un limitado grupo a los que yo llamo los arquitectos viajeros, fueron capaces de crear un vasto número de hitos arquitectónicos de la más alta calidad, que solamente pudieron ser mostrados años más tarde. Los arquitectos de la nueva generación: Vries, Fresco, Alexenko, Nolte, Zingel, Julian, y Badaracco, no lograron con su trabajo, a pesar de su alta calidad, que el público en general se conscientizara de lo que es la buena arquitectura. Los arquitectos de la presente generación confrontan esta deficiencia y están luchando para superarla. Una arquitectura espontánea elaborada por personas no profesionales, por ejemplo casas individuales de familias, han sido siempre parte del escenario arquitectónico, fenómeno que parece haberse expandido a edificaciones más grandes y costosas incluyendo las comerciales.

Diseños de consumo superficial se han convertido en la norma para los edificios de la isla incluyendo los proyectos institucionales. Proyectos de muy baja calidad tratan de ser disfrazados con el uso de materiales caros y vivos colores, mientras que las soluciones a los problemas climáticos y de iluminación son deficientes y deben ser compensadas con unidades más potentes de aire acondicionado, las cuales han bajado de precio y son ahora más accesibles. Igual que en otros países del mundo, los arquitectos curazoleños

están en constante lucha para que la mayor parte de la población reconozca su profesión y los edificios que diseñan. El título y la profesión del arquitecto no están protegidos por la ley. El gobierno no ha sabido dar un buen ejemplo a seguir, ha perdido su papel de guía en el área de la construcción. Las entidades públicas rentan costosos espacios para oficinas construidos por promotores de proyectos, sin ninguna calidad arquitectónica. Se les niega a los arquitectos locales, grandes oportunidades para demostrar su talento. Para el diseño de la nueva sede del Banco Central, construido en 1995, fue contratado un diseñador de interiores norteamericano. Justo después de este error, la prisión, originalmente diseñada por un arquitecto holandés del Departamento de Obras Públicas, fue otorgada a un arquitecto norteamericano. El último ejemplo con el cual dejamos a otros diseñar nuestros futuros monumentos, es la nueva terminal del aeropuerto. Mientras el viejo aeropuerto fue bellamente diseñado por Cees Bakker, el nuevo edificio, todavía en costrucción, será un mala copia de formas históricas, con el afán de dar al mismo ese “look” típico curazoleño.

Todavía no nos damos por vencidos. Los arquitectos están supuestos a ser personas optimistas, por lo tanto seguiremos conscientizando a la gente del valor de la buena arquitectura, no sólo para los propietarios sino para toda la comunidad. Recientemente, la Asociación de Arquitectos e Ingenieros local (SAIA) organizó una serie de tardes de discusiones públicas acerca de la arquitectura de calidad. A pesar de que estamos conscientes de que la idea de calidad difiere de una persona a otra, dependiendo de su experiencia personal y percepción de los espacios, materiales y costos, estamos convencidos de que existe un concepto de calidad que es universal y es valorado por todos.

© Ronny Lobo Especial para AAA Curazao, Diciembre 2005

En esta página Vista de Otrabanda.

En la página de la derecha El Edificio Penha, famoso ejemplo del barroco curazoleño, construído en 1708.

A la izquierda: Vista de Punda derecha y Otrabanda en la Bahía de Anna, la entrada al puerto de Willemstad.

Viviendas en pasajes, Otrabanda, diseñadas por Ronny Lobo y Domenico Silvestro.

Comercios y viviendas sobre Breedestraat, Otrabanda, diseñados por Ronny Lobo y Domenico Silvestro.

Edificio Breedestraat en Punda.

Turn static files into dynamic content formats.

Create a flipbook
Issuu converts static files into: digital portfolios, online yearbooks, online catalogs, digital photo albums and more. Sign up and create your flipbook.