

聽山語 DREAMER ' S DELL DWELLINGS
DREAMER ' S DELL DWELLINGS DESIGN O VERVIEW
NESTLED ON THE OUTSKIRTS OF HSINCHU TECHNOLOGY PARK , DREAMER ' S DELL DWELLINGS OFFERS TRANQUILITY, SAFETY, AND BEAUTY FOR HIGH-END PROFESSIONALS. THIS INNOVATIVE PROJECT BLENDS MODERN ARCHITECTURE WITH NATURAL LANDSCAPES, CREATING A UNIQUE LIFESTYLE AND SETTING A NEW BENCHMARK IN THE REGION. THE PROJECT ’ S DESIGN FOCUSES ON PROVIDING AN ESCAPE FROM THE URBAN HUSTLE WHILE MAINTAINING THE CONVENIENCE OF PROXIMITY TO THE TECH PARK .
聽山語プロジェクトの設計概要 新竹サイエンスパークの外れに位置するドリーマ ーズ デル デュエリングスは、高級専門家のため に静かで安全、美しい住環境を提供します。この 革新的なプロジェクトは、現代建築と自然の景観 を調和させ、地域に新たな基準を打ち立てるユ ニークなライフスタイルを創造しています。プロジ ェクトの設計は、都市の喧騒から逃れつつ、テッ クパークへの近接性の利便性を維持することに 焦点を当てています。





1F 2F

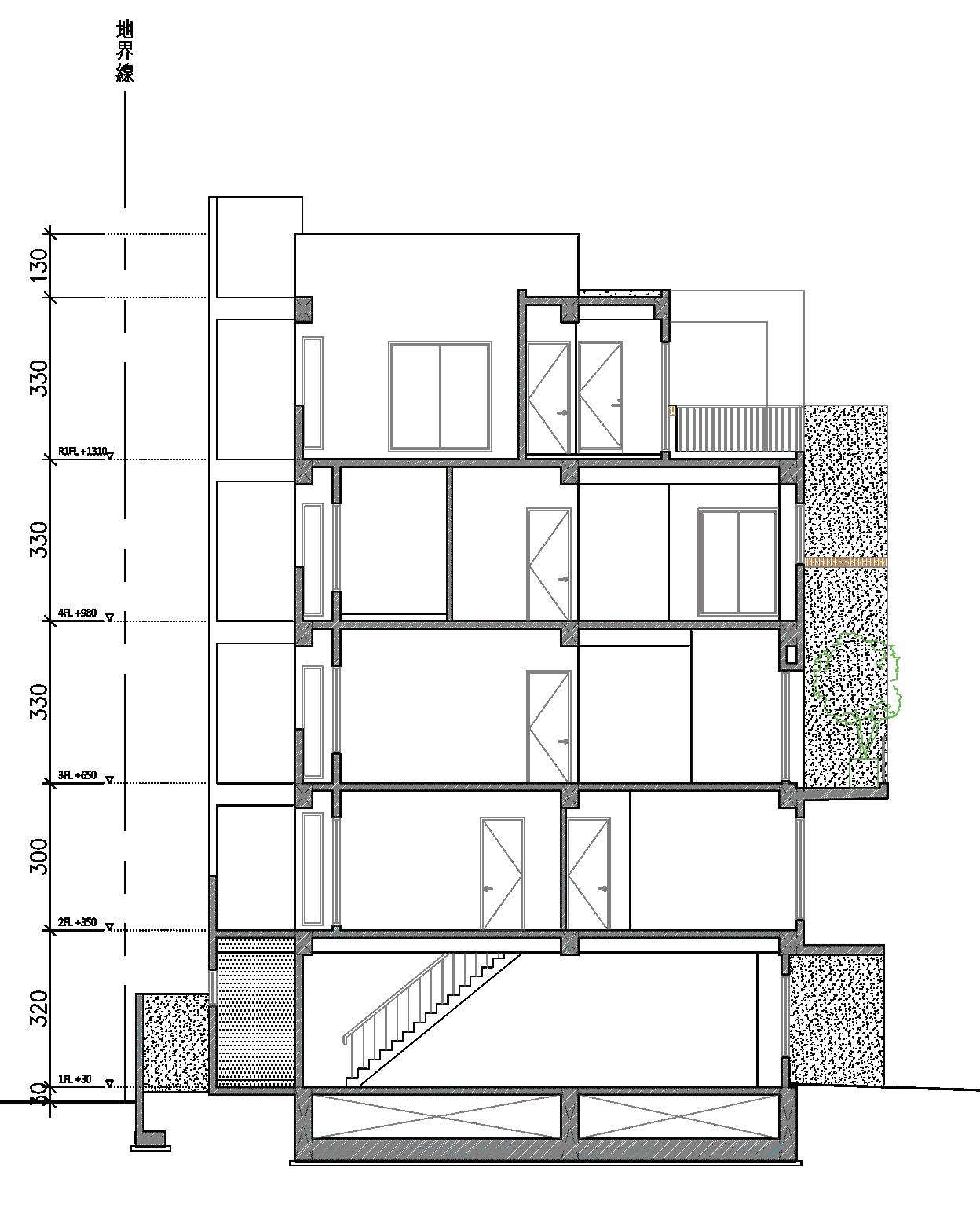
SAFETY AND HARMONY
THE DESIGN OF DREAMER'S DELL DWELLINGS ADDRESSES EARTHQUAKE SAFETY WITHOUT COMPROMISING BEAUTY. THE BUILDINGS ARE STAGGERED TO FORM A COHESIVE, UNDULATING HILL , MERGING INDIVIDUAL STRUCTURES INTO A HARMONIOUS WHOLE. THIS LAYOUT NOT ONLY PROVIDES STABILITY BUT ALSO ENHANCES VISUAL APPEAL , CREATING A LANDSCAPE THAT BLENDS SEAMLESSLY WITH ITS NATURAL SURROUNDINGS. THE STRUCTURES ARE REINFORCED WITH ADVANCED MATERIALS TO WITHSTAND SEISMIC ACTIVITY, ENSURING RESIDENTS' SAFETY
安全と調和 ドリーマーズ デル デュエリングスのデザインは 、地震の多い地域で安全性を確保しながら美 しさを保つことを目指しています。建物は段階 的に配置され、統一された起伏のある丘を形 成し、個々の構造物を調和のとれた全体に融 合させます。このレイアウトは安定性を提供す るだけでなく、自然環境と調和する景観を作り 出し、視覚的な魅力を高めます。構造物は先 進的な材料で強化され、地震活動に耐えるよ う設計されており、住民の安全を確保します。




3F 4F

INNOVATIVE DESIGN SOLUTIONS ONE OF THE MOST INNOVATIVE ASPECTS OF DREAMER'S DELL DWELLINGS IS THE "DOUBLE SHOULDER" DESIGN, PARTICULARLY FOR THE MIDDLE UNITS, WHICH ARE OFTEN HARDER TO SELL . THIS DESIGN INTEGRATES TWO SETS OF BUILDINGS, AVOIDING THE MONOTONOUS APPEARANCE OF TRADITIONAL DETACHED HOUSES. E ACH BUILDING IS STRATEGICALLY POSITIONED TO MAXIMIZE NATURAL LIGHT AND AIRFLOW, REDUCING ENERGY CONSUMPTION AND ENHANCING LIVING COMFORT. THE DESIGN ALSO INCORPORATES GREEN ROOFS AND SUSTAINABLE MATERIALS, PROMOTING ECO-FRIENDLY LIVING.
革新的な設計ソリューション ドリーマーズ デル デュエリングスの最も革 新的な側面の一つは、「ダブルショルダー」 デザインです。特に販売が難しい中間ユニッ トに適用されています。このデザインは2セッ トの建物を統合し、伝統的な一戸建ての単 調な外観を避けます。各建物は自然光と通 気を最大化するように戦略的に配置され、エ ネルギー消費を削減し、居住快適性を向上 させます。デザインにはグリーンルーフや持続 可能な材料が取り入れられ、エコフレンドリ ーな生活を促進します。




RF

INTERACTIVE BALCONIES THE STAGGERED BALCONIES ARE ANOTHER STANDOUT FEATURE, ENHANCING BOTH PRIVACY AND SOCIAL INTERACTION. THESE BALCONIES ARE NOT JUST EXTENSIONS OF THE LIVING SPACES BUT ARE INTEGRAL PARTS OF THE VERTICAL MINI-SETTLEMENT, ENCOURAGING NEIGHBORS TO CONNECT AND SHARE MOMENTS. E ACH
BALCONY IS DESIGNED WITH NATURAL ELEMENTS SUCH AS PLANTS AND WATER FEATURES, CREATING PERSONAL OASES THAT OFFER A PEACEFUL RETREAT WITHIN THE HOME. 交流のバルコニー
た特徴です。これらのバルコニーは生活空 間の単なる延長ではなく、垂直ミニ集落の 重要な部分であり、隣人とのつながりや共 有の瞬間を促します。各バルコニーは植物 や水の要素などの自然要素で設計され、家 の中の静かな避難所を提供します。





COMMUNITY FOCUS IN A TAIWAN WHERE COMMUNITY CONNECTIONS ARE GRADUALLY DIMINISHING, DREAMER'S DELL DWELLINGS AIMS TO FOSTER A STRONG SENSE OF COMMUNITY. THE FIVE INTERCONNECTED BUILDINGS FORM A UNIQUE SMALL CO- CONSTRUCTED COMMUNITY. THE INTERCONNECTED DESIGN, ALONG WITH STAGGERED BALCONIES, CREATES A VERTICAL MINI-SETTLEMENT THAT ENCOURAGES INTERACTION AMONG RESIDENTS WHILE ENSURING PRIVACY. SHARED SPACES SUCH AS COMMUNITY CENTERS, PLAYGROUNDS, AND GREEN COURTYARDS ARE DESIGNED TO PROMOTE SOCIAL GATHERINGS AND ACTIVITIES, ENHANCING THE SENSE OF TOGETHERNESS.
コミュニティの焦点 台湾の都市化が進む中でコミュニティの絆が薄れ ている中、ドリーマーズ デル デュエリングスは強 いコミュニティ精神を育むことを目指しています。 五つの相互接続された建物は、ユニークな小さな 共同構造コミュニティを形成します。段階的なバ ルコニーと共有スペースが一体感を促進し、プラ イバシーを確保しながら住民間の交流を奨励しま す。共有スペースには、コミュニティセンター、遊び 場、緑の中庭が設けられており、社会的な集まり や活動を促進し、一体感を高めます。






COMMUNITY FOCUS IN A TAIWAN WHERE COMMUNITY CONNECTIONS ARE GRADUALLY DIMINISHING, DREAMER'S DELL DWELLINGS AIMS TO FOSTER A STRONG SENSE OF COMMUNITY. THE FIVE INTERCONNECTED BUILDINGS FORM A UNIQUE SMALL CO- CONSTRUCTED COMMUNITY. THE INTERCONNECTED DESIGN, ALONG WITH STAGGERED BALCONIES, CREATES A VERTICAL MINI-SETTLEMENT THAT ENCOURAGES INTERACTION AMONG RESIDENTS WHILE ENSURING PRIVACY. SHARED SPACES SUCH AS COMMUNITY CENTERS, PLAYGROUNDS, AND GREEN COURTYARDS ARE DESIGNED TO PROMOTE SOCIAL GATHERINGS AND ACTIVITIES, ENHANCING THE SENSE OF TOGETHERNESS.
市場基準の再定義 革新的なデザインと住民のニーズを深く理解 することにより、ドリーマーズ デル デュエリン グスは地元市場で最高の販売価格を達成し 、現代の住宅問題に優雅に対応することで新 しい生活基準を確立しました。このプロジェク トは、建築と自然の調和的共存の可能性を 示し、新しい生活のパラダイムを提示します。 安全で静かで美的な環境を提供することで、 住民の生活の質を向上させ、新竹地域の高 級住宅のモデルとなっています。ドリーマーズ デル デュエリングスの成功は、機能性と美し さの両方を重視する目の肥えたバイヤーの要 求を満たす能力を反映しています。