Hsu Ming Hsuan architectural portfolio

Page 1

Content Microbe Rescue 4 Fly Knit - Footprint 16 Intervention 24 Mix in utopia 26 Tainan Water Sport Center 28 Taipei Railway Workshop Restoration 34 Appendix 01 02 03 04 05 06

Microbe Rescue

Starting from the study of urban problems, it is clear that the waste and pollution impact the places nearby more than the city itself. With this approach, one of the most remote places in Taipei city, Shezi peninsula is a great example of receiving the consequences and facing local crisis such as seasoning flood, resource shortage and neglect from the metropolis.

Academic work

5 th year thesis

Instructor : Ming Tzong Wang

Individual project

01
Modern urban consumption circle A coastline crisis
Government 1.5 km 3.0 km 4.5 km 6.0 km Living circle
Central Business Residence Light industry Suburban Taipei City
8.75km
-4-
Shezi

Unfortunately, this forgotten land was predicted to be the first place got impact by the rising sea level from global climate changing for the next several decades in this area. The peninsula is surrounded by wetland and is mostly occupied by agricultural farms and industrial factories which had affect the residents living quality and the environment in many ways.

Park and restroom facilities

-Public

Taipei University of Marine Technology

-Public

Agriculture and stock farming

-Private Residential houses and local shops

-Private

Factories and distribution center

-Private

Populated area

Main traffic road

Existing
buildings Illegal constructions
-5-
Predicted possible flood area from 2010 to 2100
-6-

This peace of land used to provide all kinds of agricultural products for the capital right next to it, however since the highway is built the products from the countryside had became more competitive and soon the economy position of Shezi had been replaced. Under this consumerism society, it is soon forgotten and had been marked as flood detention area in the 70's, which directly caused the power and resources shortage for the residents. In the 80's, the gigantic water gate between the peninsula and the city had been built. Shezi now have to rely on itself when the flood came and the gate closed with on way out to escape for the residents.

Thus, having the ability to generate power locally is crucial for residents to improve their living quality and to be self sufficient. By using the local advantages of wetland, which is abundant with microbe and bacteria, the strategy is to use its potential to develop microbial fuel cell (MFC) for the power supply on the site. The MFC can not only use the water from the river and the wetland, but also the waste water from farming in the community. With the help of MFC, the storage power could be life saving when it comes to an emergency occasion.

Besides the problem of occasional power shortage in this area, the neighborhood is also lack of recreational domains for inhabitants since it is surrounded by factories and farms. Add on the possible nature disaster of flood, this program is aimed to develop MFC related studies, researches and appliance as well as to provide a multi functional platform as an emergency shelter or a community center.

MFC Experiment unit Fixed frame Aeration pool Primary Clarifier
-7-
Microbial fuel study module:

The project is located next to the wetland close to the riverbank, where it is convenient to collect the water from Tamsui river into the site, meanwhile it is next to the center of the neighborhood for an easier access to the residents.

The configuration of the plan includes sewage treatment water flow, within the process, the MFC is placed after aeration pool and before the primary clarifier for research and continue water purifying in the same time. The system is an experimental process that is hoping to introduce to the public and to get more people aware of the environmental crisis that is happening, therefore the flow is partially opened to pubic for visit with a lecture room for different events in order to present the idea.

Considering the water flood may destroy the houses and cause the residents homeless again in the future , the community center (emergency shelter) is designed on the third floor with independent entrance and has its own power storage from the MFC. With a movable wood deck, it floats accordingly to the water level which offers an extra platform for the building.

Waterpurifying/MFC

Office Area

Administrative center and entrance for public visiting flow with a open gallery.

Visitor flow

Purification

Last process of water purifying in the campus right next to admin office for quality control.

tower exhibition purposes the experimental

Research Central MFC Profession Public Public domain Research center
-8-

Habitats

Researchers

tower for research, purposes connects to area.

Multifunction domain

Open to public for diverse purposes of usage including a temporary emergency shelter

Laboratory Research for MFC and other green power generating solutions with an public auditorium room.

Sewage flow

-9-

The waste water can be introduced to the site gathered from the ditch through the system and released back. It cross the corridor to the MFC units and provide demonstration to visitors.

Users Water Sewage

Sea level:0

Community center

Sea level:1

Emergency response center/shelter

Sea level:2

The community center plays different roles in varies situations. By facing the river, it has the clearest view of the waterfront.

Emergency shelter -10-
-11-
N 1 2 3 8 9 4 6 5 7 10 11 12 14 13 18 19 15 16 17 1 Floor plan -12-

Exhibition room

Restroom

Conference room

Common area

Office

Storage room

Disinfection pool

Final clarifier

Secondary clarifier

Aeration pool

Primary Clarifier

Reconciliation Pool

Concentration

Entrance

Wooden deck

MFC

Lecture room

Laboratory entrance

Directors offices

Roof garden

Research platform

Experimental area

Community center/Emergency shelter

Laboratory

Discussion room

N
Lobby
3 4 5 21 20 6 22 23 16 24 5 26 25 2 Floor plan A C B
2. 3. 4. 5. 6. 7. 8. 9. 10. 11. 12. 13. 14. 15. 16. 17. 18. 19. 20. 21. 22. 23. 24. 25. 26. -13-
1.
-14-
A. Lecture room in water flood. B. Community center working as emergency shelter.
-15-
C. Temporary water transportation from the floating deck in the flood.

Fly Knit - Footprint

Academic work

Project in 4th year of bachelor

Instructor : Matyas Gutai

Student competition

Responsible for : Plan design and drawings, strategy design, concept drawings, collage Top 10 Mentions

It is a competition focus on eco friendly research and developing center of a local snicker company. It requested to design a multi functional factory which will be built in 2 stages with adjustable working area and expandable office space and recreation area. Consider about the tropical climate of the site, we try to create a passive architecture by applying a thin-shell structure as a skin to regulate the environment on the site. Here on the site, some environmental factors and simulations were analyzed including “Sun Path” “Annual Temperature” “Annual Wind direction” and “Photo thermal Radiometry”.

Local climate database.

02
-16-

Base on the analysis results, it is important to came out with a site planning idea of avoiding cold winter wind and use the seasoning summer wind to cool the site. On the other hand, to give the area sufficient sunlight for solar power is equally important, thus, we came up with a formation which correspond the tropical weather.

Organic formation layer.

Demanding

functions analysis and arrangement Module functions of space . Semi-public domain.
-17-
Site greenery.

According to Bernoulli’s principle, the wind goes in straight normally but when it encounter to obstacles, it follow the shape of the surfaces and goes back to the original direction in the end. In this case, it creates different speed when it turns in order to reach the same volume on the obstacles and this differences between speed makes different pressure.

What can apply this phenomenon to architectures is when the roof is shaped, it creates different pressure .While making an exit for the hot air which was rising from the bottom to the top, it will be sucked out by the cold air from the outside of the building, and formed a thermal ventilation system in the structure that helped to cool down the temperature of the building. This strategy is applied to the design to create a more comfortable working environment, as well as to cover a shrunk testing running trace under the roof.

-18-
C H 2F Air exit Air exit 1F UV Cool air / wind Hot air Hot air
-19-
Bernoulli's principle diagrams and simulations.

According to the size of the site and the multiple functions of the needs, narrowing down the distance between spaces have become the main issue, and the flexibility of layout will be the way to achieve this purpose. The flexibility can be measured in different scales, one is to change the functions in the same space and another is to be possible to combine spaces with different functions into a multiple layout. Therefore, the site had been put on grid and modularized into units in a certain size of 12x12 square meters which is according to the human scale. Meanwhile, the units can be divided into smaller pieces and can also be put together by moving the walls through the grid.

Function A x1 Function B x1 Function C x1 1 Unit= 12m*12m= 144m 2 Function A x2 Function B x2 Function A x1 Function B x1 Function C x2 Function A x1 Function D x1 � AUTODESK ������ � AUTODESK ������ � AUTODESK ������ � AUTODESK ������ 1 Unit
-20-
Division Function Frame Grid Units in modules and layout. -21-

Cafeteria Lecture room

Offices Digital learning space

Laboratory

Reading room

Chemical factory Multi-activities space

3D printing center Leisure space

Testing laboratory Gallery

Cutting room Conference room

-22-
2F 1F
-23-

Intervention

Under the topic of accessibility, the issue of “moving” has been discussed the most, and the reason is that it is the most basic need and can be related to further problems. This design of the housing is supposed to combine with the local transportation system (train), and make the system intervene the building and let the housing become a node of the system in the city for the residents to have easier access to all kinds of transportation.

On the other hand in the smaller scale, it is important to make a fluent moving flow in the house,the unmovable functions are in the middle of the hexagon and the rest are open space. The most important part is to create the flow that follows the walls so that there will not be too much space waisted by cutting the angles and also makes the entire house more flexible for different usage, the unit can be divided into two small apartments as well.

03 SINGLE UNIT SINGLE UNIT SINGLE UNIT DUAL UNIT DUAL UNIT DUAL UNIT DUAL UNIT
rendering: the everyone the the 20 4th Floor single dual 4 21 21 3rd Floor 4th Floor single dual 4 plans 21
Section
Dual unit Single Unit
-24-
Academic work (erasmus) Project in 4th year of bachelor Student competition

Floor plans

Floor plans

Layouts in floors: 22 G Floor 3rd Floor 4th single dual 4
G Floor 3rd Floor single dual 4
1 st Floor -25-

04 Mix in utopia

Academic work

Project in 2nd year of bachelor

Individual work

Hand drawing, no digital allowed

Under the topic of utopia and the inspiration of the Invisible cities, the collage is to present a place of disorder and mass, where people do their routine work in a space with order in chaos. It is exactly how the traditional market place near the site is. Different functions in the community were offered here around the Taichung Second Market which located in the downtown of Taichung city.

The project is to design a mixed used house with architecture firm. To define a dimension of the site, it was divided into two different parts, one is to create sufficient lightening in the long rectangular site, and the other is to separate the space of studio from the family house and the flow from different function within the whole building. Finally, the design was to arrange the architecture firm at the front of the site for easier access and create privacy for the family by putting the house in the back

-26-
1F 2F 3F 4F -27-

Tainan Water Sport Center

Professional work

TSDesign

Responsible for : Design, Plan drawing, 3D modeling (ArchiCAD)

Won bidding

Tainan is a city located in the south of Taiwan at the west coast, it used to be the capital city of Taiwan and is famous of being one of the biggest city for international trading and transportation in the past. In addition, due to the fact that the residents are very bond with the coast and rivers here economically and geologically, the schools

in the city are more focus on water sports than other cities and hold a plenty of contests in the area.

In order to give the rowers a better environment and a qualified venue for international contest, the government decided to build a public water sport center. The center will mainly be used for rowing races and practices, but also provide multiple uses for the public including a gym, several offices, commercial area, a couple of classroom and boat storage area.

05
Green roof Ventilation corridor Double facade Vertical greening Solar panels
-28-
-29-

The main concept of the design is to create an eco friendly environment near the water. This site was originally a park and was designed to remain it that way in the public space with woods planted to create more shades. For the sport center, several different strategies were used in order to reduce the power and water usage such as greening and water reuse system.

Other passive architecture solutions were applied as well. There are green walls placed in both the south and the north side of the building not only for greening but also to create a double facade and increase ventilation to cool down the space, meanwhile, the fallen leaves will be collected and used for composing on other plants. Moreover, a wide corridor is put in the middle of the building with an angle welcoming the summer wind for better ventilation in the tropical weather.

Except for the garden on the rooftop, there were solar panel planted too, and with a water storage system underground, the waste water on the roof will be collected and can be used for other purposes.

Roof Garden Waterflow View Point Floating Deck Common Area Towing Area 1 Floor 2 Floor 3 Floor 3 Floor 30 cm 430 cm 750 cm 1150 cm
Map of schools with different water sports:
-30-
Entrance Competition Audience Gym
Towing 1F-2F 1F-2F 1F-3F 1. 2. 3. 4. 5. Classroom Administer Office Vertical Flow Office Dressing room Circulation Truck Parking Green Area Chianan River Restroom Public Gym Boat House Storage 6. 7. 8. 9. N -31-
Competitiondirection
-32-
-33-

Taipei Railway Workshop Restoration

SHC Architects

Responsible for : Detail design, alteration design, construction supervising

Taipei Railway Workshop was built in 1930's, it was one of the biggest railway repairing site once. It is located in the center of Taipei city and had been through the bombardment of WWII under Japanese colony. The project is mainly focused on restoration of the Diesel-Electric Locomotive Shop, which was mainly used to repair the diesel trains. Due to the technology background of engineering inherited from Japanese, the workers had developed a special way of combining modern technology and local method to built the factory, which is unique but also the main challenge of the project.

Diesel-Electric Locomotive Shop

06
Professional work
-34-

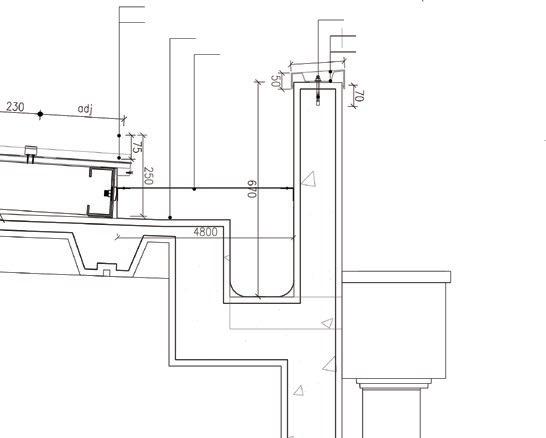
The focus of the restoration in this project is to insure it is structural stable and safe for the public as well as maintaining its original frame and texture. It includes the rusted metal replacement, structure reinforcement, asbestos removal and accessible facilities added. However, the building has a serious problem of water leaking too, therefore a new draining system is needed to design accordingly to the original gutter.

Restoration area Diesel-Electric Locomotive Shop
-35-
Warehouse

1:2 monolithic finish

Original drain slope fixing

Original wall 1:3 cement finish repair

PU caulking sealant

PU caulking sealant

Original drain slope fixing

Original RC fixing, planting bars and grouting if needed

Water drip edge

PVDF coating aluminum downspout

PVDF coating aluminum drainage collector

PVDF coating aluminum downspout

Monolithic finish slope fixing

Original RC cleaning

1:3 cement fixing if damaged

Monolithic finish slope fixing

1:3 cement fixing if damaged

Original RC cleaning

Monolithic finish slope fixing

1:3 cement fixing if damaged

Water drip edge

1:3 cement fixing if damaged

Original RC cleaning

Monolithic finish slope fixing

1:3 cement fixing if damaged

Galvanic steel drain cover

Cement fixing if damaged

Original RC cleaning

1:3 cement finishing

1:2 monolithic finish

Waterproofing H=30cm

Downspout slope=1/30

L shape drain

Terrazzo drain slope flattening

Heat insulating brick

1:2 cement with waterproof 3cm

Waterproofing

1:3 cement finishing slope=1/50

Original RC cleaning, planting bars and grouting if needed

PU caulking sealant

A B C -36-

Eave galvanized steel stiffener t=1.0mm

Color steel plate sheath t=0.4mm

Stainless steel gutter 1.5t

Stainless steel net

M10 chemical anchor bolt

Stainless steel coping closure 0.6t

Galvanized steel stiffener 1.2t

Color steel t=0.4mm

Galvanized steel stiffener t=1.0mm

Color steel cornice trim t=0.4mm

Stainless steel net

Stainless steel gutter 1.5t Roof Garden

Color steel eave trim t=0.4mm

Color steel flashing trim t=0.4mm

Galvanized steel stiffener t=1.0mm

Standing seam color steel roof t=0.4mm

Stainless steel fastener

A-C D-E D E -37-
1962- Diesel-Electric Locomotive Shop
-38-
2020-Diesel-Electric Locomotive Shop

Roof

Structures

Others

Floor
-39-

Appendix

Photography

Taken by Canon F1 film camera

-Appendix photography-

Photography-nature

-Appendix photography-

Photography-nature

-Appendix photography-

Photography-nature

-Appendix photography-

Photography-artifact

-Appendix photography-

Turn static files into dynamic content formats.

Create a flipbook
Issuu converts static files into: digital portfolios, online yearbooks, online catalogs, digital photo albums and more. Sign up and create your flipbook.