Пігаро

Page 1

GSPublisherVersion 0.11.100.82 РОБОЧИЙ ПРОЕКТ Реконструкція свинарника в с Новокостянтинівка, Роздільнянського району, Одеської області Будинок для відлучених поросят та відгодівлі Технологія виробництва 05-22-ТХ м. Львів 2023 Розробник А Б Созикін Замовник С. І. Лагунець
GSPublisherVersion 0.11.100.82 Зам інв № Підпис і дата Інв № ориг 2 Стадія Аркуш Аркушів Созикін А. Б . + 38 (066 ) 932 -81 -68 Реконструкція свинарника в с Новокостянтинівка, Роздільнянського району, Одеської області Загальні дані (початок) ТХ-1 РП 05-22-ТХ Будинок для відлучених поросят та відгодівлі 28 Арк ТХ-1 ТХ-2 ТХ-3 ТХ-4 ТХ-5 ТХ-6 ТХ-7 ТХ-8 ТХ-9 ТХ-10 ТХ-11 ТХ-12 ТХ-13 ТХ-14 ТХ-15 ТХ-16 ТХ-17 ТХ-18 ТХ-19 ТХ-20 ТХ-21 ТХ-22 ТХ-23 ТХ-24 ТХ-25 ТХ-26 ТХ-27 Найменування Загальні дані (початок) Загальні дані (закінчення) Фасади в осях 1-22; 22-1; А-В; В-А План розміщення технологічного обладнання на відм 0 000 Розрізи А-А, Б-Б Технологічні розрізи В-В, Г-Г, Д-Д План на відм 0 000 Розміщення системи автоматичної роздачі сухих кормів План прив'язки фундаментних плит під бункера зберігання кормів План підлог План на відм 0 000 Розміщення дверних та віконних отворів Нові та існуючі стіни Розрізи А-А, Б-Б Розрізи В-В, Г-Г, Д-Д План підпідлогових бетонних ванн Розрізи А-А, Б-Б, В-В, Г-Г, Д-Д Вузли А1, А2, А3, А4, А5, А6, А7 Опис трубної системи гноєвидалення. Ситуаційний план План мережі каналізації К13 Розрізи А-А, Б-Б, В-В Рекомендації з монтажу системи самосплавного гноєвидалення Спеціальні елементи системи самосплавного гноєвидалення Специфікація елементів системи самосплавного гноєвидалення План на відм 0,000 Схема приточно-витяжної вентиляції План на відм 0 000 Система В1 Розріз Б-Б, В-В, Д-Д План силового електрообладнання План електроосвітлення Примітки Відомість робочих креслень основного комплекту марки ТХ Робочі креслення розроблені відповідно до чинних норм, правил і стандартів Головний інженер проекту Відомість документів на які посилаються та які додаються Позначення Найменування Примітки Документи, на які посилаються ДБН Б 2 2-12-2019 Планування і забудова територій ДБН Б 2 4-3-95 Генеральні плани сільськогосподарських ДБН Б 2 4-4-97 Планування і забудова малих ДБН В 1 2-2-2006 Навантаження і впливи ДБН В 1 1-7-2016 Пожежна безпека об’єктів будівництва ДБН Б 2 2-1-95 Будівлі і споруди для тваринництва селянських (фермерських) господарств сільськогосподарських підприємств та підприємств
GSPublisherVersion 0.11.100.82 Зам інв № Підпис і дата Інв № ориг 4 Стад я Аркуш Аркушів Созикін А. Б + 38 066 932 -81 -68 Реконструкція свинарника в с Новокостянтинівка Роздільнянського району Одеської області Фасади в осях 1-22 22-1 А-В В-А ТХ-3 РП 05-22-ТХ Будинок для відлучених поросят та відгодівлі 28 +1,800 +0,800 -0,350 -0,100 +7,071 +7,401 +0,800 +1,800 -0,350 -0,100 +2,030 ±0,000 +5,001 +7,071 +1,800 +0,800 -0,100 -0,350 +2,030 ±0,000 -0,100 ±0,000 +2,030 -0,350 1 15 А Г А Г 1 15 Фасад в осях 1-15 Фасад в осях 15-1 Фасад в осях А - В Фасад в осях Г - А 1 Водовідведення умовно не показано
GSPublisherVersion 0.11.100.82 Зам інв № Підпис і дата Інв № ориг 5 Стад я Аркуш Аркушів Созикін А. Б + 38 066 932 -81 -68 Реконструкція свинарника в с Новокостянтинівка Роздільнянського району Одеської області План розміщення технологічного обладнання на відм 0 000 ТХ-4 РП 05-22-ТХ Будинок для відлучених поросят та відгодівлі 28 11000 850 5400 6000 6000 6000 6000 6000 6000 6000 6000 6000 6000 5300 700 72250 5125 800 5125 5125 800 5125 5300 800 5300 3000 3000 3000 3000 3000 3000 2400 2400 2400 2450 11000 500 11050 250 11050 250 11400 250 1500 250 18000 250 18000 500 500 1100 250 9650 500 12000 2500 6000 2500 3000 3000 3000 3000 3000 3000 h=750 h=750 h=750 h=1000 h=1000 35 гол 35 гол 35 гол 35 гол 35 гол 35 гол 35 гол 35 гол 20 гол 20 гол 20 гол 20 гол 20 гол 20 гол 20 гол 20 гол 20 гол 20 гол 20 гол 20 гол 20 гол 20 гол 20 гол 20 гол 20 гол 20 гол 20 гол 20 гол 20 гол 20 гол 20 гол 20 гол 1 6 7 2 3 4 5 8 9 10 11 А А Д Д Г Г Б Б В В Г А 1 2 3 4 5 6 7 8 9 10 11 14 15 Б В 12 13 № 1 2 3 4 Найменування Приміщення для відлучених поросят Приміщення для відлучених поросят Приміщення для відлучених поросят Коридор Площа 106,63 106,63 110 01 37 40 5 6 7 8 9 10 11 Коридор Приміщення для відгодівлі свиней Приміщення для відгодівлі свиней Технічне приміщення Санітарна клітка Санітарна клітка Санітарна клітка 16 50 198 00 198 00 59 78 19 06 17 93 18 56 888 50 м План розміщення технологічного обладнання на відм 0.000 Експлікація приміщень 1 Розрізи А-А Б-Б В-В Г-Г Д-Д див арк ТХ-5 ТХ-6
GSPublisherVersion 0.11.100.82 Зам інв № Підпис і дата Інв № ориг 6 Стад я Аркуш Аркушів Созикін А. Б + 38 066 932 -81 -68 Реконструкція свинарника в с Новокостянтинівка Роздільнянського району Одеської області Розрізи А-А, Б-Б ТХ-5 РП 05-22-ТХ Будинок для відлучених поросят та відгодівлі 28 -0,350 0,000 2,750 -0,850 2,220 -1,300 0,747 1,450 -0,350 -0,850 0,000 2,750 0,000 1 2 3 4 5 6 7 8 9 10 11 14 15 12 13 72250 850 5400 6000 6000 6000 6000 6000 6000 6000 6000 6000 6000 5300 700 1 2 3 4 5 6 7 8 9 10 11 14 15 12 13 72250 850 5400 6000 6000 6000 6000 6000 6000 6000 6000 6000 6000 5300 700 Розріз А - А Розріз Б - Б 1 Данний аркуш див разом з арк ТХ-4.
GSPublisherVersion 0.11.100.82 Зам інв № Підпис і дата Інв № ориг 7 Стад я Аркуш Аркушів Созикін А. Б + 38 066 932 -81 -68 Реконструкція свинарника в с Новокостянтинівка Роздільнянського району Одеської області Технологічні розрізи В-В Г-Г Д-Д ТХ-6 РП 05-22-ТХ Будинок для відлучених поросят та відгодівлі 28 Б В А Г 11000 -0,350 -0,885 0,000 2,220 2,750 0,750 1,800 0,800 1,800 5,001 7,071 0,497 1,200 2500 6000 2500 А Б В Г 11000 2,220 2,750 -0,350 0,000 2500 6000 2500 Б В А Г 11000 -0,350 0,000 -0,850 2,220 2,750 7,401 7,071 1,800 0,800 1,800 1,000 2500 6000 2500 Розріз В - В Розріз Г - Г Розріз Д - Д 1 Данний аркуш див разом з арк ТХ-4.
GSPublisherVersion 0.11.100.82 Зам інв № Підпис і дата Інв № ориг 8 Стад я Аркуш Аркушів Созикін А. Б + 38 066 932 -81 -68 Реконструкція свинарника в с Новокостянтинівка Роздільнянського району Одеської області План на відм. 0 000 Розміщення системи автоматичної роздачісухих кормів ТХ-7 РП 05-22-ТХ Будинок для відлучених поросят та відгодівлі 28 11000 850 5400 6000 6000 6000 6000 6000 6000 6000 6000 6000 6000 5300 700 72250 2500 3000 2500 6000 2500 2500 5830 2500 1500 h=750 h=750 h=750 h=1000 h=1000 35 гол 35 гол 35 гол 35 гол 35 гол 35 гол 35 гол 35 гол 20 гол 20 гол 20 гол 20 гол 20 гол 20 гол 20 гол 20 гол 20 гол 20 гол 20 гол 20 гол 20 гол 20 гол 20 гол 20 гол 20 гол 20 гол 20 гол 20 гол 20 гол 20 гол 20 гол 20 гол 1 6 7 2 3 4 5 8 10 11 А А Д Д Г Б Б В В Г А 1 2 3 4 5 6 7 8 9 10 11 14 15 Б В 12 13 2500 1500 Блок керування (П У Е.) 1 5 кВт 3 ф., 380 В Бункер для зберігання корму V = 8 м (4 8 т Привідна станція 1 5 кВт 3 ф., 380 В Бункер для зберігання корму V = 8 м 3 ( 4 8 т ) Привідна станція 1 5 кВт 3 ф 380 В План на відм. 0 000 Розміщення системи автоматичної роздачі сухих кормів
GSPublisherVersion 0.11.100.82 Зам інв № Підпис і дата Інв № ориг 9 Стад я Аркуш Аркушів Созикін А. Б + 38 066 932 -81 -68 Реконструкція свинарника в с Новокостянтинівка Роздільнянського району Одеської області План привязки фундаментних плит під бункера зберігання кормів ТХ-8 РП 05-22-ТХ Будинок для відлучених поросят та відгодівлі 28 2500 3000 2500 5830 2500 1500 Г А 1 2 3 4 5 6 7 8 9 10 11 14 15 Б В 12 13 2500 1500 2 500 2 500 300 50 200 50 25 2 450 25 25 150 x 16 = 2 400 25 25 150 x 16 = 2 400 25 +0,200 2 450 2 450 -0,200 ±0,000 -0,100 Бетон 300 мм Піщана п дготовка 100 мм SIV 08 8 м3 4.8 т 1 1 Специфікація до схеми влаштування монолітної плити фундамента бункера (2500х2500х300) Поз Позначення Найменування Маса од., кг Прим Бетон С16 20, М250) 1 88 м3 К л 1 Ø 10 А400C L = 2450 мм ГОСТ 5781-82* (ДСТУ 3760 2006 Деталі: 1,52 97,22 64 Матеріали План прив язки фундаментних плит під бункера зберігання кормів Влаштування фундаментної плити бункера
GSPublisherVersion 0.11.100.82 Зам інв № Підпис і дата Інв № ориг 10 Стад я Аркуш Аркушів Созикін А. Б + 38 066 932 -81 -68 Реконструкція свинарника в с Новокостянтинівка Роздільнянського району Одеської області План підлог ТХ-9 РП 05-22-ТХ Будинок для відлучених поросят та відгодівлі 28 500 2000 20 98 102 270220 20 50 страница 54 Техника монтажа Система полов свиноводство Издание 07/05 4111 RUS 8.2.2 Монтаж пластмассовых решеток фиксирующими крючками Положите пластмассовую решетку на балки Приподнимите ближайший Вам конец решетки Уложите первую решетку в слегка смещенном положении перед второй решеткой Рис 8-5: Приподнять первую решетку Спецификація бетонних щілинних плит Марка К л-ть шт Прим Найменування Габарити мм БЩП-2 2000 х 500 х 100 Бетонна щілинна плита 500х2000 402 11000 850 5400 6000 6000 6000 6000 6000 6000 6000 6000 6000 6000 5300 700 72250 2500 6000 2500 25 18 х 600 = 10800 200 25 1500 1600 22 х 500 = 11000 19 600 = 11400 25 18 х 600 = 10800 200 25 25 24 х 400 = 9600 25 11500 3675 250 3550 250 3775 5050 500 4550 Пластикова щілинна решітка - 135 мм Пластикова щілинна решітка - 135 мм Пластикова щілинна решітка - 135 мм Бетонна щілинна решітка - 100 мм Бетонна щілинна решітка - 100 мм Бетонна стяжка - 150 мм Бетонна стяжка150 мм Бетонна стяжка - 150 мм Бетонна щілинна решітка - 100 мм Г А 1 2 3 4 5 6 7 8 9 10 11 14 15 Б В 12 13 9 х 2000 = 18000 250 9 х 2000 = 18000 Спецификація пластикових щілинних підлог Артикул Габарити мм К л-ть шт 1344 600 х 400 Прим 835 мп 120х26х5 5 Щілинна підлога зона дорощування 600х400 Найменування Лаги Т-120 мм дорощув +2% при замовленні Бетонна щілинна плита 500х2000 План підлог та розкладка щілинних плит на відм 0 000 Пластикова щілинна решітка 600х400 1 Розрізи А-А Б-Б В-В Г-Г Д-Д див арк ТХ-5 ТХ-6 2 Бетонні щілинні плити замовляти разом з урахуванням запасу +2%. Монтаж напольной системыстраница Система полов свиноводство Издание 07/05 M 4111 RUS Рис 9-1: Ряд за рядом вдоль полосовой стали Рис 9-2: Ряд за рядом вдоль стены свинарника
GSPublisherVersion 0.11.100.82 Зам інв № Підпис і дата Інв № ориг 11 Стад я Аркуш Аркушів Созикін А. Б + 38 066 932 -81 -68 Реконструкція свинарника в с Новокостянтинівка Роздільнянського району Одеської області План на відм 0 000. Розміщення дверних та віконних отворів ТХ-10 РП 05-22-ТХ Будинок для відлучених поросят та відгодівлі 28 Д-1 85 x 203 Д1 85 203 Д-1 85 203 Д1 85 x 203 Д-2 85 x 203 Д-2 85 x 203 Д-2 85 x 203 Д2 85 203 Д2 85 x 203 Д2 85 x 203 11000 850 5400 6000 6000 6000 6000 6000 6000 6000 6000 6000 6000 5300 700 72250 2500 6000 2500 5100 850 5100 5100 850 5100 5275 850 5275 200 850 5075 850 5075 5075 850 5075 5075 850 5075 200 850 500 11050 250 11050 250 11400 250 1500 250 18000 250 18000 500 500 1100 250 9650 500 500 11000 500 1 6 7 2 4 5 8 9 10 11 А А Д Д Г Г Б Б В В Г А 1 2 4 5 6 7 8 9 10 11 14 15 Б В 12 13 № 1 2 3 4 5 6 7 8 9 10 11 Найменування Приміщення для відлучених поросят Приміщення для відлучених поросят Приміщення для відлучених поросят Коридор Коридор Приміщення для відгодівлі свиней Приміщення для відгодівлі свиней Технічне приміщення Санітарна клітка Санітарна клітка Санітарна клітка Площа 106 63 106 63 110 01 37 40 16 50 198 00 198 00 59 78 19 06 17 93 18 56 888 50 м План на відм 0 000 Розміщення дверних та віконних отворів Експлікація приміщень Існуюча стіна - 200 мм 1 Данний аркуш дивитися разом з арк ТХ-10 2. Розрізи А-А Б-Б див арк ТХ-11 3 Розрізи В-В Г-Г Д-Д Е-Е див арк ТХ-12 4. Зовнішні стіни та вікна - існуючі 5 Нові перестінки показано - червоною штриховкою 6. Нові двері та вікна позначені маркерами а існуючі - ні
GSPublisherVersion 0.11.100.82 Зам інв № Підпис і дата Інв № ориг 12 Стадія Аркуш Аркушів Созикін А. Б . + 38 (066 ) 932 -81 -68 Реконструкція свинарника в с Новокостянтинівка, Роздільнянського району, Одеської області Нові та існуючі стіни ТХ-11 РП 05-22-ТХ Будинок для відлучених поросят та відгодівлі 28 Нові та існуючі стіни
GSPublisherVersion 0.11.100.82 Зам інв № Підпис і дата Інв № ориг 13 Стад я Аркуш Аркушів Созикін А. Б + 38 066 932 -81 -68 Реконструкція свинарника в с Новокостянтинівка Роздільнянського району Одеської області Розрізи А-А, Б-Б ТХ-12 РП 05-22-ТХ Будинок для відлучених поросят та відгодівлі 28 1 2 3 4 5 6 7 8 9 10 11 14 15 12 13 А1 А2 А3 А4 А5 А2 72250 0,000 -1,300 -0,350 рів.існ.грунту -0,850 -0,885 -0,350 850 5400 6000 6000 6000 6000 6000 6000 6000 6000 6000 6000 5300 700 Профнастил оц НС44-1010-05 - 45 мм Обрешітка 100х25мм - 25 мм Контробрешітка 25х25мм - 25 мм Крокв яна ферма Ф-1 Пароізоляція Утеплювач керамзит - 300 мм Залізобетонна плита покриття - 300 мм Плитка керамічна на висоту 1 2 м - 25 мм Газобетонний блок D500 - 200 мм Плитка керамічна на висоту 1 2 м - 25 мм Плита монолітна З/бетонна - 150 мм Плівка ПЕ Піщана вирівнююча основа - 100 мм Пластикова щілинна підлога - 15 мм Ригель склопластиковий - 120 мм Плитка керамічна на висоту 1 2 м 25 мм Існуюча стіна - 200 мм Плитка керамічна на висоту 1 2 м 25 мм Плитка керамічна (на висоту 1 2 м 25 мм Газобетонний блок D500 - 200 мм Плитка керамічна (на висоту 1 2 м 25 мм Плитка керамічна на висоту 1 2 м 25 мм Газобетонний блок D500 - 200 мм Плитка керамічна на висоту 1 2 м 25 мм Пластикова щілинна підлога - 15 мм Ригель склопластиковий - 120 мм Пластикова щілинна підлога - 15 мм Ригель склопластиковий - 120 мм Плитка керамічна на висоту 1 2 м 25 мм Газобетонний блок D500 - 200 мм Плитка керамічна на висоту 1 2 м 25 мм Плита монолітна З бетонна - 150 мм Плівка ПЕ Піщана вирівнююча основа - 100 мм 1 2 3 4 5 6 7 8 9 10 11 14 15 12 13 72250 -0,350 -0,850 2,220 2,750 850 5400 6000 6000 6000 6000 6000 6000 6000 6000 6000 6000 5300 700 Стяжка бетонна армована - 150 мм Плівка ПЕ Піщана вирівнююча основа - 200 мм Існуюча основа Стяжка бетонна армована - 150 мм Плівка ПЕ Піщана вирівнююча основа - 200 мм Існуюча основа Бетонна щілинна плита - 100 мм Плита монолітна З бетонна - 150 мм Плівка ПЕ Піщана вирівнююча основа - 100 мм Бетонна щілинна плита - 100 мм Розріз А - А Розріз Б - Б 1 Данний аркуш дивитися разом з арк ТХ-9, ТХ-10 ТХ-11 ТХ-12
GSPublisherVersion 0.11.100.82 Зам інв № Підпис і дата Інв № ориг 14 Стад я Аркуш Аркушів Созикін А. Б + 38 066 932 -81 -68 Реконструкція свинарника в с Новокостянтинівка Роздільнянського району Одеської області Розрізи В-В Г-Г Д-Д ТХ-13 РП 05-22-ТХ Будинок для відлучених поросят та відгодівлі 28 Б В А Г А6 А7 11000 2,220 2,750 0,000 -0,885 -0,350 2500 6000 2500 Плитка керамічна (на висоту 1 2 м - 25 мм Газобетонний блок D500 - 200 мм Плитка керамічна (на висоту 1 2 м - 25 мм Профнастил оц НС44-1010-05 - 45 мм Обрешітка 100х25мм - 25 мм Контробрешітка 25х25мм - 25 мм Крокв яна ферма Ф-1 Пароізоляція Утеплювач керамзит - 300 мм Залізобетонна плита покриття - 300 мм Стяжка бетонна армована - 150 мм Плівка ПЕ Піщана вирівнююча основа - 200 мм Існуюча основа Плита монолітна З бетонна - 150 мм Плівка ПЕ Піщана вирівнююча основа - 100 мм Пластикова щілинна підлога - 15 мм Ригель склопластиковий - 120 мм А Б В Г 11000 2500 6000 2500 Стяжка бетонна армована - 150 мм Плівка ПЕ Піщана вирівнююча основа - 200 мм Існуюча основа Б В А Г 11000 0,000 -0,350 -0,850 2,220 2,750 2500 6000 2500 Бетонна щілинна плита - 100 мм Плита монолітна З бетонна - 150 мм Плівка ПЕ Піщана вирівнююча основа - 100 мм Розріз В - В Розріз Г - Г Розріз Д - Д 1 Данний аркуш дивитися разом з арк ТХ-9, ТХ-10 ТХ-11 ТХ-12
GSPublisherVersion 0.11.100.82 Зам інв № Підпис і дата Інв № ориг 15 Стад я Аркуш Аркушів Созикін А. Б + 38 066 932 -81 -68 Реконструкція свинарника в с Новокостянтинівка Роздільнянського району Одеської області План підпідлогових бетонних ванн ТХ-14 РП 05-22-ТХ Будинок для відлучених поросят та відгодівлі 28 11000 850 5400 6000 6000 6000 6000 6000 6000 6000 6000 17300 700 72250 1100 250 9500 150 150 1600 150 1700 150 1700 150 1700 150 1700 150 1700 350 1700 150 1700 150 1700 150 1700 150 1700 150 1700 350 1700 150 1700 150 1700 150 1700 150 1700 150 1950 150 1730 350 1845 150 1850 150 1850 150 1850 150 1850 150 1850 150 1850 150 1850 150 1875 350 1875 150 1850 150 1850 150 1850 150 1850 150 1850 150 1850 150 1850 150 1775 150 2500 6000 2500 150 10700 150 100 350 150 100 3575 250 3550 250 3675 100 Приямок 500 500 Н=100 Приямок 500х500 Н=100 А А Д Д Г Г Б Б В В Г А 1 2 3 4 5 6 7 8 9 10 11 14 15 Б В 12 13 План підпідлогових бетонних ванн 1. За відмітку 0 000 прийнято верх щілинної підлоги 2 Розрізи А-А Б-Б В-В Г-Г Д-Д див на арк ТХ-15 Перевірка роботи системи 1 Для перевірки системи щодо її коректного монтажу необхідно перед введенням системи в експлуатацію провести пробний тест 2 Як засіб контролю рекомендується використовувати чисту воду 3. Випробувальний тиск повинен відповідати місцевій висоті підпору та становити не менше 15 см (що відповідає тиску 0 015 бар). 4 Тривалість тесту становить 24 години 5 Належна інсталяція забезпечує герметичність системи таким чином що рівень рідини у каналах не падає 6 Перевірити гнойовий канал щодо наявності в ньому сторонніх тіл які можуть викликати засмічення трубопроводу 7 Необхідно забезпечити бездоганну прохідність виходу головної труби в ємність для збирання гноївки 8 Перед видаленням гною слід видалити гній із попереднього накопичувача 9 Прийом результатів тесту має відбуватися у присутності виконроба а також спеціаліста фірми постачальника. 10 Результати тесту приймаються та фіксуються в протоколі випробувань Перед введенням в експлуатацію 1 Щоб уникнути засмічення підпідлогових гноєзбірних ванн необхідно очистити всі ванни від сторонніх тіл 2 Простежте щоб усі патрубки були вільні від залишків бетону 3 Канал гноєвидалення слід заповнити водою для насичення бетону 4 Виконайте на бетонно-щілинній підлозі розмітку гнізда для запірних пристроїв Гноєзбірні ванни - Загальна витрата піску на влаштування піщаної підсипки ванн товщиною 100 мм - 80 м3 - Загальна витрата бетону С20/25 на гноєзбірні ванни - 174 м3 - Загальна витрата арматури ф10 на гноєзбірні ванни - 6800 кг Підлоги - Загальна витрата бетону на влаштування підлог стяжки - 13 м3 Відмостки - Загальна витрата бетону С8 10 на влаштування відмостки товщ 100 мм на ширину 1 м - 20 м
GSPublisherVersion 0.11.100.82 Зам інв № Підпис і дата Інв № ориг 16 Стад я Аркуш Аркушів Созикін А. Б + 38 066 932 -81 -68 Реконструкція свинарника в с Новокостянтинівка Роздільнянського району Одеської області Розрізи А-А Б-Б В-В Г-Г Д-Д ТХ-15 РП 05-22-ТХ Будинок для відлучених поросят та відгодівлі 28 1 2 3 4 5 6 7 8 9 10 11 14 15 12 13 А1 А2 А3 А4 А5 А2 72250 -0,100 -0,350 -0,350 рів. існ. грунту 150 1600 150 1700 150 1700 150 1700 150 1700 150 1700 350 1700 150 1700 150 1700 150 1700 150 1700 150 1700 350 1700 150 1700 150 1700 150 1700 150 1700 150 1950 150 1730 350 1845 150 1850 150 1850 150 1850 150 1850 150 1850 150 1850 150 1850 150 1875 350 1875 150 1850 150 1850 150 1850 150 1850 150 1850 150 1850 150 1850 150 1775 150 -0,135 -0,135 -0,885 -0,850 850 5400 6000 6000 6000 6000 6000 6000 6000 6000 6000 6000 5300 700 250 750 1200 250 600 1200 1 2 3 4 5 6 7 8 9 10 11 14 15 12 13 72250 150 0,000 -0,350 -0,100 0,000 150 -0,850 -0,100 -0,350 -0,700 -0,850 850 5400 6000 6000 6000 6000 6000 6000 6000 6000 6000 6000 5300 700 А Б В Г 11000 150 0,000 -0,350 рів.існ.грунту -0,150 150 300 11400 100 2500 6000 2500 Стяжка бетонна Н=150 Б В А Г 11000 150 10700 150 -0,100 5650 800 4550 -0,850 -0,700 150 600 -0,350 рів.існ.грунту 2500 6000 2500 Приямок 500х500, Н=100 Б В А Г А6 А7 11000 1100 250 9500 150 150 1100 4550 800 4550 0,000 150 600 135 -0,350 рів.існ.грунту -0,885 -0,135 -0,735 2500 6000 2500 Приямок 500х500 Н=100 Розріз А - А Розріз Б - Б Розріз Г - Г Розріз Д - Д Розріз В - В 1 За відмітку 0 000 прийнято верх щілинної підлоги 2 Данний аркуш розглядати разом з арк. ТХ-8 ТХ-14
GSPublisherVersion 0.11.100.82 Зам інв № Підпис і дата Інв № ориг 17 Стад я Аркуш Аркушів Созикін А. Б + 38 066 932 -81 -68 Реконструкція свинарника в с Новокостянтинівка Роздільнянського району Одеської області Вузли А1 А2 А3 А4 А5 А6 А7 ТХ-16 РП 05-22-ТХ Будинок для відлучених поросят та відгодівлі 28 7% Бетонна відмостка C8 10 Існуючий фундамент Конструкція стіни Шов бетонування Пластикова решітчаста підлога 150 1 600 150 100 150 600 -0,135 -0,735 -0,885 50 150 200 150 50 -0,350 рів. існ. підлоги 100 100 ±0,000 Ущільнена піщана підготовка Грунт основи Ø8 А240 С сітка 200х200 C20/25 Плівка 200 мк Прорізати отвір в снуючому фундамент Ø8 А400 С крок 200 Ø8 А400 С Утеплювач Шов бетонування Конструкція стіни Пластикова решітчаста підлога 100 150 600 -0,135 -0,885 350 50 150 200 150 50 250 ±0,000 Ущільнена піщана підготовка Грунт основи C20 25 Ø8 А400 С крок 200 Ø8 А400 С Ø8 А400 С крок 1000 Плівка 200 мк Ø8 А240 С сітка 200х200 C20 25 Існуюча стіна Шов бетонування Існуючий фундамент Шов бетонування Пластикова решітчаста підлога Бетонна решітчаста підлога Конструкція стіни 150 200 150 150 250 100 150 600 -0,100 -0,850 350 -0,135 ±0,000 ±0,000 250 80 -0,350 Ущільнена піщана підготовка Грунт основи 1 БетонкласуС2025зармуваннямсіткоюØ3ВрІчарунками100х100- 100мм 2 Гідроізоляція поліетиленоваплівка) 3 Ущільненапіщанапідготовка- 100мм 4 Ущільненийщебнемгрунт- 100мм Плівка 200 мк C20 25 Ø8 А400 С крок 200 Ø8 А400 С Ø8 А400 С крок 1000 Ø8 А240 С сітка 200х200 C20 25 Ø8 А240 С сітка 200х200 C20 25 Ø8 А400 С крок 200 Ø8 А400 С 100 150 600 Шов бетонування Конструкція стіни Бетонна решітчаста підлога 100 150 600 -0,100 -0,850 350 50 150 200 150 50 250 ±0,000 Ущільнена піщана підготовка Грунт основи C20/25 Ø8 А400 С крок 200 Ø8 А400 С Ø8 А400 С крок 1000 Плівка 200 мк Ø8 А240 С сітка 200х200 C20 25 Шов бетонування Конструкція стіни Бетонна решітчаста підлога Шов бетонування Існуюча стіна Існуючий фундамент Колона З бет 300х300 -0,100 ±0,000 -0,850 50 150 200 150 100 150 600 100 150 1 775 150 500 200 1 600 200 1 300 50 200 200 200 200 200 200 50 -1,300 -0,350 ±0,000 50 200 200 200 200 200 50 Ущільнена піщана підготовка Грунт основи 1 БетонкласуС2025зармуваннямсіткоюØ ВрІчарунками100х100- 200мм 2 Гідроізоляція поліетиленоваплівка 3 Ущільненапіщанапідготовка- 100мм 4 Ущільненийщебнемгрунт- 100мм Плівка 200 мк Ø8 А400 С крок 200 Ø8 А400 С C20 25 Ø8 А240 С сітка 200х200 C20 25 Ø8 А400 С крок 200 Ø8 А400 С Пластикова решітчаста підлога 7% Бетонна відмостка C8 10 Існуючий фундамент Конструкція стіни (існуюча) Утеплювач Конструкція стіни (проектуєма) -0,350 рів. існ. підлоги 100 ±0,000 -0,885 100 150 600 135 50 150 200 150 50 1 100 250 1 БетонкласуС2025 армуваннямсіткоюØ3ВрІчарунками100х100- 100мм 2 Гідроізоляція поліетиленоваплівка 3 Ущільненапіщанапідготовка- 100мм 4 Ущільненийщебнемгрунт- 100мм Ущільнена піщана підготовка Грунт основи Ø8 А240 С сітка 200х200 C20/25 Ø8 А400 С крок 200 Ø8 А400 С 7% Бетонна відмостка C8 10 Існуючий фундамент Конструкція стіни існуюча) Утеплювач Пластикова решітчаста підлога -0,350 рів. існ. підлоги 100 50 150 200 150 50 100 150 600 135 150 ±0,000 -0,885 Ущільнена піщана підготовка Грунт основи Ø8 А400 С Ø8 А400 С Ø8 А240 С сітка 200х200 C20 25 Вузол А1 Вузол А2 Вузол А3 Вузол А4 Вузол А5 Вузол А6 Вузол А7 1 Данний аркуш дивитися разом з арк ТХ-9, ТХ-11 2 Розрізи А-А Б-Б див арк ТХ-12 3 Розрізи В-В Г-Г Д-Д Е-Е див. арк ТХ-13
GSPublisherVersion 0.11.100.82 Зам інв № Підпис і дата Інв № ориг 18 Стадія Аркуш Аркушів Созикін А. Б . + 38 (066 ) 932 -81 -68 Реконструкція свинарника в с Новокостянтинівка, Роздільнянського району, Одеської області Опис трубної системи гноєвидалення. Ситуаційний план ТХ-17 РП 05-22-ТХ Будинок для відлучених поросят та відгодівлі 28 Установка порядок работы страница 23 Трубная система навозоудаления Издание 07/06 M 1626 RUS Рис 4-1: Применение натяжного крюка Гноєзбірні ванни Труби ПВХ, Ø 250 i = 0,005 Пробка Щілинна підлога Повітряний клапан Ø110 i = 0,005 Ø 110 Гноєзбірні ванни Труби ПВХ, Ø 250 Ситуаційний план Використання витяжного гачка Технологічний розріз Ø 315 i = 0 , 005 Випуск К13 Ø 250 (до гноєзбірника) Ø 250 = 0,005 Опис трубної системи гноєвидалення В основу системи гноєвидалення покладено принцип накопичення гноївки (жижі). Спочатку система гноєвидалення являла собою систему гнойових ванн, що довела практично свою благонадійність Для видалення гноївки з високою часткою твердих фракцій данна система гноєвидалення придатна в меншій мірі, оскільки вона передбачає швидке та безперешкодне видалення жижі При використанні системи гноєвидалення за принципом накопичення важливим фактором є висока зносостійкість та довговічність таких деталей як клапани (сідлові трійники), заслінки або пробки Передчасне просочування рідких фракцій гноївки веде, залежно від способу гноєвидалення, до швидкого зносу обладнання Тривалість перебування екскрементів у системі під окремими секціями має бути, по можливості, недовгою, що дозволяє звести до мінімуму вплив аміачних газів та інших речовин, що подразнюють слизову оболонку дихальних шляхів тварин, та мікроклімат в середині приміщеннь для утримання тварин Зважаючи на вище сказане рекомендується зберігати гноїву жижу переважно поза тваринницького приміщення у спеціально призначеній для зберігання гною ємності, в якій гноїва жижа у будь-який час без загрози для життя здоров я людей і тварин може бути піддана обробці та гомогенізації Цей принцип дозволяє регулювати тривалість зберігання гноївки відповідно до виробничих потреб Викид забруднюючих відходів низької концентрації, низькі капітальні витрати, насамперед, на проведення санації тваринницьких приміщень, баланс трудових ресурсів при утриманні свиней без солом яної підстилки, а також зниження ризику нещасних випадків у поводженні з гнойовою жижею є вирішальними аргументами на користь трубної системи гноєвидалення Надійність у використанні та бездоганні санумови - головні фактори при рішенні на користь системи видалення гноївки Гноєвидалення з окремих резервуарів - підпідлогових бетонних ванн за допомогою пробки. Канали для збирання гноївки поділені на окремі резервуари Під підлогою кожного резервуару змонтовано сідловий трійник - патрубок Патрубки приєднані до труб, що ведуть у колекторні ями. Всередині кожного патрубка розташована пробка, що забезпечує утримання гноївки в резервуарі За рахунок відкриття пробки гноїва жижа надходить у ємність для збору гнойової жижі Г А 1 15 К13 К13 К13
GSPublisherVersion 0.11.100.82 Зам інв № Підпис і дата Інв № ориг 19 Стад я Аркуш Аркушів Созикін А. Б + 38 066 932 -81 -68 Реконструкція свинарника в с Новокостянтинівка Роздільнянського району Одеської області План мережі каналізації К13 ТХ-18 РП 05-22-ТХ Будинок для відлучених поросят та відгодівлі 28 11000 850 5400 6000 6000 6000 6000 6000 6000 6000 6000 6000 6000 5300 700 72250 2500 6000 2500 900 1850 1850 1850 1850 1850 2050 1850 1850 1850 1850 1850 2050 1850 1850 1850 1850 1850 4250 2000 2000 2000 2000 2000 2000 2000 2000 2250 2000 2000 2000 2000 2000 2000 2000 2000 1000 500 500 500 6450 11300 11300 16000 6950 4000 4000 2000 Ø 250 = 0 005 Коліно Ø250х45 Перехід Ø250 200 Ø200 160 Ø160 110 Трап Ø110 Трійник Ø315-250-315 х45 Трап Ø110 Трап Ø110 Ø 315 Ø 250 Ø 250 Коліно Ø250х45 Трійник Ø250х45 i = 0 005 А А Д Д Г Г Б Б В В Г А 1 2 3 4 5 6 7 8 9 10 11 14 15 Б В 12 13 План мережі каналізації К13
GSPublisherVersion 0.11.100.82 Зам інв № Підпис і дата Інв № ориг 20 Стад я Аркуш Аркушів Созикін А. Б + 38 066 932 -81 -68 Реконструкція свинарника в с Новокостянтинівка Роздільнянського району Одеської області Розрізи А-А Б-Б, В-В ТХ-19 РП 05-22-ТХ Будинок для відлучених поросят та відгодівлі 28 Ariston PROR50V N=1,5кВт К1∅110 В1 В1 К1 К1∅110 пр∅110 Трап∅110 +2,100 +0,650 +2,000 +0,300 -2,000 Ємкість V=1500л +2,025 0,002 0,002 0,002 0,002 0,002 Підключеннядопоїлок трубою∅20х1,9 В125х2,3 В125х2,3 В125х2,3 В125х2,3 В125х2,3 В125х2,3 В125х2,3 В125х2,3 В125х2,3 Кранполивальний Кранполивальний В132х3,0 В132х3,0 СтК1-1 ∅110 +1,900 Клапанповітряний МаксиВент∅100(Wavin) Ум 0,02 -0,300 -0,300 -0,306 -1.400 285.15 284.55 ВипускК1-1 ∅110L=5,0м СистемаВ1 СистемаК1 Поплавковийкран Автоматичнийповітровідвідник 4-вогнетривкаманжета 7-пластиковатруба 10-конструкціястіни 13-заповненнязмінеральноївати Манжетавогнетривка Манжетавогнетривка 2050020 300 100 100 100 11030030 100 Вузол Ущільненнявводуводопроводу каналізаційноговипуску Фундамент Бетон Заробити цементним розчином Забивка смоляним прядивом М`ятаглина Футлярізстал. труби∅300мм Вузол Вузол Підпис і дата Зам. інв. № Погоджено Змін.Кільк.Аркуш№док. Дата виробництваНовебудівництвомініфермидляведеннятоварногосільськогосподарського натериторіїІвчанськоїсільськоїрадиЛітинськогорайонуВінницької області (замежаминаселеногопунктус.Трибухи) 2119-1-ВК 1 2 3 4 5 6 7 8 9 10 11 14 15 12 13 72250 -1,285 -1,294 -1,303 -1,313 -1,322 -1,331 -1,341 -1,351 -1,360 -1,369 -1,378 -1,388 -1,398 -1,407 -1,416 -1,426 -1,435 -1,444 -1,465 -1,475 -1,485 -1,495 -1,505 -1,515 -1,525 -1,535 -1,545 -1,557 -1,567 -1,577 -1,587 -1,597 -1,607 -1,617 -1,627 -1,637 110 500 900 1850 1850 1850 1850 1850 2050 1850 1850 1850 1850 1850 2050 1850 1850 1850 1850 1850 4250 2000 2000 2000 2000 2000 2000 2000 2000 2250 2000 2000 2000 2000 2000 2000 2000 2000 1000 -0,020 верх трапа 850 5400 6000 6000 6000 6000 6000 6000 6000 6000 6000 6000 5300 700 Перехід Ø250 200 - Ø200/160 - Ø160 110 Повітряний клапан Ø110 Випуск К 13 Ø 250 Ø 250 = 0 005 Ø 110 Випуск К 13 Ø 250 Сідловий трійник Ø 250 тип 0, H=310 + Подовжувач Ø 250 H=350 - 11 шт Сідловий трійник Ø 250, тип 2 H=470 - 7 шт Сідловий трійник Ø 250 тип 1, H=370 - 7 шт Сідловий трійник Ø 250 тип 0, H=310 - 11 шт К13 К13 К13 13 13 13 К13 13 13 1 2 3 4 5 6 7 8 9 10 11 14 15 12 13 72250 -0,020 верх трапа -0,020 верх трапа -0,020 верх трапа 850 5400 6000 6000 6000 6000 6000 6000 6000 6000 6000 6000 5300 700 Трап Ø110 Трап Ø110 Трап Ø110 Б В А Г 11000 6050 4950 -0,020 верх трапа 2500 6000 2500 Ø 250 Сідловий трійник Ø 250 Трап Ø110 Ø110 = 0 005 Вузол герметизації вводу (Випуск К13, Ø 250) Розріз А - А Розріз Б - Б Розріз В - В 1 За відмітку 0 000 прийнято верх щілинної підлоги 2 Данний аркуш розглядати разом з арк ТХ-18 3 Роботи проводити дотримуючись рекомендацій монтажу системи самосплавного гноєвидалення на арк ТХ-20 4 Специфікація елементів системи самосплавного гноєвидалення див на арк ТХ-22

2.

GSPublisherVersion 0.11.100.82 Зам інв № Підпис і дата Інв № ориг 21 Стадія Аркуш Аркушів Созикін А. Б . + 38 (066 ) 932 -81 -68 Реконструкція свинарника в с Новокостянтинівка, Роздільнянського району, Одеської області Рекомендації з монтажу системи самосплавного гноєвидалення ТХ-20 РП 05-22-ТХ Будинок для відлучених поросят та відгодівлі 28 Трубная система навозоудаления Издание: 07/06 M 1626 RUS 5.3 Монтаж патрубков
Замерьте гнездо для клеевого патрубка и нанесите пунктирную линию посередине гнезда При монтаже нескольких патрубков, все патрубки должны располагаться на одной прямой
1.
Разместите патрубок на размеченной срединной линии
Разметьте на трубе внутренний диаметр патрубка для гнезда и внешний диаметр для проведения рихтовки патрубка 4. Аккуратно вырежьте гнездо страница 34 Техника монтажа Трубная система навозоудаления Издание: 07/06 M 1626 RUS 9. При необходимости, можно скрепить патрубок с КG-трубой при помощи болтов для монтажной пластины (см также раздел 4.1 ). 5. Произведите чистку гнезда и стыков патрубка при помощи ПВХочистителя. 6. Равномерно нанесите клей вокруг гнезда на поверхности трубы.
Прижмите патрубок, как минимум, на 10 мин., придавив его сверху весом не менее 10кг. Выступающий по бок ам патрубка клей следует растереть при помощи кисточки. 8. После монтажа патрубка необходимо проклеить стыки с внутренней стороны патрубка Продолжительность высыхания клея составляет около 8 часов. На протяжении этого времени не следует выполнять транспортировку и монтаж труб . Трубная система навозоудаления Издание: 07/06 M 1626 RUS 5.3 Монтаж патрубков
Замерьте гнездо для клеевого патрубка и нанесите пунктирную линию посередине гнезда. При монтаже нескольких патрубков, все патрубки должны располагаться на одной прямой
Разместите патрубок на размеченной срединной линии. 3. Разметьте на трубе внутренний диаметр патрубка для гнезда и внешний диаметр для проведения рихтовки патрубка 4. Аккуратно вырежьте гнездо. страница 34 Техника монтажа Трубная система навозоудаления Издание: 07/06 M 1626 RUS 9. При необходимости, можно скрепить патрубок с КG-трубой при помощи болтов для монтажной пластины (см также раздел 4.1 ). 5. Произведите чистку гнезда и стыков патрубка при помощи ПВХочистителя 6. Равномерно нанесите клей вокруг гнезда на поверхности трубы 7. Прижмите патрубок, как минимум, на 10 мин., придавив его сверху весом не менее 10кг Выступающий по бок ам патрубка клей следует растереть при помощи кисточки 8. После монтажа патрубка необходимо проклеить стыки с внутренней стороны патрубка Продолжительность высыхания клея составляет около 8 часов На протяжении этого времени не следует выполнять транспортировку и монтаж труб Порядок монтажу 1 Відрізати на необхідну довжину та з'єднати труби На початку стоку слід закрити трубу муфтовою пробкою 2 Прокласти трубу під нахилом мінімум 5 ‰ (5мм на м). 3 Відтарувати (проюстувати) трубопровід 4. Встановити патрубки (див арк. ТХ-29) під кожним резервуаром, вставивши пробку 5 Для забезпечення надійнішого кріплення до бетону необхідно виконати засипання патрубків піском 6 Щоб зберегти необхідний ухил трубопроводу після заливання бетонної підлоги, необхідно заповнити проміжки під та з боків трубопроводу піском. Необхідно простежити за тим, щоб не сталося зменшення ухилу труб, а також скручування труб у верхньому та нижньому напрямках 7 Після закінчення висихання бетону та після проведення обробки поверхні з водонепроникним покриттям необхідно обрізати патрубки так, щоб верхній край патрубка знаходився на одній лінії із підлогою каналу 8 Залежно від місцевих особливостей необхідно встановити ручку. обслуговування пробки Необхідно забезпечити вільну прохідність виходу колекторного трубопроводу в ємність для збирання гноївки щоб уникнути збоїв у роботі установки Перевірка роботи системи 1 Для перевірки системи щодо її коректного монтажу, необхідно перед введенням системи в експлуатацію провести пробний тест 2 Як засіб контролю рекомендується використовувати чисту воду 3. Випробувальний тиск повинен відповідати місцевій висоті підпору та становити не менше 15 см (що відповідає тиску 0,015 бар). 4 Тривалість тесту становить 24 години 5 Належна інсталяція забезпечує герметичність системи таким чином, що рівень рідини у каналах не падає 6 Перевірити гнойовий канал щодо наявності в ньому сторонніх тіл, які можуть викликати засмічення трубопроводу 7 Необхідно забезпечити бездоганну прохідність виходу головної труби в ємність для збирання гноївки 8 Перед видаленням гною слід видалити гній із попереднього накопичувача 9 Прийом результатів тесту має відбуватися у присутності виконроба, а також спеціаліста фірми постачальника. 10 Результати тесту приймаються та фіксуються в протоколі випробувань Перед введенням в експлуатацію 1 Щоб уникнути засмічення підпідлогових гноєзбірних ванн, необхідно очистити всі ванни від сторонніх тіл 2. Простежте, щоб усі патрубки були вільні від залишків бетону. 3 Канал гноєвидалення слід заповнити водою для насичення бетону 4 Виконайте на бетонно-щілинній підлозі розмітку гнізда для запірних пристроїв. Монтаж сідлових трійників ( патрубків ) Ø 250 на трубу 1 Заміряти гніздо для клейового сідлового трійника (далі - патрубок) та нанести пунктирну лінію посередині гнізда При монтажі кількох патрубків, всі патрубки повинні розташовуватися на одній прямій лінії
Розмістити патрубок на розміченій лінії посередині 3 Розмітити на трубі внутрішній діаметр патрубка для гнізда та зовнішній діаметр для проведення рихтування патрубка 4 Акуратно вирізати гніздо 5 Виконати чищення гнізда та стиків патрубка за допомогою очисника для ПВХ 6 Поступово нанести клей навколо гнізда на поверхні труби 8. Після монтажу патрубка необхідно проклеїти стики з внутрішньою боку патрубка 9 При необхідності можна скріпити патрубок з трубою за допомогою саморізів 4,5x 20 ABC-Spax з потайною головкою, нерж ст 10 Тривалість висихання клею становить близько 8 годин Напротязі цього часу не слід виконувати транспортування та монтаж труб 7 Притисніть патрубок як мінімум, на 10 хв., притиснувши його зверху вагою не менше ніж 10кг Виступаючий з боків патрубка клей слід розтерти за допомогою пензлика
3.
7.
1.
2.
2
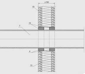
GSPublisherVersion 0.11.100.82 Зам інв № Підпис і дата Інв № ориг 22 Стадія Аркуш Аркушів Созикін А. Б . + 38 (066 ) 932 -81 -68 Реконструкція свинарника в с Новокостянтинівка, Роздільнянського району, Одеської області Спеціальні елементи системи самосплавного гноєвидалення ТХ-21 РП 05-22-ТХ Будинок для відлучених поросят та відгодівлі 28 Трубная система навозоудаления Издание: 07/06 M 1626 RUS 4.2 Запорные и натяжные устройства 4.2.1 Запорные шар, пробка и крюк для навозоудаляющей пробки Рисунок Код. №Наименование 71-24-3001 запорный шар DN 200 71-24-3101 запорная пробка DN 250 71-24-3201 запорная пробка DN 300 71-24-3020 натяжной крюк 1000мм нерж ст для запорной пробки 71-24-3021 натяжной крюк 200мм нерж ст для запорной пробки воздуха Воздухоотводный вентиль DN 110 99-50-4419 трубопровода страница 30 Установка и порядок работы 4.4 Выпуск воздуха Воздухоотводный вентиль предназначен для выпуска воздуха из трубопровода. Данный вентиль работает по принципу предохранительного редукционного клапана, т е возможен отвод, но не приток воздуха Рис. 4-7: Принцип работы воздухоотводного вентиля 310 220 455 Ø250 280 370 515 380 470 615 Ø250 Ø250 220 350 480 660 Ø250 Сідловий трійник Ø 250, тип 0, H=310 Сідловий трійник Ø 250, тип 1, H=370 Сідловий трійник Ø 250, тип 0, H=310 + Подовжувач Ø 250, H=350 Сідловий трійник Ø 250, тип 2, H=470 Гак Повітряний клапан Ø110 Принцип роботи повітряного клапана Пробка Ø 250

Пробка Ø250 мм (чорна)

Повітряний

GSPublisherVersion 0.11.100.82 Зам інв № Підпис і дата Інв № ориг 23 Стадія Аркуш Аркушів Созикін А. Б . + 38 (066 ) 932 -81 -68 Реконструкція свинарника в с Новокостянтинівка, Роздільнянського району, Одеської області Специфікація елементів системи самосплавного гноєвидалення ТХ-22 РП 05-22-ТХ Будинок для відлучених поросят та відгодівлі 28 1 3 6 7 1 шт. 22 2 шт. 1 3 шт. 7 4 шт. 5 шт. 36 6 шт. 1 шт. 8 шт. 1 9 шт. 5 10 шт. 1 11 шт. 1 12 шт. 1 14 шт. 1 15 шт. 1 16 шт. 4 17 шт. 14 19 шт. 2 20 шт. 3 21 шт. 3 22 шт. 4 Зм. Кільк. Арк. №док. Підпис Дата Стадія Аркуш Аркушів Розробив К13 Н.контр. Перевірив Поз. Найменуванння та технічна характеристика Футляр сталевий Ø 300x4,0 L=600mm Вузол герметизації Вводу 2 Тип, марка, позначення документа, опитувального листа Код обладнання, виробу, матеріалу ГІП ГАП 4 Примітки Завод-виробник Одиниця виміру Кіл. Масса 1 од., кг 5 8 9 Подовжувач Ø250 мм., Н=350 мм Сідловий трійник Ø250 мм., Тип 0, Н=310 мм Сідловий трійник Ø250 мм., Тип 1, Н=370 мм Гак 1200 мм для пробки, Ø 10мм, нерж. з горизонтальним випуском DN110 Душевий трап з решіткою із нерж. сталі 150х150 мм Будинок для проведення опоросів та утримання відлучених поросят, холостих 1 Будівництво свинарника 1 Специфікація обладнання виробів та матеріалів Р Зам.інв.№ Підпис і дата Iнв.№ориг. Коліно 45° поліпропіленове каналізаційне Ø250 мм. Коліно 87° поліпропіленове каналізаційне Ø110 мм. Перехід поліпропіленовий каналізаційний Ø250/200мм. Труба поліпропіленова каналізаційна
250х4,9
L=6 м. Сідловий трійник Ø250 мм., Тип 2, Н=470 мм Перехід поліпропіленовий каналізаційний Ø160/110 мм. Труба поліпропіленова каналізаційна Ø 110х2,2 мм.
Труба поліпропіленова каналізаційна Ø 110х2,2
поліпропіленова каналізаційна Ø
Перехід поліпропіленовий каналізаційний
Ø
мм.
L=3 м.
мм. L=2 м. Труба
110х2,2 мм. L=1 м.
Ø200/160 мм.
клапан
Ø110 мм.
GSPublisherVersion 0.11.100.82 Зам інв № Підпис і дата Інв № ориг 24 Стад я Аркуш Аркушів Созикін А. Б + 38 066 932 -81 -68 Реконструкція свинарника в с Новокостянтинівка Роздільнянського району Одеської області План на відм 0 000 Схема приточно-витяжної вентиляції ТХ-23 РП 05-22-ТХ Будинок для відлучених поросят та відгодівлі 28 щийвидвентиляционнойшахты 11000 850 5400 6000 6000 6000 6000 6000 6000 6000 6000 5300 700 72250 2500 6000 2500 А А Д Д Б Б В В Г А 1 2 3 4 5 7 9 10 11 14 15 Б В 12 13 1500 П У Е 5 кВт 1 ф., 220 В H=1500 NW 50 AGRO 1 1 кВт 1 ф., 220 В H=1500 NW 50 AGRO, 1 1 кВт 1 ф., 220 В H=1500 NW 50 AGRO 1,1 кВт 1 ф., 220 В H=1500 В 1 1 В 1 2 В 2.1 В 2 2 В 3 1 В 3 2 В 6 1 В 6 3 В 6 2 В 7 1 В 7 2 В 6 4 В 7 3 В 7 4 Г 0-10V6-25A TC 1203 TC 1204 TC 1204+ 0-10V6-15A 0-10V6-15A 0-10V 10-25A climate solution Шахта витяжна Ø630; 0 37 кВт План на відм 0 000 Схема приточно-витяжної вентиляції П У.Е - TC 1203 Водяний тепловентилятор NW 50 AGRO Теплова потужність - 56 2 кВт Продуктивність вентилятора - 4600 м год Електрична потужність - 1,1 кВт 220 В 2,8 А В 1 1 В 2 1 В 3 1 В 6 1 - В 6,2 В 7 1 - В 7,2 Продуктивність вентилятора - 11600 м3 год Електрична потужність - 0 37 кВт 230 В 2 7 А Шахта припливна Ø630 0,37 кВт В 1,2 В 2,2 В 3,2 В 6,3 - В 6 4 В 7,3 - В 7 4 Продуктивність вентилятора - 12000 м3 год Електрична потужність - 0 37 кВт 230 В 2 7 А
GSPublisherVersion 0.11.100.82 Зам інв № Підпис і дата Інв № ориг 26 Стад я Аркуш Аркушів Созикін А. Б + 38 066 932 -81 -68 Реконструкція свинарника в с Новокостянтинівка Роздільнянського району Одеської області Розріз Б-Б В-В Д-Д ТХ-25 РП 05-22-ТХ Будинок для відлучених поросят та відгодівлі 28 1 2 3 4 5 6 7 8 9 10 11 14 15 12 13 72250 -0,350 -0,850 2300 2300 2,220 2,750 850 5400 6000 6000 6000 6000 6000 6000 6000 6000 6000 6000 5300 700 В1 40х3 0 В1 32х2 4 Вузол медикації 2 Кран поливальний H-1500 В1 40х3 0 Від насосної станції В1 40х3 0 В1 25х2 0 Кран поливальний H-1500 В1 40х3 0 Кран поливальний H-1500 В1 32х2 4 В1 32х2,4 Кран поливальний H-1500 В1 32х2 4 В1 8х1 0 В1 8х1 0 Кран поливальний H-1500 В1 25х2,0 В1 25х2,0 Вузол медикації 1 Вузол медикації 2 В1 25х2 0 В1 25х2 0 В1 25х2 0 В1 25х2 0 Б В А Г 11000 2300 0,000 -0,350 -0,850 2,220 2,750 2500 6000 2500 В1 8х1 0 L=2600 В1 32х2 4 Б В А Г 11000 2,220 2,750 0,000 -0,885 -0,350 2300 2500 6000 2500 В1 8х1 0 L=1600 В1 32х2 4 Розріз Б - Б Розріз Д - Д Розріз В - В
GSPublisherVersion 0.11.100.82 Зам інв № Підпис і дата Інв № ориг 27 Стад я Аркуш Аркушів Созикін А. Б + 38 066 932 -81 -68 Реконструкція свинарника в с Новокостянтинівка Роздільнянського району Одеської області План силового електрообладнання ТХ-26 РП 05-22-ТХ Будинок для відлучених поросят та відгодівлі 28 11000 850 5400 6000 6000 6000 6000 6000 6000 6000 6000 6000 6000 5300 700 72250 2500 6000 2500 ВРЩ-1 ЩР-1 Г А 1 2 3 4 5 6 7 8 9 10 11 14 15 Б В 12 13 Блок керування (П У Е.) 1 5 кВт 3 ф., 380 В Бункер для зберігання корму V = 8 м (4 8 т Привідна станція 1 5 кВт 3 ф., 380 В Бункер для зберігання корму V = 8 м 3 ( 4 8 т ) Привідна станція 1 5 кВт 3 ф 380 В П У Е 3 5 кВт 1 ф., 220 В, H=1500 П У Е 5 кВт 1 ф., 220 В H=1500 4 шт 1500) Гр 2 2 шт.(1500) Гр 2 NW 50 AGRO 1 1 кВт 1 ф., 220 В H=1500 NW 50 AGRO, 1 1 кВт 1 ф., 220 В H=1500 NW 50 AGRO 1,1 кВт 1 ф., 220 В H=1500 2 шт.(1500) Гр 2 2 шт.(1500) Гр 2 2 шт.(1500) Гр 2 2 шт.(1500 Гр 2 2 шт.(1500 Гр.2 2 шт.(1500 Гр 2 2 шт.(1500 Гр 2 2 шт.(1500 Гр 2 2 шт.(1500 Гр 2 2 шт.(1500 Гр 2 2 шт.(1500 Гр 2 2 шт.(1500 Гр 2 2 шт.(1500 Гр 2 2 шт.(1500 Гр 2 2 шт.(1500 Гр 2 2 шт.(1500 Гр 2 2 шт.(1500 Гр 2 2 шт.(1500 Гр 2 2 шт.(1500 Гр 2 2 шт.(1500 Гр 2 2 шт.(1500 Гр 2 2 шт.(1500 Гр 2 2 шт.(1500 Гр 2 1 шт.(1500) Гр 2 1 шт.(1500 Гр 2 1 шт.(1500) Гр 2 1 шт.(1500 Гр 2 В 1 1 В 1 2 В 2 1 В 2 2 В 3 1 В 3 2 В 6 1 В 6 3 В 6 2 В 7 1 В 7 2 В 6 4 В 7 3 В 7 4 1 шт.(1500) 3 ф., Гр 1 1 шт.(1500 3 ф.,Гр 1 1 шт.(1500) 3 ф.,Гр 1 1 шт.(1500 3 ф.,Гр 1 1 шт.(1500 3 ф.,Гр 1 1 шт.(1500 3 ф.,Гр 1 1 шт.(1500 3 ф.,Гр 1 1 шт .( 1500 ) 3 ф Гр 1 План силового електрообладнання
GSPublisherVersion 0.11.100.82 Зам інв № Підпис і дата Інв № ориг 28 Стад я Аркуш Аркушів Созикін А. Б + 38 066 932 -81 -68 Реконструкція свинарника в с Новокостянтинівка Роздільнянського району Одеської області План електроосвітлення ТХ-27 РП 05-22-ТХ Будинок для відлучених поросят та відгодівлі 28 11000 850 5400 6000 6000 6000 6000 6000 6000 6000 6000 6000 6000 5300 700 72250 2500 6000 2500 ВРЩ-1 ЩР-1 Г А 1 2 3 4 5 6 7 8 9 10 11 14 15 Б В 12 13 Лампа 18 Вт Гр 1 Лампа 18 Вт Гр 1 Лампа 18 Вт Гр 1 Лампа 18 Вт Гр 1 Лампа 18 Вт Гр 1 Лампа 18 Вт Гр 1 Лампа 18 Вт Гр 2 Лампа 18 Вт Гр 2 Лампа 18 Вт Гр 1 Лампа, 18 Вт, Гр 1 Лампа 18 Вт Гр 1 Лампа 18 Вт Гр 2 Лампа 18 Вт Гр 3 Лампа 18 Вт Гр 1 Лампа 18 Вт Гр 1 Лампа 18 Вт Гр 1 Лампа 18 Вт Гр 1 Лампа 18 Вт Гр 1 Лампа 18 Вт Гр 1 Лампа 18 Вт Гр 2 Лампа 18 Вт Гр 2 Лампа 18 Вт Гр 1 Лампа 18 Вт Гр 1 Лампа 18 Вт Гр 1 Лампа 18 Вт Гр 1 Лампа 18 Вт Гр 1 Лампа 18 Вт Гр 1 Лампа 18 Вт Гр 2 Лампа 18 Вт Гр 2 Лампа 18 Вт Гр 2 Лампа 18 Вт Гр 1 Лампа 18 Вт Гр 2 Лампа, 18 Вт, Гр 1 Лампа 18 Вт Гр 2 Лампа 18 Вт Гр 3 Лампа 18 Вт Гр 2 Лампа 18 Вт Гр 3 Лампа 18 Вт Гр 2 Лампа 18 Вт Гр 2 Лампа 18 Вт Гр 2 Лампа 18 Вт Гр 2 Лампа 18 Вт Гр 2 Лампа 18 Вт Гр 2 Лампа 18 Вт Гр 2 Лампа 18 Вт Гр 2 Лампа 18 Вт Гр 2 Лампа 18 Вт Гр 2 Лампа 18 Вт Гр 2 Лампа 18 Вт Гр 1 Лампа 18 Вт Гр 1 Лампа 18 Вт Гр 3 Лампа 18 Вт Гр 3 Лампа 18 Вт Гр 3 Лампа 18 Вт Гр 3 Лампа 18 Вт Гр 3 Лампа 18 Вт Гр 3 Лампа 18 Вт Гр 1 Лампа 18 Вт Гр 1 Лампа 18 Вт Гр 3 Лампа 18 Вт Гр 3 Лампа 18 Вт Гр 3 Лампа 18 Вт Гр 3 Лампа 18 Вт Гр 4 План електроосвітлення

Turn static files into dynamic content formats.

Create a flipbook
Issuu converts static files into: digital portfolios, online yearbooks, online catalogs, digital photo albums and more. Sign up and create your flipbook.