UCL, Guo Yifei

Page 1


PORTFOLIO

Yifei Guo

Apply To

MA Architecture and Historic Urban Environments

University College London

PREFACE

These projects are reflections on a number of human phenomena, with the idealisation and conceptualisation characteristic of this age. I hope to inject thoughts on humanities and history into the architecture, focusing on culture and logic, and the architecture that carries the spirit of the site is what I want. Standing at the crossroads of this ancient industry has prompted me to think more about the meaning behind architecture, to balance the abstract and the concrete, the history and the future.

CONTENTS

The depth of chapter 5 to 9: the civil war

01 City Collage Project / Connecting Urban Vibrancies

Reclaiming Old Street's Past Glory

02 The Utopian Town

A little harbour of peace on the Palestinian-Israeli border

03 Echoes of Solitude: The Cycle of Time and Memory

Loneliness in One Hundred Years of Solitude

04 Break the Tower

Confusion and intertwining in One Hundred Years of Solitude

05 Other Works

Floating

Student Residence

Waterfront Station

Courtyard House

Visual Architecture

City Collage Project / Connecting Urban Vibrancies

Preservation and Revitalization-Urban Design for Rongxiang Historical Area

2024 Nov.

Urban Design

Instructor: Shao.P

Individual Work Site: Wuxi, China

This project, as an old urban renewal, aims to connect the local with the neighbourhood and regional relations, innovate the mechanism of neighbourhood, lead the development of the area and create the development support. Substantial connection and interaction of the surrounding associated resource space, through the historical corridors, tourist roads, traffic and service facilities and other cultural and tourism activities organised and constructed in series organised into the regional system. Form differentiated and complementary development with the neighbourhood. Sort out the traffic relationship, build the node of traffic service facilities with the neighbourhood, bus connection and special tourism traffic, increase the support of external and internal connection.

Background and Problem of Rongxiang

S[22]Residents' Garden

CL[3]Rong's Brothers' Old Residence

C[20]Rongxiang Cotton Weaving

S[20]Opera Restaurant

S[21]Convenience Service Point

C[8]Rongxiang Cotton Weaving

CL[2]Rong Guangshi's Bachelor's Degree

C[10]Art Shop

CL[11]Artist Restaurant

C[10]Art Shop

C[11]Artist Restaurant

S[13]Snacks Lounge

S[14]Afternoon Tea House

S[15]Fine Dining Restaurant

S[16]Library T Comprehensive Service Centre

S[8]Exhibition Complex

S[9] Small Art Link

C[11]Artist Restaurant

S[8]Exhibition Complex

S[9] Small Art Link

C[11]Artist Restaurant

CL[8]Rong Qixiang's Residence

CL[9]Rong Yufa's Residence

CL[11]Rong Lane Wumantou

S[12]Wumantou Tea House

Commercial Street
Folklore Experience Centre
[s] Teahouse

[c] Kiosk

[s] Folk characteristics experience hall

3.L[s] Community service centre

4.P[cl] Old residence of celebrity

The Utopian Town

Having discussed war and conflict and focused on the struggles at the centre of the war, let's think about the timeline after the war. War is not just a game of winners and losers that concerns the rulers, but how civilians, who are the victims of war, get back to their lives on the day the war ends is perhaps a more important.

The Palestinian-Israeli conflict has been going on for a long time, and will continue for quite some time in the foreseeable future, and as an architect we can't dictate the end or continuation of the war, but one thing is for sure, and that is that the war will end someday. After the end of the war, the people living on the land, whether they are of different races or beliefs, will always live in peace until the next war. This small building was constructed on the former Palestinian-Israeli border crossing as a small commercial and cultural exchange centre, which will hopefully play some role in the time period of peaceful coexistence.

Site: Erez Israeli/Palestinian

History of the Palestinian-Israeli conflict

Ancient, Modern and Present

More than a century has passed since the establishment of the separate states of Palestine and Israel by United Nations resolution 181 in 1947, so why is this region still ravaged by war? At that time, the UN adopted Resolution 181, which divided Palestine into a Jewish and an Arab state. However, this decision was not endorsed by both sides and led to a conflict between Israel and the neighbouring Arab countries. Since then, friction between the two sides over territorial issues has continued, making the situation increasingly tense.

Conflict

and

Events in Israel
Palestine
Israeli settlements in the West Bank
94% Israeli
Large numbers of Palestinians fleeing towards Israel
cropland
conflict
Exterior of the Gallery
Two Churches
Section Perspective

Comparison of Types

Windows and Sightlines

The different cuts of stone representing the surface of the traditional ramparts are formed on the inwardly facing elevation of the building, signalling the traditional. Plaza and Interior

Architectural Detail Drawing: The Old Wall

The vaulted corridors of the commercial and exhibition areas symbolise the traditional religious buildings of the area, dividing the interior into different zones. The east and west parts of the building are linked by corridors that interconnect with the outdoor terraces.

Bazaar
Exhibition Gallery

of

One Hundred Years of Solitude traces the Buendía family across generations in Macondo, a town they founded. Each generation faces cycles of love, loss, and repeating mistakes, along with supernatural events. Despite their ambitions, the family ultimately succumbs to isolation and a foretold prophecy, leading to their disappearance along with Macondo.
Buendia Family's History

Workflow of Midjourney The Story of Macondo

“magic realism style, Latin America tones, unified color palette of gold and black” --ar 16:9 --v 6.0

Sketch Withdraw Elements Modify

A gnawing path of incestuous destruction.

Misfortunes or disasters occur, such as death, decay.

A metaphor for death and a romantic love story.

The source of all disasters, greed, the symbol of desire.

Select

The routine behaviour is a way of passing the time and avoiding destiny.

Gradually, it grew and prospered from a small, almost isolated place. Banana farming led to the fall of Macondo, which was then wiped off the map by a huge storm.

The birth of the Buendía family
The heavy rain and flooding in Macondo
Aureliano II and Fernanda's wedding
The Gypsies and Melquíades’ Laboratory
The massacre of the banana plantation workers
The Decay of Macondo
José Arcadio Buendía's ghost
Remedios the Beauty’s Ascension The Cyclical Nature of Time
The birth of the Buendía family
The heavy rain and flooding in Macondo
Aureliano II and Fernanda's wedding
The Gypsies and Melquíades’ Laboratory
The massacre of the banana plantation workers
The Decay of Macondo
José Arcadio Buendía's ghost
Remedios the Beauty’s Ascension
The Cyclical Nature of Time

Huge conical shells

twisted vine-maned branches

Glass tube
Steel cable

Towering mirrors

Indistinguishable

Human

Visual changes
Three stages of Macondo's destruction
Bridge-like trusses

Urban Design

This project, as an old urban renewal, aims to connect the local with the neighbourhood and regional relations, innovate the mechanism of neighbourhood, lead the development of the area and create the development support. Substantial connection and interaction of the surrounding associated resource space, through the historical corridors, tourist roads, traffic and service facilities and other cultural and tourism activities organised and constructed in series organised into the regional system. Form differentiated and complementary development with the neighbourhood. Sort out the traffic relationship, build the node of traffic service facilities with the neighbourhood, bus connection and special tourism traffic, increase the support of external and internal connection.

Instructor: Han.X
Individual Work Site: Macondo

Upper floor centres of power

Colonel Aureliano Buendia led the men in preparing the strategic setup for the attack, with each of the 30 squads responsible for attacking the 30th floor.

Mid-level

The tower, which serves as the centre of the town's dictatorship, consists of thirty floors, and the rooms are all made of cubes.

Macondo
Aracataca

System Generation

Draw the floor plan of each floor by randomly dividing the rectangles and select the largest rectangular room on each floor.

Take the centre of each rectangle and cylindrical surface section, and connect the midpoint of the centre of the outer sphere as an endpoint

The intersection of the next ball and helix is connected to the centre of the momenta respectively, the centre of the resulting intersection is used as an endpoint, and the two endpoints are connected as the diameter of the circle.

Take the outer circle of the moment body and intersect the ball and surface again, cutting out the inner shape.

System, Spherical, Space

Successive spherical cavities form the throughheight portion of the tower, and the tiny gaps in the façade are accompanied by spatial changes that have turned the tower upside down, as the space of the spherical cavities, which represent a new order, breaks up the serious square of space

and the four soldiers who had killed the woman.

"Not madness," Aureliano said. "War. And don't call me Aurelito any more. Now I'm Colonel Aureliano Buendía."

The Tuesday of the armistice dawned warm and rainy. Colonel Aureliano Buendía appeared in the kitchen before five o'clock and had his usual black coffee without sugar.

Black Dictatorships White Revolutionary Army

Indoor

The surface of the spheres are made of metal , the stairs are marble . The once square rooms are replaced by spheres cutout. The curves and materials representing the new order took over the tower.

2023 Mar.

Architecture Design

Instructor: Hou. L

Individual Work

Site: Nanjing, China

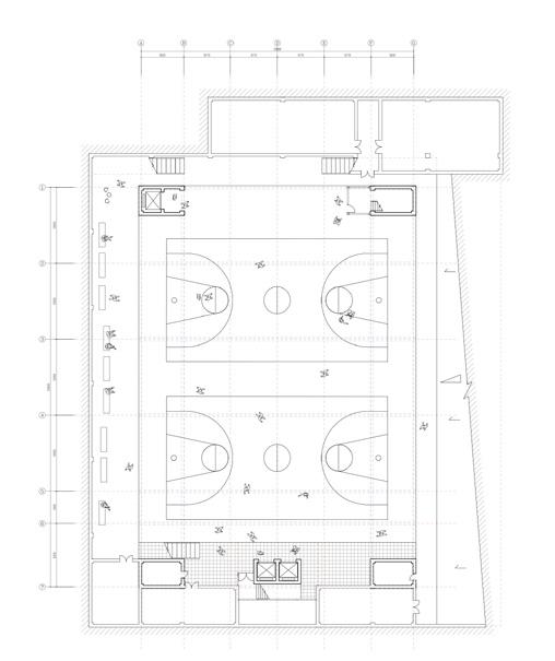
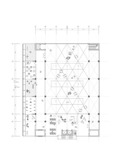
In order to connect the city and the community, it was considered to elevate the whole building and support it with four cores, and the ground floor was sunk as a wind and rain playground to connect the community and the city, which not only limited the boundary of the site but also formed a continuous space. The upper level is centred on the swimming pool, with other functions distributed around it in a U-shape, creating a visual exchange and breaking up the independence of each part. The roof garden retains the trusses with a touch of industrial romance. The urban façade slopes downwards and uses a metal curtain wall as the image of the building to represent the school, while the community façade is relatively relaxed welcoming the residents and students of the neighbourhood to enter. The entire building creates a sense of floating above the city.

2022 Feb.

Architecture Design

Individual Work Site: Nanjing, China

Conversion of an old residential building adjacent to a school into a student apartment building, requiring consideration of light and building boundaries, rational arrangement of flow and fire protection for a flat building, and design codes and methods for flat rooms.

2022 Oct.

Architecture Design

Individual Work Site: Nanjing, China

Constructing a station along the river in the city for city residents to rest and improve the image of the city and show the city's style, to learn to design buildings on slopes, to deal with the relationship between buildings and the urban façade, and water.

2023 Apr.

Architecture Design

Individual Work

Site: Nanjing, China

A renovation project of a residence in an old neighbourhood, catering for several families on the original site. 2022 Jul.

Visual Course

Individual Work

Changes in light and atmosphere of a square in different scenes.

seclusion in the forest The Wizard of Oz

Turn static files into dynamic content formats.

Create a flipbook
Issuu converts static files into: digital portfolios, online yearbooks, online catalogs, digital photo albums and more. Sign up and create your flipbook.