BBP 19 - Milieueffectenrapport

Page 1

MILIEUEFFECTENRAPPORT (MER)

VAN HET BIJZONDER BESTEMMINGSPLAN NR. 19

“WESTWIJK VAN HET NOORDSTATION”

Chapitre I / Section 2. Résumé du contenu du plan / p. 1 Gemeente Schaarbeek Versie 06/10/2022

MILIEUEFFECTENRAPPORT (MER)

VAN HET BIJZONDER BESTEMMINGSPLAN NR. 19

“WESTWIJK VAN HET NOORDSTATION”

HOOFDSTUK I: Presenta e van het ontwerpplan

HoofdstukI Presenta evanhetontwerpplan/p.2

Gemeente Schaarbeek Version 06/10/2022

Inhoud van het MER

HOOFDSTUK I – PRESENTATIE VAN HET ONTWERPPLAN

Afdeling 0. Algemene methodologie

Afdeling 1. Beschrijving van de strategische doelstellingen van het plan

Afdeling 2. Samenvatting van de inhoud van het plan

HOOFDSTUK II – DIAGNOSE VAN DE BESTAANDE TOESTAND EN IDENTIFICATIE VAN DE UITDAGINGEN

Afdeling 1. Methodologie voor de vaststelling van de bestaande toestand

Afdelingen 2- 3- 4. Overzicht van de rechtstoestand en van de feitelijke toestand en waarschijnlijke evolutie

HOOFDSTUK III – IDENTIFICATIE VAN DE MILIEUEFFECTEN

Afdeling 1. Methodologie

Afdeling 2. Presentatie van de redelijke alternatieven en van de geselecteerde evaluatiemethode

Afdeling 3. EFFECTENBEOORDELING

A/ PROGRAMMATORISCHE ALTERNATIEVEN

B/ RUIMTELIJKE ALTERNATIEVEN

C/ ONTWERP VAN BBP

Afdeling 4. Overzicht van specifieke milieueffecten

HOOFDSTUK IV - CONCLUSIE, AANBEVELINGEN EN OPVOLGINGSMAATREGELEN

Afdeling 1. Presentatie van de gekozen oplossingen

Afdeling 2. Aanbevelingen

Afdeling 3. Opvolgingsmaatregelen

I Presentatie
het ontwerpplan
p. 3
Hoofdstuk
van
/
Hoofdstuk I Presentatie van het ontwerpplan / p. 4 Inhoud van hoofdstuk I HOOFDSTUK I – PRESENTATIE VAN HET ONTWERPPLAN Afdeling 0. Algemene methodologie……………………………………………………………………………………………………………. 6 Opbouw van het document…………………………………………………………………………………………………………………. 6 Presentatie van de actoren 7 Ervaren moeilijkheden………………………………………………………………………………………………………………………… 8 Afdeling 1. Beschrijving van de strategische doelstellingen van het plan…………………………………………………….. 10 Context van het BBP 12 Strategische doelstellingen 12 Afdeling 2. Samenvatting van de inhoud van het plan…………………………………………………………………………………. 14 Inhoud en uitdagingen van het BBP…………………………………………………………………………………………………….. 15

HOOFDSTUK I

Hoofdstuk I / Afdeling 0 Algemene
/
5
methode
p.
Presentatie van het ontwerpplan

HOOFDSTUK I

Presentatie van het ontwerpplan

Afdeling 0.

ALGEMENE METHODE

6
Hoofdstuk I / Afdeling 0 Algemene methode / p.

OPBOUW VAN HET DOCUMENT

Na de presentatie van de actoren en de ervaren moeilijkheden schetsen we in Afdeling 1 van dit hoofdstuk de context van het BBP en herhalen we de strategische doelstellingen. Afdeling 2 vat de inhoud van het BBP samen (strategisch en verordenend luik), evenals de begeleidende maatregelen.

In hoofdstuk II geven we de diagnose van de bestaande feitelijke en rechtstoestand en de waarschijnlijke evolutie van de toestand per analysecriterium. Het hoofdstuk eindigt met een samenvatting van de uitdagingen die moeten worden beschouwd als relevante doelstellingen in het domein van het leefmilieu.

Hoofdstuk III beschrijft de milieueffecten van de programmatorische en ruimtelijke alternatieven en van het ontwerp-BBP. In tegenstelling tot wat is voorzien in het besluit, namelijk dat moet worden begonnen met de analyse van het ontwerpplan, werd besloten om de analyse te geven in de chronologische volgorde van haar verloop, d.w.z.:

1. programmatorische alternatieven

2. ruimtelijke alternatieven

3. ontwerp van BBP

Hoofdstuk IV ten slotte bevat de algemene conclusies van de studie, de definitieve aanbevelingen voor het ontwerp-BBP en de instrumenten waarmee de tenuitvoerlegging van het BBP kan worden opgevolgd.

De methodes voor de diagnose van de bestaande toestand en de beoordeling van de milieueffecten zijn beschreven in de inleidingen van respectievelijk de hoofdstukken II en III. De methodes werden helemaal in het begin van het proces voorgesteld in het bestek van het MER en werden vooraf goedgekeurd door het begeleidingscomité van het ontwerp-BBP.

Hoofdstuk I / Afdeling 0 Algemene methode / p. 7

PRESENTATIE VAN DE ACTOREN

Initiatiefnemer van de uitwerking van het BBP:

De gemeente Schaarbeek nam het initiatief voor de uitwerking van dit ontwerp-BBP.

Auteurs van de studie

De tijdelijke vereniging van ‘1010 architecture urbanism’ en ‘BRAT’ werd aangeduid voor de realisatie van het ontwerp-BBP:

1010au is de auteur van het BBP met Nadia Casabella als projectleider; BRAT is de auteur van het MER met Mélanie Vesters als projectleider.

Samenstelling van het begeleidingscomité

Overeenkomstig artikel 46 van het BWRO is het begeleidingscomité belast met de procedure voor de realisatie van het milieueffectenrapport.

Het begeleidingscomité is samengesteld uit vertegenwoordigers van:

 de gemeente Schaarbeek die het comité voorzit: Julie Denef, William Chisholm

 het Brussels Planningsbureau (Perspective.brussels): Mathilde Berlanger

 Leefmilieu Brussel: Véronique Franchioly en enkele uitgenodigde leden:

Gemeente Schaarbeek: Romain Coremans, Guy Van Reepingen, Amélie Grégoire, Lien Dewit

 Maatschappij voor Stedelijke Inrichting( (MSI): Claire Heugebaert

 Brussel Mobiliteit: Thao Nguyen Thi Phuong,

 Bouwmeester Maître Architecte (BMA): Géraldine Lacasse

De MIVB: Anne Collard

De Lijn: Jacques Evenepoel, Luc Daniëls

De NMBS: Philippe Thonon

De Stad Brussel: Hervé Delhove

De gemeente Sint-Joost-Ten-Node: Anne Winterberg

 Bouwmeester Maître Architecte (bMa): Géraldine Lacasse

Zijn taak bestaat erin om:

advies te geven over de benaderingsfilosofie van de opdracht bij te dragen tot de bepaling van de inhoud van de documenten

 elk advies te geven over de uitvoering van de opdracht

Het begeleidingscomité werd regelmatig op de hoogte gebracht van de evolutie van het MER. Net als in het ontwerp-BBP werd in het MER rekening gehouden met de vragen en opmerkingen van het begeleidingscomité.

Samenstelling van het stuurcomité

Het BBP werd ook opgevolgd door een stuurcomité bestaande uit vertegenwoordigers van:

 het kabinet-Vervoort: Maxime Campus, Florence Provost, Tine Cooreman

 het kabinet-Smet: Eric De Deyn, Lieven Baro

het kabinet-Van den Brandt: Thomas Moens

het kabinet-Maron: Solange Verger

het kabinet van de burgemeester van Schaarbeek: France-Laure Labeeuw

Bouwmeester Maître Architecte (BMA): Géraldine Lacasse

Leefmilieu Brussel : Véronique Franchioly, Valérie Stoop

 Brussel Mobiliteit: Thao Nguyen Thi Phuong

 Urban: Bénédicte Annegaarn, Benjamin-Nathanian Lemmens

De MIVB: Anne Collard

De Lijn: Jacques Evenepoel, Luc Daniëls

Perspective : Pierre Lemaire

MSI: Claire Heughebaert

Hoofdstuk I / Afdeling 0 Algemene methode / p. 8

ERVAREN MOEILIJKHEDEN

Tijdens de uitwerking van het BBP en het bijhorende MER zijn we op enkele moeilijkheden gebotst. We vatten ze hier kort samen.

Tijdsbestek van het proces vs tijdsbestek van de andere plannen en projecten

Het doel van een BBP is een regelgevend kader te bieden voor een strategische visie die door de bevoegde overheid (in dit geval de gemeente Schaarbeek) wordt ondersteund. In het specifieke geval van het bestudeerde gebied, een multimodaal knooppunt van regionaal belang, wordt deze strategische visie gesteund door alle regionale actoren. De visiestudie voor het Territorium Noord, die betrekking had op de onderzochte zone, moest daarom de basis zijn voor de opmaak van het BBP 19 en van het RPA Max. Deze drie documenten worden echter tegelijkertijd uitgewerkt en het RPA Max en het BBP 19 zijn al verder gevorderd dan de strategische studie waaruit ze geacht worden voort te vloeien.

Anderzijds levert een BBP een kader voor projecten die binnen de grenzen ervan plaatsvinden. Hoewel het duidelijk is dat de ontwikkeling van het SPP volledig los moet staan van de projecten die daarbinnen plaatsvinden, is het waar dat sommige (voor)projecten al bij de overheid bekend waren in het stadium van de wijziging van het SPP. Daarom moesten de besprekingen voortdurend worden toegespitst op het doel van de studie, namelijk de uitwerking van een planologisch instrument (met zijn beperkingen) om alle toekomstige projecten die binnen de perimeter kunnen worden ontwikkeld te omkaderen.

Perimeter en gemeentegrenzen, relevantie van het BBP-instrument

Het feit dat het BBP niet kan worden uitgebreid tot het zuiden vanwege de gemeentegrens met Sint-Joost-tenNode, heeft de uitwerking van het BBP en zijn MER aanzienlijk bemoeilijkt. Een gezamenlijke wijzigingsprocedure voor de BBP’s 19 en 26, met opmaak van een richtplan van aanleg voor het hele betrokken gebied dat de gemeentegrenzen overschrijdt, zou de coherentie hebben gegarandeerd op schaal van de wijk (hele huizenblokken in plaats van slechts delen ervan) en beter hebben beantwoord aan de ambities van het BBP voor de zone en de daaraan verbonden gewestelijke uitdagingen.

De onzekerheid over de intenties van de buurgemeenten heeft de analyse van de effecten echter bemoeilijkt: we moesten voortdurend uitgaan van hypothesen. De analyse van de programmatorische en ruimtelijke alternatieven werd uitgevoerd voor alle huizenblokken, dus ook de delen buiten de perimeter van het BBP, maar het BBP moet zich uiteraard beperken tot zijn eigen perimeter. De analyses van de voorschriften van het BBP werden strikt beperkt tot de grenzen van de betrokken perimeter.

Grootte en kenmerken van de perimeter

Het BBP heeft slechts betrekking op 3 (delen van) huizenblokken die bovendien de specifieke stedelijke typologie vertonen van huizenblokken-gebouwen. Die kenmerken maakten het moeilijk om zich los te maken van de operationele realiteit (bv: niveauverschillen, organisatie van het busstation, vloeroppervlakten ...) en zich louter te concentreren op de strategie, het voorwerp van een BBP. Deze ‘noodzaak’ tot operationalisering is echter zeer tijdrovend en het tijdsbestek voor de wijziging van het BBP was te kort om de operationele elementen te onderzoeken volgens de regels van de kunst. Hoewel het ‘louter’ strategische beslissingen betreft, moesten ze worden genomen zonder de zekerheid dat er nog andere mogelijkheden bestaan (er was geen tijd om echte uitvoerbaarheidsstudies te realiseren).

Vooral voor de mobiliteitsuitdagingen kunnen we vanwege de beperkte perimeter van het BBP geen standpunt innemen over de specifieke configuraties die daarmee verband houden. Elke beslissing die wordt genomen voor de perimeter moet ten behoeve van de coherentie immers ook daarbuiten kunnen gelden. Het BBP 19 kan daarvoor echter geen enkele garantie bieden (bv: locatie van het gedecentreerde busstation).

Technische onzekerheden

Enkele van de voorgestelde alternatieven bevatten elementen waarvan we de impact in het stadium van een BBP moeilijk kunnen ramen aangezien ze afhangen van technische overwegingen. Om een voorbeeld te geven: de effecten van een gewijzigde rooilijn ten aanzien van de bestaande structuren, of de operationele uitvoerbaarheid van een busstation met een alternatieve configuratie (met name aarvormige plaatsen) ten aanzien van de bestaande structuren en de toekomstige busafmetingen zijn moeilijk te ramen.

Hoofdstuk I / Afdeling 0 Algemene methode / p. 9

Verwerving en onnauwkeurigheid van de gegevens

Het verzamelen van gegevens over de bestaande situatie bleek ingewikkeld te zijn. Sommige gegevens konden pas vrij laat in het proces worden verkregen, waardoor de tot dan toe gebruikte "basisgegevens" werden gewijzigd. In de loop van het proces kon de SAU, die door de regionale regering was aangewezen als de pilot van het Northern Territory-team, een rol spelen bij het centraliseren van verzoeken en informatie, teneinde de transparantie te verbeteren en de overdracht van gegevens tussen de verschillende actoren te waarborgen. Deze aanwijzing kwam echter een beetje laat in het proces (tijdens de vaststelling van de alternatieven): de vanaf dat moment verstrekte gegevens zouden de voorstellen en analyses anders hebben doen evolueren.

Bovendien bestonden er verschillende gegevens over de huizenblokken die worden gedekt door het BBP: gegevens over wat wordt toegelaten door het BBP, de bestaande gegevens in de SV’s voor de bouw van de projecten en de gegevens over de opmetingen in de bestaande toestand (in het kader van de lopende projecten). Daarbij kwam dat de gegevens over de perceelgrenzen en de grondinname van de bebouwing voor het huizenblok North Galaxy verschilden naargelang ze werden overgemaakt door BruGIS / CadGIs of werden ontleend aan de plannen van het SV. Pas aan het einde van het proces werd uitgemaakt welke ‘officiële’ cijfers zouden worden gebruikt voor de uitwerking van het ontwerp-BBP (de voorschriften). De cijfers gebruikt voor de diagnose, de analyse van de alternatieven en de opmaak van het BBP stemmen dus niet volledig met elkaar overeen. In het kader van een ruimer BBP zouden deze moeilijkheden geen al te groot probleem vormen, maar hier gaat het slechts om de beperkte en specifieke perimeter van het BBP 19. Uiteindelijk werden de cijfers vermeld in de voorschriften afgerond, wat een en ander bevestigt.

Tijdsbestek van het proces

De duur van het proces voor de uitwerking van het BBP impliceert een geleidelijke evolutie van de context waarin het zich situeert: de intentie van de gemeente Sint-Joost-ten-Node om het BBP 26 al dan niet te wijzigen, lopende projecten in het gebied, enz. Ook de beschikbare gegevens voor de diagnose die wordt gepresenteerd in hoofdstuk II (gegevens LB ...) kunnen tijdens de studieperiode zijn geëvolueerd. De diagnose werd opgemaakt met de gegevens die toen beschikbaar waren. In de mate van het mogelijke werden de gegevens geüpdatet, maar bij de lezing van het rapport moet rekening worden gehouden met deze moeilijkheid.

Ook de tijdscontext van het BBP, en de tijdscontext van de andere projecten heeft de uitwerking van het BBP en het MER beïnvloed. Omdat het dossier op korte termijn moet worden goedgekeurd, ook al neemt het proces veel tijd in beslag (onder meer voor de voormelde technische kwesties en de deelname van de verschillende betrokken actoren in dit gewestelijke knooppunt), moest het werk op korte tijd worden uitgevoerd waardoor we geen optimale kwaliteit konden garanderen (weinig tijd voor nalezing, belangrijke last-minute wijzigingen, tegelijkertijd werken aan de documenten in plaats van na elkaar ...).

Nauwkeurigheid van de evaluatie

Zowel de methodologie, de structuur als de grond van de evaluatie werden uitgewerkt ten aanzien van het planologische karakter van het voorwerp van het MER, het BBP. De moeilijkheid hierbij was de bepaling, voor elk milieucriterium, van een zekere evaluatiegraad die afhangt van de nauwkeurigheid van het ontwerp-BBP en van de keuzes die erin worden gemaakt (strategisch of verordenend luik, enz.). Tijdens het hele proces bleef de vraag naar de relevantie van het omkaderen van bepaalde aspecten via het BBP en soms moesten we concluderen dat bepaalde elementen beter zouden worden omkaderd in het stadium van de projecten en de vergunningsaanvragen.

0 Algemene methode / p. 10
Hoofdstuk I / Afdeling

Afdeling 1.

BESCHRIJVING VAN DE STRATEGISCHE DOELSTELLINGEN VAN HET PLAN

Hoofdstuk I / Afdeling 1. Strategische doelstellingen van het plan / p. 11

CONTEXT VAN HET BBP

Het BBP 19 voor de huizenblokken 68- 71-72 “Westwijk van het Noordstation”, goedgekeurd in 1978 en gewijzigd in 1995, dekt de perimeter van het CCN dat grenst aan het Noordstation, een belangrijke gewestelijke en nationale mobiliteitspool. Het omvat ook de openbare ruimten ten noorden (Solvayplein) en ten westen (Bolivarplein) van het station en het CCN en de gebouwen die errond staan. Ook de Vooruitgangsstraat valt binnen de perimeter, evenals het internationale busstation. Het Noordplein (ten zuiden van het CCN) en de omliggende gebouwen zijn gelegen op het grondgebied van de gemeente Sint-Joost-ten-Node en worden dus niet gedekt door het BBP 19. Het CCN-gebouw is nauw verbonden met het station zelf en omvat in zijn lage deel belangrijke verkeersruimten (premetrolijnen, busstation van de MIVB en De Lijn).

De pool van het Noordstation is een scharnierruimte in de gewestelijke stedelijke structuur, zowel op morfologisch als op programmatorisch vlak en op het vlak van mobiliteit. Het is een grootstedelijke centraliteit en een nationaal en internationaal zenuwcentrum van het verkeer. Het GPDO erkent deze pool dan ook als een prioritaire ontwikkelingsas die tegemoetkomt aan verkeers- en ontwikkelingsuitdagingen op gewestelijke schaal, maar ook aan milieu-uitdagingen en uitdagingen op het vlak van leefomgeving op lokale schaal.

Bij de opmaak van dit rapport was het CCN-gebouw ontruimd en werd op initiatief van een privéconsortium een afbraakvergunning uitgereikt. Een project voor de wederopbouw van het gebouw wordt momenteel onderzocht. Ook voor huizenblok 71 waar de kantoren van Proximus zijn gevestigd en dat voor een deel is opgenomen in deze wijziging van het BBP loopt er een herontwikkelingsproces. Overigens voert het Gewest een meer algemene bezinning over een stadsontwikkeling in samenhang met het Territorium Noord waarbij de gewestelijke doelstellingen die zijn aangegeven in de strategische documenten (GPDO, Good Move, Groen en Blauw Netwerk) worden toegepast en de ontwikkeling van de stationswijk coherent is met de verschillende projecten in de omgeving (SVC Citroën-Vergote – SVC Brabant-Noord-Sint-Lazarus - RPA Maximiliaan – Duurzame Wijkcontracten). Ook de openbaarvervoersnetten zullen op middellange en lange termijn aanzien evolueren met de ontwikkeling van Metro Noord of de studies over nieuwe tramtracés (Belgica – Centraal Station via Bolivar en het Noordstation, NOH-Rogier), de bezinningen over het busstation (zoeken naar nieuwe oplossingen voor de buslijnen van de MIVB en De Lijn, installatie van oplaadpalen voor elektrische bussen, verplaatsing van het internationale busstation).

STRATEGISCHE DOELSTELLINGEN

Het huidige BBP kunnen we als verouderd beschouwen. Het strookt niet meer met de uitdaging van een algemene ontwikkeling van de stationspool en van transitie naar een belangrijk intermodaal knooppunt, noch met de uitdaging om een levendige wijk te ontwikkelen die zowel voldoet aan grootstedelijke als aan lokale behoeften. Door het BBP te wijzigen kunnen de ambities voor dit gebied worden versterkt, kunnen meer kwaliteitsvolle openbare ruimten worden ingericht en kan worden gezorgd voor een optimale en geïntegreerde organisatie van de verplaatsingen. Ook kan worden gezorgd voor een grotere functionele gemengdheid en een beter evenwicht tussen de functies, wat nodig is om te voldoen aan de geïdentificeerde uitdagingen. Daarnaast kan de perimeter van het BBP worden herzien om ook de site van het voormalige Medical Center en de directe omgeving van het Solvayplein te integreren en de coherentie tussen de openbare ruimten en de stedelijke structuren te verbeteren. De procedure tot wijziging van het huidige BBP zou dus kunnen bijdragen tot een coherent stedenbouwkundig kader waarbij de afbraak-wederopbouw van het CCN-gebouw zou worden opgenomen in de globale denkoefening voor het Territorium Noord en in overleg met alle lokale actoren en actieve operatoren in het gebied. De geformuleerde doelstellingen zijn erop gericht om de stationspool om te vormen tot een levendige wijk die dit grootstedelijke intermodale centrum verbindt met de omliggende wijken. De structuur van de openbare ruimten die zowel de grote mobiliteitsuitdagingen integreren als de verschillende gebruiksdoeleinden en milieuvoorwaarden, lijkt een belangrijk element om de ontwikkeling van deze grootstedelijke pool te begeleiden. Dichtheid, gemengdheid, kwaliteit van de openbare ruimten, mobiliteit, milieukwaliteit, circulariteit en ten slotte identiteit en esthetica zijn de grote elementen waarop de herbepaling van de stedenbouwkundige kaders van de stationspool moet worden gebaseerd.

Hoofdstuk I / Afdeling 1. Strategische doelstellingen van het plan / p. 12

Vandaar ook de volgende richtlijnen:

De algemene doelstellingen van de aanpassing van het PBP zijn dan ook te zorgen voor een gemengd gebruik van het gebied, te garanderen dat rekening wordt gehouden met milieu- (circulariteit, klimaat) en erfgoedkwesties, en ten slotte bij te dragen aan een geïntegreerde aanpak van het stationscentrum, gericht op het vergemakkelijken van intermodaliteit, multifunctionaliteit en de milieukwaliteit van de openbare ruimten.

De aanpassing van het BBP heeft ook tot doel een samenhangend stedelijk kader te vormen dat de lopende projecten en visies en strategieën ontwikkeld in Territorium Noord samenbrengt, in overleg met alle plaatselijke actoren die op het grondgebied actief zijn.

De specifieke doelstellingen van de aanpassing van BBP nr.19 luiden als volgt:

1. Betreffende de bestemmingen, bevestig de roeping van het oorspronkelijke BBP (niet gerealiseerd) met betrekking tot de totstandbrenging van een gemengde wijk, en een beter geïntegreerde multimodale hub.

2. Betreffende de vorm van de bebouwing, erken het materiële erfgoed van de hoogbouw van het Manhattan Plan, terwijl de aansluiting met de openbare ruimte wordt verbeterd, het "backstreet"-effect wordt vermeden en de stedelijke en landschappelijke integratie van het Noordstation wordt gewaarborgd.

3. Bretreffende de openbare ruimten, zorg voor samenhang van alle openbare ruimten en voor een evenwicht in de ontwikkelingen tussen de intermodaliteit van de site (openbaarvervoersknooppunt en actieve vervoerswijzen), de activering van de periferie maar ook de strijd tegen de gevolgen van de opwarming van de aarde (hitte-eilanden, grote ondoordringbaarheid van het gebied, enz.)

4. Bettreffende het milieu, maak de openbare ruimten veerkrachtiger door middel van begroeiing, geïntegreerd waterbeheer en het inachtnemen van het hitte-eilandfenomeen. Versnel de duurzame transitie van bestaande gebouwen.

Hoofdstuk I
Afdeling 1.
13
/
Strategische doelstellingen van het plan / p.

HOOFDSTUK I: Presentatie van het ontwerpplan

Afdeling 2.

SAMENVATTING VAN DE INHOUD VAN HET PLAN

Hoofdstuk I / Afdeling 1. Strategische doelstellingen van het plan / p. 14

INHOUD EN UITDAGINGEN VAN HET BBP

Het ontwerp-BBP omvat verschillende delen die elkaar aanvullen:

- een inleidend en diagnostisch luik, het "verslag" genoemd; en

- een strategisch luik, "toelichting" genaamd;

- een reglementair luik (boek met grafische en letterlijke voorschriften);

- begeleidende maatregelen.

INLEIDENDE EN STRATEGISCHE LUIK: HET VERSLAG EN DE TOELICHTING

Dit luik omvat een inleiding, een analyse van de bestaande rechtssituatie, een analyse van de bestaande feitelijke situatie en de te verwachten situatie.

Een toelichting voorafgaand aan de voorschriften bevat ook de redenen die hebben geleid tot de wijziging van het BBP, de inhoud van de voorschriften en een planboek van de bestaande situatie.

REGELGEVEND LUIK

Het regelgevend luik omvat de plannen en de letterlijke voorschriften.

Twee plannen illustreren het BBP:

- Het bestemmingsplan van de stadsgelijkvloers;

- Het bestemmingsplan van de stationgelijkvloers

Zij zijn weergegeven op de volgende bladzijden.

Hoofdstuk I / Afdeling 1. Strategische doelstellingen van het plan / p. 15
Hoofdstuk I /
1.
16
Afdeling
Strategische doelstellingen van het plan / p.
Hoofdstuk I / Afdeling 1. Strategische
van het plan / p. 17
doelstellingen

De letterlijke voorschriften behorende bij de grafische voorschriften hebben de volgende inhoud:

- Algemene voorschriften

Het eerste deel van de letterlijke voorschriften bevat de algemene voorschriften die van essentieel belang zijn voor het bereiken van de doelstellingen van het plan en die van toepassing zijn op alle bouwwerken, verbouwingen en ontwikkelingen die binnen de grenzen van het plan worden uitgevoerd. Deze voorschriften beantwoorden hoofdzakelijk aan de kwaliteitsdoelstellingen van de gebouwen en de openbare ruimten, aan de doelstellingen inzake erfgoed, esthetiek en landschap en tenslotte aan de milieudoelstellingen van het plan;

- Specifieke voorschriften voor openbare ruimten

De belangrijkste punten van deze voorschriften hebben betrekking op de multifunctionaliteit van deze ruimten en met name op de integratie van het openbaar vervoer, de vergroening (met inbegrip van het onderhoud/de aanleg van open ruimten waar mogelijk) en de activering van de openbare ruimten. Bovendien wordt in de voorschriften rekening gehouden met het feit dat de openbare ruimte als een samenhangend geheel moeten worden ontwikkeld met als doel het stationsknooppunt als multimodaal platform te versterken.

De meeste openbare ruimten zijn onderdeel van een wegengebied. Op deze gebieden zijn de voorschriften enerzijds bedoeld om te voldoen aan de beginselen van het huidige regionale mobiliteitsplan en anderzijds om milieudoelstellingen te verwezenlijken, met name op het gebied van duurzaam gebruik van materialen, vegetatie en waterbeheer.

Het Bolivarplein is het voorwerp van bijzondere voorschriften betreffende de gebieden in overdruk die de bijzondere voorschriften van de wegengebieden specificeren. Voor het vooruitgangsgebied gelden bijzondere voorschriften buiten de verkeerszone. Ten slotte wordt de (bestaande) parkzone Albert II, zoals bepaald in het GBP, gehandhaafd.

- Bijzondere voorschriften betreffende de bebouwbare gebieden

Het derde deel van de letterlijke voorschriften bevat de bijzondere voorschriften met betrekking tot de bouwzones. Het gaat om de specifieke voorschriften voor de 4 zones van het plan die overeenstemmen met de bouwblokken voor hun Schaarbeekse gedeelte, alsook om de bijzondere voorschriften betreffende de gebieden in overdruk. De laatse, preciseren de voorschriften voor bepaalde delen van de bouwzones waarvan de roeping essentieel is voor de algemene samenhang van het plan.

De 4 bouwzones zijn als volgt:

o Zone A - bouwblok 68 wordt begrensd door de Simon Bolivarlaan, de Koning Albert II-laan, het Solvayplein en de Vooruitgangsstraat.

o Zone B - een deel van bouwblok 71 wordt begrensd door de Koning Albert II-laan, de Simon Bolivarlaan, de Vooruitgangsstraat en de gemeentegrens met de gemeente Sint-Joost-tenNode.

o Zone C - een deel van bouwblok 72 dat wordt begrensd door het deel van het Solvayplein in het verlengde van de Kwatrechtstraat en de doorgang onder de sporen, de oude Vooruitgangsstraat die langs het Noordstation loopt aan de westelijke gevel, de gemeentegrens met de gemeente Sint-Joost-ten-Node en de Vooruitgangsstraat. Zone C is verdeeld in een C1-zone, die overeenkomt met de ruimte die wordt ingenomen door het CCN-gebouw (waarvoor op 9 mei 2022 een afbraakvergunning is verkregen en waarvan de uitvoering is aangevat), en een C2zone, die bestaat uit het deel van het Solvayplein dat grenst aan de bebouwde kom en de noordelijke toegangshelling tot de ondergrondse parkeergarage

o Zone D - een deel van bouwblok 72, dat de ruimte omvat die wordt ingenomen door het gebouw van het Noordstation en de spoorwegzone.

Voor elk van de zones worden bestemmingen indelingen en afmetingenvastgesteld. Maximale oppervlakten en verdeling van functies (bestemmingen) in de zone zijn uitgedrukt als percentage van het bebouwd vloeroppervlak.

In de zones A, B en C1 beantwoordt de verdeling van de functies aan de doelstellingen m.b.t de gewenste ‘mix’ die door gewestelijke en gemeentelijke overheden is bepaald.

Hoofdstuk I
p. 18
/ Afdeling 2. Samenvatting van de inhoud van het plan /

De huisvestingsfunctie wordt in de omtrek versterkt ten opzichte van het oorspronkelijke BBP, aangezien een minimumpercentage moet worden bereikt. Tegenover deze functie staan gediversifieerde economische functies: kantoren, winkels en productieve activiteiten van immateriële goederen en/of ambachten. De kantoorfunctie heeft een vrij hoge minimumdrempel in de programmering. Dit is om een kantoorcentrum van regionaal belang in stand te houden, zoals beoogd in de PRDD en de PRAS. Functies die grote stromen zware voertuigen genereren, zoals groothandel en activiteiten die materiële goederen produceren, zijn uitgesloten om de druk op de wegen in de buurt van het station niet te verhogen. Tenslotte zijn ook hotels toegestaan.

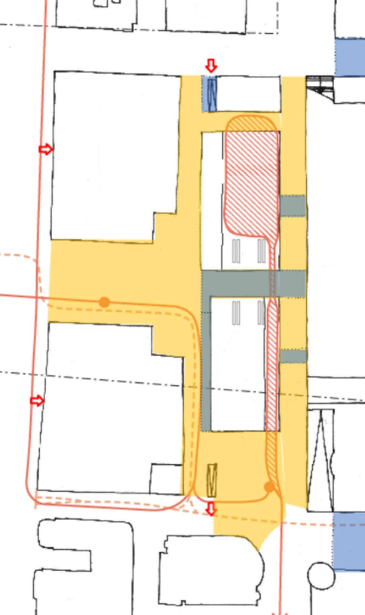
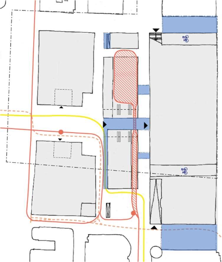
Zone C2 kan op de 'gelijkvloers straat' worden ingenomen als ruimte voor het keren van de bussen die het station bedienen. Er wordt gestreefd naar beperking van het ruimtebeslag van deze keerlus om het gebied zoveel mogelijk vrij te maken voor ander gebruik. Om kwalitatieve publieke activiteit aan alle kanten van deze ruimte te garanderen, alswel de integratie ervan in de stedelijke routes bij de 'gelijkvloers straat' als bij de 'gelijkvloers station', kan een voorziening van openbaar belang of openbare dienstverlening worden gebouwd, met name boven het buskeerpunt. Het dak van dit gebouw zou toegankelijk kunnen zijn en aansluiten bij de installatiefunctie.

Het onbebouwde deel van zone C2 moet worden ontwikkeld als groene openbare ruimte met open grond.

Met betrekking tot zone D (spoorwegstation) en spoorwegzone wijzigen de BBP-voorschriften de GBPvoorschriften niet in termen van gebruik, d.w.z. de administratieve zone en spoorwegzone, zonder verdere verduidelijking.

Wat de bouwhoogte betreft, wordt voor de zones A en B gestreefd naar het volgen van het Manhattanplan: de bestaande bouwhoogten moeten globaal worden gehandhaafd en renovatie wordt aangemoedigd met het oog op circulair gebruik. De maximaal toegestane hoogte in deze zones is 110 m (hoogte onder kroonlijst). De overige toegestane bouwhoogten in deze zones zijn beperkter (maximaal 50 m) om een breuk te creëren tussen de hoge gebouwen, de rest van het bouwblok en de naburige bouwblokken.

Voor de C1-zone zijn de maximaal toegestane bouwhoogten identiek aan die van de hoge gebouwen in de A- en de B-zone. Voor de zone C2 vormen de toegestane afmetingen een breuk met de afmetingen in de zones C1 en A. Zij moeten een overgang mogelijk maken met de omringende hoge gebouwen (in zone C1 en ter hoogte van de Résidence Nord, Place Solvay).

Voor zone D (het Noordstation) moeten eventuele toegestane aanpassing en van de omvang van het station de erfgoedkenmerken van het station en de op het plan aangegeven verplichte uitzichten respecteren.

Wat de inplanting betreft, zijn de principes voor de zones A en B bedoeld om de voetafdruk van nieuwe projecten in deze zones te verkleinen. Het is de bedoeling deze ruimtes te herbestemmen voor beplanting, bouwdiensten en activering van de begane grond met het oog op duurzaamheid.

De C1-zone is verdeeld in twee zones waar bebouwing is toegestaan. Deze twee zones liggen symmetrisch aan weerszijden van de hoofdingang van het Noordstation. Tussen deze twee gebieden ligt de multimodale hub en de geplande benedenverdieping ter hoogte van het station, die overeenkomt met de zone openbare ruimte op particuliere grond in het bijbehorende bestemmingsplan.

Zone C2 is bestemd voor een kwalitatief publiek gebruik: zij moet de bouw mogelijk maken van een voorziening naast de buskeerplaats, indien de gecombineerde ruimte van de buskeerplaats en de stopplaats de ontwikkeling van een kwalitatieve publieke ruimte toelaat, die door de buurt kan worden toegeëigend. De toegestane bouwruimte (1.900m²) moet de ontwikkeling van een grootschalige voorziening mogelijk maken, evenals de integratie van de ruimten die nodig zijn voor de aansluiting op de verschillende niveaus van de aangrenzende openbare ruimten: het niveau van de openbare ruimten (gelijkvloers straat) aan de kant van de Vooruitgangsstraat en het Solvayplein, het gelijkvloers stationsniveau aan de kant van de CCN en de hangende straat (Vooruitgangs-passage). Afhankelijk van de inname van de buskeerplaats en de parkeergarage van het CCN-gebouw, moeten de vrijgekomen grondoppervlakken worden ingericht als groene openbare ruimte.

Tot slot zijn de innamen in zone D hoofdzakelijk gericht op de handhaving van de bestaande situatie.

Hoofdstuk I / Afdeling 2. Samenvatting van de inhoud van het plan / p. 19

Voor de zones in overdruk van toepassing op de bebouwbare gebieden zijn de voorschriften alsvolgt:

o De multimodale hub omvat op de ‘gelijkvloers straat’ de delen van het C1-gebouw die toegankelijk moeten blijven voor de functies van het openbaar vervoer, namelijk de zone in de as van de centrale ingang van het station (niet bebouwbaar vanaf het Gelijkvloers stationniveau) en de zone langs het spoor onder de ondergrondse weg (voormalige Vooruitgangsstraat). de multimodale hubzone omvat ook de ruimte tussen dit gebouw en het stationsgebouw (ondergronds spoor) en ten slotte het deel van het Solvayplein dat nodig is om de bussen te laten keren. De voorschriften voor deze zone zijn gericht op een optimale ontwikkeling voor het openbaar vervoer, namelijk: de organisatie van de busterminals van De Lijn en de MIVB, de werking van het station (gebruikers- en logistieke toegang, kiss and ride, taxi's) en het gebruik door actieve vervoerswijzen (toegang en fietsoversteekplaatsen, toegang voor voetgangers), met inbegrip van de technische en logistieke ruimten die nodig zijn voor de vervoerders.

o De bouwvrije zones1 betreffen de ruimten tussen de grens van het openbaar domein en de gevels van de gebouwen. Het gaat om de bouwblokken 71 en 68. De voorschriften hebben tot doel de aanwezigheid van vegetatie in deze zones te handhaven, maar ook bij te dragen tot de kwaliteit van de openbare ruimten waaraan zij grenzen (Koning Albert II-laan, Simon Bolivarplein, Vooruitgangsstraat) door actieve mobiliteit aan te moedigen en bij te dragen tot de activering van de begane grond.

o De zones voor publiek gebruik op particulier terrein betreffen de openbare verkeersruimten in zone C1, maar ook de ruimte tussen de zones C en D. Zij zijn vooral bedoeld om de publieke toegang tot het station en de verbindingen tussen het station en andere haltes van het openbaar vervoer in stand te houden. De voorschriften die hier van toepassing zijn, moeten ervoor zorgen dat deze ruimten toegankelijk zijn voor PBM en actieve vervoerswijzen.

De volgende samenvattingen geven voorschriften voor bepaalde voorzieningen die worden opgelegd in de gebieden waarop zij betrekking hebben:

o de verticale verbindingen beogen de nodige verbindingen op te leggen tussen de gelijkvloers straat en de gelijkvloers station en met de omliggende openbare ruimten

o de verplichte visuele openingen omvatten de openingen in de bebouwde kom die nodig zijn voor de aanleg/instandhouding van landschappelijke assen met erfgoedwaarde;

o de bouwhoogtes specificeren de maximummaten die voor de verschillende zones zijn toegestaan.

o De onderdoorgang Kwatrecht is vooral bedoeld om de ontwikkeling ervan te verbeteren door een groter gevoel van veiligheid te garanderen dan in de bestaande situatie.

BEGELEIDENDE MAATREGELEN

Dit onderdeel omvat een reeks "aanbevelingen", die de intenties van het PPAS zijn, maar niet bindend zijn. Het is de bedoeling dat er in de projectfasen rekening mee wordt gehouden (de aanvrager moet dit motiveren in de toelichting bij de vergunningen en/of in de effectbeoordelingen).

Deze maatregelen zijn gedeeltelijk afgeleid van de aanbevelingen die in de verschillende stadia van de milieueffectbeoordelingen (MEB) zijn gedaan.

1 Er zij op gewezen dat de voorschriften voor de beperkingszones van het BBP verschillen van die van de GSV. In dit verband bepalen de algemene bepalingen van dit BBP dat de voorschriften van de geldende regionale en gemeentelijke bepalingen op het ogenblik van de afgifte van vergunningen en certificaten voor projecten binnen de perimeter van BBP nr. 19 alleen van toepassing zijn op het door dit plan bestreken grondgebied voor zover zij niet in strijd zijn met de voorschriften van dit plan.

Hoofdstuk
20
I / Afdeling 2. Samenvatting van de inhoud van het plan / p.

MILIEUEFFECTENRAPPORT (MER)

VAN HET BIJZONDER BESTEMMINGSPLAN NR. 19

"WESTWIJK VAN HET NOORDSTATION"

HOOFDSTUK II: Diagnose van de bestaande toestand en iden fica e van de uitdagingen

Gemeente Schaarbeek

Juni 2022

HOOFDSTUK I – PRESENTATE VAN ONTWERPPLAN

Afdeling 0. Algemene methodologie

Afdeling 1. Beschrijving van de strategische doelstellingen van het plan

Afdeling 2. Samenva ng van de inhoud van het plan

HOOFDSTUK II – DIAGNOSE VAN DE BESTAANDE TOESTAND EN IDENTIFICATIE VAN DE UITDAGINGEN

Afdeling 1. Methodologie voor het vaststellen van de bestaande toestand

Afdelingen 2-3-4. Overzicht van de rechtstoestand en van de feitelijke toestand en waarschijnlijke evolu e

HOOFDSTUK III – IDENTIFICATIE VAN DE MILIEUEFFECTEN

Afdeling 1. Methodologie

Afdeling 2. Presenta e van de redelijke alterna even en van de geselecteerde evalua emethode

Afdeling 3. Effectenbeoordeling

A/ PROGRAMMATORISCHE ALTERNATIEVEN

B/ RUIMTELIJKE ALTERNATIEVEN

C/ ONTWERP VAN BBP

Afdeling 4. Overzicht van specifieke milieueffecten

HOOFDSTUK IV - CONCLUSIE, AANBEVELINGEN EN OPVOLGINGSMAATREGELEN

Afdeling 1. Presenta e van de gekozen oplossingen

Afdeling 2. Aanbevelingen

Afdeling 3. Opvolgingsmaatregelen

Hoofdstuk II / p. 22 INHOUDSTAFEL - MER

LIJST VAN DE AFKORTINGEN

bMa bouwmeestermaîtrearchitecte

BAF Biotoop-oppervlaktefactor

CCN Communica ecentrum Noord

BWLKE Brussels Wetboek van Lucht, Klimaat en Energiebeheersing

SVC Stadsvernieuwingscontract

BKG Broeikasgas

GFR Gewestelijke Fietsroutes

PACE Plan Energie Lucht Klimaat

GPAP Gemeentelijk Parkeerac eplan

GemPDO Gemeentelijk Plan voor Duurzame Ontwikkeling

GemMP Gemeentelijk Mobiliteitsplan

PED Posi ve Energy District

PLAGE Plan voor Lokale Ac e voor het Gebruik van Energie

BBP Bijzonder Bestemmingsplan

GBP Gewestelijk Bestemmingsplan

GPDO Gewestelijk Plan voor Duurzame Ontwikkeling

GPCE Gewestelijk Programma voor Circulaire Economie

GPBP Gewestelijk Parkeerbeleidsplan

BHG Brussels Hoofdstedelijk Gewest

GemSV Gemeentelijke Stedenbouwkundige Verordening

GSV Gewestelijke Stedenbouwkundige Verordening

MWS Mul modale Wegenspecialisa e

Hoofdstuk II / p. 23 INHOUDSTAFEL - HOOFDSTUK II RUIMTELIJKE ORGANISATIE 32 Zachte mobliteitsnetwerken............................................................................ 32 Ecologische netwerken 33 Technische netwken 34 Structuur van de bebouwde ruimten 36 Structuur van de open ruimten…..................................................................... 38 Stedelijk landschap en symbolische richtpunten 40 STEDELIJKE DYNAMIEK 42 Bevolking 43 Huisves ng…...................................................................................................... 44 Voorzieningen en handelszaken 46 Economische ac viteiten en transi e 48 Ac vering van de openbare ruimte via de benedenverdiepingen 50 MENSELIJKE OMGEVING 52 Geluid en trillingen…........................................................................................ 52 Kwaliteit van de openbare ruimten voor verplaatsing en verblijf 54 Luchtkwaliteit 55 Veiligheid 56 VERPLAATSINGEN 57 Uitvoering van de MWS 57 Ac eve verplaatsingswijzen 60 Openbaar vervoer 63 Personenwagens 66 Vrachtwagens en leveringen............................................................................ 68 Parkeren 69 Mobiliteitsdiensten en intermodaliteit........................................................... 71 LEEFMILIEU EN KLIMAAT 72 Microklimaat 72 Bodem 74 Ecologisch netwerk…......................................................................................... 75 Water................................................................................................................. 77 Energie 78 CIRCULARITEIT 79 Circulariteit van de materialen / Inkomende materialen................................ 79 Circulariteit van de stromen 80 Modulariteit van de ruimten 81
Conclusie 82 Interac es tussen de criteria 82 Overzichtstabel van de rechts–, feitelijke en tenenciële situa e 83 Synthese van de uitdagingen 84 AFDELING 1. METHODOLOGIE 24 Context van het BBP………………………………………………………………………………………...……….. 25 Toegepaste analysemethode 27 AFDELINGEN 2-3-4. DIAGNOSE VAN DE BESTAANDE EN TENDENTIELE SITUATIE 29 Feitelijke en rechts-toestand, verwachte evolu e van de onveranderde situa e en iden fica e van de uitdagingen………………………………………………………………………………... 30 Geldende regelgeving 31

AFDELING 1. Methodologie voor het vaststellen van de bestaande toestand

HOOFDSTUK II: Diagnose en iden fica e van de uitdagingen

Dit hoofdstuk hee tot doel de milieuproblemen te iden ficeren die voortvloeien uit de bestaande en toekoms ge situa e. Het is samengesteld uit verschillende delen:

· een methodologische deel, dat herinnert aan de context van het BBP en de reikwijdte van de studie, en de verschillende criteria beschrij die in aanmerking worden genomen voor de diagnose (waarbij de milieuthema's opgenomen in punt 7° van bijlage C van het CoBAT anders gestructureerd zijn), evenals als de elementen waarmee rekening is gehouden bij het opstellen van het trendscenario

· Een deel gewijd aan de diagnose zelf, dat wordt voorafgegaan door een lijst van de van kracht zijnde plannen en reglementen en gevolgd door een samenva ng van de criteria en de interac es tussen de criteria.

De diagnose werd in oktober 2021 afgerond . Sommige toevoegingen zijn op een later jds p gedaan in verband met de ming van het proces (bv. verduidelijking van de AWZI op het terrein van het Medical Center)

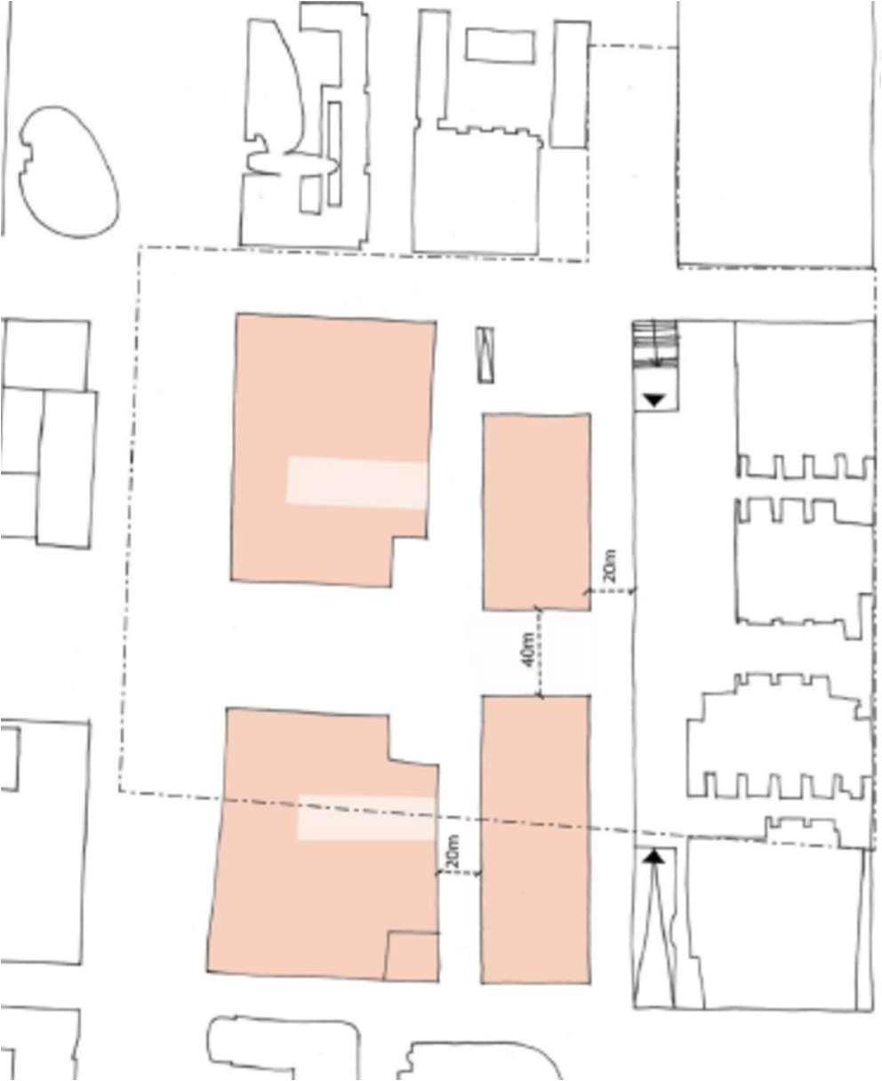
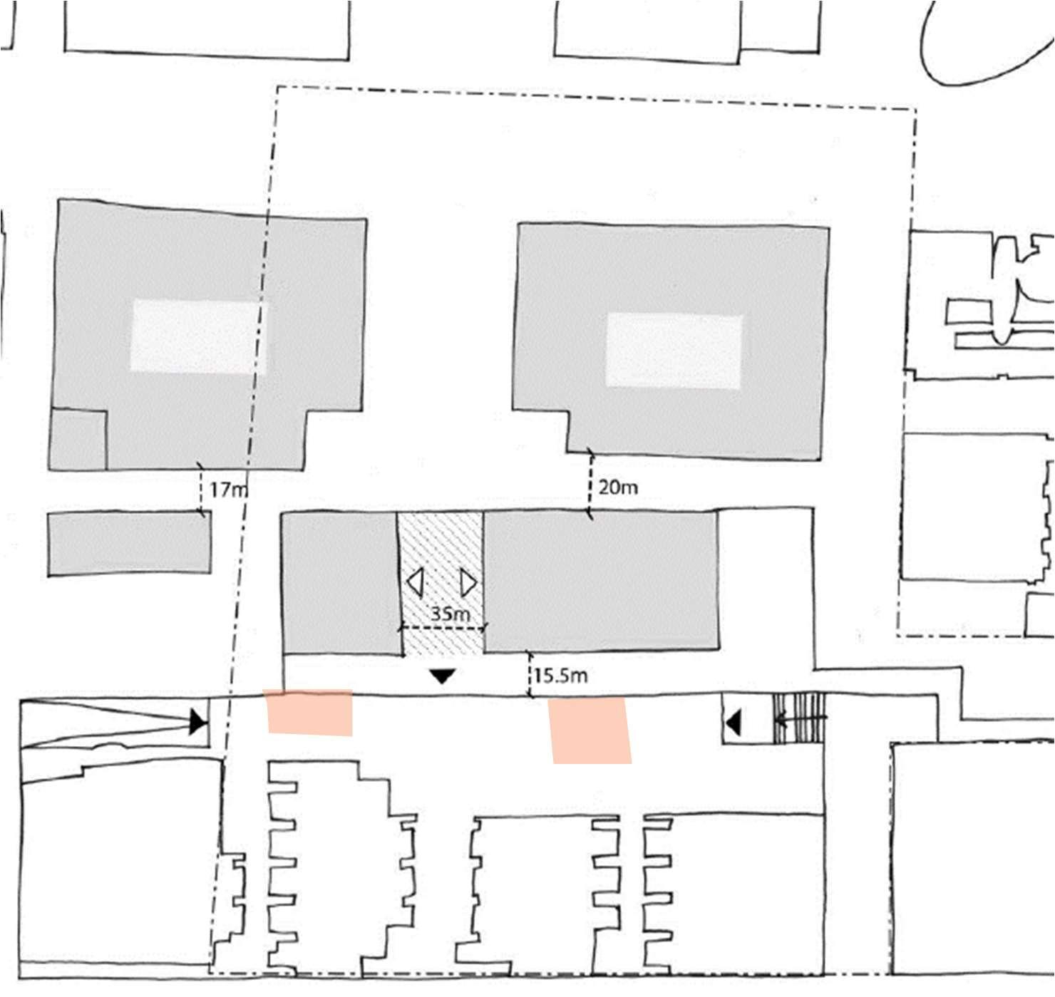
Omtrek van de BBP

Het huidige BBP (in het roze op de bijgevoegde tekening) wordt in het westen en zuiden begrensd door de gemeentegrenzen en in het noorden door het Solvayplein. Het hee een oppervlakte van bijna 4,9 hectare en omvat de stadsblok 68 (North Galaxy) in zijn geheel en een deel van de blokken 71 (Proximus) en 72 (CCN). Het omvat ook het Simon Bolivarplein en een deel van de Albert II-laan, binnen de gemeentegrenzen.

In het kader van de wijziging van het BBP zal de perimeter naar het noorden en het oosten worden uitgebreid (in roze s ppellijnen op het bijgevoegde schema) zodat het gehele Solvayplein (tot aan de gevels), een deel van de Vooruitgangstraat (tot aan het einde van het voormalige Medisch Centrum), het overdekte deel van de Quatrechtstraat en het gehele CCN en het Noordsta on binnen de gemeentegrenzen komen te liggen. Deze perimeters worden op een grotere schaal voorgesteld op de volgende bladzijden.

Context van het BBP

Het BBP is gelegen in het hart van het Noordelijk Territorium, dat momenteel door het Gewest wordt bestudeerd, met een coherente stedelijke ontwikkelingsdoelstelling: toepassing van de gewestelijke doelstellingen uiteengezet in de strategische documenten (GPDO, Good Move, Green and Blue Meshes, enz.) maar ook aanslui ng bij de vele verschillende regelgevende en opera onele projecten die in de omgeving aan het werk zijn (CRU Citroën-Vergote en Brabant-St-Lazarre, PAD Maximilien, Duurzame Buurtcontracten, Max-sur-Senne project, sloop-reconstruc e van de WTCtorens (ZIN), ontwikkeling metro 3 Noord, aanleg tramlijn Centraal-Belgica via het Noordsta on, nieuwe tramlijn De Lijn, enz.

Het BBP dekt ook het CCN-gebouw dat van zijn bewoners is ontdaan en waarop een sloop-reconstruc eproject wordt bestudeerd door een parculier consor um. Proximus hee ook de wederverkoop van zijn gebouwen aangekondigd en er wordt een nieuw project ontwikkeld op dit perceel dat gedeeltelijk wordt gedekt door de BBP19, terwijl het andere deel van het perceel wordt gedekt door de BBP26 in de Gemeente SintJoost-Node, die niet van plan het in te trekken.

Het huidige BBP19 kan als achterhaald worden beschouwd omdat het handhaven ervan niet beantwoordt aan de ambi es van het Gewest om deze zone, bijna uitsluitend voorbehouden aan kantoren, open te stellen voor diversiteit met als doel een levendige wijk te ontwikkelen die beantwoordt aan zowel grootstedelijke als lokale behoe en. De opheffing van de BBP zou de toepassing van de GBP en GSV impliceren, waarbij deze opheffing ook de ambi es die nodig zijn voor de herontwikkeling van de sta onspaal naar wens inperkt.

De aanpassing van het BBP zou het mogelijk maken om het ambi eniveau voor dit gebied te verhogen, bijvoorbeeld door te zorgen voor een betere afweging van de kwaliteit van de openbare ruimte en een op male en geïntegreerde werking van de verplaatsingen in de hele zone.

Bovenaan:ÊgrafischeÊvoorschri enÊvanÊhetÊBBPÊ

Onderaan:ÊbestemingenÊopÊhetÊGBP

De wijk Noord hee een bijzondere typologie en kenmerken die uniek zijn in het Brussels Hoofdstedelijk Gewest, en de problema ek van het gebied waarop de BBP betrekking hee , wordt vaak gedeeld met de rest van de wijk Noord. Veel van de problemen moeten op een globale manier worden aangepakt, wil het district een samenhangende behandeling krijgen. Sommige kwes es zijn echter van bijzonder belang om op lokaal niveau te worden behandeld. De perimeter van de MER-analyse is aangepast aan de bestudeerde kwes es en de realiteit ter plaatse.

BovenaanÊperimeterÊvanÊhetÊBBPÊ(enÊhetÊroze)ÊenÊ uitgebreideÊperimeterÊ(roze s ppellijnen)

Onderaan:ÊdeÊverschillendeÊgebruikteÊstudieomtrekken

Hoofdstuk II / Afdeling 1 Méthodologie / p. 25 METHODOLOGIE CONTEXT VAN HET BBP

De onderstaande kaarten tonen de perimeter van het huidige BBP (doorlopende roze lijn) en de uitgebreide perimeter die wordt voorgesteld in het kader van de wijziging van het BBP (roze s ppellijn).

CONTEXT VAN HET BBP
CCN Huizenblok "Proximus" Huizenblok "North Galaxy" Toren Aemerlincks SCHAARBEEK
SINT-JOOST-TEN -NODE
STAD BRUSSEL Noordsta on ZIN-project Maximiliaanpark Kruidtuin Rogier Sint-Maria Thurn & Taxis Gaucheret park Voormalig Medical Center
1:8000
Huizenblok "Ferraris"
1:3000

Voor de opmaak van het milieueffectenrapport van het BBP nr. 19 werden 32 analysecriteria bepaald die zijn verdeeld in 6 grote thema's. Deze criteria zullen we gebruiken als leidraad bij de hele opmaak van het MER: opbouw van de diagnose, vergelijking van criteria voor de alterna even en varianten, formulering van aanbevelingen en kadering van de analyse van de effecten van het voorkeurscenario.

De volgende tabel stelt de 32 criteria voor:

In dit hoofdstuk iden ficeren we de milieu-uitdagingen in de bestaande en de toekoms ge toestand waarop het BBP een antwoord moet bieden. Een analyse van de huidige toestand zal worden aangevuld met een analyse van twee 'business-as-usualscenario's': met behoud van het huidige BBP (scenario 0) en met opheffing van het huidige BBP (scenario 0+). Behalve het BBP zijn de elementen die we in deze scenario's 0 en 0+ analyseren de vele lopende of geplande projecten in de wijk (Park Max aan de Zenne, ZIN-torens, Metro Noord, herontwikkelingsproject van het CCN…) en de gewestelijke en gemeentelijke oriënta es en strategieën voor de wijk (GPDO en GemOP, Plan Good Move, Klimaatplan, GPCE, BWLKE, WBP…). Op basis van de compila e van de bestaande studies in en in de buurt van de perimeter van het BBP, maar ook via andere aanvullende methodes (vergaderingen, terreinwerk, gesprekken, analyse van de relevante plannen en programma's) werd voor elk criterium een overzichtsfiche opgemaakt met daarin een of meerdere kaarten of a eeldingen en een tekst met de informa e die in detail werd geanalyseerd bij de compila e van de bestaande studies:

· elementen van de bestaande rechtstoestand, met enkel elementen die meer specifiek zijn op schaal van het BBP, · elementen van de bestaande feitelijke toestand,

· elementen verbonden aan het 'business-as-usualscenario' (Alterna ef 0) en aan het alterna ef met opheffing van het BBP (Alterna ef 0+), met vermelding van de beleidslijnen, projecten, ambi es ... die de criteria de komende jaren zouden kunnen doen evolueren

· milieu-uitdagingen verbonden aan het criterium waarmee rekening moet worden gehouden in het BBP,

· opvolgingsindicator(en) voor het criterium;

· lijst van de middelen, reglementen, plannen, referen es, enz.

Tot slot volgt een overzichtstabel met, voor elk criterium, een kleurcode die het mogelijk maakt om snel de huidige "staat" en de scenario's 0 en 0+ te evalueren, alsook de interac es tussen de criteria en de grote uitdagingen die werden geïden ficeerd via de analyse van de diagnose.

Thema Criteria

Bijhorende « classieke » criteria

Zachte mobliteitsnetwerken Mobiliteit

Ecologische netwerken

Natuurlijke omgeving

Technische netwken Natuurlijke omgeving

RUIMTELIJKE

ORGANISATIE

Structuur van de bebouwde ruimten

Structuur van de open ruimten

Stedelijk landschap en symbolische richtpunten

Bevolking

Huisves ng

Bebouwde omgeving, culturele patrimonium, landschap

STEDELIJKE

DYNAMIEK

Voorzieningen en handelszaken

Economische ac viteiten en transi e

Ac vering van de openbare ruimte via de benedenverdiepingen

Economisch en sociaal gebied

Geluid en trillingen Natuurlijke omgeving

Kwaliteit van de openbare ruimten voor verplaatsing en verblijf Mobiliteit

MENSELIJKE OMGEVING

Luchtkwaliteit Natuurlijke omgeving

Veiligheid Menselijke gezondheid

Uitvoering van de MWS

Ac eve verplaatsingswijzen

Openbaar vervoer

Personenwagens

VERPLAATSINGEN

Vrachtwagens en leveringen

Parkeren

Intermodaliteit

Mobiliteitsdiensten

Mobiliteit

Microklimaat Natuurlijke omgeving

Bodem Natuurlijke omgeving

LEEFMILIEU EN KLIMAAT

Ecologisch netwerk Natuurlijke omgeving

Water Natuurlijke omgeving

Energie Beheer van hulpbronnen

Circulariteit van de materialen Beheer van hulpbronnen

Inkomende materialen Beheer van hulpbronnen

CIRCULARITEIT

Circulariteit van de stromen Beheer van hulpbronnen/ Natuurlijke omgeving

Modulariteit van de ruimten Bebouwde omgeving

Hoofdstuk II / Afdeling 1 Méthodologie / p. 27 METHODOLOGIE
TOEGEPASTE ANALYSEMETHODE

Voor dit document werd vooral gebruik gemaakt van de volgende bronnen:

Wijziging van het BBP nr. 19, voorafgaande adviesaanvraag, door het Strategisch en Duurzaam departement van het departement Stedenbouw van de gemeente Schaarbeek, 2020.

Territorium Noord, naar een gedeelde visie, door Perspec ve.brussels, 2020.

In 2018 vroeg de minister-president perspec ve om een gedeelde visie uit te werken voor Territorium Noord, een van de strategische gebieden van het GPDO. Deze schets van een strategische visie is gebaseerd op een bijgewerkte diagnose die rekening houdt met de kansen en uitdagingen die werden geïden ficeerd en met de hoofdlijnen van de gemeentelijke (GemOP) en gewestelijke plannen (GPDO, Good Move, GPCE ...). Ook de vele lopende overheidsprojecten (RPA Maximiliaan, SVC 1 & 2, Wijkcontracten) en privéprojecten werden in aanmerking genomen.

Nota’s Proximus en Ferraris, eindnota's, 2021.

Deze documenten werden opgemaakt in het kader van de begeleiding van de herontwikkeling van de sites Proximus en Ferraris. De bMA ontwikkelde ze in overleg met het gemeentebestuur en de gewestelijke besturen. Ze bepalen de programmatorische en ruimtelijke ambi es voor de herontwikkeling van deze sites. Deze documenten concentreren zich op de grote lijnen van de visie die wordt uitgewerkt voor de wijk en maken een onderscheid tussen de programmatorische, stedenbouwkundige, duurzaamheids- en architecturale ambi es die naar voor worden geschoven. Er moet echter worden opgemerkt dat de Gemeente SintJoost-ten-Node momenteel niet voornemens is om het bestaande BBP rechts van het Proximus-perceel op te heffen, deze blij dus bindend.

Effectenstudie betreffende de a raak van het CCN-gebouw, rapportontwerp, door Stratec, maart 2021.

Deze effectenstudie werd gerealiseerd in het kader van het onderzoek van een aanvraag van een stedenbouwkundige vergunning voor de gedeeltelijke a raak van het CCN-gebouw. In afwach ng van een mogelijke toekoms ge ontwikkeling wenste de aanvrager eenergunning aan te vragen voor enkel de a raak nadat de huidige gebruikers uit het gebouw zijn vertrokken. De intervenes hebben enkel betrekking op de bovenste verdiepingen, de benedenverdieping wordt behouden.

Effectenstudie betreffende de werken aan het Noordsta on, Uitbreiding van het hoogwaardige openbaarvervoernet naar het noorden van Brussel, Eindrapport, door Stratec, 2019. Deze studie kadert in een procedure voor de aanvraag van een stedenbouwkundige vergunning door de FOD Mobiliteit en Vervoer - Beliris voor de realisa e van een metrotunnel onder de sporen van het Noordsta on, de aanleg van twee toegangspu en en de a raak van een gebouw "Medical Center".

Milieueffectenstudie, Project "ZIN" door ABV Development, 2019. Deze studie kadert in de procedure voor de aanvraag van een stedenbouwkundige en milieuvergunning van klasse 1A, ingediend door de nv BEFIMMO voor het project "ZIN". Dat zou worden uitgevoerd in de Koning Albert II-laan nr. 28-30, in het huizenblok dat tot dan de zetel was van de WTC-torens I en II.

Bezinning over de voorwaarden voor de evolu e van de kantoren in de Noordwijk, door IDEA Consult, juli 2021. Document opgemaakt in het kader van de studie voor de wijziging van het BBP nr. 19.

Hoofdstuk II / Afdeling 1 Méthodologie / p. 28 METHODOLOGIE
TOEGEPASTE ANALYSEMETHODE

AFDELING 2.

Overzicht van de bestaande rechts– en feitelijke toestand en vermoedelijke evolu e

HOOFDSTUK II:

Diagnose en iden fica e van de uitdagingen

De punten 2, 3 en 4 (rechts-toestand, de facto situa e en trendalterna ef) van bijlage 1 van het besluit betreffende het MER worden allemaal in dit deel behandeld, achtereenvolgens binnen elk van de thema's. Deze structuur zal het gemakkelijker maken om de verschillende situa es voor een bepaald criterium te vergelijken en het zal de samenhang en de leesbaarheid van het geheel bevorderen.

Voor elk van de 32 criteria, onderverdeeld in 5 thema's, zal het volgende worden geanalyseerd

· de bestaande de rechts-toestand

· de bestaande de facto toestand

· de business-as-usual scenario d.w.z. de tendenciele toestand rekening houdend met twee scenario's:

* Alterna ef 0 (handhaving van het BBP)

* Alterna ef 0+ (opheffing van het BBP)

· de uitdagingen die uit de analyse naar voren komen en die op BBP-niveau kunnen worden aangepakt

Alvorens met de eigenlijke diagnose te beginnen, worden de voornaamste geldende plannen en voorschri en in herinnering gebracht. Hiernaar wordt verwezen in de verschillende thema's wanneer het thema betrekking hee op de genoemde plannen. De aspecten die verband houden met het bestudeerde criterium worden uiteengezet.

Hoofdstuk II / Afdelingen 2-3-4 Overzicht van de bestaande rechts– en feitelijke toestand en vermoedelijke evolu e p. 30 OVERZICHT VAN DE BES TAANDE RECHTS –EN FEITELIJKE TOESTAND EN VERMOEDELIJKE EVOLUTIE FEITELIJKE EN RECHTS-TOESTAND, VERWACHTE EVOLUTIE VAN DE ONVERANDERDE SITUATIE EN IDENTIFICATIE VAN DE UITDAGINGEN

GELDENDE PLANNEN EN REGELGEVING

Milieuvergunning

* De ordonnan e van 30 november 2017 (tot hervorming van het Brussels Wetboek van Ruimtelijke Ordening en van de ordonnan e van 5 juni 1997 betreffende de milieuvergunningen en tot wijziging van aanverwante wetgevingen;

* Het besluit van de Brusselse Hoofdstedelijke Regering van 4 maart 1999 tot vaststelling van de ingedeelde inrich ngen van klasse lB,II en III;

* De ordonnan e van 22 april 1999 tot vaststelling van de ingedeelde inrich ngen van klasse 1A;

* De ordonnan e van 5 juni 1997 en de wijzigingen ervan waaronder die van september 2019; Ecologische netwerken

* De ordonnan e van 1 maart 2012 betreffende het natuurbehoud;

* Het besluit van de Brusselse Hoofdstedelijke Regering van 26 oktober 2000 betreffende de instandhouding van de natuurlijke habitats en van de wilde fauna en flora; Ruimtelijke ordening en mobiliteit

* Het Gewestelijk Mobiliteitsplan 2020-2030 (het plan "Good Move"), door de Brusselse Hoofdstedelijke Regering goedgekeurd op 5 maart 2020;

* Het Gewestelijk Plan voor Duurzame Ontwikkeling (GPDO), door de Brusselse Hoofdstedelijke Regering goedgekeurd op 12 juli 2018 en bekendgemaakt in het Belgisch Staatsblad op 5 november 2018;

* De Gewestelijke Stedenbouwkundige Verordening (GSV), door de Brusselse Hoofdstedelijke Regering goedgekeurd op 21 november 2006 en in werking sinds 3 januari 2007;

* Het Brussels Wetboek van Ruimtelijke Ordening (BWRO);

- De ordonnan e van 13 mei 2004 houdende ra fica e van het BWRO;

- Het besluit van de BHG van 9 april 2004 houdende vaststelling van het BWRO;

* Het besluit van de Brusselse Hoofdstedelijke Regering van 3 mei 2001 tot goedkeuring van het Gewestelijk Bestemmingsplan;

* Het Gemeentelijk Huisves ngsplan 2013-2018;

* Het Gemeentelijk Parkeerac eplan (GPAP) van 2016;

* Het Gemeentelijk Plan voor Duurzame Ontwikkeling (GemPDO) van 2011;

* De Gemeentelijke Stedenbouwkundige Verordening (GemSV) van 2013;

* Het Gemeentelijk Mobiliteitsplan (GMP) van 2009;

Geluidshinder

* Het plan QUIET.BRUSSELS, door de Brusselse Hoofdstedelijke Regering goedgekeurd op 28 februari 2019;

* Het Gewestelijk Plan voor Duurzame Ontwikkeling (GPDO), door de Brusselse Hoofdstedelijke Regering goedgekeurd op 12 juli 2018;

* De ordonnan e van 19 april 2018 tot wijziging van de ordonnan e van 17 juli 1997 betreffende de strijd tegen geluidshinder in een stedelijke omgeving en de latere wijzigingen ervan;

* De milieuconven e tussen de MIVB en het BHG betreffende de geluidshinder en de trillingen, ondertekend op 25 juni 2004;

* Het besluit van de Brusselse Hoofdstedelijke Regering van 21 november 2002 betreffende de strijd tegen de geluids- en trillingenhinder voortgebracht door de ingedeelde inrich ngen

* De besluiten van de Brusselse Hoofdstedelijke Regering van 21 november 2002 tot vaststelling van de controlemethode en omstandigheden voor geluidsme ngen betreffende de strijd tegen het buurtlawaai;

* Het Gemeentelijk Plan voor Duurzame Ontwikkeling (GemPDO) van 2011;

* Het koninklijk besluit van 16 januari 2006 betreffende de bescherming van de gezondheid en de veiligheid van de arbeiders tegen de risico's van lawaai op het werk;

Afvalwater

* De ordonnan e van 20 oktober 2006 tot opstelling van een kader voor het waterbeleid en de wijzigingen van 23 juni 2017;

* Het besluit van de Brusselse Hoofdstedelijke Regering tot goedkeuring van het Waterbeheerplan voor de periode 2016-2021;

* Het besluit van de Brusselse Hoofdstedelijke Regering van 24 maart 2011 tot vaststelling van de milieukwaliteitsnormen, de basiskwaliteitsnormen en de chemische normen voor de oppervlaktewateren tegen verontreiniging veroorzaakt door bepaalde gevaarlijke stoffen en andere verontreinigende stoffen en de wijziging van 17 december 2015;

* Het besluit van de Brusselse Hoofdstedelijke Regering van 24 september 2010 over beoordeling en beheer van overstromingsrisico's;

* Het besluit van de Brusselse Hoofdstedelijke Regering van 23 maart 1994 betreffende de behandeling van stedelijk afvalwater;

* Het koninklijk besluit van 3 augustus 1976 houdende algemeen reglement voor het lozen van afvalwater in de gewone oppervlaktewateren, in de openbare riolen en in de kunstma ge afvoerwegen voor regenwater, zoals gewijzigd bij de koninklijke besluiten van 12 juli 1985 en 4 november 1987 houdende vaststellingen van de basiskwaliteitsnormen voor de wateren van het openbaar hydrografisch net;

* Het koninklijk besluit van 23 juni 2010 betreffende de vaststelling van een kader voor het bereiken van een goede oppervlaktewatertoestand en de wijzigingen ervan;

* Het koninklijk besluit van 25 oktober 1988 betreffende de graad van biologische a reekbaarheid van bepaalde oppervlakte-ac eve stoffen in detergen a;

Afvalstoffen

* Het Hulpbronnen- en Afvalbeheerplan, door de Brusselse Hoofdstedelijke Regering defini ef goedgekeurd op 15 november 2018;

* De ordonnan e van 7 maart 1991 betreffende de preven e en het beheer van afvalstoffen en de latere wijzigingen en uitvoeringsbesluiten ervan (onder meer de ordonnan e van 14 juni 2012);

* Het besluit van de Brusselse Hoofdstedelijke Regering tot goedkeuring van het Hulpbronnen- en Afvalbeheerplan voor de periode 20192023;

* Het besluit van de Brusselse Hoofdstedelijke Regering van 21 juni 2012 tot bepaling van de voorschri en voor de tenuitvoerlegging van de sorteerplicht voor producenten of houders van afvalstoffen andere dan huishoudelijke;

* Het besluit van de Brusselse Hoofdstedelijke Regering van 25 april 2002 tot vaststelling van de lijst van afvalstoffen en gevaarlijke afvalstoffen;

* Het besluit van de Brusselse Hoofdstedelijke Regering van 18 juli 2002 tot invoering van een terugnameplicht voor sommige afvalstoffen met het oog op hun nu ge toepassing of hun verwijdering;

Bodem en ondergrond (zie ook 'Water')

* De ordonnan e van5 maart 2009 betreffende het beheer en de sanering van verontreinigde bodems;

* De ordonnan e betreffende het beheer van verontreinigde bodems, goedgekeurd op 13 mei 2004;

* Het besluit van de Brusselse Hoofdstedelijke Regering van 8 oktober 2015 tot vaststelling van de interven enormen en saneringsnormen;

* Het besluit van de Brusselse Hoofdstedelijke Regering van 16 juli 2015 tot vaststelling van de lijst van de risicoac viteiten;

* Het besluit van de Brusselse Hoofdstedelijke Regering van 8 juli 2010 tot vaststelling van de type-inhoud van het risicobeheervoorstel, van het saneringsvoorstel en van het beperkt saneringsvoorstel;

* Het besluit van de Brusselse Hoofdstedelijke Regering van 8 juli 2010 tot vaststelling van de type-inhoud van het verkennend bodemonderzoek en het gedetailleerd bodemonderzoek;

* Het besluit van de Brusselse Hoofdstedelijke Regering van 24 september 2010 betreffende het bodema est;

* Het besluit van de Brusselse Hoofdstedelijke Regering van 9 december 2004 betreffende de evalua e van de risico's voor de gezondheid en het milieu veroorzaakt door bodemverontreiniging;

* Het besluit van de Brusselse Hoofdstedelijke Regering van 9 december 2004 tot vaststelling van de bodem- en waterverontreinigingsnormen bij overschrijding waarvan een risicostudie moet worden uitgevoerd;

Lucht, klimaat en energie

* Het Na onaal Energie- en Klimaatplan 2021-2030 van 2019;

* Het Gewestelijk Plan voor Duurzame Ontwikkeling (GPDO), door de Brusselse Hoofdstedelijke Regering goedgekeurd op 12 juli 2018;

* Het Gewestelijk Lucht-, Klimaat- Energieplan van 2 juni 2016;

* Het Gemeentelijk Plan voor Duurzame Ontwikkeling (GemPDO) van 2011;

* (Het Gemeentelijk Klimaatplan wordt momenteel uitgewerkt);

* Het Gewestelijk Lichtplan (2017) en het Gemeentelijk Lichtplan (1999).

* De Klimaatordonnan e van 17 juni 2021;

* De ordonnan e houdende instemming met het Verdrag inzake het Energiehandvest, de Bijlagen EM, NI, TRM, N, VC, ID, IA, P, G, TFU, D, B, PA en T, de Besluiten en het Protocol betreffende energie-efficiën e en daarmee samenhangende milieuaspecten, alsmede de Slotakte, opgemaakt te Lissabon op 17 december 1994;

* De ordonnan e van 2 mei 2013 houdende het Brussels Wetboek van Lucht, Klimaat en Energiebeheersing (BWLKE) en de uitvoeringsbesluiten ervan betreffende de energiepresta e van de gebouwen en betreffende de luchtkwaliteit;

* De ordonnan e van 7 juni 2007 betreffende de energiepresta e en het binnenklimaat van gebouwen en de uitvoeringsbesluiten ervan;

* Het besluit van de Brusselse Hoofdstedelijke Regering van 26 januari 2017 tot vaststelling van alle richtlijnen en criteria die nodig zijn voor het berekenen van de energiepresta e van de EPB-eenheden;

* Het besluit van de Brusselse Hoofdstedelijke Regering van 19 januari 2012 tot wijziging van het besluit van de Brusselse Hoofdstedelijke Regering van 3 juni 2010 betreffende de voor de verwarmingssystemen van gebouwen geldende EPB-eisen bij hun installa e en jdens hun uitba ngsperiode;

* Het besluit van de Brusselse Hoofdstedelijke Regering van 21 december 2007 tot vaststelling van de eisen op het vlak van de energiepresta e en het binnenklimaat van gebouwen, en de wijzigingen ervan;

* Het besluit van de Brusselse Hoofdstedelijke Regering van18 april 2002 betreffende de vaststelling van langetermijndoelstellingen, streefwaarden en een alarm- en informa edrempel voor de ozonconcentra es in de lucht;

* Het besluit van de Brusselse Hoofdstedelijke Regering van 28 juni 2001 betreffende de grenswaarden voor zwaveldioxide, s kstofdioxide en s kstofoxiden, zwevende deeltjes en lood in de lucht;

* Het besluit van de Brusselse Hoofdstedelijke Regering van 5 juli 2001 betreffende de grenswaarden voor benzeen en koolstofmonoxide in de lucht;

* Het koninklijk besluit van 12 oktober 2010 tot regeling van de minimale eisen van rendement en emissieniveaus van verontreinigende stoffen voor verwarmingsapparaten voor vaste brandstoffen;

* Het koninklijk besluit van 18 maart 1997 betreffende de rendementseisen voor nieuwe olie- en gasgestookte centrale-verwarmingsketels.

Hoofdstuk II / Afdelingen 2-3-4 Overzicht van de bestaande rechts– en feitelijke toestand en vermoedelijke evolu e p. 31 OVERZICHT VAN DE BES TAANDE RECHTS –EN FEITELIJKE TOESTAND EN VERMOEDELIJKE EVOLUTIE

BESTAANDE RECHTSTOESTAND

BUSINESS-AS-USUALSCENARIO

Voetgangersboulevards

Via de Mul modale Wegenspecialisa e hee het plan Good Move statuten bepaald voor elke verplaatsingswijze en voor elke openbare weg in het Gewest. Voor de voetgangers werden 7 prioritaire trajecten uitgetekend die vertrekken in het centrum (De Brouckèreplein). Het BBP ligt aan zo'n voetgangersboulevard die het centrum verbindt met de site Thurn en Taxis (via de toekoms ge Suzan Danielbrug). Daarnaast zijn er nog 'Plus'-wegen die het BBP verbinden met de Brabantwijk en de Gaucheretwijk.

Voor de fietsers werden in het plan Good Move de fiets-GEN opgenomen. In het BBP loopt rocade A (oranje) langs de Albert II draait dan volledig rond de Vij oek via het Jubelpark. Route SZ (Zenne) doorkruist Brussel van noord naar zuid. Ze volgt voor een deel het historische tracé van de Zenne en loopt langs het BBP via de Aarschotstraat. De Albert II-laan is bovendien, net als alle wegen met een poten eel van meer dan 2500 gebruikers per dag, opgenomen in het fiets-GEN.

BESTAANDE FEITELIJKE TOESTAND

Voetgangers

Binnen het BBP is het Noordsta on dé pool bij uitstek die verplaatsingen genereert. Gekoppeld aan de massale aanwezigheid van kantoren genereert het voetgangersstromen in de hele omliggende wijk:

* tussen de mobiliteitshub en de huizenblokken Proximus en North Galaxy, maar iets verderop ook de verschillende Vlaamse besturen, Engie, enz.

* Het interna onale bussta on , gelegen in het noordelijke deel van de Vooruitgangstraat, genereert een voetgangersstroom tussen de mobiliteitshub en dit interna onale vertrekpunt. Tijdens de a raak van het CCN moet dit sta on worden verplaatst, waardoor de huidige stromen zullen worden gewijzigd.

* De barrière van de spoorwegen en het bijhorende kunstwerk kan binnen het BBP op 5 punten worden overgestoken die op min of meer dezelfde afstand liggen van elkaar: de 2 tunnels (Kwatrecht en Noord) en de 3 toegangstunnels tot de sporen die recent werden gerenoveerd en een comfortabele oversteek mogelijk maken in het sta on.

Verschillende andere polen genereren bovendien stromen naar buiten het BBP:

* de recente verhuis van het gewestbestuur van het CCN naar de nieuwe Silver

Tower (aan de overkant van de sporen) zal een nieuwe voetgangersstroom op gang brengen, waarschijnlijk van het CCN/Noordsta on via het Noordplein en de Noordtunnel of via de doorgangen onder de sporen in het sta on. Door de gezondheidscrisis, waardoor veel mensen telewerken sinds deze verhuis, konden deze stromen nog niet worden geobserveerd.

een grote voetgangersstroom doorkruist de Albert II-laan van of naar het Noordsta on (in de Bolivarlaan). Deze stroom is hoofdzakelijk verbonden aan Thurn en Taxis dat eveneens veel verplaatsingen genereert en stemt overeen met het traject van de voetgangersboulevard.

Ook de horecazaken in de Vooruitgangstraat, op het Rogierplein aan het uiteinde daarvan en in de Nieuwstraat in het verlengde daarvan, trekken voetgangers aan in het zuiden van het BBP.

De voetgangersstromen van en naar het noorden van het BBP (aan de kant van het Solvayplein) zijn verwaarloosbaar.

zuidverplaatsingen gebeuren hoofdzakelijk via de Albert II-laan (gemarkeerde en vrijliggende fietspaden) en de Vooruitgangstraat. Het fietstraject werd daar recent doorlopend gemaakt via de ontwikkeling van een specifiek fietspad onder het CCN, gescheiden van de binnenstraat(kleine Vooruitgangstraat) dat een sterk punt vormt in het lokale netwerk. De verbindingen met het bestaande netwerk (Vooruitgangstraat in het noorden en het zuiden en de wegen die daar loodrecht op uitkomen) vormen echter een probleem: in het zuiden zorgen de frequen e en de snelheid van de bussen en in het noorden de frequen e van de auto's, de nabijheid van de bussen en de slechte kwaliteit van het wegdek voor gevaarlijke verbindingen.

Op de oost-westas gebeuren de verplaatsingen hoofdzakelijk tussen de site Thurn en Taxis (momenteel via de Redersbrug) en de Willebroekkaai in het westen, met enerzijds de Sint-Lazaruslaan (en verbinding met het Centraal Sta on) en anderzijds de Brabantstraat/Aarschotstraat rich ng het centrum van Schaarbeek en de verderop gelegen GFR (Liedts). Vooral de Noordtunnel wordt frequent gebruikt. Vanwege de steile hellingen in de rich ng van Sint-Maria worden de wegen ten oosten van de sporen weinig gebruikt. In westelijke rich ng zijn de wegen comfortabel ingericht voor de fietsers. Ze worden allemaal door hen gebruikt (Koolbrandersstraat, Bolivarlaan, Solvayplein).

Aan de kruising van deze netwerken, op de rotonde Bolivar/Albert II, heerst druk verkeer. Hoewel deze rotonde deel uitmaakt van het fiets-GEN, is ze voor fietsers een zwart punt.

Plannen, programma's en projecten:

* In samenhang met het Stadsvernieuwingscontract SVC1, "Citroën - Vergote", in het kader van het project Max aan de Zenne, onderzoekt Brussel Mobiliteit momenteel de heraanleg van het Maximiliaanpark, waaronder de Simon Bolivarlaan tussen de Willebroekkaai en de Antwerpsesteenweg. Brussel Mobiliteit plant de heraanleg van dit deel van de laan in 2023. De studie van het park (met als bouwheren Brussel Mobiliteit en Leefmilieu Brussel) zal echter een wegprofiel voorstellen om de laan door te trekken tot aan het Noordsta on. Bedoeling is om er een heuse openbare ruimte van te maken die is opengesteld voor de wijk en die met het kanaal wordt verbonden door een voetgangersboulevard, een sterke fietsas en een tram. Het project wil onder meer de huidige plaatsinname van de weg verkleinen, oversteekplaatsen aanleggen die de con nuïteit voor voetgangers en fietsers garanderen. Voor de landschappelijke con nuïteit van het Maximiliaanpark zal langs de weg beplan ng worden voorzien.

* Het SVC2 "Brabant-Sint-Lazarus" koestert de ambi e om de impact van de breuken, met name de doorgang onder de sporen, te verkleinen. Ook de verdeling van de openbare ruimte zal worden herbekeken om de modal shi te bevorderen. Onder meer de tunnels onder de treinsporen, het Noordplein en de Kwatrechtstraat zullen worden aangepakt.

* De Gemeentelijke Mobiliteitsplannen van Schaarbeek en de stad Brussel zijn verouderd en moeten worden bijgewerkt in het licht van het goedgekeurde plan Good Move.

Alterna ef 0 (bij behoud van het BBP): Geen verandering van de toestand.

Alterna ef 0+ (bij opheffing van het BBP): Geen verandering van de toestand.

UITDAGINGEN

Uitdagingen die kunnen worden behandeld in het BBP:

* Ervoor zorgen dat de inrich ngen stroken met de doelstellingen van de netwerken, vooral in de rich ng van de polen die verplaatsingen genereren.

* De oversteekbaarheid van het sta on verbeteren en het barrière-effect van de Noord-Zuidverbinding verminderen.

REFERENTIE-INDICATOREN

RUIMTELIJKE ORGANISATIE Hoofdstuk II / Afdeling 2 Diagnose van de bestaande en tenden ële situa e/ p. 32
ZACHTE MOBILITEITSNETWERKEN
Indicatoren Huidige waarde / /
van het plan Good Move (links) en GFR (rechts)

BESTAANDE RECHTSTOESTAND / BESTAANDE FEITELIJKE TOESTAND

Het groene netwerk

· Op het vlak van groene con nuïteiten zien we een aantal markante elementen, onder meer het centrale deel van de Albert II-laan, de spoorwegtaluds tussen het Noordsta on en de Koninginnelaan (Thomas) die zowel aan de kant van de Aarschotstraat als aan de kant van de Vooruitgangstraat vergroend zijn en het Maximiliaanpark dat zich uitstrekt langs de hele Helihavenlaan. Op de oostwestassen is het groen schaarser (enkele bomen langs de openbare weg) en biedt het dus weinig verbinding met en tussen de noord-zuidcon nuïteiten.

· Een openbare groene ruimte is het centrale deel van de Albert II-laan die in de perimeter ligt. In de omliggende wijk zijn er het Maximiliaanpark en de Espace Gaucheret.

Het blauwe netwerk / Regennetwerk

· In of in de buurt van het studiegebied zijn er geen geïntegreerde inrich ngen voor regenwater.

· Blauwe elementen zijn het nabije Kanaal en de Zenne. Deze laatste loopt nu nog ondergronds maar zal ter hoogte van het Maximiliaanpark worden opengelegd. Ook hier biedt de oost-westas geen enkele verbinding met deze noordzuidelijke elementen.

Het bruine netwerk

De overvloedige verharding van de wijk en het intense gebruik van de ondergrond door parkings en technische netwerken vormen barrières voor de ecologische connuïteiten en staan het creëren van een 'doorlopende' levende bodem in de weg.

BUSINESS-AS-USUALSCENARIO

Plannen, programma's en projecten:

· Volgens het GPDO ligt het hele studiegebied binnen de perimeter van een prioritaire vergroeningszone. De theore sche blauwe en groene netwerken omva en geen specifieke ambi es binnen het geografische gebied.

· Het GemPDO omvat de doelstelling (prioriteit 8.12) om een gemeentelijk groen netwerk te ontwikkelen met openbare en privéruimten. Geen enkele zone binnen de perimeter is bij die doelstelling betrokken. In de buurt van de perimeter wil het GemPDO een park aanleggen in de Kwatrechtstraat (een square aan de andere kant van de doorgang onder de sporen) en meer groen creëren op de binnenterreinen van de huizenblokken in de Brabantwijk.

· Ook het toekoms ge Klimaatplan van de Gemeente zal zich buigen over de kwes e van de vergroening van de stad.

· Het Beplan ngsplan 1030

· Het Beeldkwaliteitsplan (BKP) gee aan dat de grote ecologische gehelen, onder meer het kanaal, de Zenne en de spoorwegtaluds, zoveel mogelijk met elkaar moeten worden verbonden.

· De Good Soil -strategie die momenteel wordt uitgewerkt bij Leefmilieu Brussel stelt zich tot doel om de ecosysteemdiensten die worden verleend door de bodem te evalueren en herwaarderen en om de bodems in het BHG beter te beheren en te beschermen, rekening houdend met hun chemische, fysische maar vooral biologische kenmerken.

· Het Bomenplan 2020-2030 van de nabijgelegen Stad Brussel stree ernaar om het bestaande bomenerfgoed te beschermen en te ontwikkelen. Het plan wil bijdragen tot het Brusselse ecologische netwerk en kan leiden tot het planten van bomen langs bepaalde wegen die zijn verbonden met de perimeter.

· De uitdagingen die in de nota Proximus worden geïden ficeerd voor de herontwikkeling van de Noordwijk omva en ini a even voor vergroening en doorlatendheid. De Noordwijk moet worden beschouwd als een doorlopend, maar fijnmazig park met gebouwen. De wegen worden zoveel mogelijk vergroend en de verschillende openbare groene ruimten (Maximiliaanpark, Albert II-laan, Gaucheret en Kruidtuin) worden in de mate van het mogelijke func oneel met elkaar verbonden.

· In samenhang met het Stadsvernieuwingscontract SVC1, "Citroën - Vergote", in het kader van het project Max aan de Zenne, onderzoekt Brussel Mobiliteit momenteel de heraanleg van de Simon Bolivarlaan tussen de Willebroekkaai en de Antwerpsesteenweg, met een visie tot aan het Noordsta on. De as wordt heraangelegd tot een heuse groene ruimte die is verbonden met het kanaal. Beplan ng langs de openbare weg moet de landschappelijke en beplan ngscon nuïteit met het Maximiliaanpark garanderen.

* Het blauwe netwerk wil de kanaalzone herwaarderen en de Zenne in het Maximiliaanpark openleggen (zone voor stedelijke herwaardering van de Zenne in het GPDO). Daarvoor wordt in 2023 het project Max aan de Zenne gestart.

· Het SVC2 voorziet onder meer in de ontwikkeling van de spoorwegtaluds in de Aarschotstraat als groene con nuïteit en s muleert de beplan ng van daken/gevels in de Brabantwijk.

Alterna ef 0 (bij behoud van het BBP): Geen verandering van de toestand.

Alterna ef 0+ (bij opheffing van het BBP): Geen verandering van de toestand.

UITDAGINGEN

Uitdagingen die kunnen worden behandeld in het BBP:

· De verbindingen tussen de vergroende ruimten versterken, zowel op de openbare weg als daarbuiten (in de bebouwing), onder meer op de oost-westassen. *

· De opportuniteit onderzoeken om elementen van het blauwe netwerk te ontwikkelen die kunnen worden verbonden met het bestaande en het toekoms ge netwerk.

REFERENTIE-INDICATOREN

Indicatoren Huidige waarde / * /

* De aanwezigheid van ruimten die ecologisch kunnen worden aangelegd (beplan ng, doorlatendheid) wordt behandeld in het thema "Milieu en Klimaat".

RUIMTELIJKE ORGANISATIE Hoofdstuk II / Afdeling 2 Diagnose van de bestaande en tenden ële situa e/ p. 33 ECOLOGISCHE NETWERKEN

BESTAANDE RECHTSTOESTAND

De GSV Titel VII bepaalt dat geen enkel netwerk van openbaar nut mag worden aangelegd op minder dan 1,75 m van de as van de stam van een hoogstammige boom.

Eveneens volgens de GSV moet de achteruitbouwstrook vrij zijn van elke construce, ook in de ondergrond.

BESTAANDE FEITELIJKE TOESTAND

Het bodemgebruik is binnen de perimeter van het BBP heel intens. Naast de vele bouwwerken - parkings, metro- en premetrotunnels - -wordt het gebied van het BBP doorkruist door tal van nutsleidingen.

Grijs netwerk

Het openbare rioleringsnet is van het unitaire type. Op de site wordt hoofdzakelijk huishoudelijk afvalwater geproduceerd dat in de riolering wordt geloosd. De wegen binnen de perimeter worden beheerd door het Gewest. Het beheert de straatkolken en hun aanslui ngen en de eventuele netwerken die strikt zijn voorbehouden voor regenwater (in de perimeter zijn deze momenteel onbestaand).

Het rioleringsnet dat wordt beheerd door Vivaqua omvat in het gebied verschillende rioleringen en collectoren van grote afme ngen die zijn aangegeven op het onderstaande plan. Collectoren (dikke streep) zijn aanwezig aan weerszijden van de Simon Bolivarlaan. Er lopen ook collectoren doorheen de huizenblokken Proximus en North Galaxy, volgens een noord-zuidas. Onder de Koning Albert II-laan ligt een stormbekken met een capaciteit van 7500m3 (de gearceerde zone op het plan).

Volgens onze uitwisselingen met de NMBS zou onder het Noordsta on een ander stormbekken aanwezig zijn, dat niet in het plan is opgenomen.

Binnen de perimeter van het BBP werd in de cartografie van Vivaqua geen enkele feedback/klacht ingevoerd over overstroming als gevolg van de verzadiging van het rioleringsnet. In het algemeen zijn de bouwwerken gedimensioneerd om enjarige regen te kunnen opvangen. Alleen bij uitzonderlijke regenval zou het net eventueel verzadigd kunnen geraken.

De sector van het sta on Brussel-Noord is gelegen in het subbekken voor de opvang van afvalwater van het waterzuiveringssta on (RWZI) Noord. Het RWZI Noord is het grootste zuiveringssta on met een zuiveringscapaciteit van 1.100.000 inwonersequivalenten. Het is gedimensioneerd voor de behandeling van drie vierde van het afvalwater van de inwonersequivalenten (E.I.) van het Brussels Gewest (en van een deel van de Vlaamse randgemeenten), wat overeenstemt met de werkelijkheid. Dit volume omvat een niet-verwaarloosbaar deel hemelwater, maar ook water dat wordt afgeleid van het hydrografisch net. Er dient met name benadrukt dat onder de Albert II-laan een leiding loopt die het water van de Zenne opvangt.

Water-, gas- en elektriciteitsverdeling en telecommunica e:

In de Bolivarlaan en de Albert II-laan liggen de leidingen en kabels in technische galerijen ter hoogte van de voetpaden (op de onderstaande plannen in het grijs gearceerd).

Omdat het net unitair is, wordt bij hevige regenval minder afvalwater behandeld en zijn de lozingen een bron van emissies van vervuilende stoffen - met name organische - voor de Zenne.

Door de aanwezigheid van ondergrondse bouwwerken in de Noordwijk, onder meer parkings, moet het water vaak permanent worden opgepompt en ook dat water komt in de riolering terecht. Ter informa e: het gaat om 14,5m³/dag in de kelders van het CCN en de premetro-tunnel, d.w.z. meer dan 5.200m³/jaar. Ideaal zou zijn om dat water lokaal te hergebruiken of, a ankelijk van de kwaliteit, naar de Zenne te sturen.

Water wordt binnen de perimeter van het BBP verdeeld door Vivaqua. De desbetreffende leidingen zijn aangegeven op het onderstaande plan. De diameters bedragen 300 en 400 mm in de Albert II-laan, 200 mm in de Bolivarlaan, de Vooruitgangstraat en het Solvayplein en 150 mm onder het CCN.

RUIMTELIJKE ORGANISATIE Hoofdstuk II / Afdeling 2 Diagnose van de bestaande en tenden ële situa e/ p. 34 TECHNISCHE NETWERKEN
Schema van het rioleringsnet. Bron: Vivaqua Schema van het waterverdeelnet. Bron: Vivaqua Schema van de goten. Bron: Vivaqua

Onderstaand plan van Sibelga duidt de gasleidingen aan. In de Bolivarlaan en de Albert II-laan liggen deze leidingen in technische galerijen ter hoogte van de voetpaden. Ze hebben een diameter van 150 mm in de Simon Bolivarlaan en de Albert II-laan, 350 mm in de Vooruitgangstraat en de Kwatrechtstraat en 350 en 500 mm op het Solvayplein.

Telecommunica e (Proximus, Brutele, Telenet, Eurofiber, Irisnet): De perimeter van het BBP wordt doorkruist door verschillende kabels.

Zwart netwerk

In het gewestelijk Lichtplan werd voor bepaalde wijken een standaardverlich ng vastgelegd. Met name voor de Noordwijk is die van toepassing in de Albert II-laan en de Simon Bolivarlaan, in het zuidelijke deel van de Vooruitgangstraat en rond het CCN.

Bouwwerken

BUSINESS-AS-USUALSCENARIO

Plannen, programma's en projecten:

* Door de toenemende verstedelijking en de vele renova eprojecten die zijn gepland in de Noordwijk zal het grijze netwerk voortdurend evolueren. Op het voormalige terrein van het Medical Center zal een afvalwaterzuiveringsinstalla e worden gebouwd voor de behandeling van het opgepompte water in verband met de nieuwe Metro Noord-tunnel die in aanbouw is.

Onderstaand plan van Sibelga duidt de elektriciteitskabels aan. Vele van hen zijn HS-kabels. Het kabelnetwerk is bijzonder dicht in de buurt van het substa on ("Markt" genaamd) op de hoek van de Koolbrandersstraat en de Vooruitgangstraat (buiten de perimeter). Dit substa on is door verschillende ondergrondse verbindingen verbonden met het substa on Helihaven.

Behalve de voormelde technische galerijen is de plaatsinname van de kelderverdiepingen van de gebouwen vaak groter dan de plaatsinname van de bovengrondse bouwwerken. In de ondergrond worden dus soms open ruimten gebouwd, dat is het geval voor de ondergrondse parkeerverdiepingen van het CCN (onder de Vooruitgangstraat), het Proximus-gebouw (parking onder de tuintjes aan de straatkant) en het North Galaxy-gebouw.

* Het gewestelijk Lichtplan 2017 geldt als leidraad voor de verschillende besturen bij de heraanleg van de wegen en de openbare ruimte (wegen, pleinen, parken, ...). Dat geldt ook voor het gemeentelijk Lichtplan van 1999 dat stree naar de renovae van de openbare verlich ng voor een rus ger en veiliger nachtelijke omgeving, naar energiebesparing en naar de herwaardering van de wijken.

* Het CCN : Dit gebouw maakt momenteel het voorwerp uit van studies voor een grondige verbouwing (a raak-wederopbouw). Een aanvraag voor een a raakvergunning werd ingediend.

Alterna ef 0 (bij behoud van het BBP):

Volgens het BBP mogen technische uitrus ngen (rioleringen, goten, cabines, pompstaons, diverse leidingen) worden aangebracht in een zone "voorbehouden aan het voertuigen- en het voetgangersverkeer" (ar kel 9).

Alterna ef 0+ (bij opheffing van het BBP): Geen verandering van de toestand.

UITDAGINGEN

Uitdagingen die kunnen worden behandeld in het BBP:

* Technische netwerken in het algemeen: een plan opmaken dat ruimtelijk overeenstemt met de aanwezigheid van deze netwerken, de ruimten benu en waar volle grond beschikbaar is

* Grijs netwerk:

▪ ervoor zorgen dat de netwerken bestand zijn tegen de toekoms ge projecten

Plan van de kelderverdiepingen (-1) . Bron: 1010

De premetrotunnels lopen onder het Noordplein en het Solvayplein:

▪ gescheiden netwerken ontwikkelen op de openbare weg en in de gebouwen en een toepassing voorzien voor het in de ondergrond opgepompte water.: hergebruik, infiltra e, buffering, afleiding van het niet-herbruikbare water naar de Zenne.

* Zwart netwerk: de lokale iden teit van de Noordwijk en de verbinding met de omliggende wijken accentueren

* S jging van het aantal inwoners

RUIMTELIJKE ORGANISATIE Hoofdstuk II / Afdeling 2 Diagnose van de bestaande en tenden ële situa e/ p. 35 TECHNISCHE NETWERKEN
CCN dwarsdoorsnede Schema van het elektriciteitsnet Bron: Sibelga Schema van het gasnet Bron: Sibelga REFERENTIE-INDICATOREN

BESTAANDE RECHTSTOESTAND

Titel I van de Gewestelijke Stedenbouwkundige Verordening (GSV) bepaalt de stedenbouwkundige kenmerken van de gebouwen. Volgens de GSV moeten gebouwen dezelfde hoogte hebben als de aanpalende gebouwen en de goede plaatselijke aanleg respecteren. Bovendien moeten bouwwerken op gepaste afstand van de terreingrenzen worden geplaatst. Met name de bezonning van de aanpalende terreinen moet worden gevrijwaard.

Voor de volumetrie bepaalt het BBP nr. 19 een laagbouwzone van 13 m voor de huizenblokken 71 en 72 en een hoogte van 102 m voor de 3 torens van deze huizenblokken. Het bepaalt een maximumhoogte van 23m voor de gebouwen met middelma ge hoogte van huizenblok 72 (aan de kant van het Solvayplein). Het gebouw van het CCN mag maximaal 35 m hoog zijn. In werkelijkheid wordt de hoogte van 13m, bestemd voor het voetgangersverkeer zoals was voorzien in het Manha anplan, niet gerespecteerd, noch in huizenblok 71 noch in huizenblok 72.

De Gemeentelijke Stedenbouwkundige Verordening (GemSV) legt de regels vast voor de plaatsing en het bouwprofiel van de bouwwerken:

▪ Art. 5 over de plaatsing en de bouwprofielen van de alleenstaande bouwwerken (naleving/integra e in de bouwlijn, buitengrondse diepte maximaal ¾ van de diepte van het terrein)

▪ Art. 6 over ondergrondse bouwwerken (maximale plaatsinname)

▪ Art. 10 en 13 over de bewoonbare verdiepingen onder het dak (maximaal twee) en over de technische lokalen en schoorstenen (terugwijkend geplaatst ten opzichte van het dak, zodanig ontworpen dat ze geïntegreerd zijn in het bouwwerk...)

▪ Art. 22 en 23 over de uitsprongen (geen hinder voor het voetgangersverkeer / regel over de balkons en andere uitspringende elementen…)

BESTAANDE FEITELIJKE TOESTAND

De verplaatsing van het Noordsta on in 1958 (na de voltooiing van de NoordZuidverbinding in 1952) was de aanleiding voor de hertekening van de Noordwijk. Vóór die jd was de wijk samengesteld uit een mix van volkshuisjes en kleine bedrijven. In 1965 werd het Manha anplan uitgetekend, de bouwwerken gingen van start in 1973. Het strekt zich uit over de gemeenten Brussel, Schaarbeek en Sint-Joost-ten-Node en vormt drie gemeentelijke Bijzondere Bestemmingsplannen (BBP's). Het project beslaat een gebied van 53 ha vanaf de Kleine Ring, tussen het kanaal en het Noordsta on. De oorspronkelijke wijk werd onbruikbaar geacht en volledig afgebroken en er zouden 70 torengebouwen worden opgetrokken die worden verbonden door een netwerk van loopbruggen. In het wegenplan waarop het Manha anplan gebaseerd was, werd de Noordwijk een belangrijk snijpunt van twee verkeersassen, georganiseerd als een zakendistrict: de centrale WTC-torens moesten een coherent geheel vormen van 8 torens (huizenblokken D, E, I, J). De sokkels rond de gebouwen moesten met elkaar worden verbonden zodat het voetgangersverkeer in de hoogte kon plaatsvinden, gescheiden van de snelwegen op grondniveau. De horizontaliteit van de opake, ma e, massieve sokkel moest contrasteren met de ver caliteit van de torens van reflecterend glas en metaal die eerder lichtheid suggereerden.

Aangezien de hoge verkeersruimten nooit werden gerealiseerd, zijn de opake en dichte sokkels die als 'kelderverdiepingen' werden opgevat benedenverdiepingen geworden. Ze ogen gesloten en 'technisch', wat geenszins ten goede komt aan de kwaliteit van de interac es tussen de openbare ruimte en de gebouwen, noch aan de gezelligheid van de openbare ruimten.

Door de crisis van de jaren 70 liepen de werken aanzienlijk vertraging op. De onteigeningen en het economische verval van de wijk resulteerden bovendien in een minderwaarde van het vastgoed. Behalve kantoren werden ook sociale woningprojecten gerealiseerd waaronder de Lakense en de Brusselse Haard. Vanaf 1987 kwamen de werken in de Noordwijk weer op gang en werden er nieuwe kantoortorens opgetrokken. We zien dus 2 soorten gebouwd weefsel aan de twee kanten van het spoorweggebied van het Noordsta on dat een barrière vormt: in het oosten het oude en dichte residenële weefsel van de 19de eeuw, gevormd door kleine bouwprofielen georganiseerd in huizenblokken, en in het westen grote kantoorgebouwen.

* E - huizenblok 71 (Pleiadetorens - Proximus)

Gebouw uit de jaren 1990 bestaande uit twee hoofdtorens van 102m en GLV+27 verdiepingen (118m met de antenne erbij), bovenaan verbonden door een loopbrug met een lengte van 30 m. De toren met de antenne staat in Schaarbeek in de S. Bolivarlaan. De andere toren staat in Sint-Joost-ten-Node in de Koning Albert IIlaan. Beide torens zijn opgenomen in de inventaris van het bouwkundig erfgoedvan het Brussels Hoofdstedelijk Gewest. Tussen de 2 torens staat nog een derde gebouw met bouwprofiel GLV+6: het Paviljoen. Een laag gebouw met een hoogte van ongeveer 6 m, benedenverdieping + 1 verdieping, verbindt het geheel. De grondinname over het hele huizenblok bedraagt ± 10 400 m², waarvan bijna 2700m² in de gemeente Schaarbeek. De gevels zijn gordijnmuren opgetrokken uit glas. De daken zijn plat.

* I - huizenblok 68 (North Galaxy - ministerie van Financiën)

De gebouwen van het huizenblok dateren van begin jaren 2000. De North Galaxy Towers zijn 2 torens van 102 m, d.i. GLV+29 verdiepingen waarvan 2 technische verdiepingen onder het dak. Ze zijn geïntegreerd in een sokkel met een hoogte van 10m. Een gebouw van ongeveer 24 m hoog (GLV+5+technische verdieping) staat op de hoek van het Solvayplein-Vooruitgangsstraat, met een gemeenschappelijke sokkel GLV+2 verdiepingen. De grondinname van het huizenblok bedraagt ± 9 000 m². De gevels zijn gordijnmuren opgetrokken uit glas. De daken zijn plat.

* F - huizenblok 72 (CCN)

Het Communica ecentrum Noord (CCN) werd gebouwd in de jaren 70. Het is een groot gebouw met bouwprofiel GLV+11 en het huizenblok beslaat bijna 15.800 m², waarvan ongeveer 13.900m² in de gemeente Schaarbeek. Sinds de verhoging van het gebouw in 1992 wijkt het gebouw af van het BBP. Het staat tegen het gebouw van het Noordsta on. Aan de straatkant bestaat de benedenverdieping uit een halfondergrondse verdieping die bestemd is voor de bussen.

* G - huizenblok 72 (Noordsta on)

Het Noordsta on, een modernis sch gebouw met invloeden van het classicisme, werd opgetrokken tussen 1938 en 1956. Het is opgenomen in de inventaris van het bouwkundig erfgoed van het Brussels Hoofdstedelijk Gewest. Het gebouw hee een grondinname van ongeveer 4.000 m². Een klein deel daarvan, ongeveer 200m², ligt in de gemeente Sint-Joost-ten-Node. In het zuiden staat een vierkante toren met 10 kantoorverdiepingen met bovenop een klok. Bovendien telt het staon zeven perrons voor twaalf sporen die hoger liggen dan de Vooruitgangstraat en de Aarschotstraat. Behalve de recente volledige renova e van de wachtzaal werden er ook werken uitgevoerd om onder meer de toegankelijkheid van het sta on te verbeteren vanaf de Brabantwijk (nieuwe ingangen en gerenoveerde gangen onder de sporen), de Vooruitgangstraat (drop-off, toegang voor taxi's en fietsers) en vanaf het Noordplein en het Solvayplein (nieuwe toegangen voor voetgangers en handelszaken). Deze werken leidden tot een betere dissocia e van het sta on en het CCN en tot de oriënta e van de stromen in het sta ongedeelte en de handelszone.

Het sta onsgebouw wordt gemaskeerd door het CCN.

RUIMTELIJKE ORGANISATIE Hoofdstuk II / Afdeling 2 Diagnose van de bestaande en tenden ële situa e/ p. 36 STRUCTUUR VAN DE
BEBOUWDE RUIMTEN
Grafische voorschri en van het BBP 19 (bovenaan links) en a eelding van het project (inventaris van het bouwkundig erfgoed) Aanwezige gebouwen in het BBP nr. 19 (achtergrond: Google Satellite)

* A - aangrenzend huizenblok Boreal BNP)

De hoogste delen tellen 14 verdiepingen boven de benedenverdieping. De laagste delen hebben bouwprofiel GLV+1. De grondinname van het huizenblok bedraagt ± 5 500 m².

*B - aangrenzend huizenblok (Febelfin, Hendrik Conscience)

De gebouwen zijn minder hoog: GLV+8 tot 12 verdiepingen en 4 verdiepingen aan de kant van de Marktstraat. De grondinname van het huizenblok bedraagt ± 9 000 m².

*C - aangrenzend huizenblok (Ferraris)

Het gebouw ontsnapt aan de strikte typologie van het huizenblok door de aanwezigheid van woningen aan de kant van de Sint-Rochuswijk (stedenbouwkundige lasten).

Op de hoek van de Volksstraat en de Albert-II-laan vormt het gebouw de rooilijn. Het gebouw staat terugwijkend ten opzichte van de Antwerpsesteenweg zodat op de hoek plaats overblij voor het toegangspla orm tot de kelderverdieping. De hoogtes variëren van GLV+4 tot GLV+12. Het kantoorgebouw is hoofdzakelijk opgetrokken uit gevels van steen en glas. De grondinname van het huizenblok bedraagt ± 4 100m².

*D - aangrenzende huizenblokken (WTCIII)

Het gebouw, volledig verouderd, hee een sokkel van ongeveer 16m, of GLV+3 verdiepingen en een toren van ongeveer 103 m, of GLV+27 verdiepingen. De bouwwerken volgen de rooilijn van de wegen rond het huizenblok, met een insprong aan de kant van de Simon Bolivarlaan. De grondinname van het huizenblok bedraagt ± 9 800m². De gevels zijn gordijnmuren opgetrokken uit glas. De daken zijn plat. De toren WTC III, met de torens WTC I & II, is opgenomen in de inventaris van het bouwkundig erfgoed.

*J - aangrenzend huizenblok (ZIN-project WTC I en II)

Dit huizenblok volgde oorspronkelijk de typologie van het Manha anplan. Momenteel zijn er werken aan de gang. De torens WTC I en II, en de toren WTC III waren opgenomen in de inventaris van het bouwkundig erfgoed van het Brussels Hoofdstedelijk Gewest. De bouwwerken volgen de rooilijn van de wegen rond het huizenblok, met een insprong aan de kant van de Simon Bolivarlaan. De torens hebben een hoogte van ongeveer 103 m. De grondinname van het huizenblok bedraagt ± 10 000 m². De gedemonteerde gevels waren gordijnmuren opgetrokken uit glas. De daken zijn plat.

*K - aangrenzend huizenblok (Moëbius)

De hoogbouwtypologie associeert dit huizenblok met het systeem van het Manha anplan. Het Moëbius-gebouw hee een sokkel en 2 torens van 81 tot 98m, d.i. GLV+19 en GLV+23 verdiepingen. De bouwwerken volgen de rooilijn van de wegen rond het huizenblok. De grondinname van het huizenblok bedraagt ± 4 500 m². De gevels zijn gordijnmuren opgetrokken uit glas en beton. De daken zijn plat.

*L - aangrenzend huizenblok (Ellipse building)

Het huizenblok omvat een toren van ongeveer 86m en GLV+21 verdiepingen. De andere gebouwen hebben variabele hoogtes van 15 en 36 m (GLV+3 tot 8 verdiepingen). De grondinname van het huizenblok bedraagt ± 5 200 m². De bouwwerken volgen de rooilijn van de wegen rond het huizenblok. De gevels zijn gordijnmuren opgetrokken uit glas en de daken zijn plat.

*M - aangrenzend huizenblok (Residen e Noord Amelinckx)

Dit huizenblok omvat een woontoren van 26 verdiepingen + GLV met een hoogte van ongeveer 82m. Aan de kant van het Solvayplein bestaat de rooilijn uit een gebouw met GLV+2 verdiepingen. Dit gebouw en de toren geven ook uit in de Vooruitgangstraat, maar met een insprong ten opzichte van de weg. Een ander gebouw, GLV + 4 verdiepingen, staat al op de rooilijn van de Vooruitgangstraat.

*N - Medical center

Tussen de Vooruitgangstraat en de sporen stond een medisch centrum tegen de spoorweg. Dit gebouw werd recent afgebroken.

*H - huizenblokken 73 en 74 Aarschotstraat:

Het oude en dichte weefsel uit de 19de eeuw bestaat uit kleine bouwprofielen (maximaal GLV+4-) die zijn georganiseerd in huizenblokken. De gebouwen zijn bijzonder oud en verkeren soms in slechte staat. In dit huizenblok is de Sint-Jan en Sint-Niklaaskerk beschermd als element van het bouwkundig erfgoed.

BUSINESS-AS-USUALSCENARIO

* De Noordwijk is met verschillende grote bouw- en renova eprojecten volop in muta e. Ze kan uitgroeien tot een belangrijke stedelijke groeipool dankzij de visuele en binnenkort ook func onele verbinding met de site Thurn & Taxis in het westen.

Plannen, programma's en projecten:

* Het GPDO iden ficeert de Noordwijk als een prioritaire ontwikkelingspool en situeert de site van het CCN in een gebied van grondreserves. In de Noordwijk wordt ook een beheerste verdich ng doorgevoerd (d.w.z. verdich ng die gepaard gaat met een goede aanpassing van het openbaar vervoer, comfortabele open ruimte, voldoende groene ruimten en nabijheidsdiensten, respect voor het erfgoed en herwaardering van de bestaande bebouwing).

* De visie voor het Territorium Noord omvat met name de volgende doelstellingen:

▪ Het principe van de 'dubbele skyline' voor nieuwe gebouwen in de wijk naleven, waarbij er zowel op lage schaal ten opzichte van de openbare ruimte als op hoge schaal ten opzichte van het stedelijke silhouet wordt gebouwd.

▪ Backstreets vermijden door met name de verschillende soorten toegangen te verdelen over de hele omtrek van het huizenblok en door de gevels niet te specificeren maar een mix van gebruiken te voorzien op schaal van de gevels.

* In het kader van de waarschijnlijke heraanleg van het huizenblok Proximus, vermeldt de nota Proximus de uitdaging, in de Bolivarlaan, om de rechtstreekse toegankelijkheid te verbeteren; vandaag wordt deze toegankelijkheid bemoeilijkt door het hoogteverschil tussen de openbare ruimte en de benedenverdieping. De gebruikelijke aanpak, a raak en wederopbouw, is niet wenselijk en kan eventueel enkel worden gerechtvaardigd met het vooruitzicht van een toekoms g project met een zeer hoge sociale toegevoegde waarde.

De nota bepaalt 3 grote doelstellingen bij de herontwikkeling van de Proximussite: maximaal behoud van de gebouwen (ten behoeve van het klimaat en de circulariteit), opentrekken van de sokkel (dialoog tussen openbare ruimte en gebouwen) en gemengdheid van func es. Er dient opgemerkt dat deze renova e van oude gebouwen / maximaal behoud van de gebouwen de poten ële wijziging van de volumes, en met name van de hoogtes, niet uitsluit. Volgens de nota zouden de torens met maximaal 2 verdiepingen kunnen worden verhoogd. Meer bijkomende verdiepingen zouden de originele figuur van het Manha anplan uit evenwicht brengen. Bovendien beveelt de nota aan om de bebouwde grondinname te verkleinen tot 70% (of minder) en de vloeroppervlakte met maximaal 5% te vergoten. Ten slo e stelt ze voor om de niet-opportune logis eke ingangenparkings te verplaatsen (bijvoorbeeld aan de kant van de Vooruitgangstraat/ Noordplein) naar de Albert II-laan die het statuut Auto Comfort hee .

* Medical center: De NMBS koestert de inten e om op de plaats van het vroegere medisch centrum een nieuw gebouw op te trekken, maar een concreet project werd nog niet goedgekeurd.

* Het CCN : Dit gebouw maakt momenteel het voorwerp uit van studies voor een grondige verbouwing (a raak-wederopbouw). Een aanvraag voor een a raakvergunning werd ingediend.

* Voor het gebouw North Galaxy is nog geen project bekend.

* In 2014 werd een vergunning aangevraagd voor de bouw van de toren WTC IV en de gedeeltelijke verhoging van de sokkel. Dat project lijkt te zijn afgevoerd. In 2015 werd een nieuwe vergunning voor verbouwing aangevraagd en toegekend. Het betre onder meer een wijziging van volumes, bestemmingswijzigingen

(toevoeging van handelszaken op de benedenverdieping) en een wijziging van de rooilijn (openpermits.brussels).

* In het ZIN-project wordt het principe van de 'dubbele skyline" slechts voor een deel toegepast: de kenmerkende hoge schaal van het Manha anplan wordt gerespecteerd (recupera e van de kernen van de 2 WTC-torens) en een lage schaal is daadwerkelijk aanwezig, maar de sokkels van de torens bevinden zich aan de straatkant en vormen de rooilijn. Op die plaatsen ontbreekt het dus aan een lage schaal en kan een aanvaardbare, menselijke schaal niet worden hersteld vanwege de aanwezigheid van torens.

Alterna ef 0 (bij behoud van het BBP):

De grondinname van de toekoms ge gebouwen zal worden omkaderd door de eisen van het GBP en het BBP inzake openbare ruimten die tot op heden niet werden gerespecteerd.

De volumetrie zal hoofdzakelijk worden omkaderd door het BBP, volgens de logica van het Manha anplan waarvan de laagbouwzone van 13m tot op heden niet werd gerespecteerd.

Alterna ef 0+ (bij opheffing van het BBP):

De grondinname van de toekoms ge gebouwen zal met name worden bepaald door voorschri 0.2 van het GBP.

De volumetrie en de plaatsing van de toekoms ge gebouwen vallen onder de GSV en de GemSV. Omdat de GSV en de GemSV niet zijn voorzien om te worden toegepast bij ge-

UITDAGINGEN

Uitdagingen die kunnen worden behandeld in het BBP:

* Dubbele skyline: er moet zowel op lage schaal worden gebouwd ten opzichte van de openbare ruimte op grondniveau als op hoge schaal ten opzichte van het stedelijke silhouet.

* Voor de hoogbouw bepalen de torens van dezelfde hoogte van het Manha anplan (WTC I-II-III) het bouwprofiel in de perimeter van het BBP en dragen ze bij tot het karakter van visuele landmark van de Noordwijk in de stad. Dit karakter moet worden behouden.

* Aanpassing van de bebouwing om bruikbare open ruimten te creëren in de huizenblokken en doorbraken van de huizenblokken in oost-westelijke rich ng.

REFERENTIE-INDICATOREN

Indicatoren Huidige waarde

Algemene grondinnamecoëfficënt 31 % (uitgebreid BBP)97 % (percelen buiten Noordsta on)

Vloeroppervlakte 256.000m² (buiten Noordsta on)

Maximumhoogte in huizenblok 72 (CCN)

Maximumhoogte in huizenblokken 68 en 71 54m102m

RUIMTELIJKE ORGANISATIE Hoofdstuk II / Afdeling 2 Diagnose van de bestaande en tenden ële situa e/ p. 37 STRUCTUUR VAN DE BEBOUWDE RUIMTEN

STRUCTUUR VAN DE OPEN RUIMTEN

BESTAANDE RECHTSTOESTAND

In het GBP zijn de Albert II-laan en de Simon Bolivarlaan opgenomen als structurerende ruimten die moeten worden gevrijwaard en waar de kwaliteit van het stedelijke landschap moet worden verbeterd. Het centrale deel van de Albert II-laan is opgenomen als parkgebied. Voorschri 0.2 van het GBP legt bij projecten met een grondoppervlakte > 5000 m² de aanleg op van groene ruimten die minstens 10 % van die grondoppervlakte beslaan, daarin begrepen één of meer groene ruimten uit één stuk met een grondoppervlakte van 500 m² elk.

Titel I van de Gewestelijke Stedenbouwkundige Verordening (GSV) gee de voorschri en betreffende de wegen, de toegangen en de naaste omgeving.

Het BBP nr. 19 voorziet in grote verkeerszones met een open ruimte voor het sta on, ter hoogte van het Simon Bolivarplein. Het plan bepaalt ook de zone die is voorbehouden voor de toegangspla ormen van het CCN naar het Solvayplein. Het BBP legt overigens geen groene zone op, maar er moet worden voorzien in 30% groene ruimten in de laagbouwzone van de huizenblokken North Galaxy en Proximus, hetzij op de grond, hetzij boven de grond. Deze beplante oppervlakte kan met maximaal 2/3 van de totale oppervlakte per gebouw worden verminderd voor de aanleg van toegangen tot de gebouwen en garages. In de feitelijke toestand wordt aan deze verplich ng voor het huizenblok Proximus niet voldaan en de groene ruimten van het huizenblok North Galaxy zijn gelegen op de laagbouwzone en niet toegankelijk.

De Gemeentelijke Stedenbouwkundige Verordening (GemSV) bepaalt regels voor de inrich ng van de nabije omgeving van de gebouwen om de beplan ng te garanderen en de ondoorlatendheid te verminderen (ar kelen 38 tot 40).

BESTAANDE FEITELIJKE TOESTAND

De Noordwijk beschikt over tal van open ruimten, maar die zijn omwille van hun omvang en verhoudingen vaak niet erg prak sch of slechts van residuele aard. Ze werden nooit gecoördineerd en homogeen opgevat en werden aanvankelijk ontwor-

pen ten behoeve van het gemotoriseerde verkeer (de ac eve verplaatsingswijzen moesten worden gesitueerd in de zone voor laagbouw, maar dat werd nooit uitgevoerd). De open ruimten zijn soms verzorgd ingericht, maar hebben zelden een welbepaalde bestemming en nodigen niet uit tot gebruik. De meeste open ruimten zijn openbaar. De privéruimten zijn beperkt tot de randen van de gebouwen Proximus en North Galaxy. De openbare ruimten zijn grotendeels verhard, wat bijdraagt tot het fenomeen van hi eeilanden. De hoge gebouwen accentueren bovendien de effecten van de wind en werpen slagschaduwen op alle open ruimten in de wijk.

De centrale figuur van de Manha anwijk is het kruis dat wordt gevormd door de noordzuidas van de Koning Albert II-laan en de oost-westas van de Simon Bolivarlaan waar nog druk autoverkeer heerst.

In en rond het BBP liggen de volgende straten:

* De Albert II-as is 60 m breed en werd oorspronkelijk opgevat als een stadssnelweg.

In de jaren 1970 werd dat project afgevoerd door de vertraging van de economische ac viteit. Tussen 1995 en 1997 werden de middenbermen ingericht volgens de plannen van landschapsarchitect Jacques Wirtz. Ze worden diagonaal doorkruist door voetgangerspaden in dolomiet. De middenbermen worden afgezoomd door bomen en we zien verschillende sta ge kunstwerken. Het majestueuze perspec ef eindigt aan de Zenith-toren in het noorden die in 2009 werd gebouwd. De belangrijke grootstedelijke rol van deze as wordt benadrukt door haar afme ngen die leesbaarheid en con nuïteit bevordert. In het noordelijke deel is het verkeer veel rus ger. Een versterking van de gebruikswaarde van deze laan zou de wijk gezelliger maken zonder a reuk te doen aan haar grootstedelijke rol.

* De Simon Bolivarlaan is 80 m breed, maar in het westelijke deel in de buurt van het kanaal is de breedte beperkt tot 50m. De oostelijke tak loopt momenteel uit op het CCN op het Simon Bolivarplein. De Simon Bolivarlaan is zeer verhard. De beplante ruimten tussen de rijbanen zijn zeer klein.

* De Vooruitgangstraat wijkt tussen het Solvayplein en de Koolbrandersstraat van haar oorspronkelijke traject af om plaats te bieden aan het CCN. De leesbaarheid van de verschillende delen als één geheel is niet evident. De breedte varieert van 17 m in het deel ten noorden van het Solvayplein tot ongeveer 22 m in het omgeleide deel (Solvay-Koolbrandersstraat) en in het zuidelijke deel rich ng Rogierplein. De Vooruitgangstraat lijkt een backstreet rond het CCN (parkinguitri en, het interna onale bussta on...). Er dient opgemerkt dat het oude traject van de Vooruitgangstraat nog een overdekte doorgang voor fietsers en voetgangers en een Kiss & Drive-zone omvat onder het CCN.

* De Kwatrechtstraat is ongeveer 15 m breed en loopt onder de spoorwegbrug door. In het verlengde hee ze een centrale zone met laanbomen.

* De Aarschotstraat is ongeveer 14 m breed. Ze is zeer sterk verhard. Aan de westkant staat de spoorwegmuur, aan de oostkant zien we raampros tu e.

* De Koolbrandersstraat is ongeveer 18 m breed en is een volkomen dode straat met een rechtlijnige en blinde gevel zonder enige toegang.

* De Antwerpsesteenweg, met een breedte van ongeveer 24 m, hee in de verschillende delen een variabel karakter. In het noorden loopt hij langs het Maximiliaanpark en omvat hij bomrenrijen, ter hoogte van het huizenblok WTC III is hij eerder verhard en is er weinig anima e.

* De Willem De Molstraat, is ongeveer 17 m breed. Ze werd recent gerenoveerd, samen met de werken aan het huizenblok Möëbius. In het zuidelijke huizenblok

(ZIN) zijn de werken nog in uitvoering, wat een impact hee op de straat. Rond het CCN-gebouw liggen drie pleinen (het Noordplein in het zuiden, het Solvayplein in het noorden en het Bolivarplein in het westen), essen ële scharnierpunten tussen de noord-zuid- en de noord-westrela es van het stadsweefsel. De pleinen vormen een interface die globaal niet erg kwaliteitsvol is. De openbare ruimte wordt hoofdzakelijk ingenomen door het verkeer van bussen en taxi's.

* Het Solvaypleinbestaat uit twee verschillende delen:

▪ het zuidelijke deel is een berijdbare weg waar de bussen van De Lijn en de MIVB rechtsomkeer maken en via een hellend pla orm naar verdieping -1 van het CCN rijden waar zich het bussta on bevindt. Dat sta on is ook bereikbaar via een voetgangerspla orm (trappen) aan de oostkant van het plein, langs de sporen). De parkinguitrit bevindt zich aan de westkant van het plein.

▪ Het noordelijke deel is in feite een weg met een beboomde middenberm. In het oosten wordt hij verlengd door de Kwatrechtstraat, links door de Willem De Molstraat.

De restruimten vormen onduidelijke en weinig aantrekkelijke openbare ruimten. Het Solvayplein is dus volkomen infrastructureel ingericht en beantwoordt nauwelijks aan de lokale uitdagingen die zijn verbonden aan de pleinfunc e. De open ruimte van het plein ligt tussen de sporen, het CCN en de torens North Galaxy en Armerlinckx en meet ongeveer 73 m bij 110 m.

* Het Noordplein is geconfigureerd als een groot kruispunt bestaande uit verkeerswegen die worden gescheiden door een middenberm. Het biedt toegang tot de parking van het CCN en tot het bussta on van De Lijn en de MIVB via een berijdbaar hellend pla orm naar verdieping -1 van het CCN. Aan de oostkant wordt de ruimte begrensd door de Noord-Zuidverbinding met een weinig kwaliteitsvolle doorgang onder de sporen. De enige ingang van het monofunc onele Boreal-gebouw in de Vooruitgangstraat en het gebrek aan ac eve benedenverdiepingen aan de andere kanten dragen niet bij tot de anima e op het plein. De open ruimte tussen de sporen, het Borealgebouw, het CCN en het Belgacomgebouw meet ongeveer 76 m bij 110 m. Onder de sporen is de weg ongeveer 38 m breed.

* Het Simon Bolivarplein doet dienst als voorplein voor het CCN, maar noch het gebouw noch het Proximus-gebouw is voorzien van een gelijkvloerse toegang voor voetgangers. Deze pla ormen en trappen vormen een barrière in de interface bebouwing-openbare ruimte. Het Bolivarplein is wel voorzien van brede voetgangerswegen bezoomd met bomen. Deze ruimte wordt omgeven door twee verkeerswegen die onder meer door bussen en taxi's worden gebruikt. Aan weerszijden liggen haltes en eindhaltes van bussen.

De doorgangen onder de sporen van de Kwatrechtstraat en het Noordplein, met een lengte van ongeveer 90m, zijn weinig aantrekkelijk voor voetgangers vanwege een gebrek aan licht en netheid en vanwege het lawaai en de geur van motoren. Ze bevorderen geenszins de oost-westverbindingen die in het landschap niet gemarkeerd zijn en de rela es tussen de verschillende wijken bemoeilijken.

Buiten het geografische gebied liggen het Maximiliaanpark en de Espace Gaucheret, beplante open ruimten met aanzienlijke breedtes.

RUIMTELIJKE ORGANISATIE Hoofdstuk II / Afdeling 2 Diagnose van de bestaande en tenden ële situa e/ p. 38
Open ruimten in de wijk (BRAT, op basis van Urbis en de gegevens van het CIBG)

BUSINESS-AS-USUALSCENARIO

Plannen, programma's en projecten

In het GPDO zijn het Noordsta on en zijn omgeving gedefinieerd als een bestaande lokale iden teitskern. Het vermeldt ook de wil om het natuurlijke landschap te versterken, met als doel "de kwaliteit van de openbare ruimte te verbeteren, meer plaats voor openbare ruimte te voorzien in dichtbevolkte wijken en de structurerende rol van de gewestelijke openbare ruimten te versterken". Het Gewest wil ook de openbare ruimte herwaarderen rond de grote sta ons, die toegangspoorten tot de stad zijn, en rond de knooppunten van het openbaar vervoer, nieuwe plaatsen met een hoge stedelijke intensiteit. Het Gewest bepaalt in het GPDO een aantal prioritaire gebieden voor de consolida e van de intergewestelijke open ruimten. Het betre structurerende open ruimten, belangrijke onderdelen van het groene en blauwe netwerk: de versterking van het groene netwerk is gericht op de kwalita eve en kwanta eve ontwikkeling van de groene ruimten en hun omgeving en van de structurerende assen die ze met elkaar verbinden (park system). De herwaardering van deze structurerende open ruimten maakt deel uit van het beleid voor de verbetering van de leefomgeving.

Het plan Good Move draait rond strategische punten zoals het creëren van grote, verkeersluwe "leefwijken" en een evenwich ger verdeling van de ruimte tussen alle vervoerswijzen. Het plan voorziet onder meer een voetgangersboulevard van het Rogierplein, via de Vooruitgangstraat, het Bolivarplein en de Bolivarlaan, naar Thurn & Taxis. De directe omgeving van het Noordsta on, een belangrijke overstapknoop, moet de mogelijkheden voor intermodale verplaatsingen versterken. Er moet worden toegezien op de universele toegankelijkheid, het comfort en de leesbaarheid van de doorgangen. Voor deze overstapknopen worden concrete ac es bepaald zoals het lanceren van een programma voor de inrich ng van de sta ons en hun omgeving en de integra e van deze renova es en inrich ngen in de stedelijke projecten.

Het Beeldkwaliteitsplan is het plan voor landschappelijke en stedenbouwkundige kwaliteit voor het kanaalgebied. De straten die het kanaal oversteken of erop uitkomen (zoals de Bolivarlaan die doorloopt tot aan de Suzan Danielbrug) zijn lineaire openbare ruimten die door hun inrich ng de iden teit van het kanaal "verbreden" zodat ze in het hele kanaalgebied zou worden gepercipieerd. Deze straten maken het ook mogelijk om de wijken te verbinden met het kanaal. Het BKP kenmerkt de straten of assen die op het kanaal uitlopen volgens 6 typologieën: landschappelijke assen, assen voor ac eve weggebruikers, landschappelijke assen voor ac eve weggebruikers, overstekende assen, wegen die uitkomen op het kanaal en grootstedelijke assen. Voor de Simon Bolivarlaan, een landschappelijke as en as voor ac eve weggebruikers, gelden onder meer de volgende doelstellingen: het klooflandschap in het centrum van het kanaalgebied versterken, het groene karakter van de overstekende assen tussen de beide kanaaloevers versterken; waar mogelijk een duurzaam waterbeheer creëren door middel van een "bovengrondse" inrich ng voor het regennetwerk die het mogelijk maakt afvloeiingswater te bufferen en naar het kanaal of de Zenne te voeren; de mogelijkheid onderzoeken om gedeelde ruimten, fietsstraten of woonerven in te richten, doorlopende assen voor de ac eve weggebruikers aanleggen die een gemakkelijke en veilige oversteek mogelijk maken van de wegen die ze kruisen, met kwaliteitsvolle grondbedekkingen en fietsparkeerplaatsen.

Het Stadsvernieuwingscontract SVC1, "Citroën - Vergote" voorziet in de heraanleg van het Maximiliaanpark en de Simon Bolivarlaan tussen de Willebroekkaai en de Ant-

werpsesteenweg, met een visie tot aan het Noordsta on. In het verlengde van dit project wil Brussel Mobiliteit de Simon Bolivarlaan heraanleggen tot een heuse openbare ruimte die zich openstelt voor de wijk en die met het kanaal is verbonden via een voetgangersboulevard, een sterke fietsas en een nieuwe tramlijn en waar de weg veel minder plaats inneemt. Langs de weg wordt bovendien beplan ng voorzien om de landschappelijke en groene con nuïteit met het Maximiliaanpark te garanderen.

Het Stadsvernieuwingscontract SVC2""Noord-Brabant-Sint-Lazarus" wil de impact van de breuken, met name de doorgang onder de sporen verminderen en de verdeling van de openbare ruimte herzien om de modal shi aan te moedigen (een van de gefinancierde projecten is bijvoorbeeld de verbetering van de tunnels onder de sporen). De intervenes sluiten aan bij de doorgang van de tram in de tunnel en dus bij de algemene reorganisa e die is voorzien door de MIVB en Brussel Mobiliteit.

Het Gemeentelijk Plan voor Duurzame Ontwikkeling (GemPDO) van Schaarbeek bevat de strategische doelstelling om de algemene renova e van de openbare ruimten voort te ze en en het aangename gebruik ervan te bevorderen.

Ook het Gemeentelijk Ontwikkelingsplan (GemOP) van de Stad Brussel wil onder meer het imago van de Noordwijk verbeteren.

De nota "Projectlines Proximus", gezamenlijk uitgegeven door de verschillende gemeentelijke en gewestelijke besturen (in lijn met de Visie voor het Territorium Noord), legt het accent op de strijd tegen de backstreets, de versterking van de oost-westassen, de verbetering van de gebruikswaarde van de grootstedelijke openbare ruimten door het creëren van func onele gemengdheid, de ontharding van de open ruimten en de verbetering van de rela e tussen de benedenverdiepingen en de openbare ruimte. Prioriteit daarbij is het doorbreken van de dominan e van de Albert II-laan en van de eentonigheid van de andere straten. Vervolgens moeten perspec even worden gecreëerd naar het binnenterrein van de sokkel (aanleg van bruikbare open ruimten op de percelen). Onder meer het doodse karakter van de straten moet worden weggewerkt met diverse toegangen en insprongen die open ruimte creëren. Daarnaast moet de interac e tussen de bestaande groene ruimten en de gebouwen in de Albert II-laan worden versterkt en moeten er strategieën worden uitgewerkt die de oppervlakten met volle grond verhogen, bijvoorbeeld door bepaalde delen van de kelderverdiepingen af te breken. Voor het huizenblok Proximus wordt aanbevolen om de sokkels open te trekken door de grondinname van de gebouwen te verkleinen tot 70%, met het doel om open ruimten en visuele doorbraken doorheen het huizenblok te creëren. Bovendien wordt voorgesteld om de niet-opportune logis eke ingangen-parkings te verplaatsen (bijvoorbeeld aan de kant van de Vooruitgangstraat/Noordplein) naar de Albert II-laan die het statuut Auto Comfort hee .

Het CCN : Dit gebouw maakt momenteel het voorwerp uit van studies voor een grondige verbouwing (a raak-wederopbouw). Een aanvraag voor een a raakvergunning werd ingediend.

Alterna ef 0 (bij behoud van het BBP):

* De voorschri en van het huidige BBP vloeien deels voort uit de logica van het Manha anplan dat het voetgangersverkeer in de hoogte wou laten plaatsvinden, gescheiden van de snelwegen op grondniveau. Deze logica van een voetgangersstad op een kunstma ge bodem ligt aan de oorsprong van de blinde en logis eke sokkels op de benedenverdiepingen en zou worden behouden.

* Voorschri 0.2 van het GBP zou van toepassing zijn en impliceren dat bij nieuwe projecten (a raak-wederopbouw) de groene ruimten minstens 10% van de vloeroppervlakte van het project zouden moeten beslaan, waarvan minstens 500m² uit één stuk.

Alterna ef 0+ (bij opheffing van het BBP):

Behalve aan voorschri 0.2 van het GBP zouden de openbare ruimten ook zijn onderworpen aan de GSV: aan de kant van de openbare weg moet de gevel van de bebouwing op de rooilijn worden geplaatst. Ook de GemSV zou van toepassing zijn.

UITDAGINGEN

Uitdagingen die kunnen worden behandeld in het BBP:

* Het netwerk van de open ruimten van de Noordwijk (Maximiliaanpark, Espace Gaucheret, Rogierplein, Kanaalkaai…) concre seren en coherent behandelen.

* Een menselijke schaal creëren in de openbare ruimten die oorspronkelijk werden aangelegd voor het autoverkeer, in samenhang met de lage schaal van de "dubbele skyline".

* Het statuut en de toegankelijkheid van de stad en het sta on op grondniveau verduidelijken (interface openbare ruimte-CCN-Noordsta on).

REFERENTIE-INDICATOREN

Indicatoren Huidige waarde

Aandeel van de open ruimten binnen de perimeter 62 % / 45 % (BBP / uitgebreid BBP)

Grondinnamecoëfficiënt op de percelen 97 % buiten Noordsta on

RUIMTELIJKE ORGANISATIE Hoofdstuk II / Afdeling 2 Diagnose van de bestaande en tenden ële situa e/ p. 39 STRUCTUUR VAN DE OPEN RUIMTEN

STEDELIJKE LANDSCHAPPEN EN SYMBOLISCHE RICHTPUNTEN

BESTAANDE RECHTSTOESTAND

In het GBP zijn de Albert II-laan en de Simon Bolivarlaan opgenomen als structurerende ruimten die moeten worden gevrijwaard en waar de kwaliteit van het stedelijke landschap moet worden verbeterd.

Titel I van de Gewestelijke Stedenbouwkundige Verordening (GSV) bepaalt de stedenbouwkundige kenmerken van de gebouwen en hun naaste omgeving. Volgens de GSV moeten gebouwen dezelfde hoogte hebben als de aanpalende gebouwen en de goede plaatselijke aanleg respecteren.

Voor de volumetrie bepaalt het BBP nr. 19 een laagbouwzone van 13 m voor de huizenblokken 71 en 72 en een hoogte van 102 m voor de 3 torens van deze huizenblokken. Het bepaalt een maximumhoogte van 23m voor de gebouwen met middelma ge hoogte van huizenblok 72 (aan de kant van het Solvayplein). Het gebouw van het CCN mag maximaal 35 m hoog zijn.

In werkelijkheid wordt de hoogte van 13m, bestemd voor het voetgangersverkeer zoals was voorzien in het Manha anplan, niet gerespecteerd, noch in huizenblok 71 noch in huizenblok 72.

De Sint-Jan en Sint-Niklaaskerk in de Aarschotstraat is het enige beschermd monument in de buurt van het BBP.

Het Noordsta on is opgenomen in de inventaris van het bouwkundig erfgoed van het Brussels Hoofdstedelijk

Gewest, net als de Pleiadetorens (Proximus) en de torens WTC I, II en III (WTC I en II maken momenteel het voorwerp uit van een project, enkel de centrale kernen resteren nog).

BESTAANDE FEITELIJKE TOESTAND

Het BBP ligt wat de uitzichten betre buiten de beschermzones die zijn bepaald op de kaarten van de hoogtebeperkingen uit 1979.

Landschappelijk weefsel

Het algemene landschap van de wijk wordt gemarkeerd door de Zennevallei:

* De 'pla e' noord-zuidas van de Albert II-laan maakt de verbinding met het stadscentrum in het zuiden via de Emile Jacqmainlaan en biedt in het noorden een stag perspec ef dat werd voltooid met de bouw van de Zenith-toren;

* De 'pla e' oost-westas - de Bolivarlaan - maakt de verbinding met de site Thurn & Taxis en met het kanaalgebied in het westen, om in het oosten uit te geven op het CCN:

* de oostkant van de vallei, die begint voorbij de sporen, vertoont een aanzienlijk hoogteverschil dat vanaf de Brabantwijk en de Sint-Lazaruswijk uitzichten creëert op de Manha anwijk.

Aan weerszijden van het spoorweggebied dat een barrière vormt, zien we 2 soorten bebouwd weefsel: in het oosten een oud en dicht residen eel weefsel uit de 19de eeuw met kleine bouwprofielen georganiseerd in huizenblokken; en in het westen grote kantoorgebouwen met in het midden de Manha anwijk. Deze kantoorwijk werd voorzien van wegen in een dambordpatroon en bestaat uit torens die werden gebouwd volgens plannen van de jaren 60. In het midden staan de WTC-torens. Zij werden uitgedacht als

Gaucheret kunnen poten ële ankerplaatsen worden om een sterke stedelijke en landschappelijke structuur te vormen. Het noordelijke deel van de Koning Albert II-laan oogt bijzonder groen, maar staat in scherp contrast met de rest van de wijk die hoofdzakelijk verhard is. Bovendien zijn de schaarse en beboste groene ruimten er niet met elkaar verbonden.

Stedelijke richtpunten

Alle torens in de wijk vormen sterke landmarks, richtpunten in de Brusselse skyline die al van heel ver zichtbaar zijn: de Mari emwijk, de kerk Onze-Lieve-Vrouw van Laken, de Lambermontlaan, Wiels, Scheutbos...

Het Noordsta on, opgenomen in de inventaris van het bouwkundig erfgoed, wordt verdrongen door het CCN-gebouw en is zijn rol van lokaal richtpunt kwijtgespeeld. Vanaf de Simon Bolivarlaan is het overigens niet meer zichtbaar. De centrale figuur van de Manha anwijk is het kruis dat wordt gevormd door de noord-zuidas van de Koning Albert II-laan en de oost-westas van de Simon Bolivarlaan met het beeld Esprit ouvert–Perspec ves et Réflexions van Tapta (uit 2016). Een ander beeld,L’Arche van Pierre Culot, staat meer noordwaarts op de middenberm. Het dateert eveneens van 2016.

Meer verderop gelegen stedelijke richtpunten zijn in het zuiden de Kleine Ring en de koepel van het Rogierplein, in het westen het kanaal en de site Thurn & Taxis en in het oosten de spoorweg en de Sint-Mariakerk op de Sint-Lazarusheuvel.

Lokalisa e van de beschermde elementen of elementen die zijn opgenomen in de Brusselse inven-

De Gemeentelijke Stedenbouwkundige Verordening (GemSV) de opmerkelijke architectuurelementen aan de gevel en van het klein erfgoed.

De noord-zuidassen volgen de logica van de Zennevallei en domineren de stedelijke structuur van de wijk: de spoorweg, de Koning Albert II-laan, de groene as van het Maximiliaanpark die is verbonden met de Willebroekkaai en ten slo e de as van het kanaal Brussel-Charleroi. Deze noord-zuidverbindingen vormen een barrière in de dwarsrichng, terwijl de oost-westrela es geenszins in het landschap zijn gemarkeerd en de relaes tussen de verschillende wijken bemoeilijken. De doorgangen onder de sporen en de brede doorsteken voor het autoverkeer accentueren nog dat fenomeen.

In de huidige configura e kunnen het Noordplein, het Solvayplein en het Bolivarplein geen belangrijke verbindende rol vervullen tussen de noord-zuid en de oost-westrela es in het stedelijke netwerk.

Het kanaal dat momenteel wordt herontwikkeld, het Maximiliaanpark of de Espace

Bovenaan: zicht op de wijk vanaf de Dupontstraat (Sint-Lazarusheuvel) (Google)

Onderaan: zicht op de Noordwijk (James Cridland op Wikipedia)

RUIMTELIJKE ORGANISATIE Hoofdstuk II / Afdeling 2 Diagnose van de bestaande en tenden ële situa e/ p. 40
Sint-Jan
-
en Sint
Niklaaskerk
Markant gebouwd weefsel in het landschap rond de site (Google Satellite)

BUSINESS-AS-USUALSCENARIO

Plannen, programma's en projecten:

* Het GPDO benadrukt de sterke band tussen het kanaal en het stadscentrum. Het Gewest wil via het GPDO de landschappelijke en structurerende waarde van de gewestelijke openbare ruimten herbeves gen.

* Het Beeldkwaliteitsplan is het plan voor landschappelijke en stedenbouwkundige kwaliteit voor het kanaalgebied. De straten die het kanaal oversteken of erop uitkomen (zoals de Bolivarlaan die doorloopt tot aan de Suzan Danielbrug) zijn lineaire openbare ruimten die door hun inrich ng de iden teit van het kanaal "verbreden" zodat ze in het hele kanaalgebied zou worden gepercipieerd. Het BKP kenmerkt de straten of assen die het kanaal oversteken of erop uitlopen volgens 6 typologieën: landschappelijke assen, assen voor ac eve weggebruikers, landschappelijke assen voor ac eve weggebruikers, overstekende assen, wegen die uitkomen op het kanaal en grootstedelijke assen. De Simon Bolivarlaan is erin opgenomen als landschappelijke as en as voor ac eve weggebruikers.

* De Noordwijk is met verschillende grote bouw- en renova eprojecten volop in muta e. De eerste regels van de Gedeelde visie voor het Territorium Noord omva en doelstellingen verbonden aan het structurerende karakter van de structuurpijlers, met name minder verstoring door de grote stedelijke barrières in het stadsweefsel (vooral noord-zuid), met versterking van de oostwestrela es, met het doel om de rela es tussen de verschillende wijken te verbeteren.

* Het CCN-gebouw maakt momenteel het voorwerp uit van studies voor een grondige verbouwing. Het deel a raak daarvan wordt momenteel onderzocht.

* In de nota "Projectlines Proximus"wordt voorgesteld om de torens te verhogen als de grondinname wordt verkleind tot 70%. Zo kunnen open ruimten en visuele doorbraken doorheen de huizenblokken worden gecreëerd.

Alterna ef 0 (bij behoud van het BBP): Geen verandering van de toestand.

Alterna ef 0+ (bij opheffing van het BBP): Geen verandering van de toestand.

UITDAGINGEN

Uitdagingen die kunnen worden behandeld in het BBP:

* Het principe beves gen van de dubbele skyline: er moet zowel op lage schaal worden gebouwd ten opzichte van de openbare ruimte als op hoge schaal ten opzichte van het stedelijke silhouet.

* Ervoor zorgen dat het Noordsta on opnieuw een visueel richtpunt wordt

* Voor de hoogbouw bepalen de torens van dezelfde hoogte van het Manha anplan het bouwprofiel in de perimeter van het BBP en dragen ze bij tot het karakter van visuele landmark van de Noordwijk in de stad. Dat karakter van stedelijk richtpunt moet worden behouden en de link tussen deze hoge landmark en de lagere landmark 'Noordsta on' moet worden beheerd.

* De noord-zuid- en oost-westrela es van het landschap met elkaar verbinden, met het Solvayplein, het Bolivarplein en het Noordplein als scharnierpunt.

* Meer landschappelijke openheid creëren, met name door het poten eel opentrekken van de sokkels.

* De bestaande erfgoedelementen (torens, Noordsta on) vrijwaren, integreren en herwaarderen in samenhang met de uitdaging klimaat en circulariteit (a raakwederopbouw vermijden, de structuren hergebruiken)

* De belangrijke uitzichten vrijwaren op de externe symbolische richtpunten (T&T, Rogier, Sint-Maria) en vanaf plaatsen buiten de wijk op de lokale symbolische richtpunten (Noordsta on, torens).

REFERENTIE-INDICATOREN

Indicator Huidige waarde /

RUIMTELIJKE ORGANISATIE Hoofdstuk II / Afdeling 2 Diagnose van de bestaande en tenden ële situa e/ p. 41 STEDELIJKE LANDSCHAPPEN EN SYMBOLISCHE
RICHTPUNTEN
/

De perimeter van het BBP ligt volgens het GBP in drie verschillende gebieden:

* Administra egebied

* Spoorweggebied

* Parkgebied

De bebouwbare huizenblokken liggen in administra egebied. Het huizenblok van het CCN omvat in overdruk ook de le er "G" voor winkelgalerij, wat een beperking impliceert voor de oppervlaktes van de handels : 2500m².

De rest van de Manha anwijk is opgenomen als administra egebied, terwijl de Brabantwijk meer gemengde func es omvat (typisch woongebied, gemengd gebied, lint voor handelskernen, gebied voor voorzieningen…). Het westelijke en het noordelijke deel van de Noordwijk zijn opgenomen in een GGB waarvan een groot deel van de uitvoering is gepland door twee BBP's.

De overheersende func e die het GBP voorziet in de perimeter en in de directe omgeving ervan is de administra eve func e. Sinds de laatste wijziging van het GBP kan in dit gebied een grotere gemengdheid van func es worden geves gd:

"7.1. Deze gebieden zijn bestemd voor kantoren en woningen. Zij kunnen ook worden bestemd voor hotelinrich ngen en voorzieningen van collec ef belang of van openbare diensten.

7.2. Deze gebieden kunnen worden bestemd voor produc eac viteiten voor zover ze verenigbaar zijn met de bestemmingen bedoeld in 7.1.

7.3. Deze gebieden kunnen ook worden bestemd voor handelszaken waarvan de vloeroppervlakte niet meer dan 1 000 m² per project en per gebouw bedraagt.

De vergro ng van de vloeroppervlakte kan worden toegelaten nadat de handelingen en werken zullen onderworpen zijn aan de speciale regelen van openbaarmaking.

7.4. De stedenbouwkundige kenmerken van de bouwwerken en installa es stemmen overeen met het omliggend stedelijk kader; wijzigingen eraan zijn onderworpen aan de speciale regelen van openbaarmaking. ".

Voor de niet-verstedelijkbare ruimten:

* De externe Vooruitgangstraat die onder de verhoogde ingang van het CCN doorloopt en de ondergrondse Vooruitgangstraat zijn net als het Solvayplein en het Noordplein opgenomen als weggebied;

* De Albert II-laan en de Simon Bolivarlaan zijn structurerende ruimten.

* Het centrale deel van de Albert II-laan is opgenomen als parkgebied.

* Een bouwzone (zone voor laagbouw)

* Een bouwzone (zone voor gebouwen met middelma ge hoogte en zone voor hoogbouw)

Aanwijzingen voor het te voorziene percentage groene ruimten, de vloeroppervlakken per bebouwbaar niveau en de maximaal toegelaten hoogte worden meegedeeld in overdruk.

De volgende bestemmingen zijn toegelaten:

"De bouwzones zijn hoofdzakelijk bestemd tot het ontwikkelen of het aanleggen van residen ële, administra eve en commerciële groeperingen en tot alle uitrus ngen die daarbij horen. Deze zones omva en de volgende kenmerken:

a) zone voor laagbouw:

Deze zone omvat hoofdzakelijk de uitrus ngen gelegen onder het kunstma g geschapen grondvlak, zowel onder ais boven de begane grond.

b) zone der gebouwen met middelma ge hoogte:

Deze zone omvat hoofdzakelijk de gebouwen voor collec eve uitrus ngen.

c) zone voor hoogbouw:

Het BBP nr. 19 dekt slechts een klein gebied in vergelijking met de oorspronkelijke omvang (zie historiek van het BBP in de voorbereidende nota van het BBP). Dit gebied dekt een deel van het huizenblok van het CCN en het sta on, het huizenblok North Ga-

Deze zone omvat de lokalen bestemd voor huisves ng, bureaus, uitrus ngen, handel of het uitoefenen van vrije beroepen.

Het Centrum (afgekort CCN) is bestemd om in eenzelfde geheel onder te brengen: een sta on voor interlokaal en metropolisch spoorverkeer, een autobus- en tramsta on, een taxista on, de toegangen tot deze sta ons alsook de lokalen bestemd voor alle bijhorende diensten en uitrus ngen.

De voorschri en vermeld onder ar kel 10, d zijn van toepassing op het CCN. "

laxy en een deel van het huizenblok Proximus.

Het BBP laat dus ook een gemengdheid van func es toe waaronder de residen ële funce die vandaag niet werd uitgevoerd.

Het voorziet ook in een verplicht percentage groene ruimten (op de grond of het dak) en legt op dat buiten de openbare weg voldoende parkeerplaatsen moeten worden voorzien voor de werking van deze func es, zonder enige drempel of waarde te preciseren.

Ook de GSV en de GemSV omkaderen een aantal elementen die een invloed hebben op de stedelijke dynamiek: de aparte toegangen tot de verdiepingen (GSV en GemSV), de expressie van de handelsac viteit (GemSV), de plaatsing van reclame- en uithangborden (GSV en GemSV), de inrich ng van terrassen en etalages op de openbare weg (GemSV).

Bestemmingsplan van het Bijzonder Bestemmingsplan (BBP)

Het BBP vermeldt 5 zones:

* Een zone voor het verkeer

* Een specifieke zone voor het CCN

* Een zone voor de toegangspla ormen van het CCN

STEDELIJKE DYNAMIEK Hoofdstuk II / Afdeling 2 Diagnose van de bestaande en tenden ële situa e/ p. 42 STEDELIJKE DYNAMIEK
BESTAANDE RECHTSTOESTAND GBP
BBP Gewestelijk Bestemmingsplan (GBP) (PRAS) (Brugis, 2021)

BESTAANDE FEITELIJKE TOESTAND

De perimeter van het BBP omvat momenteel geen huisves ng. Het dichtstbij gelegen woongebouw staat op het Solvayplein (Amelinckx-toren) en omvat 320 woningen. De onderstaande cijfers hebben dus betrekking op de omgeving van de perimeter, namelijk de Noordwijk en de Brabantwijk (van de Wijkmonitoring).

Dichtheid

De bevolkingsdichtheid (2020) bedraagt 12.144 inw./km² in de Noordwijk en 24.707 inw./km² in de Brabantwijk (gewestelijk gemiddelde 7500 inw./km²). Ondanks de omvang van het kantoorpark blij de Noordwijk dus een dichte wijk, vooral in haar noordelijke en westelijke deel. De Brabantwijk is een van de dichtste wijken van het Gewest. Ze biedt verschillende troeven voor een houdbare verdich ng (criteria GPDO*): uitstekende bediening door het openbaar vervoer, nabijheid van verschillende groene ruimten, stedelijke morfologie, enz.

Sociodemografisch profiel

De bevolking in de wijk hee een zwak sociaaleconomisch profiel (gemiddeld inkomen per belas ngaangi e (2018) 16 257 € voor de Noordwijk en 15 480 € voor de Brabantwijk) en een vrij hoge verhouding werkzoekenden en steuntrekkenden. Een andere vaststelling is het grote aandeel van alleenstaande moeders van 20-49 jaar in het totale aantal vrouwen van 20-49 jaar (2019) (Noordwijk: 14.38% - Brabantwijk: 13.93% - Gewestelijk gemiddelde: 11.92%).

*beheerste verdich ng: verdich ng die gepaard gaat met een goede aanpassing van het openbaar vervoer, comfortabele openbare ruimte, voldoende groene ruimten en nabijheidsdiensten, respect voor het erfgoed en herwaardering van de bestaande bebouwing.

Omdat het deels gaat om een transitwijk zijn ook de buitenlanders en nieuwkomers zeer sterk vertegenwoordigd.

De bevolking hee ook een zeer uitgesproken familiaal en jong profiel: de gemiddelde lee ijd (2019) van de inwoners is 34.05 jaar voor de Noordwijk en 33.29 jaar voor de Brabantwijk (tegenover een gewestelijk gemiddelde van 37.52 jaar). Het aandeel jongeren van 0-17 jaar (2019) bedraagt 27.81% voor de Noordwijk en 27.51 % voor de Brabantwijk (tegenover een gewestelijk gemiddelde van 22.85%) en het aandeel 65plussers 9.25% voor de Noordwijk en 7.74 % voor de Brabantwijk (gewestelijk gemiddelde 13.13%).

Het familiaal profiel is ook duidelijk te merken aan de gemiddelde gezinsgroo e: het aandeel koppels met kinderen ligt boven het gewestelijk gemiddelde.

SindsÊkortÊzienÊweÊbovendienÊeenÊgentrifica everschijnselÊlangsÊhetÊkanaal:ÊerÊkomenÊ zichÊinwonersÊves genÊmetÊeenÊhogerÊsociaaleconomischÊprofielÊdanÊdatÊvanÊdeÊalÊaanwezigeÊwijkbewoners.ÊÊ

Bevolking en gebruikers

Het grootstedelijke karakter van de wijk (groot sta on nabij het centrum, zakendistrict, interna onaal bussta on…) trekt een groot aantal gebruikers aan uit het Gewest, het land en het buitenland: pendelaars die in Brussel komen werken, bezoekers, toeristen, migranten,... Al deze gebruikers, met grote verschillen in sociaaleconomisch profiel en culturele achtergrond, en de wijkbewoners (eveneens gediversifieerd) staan in de wijk naast elkaar, wat versnippering of isolement induceert maar ook solidariteit en sociale cohesie.

BUSINESS-AS-USUALSCENARIO

Bevolkingsprojec e en bevolkingsevolu e

Volgens de Brusselse gemeentelijke bevolkingsprojec es 2021-2030, gepubliceerd door het BISA, zal de bevolkingstoename tussen 2021 en 2030 respec evelijk +2,6% bedragen voor de Stad Brussel, +0,9% voor Sint-Joost-tenNode, +0,6% voor Schaarbeek en +2,1% voor het hele Brussels Hoofdstedelijk Gewest. Voor de drie gemeenten samen wordt tegen 2030 dus een bijkomende bevolking verwacht van +5.800 inwoners, waarvan een grote meerderheid zich in de Stad Brussel zal ves gen. De bevolkingsprojec es zijn de afgelopen jaren dus duidelijk naar beneden bijgesteld. In Schaarbeek worden tegen 2030 slechts 770 bijkomende inwoners verwacht.

Verschillende huisves ngsprojecten zullen de komende jaren echter nieuwe wijkbewoners aantrekken. De wijkbevolking zal dus sterker s jgen dan de officiële tenden ële projec es aangeven. In de perimeter en in de directe omgeving ervan zullen er ~1000 inwoners bijkomen (~270 inwoners voor het project ZIN, ~700 inwoners volgens de aanbevelingen van de nota Proximus voor de Proximustoren*), de verbouwing van het CCN en de omliggende projecten (Ferraris, poten eel Boreal en de vele projecten in

* Hypothese: zelfde gezinnen als gemiddeld en 1 woning/100 m² Sociaaleconomische sta s eken van de omliggende wijk (Wijkmonitoring)

de wijk Helihaven en langs het kanaal) niet meegerekend.

Vanwege de vele projecten die huisves ng beva en (ZIN, ambi es voor Proximus en Ferraris, projecten langs het kanaal...) zal de bevolking in de wijk dus sterker toenemen dan gemiddeld in het Gewest. De komst van al die nieuwe bewoners van de vele vastgoedprojecten zal de al grote uitdagingen op het vlak van sociale cohesie en imago van de wijk alleen maar groter maken.

Plannen en programma's

* Het Gewestelijk Plan voor Duurzame Ontwikkeling maakt van de Noordwijk een prioritaire ontwikkelingspool: het belang van huisves ng en de re-integra e van stedelijke gemengdheid worden benadrukt. Door de aanwezigheid van het Noordsta on zal in de Noordwijk een beheerste verdich ng worden doorgevoerd.

* Het Gemeentelijk Plan voor Duurzame Ontwikkeling (GemPDO) van Schaarbeek bevat de strategische doelstelling om het residen ële karakter van de gemeente te versterken, een gemengdheid van func es te behouden op het gemeentelijke grondgebied en de kwetsbare Schaarbekenaren uit de armoede en het isolement te halen.

* De doelstellingen voor het Territorium Noord beogen een geïntegreerde aanpak voor de opvang van migranten en het beheer van de migra estromen door een duurzame structuur te bouwen binnen het Territorium Noord, in de buurt van het Maximiliaanpark.

* Er dient opgemerkt dat de blijvende aanwezigheid van Vlaamse administra es in deze sector van Brussel, samen met de toename van het woningaanbod, waarschijnlijk Nederlandstalige gezinnen zal aantrekken (een fenomeen dat al zichtbaar is in de buurt van de Maximiliaanhoeve).

Alterna ef 0 (bij behoud van het BBP):

De bestemmingen worden omkaderd door het BBP dat de ontwikkeling van woningen toelaat.

Alterna ef 0+ (bij opheffing van het BBP):

De bestemmingen worden omkaderd door het GBP dat de ontwikkeling van woningen toelaat.

UITDAGINGEN

Uitdagingen die kunnen worden behandeld in het BBP:

* De toename van de bevolkingsdichtheid in de Noordwijk bevorderen op een houdbare en beheerste manier (met openbaar vervoer, groene ruimten, openbare ruimten, aangepaste voorzieningen);

* Gemengdheid en sociale cohesie garanderen tussen de bestaande en de toekomsge bevolking en de gebruikers van de wijk.

* De huisves ngsfunc e zichtbaar maken: toegang tot de woningen vanaf de straat, strategische plaatsing van de woningen om uitzichten te creëren op bewoonde gevels

REFERENTIE-INDICATOREN

Indicator Huidige waarde

Bevolkingsdichtheid in de perimeter 0 inwoners/ha

VoldoendeÊaanwezigheidÊvanÊgroeneÊruimten/inw.Ê (beheersteÊverdich ng) m²/inw.

STEDELIJKE DYNAMIEK Hoofdstuk II / Afdeling 2 Diagnose van de bestaande en tenden ële situa e/ p. 43 BEVOLKING
37,52

BESTAANDE FEITELIJKE TOESTAND

De perimeter van het BBP omvat momenteel geen huisves ng. Het dichtstbij gelegen woongebouw staat op het Solvayplein (Amelinckx-toren) en omvat 320 openbare woningen.

Het Manha an-gedeelte van de Noordwijk telt slechts weinig woningen aangezien er hoofdzakelijk kantoorgebouwen zijn geves gd. De woningen zijn dus vooral aanwezig in het noorden van de Noordwijk en in de Brabantwijk, waar het residen eel weefsel vooral typische Brusselse huizen bevat met een handels- of produc efunc e op de benedenverdieping. Ook het westen van de wijk omvat een residen eel weefsel dat hier vooral bestaat uit appartementsgebouwen (woontorens, nieuwe gebouwen langs het kanaal…).

Op schaal van het Gewest, is de vraag naar sociale woningen groot: op 21/01/2022, waren er 51.841 kandidaat huishoudens huurders voor sociale huurwoningen in BHC (bron: BGHM). Het aandeel van de sociale woningen is groot in de Noordwijk die beva e in 2019 18,35 % 'sociale' woningen (tegenover een gewestelijk gemiddelde van 7,2%), de meeste op de Antwerpsesteenweg, in de Gaucheretstraat en in de SintFranciscusstraat. Openbare huisves ngsprojecten zijn ook gepland in het westen van de wijk (programma van het SVC Citroën-Vergote) waar ongeveer 30.000 m² bijkomende openbare woningen zullen worden gebouwd (d.i. ~300 nieuwe openbare woningen beheerd door de Regie van de Stad Brussel).

De bestaande woningen in de wijk zijn in het algemeen vrij verouderd of bieden weinig comfort. Er bestaan geen sta s eken over de woningtypes (aantal slaapkamers) in de wijk, maar uit de sta s eken over de gemiddelde oppervlakte per woning en per inwoner kunnen we afleiden dat heel wat woningen klein zijn en niet geschikt

voor de hoge gemiddelde gezinsgroo e. De beheerder van de sociale huisves ng in Schaarbeek meent dat de vraag naar grote woningen bijzonder groot is. Recent werden in de wijk nieuwe woningen gebouwd, of zijn er projecten in uitvoering, waarvan het standingniveau contrasteert met de bestaande woningen. Volgens de effectenstudie van het ZIN-project worden in het kader van de projecten in de buurt van de site vooral woningen gebouwd met 2 slaapkamers (40%), gevolgd door studio's en woningen met 1 slaapkamer (elk 24%) en ten slo e woningen met 3 slaapkamers (12%). Het ZIN-project voorziet in 127 appartementen waarvan 26 studio's (20%), 72 appartementen met 1 slaapkamer (57%), 26 appartementen met 2 slaapkamers (20%) en 3 appartementen met 3 slaapkamers (3%). De verhouding grote appartementen voor gezinnen is in de wijk dus ondervertegenwoordigd, wat wellicht niet zal bijdragen tot de verankering van de inwoners in de wijk.

Het BBP ligt volledig in de zone voor stedelijke herwaardering 2020. In het kader van stadsvernieuwing werden er woningen/openbare projecten ontwikkeld, maar die situeren zich vooral in de Brabantwijk en in het noordelijke deel van de Noordwijk (Masui). Er kunnen verhoogde subsidies worden toegekend voor renova e en energie, maar de diagnose van de efficiën e van dit systeem blij weinig overtuigend.

Een groot deel van de bewoners verblij slechts jdelijk in de wijk, wat zich vertaalt in de vele huurwoningen (het Observa ecentrum van de Huurprijzen 2013-2015 raamt het aandeel op 65-70%, tegenover een gewestelijk gemiddelde van 58%) in het Territorium Noord. In 2018 bedroeg de gemiddelde maandhuur per woning 668€, dit is een van de laagste huurprijzen in het Brussels Gewest. De vastgoedprijzen zijn vrij laag voor een wijk die uitstekend gelegen is ten opzichte van voorzieningen en vervoer. Deze prijzen liggen onder het Brusselse gemiddelde. De woningen die recent werden ontwikkeld tussen het Noordsta on en het kanaal contrasteren echter met de rest van de wijk: hun verkoopprijzen variëren tussen 2.800€/m² en 4.000€/m².

Woningnood

Volgens het GPDO (2018): "De op te vangen bevolkingsgroei wordt geschat op 9.000 tot 10.000 inwoners per jaar tot 2040. Dat betekent dat er 3.000 tot 4.000 private en publieke woningen per jaar bijgebouwd moeten worden ". Het GPDO benadrukt ook: "De ontwikkeling van een verdichte stad is alleen mogelijk door het laten naast elkaar bestaan van de verschillende func es die bestaan en die nodig zijn in de stad. " en bepaalt criteria voor een houdbare verdich ng waaraan de perimeter van het BBP volledig beantwoordt. Ten slo e beveelt het GPDO func onele gemengdheid van de wijken aan (in tegenstelling tot de oude func onalis sche visie van de stad die nog overheerste in de Manha anwijk), in een logica van een buurtstad. Hoewel de bevolkingsprojec es sinds het GPDO naar beneden zijn bijgesteld (eerder 3000 nieuwe inwoners per jaar) voldoen de verdich ng van het BBP en de introduc e van een grotere func onele gemengdheid aan alle gewestelijke doelstellingen en uitdagingen.

Aangezien een groot deel van de bevolking van de Noordwijk bestaat uit kwetsbare, kansarme gezinnen, zal er vooral nood zijn aan grote woningen voor kroostrijke gezinnen met een lage tot middelhoge huurprijs. Grote woningen kunnen gezinnen aantrekken die in de wijk, of meer in het algemeen in de stad, willen blijven, op voorwaarde dat ze er een aangepaste leefomgeving genieten.

Ook een verhoging van het aantal woningen van gemiddelde standing is wenselijk. Die kunnen immers het momenteel grote verschil verkleinen tussen de hoge huurprijzen van nieuwe woningen en de lagere huurprijzen van kwetsbare woningen in dezelfde wijk. Ook andere woningtypes zijn aangewezen om in de wijk verschillende typologieën

te kunnen aanbieden.

De studie die IDEA Consult verrich e in het kader van de studie voor de wijziging van het BBP nr. 19 (‘Réflexions au sujet des condi ons pour l’évolu on du bureau dans le Quarer Nord, juli 2021’) stelt echter dat gezien de eigendomsstructuur van de gronden (hoofdzakelijk in handen van par culieren), het karakter van 'sta onswijk' en 'zakendistrict' van de wijk en de configura e van de huizenblokken, er waarschijnlijk steeds minder gezinswoningen zullen worden gebouwd en meer andere woningtypes die beter kunnen worden ingeschakeld in dit weefsel van kantoortorens ('short stay' en 'long stay' formules, studentenwoningen, cohousing, enz., huisves ngsprogramma's die makkelijk 'ver caal' kunnen worden georganiseerd en vooral gericht zijn op verhuur).

Volgens de Wijkmonitoring (gegevens 2001) bedraagt het percentage woningen kleiner dan 30m²:

* 30% in de sta s sche sector 'Noordsta on' (waaronder de Amelinckx-toren),

* 33% in de sta s sche sector ‘Sint-Rochus Voorplein’ (torens van het Maximiliaanpark)

* en 24% in de sta s sche sector ‘Antwerpsesteenweg-Zuid’ (aan de kant van de Sint-Rochuskerk), tegenover 14% in het Brussels Gewest.

Het percentage woningen groter dan 125m² bedraagt:

* 1,6% in de sta s sche sector 'Noordsta on' (waaronder de Amelinckx-toren),

* 1,5% in de sta s sche sector ‘Sint-Rochus Voorplein’ (torens van het Maximiliaanpark)

* en 1% in de sta s sche sector ‘Antwerpsesteenweg-Zuid’ (aan de kant van de Sint -Rochuskerk), tegenover 7,3% in het Brussels Gewest.

Gezinswoningen zijn rond de perimeter dus eerder weinig vertegenwoordigd.

STEDELIJKE DYNAMIEK Hoofdstuk II / Afdeling 2 Diagnose van de bestaande en tenden ële situa e/ p. 44 HUISVESTING
Huisves ng in het Territorium Noord (perspec ve.brussels, 2020) Aandeel van de sociale woningen (Wijkmonitoring)

BUSINESS-AS-USUALSCENARIO

Plannen, programma's en projecten:

* Het Gewestelijk Huisves ngsplan wil een antwoord bieden op de vraag naar woningen, vooral sociale woningen.

* Het Gemeentelijk Huisves ngsplan (2014-2018) stree naar een gediversifieerd aanbod van kwaliteitsvolle woningen, in samenhang met het GemPDO waarin huisves ng de 7de prioriteit is.

* Het Gewestelijk Plan voor Duurzame Ontwikkelingmaakt van de Noordwijk een prioritaire ontwikkelingspool: het belang van huisves ng en de re-integra e van stedelijke gemengdheid worden benadrukt. Door de aanwezigheid van het Noordsta on zal in de Noordwijk een beheerste verdich ng worden doorgevoerd. Op gewestelijk niveau stelt het GPDO dat de bevolkingsgroei (met 9000 à 10.000 inw./jaar tot 2040) een behoe e induceert aan woningproduc e (3000 à 4000 woningen/jaar). Het benadrukt ook de nood aan verschillende func es die naast elkaar bestaan.

* De doelstellingen voor het Territorium Noord beogen onder meer: een evenwicht in de soorten woningen (openbaar, privé, studentenhuizen, intergenera onele woningen, gezinswoningen enz.) en een groter woningaanbod

Voor de Manha anwijk: introduc e van andere stedelijke func es dan kantoren (huisves ng, openbare voorzieningen en winkels) om de func onele gemengdheid en de levendigheid van de wijk te verbeteren.

* Tussen de Albert II-as en het kanaal zijn verschillende huisves ngsprojecten gepland of in uitvoering met zowel openbare als privéwoningen (het ZIN-project met 127 woningen, een ental huisves ngsprojecten van de overheid in het gebied van het RPA "Maximiliaan-Vergote " en het Stadsvernieuwingscontract "Citroën-Vergote " met minstens 30.000 m² bijkomende openbare woningen).

* De nota Proximus beveelt bij de herontwikkeling van de Proximustoren de ontwikkeling aan van minstens 33% extra vloeroppervlakte. Het kabinet van staatssecretaris Pascal Smets spreekt eveneens van 1/3 bij de herontwikkeling van het CCN-gebouw.

Alterna ef 0 (bij behoud van het BBP):

De bestemmingen worden omkaderd door het BBP dat de ontwikkeling van woningen toelaat.

Alterna ef 0+ (bij opheffing van het BBP):

De bestemmingen worden omkaderd door het GBP dat de ontwikkeling van woningen toelaat.

UITDAGINGEN

* De verhouding ter aire func es-bewoners in evenwicht brengen;

* Woningen ontwikkelen die toegankelijk zijn voor verschillende sociodemografische profielen en beantwoorden aan de geïden ficeerde behoe en;

* Een woningaanbod ontwikkelen dat de bewoners kan verankeren in de wijk.

REFERENTIE-INDICATOREN

Indicator Huidige waarde

Percentage woningen in de perimeter per typologie (aantal slaapkamers, woningen van gemiddelde standing, sociale of daarmee gelijkgestelde woningen, woningen voor PBM)

STEDELIJKE DYNAMIEK Hoofdstuk II / Afdeling 2 Diagnose van de bestaande en tenden ële situa e/ p. 45 HUISVESTING
0 / 0 / 0 / 0

VOORZIENINGEN EN HANDELSZAKEN

BESTAANDE FEITELIJKE TOESTAND

Handelszaken

In de perimeter van het BBP zijn weinig handelszaken geves gd:

* Het CCN-gebouw beva e horeca-ac viteiten die vooral waren bestemd voor het personeel van de kantoren en verbonden waren aan het sta on (en dus 's avonds weinig werden gefrequenteerd). Vandaag zijn in het CCN alle ac viteiten verdwenen aangezien het zal worden afgebroken. Alle handelscellen staan er dus leeg.

* Ook in het gebouw van het sta on zijn handels- en horecazaken geves gd (16 in totaal): 7 snackbars, 2 parfumeries/bodycare, 2 supere es, 2 boekhandels, 1 kledingwinkel, 1 wisselagentschap, de Post en 1 apotheek. Deze handelszaken zijn vooral bestemd voor de gebruikers van het sta on, maar sommige kunnen ook door de wijkbewoners worden gefrequenteerd.

* Op het voorplein van het CCN, in de Simon Bolivarlaan, is een horeca-ac viteit geves gd (Exki).

Buiten de perimeter van het BBP is het verlengde van de Vooruitgangstraat in zuidelijke rich ng een lint voor handelskernen met vooral horecazaken (voor de werknemers en bezoekers van de wijk). De Brabantwijk vertoont een vrij gediversifieerd handelsweefsel met vooral kleding, tex el en interieurdecora e. De Brabantstraat is een van de belangrijkste handelsstraten van het Gewest. In het verlengde van de ingang van het Noordsta on zien we enkele cafés en handelszaken in het zuiden van de Aarschotstraat op het Kwatrechtplein.

De Aarschotstraat wordt historisch gekenmerkt door de vele salons voor raampros tu e.

Onderwijs en kinderopvang

Volgens de diagnose van het Territorium Noord (perspec ve.brussels) is de behoe e aan basisscholenin de omliggende wijk groot (tegen 2025 een tekort van ~1.500 plaatsen in het Territorium Noord), nog geen rekening gehouden met de bevolkingsgroei of de bouw van nieuwe woningen. De kaarten van de Wijkmonitoring (BISA) over de opvangcapaciteit in het kleuter- en lager onderwijs (2018-2019) beves gen deze behoe en. De behoe en aan extra plaatsen in het secundair onderwijs tegen 2025 zijn in de diagnose over het Territorium Noord als volgt (in volgorde van prioriteit):

* Franstalig technisch en beroepsonderwijs (algemene behoe e voor het hele noorden van het Gewest

* Franstalig onderwijs eerste graad: wegens de nabijheid van verzadigde zones;

* Nederlandstalig onderwijs alle graden, want het gebied is bijzonder toegankelijk voor zowel Nederlandstalige Brusselaars als voor bewoners van de rand

In de kinderopvang zijn de behoe en minder groot (in 2018 bood de Noordwijk 0,38 opvangplaatsen per kind jonger dan 3 jaar tegenover een gewestelijk gemiddelde van 0,39 en een Europees streefdoel van 0,33). Met de komst van nieuwe bewoners in de perimeter van het BBP en in de wijk zal de behoe e aan kinderopvangplaatsen echter toenemen.

Gezondheid en welzijn

Kliniek Sint-Jan, in de buurt van de Kruidtuin, en de polikliniek bieden toegang tot tal van specialiteiten in de buurt van de site.

Op het vlak van huisartsen bedraagt het aanbod in de Noordwijk 0,94 huisarts per 1000 inwoners (Wijkmonitoring, 2017). Dat is onder het gewestelijke gemiddelde van 1,23. In de naburige Brabantwijk is het aanbod met 0,56 huisarts per 1000 inwoners nog lager. Ook medische huizen zijn er onvoldoende, terwijl de vraag gezien het sociaaleconomisch profiel van de wijk vrij groot is.

Cultuur

In de wijk bestaat een weefsel van lokale socioculturele infrastructuren (Noordpool Centrum, Noorderzon, ABC, Hoeve Maximiliaan, huizenblokken Koningin Groen en Sint Françiscuspark,Up4North…). Met de komst van nieuwe inwoners zal dit weefsel moeten worden versterkt en zullen er banden moeten worden gecreëerd met de al aanwezige bevolking, vooral in de Noordwijk. De verschillende jdelijke socioculturele ini a even kunnen een basis vormen voor toekoms ge voorzieningen.

In de buurt van de wijk zijn overigens ook grootstedelijke infrastructuren aanwezig (Botanique, Hallen van Schaarbeek, S ch ng Kanaal-Centre Pompidou, Kaaitheater...) die beantwoorden aan de behoe e aan verankering van de culturele ac e in het gebied.

Sport en spel

De wijk is gelegen in een prioritaire interven ezone voor de installa e van speelpleinen en structuren van het type agoraspace of skatepark (volgens de studie van LB over spelen in de stad).

Indoor sportvoorzieningen zijn in de wijk vrij goed vertegenwoordigd, in de scholen of in specifieke ruimten (bv: Noordpool Centrum). De bevolkingsgroei als gevolg van de ontwikkeling van huisves ngsprojecten in het gebied zal op middellange en lange termijn de behoe e aan indoor sportvoorzieningen doen toenemen.

We zien ook een uitgesproken tekort aan zwembaden in en rond het Territorium Noord.

Gewestelijke voorziening

Door haar centrale ligging en haar goede bereikbaarheid is de Manha anwijk een relevante loca e voor een voorziening met een gewestelijke uitstraling (sport, opleiding…).

Groene ruimten

Handelszaken,

Iedere maandag wordt op de Antwerpsesteenweg een markt gehouden die ook mensen aantrekt van buiten de wijk.

Het aanbod aan niet-gespecialiseerde buurtwinkels is in de Noordwijk zeer beperkt. In de wijk zijn bijna geen supermarkten geves gd.

Ten slo e ligt de Noordwijk geografisch dicht bij het Rogierplein, de Kleine Ring en de wijk van de Nieuwstraat met zijn vele hotels en handelszaken.

De meeste hotels in de wijk zijn grote of luxehotels. De hotels op het Rogierplein trekken vanwege de nabijheid van het Noordsta on vooral een zakelijk publiek aan. De beze ngsgraad van de hotels neemt toe en er worden bovendien nog nieuwe hotels gepland (met name ZIN, T&T).

Voorzieningen

In de perimeter van het BBP zijn geen voorzieningen geves gd: In de hele Manha anwijk heerst een totaal gebrek aan voorzieningen, die zijn vooral geconcentreerd in de rest van de wijk (Masuistraat, Helihavenlaan, Groene Dreef, Brabantstraat).

Rust- en/of verzorgingstehuizen en voorzieningen voor senioren ontbreken bijna volledig in de Noordwijk en de Brabantwijk (en er zijn er geen in het Territorium Noord). Hoewel de verhouding ouderen op het grondgebied lager is dan het gewestelijke gemiddelde, werden jdens de par cipa efase van de uitwerking van het ontwerp-RPA Maximiliaan-Vergote (2018) de sociale en medische problemen van de senioren in de Lakense Haard en de Masuiwijk meermaals aangekaart in gesprekken met de bewoners.

Een opvangpunt 'humanitaire hub', beheerd door het Burgerpla orm voor Steun aan Vluchtelingen, verstrekte medische zorg aan migranten tot het in 2019 verhuisde. De behoe e aan een opvangplaats voor NGO's en verenigingen die opvang bieden aan migranten werd geïden ficeerd in de programmatorische nota van april 2020 voor de verbouwing van het CCN-gebouw waarin een gedeelde visie van de gewestelijke instan es is opgenomen (opvang- en oriënta ecentrum met een oppervlakte tussen 3.000 m² en 3.500 m²).

De perimeter omvat geen groene ruimte. Toch zijn er enkele parken gelegen: het Gaucheretpark, het Maximiliaanpark dat momenteel wordt heraangelegd en een groene ruimte op de middenberm van de Albert II-laan. Vanwege deze parken kan de wijk niet worden aangemerkt als een wijk met een tekort aan groene ruimten (in het roze op de kaart op de website van LB).

Gebied

STEDELIJKE DYNAMIEK Hoofdstuk II / Afdeling 2 Diagnose van de bestaande en tenden ële situa e/ p. 46
restaurants/cafés en produc eacviteiten in het Territorium Noord Bediening van de wijken door huisartsen (Wijkmonitoring) met een tekort aan openbare groene ruimten (Leefmilieu Brussel)

BUSINESS-AS-USUALSCENARIO

Plannen, programma's en projecten:

* Het Gewestelijk Plan voor Duurzame Ontwikkeling wil de voorzieningen versterken als ondersteuning van het dagelijkse leven. Om het grondgebied te mobiliseren voor de ontwikkeling van de stedelijke economie, stelt het GPDO onder meer voor om het handelsaanbod uit te breiden. Volgens het GPDO is de Noordwijk een prioritaire ontwikkelingspool. Er werden behoe en geïdenficeerd aan handelszaken en voorzieningen.

* De doelstellingen voor het Territorium Noord beogen onder meer het aanmoedigen van func onele gemengdheid ten behoeve van een gezellige stad en de economische ac viteit:

Manha anwijk: introduc e van andere stedelijke func es dan kantoren (huisves ng, openbare voorzieningen en winkels) om de func onele gemengdheid en de levendigheid van de wijk te verbeteren. een bevredigende spreiding van openbare voorzieningen met het oog op de sociale cohesie en een grotere betrokkenheid van de bevolking bij de toekomst van hun wijk.

Aanpak van het tekort aan plaatsen in het basisonderwijs en benu en van de mogelijkheid om een centrum voor secundair onderwijs te ontwikkelen wegens het beperkte aanbod in dit deel van Brussel en de zeer goede bereikbaarheid van de wijk

S muleren van de aanleg van spor nfrastructuur voor jongeren, die in Territorium Noord erg sterk vertegenwoordigd zijn.

grotere bijdrage van de Noordwijk aan de uitdagingen van de omliggende wijken, met name door diensten aan ondernemingen ook open te stellen voor de bewoners/gebruikers van de wijk.

Herwaardering van de historische commerciële centra en de buurtdiensten.

* In het Territorium Noord lopen verschillende projecten: sporthal op de campus van de Gallaitschool en in Ecole 8 in de Jollystraat, klimzaalproject aan de Groendreef (Arkoze), spor oren aan de zwaaikom van het Vergotedok, openbare voorziening op de benedenverdiepingen van de openbare woongebouwen die worden voorzien door het SVC. Ook de studie voor de heraanleg van het Maximiliaanpark loopt momenteel.

* De taskforce voorzieningen van perspec ve.brussels beveelt de ontwikkeling aan van 10 % vloeroppervlakte voor voorzieningen in grote projecten zoals de herontwikkeling van het CCN-gebouw en de Proximustoren.

Alterna ef 0 (bij behoud van het BBP):

De bestemmingen zullen worden omkaderd door het BBP dat de ontwikkeling van handelszaken en voorzieningen toelaat zonder beperking qua groo e en door het GBP dat de ontwikkeling toelaat van handelszaken met een vloeroppervlakte kleiner of gelijk aan 1 000 m² per project en per gebouw en van voorzieningen.

Alterna ef 0+ (bij opheffing van het BBP):

De bestemmingen zullen worden omkaderd door het GBP dat de ontwikkeling toelaat van handelszaken met een vloeroppervlakte kleiner of gelijk aan 1 000 m² per project en per gebouw en van voorzieningen.

UITDAGINGEN

Uitdagingen die kunnen worden behandeld in het BBP:

* Een voorziening met gewestelijke of bovenlokale uitstraling (sport, vorming…) ontwikkelen gezien de centrale ligging en de goede bereikbaarheid van de Manha anwijk in het Gewest.

* Volgens de principes van de buurtstad beantwoorden aan de behoe en aan buurtwinkels en buurtvoorzieningen gezien de huidige vraag, maar vooral gezien de verwachte toename van de lokale bevolking in de wijk. Erop toezien dat deze buurtvoorzieningen voldoende inclusief zijn om de kwetsbare bevolking die de wijk frequenteert op te vangen en dat ze ook echt ten dienste staan van de nieuwe bewoners.

* Voorzieningen en diensten ontwikkelen om de stedelijke dynamiek en gezelligheid in de wijk te bevorderen (handels- en horecazaken die ook 's avonds open zijn, acvering van de benedenverdiepingen (zie desbetreffend criterium), enz.

* Beantwoorden aan de meest strategische behoe en in de wijk: medische buurtzorg, voorzieningen voor ouderen, schoolvoorzieningen, sociale cohesie en jonge kinderen.

* Handelscellen van verschillende omvang aanbieden om te beantwoorden aan een gevarieerde vraag en te vermijden dat de heraanleg van de wijk en de toename van huurprijzen voor de handelszaken op de benedenverdiepingen alleen grote winkelketens aantrekt.

* Aangezien in de Noordwijk veel migranten aanwezig zijn, ook hen betrekken bij het stadsplanningsproces.

REFERENTIE-INDICATOREN

Indicator Huidige waarde (BBP / uitgebreid BBP)

Aantal buurtwinkels

0 / 5 (2 supere es, een apotheek en 2 boekhandels in het sta on)

m²ÊvloeroppervlakteÊvoorzieningen 0 / 0

STEDELIJKE DYNAMIEK Hoofdstuk II / Afdeling 2 Diagnose van de bestaande en tenden ële situa e/ p. 47 VOORZIENINGEN EN HANDELSZAKEN
Voorzieningen en handelszaken in de wijk (diagnose van het BBP, 1010au, 2021)

BESTAANDE FEITELIJKE TOESTAND

In de wijk zijn verschillende economische polariteiten aanwezig naargelang de acviteiten zich bevinden in het weefsel van de kantoortorens (Manha an) of in het oude weefsel met kleine stadshuizen en werkplaatsen (Masui, Aarschot/Brabant).

Kantoren

Volgens het recentste Overzicht van het Kantorenpark beschikte Brussel op 1 februari 2019 over een kantoorvoorraad van 12.669.163 m², d.i. 89.129 m² minder dan in de vorige edi e van het Overzicht van het Kantorenpark. Eveneens volgens het Overzicht is de leegstand in Brussel beperkt (7,5%). Sinds enkele jaren is ze licht gedaald, maar met grote verschillen tussen de centrale en de gedecentraliseerde wijken: de leegstand is groter in de gedecentraliseerde wijken, maar de kantoorvoorraad en het leegstandspercentage nemen af. De administra eve func e wordt immers opnieuw geconcentreerd in de centrale wijken die beter worden bediend door het openbaar vervoer (vooral de trein en de metro) en in de nieuwe of recente gebouwen die performanter zijn op het vlak van verbinding, groo e, energieverbruik, enz.

De Noordwijk wordt gedomineerd door kantoortorens, met een zeer hoge kantoordichtheid (952 378 m2/km2) en een groot aantal pendelaars op weekdagen. De Manha anwijk is op het vlak van werknemers (35.000) het tweede grootste zakendistrict in Brussel. Hoewel de kantoordichtheid in de Brabantwijk veel lager is (168 891 m2/ km2), ligt ze toch ruim boven de kantoordichtheid van de gemeente (90 028 m2/ km2) en het Gewest (79 056 m2/km2).

De nota van IDEAConsult preciseert dat de Noordwijk alleen al meer dan 10% van het Brusselse kantooraanbod concentreert en nog steeds wordt beschouwd als een ‘prime loca on’, onder meer dankzij haar centrale ligging en de uitstekende verbindingen (aanwezigheid van het Noordsta on); bovendien staan er nog zeer grote gebouwen die uitstekend geschikt zijn voor besturen. Deze uitzonderlijke verbindingen zijn zeer guns g als men het kantoorvastgoed in de steden opnieuw wil concentreren rond de mul modale polen

De leegstand in de wijk is volgens de diagnose van het Territorium Noord vrij laag (6,8%). Toch bestaat de Manha anwijk vooral uit grote gebouwen met slechts één gebruiker. Elke wijziging impliceert dus dat er grote oppervlakken komen leeg te staan en hee een grote impact. Volgens het Overzicht van het Kantorenpark hee de Manha anwijk vandaag een kantelpunt bereikt in haar kantooraanbod. De huurovereenkomsten van verschillende grote huurders lopen s laan ten einde.

De perimeter van het BBPbiedt de volgende vloeroppervlakken van kantoren:

* Proximus: ~105.000 m² kantoren

* North Galaxy: ~108 000 m² kantoren

* CCN: ~75.000 m² kantoren

Verschillende gebruikers zijn uit de wijk weggetrokken en/of plannen om te verhuizen, wat bewijst dat er nood aan is om deze sector in de wijk nieuw leven in te blazen. Bovendien evolueert het kantooraanbod de laatste jaren ook qua inhoud, met flexoffices voor grote structuren of coworkingruimten die zelfstandigen, start-ups en kleine ondernemingen aantrekken. De grote kantoorgebouwen in de perimeter van het BBP zijn niet aangepast aan deze evolu es. Bovendien zou volgens het Overzicht van het Kantorenpark 65% van de gebouwen in de Manha anwijk nood hebben aan renova e.

IDEA Consult benadrukt dat de vele lopende projecten vooral betrekking hebben op de renova e of wederopbouw van bestaande gebouwen en dus weinig of geen kantooroppervlakte toevoegen. Het is dus vrij waarschijnlijk dat de NW zal worden gerenoveerd en zonder al te veel problemen deels zal worden gereconverteerd, en dat vooral in de gedecentraliseerde gebieden de huurleegstand structureel is.

Volgens de diagnose van het Territorium Noord zal het kantooraanbod tegen 2028 toenemen (afgaande op de bekende projecten) met ~23% van het huidige aanbod voor Territorium Noord + Thurn & Taxis, wat betekent dat het extra aanbod groter is dan de bekende vraag.

Ook de ontwikkeling van telewerken als gevolg van de gezondheidscrisis zal op middellange en lange termijn een invloed hebben op de kantoorbehoe e en de dagelijkse beze ngsgraad doen dalen. Er zijn echter nog onvoldoende gegevens om de effecten op langere termijn te kunnen evalueren. ((ZIe Studieverslag BISA Perspec ve.bssl: “Analyse en impact van telewerk in het Brussels Hoofdstedelijk Gewest,” october2021.)

Hoe dan ook, met een totale vloeroppervlakte voor kantoren van 1 733 000 m² (2019) is de Noordwijk de derde grootste kantoorpool van het BHG na de Europese wijk en de Vij oek. Ze is op maal toegankelijk met het openbaar vervoer en zal op gewestelijke schaal een belangrijke kantoorpool blijven. Voorwaarde is wel dat de kantoorvoorraad wordt gemoderniseerd, dat wordt afgestapt van het func onalis sche model en dat het huidige aanbod wordt gehandhaafd, zeker niet verhoogd, of zelfs wordt verminderd of dat de voormelde geplande ontwikkelingen erin worden geïntegreerd. De nota van IDEAConsult voegt eraan toe dat een verhuis naar de NW de bevoorrechte piste is van enkele grote operatoren, zodat de NW ook op middellange en lange termijn een zakendistrict zal blijven.

In de evolu e van het kantooraanbod van de afgelopen jaren, benadrukt IDEA Consult de voorsprong van de NW op het vlak van marktaandelen in een kantoormarkt die zich niet meer uitbreidt, de vrij beperkte leegstand, de groei van de NW in de ‘take-up’ en vooral de dominan e van de NW in de projecten die op stapel staan.

De nota gewaagt van een huidig en toekoms g aanbod in de NW van 138.427 m², de herontwikkeling van het CCN niet meegerekend, en van een groot poten eel (WTC III en IV,...). Dat aanbod is vrij groot, maar grote projecten (zoals ZIN) zullen de wijk herposioneren en de kans bestaat dat ze nog aantrekkelijker wordt (in dit opzicht de vandaag beschikbare oppervlakte van 8% van de kantoorvoorraad dus niet uitzonderlijk). IDEA Consult voegt eraan toe dat de implementa e van een hybride werkmodel voor heel wat organisa es vrij waarschijnlijk is en dus de absorp etermijn van dit nieuwe aanbod zou kunnen verlengen. Het valt dus te verwachten dat andere operatoren nog wat af-

STEDELIJKE DYNAMIEK Hoofdstuk II / Afdeling 2 Diagnose van de bestaande en tenden ële situa e/ p. 48 ECONOMISCHE ACTIVITEITEN EN TRANSITIE
Kantoren in het Territorium Noord (perspec ve.brussels) wachten voordat ze een ander aanbod zullen lanceren.

Handelszaken en produc eac viteiten in de omliggende wijk (diagnose van het BBP, 1010au, 2021)

De perimeter van het BBP omvat geen produc eac viteiten. De produc eac viteiten op schaal van de wijk zijn vooral geconcentreerd in het noorden van de wijk: in de Masuiwijk met kleinschalige produc eac viteiten en groothandels die verband houden met het produc everleden van het gebied en rond het Vergotedok waar op de concessies van de Haven van Brussel ac viteiten zijn geves gd die verband houden met de waterweg waarlangs bouw- en recupera ematerialen worden aangevoerd/weggevoerd. Tussen het Vergotedok, de Masuiwijk en de Manha anwijk bestaat vandaag weinig uitwisseling.

Nochtans bestaat er een reëel poten eel voor de ontwikkeling van nieuwe synergieën en nieuwe economische ac viteiten in de Noordwijk in het algemeen en in de Manha anwijk en de perimeter van het BBP in het bijzonder. Zoals de visie voor het Territorium Noord benadrukt, lijkt het open te staan voor een innova eve, economische, sociale en milieugerichte denkwijze: de economische actoren van dit gebied tonen belangstelling voor ecologische en vernieuwende oplossingen (ontwikkeling van ini a even op het gebied van stadslandbouw, sociale en solidaire economie, circulaire economie, jdelijke beze ng). De integra e van de produc efunc e in de wijk zou kunnen bijdragen tot de ac vering van de benedenverdiepingen en meer gediversifieerde bevolkings- en werknemersprofielen kunnen aantrekken. Vanwege de centrale ligging van de perimeter van het BBP en de beperkingen die deze impliceert op het vlak van milieu en logis eke toegankelijkheid, moeten deze ac viteiten echter verenigbaar blijven met het omliggende weefsel: kleine ruimten,

aangepaste logis ek (bakfietsen...), innoverende sectoren die aansluiten bij de nieuwe leef- en werkwijzen (coworkingruimten, produc eruimten en ruimten voor stadslandbouw, circulaire economie...) .

Ook de Masuiwijk in het noorden is een handelspool met zowel buurtwinkels als gediversifieerde bovenlokale handelszaken (onderhoud, repara e en verkoop van auto's, bouwbedrijven, groothandels...).

BUSINESS-AS-USUALSCENARIO

Plannen, programma's en projecten:

* De doelstellingen voor het Territorium Noord beogen onder meer:

· een grotere bijdrage van de Noordwijk aan de uitdagingen van de omliggende wijken, met name door diensten aan ondernemingen ook open te stellen voor de bewoners/gebruikers van de wijk.

· het s muleren van de overgang van de economische ac viteiten naar een circulaire en duurzame economie. Uitbouw van de sectoren 'bouwmaterialen', 'stadslandbouw' en kantoorapparatuur en -meubilair' zodat de Manha anwijk een knooppunt van circulaire economie kan worden. S muleren van de ontwikkeling van produc eve ac viteiten in TN;

· ondersteuning van de uitvoering van een stadslogis ek voor wijken op sectorale basis.

· Herwaardering van de historische commerciële centra (Antwerpsesteenweg, Vooruitgangstraat, Brabantstraat, Koninginnelaan) en de buurtdiensten.

· Bevorderen van de ontwikkeling van economische ac viteiten in overeenstemming met het kwalifica eniveau van de bevolkingsgroepen in het Territorium Noord en zorgen voor opleidingen voor kansarme bevolkingsgroepen.

* DeÊgewestelijkeÊinstan es bevelenÊbijÊdeÊherontwikkelingÊvanÊhetÊCCN-gebouwÊenÊ deÊProximustorenÊdeÊontwikkelingÊaanÊvanÊmaximaalÊ50Ê%ÊvloeroppervlakteÊvoorÊ kantorenÊ(nota ProximusÊenÊprogrammatorischeÊnotaÊCCNÊ04/2020).

* De Noordwijk zou in de toekomst een belangrijke stedelijke groeipool moeten genereren dankzij de visuele en func onele verbinding met de site Thurn & Taxis in het westen.

* De grote tendens gaat in de rich ng van 'mul -tenants' verhuur met kleinere, meer flexibele ruimten en gezamenlijke diensten (bv. conciërgerie, pressing, biomanden...). Het aanbod zal ook meer plaats bieden voor ver cale gemengdheid die overeenstemt met een tenden ële vermindering van de beze ng van de kantoren door één gebruiker.

* Doordat de huurovereenkomsten van enkele grote huurders van kantoren in de wijk s laan aflopen, zullen er ontwikkelingsprojecten worden gestart en dus werven die gedurende lange jd het landschap van de wijk zullen verstoren (Proximus, Ferraris, Boreal…).

* De nota van IDEAConsult voegt eraan toe dat de verhuizen als gevolg van de veralgemening van telewerk de huurleegstand kunnen versnellen en de renova e en gedeeltelijke reconversie op gang zullen brengen die wenselijk is voor bepaalde monofunc onele gebouwen in de NW.

* De gezondheidscrisis zorgt voor onzekerheid in de sector.

* Nieuwe kantoorprojecten op de markt wijzen in de rich ng van een verhoging van het kantooraanbod. Dit extra aanbod dat de bekende vraag ruim overschrijdt zal de leegstand in de wijk doen toenemen (volgens de diagnose van het Territorium

Noord zal het kantooraanbod tegen 2028 toenemen met ~23% van de huidige voorraad, dat betekent een groei die de bekende vraag overschrijdt). De nota van IDEA Consult tempert deze vrees voor een toename van de leegstand. De NW zal immers aantrekkelijker worden dankzij grote projecten zoals het ZIN-project en zich dus herposi oneren. De implementa e van een hybride werkmodel is voor heel wat organisa es echter vrij waarschijnlijk en kan dus de absorp etermijn van dit nieuwe aanbod verlengen.

* LabNorth is een open netwerk van organisa es die kennis verenigt en nadenkt over de stedelijke transforma e van de Noordwijk. Het netwerk ondersteunde en star e een aantal projecten in de wijk, als facilitator en door nieuwe banden te smeden tussen de burgers, de gebruikers en de openbare en privé-instellingen. Kennis en informa e worden uitgewisseld via projecten die een he oom zijn voor een duurzame transforma e (bijvoorbeeld via jdelijke beze ng in de openbare ruimte).

* Via het GPCE wil de Brusselse regering een lokale economie promoten die beantwoordt aan de behoe en van de burgers en die draait rond de bedrijven van het Gewest. Het GPCE wil hen ondersteuning bieden om zich te ontwikkelen en om hun transi e naar een koolstofarm economisch model te starten, lokale banen creëren om bij te dragen tot een betere levenskwaliteit voor de Brusselaars.

Alterna ef 0 (bij behoud van het BBP):

De bestemmingen zullen worden omkaderd door het BBP dat enkel de ontwikkeling toelaat van kantoren en vrije beroepen (geen produc eac viteiten).

Alterna ef 0+ (bij opheffing van het BBP):

De bestemmingen zullen worden omkaderd door het GBP dat de ontwikkeling toelaat van kantoren en produc eac viteiten die verenigbaar zijn met kantoren, woningen, hotels en voorzieningen.

UITDAGINGEN

Uitdagingen die kunnen worden behandeld in het BBP:

* De wijk handhaven als een belangrijke kantoorpool op gewestelijke schaal, met aanpassing aan de nieuwe maatschappelijke en economische uitdagingen in een context vol verandering en onzekerheid: flexibiliteit, circulariteit, diversiteit van de huurders van de gebouwen, diversiteit van de profielen van de gebruikers

* Opportuniteiten bieden voor de ves ging van nieuwe ac viteiten die aansluiten op de nieuwe leef- en werkwijzen (coworkingruimten, produc eruimten aangepast aan de stedelijke omgeving van de wijk, ruimten voor stadslandbouw, ontspanningsplaatsen voor de werknemers, werkruimten voor studenten)...

* HetÊpoten eelÊvanÊdeÊbenedenverdiepingenÊofÊongebruikteÊparkingsÊbenu enÊomÊ nieuweÊfunc esÊteÊontwikkelenÊenÊdeÊbenedenverdiepingenÊac veren.

REFERENTIE-INDICATOREN

Indicator Huidige waarde (BBP / uitgebreid BBP)

m² vloeroppervlakte kantoren ~238.000 m²

m² vloeroppervlakte produc eac viteiten 0 m²

STEDELIJKE DYNAMIEK Hoofdstuk II / Afdeling 2 Diagnose van de bestaande en tenden ële situa e/ p. 49 ECONOMISCHE ACTIVITEITEN EN TRANSITIE
Produc eac viteiten

BESTAANDE FEITELIJKE TOESTAND

In de Noordwijk zijn heel wat 'backstreets' aanwezig.

Interfaces tussen private en openbare ruimten (rode strepen) en structurerende noordzuidassen (pijlen) (perspec ve, 2018)

De adressering van de gebouwen (zoals North Galaxy en Proximus) op de assen Simon Bolivar en Koning Albert II verleent de Vooruitgangstraat, de Koolbrandersstraat en het Solvayplein een 'backstreet' karakter door de aanwezigheid van parkinginri en, logis eke ingangen, en nooduitgangen.

De Koolbrandersstraat is een doodse straat zonder toegangen, met zeer monotone uniforme gevels.

Behalve de snackbar op de benedenverdieping van het North Galaxy-gebouw zijn de belangrijkste voetgangersingangen de ingangen van kantoren die de openbare ruimte dus slechts heel beperkt ac veren.

De benedenverdieping van het CCN-gebouw staat niet in dialoog met de openbare ruimte:

· er zijn verschillende niveaus: de centrale hal bevindt zich op het sta onsniveau dat de voetgangers bereiken via een monumentale trap.

· De handelszaken zijn naar binnen gericht aangezien het CCN is gebouwd rond een centraal atrium dat het introverte karakter benadrukt,

· de halfondergrondse buszone op de interface met de openbare ruimte kan de openbare ruimte niet op een interessante manier ac veren.

De recente ves ging van Bpost op de ondergrondse verdieping brengt meer leven in de binnenstraat.

De niveauverschillen tussen de openbare ruimte en de voetgangerstoegang tot de gebouwen creëren een barrière voor de interface gebouwen-openbare ruimte: ingang van het CCN, toegang tot het bussta on onder het CCN, ingang van de Proximustoren. De doorgangen onder de sporen in de Kwatrechtstraat en op het Noordplein bieden fundamenteel weinig anima e en een weinig interessante bijdrage tot de openbare ruimte.

Aan de westkant van de Aarschotstraat staat een doodse spoorwegmuur, aan de oostkant zien we raampros tu e en cafés.

Toegang voor leveringen VW

Toegang voor auto's Hoofdingangen voor voetgangers

(BRAT)

STEDELIJKE DYNAMIEK Hoofdstuk II / Afdeling 2 Diagnose van de bestaande en tenden ële situa e/ p. 50
ACTIVERING VAN DE OPENBARE RUIMTE VIA DE BENEDENVERDIEPINGEN
Lokalisa e en soorten toegangen in de perimeter van het BBP Solvayplein (noorden, bovenaan), Solvayplein (zuiden, in het midden) en Vooruitgangstraat

BUSINESS-AS-USUALSCENARIO

Plannen, programma's en projecten:

* In het GPDO zijn het Noordsta on en zijn omgeving gedefinieerd als een bestaande lokale iden teitskern. Het Gewest wil onder meer de openbare ruimte herwaarderen rond de grote sta ons, die toegangspoorten tot de stad zijn, en rond de knooppunten van het openbaar vervoer, nieuwe plaatsen met een hoge stedelijke intensiteit.

* De nota nota Proximus, in lijn met de Visie voor het Territorium Noord, legt het accent op de strijd tegen de backstreets, de verbetering van de gebruikswaarde van de grootstedelijke openbare ruimten door het creëren van func onele gemengdheid en de verbetering van de rela e tussen de benedenverdiepingen en de openbare ruimte. Prioriteit daarbij is het doorbreken van de dominan e van de Albert II-laan en van de eentonigheid van de andere straten. Vervolgens moeten perspec even worden gecreëerd naar het binnenterrein van de sokkels (aanleg van bruikbare open ruimten op de percelen). Onder meer het doodse karakter van de straten moet worden weggewerkt met diverse toegangen en insprongen die open ruimte creëren. Daarnaast moet de interac e tussen de bestaande groene ruimten en de gebouwen in de Albert II-laan worden versterkt. Er wordt aanbevolen om de sokkels open te trekken door de grondinname van de gebouwen te verkleinen tot 70%, met het doel om open ruimten en visuele doorbraken doorheen het huizenblok te creëren. Bovendien wordt voorgesteld om de niet-opportune logis eke ingangen-parkings te verplaatsen (bijvoorbeeld aan de kant van de Vooruitgangstraat/Noordplein) naar de Albert II-laan die het statuut Auto Comfort hee .

* Het Gemeentelijk Plan voor Duurzame Ontwikkeling (GemPDO) van Schaarbeek bevat de strategische doelstelling om de algemene renova e van de openbare ruimten voort te ze en en het aangename gebruik ervan te bevorderen.

* Ook het Gemeentelijk Ontwikkelingsplan (GemOP) van de Stad Brussel wil onder meer het imago van de Noordwijk verbeteren.

* Het CCN-gebouw maakt momenteel het voorwerp uit van studies voor een grondige verbouwing. Het deel a raak daarvan wordt momenteel onderzocht.

Alterna ef 0 (bij behoud van het BBP):

Het BBP staat met zijn logica van voetgangers- en fietsverkeer op een kunstma g grondvlak boven de sokkel van 13m de ac vering van de benedenverdiepingen in de weg.

Alterna ef 0+ (bij opheffing van het BBP): De opheffing van het BBP zou de ac vering van de benedenverdiepingen vergemakkelijken.

UITDAGINGEN

De ac vering van de benedenverdiepingen bevorderen door:

- de kwes e van de niveauverschillen te behandelen (geen niveauverschillen tussen de openbare ruimte en de gebouwen, met name het sta on),

- meer toegangen te voorzien en de diversiteit van de bestemmingen te bevorderen

- een crea eve architectuur te ontwikkelen die in dialoog treedt met de openbare ruimte en de func es in de gebouwen weergee

De verbinding stadsniveau / sta onsniveau te verbeteren.

REFERENTIE-INDICATOREN

Indicator Huidige waarde (BBP / uitgebreid BBP)

Percentage strekkende meter van voetpaden met ac eve benedenverdiepingen 3,4 % (Aarschotstraat niet inbegrepen)

Aantal ac eve ingangen (handelszaken) 3

STEDELIJKE DYNAMIEK Hoofdstuk II / Afdeling 2 Diagnose van de bestaande en tenden ële situa e/ p. 51 ACTIVERING VAN DE OPENBARE RUIMTE VIA DE BENEDENVERDIEPINGEN

BESTAANDE RECHTSTOESTAND

Het besluit van 21 november 2002 betreffende de strijd tegen het buurtlawaai bepaalt de maximale geluidsdrempels die niet mogen worden overschreden door elke hoorbare geluidsbron in de buurt van deze bron. Er bestaan verschillende drempels a ankelijk van de plaats waar de hinder wordt waargenomen, maar ook a ankelijk van het uur van de dag, de dag van de week en de stedenbouwkundige bestemming van het gebied zoals bepaald in het GBP. De huizenblokken van het BBP liggen in een administra egebied van het GBP, d.w.z. in gebied 5 volgens het besluit. Het centrale deel van de Koning Albert II-laan is volgens het GBP parkgebied, d.w.z. gebied 1 volgens het besluit. Dit is het meest gevoelige gebied van de zes. Het huizenblok van de Amelinckx-toren ligt in gebied 4 (GGB) en de woningen aan de overkant van de sporen in gebied 2 (typisch woongebied). De sporen zelf liggen in gebied 6 (spoorweggebied).

"controleren van de voorzorgsmaatregelen om het opduiken van verschijnselen van akoes sche weerkaatsing van de spoorweg te voorkomen. "

Ook al is het geen regelgeving op zich, toch is het noodzakelijk om naast deze mijlpalen de norm NBN S 01-400-1 te vermelden (Akoes sche criteria voor woongebouwen), die akoes sche comforteisen stelt (normaal of superieur) met name voor de isola e van gevels en tussen woningen. Merk op dat "Normaal" = minimaal kwaliteitsniveau voor 70% van de tevreden bewoners en "Superieur" = hoog kwaliteitsniveau voor 90% van de tevreden bewoners (bij voorkeur in een lawaaierige omgeving).

De wegen van de perimeter liggen sinds 1 januari 2021 in een zone 30km/u. Het BBP verbiedt de instellingen die, omwille van hun belangrijkheid, onverenigbaar zijn met de veiligheid, de gezondheid, de rust of de goede instandhouding van een woon- of bureauwijk, evenals de instellingen die door het uitwasemen van gas, damp, roet of stof, door het veroorzaken van lawaai of op een andere manier stoornis verwekken die de normale maat van burenhinder in een woon- of bureauwijk te boven gaat. ".

BESTAANDE FEITELIJKE TOESTAND

Geluidsomgeving

De geluidshinder in de wijk wordt hoofdzakelijk gegenereerd door het spoorverkeer en door de gemotoriseerde voertuigen, onder meer bussen, op de verschillende wegen van de perimeter:

* De Simon Bolivarlaan, de Albert II-laan, de Vooruitgangstraat en het Solvayplein zijn de wegen die de meeste impact hebben op het gebied. De Ldengeluiddrukniveaus bedragen er 70 of zelfs 75 dB(A), dus meer dan de noodinterven ewaarden. Er dient opgemerkt dat het hele gebied van het BBP sinds 1 januari 2021 is gelegen in een zone 30km/u. De kaarten dateren echter van 2016 en houden geen rekening met deze nieuwe situa e. Er moet pgemerkt worden dat de assen Albert II en Bolivar zijn gepland als Comfort voor autos en vrachtwagens in de MWS.

* Het spoorverkeer dat wordt gegenereerd door het Noordsta on hee een significante maar gelokaliseerde impact op de geluidsomgeving. De lden-niveaus liggen er niet hoger dan de waarden die zijn vastgelegd in de raamovereenkomst tussen de NMBS en het BHG (68 dB(A) is het streefdoel in de buitenomgeving van de gebouwen). De lage snelheid van de treinen in de buurt van het sta on en de configura e van de site (het CCN is een barrière) verklaren deze beperkte impact. Er dient opgemerkt dat de geluidskaarten zijn opgemaakt voor een hoogte van 4m boven de grond (dus onder het niveau van de rails). Voor de verdiepingen boven de sporen zal de geluidsimpact van het spoorverkeer dus waarschijnlijk groter zijn dan is aangegeven op de geluidskaarten.

* Het noordelijke deel van de Vooruitgangstraat ondergaat het geluid van premetro 3 en van de trams, met Lden-niveaus tot 60 dB(A). Een deel van de lijn doet ook dienst als achtersta on van de premetro van lijn 4.

Trillingsomgeving

De meeste trillingen worden veroorzaakt door het openbaar vervoer waaronder het spoorverkeer, maar ook het bovengrondse en ondergrondse verkeer van de premetro's, trams en bussen.

Uit de trillingsme ngen verricht in het kader van de effectenstudie van het project voor de metrotunnel onder de spoorweg, blijkt dat de grenswaarden niet worden overschreden, noch voor de hinder voor personen (DIN4150-2), noch voor de stabiliteit van de gebouwen (DIN4150-3).

Ingedeelde inrich ngen

In en rond de perimeter zijn verschillende ac viteiten aanwezig die a priori zijn onderworpen aan het besluit van 21 november 2002 betreffende de strijd tegen de geluids- en trillingenhinder voortgebracht door de ingedeelde inrich ngen. De meest nabijgelegen iden ficeerbare ac viteiten die een impact kunnen hebben op de geluidsomgeving zijn de handelszaken, de hotels en de kantoorgebouwen in de Vooruitgangstraat, de Aarschotstraat, de Simon Bolivarlaan, de Koning Albert II-laan Deze ac viteiten genereren hoofdzakelijk geluid veroorzaakt door uitrus ngen (ven la egroepen, koelinstalla es, compressoren...), leveringen en/of buurtlawaai.

In 2001 sloten de NMBS en het BHG een overeenkomst die de grenswaarden en drempels vastlegt voor het geluid van het spoorverkeer in de buitenomgeving van de gebouwen. Ar kel 5 van deze overeenkomst bepaalt als volgt: "in alle zones en in zones van minimum 50 meter aan weerszijden van de spoorweg in de open lucht alsook in de zones met spoorverkeer in tunnel mogen er gebouwen bestemd voor het wonen of andere geluids- en trillingengevoelige ac viteiten worden gebouwd mits er voldaan wordt aan een behoorlijke isola e tegen geluiden en trillingen". Het bevordert er ook het "bouwen van gebouwen voor niet-gevoelige ac viteiten" en het

Gezien de hoge frequenta e van het gebied kunnen de ac viteits- en buurtgeluiden hinder veroorzaken voor de buurtbewoners, vooral in de Aarschotstraat waar de meeste voetgangers worden geteld (praten, roepen, muziek, enz.).

De kaarten van het geluid van het luchtverkeer (jaar 2016) tonen aan dat de impact van het luchtverkeer vrij laag is, maar niet verwaarloosbaar (lden tussen 45 en 55 dB(A)). Het luchtverkeer hee een beperkte impact op het gebied maar kan punctueel hoorbaar zijn.

MENSELIJKE OMGEVING Hoofdstuk II / Afdeling 2 Diagnose van de bestaande en tenden ële situa e / p. 52 GELUID EN TRILLINGEN
Lden-indicatoren voor het spoorweggeluid (bovenaan links), verkeersgeluid (bovenaan rechts) en het mul -indicator geluid (onderaan) (Leefmilieu Brussel, 2016) Drempelwaarden van specifiek geluid (Lsp) van toepassing naargelang de jdsperiode en de zone (waarden in dB(A)) (Leefmilieu Brussel) Geluidszones (Leefmilieu Brussel)

Buurtbewoners en ruimtelijke organisa e

Behalve de ac viteiten die geluidshinder genereren, kunnen ook de ruimtelijke organisa e en de kenmerken van de bebouwing een grote impact hebben op de geluidsomgeving in een wijk. In de perimeter van het BBP is dat het geval: de gevels van de torengebouwen bestaan grotendeels uit glas. De geluidsabsorp ecoëfficiënt van dat materiaal ligt dicht bij 0, wat betekent dat het het geluid weerkaatst.

Func es die gevoelig zijn voor geluidshinder zijn onder meer huisves ng, ziekenhuizen, scholen en openbare parken. In de perimeter van het BBP zijn deze funces afwezig. De afgelopen 5 jaar hee Leefmilieu Brussel bovendien geen enkele klacht ontvangen in het studiegebied. Toch dient opgemerkt dat de woningen in de Armelinckx-toren in de onmiddellijke buurt van het BBP zijn gelegen en daardoor sterke beperkingen kunnen ondergaan.

BUSINESS-AS-USUALSCENARIO

* Door de bevolkingsgroei en de stedelijke verdich ng neemt ook het aantal bronnen van geluidshinder toe.

* Er wordt steeds vaker gebruik gemaakt van zachte verplaatsingswijzen en elektrische voertuigen die minder geluidshinder veroorzaken.

Plannen, programma's en projecten:

* Het GPDO wil onder meer een aangename, duurzame en aantrekkelijke leefomgeving ontwikkelen door de milieuhinder te beperken, onder meer door geluidshinder te bestrijden.

* In 2019 hee de Brusselse Hoofdstedelijke Regering het plan quiet.brussels goedgekeurd dat zich tot doel stelt de gevolgen van geluidshinder op de gezondheid te verminderen, iedereen toegang te bieden tot rust en de aantrekkingskracht van de stad te vrijwaren. Maatregel 18 "Rekening houden met de geluidsomgeving in de RPA's en BBP's " stelt voor dat het Gewest systema sch de mogelijkheden onderzoekt voor het verbeteren en/of vrijwaren van de kwaliteit van de geluidsomgeving in de regelgevende bepalingen van de RPA's en BBP's, onder meer door het aanbevelen van: de crea e en het behoud van rusge binnenterreinen of voorgevels, minder gevoelige bufferzones (of met een bouwverbod) en het ontwerp, de verbetering of de bescherming van akoessche comfortzones. De perimeter van het BBP ligt momenteel niet in een van de specifieke zones die zijn bepaald in dit plan.

* Het plan « Good Move » bepaalt doelstellingen voor een globaal beheer van de mobiliteit. De zachte en s llere verplaatsingswijzen krijgen er meer ruimte.

* De doelstellingen voor het Territorium Noord bestaan er onder meer in om gemengdheid van func es aan te moedigen, met een poten ële impact op de diversiteit van de geluidsbronnen, en om ac viteiten te ves gen die meer gevoelig zijn voor geluid en trillingen.

* Het traject van de toekoms ge tram Thurn & Taxis vertoont smalle draaicirkels, wat een bron is van geluidshinder. Deze extra geluidsbron moet worden gerelaveerd in het licht van de huidige geluidsomgeving.

Alterna ef 0 (bij behoud van het BBP):

* Het type inrich ngen dat wordt toegelaten hangt af van de vereiste "rust van het milieu" die wordt gesteld door het BBP ("De instellingen die, omwille van hun belangrijkheid, , onverenigbaar zijn met […] de rust […] van een woon- of bureauwijk, evenals de instellingen die door […] het veroorzaken van lawaai[…] stoornis verwekken die de normale maat van burenhinder in een woon- of bureauwijk te boven gaat, zijn niet toegelaten)

Alterna ef 0+ (bij opheffing van het BBP): Geen verandering van de toestand.

UITDAGINGEN

Uitdagingen die kunnen worden behandeld in het BBP:

* In een context van meer func onele gemengdheid de ontwikkeling van de stad en van de menselijke ac viteiten die daarmee gepaard gaan met elkaar verzoenen en daarbij een bevredigende levens- en gezondheidskwaliteit bieden aan de gebruikers.

* Geen nieuwe conflictzones creëren tussen de geluidsbron 'spoorweg' en de gevoelige ac viteiten (ook niet door weerkaatsing van het geluid).

* Het studiegebied omvat geen comfortzones in de zin van het plan Quiet.brussels. Met het oog op de grotere func onele gemengdheid en met name de toekoms ge aanwezigheid van woningen binnen de perimeter is ook het verbeteren van de Qzones (akoes sche comfortzones) een uitdaging.

REFERENTIE-INDICATOREN

Indicator Huidige waarde (BBP / uitge-

Aantal woningen met een rus ge gevel 0

MENSELIJKE OMGEVING Hoofdstuk II / Afdeling 2 Diagnose van de bestaande en tenden ële situa e / p. 53 GELUID EN TRILLINGEN

KWALITEIT VAN DE OPENBARE RUIMTEN VOOR VERPLAATSING EN VERBLIJF

BESTAANDE RECHTSTOESTAND

* In het GBP zijn de Albert II-laan en de Simon Bolivarlaan opgenomen als structurerende ruimten die de kwaliteit van het stedelijke landschap moeten vrijwaren en verbeteren. Het centrale deel van de Albert II-laan is opgenomen als parkgebied.

* Titel VII van de GSV gee de voorschri en betreffende de wegen, de toegangen en de naaste omgeving.

BESTAANDE FEITELIJKE TOESTAND

* De gezelligheid van de openbare ruimten wordt belemmerd door de ruimtelijke structuur van de ruimten:

▪ De openbare ruimten staan vooral in dienst van het gemotoriseerd verkeer en hun dimensionering is niet aangepast aan de voetgangers (zie thema Mobiliteit);

▪ de torens accentueren de effecten van de wind in de openbare ruimte (zie criterium Microklimaat);

▪ De logica van monofunc onele kantoorgebouwen vertaalt zich in het ontstaan van backstreets (Vooruitgangstraat, Koolbrandersstraat);

▪ De halfondergrondse verdieping van het CCN (bussta on) is een voor het publiek toegankelijke open ruimte die niet kwalita ef is.

▪ De doorgangen onder de sporen (Kwatrecht en Noord) zijn weinig uitnodigend gezien de gebrekkige verlich ng, de luchtbewegingen en de urinegeur (in de buurt van de Aarschotstraat);

▪ De pleinen (Noordplein, Solvayplein en Bolivarplein) rond het CCN-gebouw vormen vanwege het drukke verkeer (bussen, taxi's, voetgangers) een weinig kwaliteitsvolle interface. Bovendien is het hoogteverschil van deze ruimten (naar de ondergrondse verdieping onder het CCN) beperkend voor hun toegankelijkheid;

▪ De niveauverschillen tussen de openbare ruimte en de voetgangerstoegang tot de gebouwen creëren een barrière voor de interface gebouwen-openbare ruimte: ingang van het CCN, toegang tot het bussta on onder het CCN, ingang van de Proximustoren.

▪ Ook de veelvuldige verharding hee een impact op de gezelligheid van de openbare ruimten (zie criterium Ecologisch netwerk). Het is de aanwezigheid van de groene ruimten Albert II, Gaucheret en Botanique die het mogelijk maakt om de omtrek van gebieden « met een tekort aan publiek toegankelijk groene » uit te

sluiten, maar er is ook reden om rekening te houden met de dichtheid.

* Het geluiddrukniveau is vrij hoog en hee een aanzienlijke impact op de kwaliteit van de openbare ruimten (zie criterium Geluid en trillingen).

* Het Lichtplan bepaalt een standaardverlich ngvoor de specifieke wegen van de Noordwijk. Deze verlich ng treffen we inderdaad aan op verschillende plaatsen in de perimeter (met name rond het CCN en op het Bolivarplein).

* De grondbedekking in de openbare ruimte verkeert globaal gezien in goede staat, maar op heel wat plaatsen zijn er onregelma gheden. Heel wat oversteekplaatsen voor voetgangers zijn ongelijk. De doortocht van de bussen op het Bolivarplein zorgt voor weinig comfortabele oneffenheden in het wegdek. (zie ook criterium Ac eve verplaatsingswijzen) Op het Bolivarplein staan voldoende zitbanken en vuilnisbakken.

* De netheid van de straten vormt lokaal een probleem:

▪ In de hele Aarschotstraat staan urinoirs. Die zi en vaak verstopt en zorgen voor aanzienlijke geurhinder.

▪ De beze ng van het sta on Brussel-Noord door daklozen, met name migranten (op stads- en sta onsniveau) veroorzaakt soms moeilijke situa es en regelma ge conflicten. De leefomstandigheden van bepaalde personen zijn zeer zorgwekkend en ondanks de hulp van verschillende verenigingen is er een erns g hygiëneprobleem.

▪ Het Stedelijk Preven eprogramma van de Gemeente vermeldt het zeer veelvuldige sluikstorten en de stapels afval in de wijk aan de kant van de Aarschotstraat, waarschijnlijk een gevolg van de aanzienlijke turnover in de verhuur. Ongezonde situa es in de openbare ruimte hebben ook een nega eve impact op de veiligheid en dragen bij tot het typische we eloze karakter van de wijk.

▪ De raampros tu e in de Aarschotstraat creëert een bijzondere sfeer waardoor sommige voetgangers liever een omweg maken.

BUSINESS-AS-USUALSCENARIO

Plannen, programma's en projecten:

* In het GPDO zijn het Noordsta on en zijn omgeving gedefinieerd als een bestaande lokale iden teitskern. Het GPDO wil ook de openbare ruimte herwaarderen rond de grote sta ons, die toegangspoorten tot de stad zijn, en rond de knooppunten van het openbaar vervoer, nieuwe plaatsen met een hoge stedelijke intensiteit.

* Het plan Good Move voorziet in een voetgangersboulevard via het Noordplein en de Bolivarlaan die leesbare, aangename en comfortabele doorgangen moet bieden, evenals verblijfsac viteiten op het traject. Daarnaast wordt een volledig herontwikkelingsproject voor de Simon Bolivarlaan bestudeerd door Bxl Mobiliteit.

* Behalve de standaardverlich ng voor de wegen koestert het Lichtplan de ambi e:

▪ Om het spoorerfgoed te herwaarderen door de gebouwen met symboolwaarde te verlichten

▪ Om het gebruik van de spooronderdoorgangen door de voetgangers verbeteren (verlich ng van de zijde van de construc es, scenografische verlich ng met bijvoorbeeld gekleurd licht, lichteffecten die ritme geven aan het tracé…).

* Momenteel wordt gewerkt aan toegankelijkheidsplannen voor de weg en de openbare ruimte (PAVE) voor Schaarbeek, Sint-Joost-ten-Node en de Stad Brussel. De PAVE's vervullen twee opdrachten: de verschillende niveaus van voetgangersdichtheid van het structurerend voetgangersnetwerk bepalen en een stand van zaken opmaken van de toegankelijkheid van voetpaden en de openbare ruimten.

* Het SVC1 "Citroën - Vergote" voorziet in de heraanleg van het Maximiliaanpark en de Simon Bolivarlaan tussen de Willebroekkaai en de Antwerpsesteenweg. Het project stelt ook een visie voor de heraanleg van de laan tot aan het Noorsta on voor die Brussel Mobiliteit zou realiseren in 2023. Bedoeling is om van de Simon Bolivarlaan een echte, vergroende openbare ruimte te maken die zich openstelt voor de wijk, een kwaliteitsvolle promenade en een ruggengraat voor de zachte mobiliteit.

* Het Beeldkwaliteitsplan (BKP) is het plan voor landschappelijke en stedenbouwkundige kwaliteit voor het Kanaalgebied. Een deel van de Bolivarlaan, in de buurt van het kanaal, is erin opgenomen.

* Het Gemeentelijk Plan voor Duurzame Ontwikkeling (GemPDO) van Schaarbeek bevat de strategische doelstelling om de algemene renova e van de openbare ruimten voort te ze en en het aangename gebruik ervan te bevorderen.

* Ook het Gemeentelijk Ontwikkelingsplan (GemOP) van de Stad Brussel wil onder meer het imago van de Noordwijk verbeteren.

* In hun nota Proximus leggen de gewestelijke instan es het accent op de strijd tegen de backstreets, de versterking van de oost-westassen, de verbetering van de gebruikswaarde van de grootstedelijke openbare ruimten door het creëren van func onele gemengdheid, de ontharding van de open ruimten en de verbetering van de relae tussen de benedenverdiepingen en de openbare ruimte. Prioriteit daarbij is om perspec even op het binnenterrein van de sokkels te creëren om het doodse karakter van de straten op te heffen en om verschillende toegangen en insprongen te creëren waardoor er open ruimten ontstaan.

In het kader van een eventueel project in het huizenblok Proximus stelt de nota enerzijds voor om de inopportune logis eke ingangen-parkings (bijvoorbeeld in de Vooruitgangstraat/op het Noordplein) te verplaatsen naar de Albert II-as en anderzijds om de gelijkgrondse toegankelijkheid te verbeteren die vandaag wordt bemoeilijkt door het hoogteverschil tussen de openbare ruimte en de benedenverdieping (talud).

* Het CCN-gebouw maakt momenteel het voorwerp uit van studies voor een grondige verbouwing. Het deel a raak daarvan wordt momenteel onderzocht.

* Er dient opgemerkt dat de gemeente een Toile enplan wil uitwerken.

Alterna ef 0 (bij behoud van het BBP): Geen verandering van de toestand.

Alterna ef 0+ (bij opheffing van het BBP): Geen verandering van de toestand.

UITDAGINGEN

Uitdagingen die kunnen worden behandeld in het BBP:

* De visuele kwaliteit en het gebruikscomfort van de openbare ruimte verbeteren (meer groen, minder geluidshinder...)

* De gebouwen laten bijdragen tot de gezelligheid van de openbare ruimte:

▪ Ac eve benedenverdiepingen en interface met de openbare ruimte zonder niveauverschil

▪ Beperking van de nega eve impact op het vlak van wind en bezonning

▪ Ver caliteit vs mensenmaat

Weinig intense interfaces tussen privé- en openbare ruimten (rode strepen) in de kantoorwijk en structurerende noord-zuidassen (pijlen) die breuken creëren in het stedelijk weefsel (perspec ve, 2018)

* Het SVC2 "Noord-Brabant-Sint-Lazarus"wil onder meer de impact van de breuken verminderen, met name van de tunnels onder de sporen, en de weinig kwaliteitsvolle woonerven herwaarderen, bijvoorbeeld het Noordplein.

* De gebruiksmogelijkheden van de openbare ruimten verbeteren voor verschillende gebruikers

* Beheer van de stromen om een vlo e doorgang en posi eve interac e te verzekeren en conflicten te vermijden.

MENSELIJKE OMGEVING Hoofdstuk II / Afdeling 2 Diagnose van de bestaande en tenden ële situa e / p. 54

BESTAANDE RECHTSTOESTAND

Op het vlak van luchtkwaliteit zijn de eisen betreffende de NO²-,O3- en PM10concentra es a oms g uit de Europese Richtlijn 2008/50/EG die werd omgezet in besluiten; de meeste daarvan zijn vermeld in de inleiding van dit document.

Het hele grondgebied van het BHG is een Low Emission Zone: het Gewest is niet toegankelijk voor de meest vervuilende voertuigen.

Het BBP verbiedt de instellingen die, omwille van hun belangrijkheid, onverenigbaar zijn met de veiligheid, de gezondheid, de rust of de goede instandhouding van een woon- of bureauwijk, evenals de instellingen die door het uitwasemen van gas, damp, roet of stof, door het veroorzaken van lawaai of op een andere manier stoornis verwekken die de normale maat van burenhinder in een woon- of bureauwijk te boven gaat. ".

BESTAANDE FEITELIJKE TOESTAND

De grootste bronnen van luchtverontreiniging in Brussel zijn het wegverkeer en de verwarming van de residen ële en ter aire gebouwen. Het Brussels Hoofdstedelijk Gewest telt 12 meetsta ons voor luchtkwaliteit. Het sta on het dichtst bij de bestudeerde site bevindt zich op De Brouckère.

De Intergewestelijke Cel voor het Leefmilieu (irceline.be) verstrekt meetkaarten van de jaargemiddelde concentra es van NO2, O3 en fijn stof PM10.

Ten aanzien van de normen die zijn vastgelegd in de Europese Richtlijn ligt de perimeter in een omgeving met een vrij hoge gemiddelde NO2-concentra e (26– 35 µg/m³) en rela ef lage jaargemiddelde concentra es voor O3 en fijn stof PM10 (respec evelijk 31 – 35 µg/m³ en 16 – 20 µg/m³).

De Black Carbonconcentra es zijn het hoogst in het noordelijke deel van de Vooruitgangstraat en vervolgens op het Solvayplein en in de Simon Bolivarlaan.

BUSINESS-AS-USUALSCENARIO

* De toenemende verstedelijking en de klimaatopwarming zorgen voor een meer geconcentreerde atmosferische vervuiling in de stad.

* Het gebruik van zachte verplaatsingswijzen en elektrische voertuigen neemt geleidelijk aan toe, wat een poten ële impact hee op de samenstelling en de concentra es van de luchtverontreinigende stoffen.

Plannen, programma's en projecten:

* De aanbevelingen van het GPDO hebben vooral betrekking op het transport (en niet op de gebouwen).

* Het Gewest hee zich ertoe verbonden om de BKG-emissies te verminderen en er werden ac es vastgelegd in het LKEP (Lucht-, Klimaat- en Energieplan).

* Andere plannen en programma's van het BHG dragen meer onrechtstreeks bij tot de verbetering van de luchtkwaliteit: WBP, PLAGE, "Groen Netwerk", Bomenplan van de Stad Brussel

* Momenteel wordt gewerkt aan een gemeentelijk Klimaatplan en ook een beplanngsplan werd uitgewerkt.

* Het ZIN-project kan lokaal voor verbetering zorgen met meer performante HVACinstalla es en een doordachte lokalisa e van de extrac e-uitgangen van de parkings.

Alterna ef 0 (bij behoud van het BBP):

* Het type inrich ng dat wordt toegelaten hangt af van de veiligheids- en gezondheidseisen van het BBP ("De instellingen die, omwille van hun belangrijkheid onverenigbaar zijn met de veiligheid, de gezondheid […] van een woon- of bureauwijk, evenals de instellingen die door het uitwasemen van gas, damp, roet of stof […] stoornis verwekken die de normale maat van burenhinder te boven gaat, zijn niet toegelaten)

Alterna ef 0+ (bij opheffing van het BBP):

Hoewel de jaargemiddelde concentra es van de meeste verontreinigende stoffen in het algemeen gedaald zijn, blij de luchtkwaliteit zorgwekkend (de gemiddelde concentraes liggen soms hoger dan wordt aanbevolen door de WHO).

Meer lokaal kan ook de vervuilde lucht die wordt afgevoerd door de ven la e van de parkings van de kantoorgebouwen een impact hebben op de luchtkwaliteit. in de meeste bestaande gebouwen binnen het BBP wordt de energie geleverd door HVACinstalla es, transformatoren en noodgroepen. De gekanaliseerde luchtlozingen zijn hoofdzakelijk a oms g van de luchtextrac egroepen van de parkings.

Geen verandering van de toestand.

UITDAGINGEN

Uitdagingen die kunnen worden behandeld in het BBP:

* De emissie van verontreinigende stoffen aanpakken aan de bron door de energiebehoe en van de infrastructuren en de vraag naar warmte en koude verbonden aan de bebouwing te verminderen en minder fossiele brandstoffen te verbruiken (de residuele energievraag dekken met hernieuwbare energiebronnen, zachte verplaatsingswijzen bevorderen,…)

* De vergroening van de perimeter bevorderen

* De impact van de vervuilde luchtafvoer van onder meer de parkings beperken (lokalisa e van de afvoeren naargelang de wind...).

REFERENTIE

Indicator

/ /

Huidige waarde (BBP / uitgebreid BBP)

MENSELIJKE OMGEVING Hoofdstuk II / Afdeling 2 Diagnose van de bestaande en tenden ële situa e / p. 55
LUCHTKWALITEIT
Blootstelling aan Black Carbon jdens de spitsuren (Leefmilieu Brussel, 2016) 2 µg/m³ >10 µg/m³ Jaargemiddelde concentra es van O3 (links), N0³ (midden) en fijn stof PM10 (rechts) - (Irceline, 2019) -INDICATOREN

BESTAANDE RECHTSTOESTAND

Tltel VIII van de GSV bepaalt de eisen voor het ontwerp van de stadsverlich ng.

BESTAANDE FEITELIJKE TOESTAND

De site ligt in poli ezone Brussel-Noord die in 3 gemeenten ac ef is: Schaarbeek, Sint -Joost-ten-Node en Evere. De meest voorkomende misdrijven in deze zone zijn diefstal uit of van voertuigen, zakkenrollerij en woninginbraken. Volgens het commissariaat in de Brabantstraat worden er veel misdrijven gepleegd in de buurt van het Noordsta on In en buiten het sta on zijn zakkenrollers ac ef. Behalve diefstal zijn ook gewelddadige diefstallen frequent: afrukken van handtassen, koffers, halske ngen, telefoons, portefeuilles, enz... Regelma g vinden ook gevechten tussen rivaliserende bendes plaats. Volgens de stedelijke preven edienst van de gemeente Schaarbeek is ook regelma g sprake van agressie jegens gebruikers van de openbare ruimte en sekswerksters. Het commissariaat preciseert dat de omgeving ook wordt gefrequenteerd door verslaafden en drugsdealers. Daklozen zoeken hun toevlucht in de gemeenschappelijke delen van de omgevende gebouwen: met name Residen e Noord, Vooruitgangstraat 187 - Gaucheretstraat 4. Het Gaucheretpark is het toneel van drugshandel en bromfietsrodeo's. Hangjongeren zorgen er vooral in de zomer voor een onveiligheidsgevoel. 's Avonds worden er bovendien autoraces gehouden op het Solvayplein-Koning Albert II-laan en omstreken. Toch zegt het commissariaat dat de bevolking in deze wijk in het algemeen heel menselijk, begripvol, sociaal, rechtuit en mul cultureel is en dat de contacten met de poli ediensten doorgaans heel posi ef zijn.

De voorschri en van het huidige BBP vloeien deels voort uit de logica van het Manha anplan dat het voetgangersverkeer in de hoogte wou laten plaatvinden, gescheiden van de snelwegen op grondniveau. Deze logica van een voetgangersstad op een kunstma ge grondplaat ligt aan de oorsprong van de blinde en logis eke sokkels op de benedenverdiepingen. Het backstreetkarakter van bepaalde straten (blinde of logis eke sokkels) staat elke sociale controle in de weg. Ook de halfondergrondse verdieping van het CCN waar het bussta on is gelegen, biedt niets interessants aan de openbare ruimte. Vanwege de bijna uitsluitend kantoorbestemming is er geen nachtelijke bedrijvigheid en ook de soms weinig kwaliteitsvolle inrich ng van de openbare en groene ruimten draagt weinig bij tot het veiligheidsgevoel en de sociale controle.

Het sta on Brussel-Noord (op de verdiepingen 0 – eindhalte van De Lijn – en +1) en zijn directe omgeving wordt ingenomen door daklozen, vooral migranten. Er wordt regelma g gevochten en ook openbare dronkenschap zorgt vrij regelma g voor conflicten. De leefomstandigheden van bepaalde personen zijn zeer zorgwekkend en ondanks de hulp van verschillende verenigingen is er een erns g hygiëneprobleem. Deze beze ng van het sta on door hulpbehoevende personen wekt bij sommige sta onsgebruikers een subjec ef onveiligheidsgevoel op waardoor ze bepaalde trajecten liever vermijden.

In het CCN-gebouw zien de veiligheidsdiensten van de NMBS en de MIVB toe op de veiligheid en worden er regelma g poli econtroles gehouden.

De aanwezigheid van raampros tu e en slecht onderhouden urinoirs in de Aarschotstraat maakt het traject niet bepaald aangenaam en kan het subjec eve onveiligheidsgevoel in de hand werken. In de Aarschotstraat staan aan de kant van het spoorwegtalud 8 bewakingscamera's opgesteld op vrij grote hoogte. Zo kan het ge-

beuren in de staat van op afstand in de gaten worden gehouden.

Op het Solvayplein is er enkel verlich ng aan doorgangen voor voetgangers, wat eveneens bijdraagt tot een subjec ef onveiligheidsgevoel. De Kwatrech unnel wordt verlicht door wandlampen. De afstand tussen de lampen, de breedte van de weg en het gebrek aan anima e in deze tunnel zijn niet bevorderlijk voor een veiligheidsgevoel. De Aarschotstraat wordt verlicht door lantaarnpalen die afwisselend aan weerszijden van de rijweg staan. Sommige staan verborgen in het gebladerte van de bomen en zijn daardoor weinig efficiënt.

Het Simon Bolivarplein is een verzamelpunt voor manifesta es. De hoek van de Simon Bolivarlaan en de Koning Albert II-laan is het meest blootgesteld aan samenkomsten van manifestanten.

BUSINESS-AS-USUALSCENARIO

Plannen, programma's en projecten:

* Alle plannen die ambi es bepalen voor de openbare ruimte hebben een poten ële impact op het veiligheidsgevoel (GPDO, Good Move, SVC, Kanaalplan, Beeldkwaliteitsplan, GemOP, Lichtplan)

* Het SVC 2 wil de kwaliteit van de doorgang door de tunnels onder de sporen verbeteren.

* Er dient opgemerkt dat de gemeente beschikt over een SPP (Stedelijk Preven eprogramma) dat via preven e de onveiligheid en het onveiligheidsgevoel in Schaarbeek wil verminderen.

Alterna ef 0 (bij behoud van het BBP):

Geen verandering van de toestand.

Alterna ef 0+ (bij opheffing van het BBP):

Geen verandering van de toestand.

UITDAGINGEN

Uitdagingen die kunnen worden behandeld in het BBP:

* HetÊBackstreeteffectÊbeperkenÊdoorÊÊ

▪ de benedenverdiepingen te ac veren

▪ Het breukeffect van de spoorweg verzachten

* De openbare ruimte op ieder ogenblik ac veren door gemengde bestemmingen te voorzien.

* De doorgangen onder de sporen verlevendigen, het onveiligheidsgevoel dat er heerst verminderen en de kwaliteit van de grondbedekkingen voor alle verplaatsingswijzen verbeteren.

REFERENTIE-INDICATOREN

Indicator Huidige waarde (BBP / uitgebreid BBP)

/ /

MENSELIJKE OMGEVING Hoofdstuk II / Afdeling 2 Diagnose van de bestaande en tenden ële situa e / p. 56
VEILIGHEID

UITVOERINGÊVANÊDEÊMWS

Fietsers

BESTAANDEÊRECHTSTOESTAND

* HetÊFietsÊPLUS-netwerkÊomvatÊdeÊSimonÊBolivarlaan,ÊdeÊKoningÊAlbertÊII-laanÊenÊ hetÊnoordelijkeÊdeelÊvanÊdeÊAarschotstraat.ÊHetÊGENÊmaaktÊdeelÊuitÊvanÊhetÊ FietsÊPlus-netwerk.ÊDeÊVooruitgangstraatÊrondÊhetÊCCN,ÊhetÊSolvaypleinÊenÊhetÊ NoordpleinÊzijnÊopgenomenÊinÊhetÊFietsÊCOMFORT-netwerk. DeÊGFRÊmakenÊ deelÊuitÊvanÊdatÊnetwerk.Ê

* DeÊdoelstellingenÊvanÊdezeÊnetwerkenÊzijnÊ:ÊvoorÊdeÊCOMFORT- enÊPLUSwegen:ÊhogeÊinrich ngsnormenÊgaranderenÊopÊhetÊvlakÊvanÊsamenhang,Ê snelheidÊ(directheid),ÊaangenaamÊgebruik,ÊveiligheidÊenÊcomfort.ÊDeÊPLUSroutesÊmoetenÊfietsvoorzieningenÊbiedenÊdieÊdeÊconflictenÊmetÊdeÊandereÊ weggebruikersÊbeperken.Ê

* OpÊalleÊwegenÊvanÊhetÊAuto/VVÊPLUSÊofÊAuto/VVÊCOMFORT-netwerkÊzullenÊ bovendienÊgescheidenÊfietsvoorzieningenÊwordenÊingericht.ÊBinnenÊdeÊ perimeterÊgaatÊhetÊom:

· deÊKoningÊAlbertÊII-laanÊ(fietsÊPLUS):ÊdeÊbreedteÊvanÊeenÊeenrich ngsfietspadÊmoetÊminstensÊ2,5mÊbedragen,ÊdieÊvanÊeenÊtweerich ngsfietspadÊ4mÊ.ÊÊÊÊÊÊ

· hetÊSolvaypleinÊ(fietsÊCOMFORT):ÊdeÊbreedteÊvanÊeenÊ eenrich ngsfietspadÊmoetÊminstensÊ1,8mÊbedragen,ÊdieÊvanÊeenÊ tweerich ngsfietspadÊ3mÊ.ÊÊ

· enÊhetÊnoordelijkeÊdeelÊvanÊdeÊVooruitgangstraatÊ(fietsÊWIJK):ÊdeÊbreedteÊ vanÊeenÊeenrich ngsfietspadÊmoetÊminstensÊ1,8mÊbedragen,ÊdieÊvanÊeenÊ tweerich ngsfietspadÊ3mÊ.ÊÊ

BESTAANDEÊFEITELIJKEÊTOESTAND

* DeÊKoningÊAlbertÊII-laanÊbevatÊvandaagÊ2Êeenrich ngsfietspadenÊmetÊeenÊ breedteÊkleinerÊdanÊ2,5m.ÊÊDeÊAlbertÊII-asÊhee ÊeenÊglobaleÊbreedteÊvanÊongeveerÊ60m.ÊErÊkunnenÊdusÊvoldoendeÊbredeÊfietspadenÊwordenÊaangelegdÊalsÊerÊ minderÊruimteÊwordtÊtoebedeeldÊaanÊdeÊandereÊverplaatsingswijzen.

* HetÊSolvaypleinÊbevatÊvandaagÊ2Êeenrich ngsfietspadenÊmetÊeenÊbreedteÊkleinerÊdanÊ1,80m.ÊDeÊSolvay-asÊhee ÊeenÊglobaleÊbreedteÊvanÊongeveerÊ20m.ÊErÊ kunnenÊdusÊvoldoendeÊbredeÊfietspadenÊwordenÊaangelegdÊalsÊerÊminderÊ ruimteÊwordtÊtoebedeeldÊaanÊdeÊandereÊverplaatsingswijzen.

* HetÊnoordelijkeÊdeelÊvanÊdeÊVooruitgangstraatÊbevatÊvandaagÊgeenÊfietspaden,Ê enkelÊfietssugges estroken.ÊDitÊdeelÊvanÊdeÊVooruitgangstraatÊhee ÊeenÊglobaleÊ breedteÊvanÊongeveerÊ12m.ÊHetÊaanleggenÊvanÊfietspadenÊisÊhierÊminderÊevidentÊomdatÊdezeÊasÊookÊeenÊAuto's/VVÊComfort-routeÊis.ÊDeÊparkeerstrookÊ biedtÊerÊweinigÊpoten eelÊomÊfietspadenÊaanÊteÊleggen.ÊErÊstaanÊimmersÊlaanbomenÊenÊdeÊbreedteÊisÊteÊbeperkt.

* HetÊCCNÊwordtÊvandaagÊovergestokenÊviaÊdeÊoudeÊVooruitgangstraat,ÊmetÊgescheidenÊfietspad,ÊdieÊonderÊhetÊCCNÊdoorÊloopt.ÊInÊhetÊkaderÊvanÊdeÊMWSÊzullenÊdeÊfietsersÊechterÊrondÊhetÊCCNÊmoetenÊrijdenÊviaÊdeÊVooruitgangstraatÊ (fiets-COMFORT).

Voetgangers BESTAANDEÊRECHTSTOESTAND

* EenÊvoetgangersboulevardÊverbindtÊRogierÊmetÊThurnÊ&ÊTaxisÊviaÊaanÊdeÊeneÊkantÊ hetÊNoordpleinÊenÊdeÊBolivarlaanÊenÊaanÊdeÊandereÊkantÊhetÊzuidelijkeÊdeelÊvanÊdeÊ KoningÊAlbertÊII-laan.ÊHetÊSolvayplein,ÊdeÊKwatrechtstraat,ÊdeÊnoordelijkeÊdelenÊvanÊ deÊVooruitgangstraatÊenÊdeÊAarschotstraatÊenÊdeÊNoordtunnelÊzijnÊPLUS-routes.ÊHetÊ noordelijkeÊdeelÊvanÊdeÊnieuweÊVooruitgangstraatÊenÊdeÊKoolbrandersstraatÊzijnÊ COMFORT-routes,ÊnetÊalsÊhetÊnoordelijkeÊdeelÊvanÊdeÊKoningÊAlbertÊII-laan.Ê * DeÊaanlegÊvanÊeenÊvoetgangersboulevardÊmoetÊeenÊbeschikbareÊstandaardbreedteÊ biedenÊvanÊ5ÊmeterÊdieÊoverÊhetÊheleÊtrajectÊhetzelfdeÊniveauÊaanhoudt,ÊookÊopÊdeÊ oversteken.ÊZeÊmoetÊopÊhaarÊtrajectÊookÊverblijfsac viteitenÊmogelijkÊmakenÊzonderÊ hetÊvrijeÊverkeerÊvanÊvoetgangersÊteÊbelemmeren.ÊVoorÊditÊverkeerÊmoetÊinÊiederÊ gevalÊeenÊbreedteÊvanÊ3ÊmeterÊbeschikbaarÊzijn.ÊÊDeÊPLUS-wegenÊkrijgenÊeenÊ grondbedekkingÊvanÊbetereÊkwaliteitÊdanÊdeÊandereÊwijkwegenÊenÊmoetenÊaanÊhogeÊ inrich ngsnormenÊvoldoenÊvoorÊdeÊvolgendeÊcriteria:Êafme ngenÊaangepastÊaanÊ hetÊvolumeÊvoetgangers,ÊvlakÊenÊcomfortabelÊmetÊeenÊcorrecteÊgrip,Êpla ormenÊenÊ andereÊinrich ngenÊvoorÊdeÊtoegankelijkheidÊvanÊPBM.ÊDeÊdelenÊdieÊalsÊCOMFORT wordenÊingedeeldÊkrijgenÊeenÊbetereÊgrondbedekkingÊdanÊdeÊandereÊwijkwegen.

BESTAANDEÊFEITELIJKEÊTOESTAND

* DeÊvoetgangerszonesÊvanÊdeÊSimonÊBolivarlaanÊenÊdeÊAlbertÊII-laanÊzijnÊmomenteelÊ zeerÊbreedÊ(terÊhoogteÊvanÊhetÊBBPÊ20mÊinÊhetÊcentraleÊdeel),ÊmaarÊdeÊar cula esÊ (oversteekplaatsen,Êcon nuïteiten,ÊhetÊdelenÊvanÊdeÊwegÊmetÊdeÊandereÊ verplaatsingswijzen)ÊvormenÊbreuken.ÊDeÊVooruitgangstraatÊenÊhetÊNoordpleinÊzijnÊ eerderÊvoetgangersonvriendelijkÊenÊzijnÊvandaagÊnietÊgeschiktÊvoorÊdeÊ voetgangersboulevard.Ê

Voetgangersboulevard:

* DeÊSimonÊBolivarlaanÊenÊdeÊAlbertÊII-laanÊbeschikkenÊoverÊvoldoendeÊbredeÊvoetpadenÊomÊeenÊvoetgangersboulevardÊaanÊteÊleggen.

* InÊhetÊzuidelijkeÊdeelÊvanÊdeÊVooruitgangstraatÊzijnÊdeÊvoetpadenÊteÊsmalÊvoorÊeenÊ voetgangersboulevard.

ComfortÊPlus

* DeÊvoetpadenÊinÊhetÊnoordelijkeÊdeelÊvanÊdeÊVooruitgangstraatÊkunnenÊteÊsmalÊzijnÊ voorÊeenÊComfortÊPlus-netwerkÊinÊdeÊdirecteÊomgevingÊvanÊhetÊsta on.

* OpÊhetÊSolvayplein,ÊinÊdeÊKwatrechtstraatÊenÊopÊhetÊNoordpleinÊlijkenÊdeÊvoetpadenÊ voldoendeÊbreedÊomÊdeelÊteÊkunnenÊuitmakenÊvanÊhetÊComfortÊPlus-netwerk.

Comfort:

* DeÊvoetpadenÊinÊhetÊnoordelijkeÊdeelÊvanÊdeÊnieuweÊVooruitgangstraatÊzijnÊaanÊdeÊ westkantÊteÊsmalÊvoorÊeenÊComfort-netwerkÊinÊdeÊdirecteÊomgevingÊvanÊhetÊsta on.

* InÊdeÊKoolbrandersstraatÊzijnÊdeÊvoetpadenÊmogelijkÊteÊsmalÊvoorÊeenÊComfortnetwerkÊinÊdeÊdirecteÊomgevingÊvanÊhetÊsta on.

VERPLAATSINGEN HoofdstukÊIIÊ/ÊAfdelingÊ2ÊÊDiagnoseÊvanÊdeÊbestaandeÊenÊtenden ëleÊsitua eÊ/Êp.Ê57

UITVOERINGÊVANÊDEÊMWS

OpenbaarÊvervoer

BESTAANDEÊRECHTSTOESTAND

* NaastÊhetÊondergrondseÊnetÊ(premetro)ÊdatÊeenÊsterkeÊnoord-zuidverbindingÊ PLUSÊbuitenÊdeÊwegÊbiedt,ÊisÊookÊdeÊWillebroekkaaiÊgoedÊvoorÊeenÊnoordzuidverbindingÊCOMFORTÊopÊdeÊwegÊ.ÊDeÊAlbertÊII-laanÊenÊdeÊAntwerpsesteenwegÊvanÊhunÊkantÊbiedenÊWIJKÊverbindingen.ÊDezeÊnoord-zuidverbindingenÊverbindenÊhetÊcentrumÊmetÊdeÊwijkenÊaanÊdeÊrand.ÊDeÊSimonÊBolivarlaanÊbiedtÊdeÊ belangrijksteÊopenbaarvervoersverbindingÊinÊoost-westelijkeÊrich ngÊenÊisÊingedeeldÊalsÊCOMFORT-route.ÊDeÊMWSÊvoorzietÊalÊdeÊdoorgangÊviaÊdeÊSuzanÊDanielbrug,ÊmaarÊvandaagÊwordtÊhetÊkanaalÊnogÊovergestokenÊviaÊdeÊbrugÊopÊhetÊ

Redersplein.ÊDeÊnieuweÊVooruitgangstraatÊdieÊrondÊhetÊNoordsta onÊenÊhetÊ

CCNÊlooptÊinÊhetÊwestenÊisÊeenÊCOMFORT-wegÊenÊlooptÊverderÊnoordwaartsÊviaÊ deÊVooruitgangstraatÊenÊverderÊzuidwaartsÊviaÊdeÊdoorgangÊonderÊdeÊsporenÊopÊ hetÊNoordpleinÊenÊdeÊSint-LazaruslaanÊrich ngÊstadscentrum.

* DeÊOVÊPLUS-assenÊlatenÊlangeafstandverplaatsingenÊtoeÊtussenÊdeÊbestaandeÊenÊ inÊontwikkelingÊzijndeÊgroteÊpolenÊopÊgrootstedelijkeÊschaal,ÊmetÊaantrekkelijkeÊ trajec jdenÊenÊhogeÊfrequen eÊenÊcapaciteit.ÊHetÊspoorwegnetÊmaaktÊdeelÊuitÊ vanÊhetÊOVÊPLUS-netwerk,ÊmaarÊookÊdeÊtoekoms geÊmetrolijnÊ(noordzuidverbinding).ÊHetÊsta onÊBrusselÊNoordÊisÊdusÊeenÊoverstapknooppuntÊ binnenÊhetÊOW-PLUS-netwerk.ÊDeÊOVÊCOMFORT-assenÊvullenÊhetÊmaaswerkÊvanÊ hetÊPLUS-netwerkÊaanÊenÊmakenÊdeÊverplaatsingenÊtussenÊdeÊwijkenÊmogelijk.Ê AangezienÊzeÊgebruiktÊwordenÊvoorÊverplaatsingenÊopÊminderÊgroteÊschaalÊ waarbijÊgebruikÊgemaaktÊwordtÊvanÊsmallereÊwegenÊdanÊinÊhetÊOVÊPLUSnetwerk,ÊisÊhetÊCOMFORT-netwerkÊnietÊgeschiktÊomÊdezelfdeÊsoortÊpresta esÊteÊ leverenÊopÊgebiedÊvanÊtrajec jden.ÊDeÊuitdagingÊvanÊdeÊregelmaatÊdaarentegenÊ isÊerÊessen eel.Ê

BESTAANDEÊFEITELIJKEÊTOESTAND

* InÊdeÊheleÊzoneÊvanÊhetÊCCNÊrijdenÊdeÊbussenÊinÊeigenÊbaan.ÊOpÊdeÊSimonÊBolivarlaanÊbeschikkenÊzeÊenkelÊoverÊeenÊeigenÊbaanÊterÊhoogteÊvanÊdeÊperimeterÊ vanÊhetÊBBP,ÊenÊenkelÊaanÊdeÊzuidkantÊvanÊdeÊlaan.ÊDezeÊeigenÊbaanÊlooptÊverderÊinÊdeÊnieuweÊVooruitgangstraatÊtotÊaanÊRogier.ÊOpÊdeÊandereÊwegenÊrijdenÊ deÊbussenÊnietÊinÊeigenÊbaan.

* HetÊtram- enÊpremetronetwerkÊligtÊondergrondsÊenÊdusÊinÊeigenÊbaan.

Auto's BESTAANDEÊRECHTSTOESTAND

* DeÊperimeterÊvanÊhetÊBBPÊligtÊinÊdeÊmaasÊBrabant,ÊaanÊdeÊrandÊvanÊdeÊmaasÊ Noordwijk:ÊdeÊKoningÊAlbertÊII-laan,ÊhetÊSolvaypleinÊenÊhetÊnoordelijkeÊdeelÊvanÊdeÊ VooruitgangstraatÊzijnÊAutoÊCOMFORT-wegenÊenÊmarkerenÊdeÊgrensÊtussenÊdeÊmazen DeÊandereÊwegenÊvanÊdeÊperimeterÊliggenÊbinnenÊdeÊmaas,ÊdusÊinÊdeÊrus geÊ "Wijk"Êzone.ÊÊ

* DeÊnetwerkenÊPLUSÊenÊCOMFORTÊbakenenÊdeÊrus geÊ'mazen'ÊafÊwaarÊdeÊverblijfsfunc eÊvoorrangÊhee ÊopÊdeÊverplaatsingsfunc eÊdieÊbeperktÊmoetÊblijvenÊtotÊ lokaleÊtoegangÊ(GoodÊMove).ÊBedoelingÊisÊomÊhetÊdoorgaandÊverkeerÊteÊverminderen,ÊeenÊverkeersplanÊuitÊteÊrollenÊdatÊdeÊac eveÊverplaatsingenÊenÊhetÊopenbaarÊ vervoerÊbevordertÊenÊdeÊopenbareÊruimteÊ(deÊwijk)ÊveiligerÊenÊaangenamerÊteÊmaken.Ê

BESTAANDEÊFEITELIJKEÊTOESTAND

AlleÊwegenÊvanÊdeÊperimeterÊstaanÊvandaagÊvooralÊinÊhetÊtekenÊvanÊhetÊautoverkeer.Ê DeÊKoningÊAlbertÊII-laanÊhee ÊeenÊbreedteÊvanÊmeerÊdanÊ60mÊenÊbeschiktÊoverÊ2ÊdubbeleÊ rijstrokenÊvoorÊauto's.

DeÊBolivarlaan,ÊeveneensÊ60ÊmÊbreed,ÊisÊbinnenÊdeÊperimeterÊvanÊhetÊBBPÊvooralÊvoorbehoudenÊvoorÊbussenÊenÊtaxi's,ÊmaarÊbeschiktÊoverÊ4ÊrijstrokenÊvoorÊauto'sÊinÊelkeÊrich ngÊ vanÊdeÊperimeterÊnaarÊThurnÊ&ÊTaxis.

HetÊSolvayplein,ÊeenÊder gtalÊmeterÊbreed,ÊbeschiktÊoverÊ2ÊdubbeleÊrijstrokenÊvoorÊhetÊ autoverkeer.ÊDezeÊdubbeleÊrijstrokenÊlopenÊdoorÊdeÊdoorgangÊonderÊdeÊsporenÊinÊdeÊ Kwatrechtstraat.

DeÊKoolbrandersstraat,ÊmetÊeenÊbreedteÊvanÊongeveerÊ20m,Êhee Ê2ÊdubbeleÊrijstrokenÊ voorÊauto's.ÊDezeÊdubbeleÊrijstrokenÊlopenÊdoorÊdeÊdoorgangÊonderÊdeÊsporenÊopÊhetÊ Noordplein.

DeÊVooruitgangstraatÊhee ÊinÊhaarÊverschillendeÊdelenÊverschillendeÊbreedtes,ÊmaarÊbeschiktÊzowelÊinÊhetÊnoordenÊalsÊinÊhetÊzuidenÊoverÊeenÊrijstrookÊinÊelkeÊrich ng.ÊTerÊhoogteÊvanÊhetÊCCNÊheerstÊinÊdeÊVooruitgangstraatÊeenrich ngverkeerÊtenÊnoordenÊvanÊBolivar.ÊInÊhetÊzuidenÊisÊzeÊvoorbehoudenÊvoorÊbussen.ÊDeÊbinnenstraatÊleidtÊvanÊzuidÊnaarÊ noordÊenÊisÊvoorbehoudenÊvoorÊ'kissÊandÊride'.

HetÊgrootsteÊdeelÊvanÊhetÊverkeerÊopÊdeÊWIJK-assenÊvaltÊnietÊonderÊdeÊnoemerÊlokaalÊ verkeer.ÊZowelÊdeÊdoorgangenÊonderÊdeÊsporenÊinÊdeÊKwatrechtstraatÊenÊopÊhetÊNoordpleinÊalsÊdeÊKoolbrandersstraatÊliggenÊbinnenÊdeÊmaasÊenÊtrekkenÊheelÊwatÊdoorgaandÊ verkeerÊaanÊdatÊnietÊvoldoetÊaanÊhetÊprincipeÊvanÊeenÊrus geÊmaas.ÊÊ

VERPLAATSINGEN HoofdstukÊIIÊ/ÊAfdelingÊ2ÊÊDiagnoseÊvanÊdeÊbestaandeÊenÊtenden ëleÊsitua eÊ/Êp.Ê58

UITVOERINGÊVANÊDEÊMWS

Vrachtverkeer

BESTAANDEÊRECHTSTOESTAND

* DeÊNoordwijkÊwordtÊbediendÊdoorÊhetÊVWÊCOMFORT-netwerkÊdatÊviaÊdeÊAlbertÊ II-laanÊenÊhetÊSolvaypleinÊlangsÊhetÊBBPÊloopt.ÊDeÊandereÊwegenÊzijnÊVWÊWijkassen.

* DeÊCOMFORT-wegenÊvanÊhetÊVrachtverkeersnetwerkÊsturenÊdeÊstedelijkeÊdistribu eÊvanÊgoederenÊinÊhetÊGewest,ÊevenalsÊhetÊverkeerÊvanÊautocarsÊnaarÊ bussta onsÊenÊtoeris scheÊzones.ÊDeÊVWÊWIJK-assenÊmoetenÊhetÊzwaarÊverkeerÊ naarÊdeÊbestemmingÊleidenÊenÊ4mÊstabilisa eruimteÊvrijlatenÊvoorÊdeÊbrandweer

BESTAANDEÊFEITELIJKEÊTOESTAND

* DeÊAlbertÊII-laanÊisÊglobaalÊbrederÊdanÊ60mÊenÊhetÊSolvaypleinÊglobaalÊbrederÊ danÊ30m.ÊBeideÊzijnÊvoorzienÊvanÊtweeÊdubbeleÊrijstroken,ÊwatÊruimÊvolstaatÊ voorÊeenÊVWÊCOMFORT-as.ÊDeÊdoorgangsbreedteÊvoorÊauto'sÊinÊdeÊVooruitgangstraatÊbedraagtÊminderÊdanÊ6,5m,ÊmetÊ1ÊrijstrookÊinÊelkeÊrich ng.ÊDatÊisÊ nietÊergÊbreed,ÊmaarÊnietÊonverenigbaarÊmetÊhetÊVWÊCOMFORT-netwerk.Ê

BUSINESS-AS-USUALSCENARIO

Plannen,Êprogramma'sÊenÊprojecten:Ê

* DeÊgeleidelijkeÊuitvoeringÊvanÊhetÊplanÊGoodMoveÊenÊvanÊdeÊMWSÊzalÊeenÊveranderingÊteweegbrengenÊinÊdeÊmobiliteitÊopÊgewestelijkeÊschaal.

* HetÊStadsvernieuwingscontractÊSVC1Ê"CitroënÊ- Vergote" dektÊeenÊgebiedÊtenÊwestenÊvanÊdeÊperimeter.ÊInÊdeÊperimeterÊBolivarÊlooptÊeenÊprojectÊtussenÊdeÊWillebroekkaaiÊenÊdeÊAntwerpsesteenweg,ÊmaarÊmetÊeenÊvisieÊtotÊaanÊhetÊ Noordsta on.Ê

* BrusselÊMobiliteitÊwilÊinÊhetÊverlengdeÊvanÊditÊprojectÊde SimonÊBolivarlaan totÊaanÊ hetÊNoordsta onÊheraanleggenÊtotÊeenÊheuseÊopenbareÊruimteÊdieÊzichÊopensteltÊ voorÊdeÊwijkÊenÊdieÊmetÊhetÊkanaalÊisÊverbondenÊviaÊeenÊvoetgangersboulevard,Ê eenÊsterkeÊfietsasÊenÊeenÊnieuweÊtramlijn.ÊDitÊprojectÊvoorzietÊinÊdeÊverminderingÊ vanÊdeÊhuidigeÊgrondinnameÊvanÊdeÊweg,ÊdeÊinrich ngÊvanÊoversteekplaatsenÊdieÊ deÊcon nuïteitÊvoorÊdeÊvoetgangersÊgaranderen,ÊdeÊorganisa eÊvanÊeenÊvlotÊopenbaarÊvervoerÊinÊeigenÊbaanÊenÊdeÊrealisa eÊvanÊaanplan ngenÊlangsÊdeÊopenbareÊ wegÊomÊdeÊlandschappelijkeÊenÊplantaardigeÊcon nuïteitÊvanÊhetÊMaximiliaanparkÊ teÊgaranderen.

* DeÊSuzanÊDanielbrugÊwerdÊgerealiseerd.ÊZeÊisÊbestemdÊvoorÊdeÊac eveÊverplaatsingswijzenÊenÊhetÊopenbaarÊvervoer:ÊbussenÊenÊdeÊtoekoms geÊtram.ÊZeÊwerdÊ opgenomenÊinÊhetÊtrajectÊvanÊdeÊMWS.

* MomenteelÊwordtÊonderzoekÊverrichtÊnaarÊdeÊmaasÊLambermont.ÊDeÊuitvoeringÊ vanÊhetÊverkeersplanÊvanÊdezeÊmaasÊkanÊgevolgenÊhebbenÊopÊdeÊAuto+- enÊComfort-wegen,ÊwaaronderÊdezeÊdieÊhetÊBBPÊdoorkruisenÊ(verschuivingÊvanÊhetÊdoorgaandÊverkeerÊaanÊdeÊrandÊvanÊdeÊmaas).

* OpÊhetÊdeelÊFiets-COMFORTÊinÊdeÊWillemÊdeÊMolstraat,ÊhetÊMaximiliaanparkÊenÊ hetÊRederspleinÊlooptÊeenÊprojectÊvoorÊfietsvoorzieningenÊinÊhetÊkaderÊvanÊhetÊ RPAÊMaximiliaan.Ê

Alterna efÊ0Ê(bijÊbehoudÊvanÊhetÊBBP): GeenÊveranderingÊvanÊdeÊtoestand.

Alterna efÊ0+Ê(bijÊopheffingÊvanÊhetÊBBP): GeenÊveranderingÊvanÊdeÊtoestand.

UITDAGINGEN

UitdagingenÊdieÊkunnenÊwordenÊbehandeldÊinÊhetÊBBP:

* BijdragenÊtotÊdeÊuitvoeringÊvanÊhetÊPlanÊGoodMoveÊdoorÊdeÊvoorschri enÊvanÊhetÊ BBPÊafÊteÊstemmenÊopÊdeÊdoelstellingenÊvanÊditÊplan.

* DeÊcohabita eÊvanÊdeÊverschillendeÊverplaatsingswijzenÊbevorderen.Ê

GEKRUISTEÊMWS

UitÊdeÊsuperposi eÊvanÊdeÊMWSÊvoetgangers,ÊfietsersÊenÊOVÊblijktÊdatÊdeÊSimonÊBolivarlaanÊenÊhetÊzuidelijkeÊdeelÊvanÊdeÊAlbertÊII-laanÊCOMFORT- ofÊPLUS-wegenÊvoorÊalÊ dezeÊverschillendeÊverplaatsingswijzen.ÊDeÊAlbertÊII-laanÊisÊookÊeenÊCOMFORT-wegÊ voorÊhetÊauto- enÊvrachtverkeer.

DezeÊassenÊzullenÊmoetenÊwordenÊheraangelegdÊomÊteÊvoldoenÊaanÊdeÊverwach ngenÊvoorÊelkÊvanÊdezeÊverplaatsingswijzen.ÊDeÊwegenÊinÊkwes eÊzijnÊechterÊvoldoendeÊbreedÊomÊdieÊaanpassingÊmogelijkÊteÊmaken.

REFERENTIE-INDICATOREN

WegenÊwaarvanÊdeÊinrich ngÊovereenstemtÊmetÊdeÊdoelstellingenÊvanÊhetÊplanÊ

Fiets Voetgan- OV Auto Vrachtverkeer

KoningÊAlbertÊII- VÊ(behalveÊ breedte)

S.ÊBolivarlaan X V V

Solvayplein VÊ(behalveÊ breedte)

Vooruit- X XÊ

(limietbreedte)

VERPLAATSINGEN HoofdstukÊIIÊ/ÊAfdelingÊ2ÊÊDiagnoseÊvanÊdeÊbestaandeÊenÊtenden ëleÊsitua eÊ/Êp.Ê59
V V V V
- -
- V V
V
V V VÊ

ACTIEVEÊVERPLAATSINGSWIJZEN

BESTAANDEÊRECHTSTOESTAND

TitelÊVIIÊvanÊdeÊGSVÊbepaaltÊdeÊeisenÊopÊhetÊvlakÊvanÊweginrich ng.ÊVoetpadenÊmoetenÊminstensÊ1,5ÊmÊbreedÊzijnÊenÊoversteekplaatsenÊvoorÊvoetgangersÊmoetenÊinÊhetÊ verlengdeÊliggenÊvanÊdeÊvoetgangerswegen.ÊTitelÊIVÊbepaaltÊdeÊeisenÊopÊhetÊvlakÊvanÊ toegankelijkheidÊvanÊdeÊgebouwenÊvoorÊPBM.

DeÊMul modaleÊWegenspecialisa eÊvanÊhetÊPlanÊGoodMoveÊvoorzietÊinÊvoetgangersenÊfietsnetwerkenÊenÊbeveeltÊdeÊbijhorendeÊinfrastructurenÊaanÊ(zieÊcriteriumÊ UitvoeringÊvanÊdeÊMWS).

BESTAANDEÊFEITELIJKEÊTOESTAND

InÊdeÊNoordwijkÊwerdenÊdeÊ openbareÊruimtenÊ vooralÊingerichtÊvoorÊhetÊgemotoriseerdÊverkeer,ÊtenÊnadeleÊvanÊdeÊac eveÊverplaatsingswijzen.ÊDeÊopenbareÊruimteÊisÊ dusÊvolledigÊopgevatÊinÊdieÊzin.Ê

Voetgangers

DeÊvoetpadenÊinÊhetÊgebiedÊzijnÊduidelijkÊinÊtweeÊgesplitstÊdoorÊdeÊ NoordZuidverbinding.ÊAanÊdeÊoostkantÊzijnÊdeÊstratenÊenÊvoetpadenÊsmal.ÊAanÊdeÊwestkantÊ zijnÊdeÊopenbareÊruimtenÊvanÊdeÊNoordwijkÊbreedÊgenoegÊomÊeenÊzekerÊcomfortÊen/ ofÊpoten eelÊteÊbiedenÊvoorÊdeÊontwikkelingÊvanÊdeÊac eveÊverplaatsingswijzen.Ê MeerÊconcreetÊstellenÊweÊbinnenÊdeÊperimeterÊvanÊhetÊBBPÊvastÊdat:

* DeÊrecentsteÊinrich ngenÊopÊhetÊSimonÊBolivarpleinÊenÊinÊdeÊAlbertÊII-laanÊ bijzonderÊveelÊplaatsÊtoebedelenÊaanÊdeÊvoetgangers:Ê

▪ InÊdeÊSimonÊBolivarlaan,ÊmetÊeenÊglobaleÊbreedteÊvanÊongeveerÊ50m,ÊzijnÊ deÊvoetpadenÊaanÊelkeÊkantÊongeveerÊ6mÊbreed.ÊEenÊcentraleÊvoetgangerszoneÊhee ÊeenÊbreedteÊvanÊmeerÊdanÊ30m.ÊÊ

▪ DeÊKoningÊAlbertÊII-laan,ÊmetÊeenÊglobaleÊbreedteÊvanÊongeveerÊ60m,Êhee Ê voetpadenÊmetÊeenÊbreedteÊvanÊongeveerÊ6mÊaanÊdeÊeneÊkantÊenÊongeveerÊ4,5mÊaanÊdeÊandereÊkant.Ê

* HetÊzuidelijkeÊdeelÊvanÊdeÊnieuweÊVooruitgangstraatÊhee ÊeenÊglobaleÊbreedteÊ vanÊongeveerÊ16m.ÊDeÊvoetpadenÊzijnÊerÊietsÊbrederÊdanÊ1mÊaanÊdeÊoostkant,Ê dusÊonvoldoendeÊvoorÊdeÊdoorgangÊvanÊvoetgangersÊenÊPBM,ÊenÊongeveerÊ 3,5mÊaanÊdeÊwestkant.Ê

* HetÊnoordelijkeÊdeelÊvanÊdeÊnieuweÊVooruitgangstraatÊhee ÊeenÊglobaleÊ breedteÊvanÊongeveerÊ12m.ÊDeÊbreedteÊvanÊdeÊvoetpadenÊvarieertÊerÊvanÊ1,5Ê totÊ3mÊaanÊdeÊoostkantÊenÊ2mÊaanÊdeÊwestkant.Ê

* OpÊhetÊSolvaypleinÊ- globaleÊbreedteÊongeveerÊ20mÊ- zijnÊdeÊvoetpadenÊongeveerÊ2,20mÊtotÊ4mÊbreedÊaanÊdeÊzuidkantÊenÊongeveerÊ5,5mÊaanÊdeÊnoordkant.

* DeÊKwatrechtstraatÊhee ÊeenÊglobaleÊbreedteÊvanÊongeveerÊ28mÊonderÊdeÊ brug.ÊDeÊvoetpadenÊzijnÊerÊaanÊelkeÊkantÊ5,5mÊbreed.

* HetÊNoordpleinÊbiedtÊeenÊtotaleÊbreedteÊvanÊongeveerÊ38mÊonderÊdeÊbrugÊenÊ voetpadenÊvanÊongeveerÊ11mÊbreedÊaanÊdeÊnoordkantÊenÊ3,5mÊaanÊdeÊzuidkant.

* HetÊnoordelijkeÊdeelÊvanÊdeÊnieuweÊVooruitgangstraatÊhee ÊeenÊglobaleÊ breedteÊvanÊongeveerÊ22m.ÊDeÊbreedteÊvanÊdeÊvoetpadenÊvarieertÊerÊvanÊ8mÊ totÊ10mÊaanÊdeÊoostkantÊenÊongeveerÊ1,5mÊaanÊdeÊwestkant.Ê

* DeÊKoolbrandersstraatÊhee ÊeenÊglobaleÊbreedteÊvanÊongeveerÊ20mÊenÊvoetpadenÊvanÊongeveerÊ2,5mÊbreedÊaanÊelkeÊkant.

GlobaalÊgezienÊ(behoudensÊenkeleÊpunctueleÊuitzonderingen)ÊbiedenÊdeÊvoetpadenÊ vanÊhetÊBBPÊdusÊeenÊcomfortabeleÊbreedteÊvoorÊvoetgangersÊenÊPBM.ÊTochÊzijnÊerÊ

eenÊaantalÊzwarteÊpuntenÊenÊobstakelsÊdieÊdeÊdoorgangÊvoorÊvoetgangersÊenÊdeÊtoegankelijkheidÊvoorÊPBMÊbemoeilijken.

StaatÊenÊobstakels:ÊÊ

* DeÊvoetpadenÊverkerenÊglobaalÊgezienÊinÊgoedeÊstaat,ÊmaarÊopÊsommigeÊplaatsenÊ liggenÊzeÊnietÊgelijk.Ê

* ZeÊvertonenÊsomsÊonregelma ghedenÊdoordatÊdeÊklinkersÊzijnÊverschovenÊdoorÊdeÊ doortochtÊvanÊdeÊbussen.

* HierÊenÊdaarÊzienÊweÊookÊbultenÊofÊpu en.Ê

* DeÊoversteekplaatsenÊvoorÊvoetgangersÊinÊdeÊAlbertÊII-laanÊvertonenÊsomsÊeenÊ sterkeÊhellingÊinÊhetÊcentraleÊdeelÊdatÊinderdaadÊhogerÊligtÊdanÊdeÊwegÊzelf.

* Solvayplein:ÊOpÊdeÊasÊzelfÊverkerenÊdeÊvoetpadenÊglobaalÊgezienÊinÊgoedeÊstaat,Ê maarÊopÊsommigeÊplaatsenÊliggenÊzeÊnietÊgelijk.ÊÊ

AlÊdieÊobstakelsÊvoorÊvoetgangersÊvindenÊweÊpunctueelÊterugÊinÊdeÊheleÊperimeter.ÊOpÊ schaalÊvanÊdeÊperimeterÊverkerenÊdeÊtrajectenÊechterÊinÊgoedeÊstaat,ÊbehalveÊop:

· hetÊNoordpleinÊdatÊeenÊpatchworkÊvanÊgrondbedekkingenÊis,

· deÊoversteekplaatsen,

· deÊhoekÊvanÊdeÊKoolbrandersstraat/VooruitgangstraatÊwaarÊeenÊroosterÊbovenÊ eenÊtechnischeÊruimteÊdeÊdoorgangÊvoorÊvoetgangersÊbelemmertÊenÊonveiligÊ maakt.

VERPLAATSINGEN HoofdstukÊIIÊ/ÊAfdelingÊ2ÊÊDiagnoseÊvanÊdeÊbestaandeÊenÊtenden ëleÊsitua eÊ/Êp.Ê60
Voorbeelden van ongelijke zones in de Bolivarlaan (boven) en de Albert II-laan (onder) (BRAT, 2021). Voorbeeld van een centrale oversteekplaats in de Albert II-laan (niveau Solvayplein (BRAT, 2021) Voorbeeld van een ongelijke oversteekplaats voor voetgangers in de buurt van de bushaltes in de Voorbeeld van onregelma gheden aan de oversteekplaats voor voetgangers in de Albert II-laan Voorbeeld Solvayplein (BRAT, 2021)

ACTIEVEÊVERPLAATSINGSWIJZEN

HetÊSolvayplein,ÊhetÊNoordpleinÊenÊhetÊBolivarpleinÊvormenÊeenÊinterfaceÊmetÊhetÊCCNÊ enÊhetÊNoordsta on.ÊHetÊhoogteverschilÊvanÊdezeÊopenbareÊruimtenÊbemoeilijktÊhetÊ gebruikÊdatÊinÊdergelijkeÊruimten,ÊinÊdeÊdirecteÊomgevingÊvanÊhetÊsta on,ÊkanÊwordenÊ verwacht.ÊDeÊoost-westelijkeÊtoegankelijkheidÊvanÊhetÊNoordsta onÊwordtÊbelemmerdÊdoorÊtalrijkeÊniveauverschillen.ÊVanafÊhetÊBolivarpleinÊmoetenÊvoetgangersÊ dieÊnaarÊhetÊCCNÊwillenÊeenÊtrapÊnemenÊdieÊteÊkleinÊisÊvoorÊdeÊvoetgangersstromenÊ enÊbovendienÊnietÊaangepastÊisÊvoorÊPBM.Ê

HetÊkarakterÊvanÊhetÊSolvaypleinÊenÊhetÊNoordpleinÊisÊnietÊduidelijk:ÊhetÊzijnÊzowelÊverkeersassenÊalsÊkruispuntenÊenÊmobiliteitsknooppunten.ÊDeÊa akeningenÊzijnÊvaag.ÊDezeÊ pleinenÊzijnÊvandaagÊnietÊinÊstaatÊomÊhunÊrolÊvanÊopenbareÊruimteÊteÊvervullen.ÊDeÊvoetgangersverbindingenÊtussenÊdezeÊpleinenÊvormenÊgeenÊaangenaamÊenÊvloeiendÊtraject.Ê

HetÊBolivarpleinÊdatÊdienstÊmoetÊdoenÊalsÊvoorpleinÊisÊnagenoegÊonbestaandÊenÊzeerÊ onduidelijk.Ê

Fietsers

WatÊdeÊfietsinfrastructuurÊbetre ,ÊisÊhetÊgebiedÊduidelijkÊinÊtweeÊgesplitstÊdoorÊdeÊNoord -Zuidverbinding.ÊAanÊdeÊoostkantÊzijnÊgeenÊspecifiekeÊinfrastructurenÊvoorzien,ÊwatÊkanÊ wordenÊverklaardÊdoorÊdeÊbeperkteÊgroo eÊvanÊdeÊwegen.ÊAanÊdeÊwestkantÊzijnÊdeÊwegenÊwelÊvoorzienÊvanÊfietsinfrastructurenÊinÊdeÊvormÊvanÊfietspaden.Ê

vanÊaan- enÊafrijdendeÊbussenÊenÊbevindtÊzichÊbovendienÊlinksÊinÊhetÊverkeer.

OokÊdeÊoversteekplaatsÊinÊdeÊAlbertÊIIlaanÊrich ngÊNoordsta on,ÊterÊhoogteÊ vanÊdeÊrotondeÊBolivar,ÊisÊproblemasch:ÊhetÊfietspadÊkomtÊonverwachtsÊuitÊ opÊeenÊrotonde.

InÊdeÊdirecteÊomgevingÊvanÊhetÊCCNÊliggenÊverschillendeÊgrondbedekkingen,ÊvooralÊ aanÊdeÊkantÊvanÊhetÊNoordplein.

DeÊKoningÊAlbertÊII-laan,ÊhetÊSolvayplein,ÊdeÊKwatrechtstraat,ÊdeÊKoolbrandersstraatÊenÊ hetÊNoordpleinÊbeschikkenÊvandaagÊoverÊ2Êeenrich ngsfietspaden.ÊHetÊnoordelijkeÊdeelÊ vanÊdeÊVooruitgangstraatÊbevatÊvandaagÊgeenÊfietspaden,ÊenkelÊfietssugges estroken.Ê

DeÊdoorgangÊvoorÊfietsersÊonderÊhetÊsta on,ÊterÊhoogteÊvanÊdeÊoudeÊVooruitgangstraat,Ê isÊeenÊtroefÊvoorÊhetÊmul modaleÊknooppunt.

Staat en obstakels:

DeÊuitgangÊvanÊdeÊdoorgangÊvoorÊfietsersÊonderÊhetÊsta onÊaanÊdeÊkantÊvanÊhetÊNoordpleinÊzorgtÊvoorÊconflicten.ÊDeÊfietserÊkomtÊopnieuwÊinÊhetÊverkeerÊterechtÊteÊmiddenÊ

DeÊfietspadenÊzijnÊgeasfalteerdÊenÊverkerenÊinÊvrijÊgoedeÊstraat,ÊmaarÊvertonenÊhierÊenÊ daarÊonregelma gheden:

VERPLAATSINGEN HoofdstukÊIIÊ/ÊAfdelingÊ2ÊÊDiagnoseÊvanÊdeÊbestaandeÊenÊtenden ëleÊsitua eÊ/Êp.Ê61
Voorbeeld van grondbedekkingen op het Noordplein (boven) en het Bolivarplein/ Vooruitgangstraat (onder) (BRAT, 2021) laan (boven) en op het Solvayplein (onder) (BRAT, 2021) Verkeerssitua e voor fietsers die van het CCN komen (BRAT, 2021) Verkeerssitua e voor fietsers die van het kanaal komen aan de rotonde Albert II/Bolivar (BRAT, 2021) Oncomfortabele toegankelijkheid van het sta on en het CCN voor fietsers (BRAT, 2021).

ACTIEVEÊVERPLAATSINGSWIJZEN

BUSINESS-AS-USUALSCENARIO

Plannen,Êprogramma'sÊenÊprojecten:Ê

* DeÊgeleidelijkeÊuitvoeringÊvanÊhetÊ planÊGoodÊMoveÊ enÊvanÊdeÊMWSÊzalÊeenÊ veranderingÊteweegbrengenÊinÊdeÊmobiliteitÊopÊgewestelijkeÊschaal,ÊinÊhetÊ voordeelÊvanÊdeÊmodalÊshi ÊenÊdeÊac eveÊverplaatsingswijzen.

* ParallelÊmetÊdeÊSuzanÊDanielbrugÊvoorÊfietsers,Êvoetgangers,ÊtramsÊenÊbussenÊ dieÊbinnenkortÊzalÊwordenÊgeopendÊenÊdeÊverbindingÊvormtÊtussenÊdeÊ NoordwijkÊenÊThurnÊ&ÊTaxis,ÊlooptÊerÊeenÊprojectÊvoorÊdeÊheraanlegÊvanÊdeÊ Havenlaan.ÊDeÊverblijfskwaliteitÊwordtÊverbeterdÊmetÊcomfortabeleÊvoet- enÊ fietspadenÊenÊveiligeÊoversteekplaatsenÊenÊeenÊvlo eÊdoorstromingÊvanÊhetÊ openbaarÊvervoerÊwordtÊbevorderd.

* HetÊStadsvernieuwingscontractÊSVC1Ê"CitroënÊ - Vergote" dektÊeenÊgebiedÊtenÊ westenÊvanÊdeÊperimeter.ÊInÊdeÊperimeterÊBolivarÊlooptÊeenÊprojectÊtussenÊdeÊ WillebroekkaaiÊenÊdeÊAntwerpsesteenweg,ÊmaarÊmetÊeenÊvisieÊtotÊaanÊhetÊ Noordsta on.Ê

* BrusselÊMobiliteitÊwilÊinÊhetÊverlengdeÊvanÊditÊprojectÊdeÊSimonÊBolivarlaanÊtotÊ aanÊhetÊNoordsta onÊheraanleggenÊtotÊeenÊheuseÊopenbareÊruimteÊdieÊzichÊ opensteltÊvoorÊdeÊwijkÊenÊdieÊmetÊhetÊkanaalÊisÊverbondenÊviaÊeenÊ voetgangersboulevard,ÊeenÊsterkeÊfietsasÊenÊeenÊnieuweÊtramlijn.ÊDitÊprojectÊ voorzietÊinÊdeÊverminderingÊvanÊdeÊhuidigeÊgrondinnameÊvanÊdeÊweg,ÊdeÊ inrich ngÊvanÊoversteekplaatsenÊdieÊdeÊcon nuïteitÊvoorÊdeÊvoetgangersÊ garanderen,ÊdeÊorganisa eÊvanÊeenÊvlotÊopenbaarÊvervoerÊinÊeigenÊbaanÊenÊdeÊ realisa eÊvanÊaanplan ngenÊlangsÊdeÊopenbareÊwegÊomÊdeÊlandschappelijkeÊenÊ plantaardigeÊcon nuïteitÊvanÊhetÊMaximiliaanparkÊteÊverzekeren.

* DeÊgemeentenÊSchaarbeekÊenÊSint-Joost-ten-NodeÊenÊdeÊstadÊBrusselÊbeschikkenÊoverÊtoegankelijkheidsplannenÊvoorÊdeÊwegÊenÊdeÊopenbareÊruimteÊ(PAVE).Ê

* HetÊStadsvernieuwingscontractÊSVC2Ê"Noord-BrabantÊ- Sint-Lazarus"ÊbeoogtÊdeÊ herwaarderingÊvanÊweinigÊkwalita eveÊontmoe ngsruimten,ÊbijvoorbeeldÊviaÊ projectenÊinÊdeÊSint-LazaruslaanÊenÊdeÊtunnelsÊonderÊdeÊspoorwegen.Ê

* OokÊhetÊautovrijÊmakenÊvanÊhetÊnoordelijkeÊdeelÊvanÊdeÊAlbertÊII-laanÊenÊvanÊdeÊ rotondeÊgaanÊinÊdieÊrich ng.Ê

* VolgensÊdeÊrecenteÊverkeersstudieÊvanÊdeÊperimeterÊLambermont-KruidtuinÊdieÊ StratecÊrealiseerdeÊvoorÊBrusselÊMobiliteitÊzalÊhetÊvoetgangerscomfortÊnaÊdeÊ uitvoeringÊvanÊdeÊverkeersschema'sÊaanzienlijkÊwordenÊverbeterdÊinÊdeÊBrabantstraatÊenÊopÊhetÊNoordplein,ÊmetÊdeÊheraanlegÊvanÊdeÊopenbareÊruimteÊenÊ eenÊdras scheÊverminderingÊvanÊhetÊautoverkeer.ÊOokÊhetÊfietscomfortÊkanÊ wordenÊverbeterd.ÊInÊdeÊAarschotstraatÊenÊdeÊKwatrechtstraatÊwordtÊvoorÊdeÊ fietsersÊenÊvoetgangersÊmeerÊcomfortÊenÊeenÊbetereÊveiligheidÊverwachtÊdankzijÊ deÊverminderingÊvanÊhetÊautoverkeerÊ(ditÊmoetÊwordenÊverwezenlijktÊmetÊontradendeÊinrch ngen).Ê

* DeÊtoekoms geÊtramÊThurnÊ&ÊTaxisÊzalÊeenÊinvloedÊhebbenÊopÊdeÊposi oneringÊ vanÊdeÊvoetgangersboulevard.

* HetÊCCN-gebouwÊmaaktÊmomenteelÊhetÊvoorwerpÊuitÊvanÊstudiesÊvoorÊeenÊ

grondigeÊverbouwing.ÊHetÊdeelÊa raakÊdaarvanÊwordtÊmomenteelÊonderzocht.Ê DezeÊwerkenÊbiedenÊeenÊuitzonderlijkeÊgelegenheidÊomÊdeÊintegra eÊvanÊalleÊverplaatsingswijzen,ÊhetÊmobiliteitsknooppuntÊenÊdeÊvoetgangersboulevardÊinÊdezeÊ interfaceÊteÊop maliseren.

Alterna efÊ0Ê(bijÊbehoudÊvanÊhetÊBBP): HetÊBBPÊplaatstÊhetÊvoetgangers- enÊfietsverkeerÊopÊeenÊkunstma geÊgrondÊopÊeenÊ hoogteÊvanÊ13mÊbovenÊhetÊstraatniveau.

Alterna efÊ0+Ê(bijÊopheffingÊvanÊhetÊBBP):

MetÊdeÊopheffingÊvanÊhetÊBBPÊkanÊmenÊafstappenÊvanÊdeÊhoge,Êkunstma geÊgrondÊvoorÊ voetgangersÊenÊfietsersÊenÊhetÊverkeerÊvanÊdeÊzachteÊverplaatsingswijzenÊintegrerenÊinÊ deÊgelijkgrondseÊopenbareÊruimte.

UITDAGINGEN

UitdagingenÊdieÊkunnenÊwordenÊbehandeldÊinÊhetÊBBP:

* DeÊmoeilijkeÊtoegankelijkheidÊoplossenÊvanÊhetÊsta onÊ(stadsniveauÊenÊsta onsniveau),ÊmaarÊookÊvanÊdeÊgebouwenÊvanÊdeÊwijkÊ(conceptÊvanÊhetÊManha anplanÊomÊ hetÊverkeerÊvanÊdeÊzachteÊverplaatsingswijzenÊinÊdeÊhoogteÊteÊplaatsen,ÊovergenomenÊinÊhetÊhuidigeÊBBP).

* EenÊuniverseleÊtoegankelijkheidÊvanÊdeÊopenbareÊruimtenÊenÊdeÊgebouwenÊgaranderen.

* VeiligeÊenÊcomfortabeleÊverplaatsingenÊgaranderenÊvoorÊdeÊvoetgangersÊenÊdeÊfietsers,ÊinÊhetÊbijzonderÊopÊdeÊvolgendeÊplaatsen:ÊdeÊoversteekplaatsenÊinÊdeÊAlbertÊIIlaan,ÊdeÊfietsersuitgangÊvanÊhetÊCCNÊopÊhetÊNoordplein,ÊdeÊtoegangÊtotÊhetÊCCNÊenÊ hetÊNoordsta onÊ(niveauverschil).Ê

* MeerÊevenwichtÊbrengenÊtussenÊdeÊverkeers- enÊverblijfszonesÊ(OW-haltes,Êterrassen,...).

* NadenkenÊoverÊeenÊbetereÊverdelingÊvanÊdeÊopenbareÊruimteÊtussenÊdeÊverplaatsingswijzen,ÊinÊsamenhangÊmetÊhetÊPlanÊGoodÊMoveÊenÊdeÊMWS.

* DeÊintermodaliteitÊop maliseren,ÊmetÊnameÊdeÊorganisa eÊvanÊdeÊvoetgangersstromenÊinÊdeÊbuurtÊvanÊdeÊopenbaarvervoershaltes.

REFERENTIE-INDICATOREN

Indicator Huidige waarde AantalÊstrekkendeÊmeterÊvrijliggend/ gescheidenÊfietspad 975Êm

VerhoudingÊautovrijeÊzonesÊinÊdeÊopenbareÊ ruimteÊ 31Ê%

VERPLAATSINGEN HoofdstukÊIIÊ/ÊAfdelingÊ2ÊÊDiagnoseÊvanÊdeÊbestaandeÊenÊtenden ëleÊsitua eÊ/Êp.Ê62

OPENBAARÊVERVOER

BESTAANDEÊRECHTSTOESTAND

VolgensÊ telÊVIIIÊvanÊdeÊGewestelijkeÊStedenbouwkundigeÊVerordeningÊ(GSV)ÊisÊdeÊ siteÊgelegenÊinÊzoneÊAÊopÊhetÊplanÊvanÊdeÊtoegankelijkheidÊmetÊhetÊopenbaarÊ vervoer.

TitelÊVIIÊvanÊdeÊGSVÊbepaaltÊdeÊeisenÊvoorÊdeÊinrich ngÊvanÊdeÊhaltes.

DeÊMul modaleÊWegenspecialisa eÊvanÊhetÊPlanÊGoodÊMoveÊvoorzietÊinÊhetÊOVnetwerkÊenÊbeveeltÊdeÊbijhorendeÊinfrastructurenÊaanÊ(zieÊcriteriumÊUitvoeringÊvanÊ deÊMWS).

BESTAANDEÊFEITELIJKEÊTOESTAND

HetÊNoordsta onÊisÊeenÊbelangrijkÊintermodaalÊknooppuntÊopÊschaalÊvanÊhetÊGewest.Ê

HetÊcombineertÊimmersÊtreinen,Êpremetro,ÊtramsÊenÊbussenÊvanÊdeÊMIVBÊenÊDeÊLijn.Ê BedieningÊenÊdienstregeling

WatÊhetÊtreinverkeerbetre ,ÊwordtÊhetÊsta onÊBrusselÊNoordÊbediendÊdoorÊeenÊgrootÊ aantalÊIC-,ÊIR- enÊinterna onaleÊverbindingen.ÊVanuitÊhetÊsta onÊzijnÊookÊtalÊvanÊandereÊBrusselseÊsta onsÊrechtstreeksÊbereikbaarÊmetÊdeÊtrein.Ê

DeÊpremetrolijnenÊ3ÊenÊ4,ÊdieÊstoppenÊinÊhetÊNoordsta on,ÊdoorkruisenÊdeÊstadÊvanÊ noordÊnaarÊzuidÊenÊdoenÊookÊhetÊstadscentrumÊaan.ÊDeÊtramlijnenÊ25,Ê55ÊenÊ32Ê'sÊ avondsÊrijdenÊinÊeigenÊbaanÊaangezienÊzeÊondergrondsÊlopen.ÊZeÊbedienenÊdeÊwijkenÊ alsÊvolgt:ÊtramÊ25ÊverbindtÊhetÊRogierpleinÊmetÊhetÊBoondaalpleinÊviaÊhetÊLiedtspleinÊ enÊMontgomery;ÊtramÊ55ÊrijdtÊtussenÊhetÊRogierpleinÊenÊdeÊhalteÊDaÊVinciÊinÊhetÊ noordenÊ(perimeterÊBordet);ÊtramÊ32ÊverbindtÊDrogenbosÊinÊhetÊzuidenÊmetÊdeÊhalteÊ DaÊVinciÊinÊhetÊnoorden.

6ÊbuslijnenÊvanÊdeÊMIVBÊstoppenÊaanÊhetÊNoordsta on:Ê14,Ê20,Ê57,Ê58,Ê61ÊenÊ88.ÊAlleenÊvanÊlijnÊ88Ê(tussenÊDeÊBrouckèreÊenÊUZ-VUB)ÊligtÊdeÊterminusÊnietÊaanÊhetÊ

Noordsta on.

dienstregelingÊvanÊdeÊrijtuigen: piekuur daluur

DeÊsiteÊvanÊhetÊ

CCNÊwordtÊookÊ

bediendÊdoorÊeenÊ

der gtalÊlijnenÊvanÊ

PremetroÊMIVBÊ

LijnÊ3:ÊNoordsta onÊ/ÊChurchillÊ 1Êbus.Ê/5min 1Êbus.Ê/7min

LijnÊ4:ÊEsplanadeÊ/ÊStalleÊPÊ 1Êbus.Ê/5min 1Êbus.Ê/8min

TramÊMIVBÊ

LijnÊ25:ÊRogierÊ/ÊBoondaalÊSta onÊ 1v.Ê/6min 1v.Ê/15min

LijnÊ32:ÊDaÊVinciÊ/ÊDrogenbosÊKasteelÊ alleenÊ'sÊavonds

LijnÊ55:ÊDaÊVinciÊ/ÊRogierÊ 1v.Ê/5minÊ 1v.Ê/20min

BusÊMIVBÊ

LijnÊ14:ÊHeizelÊ/ÊNoordsta onÊ 1v.Ê/12min 1v.Ê/20min

LijnÊ20:ÊNoordsta on/ÊHunderenveldÊ 1v.Ê/10min 1v.Ê/20min

LijnÊ57:ÊMilitairÊHospitaalÊ/ÊNoordsta onÊ 1v.Ê/6min

LijnÊ58:ÊNoordsta onÊ/ÊVilvoordeÊsta onÊ 1v.Ê/10min 1v.Ê/20min

LijnÊ61:ÊNoordsta onÊ/ÊMontgomery 1v.Ê/10min

LijnÊ88:ÊUZ-VUB/ÊDeÊBrouckèreÊ 1v.Ê/10min 1v.Ê/20min

DeÊhaltesÊvanÊdeÊlijnenÊ14,Ê20ÊenÊ88ÊliggenÊaanÊdeÊnoordkantÊvanÊhetÊBolivarplein,ÊdieÊ vanÊdeÊlijnenÊ57ÊenÊ58ÊaanÊdeÊzuidkantÊvanÊhetÊplein.ÊÊDeÊhaltesÊvanÊdeÊlijnenÊ20ÊenÊ61Ê liggenÊonderÊhetÊCCN.ÊDeÊeindhaltesÊvoorÊdezeÊlijnenÊzijnÊgelegenÊopÊdezelfdeÊplaats.

DeÊdienstregelingÊisÊalsÊvolgt:

DeÊLijnÊdieÊnaarÊ

hetÊVlaamsÊ

GewestÊrijdenÊenÊ

eenÊdirecteÊver-

bindingÊbiedenÊ

metÊdeÊluchthavenÊ

vanÊZaventem.ÊZeÊ

hebbenÊallemaalÊ

hunÊeindhalteÊaanÊ

hetÊNoordsta on.Ê

DeÊdienstregelingÊ

isÊalsÊvolgt:Ê

Busstromen (impactstudie

DeÊbussenÊvanÊDeÊLijnÊenÊdeÊMIVBÊzijnÊinÊtotaalÊgoedÊvoor:Ê33ÊbussenÊperÊuurÊnaarÊThurnÊ &ÊTaxisÊ(alleenÊdeÊMIVB),Ê57ÊàÊ98ÊbussenÊperÊuurÊ(MIVBÊ+ÊDeÊLijn)ÊnaarÊRogier,Ê1ÊàÊ4ÊbussenÊperÊuurÊnaarÊThomasÊ(alleenÊDeÊLijn).Ê

HetÊinterna onaleÊbussta onÊligtÊvandaagÊinÊdeÊVooruitgangstraatÊaanÊdeÊkantÊvanÊhetÊ Solvayplein.ÊTijdensÊdeÊa raakÊvanÊhetÊCCNÊzalÊhetÊ jdelijkÊwordenÊverplaatst.ÊEenÊrecenteÊstudieÊvanÊBrusselÊMobiliteitÊbeveeltÊaanÊomÊhetÊteÊverplaatsenÊnaarÊhetÊnoordelijkeÊdeelÊvanÊdeÊAlbertÊII-laan.ÊOpÊlangereÊtermijnÊzouÊookÊeldersÊinÊBrusselÊeenÊinternaonaalÊbussta onÊwordenÊontwikkeldÊvoorÊdeÊbussenÊdieÊvandaagÊaanÊhetÊNoordsta onÊ stoppen.ÊDeÊpreciezeÊloca eÊvanÊdatÊbussta onÊisÊechterÊnogÊnietÊbekend.Ê

VERPLAATSINGEN HoofdstukÊIIÊ/ÊAfdelingÊ2ÊÊDiagnoseÊvanÊdeÊbestaandeÊenÊtenden ëleÊsitua eÊ/Êp.Ê63
Tram Thurn & Taxis, Sweco, 2020) Plan van het busnetwerk van de MIVB, de bussen die stoppen aan het Noordsta on Plan van het busnetwerk van de MIVB, de bussen die stoppen in de buurt van het Noordsta on

OPENBAARÊVERVOER

ToegankelijkheidÊenÊcomfortÊvanÊdeÊhaltes

DoorÊdeÊrecenteÊvolledigeÊrenova eÊvanÊhetÊNoordsta onÊkonÊdeÊtoegankelijkheidÊ vanÊhetÊsta onÊwordenÊverbeterdÊvanafÊdeÊBrabantwijkÊ(nieuweÊingangenÊenÊgerenoveerdeÊgangenÊonderÊdeÊsporen),ÊdeÊVooruitgangstraatÊ(drop-off,ÊtoegangÊvoorÊ taxi'sÊenÊfietsers)ÊenÊvanafÊhetÊNoordpleinÊenÊhetÊSolvaypleinÊ(nieuweÊtoegangenÊvoorÊ voetgangersÊenÊhandelszaken).Ê

HetÊbussta onÊ(DeÊLijnÊ&ÊMIVB)ÊenÊdeÊtoegangenÊertoeÊbeslaanÊeenÊvolledigeÊhalfondergrondseÊverdiepingÊvanÊhetÊCCN-gebouw.ÊDeÊhuidigeÊconfigura eÊisÊproblemaschÊaangezienÊdezeÊhalfondergrondseÊverdiepingÊdeÊdialoogÊverhindertÊtussenÊhetÊ gebouwÊenÊdeÊopenbareÊruimteÊenÊeenÊweinigÊaangenameÊplaatsÊisÊvoorÊdeÊgebruikers.

DeÊbushaltesÊ(MIVB)ÊopÊdeÊesplanadeÊvanÊdeÊSimonÊBolivarlaanÊomva enÊalleenÊaanÊ deÊnoordkantÊbushokjesÊenÊbanken.ÊOokÊinfobordenÊdieÊdeÊwach jdenÊaangevenÊzijnÊ alleenÊaanÊdieÊkantÊaanwezig.ÊVuilnisbakkenÊstaanÊerÊzowelÊaanÊdeÊnoordkantÊalsÊaanÊ deÊzuidkant.ÊDeÊgrondbedekkingenÊverkerenÊdoorgaansÊinÊgoedeÊstaat,ÊbehoudensÊ enkeleÊpunctueleÊonregelma gheden

RondÊdeÊBolivarÊesplanadeÊrijdenÊdeÊbussenÊoverÊklinkersÊdieÊsomsÊinÊzeerÊslechteÊ staatÊverkeren.

DeÊverbindingÊtussenÊdezeÊhaltesÊenÊhetÊNoordsta on/CCNÊ(treinÊenÊtram)ÊwordtÊ gevormdÊdoorÊdeÊgroteÊtoegangstrapÊnaarÊhetÊCCN.ÊErÊleidenÊookÊtrappenÊvanÊhetÊ voorpleinÊnaarÊdeÊhalfondergrondseÊverdiepingÊvanÊhetÊCCN,ÊmaarÊdieÊwordenÊminderÊgebruikt.

DeÊbushaltesÊ(DeÊLijn)ÊaanÊdeÊkantÊvanÊhetÊNoordpleinÊomva enÊ4Êbushokjes.ÊErÊstaanÊ ookÊbordenÊdieÊdeÊwach jdenÊaangevenÊenÊvuilnisbakken.ÊDeÊgrondbedekkingenÊaanÊ deÊhalteÊverkerenÊdoorgaansÊinÊgoedeÊstaat.ÊÊDeÊbushaltesÊbevindenÊzichÊbuitenÊhetÊ CCN,ÊvlakÊnaastÊdeÊondergrondseÊverdiepingÊwaarÊdeÊbussenÊstaanÊ jdensÊhunÊpauze.Ê ErÊwerdenÊhygiëneproblemenÊenÊeenÊonveiligheidsgevoelÊgesignaleerdÊvanwegeÊdeÊ aanwezigheidÊvanÊdaklozenÊenÊdeÊconfigura eÊvanÊdeÊruimten,ÊmaarÊvandaagÊlijktÊdeÊ situa eÊonderÊcontrole.ÊDeÊbushaltesÊvanÊDeÊLijnÊzijnÊvanuitÊhetÊNoordsta onÊ(treinÊ enÊtram)ÊvooralÊtoegankelijkÊviaÊhetÊCCN-gebouw.ÊÊÊ

DeÊbussenÊdieÊhetÊCCN-gebouwÊverlatenÊenÊdeÊbussenÊdieÊhetÊvanafÊhetÊRogierpleinÊ binnenrijdenÊpasserenÊeenÊverkeerslicht.ÊDeÊaan- enÊafrijdendeÊbussenÊgebruikenÊdusÊ eenzelfdeÊ'flessenhals'ÊdieÊteÊsmalÊisÊvoorÊdeÊbussenÊomÊerÊelkaarÊteÊkruisen.ÊDeÊ meesteÊuitrijdendeÊbussenÊrijdenÊinÊdeÊrich ngÊvanÊdeÊRogierstraatÊ(inÊeigenÊbaan).Ê

AlleenÊbusÊ20ÊvanÊdeÊMIVBÊslaatÊrechtsafÊ(geenÊeigenÊbaanÊopÊhetÊNoordplein)ÊnaarÊ deÊbushalteÊopÊdeÊBolivarÊesplanade.ÊÊ

Bussen die van het CCN komen/ernaartoe rijden

VERPLAATSINGEN HoofdstukÊIIÊ/ÊAfdelingÊ2ÊÊDiagnoseÊvanÊdeÊbestaandeÊenÊtenden ëleÊsitua eÊ/Êp.Ê64
Voorbeelden van onregelma gheden in de grondbedekking van de Bolivar esplanade (BRAT, 2021) Bushaltes van De Lijn aan de kant van het Noordplein (BRAT, 2021) Verbindingen tussen de bushaltes op Bolivar en de tram- en treinsta ons (BRAT, 2021) Uitrijden van de bussen aan de kant van het Noordplein (BRAT, 2021)

BUSINESS-AS-USUALSCENARIO

VolgensÊdeÊmaatschappijenÊgaatÊdeÊvraagÊnaarÊopenbaarÊvervoerÊalÊenkeleÊjarenÊinÊ s jgende lijn.ÊVoorÊdeÊkomendeÊjarenÊmoetÊdaaromÊrekeningÊwordenÊgehoudenÊmetÊ eenÊverhogingÊvanÊhetÊaanbod.ÊDaarbijÊkomtÊdatÊdeÊtoekoms geÊomschakelingÊvanÊ deÊnoord-zuidasÊvoorÊmetroverkeerÊenÊdeÊontwikkelingÊvanÊhetÊNMBS-aanbodÊeenÊ 'aanzuigeffect'ÊzullenÊhebben:ÊerÊzullenÊmeerÊmensenÊgebruikÊmakenÊvanÊdeÊbus.ÊOmÊ

dieÊtoenameÊvanÊhetÊbusgebruikÊopÊteÊvangen,ÊisÊhetÊnietÊondenkbaarÊdatÊerÊlangereÊ bussen zullenÊwordenÊingezetÊopÊdeÊhuidigeÊlijnenÊ(vanÊ12ÊtotÊ18m,ÊvanÊ18ÊtotÊ24m).Ê

Plannen,Êprogramma'sÊenÊprojecten:Ê

* HetÊ GPDOÊ beveeltÊaanÊomÊeenÊopenbaarvervoersnetÊvanÊhogeÊcapaciteitÊteÊ creërenÊ/ÊteÊbestuderenÊ(voorÊhetÊprojectÊMetroÊNoord).

* HetÊRichtplanÊBusÊwilÊdeÊbusroutesÊheroriënterenÊlangsÊdeÊSuzanÊDanielbrug.

* NaarÊdeÊingebruiknameÊvanÊhetÊGENÊwordenÊalÊjarenlangÊstudiesÊverricht.

* VerschillendeÊ groteÊprojecten,ÊvandaagÊnogÊinÊdeÊstudiefase,ÊzullenÊdeÊuitstekendeÊbereikbaarheidÊvanÊhetÊTerritoriumÊNoordÊnogÊversterken:Ê

· deÊnieuweÊlijnÊMetroÊNoordÊtussenÊAlbertÊenÊBordetÊ(deÊwerkenÊzijnÊinÊuitvoering);

· deÊnieuweÊ tramlijnÊvanÊdeÊMIVBÊ tussenÊRogierÊenÊ Neder-Over-HeembeekÊ (ondergrondsÊterÊhoogteÊvanÊhetÊNoordsta on)Ê;

· deÊnieuweÊtramlijnÊvanÊdeÊMIVBÊtussenÊhetÊCentraalÊSta onÊenÊThurnÊ&ÊTaxisÊ (bovengrondsÊviaÊdeÊSuzanÊDanielbrug):ÊhetÊtrajectÊzalÊeenÊrechtstreekseÊimpactÊhebbenÊopÊdeÊwegenÊbinnenÊhetÊBBPÊaangezienÊhetÊrondÊhetÊhuizenblokÊ ProximusÊzalÊleidenÊviaÊhetÊBolivarpleinÊinÊhetÊnoorden.ÊOmÊdeÊtoegangÊtotÊdeÊ parkingÊProximusÊaanÊdeÊkantÊvanÊdeÊVooruitgangstraatÊteÊbehouden,ÊmoetÊ hetÊtramtrajectÊwordenÊvoorzienÊaanÊdeÊoostkantÊvanÊdeÊstraat.Ê

· DeÊtoekoms geÊtramlijnenÊvanÊDeÊLijnÊ"Brabantnet":

- DeÊLuchthaventramÊtussenÊhetÊNoordsta onÊenÊdeÊluchthavenÊvanÊBrussel.

- De Sneltram tussen het Noordsta on en Willebroek, via de HeizelÊ(opÊtermijnÊmisschienÊviaÊdeÊSuzanÊDanielbrug).ÊInÊhetÊscenarioÊdatÊhetÊbestaandeÊ netwerkÊinÊhetÊnoordenÊwordtÊgebruiktÊ(VanÊPraetbrug)ÊzouÊdeÊhalteÊzichÊ bevindenÊterÊhoogteÊvanÊdeÊpremetroÊvanÊdeÊMIVB.ÊInÊhetÊalterna efÊwaar-

bijÊdeÊnieuweÊtramlijnÊvanÊdeÊMIVBÊwordtÊgebruikt,ÊzalÊdeÊhalteÊinÊdeÊKoolbrandersstraatÊwordenÊgeplaatst.

* VoorÊdeÊelektrifica eÊvanÊhetÊvoertuigenparkÊzullenÊerÊsnellaadpalenÊ moetenÊwordenÊvoorzienÊvoorÊdeÊbussen.ÊAlsÊhetÊopladenÊaanÊdeÊeindhaltesÊgebeurt,ÊzullenÊdeÊ bussenÊerÊlangerÊs lstaan.ÊDaardoorÊzalÊzeerÊwaarschijnlijkÊdeÊbehoe eÊaanÊnieuweÊplaatsenÊvoorÊdeÊeindhaltesÊtoenemen.ÊDeÊoplaadpalenÊmoetenÊzoÊdichtÊmogelijkÊbijÊdeÊeindhaltesÊwordenÊgeplaatst,ÊmetÊbijzondereÊaandachtÊvoorÊdeÊbrandveiligheidÊvanÊdeÊexploita eÊenÊhetÊopladenÊvanÊelektrischeÊbussenÊ(ditÊisÊondergrondsÊmomenteelÊverboden).Ê

* DeÊtoenameÊenÊdeÊconcentra eÊvanÊhetÊverkeerÊvanÊbussenÊ/ÊtramsÊenÊvoetgangersÊkanÊvolgensÊdeÊMIVBÊenÊDeÊLijnÊconflictzonesÊdoenÊontstaan:ÊopÊhetÊkruispuntÊ NoordpleinÊ(deÊenigeÊuitritÊvanÊhetÊbusknooppuntÊ+ÊnieuweÊtramÊ+ÊtoegangÊtotÊdeÊ parkingÊvanÊhetÊCCN),ÊopÊdeÊplaatsenÊwaarÊdeÊbustrajectenÊenÊdeÊvoetgangersboulevardÊnaastÊelkaarÊbestaanÊ(Bolivar,ÊVooruitgangstraat)ÊenÊopÊhetÊSolvaypleinÊ (drukÊbusverkeer).

* HetÊStadsvernieuwingscontractÊSVC1Ê"CitroënÊ- Vergote"ÊdektÊeenÊgebiedÊtenÊ westenÊvanÊdeÊperimeter.ÊInÊsamenhangÊmetÊditÊplanÊwordtÊmomenteelÊstudieÊ verrichtÊnaarÊeenÊprojectÊvanÊBrusselÊMobiliteitÊinÊdeÊperimeterÊBolivar,ÊtussenÊdeÊ WillebroekkaaiÊenÊdeÊAntwerpsesteenwegÊ(metÊeenÊvisieÊtotÊaanÊhetÊ Noordsta on).ÊBedoelingÊisÊomÊdeÊSimonÊBolivar-asÊomÊteÊvormenÊtotÊeenÊheuseÊ openbareÊruimteÊdieÊisÊopengesteldÊvoorÊdeÊwijkÊenÊdieÊmetÊhetÊkanaalÊwordtÊ verbondenÊdoorÊeenÊvoetgangersboulevard,ÊeenÊsterkeÊfietsasÊenÊeenÊtram

* HetÊCCN-gebouwÊmaaktÊmomenteelÊhetÊvoorwerpÊuitÊvanÊstudiesÊvoorÊeenÊgrondigeÊverbouwing.ÊHetÊdeelÊa raakÊdaarvanÊwordtÊmomenteelÊonderzocht.ÊÊDezeÊ werkenÊbiedenÊeenÊuitzonderlijkeÊgelegenheidÊomÊdeÊintegra eÊvanÊalleÊverplaatsingswijzen,ÊhetÊmobiliteitsknooppuntÊenÊdeÊvoetgangersboulevardÊinÊdezeÊinterfaceÊteÊop maliseren.

Alterna efÊ0Ê(bijÊbehoudÊvanÊhetÊBBP): GeenÊveranderingÊvanÊdeÊtoestand.

Alterna efÊ0+Ê(bijÊopheffingÊvanÊhetÊBBP): GeenÊveranderingÊvanÊdeÊtoestand.

UITDAGINGEN

UitdagingenÊdieÊkunnenÊwordenÊbehandeldÊinÊhetÊBBP:

* RekeningÊhoudenÊmetÊdeÊruimtelijkeÊenÊtechnischeÊvragenÊvanÊdeÊopenbaarvervoersmaatschappijenÊenÊzeÊobjec verenÊ(afme ngenÊvanÊdeÊeindhaltesÊenÊaantalÊ plaatsen,Êelektrifica e);

* DeÊnieuweÊopenbaarvervoerslijnenÊintegrerenÊinÊhetÊstadsweefselÊ(tramÊBelgicaCentraalÊSta on,ÊtramÊNOHÊenÊBrabantnet);

* HetÊmul modaleÊknooppuntÊvanÊhetÊNoordsta onÊreorganiserenÊomÊhetÊbeterÊ zichtbaarÊteÊmakenÊenÊdeÊintermodaliteit,ÊhetÊcomfortÊenÊdeÊtoegankelijkheidÊteÊ verbeteren;

* HetÊstatuutÊvanÊdeÊstadÊenÊhetÊsta onÊopÊgrondniveauÊverduidelijkenÊ(interfaceÊ openbareÊruimte-CCN-Sta on).

* NadenkenÊoverÊeenÊbetereÊverdelingÊvanÊdeÊopenbareÊruimteÊtussenÊdeÊverplaatsingswijzen,ÊinÊsamenhangÊmetÊhetÊPlanÊGoodÊMoveÊenÊdeÊMWS.

REFERENTIE-INDICATOREN

Indicator Huidige waarde

AantalÊstopplaatsenÊvanÊhetÊOVÊ(alleÊmodiÊsamen)Ê

6Êplaatsen:2ÊbushaltesÊopÊhetÊBolivarplein1ÊbushalteÊopÊhetÊNoordpleinBussta onÊDeÊLijnÊonderÊhetÊCCNÊ(-1) TramsÊenÊpremetroÊinÊdeÊondergrondseÊverdiepingÊ(-2)NMBSÊsta on

VERPLAATSINGEN HoofdstukÊIIÊ/ÊAfdelingÊ2ÊÊDiagnoseÊvanÊdeÊbestaandeÊenÊtenden ëleÊsitua eÊ/Êp.Ê65
OPENBAARÊVERVOER
Brabantnet (De Lijn) SNELTRAM

BESTAANDEÊRECHTSTOESTAND

SindsÊkortÊisÊdeÊheleÊperimeterÊeenÊzoneÊ30.Ê

DeÊMul modaleÊWegenspecialisa eÊvanÊhetÊPlanÊGoodÊMoveÊvoorzietÊinÊhetÊautonetwerkÊenÊbeveeltÊdeÊbijhorendeÊinfrastructurenÊaanÊ(zieÊcriteriumÊUitvoeringÊvanÊdeÊ MWS).

HetÊGemeentelijkÊMobiliteitsplanÊwerdÊgoedgekeurdÊopÊ29/04/2010.ÊMomenteelÊ wordtÊhetÊbijgewerktÊinÊhetÊlichtÊvanÊhetÊGewestelijkÊMobiliteitsplanÊGoodÊMove.Ê

BESTAANDEÊFEITELIJKEÊTOESTAND

Wegennet

DeÊwijkÊligtÊingeslotenÊtussenÊ hetÊkanaal,ÊdeÊspoorwegÊenÊdeÊ

KleineÊRing.ÊDeÊ

oversteekplaatsenÊ(onderÊdeÊ sporenÊofÊoverÊhetÊkanaal)ÊzijnÊ beperkt,ÊvooralÊinÊoostwestelijkeÊrich ng.ÊÊHetÊwegennetÊaanÊdeÊoostkantÊvanÊdeÊ spoorwegÊverschiltÊvanÊdatÊaanÊ deÊwestkantÊvanÊdeÊspoorweg.Ê HetÊisÊdichtÊenÊsmalÊaanÊdeÊ

oostkant,ÊmetÊtalÊvanÊeenrichngsstraten,ÊenÊvormtÊeenÊorthogonaalÊpatroon,ÊmetÊbredeÊ wegenÊmetÊdubbeleÊrijrich ng,Ê aanÊdeÊwestkant.ÊÊ

HetÊautoverkeerÊinÊhetÊTerritoriumÊNoordÊwordtÊgestructureerdÊ doorÊdeÊ groteÊnoord-zuidassen dieÊnaarÊhetÊcentrumÊenÊdeÊKleineÊRingÊleidenÊ(Vooruitgangstraat,ÊAlbertÊII-laan,ÊAntwerpsesteenweg,ÊHelihavenlaan,Ê Brabantstraat,ÊKoningsstraat).ÊDeÊWillebroekkaaiÊenÊhetÊverlengdeÊdaarvanÊinÊhetÊ noordenÊzijnÊbevoorrechteÊinvalswegenÊvanafÊdeÊRingÊvanÊBrussel,ÊviaÊdeÊA12.ÊÊInÊditÊ noord-zuidschemaÊisÊdeÊSimonÊBolivarlaanÊdeÊbelangrijksteÊoost-westasÊvanÊdeÊwijk.

AlleÊwegenÊinÊdeÊperimeterÊvanÊhetÊBBPÊzijnÊgewestwegen.Ê

ZeÊvertonenÊhetÊvolgendeÊprofiel:ÊÊ

* KoningÊAlbertÊII-laan:Ê2ÊrijstrokenÊinÊelkeÊrich ng,ÊinÊdeÊbuurtÊvanÊdeÊrotondeÊ herleidÊtotÊ1Êrijstrook;Ê

* SimonÊBolivarlaan:Ê1ÊrijstrookÊinÊelkeÊrich ngÊ(enÊeenÊstrookÊvoorÊdeÊbushaltes)

* Solvayplein:Ê2ÊrijstrokenÊinÊelkeÊrich ng,ÊterÊhoogteÊvanÊhetÊCCNÊherleidÊtotÊ1Ê rijstrook;

* Vooruitgangstraat:Ê1ÊrijstrookÊinÊ1Êrich ngÊterÊhoogteÊvanÊhetÊCCN,Ê1ÊrijstrookÊinÊ elkeÊrich ngÊinÊhetÊnoorden.

* Kwatrechtstraat:Ê2ÊrijstrokenÊinÊelkeÊrich ngÊonderÊdeÊtunnel,ÊterÊhoogteÊvanÊhetÊ CCNÊherleidÊtotÊ1Êrijstrook.

InÊdeÊperimeterÊvanÊhetÊBBPÊ ligtÊslechtsÊéénÊkruispuntÊmetÊ verkeerslichten,ÊnamelijkÊtussenÊhetÊSolvaypleinÊenÊdeÊAlbertÊII-laan.ÊEenÊanderÊverkeerslichtÊregeltÊhetÊuitrijdenÊ vanÊdeÊbussenÊuitÊhetÊCCNÊinÊ deÊVooruitgangstraat.ÊOpÊ schaalÊvanÊdeÊwijkÊzijnÊerÊverkeerslichtenÊopÊdeÊassenÊBolivarÊenÊAlbertÊII,ÊdeÊKleineÊ Ring,ÊdeÊWillebroekkaai,ÊdeÊ Koninginnelaan,ÊdeÊPaleizenstraatÊenÊdeÊKoningsstraat. MeerÊlokaalÊisÊhetÊverkeerÊalsÊ volgtÊgeorganiseerd:

VerkeerslichtenÊ(Mobigis)Ê OversteekpuntenÊoost-westÊ

Lokalisa e van de verkeerslichten en van de oversteekpunten van de mobiliteitsbarrières Lokale organisa e van het verkeer (Effectenstudie van de a raak van het CCN)

Verplaatsingen

RondÊhetÊNoordsta on moetÊdeÊwijkÊhetÊlokaleÊverkeerÊabsorberenÊ(verbondenÊaanÊdeÊ ac viteitenÊvanÊhetÊNoordsta on,ÊdeÊkantoren,Êparkeerzoekverkeer,Êenz.)ÊmaarÊookÊ doorgaandÊverkeer.ÊÊ

InÊdeÊ Brabantwijk isÊhetÊverkeerÊvaakÊgecompliceerdÊalsÊgevolgÊvanÊdeÊac viteitenÊinÊ dezeÊwijkÊ(heelÊwatÊhandelszakenÊgecombineerdÊmetÊwoningen)ÊenÊdeÊsmalleÊwegen. DeÊWillebroekkaaiÊ(buitenÊdeÊperimeter) isÊdeÊbelangrijksteÊverkeersaderÊvoorÊhetÊdoorgaandÊverkeer.ÊHijÊverbindtÊdeÊKleineÊRingÊmetÊdeÊRing.ÊDeÊverkeersstromenÊzijnÊerÊgigan sch:ÊtussenÊ1000ÊenÊ1300Êpwe/uurÊopÊhetÊspitsuurÊ(gegevensÊBMÊ2017).

DeÊ Bolivarlaan,ÊdeÊAlbertÊII-laanÊenÊdeÊHelihavenlaan wordenÊgebruiktÊalsÊbisrouteÊbijÊ dezeÊhoofdrouteÊterwijlÊze,ÊbehalveÊSolvayÊenÊAlbertÊII,ÊnietÊbestemdÊzijnÊvoorÊeenÊdergelijkÊverkeer.Ê

HetÊSolvaypleinÊenÊhetÊNoordplein wordenÊnetÊalsÊdeÊBolivarlaanÊenÊdeÊAlbertÊII-laanÊeveneensÊgebruiktÊdoorÊhetÊdoorgaandÊverkeerÊtussenÊdeÊmaasÊLambermontÊenÊdeÊKleineÊ

Ring.ÊÊ

DatÊblijktÊookÊuitÊdeÊtellingenÊdieÊStratecÊinÊfebruariÊ2021ÊverrichtenÊ jdensÊdeÊochtendspitsÊ(OS)ÊenÊdeÊavondspitsÊ(AS).ÊDezeÊtellingenÊwerdenÊvergelekenÊmetÊdeÊalÊbestaandeÊgegevensÊ(MESÊvanÊdeÊprojectenÊZINÊenÊMetroÊNoord).ÊStratecÊkonÊdaaruitÊafleidenÊdatÊzeÊrepresenta efÊzijnÊenÊnietÊmoetenÊwordenÊbijgesteld.ÊDeÊordesÊvanÊgrootheidÊ zijnÊcoherentÊondanksÊdeÊbijzondereÊsitua eÊvanÊdeÊCovid-pandemie.

* deÊstromenÊinÊhetÊBBPÊzijnÊbeperktÊ(minderÊdanÊ200Êpwe/uur)ÊenÊwordenÊgrotendeelsÊgevormdÊdoorÊtaxi'sÊenÊbussen.ÊErÊrijdenÊ36ÊlijnenÊvanÊDeÊLijnÊenÊdeÊMIVBÊ evenalsÊverschillendeÊinterna onaleÊbusmaatschappijen.

* DeÊgrootsteÊstromenÊ(meerÊdanÊ500Êpwe/uur)ÊwordenÊwaargenomenÊopÊdeÊS.ÊBolivarlaanÊenÊdeÊAlbertÊII-laanÊtussenÊdeÊWillebroekkaaiÊenÊdeÊKleineÊRingÊ(bisroutesÊ voorÊhetÊin- enÊuitrijdendeÊverkeerÊtussenÊdeÊstadÊenÊdeÊA12-Ring).Ê

* DeÊandereÊwegenÊtrekkenÊgemiddeldeÊstromenÊaan,ÊdoorgaansÊtussenÊ200ÊenÊ500Ê pwe/uur.ÊDeÊdoorgangenÊonderÊdeÊsporenÊopÊhetÊNoordpleinÊenÊinÊdeÊVooruitgangstraatÊopÊdieÊplaatsÊkampenÊmetÊniet-verwaarloosbareÊstromenÊ jdensÊdeÊochtendspitsÊ(rich ngÊcentrum)ÊenÊdeÊavondspitsÊ(rich ngÊBrabant).

DeÊbreedteÊvanÊdeÊwegenÊinÊdeÊ perimeterÊenÊdeÊwijkÊverklaartÊ echterÊdatÊer,ÊondanksÊenkeleÊ somsÊgroteÊstromenÊ(BolivarÊofÊ

AlbertÊII),ÊvandaagÊweinigÊofÊ

geenÊfilevormingÊwordtÊwaargenomenÊinÊdeÊwijkÊenÊdatÊhetÊ

verkeerÊerÊdoorgaansÊvlotÊ

doorstroomtÊ(behalveÊterÊ hoogteÊvanÊhetÊkruispuntÊtussenÊdeÊKleineÊRingÊenÊdeÊWillebroekkaai).

Gemiddelde plaatsinname van het autoverkeer op een gewone dinsdag om 17.30 uur (Google trafic)

VERPLAATSINGEN HoofdstukÊIIÊ/ÊAfdelingÊ2ÊÊDiagnoseÊvanÊdeÊbestaandeÊenÊtenden ëleÊsitua eÊ/Êp.Ê66 AUTO'S
Rijrich ngen (impactstudie Tram Thurn & Taxis, Sweco, 2020)

Zwarte punten

DeÊNoordwijkÊomvatÊverschillendeÊzwarteÊpuntenÊopÊhetÊvlakÊvanÊverkeersveiligheidÊ enÊongevallen.ÊOnderstaandeÊkaartÊtoontÊdeÊongevalgevoeligeÊzonesÊ(ZACA).ÊInÊdeÊ perimeterÊenÊinÊdeÊwijkÊisÊgeenÊenkeleÊZACAÊmetÊprioriteitÊ1ÊaanwezigÊmaarÊtweeÊ kruispuntenÊinÊdeÊdirecteÊomgevingÊvanÊdeÊperimeterÊzijnÊingedeeldÊalsÊZACAÊmetÊ prioriteitÊ3:ÊdeÊkruispuntenÊvanÊdeÊAlbertÊII-laanÊmetÊBolivarÊenÊmetÊhetÊSolvayplein.Ê InÊdeÊbuurtÊvanÊdeÊperimeterÊzijnÊdeÊkruispuntenÊvanÊdeÊAntwerpsesteenwegÊmetÊ BolivarÊenÊdeÊSimonisstraatÊingedeeldÊalsÊZACAÊmetÊrespec evelijkÊprioriteitÊ2ÊenÊ3.Ê Verderop,ÊopÊdeÊWillebroekkaaiÊenÊdeÊKleineÊRing,ÊzijnÊtalÊvanÊandereÊkruispuntenÊ eenÊZACA.

BUSINESS-AS-USUALSCENARIO

Plannen,Êprogramma'sÊenÊprojecten:Ê

* MomenteelÊlopenÊdeÊstudiesÊvoorÊhetÊLokaalÊMobiliteitscontractÊ(LMC)ÊvanÊdeÊ maasÊLambermont.ÊInÊdatÊkaderÊwordtÊeenÊverkeersschemaÊuitgewerktÊdatÊeenÊ impactÊkanÊhebbenÊopÊdeÊdirecteÊomgevingÊvanÊhetÊNoordsta on.ÊDoorÊdeÊuitvoeringÊvanÊdatÊschemaÊenÊvanÊdeÊMWSÊinÊdeÊomliggendeÊwijken,ÊzullenÊhetÊSolvaypleinÊenÊdeÊAlbertÊII-laanÊdeÊbevoorrechteÊassenÊwordenÊvoorÊhetÊautoverkeerÊ(deÊ andereÊwegenÊzijnÊ'wijkwegen').Ê

* TweeÊmobiliteitsstudiesÊvanÊBrusselÊMobiliteit,ÊmaasÊLambermontÊ– KruidtuinÊenÊ KanaalÊNoordÊ- A12ÊbeogenÊdeÊuitvoeringÊvanÊhetÊplanÊGoodÊMoveÊmetÊeenÊspecifiekeÊfocusÊopÊbepaaldeÊzones.ÊInÊhetÊkaderÊvanÊdezeÊstudiesÊwerdÊdeÊoorspronkelijkeÊvoorgesteldeÊMWSÊherbekeken.ÊInÊhetÊspecifiekeÊcriteriumÊwerdÊalÊrekeningÊ gehoudenÊmetÊdeÊgewijzigdeÊMWS.

* HetÊStadsvernieuwingscontractÊSVC1Ê"CitroënÊ- Vergote"ÊdektÊeenÊgebiedÊtenÊwestenÊvanÊdeÊperimeter.ÊInÊdeÊperimeterÊBolivarÊlooptÊeenÊprojectÊtussenÊdeÊWillebroekkaaiÊenÊdeÊAntwerpsesteenweg,ÊmaarÊmetÊeenÊvisieÊtotÊaanÊhetÊNoordsta on.Ê BrusselÊMobiliteitÊwilÊdeÊSimonÊBolivar-asÊomvormenÊtotÊeenÊheuseÊopenbareÊ ruimteÊdieÊisÊopengesteldÊvoorÊdeÊwijkÊenÊdieÊmetÊhetÊkanaalÊwordtÊverbondenÊ doorÊeenÊvoetgangersboulevard,ÊeenÊsterkeÊfietsasÊenÊeenÊtram.ÊDitÊprojectÊvoorzietÊinÊdeÊverminderingÊvanÊdeÊhuidigeÊgrondinnameÊvanÊdeÊweg,ÊdeÊinrich ngÊvanÊ oversteekplaatsenÊdieÊdeÊcon nuïteitÊvoorÊdeÊvoetgangersÊgaranderen,ÊdeÊorganisa eÊvanÊeenÊvlotÊopenbaarÊvervoerÊinÊeigenÊbaanÊenÊdeÊrealisa eÊvanÊaanplan ngenÊlangsÊdeÊopenbareÊwegÊomÊdeÊlandschappelijkeÊenÊplantaardigeÊcon nuïteitÊ vanÊhetÊMaximiliaanparkÊteÊgaranderen.

* OokÊhetÊprojectÊvanÊdeÊnieuweÊtramlijnÊnaarÊThurnÊ&ÊTaxisÊzalÊeenÊimpactÊhebbenÊ opÊdeÊautoroutes.Ê

Alterna efÊ0Ê(bijÊbehoudÊvanÊhetÊBBP):

HetÊBBPÊplaatstÊhetÊvoetgangers- enÊfietsverkeerÊopÊeenÊkunstma geÊgrondÊopÊeenÊ hoogteÊvanÊ13mÊbovenÊhetÊstraatniveauÊdatÊbestemdÊisÊvoorÊhetÊautoverkeer.

Alterna efÊ0+Ê(bijÊopheffingÊvanÊhetÊBBP):

MetÊdeÊopheffingÊvanÊhetÊBBPÊkanÊmenÊafstappenÊvanÊdeÊhoge,Êkunstma geÊgrondÊvoorÊ voetgangersÊenÊfietsersÊenÊhetÊverkeerÊvanÊdeÊzachteÊverplaatsingswijzenÊintegrerenÊinÊ deÊgelijkgrondseÊopenbareÊruimteÊdieÊwordtÊgedeeldÊdoorÊdeÊverschillendeÊverplaatsingswijzen.

UITDAGINGEN

UitdagingenÊdieÊkunnenÊwordenÊbehandeldÊinÊhetÊBBP:

* NadenkenÊoverÊeenÊbetereÊverdelingÊvanÊdeÊopenbareÊruimteÊtussenÊdeÊverplaatsingswijzen,ÊinÊsamenhangÊmetÊhetÊPlanÊGoodÊMoveÊenÊdeÊMWS.

* DeÊproblema scheÊplaatsenÊopÊhetÊvlakÊvanÊveiligheidÊbeveiligen.

* DeÊtoegankelijkheidÊvanÊdeÊac viteitenÊinÊdeÊzoneÊgaranderenÊ(parkingÊbuitenÊdeÊ openbareÊweg,Êleveringszones...).

REFERENTIE-INDICATOREN

Indicator Huidige waarde

StromenÊopÊdeÊverschillendeÊwegenÊvanÊdeÊperimeterÊ (gemiddeldeÊpweÊÊopÊdeÊwijkwegen'ÊenÊgemiddeldeÊpweÊ opÊdeÊ'comfortwegen')Ê

- OSÊWijk:Ê128Êpwe- OSÊComfort:Ê276Êpwe- ASÊWijk:ÊÊ116Ê pwe- ASÊComfort:Ê299Êpwe

AantalÊenÊbelangÊvanÊdeÊZACAÊinÊdeÊzone 2ÊZACAÊmetÊprioriteitÊ3

VERPLAATSINGEN HoofdstukÊIIÊ/ÊAfdelingÊ2ÊÊDiagnoseÊvanÊdeÊbestaandeÊenÊtenden ëleÊsitua eÊ/Êp.Ê67 AUTO'S
Ongevalgevoelige zones (ZACA) (Mobigis, 2021)

VRACHTVERKEERÊ&ÊLEVERINGEN

BESTAANDEÊRECHTSTOESTAND

DeÊMul modaleÊWegenspecialisa eÊvanÊhetÊPlanÊGoodÊMoveÊvoorzietÊinÊhetÊ vrachtverkeernetwerkÊenÊbeveeltÊdeÊbijhorendeÊinfrastructurenÊaanÊ(zieÊcriteriumÊ UitvoeringÊvanÊdeÊMWS).

BESTAANDEÊFEITELIJKEÊTOESTAND

Stromen

InÊBrusselÊwordtÊongeveerÊ90%ÊvanÊdeÊgoederenÊvervoerdÊoverÊdeÊweg.ÊHetÊkanaalÊ wordtÊvooralÊgebruiktÊvoorÊhetÊvervoerÊvanÊbouwmaterialenÊenÊolieproducten.ÊHetÊ spoorÊwordtÊvoorÊhetÊgoederentransportÊzeerÊweinigÊgebruikt.Ê

DeÊsitua eÊvanÊhetÊvrachtverkeerÊvertoontÊgroteÊverschillenÊtussenÊdeÊtweeÊkantenÊ vanÊdeÊspoorweg:ÊaanÊdeÊwestkantÊvergemakkelijkenÊhetÊwegensysteem,ÊoorspronkelijkÊontworpenÊvoorÊdeÊauto,ÊenÊhetÊprincipeÊvanÊdeÊbenedenverdiepingenÊmetÊlogisekeÊtoegangen,ÊhetÊvrachtwagenverkeer.ÊInÊdeÊBrabantwijkÊzijnÊdeÊstratenÊeerderÊ smalÊenÊnietÊaangepastÊvoorÊintensiefÊvrachtverkeer.Ê

VolgensÊhetÊtruckÊdashboardÊvanÊBrusselÊMobiliteitÊ(gemiddeldeÊgegevensÊopÊdeÊochtendÊvanÊeenÊweekdag)ÊzijnÊdeÊvrachtwagenstromenÊinÊdeÊwijkÊhetÊgrootstÊopÊdeÊWillebroekkaai.ÊOokÊdeÊassenÊBolivarÊenÊAlbertÊIIÊwordenÊdoorÊhetÊvrachtverkeerÊveelvuldigÊgebruiktÊÊDeÊvrachtwagenstroomÊinÊdeÊperimeterÊisÊzeerÊbeperktÊ(onmiskenbaarÊ beperktÊtotÊdeÊnoodzakelijkeÊleveringen).Ê'sÊOchtensÊisÊdezeÊstroomÊhetÊgrootst.

Parkeren

NochÊinÊdeÊperimeterÊvanÊhetÊBBPÊnochÊinÊdeÊdirecteÊomgevingÊervanÊzijnÊerÊspecifiekeÊ parkeerplaatsenÊvoorÊvrachtwagens.ÊDeÊperimeterÊomvatÊookÊgeenÊleveringszones.ÊErÊisÊ daarentegenÊwelÊeenÊzoneÊvoorbehoudenÊvoorÊhetÊparkerenÊvanÊdeÊbussenÊvanÊhetÊinterna onaleÊbussta onÊ (Vooruitgangstraat).

InÊ2017ÊwerdÊvoorÊBrusselÊ MobiliteitÊeenÊtellingÊverrichtÊvanÊdeÊgeparkeerdeÊ vrachtwagensÊenÊbestelwagensÊinÊhetÊBrusselsÊ HoofdstedelijkÊGewestÊ('sÊ nachtsÊopÊeenÊweekdagÊenÊ opÊeenÊzondag).ÊDaaruitÊ bleekÊdatÊdeÊwijkÊweinigÊ wordtÊgebruiktÊvoorÊhetÊ langdurigÊparkerenÊvanÊditÊ typeÊvoertuigen,ÊenerzijdsÊ vanwegeÊdeÊaardÊvanÊdeÊ ac viteitenÊinÊdeÊwijkÊenÊ anderzijdsÊdoorÊhetÊgebrekÊ aanÊeenÊparkeerzoneÊdieÊisÊ voorbehoudenÊvoorÊdezeÊ voertuigencategorie.

Leveringen

1ÊvoertuigÊperÊstraatkant

hoogteÊvanÊminderÊdanÊ3Êm)ÊkunnenÊdeÊleveranciersÊdeÊbezoekersparkingÊvanÊhetÊCCNÊ(2)ÊoprijdenÊenÊerÊdeÊaanwijzingenÊvoorÊdeÊbezoekersÊvolgen.ÊVoorÊgroteÊleveringenÊwordenÊdeÊchauffeursÊdieÊvanÊhetÊRogierpleinÊkomenÊnaarÊdeÊbusstrookÊonderÊhetÊsta onÊ geleidÊenÊvandaarÊnaarÊeenÊspecifiekeÊleveringsparking.ÊSommigeÊgoederenÊkunnenÊwordenÊgeleverdÊviaÊdeÊinritÊtenÊzuidenÊvanÊhetÊsta onÊwaarÊeenÊ'verdwijnpaal'ÊdeÊvrachtwagensÊtoegangÊverleentÊindienÊnodig.Ê

DeÊleveringenÊÊvoorÊhetÊsta onÊÊgebeurenÊviaÊhetÊSolvayplein.

BUSINESS-AS-USUALSCENARIO

HetÊgoederentransportÊneemtÊvoortdurendÊtoe.ÊA ankelijkÊvanÊdeÊevolu eÊvanÊdeÊBrusselseÊtewerkstellingÊkunnenÊweÊervanÊuitgaanÊdatÊhetÊgoederenverkeerÊinÊhetÊBHGÊtegenÊ 2030ÊmetÊ5%ÊzalÊtoenemen.ÊDeÊevolu eÊvanÊdeÊlogis ekeÊketensÊenÊdeÊontwikkelingÊvanÊ deÊe-commerceÊhebbenÊheelÊwatÊveranderdÊinÊdeÊdistribu esector.ÊHetÊaantalÊvoertuigenÊ voorÊgoederenverkeerÊisÊtoegenomenÊenÊdeÊindustrieÊrichtÊzichÊsteedsÊmeerÊopÊkleinereÊ leveringsvoertuigen.

Plannen,Êprogramma'sÊenÊprojecten:Ê

DeÊconclusiesÊvanÊhetÊStrategischÊPlanÊvoorÊhetÊGoederenvervoerÊwerdenÊopgenomenÊinÊ hetÊplanÊGoodÊMove.ÊBedoelingÊisÊomÊtegenÊ2025ÊdeÊafgelegdeÊafstandenÊvoorÊdeÊstedelijkeÊleveringenÊoverÊdeÊwegÊmetÊ10%ÊteÊverminderen,ÊonderÊmeerÊdoorÊvoorÊhetÊzwaarÊofÊ langeafstandstransportÊhetÊgebruikÊvanÊdeÊwaterwegÊenÊhetÊspoorÊteÊpromotenÊenÊvoorÊ deÊkorteÊafstandenÊdeÊbakfiets.ÊZoalsÊisÊvermeldÊinÊhetÊstrategischÊluikÊvanÊhetÊplanÊGoodÊ MoveÊenÊa ankelijkÊvanÊhetÊstedelijkÊenÊeconomischÊpoten eelÊmoetenÊerÊspecifiekeÊ logis ekeÊsitesÊwordenÊontwikkeldÊ(opslagplaatsenÊopÊverschillendeÊplaatsenÊopÊhetÊBrusselseÊgrondgebied,Êpla ormenÊopÊschaalÊvanÊhetÊgrootstedelijkÊgebied).Ê

~ 45/uur

~ 25/uur ~ 20/uur

OpÊlokaalÊvlakÊhoudenÊdeÊleveringenÊvooralÊverbandÊmetÊdeÊadministra eveÊac viteitenÊ enÊdeÊenkeleÊhandelszakenÊdieÊinÊdeÊperimeterÊaanwezigÊzijn.ÊDeÊleveringenÊvanÊhetÊCCNÊ geschiedenÊvooralÊopÊtweeÊmanieren.ÊVoorÊkleineÊleveringenÊ(vrachtwagensÊmetÊeenÊ

VolgensÊdeÊMWSÊlooptÊlangsÊdeÊperimeterÊvanÊhetÊBBPÊhetÊtrajectÊCOMFORTÊvrachtverkeerÊ(AlbertÊII,ÊSolvaypleinÊenÊVooruitgangstraat).ÊDeÊvrachtwagensÊhebbenÊdusÊdeÊneigingÊomÊvanafÊdezeÊwegenÊdeÊperimeterÊvanÊhetÊBBPÊbinnenÊteÊrijden.

HetÊCCN-gebouwÊmaaktÊmomenteelÊhetÊvoorwerpÊuitÊvanÊstudiesÊvoorÊeenÊgrondigeÊverbouwing.ÊHetÊdeelÊa raakÊdaarvanÊwordtÊmomenteelÊonderzocht.ÊÊDeÊverschillendeÊtoegangen/stromenÊdieÊdaaraanÊverbondenÊzijn,ÊkunnenÊnogÊveranderen.

Alterna efÊ0Ê(bijÊbehoudÊvanÊhetÊBBP):

GeenÊveranderingÊvanÊdeÊtoestand.

Alterna efÊ0+Ê(bijÊopheffingÊvanÊhetÊBBP):

GeenÊveranderingÊvanÊdeÊtoestand.

UITDAGINGEN

UitdagingenÊdieÊkunnenÊwordenÊbehandeldÊinÊhetÊBBP:

DeÊhinderÊveroorzaaktÊdoorÊvrachtwagensÊenÊbestelwagensÊinÊdeÊopenbareÊruimteÊ (verkeersstromenÊenÊparkeren)Êverminderen,ÊmaarÊdeÊleveringÊvanÊgoederenÊblijvenÊgaranderenÊ(minderÊleveringen,ÊmaarÊgeop

REFERENTIE-INDICATOREN

Indicator Huidige waarde

%ÊgebouwenÊmetÊleveringszonesÊbinnenÊ

VERPLAATSINGEN HoofdstukÊIIÊ/ÊAfdelingÊ2ÊÊDiagnoseÊvanÊdeÊbestaandeÊenÊtenden ëleÊsitua eÊ/Êp.Ê68
maliseerd).Ê Aantal vrachtwagens per uur in de wijk (boven) en specifiek in de Bolivarlaan (onder) (Brussel Mobiliteit) Aantal vrachtwagens en bestelwagens op de openbare weg op een zondag (Brussel Mobiliteit, 2017)
AantalÊparkeerplaatsenÊvoorÊleveringenÊopÊdeÊopenbareÊ wegÊ 0
100Ê%
Toegang voor leveringen VW Toegang parkings Lokalisa e van de toegangen voor leveringen in het BBP

BESTAANDEÊRECHTSTOESTAND

TitelÊVIIIÊvanÊdeÊGSV bepaaltÊhetÊmaximumaantalÊautoparkeerplaatsenÊdatÊisÊtoegelatenÊbijÊdeÊafgi eÊvanÊdeÊbouw- ofÊrenova evergunningenÊvoorÊwoongebouwen,ÊkantorenÊofÊandereÊeconomischeÊac viteitenÊ(privéparkeerplaatsen,ÊbuitenÊdeÊopenbareÊ weg).ÊHetÊheleÊgeografischeÊgebiedÊisÊgelegenÊinÊtoegankelijkheidszoneÊA.ÊVoorÊ woongebouwenÊmetÊmeerdereÊwoningenÊwordenÊperÊwoningÊminstensÊ1ÊenÊmaximaalÊ2ÊparkeerplaatsenÊtoegelaten.ÊVoorÊkantorenÊenÊac viteitenÊvoorÊhoogtechnologieÊenÊvoorÊdeÊvervaardigingÊvanÊimmateriëleÊgoederenÊmetÊeenÊvloeroppervlakteÊ groterÊdanÊ250Êm²ÊbedraagtÊhetÊmaximumaantalÊtoegelatenÊparkeerplaatsenÊ2ÊvoorÊ deÊeersteÊschijfÊvanÊ250Êm²ÊvloeroppervlakteÊenÊ1ÊperÊbijkomendeÊschijfÊvanÊ200Êm².Ê

VoorÊambachts-,Ênijverheids-,Êlogis ekeÊenÊopslagac viteitenÊwordtÊhetÊaantalÊbepaaldÊ opÊbasisÊvanÊeenÊgemo veerdÊvoorstelÊvanÊdeÊaanvrager.

TitelÊIIÊvanÊdeÊGSVÊbetreffendeÊdeÊbewoonbaarheidsnormenÊvoorÊwoningenÊlegtÊopÊ omÊperÊwoningÊminstensÊ1ÊfietsparkeerplaatsÊteÊcreërenÊinÊnieuwbouwprojectenÊmetÊ meerdereÊwoningen.ÊTitelÊVIIIÊvanÊdeÊGSVÊpreciseertÊbovendienÊhetÊaantalÊparkeerplaatsenÊdatÊmoetÊwordenÊgecreëerdÊvoorÊfietsenÊinÊnieuwÊgebouwdeÊofÊheropgebouwdeÊkantoorgebouwen:ÊminstensÊ1ÊparkeerplaatsÊperÊ200Êm²Êvloeroppervlakte,Ê metÊeenÊminimumÊvanÊ2ÊparkeerplaatsenÊperÊgebouw.ÊVoorÊambachts-,Ênijverheids,Ê logis ekeÊenÊopslagac viteitenÊwordtÊhetÊaantalÊbepaaldÊopÊbasisÊvanÊeenÊgemoveerdÊvoorstelÊvanÊdeÊaanvrager,ÊmetÊeenÊminimumÊvanÊ2ÊfietsparkeerplaatsenÊperÊ gebouw.

VolgensÊar kelÊ13ÊvanÊdeÊGemSVÊÊmoetÊeenÊlokaalÊvoorÊdeÊbergingÊvanÊfietsenÊenÊ kinderwagensÊwordenÊingerichtÊbijÊelkeÊwijzigingÊvanÊeenÊgebouwÊwaarbijÊ3ÊofÊmeerÊ woningenÊwordenÊgecreëerd.

BESTAANDEÊFEITELIJKEÊTOESTAND

ParkerenÊvanÊmotorvoertuigenÊopÊdeÊopenbareÊweg

DeÊperimeterÊvanÊhetÊBBP teltÊ124ÊparkeerplaatsenÊ(ofÊparkeerplaatsequivalenten:ÊÊ 5mÊ=Ê1Êppe),Êwaaronder:

· EenÊzoneÊvoorbehoudenÊvoorÊschoolbussenÊ(6Êppe);

· DrieÊzonesÊvoorbehoudenÊvoorÊtaxi'sÊ(20Êppe)

· TweeÊautcarzonesÊdrop&rideÊ(24Ê ppe)

· EenÊzeven gtalÊnietvoorbehoudenÊparkeerplaatsen,Ê vooralÊinÊdeÊAlbertÊII-laanÊenÊopÊ hetÊSolvayplein.ÊAlleÊparkeerplaatsenÊvanÊdeÊperimeterÊzijnÊ groeneÊzone.ÊÊ

InÊdeÊwijk zijnÊdeÊvolgendeÊgereglementeerdeÊparkeerplaatsenÊaanwezig:

· BlauweÊzoneÊ(parkeerschijf,ÊmaximaalÊ2Êuur)ÊinÊhetÊresiden ëleÊdeelÊ vanÊdeÊwijkÊ(inÊhetÊwesten);Ê

· GroeneÊzoneÊ(betalend,ÊonbeperkteÊ duur)ÊvoorÊhetÊgrootsteÊdeelÊvanÊdeÊ Manha anwijk;Ê

· RodeÊzoneÊ(betalend,ÊmaximaalÊ2Êuur)ÊinÊeenÊdeelÊvanÊdeÊAlbertÊII-laanÊenÊrondÊdeÊ Brabantstraat.Ê

DeÊparkeerdrukÊopÊdeÊopenbareÊwegÊ'sÊnachts,ÊdieÊdeÊbehoe enÊvanÊdeÊbuurtbewonersÊ uitdrukt,ÊisÊietsÊgroterÊrondÊdeÊwoontorenÊAmelinckx(Solvay,ÊRogier,ÊGaucheret).ÊDeÊ restÊvanÊdeÊperimeterÊwordtÊgekenmerktÊdoorÊhuizenblokkenÊdieÊwordenÊingenomenÊ doorÊkantoortorens,ÊzodatÊerÊ'sÊnachtsÊvrijÊweinigÊbehoe eÊisÊaanÊparkeerplaatsen.Ê

DeÊperimeterÊmetÊkantoorgebouwenÊbeschiktÊdoorgaansÊoverÊeenÊspecifiekÊparkeeraanbodÊbuitenÊdeÊopenbareÊweg.ÊDeÊparkeerdrukÊopÊdeÊopenbareÊwegÊisÊoverdagÊ weliswaarÊietsÊhogerÊdanÊ'sÊnachts,ÊmaarÊdeÊabsoluteÊwaardenÊblijvenÊdoorgaansÊonderÊ deÊverzadigingsgraadÊ(85%).

DeÊBrabantwijkÊisÊeenÊgemengdeÊwijkÊ(handelszakenÊenÊwoningen)ÊenÊvertoontÊdusÊlichteÊ verschillenÊinÊparkeerdrukÊoverdagÊenÊ'sÊnachts.ÊVerzadigingsgradenÊbovenÊdeÊ100%,ÊzowelÊoverdagÊalsÊ'sÊnachts,ÊwordenÊwaargenomenÊinÊhetÊnoordwestenÊvanÊhetÊhuizenblokÊ Moebius,ÊlangsÊhetÊwoningparkÊMaximiliaanÊenÊterÊhoogteÊvanÊhetÊWTCÊIVÊinÊdeÊAlbertÊIIlaanÊenÊdeÊSimonisstraat.

OpenbareÊparkeerplaatsenÊvoorÊmotorvoertuigenÊbuitenÊdeÊopenbareÊwegÊÊ(uitgebaatÊdoorÊ Interparking)

· deÊopenbareÊparkingÊvanÊhetÊCCNÊ:Ê115ÊparkeerplaatsenÊonderÊhetÊNoordsta on,Ê toegankelijkÊvanafÊdeÊzuidkantÊvanÊhetÊgebouwÊviaÊeenÊinritÊnaarÊverdiepingÊ-2.ÊVanafÊdezeÊparkingÊkanÊnaarÊverdiepingÊ+1ÊwordenÊgegaanÊ(sta onsniveau· andereÊopenbareÊparkingsÊzijnÊgelegenÊinÊdeÊomliggendeÊwijk,ÊinÊRogier,ÊManha anÊ enÊUpsite.

PrivéparkeerplaatsenÊvoorÊmotorvoertuigenÊbuitenÊdeÊopenbareÊwegÊ · DeÊparkingÊvanÊhetÊCCNÊteltÊ562ÊplaatsenÊ(waarvanÊ115ÊopÊdeÊopenbareÊparking,Ê zieÊeerder).ÊDeÊprivéplaatsenÊwarenÊvoorbehoudenÊvoorÊhetÊpersoneelÊenÊdeÊbezoekersÊvanÊdeÊadministra esÊdieÊkantorenÊhaddenÊinÊhetÊCCNÊ(enÊvandaagÊzijnÊ verhuisd).ÊÊDeÊingangÊbevindtÊzichÊopÊhetÊNoordplein,ÊdeÊuitgangÊaanÊdeÊkantÊvanÊ hetÊSolvayplein.

· DeÊProximussiteÊ beschiktÊoverÊ935ÊondergrondseÊparkeerplaatsen,ÊwaarvanÊ249Ê binnenÊdeÊperimeterÊvanÊhetÊBBP.ÊDeÊingangÊbevindtÊzichÊinÊdeÊnieuweÊVooruitgangstraatÊtenÊzuidenÊvanÊhetÊBolivarplein.

· HetÊgebouwÊNorthÊGalaxyÊteltÊ611ÊondergrondseÊparkeerplaatsen.ÊDeÊingangÊbevindtÊzichÊinÊdeÊnieuweÊVooruitgangstraatÊtenÊnoordenÊvanÊhetÊBolivarplein. InÊdeÊwijk beschikkenÊheelÊwatÊgebouwenÊoverÊgroteÊparkingsÊbuitenÊdeÊopenbareÊweg,Ê bijvoorbeeldÊBoreal,ÊHendrikÊConscience,ÊFerraris,ÊWTCÊIII,ÊÊZIN,ÊMoebius,ÊEllipseÊBuilding,Ê deÊwoontoren,ÊBNP...

VolgensÊdeÊdiagnoseÊ2020ÊvanÊhetÊTerritoriumÊNoordÊblijktÊuitÊgesprekkenÊmetÊbewonersÊ enÊwerknemersÊuitÊdeÊwijkÊdatÊÊbepaaldeÊbestaandeÊoverdekteÊparkeerterreinenÊteÊweinigÊ wordenÊbenut.ÊDitÊeffentÊdeÊwegÊvoorÊeenÊgedeeldÊgebruikÊvanÊdezeÊondergrondseÊparkeerplaatsenÊofÊvoorÊhetÊgebruikÊervanÊvoorÊandereÊdoeleinden.

VERPLAATSINGEN HoofdstukÊIIÊ/ÊAfdelingÊ2ÊÊDiagnoseÊvanÊdeÊbestaandeÊenÊtenden ëleÊsitua eÊ/Êp.Ê69 PARKEREN
Gereglementeerde parkeerplaatsen voor motorvoertuigen in de wijk (Mobigis, 2021)
5-7 10-12
Voorbehouden parkeerplaatsen (Brussel Mobiliteit, 2021) Parkeerdruk in de wijk (Brussel Mobiliteit, 2020)

Fietsparkeren

DeÊperimeterÊomvatÊ6Êinrich ngenÊvoorÊfietsparkerenÊopÊdeÊopenbareÊweg.ÊZeÊzijnÊinÊ totaalÊgoedÊvoorÊ66Êplaatsen.

VolgensÊdeÊtellingenÊ'sÊnachtsÊinÊmaartÊ2020Ê(parking.brussels)ÊwordtÊdeÊvraagÊvanÊ 'buurtbewoners'ÊnaarÊdergelijkeÊinrich ngenÊgeraamdÊopÊminderÊdanÊ50%Ê(opÊdeÊ66Ê aangebodenÊplaatsenÊstondenÊslechtsÊ28ÊfietsenÊgeparkeerd).ÊOokÊopÊdeÊopenbareÊ wegÊstaanÊ'sÊnachtsÊslechtsÊweinigÊfietsenÊgeparkeerdÊ(erÊwerdenÊerÊ6Êgeteld).Ê DezeÊvaststellingÊisÊnietÊverrassendÊgezienÊdeÊtypologieÊvanÊdeÊwijkÊ (kantoorgebouwen).

deÊopenbareÊweg.

BUSINESS-AS-USUALSCENARIO

DeÊlaatsteÊjarenÊisÊhetÊdeÊtendensÊ(bijÊdeÊherzieningÊvanÊdeÊGSVÊmaarÊookÊinÊdeÊgedragslijnenÊvanÊLeefmilieuÊBrusselÊenÊinÊhetÊnieuweÊmasterplanÊfietsenÊenÊbakfietsen)Ê

om:

· deÊdrempelsÊvoorÊhetÊfietsparkerenÊopÊteÊtrekkenÊ(1ÊfietsparkeerplaatsÊperÊslaapkamerÊenÊ10%ÊvanÊdeÊplaatsenÊbestemdÊvoorÊbakfietsen);

· drempelsÊteÊbepalenÊdieÊbeterÊzijnÊaangepastÊaanÊdeÊtoegankelijkheidÊenÊdeÊ groo eÊvanÊdeÊwoningenÊ(lagerÊminimumÊinÊdeÊgebiedenÊdieÊgoedÊbereikbaarÊzijnÊ metÊhetÊopenbaarÊvervoerÊenÊvoorÊkleineÊwoningen).

Plannen,Êprogramma'sÊenÊprojecten:Ê

* HetÊ BWLKEÊ stree ÊnaarÊeenÊverminderingÊvanÊhetÊaantalÊparkeerplaatsenÊinÊdeÊ buurtÊvanÊdeÊkantoorgebouwenÊomÊzoÊdeÊwerknemersÊafÊteÊradenÊomÊvoorÊhunÊ woonwerkverplaatsingenÊdeÊautoÊteÊgebruiken.ÊHetÊisÊenkelÊvanÊtoepassingÊbijÊeenÊ aanvraagÊtotÊverlenging/vernieuwingÊvanÊmilieuvergunningen.

* HetÊplanÊGoodÊMoveÊwilÊhetÊaantalÊparkeerplaatsenÊinÊhetÊGewestÊaanzienlijkÊverminderen.ÊHetÊwilÊtussenÊ2020ÊenÊ2030Ê65Ê000ÊautoparkeerplaatsenÊopÊdeÊopenbareÊwegÊ(vanÊdeÊ265Ê000)ÊenÊ20Ê000ÊplaatsenÊbuitenÊdeÊopenbareÊwegÊschrappen.Ê BovendienÊwilÊhetÊtegenÊ2030Ê50.000ÊbeveiligdeÊfietsparkeerplaatsenÊinrichtenÊaanÊ deÊtrein- enÊmetrosta ons.

* HetÊGemeentelijkÊParkeerac eplanÊ(GPAP)ÊvanÊSchaarbeekÊdateertÊvanÊjuliÊ2016ÊenÊ wildeÊvooralÊhetÊparkerenÊvanÊbuurtbewonersÊbevorderenÊtenÊopzichteÊvanÊdeÊ andereÊweggebruikers.ÊDeÊdoelstellingÊvanÊ16%ÊminderÊniet-gereglementeerdeÊ parkeerplaatsenÊwerdÊalÊbereikt.ÊDaarnaastÊwildeÊhetÊplanÊbinnenÊ5ÊjaarÊmoetÊhetÊ aantalÊgedeeldeÊparkeerplaatsenÊverdrievoudigen.ÊÊHetÊplanÊwildeÊookÊprospec eÊ voerenÊomÊhetÊaantalÊopenbareÊplaatsenÊbuitenÊdeÊopenbareÊwegÊteÊverhogen.ÊDeÊ doelstellingÊvoorÊfietsenÊstrooktÊmetÊdeÊdoelstellingenÊvanÊhetÊGewestelijkÊParkeerbeleidsplanÊ(GPBP): 2ÊfietsparkeerplaatsenÊperÊ20Êautoparkeerplaatsen;ÊvoorÊ SchaarbeekÊbetekentÊdatÊopÊtermijnÊ500ÊfietsbogenÊ(110Êfietsbogen/jaar).ÊDeÊStadÊ BrusselÊenÊdeÊgemeenteÊSint-Joost-ten-NodeÊbeschikkenÊnietÊoverÊeenÊGemeentelijkÊParkeerac eplanÊ(GPAP).Ê

Alterna efÊ0Ê(bijÊbehoudÊvanÊhetÊBBP):

HetÊaantalÊparkeerplaatsenÊzalÊwordenÊomkaderdÊdoorÊhetÊBBPÊ (evenredigheidscoëfficiëntenÊvoorÊwoningenÊenÊkantorenÊvastgelegdÊdoorÊhetÊcollegeÊvanÊ burgemeesterÊenÊschepenen).ÊHetÊaantalÊfietsparkeerplaatsenÊzalÊmoetenÊvoldoenÊaanÊdeÊ GSV.

Alterna efÊ0+Ê(bijÊopheffingÊvanÊhetÊBBP):

HetÊaantalÊparkeerplaatsenÊzalÊwordenÊbepaaldÊdoorÊdeÊGSV.

UITDAGINGEN

UitdagingenÊdieÊkunnenÊwordenÊbehandeldÊinÊhetÊBBP:

* HetÊparkerenÊopÊdeÊopenbareÊwegÊra onaliseren;

* DeÊparkeerzonesÊbuitenÊdeÊopenbareÊwegÊop maliserenÊ(gedeeldÊgebruik,Êdiversifica eÊvanÊdeÊsoortenÊparkeerplaatsen/andereÊgebruiksdoelen),ÊrekeningÊhoudendÊ metÊhetÊhuidigeÊenÊhetÊtoekoms geÊgebruik;

* HetÊparkerenÊvanÊfietsenÊenÊbakfietsenÊontwikkelenÊinÊsamenhangÊmetÊhetÊsta onÊ datÊeenÊintermodaleÊrolÊmoetÊvervullen;

* EenÊvoldoendeÊparkeeraanbodÊgaranderenÊvoorÊfietsenÊenÊbakfietsen,ÊinÊsamenhangÊmetÊdeÊtoenameÊvanÊdeÊgemengdheidÊvanÊfunc es.

OverdagÊwerdenÊerÊgeenÊtellingenÊverricht.ÊWeÊkunnenÊerÊechterÊvanÊuitgaanÊdatÊdeÊ vraagÊdanÊveelÊgroterÊisÊgezienÊdeÊaanwezigheidÊvanÊhetÊmul modaleÊknooppuntÊenÊ hetÊgroteÊaantalÊwerknemersÊinÊdeÊwijk.

TweeÊfietsparkingsÊbuitenÊdeÊopenbareÊwegÊzijnÊgelegenÊinÊhetÊsta onÊenÊtoegankelijkÊ jdensÊdeÊopeningsurenÊvanÊhetÊsta on:Ê

* eenÊparkingÊmetÊongeveerÊ150ÊplaatsenÊ(waarvanÊ4ÊvoorÊbakfietsen)ÊisÊgra sÊ beschikbaar;Ê

* eenÊparkingÊmetÊ356ÊplaatsenÊ(waarvanÊ35ÊvoorÊbakfietsen)ÊisÊvoorbehoudenÊ voorÊabonneesÊ(beheerdÊdoorÊdeÊNMBS).

DezeÊparkingÊisÊbereikbaarÊviaÊhetÊfietspadÊinÊdeÊoudeÊVooruitgangstraatÊ(overdekt)Ê aanÊweerszijdenÊvanÊhetÊCycloÊFietspuntÊ(fietsenmaker).ÊÊDeÊloca eÊvanÊdezeÊuitrusngÊwordtÊgevoeldÊalsÊondergronds,ÊverborgenÊ(deÊanalogieÊmetÊdeÊ« grot »ÊwordtÊ gemaaktÊdoorÊdeÊmensenÊdieÊdaarÊwerken).

DeÊkantoorgebouwenÊvanÊdeÊperimeterÊbeschikkenÊoverÊfietsparkeerplaatsenÊbuitenÊ

* DeÊdoelstellingenÊvoorÊhetÊTerritoriumÊNoordÊ beogenÊeenÊverminderingÊvanÊhetÊ aantalÊparkeerplaatsenÊopÊdeÊopenbareÊwegÊtenÊgunsteÊvanÊdeÊparkeerplaatsenÊ buitenÊdeÊopenbareÊweg.Ê

* HetÊ ZIN-projectÊ wilÊhetÊaantalÊparkeerplaatsenÊopvoerenÊvanÊ646ÊnaarÊ868Ê (waaronderÊ346ÊopenbareÊparkeerplaatsenÊenÊ51ÊparkeerplaatsenÊvoorÊpoolcars).

* EenÊopenbareÊP+R-parkingÊisÊgeplandÊopÊdeÊsiteÊvanÊdeÊHeizelÊ(Esplanade).ÊZeÊzalÊ wordenÊverbondenÊmetÊdeÊtramlijnenÊnaarÊonderÊmeerÊhetÊNoordsta on,ÊwatÊhetÊ aantalÊgemotoriseerdeÊpendelaarsÊnaarÊhetÊNoordsta onÊzalÊverminderen.

* EenÊ nieuweÊopenbareÊparkingÊ met152ÊplaatsenÊwordtÊaangelegdÊinÊdeÊ Kwatrechtstraat.

* HetÊCCN-gebouwÊmaaktÊmomenteelÊhetÊvoorwerpÊuitÊvanÊstudiesÊvoorÊeenÊgrondigeÊverbouwing.ÊHetÊdeelÊa raakÊdaarvanÊwordtÊmomenteelÊonderzocht.ÊÊDitÊ projectÊbiedtÊeenÊuitzonderlijkeÊgelegenheidÊomÊrekeningÊteÊhoudenÊmetÊdeÊhierÊ gedefinieerdeÊuitdagingen.

REFERENTIE-INDICATOREN

Indicator Huidige waarde

AantalÊautoparkeerplaatsenÊopÊdeÊopenbareÊwegÊ 124Êpwe

AantalÊautoparkeerplaatsenÊbuitenÊdeÊopenbareÊwegÊ 2108Êparkeerplaatsen

AantalÊfietsparkeerplaatsenÊopÊdeÊopenbareÊwegÊ 66Êparkeerplaatsen

AantalÊfietsparkeerplaatsenÊbuitenÊdeÊopenbareÊwegÊ 500Ê(waarvanÊ40ÊvoorÊbak-

VERPLAATSINGEN HoofdstukÊIIÊ/ÊAfdelingÊ2ÊÊDiagnoseÊvanÊdeÊbestaandeÊenÊtenden ëleÊsitua eÊ/Êp.Ê70 PARKEREN
Fietsen die 's nachts geparkeerd staan in de openbare ruimte (parking.brussels, 2020)

BESTAANDEÊRECHTSTOESTAND

TitelÊVIIÊvanÊdeÊGSVÊbepaaltÊdeÊeisenÊvoorÊdeÊinrich ngÊvanÊdeÊparkeerzonesÊvoorÊ taxi'sÊenÊdeelwagens.

BESTAANDEÊFEITELIJKEÊTOESTAND

InÊdeÊbuurtÊvanÊdeÊperimeterÊbevindenÊzichÊdrie Cambio-sta onsÊ,ÊmaarÊgeenÊenkelÊ deelsta onÊisÊinÊdeÊperimeterÊgelegen.ÊÊVolgensÊdeÊinforma eÊverstrektÊdoorÊCambioÊ isÊhetÊmeestÊgebruikteÊsta onÊgelegenÊinÊdeÊVooruitgangstraat,ÊaanÊdeÊnoordkantÊvanÊ hetÊsta onÊ(2Êwagens).ÊDitÊsta onÊbehoortÊookÊtotÊdeÊmeestÊgebruikteÊvanÊhetÊBrusselsÊHoofdstedelijkÊGewest.ÊOpÊdeÊtweedeÊplaatsÊstaatÊhetÊsta onÊinÊdeÊG.ÊMatheusstraatÊ(4Êwagens),ÊgevolgdÊdoorÊhetÊsta onÊinÊdeÊVooruitgangstraatÊaanÊdeÊzuidkantÊ(4Êwagens).ÊDitÊisÊhetÊminstÊgebruikteÊsta onÊvanÊdeÊdrie.Ê

VierÊparkeerzonesÊvoorÊtaxi'sÊzijnÊgelegenÊinÊdeÊbuurtÊvanÊhetÊsta on:ÊopÊhetÊvoorplein,ÊonderÊdeÊtrapÊnaarÊhetÊCCN,ÊinÊdeÊVooruitgangstraatÊtussenÊhetÊvoorpleinÊenÊ hetÊNoordpleinÊenÊinÊdeÊAarschotstraat,ÊterÊhoogteÊvanÊdeÊingangÊvanÊhetÊsta on.

De perimeter bevat geen oplaadpalen voor elektrische wagens. De wijk beschikt slechts over één paal in de Bolivarlaan (Engie).

EenÊVillo!-sta onÊbevindtÊzichÊinÊdeÊperimeterÊvanÊhetÊBBPÊopÊhetÊBolivarplein.ÊErÊzijnÊ eenÊveer gtalÊfietsenÊbeschikbaar.ÊOokÊhetÊsta onÊopÊhetÊNoordplein,ÊnetÊbuitenÊdeÊ perimeter,ÊbiedtÊeenÊveer gtalÊfietsenÊaan.ÊIetsÊverderopÊliggenÊnogÊandereÊsta ons.Ê

EenÊfietsrepara e-atelierÊ(Fietspunt) isÊgelegenÊonderÊhetÊNoordsta on,ÊnaastÊdeÊ groteÊbeveiligdeÊfietsparking.

Een Kiosk van de MIVB bevindt zich in het CCN ter hoogte van de toegang tot het premetrosta on. De enige Lijnwinkel van het Gewest is binnen de perimeter van het BBP geves gd ter hoogte van het bussta on (ondergrondse verdieping).

MomenteelÊbestaanÊerÊ verschillendeÊobstakelsÊvoorÊdeÊintermodaliteit.ÊOmÊdeÊtrein,Ê tram- enÊpremetroperronsÊvanÊhetÊNoordsta onÊteÊbereikenÊvanafÊdeÊbushaltesÊÊ

* opÊhetÊSimonÊBolivarplein,ÊmoetÊdeÊgebruikerÊtotÊaanÊdeÊhoofdtrapÊvanÊhetÊCCNÊ wandelen,ÊdezeÊtrapÊopgaan,ÊdeÊtoegangspoortjesÊpasserenÊenÊdeÊroltrapÊvanÊdeÊ premetroÊgebruikenÊalsÊhijÊnaarÊhetÊperronÊwilÊomÊdeÊtreinÊteÊnemen.ÊDitÊtrajectÊ neemtÊ3ÊàÊ5ÊminutenÊinÊbeslag,Êa ankelijkÊvanÊdeÊdrukteÊenÊdeÊwandelsnelheid.Ê HetÊtrajectÊisÊ200mÊlangÊenÊomvatÊéénÊgrootÊobstakelÊ(vooralÊvoorÊPBMÊenÊfietsers):ÊdeÊtoegangstrapÊtotÊhetÊCCN.ÊHetÊpremetrosta onÊisÊbovendienÊnietÊuitgerustÊmetÊli enÊnaarÊdeÊperronsÊopÊverdiepingÊ–2.

* vanafÊdeÊondergrondseÊbushaltesÊmoetÊdeÊgebruikerÊnaarÊhetÊmiddenÊvanÊhetÊCCNÊ wandelen,ÊdeÊoudeÊVooruitgangstraatÊ(overdekteÊstraat)ÊdoorÊwandelenÊenÊvervolgensÊdeÊtrap/roltrap/li ÊnemenÊdieÊhemÊnaarÊdeÊcentraleÊhalÊvanÊhetÊNoordsta onÊ brengt.ÊVandaarÊkanÊhijÊdeÊtoegangspoortjesÊtotÊdeÊroltrapÊvanÊdeÊpremetroÊpasserenÊalsÊhijÊdeÊtramÊwilÊnemenÊofÊdeÊtrapÊnaarÊhetÊperronÊopÊlopenÊalsÊhijÊdeÊtreinÊwilÊ nemen.Ê

OmÊhetÊfietspuntÊteÊbereikenÊvanafÊhetÊBolivarpleinÊmoetÊdeÊgebruikerÊonderÊhetÊCCNÊ doorÊlopen,ÊdeÊtrapÊnemenÊnaarÊdeÊhalfondergrondseÊverdiepingÊenÊdeÊoverdekteÊstraatÊ doorÊwandelen.

BUSINESS-AS-USUALSCENARIO

Plannen,Êprogramma'sÊenÊprojecten:Ê

* HetÊplanÊGoodÊMoveÊbeloo Ê"MobilityÊasÊaÊservice"Ê(Maas):Êintegra eÊenÊ combina eÊvanÊverschillendeÊopenbareÊenÊprivateÊverplaatsingswijzenÊbinnenÊeenÊ technologischÊpla orm.ÊDeÊuitvoeringÊvanÊdeÊMWSÊzouÊbovendienÊdeÊmobiliteitsdienstenÊbevorderen.

* InÊhetÊGPAPÊvanÊSchaarbeekÊbestaatÊdeÊgewestelijkeÊdoelstellingÊinÊ90ÊplaatsenÊvoorÊ deelwagensÊinÊSchaarbeekÊtegenÊ2020.ÊÊDeÊgemeenteÊhee ÊinmiddelsÊdeÊeersteÊ stappenÊondernomenÊomÊeenÊnieuwÊGPAPÊopÊteÊmaken.

* HetÊprojectÊvoorÊdeÊa raakÊvanÊhetÊCCNÊimpliceertÊdeÊherzieningÊvanÊdeÊverschillendeÊstromenÊenÊvanÊdeÊlokalisa eÊvanÊdeÊtaxizones.Ê

* DeÊnieuweÊtramlijnÊThurnÊ&ÊTaxisÊvoorzietÊeenÊhalteÊopÊhetÊBolivarpleinÊdieÊrechtstreeksÊverbondenÊisÊmetÊhetÊsta on.Ê

* HetÊStadsvernieuwingscontractÊSVC2Ê"Noord-Brabant-Sint-Lazarus"ÊherbekijktÊhetÊ delenÊvanÊdeÊopenbareÊruimteÊomÊdeÊmodalÊshi ÊaanÊteÊmoedigenÊ(tunnelsÊonderÊ deÊspoorweg,ÊNoordplein,ÊKwatrechtstraat).

* HetÊCCN-gebouwÊmaaktÊmomenteelÊhetÊvoorwerpÊuitÊvanÊstudiesÊvoorÊeenÊgrondigeÊ verbouwing.ÊHetÊdeelÊa raakÊdaarvanÊwordtÊmomenteelÊonderzocht.ÊÊDitÊprojectÊ biedtÊeenÊuitzonderlijkeÊgelegenheidÊomÊrekeningÊteÊhoudenÊmetÊdeÊhierÊgedefinieerdeÊuitdagingen.

Alterna efÊ0Ê(bijÊbehoudÊvanÊhetÊBBP):

GeenÊveranderingÊvanÊdeÊtoestand.

Alterna efÊ0+Ê(bijÊopheffingÊvanÊhetÊBBP): GeenÊveranderingÊvanÊdeÊtoestand.

UITDAGINGEN

UitdagingenÊdieÊkunnenÊwordenÊbehandeldÊinÊhetÊBBP:

* DeÊintermodaliteitsvoorwaardenÊverbeterenÊmetÊonderÊmeerÊhetÊdelenÊvanÊdeÊ openbareÊruimteÊenÊhetÊbeheerÊvanÊdeÊinterac esÊtussenÊopenbaarÊvervoerÊenÊdeÊ zachteÊverplaatsingswijzen.

* AlleÊverplaatsingswijzenÊenÊmobiliteitsdienstenÊintegrerenÊenÊdeÊduidelijkheidÊervanÊ garanderen.

* HetÊstatuutÊvanÊhetÊstads- enÊsta onsniveauÊverduidelijkenÊ(interfaceÊopenbareÊ ruimteÊ- CCN-sta on).

REFERENTIE-INDICATOREN

Indicator Huidige waarde

BelangrijkeÊobstakelsÊvoorÊintermodaliteitÊ trappenÊ(ingangenÊvanÊhetÊ

VERPLAATSINGEN HoofdstukÊIIÊ/ÊAfdelingÊ2ÊÊDiagnoseÊvanÊdeÊbestaandeÊenÊtenden ëleÊsitua eÊ/Êp.Ê71
MOBILITEITSDIENSTENÊ&ÊINTERMODALITEIT
Mobiliteitsdiensten
en in de
van
BBP
2021)
in
buurt
het
(BRAT,

BESTAANDE RECHTSTOESTAND

Voorschri 0.2 van het GBP legt bij projecten met een grondoppervlakte > 5000 m² de aanleg op van groene ruimten die minstens 10 % van die grondoppervlakte beslaan, daarin begrepen één of meer groene ruimten uit één stuk met een grondoppervlakte van 500 m² elk.

Titel I van de Gewestelijke Stedenbouwkundige Verordening (GSV) bepaalt dat de bouwwerken niet hoger mogen zijn dan de gemiddelde hoogte van de aanpalende gebouwen en dat het bouwwerk moet worden geplaatst op een gepaste afstand van de terreingrenzen, rekening houdend met de vrijwaring van de bezonning van de naastliggende terreinen.

Het BBP 19 legt voor de huizenblokken Proximus en North Galaxy 30 % groene ruimte op, op de grond of boven de grond. De delen van deze groene ruimten die op de begane grond zijn gelegen, moeten verplicht hoogstammige bomen beva en. De groene ruimten moeten worden aangelegd als tuintjes. Ondergrondse construc es zijn toegelaten als ze worden bedekt met een laag van minstens 50 cm teelaarde voorzien van grasperken en struikgewas. Deze beplante oppervlakte kan met maximaal 2/3 van de totale oppervlakte per gebouw worden verminderd voor de aanleg van toegangen tot de gebouwen en garages. De acheruitbouwstroken moeten deze bestemming als tuintje behouden. In de feitelijke toestand worden deze verplich ngen niet nageleefd.

Voor de volumetrie bepaalt het BBP een laagbouwzone van 13 m voor de huizenblokken Proximus en North Galaxy en een hoogte van 102 m voor de 3 torens van deze huizenblokken. Het bepaalt een maximumhoogte van 23 m voor de gebouwen met middelma ge hoogte van het huizenblok North Galaxy (aan de kant van het Solvayplein). De bouwprofielen voor het CCN-gebouw zijn beperkt tot maximaal 35 m. In werkelijkheid worden de hoogte van 13 m, bestemd voor het voetgangersverkeer (Manha anplan) en de hoogte van het CCN-gebouw niet gerespecteerd.

BESTAANDE FEITELIJKE TOESTAND

Broeikasgaseffect: CO2 is het belangrijkste gas dat wordt uitgestoten in Brussel. De directe BKG-uitstoten zijn vooral a oms g van de verbrandingsprocessen (fossiele brandstoffen). De verwarming van de gebouwen voert de ranglijst aan, gevolgd door het wegverkeer.

Hi e-eiland: De Noordwijk is gelegen in een van de stadsdelen die het meest onderhevig zijn aan het stedelijke hi e-eilandeffect. In het Brussels Gewest zijn de hoogste waarden op het vlak van stedelijk hi e-eiland (tot 3°C, op de kaart aangegeven in het rood) geconcentreerd in het stadscentrum. De oorzaak ligt in de thermische kenmerken van de materialen, de stedelijke morfologie, de beperkte aanwezigheid van beplan ng en de menselijke ac viteiten.

Meer bepaald in het gebied dat wordt gedekt door het BBP ondergaat vooral het noordelijke deel van de Simon Bolivarlaan dit effect, waarschijnlijk als gevolg van de

oriënta e, de weerkaatsing op de beglaasde gevel van de North Galaxy-toren en de ondoorlatendheid van de bodem. De beplante zones van de Albert II-laan zijn met hun beplan ng en bodemdoorlatendheid de koelste zones van het bestudeerde gebied. Wind: Het dichte weefsel met hoofdzakelijk hoge gebouwen zorgt voor bijzonder veel tocht. De analyse van NUMFLO, gebaseerd op een CFD-simula e (Computa onal Fluid Dynamics) toont aan dat het comfort in de bestaande toestand in de perimeter te wensen overlaat, vooral in de twee hoofdstraten: de Koning Albert II-laan en de Simon Bolivarlaan. Deze straten lopen evenwijdig met de hevige en intense windrich ngen (respec evelijk in zuid-zuidwestelijke rich ng en in west-noordwestelijke rich ng), wat een tunneleffect creëert terwijl geen enkel gebouw bescherming biedt tegen de om-

weefsel met hoofdzakelijk hoge gebouwen, ondergaat hij een grote impact van slagschaduwen. De hierna volgende bezonnings jds ppen zijn theore sch en bij benadering bepaald, maar geven een orde van grootheid.

In de winter krijgt een klein deel van het Noordplein zon tussen 10 en 11.30 uur en tussen 13.30 en 14u. Het voorplein van het CCN-gebouw (Bolivarlaan) krijgt op een bewegende strook zon tussen 11.30 en 12.30 uur en de Albert II-laan wordt grotendeels bezond tussen 13 en 15 uur. De rest van de dag liggen deze ruimten in de schaduw van de gebouwen.

In de zomer zijn het Noordplein en het Solvayplein bijna volledig bezond tussen 6 en 17 uur (Solvayplein) en 19 uur (Noordplein). De Albert II-laan ligt voor het grootste deel in de zon tussen 12 en 15 uur. Ze wordt deels bezond tussen 8 en 12 uur en tussen 15 en 18 uur. Het voorplein van het CCN wordt voor de hel bezond tussen 8.30 en 10.30 uur en volledig bezond tot 12.30 uur. Tot 18 uur krijgt het voor de hel zon en vervolgens ligt het grootste deel in de zon tot 20 uur. De rest van de dag liggen deze ruimten in de schaduw van de gebouwen.

Op de nachtevening zijn het Solvayplein en het Noordplein grotendeels bezond tussen 9 en 14 uur en voor de hel tussen 8 en 9 uur en tussen 14 en 15 uur. De Albert II-laan ligt voor het grootste deel in de zon tussen 13.30 en 15 uur en deels tussen 9.30 en 13.30 uur en tussen 15 en 16.30 uur. Het voorplein van het CCN-gebouw ligt voor de hel in de zon tussen 10 en 13 uur en vervolgens helemaal niet meer tot 15.30 uur. Daarna krijgt de hel van het plein opnieuw zon tot 16 uur. De zon blij tot 17.30 uur. De rest van de dag liggen deze ruimten in de schaduw van de gebouwen.

Zomerzonnewende (21/06)

Nachtevenings (21/03 en 21/09)

gevingswind. In de straten in de directe omgeving van het sta on is het comfortniveau merkbaar beter, maar nog onvoldoende voor ac viteiten waarbij men langdurig moet zi en.

Over de hele perimeter van het BBP lijkt alleen een kleine zone ten noorden van het sta on de voetgangers een behoorlijk comfortniveau te bieden, ongeacht hun acviteit (Punt Pt3).

Bezonning: Aangezien de perimeter gelegen is in een dicht

Winterzonnewende (21/12)

LEEFMILIEU EN KLIMAAT Hoofdstuk II / Afdeling 2 Diagnose van de bestaande en tenden ële situa e / p. 72
MICROKLIMAAT
Stedelijk hi e-eiland 's nachts (VITO voor Leefmilieu Brussel, 2016)
13u 16u 18,5° 22,5°
9u
Comfortcriteria volgens de norm NEN 8100 Contouren van comfortcategorieën in de bestaande toestand

BUSINESS-AS-USUALSCENARIO

* Voorspelbare verhoging van de temperaturen als gevolg van de huidige globale klimaatopwarming

Plannen, programma's en projecten:

* De Klimaatordonnan e bepaalt de doelstellingen van het Gewest inzake de vermindering van de broeikasgassen, namelijk minstens: - 40% in 2030 (doelstelling van het Na onaal Energie- en Klimaatplan (NEKP), -67% in 2040 en - 90% in 2050 ten opzichte van 2005 (doelstelling van de Na onale Langetermijnstrategie voor het Gewest)". De verschillende beleidslijnen en maatregelen nodig om het streefdoel 2030 te bereiken, zijn vastgelegd in het NEKP). Het huidige Gewestelijk Lucht-, Klimaat- en Energieplan (GLKE) voorziet overigens maatregelen om zich aan te passen aan de klimaatverandering, zoals de verbetering van het stedelijk hi e-eilandeffect"

* Verschillende plannen en programma's van het BHG dragen bij tot de beperking van het stedelijke hi e-eilandeffect: WBP, PLAGE, Blauw netwerk, Groen Netwerk en Regennetwerk, GNP De toekoms ge Gemeentelijke Lucht-, Klimaaten Energieplannen beogen onder meer het planten van bomen langs de wegen en zullen in die zin een posi eve impact hebben op lange termijn (bijvoorbeeld het Bomenplan 2020-2023 van de Stad Brussel).

* Het plan Good Move voorziet in een voetgangersboulevard die de perimeter van het BBP doorkruist. Langs die boulevards moeten bomen en beplan ngen worden voorzien die een geïntegreerd regenwaterbeheer mogelijk maken.

* De ambi es van de gewestelijke instan es voor de herontwikkeling van de Noordwijk (notes Proximus en Ferraris) omva en vergroening en doorlatendheid: de wijk moet worden opgevat als een doorlopend park met geac veerde gebouwen; de wegen moeten zoveel mogelijk worden vergroend en de verschillende groene ruimten moeten in de mate van het mogelijke func oneel met elkaar worden verbonden; de openbare en privé-eigenaars worden aangemoedigd om na te denken over strategieën om meer volle grond te voorzien, eventueel door bepaalde kelderverdiepingen open te maken.

* Het CCN-gebouw maakt momenteel het voorwerp uit van studies voor een grondige verbouwing. Het deel a raak daarvan wordt momenteel onderzocht.

* In het kader van de CRU1 "Citroën - Vergote" wordt een project door BrusselMobiliteit bestudeerd voor de herinrich ng van de Bolivarlaan tussen de Willebroekkaai en de Antwerpsesteenweg, met een visie tot aan het Noordsta on. Dit project omvat groenaanleg langs de wegen om de con nuïteit van het Maximilienpark te verzekeren. Er zou ook sprake van zijn van de integra e van wadi’s.

Alterna ef 0 (bij behoud van het BBP):

* De grondinname en de hoogte van de gebouwen van de huizenblokken Proximus en North Galaxy zullen worden omkaderd door het BBP (zone voor laagbouw 13 m, zone voor gebouwen met middelma ge hoogte 23 m en zone voor hoogbouw 102 m). De GSV zal de hoogte bepalen van het CCN die niet wordt omkaderd door het BBP.

UITDAGINGEN

Uitdagingen die kunnen worden behandeld in het BBP:

* De kunstma ge bodems binnen de perimeter verminderen.

* Het hi e-eilandeffect in de openbare ruimte beperken: aanwezigheid van verschillende plantenlagen (evapotranspira e, schaduw), hoog weerkaatsingseffect van de materialen, vertraging van het regenwater om de verdamping ter plaatse ervan te bevorderen (bijvoorbeeld via de porositeit van de materialen);

* Het hi e-eilandeffect beperken ter hoogte van het perceel: beplan ng aan de gebouwen, hoog weerkaatsingsvermogen van de materialen, de gevelbekledingen;

* De impact en hinder van de wind beperken in de ruimten die toegankelijk zijn voor voetgangers: hoogte van de sokkel, organisa e van de bebouwde oppervlakte, opleggen van comfortdrempels voor ac eve/passieve voetgangers op sommige plaatsen of onder bepaalde voorwaarden;

* De slagschaduw veroorzaakt door gebouwen beperken: plaatsing van de hoge gebouwen ten opzichte van de openbare ruimten;

* De BKG-emissies verminderen (zie criterium Energie en het thema Mobiliteit).

Resultaat van de analyse van de windhinder in de geplande toestand (ZINproject)

Schaduwstudie op de winterzonnewende (13u) in de geplande toestand (ZIN-project)

* De Gemeente Schaarbeek werkt momenteel aan een klimaatplan en een beplan ngsplan.

* Het ZIN-project zal een zekere impact hebben binnen het BBP in die zin dat het voorziet in een wijziging van situa e op het vlak van bouwprofielen en plaatsing in een aanpalend huizenblok. De slagschaduwen en de impact op het vlak van wind zullen door deze ontwikkeling worden gewijzigd: de toevoeging van de centrale vleugel van het project zal meer slagschaduwen creëren op de gebouwen en op de naburige openbare ruimten (op het Maximiliaanpark in de voormiddag, op de sociale woningen van de Lakense Haard in de namiddag en op het huizenblok North Galaxy aan het eind van de dag). De andere lopende projecten (in de huizenblokken CCN en Proximus) zullen een waarschijnlijke impact hebben die nu nog niet kan worden geraamd.

* De aanwezigheid van beplan ng valt onder het BBP (30 % groene ruimten op of boven de grond voor de huizenblokken North Galaxy en Proximus) en het GBP (creëren van groene ruimte(n) voor 10 % van de grondoppervlakte van de projecten > 5000 m², in één of meerdere ruimten van minstens 500 m² elk).

Alterna ef 0+ (bij opheffing van het BBP):

* De hoogtes van de gebouwen worden omkaderd door de GSV. Omdat de GSV geen bijzonderheden behandelt voor hoge gebouwen en gebouwen die een huizenblok vormen, moet een specifieke evalua e worden verricht om de specifieke hoogtes van de gebouwen te bepalen (vooral voor het CCN-gebouw dat grenst aan het Noordsta on).

* De aanwezigheid van beplan ng valt onder meer onder het GBP (creëren van groene ruimte(n) voor 10 % van de grondoppervlakte van de projecten > 5000 m², in één of meerdere ruimten van minstens 500 m² elk).

* Bij nieuwe projecten kunnen achteruitbouwstroken en gebieden voor koeren en tuinen worden ontwikkeld. In dat geval zijn de desbetreffende bepalingen van de GSV en de GemSV van toepassing (bodemdoorlatendheid, beplan ng, volle grond...). *

REFERENTIE-INDICATOREN

Indicator Huidige waarde (BBP / uitgebreid BBP)

Aantal bomen 226 / 260

Verhouding beplante / niet-kunstma ge oppervlakken 10,7% / 6 %

Verhouding oppervlakken voor voetgangers op plaatsen met veel windhinder (moeilijk verenigbaar met wandelen en onverenigbaar met langdurig zi en: Klassen C-DE)

+/ 36%

LEEFMILIEU EN KLIMAAT Hoofdstuk II / Afdeling 2 Diagnose van de bestaande en tenden ële situa e / p. 73 MICROKLIMAAT

BESTAANDE RECHTSTOESTAND

Voorschri 0.2 van het GBP legt bij projecten met een grondoppervlakte > 5000m² de aanleg op van groene ruimten die minstens 10% van die grondoppervlakte beslaan, daarin begrepen één of meer groene ruimten uit één stuk met een grondoppervlakte van 500 m² elk.

Het BBP 19 legt voor huizenblok 71 30% groene ruimte op, op de grond of boven de grond. De delen van deze groene ruimten die op de begane grond zijn gelegen, moeten verplicht hoogstammige bomen beva en. De groene ruimten moeten worden aangelegd als tuintjes. Ondergrondse construc es zijn toegelaten als ze worden bedekt met een laag van minstens 50 cm teelaarde voorzien van grasperken en struikgewas. Deze beplante oppervlakte kan met maximaal 2/3 van de totale oppervlakte per gebouw worden verminderd voor de aanleg van toegangen tot de gebouwen en garages. In de feitelijke toestand wordt deze verplich ng niet nageleefd. De Gemeentelijke Stedenbouwkundige Verordening (GemSV) van Schaarbeek voorziet verschillende maatregelen om de bodemondoorlatendheid te verminderen en beplan ngen op te leggen (ar kelen 6 over de construc es in de ondergrond, ar kelen 38 tot 40 over de inrich ng van de directe omgeving van gebouwen).

BESTAANDE FEITELIJKE TOESTAND

Geologisch gezien ligt het BBP in de hydrogeologische eenheid 7b (Zand en klei van Moen aquitard) en in de stra grafische eenheid 72 (Zand en klei van Kortrijk (Lid van Moen), net zoals de hele Zennevallei. Het betre een heterogene afze ng van sil g tot kleihoudend en licht glauconiethoudend zand met enkele kleiige zones en vaak nummuliethoudend. Daardoor is deze forma e weinig doorlatend.

Wederaanvullingen zijn aanwezig in heel het dicht verstedelijkte gebied dat bovendien door verschillende nutsleidingen wordt doorkruist. Bovendien loopt de tunnel van de premetro onder het Noordplein, waar hij steunt op een basis die zich 10,5m onder het grondniveau bevindt. Deze ondergrondse netwerken worden in detail beschreven in het criterium Technische netwerken. In de jaren 80 kwam het bestaan van grote holtes in het talud in het perrongebied aan het licht door erns ge bodemdaling, verbonden aan de s jging van het grondwaterpeil als gevolg van het obstakel van de metrostructuur.

De gebouwen binnen het BBP omva en bovendien ook kelderverdiepingen: het CCNgebouw hee er 3, de Proximus-torens 3 en nog een 4de ter hoogte van de kernen van de torens en het hele perceel North Galaxy hee 4 kelderverdiepingen. De niveaus van het CCN kloppen niet met het niveau van de openbare ruimte, wat de aanwezigheid van een « kuip » impliceert ter hoogte van de bus-hub, tussen Bolivar en het sta on.

Onder de Koning Albert II-laan ligt een stormbekken met een capaciteit van 7500m3 .

Ook technische goten zijn aanwezig onder de Koning Albert II-laan en de Simon Bolivarlaan (zie criterium Technische netwerken).

Het studiegebied ligt op de oostelijke oever van de oude Zennebedding, in de laagste

« Kuip » aan de bus-hub

zones van het Gewest, met een hoogte die varieert tussen 16 en 24 m DNG. Op ruimere schaal vormt de spoorweg een breuk tussen twee soorten topografieën. Ten westen van de rails is het reliëf eerder regelma g, met een zeer lichte helling in westelijke rich ng naar de Zenne. Aan de overkant van de rails liggen steile hellingen op de Sint-Lazarusheuvel tot aan de Sint-Mariakerk, gelegen op 52 m hoogte.

De ondoorlatendheidsgraad van de wijk is zeer hoog: de grondinname van de gebouwen (torens, CCN en kunstwerk over de sporen) bedraagt 35% voor de perimeter van het BBP en 56% voor de perimeter van het uitgebreide BBP. Bovendien liggen de meeste onbebouwde ruimten in de ondergrond of zijn ze verhard (wegen...): meer dan 89% van de bodem is verhard in de perimeter van het BBP (en voor het uitgebreide BBP s jgt dit cijfer naar 94%).

Wat de bodemgezondheid betre , is het Proximus-perceel ingedeeld als mogelijk verontreinigd (categorie 0). De CCN-site is in de inventaris van de bodemtoestand opgenomen in categorie 0+4. Er werd immers een historische verontreiniging van het grondwater met chloorhoudende solventen gemeten en de site werd onderworpen aan een risicobeheer en aan een behandeling van beperkte duur. Het grondwater mag slechts beperkt worden gebruikt (afgravingen of bemaling).

De ondergrond van de site biedt een geothermisch poten eel ter hoogte van de zandforma es.

De manière générale, les caractéris ques géotechniques du complexe yprésien, dans lequel est situé le périmètre étudié, sont généralement bonnes et favorable à la réalisaon de construc ons en surface.

BUSINESS-AS-USUALSCENARIO

Plannen, programma's en projecten:

* Verschillende plannen en programma's van het BHG willen de ondoorlatendheidsgraad van de bodem beïnvloeden: WBP, PLAGE, blauw netwerk, groen netwerk en regennetwerk, GNP, Good Soil,

* De Good Soil -strategie die momenteel wordt uitgewerkt bij Leefmilieu Brussel stelt zich tot doel om de ecosysteemdiensten die worden verleend door de bodem te evalueren en herwaarderen en om de bodems in het BHG beter te beheren en te beschermen, rekening houdend met hun chemische, fysische maar vooral biologische kenmerken. De Good Soil-uitdagingen in dit BBP betreffen vooral de noodzaak om gronden zoveel mogelijk te ontharden zodat de bodem een hele reeks ecosystemische diensten kan leveren (beheer van het water, natuur/biodiversiteit, koelteeilanden,…).

* De nota's voor de percelen Proximus en Ferraris omva en vergroening en doorlatend-

heid: de wijk moet worden opgevat als een doorlopend park met geac veerde gebouwen; de wegen moeten zoveel mogelijk worden vergroend en de verschillende groene ruimten moeten in de mate van het mogelijke func oneel met elkaar worden verbonden; de openbare en privé-eigenaars worden aangemoedigd om na te denken over strategieën om meer volle grond te voorzien, eventueel door bepaalde kelderverdiepingen open te maken; de mogelijkheden moeten worden onderzocht om geothermische systemen te voorzien die zijn geïntegreerd in het gebouw en op het perceel moet een geïntegreerd regenwaterbeheer worden voorzien..

* Het ZIN-project voorziet in de benu ng van het geothermisch poten eel van de bodem (zie criterium Energie). Het peil en de temperatuur van het grondwater van de forma e Hannut zullen de invloed ondergaan van deze installa e: op 100 m van de site zal de invloed op de temperatuur lager zijn dan 2,5°C en de wijziging van het grondwaterpeil kleiner dan 2 m.

* Het CCN-gebouw maakt momenteel het voorwerp uit van studies voor een grondige verbouwing. Het deel a raak daarvan wordt momenteel onderzocht.

Alterna ef 0 (bij behoud van het BBP):

* De grondinname van de construc es worden geregeld door het BBP.

* De aanwezigheid van beplan ng valt onder het BBP (30 % groene ruimten op of boven de grond voor de huizenblokken North Galaxy en Proximus, met vermindering tot 2/3 voor de toegang tot de gebouwen en garages) en het GBP (creëren van groene ruimte (n) voor 10 % van de grondoppervlakte van de projecten > 5000 m², in één of meerdere ruimten van minstens 500 m² elk).

Alterna ef 0 (bij behoud van het BBP):

* De aanwezigheid van beplan ng valt onder meer onder het GBP (creëren van groene ruimte(n) voor 10 % van de grondoppervlakte van de projecten > 5000 m², in één of meerdere ruimten van minstens 500 m² elk).

* Bij nieuwe projecten kunnen achteruitbouwstroken en gebieden voor koeren en tuinen worden ontwikkeld. In dat geval zijn de desbetreffende bepalingen van de GSV en de GemSV van toepassing (bodemdoorlatendheid, beplan ng, volle grond...).en regelen zij de grondinname van de construc es.

UITDAGINGEN

Uitdagingen die kunnen worden behandeld in het BBP:

* De bodem meer ontharden en meer beplan ng in volle grond voorzien op de percelen en in de openbare ruimte.

* Rekening houden met de grenzen van het geothermisch poten eel van het gebied (wijziging van het peil en de temperatuur van de te monitoren grondwaterlaag).

* Rekening houden met de uitvoerbaarheid van de verankering van hoge gebouwen in de bodem, a ankelijk van de aard en het gebruik van de bodem.

REFERENTIE-INDICATOREN

Indicator

Ondoorlatendheid

Huidige waarde (BBP / uitgebreid BBP)

89 % / 94 %

Aantal percelen opgenomen in de inventaris van de bodemtoestand per categorie Cat. 0: 1 perceelCat. 0+4: 1 / 2 percelen

LEEFMILIEU EN KLIMAAT Hoofdstuk II / Afdeling 2 Diagnose van de bestaande en tenden ële situa e / p. 74
BODEM
Reliëf 10 m 130 m 18 m 24 m 16 m 52 m
Bodemtoestand (Leefmilieu Brussel, 2021)

BESTAANDE RECHTSTOESTAND

De middenbermen van de Albert II-laan zijn in het GBP opgenomen als parkgebied. Ze moeten dus worden bestemd voor beplan ng, waterpar jen en ontspanningsvoorzieningen en ze moeten een sociale, recrea eve, pedagogische, landschappelijke of ecologische rol vervullen.

Voorschri 0.2 van het GBP legt bij projecten met een grondoppervlakte > 5000m² de aanleg op van groene ruimten die minstens 10% van die grondoppervlakte beslaan, daarin begrepen één of meer groene ruimten uit één stuk met een grondoppervlakte van 500 m² elk.

Titel I van de GSV legt op om ontoegankelijke daken van meer dan 100 m² in te richten als groene daken. Titel VII bevat eisen voor hoogstammige bomen langs de openbare weg, de minimumafstand tussen de bomen en de gevels en de verkeerszones, de minimumafme ngen van de plantput en de doorlatende oppervlakte die minstens moet worden voorzien aan de voet van de boom.

De Gemeentelijke Stedenbouwkundige Verordening (GemSV behandelt thema's die te maken hebben met de milieukwes es en het waterbeheer. De ar kelen 38 tot 40 hebben betrekking op de inrich ng van de naaste omgeving (als tuintjes met dus beperkte ondoorlatendheid...), ar kel 41 op de beplan ngen (vrijwaring van hoogstammige bomen, bevordering van inheemse soorten en diversiteit), ar kel 35 op de regenwateropvang (kenmerken van het opvangsysteem...) en ar kel 9 bepaalt dat daken van meer dan 20m² moeten worden ingericht als groene daken.

De perimeter bevat geen beschermde/opmerkelijke natuurlijke elementen.

Het BBP 19 legt voor de huizenblokken Proximus en North Galaxy 30 % groene ruimte op, op de grond of boven de grond. De delen van deze groene ruimten die op de begane grond zijn gelegen, moeten verplicht hoogstammige bomen beva en. De groene ruimten moeten worden aangelegd als tuintjes. Ondergrondse construc es zijn toegelaten als ze worden bedekt met een laag van minstens 50 cm teelaarde voorzien van grasperken en struikgewas. Deze beplante oppervlakte kan met maximaal 2/3 van de totale oppervlakte per gebouw worden verminderd voor de aanleg van toegangen tot de gebouwen en garages. De acheruitbouwstroken moeten deze bestemming als tuintje behouden. In de feitelijke toestand worden deze verplich ngen niet nageleefd.

BESTAANDE FEITELIJKE TOESTAND

Wat het Brusselse Ecologische Netwerk betre , zijn de enige elementen die ac ef moeten bijdragen tot de bescherming en het behoud van de biodiversiteit de ruimten met volle grond van de koning Albert II-laan, die worden beschouwd als verbindingszones. De ecologische context is globaal gezien zeer arm in de directe omgeving van het sta on Brussel-Noord. De stedelijke druk op dit intermodale knooppunt is bijzonder hoog. Ongeveer 11 % van de perimeter van het BBP ligt op volle grond en iets meer dan 7 % beschikt over beplan ng op plaat (en deze cijfers dalen respec evelijk tot 6% en 3,5 % voor het uitgebreide BBP). De vergroening van de huizenblokken is dan ook vrij beperkt (5 à 10 %). De ramingen voor de BAF+ per huizenblok, gerealiseerd door Leefmilieu Brussel, beves gen dit. De waarde varieert van 0 tot 0,13 voor de huizenblokken die worden gedekt door het BBP. Voor de hele perimeter van het BBP bedraagt de BAF+ 0,13 (en 0,07 voor de perimeter het uitgebreide BBP. De versnippering en de beperkte omvang van de plantaardige elementen bieden dus geen al te hoog biologisch belang voor de wijk.

De beplan ng in volle grond is in de perimeter van het BBP vooral geconcentreerd langs de wegenassen: bomenrijen aan weerszijden van het voorplein van het CCN-gebouw in de Simon Bolivarlaan (een veer gtal bomen, vooral judasbomen en valse christusdoorn met een hoogte die varieert van 3 tot 15 m), grasvelden met laanbomen (een veer gtal bomen, vooral Noorse esdoorn en platanen met een hoogte van 7 tot 13 m) op het Sol-

vayplein en beboomde grasvelden in het centrale deel van de Koning Albert II-laan (ongeveer 150 bomen (en ongeveer 500 in de hele laan), vooral valse christusdoorn, zomereiken en bijenbomen met een hoogte van 6 en 15 m).

Beplan ng boven de grond is vooral aanwezig in de directe omgeving van en op de gebouwen: sierperken rond het huizenblok Proximus (laurierkers en enkele struiken aan de kant van Bolivar en Vooruitgang), plantenbakken op het Solvayplein (heesters), perken rond de North Galaxy-torens (heesters in de Bolivarlaan en grasplanten aan de kant van Albert II/Solvay) en op de lage pla e daken van het huizenblok North Galaxy (lage planten en strikte hagen).

De avifauna die in de wijk wordt waargenomen bestaat uit huismussen, gierzwaluwen, zwarte roodstaarten en grote gele kwikstaarten (Leefmilieu Brussel, sinds 2001). Deze soorten zijn vrij klassiek in een stedelijk milieu. De laanbomen in de Koning Albert II-laan bieden een toevluchtsoord voor de vogels.

Plantaardige elementen van het lokale ecologische netwerk (op basis van terreinme ngen en cartografische gegevens van Leefmilieu Brussel en van het CIBG).

LEEFMILIEU EN KLIMAAT Hoofdstuk II / Afdeling 2 Diagnose van de bestaande en tenden ële situa e / p. 75 ECOLOGISCHE NETWERKEN

BUSINESS-AS-USUALSCENARIO

* De toenemende verstedelijking, de bevolkingsgroei, de vervuiling en de klimaatopwarming bedreigen de natuur en de biodiversiteit: a akeling, versnippering en verlies van habitats.

Plannen, programma's en projecten:

* Heel wat gewestelijke plannen en programma's (Natuurplan, Groen en Blauw Netwerk, GPDO, Waterbeheersplan, Lucht-, Klimaat- en Energieplan) bepalen doelstellingen en maatregelen ten gunste van de ontwikkeling en bescherming van de natuur.

* Het GPDO plaatst de perimeter van het BBP in de prioritaire vergroeningszone

Het stelt ook dat de versterking van het groene netwerk de kwalita eve en kwan ta eve ontwikkeling omvat van de openbare ruimten, van hun omgeving en van de structurerende assen die hen verbinden.

* De Proximus nota omvat vergroening en doorlatendheid: de wijk moet worden opgevat als een doorlopend park met geac veerde gebouwen; de wegen moeten zoveel mogelijk worden vergroend (bijvoorbeeld de Albert II-laan, de Antwerpsesteenweg en de Vooruitgangstraat) en de verschillende groene ruimten (Maximiliaan, Albert II, Gaucheret en Kruidtuin) moeten in de mate van het mogelijke func oneel met elkaar worden verbonden; de openbare en privéeigenaars worden aangemoedigd om na te denken over strategieën om meer volle grond te voorzien, eventueel door bepaalde kelderverdiepingen open te maken.

Een van de prioriteiten die in de nota vermeld staat is het creëren van kwaliteitsvolle open ruimten op het perceel die (visueel) zijn verbonden met de openbare ruimte: voorgestelde vermindering van de grondinname van 70%. Deze ruimten worden bij voorkeur ook doorlatend gemaakt of met volle grond waar mogelijk (bijvoorbeeld op de hoek Bolivarlaan/Vooruitgangstraat waar geen ondergrondse parking ligt).

* Het Beeldkwaliteitsplan (BKP) gee aan dat de grote ecologische gehelen, onder meer het kanaal, de Zenne en de spoorwegtaluds, zoveel mogelijk met elkaar moeten worden verbonden. De Bolivarlaan is erin opgenomen als een straat die uitkomt op het kanaal en wordt gekenmerkt als een landschappelijke as en as voor ac eve verplaatsingswijzen. Ze moet onder meer beantwoorden aan de doelstelling om het groene karakter te versterken.

* Het Bomenplan 2020-2030 van de Stad Brussel is erop gericht om het bestaande bomenerfgoed te vrijwaren en uit te breiden en zal tot het ecologische netwerk bijdragen aan de andere kant de gemeentegrens (zuiden en westen van de Koning Albert II-laan, Bolivarlaan).

* De Gemeente Schaarbeek werkt aan een beplan ngsplan voor de wegen en wil dus de plaats van de natuur in de openbare ruimte versterken.

* Het plan Good Move voorziet in een voetgangersboulevard die de perimeter van het BBP doorkruist. Langs die boulevards moeten bomen en beplan ngen wor-

den voorzien die een geïntegreerd regenwaterbeheer mogelijk maken.

* Het ZIN-project creëert beplante ruimten boven de grond: de Serre (1.066 m² met een substraatdiepte van 0,6m tot 1,2m), een beplant terras op de middenvleugel (540m², substraatdikte maximaal 1m ter hoogte van de bomen); nieuwe perkenkleiner dan de bestaande zullen worden aangeplant aan de kant van de Bolivarlaan (structurerende soorten in het GBP). Op de balkons aan de westkant worden ook plantenbakken voorzien. Alleen die van de kantoren zullen worden beheerd door het centrale besproeiingssysteem. De effectenstudie beveelt met name aan om de beplante oppervlakken te herzien en rekening te houden met voorschri 0.2 van het GBP.

* Het Stadsvernieuwingscontract SVC1, "Citroën - Vergote" voorziet in de heraanleg van het Maximiliaanpark met herontwikkeling van de Bolivar-as tussen de Willebroekkaai en de Antwerpsesteenweg, met een visie tot aan het Noordsta on. In het verlengde van dit project wil Brussel Mobiliteit deze as heraanleggen met naleving van het plan Good Move: een echte open ruimte die is opengesteld voor de wijk, verbonden met het kanaal, met beplan ngen langs de weg (en misschien ook wadi’s) om de landschappelijke en plantaardige con nuïteit van het Maximiliaanpark te garanderen tot aan het CCN-gebouw.

* Het SVC2 "Brabant Sint-Lazarus" beoogt de ontwikkeling van de biodiversiteit op de spoorwegtaluds en de sensibilisering tot beplan ng van de gevels en daken. Bovendien zal een crècheproject met een kleine tuin met een opmerkelijke boom worden ontwikkeld in de Aarschotstraat, aan het kruispunt met de d'Hoogvorststraat.

* Door de ves ging van de terminus van de toekoms ge tram van De Lijn in de Koolbrandersstraat zal waarschijnlijk de beplante middenberm moeten verdwijnen, a ankelijk van het dwarsprofiel dat zal worden weerhouden.

CCN-gebouw maakt momenteel het voorwerp uit van studies voor een grondige verbouwing. Het deel a raak daarvan wordt momenteel onderzocht.

Alterna ef 0 (bij behoud van het BBP):

De grondinname van de construc es wordt geregeld door het BBP.

De aanwezigheid van beplan ng valt onder het BBP (30 % groene ruimten op of boven de grond voor de huizenblokken North Galaxy en Proximus, met vermindering tot 2/3 voor de toegang tot de gebouwen en garages) en het GBP (creëren van groene ruimte(n) voor 10 % van de grondoppervlakte van de projecten > 5000 m², in één of meerdere ruimten van minstens 500 m² elk).

Alterna ef 0 (bij behoud van het BBP):

De aanwezigheid van beplan ng valt onder meer onder het GBP (creëren van groene ruimte(n) voor 10 % van de grondoppervlakte van de projecten > 5000 m², in één of meerdere ruimten van minstens 500 m² elk).

Bij nieuwe projecten kunnen achteruitbouwstroken en gebieden voor koeren en tuinen worden ontwikkeld. In dat geval zijn de desbetreffende bepalingen van de GSV en de GemSV van toepassing (bodemdoorlatendheid, beplan ng, volle grond...).

UITDAGINGEN

Uitdagingen die kunnen worden behandeld in het BBP:

* De bestaande beplante zones behouden en hun onthaalcapaciteit voor biodiversiteit verbeteren

* Nieuwe beplante zones ontwikkelen in de openbare ruimte en op de percelen.

* Het groene en ecologische netwerk vormen met de omliggende groene ruimten.

REFERENTIE-INDICATOREN

Indicator Huidige waarde (BBP / uitgebreid BBP)

Waarde BAF+ 0,13 / 0,07

Aantal bomen 226 / 260

Verhouding beplante zone

Volle grond: 10,8 % / 6% Boven de grond: 7,3 % / 3,5 %

LEEFMILIEU EN KLIMAAT Hoofdstuk II / Afdeling 2 Diagnose van de bestaande en tenden ële situa e / p. 76 ECOLOGISCHE NETWERKEN

BESTAANDE RECHTSTOESTAND

* Voorschri 0.2 van het GBP legt bij projecten met een grondoppervlakte > 5000m² de aanleg op van groene ruimten die minstens 10% van die grondoppervlakte beslaan, daarin begrepen één of meer groene ruimten uit één stuk met een grondoppervlakte van 500 m² elk.

* Titel I van de GSV legt op om ontoegankelijke daken van meer dan 100 m² in te richten als groene daken. Regenwater moet bij voorrang worden opgevangen in een regenwaterput (min. 33 L/m² dakoppervlakte in horizontale projec e).

* De Gemeentelijke Stedenbouwkundige Verordening (GemSV) bevat eisen op het vlak van regenwater: de put moet een opslagvolume hebben van 17 L/m² dakoppervlakte in horizontale projec e, bovenop de 33 liter die al is opgelegd; bovendien moet de put worden aangesloten op één of meerdere waterpunten (sanitair, kraan, elektrisch toestel) binnen of buiten het gebouw. De GemSV voorziet ook groene daken op nieuwe pla e daken vanaf 20 m².

BESTAANDE FEITELIJKE TOESTAND

Lokale hydrogeologie

Het BBP is gelegen in de hydrogeologische eenheid 7b (Zand en klei van Moen aquitard). Het frea sch vlak van de minst diepe laag (alluviale laag van de Zennevallei in de heterogene forma es van het Quartenair) ligt ter hoogte van de perimeter van het BBP tussen 2 en 8 m diepte. Deze alluviale laag wordt echter te sterk gecomparmenteerd door de verstedelijking om als een volwaardige watermassa te kunnen worden beschouwd: de stroomrich ng van het grondwater wordt her en der afgeleid vanwege de lokale verstoring door de vele ondergrondse infrastructuren. In de ondergrondse verdieping van het CCN-gebouw en in de premetrotunnel (op –3) maken pompen het mogelijk om het geïnfiltreerde grondwater te draineren (~14,5 m³/dag) via drainerende muren (gegoten wanden) en in de openbare riolering te lozen. Ook voor het Proximus-gebouw wordt het water dat doorheen de muren van de kelderverdiepingen dringt verzameld en naar de riolering gepompt. Voor North Galaxy zijn geen drainagegegevens beschikbaar.

Binnen de perimeter van het BBP wordt geen enkele grondwateropvang (sokkel, Krijt en Landeniaan) geëxploiteerd waarvoor een vergunning is vereist. In de omliggende wijk worden vier jdelijke ac eve opvangen genoemd, zonder vrijwaringszone.

Oppervlaktewater

De dichtstbij gelegen waterloop is het kanaal op ongeveer 500 m ten westen van de site. De Zenne stroomt in een koker onder het Maximiliaanpark. Binnen de perimeter van het BBP zijn bovendien ook gemineraliseerde waterpar jen aanwezig: waterspiegels op de rotonde Bolivar/Albert II en aan de ingangen van de torens Proximus en North Galaxy.

Regenwater

De topografie vertoont een lage helling in westelijke rich ng naar het kanaal BrusselCharleroi (oude Zennebedding). De natuurlijke rich ng van het hemelwater gaat in de richng van het kanaal.

De site is gelegen in een gebied met laag tot ma g overstromingsgevaar. Aan de kant van de Aarschotstraat is het overstromingsgevaar hoog, waarschijnlijk vanwege de stroming die wordt gegenereerd door de Sint-

Lazarusheuvel en lokaal wordt tegengehouden door het kunstwerk aan de spoorweg. Het CCN-gebouw en de Proximustoren beschikken niet over regenopvangpu en, stormbekkens of andere voorzieningen die het water opvangen. In de kelderverdiepingen van het huizenblok North Galaxy daarentegen is een put van 100 m³ aanwezig.

De ondoorlatendheidsgraad van de site is bijzonder hoog (89 % voor het BBP en 94 % voor het uitgebreide BBP). De wegen zijn voorzien van afvoerkolken die zijn verbonden met het rioleringsnet. Door het feit dat het frea sch grondwateroppervlak op lage diepte is gelegen, gekoppeld aan het feit dat de bodem door de verstedelijking wederaanvullingen en verstoringen hee ondergaan, kunnen we veronderstellen dat de infiltra e langzaam verloopt (poten eel lange ledigings jd).

Afvalwater(voor meer details over het netwerk, zie het criterium Technische netwerken)

Het openbare rioleringsnet is van het unitaire type (vermenging van regenwater en afvalwater). Op de site wordt hoofdzakelijk huishoudelijk afvalwater gegenereerd. De sector van het sta on Brussel-Noord is gelegen in het subbekken voor de opvang van afvalwater van het waterzuiveringssta on (RWZI) Noord.

Volgens onze uitwisselingen met de NMBS zou onder het Noordsta on een ander stormbekken aanwezig zijn, dat niet in het plan is opgenomen.

BUSINESS-AS-USUALSCENARIO

* De klimaatopwarming induceert een verhoogd overstromingsgevaar vanwege de heviger en frequentere regenval en onweders.

Plannen, programma's en projecten:

* De verschillende gewestelijke doelstellingen van de gewestelijke plannen en programma's beogen een verbetering van de overstromingspreven e, de waterkwaliteit, de hoeveelheid grondwater, ra oneel watergebruik: het Waterbeheersplan, het Lucht-, Klimaat- en Energieplan, de programma's Blauw Netwerk, Groen Netwerk, Regennetwerk. Het blauwe netwerk wil met name de kanaalzone herwaarderen en de Zenne in het Maximiliaanpark openleggen (zone voor stedelijke herwaardering van de Zenne in het GPDO). Daarvoor wordt in 2023 het project Max aan de Zenne gestart.

* Het plan Good Move voorziet in een voetgangersboulevard die de perimeter van het BBP doorkruist. Langs die boulevards moeten bomen en beplan ngen worden voorzien die een geïntegreerd regenwaterbeheer mogelijk maken.

* Het Beeldkwaliteitsplan (BKP) is het plan voor landschappelijke en stedenbouwkundige kwaliteit voor het kanaalgebied. De Bolivarlaan is erin opgenomen als een straat die uitkomt op het kanaal, gekenmerkt als landschappelijke as en as voor aceve verplaatsingswijzen. Ze moet dus onder meer beantwoorden aan de volgende doelstelling: waar mogelijk een duurzaam waterbeheer voorzien met een 'bovengronds' regennet dat ervoor zorgt dat het regenwater wordt gebufferd en kan afvloeien naar het kanaal of de Zenne.

* De visie voor de herontwikkeling van de Noordwijk (notas Proximus en Ferraris) omva en vergroening en doorlatendheid: de wijk moet worden opgevat als een doorlopend park met geac veerde gebouwen; de wegen moeten zoveel mogelijk worden vergroend en de verschillende groene ruimten moeten in de mate van het mogelijke func oneel met elkaar worden verbonden; de openbare en privéeigenaars worden aangemoedigd om na te denken over strategieën om meer volle grond te voorzien, eventueel door bepaalde kelderverdiepingen open te maken; op het perceel moet een geïntegreerd regenwaterbeheer worden voorzien..

sesteenweg, met een visie tot aan het Noordsta on. Brussel Mobiliteit wil deze as heraanleggen als een echte open ruimte die is opengesteld voor de wijk, verbonden met het kanaal, met beplan ng langs de wegen, en integra e van wadi’s.

* De installa e van open geothermische systemen in de renova eprojecten van de Noordwijk (bijvoorbeeld het ZIN-project) zullen het peil en de temperaturen van het grondwater wijzigen.

* De toekoms ge projecten voor de huizenblokken CCN en Proximus impliceren een poten ële toename van het aantal gebruikers, wat een impact kan hebben op de geloosde watervolumes.

* Het lopende project van de tunnel Metro Noord impliceert een permanente oppomping van het grondwater. Er zal een afvalwaterzuiveringsinstalla e worden gebouwd voor de behandeling van het opgepompte water.

Alterna ef 0 (bij behoud van het BBP):

* De aanwezigheid van beplan ng valt onder het BBP (30 % groene ruimten op of boven de grond voor de huizenblokken North Galaxy en Proximus, met vermindering tot 2/3 voor de toegang tot de gebouwen en garages) en het GBP (creëren van groene ruimte(n) voor 10 % van de grondoppervlakte van de projecten > 5000 m², in één of meerdere ruimten van minstens 500 m² elk).

Alterna ef 0 (bij behoud van het BBP):

* De aanwezigheid van beplan ng valt onder meer onder het GBP (creëren van groene ruimte(n) voor 10 % van de grondoppervlakte van de projecten > 5000 m², in één of meerdere ruimten van minstens 500 m² elk).

* Bij nieuwe projecten kunnen achteruitbouwstroken en gebieden voor koeren en tuinen worden ontwikkeld. In dat geval zijn de desbetreffende bepalingen van de GSV en de GemSV van toepassing (bodemdoorlatendheid, beplan ng, volle grond...).

UITDAGINGEN

Uitdagingen die kunnen worden behandeld in het BBP:

* Het waterbeheer in de openbare ruimte herbekijken: de bodems ontharden (meer oppervlakten met volle grond en bij voorkeur poreuze/drainerende grondbedekkingen) en dus de afwatering versterken en het regenwaterbeheer in situ, in de open lucht verbeteren.

* Helder water lozen in de weer opengelegde Zenne, met naleving van de doelstellingen inzake waterkwaliteit.

* Het waterbeheer op schaal van de percelen herbekijken: opslag, buffering, hergebruik (grijs water, regenwater, drainagewater)

* Gescheiden netwerken ontwikkelen op de openbare weg en in de gebouwen en een toepassing voorzien voor het in de ondergrond opgepompte water: het deel dat niet ter plaatse kan worden gebruikt doen afvloeien naar de Zenne.

* De waterkwaliteit verbeteren.

REFERENTIE-INDICATOREN

Indicator Huidige waarde (BBP / uitgebreid BBP)

Ondoorlatendheid 89 % / 94 %

Overstromingsgevaar (Leefmilieu Brussel, 2019)

* Het Stadsvernieuwingscontract SVC1, "Citroën - Vergote" voorziet in de heraanleg van het Maximiliaanpark met herontwikkeling van de Bolivar-as tot aan de Antwerp-

Verhouding grondinname van de construc es (op en boven de grond) 24% / 61%

LEEFMILIEU EN KLIMAAT Hoofdstuk II / Afdeling 2 Diagnose van de bestaande en tenden ële situa e / p. 77 WATER

BESTAANDE RECHTSTOESTAND / BESTAANDE FEITELIJKE TOESTAND Verbruik

In Brussel zijn de directe BKG-uitstoten (vooral CO2) hoofdzakelijk a oms g van de verbrandingsprocessen die fossiele brandstoffen gebruiken. De verwarming van de gebouwen voert de ranglijst aan, gevolgd door het wegverkeer. In de perimeter zijn de energiepresta es van de vrij oude gebouwen laag en het energieverbruik

bijgevolg hoog. Het energieverbruik voor klimaatregeling en verlich ng van de perimeter is vooral verbonden aan de

* handelszaken in het sta on en in het CCN,

* het oppompen van het grondwater (drainering, zie criterium Water),

* de kantoren (torens Proximus en North Galaxy en een deel van het CCN)

Onderstaande tabel toont de referen ewaarden voor het verbruik van de openbare kantoorgebouwen >10 000 m² en de raming van het energieverbruik verbonden aan de kantoren in de perimeter van het BBP (bij volledige beze ng in de huidige toestand). Er dient opgemerkt dat uit de studies over het WTC II is gebleken dat het elektriciteits- en primaire energieverbruik respec evelijk 29 à 24 % hoger ligt dan deze gemiddelden. Deze ramingen zijn dus minimalis sch.

Referen ewaarden Raming voor de kantoren van het BBP (~288 000 m²)

Daarmee moet rekening worden gehouden bij de installa e van de zonnepanelen. De bodem biedt een geothermisch poten eel door de aanwezigheid van het aquifeer van de zandforma es van Hannut (7,5m dik ter hoogte van de site). De gebruikslimieten van de grondwaterlaag zijn momenteel niet bekend, ze moeten worden geverifieerd in samenwerking met Leefmilieu Brussel.

BUSINESS-AS-USUALSCENARIO

* Voorspelbare verhoging van de temperaturen als gevolg van de globale klimaatopwarming

Plannen, programma's en projecten:

* Een van de doelstellingen van het GPDO (Pijler 2 strategie 6) is: "De energievraag beheersen en hernieuwbare energie ontwikkelen".

* De Klimaatordonnan e bepaalt de doelstellingen van het Gewest inzake de vermindering van broeikasgassen, namelijk minstens: - 40% in 2030 (doelstelling van het Na onaal Energie- en Klimaatplan (NEKP)), -67% in 2040 en - 90% in 2050 ten opzichte van 2005 (doelstelling van de Na onale Langetermijnstrategie voor het Gewest)". Ze bepaalt de volgende doelstellingen van de Brusselse renova estrategie tegen 2050: het gemiddelde verbruik van primaire energie voor de residen ële gebouwen op het gewestelijke grondgebied bedraagt 100 kWh/m²/jaar; de teraire gebouwen op het gewestelijke grondgebied streven naar energieneutraliteit voor verwarming, sanitaire warmwaterproduc e, koeling, verlich ng en elektriciteit. De verschillende beleidslijnen en maatregelen nodig om het streefdoel 2030 en de doelstellingen van de renova estrategie te bereiken, zijn vastgelegd in het NEKP. Dat mikt op de sectoren die de meeste broeikasgassen en vervuilende stoffen uitstoten (bouw, transport, enz.) en moedigt aan tot de produc e van hernieuwbare energie. Ook het Lokaal Ac eplan voor Energiebeheer (PLAGE) is een he oom waarmee het Gewest zijn verbintenissen zal kunnen respecteren. De eigenaars van grote vastgoedparken worden aangemoedigd om het energieverbruik van hun gebouwen te verminderen.

water wordt niet voor andere doeleinden gebruikt. Bij de dimensionering van de geothermie wordt rekening gehouden met een temperatuurverschil tussen het opgevangen en het geloosde water van 4°C. Het peil en de temperatuur van het grondwater in de forma e van Hannut zelf ondergaan de invloed van deze geothermische installa e (op 100m van de site: invloed op de temperatuur <2,5°C; wijziging van het peil <2m.).

* De Noordwijk werd geselecteerd om het eerste PED (Posi ve Energy District) van Brussel te worden. Bedoeling is om het verbruik, de opslag en de produc e van energie op een gecoördineerde manier te op maliseren op schaal van de wijk.

* Vanwege de geleidelijke veralgemening van elektrische bussen zullen op het Brusselse grondgebied oplaadpalen moeten worden geïnstalleerd. De MIVB en De Lijn willen deze palen plaatsen op de site van het Noordsta on. De huidige Brusselse wetgeving laat niet toe om ze in de ondergrond te plaatsen.

* Het CCN-gebouw maakt momenteel het voorwerp uit van studies voor een grondige verbouwing. Het deel a raak daarvan wordt momenteel onderzocht.

Alterna ef 0 (bij behoud van het BBP):

Geen verandering van de toestand.

Alterna ef 0 (bij behoud van het BBP):

Geen verandering van de toestand.

UITDAGINGEN

Uitdagingen die kunnen worden behandeld in het BBP:

* Bijdragen tot de tenuitvoerlegging van de strategie voor de vermindering van de milieu-impact van de bestaande bebouwing in het BHG tegen 2030-2050, volgens wat is voorzien in het kader van de visie voor het Territorium Noord:

▪ De renova e van de gebouwen volgens de doelstellingen van de strategie smuleren;

De luch hermografie verricht door Leefmilieu Brussel is in dit geval niet erg relevant. Ze werd immers uitgevoerd 's nachts aan het einde van het jaar, terwijl deze periode en deze uurregeling in de kantoren niet worden gebruikt.

De andere energieverbruiksposten in het BBP zijn de openbare verlich ng en het vervoer (Noordsta on en premetro- en bussta ons voor de MIVB en De Lijn).

Wat de passieve zonnewinst in de winter betre , merken we vooral op dat de Proximus-toren voor schaduw zorgt op de lagere verdiepingen van de North Galaxyeilandjes en dat de CCN voor schaduw zorgt op enkele lagere verdiepingen van de Amelinckx-toren.

Energieproduc e

Het Proximusgebouw is het enige gebouw binnen het BBP dat is voorzien van zonnepanelen. Het zonpoten eel van de huizenblokken van het BBP is gezien de vele pla e daken bijzonder groot: de zonnekaart raamt de buikbare oppervlakte op ongeveer 12 000 m² voor het huizenblok North Galaxy en 10 000 m² voor het CCN, zodat collec eve of industriële installa es kunnen worden vooropgesteld. Bijzondere aandacht moet echter worden besteed aan het feit dat de wijk veel hoge gebouwen telt die dus aanzienlijk veel slagschaduw creëren (zie criterium Microklimaat).

* Voor de openbare ruimte is ook het Lichtplan ontworpen als een voluntaris sch referen emiddel om de technologische doorbraken te introduceren op het vlak van verlich ng, met het doel het energieverbruik te verminderen en de beheerstechnieken te op maliseren.

* Volgens de nota's voor Proximus en Ferraris omva en de gewestelijke ambi es voor de herontwikkeling van de Noordwijk het s muleren van de circulaire economie en de bouwmethodes, incl. strategieën voor duurzame energie. Het komt erop aan om de voorkeur te geven aan renova e boven a raak, de EPB te verbeteren en de behoe e aan klimaatregeling te verminderen, het hergebruik van materialen te bevorderen en duurzame mobiliteitsvormen te vergemakkelijken.

* De visie voor het Territorium Noord stree naar meer gemengdheid van func es. Het toekoms ge verbruik zal dus a angen van de projecten die er worden ontwikkeld en variëren naargelang de bestemming (huisves ng, voorzieningen, kantoren, economische ac viteiten, handelszaken...), maar ook naargelang de groo e van de appartementen, de gebruikte technologieën, enz.

* Het ZIN-project voorziet in de benu ng van het geothermisch poten eel van de bodem. Er zal een open geothermisch systeem worden geïnstalleerd voor de verwarming van het kantoorgedeelte met een water/water warmtepomp. De koeling zal gebeuren door geo-cooling. Het systeem omvat 8 boringen voor het pompen en 8 voor het opnieuw injecteren, met een totaal debiet van 80m3/u. Het opgevangen

▪ Warmte- en elektriciteitsproduc e uit hernieuwbare bronnen bevorderen in de bebouwing, wanneer dat de energiepresta es verbetert.

* Het energieverbruik verminderen

▪ door het gebruik van de zachte verplaatsingswijzen te s muleren ten koste van de auto (zie thema Mobiliteit);

▪ door bij de organisa e van de bebouwing rekening te houden met de oriënta e en de compactheid van de gebouwen;

▪ door bij de renova e/bouw (gebouwschillen, voorzieningen) de huidige energiestandaards te respecteren of beter te doen dan deze standaards.

REFERENTIE-INDICATOREN

Indicator

Verhouding gebouwen die voldoen aan de geldende EPB

-standaards

geproduceerde kW binnen de perimeter

Huidige waarde (BBP / uitgebreid BBP)

0 %

Produc e Proximus (info momenteel niet beschikbaar)

LEEFMILIEU EN KLIMAAT Hoofdstuk II / Afdeling 2 Diagnose van de bestaande en tenden ële situa e / p. 78 ENERGIE
Elektriciteit 102 kWh/m².jaar 29 376 000 kWh/jaar Gas 70 kWh/m².jaar 20 160 000 kWh/jaar Primaire energie 325 kWh/m².jaar 93 600 000 kWh/jaar

CIRCULARITEITÊVANÊDEÊMATERIALENÊ/ÊINKOMENDEÊMATERIALEN

BESTAANDEÊRECHTSTOESTAND

* HetÊBrusselsÊbesluitÊbetreffendeÊhetÊbeheerÊvanÊafvalstoffenÊ"Brudalex"ÊbepaaltÊ inÊzijnÊTitelÊIIÊhetÊprincipeÊvanÊdeÊuitgebreideÊproducentenverantwoordelijkheid:Ê voorÊsommigeÊafvalstromenÊverplichtÊdeÊwetÊdeÊproducentÊofÊdeÊinvoerderÊomÊ deÊafvalstoffenÊvanÊdeÊproductenÊdieÊhijÊinÊdeÊhandelÊhee ÊgebrachtÊterugÊteÊ nemen,ÊditÊomÊzeÊefficiëntÊteÊbeherenÊenÊdeÊdoelstellingenÊinzakeÊhergebruikÊenÊ nu geÊtoepassingÊteÊbereiken.ÊDezeÊverplich ngÊresponsabiliseertÊdeÊproducentenÊenÊzetÊhenÊertoeÊaanÊomÊhetÊontwerpÊvanÊdeÊproductenÊteÊwijzigen:ÊbetereÊeco-efficiën eÊ(produc eÊmetÊminderÊhulpbronnenÊofÊgerecycleerdeÊ grondstoffen)ÊenÊeco-designÊ(makkelijkerÊteÊdemonterenÊenÊrecyclerenÊproducten,ÊminderÊgevaarlijkeÊstoffen).ÊÊ

BESTAANDEÊFEITELIJKEÊTOESTAND

* HetÊgebiedÊkanÊnietÊwordenÊheraangelegdÊzonderÊrekeningÊteÊhoudenÊmetÊdeÊ kwes esÊverbondenÊaanÊdeÊwaardeÊvanÊhetÊvastgoedparkÊdatÊinÊhetÊkaderÊvanÊhetÊ Manha anplan totÊstandÊisÊgekomen.Ê

* InÊdezeÊgrote,Êmonofunc oneleÊgebouwenÊdieÊstandaardÊenÊhomogeenÊzijnÊgeorganiseerd,ÊisÊdeÊhoeveelheidÊmaterialenÊeenÊbelangrijkÊelementÊdatÊdemonteringÊ rechtvaardigt.ÊDeÊminderÊgoedeÊpresta esÊvanÊdeÊmaterialenÊvanÊdes jdsÊtenÊaanzienÊvanÊdeÊnieuweÊtechnischeÊeisen,ÊdeÊaanwezigheidÊvanÊasbestÊenÊdeÊverankeringÊmetÊcementÊkunnenÊhetÊhergebruikÊvanÊbepaaldeÊelementenÊechterÊ bemoeilijken.

* inÊhetÊkaderÊvanÊdeÊwederopbouwÊvanÊhetÊCCN werdenÊdeÊmogelijkhedenÊvoorÊ nu geÊtoepassingÊvanÊhetÊbestaandeÊonderzocht:

▪ DeÊreconversieÊenÊmoderniseringÊvanÊhetÊCCN-gebouw zouÊaanzienlijkeÊwerkenÊ vereisen,ÊonderÊmeerÊopÊhetÊvlakÊvanÊisola eÊenÊtechnieken.Ê

▪ DeÊbovenbouwÊbovenÊhetÊsta onsniveauÊisÊnochÊfunc oneel,ÊnochÊtechnischÊ omkeerbaarÊenÊhetÊfundamenteelÊintroverte karakterÊvanÊhetÊgebouwÊ (gecentreerdÊopÊhetÊatrium)ÊverhindertÊelkeÊdialoogÊmetÊhetÊstadsweefselÊ (Noordplein,ÊSolvaypleinÊenÊBolivarplein,ÊNoordsta on).

▪ HetÊbetonÊa oms gÊvanÊdeÊa raakwerkenÊkanÊnietÊwordenÊhergebruikt,ÊmaarÊ kanÊinÊdeÊmateÊvanÊhetÊmogelijkeÊwordenÊgerecycleerdÊinÊgranulaten.Ê

▪ DeÊbeglazingenÊlenenÊzichÊweinigÊvoorÊhergebruik,ÊmaarÊerÊwordtÊonderzochtÊ ofÊzeÊkunnenÊwordenÊgerecycleerd.Ê

▪ OokÊhetÊhergebruikÊvanÊdeÊisola ematerialenÊwordtÊonderzocht.

▪ MetÊnameÊdeÊvolgendeÊelementenÊbiedenÊeenÊhoogÊpoten eel:ÊvloerplatenÊ vanÊCararramarmer,ÊborstweringenÊvanÊgerooktÊglas,ÊhangplafondÊvanÊCortenstaal,ÊplatenÊvanÊgecentreerdeÊfineer,ÊverlaagdeÊplafondsÊvanÊbeton,ÊgevelelementenÊvanÊgewassenÊsilexbeton,Êramen,Êdakkoepels,Ê"spaceÊframe"Êluifel.

▪ EenÊgrootÊdeelÊvanÊdeÊgeïnventariseerdeÊmaterialenÊkanÊterÊplaatseÊwordenÊ gebruikt.

* VoorÊhetÊProximusgebouwÊwerdÊerÊnogÊgeenÊgedetailleerdeÊinventarisÊenÊanalyseÊ opgemaakt,ÊmaarÊuitÊdeÊeersteÊstudieÊkwamenÊalÊenkeleÊpistesÊnaarÊvoor:

▪ DeÊelementenÊverkerenÊglobaalÊgezienÊinÊuitstekendeÊstaat.ÊHetÊgeheelÊwerdÊ zorgvuldigÊontworpenÊenÊerÊwerdenÊkwaliteitsvolleÊmaterialenÊgebruikt.

▪ ErÊwerdenÊalÊmaterialenÊgeïden ficeerdÊdieÊopÊhetÊeersteÊgezichtÊeenÊzekerÊ hergebruikspoten eelÊbieden,ÊonderÊmeer:Ênatuursteen,ÊmodulaireÊscheidingswanden,ÊverhoogdeÊvloeren,Êhangplafonds,Êradiatorkasten.Ê

* HetÊgebouwÊNorthÊGalaxyÊisÊietsÊrecenterÊdanÊhetÊProximusgebouwÊzodatÊweÊ

kunnenÊuitgaanÊvanÊeenÊgelijkaardigÊhergebruikspoten eelÊindienÊhetÊtotÊeenÊprojectÊkomt.

BUSINESS-AS-USUALSCENARIO

* SteedsÊmeerÊpla ormenÊbevorderenÊhetÊhergebruikÊvanÊdeÊmaterialenÊenÊstructurenÊ (werflink,Êrotordc,Êopalis…).ÊDeÊprofessioneleÊmarktÊvoorÊdeÊrecupera eÊvanÊkantoorinrich ngselementenÊmetÊhetÊoogÊopÊhergebruikÊvanÊhaarÊkantÊisÊnogÊnietÊergÊontwikkeld.ÊSteedsÊmeerÊactorenÊdoenÊhunÊintredeÊinÊhetÊdomeinÊvanÊdeÊrecupera eÊenÊ creërenÊsteedsÊmeerÊsamenwerkingsmogelijkhedenÊ(Ressourcefull,ÊBCÊMaterials,Ê KULeuven,Ê…Ê).Ê

Plannen,Êprogramma'sÊenÊprojecten:Ê

* DeÊKlimaatordonnan eÊbepaaltÊdeÊdoelstellingenÊvanÊhetÊGewestÊinzakeÊdeÊverminderingÊvanÊdeÊbroeikasgasemissies,ÊnamelijkÊminstens:Ê- 40%ÊinÊ2030Ê(doelstellingÊvanÊ hetÊNa onaalÊEnergie- enÊKlimaatplanÊ(NEKP)),Ê-67%ÊinÊ2040ÊenÊ- 90%ÊinÊ2050ÊtenÊ opzichteÊvanÊ2005Ê(doelstellingÊvanÊdeÊNa onaleÊLangetermijnstrategieÊvoorÊhetÊ Gewest).ÊÊZeÊbepaaltÊdeÊvolgendeÊdoelstellingenÊvanÊdeÊBrusselseÊrenova estrategieÊ tegenÊ2050:ÊhetÊgemiddeldeÊverbruikÊvanÊprimaireÊenergieÊvoorÊdeÊresiden ëleÊgebouwenÊopÊhetÊgewestelijkeÊgrondgebiedÊbedraagtÊ100ÊkWh/m²/jaar;ÊdeÊter aireÊ gebouwenÊopÊhetÊgewestelijkeÊgrondgebiedÊstrevenÊnaarÊenergieneutraliteitÊvoorÊ verwarming,ÊsanitaireÊwarmwaterproduc e,Êkoeling,Êverlich ngÊenÊelektriciteit.ÊÊOmÊ deÊreëleÊkoolstofvoetafdrukÊvanÊhetÊGewestÊteÊverkleinen,ÊvoorzietÊdeÊKlimaatordonnan eÊinÊeenÊmethodologischÊkaderÊvoorÊdeÊverminderingÊvanÊdeÊindirecteÊemissiesÊ vanÊbroeikasgassenÊtegenÊ2050,ÊvolgensÊeenÊtrajectÊdatÊ- quaÊdoelstellingenÊ- vergelijkbaarÊisÊÊmetÊdatÊvanÊdeÊdirecteÊemissies.ÊÊÊDitÊkaderÊzalÊzorgenÊvoorÊmeerÊsamenhangÊinÊdeÊstrijdÊtegenÊdeÊklimaatveranderingÊenÊvoorÊsolidariteitÊmetÊdeÊandereÊ gewestenÊenÊgebiedenÊwaarvanÊweÊa ankelijkÊzijn.ÊÊInÊhetÊverlengdeÊvanÊdeÊkeuzesÊ dieÊhetÊGewestÊreedsÊhee ÊgemaaktÊdoorÊmiddelÊvanÊzijnÊac eplanÊvoorÊdeÊcirculaireÊ economie,ÊbreidtÊdeÊrenova estrategieÊbewustÊhaarÊtoepassingsgebiedÊuitÊvanÊenergieÊenÊdirecteÊuitstootÊvanÊbroeikasgassenÊnaarÊalleÊaspectenÊvanÊduurzaamheid,ÊomÊ zoÊdeÊsamenhangÊmetÊhetÊmondialeÊkarakterÊvanÊdeÊklimaatuitdagingÊteÊverzekeren.ÊÊ DeÊverschillendeÊbeleidslijnenÊenÊmaatregelenÊnodigÊomÊhetÊstreefdoelÊ2030Ê- verminderingÊvanÊdeÊdirecteÊemissiesÊ- enÊdeÊdoelstellingenÊvanÊdeÊrenova estrategieÊteÊ bereiken,ÊzijnÊvastgelegdÊinÊhetÊNEKP.

* DeÊstrategischeÊvisieÊvoorÊhetÊÊTerritoriumÊNoordÊ vermeldtÊdeÊuitdagingÊomÊdeÊovergangÊvanÊdeÊeconomischeÊac viteitenÊnaarÊeenÊcirculaireÊenÊduurzameÊeconomieÊteÊ s muleren,ÊvanÊdeÊManha anwijkÊeenÊknooppuntÊvanÊcirculaireÊeconomieÊteÊmakenÊ enÊeenÊstadslogis ekÊvoorÊwijkenÊopÊsectoraleÊbasisÊteÊondersteunen.

* OokÊdeÊambi esÊvanÊdeÊgewestelijkeÊinstan es voorÊdeÊherontwikkelingÊvanÊdeÊ NoordwijkÊgaanÊinÊdieÊrich ng.ÊHetÊkomtÊerÊonderÊmeerÊopÊaanÊomÊeerderÊrenova eÊ aanÊteÊmoedigenÊdanÊvolledigeÊa raakÊenÊwederopbouw,ÊdeÊkanalenÊvoorÊhergebruikÊvanÊdeÊmaterialenÊvanÊdeÊin- enÊuitgaandeÊstromenÊteÊpromotenÊ(viaÊeenÊstudieÊ overÊhetÊhergebruikspoten eelÊvanÊdeÊmaterialenÊenÊdoorÊdezeÊinventarisÊvanÊherbruikbareÊmaterialenÊbijÊdeÊofferteaanvraagÊvoorÊontwerpÊenÊverbouwingÊteÊvoegen)Ê enÊgebouwenÊopÊteÊtrekkenÊdieÊaanÊverschillendeÊfunc esÊkunnenÊwordenÊaangepast.

* HetÊGPCEÊ (GewestelijkÊProgrammaÊvoorÊCirculaireÊEconomie)ÊomvatÊeenÊterritoriaalÊ strategischÊdeelÊdatÊalleÊactorenÊvanÊhetÊgrondgebiedÊwilÊmobiliserenÊomÊdeÊgrondslagÊteÊleggenÊvoorÊeenÊcirculaireÊeconomieÊbinnenÊdeÊprioritaireÊontwikkelingspolenÊ vanÊhetÊGPDOÊwaartoeÊookÊdeÊNoordwijkÊbehoort.Ê

* DeÊnotaÊinzakeÊduurzaamheidÊenÊprogramma scheÊaanbevelingenÊvanÊLeefmilieuÊ BrusselÊvoorÊdeÊNoordwijk,ÊvoortgekomenÊuitÊdeÊanalyseÊvanÊdeÊdienstÊFDW,ÊmaaktÊ

duidelijkÊdatÊdeÊNoordwijkÊkansenÊbiedtÊvoorÊdeÊuitvoeringÊvanÊdeÊterritorialeÊasÊvanÊ hetÊGPCE,ÊmeerÊbepaaldÊdoorÊteÊwerkenÊrondÊmateriaalcircuits:Êkantoormeubilair,Ê organischeÊstoffenÊenÊvoeding.

* VoorÊdeÊa raakÊenÊwederopbouwÊvanÊhetÊCCN-gebouwÊbepaaldenÊdeÊprojectdragersÊ doelstellingenÊinzakeÊcirculariteitÊvanÊdeÊmaterialen:

▪ voorÊdeÊa raakÊwordtÊgestreefdÊnaarÊ2%ÊhergebruikÊenÊ90%ÊrecyclageÊvanÊdeÊ materialen,ÊterÊplaatseÊofÊeldersÊinÊhetÊBHG.ÊErÊdientÊopgemerktÊdatÊhetÊCCNÊinÊdeÊ kelderverdiepingÊoverÊeenÊruimteÊbeschikt (ongeveerÊ20Ê000Êm²)ÊdieÊkanÊwordenÊ gebruiktÊvoorÊdeÊstockering,Êopslag,ÊhergebruikÊenÊhercondi oneringÊvanÊdeÊmaterialen.Ê

▪ voorÊdeÊwederopbouw, wordtÊvoorÊdeÊinkomendeÊmaterialenÊgestreefdÊnaarÊ2%Ê hergebruikÊenÊ20%ÊrecyclageÊvanÊdeÊmaterialenÊa oms gÊvanÊdeÊa raakÊvanÊhetÊ gebouwÊofÊvanÊeldersÊinÊhetÊBHG.

▪ DeÊliggingÊvanÊdeÊsiteÊinÊdeÊbuurtÊvanÊhetÊkanaalÊbevordertÊbovendienÊeenÊduurzameÊlogis ekÊlangsÊdeÊwaterweg.Ê

Alterna efÊ0Ê(bijÊbehoudÊvanÊhetÊBBP):

* HetÊBBPÊbevatÊenkeleÊvoorschri enÊvoorÊdeÊgevelmaterialenÊmaarÊverwijstÊnietÊnaarÊ circulariteit.

Alterna efÊ0+Ê(bijÊopheffingÊvanÊhetÊBBP):

* DeÊgevelmaterialenÊzoudenÊwordenÊomkaderdÊdoorÊdeÊGemSV.

UITDAGINGEN

* BijdragenÊtotÊdeÊtenuitvoerleggingÊvanÊdeÊstrategieÊvoorÊdeÊverminderingÊvanÊdeÊ milieu-impactÊvanÊdeÊbestaandeÊbebouwingÊinÊhetÊBHGÊtegenÊ2030-2050,ÊvolgensÊ watÊisÊvoorzienÊinÊhetÊkaderÊvanÊdeÊvisieÊvoorÊhetÊTerritoriumÊNoord:

▪ ZoveelÊmogelijkÊhetÊbehoudÊenÊdeÊrenova eÊvanÊdeÊbestaandeÊgebouwenÊbevorderenÊ(bijvoorbeeldÊvoorÊdeÊtorensÊProximusÊenÊNorthÊGalaxy)

▪ DeÊmilieu-impactÊvanÊdeÊa raakwerkenÊbeperkenÊ(maatregelÊ33ÊvanÊdeÊstrategie);Ê

* ZoveelÊmogelijkÊhetÊontwerpÊenÊdeÊbouwÊbevorderenÊvanÊgebouwenÊdieÊtransformeerbaar,ÊdemonteerbaarÊenÊherbruikbaarÊzijn,ÊmetÊtoepassingÊvanÊdeÊprincipesÊvanÊdeÊcirculaireÊeconomieÊopÊdeÊvolgendeÊdrieÊniveaus:ÊhetÊgebouwÊ (ruimtelijkeÊenÊtechnischeÊaanpasbaarheid),ÊdeÊbouwsystemenÊenÊbouwproductenÊ(omkeerbaarheid)ÊenÊdeÊmaterialenÊ(lageÊmilieu-impact,Êherbruikbaar,Êenz.).

* ZoveelÊmogelijkÊaanmoedigenÊdatÊrekeningÊwordtÊgehoudenÊmetÊalleÊimpactenÊopÊ deÊlevenscyclusÊ(milieu- enÊfinanciëleÊimpact)ÊvanÊdeÊinkomendeÊmaterialenÊbijÊ bouw/renova eprojectenÊ(produc e,Êtransport,Êbouw,Êaanpassing,Êonderhoud,Ê repara e,Êhergebruik,Êlevenseinde,Êenz.),ÊmetÊgebruikÊvanÊdeÊtoolÊTotemÊomÊdeÊ verschillendeÊvariantenÊvoorÊhetÊbehoudÊvanÊhetÊbestaandeÊteÊkunnenÊvergelijken

REFERENTIE-INDICATOREN

Aan de hand van indicatoren kan dit criterium worden behandeld op schaal van het project (niet van het BBP), bijvoorbeeld:

* percentageÊ(inÊmassa)ÊvanÊhergebruikteÊuitgaandeÊ/ÊinkomendeÊmaterialen

* percentageÊ(inÊmassa)ÊvanÊgerecycleerde/gelabelde/C2C-gecer ficeerdeÊinkomendeÊmaterialen

* CO2 /m²ÊvoorÊbouw-/renova eprojecten

CIRCULARITEIT HoofdstukÊIIÊ/ÊAfdelingÊ2ÊÊDiagnoseÊvanÊdeÊbestaandeÊenÊtenden ëleÊsitua eÊ/Êp.Ê79

CIRCULARITEITÊVANÊDEÊSTROMEN

BESTAANDEÊRECHTSTOESTAND

Water

VolgensÊdeÊGemeentelijkeÊStedenbouwkundigeÊVerordeningÊ(GemSV)ÊmoetÊdeÊregenwaterputÊwordenÊaangeslotenÊopÊeenÊofÊmeerdereÊwaterpuntenÊ(sanitair,Êkraan,Ê elektrischÊtoestel)ÊbinnenÊofÊbuitenÊhetÊgebouw.

AfvalstoffenÊ

TitelÊIIÊvanÊdeÊGSVÊbepaaltÊdeÊgroo eÊvanÊdeÊvuilnislokalenÊvoorÊdeÊwoongebouwen.

BESTAANDEÊFEITELIJKEÊTOESTAND

Water

InÊdeÊgebouwenÊvanÊhetÊBBPÊzijnÊerÊgeenÊinrich ngenÊvoorÊhetÊhergebruikÊvanÊafvalofÊregenwaterÊ(alleenÊdeÊNorthÊGalaxy-torenÊbeschiktÊoverÊeenÊregenwatertank).ÊHetÊ grondwaterÊdatÊwordtÊopgepomptÊonderÊdeÊparkeerverdiepingenÊvanÊhetÊCCNÊ(~14,5Ê m³/dag)ÊwordtÊrechtstreeksÊinÊdeÊrioleringÊgeloosd.Ê

Afvalstoffen

BinnenÊdeÊperimeterÊvanÊhetÊBBPÊstaanÊtalÊvanÊopenbareÊvuilnisbakkenÊopÊdeÊvoetpaden.ÊHetÊafvalÊwordtÊregelma gÊopgehaaldÊdoorÊdeÊgewestelijkeÊdiensten.

OpÊhetÊkruispuntÊvanÊdeÊVooruitgangstraatÊenÊhetÊSolvaypleinÊstaanÊglasbollenÊenÊeenÊ kledingcontainer.ÊAndereÊglasbollenÊinÊ deÊbuurtÊvanÊdeÊperimeterÊstaanÊopÊdeÊ middenbermÊvanÊdeÊBrabantstraatÊenÊ aanÊdeÊuitgangÊvanÊdeÊtunnelÊvanÊhetÊ Noordplein.

DeÊdichtstbijÊzijndeÊinzamelzoneÊ "ProxyChimik"ÊbevindtÊzichÊopÊhetÊ kruispuntÊtussenÊdeÊBolivarlaanÊenÊdeÊ Helihavenlaan. HetÊhuishoudelijkÊafvalÊwordtÊingezameldÊdoorÊNetÊBrussel.ÊOmdatÊerÊinÊdeÊ zoneÊgeenÊklassiekeÊwoningenÊstaan,Ê wordtÊhetÊhuishoudelijkÊafvalÊnietÊopgehaaldÊzoalsÊinÊdeÊstratenÊvanÊdeÊBrabantwijk.ÊHetÊwordtÊopgeslagenÊinÊtechnischeÊ lokalenÊinÊdeÊgebouwen.ÊNetÊBrusselÊkonÊgeenÊinforma eÊverstrekkenÊoverÊdeÊlokalisa eÊvanÊdezeÊlokalen,ÊdeÊinzameldagenÊofÊdeÊopgehaaldeÊhoeveelhedenÊ(totaalÊofÊ perÊfrac e).ÊDieÊgegevensÊzijnÊvoorÊdeÊgebouwenÊbinnenÊhetÊBBPÊ(kantoren,Êhandelszaken,Êhorecazaken...)ÊdusÊnietÊbekend.ÊÊ

DeÊopenbareÊenÊprivateÊgroeneÊruimtenÊvanÊdeÊperimeterÊgenererenÊvoortdurendÊ groenafvalÊdat,ÊvoorÊzoverÊwijÊweten,ÊvandaagÊnietÊcirculairÊwordtÊbehandeld.ÊDeÊ dichtstbijÊzijndeÊwijkcompostenÊbevindenÊzichÊinÊdeÊBrabantwijkÊ(Groenstraat)ÊenÊinÊ deÊMasuiwijkÊ(Roeiersstraat).

Energie

ErÊisÊgeenÊenergie-uitwisselingÊbekendÊtussenÊdeÊfunc esÊinÊdeÊgebouwenÊvanÊhetÊ BBPÊofÊmetÊhunÊdirecteÊomgeving.

BUSINESS-AS-USUALSCENARIO

Plannen,Êprogramma'sÊenÊprojectenÊ

* HetÊGPCE(GewestelijkÊProgrammaÊvoorÊCirculaireÊEconomie)ÊomvatÊeenÊterritoriaalÊ strategischÊdeelÊdatÊalleÊactorenÊvanÊhetÊgrondgebiedÊwilÊmobiliserenÊomÊdeÊ grondslagÊteÊleggenÊvoorÊeenÊcirculaireÊeconomieÊbinnenÊdeÊprioritaireÊontwikkelingspolenÊvanÊhetÊGPDOÊwaartoeÊookÊdeÊNoordwijkÊbehoort.Ê

* EenÊvanÊdeÊdoelstellingenÊvoorÊhetÊTerritoriumÊNoordÊbestaatÊerinÊomÊdeÊovergangÊ vanÊdeÊeconomischeÊac viteitenÊnaarÊeenÊcirculaireÊenÊduurzameÊeconomieÊteÊsmulerenÊenÊvanÊdeÊManha anwijkÊeenÊknooppuntÊvanÊcirculaireÊeconomieÊteÊmaken.Ê

* DeÊNoordwijkÊwerdÊgeselecteerdÊomÊhetÊeersteÊPEDÊ(Posi veÊEnergyÊDistrict)ÊvanÊ BrusselÊteÊworden.ÊBedoelingÊisÊomÊhetÊverbruik,ÊdeÊopslagÊenÊdeÊproduc eÊvanÊ energieÊopÊeenÊgecoördineerdeÊmanierÊteÊop maliserenÊopÊschaalÊvanÊdeÊwijk.

* HetÊCCN-gebouwÊmaaktÊmomenteelÊhetÊvoorwerpÊuitÊvanÊstudiesÊvoorÊeenÊgrondigeÊverbouwing.ÊHetÊdeelÊa raakÊdaarvanÊwordtÊmomenteelÊonderzocht.ÊÊ

Alterna efÊ0Ê(bijÊbehoudÊvanÊhetÊBBP): GeenÊveranderingÊvanÊdeÊtoestand.

Alterna efÊ0+Ê(bijÊopheffingÊvanÊhetÊBBP): GeenÊveranderingÊvanÊdeÊtoestand.

UITDAGINGEN

UitdagingenÊdieÊkunnenÊwordenÊbehandeldÊinÊhetÊBBP:

* HetÊhergebruikÊvanÊregenwater,ÊdrainagewaterÊenÊgrijsÊwaterÊverhogen.

* DeÊenergie-uitwisselingenÊaanmoedigenÊtussenÊdeÊverschillendeÊfunc es,ÊonderÊ meerÊviaÊgemengdheidÊvanÊfunc esÊomÊmogelijkeÊsynergieënÊteÊbevorderen.

CIRCULARITEIT HoofdstukÊIIÊ/ÊAfdelingÊ2ÊÊDiagnoseÊvanÊdeÊbestaandeÊenÊtenden ëleÊsitua eÊ/Êp.Ê80
REFERENTIE-INDICATOREN /
Lokalisa e van de afvalinzamelpunten (Net Brussel, 2021)

MODULARITEITÊVANÊDEÊRUIMTEN

BESTAANDEÊRECHTSTOESTAND /

BESTAANDEÊFEITELIJKEÊTOESTAND

* DeÊNoordwijk,ÊgebouwdÊinÊdeÊjarenÊ70,ÊwordtÊgekenmerktÊdoorÊdeÊaanwezigheidÊvanÊgroteÊkantoorcomplexenÊmetÊtelkensÊslechtsÊéénÊhuurder.ÊDeÊhuisvesngsfunc eÊontbreektÊinÊdeÊhuizenblokkenÊvanÊhetÊBBP,ÊdatÊdusÊlouterÊeenÊmonofunc onele kantoorwijkÊis.

* DeÊlaatsteÊjarenÊisÊinÊBrusselÊeenÊdebatÊontstaanÊoverÊdeÊmogelijkheidÊomÊdezeÊ architectuurÊteÊhergebruikenÊenÊmeerÊgemengdheidÊteÊcreërenÊinÊdeÊgebouwen dieÊvandaagÊgeenszinsÊmodulairÊzijn

▪ inÊhetÊkaderÊvanÊdeÊwederopbouwÊvanÊhetÊCCN werdenÊdeÊmogelijkhedenÊ voorÊnu geÊtoepassingÊvanÊhetÊbestaandeÊonderzocht:ÊDeÊreconversieÊenÊ moderniseringÊvanÊhetÊCCN-gebouw zouÊaanzienlijkeÊwerkenÊvereisen.ÊUitÊ deÊcirculariteitsstudieÊisÊgeblekenÊdatÊdeÊbovenbouwÊbovenÊhetÊsta onsniveauÊ nochÊfunc oneel,ÊnochÊtechnischÊomkeerbaarÊisÊenÊdatÊhetÊfundamenteelÊintroverteÊkarakterÊvanÊhetÊgebouwÊ(gecentreerdÊopÊhetÊatrium)ÊÊ elkeÊdialoogÊmetÊhetÊstadsweefselÊ(Noordplein,ÊSolvaypleinÊenÊBolivarplein,Ê Noordsta on)Êverhindert.ÊEenÊaanvraagÊvoorÊeenÊa raakvergunningÊwerdÊ ingediend.

▪ VoorÊhetÊProximusgebouwÊ werdÊnogÊgeenÊgedetailleerdeÊanalyseÊopgemaakt,ÊmaarÊeenÊeersteÊinventarisÊkwamÊtotÊstandÊvóórÊdeÊnotaÊvanÊdeÊ gewestelijkeÊinstan es.ÊVolgensÊhetÊrapportÊwerdÊhetÊgebouwÊzorgvuldigÊ ontworpenÊenÊwerdenÊeerderÊkwaliteitsvolleÊmaterialenÊgebruikt.ÊDeÊdreigendeÊverouderingÊsitueertÊzichÊvooralÊopÊhetÊvlakÊvanÊdeÊverwachteÊprogrammatorischeÊevolu eÊ(func oneleÊgemengdheid)ÊenÊdeÊevolu eÊvanÊdeÊ voorkeurenÊ(architecturaleÊenÊesthe scheÊkeuzes).Ê

▪ HetÊNorthÊGalaxy-gebouwisÊietsÊrecenterÊdanÊhetÊProximusgebouw,ÊmaarÊ sterkÊgelijkend.

* DeÊopenÊruimtenÊwordenÊvolledigÊingepalmdÊdoorÊdeÊintenseÊverkeersstromenÊ (bussenÊenÊauto's)ÊdieÊnietÊergÊcompactÊzijnÊgeorganiseerdÊwaardoorÊhetÊdelenÊ vanÊdeÊopenbareÊruimteÊwordtÊbemoeilijkt.ÊDeÊopenbareÊruimtenÊzijnÊvandaagÊ deÊrestruimtenÊtussenÊdezeÊstromen.

BUSINESS-AS-USUALSCENARIO

Plannen,Êprogramma'sÊenÊprojecten:Ê

* HetÊGPCEÊÊ(GewestelijkÊProgrammaÊvoorÊCirculaireÊEconomie)ÊomvatÊeenÊterritoriaalÊstrategischÊdeelÊdatÊalleÊactorenÊvanÊhetÊgrondgebiedÊwilÊmobiliserenÊomÊdeÊ grondslagÊteÊleggenÊvoorÊeenÊcirculaireÊeconomieÊbinnenÊdeÊprioritaireÊontwikkelingspolenÊvanÊhetÊGPDOÊwaartoeÊookÊdeÊNoordwijkÊbehoort.Ê

* DeÊNoordwijkÊisÊmetÊverschillendeÊgroteÊbouw- enÊrenova eprojectenÊvolopÊinÊmuta e.ÊDeÊdoelstellingenÊvoorÊhetÊTerritoriumÊNoordÊbestaanÊerÊonderÊmeerÊinÊomÊ deÊgemengdheidÊvanÊfunc esÊenÊstadsvernieuwingÊteÊbevorderen,ÊhetÊhuisvesngsaanbodÊteÊverhogen,ÊdeÊovergangÊvanÊdeÊeconomischeÊac viteitenÊnaarÊeenÊ circulaireÊenÊduurzameÊeconomieÊteÊs mulerenÊenÊvanÊdeÊManha anwijkÊeenÊ knooppuntÊvanÊcirculaireÊeconomieÊteÊmaken.Ê

* DeÊambi esÊvanÊdeÊgewestelijkeÊinstan esÊvoorÊdeÊherontwikkelingÊvanÊdeÊ NoordwijkÊ(notaÊProximusÊenÊFerraris)ÊgaanÊinÊdezelfdeÊrich ng:ÊhetÊkomtÊeropÊaanÊ omÊeerderÊrenova eÊaanÊteÊmoedigenÊdanÊvolledigeÊa raakÊenÊwederopbouwÊenÊ omÊgebouwenÊopÊteÊtrekkenÊdieÊkunnenÊwordenÊaangepastÊaanÊverschillendeÊfunces.

* HetÊZIN-projectÊzouÊeenÊvoorbeeldÊkunnenÊzijnÊvanÊbouwenÊvolgensÊhetÊ"Zebra"principe:ÊeenÊmul func oneelÊenÊaanpasbaarÊprojectÊdankzijÊdeÊafwisselingÊvanÊ kantoor/hotelfunc esÊenÊhuisves ngÊopÊdeÊverschillendeÊverdiepingen,ÊmetÊmogelijkheidÊomÊdeÊverdiepingenÊopÊeenÊflexibeleÊmanierÊteÊwijzigenÊ(verbouwingÊvanÊ deÊkantorenÊtotÊwoningenÊofÊhotelkamersÊenÊomgekeerd,ÊmetÊslechtsÊbeperkteÊ wijzigingen).

* HetÊCCN-gebouwÊmaaktÊmomenteelÊhetÊvoorwerpÊuitÊvanÊstudiesÊvoorÊeenÊgrondigeÊverbouwing.ÊHetÊdeelÊa raakÊdaarvanÊwordtÊmomenteelÊonderzocht.ÊÊ

Alterna efÊ0Ê(bijÊbehoudÊvanÊhetÊBBP): GeenÊveranderingÊvanÊdeÊtoestand.

Alterna efÊ0+Ê(bijÊopheffingÊvanÊhetÊBBP): GeenÊveranderingÊvanÊdeÊtoestand.

UITDAGINGEN

UitdagingenÊdieÊkunnenÊwordenÊbehandeldÊinÊhetÊBBP:

* DeÊfunc oneleÊomkeerbaarheidÊvanÊdeÊbebouwdeÊenÊonbebouwdeÊruimtenÊbevorderen.

* GebouwenÊoptrekkenÊdieÊkunnenÊwordenÊaangepastÊaanÊverschillendeÊfunc es.

REFERENTIE-INDICATOREN

Aan de hand van indicatoren kan dit criterium worden behandeld op schaal van het project (niet van het BBP).

CIRCULARITEIT HoofdstukÊIIÊ/ÊAfdelingÊ2ÊÊDiagnoseÊvanÊdeÊbestaandeÊenÊtenden ëleÊsitua eÊ/Êp.Ê81

Bij wijze van conclusie vinden jullie in tabelvorm een samenva ng van :

- De interac es tussen de criteria;

- Het overzicht van de rechts– en feitelijke situa e en de waarschijnlijke ontwikkeling volgens de alterna even 0 en 0+;

- De uitdagingen die voor elk van de criteria zijn vastgesteld.

In de tabel hiernaast iden ficeren we de poten ële interac es tussen de verschillende criteria die we hebben onderzocht. De eventuele interac es tussen twee criteria wordt in deze tabel aangeduid met een kruisje. Het betre een geheugensteuntje om zich bewust te worden van de wederzijdse invloed van de criteria en ze in het oog te houden bij de wijzigingen in latere crea eve fasen. De aandacht van de lezer wordt geves gd op het systemische aspect van de wijziging van het BBP.

Hoofdstuk II / Afdelingen 2-3-4 Overzicht van de bestaande rechts– en feitelijke toestand en vermoedelijke evolu e p. 82 OVERZICHT VAN DE BES TAANDE RECHTS –EN FEITELIJKE TOESTAND EN VERMOEDELIJKE EVOLUTIE CONCLUSIE - INTERACTIES TUSSEN DE CRITERIA

Thema Analysecriterium

RUIMTELIJKE

ORGANISATIE

STEDELIJKE DYNAMIEK

MENSELIJKE

OMGEVING

Bestaande toestand

Business-as-usualscenario 0 (project + plannen en programma's + inten enota's)

Mobiliteitsnetwerken +

Ecologische netwerken +

Technische netwerken =

Structuur van de bebouwde ruimten +

Structuur van de open ruimten +

Stedelijk landschap en symbolische richtpunten +

Bevolking +

Woningen +

Voorzieningen en handelszaken +

Economische ac viteiten en transi e (kantoren en industrie) +

Ac vering van de openbare ruimte via de benedenverdiepingen +

Geluid en trillingen -

Kwaliteit van de openbare ruimten voor verplaatsing en verblijf

Veiligheid

Uitvoering van de MWS

Ac eve verplaatsingswijzen

VERPLAATSINGEN

CIRCULARITEIT

Circulariteit

Inkomende materialen

Circulariteit van de stromen

Modulariteit van de ruimten

Gekleurd barema van de huidige toestand Beoordeling van de evolu e voor de voorspelbare scenario's

Nega eve beoordeling van het criterium + Verbetering van het criterium

Aandachtspunt = Status-quo

Posi eve beoordeling van het criterium - Verslechtering van het criterium

Neutrale beoordeling van het criterium ? Onvoldoende elementen om te evalueren

Evalua e niet relevant

Business-as-usualscenario 0+ (project + plannen en programma's + inten enota's)

Hoofdstuk II / Afdelingen 2-3-4 Overzicht van de bestaande rechts– en feitelijke toestand en vermoedelijke evolu e p. 83 OVERZICHT VAN DE BES TAANDE RECHTS –EN FEITELIJKE TOESTAND EN VERMOEDELIJKE EVOLUTIE
FEITELIJKE
CONCLUSIE - OVERZICHTSTABEL BESTAANDE RECHTS– EN
SITUATIE EN VERMOEDELIJKE EVOLUTIE
+ Luchtkwaliteit =
+
+
+ Openbaar vervoer + Auto'sVrachtwagens = Parkeren = Intermodaliteit = Mobiliteitsdiensten = LEEFMILIEU EN KLIMAAT Microklimaat = Bodem + Ecologisch netwerk + Water +
+
Energie
+
van de materialen
+
+ + = + + + + + + + ++ = + + + += = = = = + + + + + +

RUIMTELIJKE ORGANISATIE

ZACHTE MOBILITEITSNETWERKEN:

Ervoor zorgen dat de inrichtingen stroken met de doelstellingen van de netwerken, vooral in de richting van de polen die verplaatsingen genereren.

De oversteekbaarheid van het station verbeteren en het barrière-effect van de Noord-Zuidverbinding verminderen.

ECOLOGISCHE NETWERKEN:

De verbindingen tussen de vergroende ruimten versterken, zowel op de openbare weg als daarbuiten (in de bebouwing), onder meer op de oost-westassen.

De opportuniteit onderzoeken om elementen van het blauwe netwerk te ontwikkelen die kunnen worden verbonden met het bestaande en het toekoms ge netwerk.

TECHNISCHE NETWERKEN :

Technische netwerken in het algemeen: een plan opmaken dat ruimtelijk overeenstemt met de aanwezigheid van deze netwerken, de ruimten benu en waar volle grond beschikbaar is

Grijs netwerk: ervoor zorgen dat de netwerken bestand zijn tegen de toekoms ge projecten , gescheiden netwerken ontwikkelen op de openbare weg en in de gebouwen en een toepassing voorzien voor het in de ondergrond opgepompte water.: hergebruik, infiltra e, buffering, afleiding van het niet-herbruikbare water naar de Zenne.

Zwart netwerk: de lokale iden teit van de Noordwijk en de verbinding met de omliggende wijken accentueren

STRUCTUUR VAN DE BEBOUWDE RUIMTEN :

Dubbele skyline: er moet zowel op lage schaal worden gebouwd ten opzichte van de openbare ruimte op grondniveau als op hoge schaal ten opzichte van het stedelijke silhouet.

Voor de hoogbouw bepalen de torens van dezelfde hoogte van het Manha anplan (WTC I-II-III) het bouwprofiel in de perimeter van het BBP en dragen ze bij tot het karakter van visuele landmark van de Noordwijk in de stad. Dit karakter moet worden behouden.

Aanpassing van de bebouwing om bruikbare open ruimten te creëren in de huizenblokken en doorbraken van de huizenblokken in oostwestelijke rich ng.

STRUCTUUR VAN DE OPEN RUIMTEN :

Het netwerk van de open ruimten van de Noordwijk (Maximiliaanpark, Espace Gaucheret, Rogierplein, Kanaalkaai…) concre seren en coherent behandelen.

Een menselijke schaal creëren in de openbare ruimten die oorspronkelijk werden aangelegd voor het autoverkeer, in samenhang met de lage schaal van de "dubbele skyline".

Het statuut en de toegankelijkheid van de stad en het sta on op grondniveau verduidelijken (interface openbare ruimte-CCNNoordsta on).

STEDELIJKE LANDSCHAPPEN EN SYMBOLISCHE RICHTPUNTEN :

Het principe beves gen van de dubbele skyline: er moet zowel op lage schaal worden gebouwd ten opzichte van de openbare ruimte als op hoge schaal ten opzichte van het stedelijke silhouet.

Ervoor zorgen dat het Noordsta on opnieuw een visueel richtpunt wordt

Voor de hoogbouw bepalen de torens van dezelfde hoogte van het Manha anplan het bouwprofiel in de perimeter van het BBP en dragen ze bij tot het karakter van visuele landmark van de Noordwijk in de stad. Dat karakter van stedelijk richtpunt moet worden behouden en de link tussen deze hoge landmark en de lagere landmark 'Noordsta on' moet worden beheerd.

De noord-zuid- en oost-westrela es van het landschap met elkaar verbinden, met het Solvayplein, het Bolivarplein en het Noordplein als scharnierpunt.

Meer landschappelijke openheid creëren, met name door het poten eel opentrekken van de sokkels.

De bestaande erfgoedelementen (torens, Noordsta on) vrijwaren, integreren en herwaarderen in samenhang met de uitdaging klimaat en circulariteit (a raak-wederopbouw vermijden, de structuren hergebruiken)

De belangrijke uitzichten vrijwaren op de externe symbolische richtpunten (T&T, Rogier, Sint-Maria) en vanaf plaatsen buiten de wijk op de lokale symbolische richtpunten (Noordsta on, torens).

STEDELIJKE DYNAMIEK

BEVOLKING :

De toename van de bevolkingsdichtheid in de Noordwijk bevorderen op een houdbare en beheerste manier (met openbaar vervoer, groene ruimten, openbare ruimten, aangepaste voorzieningen);

Gemengdheid en sociale cohesie garanderen tussen de bestaande en de toekoms ge bevolking en de gebruikers van de wijk.

De huisves ngsfunc e zichtbaar maken: toegang tot de woningen vanaf de straat, strategische plaatsing van de woningen om uitzichten te creëren op bewoonde gevels

HUISVESTING :

De verhouding ter aire func es-bewoners in evenwicht brengen; Woningen ontwikkelen die toegankelijk zijn voor verschillende sociodemografische profielen en beantwoorden aan de geïden ficeerde behoe en;

VOORZIENINGEN EN HANDELSZAKEN:

Een voorziening met gewestelijke of bovenlokale uitstraling (sport, vorming…) ontwikkelen gezien de centrale ligging en de goede bereikbaarheid van de Manha anwijk in het Gewest.

Volgens de principes van de buurtstad beantwoorden aan de behoe en aan buurtwinkels en buurtvoorzieningen gezien de huidige vraag, maar vooral gezien de verwachte toename van de lokale bevolking in de wijk. Erop toezien dat deze buurtvoorzieningen voldoende inclusief zijn om de kwetsbare bevolking die de wijk frequenteert op te vangen en dat ze ook echt ten dienste staan van de nieuwe bewoners.

Voorzieningen en diensten ontwikkelen om de stedelijke dynamiek en gezelligheid in de wijk te bevorderen (handels- en horecazaken die ook 's avonds open zijn, ac vering van de benedenverdiepingen (zie desbetreffend criterium), enz.

Beantwoorden aan de meest strategische behoe en in de wijk: medische buurtzorg, voorzieningen voor ouderen, schoolvoorzieningen, sociale cohesie en jonge kinderen.

Handelscellen van verschillende omvang aanbieden om te beantwoorden aan een gevarieerde vraag en te vermijden dat de heraanleg van de wijk en de toename van huurprijzen voor de handelszaken op de benedenverdiepingen alleen grote winkelketens aantrekt.

Aangezien in de Noordwijk veel migranten aanwezig zijn, ook hen betrekken bij het stadsplanningsproces.

ECONOMISCHE ACTIVITEITEN EN TRANSITIE :

De wijk handhaven als een belangrijke kantoorpool op gewestelijke schaal, met aanpassing aan de nieuwe maatschappelijke en economische uitdagingen in een context vol verandering en onzekerheid: flexibiliteit, circulariteit, diversiteit van de huurders van de gebouwen, diversiteit van de profielen van de gebruikers

Opportuniteiten bieden voor de ves ging van nieuwe ac viteiten die aansluiten op de nieuwe leef- en werkwijzen (coworkingruimten, produceruimten aangepast aan de stedelijke omgeving van de wijk, ruimten voor stadslandbouw, ontspanningsplaatsen voor de werknemers, werkruimten voor studenten)...

Het poten eel van de benedenverdiepingen of ongebruikte parkings benu en om nieuwe func es te ontwikkelen en de benedenverdiepingen ac ve-

ACTIVERING VAN DE OPENBARE RUIMTE VIA DE BENEDENVERDIEPINGEN :

De ac vering van de benedenverdiepingen bevorderen door: de kwes e van de niveauverschillen te behandelen (geen niveauverschillen tussen de openbare ruimte en de gebouwen, met name het staon), meer toegangen te voorzien en de diversiteit van de bestemmingen te bevorderen een crea eve architectuur te ontwikkelen die in dialoog treedt met de openbare ruimte en de func es in de gebouwen weergee

MENSELIJKE OMGEVING

GELUID EN TRILLINGEN:

In een context van meer func onele gemengdheid de ontwikkeling van de stad en van de menselijke ac viteiten die daarmee gepaard gaan met elkaar verzoenen en daarbij een bevredigende levens- en gezondheidskwaliteit bieden aan de gebruikers.

Geen nieuwe conflictzones creëren tussen de geluidsbron 'spoorweg' en de gevoelige ac viteiten (ook niet door weerkaatsing van het geluid). Het studiegebied omvat geen comfortzones in de zin van het plan Quiet.brussels. Met het oog op de grotere func onele gemengdheid en met name de toekoms ge aanwezigheid van woningen binnen de perimeter is ook het verbeteren van de Q-zones (akoes sche comfortzones) een uitdaging.

KWALITEIT VAN DE OPENBARE RUIMTEN VOOR VERPLAATSING EN VERBLIJF:

De visuele kwaliteit en het gebruikscomfort van de openbare ruimte verbeteren (meer groen, minder geluidshinder...)

De gebouwen laten bijdragen tot de gezelligheid van de openbare ruimte:

Ac eve benedenverdiepingen en interface met de openbare ruimte zonder niveauverschil

Beperking van de nega eve impact op het vlak van wind en bezonning

Ver caliteit vs mensenmaat

De gebruiksmogelijkheden van de openbare ruimten verbeteren voor verschillende gebruikers

Beheer van de stromen om een vlo e doorgang en posi eve interac e te verzekeren en conflicten te vermijden.

LUCHTKWALITEIT:

De emissie van verontreinigende stoffen aanpakken aan de bron door de energiebehoe en van de infrastructuren en de vraag naar warmte en koude verbonden aan de bebouwing te verminderen en minder fossiele brandstoffen te verbruiken (de residuele energievraag dekken met hernieuwbare energiebronnen, zachte verplaatsingswijzen bevorderen,…)

De vergroening van de perimeter bevorderen

De impact van de vervuilde luchtafvoer van onder meer de parkings beperken (lokalisa e van de afvoeren naargelang de wind...).

VEILIGHEID :

Het Backstreeteffect beperken door de benedenverdiepingen te ac veren

Het breukeffect van de spoorweg verzachten

De openbare ruimte op ieder ogenblik ac veren door gemengde bestemmingen te voorzien.

De doorgangen onder de sporen verlevendigen, het onveiligheidsgevoel dat er heerst verminderen en de kwaliteit van de grondbedekkingen voor alle verplaatsingswijzen verbeteren.

Hoofdstuk II / Afdelingen 2-3-4 Overzicht van de bestaande rechts– en feitelijke toestand en vermoedelijke evolu e p. 84 OVERZICHT VAN DE BES TAANDE RECHTS –EN FEITELIJKE TOESTAND EN VERMOEDELIJKE EVOLUTIE CONCLUSIE - SYNTHESE VAN DE UITDAGINGEN

VERPLAATSINGEN

UITVOERING VAN DE MWS:

Bijdragen tot de uitvoering van het Plan GoodMove door de voorschri en van het BBP af te stemmen op de doelstellingen van dit plan. De cohabita e van de verschillende verplaatsingswijzen bevorderen.

ACTIEVE VERPLAATSINGSWIJZEN:

De moeilijke toegankelijkheid oplossen van het sta on (stadsniveau en sta onsniveau), maar ook van de gebouwen van de wijk (concept van het Manha anplan om het verkeer van de zachte verplaatsingswijzen in de hoogte te plaatsen, overgenomen in het huidige BBP)

Een universele toegankelijkheid van de openbare ruimten en de gebouwen garanderen.

Veilige en comfortabele verplaatsingen garanderen voor de voetgangers en de fietsers, in het bijzonder op de volgende plaatsen: de oversteekplaatsen in de Albert II-laan, de fietsersuitgang van het CCN op het Noordplein, de toegang tot het CCN en het Noordsta on (niveauverschil).

Meer evenwicht brengen tussen de verkeers- en verblijfszones (OW-haltes, terrassen,...).

Nadenken over een betere verdeling van de openbare ruimte tussen de verplaatsingswijzen, in samenhang met het Plan Good Move en de MWS.

De intermodaliteit op maliseren, met name de organisa e van de voetgangersstromen in de buurt van de openbaarvervoershaltes

OPENBAAR VERVOER:

Rekening houden met de ruimtelijke en technische vragen van de openbaarvervoersmaatschappijen en ze objec veren (afme ngen van de eindhaltes en aantal plaatsen, elektrifica e);

De nieuwe openbaarvervoerslijnen integreren in het stadsweefsel (tram Belgica-Centraal Sta on, tram NOH en Brabantnet);

Het mul modale knooppunt van het Noordsta on reorganiseren om het beter zichtbaar te maken en de intermodaliteit, het comfort en de toegankelijkheid te verbeteren;

Het statuut van de stad en het sta on op grondniveau verduidelijken (interface openbare ruimte-CCN-Sta on).

Nadenken over een betere verdeling van de openbare ruimte tussen de verplaatsingswijzen, in samenhang met het Plan Good Move en de

AUTO'S :

Nadenken over een betere verdeling van de openbare ruimte tussen de verplaatsingswijzen, in samenhang met het Plan Good Move en de MWS.

De problema sche plaatsen op het vlak van veiligheid beveiligen.

VRACHTVERKEER & LEVERINGEN:

De hinder veroorzaakt door vrachtwagens en bestelwagens in de openbare ruimte (verkeersstromen en parkeren) verminderen, maar de levering van goederen blijven garanderen (minder leveringen, maar geop maliseerd).

PARKEREN:

Het parkeren op de openbare weg ra onaliseren;

De parkeerzones buiten de openbare weg op maliseren (gedeeld gebruik, diversifica e van de soorten parkeerplaatsen/andere gebruiksdoelen), rekening houdend met het huidige en het toekoms ge gebruik;

Het parkeren van fietsen en bakfietsen ontwikkelen in samenhang met het sta on dat een intermodale rol moet vervullen;

Een voldoende parkeeraanbod garanderen voor fietsen en bakfietsen, in samenhang met de toename van de gemengdheid van func es.

MOBILITEITSDIENSTEN & INTERMODALITEIT:

De intermodaliteitsvoorwaarden verbeteren met onder meer het delen van de openbare ruimte en het beheer van de interac es tussen openbaar vervoer en de zachte verplaatsingswijzen.

Alle verplaatsingswijzen en mobiliteitsdiensten integreren en de duidelijkheid ervan garanderen.

LEEFMILIEU EN KLIMAAT

MICROKLIMAAT :

De kunstma ge bodems binnen de perimeter verminderen.

Het hi e-eilandeffect in de openbare ruimte beperken: aanwezigheid van verschillende plantenlagen (evapotranspira e, schaduw), hoog weerkaatsingseffect van de materialen, vertraging van het regenwater om de verdamping ter plaatse ervan te bevorderen (bijvoorbeeld via de porositeit van de materialen);

Het hi e-eilandeffect beperken ter hoogte van het perceel: beplan ng aan de gebouwen, hoog weerkaatsingsvermogen van de materialen, de gevelbekledingen;

De impact en hinder van de wind beperken in de ruimten die toegankelijk zijn voor voetgangers: hoogte van de sokkel, organisa e van de bebouwde oppervlakte, opleggen van comfortdrempels voor ac eve/passieve voetgangers op sommige plaatsen of onder bepaalde voorwaarden;

De slagschaduw veroorzaakt door gebouwen beperken: plaatsing van de hoge gebouwen ten opzichte van de openbare ruimten; De BKG-emissies verminderen (zie criterium Energie en het thema Mobiliteit).

BODEM

Augmenter la perméabilité du sol et les plantations en pleine terre au sein des parcelles et de ’espace public

Tenir compte des limites du potentiel géothermique de la zone (modification du niveau et de la température de la nappe à monitorer)

Tenir compte de la faisabilité d'ancrage dans le sol de bâtiments de hauts gabarits suivant la nature et l'occupation du sol Réseau écologique : Conserver les zones végétalisées existantes et améliorer leur potentiel d’accueil de la biodiversité Développer de nouvelles zones végétalisées au sein de l’espace public et des parcelles.

Assurer le maillage vert et écologique avec les espaces verts environnants

ECOLOGISCHE NETWERKEN :

De bestaande beplante zones behouden en hun onthaalcapaciteit voor biodiversiteit verbeteren Nieuwe beplante zones ontwikkelen in de openbare ruimte en op de percelen. Het groene en ecologische netwerk vormen met de omliggende groene ruimten.

WATER:

Het waterbeheer in de openbare ruimte herbekijken: de bodems ontharden (meer oppervlakten met volle grond en bij voorkeur poreuze/drainerende grondbedekkingen) en dus de afwatering versterken en het regenwaterbeheer in situ, in de open lucht verbeteren.

Helder water lozen in de weer opengelegde Zenne, met naleving van de doelstellingen inzake waterkwaliteit.

Het waterbeheer op schaal van de percelen herbekijken: opslag, buffering, hergebruik (grijs water, regenwater, drainagewater)

Gescheiden netwerken ontwikkelen op de openbare weg en in de gebouwen en een toepassing voorzien voor het in de ondergrond opgepompte water: het deel dat niet ter plaatse kan worden gebruikt doen afvloeien naar de Zenne. De waterkwaliteit verbeteren.

ENERGIE : Bijdragen tot de tenuitvoerlegging van de strategie voor de vermindering van de milieu-impact van de bestaande bebouwing in het BHG tegen 20302050, volgens wat is voorzien in het kader van de visie voor het Territorium Noord: De renova e van de gebouwen volgens de doelstellingen van de strategie s muleren; Warmte- en elektriciteitsproduc e uit hernieuwbare bronnen bevorderen in de bebouwing, wanneer dat de energiepresta es verbetert. Het energieverbruik verminderen door het gebruik van de zachte verplaatsingswijzen te s muleren ten koste van de auto (zie thema Mobiliteit); door bij de organisa e van de bebouwing rekening te houden met de oriënta e en de compactheid van de gebouwen; door bij de renova e/bouw (gebouwschillen, voorzieningen) de huidige energiestandaards te respecteren of beter te doen dan deze standaards.

CIRCULARITE

CIRCULARITEIT VAN DE MATERIALEN / INKOMENDE MATERIALEN :

Bijdragen tot de tenuitvoerlegging van de strategie voor de vermindering van de milieu-impact van de bestaande bebouwing in het BHG tegen 20302050, volgens wat is voorzien in het kader van de visie voor het Territorium Noord:

Zoveel mogelijk het behoud en de renova e van de bestaande gebouwen bevorderen (bijvoorbeeld voor de torens Proximus en North Galaxy) De milieu-impact van de a raakwerken beperken (maatregel 33 van de strategie);

Zoveel mogelijk het ontwerp en de bouw bevorderen van gebouwen die transformeerbaar, demonteerbaar en herbruikbaar zijn, met toepassing van de principes van de circulaire economie op de volgende drie niveaus: het gebouw (ruimtelijke en technische aanpasbaarheid), de bouwsystemen en bouwproducten (omkeerbaarheid) en de materialen (lage milieu-impact, herbruikbaar, enz.).

Zoveel mogelijk aanmoedigen dat rekening wordt gehouden met alle impacten op de levenscyclus (milieu- en financiële impact) van de inkomende materialen bij bouw/renova eprojecten (produc e, transport, bouw, aanpassing, onderhoud, repara e, hergebruik, levenseinde, enz.), met gebruik van de tool Totem om de verschillende varianten voor het behoud van het bestaande te kunnen vergelijken

CIRCULARITEIT VAN DE STROMEN:

Het hergebruik van regenwater, drainagewater en grijs water verhogen.

De energie-uitwisselingen aanmoedigen tussen de verschillende func es, onder meer via gemengdheid van func es om mogelijke synergieën te bevor-

MODULARITEIT VAN DE RUIMTEN :

De func onele omkeerbaarheid van de bebouwde en onbebouwde ruimten bevorderen.

Gebouwen optrekken die kunnen worden aangepast aan verschillende func es.

Hoofdstuk II / Afdelingen 2-3-4 Overzicht van de bestaande rechts– en feitelijke toestand en vermoedelijke evolu e p. 85 OVERZICHT VAN DE BES TAANDE RECHTS –EN FEITELIJKE TOESTAND EN VERMOEDELIJKE EVOLUTIE CONCLUSIE - SYNTHESE VAN DE UITDAGINGEN

MILIEUEFFECTENRAPPORT (MER)

VAN HET BIJZONDER BESTEMMINGSPLAN NR. 19

“WESTWIJK VAN HET NOORDSTATION”

HOOFDSTUKIII

Iden fica e van de milieueffecten

Hoofdstuk III Iden fica e van de milieueffecten / p. 83 Gemeente Schaarbeek

Inhoud van het MER

HOOFDSTUK I – PRESENTATIE VAN HET ONTWERPPLAN

Afdeling 0. Algemene methode

Afdeling 1. Beschrijving van de strategische doelstellingen van het plan

Afdeling 2. Samenva ng van de inhoud van het plan

HOOFDSTUK II – DIAGNOSE VAN DE BESTAANDE TOESTAND EN IDENTIFICATIE VAN DE UITDAGINGEN

Afdeling 1. Methodologie voor de vaststelling van de bestaande toestand

Afdelingen 2-3-4. Overzicht van de rechtstoestand en van de feitelijke toestand en waarschijnlijke evolu e

HOOFDSTUK III – IDENTIFICATIE VAN DE MILIEUEFFECTEN

Afdeling 1. Methodologie

Afdeling 2. Presenta e van de redelijke alterna even en van de gekozen evalua emethode

Afdeling 3. Effectenbeoordeling

A/ PROGRAMMATORISCHE ALTERNATIEVEN

B/ RUIMTELIJKE ALTERNATIEVEN

C/ ONTWERP VAN BBP

Afdeling 4. Overzicht van specifieke milieueffecten

HOOFDSTUK IV - CONCLUSIE, AANBEVELINGEN EN OPVOLGINGSMAATREGELEN

Afdeling 1. Presenta e van de gekozen oplossingen

Afdeling 2. Aanbevelingen

Afdeling 3. Opvolgingsmaatregelen

Hoofdstuk III Iden fica e van de milieueffecten / p. 84

Inhoud van hoofdstuk III

Hoofdstuk III Iden fica e van de milieueffecten / p. 85
HOOFDSTUK III – IDENTIFICATIE VAN DE MILIEUEFFECTEN Afdeling 1. Methode……………………………………………………………………………………………………………………………………… 86 Afdeling 2. Presenta e van de redelijke alterna even en van de gekozen evalua emethode………………………. 90 Tenden eel alterna ef…………………………………………………………………………………………………………………………. 93 Programmatorische alterna even…………………………………………………………………………………………………………. 106 Ruimtelijke alterna even………………………………………………………………………………………………………………………. 108 Afdeling 3. Effectenbeoordeling……………………………………………………………………………………………………………………… 123 A/ PROGRAMMATORISCHE ALTERNATIEVEN…………………………………………………………………………………………… 124 Inleiding…………………………………………………………………………………………………………………………………………. 127 Vergelijking van de programmatorische alterna even, effecten en aanbevelingen per thema……… 131 Conclusie: aandachtspunten en samenva ng van de aanbevelingen………………………………………….. 187 B/ RUIMTELIJKE ALTERNATIEVEN…………………………………………………………………………………………………………… 192 Inleiding………………………………………………………………………………………………………………………………………… 195 Vergelijking van de ruimtelijke alterna even, effecten en aanbevelingen per thema…………………… 203 Conclusie: aandachtspunten en samenva ng van de aanbevelingen…………………………………………….. 327 C/ ONTWERP VAN BBP…………………………………………………………………………………………………………………………… 339 Inleiding: methode en presenta e van het voorkeurscenario……………………………………………………….. 342 Presenta e van het ontwerp-BBP en verantwoording van de gemaakte keuzes……………………… 354 Analyse van de impact van het ontwerp-BBP (grafische en schri elijke voorschri en), per thema…. 378 Interac es tussen de criteria, verzach ng of versterking………………………………………………………………… 447 Afdeling 4. Overzicht van specifieke milieueffecten………………………………………………………………………………………… 451

HOOFDSTUK III

Iden fica e van de milieueffecten Afdeling1.

METHODE

Hoofdstuk III / Afdeling 1 Methode / p. 86

METHODE

Zoals reeds gezegd bij de ervaren moeilijkheden (Afdeling 0 van hoofdstuk 1) is het BBP beperkt tot de gemeentegrenzen van Schaarbeek. Het dekt daardoor slechts een deel van de huizenblokken 71 en 72, wat de analyse van de milieueffecten er niet makkelijker op maakt. De analyses in het kader van de programmatorische en ruimtelijke alterna even hebben echter betrekking op de hele “zone“, dus alle betrokken huizenblokken en de aangrenzende openbare ruimten, om de coheren e met de rest van de wijk en de relevan e in het kader van de analyses te garanderen (op het vlak van mobiliteit bijvoorbeeld zijn de effecten niet beperkt tot het BBP op zich, maar hangen ze af van de organisa e van de volledige huizenblokken Proximus en CCN). Door deze verbreding van de basisgegevens en analyses kondenwe conclusiestrekkenenglobaleaanbevelingenformulerenwaarvandeimpactverdergaatdanlouter de zone van het BBP.

De ‘finale’ analyses, verbonden aan het ontwerp-BBP, hebben enkel betrekking op de delen die strikt onder het BBP vallen. Ze omva en dus enkel de delen van huizenblokken die binnen de fysieke grenzen van het BBP liggen aangezien de voorschri en en het plan enkel gelden voor deze zone.

Voor de uitwerking van het ontwerp van bijzonder bestemmingsplan is het itera eve proces tussen het milieueffectenrapport en het ontwerp-BBP in verschillende fasen verlopen. De analyses van het MER voedden de uitwerking van het BBP in verschillende opeenvolgende stappen die we hierna opsommen:

1°)HetbureaubelastmethetBBPhee verschillenderuimtelijkeop esvoorgesteldinverschillendethema’s:lokalisa e en verdeling van de groene ruimten, huisves ng, voorzieningen en handelszaken, organisa e van de mobiliteit, structuur en lokalisa e van het bussta on.

DE GROENE RUIMTEN

DE FUNCTIE HUISVESTING

Hoofdstuk III / Afdeling 1 Methode / p. 87
METHODE

2°) In een tweede fase werd elk van die ruimtelijke op es geanalyseerd ten aanzien van de criteria van het MER. Voor elk thema werden overzichtstabellen opgemaakt met op de abscis de op es en op de ordinaat de 30 criteria van het MER. De tabel toont in detail de effecten van de op e ten aanzien van elk criterium en gebruikt een kleurcode zodat de verschillende op es makkelijk met elkaar kunnen worden vergeleken. De zwakke en de sterke punten van elke op e werden geïden ficeerd.

3°) Het bureau belast met het BBP hee 4 programmatorische uitgewerkt (zie Presenta e van de alterna even, in Afdeling 2 van dit hoofdstuk):

 Op basis van de relevante doelstellingen op het vlak van milieubescherming, d.w.z. op basis van de uitdagingen die werden geïdentificeerd in de diagnose (hoofdstuk II);

 Op basis van de eerder geïdentificeerde strategische doelstellingen (hoofdstuk I) die verband houden met de wensen van de beleidsmakers.

4°) De volgende fase omvat de gedetailleerde analyse van de effecten van de verschillende programmatorische alterna even die werden voorgesteld. Deze analyses zijn opgenomen in hoofdstuk III-Afdeling 3, punt A. Bij de effectenanalyses werd rekening gehouden met zowel de relevante doelstellingen op het vlak van milieubescherming als de strategische doelstellingen.

5°)HetbureaubelastmethetBBPhee insamenwerkingmetdeactorenvanhetproject(ziepresenta evandeactoren in Afdeling 0 van hoofdstuk I) een programmatorische voorkeurscenario uitgewerkt.

Hoofdstuk III / Afdeling 1 Methode / p. 88
VAN HET BUSSTATION
VAN DE MOBILITEIT
DE FUNCTIES VOORZIENINGEN EN HANDELSZAKEN LOKALISATIE
ORGANISATIE
METHODE

6°) Het met het PPAS belaste bureau hee 3 ruimtelijke alterna even uitgewerkt (zie de presenta e van de alterna even in punt 2 van dit hoofdstuk):

 Op basis van de eerder vastgestelde strategische doelstellingen (hoofdstuk I), in relatie tot de reeds bestaande politieke wil.

 Op basis van de relevante milieubeschermingsdoelstellingen, d.w.z. op basis van de kwesties die in de diagnose (hoofdstuk II) naar voren zijn gekomen;

 Op basis van de conclusies van de MER-analyses van de verschillende ruimtelijke opties;

 Op basis van het voorkeursscenario voor het programma;

7°) Op dezelfde wijze als voor de programma sche alterna even, was de volgende stap de gedetailleerde analyse van de effecten van de voorgestelde ruimtelijke alterna even. Deze analyses zijn opgenomen in hoofdstuk III-Afdeling 3, punt B.

Bij de effectenanalyses werd rekening gehouden met zowel de relevante doelstellingen op het vlak van milieubescherming als de strategische doelstellingen.

8°)HetbureaubelastmethetBBPhee insamenwerkingmetdeactorenvanhetproject(ziepresenta evandeactoren in Afdeling 0 van hoofdstuk I) een voorkeurscenario uitgewerkt. Het trach e daarbij de uit de analyses van het MER voortgevloeide sterke punten te op maliseren en de zwakke punten tot een minimum te beperken. Dit scenario wordt gepresenteerd in deel 3, punt C, van dit hoofdstuk.

9°) Dat scenario was de basis voor de uitwerking van de voorschri en van het BBP. Een eerste versie van de voorschri en en van het plan werd voorgesteld aan de openbare actoren die de impact ondergaan van de dwingende regels van het BBP. Op basis van de besprekingen en deba en die daaruit volgden, werd de tweede versie van het BBP uitgewerkt. De meeste aanbevelingen van de MER-analyses van de alterna even werden daarin geïntegreerd.

10°) Deze versie (plan, voorschri en en begeleidende maatregelen) werd onderworpen aan de analyses van het MER, watweerleiddetoteenaantalaanbevelingenentalrijkeformeleeninformelebesprekingenvandedocumenten.Enkele daarvanwerdengeïntegreerdindeverschillendedocumentenvanhetBBPenresulteerden ineenfinaleversie diewerd onderworpen aan de analyses van hoofdstuk II – Afdeling 3, punt C van dit document.

Hoofdstuk III / Afdeling 1 Methode / p. 89
METHODE

HOOFDSTUK III

Iden fica e van de milieueffecten

Afdeling2.

PRESENTATIE VAN DE ALTERNATIEVEN

Hoofdstuk III
2
even /
90
/ Afdeling
Presenta e van de redelijke alterna
p.

REDELIJKE ALTERNATIEVEN

We beginnen dit deel met de presenta e van de alterna even voor de lokalisa e en de perimeter. We trachten uit te leggen in hoeverre de geselecteerde plaats en het gekozen tracé van de perimeter relevant zijn. We baseren ons daarbij op een analyse die rekening houdt met de specifieke uitdagingen van het programma en de wijk waarvan hier de grote lijnen worden herhaald:

De algemene doelstellingen van de wijziging van het PPAS zijn bij te dragen tot een geïntegreerde aanpak van het sta onscentrum om intermodaliteit, mul func onaliteit en de milieukwaliteit van de openbare ruimte te vergemakkelijken, te zorgen voor een meer samenhangende aanpak van de openbare ruimte en de stedelijke structuren, te zorgen voor een mix van gebruik binnen de perimeter en ten slo e te garanderen dat rekening wordt gehouden met milieu- (circulariteit, klimaat) en erfgoedaspecten.

De wijziging van het PPAS hee ook tot doel een samenhangend kader voor stadsplanning te vormen waarin de lopende projecten en de in het Northern Territory ontwikkelde visies en strategieën in overleg met alle lokale actoren en actoren die in het gebied ac ef zijn, worden samengebracht.

De specifieke doelstellingen van de wijziging van PPAS nr. 19 zijn de volgende:

1. Metbetrekkingtotdetoewijzingen,debestemmingvanhetoorspronkelijkePPAS(nietgerealiseerd) beves gen met betrekking tot de totstandbrenging van een gemengde wijk, en het mul modale knooppunt beter integreren.

2. Wat de vorm van de gebouwen betre , het materiële erfgoed van de hoogbouw van het Manha anplan erkennen en tegelijker jd de interface met de openbare ruimte verbeteren en het "achterafstraat"-effect vermijden, en zorgen voor de stedelijke en landschappelijke integra e van het Gare du Nord.

3. Wat de openbare ruimten betre , zorgen voor samenhang van alle openbare ruimten en een evenwichtindeontwikkelingentussendeintermodaliteitvanhetgebied(knooppuntvooropenbaar vervoer en ac eve vervoerswijzen), ac vering van de perimeter, maar ook de bestrijding van de gevolgen van de opwarming van de aarde (hi e-eilanden, grote permeabiliteit van het gebied, enz.)

4. Wat het milieu betre , meer veerkrach ge openbare ruimten creëren door hun begroeiing, geïntegreerd waterbeheer en rekening houdend met het hi e-eilandverschijnsel, de duurzame overgang van bestaande gebouwen versnellen.

Daarna is het de beurt aan de alterna even die betrekking hebben op het BBP zelf, namelijk:

- 2 tendentiële alternatieven: behoud van het huidige BBP en opheffing van het huidige BBP.

- 4 programmatorische alternatieven

- en 3 ruimtelijke alternatieven die elkaar aanvullen.

Aangezien de ontwikkelde vastgoedprojecten niet eindigen aan de strikt administra eve grenzen van het BBP en ook deimpact(ondermeeropdemobiliteit) nietbeperktblij tothetgebiedbinnendezeabstractelijnen,hebben deze 9 alterna even betrekking op alle huizenblokken (en niet alleen op de zone die wordt gedekt door het BBP).

Bedoeling is om de impact te analyseren van de herontwikkeling van de hele zone waarop de strategische keuzes van het BBP worden gebaseerd.

De alterna even doen voorstellen voor de betrokken huizenblokken: het huizenblok Noordsta on en CCN, het huizenblok Proximus (P) en het huizenblok North Galaxy (NG).

Hoofdstuk III / Afdeling 2 Presenta e van de redelijke alterna even / p. 91
ALTERNATIEVEN ALTERNATIEVEN

Perimeters:

- van het bestaande BBP (volle lijn) en het uitgebreide BBP (s ppellijn)

- van de globale zone met de volledige huizenblokken’ (streepjeslijn)

- van de gemeenten Schaarbeek, Sint-Joost-ten-Node en de Stad Brussel (in het zwart)

Hoofdstuk III / Afdeling 2 Presenta e van de redelijke alterna even / p. 92
sta on CCN NG P ALTERNATIEVEN

ALTERNATIEF VOOR DE LOKALISATIE

Het besluit van 29 november 2018 tot vaststelling van de structuur van de milieueffectenrapporten behorend bij de uitwerking, wijziging of opheffing van de plannen en verordeningen bedoeld in de Titels II en III van het BWRO, preciseert in zijn bijlage 1 over de structuur van het MER dat de ontwikkelde alterna even redelijk moeten zijn in het licht van de strategische doelstellingen waarop het ontwerpplan is gebaseerd en dat ze onder de materiële en territoriale bevoegdheid moeten vallen van de overheid die het ini a ef hee genomen voor het ontwerp.

InhetgevalvanhetBBP19 isdeoverheiddieaandebasisligt vanhetplandegemeenteSchaarbeek.Geografische alterna even kunnen dus enkel op haar grondgebied worden beschouwd.

De strategische doelstellingen houden veelal verband met het Noordsta on dat een belangrijk intermodaal knooppuntis,zowelvoorde op maleen geïntegreerde organisa evandeverplaatsingenalsvoorde ontwikkeling van een levendige wijk (bewoond sta on) of het aanbod van voldoende woningen en kantoren in de buurt van een belangrijke mobiliteitspool. Het ini a ef om het plan te wijzigen wordt dus ruim ingegeven door de aanwezigheid van het sta on en door het feit dat het bestaande plan niet meer strookt met de doelstellingen. Geografische alterna even kunnen dus enkel in de directe omgeving van het sta on worden beschouwd.

Voor een programma zoals wordt beoogd door het huidige BBP zouden mogelijke loca es in de gemeente Schaarbeek de sites zijn van Josaphat (dichtbij het sta on van Evere) en van het Mediapark (geen nabijheid van een mobiliteitspool). Enerzijds worden deze sites al ontwikkeld en anderzijds liggen ze niet in de onmiddellijke nabijheid van het Noordsta on waarop de doelstellingen specifiek gericht zijn.

In dit deel is er dus geen redelijk alterna ef op het vlak van lokalisa e.

Hoofdstuk III / Afdeling 2 Presenta e van de redelijke alterna even / p. 93

ALTERNATIEF VOOR DE PERIMETER

De omtrek van het bestaande BBP kwam tot stand nadat het hele noordelijke deel van het oorspronkelijke BBP werd opgeheven. Men kan zich afvragen of de omtrek van dit ‘resterende deel’ van een oorspronkelijk ruimer

geheel relevant is.

Plan van aanleg van het BBP 19 na de gedeeltelijke herziening eind jaren ‘70 (links) en resterend deel na de gedeeltelijke opheffing in 1995 (rechts)

Er dient benadrukt dat het BBP 19 een homoloog hee in de gemeente Sint-Joost-ten-Node waar het BBP 26 op dezelfde principes van het Manha anplan is gebaseerd. Dit garandeert de coheren e van het geheel:

Plan van aanleg van het BBP 19 van eind jaren ‘70 (rechts) aangevuld met het plan van het BBP 26 van Sint-Joostten-Node (links) dat eveneens eind jaren ‘70 werd herzien.

HoeweldegemeenteSint-Joost-ten-Nodeaan hetbeginvan dewijzigingsprocedurevan dit BBP eveneenshet BBP 26 leek te willen opheffen, lijkt daar vandaag geen sprake meer van te zijn. Volgens de beschikbare informa e bij de opmaak van dit rapport is de gemeente Sint-Joost-ten-Node ook niet meer van plan om het BBP 26 te wijzigen.

Hoofdstuk III / Afdeling 2 Presenta e van de redelijke alterna even / p. 94

De grenzen van het bestaande BBP vallen dus samen met de gemeentegrenzen in het westen en het zuiden, met het midden van de Solvay-as in het noorden en met een lijn die met geen enkel (vandaag bestaand) fysiek of administra ef element overeenstemt in het oosten. Deze grenzen en de verschillende bestaande BBP’s rond de perimeter van het BBP 19 zijn aangeduid op het onderstaande plan:

BestaandeBBP’s HuidigBBP19

Gemeentegrenzen

Perimeter van het huidige BBP en van de omliggende ac eve BBP’s (Brugis, 2022)

In het licht van de voormelde uitdagingen en doelstellingen lijkt een herziening van de perimeter opportuun.

Een uitbreiding van de perimeter naar het zuiden of het westen lijkt onmogelijk. In het westen valt de perimeter immers samen met de gemeentegrens van de Stad Brussel en in het zuiden met de gemeentegrens van de gemeente Sint-Joost-ten-Node. De alterna even voorzien dus enkel in uitbreidingen naar het noorden en/of het oosten.

Verschillende alterna even lijken relevant. De hierna volgende analyse objec veert de keuze van de finale perimeter.

Hoofdstuk
Presenta e van de redelijke alterna even / p. 95
III / Afdeling 2
BBPGGB2 “Gaucheret” BBPGGB1“Helihaven”

UITBREIDING A

Dit alterna ef breidt de perimeter van het huidige BBP uit naar het oosten. HijomvathetheledeelvanhetCCN-gebouwdatindegemeente Schaarbeek is gelegen.

Uitbreiding A lijkt relevant in die zin dat een zekere coheren e in het Schaarbeekse huizenblok CCN gegarandeerd is. De perimeter is coherenter dan de huidige perimeter waarvan de grens in het oosten een probleem vormt. Ze stemt immers met geen enkel bestaand fysiek element overeen en snijdt het gebouw en het perceel van het CCN in twee.

Hoofdstuk III / Afdeling 2 Presenta e van de redelijke alterna even / p. 96
Geheel van de onderzochte alterna even voor de perimeter

UITBREIDING A+B

De perimeter van het huidige BBP wordt uitgebreid naar het oosten en omvatook de binnenstraaten hetvolledige Noordsta on en deperrons.

Gelet op enerzijds de doelstellingen van het BBP, namelijk:

- de intermodaliteit te vergemakkelijken;

- de openbare ruimten meer coherent te benaderen;

- en rekening houden met de erfgoeduitdagingen; en anderzijds de belangrijke rol die kan worden vervuld door de binnenstraat (de oude Vooruitgangstraat) voor de verwezenlijking van die doelstellingen, lijkt de integra e van deze straat in het kader van de wijziging van het BBP 19 bijzonder relevant. De binnenstraat is immers een openbare ruimte op de interface van alle mobiliteitsdiensten.

Ook de integra e van het sta on zelf en van de perrons, een centraal en origineel element van de mul modale hub, is relevant voor de doelstellingen van een geïntegreerde benadering van de mul modale hub.

UITBREIDING A+B+C

De perimeter van het huidige BBP wordt uitgebreid naar het noorden en omvat ook de Solvay-as over haar hele breedte en het deel van de Kwatrechtstraat onder de sporen (tunnel).

De integra e van deze volledige as (officieel het ‘Solvayplein’ genoemd) zonder dat die over de hele lengte in twee wordt gedeeld, is relevant om de openbare ruimten en stadsstructuren meer coherent te benaderen, wateen doelstellingisvanhet BBP.Meeralgemeensluit deintegra evan een volledige as beter aan bij de huidige doelstellingen. De openbare ruimte is belangrijk of primeert zelfs, zowel op het vlak van kwaliteit van de leefomgeving en verplaatsingen als op het vlak van klimaataanpassing (waterbeheer, beplan ng), elementen die eveneens deel uitmaken van de doelstellingen van het BBP.

Door de integra e van de Kwatrech unnel kan het Solvayplein en de aanslui ng ervan met de omliggende openbare ruimte als een geheel worden beschouwd en kan beter worden ingespeeldop demobiliteitsbehoe en. Deintegra evande tunnel in deKwatrechtstraatbevordertde coheren e van de inrich ng van de openbare ruimten en verbindt de onderzochte perimeter met de omliggende wijken, vooral de Brabantwijk die nu van de onderzochte wijk wordt afgesneden door de Noord-Zuidverbinding.

Deze uitbreiding van het BBP 19 interfereert op een deel van het Solvayplein echter met het BBP GGB 2

“Gaucheret” zodat een gedeeltelijke opheffingsprocedure zou moeten worden gestart.

Hoofdstuk III / Afdeling 2 Presenta e van de redelijke alterna even / p. 97

UITBREIDING A+B+C+D

De perimeter van het huidige BBP wordt uitgebreid naar het noorden en omvat ook de site van het voormalige Medical Center en de daartegenover liggende openbare ruimte.

Deze zone ligt recht tegenover de uitgang van het Noordsta on en de uitgang van de Kwatrech unnel. Ze bekleedt dus een posi e waarmee ze een belangrijke rol kan vervullen

- voor de activering van de tunnel en zijn naaste omgeving;

- voor de aansluiting tussen de stationsomgeving en het meer gemengde deel van de Noordwijk;

- voor het creëren van een ecologische verbinding tussen de spoorwegtaluds en de stationsomgeving.

Het Medical Center werd recent afgebroken voor de werken aan de tunnel Metro Noord. De site zou dus moeten worden opgeknapt. Door ze op te nemen in het BBP kan er een iden teit aan worden gegeven die aansluit bij de sta onscontext.

De integra e van de openbare ruimte langs de site van het Medical Center is relevant voor een meer coherente benadering van de openbare ruimten, zowel op het vlak van kwaliteit van de leefomgeving en verplaatsingen als op het vlak van klimaataanpassing (waterbeheer, beplan ng, ...).

Door de integra e van de site van het voormalige Medical Center en haar naaste omgeving kan het Solvayplein en deaanslui ng ervanmet deomliggendeopenbareruimtealseengeheelwordenbeschouwdenkanbeterworden ingespeeld op de mobiliteitsbehoe en.

Al deze elementen sluiten aan bij de doelstellingen van het BBP.

Deze uitbreiding van het BBP 19 interfereert op een deel van de Vooruitgangstraat echter met het BBP GGB 2 “Gaucheret” zodat een gedeeltelijke opheffingsprocedure zou moeten worden gestart.

UITBREIDING A +B +C +D +E

De perimeter van het huidige BBP wordt uitgebreid naar het oosten en omvat niet alleen het hele sta on en de perrons, maar ook een deel van de Brabantwijk.

Deze zone (Brabantwijk) vertoont vandaag een vrij coherente bebouwing, een fijne perceelstructuur en een beperkt poten eel voor stedenbouwkundige herstructurering. De Brabantwijk biedt een func onele mix en een homogeen weefsel dat van een heel ander type is dan het weefsel in de Noordwijk. Er spelen in deze wijk andere dynamieken en andere uitdagingen.

Een dergelijke uitbreiding naar het oosten lijkt niet relevant voor de doelstellingen van het huidige BBP. De perimeter van de strategische studie “Territorium Noord” omvat deze uitbreiding en de oriënta es die haar in dat kader worden gegeven zouden de verbinding en coheren e met de hele zone “Territorium Noord” moeten garanderen.

Hoofdstuk III / Afdeling 2 Presenta e van de redelijke alterna even / p. 98

CONCLUSIE: UITBREIDING F

Deze uitbreiding omvat de uitbreidingen A, B, C en D maar niet de zones waar het BBP 19 interfereert met het BBP GBP 2 “Gaucheret”.

De perimeter behoudt dus haar grens in het midden van de Solvay-as en langs het Medical Center (de Vooruitgangstraat is niet inbegrepen). De aldus gevormde perimeter is bevorderlijk om:

- een zekere coherentie te garanderen in de Schaarbeekse zone van het CCN;

- de intermodaliteit te vergemakkelijken; - de openbare ruimten meer coherent te benaderen; - en rekening te houden met de erfgoeduitdagingen.

De binnenstraat, gelegen op de interface van allemobiliteitsdiensten,kaneenbelangrijkerol vervullen.

Ook de integra e van het sta on zelf, een centraal en origineel element van de mul modale hub, is relevant voor de doelstellingen van een geïntegreerde benadering van de mul modale hub.

Deze alterna eve perimeter biedt het nadeel dat de Solvay-as en de Vooruitgangstraat in het BBP niet over hun hele breedte kunnen worden beschouwd, maar het voordeel dat het BBP “Gaucheret” niet moet worden opgeheven. Na onderzoek van de voorschri en voor deze zones in het BBP GGB 2 werd uiteindelijk deze uitbreiding geïntegreerd in het ontwerp-BBP.

De andere delen van het omgevende gebied die er niet in werden opgenomen, de huizenblokken ten noorden van de Solvay-as, maken wel deel uit van dezelfde Noordwijk maar het huizenblok links (Vlaamse overheid - Ellip c Building) is minder rechtstreeks verbonden met de mul modale pool en werd recent verbouwd en het huizenblok rechts (Amelinckxtoren) is al opgenomen in het BBP GGB 2.

Hoofdstuk III / Afdeling 2 Presenta e van de redelijke alterna even / p. 99

Uitbreiding F werd dus gekozen vanwege haar relevan e voor de wijziging van het BBP 19.

Onderstaande kaarten duiden de bestaande en uitgebreide perimeter aan die werd gebruikt voor de analyse van de alterna even (uitbreiding F). Zoals uitgelegd in de algemene methode hebben de analyses van de programmatorischeenruimtelijkealterna evenbetrekking opdehelezone,dus opallebetrokkenhuizenblokken, ook op deze die in de gemeente Sint-Joost-ten-Node zijn gelegen:

Perimeters van

- het bestaande BBP (volle lijn),

- het uitgebreide BBP (s ppellijn)

- Globale zone met de volledige huizenblokken, hierna ‘de zone’ genoemd (streepjeslijn)

- Gemeentegrenzen (volle zwarte lijn)

Het BBP strekt zich uit over 3 huizenblokken: huizenblok 72 met het Noordsta on en het CCN (in de teksten en op de a eeldingen “CCN” en “sta on” genoemd,), huizenblok 71 (in de teksten en op de a eeldingen “Proximus” (P) genoemd) en huizenblok 68 (in de teksten en op de a eeldingen “North Galaxy” (NG) genoemd).

Het gaat dus niet om de hele huizenblokken Proximus (71) en CCN (72), met alle limieten die dit oplegt aangezien deze huizenblokken werden gebouwd als volledige en teiten.

In deze context hebben de ruimtelijke alterna even die werden uitgewerkt door het bureau belast met de wijziging van het BBP betrekking op het geheel van de huizenblokken. De vastgoedprojecten eindigen immers niet aan de louter administra eve grenzen van het BBP en ook de impact (onder meer op de mobiliteit) reikt verder dan deze abstracte grenzen. Bedoeling is om een beeld te krijgen van de impact van de herontwikkeling van de hele zone, waarop de strategische keuzes van het BBP worden gebaseerd.

DeperimetervanhetuitgebreideBBP biedtduseenbeterecoheren e inhetnoorden,maar degemeentegrenzen staan de coheren e in het zuiden in de weg.

Hoofdstuk
even
III / Afdeling 2 Presenta e van de redelijke alterna
/ p. 100
sta on CCN NG P

TENDENTIËLE ALTERNATIEVEN

Er worden twee tenden ële alterna even onderzocht: enerzijds het behoud van het oorspronkelijke BBP (situa e 0) en anderzijds de opheffing van het oorspronkelijke BBP (situa e 0+).

Situa e 0 (behoud van het BBP uit 1978) wordt beperkt door:

- Enerzijds de BBP’s die eind jaren ‘70 werden herzien: het BBP 26 van de gemeente Sint-Joost-ten-Node en het BBP 19 van de gemeente Schaarbeek die de algemene implantatieprincipes van het Manhattanplan voorstellen en voorzien in de functies huisvesting, administratie en handelszaken en in voorzieningen die verband houden met deze verschillende bestemmingen. Deze BBP’s plaatsen de functies in de zone voor hoogbouw (torens), de zone voor gebouwen met middelmatige hoogte en de zone voor laagbouw. Ook bepalen ze dat de bestaande gebouwen waarvan de bestemming, het volume en het uitzicht niet overeenstemmen met de voorschriften van het plan nog enkel het voorwerp mogen uitmaken van onderhoudswerken. Wederopbouw, verbouwing of uitbreiding zijn dus uitgesloten.

- en anderzijds door het GBP dat onder meer een lint voor handelskernen, een ‘handelsgalerij’ voorziet in het CCN en de oppervlakten van de handelszaken beperkt. De bestaande BBP’s 19 en 26 bieden geen mogelijkheid om deze limieten te overschrijden.

BBP19(1978)

Torensvan102m

Bouwtotmaximaal23m

Kunstmagegrondopgebouwvan 13m

Zonevoorhetverkeer CCN(Hmaximaal35m)

ZonetoegangsplaormentothetCCN

BBP26(1977)

Torenvan102m

Bouwtotmaximaal23m

Kunstmagegrondopgebouwvan13m

Zonevoorhetverkeer

CollagevandeplannenvanhetBBP26(onderaan)vande gemeenteSint-Joost-ten-NodeenhetBBP19(bovenaan) vandegemeenteSchaarbeek.

In deze situa e 0 dekt geen enkel BBP de site van het voormalige Medical Center en de Vooruitgangstraat, de binnenstraat (oude Vooruitgangstraat), het Noordsta on en het oostelijke deel van het huizenblok 72 (CCN).

Ook de lopende projecten in de wijk zullen een impact hebben op de toekoms ge situa e. Binnen de perimeter gaat het om

- een project in het huizenblok Proximus (71): site van de Pleiadetorens,

Hoofdstuk III / Afdeling 2 Presenta e van de redelijke alterna even / p. 101
TENDENTIEEL ALTERNATIEF

- een project in het huizenblok CCN (72): project in het CCN-gebouw en de binnenstraat, dus gelegen op een strategische plaats die bepalend is voor de toekomst van het Noordstation en omgeving. Er dient opgemerkt dat ook deze projecten worden beperkt door de 2 voormelde BBP’s en door het GBP.

De projecten voor de nieuwe tramlijn van de MIVB (Thurn & Taxis - Centrum), de tramterminus van De Lijn, de heraanleg van de Simon Bolivarlaan en het RWZI op de site van het voormalige Medical Center zullen eveneens een impact hebben op de toekoms ge situa e (zie diagnose voor meer details over deze projecten).

De situa e 0+ (opheffing van hetoorspronkelijke BBP) zal niet meer worden omkaderd door het BBP 19, maar nog wel door het oorspronkelijke BBP 26 van de gemeente Sint-Joost-ten-Node en door het GBP. Buiten het BBP 26 zullen enkel het GBP en de GSV dus de toekoms ge situa e in de gemeente Schaarbeek omkaderen. Het lint voor handelskernen ‘handelsgalerij’ van het GBP zal de oppervlakte van de handelszaken in het huizenblok CCN beperken.

Ook de (reeds vermelde) lopende projecten in de wijk zullen een impact hebben op de toekoms ge situa e. Ze zullen niet meer worden omkaderd door het BBP 19, maar nog wel door het BBP 26, het GBP en de GSV.

Bouwprofielen en organisa e van de func es

Situa e 0 (behoud van het BBP van eind jaren ‘70)

Voor debouwprofielengeldt nog hetManha anplandatwerdvoorzien doorde BBP’s 19 en26van eindjaren‘70: 4 torens van 102m, een kunstma ge grond op 13m en een zone voor gebouwen met een middelma ge hoogte van maximaal 23m hoog. In de zone van het CCN mag niet hoger worden gebouwd dan 35m. Wat de organisa e van de func es betre , - worden in het huizenblok North Galaxy en in een deel van het huizenblok Proximus, gelegen in Schaarbeek, overeenkomstig het BBP 19 van eind jaren ‘70 de collectieve voorzieningen vooral geplaatst in de zones voor gebouwen met middelmatige hoogte (aan de kant van de Vooruitgangstraat, Kolenbrandersstraat, Solvaystraat), terwijl de andere functies (huisvesting, kantoren, voorzieningen, handelszaken, vrije beroepen) worden ondergebracht in de zones voor hoogbouw (4 torens aan de kant van Bolivar en Albert II). In de zone voor laagbouw, d.w.z.. op de kunstmatige grond (incl. kelderverdiepingen) komen dan de voorzieningen.

- geldt in het deel van het huizenblok Proximus dat is gelegen in Sint-Joost-ten-Node, overeenkomstig het BBP 26 van eind jaren ‘70, dezelfde verdeling, afgezien van het feit dat in de toren geen handelszaken en voorzieningen worden geplaatst (uitsluitend woningen en kantoren).

- is de zone van het CCN overeenkomstig het BBP 19 van eind jaren ‘70 uitsluitend bestemd voor de mobiliteitshub en voor alle bijhorende diensten en voorzieningen.

Volgens het GBP ligt de perimeter van de BBP’s 19 en 26 in administra egebied. De hoofdfunc es zijn daar dus kantoren en huisves ng, maar er kunnen ook hotelinrich ngen worden geplaatst, evenals voorzieningen van collec ef belang of van openbare diensten, produc eac viteiten die verenigbaar zijn met de andere bestemmingen en handelszaken op een oppervlakte van minder dan 1000m² per project per gebouw (of meer met speciale regelen van openbaarmaking). In het CCN voorziet het GBP een lint voor handelskernen dat de vloeroppervlakte voor handelszaken per project en per gebouw beperkt tot 2.500m². Het BBP 19 van eind jaren ‘70 biedt geen mogelijkheid om die limiet te overschrijden. De func es die worden geboden door het sta onsgebouw worden door het BBP niet omkaderd.

Situa e 0 + (opheffing van het BBP van eind jaren ‘70)

Voor de huizenblokken North Galaxy en CCN en voor het deel van het huizenblok Proximus dat is gelegen in de gemeente Schaarbeek worden de bouwprofielen bepaald door de GSV. In het andere deel van het huizenblok Proximus wordt het Manha anplan behouden dat is voorzien in het BBP 26 van Sint-Joost-ten-Node (d.w.z. een toren van 102m, een kunstma ge grond op 13m en een zone voor gebouwen van middelma ge hoogte tot maximaal 23m).

Wat de organisa e van de func es betre ,

- geldt voor het deel van het huizenblok Proximus dat is gelegen in de gemeente Sint-Joost-ten-Node

Hoofdstuk III / Afdeling 2 Presenta e van de redelijke alterna even / p. 102

overeenkomstig het BBP 26 dezelfde verdeling als hiervoor is beschreven, - Het is het GBP dat hier de doorslag geeft: kantoor- en woongebied dat ook kan worden bestemd voor hotelinrichtingen, voorzieningen van collectief belang of van openbare diensten, productieactiviteiten die verenigbaar zijn met de andere bestemmingen en handelszaken op een oppervlakte van minder dan 1000m²perproject pergebouw(ofmeermetspecialeregelenvanopenbaarmaking).In het CCNvoorziet het GBP een lint voor handelskernen dat de vloeroppervlakte voor handelszaken per project en per gebouw beperkt tot 2.500m².

Ruimtelijke organisa e

Situa e 0 (behoud van het BBP van eind jaren ‘70)

Inhetalgemeenwordendebouwprofielenvan debestaande gebouwenbehoudenenzullendebestaandesokkels niet worden gewijzigd, noch in de zin van het BBP 19 van eind jaren '70 (de globale logica van verkeer op de sokkels, zoals is bepaald in het BBP, wordt in de visie voor het Territorium Noord niet meer aangehouden), noch in een zin die indruist tegen het BBP aangezien dit niet wordt opgeheven.

De esthe sche voorschri en van het BBP 19 van eind jaren 70 zijn van toepassing, naast de voorschri en voor de materialen en de groene ruimten:

Ar kel 10 – Bijzondere schikkingen slaande op de bouwzones

d) Esthe ca:

Al de gevels van eenzelfde gebouw, de mantels der schoorstenen, de machinekamers der li en en alle boven het dak uitstekende en vanaf de grond zichtbare gedeelten worden in dezelfde materialen uitgevoerd. Voor de versiering der construc es wordt gebruik gemaakt hetzij van natuursteen of architectonisch beton, hetzij van siersteen of van kunstof synthe sche steen te aanvaarden door het gemeentebestuur hetzij ook nog van glas of van nature uit of door behandeling roestvrije metalen. De plinten zijn in eik geval in natuursteen en hebben een hoogte van minimum 50cm. De nten en opslorpings- of lichtweerkaatsingscoëfficiënten kunnen aan speciale voorschri en onderworpen.

De afwerking van de muren in de voor-, zij- of achtergevels gebeurt door middel van tegels uit natuur- of samengestelde steen.

De gedeelten van de schoorstenen welke boven het dak uitsteken en zichtbaar zijn vanaf de openbare weg worden bedekt hetzij met tegels uit natuur- of samengestelde steen hetzij door een sta sche aspirator, met uitslui ng van gelijk welk ander afdekkingsmiddel uit gekleurd aardewerk of gewapend beton.

Wanneer de afwerking van de gevelmuur bestaat uit een kroonlijst, mag deze laatste uitgevoerd worden in hout, in kunststeen of sierbeton. Gewalst beton mag eveneens aangewend worden, op voorwaarde dat de gewalste oppervlakten uitgevoerd worden op basis van cement, zavel en wit grint.

Al de construc es waarvan de geraamten gewapend ruwbeton uitgevoerd worden zijn verboden.

e) Dakbedekking:

Op de gebouwen liggen pla e daken.

Ar kel 11 - Bijzondere schikkingen slaande op de zones voor groene ruimten

Buiten de ruimten omschreven in ar kel 2, bepalen de aangeduide percentages verplichte groene ruimten, de minima bijkomende groene ruimten welke dienen aangelegd, hetzij op de grond, hetzij boven de grond onder vorm van sierbeplan ngen.

De gedeelten van deze zones die gelegen zijn op het peil van de begane grond zullen verplichtend hoogstammige bomen beva en.

De zones voor groene ruimten worden ais tuintjes aangelegd en mogen in de ondergrond gebruikt worden ais garages op voorwaarde deze laatste te bedekken met een laag van minimum 50cm teelaarde voorzien van grasperken en struikgewas.Het aanleggenvan toegangentot degebouwenen garageszal ingeengeval met meerdan2/3 debeplante oppervlakte mogen verminderen van de totale oppervlakte per gebouw. De grondlaag moet plaatselijk een zodanige diepte hebben dat het planten van hoogstammige bomen mogelijk is met alle kans op het kiemen en een normale ontwikkeling.

De achteruitbouwstroken moeten deze bestemming van tuintjes behouden; op de rooilijn wordt een dorpel in arduinsteen geplaatst van 20cm hoogte en 25cm breedte, alle hoeken afgerond; 0cm achter deze dorpel wordt een groene haag geplant, welke regelma g dient gesnoeid en waarvan de hoogte beperkt is tot 70cm boven het peil van het voetpad. Op de gemeenschappelijke scheiding zijn de groene hagen aan dezelfde voorwaarden onderworpen; zij kunnen desnoods door een metalen afrastering van dezelfde hoogte vervangen worden.

*Verplichte zone voor groene ruimte aangeduid op het plan (maar niet aanwezig in de perimeter sinds de afschaffing in 1995)

Hoofdstuk III / Afdeling 2 Presenta e van de redelijke alterna even / p. 103
TENDENTIEEL ALTERNATIEF

Er dient opgemerkt dat het BBP 26 geen specifieke esthe sche voorschri en bevat, noch voorschri en voor de materialen.

In het BBP 19 (perimeter van 1995) is 30% groene ruimte voorzien in het huizenblok North Galaxy en in het deel van het huizenblok Proximus dat is gelegen in Schaarbeek. Het BBP omvat geen aanwijzingen over de groene ruimten en de ruimtelijke organisa e in de zones voor verkeer en in de zone van het CCN.

Op het vlak van groene ruimten garandeert het BBP het behoud van het park in de Albert II-laan en stelt het ook de volgende maatregel voor die geldig blij in de hele zone: “ 0.2 stedenbouwkundig a est, stedenbouwkundige vergunning of verkavelingsvergunning die betrekking hebben op een grondoppervlakte van minstens 5.000 m² voorzien in de instandhouding of de aanleg van groene ruimten die minstens 10 % van die grondoppervlakte beslaan, daarin begrepen één of meer groene ruimten uit één stuk met een grondoppervlakte van 500 m² elk. “

Ook het GBP (bijzonder voorschri 24 betreffende de structurerende ruimten) voorziet als volgt: “Handelingen en werken die een wijziging tot gevolg hebben van de bestaande feitelijke toestand van die ruimten en van hun naaste omgeving, zichtbaar vanaf de voor het publiek toegankelijke ruimten, behouden en verbeteren de kwaliteit van het stedelijklandschap. Bovendien moetende structurerenderuimten met bomenopeencon nueenregelma ge wijze worden beplant. “

Situa e 0+ (opheffing van het oorspronkelijke BBP van eind jaren ‘70)

In het algemeen mag de ruimtelijke organisa e verschillen van deze die het Manha anplan voorziet in de perimeter van het BBP 19 van eind jaren ‘70. In het deel van het huizenblok 71 dat is gelegen in de gemeente SintJoost-ten-Node, die het BBP 26 behoudt, blij ze echter conform het Manha anplan.

De GSV reglementeert het uitzicht van de huizenblokken North Galaxy en CCN en van het deel van het huizenblok Proximus dat is gelegen in de gemeente Schaarbeek. De groene ruimten worden gereglementeerd door de GSV (zie eerder).

Mobiliteit

Situa e 0 (behoud van het BBP van eind jaren ‘70)

Hetplanvanhet BBP bepaaltdezonevoorbehoudenvoorhet verkeervanvoertuigenenvoetgangers(inhetgeel).

Bij deze zone voor verkeer voegt zich de zone voor verkeer boven de kunstma ge grond (op 13 m hoogte) die is beschreven in ar kel 9 van de voorschri en:

... De bedekking van de gebouwen opgetrokken in de zone voor laagbouw wordt zodanig uitgevoerd dat het verkeer voor voetgangers en lichte dienstvoertuigen erop mogelijk is.

Al de construc es in de zones voor gebouwen met middelma ge hoogte en hoogbouw zijn alzo toegankelijk op het peil van deze bedekking, dewelke zodus een kunstma ge grond uitmaakt. Dit verkeer boven het peil van de begane grond, dat kan verwezenlijkt worden onder vorm van overdekte doorgangen, zal aan dit van de begane grond verbonden worden door trappen, opri en en mechanische ophalingen, dwars door de construc es of de verkeerszone geves gd.

Het aantal, de plaatsing en de kenmerken van deze verbindingen, alsook van deze welke de verschillende

Hoofdstuk III / Afdeling 2 Presenta e van de redelijke alterna even / p. 104
TENDENTIEEL ALTERNATIEF
StructurerenderuimtenvanhetGBP

verkeersne en op het peil van de kunstma g geschapen grond verenigen worden vastgesteld door het college van burgemeester en schepenen.

Er dient opgemerkt dat het Solvayplein op het plan van het BBP 19 is voorzien als toegangspla orm tot het CCN (geel/wit gearceerd).

Het plan van het BBP 19 duidt ook de zone aan die is bestemd voor het CCN (in het bruin). In deze zone wordt het intermodale knooppunt geplaatst, zoals blijkt uit de voorschri en bij het plan:

Ar kel 13 – Communica ecentrum Noord

Het Centrum (afgekort CCN) is bestemd om in eenzelfde geheel onder te brengen: een sta on voor interlokaal en metropolisch spoorverkeer, een autobus- en tramsta on, een taxista on, de toegangen tot deze sta ons alsook de lokalen bestemd voor alle bijhorende diensten en uitrus ngen.

De voorschri en vermeld onder ar kel 10, d zijn van toepassing op het CCN.

Voor het parkeren bevat het BBP 19 van eind jaren ‘70 de volgende voorschri en:

Ar kel 12 -

Bij elk woongebouw moeten overdekte of openluchtstandplaatsen horen voor het parkeren of bergen van voertuigen waarvan het aantal evenredig is aan het aantal woongelegenheden.

Bij elk bureaugebouw moeten overdekte of openluchtstandplaatsen horen voor het parkeren of bergen van voertuigen waarvan het aantal evenredig is met de bruikbare bureau oppervlakte. De evenredigheidscoëfficiënten worden bepaald door het college van burgemeester en schepenen. In de nabijheid der collec eve uitrus ngen en der gebouwen van openbare diensten zullen de standplaatsen voorzien worden voor het parkeren der voertuigen waarvan de gebeurlijke of standvas ge aanwezigheid voortvloeit uit de bedoelde uitrus ng en gebouwen.

Het afleveren van de bouwvergunning kan onderworpen worden aan alle voorwaarden die betrekking hebben op de goede aanleg van de toegangen der voertuigen tot de openbare weg.

De ingangen van de gebouwen en de logis eke toegangen worden niet omkaderd door de BBP’s.

Situa e 0 + (opheffing van het BBP van eind jaren ‘70)

Waar de zone voor het verkeer (op het plan van het BBP in het geel aangeduid) en het verkeer op de kunstma ge grond zoals voorzien in het BBP 26 nog steeds van toepassing zijn op het deel van het huizenblok Proximus dat is gelegen in de gemeente Sint-Joost-ten-Node, zijn op de perimeter van het BBP 19 alleen de gewestelijke specifica es van toepassing:

- het GBP en de structurerende ruimten (zie het plan in de ruimtelijke organisatie hiervoor);

- Het Gewestelijk Mobiliteitsplan “Good Move” en de MSV:

Het Solvayplein, dat op het plan van het BBP 19 is voorzien als toegangspla orm tot het CCN (geel/wit gearceerd), is niet meer noodzakelijk bestemd voor het CCN.

Voor het parkeren zijn de regels van de GSV en het BWLKE van toepassing.

Hoofdstuk III / Afdeling 2 Presenta e van de redelijke alterna even / p. 105
TENDENTIEEL ALTERNATIEF
Herinnering:allewegenindeperimeter zijngewestwegen. Voetgangersboulevard
PROGRAMMATORISCHE ALTERNATIEVEN
MSV Auto

PROGRAMMATORISCHE ALTERNATIEVEN

Ter herinnering, in de bestaande toestand1 zijn dit de oppervlakten per huizenblok2 en per func e:

Kadastrale

Voor de opmaak van de programmatorische alterna even stelde het bureau belast met de wijziging van het BBP de combina e voor van:

- twee waarden voor te bebouwen vloeroppervlakte;

- twee “cocktails” van bestemmingen.

Voor de totale vloeroppervlakte ging het bureau belast met de wijziging van het BBP uit van het principe dat de vloeroppervlakte van de huizenblokken Proximus, North Galaxy en sta on3 , waarvoor geen grootschalige projecten lopen, niet zal toenemen. De op es voor de totale vloeroppervlakten van de huizenblokken betreffen dus enkel de ontwikkelingen in het huizenblok CCN.

De volgende op es worden voorgesteld:

Op es voor de totale vloeroppervlakten

In totaal zal de vloeroppervlakte dus 45 000 à 75 000 m² toenemen in vergelijking met de huidige toestand. Voor de “cocktail” van bestemmingen stelde het bureau belast met de wijziging van het BBP enerzijds voor om de wijk meer gemengd te maken maar de belangrijke kantoorfunc e te behouden, zoals het ZIN-project dat 70%

1 Ter herinnering: op basis van nieuwe bronnen werden een aantal gegevens jdens de analyse aangepast. Voor de vergelijking van de alterna even met de bestaande toestand werden de cijfers gebruikt van de hier opgenomen tabellen, maar de werkelijke toestand is licht verschillend (bijvoorbeeld: 109 334 m² vloeroppervlakte in plaats van 107 745 m vloeroppervlakte voor het huizenblok North Galaxy). Het betre slechts lichte wijzigingen die de exacte ramingen weliswaar bijstellen maar die niets veranderen aan de conclusie van de analyses.

2 Het gaat om 4 huizenblokken. Het huizenblok 72 (CCN-sta on) vormt de scheiding tussen het sta onsgebouw (met bijzonderheden op het vlak van bouw en func e) en de rest van het huizenblok. Het omvat dus het gebouw van het CCN en de verbinding met het sta onsgebouw (de binnenstraat en de overkapping).

3 Voor het sta on werd de indica eve vloeroppervlakte van 15 000 m² weerhouden om een deel van de niet-ac eve beschikbare ruimten te kunnen ac veren (bijvoorbeeld door de tunnelranden of doorlopende corridors open te trekken).

Hoofdstuk III / Afdeling 2 Presenta e van de redelijke alterna even / p. 106
Bestaande toestand Bestaande toestand Kantoren 308 331 m² 96% Huizenblok CCN 86 248 m² Huisves ng 0 m² Huizenblok Proximus 112 441 m² Voorzieningen 2 167 m² 1% Huizenblok North Galaxy 107 745 m² Handelszaken 9 717 m² 3% Huizenblok sta on 13 781 m² Produc eac viteiten 0 m² Totaal 320 215 m² vloeroppervlakte Totaal vloeroppervlakte 320 215 m² Grondinname 0,77
percelen 72 469 m²
35 815 m²
Grondinname
Op e Max Op e Min Huizenblok CCN 160 000 m² 130 000 m² Huizenblok Proximus 112 441 m² 112 441 m² Huizenblok North Galaxy 107 745 m² 107 745 m² Huizenblok sta on 15 000 m² 15 000 m² Totaal 395 186 m² 365 186 m²
PROGRAMMATORISCHE ALTERNATIEVEN

kantoor- en 20% woonfunc es voorstelt. Anderzijds baseerde het bureau zich op de ontwikkelingsdoelstellingen van het noordelijk gebied: maximaal 50% van de vloeroppervlakte wordt bestemd voor kantoren, minstens 33% voor huisves ng en minstens 10% voor openbare voorzieningen.

De volgende op es worden voorgesteld:

Op e Max4 Op e Min5

Op es voor de ‘cocktail’ van bestemmingen voor de huizenblokken CCN, Proximus en North Galaxy. Erdientopgemerktdatde‘cocktail’vanbestemmingennietwerdtoegepastophethuizenblok‘sta on’datimmers specifieke func es omvat (zowel qua mobiliteit als qua handelszaken) en recent werd gerenoveerd en heringericht.

De algemene grondinname, die in de bestaande situa e hoog is, werd verminderd. Door de oppervlakte van het gebied te verkleinen wordt open ruimte vrijgemaakt voor beplan ng en/of verkeer. Besloten is deze grondinname te verlagen tot 0,6 voor de alterna even i) en ii) en tot 0,55 voor de alterna even iii) en iv).

De kruising van deze op es leidde tot 4 alterna even voor de perimeter van de huizenblokken:

Presenta e van de 4 bestudeerde alterna even Het zijn deze alterna even die worden onderzocht en vergeleken in Afdeling 3 van hoofdstuk III.

4 De term “Max” verwijst naar de verhouding kantoren die in deze op e het hoogst is.

5 De term “Min” verwijst naar de verhouding kantoren die in deze op e het laagst is.

6 De eerste term (Max of Min) hee betrekking op een van de 2 op es voor de totale vloeroppervlakte en de tweede term (Max of Min) op een van de twee weerhouden op es voor de ‘cocktail’ van bestemmingen.

Hoofdstuk III / Afdeling 2 Presenta e van de redelijke alterna even / p. 107
Alterna ef (i) Max Max6 Alterna ef (ii) Max Min6 Alterna ef (iii) Min Max6 Alterna ef (iv) Min Min6 Kantoren 276 130 m² 200 093 m² 255 130 m² 185 093 m² Huisves ng 76 037 m² 125 461 m² 70 037 m² 115 561 m² Voorzieningen 20 009 m² 31 415 m² 18 509 m² 29 015 m² Handelszaken 14 406 m² 22 009 m² 13 506 m² 20 509 m² Produc eac viteiten 8 604 m² 16 207 m² 8 004 m² 15 007 m² Totaal vloeroppervlakte 395 186 m² 395 186 m² 365 186 m² 365 186 m² Grondinname 0,6 0,6 0,55 0,55 Kadastrale percelen 72 469 m² in totaal / 46 237 m² buiten N-Z-verbinding Grondinname 27 742 m² 27 742 m² 25 430 m² 25 430 m²
PROGRAMMATORISCHE ALTERNATIEVEN

RUIMTELIJKE ALTERNATIEVEN

Op basis van de uitdagingen die naar voor kwamen jdens de diagnosefase (zie bijlage III-3-B-a), de studie van de thema sche op es7 en de itera eve werkzaamheden tussen de studiebureaus, kon het studiebureau belast met de wijziging van het BBP 3 ruimtelijke alterna even uitwerken die deze verschillende op es combineren.

Het programma dat in deze ruimtelijke alterna even is "geïnjecteerd" ziet er als volgt uit

- Toegekende vloeroppervlakten8 :

o 114.801 m² vloeroppervlak voor North Galaxy met een vermindering van 10%;

o 119.971 m² vloeroppervlak voor Proximus (waarvan 49.225 m² in het PPAS) met een vermindering van 10%;

o 165.000 m² vloeroppervlak voor het CCN-perceel (waarvan 119.378 m² in het PPAS);

o Nieuwbouw van 5.000 m² vloeroppervlak op het Solvayplein, naast de buskeerplaats. In totaal 404.772 m² (waarvan 288.404 m² in het PPAS).

- Toewijzingen,voordeverschillendebetrokkenblokken(behalve het Solvay-plein, dat aan een installatie is gewijd):

o 50% van het vloeroppervlak bestemd voor kantoren;

o 33% van het vloeroppervlak bestemd voor huisvesting

o 10% van het vloeroppervlak bestemd voor openbare voorzieningen;

o 3% van de vloeroppervlakte bestemd voor de productie van immateriële goederen en voor productieve ambachtelijke activiteiten.

o 4% van het vloeroppervlak bestemd voor de handel.

Bij de uitwerking van de 3 ruimtelijke alterna even werd uitgegaan van enkele invariante basisprincipes:

- Herwaardering van de aanwezigheid van het station als ruimtelijk baken, historisch monument en intermodaal knooppunt waarvan de leesbaarheid moet worden verhoogd vanaf het Bolivarplein: het huizenblok CCN wordtterhoogtevande Bolivarlaanopengebrokenomeen visuelecontinuïteittebieden van het kanaal tot aan de Koninklijke Sint-Mariakerk;

- Herwaardering van de identiteitvan dewijkmet eerdertorensdan woonblokkenenmet behoud vaneen volumetrie die is bepaald in het Manhattanplan;

- Reorganisatie van het Bolivarplein om meer plaats vrij te maken voor de voetgangers en fietsers en om de voetgangersboulevard te kunnen aanleggen;

- Ontharding met meer ruimte voor groene ruimten om de microklimatische voorwaarden te verbeteren en een aantrekkelijker ruimte te creëren;

- Aanzienlijke beperking van het doorgaand verkeer in de perimeter: het Bolivarplein en -voorplein, de binnenstraat en de kleine Vooruitgangstraat zijn niet toegankelijk voor personenwagens. Dat geldt ook voor het deel van het Noordplein dat is gelegen tussen de Vooruitgangstraat en de uitrit van de ondergrondse parking van het CCN;

- Opheffen van het parkeren op de openbare weg;

- Rationalisering van de toegangen naar de ondergrondse parkings: een inrit voor de huizenblokken North Galaxy en Proximus in de Albert II-as en een inrit aan elke kant (noord en zuid) van het huizenblok CCN.

De 3 alterna even verschillen op het vlak van bouwprofielen (hoogte en organisa e van de volumes), organisa e van de func es in de zone, ruimtelijke organisa e (ontwikkeling van beplan ng, beheer van de niveaus en het

7 Zie Afdeling 1. Methode

8 De berekening is ook gebaseerd op een gescha e hoogte van de begane grond van 6 m en 3,4 m per verdieping. Er zijnechteruitzonderingeninsommigeblokken,zoalsNorthGalaxy,waaréén blok een beganegrondhoogtevan 3,4 m hee . Bij de berekening van het sta on is rekening gehouden met de begane grond (die momenteel wordt ingenomen door de bushub).

Hoofdstuk III / Afdeling 2 Presenta e van de redelijke alterna even / p. 108
RUIMTELIJKE ALTERNATIEVEN

niveauverschil ...) en organisa e van de mobiliteit (stromen van de verschillende verplaatsingswijzen en specifiek van het bussta on).

De 3 alterna even (Iconisch sta on, Gedeeld sta on en Sta on met voorzieningen) worden toegelicht op de volgende pagina’s.

Ter herinnering (bestaande feitelijke situa e), het huizenblok CCN en sta on biedt de bijzonderheid van twee belangrijke ‘openbare’ niveaus: het stadsniveau (niveau van de openbare ruimte, de stad) en het sta onsniveau (niveau van de sta onshal, het zenuwcentrum van het Noordsta on). Voor elk alterna ef worden dus 2 plannen voorgesteld met deze niveaus.

Ook voor de bouwprofielen zijn er twee illustra es:

- enerzijds de organisatie van de functies in geschikte volumes waarin de bouwwerken kunnen worden geplaatst;

- anderzijds de 3D-simulaties, voorbeelden van bouwprofielen die kunnen worden geplaatst in de geschikte volumes en tegelijk aansluiten bij de preferentiële programmatie. Deze simulaties zijn slechts een voorbeeld van de vorm die kan worden gegeven aan de bouwwerken, maar zijn relevant in die zin dat ze een aantal meer gedetailleerde analyses mogelijk maken.

Hoofdstuk III / Afdeling 2 Presenta e van de redelijke alterna even / p. 109
RUIMTELIJKE ALTERN
ATIEVEN

ALTERNATIEF 1–ICONISCH STATION

In dit eerste alterna ef versterkt de aanleg van de Boulevard Bolivar, voortgezet door de ontwikkeling van een massieve plaat voor het voorplein, de gang naar het sta on en markeert het zijn iconische ingang.

Bouwprofielen en organisa e van de func es

Voor de huizenblokken North Galaxy en Proximus voorziet het alternatief 1 niet in het behoud van de bestaande torens. De bebouwde volumes worden zo georganiseerd dat hoogbouw wordt bevoorrecht in de kleine Vooruitgangstraat, in de Koolbrandersstraat en op de Solvay-as.

Voor het CCN, een gebouw dat niet meer geschikt is voor de huidige behoeften en waarvoor een afbraakvergunning werd afgeleverd, opteert het alternatief 1 ervoor om:

- de gemiddelde hoogtes van de huidige gebouwen (de torens North Galaxy en Proximus) niet te overschrijden en gebouwen op te trekken van 93 en 102 m;

- de hoogte van de gebouwen in de buurt van het station te beperken (behalve voor hetgebouwdatis gelegenopdeBolivaras), met 2 insprongen op 21m en 30m aan de kant van de binnenstraat om vervolgens geleidelijk aan optelopentot102m ;

- profielen te creëren met een gradatie op 21m aan de kant van de kleine Vooruitgangstraat voordat het gebouw van 102m wordt bereikt.

De func es worden in het alterna ef 1 als volgt verdeeld:

- ontwikkeling van een gebied voor voorzieningen op de Bolivaras;

- ontwikkeling van voorzieningen en handelszaken op alle eerste verdiepingen van alle huizenblokken;

- ontwikkeling van woningen op de bovenste verdiepingen in de hele perimeter;

- Ontwikkeling van een lineair busstation langs de binnenstraat over haar hele lengte, met een keerzone voor de bussen in de open lucht op het Solvayplein (en dus niet op de as Solvay-Kwatrecht) en aan- en afrijden op de lage halve verdieping van het huizenblok CCN.

De vorm van het alterna ef 1 wordt grafisch weergegeven op de volgende schema’s:

Gemengde bestemmingen Voorzieningen

Kantoren

Woningen Busstaon

Geschikte volumes (1010au)

3D-simula e (1010au)

Hoofdstuk III / Afdeling 2 Presenta e van de redelijke alterna even / p. 110
ALTERNATIEVEN INLEIDING RUIMTELIJKE ALTERNATIEVEN

Ruimtelijke organisa e

Naast de invariante basisprincipes stelt het alterna ef 1 voor om:

- het huizenblok CCN te “splitsen” (openbare doorgangen op privégrond), open te trekken om visuele doorbraken, passages en doorgangen te creëren doorheen het lineaire busstation:

o enerzijds in het ‘midden’ van het perceel, in de as van de Bolivarlaan; op het stationsniveau (ter hoogte van de stationshal) kan een ruimte van 35m breed worden gecreëerd om het stationsniveauen de ingangvandestationshalteherwaarderen. Het stadsniveau, dat onder het stationsniveauisgelegen,wordtoverdekt enbiedtdoorheen hetlineairebusstationtoegang tot de metro en tot de stationsingang voor PBM;

o anderzijdsopdegemeentegrens(Schaarbeek/Sint-Joost-ten-Node)indeasvandeklokkentoren van het station waardoor die wordt geherwaardeerd. Deze ruimte, met ongeveer dezelfde grootte als de vorige (en slechts deels opgenomen in het BBP) wordt niet overdekt.

- Bomenrijen te creëren, te behouden of te versterken:

o De bomenrijen op de Solvay-as te behouden of te versterken;

o Een bomenrij te creëren in de Koolbrandersstraat;

o Een groene ruimte te ontwikkelen op de site van het Medical Center.

Voor het beheer van de niveaus en het niveauverschil op het perceel van het CCN hee het alterna ef 1 de volgende kenmerken:

- Ter hoogte van de stationshal (stationsniveau) wordt een plaat behouden die zich uitstrekt boven de binnenstraat; het betreft een doorgang in de open lucht op hoogte die langs de hele stationsgevel loopt (de ‘hoge’ binnenstraat) en de 3 ingangen op het stationsniveau met elkaar verbindt: de stationshal, het Solvayplein en het Noordplein (buiten de perimeter). Onder deze plaat ligt dus nog een overdekte binnenstraat (op stadsniveau). Deze doorgang op hoogte wordt verlengd door een loopbrug over de Kwatrechtstraat en daalt af op de site van het voormalige Medical Center. De plaat wordt tussen de aanwezige gebouwen in het huizenblok CCN verlengd van de stationshal tot het Bolivarplein. Zo wordt in de as van de laan een ‘hoog Bolivar-voorplein’ gecreëerd. De gevels van de nieuwe gebouwen langs deze plaat worden geactiveerd door handelszaken en voorzieningen;

- deze plaat integreert de verticale relaties ter hoogte van het voorplein tussen de behouden en gecreëerde “hoge” ruimten en de overdekte “lage” ruimten;

- op stadsniveau (het “lage” niveau) wordt het bestaande niveauverschil behouden: het grondniveau daalt van het Bolivarplein naar het lager gelegen busstation en loopt in de binnenstraat op richting stationstoegang voor PBM. Deze ruimten onder de plaat worden georganiseerd om de werking van de mobiliteitsinfrastructuren mogelijk te maken (busterminus, stationsingangen voor gebruikers en logistiek, taxi’s, kiss and ride, toegang tot de fietsparking ...).

Hoofdstuk III / Afdeling 2 Presenta e van de redelijke alterna even / p. 111
RUIMTELIJKE ALTERNATIEVEN

Bebouwde zones

Overdekte zones (tunnels, ruimten onder platen)

Groene ruimtes in volle grond

Laanbomen

Ingangen van gebouwen

Bebouwde zones – hoge schaal

Andere bebouwde zones (lage schaal)

Vrij gemaakte zones binnen de eilanden

Hoogeplaatste publieke ruimte

Ingangen van gebouwen

Hoofdstuk III / Afdeling 2 Presenta e van de redelijke alterna even / p. 112
Ruimtelijke organisa e op stadsniveau in het alterna ef 1 (bron: 1010au)
RUIMTELIJKE ALTERNATIEVEN
Ruimtelijke organisa e op sta onsniveau in het alterna ef 1 (bron: 1010au)

Mobiliteit.

Naast de invariante basisprincipes werd om technische redenen gekozen voor een lineair bussta on met een keerzone voor de bussen op het Solvayplein.

Het alterna ef 1 voorziet in een voetgangersboulevard die doorheen het huizenblok CCN loopt, op de grens tussen de gemeenten Sint-Joost-ten-Node en Schaarbeek, en gedesaxeerd verschijnt ter hoogte van de Simon Bolivarlaan. De Simon Bolivar-as wordt verhard om de gebruikersstromen van het sta on en het openbaar vervoer op dit voorplein te prioriseren. Het alterna ef 1 stelt ook een fietsdoorgang voor van de Simon Bolivarlaan tot de fietsparking van het sta on, doorheen het bussta on en het niveauverschil. Op het Bolivarplein worden de 2 busterminussen behouden en wordt een keerzone voorzien.

Omdewegenmeervrij temakenvooranderegebruiksdoeleindenenconflictpuntentussen deverschillendegebruikers tebeperken,moetendelogis eketoegangenwordengera onaliseerdenvoorelkhuizenblokinaantalwordenbeperkt. Gezien de breedte van de betrokken assen, de MSW en de specifieke stedelijke typologie (gebouwen-huizenblokken), dus gezien de ruimtelijke capaciteiten van de huizenblokken om de leveringen te beheren op het perceel zodat het verkeer niet wordt belemmerd, laat het alterna ef 1 de leveringen plaatsvinden in de kelderverdieping, via dezelfde toegang als deze tot de parking, en ontwikkelt het de toegangen (in- en uitri en) op de assen Albert II en Solvay (VV Comfortwegen volgens het plan Good Move) en op het noordelijke deel van de Kleine Vooruitgangstraat voor het gebouw North Galaxy. Omdat het sta on recent werd gerenoveerd en de toegangen voor het vrachtverkeer aan de kant van het Solvayplein werden geplaatst, zullen de toegangen voor “zware” logis eke vrachtwagens (> 3m hoog) voor de huizenblokken CCN en sta on zich daar bevinden.

Het ingangsysteem van de gebouwen is lager gelegen. De ingangen zijn talrijk, maar weinig zichtbaar vanaf de straat. Ze zijn verbonden met de li kokers en worden gegroepeerd.

Haltes voor OV

Bus Hub

Busroute

Tramroute

Voetgangers Magistrale

Fietsroute

Fietsparking

Traject van de wagens

Traject van de taxis

Logis eke toegangen en ingangen tot ondergrondse parkeergarages

Hoofdstuk III / Afdeling 2 Presenta e van de redelijke alterna even / p. 113
RUIMTELIJKE ALTERNATIEVEN
Organisa eschema van de mobiliteit voor het alterna ef 1

ALTERNATIEF 2 - GEDEELD STATION

Het tweede alterna ef voorziet in openingen in het Noordsta on op verschillende punten in het RDV-gebied om een verbinding tot stand te brengen tussen de wijken Brabant en Noord. Het sta on wordt in zekere zin "gedeeld" door deze twee wijken.

Bouwprofielen en organisa e van de func es

Voor de huizenblokken North Galaxy en Proximus stelt het alterna ef 2 voor om de bestaande torens in de zone voor hoogbouw in de Albert II-laan (waarvan slechts een deel in de gemeente Schaarbeek ligt) te behouden ten behoeve van decirculariteitenhetrespectvandeondergrond(behoudvandeverankeringindegrondvandebestaandegebouwen).

De maximumhoogte van de torens bedraagt in het alterna ef 105 m, tegenover 102 m in de bestaande toestand. De andere hoge gebouwen worden geplaatst op de Solvay-as of in de Koolbrandersstraat. Op het Bolivarplein worden lagere gebouwen voorzien.

Voor het CCN, een gebouw dat niet meer geschikt is voor de huidige behoeften en waarvoor een afbraakvergunning werd afgeleverd, opteert het alternatief 2 ervoor om:

- de gemiddelde hoogtes van de omliggende gebouwen niet te overschrijden en gebouwen op te trekken van 102 m;

- de hoogte van de gebouwen in de buurt van het station te beperken (behalve voor de 2 gebouwen die zijn gelegen op deBolivar-as), met 2 insprongen op 21m en 30m aan de kant van de binnenstraat om vervolgens geleidelijk aan optelopentot102m ;

- profielentecreërenmeteengradatieop21maandekantvandekleineVooruitgangstraatvoordathetgebouw van 102m wordt bereikt;

De func es worden in het alterna ef 2 als volgt verdeeld:

- ontwikkeling van een gebied voor voorzieningen in de Kleine Vooruitgangstraat;

- ontwikkeling van voorzieningen en handelszaken op alle eerste verdiepingen van alle huizenblokken om het backstreet-effect te vermijden en het daadwerkelijke gebruik van de openbare ruimte te bevorderen;

- deontwikkeling van huisvesting(huizenblok CCN) opvoldoendeafstand vandespoorweg om degeluidshinder te beperken;

- de ontwikkeling van ’hoge’ en ‘lage’ woningen met 5 verticale woonzones verdeeld over de hoogbouw, om diverse lokalisaties van de woningen aan te bieden;

- deontwikkelingvaneengegroepeerdbusstationinhetzuidenvandeBolivaras(hetmerendeelindegemeente Sint-Joost-ten-Node waarbij de bussen aan- en afrijden onder de overkapping van het CCN-gebouw.

Gemengde bestemmingen

Voorzieningen

Kantoren

Woningen

Busstaon

De vorm van het alterna ef 2 wordt grafisch weergegeven op de volgende schema’s: Geschikte volumes (1010au)

Hoofdstuk III / Afdeling 2 Presenta e van de redelijke alterna even / p. 114
3D-simula e
ALTERNATIEVEN ALTERNATIEVEN RUIMTELIJKE ALTERNATIEVEN
(1010au)

Ruimtelijke organisa e

Naast de invariante basisprincipes stelt het alterna ef 2 voor om:

- het huizenblok CCN ‘open te trekken’ (openbare doorgangen op privégrond) om er een visuele doorbraak in te richten en een brede, doorlopende doorgang in het midden van het perceel, in de as van de Bolivarlaan, om het stationsgebouw en de ingang van de stationshal te herwaarderen. Deze ruimte van 40 m breed is niet overdekt: de benedenverdieping leidt zowel naar de metro als naar de stationsingang voor PBM zonder dat het in het zuiden gegroepeerde busstation moet worden doorgestoken;

- de binnenstraat te verbreden tot 20m en eveneens onoverdekt te laten, in het verlengde van het Bolivarvoorplein;

- de beplanting in het BBP te behouden en te ontwikkelen:

o een grote groene ruimte te ontwikkelen op het Bolivarplein: potentieel op volle grond zodat een systeem kan worden voorzien om het regen- en pompwater te doen afvloeien naar de Zenne, wat aansluit bij het project Max aan de Zenne. Deze groene ruimte wordt zo omkaderd dat ze de andere functies die voor deze ruimte worden voorzien niet hindert. Onder meer de doorgang voor het openbaarvervoerendeinrichtingvandehaltesblijvenmogelijk.Dezegroeneruimtewordttottussen de gebouwen van het CCN verlengd via bomenrijen om deze centrale as te versterken en te benadrukken;

o een groene ruimte te ontwikkelen op de site van het Medical Center;

o en het onbebouwde noordelijke deel van het Solvayplein te beplanten om de verbinding tussen het Bolivarplein (en de rest van de laan) en de spoorwegtaluds te garanderen.

Voor het beheer van de niveaus en het niveauverschil op het perceel van het CCN hee het alterna ef een wijziging van de bestaande toestand tot gevolg:

- De plaat op stationsniveau is in dit alternatief niet meer actueel: in het verlengde van de Bolivarlaan loopt tot aan het station een doorgang in de open lucht. De bodem vertoont tussen het Bolivarplein en het station geen dubbel niveauverschil meer (het busstation ligt lager), maar eerder een zachte helling.

- de aldus gecreëerde ruimte vormt een voorplein in de openbare ruimte dat zowel toegang verleent tot de trappen naar de metro beneden als tot de trappen naar de stationshal boven (waaronder de toegang voor PBM) en ook rechtstreeks toegang tot de fietsparking. Dit centrale voorplein is verbonden met alle mobiliteitsdiensten die op de site van het Noordstation aanwezig zijn. De gevels van de nieuwe gebouwen langs dit voorplein worden geactiveerd door handelszaken en voorzieningen.

Hoofdstuk III / Afdeling 2 Presenta e van de redelijke alterna even / p. 115
RUIMTELIJKE ALTERNATIEVEN

Bebouwde zones

Overdekte zones (tunnels, ruimten onder platen)

Groene ruimtes in volle grond

Laanbomen

Ingangen van gebouwen

Bebouwde zones – hoge schaal

Andere bebouwde zones (lage schaal)

Vrij gemaakte zones binnen de eilanden

Hoogeplaatste publieke ruimte

Ingangen van gebouwen

Hoofdstuk III / Afdeling 2 Presenta e van de redelijke alterna even / p. 116
Ruimtelijke organisa e op stadsniveau in het alterna ef 2 (bron: 1010au)
RUIMTELIJKE ALTERNATIEVEN
Ruimtelijke organisa e op sta onsniveau in het alterna ef 2 (bron: 1010au)

Mobiliteit

Naast de invariante basisprincipes opteert dit alterna ef voor een gegroepeerd bussta on met een keerzone voor de bussen op het Noordplein, dit om de stromen te kalmeren en te vermijden dat de busstromen van noord naar zuid moeten kruisen met de voetgangers- en fietsersstromen van oost naar west tussen het sta on en het Bolivarplein. Het bussta on laat ook de binnenstraat vrij.

De voetgangersboulevard verbindt het Simon Bolivarplein met het Rogierplein met een vertakking ter hoogte van het nieuwevoorpleinvanhetsta on,tussendegebouwenvan hetCCN,diedevoetgangerstot aanhetsta onbrengt.Voor de fietsers a oms g van Bolivar ontstaat zo een gelijkgrondse toegang tot de fietsparking van het sta on. Slechts één busterminus is voorzien op het Bolivarplein en de bussen rijden enkel in het zuiden van dit plein.

Omdewegenmeervrij temakenvooranderegebruiksdoeleindenenconflictpuntentussen deverschillendegebruikers te beperken, worden de logistieke toegangen gerationaliseerd en voor elk huizenblok in aantal beperkt. Gezien de breedte van de betrokken assen, de MSW en de specifieke stedelijke typologie (gebouwen-huizenblokken), dus gezien de ruimtelijke capaciteiten van de huizenblokken om de leveringen te beheren op het perceel zodat het verkeer niet wordt belemmerd, organiseert het alternatief 2 de leveringen in de huizenblokken op een binnenplein met slechts één toegang en ontwikkelt het de toegangen (in- en uitritten) op de assen Albert II en Solvay (VV Comfortwegen volgens het plan Good Move) en op het noordelijke deel van de Kleine Vooruitgangstraat. Omdat het station recent werd gerenoveerd en de toegangen voor het vrachtverkeer aan de kant van het Solvayplein werden geplaatst, zullen de toegangenvoor“zware”logistiekevrachtwagens(>3mhoog) voordehuizenblokkenCCNenstationzichdaarbevinden. Het ingangensysteem van de gebouwen is zichtbaar vanaf de straat. Er worden meer ingangen voorzien om op verschillende plaatsen de openbare ruimte te ac veren.

Haltes voor OV

Bus Hub

Busroute

Tramroute

Voetgangers Magistrale

Fietsroute

Fietsparking

Traject van de wagens

Traject van de taxis

Logis eke toegangen en ingangen tot ondergrondse parkeergarages

Hoofdstuk III / Afdeling 2 Presenta e van de redelijke alterna even / p. 117
RUIMTELIJKE ALTERNATIEVEN
Organisa eschema van de mobiliteit voor het alterna ef 2

ALTERNATIEF 3 - STATION MET VOORZIENINGEN

Bij het derde alterna ef wordt aan het noordelijke uiteinde van de perimeter, rond het Solvayplein en op de plaats van het Medisch Centrum, een uitrus ngscentrum ingericht om dit gebied, in samenhang met het sta on, tot een regionaal mul modaal knooppunt te maken.

Bouwprofielen en organisa e van de func es

Voor de huizenblokken North Galaxy en Proximus stelt het alterna ef 3 voor om de bestaande torens te behouden ten behoeve van de circulariteit en het respect van de ondergrond (behoud van de verankering in de grond van de bestaande gebouwen). De maximumhoogte van de bestaande torens is groter dan in de huidige toestand: 110m in dit alterna ef tegenover 102m vandaag.

Voor het CCN, een gebouw dat niet meer geschikt is voor de huidige behoeften en waarvoor een afbraakvergunning werd afgeleverd, opteert het alternatief 3 voor:

- bouwprofielen voor de torens die aansluiten bij het bouwprofiel van de nabijgelegen Aemelinckxtoren en een bouwhoogte tot 84m;

- eenbouwhoogtevoordegebouwenin debuurtvanhetstationvan21 tot33m (metuitzondering vandetoren op het Solvayplein) en een opgelegde insprong om te kunnen verhogen tot 84m in de rest van het huizenblok.

De func es worden in het alterna ef 3 als volgt verdeeld:

- een concentratie van voorzieningen rond het Solvayplein in de buurt van de noordelijke stationsingang, met het doel om de gebruikersstromen te verdelen en de ingang van de stationshal in de Simon Bolivarlaan niet te zeer belasten; bovendien wordt zo het Solvayplein geactiveerd en de verbinding met de Brabant- en de Gaucheretwijk verbeterd. De voorzieningen worden geplaatst op het Solvayplein, op de hoek van het huizenblok North Galaxy en op de site van het voormalige Medical Center;

- ontwikkeling van voorzieningen en handelszaken op alle eerste verdiepingen van alle huizenblokken om het backstreet-effect te vermijden en het daadwerkelijke gebruik van de openbare ruimte te bevorderen;

- een concentratie van woningen op de Bolivaras zodat in een groot deel van de woningen de geluidshinder van de spoorweg kan worden beperkt;

- de ontwikkeling van ‘hoge’ en ‘lage’ woningen met een concentratie op de Bolivaras (geen kantoren boven de handelszaken en voorzieningen), om de huisvestingsfunctie op deze zeer drukke as duidelijk zichtbaar te maken.

- de ontwikkeling van een lineair busstation langs de hele lengte van het station; de bussen keren in het CCNgebouw in een ruimte die wordt overdekt door het gebouw.

De vorm van het alterna ef 3 wordt grafisch weergegeven op de volgende schema’s:

Gemengde bestemmingen Voorzieningen Kantoren

Woningen Busstaon

Hoofdstuk III / Afdeling 2 Presenta e van de redelijke alterna even / p. 118
RUIMTELIJKE ALTERNATIEVEN Geschikte volumes (1010au) 3D-simula e (1010au)
RUIMTELIJKE ALTERNATIEVEN

Ruimtelijke organisa e

Naast de invariante basisprincipes stelt het alterna ef 3 voor om:

- hethuizenblok CCNte“splitsen”(openbaredoorgangenopprivégrond)omvisueledoorbrakenendoorgangen te creëren doorheen het lineaire busstation:

o enerzijds een doorbraak van 50m in het midden van het perceel, vanaf het stationsniveau, in de as van de Bolivarlaan om het stationsgebouw en de ingang van de stationshal te herwaarderen. Deze ruimte met een breedte van 50m op het stationsniveau is op het stadsniveau ongeveer de helft kleiner.Hetstationsniveaubiedttoegangtothet stationsgebouw, hetstadsniveau totdemetroende stationsingang voor PBM doorheen het lineaire busstation;

o Anderzijds een doorbraak op de perceelgrens van het CCN aan de kant van het Solvayplein, die uitgeeft op de noordelijke stationsingang in de Kwatrechtstraat en het nieuwe gebouw voor de voorziening op het Solvayplein benadrukt.

- de beplanting in het BBP te behouden en te ontwikkelen:

o de bestaande bomenrijen op het Bolivarplein te behouden en te versterken;

o een plantenrij te ontwikkelen in de verbrede binnenstraat;

o een groene ruimte te ontwikkelen op het onbebouwde deel van de site van het Medical Center;

o een groene ruimte te ontwikkelen op het Noordplein (buiten de perimeter).

Voor het beheer van de niveaus en het niveauverschil op het perceel van het CCN behoudt het alterna ef 3 de bestaande toestand.:

- een plaat tussen de aanwezige gebouwen in het huizenblok CCN van de stationshal tot het Bolivarplein, met aanleg van een ‘hoog Bolivar-voorplein’ in de as van deze laan;

- de plaat wordt boven de binnenstraat niet verlengd, maar ter hoogte van de bestaande uitgangen van de stationshal worden er bruggen gecreëerd tussen deze hal en het CCN;

- de gevels van de nieuwe gebouwen langs deze plaat worden geactiveerd door handelszaken , voorzieningen en de toegangen tot de woningen;

- deze plaat integreert de verticale relaties ter hoogte van het voorplein tussen de behouden en gecreëerde “hoge” ruimten en de overdekte “lage” ruimten;

- op stadsniveau (het “lage” niveau) wordt het bestaande niveauverschil behouden: het grondniveau daalt van het Bolivarplein naar het lager gelegen busstation en loopt in de binnenstraat op richting stationstoegang voor PBM. Deze ruimten onder de plaat worden georganiseerd om de werking van de mobiliteitsinfrastructuren mogelijk te maken (busterminus, stationsingangen voor gebruikers en logistiek, taxi’s, kiss and ride, toegang tot de fietsparking ...).

Hoofdstuk III / Afdeling 2 Presenta e van de redelijke alterna even / p. 119
RUIMTELIJKE ALTERNATIEVEN

Bebouwde zones

Overdekte zones (tunnels, ruimten onder platen)

Groene ruimtes in volle grond

Laanbomen

Ingangen van gebouwen

Bebouwde zones – hoge schaal

Andere bebouwde zones (lage schaal)

Vrij gemaakte zones binnen de eilanden

Hoogeplaatste publieke ruimte

Ingangen van gebouwen

Hoofdstuk III / Afdeling 2 Presenta e van de redelijke alterna even / p. 120
Ruimtelijke organisa e op stadsniveau in het alterna ef 3 (bron: 1010au)
RUIMTELIJKE ALTERNATIEVEN
Ruimtelijke organisa e op sta onsniveau in het alterna ef 3 (bron: 1010au)

Mobiliteit

Naast de invariante basisprincipes werd om technische redenen gekozen voor een lineair bussta on met een keerzone voor de bussen op het Solvayplein. De perrons zijn aarvormig geschikt langs de binnenstraat. Het alterna ef 3 voorziet in een voetgangersboulevard die doorheen het huizenblok CCN loopt en gedesaxeerd verschijnt ter hoogte van de Simon Bolivarlaan. Het alterna ef 3 stelt ook een fietsdoorgang voor van de Simon Bolivarlaan tot de fietsparking van het sta on, doorheen het bussta on en het niveauverschil. Slechts één busterminus is voorzien op het Bolivarplein en de bussen rijden enkel in het zuiden van dit plein.

Hetalternatiefbeheertdeleveringenbinnenhetperceel.DetoegangenzijngelegenopdeassenAlbertIIenSolvay (VV Comfortwegen volgens het plan Good Move).

Het systeem van de ingangen van de gebouwen is geconcentreerd op één plaats, maar heeft de vorm van een grote hal die toegang verleent tot de verschillende delen van het gebouw. De ingangen zijn niet erg talrijk en in een aantal staten helemaal niet aanwezig.

Haltes voor OV

Bus Hub

Busroute

Tramroute

Voetgangers Magitrale

Fietsroute

Fietsparking

Traject van de wagens

Traject van de taxis

Logis eke toegangen en ingangen tot ondergrondse parkeergarages

Hoofdstuk III / Afdeling 3 - Effectenbeoordeling / A - programmatorische alterna even / p. 121
RUIMTELIJKE ALTERNATIEVEN RUIMTELIJKE ALTERNATIEVEN
Organisa eschema van de mobiliteit voor het alterna ef 3

HOOFDSTUK III

Bespreking van de milieueffecten

Afdeling3.

EFFECTENBEOORDELING

Hoofdstuk III / Afdeling 3 - Effectenbeoordeling / A - programmatorische alterna even / p. 122

HOOFDSTUK III

Bespreking van de milieueffecten Afdeling3.

EFFECTENBEOORDELING

A/ PROGRAMMATORISCHE ALTERNATIEVEN

Version mars 2022

Hoofdstuk III / Afdeling 3 - Effectenbeoordeling / A - programmatorische alterna even / p. 123

Inhoud van het MER

HOOFDSTUK I – PRESENTATIE VAN HET ONTWERPPLAN

Afdeling 0. Algemene methode

Afdeling 1. Beschrijving van de strategische doelstellingen van het plan

Afdeling 2. Samenva ng van de inhoud van het plan

HOOFDSTUK II – DIAGNOSE VAN DE BESTAANDE TOESTAND EN IDENTIFICATIE VAN DE UITDAGINGEN

Afdeling 1. Methodologie voor de vaststelling van de bestaande toestand

Afdelingen 2 2- 3- 4. Overzicht van de rechtstoestand en van de feitelijke toestand en waarschijnlijke evolu e

HOOFDSTUK III – BESPREKING VAN DE MILIEUEFFECTEN

Afdeling1.Methodologie

Afdeling2.Presentaevanderedelijkealternaevenenvandegeselecteerdeevaluaemethode

Afdeling 3. EFFECTENBEOORDELING

A/ PROGRAMMATORISCHE ALTERNATIEVEN

B/RUIMTELIJKEALTERNATIEVEN

C/ONTWERPVANBBP

Afdeling4.Overzichtvanspecifiekemilieueffecten

HOOFDSTUK IV - CONCLUSIE, AANBEVELINGEN EN OPVOLGINGSMAATREGELEN

Afdeling 1. Presenta e van de gekozen oplossingen

Afdeling 2. Aanbevelingen

Afdeling 3. Opvolgingsmaatregelen

Hoofdstuk
/ Afdeling 3 - Effectenbeoordeling / A - programmatorische alterna even / p. 124
III
Hoofdstuk III / Afdeling 3 - Effectenbeoordeling / A - programmatorische alterna even / p. 125 Inhoudsopgave INLEIDING 126 Beknopte herhaling van de programmatorische alterna even 127 Hypothesen en basisberekeningen....................................................................................................................... 129 VERGELIJKING VAN DE PROGRAMMATORISCHE ALTERNATIEVEN TEN AANZIEN VAN DE CRITERIA VAN HET MER ..................................................................................................................................................................................... 131 Zachte mobiliteitsnetwerken 132 Ecologische netwerken 132 Technische netwerken 132 Structuur van de bebouwde ruimten 133 Structuur van de open ruimten 135 Stedelijk landschap en symbolische richtpunten 136 Bevolking 137 Huisves ng 138 Voorzieningen en handelszaken............................................................................................................................ 141 Economische ac viteiten en transi e 148 Ac vering van de openbare ruimte via de benedenverdiepingen 150 Geluid en trillingen 152 Kwaliteit van de openbare ruimten voor verplaatsing en verblijf 153 Luchtkwaliteit 153 Veiligheid 154 Methodologie, hypothesen en berekeningen 156 Uitvoering van de MSW 161 Ac eve verplaatsingswijzen................................................................................................................................... 162 Openbaar vervoer 163 Auto’s 164 Vrachtverkeer en leveringen 165 Parkeren 166 Mobiliteitsdiensten en intermodaliteit................................................................................................................. 172 Microklimaat 174 Bodem 176 Ecologisch netwerk 178 Water 179 Energie 181 Circulariteit van de materialen / inkomende materialen 184 Circulariteit van de stromen 185 Modulariteit van de ruimten…………………………………………………………………………………………………………………….186 Samenva ng van de aanbevelingen en wisselwerkingen tussen de criteria 187

METHODOLOGISCHE NOTA

De gedetailleerde analyse van de effecten van de programma-alterna even wordt uitgevoerd aan de hand van de 30 criteria van het leesrooster.

Voor elk criterium wordt het volgende vermeld:

- de eventuele veronderstellingen

- de diagnostische herinneringen die helpen de analyse te herkaderen;

- de elementen die van invloed zijn op de beoordeling van het criterium in elk van de alternatieven;

- en ten slotte aanbevelingen die uit de vergelijking van de alternatieven voortvloeien.

Deze aanbevelingen zijn niet bedoeld om par j te kiezen voor het ene alterna ef boven het andere, maar om de posi eve elementen of de te vermijden elementen samen te va en, teneinde tot een voorkeursscenario te komen.

Aanbevelingen over bepaalde criteria zijn soms in tegenspraak met andere aanbevelingen over andere criteria. De prioriteit die aan de een of de ander zal worden gegeven, hangt af van de keuzes die over de gehele perimeter zullen worden gemaakt. Het is dus niet al jd mogelijk absolute prioriteit te geven aan een van de aanbevelingen omdat dit a angt van de elders gemaakte keuzes. Deze interac es tussen de criteria worden samengevat in de conclusie, samen met een samenva ng van alle aanbevelingen.

BEKNOPTE HERHALING VAN DE PROGRAMMATORISCHE ALTERNATIEVEN

Ter herinnering: het BBP strekt zich uit over 4 huizenblokken: het Noordsta on, het CCN, het huizenblok Proximus (P) en het huizenblok North Galaxy (NG).

Perimeters van de BBP

- het bestaande BBP (volle lijn),

- het uitgebreide BBP (s ppellijn)

- het globale gebied met de volledige huizenblokken, hierna ‘het gebied’ genoemd (streepjeslijn)

Hoofdstuk III / Afdeling 3 - Effectenbeoordeling / A - programmatorische alterna even / p. 126
sta on CCN NG P IN LEIDING

In de bestaande toestand zijn dit de oppervlakten per huizenblok en per func e:

Het bureau belast met de wijziging van het BBP stelde voor het gebied 4 programmatorische alterna even voor9:

9 Deze alterna even worden toegelicht in het punt “Programmatorische alterna even” van Afdeling 2 van hoofdstuk III

Hoofdstuk
Afdeling
even / p. 127
III /
3 - Effectenbeoordeling / A - programmatorische alterna
Bestaande toestand Bestaande toestand Kantoren 308 331 m² 96% Huizenblok CCN 86 248 m² Huisves ng 0 m² Huizenblok Proximus 112 441 m² Voorzieningen 2 167 m² 1% Huizenblok North Galaxy 107 745 m² Handelszaken 9 717 m² 3% Huizenblok sta on 13 781 m² Produc eac viteit 0 m² Totaal 320 215 m² vloeroppervlakte Totaal vloeroppervlakte 320 215 m² Grondinname 0.77 Kadastrale percelen 72 469 m² Grondinname 35 815 m²
Alterna ef (i) Max Max Alterna ef (ii) Max Min Alterna ef (iii) Min Max Alterna ef (iv) Min Min Kantoren 276 130 m² 200 093 m² 255 130 m² 185 093 m² Huisves ng 76 037 m² 125 461 m² 70 037 m² 115 561 m² Voorzieningen 20 009 m² 31 415 m² 18 509 m² 29 015 m² Handelszaken 14 406 m² 22 009 m² 13 506 m² 20 509 m² Produc eac viteiten 8 604 m² 16 207 m² 8 004 m² 15 007 m² Totaal vloeroppervlakte 395 186 m² 395 186 m² 365 186 m² 365 186 m² Grondinname 0.6 0.6 0.55 0.55 Kadastrale percelen 72 469 m² in totaal / 46 237 m² buiten N-Z-verbinding Grondinname 27 742 m² 27 742 m² 25 430 m² 25 430 m²
IN LEIDING

HYPOTHESEN EN BASISBEREKENINGEN

Voor de huidige toestand beschikken we niet al jd over de exacte cijfers (bijvoorbeeld: waterverbruik en waterafvoer door de werknemers, aantal bezoekers per dag per handelszaak, jds ppen van de gemotoriseerde verplaatsingen van de werknemers, gas- en elektriciteitsverbruik van de verschillende gebouwen ...). Daarom werden een aantal hypothesen geformuleerd om deze cijfers te kunnen ramen: voor elk onderzocht criterium bevathetpunt“hypothese”in voorkomendgevaldegebruiktecijfersendeinforma ebron.Inhetpunt“Herhaling van de diagnose en ramingen in de bestaande toestand” worden de bestaande cijfers gegeven wanneer zij voorhanden zijn. De geraamde cijfers worden al jd gegeven.

Voor een aantal thema’s/criteria werden een aantal algemene hypothesen toegepast. Het zijn de hypothesen die gewoonlijk worden gebruikt in de Brusselse milieueffectenrapporten. Het betre :

Aantal woningen: zonder informa e in dit stadium over het aantal woningen, noch over de kamerverdeling, werd voor de berekening van het aantal woningen uitgegaan van een gemiddelde van 100 m².

Aantal inwoners: zonder informa e in dit stadium over de kamerverdeling en aangezien wordt gestreefd naar gemengdheid, werd voor de berekening van het aantal inwoners op basis van het aantal woningen uitgegaan van de gemiddelde gezinsgroo e in Brussel (2,17 personen/huishouden).

Aantal werknemers: de werknemers zijn aanwezig in verschillende bestemmingen (kantoren, produc eac viteiten, handelszaken en voorzieningen), maar de “concentra e” verschilt. Bij de berekening van het aantal werknemers zijn we uitgegaan van de volgende hypothesen:

 Kantoren: 1 werknemer / 20 m² en een gemiddelde beze ngsgraad van 85% (volgens de beschikbare bedrijvenvervoersplannen in het gebied bedroeg de gemiddelde beze ngsgraad vóór de gezondheidscrisis 82%. Het cijfer 85% kan dus als maximalis sch worden beschouwd).

Handelszaken: 1,5 werknemer / 100 m² (geen details over het type of de groo e van de handelszaken)

Voorziening: 1 werknemer / 50 m² (geen details over het type voorziening)

Produc eac viteiten: 1,5 werknemer / 100 m² (geen details over het type ac viteit)

Aantal bezoekers: de bezoekers hebben in verschillende verhoudingen betrekking op de verschillende ac viteiten, namelijk

Huisves ng: 1 bezoeker per dag / 5 woningen

 Kantoren: 1 bezoeker per dag / 10 werknemers

 Handelszaken: 30 bezoekers per dag / 100 m² (geen details over het type of de groo e van de handelszaken)

Voorziening: 10 bezoekers per dag / 100 m² (geen details over het type voorziening)

Produc eac viteiten: 1 bezoeker per dag / 20 werknemers (geen details over het type ac viteit)

De berekeningen resulteren in de ramingen op de volgende pagina, zowel voor de huidige toestand als voor de 4 programmatorische alterna even.

Er dient opgemerkt dat de huidige toestand bijzonder is: de huizenblokken CCN en Proximus werden ontruimd, wat een grote invloed hee op de cijfers van de huidige toestand. Als referen e voor de huidige toestand kunnen we dus ofwel de bestaande cijfers gebruiken van de periode voordat de gebouwen werden ontruimd (di. voor het aantalwerknemersvan10512),ofweldehypothesentoepassenvoorde2ontruimdehuizenblokkenendehuidige cijfers voor het huizenblok North Galaxy en het sta on (d.i. voor het aantal werknemers van 13 324). Als we de hypothesen toepassen op alle huizenblokken, verkrijgen voor de vergelijking een aantal werknemers van 15 417.

Hoofdstuk III / Afdeling 3 - Effectenbeoordeling / A - programmatorische alterna even / p. 128
INLEIDING

* Gezien de specifieke huidige situa e (zie vorige bladzijde) is het bestaande aantal werknemers geëvalueerd op basis van dezelfde veronderstellingen als in de geraamde situa e (sitex C). Ter herinnering, in de situa e vóór de studie (voordat het CCN en het Proximus-blok werden leeggemaakt, d.w.z. sitex A) bedroeg het aantal werknemers 10.312. Indien de aannames alleen op deze twee blokken worden toegepast en de bestaande gegevens voor het North Galaxy-blok (d.w.z. Sitex B) worden gehandhaafd, s jgt dit aantal tot 13.124. Het totale aantal banen bedraagt dus respec evelijk 10.501 en 13.248.

Alterna ef (i) – Max Max

Hoofdstuk III / Afdeling 3 - Effectenbeoordeling / A - programmatorische alterna even / p. 129 Bestaande toestand Oppervlakten [m²] aantal woningen aantal inwoners aantal banen bezoekers /dag Kantoor 308 332 - - 15 417* 1 542 Huisves ng 0 0 0 - 0 Voorzieningen 2 167 - - 43 217 Handelszaken 9 717 - - 146 2 915 Produc eac viteiten 0 - - 0 0 TOTAAL 320 216 15 606 4 674
Oppervlakten [m²] aantal woningen
inwoners aantal banen bezoekers /dag Kantoor 276 130 - - 13.807 1.381 Huisves ng 76 037 760 1 650 - 152 Voorzieningen 20 009 - - 400 2.001 Handelszaken 14 406 - - 216 4.322 Produc eac viteiten 8 604 - - 129 430 TOTAAL 395 186 760 1 650 14 552 8 286 Alterna ef
Oppervlakten [m²] aantal woningen aantal inwoners aantal banen bezoekers /dag Kantoor 200 093 - - 10 005 1 000 Huisves ng 125 461 1 255 2 723 - 251 Voorzieningen 31 415 - - 628 3 141 Handelszaken 22 009 - - 330 6 603 Produc eac viteiten 16 207 - - 243 810 TOTAAL 395 185 1 255 2 723 11 206 11 805 Alterna ef (iii) – Min Max Oppervlakten [m²] aantal woningen aantal inwoners aantal banen bezoekers /dag Kantoor 255 130 - - 12 757 1 276 Huisves ng 70 037 700 1 520 - 140 Voorzieningen 18 509 - - 370 1 851 Handelszaken 13 506 - - 203 4 052 Produc eac viteiten 8 004 - - 120 400 TOTAAL 365 186 700 1 520 13 450 7 719 Alterna ef (iv) – Min Min Oppervlakten [m²] aantal woningen aantal inwoners aantal banen bezoekers /dag Kantoor 185 093 - - 9 255 925 Huisves ng 115 561 1 156 2 508 - 231 Voorzieningen 29 015 - - 580 2 901 Handelszaken 20 509 - - 308 6 153 Produc eac viteiten 15 007 - - 225 750 TOTAAL 365 186 1 156 2 508 10 368 10 961 INLEIDING
aantal
(ii) – Max Min
Hoofdstuk III / Afdeling 3 - Effectenbeoordeling / A - programmatorische alterna even / p. 130
PROGRAMMATORISCHEALTERNATIEVEN TENAANZIENVANDECRITERIAVANHET MER
VERGELIJKING VAN DE

ZACHTE MOBILITEITSNETWERKEN

Niet van toepassing

ECOLOGISCHE NETWERKEN

Niet van toepassing

TECHNISCHE NETWERKEN

HYPOTHESEN

Gemiddeld jaarlijks verbruik:

per inwoner: ~100 L /dag, d.i. 36 m³/jaar thuis (Leefmilieu Brussel, 2020)

 per werknemer: 11,1 m³/jaar op de werkplek (LB, Benchmark, EMAS2011), d.i. ~1/3 van het verbruik van de bewoners

per bezoeker: 1/50e van het verbruik van een bewoner (dit stemt overeen met ~2 bezoekers op 5 die naar het toilet gaan), d.i. ~2L/dag of 0,73 m³/jaar.

Er wordt beschouwd dat de afvalwaterproduc e gelijk is aan de hoeveelheid waterverbruik. Dit afvalwater wordt echter ondergebracht in twee categorieën: grijs water (badkamer, keuken, wasmachine ...) en zwart, dus vuiler water (toile en en schoonmaakwater). De verhouding grijs water (Leefmilieu Brussel), 2015) is

- ~70% voor de lozingen van de bewoners

- ~35% voor de lozingen van de werknemers (in verhouding meer verbruik voor de toiletten).

HERHALING VAN DE DIAGNOSE EN RAMINGEN IN DE BESTAANDE TOESTAND

Cijfers over het huidige verbruik en afvoer zijn niet bekend. Op basis van de voormelde hypothesen kunnen we stellen dat meer dan 15 600 werknemers in de perimeter jaarlijks iets meer dan 173 200 m³10 water verbruiken en afvoeren. Daarbij komen nog de bijna 3 400 m³ water die per jaar wordt verbruikt en afgevoerd door de bezoekers. In totaal wordt dus 176 600 m³/jaar verbruikt en afgevoerd, dat is bijna 484 m³/dag.

De afgevoerde hoeveelheid grijs water kan worden geraamd op iets minder dan 62 000 m³ / jaar, terwijl iets minder dan 115 000 m³ zwart water wordt geproduceerd.

De lozing als gevolg van de drainering van het grondwater dat in de ondergrondse verdiepingen van de gebouwen infiltreert, moet daar nog worden bijgevoegd. Het gaat om 14,5m³/dag in de kelderverdiepingen van het CCN en in de premetrotunnel, dus 5 200m³/jaar. Voor de huizenblokken North Galaxy en Proximus beschikken we niet over exacte cijfers, maar als we dezelfde afvoercijfers in verhouding brengen tot de oppervlakten van de huizenblokken, krijgen we een raming van in totaal 13 000m³/jaar afvoer voor de 3 huizenblokken. Het rioleringsnet is van het unitaire type. In de Albert Ii-laan liggen collectoren die door de huizenblokken North Galaxy en Proximus lopen.

TENDENTIEEL ALTERNATIEF

Geen verandering van de bestaande toestand verwacht.

10 Voor de loca es A en B verkrijgen we verbruikswaarden en dus totale lozingen van 119.500 m³/jaar, d.w.z. bijna 328 m³/dag, en 151.000 m³/jaar, d.w.z. bijna 414 m³/dag.

Hoofdstuk III / Afdeling 3 - Effectenbeoordeling / A - programmatorische alterna even / p. 131
RUIMTELIJKE ORGANISATIE

VERGELIJKING VAN DE ALTERNATIEVEN

Het waterverbruik en de waterafvoer kunnen worden geraamd op:

We zien dus een algemene toename van verbruik en afvoer (minder verbruik voor de kantoren en meer verbruik voor de woningen) van 90 tot 150 m³/dag11. Vivaqua beves gt dat het huidige rioleringsnet deze toename zal kunnen verwerken. In de toekoms ge projecten zal het opgevangen regenwater en ook het opgepompte water meer dan waarschijnlijk worden benut. Enerzijds zal er minder water terechtkomen in de riolering (grijs, zwart en regen- en pompwater samen), anderzijds zal er ook minder leidingwater worden verbruikt.

Deze volumes stemmen overeen met een toename van de hoeveelheid water die dagelijks wordt verwerkt door het waterzuiveringssta on Noord met 0,03% tot 0,05% (vandaag verwerkt het RWZI ~285 000 m² water per dag), dus verwaarloosbaar.

Op basis van dit criterium is dus geen enkel alterna ef guns ger of nadeliger dan een ander.

AANBEVELINGEN

Voorschri en opnemen die opleggen om regen- en opgepompt water nu g toe te passen (als de waterkwaliteit dat toelaat) om zo de algemene lozingen in het rioleringsnet te verminderen.

STRUCTUUR VAN DE BEBOUWDE RUIMTEN

HERHALING VAN DE DIAGNOSE EN RAMINGEN IN DE BESTAANDE TOESTAND

In het huizenblok Proximus bedraagt de vloeroppervlakte bijna 112 500 m² voor een grondinname van bijna 10 500 m², dat betekent gemiddeld 11 verdiepingen (vloeroppervlakte / grondinname van de bebouwing). In werkelijkheid zijn enkele delen van het huizenblok bijna 30 verdiepingen hoog, andere 7 of slechts 1 verdieping.

In het huizenblok North Galaxy: bedraagt de vloeroppervlakte meer dan 107 700 m² voor een grondinname van meer dan 8 000 m², dat betekent gemiddeld meer dan 13 verdiepingen (vloeroppervlakte / grondinname van de bebouwing). In werkelijkheid zijn enkele delen van het huizenblok 30 verdiepingen hoog, andere 7 of slechts 3 verdiepingen.

In het huizenblok CCN bedraagt de vloeroppervlakte ongeveer 87.000 m² voor een grondinname van bijna 12 500 m², dat betekent gemiddeld bijna 7 verdiepingen (vloeroppervlakte / grondinname van de bebouwing). In werkelijkheid zijn enkele delen van het huizenblok 12 verdiepingen hoog, andere slechts 2 verdiepingen.

In het huizenblok sta on bedraagt de vloeroppervlakte bijna 22 700 m² voor een grondinname van meer dan 4 700 m², dat betekent gemiddeld bijna 3 verdiepingen (vloeroppervlakte / grondinname van de bebouwing). In werkelijkheid is de sta onstoren 10 verdiepingen hoog, maar de rest is lager.

Intotaalvoor het helegebied bedraagt devloeroppervlakte 320215m²vooreen gecumuleerdegrondinnamevan 35 815 m². Het gemiddeld aantal verdiepingen is dus 9.

11 Deze toename loopt op tot 160 - 210 m³/dag in het geval van loca e B, d.w.z. een toename van 30-40%, en tot 250 - 300 m³/dag in het geval van loca e A, d.w.z. een toename van 50-60%.

Hoofdstuk III / Afdeling 3 - Effectenbeoordeling / A - programmatorische alterna even / p. 132
Max Max (i) Max Min (ii) Min Max (iii) Min Min (iv) Aantal inwoners 1 650 2 723 1 520 2 508 Aantal werknemers 14 552 11 206 13 449 10 368 Aantal bezoekers 8 286 11 806 7 719 10 961 Verbruik 220 926 m³/jaar d.i. 622 m³/dag 230 900 m³/jaar d.i. 633 m³/dag 209 558 m³/jaar d.i. 574 m³/dag 213 250 m³/jaar d.i. 584 m³/dag Afvoer van grijs water 100 202 m³/jaar 115 119 m³/jaar 92 495 m³/jaar 106 234 m³/jaar Afvoer van zwart water 126 689 m³/jaar 115 781 m³/jaar 11 063 m³/jaar 107 016 m³/jaar
RUIMTELIJKE ORGANISATIE RUIMTELIJKE ORGANISATIE

TENDENTIEEL ALTERNATIEF

Het CCN-gebouw maakt momenteel het voorwerp uit van studies voor een grondige verbouwing (a raakwederopbouw). Een aanvraag voor een a raakvergunning werd ingediend en wordt momenteel onderzocht. Bij de wederopbouw mag volgens het huidige BBP niet hoger worden gebouwd dan 35 m. De huidige BBP’s leggen 3 bouwhoogtes op voor de huizenblokken North Galaxy en Proximus: de zone voor laagbouw van 13 m (vast), de zone voor gebouwen met middelma ge hoogte van maximaal 23 m en de zone voor hoogbouw van 102 m (vast). Het huizenblok Proximus maakt het voorwerp uit van een herinrich ngsproject. VolgensdeguidelinesvandeBrusselsebesturenisa raak-wederopbouwvoor dithuizenbloknietwenselijk. Voor de herontwikkeling van de site hebben ze enkele doelstellingen bepaald in verband met de structuur van de bebouwde ruimten: maximaal behoud van de bouwwerken en opentrekken van de sokkel. Er dient opgemerkt dat het maximale behoud van de bouwwerken geen poten ële volumewijziging en verhoging uitsluit. Volgens de nota mogen er voor de torens maximaal 2 extra verdiepingen12 worden voorzien; een grotere verhoging zou de originele figuur van het Manha anplan verstoren. Bovendien beveelt de nota aan om de grondinname van de bebouwing te verkleinen tot 70% (of minder) en de vloeroppervlakte met maximaal 5% te vergoten.

VERGELIJKING VAN DE ALTERNATIEVEN

De alterna even zullen de totale vloeroppervlakten van alle huizenblokken verhogen: Alt (i) en (ii) Alt (iii) en (iv)

In de alterna even (i) en (ii) wordt de totale vloeroppervlakte met bijna 75 000 m² vergroot en de grondinname met bijna 1 500 m² verkleind.

In de alterna even (iii) en (iv) wordt de totale vloeroppervlakte met bijna 45 000 m² verhoogd en de grondinname met meer dan 3 700 m² verkleind.

In de 4 alterna even gaat het gemiddelde aantal verdiepingen (vloeroppervlakte / grondinname van de bebouwing) van 9 in de bestaande toestand naar 14. De grondinname van de huizenblokken North Galaxy en Proximus wordt verkleind en de vloeroppervlakte in het huizenblok CCN wordt vergroot.

AANBEVELINGEN

In dit stadium valt al te verwachten dat de bouwdichtheid in het huizenblok CCN sterk zal toenemen. De vloeroppervlakte wordt immers aanzienlijk en de grondinname licht vergroot. Het risico bestaat dat de ontwikkelde gebouwen hetzij zeer hoog moeten worden, hetzij diep en breed om alle toegestane vloeroppervlakten te kunnen ‘beva en’. Dat gaat ten koste van hetzij het stedelijke landschap en de microklimaatvoorwaarden (slagschaduw, wind), hetzij de kwaliteit van de binnenruimten. De ruimtelijke impact van het ontwerp-BBP op de structuur van de bebouwde ruimten (organisa e van de volumes) wordt onderzocht in de ruimtelijke scenario’s. In dit deel van de studie (programma) gaan we er niet verder op in.

Er wordt dus aanbevolen om hetzij de grondinname te vergroten, wat ten koste gaat van andere criteria (open ruimten, bodem, water, ecologisch netwerk), hetzij de toegekende vloeroppervlakten te verkleinen. Deze aanbevelingen zullen worden gewijzigd door de conclusies van de analyse van het criterium voor de ruimtelijke alterna even.

12 Dit druist in tegen de voorschri en van het BBP.

Hoofdstuk III / Afdeling 3 - Effectenbeoordeling / A - programmatorische alterna even / p. 133
Huizenblok CCN 160 000 m² 130 000 m² Huizenblok Proximus 112 441 m² 112 441 m² Huizenblok North Galaxy 107 745 m² 107 745 m² Huizenblok sta on 15 000 m² 15 000 m² Totaal vloeroppervlakte 395 186 m² 365 186 m² Grondinname 27 742 m² 25 430 m²
RUIMTELIJKE
ORGANISATIE

STRUCTUUR VAN DE OPEN RUIMTEN

HERHALING VAN DE DIAGNOSE EN RAMINGEN IN DE BESTAANDE TOESTAND

Het onderzochte gebied vertoont verschillende soorten open ruimten die toegankelijk zijn voor het publiek:

- Wegenissen zoals de Albert Ii-laan, de Solvay-as, de Koolbrandersstraat en de Kleine Vooruitgangsstraat;

- Open ruimten zoals het Bolivarplein, het Noordplein en het Solvayplein;

- “Halfopen” ruimten zoals de Noordtunnel en de Kwatrechttunnel.

Ook de huizenblokken omva en open ruimten. De bestaande grondinnames op de percelen (buiten het sta on en de noord-zuidverbinding13) zijn als volgt:

Oppervlakte van het perceel Bebouwde

In de huizenblokken dragen deze ruimten al dan niet bij tot het netwerk van open ruimten in de wijk:

- Voor de huizenblokken Proximus en North Galaxy zijn het achteruitbouwstroken die bijdragen tot de zichtbare open ruimten en enkele onbebouwde zones op het binnenterrein van het huizenblok. Al deze zones zijn niet toegankelijk voor het publiek (met uitzondering van de inritten van de gebouwen);

- Het huizenblok CCN vertoont twee soorten open ruimten: ‘klassieke’ open ruimten zoals het Noordplein dat deel uitmaakt van het perceel en een openbare ruimte is en ‘halfopen’ ruimten, namelijk de delen van het busstation in het noorden en het zuiden van het gebouw en de binnenstraat. Deze laatste zijn open ruimten die toegankelijk zijn voor het publiek, maar ze zijn wel overdekt.

Buiten de Noord-Zuidverbinding bedraagt de grondinname (grondinname ten opzichte van de oppervlakte van de percelen) 0,77 voor het bestudeerde gebied.

TENDENTIEEL ALTERNATIEF

Het CCN-gebouw maakt momenteel het voorwerp uit van studies voor een grondige verbouwing (a raakwederopbouw). Een aanvraag voor een a raakvergunning werd ingediend en wordt momenteel onderzocht. Ze vermeldt de ontwikkeling van een geac veerde pen plaat voordat er wordt heropgebouwd. Het BBP legt geen specifieke eisen op voor de open ruimten voor dit perceel.

Ook het huizenblok Proximus maakt het voorwerp uit van een herinrich ngsproject. Het huidige BBP legt onder meer een zone voor laagbouw op met een vaste hoogte van 13 m waar de doorgangen voor voetgangers moeten worden aangelegd (open ruimten in de hoogte). De richtlijnen van de Brusselse besturen vermelden de doelstelling om de sokkel open te trekken door de grondinname te beperken tot 70% (of minder).

VERGELIJKING VAN DE ALTERNATIEVEN

Het programma voorziet in een algemene verkleining van de grondinname. Die werd berekend om specifieke grondinnames te verkrijgen: 0,6 voor de alterna even (i) en (ii) en 0,55 voor de alterna even (iii) en (iv). De totale grondinname wordt dus beperkt tot 27 742 m² voor de alterna even (i) en (ii) en tot 25 430 m² voor de alterna even (iii) en (iv), wat een winst oplevert van respec evelijk 8 000 m² en bijna 10 400 m².

Er dient opgemerkt dat de percelen in de ondergrond nagenoeg volledig bebouwd zijn. De beperking van de grondinname is dus heilzaam voor het criterium open ruimten, maar niet speciaal voor de criteria die verband houden met het klimaat (infiltra e, volle grond, ...). Hier zullen we verder in dit document nog op terugkomen.

13 Vanwege de bijzonderheid van dit huizenblok (sta onsgebouw, verlengd onder de sporen van de NoordZuidverbinding, het hele perceel dekkend) is de integra e ervan bij de analyse van de open ruimten niet relevant.

Hoofdstuk III / Afdeling 3 - Effectenbeoordeling / A - programmatorische alterna even / p. 134
grondoppervlakte
open ruimten Huizenblok Proximus 12 896 m² 10 409 m² 19% Huizenblok North Galaxy 11 124 m² 8 077 m² 27% Huizenblok CCN 21 951 m² 12 566 m² 43%
Verhouding
RUIMTELIJKE ORGANISATIE

AANBEVELINGEN

De verkleining van de grondinname werd in de programmatorische alterna even niet gelokaliseerd in de huizenblokken. De analyses blijven in dit stadium dus beperkt. In de ruimtelijke alterna even kan de impact van hetontwerp-BBPop destructuur vandeopenruimtenwordengeanalyseerdnaargelang hunvoorzienelokalisa e.

STEDELIJK LANDSCHAP EN SYMBOLISCHE RICHTPUNTEN

Niet van toepassing

NB: De bouwdichtheid van het programma in de 4 alterna even (verkleining van de grondinname en vergro ng van de vloeroppervlakten) impliceert ambtshalve zeer grote bouwprofielen voor de verschillende huizenblokken. Dit zal een impact hebben op het stedelijk landshap en op de symbolische richtpunten. Deze impact kan nader worden onderzocht in de ruimtelijke alterna even; in dit deel van de studie (programma) valt hij moeilijk te voorzien.

Hoofdstuk III / Afdeling 3 - Effectenbeoordeling / A - programmatorische alterna even / p. 135
RUIMTELIJKE ORGANISATIE

BEVOLKING

HERHALING VAN DE DIAGNOSE EN RAMINGEN IN DE BESTAANDE TOESTAND

In de perimeter als dusdanig wonen er momenteel geen mensen.

In de Noorwijk wonen 15 803 personen op een oppervlakte van 130,83 ha. De bevolkingsdichtheid bedraagt er dus 120,79 inwoners/ha (Wijkmonitoring, 2020. Dat is hoger dan het Brusselse gemiddelde (75,01 inw./ha) maar rela ef laag in vergelijking met de andere wijken van de eerste kroon (144 tot 313 inw/ha).

TENDENTIEEL ALTERNATIEF

Het huidige BBP voorziet de volgende bestemmingen:

- Voor de huizenblokken North Galaxy en Proximus, residentiële, administratieve en commerciële groeperingen en de uitrustingen die daarbij horen;

- voor het CCN, een station voor interlokaal en metropolisch spoorverkeer, een autobus- en tramstation, een taxistation, de toegangen tot deze stations alsook de lokalen bestemd voor alle bijhorende diensten en uitrustingen.

Er kunnen dus nog woningen worden ontwikkeld in de huizenblokken Proximus en North Galaxy, maar niet in het CCN. Over de verhoudingen voor de verschillende func es wordt niets gezegd.

VolgensdeGSVliggende3huizenblokkeninadministra egebiedendiezijnbestemdvoorkantorenenhuisves ng. Ze gee echter evenmin verdere details over de respec eve verhoudingen van deze func es.

Op gewestelijk niveau benadrukken de projec es van het BISA14 (2021) dat de bevolking tegen 2030 met 18 429 personen zal toenemen, verdeeld over 7 029 huishoudens.

Voor de gemeenten Brussel, Sint-Joost-ten-Node en Schaarbeek verwacht het BISA (projec es van 2021) een bevolkingss jging tegen 2030 met 5 804 personen (respec evelijk 4 797 in Brussel, 238 in Sint-Joost-ten-Node en 769 in Schaarbeek), verdeeld over 4 313 huishoudens (respec evelijk 3.057 voor Brussel, 1 126 voor Sint-Joostten-Node en 130 voor Schaarbeek).

Verschillende huisves ngsprojecten zullen de komende jaren nieuwe wijkbewoners aantrekken. In de directe omgeving van de perimeter zullen er naar verwach ng ~500 inwoners bijkomen (~270 inwoners meer voor het project ZIN, ~300 inwoners volgens de aanbevelingen van de nota "Ferraris”), de verbouwing van het CCN en van Proximus en de omliggende projecten (poten eel WTC4 en Boreal en de vele projecten in de wijk Helihaven en langs het kanaal) niet meegerekend.

In de wijk wordt een grotere bevolkingsgroei verwacht dan gemiddeld in het Gewest. Heel wat projecten beva en immers huisves ng.

VERGELIJKING VAN DE ALTERNATIEVEN

De alterna even stellen tussen 30% en 50% huisves ng voor (tegenover 0% vandaag). In allevier de alterna even zal het inwonersaantal in de perimeter dus sterk s jgen: a ankelijk van het alterna ef zullen er in de zone ‘huizenblokken’ tussen 1520 en 2723 inwoners bijkomen. Deze bijkomende inwoners zullen in de vier alterna even aanzienlijk bijdragen tot het leven en de gemengdheid in de wijk. De alterna even (ii) en (iv), die met de hoogste verhouding, zouden logischerwijs voor de grootste toename zorgen.

14Volgens het GPDO zou de bevolking tegen 2040 nog veel sterker s jgen. Afgaande op de reële bevolkingsevolu e in de afgelopen jaren werden de verwach ngen naar beneden bijgesteld. Omdat de projec es van het BISA (recentere verwach ngen gebaseerd op sta s eken) en de doelstellingen van het GPDO (meer poli ek en van oudere datum) zo verschillend zijn, hebben we besloten om ons te baseren op de cijfers van het BISA.

Hoofdstuk III / Afdeling 3 - Effectenbeoordeling / A - programmatorische alterna even / p. 136
STEDELIJKE DYNAMIEK

Door de bevolkingss jging zal ook de dichtheid in de wijk toenemen:

Ter herinnering en ter vergelijking: de bevolkingsdichtheid in de wijken van de eerste Brusselse stadskroon ligt tussen 144 en 313 inw./ha (Wijkmonitoring, 2020).

In de 4 alterna even blijven de dichtheidscijfers voor de zone “huizenblokken” boven het Brusselse gemiddelde, maar sluiten ze aan bij de gemiddelde dichtheid in de eerste stadskroon. In de Noordwijk zal de bevolkingsdichtheid slechts beperkt toenemen en blij ze binnen de waarden die worden vastgesteld in de eerste stadskroon. De bevolkingsdichtheid op schaal van de Noordwijk is in deze alterna even dus nagenoeg gelijk. Het ene alterna ef is in dat verband niet guns ger dan het andere.

AANBEVELINGEN

Niet van toepassing.

HUISVESTING

HERHALING VAN DE DIAGNOSE EN RAMINGEN IN DE BESTAANDE TOESTAND

De perimeter bevat geen huisves ng. Het dichtstbij gelegen woongebouw staat op het Solvayplein (Amelinckxtoren)en omvat320openbarewoningen.HetManha an-gedeeltevandeNoordwijk teltslechts weinigwoningen aangezien er hoofdzakelijk kantoorgebouwen zijn geves gd. Woningen zijn dus vooral aanwezig in het noorden van de Noordwijk en in de Brabantwijk. Ook het westen van de wijk omvat een residen eel weefsel dat hier vooral bestaat uit appartementsgebouwen (woontorens, nieuwe gebouwen langs het kanaal…).

De Noordwijk hee een grote verhouding sociale woningen (18,35 % tegenover een gemiddelde van 7,2%). De recente (en toekoms ge) ontwikkelingen verhogen echter de huurprijzen, wat in contrast staat met dit grote aandeel van sociale woningen. De uitdaging voor de wijk bestaat er dus in om woningen met gemiddelde huurprijzen te ontwikkelen die het aanbod aanvullen en het evenwicht in de wijk herstellen.

In de Noordwijk staan heel wat kleine woningen die niet geschikt zijn voor de grote gemiddelde gezinsgroo e. De recenteentoekoms geontwikkelingenvoorzienvooralstudio’seneenslaapkamerappartementen(respec evelijk 23 en 31 % dus 54 % in totaal), 36% twee slaapkamerwoningen en slechts weinig grote woningen (10% met drie slaapkamers).

TENDENTIEEL ALTERNATIEF

Het huidige BBP voorziet de volgende bestemmingen:

- Voor de huizenblokken North Galaxy en Proximus, residentiële, administratieve en commerciële groeperingen en de uitrustingen die daarbij horen;

- voor het CCN, een station voor interlokaal en metropolisch spoorverkeer, een autobus- en tramstation, een taxistation, de toegangen tot deze stations alsook de lokalen bestemd voor alle bijhorende diensten en uitrustingen.

Er kunnen dus nog woningen worden ontwikkeld in de huizenblokken Proximus en North Galaxy, maar niet in het CCN. Over de verhoudingen voor de verschillende func es wordt niets gezegd.

Hoofdstuk III / Afdeling 3 - Effectenbeoordeling / A - programmatorische alterna even / p. 137
Max Max (i) Max Min (ii) Min Max (iii) Min Min (iv) Aantal woningen 760 1 255 700 1 156 Aantal inwoners 1 650 2 723 1 520 2 508 Dichtheid van de zone “huizenblokken” 150 inw./ha 247 inw./ha 138 inw./ha 228 inw./ha Dichtheid van de Noordwijk 133 inw./ha 142 inw./ha 132 inw./ha 140 inw./ha
STEDELIJKE DYNAMIEK

VolgensdeGSVliggende3huizenblokkeninadministra egebiedendiezijnbestemdvoorkantorenenhuisves ng. Ze gee echter evenmin verdere details over de respec eve verhoudingen van deze func es.

De woningbehoe e kan worden geëvalueerd op basis van de projec es van het aantal huishoudens. Ter herinnering (zie eerder) zijn dit de projec es van het BISA15 (2021):

- voor het Gewest, 7 029 extra huishoudens tegen 2030. Om die te huisvesten zijn in het hele Gewest dus eveneens iets meer dan 7000 woningen nodig. Tegen 2050 moeten er nog bijna 12 000 bijkomende woningen worden geproduceerd.

- voor de gemeenten Brussel, Sint-Joost-ten-Node en Schaarbeek gewaagt het BISA van 4 313 bijkomende huishoudens tegen 2030 (respectievelijk 3 057 voor Brussel, 1 126 voor Sint-Joost-ten-Node en 130 voor Schaarbeek). Daarvoor zijn dus evenveel woningen nodig.

Verschillende huisves ngsprojecten zullen de komende jaren nieuwe wijkbewoners aantrekken. In de directe omgeving van de perimeter zullen er naar verwach ng ~270 woningen bijkomen (~130 woningen meer voor het project ZIN, ~140 woningen volgens de aanbevelingen van de nota "Ferraris”), de verbouwing van het CCN en van Proximus en de omliggende projecten (poten eel WTC4 en Boreal en de vele projecten in de wijk Helihaven en langs het kanaal) niet meegerekend.

Zoals al gezegd mikken de recente en toekoms ge projecten vooral op kleine woningen.

Tussen de perimeter en het Kanaal zullen de komende jaren ongeveer 300 nieuwe sociale woningen worden gebouwd (SVC Citroën – Vergote).

VERGELIJKING VAN DE ALTERNATIEVEN

Aantal woningen

Ter herinnering: de alterna even stellen tussen 30% en 50% woningen voor (tegenover 0% in d huidige toestand, dat betekent tussen 700 en 1 255 bijkomende woningen, a ankelijk van het alterna ef. Voor de huizenblokken

Proximus en CCN worden al projecten uitgewerkt, dus daar kunnen tegen 2030 woningen worden gebouwd. Voor het huizenblok North Galaxy is nog geen enkel project bekend. Bovendien is het momenteel nog bezet, dus de woningen kunnen er worden gepland tegen 2050. Deze woningproduc e kunnen we toetsen aan de behoe en die door BISA werden geraamd voor de 3 betrokken gemeenten (tegen 2030) en voor het Gewest (tegen 2030 en 2050):

15Volgens het GPDO zou de bevolking tegen 2040 nog veel sterker s jgen. Afgaande op de reële bevolkingsevolu e in de afgelopen jaren werden de verwach ngen naar beneden bijgesteld. Omdat de projec es van het BISA (recentere verwach ngen gebaseerd op sta s eken) en de doelstellingen van het GPDO (meer poli ek en van oudere datum) zo verschillend zijn, hebben we besloten om ons te baseren op de cijfers van het BISA.

Hoofdstuk III / Afdeling 3 - Effectenbeoordeling / A - programmatorische alterna even / p. 138
Max Max (i) Max Min (ii) Min Max (iii) Min Min (iv) Aantal woningen tegen 2030 545 899 485 800 Verhouding voldane behoe en van de gemeente tegen 2030 13% 21% 11% 19% Verhouding voldane behoe en van het Gewest tegen 2030 8% 13% 7% 11% Aantal woningen tegen 2050 760 1 255 700 1 156 Verhouding voldane behoe en van het Gewest tegen 2050 4% 7% 4% 6%
STEDELIJKE DYNAMIEK

Deverwachteontwikkelingen voordeonderzochtehuizenblokkenbeantwoordendusaan11tot21% vandevraag naar woningen voor de 3 betrokken gemeenten tegen 2030, aan 7 tot 13% van de gewestelijke vraag naar woningen tegen 2030 en aan 4 tot 7% van de gewestelijke vraag naar woningen tegen 2050.

Het ontwikkelde aantal woningen, vooral in de alterna even (ii) en (iv), voldoet dus aan een groot deel van de vraag naar woningen tegen 2030 en 2050 in een klein gebied met een zeer specifieke typologie (torens), temeer omdat deze cijfers geen rekening houden met de andere huisves ngsprojecten die in de wijk zijn gepland (ZIN, Ferraris, enz. - zie eerder). Dat roept vragen op over het belang van het aantal woningen dat zal worden geproduceerd. Ze zullen immers een grote impact hebben op de mobiliteit (zie “Verplaatsingen”) en de zeer lawaaierige omgeving zal onmiskenbaar de kwaliteit van de geproduceerde woningen beïnvloeden (zie “Geluid en trillingen”). Toch is een zekere verhouding huisves ng nodig om de lee aarheid en gemengdheid van de wijk te garanderen.

De verhouding woningen op schaal van het project moet dus voldoende zijn (minstens 20%, wat het geval is in de alterna even (i) en (iii)), om de wijk de nodige dynamiek te geven. Anderzijds kan de totale woningproduc e worden verminderd gezien de specifieke typologie en het aantal woningen van eenzelfde typologie die hoe dan ook in de wijk worden verwacht.

Gemengdheid van de woningen

De onderzochte alterna even stellen geen gevarieerde types en groo es voor voor de woningen. Een analyse is in dit stadium dus niet mogelijk.

Volgens het rapport BXXL - Objec va on des avantages et inconvénients des immeubles élevés à Bruxelles (2009) (onderzoek naar de voor- en nadelen van hoogbouw in Brussel) gaat woningbouw in deze bijzondere stedelijke typologie (hoge torens) gepaard met zeer hoge ontwikkelingskosten en lasten (hoe hoger de bruto/ne overhouding, hoe groter de technische behoe en). De ontwikkeling van sociale/middelgrote/geconven oneerde woningen iser niet onmogelijk, maarkan leiden toteenzekere“ver cale sociale segrega e”. De verkoop/verhuur van de lagere appartementen tegen een lagere prijs wordt immers mogelijk gemaakt door de verkoop/verhuur van de hogere appartementen tegen een hogere prijs (vanwege hun kenmerken). De lasten en de onderhoudskosten blijven een belangrijk punt dat de ontwikkeling van sociale woningen mogelijk zal belemmeren. De kosten moeten immers in lijn zijn met het type woningen en gezien de grote verschillen tussen de appartementen stemt sociale woningproduc e in deze zone niet overeen met de gebruikelijke prak jken in de vastgoedwereld. Een goede omkadering is dus nodig.

AANBEVELINGEN

Zoals al gezegd moet de verhouding woningen op schaal van het project voldoende zijn (minstens 20%, wat het geval is in de alterna even (i) en (iii)) om de wijk de nodige dynamiek te geven. Anderzijds kan de totale woningproduc e worden verminderd gezien de specifieke typologie en het aantal woningen van eenzelfde typologie die elders in de wijk worden verwacht.

Gelet op de kenmerken van de wijk en de toekoms ge tendensen, is het raadzaam om in de wijk grote woningen te ontwikkelen.

In de huidige toestand zien we bovendien grote verschillen in de woningprijzen. Het evenwicht moet worden hersteld door woningen te voorzien tegen “middelhoge” prijzen, dus verkoop- en huurprijzen tussen die van sociale woningen, die in de wijk al goed vertegenwoordigd zijn, en die van de nieuwe ontwikkelingen langs het Kanaal. Omdat de prijzen worden bepaald door de markt, is deze aanbeveling moeilijk uit te voeren. Dat kan waarschijnlijkenkelviadeontwikkelingvangoedomkaderdeopenbarewoningen.Deklassiekevastgoedprak jken moeten, zoals al gezegd, dus goed worden omkaderd om realis sche en duurzame ontwikkelingen te garanderen.

Hoofdstuk III / Afdeling 3 - Effectenbeoordeling / A - programmatorische alterna even / p. 139
STEDELIJKE DYNAMIEK

VOORZIENINGEN EN HANDELSZAKEN

HYPOTHESEN

Handelszaken

Volgens een studie over de detailhandel in België16 variëren het aantal verkooppunten per 1 000 inwoners, de handelsdichtheid en de gemiddelde ne o oppervlakte van de handelszaken naargelang de plaats. In de perimeter van het BBP en de directe omgeving ervan, worden twee handelstypologieën geïden ficeerd:

- Het type “grote steden en grote winkelcentra”

- Het type “dichtbevolkte delen van de grote steden”

Voor deze typologieën gee de studie de volgende gemiddelden waarop we de hypothesen baseren: Verkooppunten per 1000 inwoners Gemiddelde ne o oppervlakte (NACE 52)

Ter informa e: het aantal handelszaken ten opzichte van de bevolkingsdichtheid werd geanalyseerd door hub.brussels17 : de cijfers variëren van 10 tot 30 handelszaken per 1 000 inwoners, naargelang het gaat om een hoofdzakelijk residen ële gemeente met weinig handelszaken of een centrale gemeente die een bovengemeentelijke handelspool is (toerisme, studenten, kantoren, ...). Deze waarden stemmen globaal overeen met die van de twee typologieën die we hiervoor beschreven.

De handelsoppervlakte per 1000 inwoners kan als volgt worden geraamd:

- voor een typologie “grote steden en grote winkelcentra”: : 5 227 m² handelsoppervlakte per 1000 inwoners (35,8 handelszaken *146 m²/handelszaak);

- voor een typologie “dichtbevolkte delen van de grote steden”: 1 900 m² handelsoppervlakte per 1000 inwoners (15,2 handelszaken *125 m²/handelszaak.

Eveneens volgens hub.brussels moeten in Brussel gemiddeld tussen 0,67 en 0,83 personen per m² handelszaak aanwezig zijn om de rentabiliteit van de handels ruimten te garanderen (1,2 tot 1,5 m² handelszaak per bezoeker van de wijk).

Voorzieningen

De ramingen voor de voorzieningen zijn gebaseerd op de volgende hypothesen:

- 0,33 plaatsen per kind jonger dan 3 jaar (Europese dekkingsnorm)

- 12 m² per kind in de crèche

- 0,077 plaatsen per persoon ouder dan 65 jaar (Brulocalis, 2013)

- 50 m² per volwassene in een woonzorgcentrum (limiet van de SPW-subsidie voor de bouw van nieuwe woonzorgcentra)

- Gemiddelde grootte van de woonzorgcentra, alle types samen: 113 bedden (Mini-Bru, BISA, 2022)

- Plaatsen in het kleuteronderwijs: totaal aantal kinderen van 3 tot 5 jaar

- Plaatsen in het lager onderwijs: totaal aantal kinderen van 6 tot 11 jaar

- Plaatsen in het middelbaar onderwijs: totaal aantal jongeren van 12 tot 17 jaar

- 1,23 huisartsen per 1000 inwoners (Wijkmonitoring, 2017)

16 Une macro-géographie du commerce de détail en Belgique, Jean-Pierre Grimmeau, Benjamin Wayens en Emilie Hanson, EchoGéo [Online], 15 | 2011, online geplaatst op 12 april 2011, geraadpleegd op 28 februari 2022. URL : h p://journals.openedi on.org/echogeo/12330 ; DOI : h ps://doi.org/10.4000/echogeo.12330

17 De Brusselse handel in cijfers - Structura e van het Brusselse handelslandshap, hub.brussels, perspec ve.brussels, ULB, 2019

Hoofdstuk III / Afdeling 3 - Effectenbeoordeling / A - programmatorische alterna even / p. 140
Grote steden en grote winkelcentra 35,8 146 m² Dichtbevolkte delen van de grote steden 15,2 125 m²
STEDELIJKE DYNAMIEK

Zonder verdere gegevens in dit stadium over het type woningen dat wordt verwacht, worden de Brusselse gemiddelden van de lee ijdspiramide toegepast:

HERHALING VAN DE DIAGNOSE EN RAMINGEN IN DE BESTAANDE TOESTAND

Handelszaken

De meeste handelszaken in de perimeter zijn geves gd in het sta on (specifieke pool). De handelspool van het CCN werd ‘ontruimd’ om de a raak van het gebouw voor te bereiden. Er is ook een handelszaak (horeca) geves gd op de benedenverdieping van het huizenblok North Galaxy.

De perimeter telt in totaal 9 717 m² handelsruimten, waarvan iets meer dan 5 000 m² in het huizenblok CCN dat recent werd ontruimd en iets meer dan 4 000 m² in het sta on. Volgens Infrabel, dat de handelszaken in het sta on verhuurt, is de handelsdynamiek in de wijk weinig ac ef.

Voorzieningen

De perimeter omvat momenteel geen voorzieningen.

Het team Territorium Noord evalueerde de huidige behoe e aan18 buurtvoorzieningen in de wijk (* Nota voor het Proximus-project, alle openbare actoren, 2021 / ** Diagnose Territorium Noord, perspec ve.brussels, 2021) als volgt:

 Crèche*: 800 m² of 1 crèche voor 66 kinderen

 Gezondheidscentrum*: 1 000 m²

 Basisschool** : 1 500 plaatsen voor de Noordwijk, d.i. ~3 scholen. In het BBP kan een van deze 3 basisscholen worden ontwikkeld, goed voor 475 leerlingen op ~4 000 m² (8,6 m² per leerling, perspective.brussels)

Middelbare school**: verschillende scholen voor de Noordwijk In het BBP kan een middelbare school worden ontwikkeld (voor 622 leerlingen) op ~6 200 m² (10 m² per leerling, perspective.brussels).

De gewestelijke nota’s voor de herontwikkeling van het gebied wijzen op een behoe e aan

 een opvangplaats voor NGO’s en nieuwkomers (2 000 tot 3 000 m²),

 een huiswerkschool (1 000 m²), een opvangstructuur voor de geestelijke gezondheid (2 000 tot 3 000 m²), een vormingscentrum voor maatschappelijk werkers (2 000 tot 3 000 m²), een lokaal sportcentrum19 (1 000 tot 3 000 m²), een bibliotheek/ludotheek (1 000 tot 3 000 m²),  een culturele voorziening (1 000 tot 3 000 m²).

In het BBP kan minstens een deel van deze voorzieningen in de wijk worden geplaatst.

TENDENTIEEL ALTERNATIEF

Het huidige BBP voorziet de volgende bestemmingen:

- Voor de huizenblokken North Galaxy en Proximus, residentiële, administratieve en commerciële groeperingen en de uitrustingen die daarbij horen;

- voor het CCN, een station voor interlokaal en metropolisch spoorverkeer, een autobus- en tramstation, een taxistation, de toegangen tot deze stations alsook de lokalen bestemd voor alle bijhorende diensten en uitrustingen.

18 Deze verschillende behoe en houden geen rekening met de behoe en die door de ontwikkeling van het BBP zelf worden geïnduceerd.

19 Commerciële sportvoorzieningen zoals fitnesszalen, yoga, enz. worden beschouwd als handelsruimten en niet als voorzieningen.

Hoofdstuk III / Afdeling 3 - Effectenbeoordeling / A - programmatorische alterna even / p. 141
Lee ijdsgroepen 0-2 3-5 6-11 12-17 18-29 30-44 45-64 65-79 80 en + BHG (BISA, 2020) 4,11% 4,05% 7,80% 6,77% 17,17% 23,84% 23,16% 9,06% 4,04%
STEDELIJKE DYNAMIEK STEDELIJKE DYNAMIEK

In alle huizenblokken van het gebied kunnen dus handelszaken en voorzieningen worden ontwikkeld, zonder opgelegde verhoudingen of afme ngen (minimum of maximum). Voor het huizenblok CN zijn deze func es echter beperkt tot “bijhorende diensten en uitrus ngen”.

DeGSVplaatstde3huizenblokkeninadministra egebiedenlaatzodeontwikkeling toe,bijhorendbij dekantoren en woningen die de hoofdfunc es zijn, van voorzieningen van collec ef belang of van openbare diensten en van handelszaken met een vloeroppervlakte van niet meer dan 1 000 m² per project en per gebouw. Het CCN krijgt bovendien de overdruk “G” voor handelsgalerij, wat impliceert dat de handelszaken in dit huizenblok beperkt moeten blijven tot 2 500 m². De GSV beperkt de totale handelsoppervlakte in het gebied dus tot 4 500 m². Een verhoging van de handelsoppervlakten kan evenwel worden toegelaten met speciale regelen van openbaarmaking.

Wat de evolu e van de wijk betre :

- Het ZIN-project dat momenteel wordt uitgevoerd in de buurt van de site omvat 700m² handelszaken. In de directe omgeving van de wijk zullen andere projecten worden gerealiseerd (WTC4, Ferraris) maar exacte cijfers dienaangaande zijn nog niet bekend zodat het aantal bijkomende m² handelsoppervlakte niet kan worden geraamd.

- Inhet Territorium Noordlopenverschillendeprojectenvoor voorzieningen:sportzalenopdecampusvan de Gallaitschool en in Ecole 8 in de Jollystraat, klimzaalproject aan de Groendreef (Arkoze), sporttoren aan de zwaaikom van het Vergotedok, openbare voorziening op de benedenverdiepingen van de openbare woongebouwen die worden voorzien door het SVC. Ook de studie voor de heraanleg van het Maximiliaanpark loopt momenteel.

VERGELIJKING VAN DE ALTERNATIEVEN

Handelszaken

De alterna even stellen de ontwikkeling voor van:

Deze vloeroppervlakten kan worden getoetst aan de behoe en die werden gebaseerd op het aantal inwoners volgens de hierna volgende

Ten opzichte van het verwachte aantal bijkomende inwoners in het gebied en het aantal m² handelsoppervlakte dat is gepland, voorzien de 4 alterna even - en dan vooral de alterna even (ii) en (iv), de ontwikkeling van een

Hoofdstuk III / Afdeling 3 - Effectenbeoordeling / A - programmatorische alterna even / p. 142
Max Max (i) Max Min (ii) Min Max (iii) Min Min (iv) Handelszaken (m²) 14 406 m² 22 009 m² 13 506 m² 20 509 m²
hypothesen: Max Max (i) Max Min (ii) Min Max (iii) Min Min (iv) Voorzien aantal inwoners 1 650 2 723 1 520 2 508 Equivalent “Grote steden en grote winkelcentra” (in m² handelszaak) 8 625 m² 14 233 m² 7 945 m² 13 109 m² Equivalent “Dichtbevolkte delen van de grote steden” 3 135 m² 5 174 m² 2 888 m² 4 765 m² Daadwerkelijk voorgestelde handelszaken (m²) 14 406 m² 22 009 m² 13 506 m² 20 509 m² Verhouding grondinname bestemd voor handelszaken 52% 79% 53% 81%
STEDELIJKE DYNAMIEK

zeer grote handelspool die de behoe en van de wijk en de grenzen opgelegd door de GSV ruimschoots zal overschrijden.

Er dient opgemerkt dat het gebied in de onmiddellijke nabijheid van en tussen de bovenlokale polen Brabant en Nieuwstraat is gelegen. Bovendien neemt zowat overal de handelsleegstand toe, met een gemiddelde graad van 14% in 2021 in het BHG (tegenover 6% voor de wijk Brabant en 17% voor de pool Nieuw)20. De gezondheidscrisis zal een niet-verwaarloosbare maar weinig voorspelbare invloed hebben op dit thema.

De ontwikkeling van een bovenlokale handelspool rond het Noordsta on zou deze polen mogelijk kunnen verzwakken door de concurren e op te voeren.

Als we de cijfers van de verhouding handelsoppervlakte / aantal personen die de wijk frequenteren toepassen, zien we dat geen enkel alterna ef voldoende poten ële klanten zal aanvoeren om de rentabiliteit van de nieuwe handelsruimten te garanderen21:

Inde 4gevallenworden handelsoppervlakten voorgestelddiedegeraamdebehoe en ophetvlak vanrentabiliteit overschrijden en met het oog op de voorziene frequenta e van de wijk. In de scenario’s (i) en (iii) is het verschil tussen de rentabiliteitscijfers en de reële frequenta e het kleinst.

Om de rentabiliteit van de handelszaken te garanderen en een ma ge bediening door handelszaken te behouden om geen concurren e te ontwikkelen voor de aangrenzende handelspolen, wordt aanbevolen om de toegekende handelsoppervlakten te verkleinen. Alterna ef (iii) benadert dit het meest, maar blij nog boven de geraamde behoe en. De vloeroppervlakten van de handelszaken zouden moeten worden afgestemd op de ontwikkelde woonoppervlakten (handelsoppervlakten moeten gelijk zijn aan 4 tot 11 % van de oppervlakten voor de woningen, uitgaande van 2,17 huishoudens per 100m² woningen).

20 analy cs.brussels, 2020

21 Voor de raming van deze behoe en gaan we uit van de hypothese dat meer dan de bestaande 9 000 m² handelsruimte nodig zijn (en rendabel moeten zijn) om te beantwoorden aan de behoe en verbonden aan het sta on en de metro in een normale ‘werking’ (vóór Covid, werken aan het CCN, onzekerheid vanwege de leegstand, enz.).

Hoofdstuk III / Afdeling 3 - Effectenbeoordeling / A - programmatorische alterna even / p. 143
Max Max (i) Max Min (ii) Min Max (iii) Min Min (iv) Verhoging van de handelsoppervlakten (m²) 4 689 m² 12 293 m² 3 789 m² 10 793 m² Noodzakelijke verhoging van het aantal poten ële klanten (op basis van 0,67 tot 0,83 pers/m²) 3 100 tot 3 900 8 200 tot 10 200 2 500 tot 3 100 7 200 tot 9 000 Verhoging van het aantal poten ële klanten volgens de alterna even van het BBP (buurtbewoners, bezoekers, werknemers van de kantoren en voorzieningen) 2 800 1 768 1 272 320
STEDELIJKE DYNAMIEK

Voorzieningen

Het aantal inwoners per lee ijd kan voor elk alterna ef als volgt worden geraamd:

De behoe e aan buurtvoorzieningen geïnduceerd door de nieuwe inwoners wordt dus geraamd op:

De al bestaande en de geïnduceerde behoe en aan plaatsen in de crèche kunnen bij elkaar worden opgeteld. In het BBP kunnen een of meerdere crèches worden ontwikkeld van een groo e die is afgestemd op de vraag. In het BBP kan ook één woonzorgcentrum worden ontwikkeld met dus ongeveer 113 bedden, ook al is de geïnduceerde behoe e vrij klein ten opzichte van deze vraag (tussen 13 en 24% zouden in die zin worden gebruikt).

Wat de scholen betre kan de behoe e die wordt gegenereerd door de herontwikkeling van het gebied worden ‘geabsorbeerd’ door de ontwikkeling van voorzieningen waar ook in de huidige toestand al nood aan is. Aan de al bestaande behoe enzou indeperimeterechternietvolledigwordenvoldaan. Daaromzoudenereenbasisschool moeten worden ontwikkeld (475 leerlingen waarvan 38 tot 68 % in de perimeter zou wonen) en een middelbare school (622 leerlingen waarvan 17 tot 30 % in de perimeter zou wonen).

Op het gebied van gezondheidszorg zou in het BBP een gezondheidscentrum kunnen worden ontwikkeld (al bestaande behoe e) met onder meer de 2 tot 4 huisartsen die “nodig” zouden zijn voor de nieuwe buurtbewoners.

Hoofdstuk III / Afdeling 3 - Effectenbeoordeling / A - programmatorische alterna even / p. 144
Lee ijdsgroepen 0-2 3-5 6-11 12-17 18-29 30-44 45-64 65-79 80 en + Max Max (i) 68 67 129 112 283 393 382 150 67 Max Min (ii) 112 110 212 184 467 649 631 247 110 Min Max (iii) 62 62 119 103 261 362 352 138 61 Min Min (iv) 103 102 196 170 430 598 581 227 101
Max Max (i) Max Min (ii) Min Max (iii) Min Min (iv) Plaatsen in crèches 22 37 21 34 Oppervlakte-equivalent 268 m² 443 m² 247 m² 408 m² Plaatsen in rust- en verzorgingstehuizen 17 27 15 25 Oppervlakte-equivalent 832 m² 1 373 m² 767 m² 1265 m² Plaatsen in de basisscholen (kleuter + lager onderwijs) 196 323 180 297 Plaatsen in de middelbare scholen 112 184 103 170 Aantal huisartsen 3 4 2 4
STEDELIJKE DYNAMIEK

De totale behoe e aan buurtvoorzieningen (bestaande en geïnduceerde samen) bedraagt dus:

Er dient opgemerkt dat aangezien gemengdheid zal worden ontwikkeld in het gebied, ook het aantal bezoekers zal toenemen. A ankelijk van de ontwikkelde voorzieningen kunnen die hun verplaatsingen combineren om deze voorzieningen te gebruiken, ook als ze niet speciaal het doelpubliek zijn. De poten ële vraag naar voorzieningen, dus de geïnduceerde behoe en, zal dus poten eel groter zijn dan hier werd berekend. De factoren die deze vraag beïnvloeden zijn in dit stadium (of in het BBP) niet gespecificeerd. We kunnen deze vraag van de bezoekers dus niet ramen, alleen vermelden.

In de oppervlakten voor voorzieningen die de verschillende alterna even voorzien kunnen dus nog andere voorzieningen worden opgenomen (zie de andere geïden ficeerde behoe en in de bestaande toestand):

Dealterna even(ii)en(iv)beantwoordenaaneenaantalanderebestaandebehoe endiewerdengeïden ficeerd, zoals een lokaal sportcentrum (de gemeente Schaarbeek hee alvast belangstelling voor een dergelijke voorziening), een opvangplaats voor NGO’s en nieuwkomers (afgestemd op de ligging van de onderzochte perimeter), een huiswerkschool, een vormingscentrum voor maatschappelijk werkers, een culturele voorziening of een bibliotheek/ludotheek en/of een opvangstructuur voor de geestelijke gezondheidszorg, a ankelijk van de oppervlaktendiedezevoorzieningenwerkelijknodighebben.Zonietbiedendezealterna even,geziendecentrale ligging van het gebied en de uitstekende bediening door het openbaar vervoer, voldoende beschikbare ruimte voor de ontwikkeling van een grote gewestelijke voorziening.

Er moet worden gewezen op twee aandachtspunten:

- hetisbelangrijk datdezevoorzieningendragersvindenen datervoldoendemenselijkemiddelenworden gevonden om ze te beheren en te leiden, kwestie van deze vele m² ten volle te benutten;

- de berekeningen omvatten een lagere en een middelbare school (nodig gezien de toekomstige ontwikkelingen) en vertegenwoordigen ongeveer 10 000 m² “noodzakelijke” voorzieningen om een deel

Hoofdstuk III / Afdeling 3 - Effectenbeoordeling / A - programmatorische alterna even / p. 145
Max Max (i) Max Min (ii) Min Max (iii) Min Min (iv) Plaatsen in crèches 88 103 87 100 Oppervlakte-equivalent 1 068 m² 1 243 m² 1 047 m² 1 208 m² Plaatsen in rust- en verzorgingstehuizen 113 113 113 113 Oppervlakte-equivalent 5 650 m² 5 650 m² 5 650 m² 5 650 m² Basisschool 475 475 475 475 Oppervlakte-equivalent 4 000 m² 4 000 m² 4 000 m² 4 000 m² Middelbare scholen 622 622 622 622 Oppervlakte-equivalent 6 200 m² 6 200 m² 6 200 m² 6 200 m² Medisch huis 1 000 m² 1 000 m² 1 000 m² 1 000 m² TOTAAL 18 023 m² 18 198 m² 18 002 m² 18 163 m²
Max Max (i) Max Min (ii) Min Max (iii) Min Min (iv) Totale oppervlakte van de behoe e aan buurtvoorzieningen 18 023 m² 18 198 m² 18 002 m² 18 163 m² Oppervlakte voorzien door het alterna ef 20 009 m² 31 415 m² 18 509 m² 29 015 m² Beschikbare oppervlakte voor andere behoe en 1 986 m² 13 217 m² 507 m² 10 852 m²
STEDELIJKE DYNAMIEK

van de al bestaande en de toekomstige behoeften op te vangen. Aangezien de stedelijke typologie van de site zich daar niet echt voor leent, moet dit aandachtspunt al worden aangehaald in dit stadium van het proces.

AANBEVELINGEN

Om de rentabiliteit van de handelszaken te garanderen en een ma ge bediening door handelszaken te behouden, wordt aanbevolen om de toegekende handelsoppervlakten te verkleinen. De vloeroppervlakten van de handelszaken zouden moeten worden afgestemd op de ontwikkelde woonoppervlakten (handelsoppervlakten moeten gelijk zijn aan 4 tot 11 % van de oppervlakten voor de woningen, uitgaande van 2,17 huishoudens per 100m² woningen).

Om concurren e met de handelspool van de Nieuwstraat te vermijden zou bovendien vooral aan de dagelijkse behoe en moeten worden voldaan met de ontwikkeling van buurtwinkels, diensten en horecazaken, in plaats van kledingwinkels en andere grote handelszaken. Hub.brussels raadt aan om niet meerdere supermarkten te ontwikkelen (~1000 m²) maar om de oppervlakten per project te beperken.

Wat de voorzieningen betre , lijkt - in het licht van de behoe en die worden geïnduceerd door de ontwikkeling van woningen ~18 000 m² vloeroppervlakte te volstaan om daaraan te beantwoorden. Een grotere oppervlakte (tot 13 000 m² in de onderzochte alterna even) zou echter ook beantwoorden aan andere behoe en die in de wijk werden geïden ficeerd. Er dient opgemerkt dat gezien de uitstekende bediening van de wijk door het openbaar vervoer en gezien de verwachte ontwikkelingen in de wijk, ook de ontwikkeling van grotere voorzieningen die de lokale behoe en overs jgen volkomen relevant is binnen het BBP. In dat kader moet nogmaals worden gewezen op de aandachtspunten in verband met de projectdragers en de ontwikkeling van scholen (zie eerder).

Hoofdstuk III / Afdeling 3 - Effectenbeoordeling / A - programmatorische alterna even / p. 146
STEDELIJKE DYNAMIEK

ECONOMISCHE ACTIVITEITEN EN TRANSITIE

HERHALING VAN DE DIAGNOSE EN RAMINGEN IN DE BESTAANDE TOESTAND

De wijk omvat in de huidige toestand 308 332 m² kantoren, dat is ongeveer 96 % van de totale vloeroppervlakte van de perimeter. Er zijn geen produc eac viteiten geves gd.

TENDENTIEEL ALTERNATIEF

Het huidige BBP voorziet de volgende bestemmingen:

- Voor de huizenblokken North Galaxy en Proximus, residentiële, administratieve en commerciële groeperingen en de uitrustingen die daarbij horen;

- voor het CCN, een station voor interlokaal en metropolisch spoorverkeer, een autobus- en tramstation, een taxistation, de toegangen tot deze stations alsook de lokalen bestemd voor alle bijhorende diensten en uitrustingen.

Er kunnen dus nog de administra eac viteiten (kantoren) worden ontwikkeld in de huizenblokken Proximus en North Galaxy, maar niet in het huizenblok CCN. De andere economische ac viteiten mogen nergens in het gebied worden geplaatst.

De GSV plaatst de 3 huizenblokken in administra egebied en laat er dus kantoren en woningen toe als hoofdbestemming. Andere produc eac viteiten zijn er enkel mogelijk als ze verenigbaar zijn met de 2 hoofdfunc es.

Kantoren

De belangrijkste economische ac viteit in de Noordwijk en in de perimeter van het BBP is vandaag de kantoorfunc e. De Noordwijk wordt dan ook gedomineerd door kantoortorens, met een zeer hoge kantoordichtheid (952 378 m2/km2) en een groot aantal pendelaars op weekdagen. De Manha anwijk is op het vlak van werknemers (35.000) het tweede grootste zakendistrict in Brussel. De Noordwijk concentreert meer dan 10% van het Brusselse kantooraanbod en wordt nog steeds beschouwd als een ‘prime loca on’, onder meer dankzijhaarcentraleliggingendeuitstekendeverbindingen(aanwezigheidvanhetNoordsta on)maarookomdat er nog zeer grote gebouwen staan. De leegstand in de wijk is volgens de diagnose van het Territorium Noord vrij laag (6,8%). De Manha anwijk bestaat echter vooral uit grote gebouwen met slechts één gebruiker. Elke wijziging impliceert dus dat er grote oppervlakken komen leeg te staan en hee een grote impact. Volgens het Overzicht van het Kantorenpark hee de Manha anwijk vandaag een kantelpunt bereikt in haar kantooraanbod. De huurovereenkomsten van verschillende grote huurders lopen s laan ten einde of eigenaars willen hun gebouw verkopen. Dat is bijvoorbeeld het geval voor het Ferraris-gebouw.

Bovendien evolueert het kantooraanbod de laatste jaren ook qua inhoud, met flex-offices voor grote structuren of coworkingruimten die zelfstandigen, start-ups en kleine ondernemingen aantrekken. De grote kantoorgebouwen in de wijk zijn in hun huidige staat niet al jd geschikt voor deze evolu es. Getuige daarvan de vele lopende projecten die vooral betrekking hebben op de renova e of wederopbouw van al bestaande gebouwen en dus weinig of geen kantooroppervlakte toevoegen.

Ook de ontwikkeling van telewerken als gevolg van de gezondheidscrisis zal op middellange en lange termijn een invloed hebben op de kantoorbehoe e en de dagelijkse beze ngsgraad doen dalen. Er zijn echter nog onvoldoende gegevens om de effecten op langere termijn te kunnen evalueren.

Hoe dan ook, met een totale vloeroppervlakte voor kantoren van 1 733 000 m² (2019) is de Noordwijk de derde grootstekantoorpoolvanhet BHG na deEuropesewijk endeVij oek.Zeis op maalbereikbaarmethetopenbaar vervoer en zal op gewestelijke schaal een belangrijke kantoorpool blijven. Voorwaarde is wel dat de kantoorvoorraad wordt gemoderniseerd en dat wordt afgestapt van het func onalis sche model. Het huidige oppervlakteaanbod moet dus worden behouden of zelfs verminderd, maar mag zeker niet toenemen. Echter:

- volgens de diagnose van het Territorium Noord zal het kantooraanbod tegen 2028 toenemen (afgaande op de bekende projecten) met ~23% van het huidige aanbod voor Territorium Noord + Thurn & Taxis;

- Ook het Overzicht van het Kantorenpark 2021 stelt dat er in de wijk heel wat projecten lopen (ongeveer 10% van de huidige kantoorvoorraad), dat de leegstand toeneemt, onder meer in de wijk, dat de bedrijven minder kantooroppervlakte nodig hebben (telewerk) en dat de algemene markt daalt (naar schatting 20 tot 25% in totaal als we deze factoren combineren).

Hoofdstuk III / Afdeling 3 - Effectenbeoordeling / A - programmatorische alterna even / p. 147
STEDELIJKE DYNAMIEK

Ideaal zou dus zijn om de huidige voorraad te verminderen met 20 tot 35% en dus om tussen 200 000 m² en 246 000 m² kantooroppervlakte te behouden in de perimeter.

Produc eac viteiten

De perimeter omvat vandaag geen produc eac viteiten.

De perimeter behoort ook niet tot de Kanaalzone, de Zone van Economische Uitbouw in de Stad (ZEUS) of het economische ontwikkelingsgebied (2015) van het Gewest en omvat volgens de GSV geen enkele bestemmingsgebied dat geschikt is voor deze ac viteiten. De wijk behoort dus niet tot de gebieden van het grondgebied waar vooral produc eac viteiten zullen worden ontwikkeld.

Nochtans bestaat er een poten eel voor de ontwikkeling van nieuwe synergieën en nieuwe economische ac viteiten in deNoordwijk in hetalgemeen eninde Manha anwijk en deperimetervan hetBBP inhetbijzonder.

Zoals de visie voor het Territorium Noord benadrukt, lijkt het open te staan voor een innova eve, economische, socialeen milieugerichtedenkwijze: deeconomischeactorenvan ditgebiedtonenbelangstellingvoor ecologische envernieuwendeoplossingen (ontwikkeling vanini a even ophetgebiedvan stadslandbouw,sociale ensolidaire economie, circulaire economie, jdelijke beze ng). De integra e van de produc efunc e in de wijk zou meer gediversifieerde bevolkings- en werknemersprofielen kunnen aantrekken..

VERGELIJKING VAN DE ALTERNATIEVEN

De onderzochte alterna even stellen de volgende oppervlakten voor:

Alleen het alterna ef Max Min (ii) bevindt zich binnen de ramingen voor het tenden ële alterna ef aangaande de kantoren.

Voor de produc eac viteiten kunnen in dit stadium de volgende bedenkingen worden gemaakt:

- de productie van materiële goederen wordt gezien het type activiteiten (ambacht, opslag van goederen, depannage en onderhoud, logistiek, ...) en gezien de specifieke typologie van de wijk bij voorkeur op de benedenverdieping van de gebouwen geplaatst. Deze activiteiten zouden dus kunnen concurreren met de handelszaken en voorzieningen die op dezelfde ruimten mikken. Bovendien impliceren heel wat van deze activiteiten gezien hun aard de ontwikkeling van aanzienlijke logistieke stromen (vrachtwagens);

- de productie van immateriële goederen lijkt gezien het type activiteiten (productie van audiovisuele goederen, opnamestudio’s, beroepsopleidingen, call center, ...) op het vlak van ruimten en logistieke stromen sterk op de ‘kantoorfunctie’.

Vanwege de stedelijke typologie, de rest van het programma (onder meer handelszaken en voorzieningen) en de daaraan verbonden effecten (met name op het vlak van mobiliteit) wordt aanbevolen om in het kader van het BBP geen ontwikkeling van produc eac viteiten van materiële goederen te voorzien, met uitzondering van ambachtelijkeac viteitendie verenigbaarzijnmetdeanderefunc esendievoorhunwerking geenzwaarverkeer impliceren (fietsrepara eatelier, bakkerij, ...).

AANBEVELINGEN

Kantoren

Streven naar een kantooroppervlakte van 200 000 tot 246 000 m².

Produc eac viteiten

Deproduc eac viteitenbeperkentot deproduc evanimmateriëlegoederenoftotambachtelijkeac viteiten die verenigbaar zijn met de huisves ngs- en kantoorfunc e en die voor hun werking geen zwaar verkeer impliceren.

Omdat deze ac viteiten op de onderste verdiepingen zouden worden geplaatst (benedenverdieping en 1ste of

Hoofdstuk III / Afdeling 3 - Effectenbeoordeling / A - programmatorische alterna even / p. 148
Max Max (i) Max Min (ii) Min Max (iii) Min Min (iv) Kantoren 276 130 m² 200 093 m² 255 130 m² 185 093 m² Produc eac viteiten 8 604 m² 16 207 m² 8 004 m² 15 007 m² TOTAAL 284 734 m² 216 300 m² 263 134 m² 200 100 m²
STEDELIJKE DYNAMIEK

2de verdieping voor de voorzieningen) zouden ze op het vlak van ruimte echter kunnen concurreren met de handelszaken en voorzieningen.

ACTIVERING VAN DE OPENBARE RUIMTE VIA DE BENEDENVERDIEPINGEN

HERHALING VAN DE DIAGNOSE EN RAMINGEN IN DE BESTAANDE TOESTAND

De perimeter wordt gekenmerkt door de aanwezigheid van ‘backstreets’, met name vanwege de stedelijke typologie en de adresseringslogica van deze gebouwen-huizenblokken. In de Koolbrandersstraat zijn er bijvoorbeeld geen toegangen en uitsluitend uniforme en ‘dode’ gevels.

Op de benedenverdiepingen bevinden zich vandaag:

- in het huizenblok North Galaxy: een horecazaak en de kantooringangen in de Bolivarlaan en de Albert Iilaan en de parking- en logistieke inritten op de Solvay-as en in de Kleine Vooruitgangstraat;

- in het huizenblok Proximus: de kantooringangen in de Bolivarlaan en de Albert Ii-laan en de parking- en logistieke inritten in de Kleine Vooruitgangstraat;

- huizenblok station:

o stadsniveau: een handelszaak, een fietsatelier en fietsparkings, kantoren en technische lokalen;

o stationsniveau: handelszaken en ruimten die verband houden met de mobiliteit (loketten ...);

- huizenblok CCN:

o halfondergrondsbusstation(onderhetstadsniveau) datniveauverschillencreëert dienefastzijn voor de activering van de openbare ruimte;

o stationsniveau: handelszaken, horeca, ruimten die verband houden met de mobiliteit (loketten, ingang premetro ...) en ingangen van de kantoren die gericht zijn op de binnenkant van het gebouw en niet bijdragen tot de activering van de openbare buitenruimte.

In totaal zijn op de benedenverdiepingen van de gebouwen van de perimeter iets meer dan 10 000 m² ‘ac verende’ ac viteiten gelegen, dat is iets minder dan 30% van de totale grondinname (35 815 m²).

TENDENTIEEL ALTERNATIEF

Volgens de geldende BBP’s zijn de zones voor laagbouw en gebouwen met middelma ge hoogte bestemd voor voorzieningen. Woningen, kantoren, voorzieningen, handelszaken of ruimten voor vrije beroepen kunnen worden geplaatst in de zones voor hoogbouw.

De GSV zegt niets over de lokalisa e van de verschillende bestemmingen die zijn toegelaten in administra egebieden. De handelszaken zijn echter beperkt tot 1000 m² voor de huizenblokken North Galaxy en Proximus en tot 2 500 m² voor het huizenblok CCN. De verhoging van deze oppervlakten is mogelijk met speciale maatregelen van openbaarmaking.

In de prak jk werden alle ruimten op het sta onsniveau van het CCN (behalve de ruimten die verband houden met de mobiliteit) ontruimd met de oog op de a raak van het gebouw.

Het sta on hee heel recent een aantal inrich ngswerken ondergaan. Het statuut en de organisa e van het sta on zullen de komende jaren niet worden gewijzigd.

Er lopen geen projecten die de ac vering van de openbare ruimte in de perimeter zullen beïnvloeden.

Hoofdstuk III / Afdeling 3 - Effectenbeoordeling / A - programmatorische alterna even / p. 149
STEDELIJKE DYNAMIEK

VERGELIJKING VAN DE ALTERNATIEVEN

Geletopdevoorzienefunc esindeperimeterzijndeoppervlaktenvoorhandelszakenenvoorzieningenhetmeest geschikt om op de benedenverdiepingen te worden geplaatst en dus om de openbare ruimte te ac veren. Ook de ingangen van woningen en kantoren vervullen die rol, maar ze situeren zich enkel op de benedenverdiepingen. De genoemde ac viteiten zijn dus a priori meer geschikt voor de hogere verdiepingen. Op de benedenverdiepingen kunnen ook in zekere mate economische ac viteiten worden geplaatst (ambachtelijke ac viteiten met verkoop, zoals fietsrepara eateliers of bakkerijen), maar de alterna even spreken zich niet uit over de verhoudingen. Ze worden hier dus niet in aanmerking genomen maar moeten bij de voormelde oppervlakten worden bijgeteld. De alterna even voorzien de volgende oppervlakten voor voorzieningen en handelszaken:

In alle alterna even worden de benedenverdiepingen van alle gebouwen meer dan volledig ingenomen door handelszaken en voorzieningen. Als die func es evenredig worden verdeeld over de verschillende huizenblokken (dit wordt in de alterna even niet gepreciseerd), zullen de alterna even impliceren:

- het gebruik van de benedenverdiepingen en de lagere verdiepingen voor de voormelde functies in de huizenblokken Proximus en North Galaxy.

- het gebruik van een deel van het stadsniveau dat niet wordt ingenomen door het busstation en van het geheel van het stadsniveau

- de versterking van de huidige toestand op het stads- en stationsniveau voor het huizenblok station.

In de 4 alterna even worden, op alle wegen van de perimeter, alle benedenverdiepingen geac veerd door handelszaken en voorzieningen.

De alterna even (ii) en (iv) lijken te grote oppervlakten toe te kennen aan handelszaken en voorzieningen, wat impliceert dat deze func es zullen worden ontwikkeld op de verdiepingen.

AANBEVELINGEN

De verhouding handelszaken en voorzieningen lijkt te groot gezien de grondinname van de gebouwen. De verhoudingen zouden dus moeten worden beperkt, temeer omdat ook ambachtelijke ac viteiten met verkoop eventueel aan de betrokken oppervlakten zullen worden toegevoegd. Er wordt aanbevolen om de handelszaken (en in voorkomend geval de ambachtelijke ac viteiten met verkoop ) op de benedenverdiepingen te plaatsen en de 2de (en 3de) verdieping indien nodig te gebruiken voor de voorzieningen, met behoud van de ingangen op straatniveau.

Hoofdstuk III / Afdeling 3 - Effectenbeoordeling / A - programmatorische alterna even / p. 150
Max Max (i) Max Min (ii) Min Max (iii) Min Min (iv) Handelszaken 14 406 m² 22 009 m² 13 506 m² 20 509 m² Voorzieningen 20 009 m² 31 415 m² 18 509 m² 29 015 m² TOTAAL 34 415 m² 53 424 m² 32 015 m² 49 524 m² Totale grondinname 27 742 m² 27 742 m² 25 430 m² 25 430 m² % grondinname bestemd voor handelszaken en voorzieningen 124% 193% 126% 195%
STEDELIJKE DYNAMIEK

GELUID EN TRILLINGEN

HERHALING VAN DE DIAGNOSE EN RAMINGENIN DE BESTAANDE TOESTAND

Over de hele perimeter heerst er in de wijk een zeer hoog geluidsniveau veroorzaakt door het spoorwegverkeer,hetwegverkeereninminderemate het luchtverkeer. Naast deze talrijke bronnen van geluidshinder zorgen ook de ruimtelijke organisa e en dekenmerkenvan de bebouwingvoor eenversterking van de problema ek in de perimeter (geen obstakels voor het geluid en brede, glazen gevels die het geluid weerkaatsen).

De perimeter bevat geen gevoelige func es (woningen, ziekenhuizen, scholen), met uitzondering van de groene ruimte in de Albert Ii-laan waar de geluidshinder een impact hee op de verblijfskwaliteit.

TENDENTIEEL ALTERNATIEF

Geen enkel voorschri van de BBP’s of van het GBP hee specifiek een invloed op dit criterium. Het plan Good Move mikt op verkeersluwe mazen en op een algemene vermindering van het verkeer aan de maasranden met 6 à 10 % (tegen 2030). Op korte termijn zal de uitvoering van de verkeersplannen onmiskenbaar het autoverkeer doen verschuiven van het centrum van de maaskernen naar de maasranden. De Albert Ii-laan en het Solvayplein worden beschouwd als maasranden (Auto Comfort en Vrachtverkeer Comfortwegen). Op deze wegen zal het verkeer de komende jaren dus toenemen, om tegen 2030 weer af te nemen.

Bovendien beveelt de overeenkomst die in 2001 werd gesloten tussen de NMBS en het BHG aan om geen geluidsgevoelige func es te plaatsen in een bufferzone van minstens 50m rond de spoorwegen (~1/3 van de dikte van het perceel CCN).

VERGELIJKING VAN DE ALTERNATIEVEN

De 4 onderzochte alterna even voorzien meer oppervlakten voor handelszaken, produc eac viteiten en voorzieningen en dus ook een hogere frequenta e (buurtbewoners, werknemers, bezoekers). Hierdoor moet een algemene verhoging van het geluidsniveau worden verwacht en een wijziging van het type geluiden (in een vandaag al lawaaierige stedelijke context).

Daarnaast voorzien de 4 alterna even ook de ontwikkeling van woningen - een geluidsgevoelige func e - in de huizenblokkenNorthGalaxy,ProximusenCCN,terwijldestedelijketypologie(torengebouwen)nietguns gisvoor dat criterium.

AANBEVELINGEN

De analyse van dit criterium roept vragen op over de ontwikkeling van woningen in de perimeter en vooral over de manier waarop ze zullen worden ingeplant (met name in de torengebouwen) gezien het algemene geluidsniveau in de wijk en de ligging van de geluidsbronnen (wegen en spoorwegen, dus overal in het gebied).

Een aanbeveling die misschien eerder thuishoort in de analyse van de ruimtelijke alterna even maar die we ook hier kunnen formuleren, is om de woningen zo te plaatsen dat de nega eve impact op deze gevoelige func e zoveel mogelijk wordt beperkt.

Hoofdstuk III / Afdeling 3 - Effectenbeoordeling / A - programmatorische alterna even / p. 151
MENSELIJKE OMGEVING
Mul-indicatorgeluidop4mbovendegrond (LeefmilieuBrussel,2016)

KWALITEIT VAN DE OPENBARE RUIMTEN VOOR VERPLAATSING EN VERBLIJF

Niet van toepassing.

NB: aangezien het voetgangers- en fietsverkeer in de toekomst zal toenemen (zie thema “verplaatsingen”), krijgt dit criterium een zeker belang en moet het worden behandeld in het BBP.

LUCHTKWALITEIT

HERHALING VAN DE DIAGNOSE EN RAMINGEN IN DE BESTAANDE TOESTAND

De Black Carbon-concentra es zijn het hoogst in het noordelijke deel van de Vooruitgangstraat en vervolgens op het Solvayplein en het Bolivarplein. Lokaal kan ook de vervuilde lucht die wordt afgevoerd door de ven la e van de parkings een impact hebben op de luchtkwaliteit.

Ten opzichte van de normen die zijn vastgelegd door de Europese Richtlijn ligt de perimeter in een omgeving met een vrij hoge gemiddelde NO2-concentra e. in de meeste gebouwen van het BBP wordt de energie geleverd door een groot aantal HVAC-installa es, transformatoren en noodgroepen.

TENDENTIEEL ALTERNATIEF

Geen enkel voorschri van de BBP’s of van de GSV hee specifiek een invloed op dit criterium.

Het plan Good Move mikt op een algemene vermindering van het verkeer aan de maasranden met 6 à 10 % tegen 2030.Op kortetermijnzaldeuitvoeringvandeverkeersplannenonmiskenbaarhetautoverkeerdoenverschuiven vanhet centrum van de maaskernennaarde maasranden. DeAlbert Ii-laan en hetSolvaypleinworden beschouwd als maasranden (Auto Comfort en Vrachtverkeer Comfortwegen). Op deze wegen zal het verkeer de komende jaren dus toenemen, om tegen 2030 weer af te nemen. Ook de luchtvervuiling gegenereerd door het autoverkeer zal die tendens volgen.

Hetgebruikvanzachteverplaatsingswijzenenelektrischevoertuigenneemtgeleidelijkaantoe,wateenpoten eel guns ge impact hee op de samenstelling en de concentra es van de luchtverontreinigende stoffen.

De huizenblokken CCN en Proximus zullen de komende jaren worden herontwikkeld. De thermische kwaliteiten zullen verbeteren en de behoe e aan verwarming en aircondi oning zal afnemen zodat de situa e zal worden verbeterd.

VERGELIJKING VAN DE ALTERNATIEVEN

De 4 alterna even voorzien in de inperking van de kantooroppervlakten, ten gunste van de ontwikkeling van woningen. Gelet op de bestaande en de geplande modale aandelen (Good Move) zal het autogebruik in de wijk toenemen (zie het thema “Verplaatsingen”), wat een nega ef effect zal hebben op de lokale luchtkwaliteit. In een op mis sche visie (uitvoering van het plan Good Move) kunnen de alterna even (iii) en (iv) echter het aantal verplaatsingen met de auto per dag dat is verbonden aan de func es in het gebied verminderen.

De 4 alterna even willen bovendien de vloeroppervlakten vergroten maar ook de func es wijzigen. Hierdoor zal er moeten worden gerenoveerd, wat guns g is om de energieproduc e te verminderen. De verschillen tussen de alterna even zijn ten klein om het ene alterna ef voor dit criterium als beter te beschouwen dan de andere.

Max Max (i) Max Min (ii) Min Max (iii) Min Min (iv) Toename

Hoofdstuk III / Afdeling 3 - Effectenbeoordeling / A - programmatorische alterna even / p. 152
aantal verplaatsingen per dag met de auto(+) (zie “auto’s”) 293 tot 3 636 d.i. 3 tot 42% 675 tot 4 161 d.i. 8 tot 48% -365 tot 2 731 d.i. -4 tot 32% -14 tot 3 215 d.i. -2 tot 37% Daling van het energieverbruik (zie “energie”) 75% 74% 77% 76% MENSELIJKE OMGEVING
van het

VEILIGHEID

HERHALING VAN DE DIAGNOSE EN RAMINGEN IN DE BESTAANDE TOESTAND

De logica van het Manha anplan resulteerde in blinde en logis eke sokkels op de benedenverdiepingen (backstreet). Dat is niet bevorderlijk voor de sociale controle. Vanwege de bijna uitsluitend kantoorbestemming is er geen enkele bedrijvigheid ‘s avonds en zijn er weinig mogelijkheden voor sociale controle.

De beperkte bedrijvigheid en de inrich ng/verlich ng van de Kwatrech unnel en de Noordtunnel zijn niet bevorderlijk voor het veiligheidsgevoel. De poli e noteert in de omgeving van het Noordsta on diefstallen, agressie tussen rivaliserende bendes, agressie tussen de gebruikers van de openbare ruimte en de sekswerksters, frequen e door dealers en drugverslaafden ...

Bovendien leven er in het sta on en de directe omgeving daklozen, onder meer migranten, in zeer zorgwekkende levens- en hygiëneomstandigheden, ondanks de hulp van een aantal verenigingen.

TENDENTIEEL ALTERNATIEF

Geen enkel voorschri van de BBP’s of van de GSV hee specifiek een invloed op dit criterium.

Het SVC 2 wil de kwaliteit van de doorgang door de tunnels onder de sporen verbeteren.

VERGELIJKING VAN DE ALTERNATIEVEN

Meer gemengdheid in de wijk zal in vergelijking met de huidige toestand waarschijnlijk een posi eve impact hebben op het veiligheidsgevoel:

- Verhoging van het aantal dagelijkse gebruikers van de wijk (bewoners, werknemers en bezoekers) en betere spreiding over de hele dag (onder meer ‘s avonds) (zie “Hypothesen en basisberekeningen”).

- Activering van alle benedenverdiepingen (zie “Handelszaken en voorzieningen” dus waarschijnlijk verbetering van de huidige ‘backstreet’-toestand.

- Mogelijkheid om voorzieningen te ontwikkelen voor sociale hulpverlening en cohesie, zoals opvangplaatsen voor de NGO’s die hulp bieden aan personen, een kwetsbaar publiek oriënteren, ...

Hoofdstuk III / Afdeling 3 - Effectenbeoordeling / A - programmatorische alterna even / p. 153
Bestaande toestand Max Max (i) Max Min (ii) Min Max (iii) Min Min (iv) Aantal werknemers (zie “hypothesen en basisberekeningen”) 10 501 (A) 13 248 (B) 15 606 (C) 14 552 11 206 13 449 10 368 Aantal residenten (zie “hypothesen en basisberekeningen”) 0 1 650 2 723 1 520 2 508 Aantal bezoekers (zie “hypothesen en basisberekeningen”) 4 673 8 286 11 806 7 719 10 961 Aantal residenten en bezoekers en propor onele toename 9 936 d.i. +213% 14 529 d.i. +311% 9 239 d.i. +197% 13 469 d.i. +288% % grondinname bestemd voor handelszaken en voorzieningen (zie “ac vering van de benedenverdiepingen”) 33% 124% 193% 126% 195% Beschikbare oppervlakte voor andere voorzieningen dan de geïden ficeerde buurtvoorzieningen (zie “handelszaken en voorzieningen”) / 1 986 m² 13 217 m² 507 m² 10 852 m² MENSELIJKE OMGEVING

Voor dit criterium biedt elk alterna ef het voordeel dat de volledige benedenverdiepingen worden geac veerd. De alterna even (ii) en (iv) zullen het aantal bewoners en bezoekers op de site het sterkst doen toenemen en bieden het voordeel dat een opvangplaats voor de NGO’s en de nieuwkomers kan worden ontwikkeld.

AANBEVELINGEN

Niet van toepassing

Hoofdstuk III / Afdeling 3 - Effectenbeoordeling / A - programmatorische alterna even / p. 154
MENSELIJKE OMGEVING

METHODOLOGIE, HYPOTHESEN EN BEREKENINGEN

In dit eerste deel schetsen we in detail enkele hypothesen en berekeningen die we moeten maken vooral we dieperingaanopditspecifiekethema.Anderehypothesenvolgeninvoorkomendgevalinhetbeginvandeanalyse van elk criterium (bv. parkeren).

Voor de hierna volgende berekeningen gaan we uit van het aantal werknemers, bewoners en bezoekers die werden bepaald in de inleiding van dit deel van de studie (p. 7).

Het aantal verplaatsingen van de verschillende gebruikers van de wijk kan worden berekend op basis van de volgende hypothesen:

2,8 verplaatsingen per bewoner/werknemer per dag (incl. woon-werkverplaatsingen, aankopen en bezoeken over de hee week, rekening houdend met de mensen die ter plaatse blijven en met diegenen die de wijk meerderde keren per dag binnenkomen en weer verlaten). Dit cijfer is een gemiddelde voor het BHG, afkomstig uit de Smarteam-studie voor de uitwerking van het Gewestelijke Mobiliteitsplan in 2017.

 2 verplaatsingen per bezoeker (binnenkomen en verlaten van de wijk, tijdens de daluren)

 Gelijktijdige aanwezigheid van de kantoorwerknemers van 85%

Het ‘maximumaantal’ verplaatsingen ramen we op basis van de volgende hypothesen: Evaluatie van de ‘maximumimpact’ tijdens de ochtendspits, als het verkeer het drukst is en het minst verspreid (“slechts” 2 uur)

Verdeling van de verplaatsingen van de Belgen per werkdag (Enquete Monitor, 2017)

 Uit de Monitor-enquête uit 2017 weerhouden we:

35 % van de verplaatsingen van de bewoners gebeuren tijdens de ochtendspits (rekening houdend met de personen die niet werken en diegenen die werken met glijdende uren)

40 % van de verplaatsingen van de werknemers gebeuren tijdens de ochtendspits.

- De bezoekers van de woningen verplaatsen zich niet tijdens de ochtendspits.

5% van de verplaatsingen van de bezoekers van de andere functies gebeuren tijdens de ochtendspits (en hebben meestal te maken met de handels- en dienstenfuncties).

Hoofdstuk III / Afdeling 3 - Effectenbeoordeling / A - programmatorische alterna even / p. 155
-
-
VERPLAATSINGEN VERPLAATSINGEN
-

Omdat de exacte gegevens niet bekend zijn, werden hypothesen ook voor de ramingen van het aantal verplaatsingen in de bestaande

Hoofdstuk III / Afdeling 3 - Effectenbeoordeling / A - programmatorische alterna even / p. 156
Bestaande toestand A : Per dag Tijdens het spitsuur (verpl./uur) werknemers / bewoners bezoekers TOTAAL werknemers / bewoners bezoekers TOTAAL Kantoor 24 543 1 753 26 296 4 909 44 4 952 Huisves ng 0 0 0 0 0 0 Voorzieningen 121 433 555 24 11 35 Handelszaken 408 5 830 6 238 82 146 227 Produc eac vite iten 0 0 0 0 0 0 TOTAAL 33089 5215 Bestaande toestand B : Per dag Tijdens het spitsuur (verpl./uur) werknemers / bewoners bezoekers TOTAAL werknemers / bewoners bezoekers TOTAAL Kantoor 31 235 2 231 33 466 6 247 56 6 303 Huisves ng 0 0 0 0 0 0 Voorzieningen 121 433 555 24 11 35 Handelszaken 408 5 830 6 238 82 146 227 Produc eac vite iten 0 0 0 0 0 0 TOTAAL 40 259 6 565 Bestaande toestand C : Per dag Tijdens het spitsuur (verpl./uur) werknemers / bewoners bezoekers TOTAAL werknemers / bewoners bezoekers TOTAAL Kantoor 36 691 2 621 39 312 7 338 66 7 404 Huisves ng 0 0 0 0 0 0 Voorzieningen 121 433 555 24 11 35 Handelszaken 408 5 830 6 238 82 146 227 Produc eac vite iten 0 0 0 0 0 0 TOTAAL 46 105 7 666 VERPLAATSINGEN
toestand gebruikt:

Raming van het aantal verplaatsingen in het alterna ef Max Max (i) :

het spitsuur (verpl./uur)

Raming van het aantal verplaatsingen in het alterna ef Max Min (ii) :

van het aantal verplaatsingen in het alterna ef Min Max (iii) :

Raming van het aantal verplaatsingen in het alterna ef Min Min (iv) :

In de 4 alterna even zal de verhoging van de gemengdheid leiden tot een s jging van het aantal verplaatsingen in de wijk (minder verplaatsingen verbonden aan de kantoren en meer verplaatsingen verbonden aan de andere func es). Anderzijds kan het aantal verplaatsingen jdens de ochtendspits dalen of s jgen, a ankelijk van het alterna ef.

Hoofdstuk III / Afdeling 3 - Effectenbeoordeling / A - programmatorische alterna even / p. 157
Per dag Tijdens
werknemers / bewoners bezoekers TOTAAL werknemers / bewoners bezoekers TOTAAL Kantoor 32 859 2 347 35 207 6 572 59 6 631 Huisves ng 4 620 304 4 924 809 0 809 Voorzieningen 1 121 4 002 5 122 224 100 324 Handelszaken 605 8 643 9 248 121 216 337 Produc eac viteiten 361 860 1 222 72 22 94 TOTAAL 55 723 8 194
Per dag Tijdens het spitsuur (verpl./uur) werknemers / bewoners bezoekers TOTAAL werknemers / bewoners bezoekers TOTAAL Kantoor 23 811 1 701 25 512 4 762 43 4 805 Huisves ng 7 623 502 8 125 1 334 0 1 334 Voorzieningen 1 759 6 283 8 042 352 157 509 Handelszaken 924 13 206 14 130 185 330 515 Produc eac viteiten 681 1 621 2 301 136 41 177 TOTAAL 58 110 7.339
Per dag Tijdens het spitsuur (verpl./uur) werknemers / bewoners bezoekers TOTAAL werknemers / bewoners bezoekers TOTAAL Kantoor 30 360 2 169 32 529 6 072 54 6 126 Huisves ng 4 255 280 4 536 745 0 745 Voorzieningen 1 037 3 702 4 738 207 93 300 Handelszaken 567 8 103 8 671 113 203 316 Produc eac viteiten 336 800 1 137 67 20 87 TOTAAL 51 610 7 574
Raming
Per dag Tijdens het spitsuur (verpl./uur) werknemers / bewoners bezoekers TOTAAL werknemers / bewoners bezoekers TOTAAL Kantoor 22 026 1 573 23 599 4 405 39 4 445 Huisves ng 7 022 462 7 484 1 229 0 1 229 Voorzieningen 1 625 5 803 7 428 325 145 470 Handelszaken 861 12 306 13 167 172 308 480 Produc eac viteiten 630 1 501 2 131 126 38 164 TOTAAL 53 809 6 787
VERPLAATSINGEN

De modale aandelen die voor de maas Noordwijk22 werden geraamd zijn: Algemene modale aandelen voor de maas Noordwijk (ramingen MUSTI,2018)

Doelstellingen voor de in het plan Good Move bepaalde modale aandelen tegen 2030 voor

Deze cijfers, die specifiek betrekking hebben op de wijk, maken het mogelijk om rekening te houden met de uitstekende bediening door het openbaar vervoer die kenmerkend is voor het gebied.

Door de modale aandelen toe te passen op de geraamde verplaatsingen krijgen we de verdeling van de verplaatsingen per dag en per vervoermiddel (incl. de werknemers, de bewoners en de bezoekers van de verschillende func es).

22 Bestaand: op basis van de MUSTI-ramingen, 2018 + aangepaste doelstellingen Good Move 2030. Deze gegevens zijn beschikbaar op public.tableau.com: RBC_parts_modales_2018_GM_2030_Mailles

23 aangezien bijna alle bestaande handelszaken zijn geves gd in het sta on en het CCN ligt het modale aandeel van de auto bij de bezoekers dicht bij 0. De verplaatsingen met dit vervoermiddel werden over de andere vervoermiddelen verdeeld in verhouding tot hun percentages.

Gelet op de algemene ontwikkeling van het gebied, onder meer met handelszaken, werd deze hypothese niet toegepast in de geplande toestand.

Hoofdstuk III / Afdeling 3 - Effectenbeoordeling / A - programmatorische alterna even / p. 158
maas Noordwijk Auto (bestuurder) 22% 16% Openbaar vervoer 52% 51% Fiets 2% 9% Trede 17% 16% Andere (park&ride + passagier) 8% 8%
de
Bestaande toestand A OV Fietsers Voetgangers Auto's Kantoren (werknemers + bezoekers) 13 298 526 4 470 5 626 Huisves ng 0 0 0 0 Voorzieningen (werknemers + bezoekers) 288 11 94 122 Handelszaken (werknemers + bezoekers)23 4 183 161 1.368 90 Produc e ac v (werknemers + bezoekers) 0 0 0 0 TOTAAL 17 770 698 5 932 5 838 Bestaande toestand B OV Fietsers Voetgangers Auto's Kantoren (werknemers + bezoekers) 16 925 669 5 689 7 160 Huisves ng 0 0 0 0 Voorzieningen (werknemers + bezoekers) 288 11 94 122 Handelszaken(werknemers + bezoekers)15 4 183 161 1 368 90 Produc e ac v.(werknemers + bezoekers) 0 0 0 0 TOTAAL 21 396 841 7 151 7 372 Bestaande toestand C OV Fietsers Voetgangers Auto's Kantoren (werknemers + bezoekers) 19 881 786 6 683 8 411 Huisves ng 0 0 0 0 Voorzieningen (werknemers + bezoekers) 288 11 94 122 Handelszaken(werknemers + bezoekers)15 4 183 161 1 368 90 Produc e ac v.(werknemers + bezoekers) 0 0 0 0 TOTAAL 24 353 958 8 145 8 623
VERPLAATSINGEN

In de tabellen op de volgende pagina werd voor de verplaatsingswijze fiets, voetgangers en auto een extra kolom toegevoegd (met index +) voor de cijfers die betrekking hebben op horizon 2030 als de doelstellingen van het plan Good Move daadwerkelijk worden gehaald.

Verdeling van het aantal verplaatsingen per dag per vervoermiddel in het alterna ef Max Max (i):

Verdeling van het aantal verplaatsingen per dag per verplaatsingswijze voor het alterna ef Max Min (ii)

Verdeling van het aantal verplaatsingen per dag per verplaatsingswijze voor het alterna ef Min Max (iii):

Verdeling van het aantal verplaatsingen per dag per verplaatsingswijze voor het alterna ef Min Min (iv:)

Hoofdstuk
Afdeling 3
Effectenbeoordeling
A
programmatorische alterna even / p. 159
III /
-
/
-
OV OV+ Fiets Fiets+ Voetganger Voetganger+ Auto Auto+ Kantoor 18 307 17 955 704 3 169 5 985 5 633 7 745 5 633 Huisves ng 2 561 2 511 98 443 837 788 1 083 788 Voorziening 2 664 2 612 102 461 871 820 1 127 820 Handelszaken 4 809 4 717 185 832 1 572 1 480 2 035 1 480 Produc e ac v. 635 623 24 110 208 195 269 195 TOTAAL 28 976 28 419 1 114 5 015 9 473 8 916 12 259 8 916
OV OV+ Fiets Fiets+ Voetganger Voetganger+ Auto Auto+ Kantoor 13 266 13 011 510 2 296 4 337 4 082 5 613 4 082 Huisves ng 4 225 4 144 162 731 1 381 1 300 1 787 1 300 Voorziening 4 182 4 102 161 724 1 367 1 287 1 769 1 287 Handelszaken 7 348 7 206 283 1 272 2 402 2 261 3 109 2 261 Produc e ac v. 1 197 1 174 46 207 391 368 506 368 TOTAAL 30 217 29 636 1 162 5 230 5 879 9 298 12 784 9 298
OV OV+ Fiets Fiets+ Voetganger Voetganger+ Auto Auto+ Kantoor 16 915 16 590 651 2 928 5 530 5 205 7 156 5 205 Huisves ng 2 359 2 313 91 408 771 726 998 726 Voorziening 2 464 2 417 95 426 806 758 1 042 758 Handelszaken 4 509 4 422 173 780 1 474 1 387 1 908 1 387 Produc e ac v. 591 580 23 102 193 182 250 182 TOTAAL 26 837 26 321 1 032 4 645 8 774 8 258 11 354 8 258
OV OV+ Fiets Fiets+ Voetganger Voetganger+ Auto Auto+ Kantoor 12 272 12 036 472 2 124 4 012 3 776 5 192 3 776 Huisves ng 3 892 3 817 150 674 1 272 1 197 1 646 1 197 Voorziening 3 862 3 788 149 669 1 263 1 188 1 634 1 188 Handelszaken 6 847 6 715 263 1 185 2 238 2 107 2 897 2 107 Produc e Prod 1 108 1 087 43 192 362 341 469 341 TOTAAL 27 981 27 443 1 076 4 834 9 148 8 609 11 838 8 609 VERPLAATSINGEN DEPLACEMENTS

Specifiek jdens de ochtendspits:

UITVOERING VAN DE MSW

HERHALING VAN DE DIAGNOSE EN RAMINGEN IN DE BESTAANDE TOESTAND

De wegen in het centrum van het gebied hebben een hoge classifica e voor de zachte verplaatsingswijzen: doortocht van een voetgangersboulevard tussen Rogier en Thurn & Taxis, alle wegen zijn + of Comfort+ voor de voetgangers en fietsers, belang van het OV.

De Albert Ii-laan en de Solvaystraat/het Solvayplein zijn Auto- en VV-Comfort-wegen.

TENDENTIEEL ALTERNATIEF

Geen enkel voorschri van de BBP’s of van de GSV hee specifiek een invloed op dit criterium.

De MSW werd recent vastgelegd in het plan Good Move. Bedoeling is om het ten uitvoer te leggen tegen 2030.

VERGELIJKING VAN DE ALTERNATIEVEN

Meer gemengdheid in het gebied zal een impact hebben op de verdeling van de gebruikers van de verschillende vervoerwijzen (zie inleiding van het thema), zowel met de huidige modale aandelen als deze die zijn voorzien door Good Move (+):

Inde 4alterna evenbeves gt detoenamevanhet aantalvoetgangers enfietsersderelevan evande inschrijving van de wegen in de voetgangersboulevard of de +- of Comfort-assen en het belang om ze uit te voeren. Vooral voor het alterna ef Max Min (ii) is het belangrijk om deze netwerken uit te voeren.

AANBEVELINGEN

Voorschri en opmaken die de kwaliteit van de uitvoering van de netwerken in de openbare ruimte garanderen.

Hoofdstuk III / Afdeling 3 - Effectenbeoordeling / A - programmatorische alterna even / p. 160
Aantal verplaatsingen Aantal verplaatsingen met de auto Inkomend Uitgaand Aantal verplaatsingen met de auto tegen 2030 Inkomend Uitgaand Bes. toest. A 5 215 1 115 1 115 0 Bes. toest. B 6 565 1 412 1 412 0 Bes. toest. C 7 666 1 655 1 655 0 Max Max (i) 8 194 1 803 1 625 178 1 311 1 182 129 Max Min (ii) 7 339 1 615 1 321 293 1 174 961 213 Min Max (iii) 7 574 1 666 1 502 164 1 212 1 093 119 Min Min (iv) 6 787 1 493 1 223 270 1 086 889 197
Max Max (i) Max Min (ii) Min Max (iii) Min Min (iv) Toename van het aantal verplaatsingen met de fiets (+) 156 tot 5 015 d.i. 16 tot 423% 204 tot 4 272 d.i. 21 tot 446% 74 tot 3 687 d.i. 8 tot 385% 118 tot 3 885 d.i. 12 tot 405% Toename van het aantal verplaatsingen te voet (+) 771 tot 1328 d.i. 9 tot 16% 1153 tot 1 734 d.i. 14 tot 21% 113 tot 629 d.i. 1 tot 8% 464 tot 1 003 d.i. 6 tot 12% VERPLAATSINGENVERPLAATSINGEN

ACTIEVE VERPLAATSINGSWIJZEN

HERHALING VAN DE DIAGNOSE EN RAMINGEN IN DE BESTAANDE TOESTAND

De openbare ruimten werden vooral ingericht voor het gemotoriseerd verkeer, ten nadele van de ac eve verplaatsingswijzen. Bovendien moeten op de trajecten naar het sta on bussen worden gekruist. Dit kan leiden tot conflictsitua es. Voetgangers die naar de metro willen, moeten eerst de trap nemen naar het CCN. DeopenbareruimtentenwestenvandeNoord-Zuidverbindingzijnzeeruitgestrekt.Devoetgangerskrijgenerdan ook veel ruimte, vooral in de Albert II-laan en de Bolivarlaan. De voetpaden zijn globaal gezien voldoende breed (behoudens punctuele uitzonderingen).

Debestaande cijferszijnniet bekend,maarnaarscha ngwordendagelijksmeerdan8 100 verplaatsingentevoet gemaakt en bijna 1 000 verplaatsingen met de fiets. Deze verplaatsingen houden verband met de bestaande func es in het gebied.

TENDENTIEEL ALTERNATIEF

Het BBP definieert de ‘zone voor verkeer’ als voorbehouden voor het verkeer van voertuigen en voetgangers. Het voorziet bovendien dat op de daken van de gebouwen in het gebied voor laagbouw voetgangers kunnen lopen en dat dit niveau met de begane grond wordt verbonden door trappen, opri en en mechanische li en, dwars door de gebouwen of in de verkeerszone geves gd.

Geen enkel voorschri van het GBP hee specifiek een invloed op dit criterium.

De uitvoering van het plan Good Move zal een modal shi teweegbrengen en het aantal fietsers en voetgangers in het algemeen verhogen.

VERGELIJKING VAN DE ALTERNATIEVEN

Ondanks het kleinere aantal kantoorwerknemers die zich te voet of met de fiets verplaatsen (vermindering van de kantooroppervlakten) impliceren de 4 alterna even een s jging van het aantal voetgangers en fietsers in het gebied, verbonden aan de andere func es die worden voorgesteld (bewoners, werknemers en bezoekers van vooral de handelszaken en voorzieningen).

De impact van de verschillende alterna even op zich kan voor dit criterium niet worden onderscheiden. De absolute breedte van de wegen van de perimeter en de gewestelijke ambi es op het vlak van ontwikkeling van de ac eve verplaatsingswijzen kunnen met de huidige modale aandelen de stromen die worden gegenereerd door deontwikkelingvanhetgebiedopvangen.Hetalterna efMaxMin(ii)zaldemeesteverplaatsingenmetdeac eve vervoermiddelen genereren.

De factor die de grootste invloed hee op dit criterium is de toepassing van de modale aandelen Good Move (tegen 2030). De toename van het aantal verplaatsingen met de fiets zal moeten gepaard gaan met een echte denkoefening over de plaats van deze verplaatsingswijze in het gebied, de infrastructuren en inrich ngen die wordenvoorzienendetoegangtotdegebouwenendeparkeerzones.Vanuitditstandpuntzullendealterna even die de kleinste vloeroppervlakten voorzien, dus (iii) en (iv), logischerwijs minder verplaatsingen genereren.

Er dient opgemerkt dat de ontwikkeling van de fiets in de rest van het Gewest, zoals aanbevolen door het plan Good Move, ook een impact zal hebben op het gebied. Behalve de gemengde func es die er zullen worden

Hoofdstuk III / Afdeling 3 - Effectenbeoordeling / A - programmatorische alterna even / p. 161
Max Max (i) Max Min (ii) Min Max (iii) Min Min (iv) Toename van het aantal verplaatsingen te voet (+) 771 d.i. 9% 1153 d.i. 14% 113 d.i. 1% 464 d.i. 6% Toename van het aantal verplaatsingen met de fiets (+) 156 d.i. 16% 204 d.i. 21% 74 d.i. 8% 118 d.i. 12% Toename van het aantal verplaatsingen te voet tegen 2030 1328 d.i. 16% 1 734 d.i. 21% 629 d.i. 8% 1 003 d.i. 12% Toename van het aantal verplaatsingen met de fiets tegen 2030 5 015 d.i. 423% 4 272 d.i. 446% 3 687 d.i. 385% 3 885 d.i. 405% VERPLAATSINGEN

ontwikkeld is het immers een belangrijk intermodaal knooppunt op gewestelijk niveau. Het beschikt over een fietspunt en is een doorgangsplaats voor fietsers. Het aantal verplaatsingen verbonden aan andere func es dan deze die worden ontwikkeld in het BBP en doorheen het gebied gaan, zal toenemen. De kwaliteitvan de doorgang doorheenhetgebied en totaanhet Noordsta onmoet dus wordengegarandeerd. Dezekwes ezalmeerindetail wordenbehandeld indeanalysevanderuimtelijkealterna even(ondermeerdekwes evandehoogteverschillen van het bussta on vóór de “fietsingang’ van het sta on).

AANBEVELINGEN

Voorschri en opstellen om de kwaliteit van de openbare ruimte voor de verplaatsing met ac eve vervoerswijzen te garanderen.

OPENBAAR VERVOER

HERHALING VAN DE DIAGNOSE EN RAMINGEN IN DE BESTAANDE TOESTAND

Het gebied is een belangrijke openbaarvervoerspool voor het Brussels Hoofdstedelijk Gewest. Het combineert immers trein-, premetro-, tram- en busnetwerken voor De Lijn en de MIVB. De gewestelijke doelstellingen op het vlak van modaal aandeel van het openbaar vervoer zijn in de perimeter al bereikt.

De bestaande cijfers zijn niet bekend, maar naar scha ng worden dagelijks meer dan 24 300 verplaatsingen gemaakt met het openbaar vervoer. Deze verplaatsingen houden verband met de bestaande func es in het gebied.

TENDENTIEEL ALTERNATIEF

HethuidigeBBP19voorzietvoorhetCCNeensta onvoorinterlokaalenmetropolischspoorverkeer,eenautobusen tramsta on, een taxista on, de toegangen tot deze sta ons alsook de lokalen bestemd voor alle bijhorende diensten en uitrus ngen. Dit is de enige bestemming die mogelijk is en ze wordt dan ook beschermd.

Geen enkel voorschri van het GBP hee specifiek een invloed op dit criterium.

Bovendien zal metrolijn 3 doorheen het Noordsta on lopen.

VERGELIJKING VAN DE ALTERNATIEVEN

Ondanks het kleinere aantal kantoorwerknemers die zich met het openbaar vervoer verplaatsen (vermindering van de kantooroppervlakten) impliceren de 4 alterna even een s jging van het aantal verplaatsingen met het openbaar vervoer in het gebied (huidige modale aandelen of Good Move (+)), verbonden aan de andere func es die worden voorgesteld (bewoners, werknemers en bezoekers van vooral de handelszaken en voorzieningen).

Het alterna ef Max Min (ii) zal de meeste verplaatsingen met het openbaar vervoer genereren. Gelet op het huidige en toekoms ge aanbod (ontwikkeling van de metro) zal het openbaarvervoersnet de toenamevanhetaantalgebruikersinde4alterna evenkunnenopvangen.Hetenealterna efisvoorditcriterium dus niet guns ger of nadeliger dan het andere.

AANBEVELINGEN

Omdat het aantal verplaatsingen met het openbaar vervoer in het gebied zal toenemen, zal het comfort aan de haltesendeleesbaarheidvanhetintermodaalknooppuntmoetenwordenverbeterdinvergelijkingmetdehuidige toestand.

Hoofdstuk III / Afdeling 3 - Effectenbeoordeling / A - programmatorische alterna even / p. 162
Max Max (i) Max Min (ii) Min Max (iii) Min Min (iv) Toename van het aantal verplaatsingen met het OV (+) 4 066 tot 4 623 d.i. 17 tot 19% 5 283 tot 5 864 d.i. 22 tot 24% 1 968 tot 2 848 d.i. 8 tot 10% 3 090 tot 3 628 d.i. 13 tot 15% VERPLAATSINGEN

AUTO’S

HERHALING VAN DE DIAGNOSE EN RAMINGEN IN DE BESTAANDE TOESTAND

De Albert Ii-laan en de Bolivarlaan en het Solvayplein en het Noordplein worden gebruikt door het doorgaand verkeer.

Debestaandecijferszijnnietbekend,maarhetaantalverplaatsingenmetdeautodatisverbondenaandefunc es van de wijk (bijna uitsluitend kantoren) wordt geraamd op ongeveer 8 600 per dag, met een piek van ongeveer 1 600 auto’s per uur jdens de ochtendspits.

TENDENTIEEL ALTERNATIEF

Het BBP definieert de ‘zone voor verkeer’ als voorbehouden voor het verkeer van voertuigen en voetgangers. De geleidelijke uitvoering van het plan Good Move zal het doorgaand verkeer verminderen en de auto’s van het hart van de mazen weer naar de maasranden leiden. De Albert Ii-laan en het Solvayplein worden beschouwd als Auto Comfortwegen en vormen dus de maasranden. Zij zullen aanvankelijk bijkomende verkeersstromen moeten verwerken, maar het plan Good Move voorziet in een vermindering van de verkeerslast op de maasranden met 6 à 10% tegen 2030.

VERGELIJKING VAN DE ALTERNATIEVEN

De 4 alterna even impliceren in het algemeen een toename van het aantal verplaatsingen met de auto in het gebied, verbonden aan de verschillende func es die worden voorgesteld (bewoners, werknemers en bezoekers van vooral de handelszaken en voorzieningen):

Toename van het aantal verplaatsingen

dag met de auto

Specifiek jdens de ochtendspits:

Er dient opgemerkt dat het aantal inkomende auto’s in de 4 alterna even daalt, maar dat het aantal uitgaande auto’s toeneemt aangezien er woningen worden ontwikkeld. In de alterna even (ii) en (iv) zien we een grotere daling van het aantal uitgaande auto’s en een grotere daling van het aantal inkomende auto’s. Dit hee te maken met de grotere verhouding woningen die ten koste gaat van de kantoorfunc e. De 4 alterna even zullen het aantal auto’s jdens de spitsuren tegen 2030 doen dalen.

Er dient opgemerkt dat het alterna ef (iv) de sterkste daling van het aantal auto’s jdens de spits zal teweegbrengen, zowel op korte termijn als tegen 2030. Alterna ef (iii) echter zal het aantal verplaatsingen met de auto gespreid over een hele dag het minst doen toenemen.

Hoofdstuk III / Afdeling 3 - Effectenbeoordeling / A - programmatorische alterna even / p. 163
per
Max Max (i) Max Min (ii) Min Max (iii) Min Min (iv) Huidige modale aandelen 3 636 d.i. 42% 4 161 d.i. 48% 2 731 d.i. 32% 3 215 d.i. 37% Tegen 2030 293 d.i. 3% 675 d.i. 8% -365 d.i. -4% -14 d.i. -2% Max Max (i) Max Min (ii) Min Max (iii) Min Min (iv) Toename van het aantal verplaatsingen met de auto +148 d.i. 9% -40 d.i. -2% +11 d.i. 0,6% -162 d.i. -10% Inkomend -30 -334 -153 -432 Uitgaand +178 +293 +164 +270 Toename van het aantal verplaatsingen met de auto tegen 2030 -344 d.i. -21% -481 d.i. -29% -443 d.i. -27% -599 d.i. -34% Inkomend -473 -694 -562 -766 Uitgaand +129 +213 +119 +197 VERPLAATSINGEN

Gezien de ligging van het gebied binnen de netwerken (Auto Comfort-wegen langs het gebied) en de beperkte toenamesdietegen2030wordenverwacht,zalhetwegennetdeimpact vandeprogramma'svandealterna even (i) en (iii) moeten kunnen opvangen.

AANBEVELINGEN

Niet van toepassing

VRACHTVERKEER EN LEVERINGEN

HYPOTHESEN

Het Katern van de gids van de mobiliteit nr. 8 (Organisa e van de leveringen langs de openbare weg in het BHG, 2012) gee de gemiddelde leveringscoëfficiënten voor:

- productieactiviteiten: 7,81 leveringen per week voor 500 m² functie

- handelszaken: 7,41 leveringen per week is een gemiddelde voor verschillende soorten handelszaken kleiner dan 400 m². In het bestudeerde gebied bedraagt de gemiddelde grootte van een handelszaak naar schatting 256,5 m² (zie “Voorzieningen en handelszaken”).

- de leveringen gebeuren 6 dagen per week.

Voor de kantoren stelt de hypothese dat deze coëfficiënt één vrachtwagen per dag bedraagt per schijf van 15 000 m² (effectenstudie over de verstedelijking van het GGB 6a Thurn & Taxis, Stratec, 2009).

Daluren: 10 tot 15 uur

HERHALING VAN DE DIAGNOSE EN RAMINGEN IN DE BESTAANDE TOESTAND

De bestaande cijfers zijn niet bekend, maar als we de hypothesen toepassen op de bestaande oppervlakten in het gebied kunnen we het aantal leveringen per dag ramen op 47 voor de handelszaken en 21 voor de kantoren. Dat betekent 67 vrachtwagens per dag.

TENDENTIEEL ALTERNATIEF

Het BBP definieert de ‘zone voor verkeer’ als voorbehouden voor het verkeer van voertuigen en voetgangers. Geen enkel voorschri van de geldende BBP’s of van het GBP hee specifiek een invloed op dit criterium. De ontwikkeling van de projecten CCN en Proximus zal meer gemengdheid creëren in het gebied. Daardoor verandert het aantal vrachtwagens die nodig zijn voor de leveringen. Door de uitvoering van het plan Good Move zullen er poten eel meer vrachtwagens door het gebied rijden. De Albert Ii-laan, het Solvayplein en de Solvaystraat en de kleine Vooruitgangstraat (noordelijk deel) zijn ingedeeld als VV Comfortweg en zullen de voertuigen verwerken die vandaag de andere wijkwegen gebruiken om de mazen in en uit te rijden.

Hoofdstuk III / Afdeling 3 - Effectenbeoordeling / A - programmatorische alterna even / p. 164
VERPLAATSINGEN

VERGELIJKING VAN DE ALTERNATIEVEN

De 4 alterna even voorzien meer gemengdheid. Dit zal het aantal leveringen nodig voor de goede werking van de verschillende bestemmingen doen toenemen:

Gezien de ligging van het gebied binnen de netwerken (VV Comfort-wegen langs het gebied) en de breedte van dewegen,zalhetwegennetdeimpactvan de programma's vandeprogramma’s voorgesteldinde 4 alterna even moeten kunnen opvangen. Het alterna ef Min Max (iii) beperkt het aantal vrachtwagens per dag voor leveringen aan de func es in de wijk het meest.

AANBEVELINGEN

Gezien de ligging van de VV Comfort-wegen, de oppervlakte en de typologie van het onderzochte gebied (3 huizenblokken) zouden de leveringen voor alle huizenblokken moeten plaatsvinden vanaf deze assen (Albert II en Solvay). Zo wordt voorkomen dat de vrachtwagens de andere wegen oprijden die onder meer een grote massa van ac eve verplaatsingen moeten verwerken.

PARKEREN

HYPOTHESEN

Autoparkeren

Eisen van de GSV:

- Lokalisatie in toegankelijkheidszone A

- Gebruik van de rekentool van het BWLKE voor de kantoren (bij aanvraag of vernieuwing van een milieuvergunning)

- Minstens 1 tot maximaal 2 parkeerplaatsen per woning

Gemiddelde motorisa egraad (Statbel, 2019):

- BHG (maximalistische hypothese): 0,633 voertuigen/huishouden

- Wijk (realistischer hypothese): 0,362 voertuigen/huishouden

Andere hypotheses:

- Modale aandelen vandaag en tegen 2030 (zie inleiding van het thema)

- Rotatie van 9 bezoekers/parkeerplaats

Gemiddelde groo e van een parkeerplaats: 25m² (incl. parkeerplaats incl. manoeuvreerzone)

Fietsparkeren

Eisen van de GSV:

- 1 parkeerplaats voor 200 m² kantoor

- 1 parkeerplaats per woning

Hoofdstuk III / Afdeling 3 - Effectenbeoordeling / A - programmatorische alterna even / p. 165
Aantal vrachtwagens per dag Max Max (i) Max Min (ii) Min Max (iii) Min Min (iv) Voor de handelszaken 69 106 65 99 Voor de produc eac viteiten 22 42 21 39 Voor de kantoren 18 13 17 12 TOTAAL 110 162 103 150 Toename ten opzichte van de huidige toestand 43 d.i. 68% 95 d.i. 142% 36 d.i. 54% 83 d.i. 124% Toename van het aantal vrachtwagens per daluur 9 20 7 17 VERPLAATSINGEN

Gedragslijnen van Leefmilieu Brussel, ontwerp voor de herziening van de GSV en nieuwe masterplannen voor het parkeren van fietsen en bakfietsen: 1 parkeerplaats per slaapkamer en 10% voorbehouden voor bakfietsen.

Woningen: gemiddeld 100m², dus gemiddeld 2 slaapkamers.

Rota e van 9 bezoekers/parkeerplaats

Gemiddelde groo e van een parkeerplaats: minstens 2 m² per fiets (parkeerplaats + manoeuvreerzone).

HERHALING VAN DE DIAGNOSE EN RAMINGEN IN DE BESTAANDE TOESTAND

Autoparkeren

Het gebied telt 54 parkeerplaatsen (PWE) op de openbare weg. De gemiddelde beze ngsgraad is vrij variabel, maar over het algemeen hoger overdag.

Buiten de openbare weg is een openbare parking gelegen onder het CCN, met een capaciteit van 15 parkeerplaatsen.

Ook de huizenblokken beschikken over privéparkings buiten de openbare weg,: 447 plaatsen onder het CCN, 935 onder het huizenblok Proximus en 611 onder het huizenblok North Galaxy.

In totaal zijn er in de parkings buiten de openbare weg dus 2 108 parkeerplaatsen beschikbaar.

Fietsparkeren

Het onderzochte gebied telt 7 infrastructuren voor kortdurend parkeren (op de openbare weg, met een gecumuleerdecapaciteitvan74parkeerplaatsen.Voordezeinfrastructurenwordtdevraagvandebuurtbewoners (‘s nachts) geraamd op minder dan 50%. Ook het aantal fietsen dat ‘s nachts buiten de openbare weg wordt geparkeerd is verwaarloosbaar (minder dan 10, wat vrij logisch gezien de kenmerken van de wijk (uitsluitend kantoren)). Overdag is de vraag wellicht hoger, met name omdat het gebied een mul modale pool is.

Twee fietsparkings buiten de openbare weg zijn gelegen in het sta on en toegankelijk jdens de openingsuren:

- Een gratis parking met ongeveer 150 plaatsen (waarvan 4 voor bakfietsen)

- Een parking voor abonnees met 356 plaatsen (waarvan 35 voor bakfietsen).

We hebben geen informa e over de beschikbare fietsparkeerplaatsen in de huizenblokken CCN, Proximus en North Galaxy.

TENDENTIEEL ALTERNATIEF

Het BBP stelt geen becijferde eisen maar bepaalt als volgt: “bij elk woongebouw moeten overdekte of openluchtstandplaatsen horen voor het parkeren of bergen van voertuigen waarvan het aantal evenredig is aan het aantal woongelegenheden. Bij elk bureaugebouw moeten overdekte of openluchtstandplaatsen horen voor het parkeren of bergen van voertuigen waarvan het aantal evenredig is met de bruikbare bureau oppervlakte. De evenredigheidscoëfficiënten worden bepaald door het college van burgemeester en schepenen. In de nabijheid der collec eve uitrus ngen en der gebouwen van openbare diensten zullen de standplaatsen voorzien worden voor het parkeren der voertuigen waarvan de gebeurlijke of standvas ge aanwezigheid voortvloeit uit de bedoelde uitrus ng en gebouwen. Het afleveren van de bouwvergunning kan onderworpen worden aan alle voorwaarden die betrekking hebben op de goede aanleg van de toegangen der voertuigen tot de openbare weg “

Het BBP maakt geen melding van fietsparkeren.

De GSV die van toepassing is voor projecten legt eveneens een aantal regels op betreffende parkeerplaatsen:

- voor woongebouwen met meerdere woningen worden per woning minstens 1 en maximaal 2 parkeerplaatsen toegelaten;

- voor kantoren en activiteiten voor hoogtechnologie en voor de vervaardiging van immateriële goederen met een vloeroppervlakte groter dan 250 m² bedraagt het maximumaantal toegelaten parkeerplaatsen 2 voor de eerste schijf van 250 m² vloeroppervlakte en 1 per bijkomende schijf van 200 m²;

- voor ambachts-, nijverheids-, logistieke en opslagactiviteiten wordt het aantal bepaald op basis van een gemotiveerd voorstel van de aanvrager;

- In nieuwe gebouwen of gebouwen met meerdere woningen moet minstens 1 parkeerplaats per woning worden voorzien.

- in nieuwe of verbouwde kantoorgebouwen bedraagt het opgelegde aantal parkeerplaatsen 1 per 200 m² vloeroppervlakte, met een minimum van 2 plaatsen per gebouw.

Hoofdstuk III / Afdeling 3 - Effectenbeoordeling / A - programmatorische alterna even / p. 166
VERPLAATSINGEN

- voor ambachts-, nijverheids-, logistieke en opslagactiviteiten wordt het aantal bepaald op basis van een gemotiveerd voorstel van de aanvrager, met een minimum van 2 fietsparkeerplaatsen per gebouw. Voor het parkeren door het personeel van kantoren of daarmee gelijkgesteld, zal het BWLKE worden toegepast om het aantal toegekende parkeerplaatsen te berekenen volgens de toegekende oppervlakten.

Voor het autoparkeren zullen verschillende ontwikkelingsprojecten verandering brengen in de bestaande toestand.Een nieuwe openbareparking met 152 plaatsenwordtaangelegdinde Kwatrechtstraat.Het ZIN-project dat aan het gebied grenst voorziet in de ontwikkeling van 316 openbare parkeerplaatsen, d.i. 293 plaatsen minder danvóórdewerken(639plaatsenindeopenbareparkingwaarvanerongeveer300worden gebruiktdoor24u/24abonnementen24). In de huizenblokken Proximus en CCN zullen projecten worden gerealiseerd. De milieuvergunning die een aantal parkeerplaatsen toekent in de kelderverdieping zal moeten worden vernieuwd.

VERGELIJKING VAN DE ALTERNATIEVEN

Autoparkeren

In de 4 alterna even wordt het autoparkeren op de openbare weg volledig geschrapt, enkele specifieke plaatsen (taxi’s, schoolbussen, interna onale autocars) niet meegerekend.

De parkeerbehoe e verbonden aan de ontwikkeling van woningen in het gebied kan worden geraamd op basis van de gemiddelde motorisa egraad in het BHG (maximalis sche hypothese van 0,633 voertuigen/huishouden) of in de wijk (minimalis sche hypothese van 0,362 voertuigen/huishouden25):

Als we de motorisa egraden bekijken, legt de GSV voor de 4 alterna even meer verkeerplaatsen op dan er daadwerkelijk vraag naar is. Die vraag kan worden geraamd op 0,37 tot 0,64 parkeerplaatsen per woning. Er dient opgemerkt dat de herziening van de GSV zoals onderworpen aan het openbaar onderzoek in 2019 voorstelde om voor de gebouwen met meerdere woningen in toegankelijkheidszone A het aantal parkeerplaatsen per woning te beperken tot:

- minstens 0,5 en hoogstens 0,75 parkeerplaats per woning voor studio’s en appartementen met 1 slaapkamer

- minstens 0,75 en hoogstens 1 parkeerplaats per woning voor woningen met 2 slaapkamers

- minstens 1 en hoogstens 1,5 parkeerplaats per woning voor woningen met 3 slaapkamers en meer. De geraamde behoe en zijn dus lager dan deze die worden voorgesteld door deze herziening.

24 Plaatsen die de hele dag zijn ‘gereserveerd’, vaak gebruikt door bedrijven die ze ter beschikking stellen van hun personeel.

25 De motorisa egraad in de wijk is zeer laag in vergelijking met het gewestelijke gemiddelde (iets meer dan de hel ). De bevolking is dan ook bijzonder kwetsbaar. Omdat de voorgestelde alterna even geen informa e geven over het aantal sociale woningen en gezien de specifieke stedelijke typologie, kunnen we stellen dat het publiek minder kwetsbaar zal zijn dan gemiddeld in de wijk.Dit kan eenimpact hebben op de motorisa egraad. Gezien de uitstekende bediening van het gebiedblij deze motorisa egraad echter realis sch (maar minimaal), ongeacht de betrokken popula e.

Hoofdstuk III / Afdeling 3 - Effectenbeoordeling / A - programmatorische alterna even / p. 167
Max Max (i) Max Min (ii) Min Max (iii) Min Min (iv) Aantal woningen 760 1 255 700 1 156 Parkeerbehoe e voor woningen (maximalis sche hypothese) 481 794 443 732 Parkeerbehoe e voor woningen (minimalis sche hypothese) 275 454 253 418 Parkeerbehoe en voor de bezoekers van de woningen 8 13 7 12 Parkeerbehoe en voor de bezoekers van de woningen tegen 2030 (Good Move) 4 7 4 6 Totale parkeerbehoe en voor de woningen en hun bezoekers 279 tot 489 461 tot 807 257 tot 450 424 tot 738 Aantal plaatsen opgelegd door de GSV (1 à 2 plaatsen/woning) 760 tot 1 521 1 255 tot 2 509 700 tot 1 401 1 156 tot 2 311 VERPLAATSINGEN

De parkeerbehoe e van kantoren en produc eac viteiten zal dalen als de oppervlakten voor deze func es worden verminderd.

Ineen eerste benadering kunnenwedemodaleaandelenvandeauto(22% in dehuidigetoestand en16% volgens het plan Good Move) toepassen op het aantal werknemers van kantoren en produc eac viteiten die iedere dag gelijk jdig aanwezig zijn (85%). Zo kunnen we de parkeerbehoe e ramen van de kantoren en produc eac viteiten. Omdat het aantal werknemers in de 4 alterna even daalt, zal ook de parkeerbehoe e van deze func es afnemen.

Een andere benadering is om zich te baseren op datgene wat het BWLKE toestaat voor het parkeren verbonden aan deze func es. In de huizenblokken Proximus en CCN zullen projecten worden gerealiseerd. De milieuvergunning die een aantal parkeerplaatsen toekent in de kelderverdieping zal moeten worden vernieuwd. Voor de berekening van het aantal toegelaten parkeerplaatsen wordt het BWLKE toegepast. De milieuvergunning voor het huizenblok North Galaxy moet pas in 2031 worden vernieuwd (of al eerder als er een herontwikkelingsproject wordt gestart). Dit huizenblok kan dus de bestaande parkeerplaatsen behouden tot de vergunning vervalt. Het huizenblok van het sta on omvat eveneens kantoren maar stelt geen parking ter beschikking.

De cijfers voor de beide standpunten zijn opgenomen in de volgende tabel:

Totale parkeerbehoe e voor de werknemers van de kantoren en produc eac viteiten en hun bezoekers

In de 4 alterna even is de parkeerbehoe e groter dan het aantal plaatsen dat wordt toegelaten door het BWLKE, ongeacht de hypothese (huidig modaal aandeel of Good Move). Er dient opgemerkt dat het BWLKE de modale aandelen van de werknemers wil beïnvloeden door de parkeermogelijkheden op de werkplaats te beperken naargelang de kwaliteit van de bediening met het openbaar vervoer. De beperking van parkeerplaatsen die het BWLKE oplegtzaldusdebehoe edoenafnemenenkanwordenbeschouwdalshetwerkelijk noodzakelijkeaantal plaatsen.

NB: deze hypothese van uitvoering van het BWLKE zal het modale aandeel van de kantoorwerknemers sterk beïnvloeden: op basis van het aantal werknemers, hun gelijk jdige aanwezigheid en het aantal parkeerplaatsen datwordttoegekend doorhetBWLKEzalhetmodaleaandeelvandewerknemerstot10-11%dalenindekomende jaren en tot 8-9% tegen 2030 (terwijl ze in de hypothese Good Move op ongeveer 16% wordt geschat). De modale aandelen van de verplaatsingen met het OV en ac eve vervoermiddelen zullen daarentegen toenemen en de conclusies en aanbevelingen in deze criteria des te meer versterken.

Hoofdstuk III / Afdeling 3 - Effectenbeoordeling / A - programmatorische alterna even / p. 168
Totale parkeerbehoe
werknemers
eac viteiten en hun bezoekers (hypothese modaal aandeel) 2 654 1 969 2 453 1 821
komende
de huizenblokken Proximus en CCN) 1 596 1 351 1 488 1 270
Max
Max (i) Max Min (ii) Min Max (iii) Min Min (iv)
e voor de
van de kantoren en de produc
Maximumaantal parkeerplaatsen dat de
jaren zal worden toegekend (hypothese BWLKE voor
(hypothese
aandeel Good Move) 1 931 1 432 1 784 1 324 Maximumaantal parkeerplaatsen dat zal worden toegekend tegen 2030 (BWLKE toegepast voor alle huizenblokken) 1 375 1034 1 267 953 VERPLAATSINGEN
tegen 2030
modaal

Ook de werknemers en bezoekers van de handelszaken en voorzieningen zullen de vraag naar parkeerplaatsen beïnvloeden. Er dient opgemerkt dat het aantal bezoekers sterk varieert naargelang het type handelszaak en voorziening. Zonder verdere precisering in dit stadium zijn de gestelde hypothesen gemiddelden en zullen ze gemiddelde cijfers genereren. A ankelijk van het type handelszaken en voorzieningen die daadwerkelijk worden voorgesteld in de projecten (voorziening van al dan niet gewestelijke omvang, handelspool met al dan niet bovenlokale uitstraling) zal deze parkeerbehoe e worden onder- of overschat. In dit stadium en zonder verdere precisering kunnen we ze niet nauwkeuriger ramen.

Op basis van de modale aandelen en het aantal werknemers en bezoekers kunnen de parkeerbehoe en voor handelszaken en voorzieningen als volgt worden geraamd:

In totaal, als we de behoe en van de verschillende func es combineren, bedragen de totale behoe en dus:

Bij de ramingen tegen 2030 blij alleen het alterna ef (iv) binnen de bestaande parkeervoorraad buiten de openbare weg (2 108). In de maximalis sche hypothese en voor het alterna ef (i), het meest kri eke, zullen naast deze bestaande voorraad nog 1 326 parkeerplaatsen nodig zijn (d.i. 63% meer den de vandaag beschikbare plaatsen).

Gezien de verschillen tussen de behoe en en eisen voor de verschillende func es lijkt het relevant om zich voor de woningen te baseren op de behoe en (en niet op de eisen van de GSV) en voor de kantoren en produc eac viteiten op de eisen (van het BWLKE en niet op de behoe en). In dat geval moeten de volgende parkeerplaatsen worden voorzien:

Totaal

Hoofdstuk III / Afdeling 3 - Effectenbeoordeling / A - programmatorische alterna even / p. 169
worden voorzien in de komende jaren Max Max (i) Max Min (ii) Min Max (iii) Min Min (iv) Huisves ng 489 807 450 738 Kantoren/ produc eac viteiten 1596 1351 1488 1270 Handelszaken/ voorzieningen 291 449 270 417 Totaal 2376 2607 2208 2425 Totaal aantal parkeerplaatsen dat moet worden voorzien tegen 2030 Huisves ng 279 461 257 424 Kantoren/ produc eac viteiten 1375 1034 1267 953 Max Max (i) Max Min (ii) Min Max (iii) Min Min (iv) Parkeerbehoe e voor handelszaken en voorzieningen Voor de werknemers 136 211 126 196 Voor de bezoekers 155 238 144 221 Totaal 291 449 270 417 Parkeerbehoe e tegen 2030 voor handelszaken en voorzieningen Voor de werknemers 99 154 92 142 Voor de bezoekers 112 173 105 161 Totaal 211 327 197 303 Max Max (i) Max Min (ii) Min Max (iii) Min Min (iv) Parkeerbehoe en (komende jaren) 3 434 3 225 3 173 2 976 Parkeerbehoe en (tegen 2030) 2 421 2 220 2 238 2 051 VERPLA ATSINGEN
aantal parkeerplaatsen dat moet

In de hypothese dat de doelstellingen van het plan Good Move worden bereikt en het BWLKE het modale aandeel van de kantoorwerknemers daadwerkelijk vermindert tot 8-9% vragen de 4 alterna even tegen 2030 een aantal parkeerplaatsen buitende openbarewegdatin debestaande toestandkan worden opgevangen(2108 bestaande parkeerplaatsen).

HetBBPmoetdaarvoorwelafwijkenvandeGSVvoorwatdeparkeerplaatsenvoordewoningenbetre (bijgesteld naar beneden) en zich baseren op het BWLKE voor het aantal parkeerplaatsen voor de kantoren en produc eac viteiten.

Fietsparkeren

Niet alleen de verplaatsingen met de fiets maar ook de behoe e aan fietsparkeerplaatsen zal in het gebied toenemen:

Tegen 2030 kan in de 4 alterna even een deel van de parkeerplaatsen (PWE) worden omgeschakeld voor het fietsparkeren van de werknemers en de bewoners in de kelderverdieping. In de alterna even (iii) en (iv) kan een deel van de kelderverdiepingen bovendien worden gebruikt voor andere ac viteiten.

Hierbij komen nog de plaatsen voor kort/middellang durend parkeren voor de bezoekers van de verschillende func es in de wijk en de plaatsen voor langdurend parkeren voor de werknemers van de handelszaken, voorzieningen en produc eac viteiten:

Er dient opgemerkt dat er ook parkeerplaatsen voor bakfietsen worden ontwikkeld, namelijk 1 plaats voor bakfietsen per 10 klassieke plaatsen.

Hoofdstuk III / Afdeling 3 - Effectenbeoordeling / A - programmatorische alterna even / p. 170 Handelszaken/ voorzieningen 211 327 197 303 Totaal 1865 1822 1721 1680
Max Max (i) Max Min (ii) Min Max (iii) Min Min (iv) Opgelegd aantal plaatsen voor de werknemers van de kantoren 1 381 1 000 1 276 925 Opgelegd aantal plaatsen voor de woningen (GSV) 760 1 255 700 1 156 Aanbevolen aantal plaatsen voor de woningen (LB) 1 520 2 509 1 400 2 311 Totaal aantal plaatsen 2 141 tot 2 901 2 255 tot 3 510 1 976 tot 2 676 2 081 tot 3 237 Oppervlakte-equivalent 4 282 m² tot 5 803 m² 4510 m² tot 7 019 m² 3 952 m² tot 5 353 m² 4 162 m² tot 6 473 m² Equivalent aantal autoparkeerplaatsen 171 tot 232 180 tot 281 158 tot 214 166 tot 259 Aantal autoparkeerplaatsen dat tegen 2030 moet worden vrijgemaakt (2 108 min het nodige totaal tegen 2030, zie voorgaande pagina) 243 286 387 428 Max Max (i) Max Min (ii) Min Max (iii) Min Min (iv) Aantal plaatsen dat moet worden voorzien voor fietsers per dag Werknemers 15 24 14 22 Bezoekers 19 27 18 25 Totaal 34 51 32 47 Aantal plaatsen dat moet worden voorzien voor fietsers per dag tegen 2030 Werknemers 67 108 62 100 Bezoekers 83 119 78 110 Totaal 150 227 140 210 VERPLAATSINGEN

De 500 fietsparkeerplaatsen van de NMBS vandaag kunnen deze behoe en deels opvangen maar zullen niet volstaan. Op termijn zullen immers meer NMBS-reizigers met de fiets naar het sta on komen.

Aangezien er tegen 2030 autoparkeerplaatsen vrijkomen in de kelderverdiepingen, kunnen daar fietsparkeerplaatsen voor de werknemers worden geïnstalleerd. De plaatsen nodig voor de bezoekers moeten echter op de benedenverdiepingen of in de openbare ruimten worden voorzien.

AANBEVELINGEN

Opdat het aantal parkeerplaatsen buiten de openbare weg tegen 2030 zou volstaan moet het BBP afwijken van de GSV voor wat de parkeerplaatsen voor de woningen betre (bijgesteld naar beneden tot 0,37 à 0,64 parkeerplaats per woning) en kan het zich baseren op het BWLKE voor het aantal parkeerplaatsen voor de kantoren en produc eac viteiten.

Comfortabele en beschu e fietsparkeerplaatsen voorzien voor de werknemers van de produc eac viteiten, voorzieningen en handelszaken en ervoor zorgen dat minstens 50% van het aanbod voor bezoekers beschut is (zie Masterplan Fietsparkeren).

MOBILITEITSDIENSTEN EN INTERMODALITEIT

HYPOTHESEN

Het tendensrapport over carsharing van 2020-2021 (autodelen.net, 2021) gee informa e over:

- De verhouding autodelers in de Brusselse bevolking (alle soorten samen): 4,90%

- De verhouding van de Brusselse bevolking die als autodelers wordt beschouwd in de formules roundtrip en peer-to-peer (dus toegewezen aan de ‘vaste’ voertuigen): 1,82%

- Aantal autodelers per voertuig in geval van peer-to-peer- of roundtripcontracten: 27,5

Er dient opgemerkt dat er geen sta s eken bestaan over het gebruik van carsharing voor andere func es dan wonen en dat er nog geen becijferde visie/doelstellingen voorhanden zijn voor 2030 of later (het doel voor 2020 van1000betrokkenvoertuigenwerdbereikt),bijvoorbeeldwathetmodaleaandeelvandeverplaatsingenbetre

HERHALING VAN DE DIAGNOSE EN RAMINGEN IN DE BESTAANDE TOESTAND

Hetgebiedomvatgeen woningen,erzijndus geen‘lokale’ autodelers.In de buurt vanhet gebied liggen3 Cambiosta ons, goed voor een totaal van 10 voertuigen.

Het gebied telt 19 parkeerplaatsen voor taxi’s.

Er zijn geen oplaadpalen voor elektrische wagens.

Het gebied is een belangrijke openbaarvervoerspool voor het BHG, het combineert immers trein-, premetro-, tram- en busnetwerken voor De Lijn en de MIVB. Het aantal haltes ‘Noordsta on’ is groot: 1 voor de treinen (sta on), 1 voor de premetro en de tram (in het centrum van het huizenblok CCN), 2 voor de bussen van De Lijn (een afstap- en een opstappunt op het Noordplein), 1 voor de interna onale buslijnen (in het noorden van de Kleine Vooruitgangstraat), 2 voor de MIVB(op- en afstappunt op het Bolivarplein). Deze haltes liggen niet allemaal op hetzelfde niveau (stadsniveau vs sta onsniveau). Heel wat reizigers hebben het daardoor moeilijk om zich in deze pool te oriënteren.

TENDENTIEEL ALTERNATIEF

Geen enkel voorschri van de geldende BBP’s of van het GBP hee specifiek een invloed op dit criterium.

Het plan Good Move promoot de ontwikkeling van de mobiliteitsdiensten.

Het Taxiplan stelt zich tot doel om de ‘taxihub’ aan het Noordsta on beter zichtbaar te maken.

Door de nieuwe tramlijnen van De Lijn en de MIVBzullen er lijnen, haltes en eindhaltes worden toegevoegd in het gebied.

Hoofdstuk III / Afdeling 3 - Effectenbeoordeling / A - programmatorische alterna even / p. 171
VERPLAATSINGEN

VERGELIJKING VAN DE ALTERNATIEVEN

Gelet op de huidige cijfers van het autogebruik tellen we:

Door de ontwikkeling van gemengdheid in het gebied zal bovendien het aantal verplaatsingen met het openbaar vervoer toenemen en dus ook de behoe e aan duidelijkheid en leesbaarheid van deze intermodale pool:

Op basis van dit criterium is het ene alterna ef niet beter dan het andere.

AANBEVELINGEN

Er wordt aanbevolen om alle bushaltes ‘Noordsta on’ te groeperen op één plaats en om te zorgen voor een behoorlijke bewegwijzeringen verplaatsingscomforttussen dezebushalteen deingangenvande

sta on.

Hoofdstuk III / Afdeling 3 - Effectenbeoordeling / A - programmatorische alterna even / p. 172
Max Max (i) Max Min (ii) Min Max (iii) Min Min (iv) aantal autodelers 31 50 28 46 Aantal deelwagens 2 2 2 2 Max Max (i) Max Min (ii) Min Max (iii) Min Min (iv) Toename van het aantal verplaatsingen met het OV (+) 4 066 tot 4 623 d.i. 17 tot 19% 5 283 tot 5 864 d.i. 22 tot 24% 1 968 tot 2 848 d.i. 8 tot 10% 3 090 tot 3 628 d.i. 13 tot 15% VERPLAATSINGEN
premetroenhet

MICROKLIMAAT

HERHALING VAN DE DIAGNOSE EN RAMINGEN IN DE BESTAANDE TOESTAND

De wijk is gelegen in een van de delen van het Gewest die het meest onderhevig zijn aan het stedelijke hi eeilandeffect. De oorzaak ligt in de thermische eigenschappen van de materialen (in dit geval grondbedekkingen en gevels), de stedelijke morfologie, de menselijke ac viteiten (onder meer verwarming), de beperkte beplan ng en vooral de beperkte aanwezigheid van bomen en het gebrek aan behoorlijke groeiomstandigheden (hoeveelheid en kwaliteit van het substraat, nu ge waterreserve, ...). Het noordelijke deel van het Bolivarplein ondergaat binnen de perimeter de grootste impact vanwege de oriënta e, de weerkaatsing van de beglaasde gevels en de ondoorlatendheid van de bodem.

Wat het windcomfort betre , zorgt het weefsel met hoofdzakelijk hoge gebouwen voor bijzonder veel tocht op grondniveau: de bestaande toestand biedt over de hele perimeter een vrij slecht windcomfort, zowel voor passanten als voor mensen die langer blijven, vooral in de Albert Ii-laan en op het Bolivarplein. Het Noordplein biedt het meeste comfort, zowel voor passanten als voor mensen die er langer blijven. De aanwezigheid van een hoge dichtheid van hoogbouw in de wijk hee bovendien de neiging om de tocht in de hoogte te vertragen/blokkeren. In de zomer stagneert de warme lucht dan in de ‘lage’ luchtlagen en ontstaat er een hi e-effect.

Dit weefsel dat vooral uit hoge gebouwen bestaat, impliceert een grote impact van de slagschaduwen op de gebouwen en openbare ruimten in de wijk.

TENDENTIEEL ALTERNATIEF

Volgens het huidige BBP mag in het huizenblok CCN niet hoger worden gebouwd dan 35 m. In de huizenblokken North Galaxy en Proximus leggen de huidige BBP’s 3 bouwhoogtes op: de zone voor laagbouw van 13 m (vast), de zone voor gebouwen met middelma ge hoogte van maximaal 23 m en de zone voor hoogbouw van 102 m (vast).

Daarnaast leggen ze een percentage op van minstens 30% groene ruimten die moeten worden aangelegd hetzij op de grond, hetzij boven de grond in de zone voor laagbouw.

Bij de realisa e van projecten is voorschri 0.2 van het GBP van toepassing: bij projecten van meer dan 5.000m² moet 10% van de oppervlakte worden ingenomen door één of meerdere ruimten van minstens 500 m² elk.

Het CCN-gebouw maakt momenteel het voorwerp uit van studies voor een grondige verbouwing (a raakwederopbouw). Een aanvraag voor een a raakvergunning werd ingediend en wordt momenteel onderzocht.

De richtlijnen van de gewestelijke instan es voor de herontwikkeling van het huizenblok Proximus getuigen van de wil om de bestaande gebouwen zoveel mogelijk te behouden, maar de volumes kunnen toch licht worden gewijzigd: volgens de nota kunnen de torens worden verhoogd met maximaal 2 verdiepingen 26 als de grondinname wordt verminderd tot 70% (of minder).

De ambi es van de gewestelijke instan es voor de herontwikkeling van de Noordwijk omva en beplan ng en doorlatendheid, wat guns g is voor dit criterium.

Hoofdstuk III / Afdeling 3 - Effectenbeoordeling / A - programmatorische alterna even / p. 173
LEEFMILIEU EN KLIMAAT
26 Dit druist in tegen de voorschri en van het BBP.

VERGELIJKING VAN DE ALTERNATIEVEN

Het programma voorziet in de 4 alterna even een verkleining van de grondinname en een algemene verhoging van de vloeroppervlakten (vooral in het huizenblok CCN). De gemiddelde hoogte van de gebouwen zal daardoor toenemen:

De bouwdichtheid van het programma in de 4 alterna even impliceert ambtshalve zeer grote bouwprofielen voor de verschillende huizenblokken. Dit zal een impact hebben op de turbulen e en de slagschaduwen. Omdat er in het algemeen slechts kleine verschillen zijn tussen de alterna even, kunnen we in deze analyse niet besluiten dat het ene alterna ef guns ger of nadeliger is dan het andere.

AANBEVELINGEN

In dit stadium valt al te verwachten dat de bouwdichtheid in het huizenblok CCN sterk zal toenemen. De vloeroppervlakte wordt immers aanzienlijk en de grondinname licht vergroot. Het risico bestaat dat de ontwikkelde gebouwen in vergelijking met de bestaande toestand zeer hoog moeten worden om alle toegestane vloeroppervlakten te kunnen ‘beva en’. Dat gaat ten koste van het stedelijke landschap en de microklimaatvoorwaarden (slagschaduw, wind). De ruimtelijke impact van het ontwerp-BBP op de structuur van de bebouwde ruimten (organisa e van de volumes) wordt onderzocht in de ruimtelijke scenario’s. In dit deel van de studie (programma) gaan we er niet verder op in.

Er wordt daarom aanbevolen om de toegelaten vloeroppervlakten te verkleinen en om minstens de alterna even te bevorderen die voor het huizenblok CCN de kleinste vloeroppervlakten toekennen. Deze aanbevelingen zullen worden gewijzigd door de conclusies van de analyse van het criterium voor de ruimtelijke alterna even.

Elk voorschri dat het geïntegreerd regenwaterbeheer bevordert, het weerkaatsingsvermogen van de materialen beperkt en aanmoedigt tot de beplan ng van de pla e daken zal een posi eve impact hebben op dit criterium. Deze aanbevelingen zullen worden geformuleerd in de analyse van de ruimtelijke alterna even.

Hoofdstuk III / Afdeling 3 - Effectenbeoordeling / A - programmatorische alterna even / p. 174
Bestaande toestand Max Max (i) Max Min (ii) Min Max (iii) Min Min (iv) Vloeroppervlakte 320 215 m² 395 186 m² 395 186 m² 365 186 m² 365 186 m² Grondinname van de gebouwen 35 815 m² 27 742 m² 27 742 m² 25 430 m² 25 430 m² Gemiddeld aantal verdiepingen van de gebouwen (vloeren/grondinname) 8,9 14.2 14.2 14.4 14.4 LEEFMILIEU EN KLIMAAT

BODEM

HERHALING VAN DE DIAGNOSE EN RAMINGEN IN DE BESTAANDE TOESTAND

De ondoorlatendheid in de wijk is bijzonder hoog. Ze is immers voor 41% bebouwd en de ondoorlatendheid bedraagt 94%. Bovendien is op de percelen bijna de hele ondergrond bebouwd (metro, parkings).

TENDENTIEEL ALTERNATIEF

De ambi es van de gewestelijke instan es voor de herontwikkeling van de Noordwijk omva en beplan ng en doorlatendheid, wat guns g is voor dit criterium.

Bij de realisa e van projecten is voorschri 0.2 van het GBP van toepassing: bij projecten van meer dan 5.000m² moet 10% van de oppervlakte worden ingenomen door één of meerdere ruimten van minstens 500 m² elk.

Volgens het BBP zijn verkeerszones “hoofdzakelijk voorbehouden aan het mechanische verkeer, het voetgangersverkeer en de beplan ngen”, zonder verdere indica es over de hoeveelheden. Voor de huizenblokken legt het BBP eenpercentageopvanminstens30% groeneruimtendiemoetenwordenaangelegdhetzijopdegrond,hetzij boven de grond in de zone voor laagbouw van Proximus en North Galaxy. De gedeelten op de grond moeten verplicht hoogstammige bomen beva en. De groene ruimten worden aangelegd als tuintjes en mogen in de ondergrond gebruikt worden als garages, op voorwaarde dat die worden bedekt met een laag van minstens 50cm teelaarde voorzien van gras en struiken.

VERGELIJKING VAN DE ALTERNATIEVEN

De programmatorische alterna even hebben geen betrekking op de openbare ruimten. De impact van deze ruimten op de bodem zal worden onderzocht in de ruimtelijke alterna even.

Behalve de voorstellen voor vloeroppervlakten en func es voorzien de alterna even een vermindering van de grondinname, echter zonder nadere informa e over de lokalisa e:

Omdat op de percelen de ondergrond bijna volledig bebouwd is, zal een verkleining van de grondinname een guns ge impact hebben op criteria zoals de open ruimten. De ondoorlatendheid van de bodem verandert echter nieten er ontstaan niet meer mogelijkheden om op de percelen ruimten te ontwikkelen met volle grond. Op basis van dit criterium is het ene alterna ef dus niet guns ger of nadeliger dan het andere.

AANBEVELINGEN

Er wordt aanbevolen om de grondinname van de ondergrondse parkings te verkleinen: door ze af te breken ter hoogte van de zones die na de verkleining van de grondinname van de gebouwen zijn vrijgekomen, kunnen op de percelen zones met volle grond worden ontwikkeld. De vaststellingen over het parkeren beperken echter de mogelijkheden op dit vlak (aantal nodige parkeerplaatsen voor auto’s en parkeerplaatsen omgevormd tot fietsparkeerplaatsen).

Hoofdstuk III / Afdeling 3 - Effectenbeoordeling / A - programmatorische alterna even / p. 175
Bestaande toestand Max Max (i) Max Min (ii) Min Max (iii) Min Min (iv) Grondinname 0,77 0.6 0.6 0.55 0.55 Grondinname van de gebouwen 35 815 m² 27 742 m² 27 742 m² 25 430 m² 25 430 m² Vermindering van de grondinname 8 073 m² d.i. 23% 8 073 m² d.i. 23% 10 385 m² d.i. 29% 10 385 m² d.i. 29% LEEFMILIEU EN KLIMAAT
LEEFMILIEU EN KLIMAAT LEEFMILIEU EN KLIMAAT
Grondinname in de kelderverdiepingen (-1) in het blauw en bovengrondse bebouwde ruimten

Het BBP zou via zijn voorschri en de ontwikkeling van geïntegreerd bodembeheer in de perimeter kunnen aanmoedigen, in samenhang met de gewestelijke strategie Good Soil. Bij het beheer en de vrijwaring van de bodems moet rekening worden gehouden met alle func es die de bodem vervult, met de variabiliteit en de complexiteit van de bodems en met al de verschillende a akelingsprocessen waaraan ze onderhevig zijn.

Hoofdstuk III / Afdeling 3 - Effectenbeoordeling / A - programmatorische alterna even / p. 176
LEEFMILIEU EN KLIMAAT

ECOLOGISCH NETWERK

HERHALING VAN DE DIAGNOSE EN RAMINGEN IN DE BESTAANDE TOESTAND

De ecologische context is globaal gezien zeer arm. De stedelijke druk is groot, de stedelijk typologie niet erg bevorderlijk voor de kwaliteit van de beplante ruimten en het grootste deel van de ondergrond is bebouwd (metro, parkings).

De beplan ng in volle grond bedraagt slechts 6% van het onderzochte gebied (Albert Ii-laan en enkele bomen in de openbare ruimte). Op 3% van het gebied groeit beplan ng op plaat (sedum op daken, perken op parkings en enkele bomen in bakken in de openbare ruimte).

TENDENTIEEL ALTERNATIEF

De ambi es van de gewestelijke instan es voor de herontwikkeling van de Noordwijk omva en beplan ng en doorlatendheid, wat guns g is voor dit criterium. Omdat de ondergrond al grotendeels wordt ingenomen zal de toestand zonder ambi euze projecten in dit verband waarschijnlijk niet significant verbeteren.

Het plan Good Move voorziet in een voetgangersboulevard die doorheen de perimeter loopt. Een van de doelstellingen bestaat erin om de aanwezigheid van bomen en beplan ng te garanderen en een geïntegreerd regenwaterbeheer.

Bij de realisa e van projecten is voorschri 0.2 van het GBP van toepassing: bij projecten van meer dan 5.000m² moet 10% van de oppervlakte worden ingenomen door één of meerdere ruimten van minstens 500 m² elk.

Volgens het BBP zijn verkeerszones “hoofdzakelijk voorbehouden aan het mechanische verkeer, het voetgangersverkeerendebeplan ngen”,zonderverdereindica esoverdehoeveelheden.Voordehuizenblokken legthetBBP deontwikkeling opvanzonesvoorlaagbouw meteenbouwhoogtevanmax.13m.Indezezonesmoet minstens 30% groene ruimte worden aangelegd, hetzij op de grond, hetzij boven de grond (in de zone voor laagbouw). De gedeelten op de grond moeten verplicht hoogstammige bomen beva en. De groene ruimten worden aangelegd als tuintjes en mogen in de ondergrond gebruikt worden als garages, op voorwaarde dat die worden bedekt met een laag van minstens 50cm teelaarde voorzien van gras en struiken. Het SVC 2 wil de biodiversiteit van de spoorwegtaluds ontwikkelen.

VERGELIJKING VAN DE ALTERNATIEVEN

De programmatorische alterna even hebben geen betrekking op de openbare ruimten. De impact van deze ruimten op het ecologisch netwerk zal worden onderzocht in de ruimtelijke alterna even. De 4 alterna even stellen op de percelen een verkleinding van de grondinname voor en een vergro ng van de vloeroppervlakten. Dit impliceert een ma ge toename van het aantal verdiepingen van de gebouwen:

Toename van het

aantal

Omdat op de percelen de ondergrond bijna volledig bebouwd is, zal een verkleining van de grondinname een guns ge impact hebben op criteria zoals de open ruimten. De ondoorlatendheid van de bodem verandert echter nieten er ontstaan niet meer mogelijkheden om op de percelen ruimten te ontwikkelen met volle grond. Op basis van dit criterium is het ene alterna ef dus niet guns ger of nadeliger dan het andere.

De verhoging van de gebouwen en de impact op het microklimaat gaan bovendien ten koste van de kwaliteit van de beplan ng van de wijk (slagschaduw, wind).

Hoofdstuk III / Afdeling 3 - Effectenbeoordeling / A - programmatorische alterna even / p. 177
Max Max (i) Max Min (ii) Min Max (iii) Min Min (iv) Vermindering van de grondinname 8 073 m² d.i. 23% 8 073 m² d.i. 23% 10 385 m² d.i. 29% 10 385 m² d.i. 29%
gemiddelde
verdiepingen van de gebouwen
“microklimaat”) 5,3 5.3 5.5 5.5 LEEFMILIEU EN KLIMAAT LEEFMILIEU EN KLIMAAT
(zie

AANBEVELINGEN

Er wordt aanbevolen om de grondinname van de ondergrondse parkings te verkleinen: door ze af te breken ter hoogte van de zones die na de verkleinding van de grondinname van de gebouwen zijn vrijgekomen, kunnen op depercelentebeplantenzonesmetvollegrond wordenontwikkeld.Devaststellingenover hetparkerenbeperken echter de mogelijkheden op dit vlak (aantal nodige parkeerplaatsen voor auto’s en parkeerplaatsen omgevormd tot fietsparkeerplaatsen).

Een andere aanbeveling is om ervoor te zorgen dat op de percelen beplan ng wordt ontwikkeld. Bij beplan ng op plaat moet het substraat voldoende dik zijn om te kunnen worden gelijkgesteld met volle grond (intensief groendak).

Bovendien moeten er gebouwen worden ontwikkeld met variabele hoogtes zodat er op meerdere niveaus groendaken kunnen worden ontwikkeld en niet alleen bovenop de toekoms ge torens (deconnec e tussen de beplan ng op de grond en de beplan ng op de daken).

WATER HYPOTHESEN

Gemiddeld jaarlijks verbruik:

 per inwoner: ~100 L /dag, d.i. 36 m³/jaar thuis (Leefmilieu Brussel, 2020) per werknemer: 11,1 m³/jaar op de werkplek (LB, Benchmark / EMAS2011), d.i. ~1/3 van het verbruik van de bewoners

 per bezoeker: 1/50e van het verbruik van een bewoner (dit stemt overeen met ~2 bezoekers op 5 die naar het toilet gaan), d.i. ~2L/dag of 0,73 m³/jaar.

HERHALING VAN DE DIAGNOSE EN RAMINGEN IN DE BESTAANDE TOESTAND

94% van de bodem in het gebied is ondoorlatend.

Het CCN en de Proximus-toren hebben geen pu en, stormbekkens of andere systemen om regenwater in op te vangen. In de kelderverdiepingen van de North Galaxy-toren is een put van 100 m³ aanwezig.

Degrondwaterlaag ligtopbeperktediepte.Vanwegededieptevandeondergrondvandeverschillendegebouwen (metro, parkings) wordt het water opgepompt en naar de riolering afgevoerd.

Cijfers over het huidige verbruik en afvoer zijn niet bekend, maar naar scha ng verbruiken meer dan 15 600 werknemers in de perimeter (bestaande toestand C) jaarlijks iets meer dan 173 200 m³ water. Daarbij komen nog de bijna 3 400 m³ water die per jaar worden verbruikt door de bezoekers. In totaal wordt dus naar scha ng 176.600 m³/jaar verbruikt, dat is bijna 484 m³/dag. Voor de bestaande toestanden A en B verkrijgen we verbruikswaarden en dus totale lozingen van 119.500 m³/jaar, d.w.z. bijna 328 m³/dag, en 151.000 m³/jaar, d.w.z. bijna 414 m³/dag.

TENDENTIEEL ALTERNATIEF

De ambi es van de gewestelijke instan es voor de herontwikkeling van de Noordwijk omva en beplan ng en doorlatendheid, wat guns g is voor dit criterium. Omdat de ondergrond al grotendeels wordt ingenomen zal de toestand zonder ambi euze projecten in dit verband waarschijnlijk niet significant verbeteren.

Het SVC 1 voorziet in de heraanleg van het Maximiliaanpark met herontwikkeling van de Bolivar-as tot aan de Antwerpsesteenweg, met een visie tot aan het Noordsta on. Ook de kwes e van het waterbeheer wordt geïntegreerd (wadi op Bolivar). Brussel Mobiliteit wil bij de ontwikkeling van de tram naar Thurn & Taxis deze as heraanleggen op basis van deze visie.

Buiten de perimeter wil het blauwe netwerk de Zenne in het Maximiliaanpark openleggen (zone voor stedelijke herwaardering van de Zenne in het GPDO). Daarvoor wordt in 2023 het project Max aan de Zenne gestart.

Voor projectenzaldeGSVvan toepassingzijn voordeopvang vanhetregenwaterenhetGBPvoor deontwikkeling van groene ruimten (voorschri 0.2).

Hoofdstuk III / Afdeling 3 - Effectenbeoordeling / A - programmatorische alterna even / p. 178
LEEFMILIEU EN KLIMAAT

Het BBP bevat geen specifieke voorschri en voor het beheer van het regenwater, maar wel enkele aspecten aangaande de beplan ng (zie criterium Ecologische netwerken) die eveneens guns g zijn voor het criterium van het waterbeheer.

VERGELIJKING VAN DE ALTERNATIEVEN

Ondoorlatendheid van de bodem

Inde4alterna evenwordtde grondinnamevandegebouwenverkleind.Debestaandetoestandindeondergrond (bijna volledig bebouwd voor de metro en/of parkings) laat echter niet toe om deze verkleining van de grondinname te koppelen aan een hogere bodemdoorlatendheid op de percelen. De programmatorische alterna even hebben overigens geen betrekking op de openbare ruimten. In die zin is dus geen enkel alterna ef guns ger dan de andere.

Er wordt aanbevolen om de grondinname van de ondergrondse parkings te verkleinen ter hoogte van de vrijgekomen zones in de grondinname van de gebouwen, zodat er te beplanten zones met volle grond kunnen wordenontwikkelddiebijdragentoteengeïntegreerdregenwaterbeheer.Dezeaanbevelingdruistechterintegen de vaststellingen aangaande het parkeren.

Regenwater

Vanwege de hoogte van de gebouwen en de bouwdichtheid kan de dimensionering van de regenwateropvangsystemen worden geraamd voor de specifieke projecten.

In de 4 scenario’s worden hoge gebouwen ontwikkeld. De gevels beslaan tussen een grote ac eve oppervlakte en een specifiek beheer van het regenwater moet worden voorzien. Geïntegreerde oplossingen kunnen de impact op het waterbeheer in de openbare ruimte beperken.

Waterverbruik

Het waterverbruik kan worden geraamd op:

We zien dus een algemene toename van het waterverbruik (minder verbruik voor de kantoren en meer verbruik voor de woningen). De alterna even (iii) en (iv) hebben een kleinere impact op dit criterium.

OVERIGE AANBEVELINGEN

Zoalsreedsgezegdwordtaanbevolen om degrondinnamevande ondergrondseparkingsteverkleinen terhoogte van de vrijgekomen zones in de grondinname van de gebouwen, zodat er te beplanten zones met volle grond kunnen worden ontwikkeld die bijdragen tot een geïntegreerd regenwaterbeheer. De vaststellingen over het parkeren beperken echter de mogelijkheden op dit vlak (aantal nodige parkeerplaatsen voor auto’s en parkeerplaatsen omgevormd tot fietsparkeerplaatsen).

Vanwege de ontwikkelde typologie (hoge gebouwen) beslaan de gevels een grote ac eve oppervlakte en moet een specifiek beheer van het regenwater worden voorzien. Geïntegreerde oplossingen kunnen worden voorzien om met dat aspect rekening te houden en het regenwater op schaal van het perceel maximaal te beheren. Dit beheer moet maximaal geïntegreerd zijn (zie h ps://environnement.brussels/thema ques/eau/le-professionnelen-ac on/ou ls-et-accompagnement/faqs).

Naast het hergebruik van het regenwater moet ook het in de ondergrond van de gebouwen opgepompte water worden hergebruikt voor func es die geen leidingwater vereisen (toilet, was, onderhoud ...). Er moet dan minder opgepompt water worden afgevoerd en er wordt minder leidingwater verbruikt.

Bovendien wordt aanbevolen om het overtollige water af te voeren naar de Zenne in plaats van naar de riolering, althans voor zover de gezondheidstoestand van het water dat toelaat.

Hoofdstuk III / Afdeling 3 - Effectenbeoordeling / A - programmatorische alterna even / p. 179
Max Max (i) Max Min (ii) Min Max (iii) Min Min (iv) Aantal inwoners 1 650 2 723 1 520 2 508 Aantal werknemers 14 552 11 206 13 449 10 368 Aantal bezoekers 8 286 11 806 7 719 10 961 Verbruik 220 926 m³/jaar d.i. 622 m³/dag 230 900 m³/jaar d.i. 633 m³/dag 209 558 m³/jaar d.i. 574 m³/dag 213 250 m³/jaar d.i. 584 m³/dag
LEEFMILIEU EN KLIMAAT

ENERGIE

HYPOTHESEN

De volgende hypothesen worden in aanmerking genomen:

- Gemiddeld jaarlijks verbruik

o in de huidige toestand

 325 kWh / m² kantoorruimte (MER ZIN-project op basis van Leefmilieu Brussel, als referentiewaarde voor kantoorgebouwen van meer dan 10 000 m²)

 217 kWh / m² andere functies (energieplus, 2007, gemiddelde gas-elektriciteit).

o bij renovatie

 54 kWh/ m² woningen (eis EPB-NGB-werken met optimale compactheid)

 60 kWh/ m² kantoorruimte (eis EPB-werken met optimale compactheid)

 112 kWh / m² andere functies (raming op basis van het MER van het ZIN-project). Omdat voor de handelszaken en voorzieningen geen specifieke types werden bepaald, werd deze hypothese gebaseerd op een gemiddelde tussen de hotels en de kantoren.

- Efficiëntie 0,244 kg uitgestoten CO2 / kWh (energieplus, 2007, gemiddelde gas-elektriciteit).

HERHALING VAN DE DIAGNOSE EN RAMINGEN IN DE BESTAANDE TOESTAND

Vanwege de verdeling van de func es (bijna uitsluitend kantoren) kan het jaarlijks gebruik van de meer dan 308 000 m² kantoren in het gebied worden geraamd op 100 208 000 kWh en de CO2-uitstoot op ongeveer 24 450 T CO2

Daarbij komen nog de ongeveer 2 579 000 kWh die worden verbruikt door de andere func es, goed voor iets minder dan 630 T CO2 per jaar.

In totaal zal in het gebied dus 102 787 000 kWh per jaar worden verbruikt en meer dan 25 000 T CO2 worden uitgestoten.

TENDENTIEEL ALTERNATIEF

De BBP’s en het GBP beva en geen voorschri en voor dit criterium.

Bij grondige renova es of a raak- en wederopbouwwerken zouden de ontwikkelde gebouwen moeten voldoen aanderecenteenergienormenom deenergie-efficiën ete verbetereninvergelijkingmet debestaandetoestand.

VERGELIJKING VAN DE ALTERNATIEVEN

De verhoging van de vloeroppervlakten met ~45 000 tot 75 000 m², a ankelijk van het alterna ef, gekoppeld aan de wijziging van de verdeling tussen de func es, impliceert dat in de 4 alterna even de gebouwen worden gerenoveerd en dat de energiestandaards moeten worden gerespecteerd. Het energieverbruik kan dan als volgt worden geraamd:

In de 4 alterna even zal het verbruik dus aanzienlijk afnemen en 74 à 77% van het huidige verbruik bedragen. Omdat de orde van grootheid sterk gelijkend is, is het ene alterna ef voor dit punt niet guns ger of nadeliger dan het andere.

Hoofdstuk III / Afdeling 3 - Effectenbeoordeling / A - programmatorische alterna even / p. 180
Verbruik
Max Max (i) Max Min (ii) Min Max (iii) Min Min (iv) Kantoren 276 130 m² 200 093 m² 255 130 m² 185 093 m² Huisves ng 76 037 m² 125 461 m² 70 037 m² 115 561 m² Andere func es 43 019 m² 69 632 m² 40 019 m² 64 532 m² Jaarlijks verbruik 25 492 000 kWh voor 6 220 T CO2 26 579 000 kWh voor 6 485 T CO2 23 572 000 kWh voor 5 752 T CO2 24 573 500 kWh voor 5 996 T CO2
LEEFMILIEU EN KLIMAAT LEEFMILIEU EN KLIMAAT

Gebouwen

De herontwikkeling van de huizenblokken van het gebied impliceert een energieverbruik verbonden aan de renova e of eventuele a raak-wederopbouw van de verschillende huizenblokken om te voldoen aan de func es die in de 4 alterna even worden voorzien:

- Voor het huizenblok CCN werd een afbraakvergunning ingediend die wordt onderzocht. Het gebouw zal waarschijnlijk worden afgebroken en er zullen een of meerdere nieuwe gebouwen in de plaats komen.

- Voor het huizenblok Proximus loopt momenteel een herontwikkelingsproject. Er zijn twee scenario’s mogelijk: afbraak-wederopbouw of zware renovatie.

- Voor het huizenblok North Galaxy zijn er nog geen projecten. De huidige tendensen mikken op circulaire economie, zodat waarschijnlijk zware renovatie zal worden aanbevolen. In dit stadium hebben de ramingen betrekking op de volledige huizenblokken en kunnen er geen nauwkeurige cijfers worden verkregen over het behoud/de renova e van bepaalde delen van de huizenblokken (bijvoorbeeld detorensvoorhethuizenblok Proximus)endea raak-wederopbouw vananderedelen(bijvoorbeelddesokkels).

Op basis van de tool ‘a raak-wederopbouw” (ecores voor IEB/AQL) en met de limieten die daarin worden voorzien,kunnenwehetTCO2-equivalentdatna20jaarwordtgeproduceerddoordeverschillendehuizenblokken ramen op:

Het alterna ef (iv), en in mindere mate het alterna ef (ii) waarin minder vloeroppervlakte wordt herontwikkeld en minder kantoren worden voorzien, zullen over een periode van 20 jaar de minste T CO2 genereren.

Het programma onderscheidt de huizenblokken niet volgens de func es. In alle huizenblokken zullen alle func es aanwezig zijn. De huizenblokken CCN en Proximus zijn al in herontwikkeling met projecten in die zin.

Voor het huizenblok North Galaxy en in de huidige toestand van het gebouw (dus zonder renova e) zou de exploita e van de kantoren over een periode van 20 jaar 138 698 T CO2 verbruiken. Bij renova e met behoud van de kantoorfunc e (dus zonder toepassing van gemengde bestemmingen) zou het verbruik over een periode van 20 jaar dalen tot 104 749 T CO2 (renova e en exploita e). Als de voorgestelde func es worden ontwikkeld, zou er meer dan waarschijnlijk een globaal herontwikkelingsproject worden doorgevoerd met vollediger nazicht van het gebouw en de organisa e en een zwaardere renova e (deels a raak, wederopbouw-renova e en exploita e). Het verbruik zou dan over een periode van 20 jaar dalen tot minder dan 100 000 T CO2 bij zware renova e of tot meer dan 160 000 T CO2 bij a raak-wederopbouw.

Verplaatsingen

In de 4 alterna even zijn er minder verplaatsingen verbonden aan de kantoren maar meer verplaatsingen van buurtbewoners, werknemers en bezoekers:

Hoofdstuk III / Afdeling 3 - Effectenbeoordeling / A - programmatorische alterna even / p. 181
Max Max (i) Max Min (ii) Min Max (iii) Min Min (iv) CCN A raak, wederopbouw en exploita e 220 268 T 214 231 T 184 013 T 179 108 T Proximus A raak, wederopbouw en exploita e 371 838 T 166 724 T 371 838 T 166 724 T Zware renova e 102 434 T 97 963 T 102 434 T 97 963 T North Galaxy: Verdere exploita e van de kantoren 138 698 T Renova e met enkel kantooraanbod 104 749 T Zware renova e 98 156 T 93 871 T 98 156 T 93 871 T A raak en wederopbouw 163 827 T 159 761 T 163 827 T 159 761 T
LEEFMILIEU EN KLIMAAT

In totaal neemt het aantal verplaatsingen met de auto toe in de 4 alterna even, maar in het alterna ef (iii) kan die toename worden beperkt en tegen 2030 kan het aantal verplaatsingen zelfs worden verminderd.

AANBEVELINGEN

Voor het huizenblok Proximus: eerder zware renova e aanbevelen dan a raak-wederopbouw voor het lopende project.

Voor hethuizenblok NorthGalaxy: dekantorenalsdusdanig behoudenofdekantorenrenoverenbetekentminder verbruikovereenperiodevan 20jaar(tussenop evoorwat deimpactbetre ) danwanneerhethuizenblokwordt afgebroken en weer opgebouwd met een gemengde programma e. Als wordt gekozen voor een gemengde programma e eerder zware renova e aanbevelen (keuze met de kleinste impact) dan a raak en wederopbouw (keuze met de grootste impact).

Hoofdstuk III / Afdeling 3 - Effectenbeoordeling / A - programmatorische alterna even / p. 182
Max Max (i) Max Min (ii) Min Max (iii) Min Min (iv) Toename van het aantal verplaatsingen per dag met de auto(+) 293 tot 3 636 d.i. 3 tot 42% 675 tot 4 161 d.i. 8 tot 48% -365 tot 2 731 d.i. -4 tot 32% -14 tot 3 215 d.i. -2 tot 37% LEEFMILIEU EN KLIMAAT LEEFMILIEU EN KLIMAAT

CIRCULARITEIT VAN DE MATERIALEN / INKOMENDE MATERIALEN

HERHALING VAN DE DIAGNOSE EN RAMINGEN IN DE BESTAANDE TOESTAND

Door de kenmerken van de bestaande gebouwen (grote monofunc onele gebouwen, standaard en homogeen georganiseerd, met heel veel materialen) kunnen ze worden beschouwd als een materiaalbank. De minder goede presta esvan dematerialenvandes jds tenaanzien vande nieuwetechnische eisen, depoten ëleaanwezigheid van asbest en de des jds veelvuldig toegepaste verankering met cement kunnen het hergebruik van bepaalde elementen echter bemoeilijken.

TENDENTIEEL ALTERNATIEF

De BBP’s en het GBP beva en geen voorschri en voor dit criterium.

De a raakvergunning voor het CCN-gebouw wordt momenteel onderzocht. De werken zouden binnen het jaar van start gaan. Er wordt gestreefd naar 2% hergebruik van de a raakmaterialen en 90% recyclage ter plaatse of elders in het BHG worden gerecycleerd. Voor de wederopbouw wordt voor de inkomende materialen gestreefd naar 2% hergebruik en 20% recyclage van de materialen a oms g van de site of van elders in het BHG.

Voor het huizenblok Proximus verkeert een herontwikkelingsproject in de studiefase. De twee bestaande torens zouden worden behouden.

Dat is ook de ambi e van de gewestelijke instan es (renova e aanmoedigen, hergebruik van de materialen promoten, gebouwen optrekken die kunnen worden aangepast aan verschillende func es).

VERGELIJKING VAN DE ALTERNATIEVEN

In de 4 alterna even zou de a raak van de huizenblokken in totaal 381 817 T te behandelen afval genereren, dat is meer dan 19 000 vrachtwagens van 20T. Voor de hoeveelheid afval verbonden aan renova e zijn er geen ramingen beschikbaar. Op basis van dit criterium is dus geen enkel alterna ef guns ger of nadeliger dan een ander.

De alterna even (i) en (ii) impliceren de verhoging van de vloeroppervlakte met 75 000 m², de alterna even (iii) en (iv) beperken deze toename tot 45 000 m². In deze laatste alterna even kunnen dus ook de inkomende materialen voor de ontwikkeling van de nieuwe vloeroppervlakten worden beperkt.

AANBEVELINGEN

Omdat voor dergelijke gebouwen grote oppervlakten en structuren nodig zijn, de vier bestaande torens van de huizenblokken North Galaxy en Proximus behouden en indien nodig zware renova e bevorderen met zoveel mogelijk recupera e (hergebruik, recyclage) van de materialen.

Bij a raak, gezien de kenmerken van de aanwezige gebouwen, demonteren voor zover de reële technische kenmerken van de bestaande gebouwen dat toelaten..

Hoofdstuk III / Afdeling 3 - Effectenbeoordeling / A - programmatorische alterna even / p. 183
Circulariteit

CIRCULARITEIT VAN DE STROMEN

HYPOTHESEN

Verhouding van de soorten “afvalstoffen” volgens het totale gewicht dat wordt ingezameld per jaar (452 892 T) (Net Brussel, 2019): Huishoudelijk afval Niet-huishoudelijk afval (professioneel en handelszaken)

Hoeveelheid afvalstoffen geproduceerd per bewoner in het BHG: 400 kg/jaar (Leefmilieu Brussel, Gids Duurzame Gebouwen)

Hoeveelheidafvalstoffengeproduceerdperwerknemerindeter aire sector:240kg/jaar(Leefmilieu Brussel, Gids Duurzame Gebouwen)

Hoeveelheid afvalstoffen geproduceerd door de handelszaken en voorzieningen: 14,56 kg/m².jaar (Ariès op basis van Leefmilieu Brussel, MER van het RPA Wet, 2018)

Er moet één groep glasbollen (wit en gekleurd glas) worden geïnstalleerd per ongeveer 600 bewoners.

HERHALING VAN DE DIAGNOSE EN RAMINGEN IN DE BESTAANDE TOESTAND

De gebouwen beschikken niet over voorzieningen voor het hergebruik van het afval- of regenwater. Het grondwater wordt opgepompt en in de riolering geloosd.

De afvalstoffen zijn specifiek voor de kantoren (opgehaald door Net Brussel of een andere erkende inzamelaar op basis van een specifiek contract). Afgaande op de cijfers in de bestaand toestand en de gestelde hypothesen kan de hoeveelheid geproduceerd afval worden geraamd op:

Het groenafval dat wordt gegenereerd door het onderhoud van de groene ruimten maakt niet het voorwerp uit van circulariteit.

Er is geen energie-uitwisseling bekend tussen de func es in de gebouwen van het BBP (monofunc onaliteit) of met hun directe omgeving.

TENDENTIEEL ALTERNATIEF

De BBP’s en het GBP beva en geen voorschri en voor dit criterium.

De lopende projecten voor de huizenblokken CCN en Proximus impliceren dat de ontwikkelde gebouwen (nieuwbouw of zware renova e) moeten voldoen aan onder meer de regelgeving op het vlak van regenwateropvang. Dit bevordert de mogelijkheden van hergebruik van dit water in de gebouwen.

De gewestelijke instan es koesteren de ambi e om gemengdheid te creëren in de wijk. Dit kan de eventuele uitwisseling van stromen tussen de func es bevorderen.

Hoofdstuk III / Afdeling 3 - Effectenbeoordeling / A - programmatorische alterna even / p. 184
t/jaar Verhouding t/jaar Verhouding Wi e zakken 206 094 63% 90 214 73% Gele zakken 26 563 8% 25 388 21% Blauwe zakken 12 178 4% 3 467 3% Oranje zakken en groene zakken 20 815 6% 1 183 1% Glas 27 201 8% 0 0% Grof huisvuil 36 265 11% 3 524 3%
Restafval Papier- karton PMD Bederfelijk afval Grof huisvuil Bestaande toestand A 1 930 T 543 T 74 T 25 T 75 T Bestaande toestand B 2 422 T 682 T 93 T 32 T 95 T Bestaande toestand C 2 823 T 794 T 109 T 37 T 110 T
Circulariteit

VERGELIJKING VAN DE ALTERNATIEVEN

De 4 alterna even stellen gemengdheid voor. Dit kan de eventuele uitwisseling van stromen tussen func es bevorderen: hergebruik van grijs water, warmte-uitwisseling.

De gemengdheid die wordt voorgesteld in de 4 alterna even beïnvloedt de produc e van ‘afvalstoffen’ doordat de soorten afvalstoffen die in het BBP worden gegenereerd worden gewijzigd:

In de 4 alterna even neemt de varia e in de soorten afvalstoffen toe vanwege de gemengdheid van de func es. De afvalproduc e neemt het minst toe in het alterna ef (iv), onder meer omdat dit de vloeroppervlakten het minst verkleint.

Er dient opgemerkt dat het afval gegenereerd door de bezoekers (vuilnisbakken in de openbare ruimte) niet is opgenomen in deze cijfers. Omdat de hoeveelheid sterk verschilt van het ene alterna ef tot het andere, lijkt het interessant om de cijfers hier te herhalen:

Max Max (i) Max Min (ii) Min Max (iii) Min Min (iv)

Het alterna ef (iii) voorziet een kleinere toename van de vloeroppervlakten en gemengdheid van func es. Dit alterna ef genereert de minste bezoekers in het gebied en dus ook de minste afvalstoffen.

AANBEVELINGEN

‘Horizontale’gemengdheid(verschillendefunc esineenzelfdegebouw) verhoogtdemogelijkheidtotuitwisseling van stromen tussen de func es.

MODULARITEIT VAN DE RUIMTEN

Niet van toepassing

Hoofdstuk III / Afdeling 3 - Effectenbeoordeling / A - programmatorische alterna even / p. 185
Max Max (i) Max Min (ii) Min Max (iii) Min Min (iv) Produc e van grijs water (zie “technische netwerken”) 100 202 m³/jaar 115 119 m³/jaar 92 495 m³/jaar 106 234 m³/jaar Energieverbruik per jaar: kantoren 16 567 812 kWh 12 005 580 kWh 15 307 812 kWh 11 105 580 kWh Energieverbruik per jaar: woningen 4 106 009 kWh 6 774 915 kWh 3 782 009 kWh 6 240 315 kWh
Max Max (i) Max Min (ii) Min Max (iii) Min Min (iv) Restafval 3 216 T 3 041 T 2 973 T 2 812 T Papier/ karton 842 T 752 T 779 T 696 T PMD 132 T 131 T 122 T 121 T Bederfelijk afval 78 T 100 T 72 T 92 T Glas 55 T 90 T 50 T 83 T Gegroepeerde glasbollen 3 5 3 5 Grof huisvuil 182 T 212 T 168 T 196 T Totaal 4 506 T 4 326 T 4 164 T 3 999 T
Aantal bezoekers per dag 8 286 11 806 7 719 10 961
Circulariteit Circulariteit

SAMENVATTING VAN DE AANBEVELINGEN EN WISSELWERKINGEN TUSSEN DE CRITERIA

De voorgestelde programmatorische alterna even wijzigen de verdeling van de huidige func es (bijna uitsluitend kantoren) met het doel een meer gemengde wijk te ontwikkelen.

In dit zin maken de voorgestelde programmatorische alterna even het mogelijk om:

▪ Woningen, voorzieningen en handelszaken te ontwikkelen om een gediversifieerde leefomgeving te bieden aan de toekomstige buurtbewoners en andere ‘gebruikers’ van de site;

▪ Een kantoorfunctie te behouden in een specifieke pool en met een typologie die zich daar bijzonder toe leent;

▪ Alle benedenverdiepingen te activeren en meer leven te creëren in de ‘backstreets’;

▪ Een groot aantal voorzieningen te creëren om te voldoen aan de geïnduceerde behoeften en potentieel aan de vele al bestaande behoeften die al werden geïdentificeerd;

▪ Onder meer een groot aantal voetgangers te creëren in de perimeter om het belang van de voetgangersboulevard te benadrukken;

▪ De grondinname van de gebouwen licht te verkleinen (ook in de ondergrond);

▪ De beroepsactiviteiten in het gebied te diversifiëren (kantoren, productieactiviteiten en tewerkstelling in de handelszaken en voorzieningen);

▪ Het aantal bezoekers van het gebied aanzienlijk te verhogen; de bezoekers worden aangetrokken door gevarieerde functies en zijn verspreid over de hele dag, met waarschijnlijk een positieve impact op het veiligheidsgevoel en de bedrijvigheid in de wijk.

Anderzijds leidt de voorziene vergro ng van de vloeroppervlakten en de verhoging van de gemengdheid in de 4 alterna even tot:

▪ Eentoenamevandegeluidsgevoeligefunctiesineenstedelijkecontextmeteenheelweinigbevorderlijke typologie (torengebouwen);

▪ Een toename van de bouwhoogtes in het huizenblok CCN, ten koste van het stedelijke landschap en de microklimaatvoorwaarden (slagschaduw en wind);

▪ Een verkleining van de grondinname maar niet in de ondergrond; dit zorgt niet voor een merkbare verbetering van het waterbeheer en de bodem op de percelen;

▪ Een toename van het waterverbruik en dus van de waterafvoer;

▪ Afbraak-wederopbouw of zware renovatie van de bestaande gebouwen wordt bevorderd; dat heeft een negatieve impact op de productie van ‘afvalstoffen’ (materialen en circulariteit) ) maar een positieve impact op het dagelijkse energieverbruik;

▪ Een toename van het lokale gebruik van de auto en van de parkeerbehoeften (minstens op korte termijn, tot de hypothesen van het plan Good Move zijn bereikt) heeft ook een impact op de luchtkwaliteit die overigens negatief wordt beïnvloed door de stedelijke typologie van de wijk;

▪ Een toename van de behoeften aan buurtvoorzieningen;

▪ Een toename van het aantal vrachtwagens dat nodig is voor de bevoorrading van de functies in het gebied.

Er werden enkele aanbevelingen geformuleerd om de keuze te oriënteren naar een programma sch voorkeurscenario dat een zo klein mogelijke impact hee op de onderzochte criteria. Alle aanbevelingen van de analyse van de programmatorische alterna even worden hierna herhaald. Sommige aanbevelingen zijn structurerend voor het onderzochte gebied, andere zijn dat minder of geven mogelijkheden aan voor de wijziging van het BBP.

De aanbevelingen zijn samengevat in de hierna volgende tabellen, maar worden niet opnieuw toegelicht. Meer details vindt men op de voorgaande pagina’s van het punt in Afdeling III. Er dient opgemerkt dat een aantal aanbevelingen zullen worden gewijzigd of gepreciseerd na de analyses van de ruimtelijke alterna even.

Een eerste deel bevat aanbevelingen voor de bestemmingen (programma) en stelt zich tot doel om de programmakeuze in het ontwerp van BBP te oriënteren; een tweede deel bevat aanbevelingen die kunnen of zouden moeten worden opgenomen in de schri elijke voorschri en van het BBP; een derde deel ten slo e bevat

Hoofdstuk III / Afdeling 3 - Effectenbeoordeling / A - programmatorische alterna even / p. 186
CONCLUSIES

aanbevelingen die de keuze oriënteren naar het voorkeurscenario en/of het strategische deel van het BBP om de projecten die op de site zullen worden ontwikkeld te omkaderen. Enkele aanbevelingen hebben een impact op een specifiek criterium, andere op meerdere criteria. Die impact kan posi ef of nega ef zijn. Enkele aanbevelingen druisen tegen elkaar in of hebben een impact op andere aanbevelingen. De impact op de criteria, de specifieke aandachtspunten en de impact op andere aanbevelingen worden aangegeven in een overzichtstabel waarmee we dit punt besluiten.

Aanbevelingen voor de bestemmingen:

RP1

Om de bouwhoogtes in het huizenblok CCN te beperken en er de kwaliteit van de binnenruimten te garanderen, ofwel de grondinname vergroten, wat ten koste gaat van andere criteria (open ruimten, bodem, water, ecologisch netwerk, ...), ofwel de vloeroppervlakten verkleinen die worden toegekend door het programma (minstens de alterna even die de kleinste vloeroppervlakten toestaan voor het huizenblok CCN).

RP2

RP3

RP4

RP5

RP6

RP7

RP8

Streven naar een vermindering van de huidige kantoorvoorraad met 20% à 35 %, d.w.z. dat 200 000 à 246 000 m² kantooroppervlakte wordt behouden.

Voor het huizenblok Galaxy: de kantoren als dusdanig behouden of de kantoren renoveren betekent minder verbruik over een periode van 20 jaar (tussenop e voor wat de impact betre ) dan wanneer er een gemengd programma zou worden ontwikkeld.

Op schaal van het project voldoende woningen voorzien om de vitaliteit te garanderen (minstens 20 %) maar de totale woningproduc e verminderen gezien de specifieke typologie en het aantal woningen van eenzelfde typologie die hoe dan ook in de wijk worden verwacht.

De produc eac viteiten beperken tot de produc e van immateriële goederen of tot ambachtelijke ac viteiten die verenigbaar zijn met de huisves ngs- en kantoorfunc e en die voor hun werking geen zwaar verkeer impliceren.

Deoppervlaktenvoorvoorzieningenen/ofhandelszakenen/ofambachtelijkeac viteitenverminderen zodat deze func es enkel de eerste 2 verdiepingen van de gebouwen beslaan (3 in het huizenblok CCN gezien het poten ële bestaan van 2 benedenverdiepingen).

De handelszaken (en ambachtelijke ac viteiten met verkoop) op de benedenverdiepingen plaatsen en de 2de (en 3de) verdieping indien nodig te gebruiken voor de voorzieningen, met behoud van de ingangen op straatniveau.

Zorgen voor minstens 18 000 m² voorzieningen, het bussta on niet meegerekend, om te voldoen aan de bestaande behoe e aan buurtvoorzieningen en aan de behoe e die wordt geïnduceerd door de vastgoedontwikkeling van het gebied.

Gezien de centrale ligging en de uitstekende bediening van het gebied, bijkomende oppervlakten voor voorzieningen voorzien om te voldoen aan de bovenlokale/gewestelijke behoe en.

RP9

NB: Hier moet nogmaals worden gewezen op de aandachtspunten in verband met de projectdragers en de ontwikkeling van scholen.

RP10

Om de rentabiliteit van de handelszaken te garanderen en een middelma ge bediening door handelszakentebehouden,de vloeroppervlaktenvandehandelszakenbeperkenom zeaf testemmen op de ontwikkelde woonoppervlakten (handelsoppervlakten moeten gelijk zijn aan 4 tot 11 % van de oppervlakten voor de woningen, uitgaande van 2,17 huishoudens per 100m² woningen).

RP11

Om concurren e met de handelspool van de Nieuwstraat te vermijden, de handel vooral afstemmen op de dagelijkse behoe en en buurtwinkels, diensten en horecazaken ontwikkelen in plaats van kledingwinkels en andere grote handelszaken.

RP12 Niet meerdere supermarkten ontwikkelen (~1000 m²) maar de oppervlakten beperken per project.

Hoofdstuk III / Afdeling 3 - Effectenbeoordeling / A - programmatorische alterna even / p. 187
CONCLUSIES

Aanbevelingen voor de redac e van aanvullende voorschri en:

Gediversifieerde woningen ontwikkelen: grote woningen tegen “middelhoge” prijzen (tussen de prijzen/huurprijzen van de sociale woningen die in de wijk al goed vertegenwoordigd zijn en de prijzen/huurprijzen die worden voorgesteld in de nieuwe ontwikkelingen langs het kanaal).

RP13

Omdat de prijzen worden bepaald door de markt is deze aanbeveling aangaande de huurprijzen moeilijk uit te voeren. Dat kan waarschijnlijk enkel via de ontwikkeling van goed omkaderde openbare woningen. De klassieke vastgoedprak jken moeten daarbij goed worden omkaderd om realis sche en duurzame ontwikkelingen te garanderen.

RP14 Toezien op een kwaliteitsvolle uitvoering van de netwerken in de openbare ruimte

RP15 Toezien op een kwaliteitsvolle openbare ruimte voor de ac eve verplaatsingswijzen

RP16 Afwijken van de GSV voor wat het aantal parkeerplaatsen voor de woningen betre : het aantal verminderen tot 0,37 tot 0,64 parkeerplaats per woning.

RP17 Deparkeerplaatsenvoordekantorenenproduc eac viteitennietomkaderen(hetBWLKEtoepassen).

RP18

Comfortabele en beschu e fietsparkeerplaatsen voorzien voor de werknemers van de produc eac viteiten, voorzieningen en handelszaken.

RP19 Ervoor zorgen dat minstens 50% van het fietsparkeeraanbod voor de bezoekers beschut is.

RP20

De grondinname van de ondergrondse parkings verkleinen: door ze af te breken, ter hoogte van de zones die na de verkleining van de grondinname van de gebouwen zijn vrijgekomen, kunnen op de percelen zones met volle grond worden ontwikkeld.

RP21 De ontwikkeling van geïntegreerd bodembeheer in de perimeter aanmoedigen, in samenhang met de gewestelijke strategie Good Soil.

RP22

Zorgen voor de nu ge toepassing en een maximaal geïntegreerd beheer van het water op het perceel (regenwater en opgepompt water als de waterkwaliteit dat toelaat) om zo de algemene lozingen in het rioleringsnet te verminderen.

RP23 Het overtollige water afvoeren naar de Zenne in plaats van naar de riolering, althans voor zover de gezondheidstoestand van het water dat toelaat.

RP24 Ervoor zorgen dat op de percelen beplan ng wordt ontwikkeld. Bij beplan ng op plaat moet het substraat voldoende dik zijn om te kunnen worden gelijkgesteld met volle grond (intensief groendak).

RP25 Voor het huizenblok Proximus: eerder zware renova e aanbevelen dan a raak en wederopbouw.

RP26

RP27

Voor het huizenblok North Galaxy: als wordt gekozen voor gemengde programma e eerder zware renova e aanbevelen (keuze met de kleinste impact) dan a raak en wederopbouw (keuze met de grootste impact).

Omdat voor dergelijke gebouwen grote oppervlakten en structuren nodig zijn, de vier bestaande torens van de huizenblokken North Galaxy en Proximus behouden en indien nodig zware renova e bevorderen met zoveel mogelijk recupera e (hergebruik, recyclage) van de materialen.

RP28 Bij a raak, gezien de kenmerken van de aanwezige gebouwen, demonteren voor zover de reële technische kenmerken van de bestaande gebouwen dat toelaten.

RP29 ‘Horizontale’ gemengdheid (verschillende func es in eenzelfde gebouw) verhoogt de mogelijkheid tot uitwisseling van stromen tussen de func es.

Hoofdstuk III / Afdeling 3 - Effectenbeoordeling / A - programmatorische alterna even / p. 188
CONCLUSIES

Andere aanbevelingen voor de bepaling van de ruimtelijke alterna even, het voorkeurscenario en/of het strategische deel van het BBP:

RP30

Het comfort aan de haltes en de leesbaarheid van de intermodale pool verbeteren, alle bushaltes ‘Noordsta on’ groeperen op één plaats en zorgen voor een behoorlijke bewegwijzering en verplaatsingscomfort tussen deze bushalte en de ingangen van de premetro en het sta on.

RP31 Ervoor zorgen dat de leveringen kunnen plaatsvinden vanaf de VV-Comfort-assen.

RP32

Gebouwen ontwikkelen met variabele hoogtes zodat er op meerdere niveaus groendaken kunnen worden ontwikkeld en niet alleen bovenop de toekoms ge torens (deconnec e tussen de beplan ng op de grond en de beplan ng op de daken).

In de analyse werden verschillende aandachtspunten aangehaald. Dat zijn:

- Eenalgemeneverkleiningvan devloeroppervlakteninhet huizenblok CCNzou degemiddeldehoogtevan de gebouwen verlagen, maar ook de parkeerbehoeften voor de verschillende functies. De negatieve impact van het project zou zo worden beperkt voor tal van thema’s: water, luchtkwaliteit, geluidshinder, afvalstoffen, vrachtverkeer en leveringen, auto’s, bodem, microklimaat, ecologisch netwerk ...

- Hoewel een zekere verhouding woningen nodig is om de leefbaarheid en gemengdheid van de wijk te garanderen, rijst de vraag naar het aantal woningen dat moet worden geproduceerd. Ze hebben immers een grote impact op de mobiliteit en de zeer lawaaierige omgeving van het gebied en de specifieke stedelijke typologie (torengebouwen) hebben waarschijnlijk een negatieve impact op de kwaliteit van de geproduceerde woningen.

- De ontwikkeling van woningen in hoge gebouwen impliceert hoge realisatiekosten en hoge lasten en het risico van ‘verticale sociale segregatie’ om de ontwikkeling van sociale woningen mogelijk te maken.

- De door het programma opgelegde voorzieningen moeten dragers en voldoende menselijke middelen vinden om ze te beheren en te leiden, kwestie van de vele m² ten volle te benutten, temeer omdat de bestudeerde oppervlakten een lagere en een middelbare school omvatten (nodig voor de al bestaande behoeften en de behoeften geïnduceerd door de toekomstige ontwikkelingen) die ongeveer 10 000 m² beslaan terwijl de stedelijke typologie van de site zich er niet echt toe leent.

- Eventuele afbraak-wederopbouwoperaties hebben een grote impact op het CO2-equivalent. Dit aandachtspunt heeft specifiek betrekking op het huizenblok CCN maar niet op de Proximus-toren gezien de bestaande richtlijnen. Ook het MER staaft dit aandachtspunt.

- Vanwege de grote toename van de mobiliteitsstromen (auto’s, voetgangers en fietsers) moet in de ruimtelijkescenario’sspecifiekaandachtwordenbesteedaandeorganisatieervan(contactpunten,delen van de ruimte) en aan hun kwaliteit (voorschriften in de ontwerpfase van het BBP), onder meer voor de zachte verplaatsingswijzen.

De tabel op de volgende pagina’s bevat de mogelijke wisselwerkingen tussen de aanbevelingen onderling en met de verschillende criteria:

Hoofdstuk III / Afdeling 3 - Effectenbeoordeling / A - programmatorische alterna even / p. 189
CONCLUSIES

RUIMTELIJKE ORGANISATIE STEDELIJKE DYNAMIEK MENSELIJKE OMGEVING VERPLAATSINGEN LEEFMILIEU EN KLIMAAT CIRCULARITEIT

ZachtemobiliteitsnetwerkenEcologische netwerken Technische netwerken Structuur van de bebouwde ruimten Structuur van de open ruimtenStedelijk landschap en symbolische richtpuntenBevolkingHuisvesngVoorzieningenenhandelszakenEconomische ac viteiten en transi e Ac vering van de openbare ruimte via debenedenverdiepingenGeluid en trillingen Kwaliteit van de openbare ruimten voor verplaatsing en verblijfLuchtkwaliteitVeiligheidUitvoering van de MWS AceveverplaatsingswijzenOpenbaarvervoerAuto'sVrachtverkeerParkerenIntermodaliteitMobiliteitsdienstenMicroklimaatBodem en ondergrondEcologischnetwerkWaterEnergieCirculariteit van de materialenInkomendematerialenCirculariteit van de stromenModulariteit van de ruimten

RP1 De vloeroppervlakten in het CCN beperken

RP2 65 à 80% van de huidige kantoorvoorraad behouden

RP3 De huidige func es in NG behouden

RP4 Minstens 20% huisves ng maar met maximumlimiet +

RP5 Ac viteiten (immateriële of ambachtelijke goederen)

RP6 Niet meer dan 2 verdiepingen voor de func es

handelszaken/ambachtelijke ac v./voorzieningen

RP7 Handelszaken op de benedenverdieping en voorzieningen op de bovenverdiepingen

RP8 Minstens 18 000 m² voorzieningen

RP9 Bijkomende oppervlakte voor voorzieningen voorzien voor de bovenlokale behoe en

RP10 De handelszaken beperken tot 4-10% van de woningen

RP11 buurtwinkels ontwikkelen

RP12 Geen bijkomende supermarkten creëren

RP13 Gediversifieerde woningen ontwikkelen

RP14 Toezien op een kwaliteitsvolle uitvoering van de netwerken in de openbare ruimte

RP15 Toezien op een kwaliteitsvolle openbare ruimte voor de ac eve verplaatsingswijzen

RP16 De parkeerplaatsen per woning beperken

RP17 De regelgeving behouden voor de parkeerplaatsen voor kantoren +

RP18

Ook comfortabele fietsparkeerplaatsen voorzien voor de werknemers van de produc eac vite, voorzieningen en handelszaken. +

RP19 Minstens 50% van het aanbod aan beschu e fietsparkeerplaatsen moet bestemd zijn voor bezoekers. +

RP20 vermindering van de grondinname van de kelderverdiepingen + + + - + +

RP21 Geïntegreerd bodembeheer + +

RP22 Geïntegreerd waterbeheer + +

RP23 Overtollig water naar de Zenne ipv naar de riool +

RP24 Beplan ng ontwikkelen op de percelen +

RP25 Grondige renova e van Proximus +

RP26 Indien gemengde programma e in NG, grondige renova e aanbevelen +

RP27 De torens NG en P behouden +

RP28 Eerder demonteren dan a reken +

RP29 Horizontale gemengdheid ontwikkelen +

RP30 Het comfort aan de haltes, de intermodaliteit, de leesbaarheid enz. verbeteren + +

RP31 Leveringen voorzien vanaf de VV-wegen +

RP32 Variabele hoogtes van de gebouwen ten behoeve van de beplan ng ~ +

Opmerkingen of impact op andere aanbevelingen

A ankelijk van de uitvoering posi eve of nega eve impact op leefomgeving en klimaat

Posi eve impact op het parkeren: de vraag blij in de ondergrondse parking maar de absolute cijfers worden aanzienlijk verminderd.

Impact op de bebouwde ruimten hangt af van de uitvoering

Hoofdstuk III / Afdeling 3 - Effectenbeoordeling / A - programmatorische alterna even / p. 190
+ + + + + + + + + + + + +
+ + + + + +
+ + + +
+ + +
+ + +
+ + +
+ +
+ + +
+ + +
+
+ +
+
+ +
+ + + + +
+ + + ? ? ? ?
+ -
~
~
+ +
+ + +
+
+
+
+
+ +
+
+
CONCLUSIES

HOOFDSTUK III

Bespreking van de milieueffecten Afdeling3.

EFFECTENBEOORDELING

B/ RUIMTELIJKE ALTERNATIEVEN

Version mai 2022

Hoofdstuk III / Afdeling 3 Effectenbeoordeling / B - ruimtelijke alterna even / p. 191

Inhoud van het MER

HOOFDSTUK I – PRESENTATIE VAN HET ONTWERPPLAN

Afdeling 0. Algemene methode

Afdeling 1. Beschrijving van de strategische doelstellingen van het plan

Afdeling 2. Samenva ng van de inhoud van het plan

HOOFDSTUK II – DIAGNOSE VAN DE BESTAANDE TOESTAND EN IDENTIFICATIE VAN DE UITDAGINGEN

Afdeling 1. Methodologie voor de vaststelling van de bestaande toestand

Afdelingen 2-3-4. Overzicht van de rechtstoestand en van de feitelijke toestand en waarschijnlijke evolu e

HOOFDSTUK III – IDENTIFICATIE VAN DE MILIEUEFFECTEN

Afdeling 1. Methodologie

Afdeling 2. Presenta e van de redelijke alterna even en van de gekozen evalua emethode

Afdeling 3. Effectenbeoordeling

A/ PROGRAMMATORISCHE ALTERNATIEVEN

B/ RUIMTELIJKE ALTERNATIEVEN

C/ ONTWERP VAN BBP

Afdeling 4. Overzicht van specifieke milieueffecten

HOOFDSTUK IV - CONCLUSIE, AANBEVELINGEN EN OPVOLGINGSMAATREGELEN

Afdeling 1. Presenta e van de gekozen oplossingen

Afdeling 2. Aanbevelingen

Afdeling 3. Opvolgingsmaatregelen

/ B - ruimtelijke alterna even / p. 192
Hoofdstuk III / Afdeling 3 Effectenbeoordeling
Hoofdstuk III / Afdeling 3 Effectenbeoordeling / B - ruimtelijke alterna even / p. 193 INHOUDSTAFEL INLEIDING 194 Methodologische nota 195 Herhaling van de alterna even 197 VERGELIJKING VAN DE RUIMTELIJKE ALTERNATIEVEN TEN AANZIEN VAN DE CRITERIA VAN HET MER 202 Zachte mobiliteitsnetwerken 203 Ecologische netwerken 205 Technische netwerken............................................................................................................................................210 Structuur van de bebouwde ruimten 212 Structuur van de open ruimten 219 Stedelijk landschap en symbolische richtpunten 230 Bevolking 240 Huisves ng 241 Voorzieningen en handelszaken 243 Economische ac viteiten en transi e 247 Ac vering van de openbare ruimte via de benedenverdiepingen 248 Geluid en trillingen 261 Kwaliteit van de openbare ruimten voor verplaatsing en verblijf 269 Luchtkwaliteit 272 Veiligheid 276 Uitvoering van de MWS 280 Ac eve verplaatsingswijzen................................................................................................................................... 282 Openbaar vervoer 286 Auto’s 290 Vrachtwagens en leveringen 292 Parkeren 295 Mobiliteitsdiensten en intermodaliteit 296 Microklimaat 299 Bodem 311 Ecologisch netwerk 314 Water ...................................................................................................................................................................... 318 Energie 319 Circulariteit van de materialen / inkomende materialen 322 Circulariteit van de stromen 324 Modulariteit van de ruimten 325 CONCLUSIE 326 Samenva ng van de aanbevelingen en wisselwerkingen tussen de criteria 327 INLEIDING
Hoofdstuk III / Afdeling 3 Effectenbeoordeling / B - ruimtelijke alterna even / p. 194 INLEIDING

METHODOLOGISCHE NOTA

Op basis van de uitdagingen die naar voor kwamen jdens de diagnosefase (zie bijlage III-3-C-a), de studie van de thema sche op es en de itera eve werkzaamheden tussen de verschillende studiebureaus konden drie ruimtelijke alterna even worden uitgewerkt die in detail worden toegelicht in Afdeling 2 van Hoofdstuk III.

De ruimtelijke alterna even worden in detail geanalyseerd ten aanzien van de 30 criteria van het rooster. Voor elk criteria vermelden we:

- elementen uit de diagnose om de analyse te kaderen;

- de elementen die in elk alternatief een invloed hebben op de beoordeling van het criterium;

- en ten slotte de algemene aanbevelingen die we afleiden uit de vergelijking van de 3 alternatieven.

In deze aanbevelingen schuilt geen voorkeur voor een welbepaald alterna ef in vergelijking met de andere, maar bundelen we de posi eve of de te vermijden elementen om zo te komen tot een voorkeurscenario.

De aanbevelingen bij bepaalde criteria druisen soms in tegen andere aanbevelingen bij andere criteria. Welke aanbeveling voorrang krijgt, hangt af van de keuzes die worden gemaakt in de hele perimeter. Het is dus niet al jd mogelijk om een aanbeveling absolute prioriteit te geven want alles hangt af van de keuzes die elders worden gemaakt.

Deze wisselwerkingen tussen criteria zijn opgenomen in de conclusie waarin ook alle aanbevelingen worden samengevat.

We gaan ervan uit dat de 3 alterna even die het studiebureau belast met het BBP hier voorstelt realis sch zijn. De lezer wordt gewezen op het feit dat de alterna even worden voorgesteld in de vorm van een ruimtelijk organisa eschemaennietindevorm vannauwkeurigeplannen.Dekwan ta everamingen (bv.oppervlaktenvan groene ruimten) zijn dus louter ramingen, ze hangen af van de nauwkeurigheidsgraad van de schema’s.

Hoofdstuk III / Afdeling 3 Effectenbeoordeling / B - ruimtelijke alterna even / p. 195
INLEIDING

Ter herinnering: het BBP strekt zich uit over 4 huizenblokken: het Noordsta on, het CCN, het huizenblok Proximus (P) en het huizenblok North Galaxy (NG).

Perimeters

- van het bestaande BBP (volle lijn) en het uitgebreide BBP (s ppellijn) - van het globale gebied met de volledige huizenblokken, hierna ‘het gebied’ genoemd (streepjeslijn)f - van de gemeenten Schaarbeek, Sint-Joost-ten-Node en de Stad Brussel (in het zwart) De ruimtelijke alterna even die werden uitgewerkt door het bureau belast met de wijziging van het BBP hebben betrekking op het geheel van de 4 huizenblokken. De vastgoedprojecten eindigen immers niet aan de louter administra eve grenzen van het BBP en ook de impact (onder meer op de mobiliteit) reikt verder dan deze abstractegrenzen. Het is onze bedoeling om eentotaalbeeld tecreërenvande impactvan deherontwikkeling van het hele gebied waarop de strategische oriënta es van het BBP een rechtstreekse invloed hebben. Er dient opgemerkt dat het BBP dat delen van huizenblokken in de gemeente Sint-Joost-ten-Node dekt in de toekomst kan worden opgeheven, gewijzigd of behouden. Dat zal bepalen of de strategische oriënta es die in het huidige BBP worden voorgesteld al dan niet zullen kunnen worden toegepast.

Voor de duidelijkheid preciseren we de verschillende benamingen die in het rapport veelvuldig worden gebruikt voor de verschillende plaatsen in en rond de perimeter van het BBP.

Hoofdstuk III / Afdeling 3 Effectenbeoordeling / B - ruimtelijke alterna even / p. 196
Noordtunnel
sta on CCN NG P INLEIDING
Benamingendieinhetrapportwordengebruiktvoorde verschillendeplaatsen

HERHALING VAN DE ALTERNATIEVEN

We hernemen hier eerst het huidige BBP dat van toepassing is voor het tenden ële alterna ef en vervolgens de schema’s van de ruimtelijke alterna even die werden uitgewerkt door het bureau 1010. Deze alterna even worden in detail voorgesteld in Afdeling 2.

In de ruimtelijke alterna even gee een a eelding de geschikte volumes weer waarin de bouwwerken kunnen worden geplaatst. De 3D-simula es zijn voorbeelden van volumes die in deze geschikte volumes kunnen worden geplaatst, met naleving van de oppervlakten die worden voorgesteld door het programmatorische voorkeurscenario.

De legende rechts is die van de plannen van het stadsniveau en het sta onsniveau voor de ruimtelijke alterna even.

De onderstaande legende is die van de geschikte volumes voor de ruimtelijke alterna even.

De legende van het huidige BBP staat naast de a eelding op de volgende pagina.

Gemengd gebruik (handel, voorzieningen, produc eve ac viteiten)

Vrijmaken van het landoppervlak

Groene ruimtes in volle grond

Laanbomen

Openbare doorgang op privéterrein

Rooilijn

Grens van de par jlijn

Grens van de BBP

Project van tramlijn

Grens tussen bouwzones op verschillende niveaus

Projec elijn van het gebouw

In- en uitstappen van bussen

Bustrajecten

Bus Hub

Voetgangers Magistrale

Voetgangers ingangen

Bestaande ingangen van het sta on

Voorgestelde ingangen voor het sta on Voorgestelde logis eke ingangen

Gemengd gebied

Gebied van uitrus ng

Kantoorgebied

Woongebied

Bus Hub

Bestaande logis eke ingangen

Fiestparking

Metro toegang van het CCN project

Hoofdstuk III / Afdeling 3 Effectenbeoordeling / B - ruimtelijke alterna even / p. 197
INLEIDING INLEIDING INLEIDING INLEIDING

TENDENTIEEL ALTERNATIEF

De referen esitua e wordt beperkt door de eisen van de bestaande BBP’s die de algemene plaatsingsprincipes uit het Manha anplan voorstellen:

Gebied van verbindings-/verkeerswegen

Zone voor laagbouw (totale H: 13 m, 30% bijkomende groene ruimten)

Zone voor gebouwen met middelma ge hoogte (maximumhoogte: 23 m, 1 500 m² max. vloeroppervlakte per niveau)

Zone voor hoogbouw (totale H: 102 m, 1 500 m² max. vloeroppervlakte per niveau)

CCN (maximumhoogte: 35 m)

Hoofdstuk III / Afdeling 3 Effectenbeoordeling / B - ruimtelijke alterna even / p. 198
INLEIDING
Hoofdstuk III / Afdeling 3 Effectenbeoordeling / B - ruimtelijke alterna even / p. 199
INLEIDING
ALTERNATIEF 1
Plan van het stadsniveau (1010au) Plan van het sta onsniveau (1010au) Geschikte volumes (1010au)
N N INLEIDING
3D-simula e (1010au)

ALTERNATIEF 2

Plan van het stadsniveau (1010au)

Plan van het sta onsniveau (1010au)

Hoofdstuk III / Afdeling 3 Effectenbeoordeling / B - ruimtelijke alterna even / p. 200
INLEIDING
N
N Geschikte volumes (1010au) 3D-simula e (1010au)
Hoofdstuk III / Afdeling 3 Effectenbeoordeling / B - ruimtelijke alterna even / p. 201
INLEIDING
ALTERNATIEF 3
Plan van het stadsniveau (1010au)
N N
Plan van het sta onsniveau (1010au)
Geschikte volumes (1010au) 3D-simula e (1010au)

VERGELIJKING VAN DE RUIMTELIJKE

ALTERNATIEVEN TEN AANZIEN VAN DE CRITERIAVANHETMER

Hoofdstuk III / Afdeling 3 Effectenbeoordeling / B - ruimtelijke alterna even / p. 202

ZACHTE MOBILITEITSNETWERKEN

ELEMENTEN UIT DE DIAGNOSE

Ter herinnering: dit criterium behandelt de verbindingen met de omliggende netwerken. De elementen die specifiek zijn voor de perimeter zijn opgenomen in het thema “Verplaatsingen”.

Via de Mul modale Wegenspecialisa e hee het plan Good Move statuten bepaald voor elke verplaatsingswijze en voor elke openbare weg in het Gewest. Voor de voetgangers werden 7 prioritaire trajecten uitgetekend die vertrekken in het centrum (De Brouckèreplein). Het BBP ligt aan zo’n voetgangersboulevard die het centrum verbindt met de site Thurn en Taxis (via de toekoms ge Suzan Danielbrug).

In het plan Good Move werden gewestelijke fietsroutes en het fiets-GEN opgenomen. In het BBP loopt rocade A (oranje) langs de Albert II-laan en draait dan volledig rond de Vij oek via het Jubelpark. Route SZ (Zenne) doorkruist Brussel van noord naar zuid. Ze volgt voor een deel het historische tracé van de Zenne en loopt langs het BBP via de Aarschotstraat. De Albert II-laan is bovendien, net als alle wegen met een poten eel van meer dan 2500 gebruikers per dag, opgenomen in het fiets-GEN.

Voetgangersboulevards van het plan Good Move (links) en GFR (rechts)

Binnen het BBP is het Noordsta on dé pool bij uitstek die verplaatsingen genereert. Gekoppeld aan de massale aanwezigheid van kantoren genereert het voetgangersstromen in de hele omliggende wijk.

TENDENTIEEL ALTERNATIEF

De verbinding met het sta on vanaf het Bolivarplein wordt niet omkaderd door het BBP.

Er bestaat geen minimumeis inzake het behoud of de ontwikkeling van de beplan ng van de assen die naar de mobiliteitshub leiden, aansluitend bij de doelstellingen van de netwerken.

Voorzieningen kunnen worden geplaatst in alle bebouwde gebieden van het BBP.

De binnenterreinen van de huizenblokken North Galaxy en Proximus moeten verplicht worden bebouwd (13 m hoogte) en kunnen dus niet worden gebruikt voor het zachte netwerk. De hoogte van het CCN kan variëren (0 tot 35m) dus hier kan mogelijk een openbare ruimte worden ingericht.

Het bestaande BBP sluit niet aan bij de huidige visie van de gewestelijke zachte mobiliteitsnetwerken aangezien het het voetgangersverkeer boven de zone voor laagbouw plaatst. De voetgangers kunnen van de ene toren naar de andere lopen op een kunstma ge grond in de hoogte, zodat het stadsniveau vrij blij voor het gemotoriseerd verkeer.

Hoofdstuk III / Afdeling 3 Effectenbeoordeling / B - ruimtelijke alterna even / p. 203
RUIMTELIJKE ORGANISATIE RUIMTELIJKE ORGANISATIE

VERGELIJKING VAN DE ALTERNATIEVEN

Alterna ef 1

De verbinding met het sta on vanaf het Bolivarplein situeert zich nog steeds op sta onsniveau (zoals in de bestaande toestand): de gebruikers moeten de openbare ruimte die wordt ontwikkeld op de 1ste verdieping van het CCN oversteken om naar de sta onshal te gaan. De voetgangersboulevard vanaf Bolivar wijkt af van het voetgangerstraject dat doorloopt tot aan het sta on en loopt eerder rond het huizenblok CCN.

De beplan ng voldoet niet noodzakelijk aan de uitdaging om inrich ngen te creëren die beantwoorden aan de doelstellingen van de netwerken, met name naar de verplaatsingspolen.

Door de posi e van de voorzieningen zijn de verplaatsingen geconcentreerd op de Bolivar-as, wat aansluit bij de voetgangersboulevard op deze plaats.

De binnenterreinen van de huizenblokken North Galaxy en Proximus zijn niet verbonden met de zone buiten deze huizenblokken en kunnen dus niet worden gebruikt voor het zachte netwerk.

Alterna ef 2

In tegenstelling tot de andere alterna even is de verbinding met het sta on vanaf het Bolivar-voorplein even makkelijk (of nog makkelijker) op het stadsniveau als op het sta onsniveau. Bovendien blijven de voetgangers op de voetgangersboulevard zodat ze comfortabel en gelijkvloers de verschillende antennes van de mobiliteitshub kunnen bereiken: sta on, metro, fietsparking, bus.

De centrale groene ruimte op het Bolivarplein (die doorloopt op het voorplein) begeleidt de voetgangersboulevard. Ze biedt dus een antwoord op de uitdaging om inrich ngen te creëren die beantwoorden aan de doelstellingen van de netwerken, met name naar de verplaatsingspolen.

Door de posi e van de voorzieningen zijn de verplaatsingen geconcentreerd in de Kleine Vooruitgangstraat, wat aansluit bij de zachte mobiliteitsnetwerken.

DeruimtenopdebinnenterreinenvandehuizenblokkenNorthGalaxyenProximuswordendoorbrokenenkunnen dus worden gebruikt voor het zachte netwerk. De overdekte doorgangen en de manier waarop de doorsteken zijn georganiseerd (al dan niet in een uithoek) zijn echter aandachtspunten op het vlak van veiligheid maar ook duidelijkheid.

De aanwezigheid van symmetrische torens aan weerszijden van het Bolivar-voorplein legt het accent op de axiale kant van de toegang naar het sta on vanaf de voetgangersboulevard op het Bolivarplein.

Alterna ef 3

De verbinding met het sta on vanaf het Bolivarplein situeert zich op sta onsniveau (zoals in de bestaande toestand): de gebruikers moeten de openbare ruimte die wordt ontwikkeld op de 1ste verdieping van het CCN oversteken omnaar de sta onshal te gaan.

De groene ruimte op het Noordplein (buiten het BBP) en de groene lineaire elementen in de binnenstraat en op Bolivar komen in contact met de zachte mobiliteitsnetwerken (voetgangersboulevard, tram, bus). Ze beantwoorden dus aan de uitdaging om inrich ngen te creëren die beantwoorden aan de doelstellingen van de netwerken, met name naar de verplaatsingspolen. De voetgangersboulevard vanaf Bolivar vermijdt echter de vergroende binnenstraat. Ze wijkt af van het voetgangerstraject dat zou doorlopen naar het sta on en loopt eerder rond het huizenblok CCN.

Door de posi e van de voorzieningen zijn de verplaatsingen geconcentreerd op de Solvay-as, wat aansluit bij de zachte mobiliteitsnetwerken, maar minder evident dan in de andere alterna even (geen voetgangersboulevard, geen fiets-PLUS).

De binnenterreinen van de huizenblokken North Galaxy en Proximus zijn doorlopend gemaakt en kunnen dus worden gebruikt voor het zachte mobiliteitsnet.

AANBEVELINGEN

De aanbevelingen verbonden aan de criteria “Structuur van de open ruimten” (in dit thema Ruimtelijke organisa e) en “Kwaliteit van de openbare ruimte voor verplaatsing en verblijf” (in het thema Menselijke omgeving) zijn eveneens ten gunste van het criterium “zachte mobiliteitsnetwerken”.

Hoofdstuk III / Afdeling 3 Effectenbeoordeling / B - ruimtelijke alterna even / p. 204
RUIMTELIJKE ORGANISATIE RUIMTELIJKE ORGANISATIE

ECOLOGISCHE NETWERKEN

ELEMENTEN UIT DE DIAGNOSE

Ter herinnering: alleen de grote elementen van de netwerken (met bovenlokale invloed) worden hier beoogd. De elementen van het ecologische netwerk en de elementen in verband met het water en de bodem binnen de perimeter worden meer in detail behandeld in het thema “Leefmilieu en klimaat”.

Elementen van het groene netwerk zijn, behalve het centrale deel van de Albert II-laan dat in de perimeter ligt, het Maximiliaanpark en de Espace Gaucheret in de omliggende wijk.

Op het vlak van groene con nuïteiten zijn een aantal markante elementen aanwezig, met name:

- het centrale deel van de Albert II-laan, - de spoorwegtaluds tussen het Noordstation en de Koninginnelaan (Thomas) die zowel aan de kant van de Aarschotstraat als aan de kant van de Vooruitgangstraat zijn vergroend, - het Maximiliaanpark dat zich uitstrekt langs de Helihavenlaan.

Op de oost-westassen is het groen schaarser (enkele bomen langs de openbare weg en een met gras begroeide berm op de Solvay-as) en biedt het dus weinig verbinding met en tussen de noord-zuidcon nuïteiten.

Wat het blauwe en het regennetwerk betre , zijn er in of in de buurt van het studiegebied geen inrich ngen voor geïntegreerd regenwaterbeheer. Blauwe elementen zijn het nabije Kanaal en de Zenne die nu nog ondergronds loopt. Ook hier biedt de oost-westas geen enkele verbinding met deze noord-zuidelijke elementen.

Voorhetbruinenetwerkvormendeovervloedigeverhardingvandewijkenhetintensegebruikvandeondergrond voor parkings en technische en mobiliteitsnetwerken barrières voor de ecologische con nuïteiten en staan ze het creëren van een 'doorlopende' levende bodem in de weg.

TENDENTIEEL ALTERNATIEF

Voor het groene netwerk voorziet het SVC1 "Citroën - Vergote" in de heraanleg van het Maximiliaanpark en de Simon Bolivarlaan tussen de Willebroekkaai en de Antwerpsesteenweg. Het deel van de Bolivar-as tussen de Antwerpsesteenweg en het Noordsta on maakt geen deel uit van het project, maar de studie zou ook een visie (mobiliteitsinten e) moeten voorstellen voor de heraanleg van de laan tot aan het Noordsta on. De voorontwerpschetsen die tot nu toe werden meegedeeld, reiken slechts tot aan de Albert II-laan (dus buiten de perimeter).

Het BBP 19 bevat geen specifieke voorschri en voor de beplan ng van de “zone voor het verkeer”, maar laat die wel toe (“zone voorbehouden aan het mechanische verkeer, het voetgangersverkeer en de beplan ngen”).

Bovendien moet volgens het BBP 30% groene ruimte worden ontwikkeld in de zones voor laagbouw van de huizenblokken Proximus en North Galaxy: een laag teelaarde van minstens 50cm voorzien van grasperken en struikgewas, in de vorm van sierbeplan ngen

Wat het blauwe netwerk betre , zal bij de heraanleg van het Maximiliaanpark de Zenne worden opengelegd. In de logica van het Beeldkwaliteitsplan (voor de assen die uitgeven op het kanaal wordt de inrich ng van een bovengronds regennetwerk aanbevolen zodat het water naar het kanaal kan stromen) zou het voornoemde project op Bolivar ook wadi’s omva en. Overigens zal het RWZI dat zal worden ontwikkeld ter hoogte van het Medical Center het behandelde water naar deze waterloop sturen, maar de verbinding tussen beide ligt nog niet vast.

Het BBP bevat geen voorschri en over water, noch ter hoogte van de bouwwerken, noch ter hoogte van de openbare ruimten.

Op het perceel van het Medical Center zal een waterzuiveringssta on worden ontwikkeld. Het bijgevoegde plan plaatst het tunnelproject en het RWZI-project boven elkaar. De rode zone duidt de grondinname van het metroproject in de ondergrond aan en voorziet een volledig verharde oppervlakte zodat vergroening onmogelijk is27. De vergroeningsmogelijkheden zijn dus vrij beperkt.

Het RWZI-project, met een leveringszone en een weinig ac eve gevel aan de kant van de Kwatrechtstraat zal bovendien niet noodzakelijk een kwaliteitsvolle interface met de openbare ruimte bevorderen. Afgaande op het

27 MER van het project voor de uitbreiding van het hoogperformant openbaarvervoersnet naar noorden van Brussel: bouwwerken in het Noordsta on, Stratec, februari 2019

Hoofdstuk III / Afdeling 3 Effectenbeoordeling / B - ruimtelijke alterna even / p. 205
RUIMTELIJKE ORGANISATIE RUIMTELIJKE ORGANISATIE

plan van het project is niet duidelijk of een voetganger de site zal kunnen doorkruisen (het is niet duidelijk welke delen toegankelijk zijn of niet en op sommige beelden zijn omheiningen te zien, op andere niet).

Volgens het RWZI-project zal (een deel) van het behandelde water aan de oppervlakte worden geloosd en naar de heraangelegde Bolivarlaan worden gevoerd waar wadi’s zouden worden voorzien. Meer nauwkeurige plannen of informa e zijn in dit stadium niet beschikbaar.

CombinaevanhetplanvanhetprojectgebiedMetroNoord(MER Stratec,februari2019)enhetontwerpvanhetRWZI-gebouw (ontvangenvandegemeenteSchaarbeek,maart2022).

Hoofdstuk III / Afdeling 3 Effectenbeoordeling / B - ruimtelijke alterna even / p. 206
RUIMTELIJKE ORGANISATIE RUIMTELIJKE ORGANISATIE

Voorgestelde groene ruimten en bomenrijen (bovenaan) en organisa e van de bebouwing (onderaan) in de alterna even 1 (links), 2 (midden) en 3 (rechts) – 1010au

Alterna ef 1

De enige ruimte die een nieuw element in het groene netwerk kan vormen is voorzien op het perceel van het Medical Center. Zoals we al zeiden bij de analyse van andere criteria is de lee aarheid van een groene ruimte op deze plaats hoogst onzeker (grondinname van het RWZI-project in deze zone, veiligheidsmaatregelen vanwege het tunnelproject voor Metro Noord, zie tenden eel alterna ef en ontwikkeling van de loopbrug tussen het huizenblok CCN en het Medical Center in dit alterna ef).

Het alterna ef spreekt zich bovendien niet uit over de beplan ng van de daken.

De groene verbindingen worden versterkt via de assen Koolbranders en Solvay:

- de bomenrijen op de Solvay-as kunnen de groene ruimte van Albert II verbinden met de groene ruimteaanhetMedical Centerenietsverderopmetde spoorwegtaluds.Delokalisatielangs deopenbare weg impliceert echter ook de aanwezigheid van nutsleidingen zodat er mogelijk geen ruimten in volle grond kunnen worden ontwikkeld.

- meer beplanting op de as Koolbranders is misschien niet mogelijk door de combinatie van de ontwikkeling van de tram en de aanwezigheid van de vele nutsleidingen op deze plaats (zie Technische netwerken).

Het alterna ef spreekt zich niet uit over elementen van of verbindingen met het blauwe netwerk.

Alterna ef 2

Behalve de (mogelijk kleine) ruimte die is voorzien op de site van het Medical Center vormen twee andere groene ruimten, in volle grond, nieuwe elementen van het groene netwerk: één op het Solvayplein en het andere, meer

Hoofdstuk III / Afdeling 3 Effectenbeoordeling / B - ruimtelijke alterna even / p. 207
DE ALTERNATIEVEN
VERGELIJKING VAN
RUIMTELIJKE ORGANISATIE RUIMTELIJKE ORGANISATIE

uitgestrekt, op het Bolivarplein. Deze ruimten zijn vrij goed verbonden met elkaar en met de bestaande en geplande ruimte (heraanleg van de Bolivarlaan tot aan het kanaal).

Het alterna ef spreekt zich bovendien niet uit over de beplan ng van de daken.

De verbindingen worden versterkt via de Bolivar-as tussen Albert II en het sta on. De bestaande beplan ng op de Solvay-as verdwijnt echter en wordt vervangen door een bomenrij die zeer beperkt lijkt.

Het alterna ef spreekt zich niet uit over elementen van of verbindingen met het blauwe netwerk.

Alterna ef 3

Naast de ruimte die is voorzien op de site van het Medical Center vormt nog een andere groene ruimte een nieuw element van het groene netwerk, namelijk op het Noordplein (deels in volle grond). De verschillende bestaande en voorgestelde ruimten zijn weinig verbonden met elkaar.

Het alterna ef spreekt zich bovendien niet uit over de beplan ng van de daken.

Wat de verbindingen betre , wordt de beplan ng op het Noordplein met het Medical Center verbonden door de beplan ng van de binnenstraat. De zuid-westverbindingen ontbreken echter (de bestaande beplan ng op de assenSolvayenKoolbranderswordtverwijderdendieop Bolivarmogelijk verminderd) endebeplan ngisbeperkt tot de boomspiegels die doorgaans van mindere kwaliteit zijn. Bovendien zal het nieuwe gebouw op de site van hetvoormaligeMedical Centerdeverbinding met despoorwegtaluds belemmeren. Ditalterna efis dushetminst guns g wat de verbindingen betre

Het alterna ef spreekt zich niet uit over elementen van of verbindingen met het blauwe netwerk.

AANBEVELINGEN

Voor het blauwe netwerk zouden de voorschri en van het BBP de visie van het Beeldkwaliteitsplan moeten integreren (voor de assen die uitgeven op het kanaal wordt de aanleg van een bovengronds regennetwerk aanbevolen dat het water naar het kanaal leidt), in samenhang met de inten es die werden ontwikkeld in het project voor de beplante heraanleg van het westelijke deel van de Bolivar-as (SVC1).

Gezien het weinige groen in het gebied en de ontwikkeling die is voorzien in de directe omgeving, zou geen mogelijkheid onbenut mogen worden gelaten om via beplan ng het groene netwerk aan te vullen. De ruimten op het Bolivarplein (in samenhang met het project voor de heraanleg van de Bolivarlaan) en de hoeken van de huizenblokkenNorthGalaxyenProximus,evenalsdebomenrijenopdeSolvay-as,kunnenzichdaartoelenen.Deze ruimten bevorderen ook de oost-westverbindingen.

Daarnaast kan ook de binnenstraat enigszins worden vergroend voor zover deze opera e wordt aangepast aan de context(an ciperenopdeproblemenmetslagschaduw,wind,substraat,netheid,vandalisme...)zodateennoordzuidverbinding,tussen Bolivar endesitevanhetMedical Center,totstand kan wordengebracht.Eenandereop e is om het noordelijke deel van de kleine Vooruitgangstraat te vergroenen (maar deze configura e moet worden bekeken in het licht van de ruimtebehoe en van het interna onale bussta on).

TerhoogtevanhetBolivar-voorplein kandehalveondergrond wordenbenutvoorhetgravenvanvoldoendegrote plantpu en.

De bebouwing van de site van het Medical Center mag de groene verbinding met de spoorwegtaluds niet verhinderen. In die zin kunnen voorschri en worden opgemaakt (intensief groendak, groengevel…).

In het algemeen kunnen de voorschri en van het BBP verder gaan dan de GSV en intensieve of semi-intensieve groendaken eisen op de lage gebouwen die niet worden ingericht (terrassen, technische ruimten). Dit bevordert zowel de biodiversiteit als het waterbeheer en is ook posi ef voor het landschap.

Op de site van het Medical Center zijn de mogelijkheden om een kwaliteitsvolle groene ruimte aan te leggen voor zover we nu weten vrij beperkt, maar een vergroend traject naar een infrastructuur (voorziening, skatepark, ..., verenigbaar met de lokalisa e tussen tram en trein) zou een piste kunnen zijn om van deze ruimte een levendige ruimte te maken. Voor een intrinsiek aantrekkelijke groene ruimte lijken de mogelijkheden hier te beperkt.

Op aanzienlijk meer beplan ng in de as Koolbranders kunnen we waarschijnlijk niet rekenen. Deze as valt niet alleen buiten de perimeter van het BBP, de beschikbare breedte zal vanwege de toekoms ge tramterminus en de intense beze ng van de ondergrond door nutsleidingen (talrijke kabels a oms g van het elektrische substa on Markt) onvoldoende zijn.

Hoofdstuk III / Afdeling 3 Effectenbeoordeling / B - ruimtelijke alterna even / p. 208
RUIMTELIJKE ORGANISATIE RUIMTELIJKE ORGANISATIE

Het totale aantal bomen in de perimeter wordt bij voorkeur niet verminderd. (schema sch gezien omva en alle alterna even in totaal minder bomen dan in de huidige toestand en er is niets dat op het tegendeel wijst). De kruinen van de laanbomen moeten overal voldoende dicht bij elkaar liggen om de con nuïteit te garanderen. Ook de verschillende plantenlagen moeten aanwezig zijn om de verbindingen de nodige kwaliteit te bieden.

Hoofdstuk III / Afdeling 3 Effectenbeoordeling / B - ruimtelijke alterna even / p. 209
RUIMTELIJKE ORGANISATIE RUIMTELIJKE ORGANISATIE

TECHNISCHE NETWERKEN

ELEMENTEN UIT DE DIAGNOSE

DeondergrondwordtindeperimetervanhetBBPintensiefgebruikt.Naastdevelebouwwerken-parkings,metroen premetrotunnels - wordt het gebied van het BBP doorkruist door tal van nutsleidingen.

Op de site wordt hoofdzakelijk huishoudelijk afvalwater geproduceerd dat in de riolering wordt geloosd. Omdat het openbare rioleringsnet unitair is, wordt bij hevige regenval minder afvalwater behandeld en zijn de lozingen een bron van emissies van vervuilende stoffen - met name organische - voor de Zenne.

Door de aanwezigheid van ondergrondse bouwwerken in de Noordwijk, onder meer parkings, moet het water vaak permanent worden opgepompt en ook dat water komt in de riolering terecht.

In de Bolivarlaan en de Albert II-laan liggen deze leidingen en kabels (water, elektriciteit en telecom) in technische galerijen ter hoogte van de voetpaden.

Het kabelnetwerk is bijzonder dicht in de buurt van het substa on ("Markt" genaamd) op de hoek van de Koolbrandersstraat en de Vooruitgangstraat (buiten de perimeter van het BBP). Dit substa on is door verschillende ondergrondse verbindingen verbonden met het substa on Helihaven. De verschillende netwerken zijn weergegeven op de pagina’s 8 en 9 van de diagnose.

Behalve de voormelde technische galerijen is de plaatsinname van de gebouwen in de kelderverdiepingen vaak groterdandeplaatsinnamevandebovengrondsebouwwerken.Indeondergrondworden dus somsopenruimten gebouwd, dat is het geval voor de ondergrondse parkeerverdiepingen van het CCN (onder de Vooruitgangstraat), het Proximus-gebouw en het North Galaxy-gebouw (parking onder de beplante achteruitbouwstroken). De premetrotunnels lopen onder het Noordplein en het Solvayplein:

Hoofdstuk III / Afdeling 3 Effectenbeoordeling / B - ruimtelijke alterna even / p. 210
RUIMTELIJKE ORGANISATIE RUIMTELIJKE ORGANISATIE
Grondinname in de kelderverdiepingen (-1) in het blauw en bovengrondse bebouwde ruimten gearceerd. Bron: BRAT op basis van 1010

TENDENTIEEL ALTERNATIEF

Door de toenemende verstedelijking en de vele renova eprojecten die zijn gepland in de Noordwijk zal het grijze netwerk voortdurend evolueren.

Volgens het BBP mogen technische uitrus ngen (rioleringen, goten, cabines, pompsta ons, diverse leidingen) worden aangelegd in een zone voor het verkeer.

VERGELIJKING VAN DE ALTERNATIEVEN

Er dient opgemerkt dat in de 3 alterna even de bestaande volle grond op de Solvay-as niet wordt gevrijwaard.

Alterna ef 1

Dit alterna ef biedt het voordeel dat de hoeken van de huizenblokken North Galaxy en Proximus, waarvan de ondergrond niet is bebouwd, worden benut. De versterking van de beplan ng op de as Koolbranders kan echter in het gedrang komen. Enerzijds zal de toekoms ge tramterminus veel plaats innemen op een al vrij beperkte wegbreedte en anderzijds lopen er in de ondergrond tal van nutsleidingen (onder meer a oms g van het elektrische substa on Markt).

In de zone die het alterna ef op de Solvay-as voorstelt voor het planten van bomenrijen lopen waterleidingen. Bij de exacte plaatsbepaling voor de plantpu en moet hiermee rekening worden gehouden.

De groene ruimten in volle grond zijn in dit alterna ef vrij beperkt, maar dragen er in zekere mate toe bij dat er minder regenwater in het rioleringsnet terechtkomt.

Alterna ef 2

Dit alterna ef mikt vooral op het Bolivarplein, een van de enige plaatsen waar groene ruimten in volle grond zouden kunnen worden ontwikkeld.

Het voorziet ook groen op het Solvayplein, maar daar is mogelijk minder volle grond beschikbaar vanwege de doortocht van de premetro in de ondergrond.

De halve ondergrondse verdieping van het huizenblok CCN (de huidige hub) kan op het nieuwe Bolivar-voorplein een mogelijkheid bieden: als het peil daadwerkelijk wordt hersteld, kunnen er plantpu en worden voorzien met een behoorlijke substraatdikte.

De groene ruimten in volle grond dragen ertoe bij dat er minder regenwater in de riolering terechtkomt.

Alterna ef 3

Omdevoorgesteldebeplan ngterealiseren(ophetNoordpleinenindebinnenstraat)moetenerruimtenworden benut waar geen volle grond beschikbaar is (ondergrondse parkings en premetro). De technische uitvoerbaarheid van plantpu en (en hun afme ngen) moet nader worden onderzocht om hun ontwikkeling te garanderen.

De groene ruimten in volle grond zijn in dit alterna ef vrij beperkt en dragen er slechts beperkt toe bij dat er minder regenwater in de riolering terechtkomt.

Wat het beoogde gebouw op het perceel van het Medical Center betre , is het mogelijk dat het stadsgasnetwerk moet worden uitgebreid aangezien dit deel volgens de plannen van Sibelga niet wordt voorzien van gas.

AANBEVELINGEN

De groene ruimten in volle grond dragen ertoe bij dat er minder regenwater in het rioleringsnet terechtkomt. Dit verhoogt de capaciteit om aan te sluiten bij de toekoms ge projecten. Omdat in het gebied de ondergrond intensief wordt gebruikt, moet overal waar mogelijk volle grond worden benut: op het Bolivarplein, op de hoeken van de huizenblokken North Galaxy en Proximus en in de bestaande beplante ruimten op de Solvay-as.

Los van de ruimtelijke alterna even moeten alle maatregelen voor het bufferen of laten verdampen van regenwater worden aangemoedigd zoals groendaken, poreuze gevels en grondbedekkingen ...

Een beter beheer van het bij bemaling opgepompte water kan eveneens worden opgenomen in de voorschri en van het BBP: hergebruik in de gebouwen (toilet, schoonmaak) en/of afvoer naar de Zenne in samenhang met de heraanleg van de Bolivarlaan, het project Max aan de Zenne en het RWZI-project van de tunnel Metro Noord. Het gekozen gebruik hangt af van de hoeveelheid en de kwaliteit van dit water en van de gezondheid van de bodem in het kader van de toekoms ge projecten. Deze aspecten worden ook aangehaald in het criterium “Water” van het thema “Leefmilieu en klimaat”.

Hoofdstuk III / Afdeling 3 Effectenbeoordeling / B - ruimtelijke alterna even / p. 211
R UIMTELIJKE ORGANISATIE RUIMTELIJKE ORGANISATIE RUIMTELIJKE ORGANISATIE

STRUCTUUR VAN DE BEBOUWDE RUIMTEN

ELEMENTEN UIT DE DIAGNOSE

Het Manha anplan hee de Noordwijk in de jaren 50 volledig hertekend. Volgens dit plan moest het oorspronkelijke stadsweefsel volledig worden afgebroken en werden de WTC-torens gebouwd. Het oorspronkelijke plan voorzag 8 torens die met elkaar werden verbonden zodat het voetgangersverkeer in de hoogte kon plaatsvinden, gescheiden van de wegen voor het gemotoriseerd verkeer op grondniveau. De massiviteit van de betonnen sokkels moest contrasteren met de ver caliteit van de glazen torens.

Aangezien de hoge verkeersruimten nooit werden gerealiseerd, zijn de opake en dichte sokkels die als 'kelderverdiepingen' werden opgevat gesloten benedenverdiepingen geworden, wat geenszins ten goede komt aan de kwaliteit van de interac es tussen de openbare ruimte en de gebouwen, noch aan de gezelligheid van de openbare ruimten.

Het spoorweggebied van het Noordsta on vormt een barrière tussen 2 typologieën van gebouwd weefsel: in het oosten het oude en dichte residen eel weefsel uit de 19de eeuw, met kleine bouwprofielen georganiseerd in huizenblokken, en in het westen de grote kantoorgebouwen.

E - huizenblok 71 (Pleiadetorens - Proximus): twee hoofdtorens van 102m. Beide torens zijn opgenomen in de inventaris van het bouwkundig erfgoed van het Brussels Hoofdstedelijk Gewest. Het geheel wordt verbonden door lagere volumes. De gevels zijn gordijnmuren opgetrokken uit glas.

I - huizenblok 68 (North Galaxy - Ministerie van Financiën): twee hoofdtorens van 102m. Het geheel wordt verbonden door lagere volumes. De gevels zijn gordijnmuren opgetrokken uit glas. De bebouwing is op dezelfde manier georganiseerd als in het huizenblok 71.

F - huizenblok 72 (CCN): Het Communica ecentrum Noord (CCN) is een groot gebouw met bouwprofiel GLV+11. Aan de straatkant bestaat de benedenverdieping uit een halfondergrondse verdieping die bestemd is voor de bussen. Een aanvraag voor een a raakvergunning werd ingediend In 2021.

G-huizenblok72(Noordsta on):HetNoordsta on,eenmodernis schgebouwmetinvloedenvanhetclassicisme, werd opgetrokken tussen 1938 en 1956. Het is opgenomen in de inventaris van het bouwkundig erfgoed van het Brussels Hoofdstedelijk Gewest. In het zuiden staat een vierkante toren met 10 kantoorverdiepingen. De perrons liggen hoger dan de omliggende straten. Het sta onsgebouw wordt gemarkeerd door het CCN en door de overdekte verdieping op sta onsniveau, aan de uitgang van de sta onshal.

De aangrenzende huizenblokken D (WTC III) en J (WTC I-II) omva en de 3 andere torens van het Manha anplan, eveneens met een hoogte van ongeveer 102m. De WTC III-toren nadert zijn levenseinde en er bestaan bouwplannen om eindelijk de 2de toren (WTC IV) te bouwen in dit huizenblok. De WTC-torens I en II werden ontmanteld en zijn nu een werf (ZIN-project).

Het aangrenzende huizenblok K (Moëbius) bevat 2 torens van 81 à 98 m en het huizenblok L (Ellipse building) één toren van ongeveer 86 m

Het aangrenzende huizenblok A (Boreal BNP) telt tot 14 verdiepingen, huizenblok B (Febelfin, Hendrik Conscience) 12 verdiepingen en huizenblok C (Ferraris) 15 verdiepingen. Het aangrenzende huizenblok M (Residen e Noord—Amelinckx) bevat een woontoren van 26 verdiepingen, goed voor een hoogte van +- 82 m.

Het Medical Center (N) stond tegen de spoorweg en werd recent afgebroken in het kader van de werken voor metro 3. De huizenblokken in de Aarschotstraat (H) vertonen een oud en dicht residen eel weefsel met kleine bouwprofielen.

Hoofdstuk III / Afdeling 3 Effectenbeoordeling / B - ruimtelijke alterna even / p. 212
RUIMTELIJKE ORGANISATIE RUIMTELIJKE ORGANISATIE

TENDENTIEEL ALTERNATIEF

De Noordwijk is met verschillende grote bouw- en renova eprojecten volop in muta e. In de nota voor de herontwikkeling van het huizenblok Proximus wordt voorzien om de torens te verhogen maar de grondinname te verkleinen.

De grondinname van de toekoms ge gebouwen wordt omkaderd door de eisen voor groene ruimten in het GBP (voorschri 0.2): voor projecten met een grondoppervlakte > 5000m² moeten groene ruimten worden aangelegd die minstens 10% van die grondoppervlakte beslaan, daarin begrepen één of meer groene ruimten uit één stuk met een grondoppervlakte van 500 m² elk.

De volumetrie wordt hoofdzakelijk omkaderd door het GBP:

volgens de logica van het Manhattanplan voor de huizenblokken Proximus en North Galaxy: zone voor laagbouw 13 m (vast), zone voor middelhoge gebouwen maximaal 23 m en torens van 102 m (vast). - maximumhoogte voor de zone van het CCN 35m, maar ook door de GSV: naleving van de goede plaatselijke aanleg, voldoende afstand van de terreingrenzen, ... met name de bezonning van de aanpalende terreinen moet worden gevrijwaard. Volgens het bestuur urban.brussels is de GSV absoluut niet bedoeld voor de reglementering van hoogbouw: hoge gebouwen zijn uitzonderingen die doorgaans worden omkaderd door BBP’s of RPA’s en nooit door de GSV. Het bestuur wenst zich hier daarom niet over uit te spreken.

VERGELIJKING VAN DE ALTERNATIEVEN

De 3 alterna even verhogen de vloeroppervlakte van de perimeter in vergelijking met de bestaande toestand terwijl de globale grondinname in het gebied wordt verkleind (zie programma e). De gebouwen zijn bijgevolg hoger dan in de bestaande toestand. De hoogbouw krijgt in de 3 alterna even dezelfde hoogte, zowel in de huizenblokkenNorthGalaxyenProximusalsinhethuizenblokCCN(waardegebouwenhogerwordendanvandaag het geval is). In de 3 ruimtelijke alterna even waarin het programma werd geïntegreerd zijn enkele van de ontwikkelde ‘lage’ gebouwen in het huizenblok CCN zo verdeeld, met een zodanige bouwdichtheid, dat ze grotere bouwdieptes krijgen (tot 58m), wat de natuurlijke lich nval of modulariteit van de binnenruimten verhindert ... De visie voor het Territorium Noord stelt zich onder meer tot doel om voor de nieuwe gebouwen in de wijk het principe van de dubbele skyline te respecteren: zowel op lage schaal ten opzichte van de openbare ruimte als op hoge schaal ten opzichte van het bredere stedelijke silhouet wordt er gebouwd. De hoge schaal die kenmerkend isvoordeNoordwijkwordtinde3alterna evenglobaalgeziengoedgevrijwaard,maardeplaatsvandegebouwen varieert (zie verder). Elk alterna ef omvat een lage schaal in bepaalde openbare ruimten, maar in andere niet. Het feit dat de lage volumes zijn voorbehouden voor voorzieningen en handelszaken, vergemakkelijkt in alle openbare ruimten echter de ontwikkeling van de menselijke dimensie op de lage schaal.

Alterna ef 1

Inditalterna efzijndetorensvanhetManha anplan (in de huizenblokkenProximus enNorthGalaxy) nietbinnen hetgeschiktevolumegeplaatst(endusooknietinde3D-simula es).Ditbrengteenwijzigingteweeginhethuidige lokale landschap, maar niet in het kenmerkende stedelijke landschap van de wijk (hoge gebouwen).

De hoogte van de gebouwen is in de huizenblokken Proximus en North Galaxy beperkt tot 93 m (d.i. 9 m lager dan dehuidigemaximumhoogte)eninhethuizenblok CCNtot102m (zelfdehoogtealsdehuidigetorensNorthGalaxy en Proximus). In de west-oostelijke as staan op de Albert II-as dus lagere gebouwen (de WTC-torens aan de ene kant en de verlaagde huizenblokken North Galaxy en Proximus aan de andere kant), terwijl in de buurt van het sta on de hoogtes weer groter worden (toren van ~50 m en ‘gebouw van ~30 m).

Dit alterna ef biedt hoogbouw op het hele Noordplein zodat de aanwezigheid van een lage schaal er niet gegarandeerd is. Hetzelfde geldt voor het Bolivar-voorplein. Omgekeerd voorzien de opgelegde bouwprofielen aan weerszijden van het Bolivarplein geen hoge schaal die meer zou aansluiten bij de breedte van het plein. De ontwikkeling van hoogbouw aan de twee kanten van het zuidelijke deel van de kleine vooruitgangstraat impliceert inkijk,maar doorde achteruitbouwstrokenten opzichtevanderooilijnbedraagt deafstandtussendeze gevels volgens de 3D-simula e ongeveer 27 m. Eenzelfde risico zien we voor het noordelijke deel van de kleine Vooruitgangsstraat, maar de 3D-simula e toont aan dat het kan worden vermeden door de hoogbouw af te wisselen.

Hoofdstuk III / Afdeling 3 Effectenbeoordeling / B - ruimtelijke alterna even / p. 213
-
RUIMTELIJKE ORGANISATIE RUIMTELIJKE ORGANISATIE
Hoofdstuk III / Afdeling 3 Effectenbeoordeling / B - ruimtelijke alterna even / p. 214
A B A B N RUIMTELIJKE ORGANISATIE RUIMTELIJKE ORGANISATIE
3D-simula e, een voorbeeld van de mogelijke bouwvolumes volgens de voorschri en van alterna ef 1 (1010au)
Hoofdstuk III / Afdeling 3 Effectenbeoordeling / B - ruimtelijke alterna even / p. 215 Alterna ef 2
RUIMTELIJKE ORGANISATIE A B A B N RUIMTELIJKE ORGANISATIE
3D-simula e, een voorbeeld van de mogelijke bouwvolumes volgens de voorschri en van alterna ef 2 (1010au)

In dit alterna ef staan de 2 torens van het Manha anplan (één in elk huizenblok) binnen de geschikte volumes (dus in de 3D-simula es). 2 torens kunnen niet worden behouden, wat in zekere zin het huidige lokale landschap zal veranderen. Het kenmerkende stedelijke landschap van de wijk (hoogbouw) blij echter intact.

De hoogte van de gebouwen is in de huizenblokken Proximus en North Galaxy beperkt tot 105 m (d.i. 3 m hoger dan de huidige maximumhoogte) en in het huizenblok CCN tot 102 m (de huidige maximumhoogte van de torens North Galaxy en Proximus). In de westoostelijke as zien we dus een nagenoeg vaste hoogte (~102-105m) van de gebouwen in de Bolivar-as die lager wordt in de rich ng van de toren (van ~50 m) en het ‘sta onsgebouw (van ~30 m).

Dit alterna ef biedt hoogbouw op het hele Bolivar-voorplein (102 m) zodat de aanwezigheid van een lage schaal er niet gegarandeerd is (beves gd door de 3D-simula e). Op het Solvayplein en het Bolivarplein zijn de hoge en de lage delen min of meer in evenwicht.

Het Noordplein is in dit alterna ef geen openbare ruimte meer.

Organisaevandebebouwingin alternaef2–1010au

De ontwikkeling van hoogbouw aan de twee kanten van het zuidelijke deel van de kleine vooruitgangstraat impliceert inkijk,maar doorde achteruitbouwstrokenten opzichtevanderooilijnbedraagt deafstandtussendeze gevels volgens de 3D-simula e ongeveer 28 m.

Alterna ef 3

In dit alterna ef kunnen de 4 torens van het Manha anplein worden behouden (dat is het geval in de 3D-simula es) binnen de voorgestelde geschikte volumes. Het kenmerkende hoge stedelijke landschap van de Noordwijk kanwordenbehoudenevenalshethuidigelokale landschapdat is verbonden aan deze 4 torens.

De hoogte van de gebouwen is in de huizenblokken Proximus en North Galaxy beperkt tot 110 m (d.i. 8 m hoger dan de huidige maximumhoogte) en in het huizenblok CCN tot 87 m. In de west-oostelijke as nemen de hoogtes van de gebouwen tussen de Albert II-laan en het sta on geleidelijk aan af (Proximus/North Galaxy ~110m, CCN ~87 m, sta onstoren ~50 m en ‘sta onsgebouw ~30 m).

Dit alterna ef biedt hoogbouw op het hele Bolivarplein zodat de aanwezigheid van een lage schaal er niet gegarandeerd is. Op het Noordplein zijn de schaalvaria es min of meer in evenwicht. Het Solvayplein is in dit alterna ef geen openbare ruimte meer.

Organisaevandebebouwingin alternaef3–1010au

Omdat de hoeken van de huizenblokken North Galaxy en Proximus met de kleine Vooruitgangstraat niet bebouwbaar zijn, wordt een afstand tussen de hoogbouw in het huizenblok CCN en deze huizenblokken van minstens 33 m behouden.

Hoofdstuk III / Afdeling 3 Effectenbeoordeling / B - ruimtelijke alterna even / p. 216
RUIMTELIJKE ORGANISATIE
RUIMTELIJKE ORGANISATIE
Hoofdstuk III / Afdeling 3 Effectenbeoordeling / B - ruimtelijke alterna even / p. 217
A B A B N RUIMTELIJKE ORGANISATIE RUIMTELIJKE ORGANISATIE
3D-simula e, een voorbeeld van de mogelijke bouwvolumes volgens de voorschri en van alterna ef 3 (1010au)

AANBEVELINGEN

Het is belangrijk dat de kenmerkende hoge schaal van de Noordwijk wordt behouden. In de 3 alterna even is dat het geval. Op de openbare pleinen (Bolivarplein, Bolivar-voorplein en Noordplein en/of Solvayplein) moet een evenwicht worden gegarandeerd tussen de hoge schaal en de lage schaal.

In de hoge schaal moeten de bouwprofielen kunnen worden gevarieerd om muureffecten vanuit verre standpunten te vermijden.

Bij de ontwikkeling van de hoogbouw moet rekening worden gehouden met deze van de aangrenzende huizenblokken om het inkijkprobleem te vermijden.

De bouwdieptes moeten een natuurlijke lich nval garanderen op alle verdiepingen, ook op de lagere, voor alle ‘leefruimten’ (behalve in gangen, technische ruimte, enz.).

Om het sta on en zijn toren te herwaarderen mogen de gebouwen in het huizenblok CCN niet te hoog zijn om eenverple erendeffectophetsta onendetorentevermijden.Dehoogtesmoetenvanwestnaaroostgeleidelijk aan worden verlaagd tot aan het sta on dat vrij laag ligt ten opzichte van de rest van de wijk.

Hoofdstuk III / Afdeling 3 Effectenbeoordeling / B - ruimtelijke alterna even / p. 218
RUIMTELIJKE ORGANISATIE RUIMTELIJKE ORGANISATIE

STRUCTUUR VAN DE OPEN RUIMTEN

ELEMENTEN UIT DE DIAGNOSE

De Noordwijk wordt gekenmerkt door een aanzienlijk aantal open ruimten, zeker in vergelijking met de Brabantwijk aan de andere kant van de rails. Deze open ruimten hoe talrijk ook, zijn door hun organisa e, hun func e, hun vorm en/of hun verhoudingen echter weinig prak sch of slechts van ‘residuele’ aard. Ze werden van in het begin ontworpen ten behoeve van het gemotoriseerd verkeer (de ac eve verplaatsingswijzen moesten worden gesitueerd in de zone voor laagbouw, maar dat werd nooit uitgevoerd) en nooit gecoördineerd en homogeen opgevat.

Alle open ruimten in de wijk staan vooral in het teken van mobiliteit:

- De centrale figuur van de Manhattanwijk is het kruis gevormd door de assen Albert II (noord-zuid) en Bolivar (oost-west) die nog worden gedomineerd door het gemotoriseerde verkeer.

- RondhetCCN-gebouwliggendriepleinen(hetNoordplein(76x110cm)inhetzuiden,hetSolvayplein (73x110m) in het noorden en het Bolivarplein (60x100m) in het westen. Het zijn essentiële scharnierpunten tussen de noord-zuid- en de noord-westrelaties van het stadsweefsel. De pleinen vormen een interface die globaal niet erg kwaliteitsvol is. De openbare ruimte wordt hoofdzakelijk ingenomen door het verkeer van bussen (en taxi's).

Hoofdstuk III / Afdeling 3 Effectenbeoordeling / B - ruimtelijke alterna even / p. 219
RUIMTELIJKE ORGANISATIE
Alb ert II Bolivarpl ein Pl. Solvayplein Noordplein Pl. Bolivarplein RUIMTELIJKE ORGANISATIE
Open ruimten in de wijk (BRAT, op basis van Urbis en de gegevens van het CIBG)

Satellietbeeld (links) en vogelvluchtbeeld (rechts) van het Noordplein (boven), het Solvayplein (midden) en het Bolivarplein (onder) – Brugis en Google

Hoofdstuk III / Afdeling 3 Effectenbeoordeling / B - ruimtelijke alterna even / p. 220
RUIMTELIJKE ORGANISATIE RUIMTELIJKE ORGANISATIE

4 langwerpige open ruimten ‘verdelen” het gebied en vormen de verbinding tussen deze pleinen: de as Solvay - breed (~35m) en beplant (middenberm met laanbomen), de asKoolbranders - smal (~20m) en beplant (enkele bomen en klimplanten op een omheining), de kleine Vooruitgangstraat - zelfde breedte (17-22m) en volledig verhard en de binnenstraat - met een breedte van 17 m en gelijkend op eenoverdektetechnischegang.Dezeassenstaanvooralindienstvandemobiliteit(auto’s,bussen,taxi’s, internationale bussen, kiss and ride, fietsen).

De doorgangen onder de sporen in de Kwatrechtstraat en op het Noodplein zijn ‘open” ruimten die de Noordwijk en de Brabantwijk, door de spoorweg van elkaar gescheiden, met elkaar verbinden. Deze doorgangen hebben een lengte van ongeveer 90 m en een breedte van 28 m (Kwatrechttunnel) en 40 m (Noordtunnel). Ze zijn vooral bestemd voor het autoverkeer en weinig aantrekkelijk voor voetgangers, met name vanwege de schaarse verlichting, het gebrek aan netheid, het lawaai en de geur.

Buiten het geografische gebied liggen het Maximiliaanpark en de Espace Gaucheret, beplante open ruimten met aanzienlijke breedtes.

TENDENTIEEL ALTERNATIEF

De Noordwijk is met verschillende grote bouw- en renova eprojecten volop in muta e. De eerste regels van de Gedeelde visie voor het Territorium Noord omva en doelstellingen verbonden aan het structurerende karakter van de structurerende assen, met name minder verstoring door de grote stedelijke barrières in het stadsweefsel (vooral noord-zuid), met versterking van de oost-westrela es, met het doel om de rela es tussen de verschillende wijken te verbeteren.

In de nota voor de ontwikkeling van het huizenblok Proximus wordt voorgesteld om de torens te verhogen als de grondinname wordt verkleind (70% in plaats van 81%). Zo kunnen open ruimten en visuele doorbraken doorheen de huizenblokken worden gecreëerd.

Voorschri 0.2 van het GBP bepaalt dat minstens 10% van de grondoppervlakte van de projecten moet bestaan uit groene ruimten.

Het BBP nr. 19 voorziet in grote verkeerszones met een open ruimte voor het sta on, ter hoogte van het Simon Bolivarplein. Het plan bepaalt ook de zone die is voorbehouden voor de toegangspla ormen van het CCN naar het Solvayplein. Het BBP legt overigens geen groene zone op, maar er moet worden voorzien in 30% groene ruimten in de laagbouwzone van de huizenblokken North Galaxy en Proximus, hetzij op de grond, hetzij boven de grond. Dezebeplante oppervlakte kan metmaximaal2/3van de totale oppervlakteper gebouw wordenverminderdvoor de aanleg van toegangen tot de gebouwen en garages.

VERGELIJKING VAN DE ALTERNATIEVEN

Het programma is voor de 3 alterna even iden ek (zie programma e): grotere vloeroppervlakte en kleinere grondinname van de huizenblokken North Galaxy, Proximus en CCN. Bijgevolg wordt het aantal open ruimten in het gebied verhoogd.

Bovendien stellen de 3 alterna even de ontwikkeling voor van nieuwe open ruimten: - eenopening in het huizenblokCCN terhoogtevande hoofdingang vanhetstation omeenvoorplein te vormen dat het station verbindt met het Bolivarplein;

- open ruimten in de huizenblokken Proximus en North Galaxy, mogelijk gemaakt door de herontwikkeling van de structuur van de bebouwing. De vorm van deze open ruimten verschilt naargelang het alternatief (zie verder). De alternatieven beschrijven geen intenties/ambities voor deze ruimten (openbaar of privégebruik, beplanting of niet ...). Ze worden in ditopzicht dus als gelijkwaardig beschouwd maar in het kader van het BBP moeten deze aspecten wel worden gepreciseerd.

Watdebeplan ngvandeopenruimtenbetre ,sprekende alterna evenzichnietuitoverkenmerkenofkwaliteit. Wekunnenons inditstadium dusgeenoordeelvormenovereendaadwerkelijkeverbetering vandeleefomgeving en de benadrukking van de menselijke schaal van de open ruimten dankzij beplan ng. Op de Solvay-as bijvoorbeeld (alterna ef 1) en het Bolivarplein (alterna even 2 en 3) wordt de beplan ng grafisch gezien verminderd in vergelijking met de bestaande toestand. Geen enkel alterna ef lijkt bovendien de volle grond te vrijwaren en de bestaande bomenrij op de Solvay-as.

Een aandachtspunt: het Noordplein, gelegen in Sint-Joost-ten-Node (buiten het BBP) is volgens het GBP volledig bebouwbaar en geen openbare eigendom; deze open ruimte wordt dus niet ‘beschermd’ tegen verstedelijking zodat de toekomst ervan als open ruimte niet gegarandeerd is.

Hoofdstuk III / Afdeling 3 Effectenbeoordeling / B - ruimtelijke alterna even / p. 221 -
-
RUIMTELIJKE ORGANISATIE RUIMTELIJKE ORGANISATIE

De3alterna evenverschilleninenkeleopzichten:dedimensioneringendedirecteomgevingvandebinnenstraat, de morfologie van het nieuwe Bolivar-voorplein, de behandeling van het Solvayplein en het Noordplein, de organisa e op het Bolivarplein en de organisa e van het perceel van het Medical Center.

Alterna ef 1

De inrich ng van een verkeersvrij terras op het Solvayplein beantwoordt niet aan de uitdagingen die werden geïden ficeerd voor de wijk: het terras draagt niet bij tot de verwezenlijking van het netwerk van open ruimten aangezien het de facto niet met de omgevende openbare ruimte op het stadsniveau verbonden is en het garandeert geen menselijke schaal in de openbareruimtendieaanvankelijk waren bestemd voorhetautoverkeer. Bovendien houdt de inrich ng van een dergelijke ruimte een risico in door het gebrek aan ac vering en door de onveiligheid in de context van een sta on. Dat risico hangt sterk af van de func es die aan dit terras worden toegekend, de kwaliteit van de inrich ng ervan en het comfort aangezien de basiscontext niet voordelig is: vanwege de mogelijke hoogbouw (93 m boven het niveau van de grondplaat) zal er waarschijnlijk weinig of geen bezonning zijn en zal het terras waarschijnlijk onderhevig zijn aan de windeffecten. Bovendien is deze grondplaat naar de as Solvay gericht, een comfortweg voor het vrachtverkeer in de MWS, en ligt ze nagenoeg even hoog als de spoorweg, met alle geluidshinder van dien. Het overdekte deel van het Solvayplein (gelegen op stadsniveau) wordt voor 2/3 gebruikt voor het bussta on. In het overige derde bevindt zich de ingang van de parking zodat er weinig ruimte overblij voor andere func es/gebruiken.

Het Noordplein (gelegen buiten het BBP) ondergaat minder impact van de aanwezigheid van het bussta on, maar wordt deels bebouwd. Door de L-vorm en de doortocht van de voetgangersboulevard is dit plein georganiseerd als een ‘doorgangsplein’. De gebouwen die het omringen hebben geen oplopende bouwprofielen en zijn tot 102 m hoog, wat een verple erend effect kan genereren gezien de groo e van de open ruimte.

Het Bolivarplein wordt nauwelijks gewijzigd ten opzichte van de bestaande toestand: het behoudt de keerzone met busterminus die heel wat openbare ruimte inpalmt. De grootste verandering ligt in het verdwijnen van de bomen die er vandaag staan en belangrijk zijn voor de menselijke schaal van dit plein en in de vermindering van de bouwhoogtes aan de randen.

3D-simula e: Bolivarplein (links), grondplaat op het Solvayplein (midden) en deels bebouwd Noordplein dat wordt gebruikt voor het bussta on (rechts) – 1010 au

De volumes van het CCN staan ter hoogte van de binnenstraat, die overdekt blij (technische gang) nog steeds terugwijkend ten opzichte van het sta on. In een visie van een bovenlokaal netwerk van deopen ruimten moedigt deze configura e geenszins aan tot het oversteken van het plein vanaf het sta on om rich ng Rogiersplein en Solvayplein te gaan.

DestraatopdegrondplaatmaaktgeenverbindingmethetRogierpleinmaarwelmethetSolvaypleindateveneens op de grondplaat is gelegen. Een loopbrug verbindt het Solvayplein met de groene ruimte op de site van het Medical Center (a ankelijk van de aanwezige beperkingen zoals het zuiveringssta on, de technische uitgangen

Hoofdstuk III / Afdeling 3 Effectenbeoordeling / B - ruimtelijke alterna even / p. 222
RUIMTELIJKE ORGANISATIE H:99m H:24m H:39m H:93m busstaon H:102m busst aon RUIMTELIJKE ORGANISATIE

vandemetroendeloopbrug).Dezeruimteiseerdersmal(15,5m)maardeomliggendebebouwderuimtensteken slechts 24 m boven de grondplaat uit voor het sta on en 30 m voor het gebouw dat wordt ontwikkeld in het huizenblok CCN. Alleen op de hoek met het Noordplein hee een hoog gebouw een hoogte tot 93 m boven de grondplaat.

Het centrale voorplein hee een breedte van 35m en wordt omgeven door gebouwen die 93 m boven de grondplaat uitsteken. Dit kan een verple erend effect genereren gezien de groo e van de open ruimte.

H:93m

Doorsnedemetzichtopdegrondplaat (binnenstraat)vanuithetnoorden(links)enhet zuiden(rechts)–1010au

H:93m

B:35m

Doorsnedemetzichtopdegrondplaat (voorplein)vanuithetwesten–1010au

De breedte van de kleine Vooruitgangstraat blij ongewijzigd, maar de gebouwen in deze straat zijn veel hoger dan in de bestaande toestand. Het alterna ef stelt een systeem van ‘oplopende bouwprofielen’ voor om de hoogte van de gebouwen aan de straatkant te beperken: aan de kant van het CCN is het bouwprofiel 21 m hoog maar krijgt er na 3 m terugwijking 24m bij, en na nog eens 3m terugwijking 57m, om een totale hoogte te bereiken van 102 m. Deze straat ligt dus zeer ‘laag’ in vergelijking met de bestaande toestand.

De Solvay-as staat hoofdzakelijk in dienst van de mobiliteit, wat aansluit bij de MWS (Auto Comfort en VV Comfort). Langs de bebouwing op deze as ligt een lineaire groene ruimte die de bestaande ruimte opdemiddenberm vervangt. Bijgebrekaanmeer details in dit stadium, wordt de toestand gelijkwaardig met de bestaande toestand geacht.

Een nieuwe groene ruimte wordt ontwikkeld op de site van het Medical Center en biedt het poten eel van een kwaliteitsvolle gebruiksplek. Deze ruimte kan echter niet erg groot zijn gezien de nodige infrastructuren voor de tunnel Metro Noord (zuiveringssta on, rookafvoeren, zone voor de voertuigen van de hulpdiensten ...) en de aanwezigheid van de loopbrug die de site verbindt met de grondplaat op het Solvayplein. Door de organisa e van de func es dreigt deze ruimte dus beperkt te blijven tot een restruimte.

Doorsnedeenbovenzichtopdekleine Vooruitgangstraatenoplopende omliggendebouwprofielen(zichtvanuithet zuiden)–1010au

De Koolbrandersstraat (buiten het BBP) zal vooral worden gebruikt voor de mobiliteit (tramterminus). De mogelijkheidomdezestraataanzienlijktebeplanten(bomenrijenenbeplan nglangsdegebouwen)kanbijdragen tot de menselijke schaal. Dit moet echter nader worden onderzocht aangezien in deze straat heel wat nutsleidingen lopen in de ondergrond (uitgang van het ondersta on “Markt”).

De binnenterreinen van de huizenblokken North Galaxy en Proximus zijn niet verbonden met de zone buiten deze huizenblokken en kunnen dus niet worden gebruikt als openbare open ruimten.

Hoofdstuk III / Afdeling 3 Effectenbeoordeling / B - ruimtelijke alterna even / p. 223
B:15,5m
RUIMTELIJKE ORGANISATIE
H:30m H:24m
RUIMTELIJKE ORGANISATIE

Alterna ef 2

Het Solvayplein blij volledig vrij en ondergaat geen impact van de mobiliteit. We kunnen het dus beschouwen als een nieuwe openbare open ruimte met een poten ële kwaliteit (die moet worden gegarandeerd door de voorschri en van het BBP). De gebouwen rond het plein hebben verschillende bouwprofielen (hoge schaal 81 m, zoals de recht tegenover liggende Amelinckx-toren, en lage schaal 21m). Het feit dat het CCN-gebouw terugwijkend staat in het zuiden is iets guns ger voor de bezonning van het plein. Op dit plein wordt een groene ruimte ontwikkeld28

Het Noordplein (buiten het BBP) is volledig bebouwd. De benedenverdieping wordt ingenomen door het bussta on.Daarbovenwordteengebouwopgetrokken.Debinnenstraatwordtzoverlengdtotaandetrappen/het toegangspla orm naar het sta on. Hierdoor verdwijnt een open ruimte.

Het Bolivarplein wordt veel rus ger zonder kerende bussen. Bovendien wordt er een grote groene ruimte aangelegd. De gebouwen in de directe omgeving hebben gevarieerde hoogtes, van 96 m langs het Koning Albert II-laan tot 25 m in de rich ng van het CCN. Door de aanwezigheid van een hoge en een lage schaal op de omtrek, en door de ontwikkeling van een groene ruimte, krijgt het plein meer dan waarschijnlijk een menselijke schaal, ondanks de indrukwekkende afme ngen (iden ek met de bestaande toestand).

Bolivarplein (links), bevrijd Solvayplein (midden) en volledig bebouwd Noordplein (rechts) – 1010 au

De terugwijking van het CCN ten opzichte van het Noordsta on wordt verbreed29 tot 20 m en de binnenstraat is nietmeer overdekt. In een visie van een bovenlokaal netwerk van de open ruimten moedigt deze configura e aan tot het oversteken van het plein rich ng Solvayplein en Rogiersplein. Aan de ene kant staat het sta on (maximumhoogte van het sta onsgebouw 30 m), aan de andere kant gebouwen met een hoogte van 21m aan de uiteinden (pleinen) en tot 102 m in het midden (Bolivar-voorplein). Het verdwijnen van de plaat van het sta onsniveau is voor veel criteria guns g, maar de sta onsuitgangen op dit niveau moeten func oneel zijn. Er moeten dus inrich ngen en ver cale gangen worden voorzien vanaf de binnenstraat.

Het centrale voorplein is breed (40m) en omgeven door hoge gebouwen (102m). Dit kan een verple erend effect genereren gezien de groo e van de open ruimte. De aanwezigheid van bomen kan ondanks deze monumentale afme ngen weer een menselijke schaal creëren.

28 De kwaliteit daarvan (vergroeningsmogelijkheden) hangt onder meer af van de ondergrond. Onder het plein loopt immers de tunnel van de premetro.

29 Een aandachtspunt is de lee aarheid van de verbreding gezien het structurele net. De bestaande funderingen waarop de lasten worden overgedragen bevinden zich mogelijk op aanzienlijke afstand van de nieuwe rooilijn.

Hoofdstuk III / Afdeling 3 Effectenbeoordeling / B - ruimtelijke alterna even / p. 224
RUIMTELIJKE ORGANISATIE H:96m H:15m H:81m H:21m H:21m H:105m busstaon RUIMTELIJKE ORGANISATIE

Doorsnede en bovenzicht van de binnenstraat vanaf het zuiden (twee a eeldingen links) en op het Bolivar-voorplein (twee a eeldingen rechts) - 1010au

De kleine Vooruitgangstraat wordt verbreed (20m) maar krijgt enkele hoge gebouwen (veel hoger dan in de bestaande toestand). Het alterna ef stelt een systeem van ‘oplopende bouwprofielen’ voor om de hoogte van de gebouwen aan de straatkant, aan de kant van het CCN te beperken (het bouwprofiel is 21m hoog maar krijgt er na 8m terugwijking 84m bij om uiteindelijk een totale hoogte van 105m te bereiken). Aan de kant van Proximus zijn de gebouwen een ental meter hoog, behalve twee hoge gebouwen van 87 m.

De Solvay-as staat hoofdzakelijk in dienst van de mobiliteit, wat aansluit bij de MWS (Auto Comfort en VV Comfort). Ze hee geen bermen of bomen meer, wat onguns g is voor de menselijke schaal op deze as waar de gebouwen toch tot 105m hoog zijn.

Een nieuwe groene ruimte wordt ontwikkeld op de site van het Medical Center en biedt het poten eel van een kwaliteitsvolle gebruiksplek. Deze ruimte kan echter niet erg groot zijn gezien de nodige infrastructuren voor de tunnel Metro Noord (zuiveringssta on, rookafvoeren, zone voor de voertuigen van de hulpdiensten ...).

Doorsnedeenbovenzichtopdekleine

Vooruitgangstraatenoplopendeomliggende bouwprofielen(zichtvanuithetzuiden)–1010au

De Koolbrandersstraat (buiten het BBP) zal vooral worden gebruikt voor de mobiliteit (tramterminus). Er staan gebouwen van verschillende hoogtes (24, 87 en 105 m) met een terugwijking van 9m. De gebouwen zijn dus iets hoger dan in de huidige toestand (7m vervolgens 27 of 103m met een terugwijking van 9m.

De binnenterreinen van de huizenblokken North Galaxy en Proximus worden doorbroken en zijn ‘open’ (niet omgevendoorhogegebouwen)enkunnenpoten eelwordenbenutalsopenbareopenruimte.Dedoorgangdoor de gebouwen en de manier waarop de doorsteken zijn georganiseerd (al dan niet in een uithoek) zijn echter aandachtspunten op het vlak van veiligheid maar ook kwaliteit van de ruimten. Er moet ook rekening worden gehouden met de duidelijkheid van de doorsteken van huizenblokken en het daadwerkelijke gebruik ervan.

In de de-simula e van dit alterna ef zien we goed georiënteerde pla e daken in de buurt van het Noordplein die een mooi poten eel bieden voor de inrich ng van kwaliteitsvolle intensieve groendaken.

Hoofdstuk III / Afdeling 3 Effectenbeoordeling / B - ruimtelijke alterna even / p. 225
L:
L:40m H:102m H:21m RUIMTELIJKE ORGANISATIE
H: 102 m H: 21 m H: 30 m
20 m
RUIMTELIJKE ORGANISATIE

Alterna ef 3

Het Solvayplein is volledig bebouwd. Deze configura e kan bijdragen tot de ac vering van de Kwatrech unnel, maar een open ruimte verdwijnt in de wijk.

Het Noordplein (buiten het BBP) is bevrijd van het bussta on dat er in de huidige toestand is geplaatst (een deel wordt nog wel ingenomen door deze func e). Voor het overige is het niet bebouwd en kan er dus een kwaliteitsvolle ruimte worden ontwikkeld. De kwaliteit daarvan (onder meer de vergroeningsmogelijkheden) hangt af van de ondergrond. Onder het plein loopt immers de tunnel van de premetro.

Het Bolivarplein blij nagenoeg ongewijzigd (hoogte van de aangrenzende gebouwen 110 m v 103 m) maar wordt veel rus ger aangezien er geen bussen meer keren en de busterminus elders wordt geplaatst.

Bolivarplein (links), volledig bebouwd Solvayplein (midden) en bevrijd Noordplein (rechts) – 1010 au

De terugwijking van het CCN ten opzichte van het Noordsta on wordt verbreed30 tot 20 m en de binnenstraat is niet meer bedekt met een plaat maar ligt onder loopbruggen. In een visie van een bovenlokaal netwerk van de open ruimten moedigt deze configura e aan om naar het perceel van het Medical Center en naar het Noordplein en het Rogiersplein te lopen. Aan de ene kant ligt het sta on (maximumhoogte van het sta onsgebouw 30m) en aan de andere kant gebouwen met een hoogte van 21m, 33 m of 87 m. Dankzij de gevarieerde hoogtes wordt een menselijke schaal behouden die wordt versterkt door de aanwezigheid van bomen (dit lijkt mogelijk gezien de ondergrond vrij is).

Het centrale voorplein wordt ontwikkeld op een grondplaat, in het verlengde van de sta onshal op het sta onsniveau. De breedte op stadsniveau is beperkt zodat het kan worden ontwikkeld als ‘doorgangsruimte’ die ook toegang verleent tot het openbaar vervoer. Op het sta onsniveau is een brede ruimte voorzien die in de hoogte ligt en dus niet is verbonden met de rest van de openbare ruimte. Deze ruimte wordt omgeven door gebouwen met bouwprofielen die variëren van 27 tot 81 m.

30 Een aandachtspunt is de lee aarheid van de verbreding gezien het structurele net. De bestaande funderingen waarop de lasten worden overgedragen bevinden zich mogelijk op aanzienlijke afstand van de nieuwe rooilijn.

Hoofdstuk III / Afdeling 3 Effectenbeoordeling / B - ruimtelijke alterna even / p. 226
RUIMTELIJKE ORGANISATIE
H:110 H:21m H:84m
RUIMTELIJKE ORGANISATIE
H:21mH:21m bussta on

Doorsnede en bovenzicht van de binnenstraat vanaf het zuiden (twee a eeldingen links) en op het Bolivar-voorplein (twee a eeldingen rechts) – 1010au

De kleine Vooruitgangstraat wordt verbreed aan de kant van Proximus (20m) maar versmald aan de kant van North Galaxy (17m). Er staan gebouwen van variabele hoogtes (21m, 31m en 87m).

De Solvay-as staat hoofdzakelijk in dienst van de mobiliteit, wat aansluit bij de MWS (Auto Comfort en VV Comfort). De groene ruimte verdwijnt, wat onguns g is voor de leefomgeving en de menselijke schaal, temeer omdat er aan de straat gebouwen staan met een hoogte tot 110m.

Op de site van het Medical Center wordt een gebouw opgetrokken dat iets hoger is dan de bestaande gebouwen daar recht tegenover (21 vs 19m). Dit gebouw beperkt de mogelijkheden om een echte open gebruiksplek te ontwikkelen gezien de infrastructuren die nodig zijn voor het project van de tunnel Metro Noord (zuiveringssta on, rookafvoeren, zone voor de voertuigen van de hulpdiensten ...).

De Koolbrandersstraat (buiten het BBP) zal vooral worden gebruikt voor de mobiliteit (tramterminus en doortocht van bussen). Er staan gebouwen van verschillende hoogtes (20 en 106 m) met een terugwijking van 9m. De huidige toestand (7m en vervolgens 27 of 103m met een terugwijking van 9m) blij dus nagenoeg ongewijzigd.

De binnenterreinen van de huizenblokken North Galaxy en Proximus worden geopend en kunnen eventueel worden benut als openbare ruimte. Het alterna ef spreekt zich hier niet over uit.

Hoofdstuk III / Afdeling 3 Effectenbeoordeling / B - ruimtelijke alterna even / p. 227
H:87m H:33m H:21m H:27m H:81m L: 20 m
RUIMT ELIJKE ORGANISATIE
L: 50 m
RUIMTELIJKE ORGANISATIE
Doorsnedeenbovenzichtvandekleine Vooruitgangstraat(zichtvanuithetzuiden)–1010au

AANBEVELINGEN

In het algemeen, gezien de drukke mobiliteit in de wijk en in de poten eel (her)ontwikkelde open ruimten, wordt aanbevolen om kwaliteitsvolle inrich ngen te voorzien en de open ruimten te ac veren om te vermijden dat ze ‘restruimten’ worden zoals het geval is in de huidige toestand. De stedelijke context en de lokalisa e van het Solvayplein zijn de minst guns ge in de wijk: de bezonning wordt gezien de bouwdichtheid die is bepaald in het programma (opgelegde hoogbouw) in alle gevallen beperkt en om dezelfde redenen zullen meer dan waarschijnlijk windeffecten worden gegenereerd. Bij een lineaire ontwikkeling van het bussta on zal het plein bovendien een sterke impact ondergaan van het busverkeer. Ook de ingang van de ondergrondse parking beperkt op dit plein de beschikbare ruimte op het stadsniveau. Vanwege de nabijheid van de Kwatrech unnel en de minder ‘aantrekkelijke’ lokalisa e (geen doortocht van de voetgangersboulevard, geen samenhang met de grote aantrekkingspunten ...) is het des te belangrijker om een kwaliteitsvolle ac vering te garanderen. Deze ac vering zal wellicht makkelijker worden bereikt met de ontwikkeling van een gebouw met een geac veerde benedenverdieping (dit is beter dan een bussta on in de open lucht, zoals in de huidig toestand, ofdandeontwikkelingvaneenterrasophetbussta ondatnietisverbondenmetderestvandeopenbareruimte). Er dient opgemerkt dat het Noordplein niet wordt ‘omkaderd’ door verordenende documenten (verstedelijking is mogelijk volgens het GBP en het is privé-eigendom). Het voortbestaan van dit plein is dus niet gegarandeerd. Als de verstedelijking wordt gekoppeld aan die van het Solvayplein verdwijnen er in de wijk twee open ruimten. Daarom wordt aanbevolen om op het Solvayplein een openbaar gebouw te ontwikkelen dat ‘voor iedereen’ toegankelijk is, met een eventuele buitenruimte (bijvoorbeeld een ingericht terras).

Zoals is uitgelegd in de methodologische nota wordt het Noordplein niet omkaderd door het BBP. Het plein geniet een eerder guns ge context en lokalisa e en is naar het zuiden gericht. Het is dus relevant om het te herwaarderen. De aanwezigheid van de toren en van een hoofdingang van het sta on versterkt deze aanbeveling. De hoogtes van de gebouwen rond het plein kunnen worden afgestemd op de groo e van het plein.

Het Bolivarplein is de enige open ruimte van die groo e in de wijk en is ook het meest rus g. Het leent zich dus voor de ontwikkeling van een rus ge en ‘menselijke’ omgeving. De kerende bussen en de busterminus kunnen worden verwijderd en er kan een kwaliteitsvolle beplante ruimte worden ontwikkeld.

De binnenstraat zou (minstens gedeeltelijk, a ankelijk van de technische mogelijkheden) weer kunnen worden opengelegd en een echte ‘unieke’ open ruimte kunnen vormen (vermijden om een grondplaat te koppelen aan een bovenplaat), ook al wordt ze deels overdekt door loopbruggen of gebruikt voor het ver cale verkeer naar de sta onsingangen. Indien technisch uitvoerbaar (o.m. gezien de bestaande structuren die zijn verbonden met de ondergrond) zou deze straat kunnen worden verbreed om ademruimte te creëren en een zekere terugwijking van de gebouwen ten opzichte van de rooilijn. A ankelijk van de groo e van de gebouwen die worden ontwikkeld op de rooilijn kan beplan ng een menselijke schaal creëren; de ondergrond en de breedte ten opzichte van het gebruik zouden dit hoe dan ook mogelijk maken. De heropening van de binnenstraat en de verbetering van de kwaliteit ervan versterken haar rol van ‘verbindingsruimte’ tussen het Solvayplein/Medical Center en het Noordplein/Rogier.

Het Bolivar-voorplein zou net als de binnenstraat kunnen worden ‘vereenvoudigd’. Dat betekent: geen ontdubbeling door een plaat die deze ruimte volledig overdekt en loskoppelt van de andere openbare ruimten in de wijk (niveauverschil). De breedte van het voorplein moet worden afgestemd op de hoogte van de gebouwen op de rooilijn, dit om een verple erend gevoel en een canyoneffect te vermijden. Bomen kunnen zorgen voor een menselijke schaal in deze ruimte (de mogelijkheden moeten worden bepaald naargelang de aanwezigheid en de groo e van een grondplaat als die nodig is om de doortocht van de bussen te kunnen garanderen).

De breedte van de kleine Vooruitgangstraat zou moeten worden afgestemd op de hoogte van de gebouwen op de rooilijn, dit om een verple erend gevoel en een canyoneffect te vermijden.

De Solvay-as zal gezien haar statuut in het plan Good Move grotendeels in dienst staan van de mobiliteit. Gezien de breedte van deze as en de poten ële hoogtes van de gebouwen op de rooilijn wordt aanbevolen om de bomen in deze as te behouden (menselijke schaal, leefomgeving, luchtverontreiniging ...), temeer omdat er volle grond beschikbaar is.

De mogelijkheden om op de site van het Medical Center een open gebruiksplek te creëren zijn beperkt vanwege de infrastructuren die nodig zijn voor het project van de tunnel Metro Noord (zuiveringssta on, rookafvoeren, zone voor de voertuigen van de hulpdiensten ...). Er wordt aanbevolen om geen loopbrug te ontwikkelen tussen deze site en het sta on/CCN aangezien die de mogelijkheden voor de ontwikkeling van een open ruimte op deze plaats nog meer zou beperken.

Hoofdstuk III / Afdeling 3 Effectenbeoordeling / B - ruimtelijke alterna even / p. 228
RUIMTELIJKE ORGANISATIE RUIMTELIJKE ORGANISATIE

De Koolbrandersstraat zal minstens worden gebruikt voor de terminus van de tram van De Lijn, maar het wegverkeer moet er worden beperkt. Gezien de hoogte van de gebouwen op de rooilijn en de vrij beperkte breedtevandezestraatwordtaanbevolenomzetebeplantenomeenmenselijkeschaaltecreëren.Detechnische beperkingen verbonden aan het elektrische substa on beperken de mogelijkheden om bomen te planten aan de kant van Proximus. Ze zouden daarom elders op de weg kunnen worden geplant (centrum of andere kant, te bepalen volgens te technische beperkingen veroorzaakt door de tram en de nutsleidingen die waarschijnlijk onder de voetpaden van het andere huizenblok lopen).

Op de binnenterreinen van de huizenblokken North Galaxy en Proximus kunnen nieuwe open ruimten worden gecreëerd die kunnen worden benut als openbare ruimte. Het BBP zou daarvoor bepalingen kunnen voorzien. De mogelijke doorgang door de bebouwing en de manier waarop de doorsteken zijn georganiseerd (al dan niet in een uithoek) zijn echter aandachtspunten op het vlak van veiligheid en kwaliteit van deze ruimten. Bij hun inrich ng moet ook rekening worden gehouden met de duidelijkheid van de doorsteken van huizenblokken en het daadwerkelijke gebruik ervan.

De alterna even spreken zich over de kwes e niet uit, maar het lijkt noodzakelijk om te voldoen aan de eis van groene ruimten die wordt gesteld in zowel het huidige BBP (30% groene ruimten) als in het GBP ((10% van de grondoppervlakte) en in het ontwerp van GSV (30% volle grond op elk perceel). De plaats en de kwaliteit van de groene ruimten kan de structuur van de open ruimten in de wijk min of meer posi ef beïnvloeden. De eisen in verband met kwan teit kunnen bovendien worden aangevuld door preciseringen over de kwaliteit (afstemming van de beplan ng op de blootstelling aan zon en wind, soorten plantenlagen, minimumdikte van het substraat, elementen betreffende het gebruik van deze ruimten ...) om de kans te verhogen dat de leefomgeving daadwerkelijk wordt verbeterd.

Hoofdstuk III / Afdeling 3 Effectenbeoordeling / B - ruimtelijke alterna even / p. 229
RUIMTELIJ KE ORGANISATIE RUIMTELIJKE ORGANISATIE

STEDELIJK LANDSCHAP EN SYMBOLISCHE RICHTPUNTEN

ELEMENTEN UIT DE DIAGNOSE

Aanweerszijdenvanhetspoorweggebiedzienwe2soortenbebouwdweefselen2zeerverschillendetopologieën: in het oosten een oud en dicht residen eel weefsel uit de 19de eeuw met kleine bouwprofielen en georganiseerd in huizenblokken tegen de heuvel; in het westen een vlakke wijk met grote kantoorgebouwen.

De kantoorwijk werd gebouwd volgens een dambordpatroon van wegen en bestaat volgens het Manha anplan uit de jaren 60 uit 8 torens (waarvan er één niet werd gebouwd). De torens staan rond de centrale figuur, het kruis dat wordt gevormd door de noord-zuidas Albert II en de oost-westas Simon Bolivar. Alle torens in de wijk vormen sterke landmarks, richtpunten in de Brusselse skyline die al van heel ver zichtbaar zijn: de Mari emwijk, de kerk Onze-Lieve-Vrouw van Laken, de Lambermontlaan, Wiels, Scheutbos....

De oostkant vandeZennevallei,die begintaan deoostkantvande sporen,vertoont een aanzienlijk hoogteverschil dat vanaf de Brabantwijk en de Sint-Lazaruswijk uitzichten creëert op de Manha anwijk. Omgekeerd kijkt men vanaf de valleibodem uit op enkele hoge gebouwen, de Sint-Mariakerk die gelegen is op de Sint-Lazarusheuvel. Heel wat gebouwen in het gebied zijn opgenomen in de inventaris van het bouwkundig erfgoed van het Brussels

Hoofdstedelijk Gewest: het Noordsta on met zijn toren, de Pleiadetorens en de WTC-torens I, II en III. De Sint-Jan en Sint-Niklaaskerk (Brabantstraat) is het enige beschermd monument in de buurt van het BBP. De perimeter bevat geen beschermde/opmerkelijke natuurlijke elementen.

HetNoordsta onwordtvandaagzowatverple erddoorhet CCN-gebouw dat ertegenaan isgebouwd. Hetvervult niet langer zijn lokaal van lokaal richtpunt op de oost-westelijke as aangezien het niet meer zichtbaar is vanaf de SimonBolivarlaan.Detoren, in hetzuidenvanhetgebied,blij weleen belangrijk richtpunt op denoord-zuidelijke as in de wijk.

HetCCNwerdtegenhetsta onaangebouwdenligterdusvlakbij.DeuitzichtenvanafdeVooruitgangstraat(zowel vanaf het noorden als vanaf het zuiden) stuiten op dit gebouw.

Hoofdstuk III / Afdeling 3 Effectenbeoordeling / B - ruimtelijke alterna even / p. 230
RUIMTELIJKE ORGANISATIE RUIMTELIJKE ORGANISATIE
Zicht op de Sint-Mariakerk vanaf de Solvay-as (links) en uitzicht op het CCN dat tegen het sta on aanleunt vanuit de Vooruitgangstraat (zicht op het noorden in het midden en op het zuiden rechts) - BRAT 2022
Hoofdstuk III / Afdeling 3 Effectenbeoordeling / B - ruimtelijke alterna even / p. 231
RUIMTELIJKE ORGANISATIE RUIMTELIJKE ORGANISATIE
Zicht op de sta onstoren (boven), het sta onsgebouw (verborgen door het CCN) (midden) en het Solvayplein en de SintMariakerk (onder) in de bestaande toestand – 1010au

TENDENTIEEL ALTERNATIEF

De Noordwijk is met verschillende grote bouw- en renova eprojecten volop in muta e. De eerste regels van de Gedeelde visie voor het Territorium Noord omva en doelstellingen verbonden aan het structurerende karakter van de structuurpijlers, met name minder verstoring door de grote stedelijke barrières in het stadsweefsel (vooral noord-zuid), met versterking van de oost-westrela es, met het doel om de rela es tussen de verschillende wijken te verbeteren.

In de nota voor het huizenblok Proximus wordt voorgesteld om de torens te verhogen als de grondinname wordt verkleind. Zo kunnen en visuele doorbraken doorheen de huizenblokken worden gecreëerd.

In het GBP zijn de Albert II-laan en de Simon Bolivarlaan opgenomen als structurerende ruimten die moeten worden gevrijwaard en waar de kwaliteit van het stedelijke landschap moet worden verbeterd.

Voor de volumetrie bepaalt het BBP 19 een laagbouwzone van 13 m voor de huizenblokken Proximus en North Galaxy en een hoogte van 102 m voor de 3 torens van deze huizenblokken. Het bepaalt een maximumhoogte van 23 m voor de gebouwen met middelma ge hoogte van het huizenblok North Galaxy (aan de kant van het Solvayplein). Het gebouw van het CCN mag maximaal 35 m hoog zijn.

Hoofdstuk III / Afdeling 3 Effectenbeoordeling / B - ruimtelijke alterna even / p. 232
3D-beelden van de bestaande toestand – 1010au
RUIMTELIJKE ORGANISATIE RUIMTELIJKE ORGANISATIE
Hoofdstuk III / Afdeling 3 Effectenbeoordeling / B - ruimtelijke alterna even / p. 233
ERGELIJKING
N N N RUIMTELIJKE ORGANISATIE RUIMTELIJKE ORGANISATIE
V
VAN DE ALTERNATIEVEN 3D-beelden van de alterna even 1 (boven), 2 (midden) en 3 (onder) – 1010au

Hoogbouw blij globaal aanwezig in de 3 alterna even. De hoge schaal van de dubbele skyline is dus gegarandeerd.

De 3 alterna even stellen de aanleg voor van het Bolivar-voorplein dat de bebouwing in het huizenblok CCN doorbreekt in de Bolivar-as en uitzicht gee op het sta onsgebouw dat zo weer een visueel richtpunt kan worden in deze as. Deze opening gee ook uitzicht op de Sint-Mariakerk op de Sint-Lazarusheuvel, eveneens een stedelijk richtpunt.

Geen enkel alterna ef creëert een echte landschappelijke opening door de sokkels vandehuizenblokkentedoorbreken,zoals wordt voorgesteld in de nota voor de ontwikkelingvanhethuizenblokProximus.

ZichtophetstaonsgebouwendeSint-Mariakerk(gelepijl)vanafde Bolivarlaan(alternaef3)hetkruispuntmetdeAlbertII-laan(boven), deAntwerpsesteenweg(midden),deHelihavenlaan(onderaanlinks)en deWillebroekkaai(onderaanrechts)–1010au

Alterna ef 1

In dit alterna ef zijn de 4 torens van het Manha anplan (in de huizenblokken Proximus en North Galaxy) niet binnen de geschikte volumes geplaatst. Ze zullen dus worden afgebroken, wat een wijziging teweegbrengt in het lokale landschap. Nochtans zijn ze erkend door de inventaris IrisMonument.

Wat de herwaardering van het Noordsta on betre blij de binnenstraat overdekt en blij het ondergrondse effect bestaan. Dit verstoort de lezing van de sta onsgevel die nochtans recent werd gerenoveerd. Boven de plaat is de binnenstraat smal, wat onguns g is voor de herwaardering van de sta onsgevel.

De sta onstoren wordt goed benadrukt doordat het Noordplein dieper komt te liggen (het gebouw staat een vij iental meter terugwijkend ‘achter’ de sta onstoren in vergelijking met de bestaande toestand).

De ontwikkeling van de loopbrug en de plaat (en de borstweringen, niet gemodelleerd) over het Solvayplein kan de uitzichten op de noordelijke sta onsingang en op het coherente kunstwerk, de Kwatrech unnel, verstoren.

Er dient opgemerkt dat het bussta on is voorzien van ongeveer 100 m parkeerruimte in de open lucht aan de kant van het Noordplein. Hier zouden oplaadsystemen voor de elektrische bussen kunnen worden voorzien, maar met een zekere visuele impact op het plein.

Hoofdstuk III / Afdeling 3 Effectenbeoordeling / B - ruimtelijke alterna even / p. 234
RUIMTELIJKE ORGANISATIE RUIMTELIJKE ORGANISATIE
Hoofdstuk III / Afdeling 3 Effectenbeoordeling / B - ruimtelijke alterna even / p. 235
RUIMTELIJKE ORGANISATIE RUIMTELIJKE ORGANISATIE
Zicht op de sta onstoren (boven), het sta onsgebouw (verborgen door het midden) en het Solvayplein en de Sint-Mariakerk (onder) in alterna ef 1 – 1010au
Hoofdstuk III / Afdeling 3 Effectenbeoordeling / B - ruimtelijke alterna even / p. 236 Alterna ef 2
RUIMTELIJKE ORGANISATIE RUIMTELIJKE ORGANISATIE
Zicht op de sta onstoren (boven), het sta onsgebouw (midden) en het Solvayplein en de Sint-Mariakerk (onder) in alterna ef 2 – 1010au

In dit alterna ef zijn slechts 2 van de 4 torens van het Manha anplan (in de huizenblokken Proximus en North Galaxy) opgenomen in de geschikte volumes. De 2 andere zullen dus worden afgebroken, wat een impact zou hebben op het huidige lokale landschap van de wijk. Nochtans zijn ze erkend door de inventaris IrisMonument. Wat de herwaardering van het Noordsta on betre is de binnenstraat niet meer overdekt. De sta onsgevel die recent werd gerenoveerd wordt dus weer zichtbaar. De binnenstraat wordt verbreed, wat guns g is voor de herwaardering van de sta onsgevel. De vraag is of een dergelijke verbreding lee aar is. De rooilijn op de funderingen wordt immers niet meer gerespecteerd.

De sta onstoren wordt verple erd door de hoge gebouwen die weliswaar terugwijkend staan ten opzichte van de toren maar er toch vrij dicht bij.

Het uitzicht op de noordelijke sta onsingang en op het coherente kunstwerk, de Kwatrech unnel, is volledig vrij. Deze ingang kan dus worden geherwaardeerd (lichte verbetering in vergelijking met de bestaande toestand).

De ontwikkeling van een symmetrie aan weerszijden van het Bolivar-voorplein verhoogt het visuele uitzicht op het sta on en op de Sint-Mariakerk die erachter staat.

Alterna ef 3

In dit alterna ef zijn de 4 torens van het Manha anplan (in de huizenblokken Proximus en North Galaxy) binnen de geschikte volumes geplaatst. Ze kunnen dus worden behouden. Het huidige lokale landschap van de wijk en elementen erkend door de inventaris IrisMonument blijven gevrijwaard.

Wat de herwaardering van het Noordsta on betre is de binnenstraat niet meer overdekt. De sta onsgevel die recent werd gerenoveerd wordt dus weer zichtbaar. De binnenstraat wordt verbreed, wat guns g is voor de herwaardering van de sta onsgevel. De vraag is of een dergelijke verbreding lee aar is. De rooilijn op de funderingen wordt immers niet meer gerespecteerd.

Desta onstorenwordtnietgeaccentueerdomdatdegebouwenerdichterbijstaandanin debestaandetoestand.

Die naastliggende gebouwen zijn echter niet zo hoog en hebben een minder ‘verple erend’ effect.

Het uitzicht op de noordelijke sta onsingang wordt volledig belemmerd door het gebouw dat wordt ontwikkeld op het Solvayplein.

Hoofdstuk III / Afdeling 3 Effectenbeoordeling / B - ruimtelijke alterna even / p. 237
RUIMTELIJ KE ORGANISATIE RUIMTELIJKE ORGANISATIE
Hoofdstuk III / Afdeling 3 Effectenbeoordeling / B - ruimtelijke alterna even / p. 238
RUIMTELIJKE ORGANISATIE RUIMTELIJKE ORGANISATIE
Zicht op de sta onstoren (boven), het sta onsgebouw (midden) en het Solvayplein en de Sint-Mariakerk (onder) in alterna ef 3 – 1010au

AANBEVELINGEN

De oost-westelijke visuele link die de Bolivar-as volgt moet worden vrijgemaakt, zoals wordt voorgesteld in de 3 alterna even.

De mogelijkheid om de 4 torens van het Manha anplan te behouden moet worden opgelegd. Zo kunnen deze erfgoedelementen poten eel worden geherwaardeerd.

Voor de verre uitzichten op de Noordwijk is het wenselijk dat op de hoge schaal de bouwprofielen worden gevarieerd om het muureffect te vermijden.

De binnenstraat zou (minstens gedeeltelijk, a ankelijk van de technische mogelijkheden) moeten worden opengelegdzodatderecentgerenoveerdesta onsgevelkan wordengeaccentueerd.Indientechnischuitvoerbaar (o.m. gezien de bestaande structuren die zijn verbonden met de ondergrond) zou deze straat kunnen worden verbreed om ademruimte te creëren en een zekere afstand ten opzichte van de sta onsgevel.

De sta onstoren, erkend als bouwkundig erfgoed, zou moeten worden geherwaardeerd door in de directe omgeving een niet-bebouwde ademruimte te voorzien. De gebouwen in het huizenblok CCN mogen niet te hoog zijn om een verple erend effect op het sta on en de toren te vermijden. De hoogtes moeten van west naar oost geleidelijk aan worden verlaagd tot aan het sta on dat vrij laag ligt ten opzichte van de rest van de wijk.

Het uitzicht op de noordelijke sta onsingang en het coherente kunstwerk, de Kwatrech unnel, zou moeten worden behouden. Er kan een laag gebouw worden ontwikkeld dat dit uitzicht niet belemmert. De aanwezigheid van een symmetrie aan weerszijden van het Bolivar-voorplein kan het uitzicht vanaf de laan accentueren en de erfgoedelementen en stedelijke richtpunten, het sta onsgebouw en de Sint-Mariakerk die er zichtbaar achter staat, benadrukken. Het accentueren van dit uitzicht is interessant maar mag niet primeren op het gebruikscomfort: slagschaduw op de openbare ruimten en tussen de gebouwen, blootstelling aan geluid of de wind, enz.

Het doorlopende karakter van de geschikte volumes die worden voorgesteld in de alterna even impliceert bijkomende beperkingen van de monumentaliteit om een menselijke schaal te garanderen. De grafische en/of schri elijke voorschri en moeten garanderen dat de hoogbouw ‘torens’ zijn en geen ‘blokken’.

Om te beantwoorden aan de doelstellingen van de nota voor de herontwikkeling van het huizenblok Proximus kan in het BBP het creëren van landschappelijke openingen in de sokkels van de huizenblokken worden gepreciseerd.

Hoofdstuk III / Afdeling 3 Effectenbeoordeling / B - ruimtelijke alterna even / p. 239
RUIMTELIJKE ORGANISATIE RUIMTELIJKE ORGANISATIE

BEVOLKING

ELEMENTEN UIT DE DIAGNOSE

In de perimeter als dusdanig wonen er momenteel geen mensen. Debevolkingsdichtheid in deNoordwijkligthogerdan het Brusselsegemeente,maarblij vrijlaag vergelekenmet de wijken in de eerste kroon.

De aanwezige openbare groene ruimten rond het gebied zijn de Espace Gaucheret (130m ten noorden van het gebied) en het Maximiliaanpark (130 m ten westen van het gebied). Hoewel ze zich vanwege hun geometrie en stedelijke context niet lenen om echte gebruiksplekken te worden, worden ook de middenbermen van de Albert II-laan (gelegen in het gebied) beschouwd als openbare groene ruimten.

TENDENTIEEL ALTERNATIEF

De komende jaren zullen verschillende huisves ngsprojecten, omkaderd door de gewestelijke richtlijnen, meer gemengdheid brengen in de wijk. Het aantal wijkbewoners zal toenemen (projecten ZIN, Ferraris, CCN, poten eel ook WTC 4 en Boreal en de vele projecten in de wijk Helihaven en langs het kanaal). In de wijk wordt een grotere bevolkingsgroei verwacht dan gemiddeld in het Gewest. Heel wat projecten beva en immers huisves ng maar zijn gelegen buiten de perimeter van het BBP. In het kader van het SVC1 zal het Maximiliaanpark worden gerenoveerd, zonder echter groter te worden.

Volgens het BBP is huisves ng enkel toegelaten in de zones voor hoogbouw in de huizenblokken Proximus en North Galaxy.

VERGELIJKING VAN DE ALTERNATIEVEN

Het programma van het BBP zal meer inwoners aantrekken naar het onderzochte gebied, maar ook naar de Noordwijk die in die zin al volop aan het veranderen is. De toename van de bevolkingsdichtheid gaat in de 3 alterna even gepaard met de ontwikkeling van voorzieningen (zie programma e) en een uitstekende bediening door het openbaar vervoer die nog zal worden verbeterd. Deze elementen zijn guns g voor een ‘beheerste’ verdich ng. Het ‘enige’ verschil tussen de 3 alterna even op dit vlak is de ontwikkeling van groene ruimten die al dan niet de ‘houdbaarheid’ van de verdich ng van de wijk ondersteunen. Alleen scenario 2 voorziet groene ruimten overal waar mogelijk binnen de perimeter van het BBP (veel groen op het Bolivarplein, maar ook op het Solvayplein buiten de zone van de premetro en op de site van het voormalige Medical Center (maar alleen buiten de grondinname van de infrastructuur van het tunnelproject Metro Noord - dus niet zoals is aangegeven op de schema’s).

Hoofdstuk III / Afdeling 3 Effectenbeoordeling / B - ruimtelijke alterna even / p. 240
STEDELIJKE DYNAMIEK STEDELIJKE DYNAMIEK
Lokalisa e van de groene ruimten (groen) in de alterna even 1 (links), 2 (midden) en 3 (rechts) - 1010 au

AANBEVELINGEN

Gezien de voorziene toename van de bevolkingsdichtheid en met het oog op een ‘beheerste’ verdich ng in het gebied van het BBP een openbare groene ruimte laten die meer is dan een restruimte, met voldoende grote afme ngen en een kwaliteitsvolle context.

HUISVESTING

ELEMENTEN UIT DE DIAGNOSE

De perimeter bevat geen huisves ng. Het dichtstbij gelegen woongebouw staat op het Solvayplein (Amelinckxtoren, met openbare woningen). De perimeter van het BBP nr. 19 telt slechts weinig woningen aangezien er hoofdzakelijk kantoorgebouwen zijn geves gd. Woningen zijn dus vooral aanwezig in het noorden van de NoordwijkenindeBrabantwijk.Ookhetwestenvandewijk omvateenresiden eelweefseldathiervooralbestaat uit appartementsgebouwen (woontorens, nieuwe gebouwen langs het kanaal ...).

TENDENTIEEL ALTERNATIEF

De komende jaren zullen verschillende huisves ngsprojecten, omkaderd door de gewestelijke richtlijnen, meer gemengdheid brengen in de wijk (projecten ZIN, Ferraris, CCN, poten eel ook WTC 4 en Boreal en de vele projecten in de wijk Helihaven en langs het kanaal).

VolgenshetBBPis huisves ngenkeltoegelatenindezonesvoorhoogbouw (torens)indehuizenblokkenProximus en North Galaxy.

VERGELIJKING VAN DE ALTERNATIEVEN

Posi e van de woningen (groen) in de alterna even 1 (links), 2 (midden) en 3 (rechts) - 1010 au

Ter informa e: dit hoofdstuk focust op de voor- en nadelen van de lokalisa e van de woningen. Andere aspecten zoals geluid en verlich ng (slagschaduw), ac vering van de benedenverdiepingen, veiligheid, enz. zullen worden behandeld in de overeenstemmende thema’s.

Alterna ef 1

Alle woningen, in alle gebouwen, zijn gelegen op bovenverdiepingen. Zoals ook blijkt uit het deel microklimaat bieden ze een diversiteit van oriënta es en open ruimten aan minstens één kant, wat enigszins een behoorlijke natuurlijke lich nval garandeert. De hoeken kunnen voor de lich nval zwakke punten vormen, maar dat varieert naargelang de exacte posi e van de hoogbouw. In de kleine Vooruitgangstraat is de open ruimte kleiner. Het inkijkprobleem zal mogelijk groter worden als de straat aan beide kanten wordt bebouwd. De woningen in de kleine Vooruitgangstraat in het huizenblok Proximus genieten erg weinig natuurlijk licht (scherm aan de overkant

Hoofdstuk III / Afdeling 3 Effectenbeoordeling / B - ruimtelijke alterna even / p. 241
STEDELIJKE DYNAMIEK STEDELIJKE DYNAMIEK STEDELIJKE DYNAMIEK

van de kleine Vooruitgangstraat (aan de kant van het CCN) gecombineerd met het scherm dat wordt gegenereerd door een eventuele hoogbouw in de Koolbrandersstraat. Het BBP kan de hoogbouw op die plaats, die op het grondgebied van de gemeente Sint-Joost-ten-Node ligt en dus buiten het BBP, niet omkaderen. Omdat de kleine Vooruitgangstraat ter hoogte van het huizenblok North Galaxy breder is, is het probleem daar minder uitgesproken.

Alle woningen zijn gelegen op de bovenverdiepingen. Die lokalisa e, gecombineerd met de hoogtes die zijn voorzien in het programma, maakt het minder evident om een kwaliteitsvolle toegang te garanderen (die bijvoorbeeld niet lijdt onder de wind). De architectuur kan en moet hier een belangrijke rol vervullen om het probleem te vermijden.

Het feit datenkel ‘horizontale’ woningen worden voorzien, d.w.z. Dat ze de gebouwen delen met andere func es, bevordert de ontwikkeling van huurwoningen en niet uitsluitend koopwoningen (zie nota Idea Consult in bijlage III-C/b). Het feit dat er enkel woningen worden ontwikkeld op de bovenverdiepingen beperkt de mogelijkheden voor sociale woningen (zie het hoofdstuk over de programma e: de verkoop/verhuur van lager gelegen appartementen voor een lagere prijs kan mogelijk worden gemaakt als de hoger gelegen appartementen worden verkocht/verhuurd voor een hogere prijs).

Alterna ef 2

Delokalisa evandewoningen impliceerteendiversiteitvanoriënta esdieeenzekerekwaliteitvandenatuurlijke lich nval garanderen. Zoals ook zal blijken in het deel microklimaat zullen niet alle woningen op dezelfde manier worden blootgesteld, dat hangt af van de verdieping. De omliggende gebouwen (onder meer in het zuiden van de Koolbrandersstraat) en de hoogbouw kunnen schaduw werpen op de lager gelegen woningen. De hoeken (bijvoorbeeld de hoek Koolbrandersstraat-Albert II-laan) kunnen voor de lich nval zwakke punten vormen, maar dat varieert naargelang de exacte posi e van de hoogbouw.

Een deel van de woningen is gelegen op de bovenverdiepingen. Die lokalisa e, gecombineerd met de hoogtes die zijn voorzien in het programma, maakt het minder evident om een kwaliteitsvolle toegang te garanderen (die bijvoorbeeld niet lijdt onder de wind). De architectuur kan en moet hier een belangrijke rol vervullen om het probleem te vermijden.

Het feit dat enkel ‘ver cale’ woningen worden voorzien, d.w.z. dat ze volledige bebouwen beslaan (behalve de benedenverdieping), bevordert de ontwikkeling van koopwoningen die mogelijk verankerd blijven in de wijk31. De ontwikkeling van woontorens verhoogt de mogelijkheden voor sociale woningen (zie het hoofdstuk over de programma e: de verkoop/verhuur van lager gelegen appartementen voor een lagere prijs kan mogelijk worden gemaakt als de hoger gelegen appartementen worden verkocht/verhuurd voor een hogere prijs).

Door de ontwikkeling van ‘woonblokken’ aan de kant van het Solvayplein wordt dit een ‘huisves ngspool’ in het gebied (directe link met de Amelinckx-toren). De breedte van de wegen tussen deze verschillende gebouwen (34 m voor de as Solvay en 20 m voor de kleine Vooruitgangstraat), gecombineerd met de terugwijking van de Amelinckx-toren ten opzichte van de Solvay-as (~20m) lijkt het inkijkprobleem te beperken.

Alterna ef 3

Delokalisa evandewoningen impliceerteendiversiteitvanoriënta esdieeenzekerekwaliteitvandenatuurlijke lich nval garanderen. Zoals ook zal blijken in het deel microklimaat zullen niet alle woningen op dezelfde manier worden blootgesteld, dat hangt af van de verdieping. De hoeken (bijvoorbeeld de hoek Bolivar-Albert II) kunnen voor de lich nval zwakke punten vormen, maar dat varieert naargelang de exacte posi e van de hoogbouw. Behalve deze hoeken zou de posi onering van de woningen geen problema sche inkijksitua es genereren.

Een deel van de woningen is gelegen op de bovenverdiepingen. Die lokalisa e, gecombineerd met de hoogtes die zijn voorzien in het programma, maakt het minder evident om een kwaliteitsvolle toegang te garanderen (die bijvoorbeeld niet lijdt onder de wind). De architectuur kan en moet hier een belangrijke rol vervullen om het probleem te vermijden.

Het feit dat enkel ‘ver cale’ woningen worden voorzien, d.w.z. dat ze volledige bebouwen beslaan (behalve de benedenverdieping), bevordert de ontwikkeling van koopwoningen die mogelijk verankerd blijven in de wijk31. De ontwikkeling van woontorens verhoogt de mogelijkheden voor sociale woningen (zie het hoofdstuk over de programma e: de verkoop/verhuur van lager gelegen appartementen voor een lagere prijs kan mogelijk worden 31 Réflexions au sujet des condi ons pour l’évolu on du bureau dans le Quar er Nord, IDEA Consult, juillet 2021

Hoofdstuk III / Afdeling 3 Effectenbeoordeling / B - ruimtelijke alterna even / p. 242
STEDELIJKE DYNAMIEK

gemaakt als de hoger gelegen appartementen worden verkocht/verhuurd voor een hogere prijs).

AANBEVELINGEN

De toegang tot een kwaliteitsvolle buitenruimte garanderen voor alle woningen, vooral op het vlak van wind, ook de woningen op de hoogste verdiepingen.

De architectuur moet geval per geval aandacht besteden aan een goede natuurlijke lich nval in alle woningen (oriënta e, bouw, hoeken …).

Ervoor zorgen dat er minstens voor een deel woontorens’ (ver caliteit van de func e) worden gebouwd om de aankoopmogelijkheid en de verscheidenheid van de doelgroepen te verhogen.

In de directe omgeving van de spoorwegen (zelfde niveau) andere func es bevoorrechten dan huisves ng, omwille van de geluidshinder maar ook omwille van de kwaliteit van de uitzichten.

VOORZIENINGEN EN HANDELSZAKEN

ELEMENTEN UIT DE DIAGNOSE

De meeste handelszaken in de perimeter zijn geves gd in het sta on (specifieke pool). De handelspool van het CCN werd ‘ontruimd’ om de a raak van het gebouw voor te bereiden. Er is ook een handelszaak (horeca) geves gd op een benedenverdieping in het huizenblok North Galaxy. De onderzochte perimeter omvat geen voorzieningen.

TENDENTIEEL ALTERNATIEF

Het ZIN-project dat momenteel wordt uitgevoerd in de buurt van de site omvat handelszaken op de benedenverdiepingen.Andere projecten in dedirecteomgevingvan dewijkzijn gepland (WTC4,Ferraris-gebouw) maar er zijn nog geen details van bekend.

InhetTerritorium Noordlopenookenkeleprojectenvoor voorzieningen:desportzaalvan Ecole8indeJollystraat, het klimzaalproject in de Groendreef (Arkoze), de spor oren loodrecht op de zwaaikom van het Vergotedok, de openbare voorziening op de benedenverdieping van de openbare woongebouwen die zijn voorzien in het SVC en een nieuwe sportzaal op de campus van de school in de Gallaitstraat die zou kunnen worden opengesteld voor de bewoners. Ook de studie voor de heraanleg van het Maximiliaanpark loopt momenteel.

Volgens artikel 5 van het BBP zijn de gebouwen van de overheidsdiensten en voorzieningen van collectief belang overal toegelaten voor zover zij verenigbaar zijn met de algemene bestemming van de betrokken zone.

Handelszaken kunnen enkel worden geves gd in de zones voor hoogbouw van de huizenblokken North Galaxy en Proximus, zonder beperking qua groo e. In het CCN voorziet het BBP behalve het mobiliteitsknooppunt ook “diensten enuitrustingen” die als “bijhorend” worden beschouwd.

De bestemmingen van de toekoms ge projecten zullen bovendien worden omkaderd door het GBP dat de ontwikkeling toelaat van handelszaken met een vloeroppervlakte kleiner of gelijk aan 1 000 m² per project en per gebouw en van voorzieningen, zonder beperking qua groo e. Voor het CCN geeft het lint van handelskernen, de “handelsgalerij” voorrang aan handelszakenop debenedenverdiepingen. De oppervlaktevan dehandelszakenkan eventueel worden vergroot tot 2 500 m² als de lokale omstandigheden dit toestaan.

VERGELIJKING VAN DE ALTERNATIEVEN

Volgens het GBP kan een BBP de limiet van 2 500 m² handelsruimte voor het CCN overschrijden door te spreken van een“handelsgalerij”. In de 3 ruimtelijke alternatieven is dat het geval (zie programmatie).

De 3 alterna even voorzien in de ontwikkeling van voorzieningen en handelszaken op de benedenverdiepingen, deeersteverdiepingeneneen deelvandetweedeverdiepingenvanallegebouweninhetgebied.Terherinnering: in het programma zijn twee keer zoveel voorzieningen als handelszaken voorzien. Bij de analyse van de

Hoofdstuk III / Afdeling 3 Effectenbeoordeling / B - ruimtelijke alterna even / p. 243
STEDELIJKE DYNAMIEK STEDELIJKE DYNAMIEK STEDELIJKE DYNAMIEK

programmatorische alterna even werd aanbevolen om de handelszaken op de benedenverdiepingen te plaatsen en de voorzieningen vooral op de verdiepingen.

De ruimtelijke alterna even voorzien een schema sche lokalisa e van de voorzieningen (zie verder) en geven geen details over de exacte grondinnames of het aantal betrokken verdiepingen.

Posi e van de gemengde gebieden (handelszaken en voorzieningen in het oranje) en aanbevolen lokalisa e van de voorzieningen (in het rood) in de alterna even 1 (links), 2 (midden) en 3 (rechts) - 1010 au

Alterna ef 1

Alterna ef 1 beveelt aan om voorzieningen te ontwikkelen in de Bolivar-as. Dit impliceert de ontwikkeling van één centraal gelegen pool van voorzieningen die rechtstreeks zijn verbonden met het sta on. Er kunnen ook voorzieningen worden geplaatst in de as naar Thurn &Taxis, wat aansluit bij de visie voor het Territorium Noord die stelt dat deze O-W-as kan worden ontwikkeld als een “grootstedelijke as”.

De ontwikkeling van de voorzieningen ‘in de lengte’ bemoeilijkt de mogelijkheid van specifieke voorzieningen of voorzieningen van gewestelijke omvang. Dit druist in tegen de visie voor het Territorium Noord die aanbeveelt om in de Bolivar-as een voorziening met gewestelijke uitstraling te ontwikkelen.

De handelszaken/voorzieningen op het stadsniveau in het huizenblok CCN geven uit op de kleine Vooruitgangstraat en het Bolivarplein. Vanwege het ondergrondse bussta on zullen ze dus half ondergronds zijn (zie onderstaande foto’s). Deze gevel is voor de zaken in deze as de enige bron van natuurlijke lich nval. De binnenruimten zullen daardoor van vrij ma ge kwaliteit zijn en de technische infrastructuren om het publiek van deopenbareruimtenaardebinnenruimtetebrengen(eentrapofeenandereinfrastructuur)zullenminderruimte laten voor de ac viteiten.

De handelszaken/voorzieningen op het sta onsniveau in het huizenblok CCN zullen toegankelijk zijn via de grondplaat op het Bolivar-voorplein, de binnenstraat en het Solvayplein (zie onderstaand plan). De kleine Vooruitgangstraat en het Noordplein/Solvayplein zullen vanwege het niveauverschil geen makkelijke toegang bieden tot deze handelszaken/voorzieningen (zie onderstaande foto in het oranje). Deze situa e stelt een probleem, niet alleen voor de ac vering van de openbare ruimte maar ook voor de werking en de dialoog van dezehandelszaken/voorzieningenmetdeomliggendewijk(hethuizenblokblij geïsoleerd,watookeenzwakpunt is van het huidige CCN).

Hoofdstuk III / Afdeling 3 Effectenbeoordeling / B - ruimtelijke alterna even / p. 244
STEDELIJKE DYNAMIEK
STEDELIJKE DYNAMIEK
Alterna ef 1 Alterna ef 2 Alterna ef 3

In het oranje de verdieping van het sta onsniveau in het huizenblok CCN aan de kant van het Bolivarplein, in het geel de half ondergrondse verdieping van het stadsniveau in het huizenblok CCN aan de kant van het Bolivarplein – BRAT 2022

Alterna ef 2

Toegang tot de handelszaken en voorzieningen op het sta onsniveau (rode lijnen) – 1010au

Alterna ef 2 beveelt aan om voorzieningen te ontwikkelen in de kleine Vooruitgangstraat, enkele goed zichtbaar in de Bolivar-as, andere meer verscholen in de kleine Vooruitgangstraat. Het bussta on in het huizenblok CCN beslaat een groot deel van het stadsniveau. De voorzieningen en handelszaken op de verdiepingen van dit huizenblok zijn enkel toegankelijk via het kleine bebouwde deel van het stadsniveau (waarvan een deel al wordt gebruikt voor de toegang tot de metro). Handelszaken kunnen er worden ontwikkeld in een eventuele ‘handelsgalerij’ op de verdieping, maar zonder rechtstreeks contact met de openbare ruimte. De voorkeur gaat daarom uit naar de ontwikkeling van voorzieningen.

ben ede 1ste ver

Links de mogelijke ingangen op de benedenverdieping (blauwe pijlen), naar de handelszaken en voorzieningen op de eerste verdieping (rechts) – 1010au

DekleineVooruitgangstraatissmallerdandeandereassenvan hetonderzochtegebied.Zewordtmindergebruikt om naar de a rac epunten van de wijk te gaan (ze ligt niet in de as naar Rogiers of naar Thurn & Taxis, is niet rechtstreeks verbonden met het sta on) en de verkeersdruk (doortocht van bussen en trams in het zuiden en interna onaal bussta on in het noorden) weegt op de kwaliteit van deze straat. De lokalisa e van voorzieningen in biedt dus het voordeel dat ze de straat enigszins ac veren, wat met handelszaken misschien moeilijker te bereiken is.

De ontwikkeling van de voorzieningen ‘in de lengte’ bemoeilijkt de mogelijkheden om er specifieke voorzieningen of voorzieningen met een gewestelijke uitstraling te plaatsen.

Hoofdstuk III / Afdeling 3 Effectenbeoordeling / B - ruimtelijke alterna even / p. 245
STEDELIJKE DYNAMIEK
STEDELIJKE DYNAMIEK STEDELIJKE DYNAMIEK

Alterna ef 3

Alterna ef 3 beveelt aan om voorzieningen te ontwikkelen rond het Solvayplein (op het Solvayplein dat bebouwd is, in het huizenblok North Galaxy op de hoek van de kleine Vooruitgangstraat en de Solvay-as, op de site van het Medical Center).

Deze lokalisa e biedt het voordeel dat dit plein, waar gezelligheid en veiligheid een grote uitdaging zijn, dynamischer wordt. Bovendien zal waarschijnlijk boven het bussta on kunnen worden gebouwd zodat een geluidsscherm ontstaat dat guns g is voor de Amelinckx-toren.

De ‘gegroepeerde’ plaatsing maakt de ontwikkeling mogelijk van grotere voorzieningen, maar concentreert ze op één punt en bemoeilijkt de ontwikkeling van kleine voorzieningen in ‘standaardformaat’.

Bovendien zorgt de enigszins gedecentreerde ligging, gecombineerd met de Kwatrech unnel, voor een betere verbinding met de omliggende woonwijken (Brabant, Gaucheret ...).

Dehandelszakenophetsta onsniveaugevenalleenaandekantvanhetBolivar-voorplein(verhoogdegrondplaat) uit op de openbare ruimte. Omdat de voorzieningen bij voorkeur elders worden gegroepeerd, zouden op het sta onsniveauenkelhandelszakenwordengeplaatst. Zo ontstaat eenpoten ële‘handelsgalerij’ opdeverdieping, op zichzelf gecentreerd en dus zonder rechtstreeks contact met de openbare ruimte. Om de openbare ruimte te ac veren met handelszaken, is het wenselijk om op het Bolivar-voorplein enkel handelszaken te ontwikkelen en de voorzieningen te plaatsen op de rest van de oppervlakken van deze verdieping (die meer geïsoleerd ligt).

AANBEVELINGEN

Er wordt een ‘gemengde’ oplossing aanbevolen: de plaatsing van kleine voorzieningen mogelijk maken maar ook voorzien in de ontwikkeling van voorzieningen ‘buiten de normen’. Een meer precieze lokalisa e van de kleine voorzieningen lijkt niet noodzakelijk, maar als voorkeurloca e lijken de Kleine Vooruitgangstraat (zoals in alterna ef 2) en het Solvayplein (zoals in alterna ef 3) geschikt:

- de kleine Vooruitgangstraat biedt het voordeel dat ze zowel ruimten biedt die goed zichtbaar zijn in de Bolivar-as als andere ruimten die meer verscholen liggen in de kleine Vooruitgangstraat. - de lokalisatie rond het Solvayplein biedt het voordeel dat dit plein, waar gezelligheid en veiligheid een grote uitdaging zijn, dynamischer wordt.

Om aan het Bolivarplein een grootstedelijke rol toe te kennen, is het wenselijk om er diverse func es te voorzien die een gevarieerde drukte creëren.

Omdat in de huizenblokken Proximus en CCN op korte termijn projecten zijn gepland, impliceert de ontwikkeling van voorzieningen dat deze eveneens op korte termijn moeten worden geïden ficeerd en dat er projectdragers voor moeten worden gevonden. Uit de gesprekken in het kader van onze opdracht tot wijziging van het BBP blijkt niet dat deze voorzieningen en projectdragers al duidelijk geïden ficeerd zijn. De lokalisa e van voorzieningen, onder meer met een bovenlokale uitstraling, rond het Solvayplein (op het Solvayplein dat nog niet gekadastreerd is, in het huizenblok North Galaxy en op het openbare perceel van het Medical Center, zoals wordt voorgesteld in alterna ef 3), laat meer jd voor beslissingen over specifieke voorzieningen. De ontwikkeling van voorzieningen in de huizenblokken Proximus en CCN moet mogelijk blijven en worden opgelegd, minstens voor voorzieningen in ‘standaardformaat’. De voorzieningen ‘buiten de normen’ worden echter bij voorkeur in het huizenblok North Galaxy en/of op het Solvayplein geplaatst en los van de huidige grote projecten ontwikkeld, naargelang de mogelijkheden.

Uit de analyse van de behoe en aan voorzieningen, opgenomen in het deel programma e, blijkt dat er nood is aan een lagere school (475 leerlingen) en een middelbare school (622 leerlingen). Deze voorzieningen vertegenwoordigen ongeveer 10 000 m² en kunnen een deel van de al bestaande en toekoms ge behoe en opvangen. Dergelijke voorzieningen hebben echter aangepaste specifieke ruimten nodig: speelplaats met natuurlijke bezonning, overdekte speelplaats, sportzaal, … De stedelijke typologie van de site is daar echter niet erg voor geschikt, zodat we dit aandachtspunt moeten benadrukken in dit stadium van het proces. Bij de ves ging van een dergelijke voorziening moet een zekere flexibiliteit in de toegelaten vormen en bouwprofielen worden voorzien of moeten bepaalde kenmerken (natuurlijke lich nval, kwaliteitsvolle buitenruimten ...) of bepaalde lokalisa es (rus ger zones voor deze gevoelige func e) worden aanbevolen. In het BBP kunnen ook begeleidende maatregelen worden voorzien

Als een voorziening zou worden geplaatst boven het bussta on, dan mag de func e die er wordt ontwikkeld niet gevoelig zijn voor geluid en trillingen (het bussta on ligt er immers onder en in de buurt liggen ook de Solvay-as en de spoorwegas die veel geluid genereren).

Hoofdstuk III / Afdeling 3 Effectenbeoordeling / B - ruimtelijke alterna even / p. 246
STEDELIJKE DYNAMIEK STEDELIJKE DYNAMIEK

Vanwege de verhoudingen die zijn voorzien in het programma van handelszaken en voorzieningen, en vanwege de ruimtelijke voorstellingen, geldt hier dezelfde aanbeveling als voor het programmatorische deel: het is wenselijkomenkelhandelszakentoetelatendiezijnverbonden(pui)metdeopenbareruimte(ophetstadsniveau of het sta onsniveau, verbonden met een grondplaat) en de voorzieningen in de meer ‘geïsoleerde’ delen van de gebouwen te plaatsen. Bijzondere aandacht moet worden besteed aan het niveau van de sta onshal (dus het eventuele sta onsniveau) ten opzichte van het niveau van de openbare ruimte om een func onele verhouding tussen de handelsruimten en de openbare ruimte te garanderen.

ECONOMISCHE ACTIVITEITEN EN TRANSITIE

ELEMENTEN UIT DE DIAGNOSE

Ongeveer 96 % van de totale vloeroppervlakte in het gebied wordt ingenomen door kantoren. Produc eac viteiten zijn in het gebied niet aanwezig.

TENDENTIEEL ALTERNATIEF

Heel wat projecten in de Noordwijk zijn erop gericht om meer gemengdheid te creëren. Een deel van de kantoorfunc e wordt vervangen door andere func es. Andere projecten voorzien bovendien in de renova e van grote kantooroppervlakken.

De wijk behoort echter niet tot de gebieden van het grondgebied waar vooral produc eac viteiten zullen worden ontwikkeld. Nochtans bestaat er een poten eel voor de ontwikkeling van nieuwe synergieën en nieuwe economische ac viteiten in de Noordwijk in het algemeen en in de Manha anwijk en de perimeter van het BBP in het bijzonder. De integra e van de produc efunc e in de wijk zou meer gediversifieerde bevolkings- en werknemersprofielen kunnen aantrekken.

HetBBPlaatdeontwikkelingvankantorenenruimtenbestemdvoorvrijeberoepentoeindezonesvoorhoogbouw (torens) van de huizenblokken North Galaxy en Proximus. In het CCN voorziet het BBP behalve de mobiliteitshub, ook “diensten en uitrustingen” die als “bijhorend” worden beschouwd. Artikel 4 van het BBP verbiedt bovendien instellingen die onverenigbaar zijn met de rust en de goede instandhouding van de buurt (uitwasemen van damp, roet, stof veroorzaken van lawaai of andere stoornissen) waardoor een aantal ‘ambachtelijke’ economische activiteiten beperkt worden.

VERGELIJKING VAN DE ALTERNATIEVEN

Hoofdstuk III / Afdeling 3 Effectenbeoordeling / B - ruimtelijke alterna even / p. 247
STEDELIJKE
STEDELIJKE
Posi e van de kantoren (roze) in de alterna even 1 (links), 2 (midden) en 3 (rechts) - 1010 au
DYNAMI EK
DYNAMIEK

De3alterna evenstellenvoor omkantorenin allehuizenblokken.Alterna ef1 ontwikkeltdezekantorenals‘lage’ func es, ingeklemd tussen de handelszaken en voorzieningen op de benedenverdiepingen en de woningen op de bovenverdiepingen. De andere twee alterna even stellen een ver cale scheiding van de func es voor.

Omdat kantoren niet specifiek een ‘gevoelige’ func e vormen en zowat overal in het gebied worden geplaatst, gee de analyse van dit criterium geen uitsluitsel over welk alterna ef de voorkeur geniet boven de andere. De alterna even spreken zich niet uit over een specifieke lokalisa e voor de produc eac viteiten.

AANBEVELINGEN

Aangezien economische ac viteiten geen gevoelige func e vormen, kunnen ze worden ‘gebruikt’ om een geluidsscherm te vormen en de rust in bepaalde delen van het gebied te verbeteren, wat ten goede komt aan de woningen en de gevoelige voorzieningen.

ACTIVERING VAN DE OPENBARE RUIMTE VIA DE BENEDENVERDIEPINGEN

ELEMENTEN UIT DE DIAGNOSE

De perimeter wordt gekenmerkt door de aanwezigheid van ‘backstreets’, met name vanwege de stedelijke typologie en de adresseringslogica van deze gebouwen-huizenblokken. In de Koolbrandersstraat zijn er bijvoorbeeld geen toegangen en uitsluitend uniforme en ‘dode’ gevels.

In totaal wordt ongeveer 30% van de vloeroppervlakte ingenomen door handelszaken op het stads- en sta onsniveau van de gebouwen:

- Huizenblok North Galaxy: een horecazaak en de ingangen van de kantoren, vooral in de Bolivarlaan en de Albert II-laan.

- Huizenblok Proximus: de ingangen van de kantoren in de Bolivarlaan en de Albert II-laan.

- huizenblok station:

o stadsniveau: handelszaken, fietsparkings, kantoren en technische lokalen

o stationsniveau: handelszaken en ruimten die verband houden met de mobiliteit (loketten ...)

- huizenblok CCN:

o halfondergronds busstation (onder het stadsniveau) die niveauverschillen creëert die nefast zijn voor de activering van de openbare ruimte (zie onderstaande foto’s).

o stationsniveau: handelszaken, horeca, ruimten die verband houden met de mobiliteit (loketten, ingang premetro ...) en ingangen van de kantoren zijn gericht op de binnenkant van het gebouw en dragen niet bij tot de activering van de openbare ruimte.

Hoofdstuk III / Afdeling 3 Effectenbeoordeling / B - ruimtelijke alterna even / p. 248
STEDELIJKE DYNAMIEK STEDELIJKE DYNAMIEK STEDELIJKE DYNAMIEK

Bovenaan, trap tussen het bussta on en het Bolivarplein (~2m hoogteverschil, foto links) en tussen het bussta on en de ingang van het sta on op sta onsniveau (~1m hoogteverschil, foto rechts) – BRAT 2022

Onderaan, dwarsdoorsnede van het huizenblok CCN – 1010au

Het sta on hee recent inrich ngswerken ondergaan. Het statuut en de organisa e van het sta on zullen de komende jaren niet al te zeer worden gewijzigd. Onderstaande plannen tonen de huidige organisa e.

De binnenstraat is overdekt en lijkt op een technische gang, aan de ene kant begrensd door het bussta on (huizenblok CCN) en aan de andere kant door de sta onsingang, het fietspunt en de fietsparkings en de kantoren en de technische elementen van het sta on. Hoewel de gevel bij de renova e van het sta on werd verbouwd, zijn deze elementen om veiligheidsredenen beschermd door een hek of een ruit.

Hoofdstuk III / Afdeling 3 Effectenbeoordeling / B - ruimtelijke alterna even / p. 249
Stadsniveau Staonsnivea u Bolivarplein Huizenblok CCN Sta on STEDELIJKE DYNAMIEK STEDELIJKE DYNAMIEK
Beelden van het stadsniveau van het huizenblok sta on (BRAT, 2022)

TENDENTIEEL ALTERNATIEF

Behalve de ruimten die verband houden met de mobiliteit werden alle ruimten op het sta onsniveau van het CCN ontruimd met het oog op de a raak van het gebouw.

De komende jaren zullen verschillende huisves ngsprojecten, omkaderd door de gewestelijke notas, meer dan waarschijnlijk debenedenverdiepingen ac veren(projecten ZIN,Ferraris, CCN,poten eel ook WTC 4en Boreal en de vele projecten in de wijk Helihaven en langs het kanaal).

Het bestaande BBP bevat geen maatregelen voor de ac vering van de benedenverdiepingen.

Het halfondergrondse bussta onzal wellicht blijvenbestaan zodat het stadsniveauinde directe omgevingvanhet Noordsta on niet zal kunnen worden geac veerd.

VERGELIJKING VAN DE ALTERNATIEVEN

In de 3 alterna even worden alle benedenverdiepingen geac veerd door de handelszaken en voorzieningen die er worden geplaatst. Deze func es zijn geconcentreerd op

- de eerste twee verdiepingen (benedenverdieping + 1ste verdieping) voor het huizenblok Proximus

de eerste drie verdiepingen (benedenverdieping + 1ste verdieping + een deel van de 2de verdieping voor het huizenblok North Galaxy - deeerstetweeverdiepingen(inhetdeelvanhetstadsniveaudatnietbestemdisvoorhetbusstation en op het stationsniveau/1ste verdieping) voor het huizenblok CCN

Enkele elementen in de 3 alterna even zorgen voor een verschillende ac vering van de openbare ruimte. Op de volgende pagina’s beschrijven we de voorstellen voor de ac vering van de openbare ruimte en de benedenverdiepingen, met de voor- en nadelen.

Een aandachtspunt in de 3 alterna even is het feit dat de buitengevel van het sta on op het stadsniveau eigenlijk binnen staat (hij gee uit in het CCN, dus overdekt) en jdens de renova e van het sta on niet werd verbouwd. De 3 alterna even stellen voor om deze gevel opnieuw ‘naar buiten te brengen’. In alle gevallen zal hij moeten worden verbouwd.

Hoofdstuk III / Afdeling 3 Effectenbeoordeling / B - ruimtelijke alterna even / p. 250
-
STEDELIJKE DYNAMIEK STEDELIJKE DYNAMIEK
Buitengevel van het sta on (die uitgee in het CCN) – BRAT 2022

Gemengdgebiedmet handelszakenen voorzieningen Aanbevolenlokalisae voordevoorzieningen

Gevelsindeopenbare ruimtegeacveerd,in samenhangmetde doortochtvanvoetgangers Gevelsvande halfondergrondseruimten Gevelsindeopenbare ruimtegeacveerd, uitsluitendinsamenhang metdemobiliteit (ingangenstaon+metro +fietsparking)

Zonesvoorhetpubliek overdektmeteenplaat

Zonesvoorhetpubliek overdektopgrondplaat

Ac vering van de openbare ruimte via de benedenverdiepingen in alterna ef 1 - op basis van de schema’s 1010au

Hoofdstuk III / Afdeling 3 Effectenbeoordeling / B - ruimtelijke alterna even / p. 251
ef 1 STEDELIJKE DYNAMIEK
Alterna
Stadsniveau
STEDELIJKE DYNAMIEK
Sta onsniveau

Het alterna ef voorziet zeer verschillende situa es voor de verschillende openbare ruimten van het gebied. De binnenstraat, gelegen op het stadsniveau, wordt slechts weinig geac veerd en blij eerder monofunc oneel: aan de ene kant ligt het CCN en aan de andere kant de sta onsingang en de fietsparking32. Bovendien wordt deze straat overdekt door de loopbrug die wordt verlengd op het Solvayplein. De aanwezigheid van de loopbrug impliceert dat de ac vering van de openbare ruimte vooral geconcentreerd is op het sta onsniveau. De situa e blij dus min of meer zoals in de bestaande toestand, d.w.z. een technische gang die wordt begrensd door het bussta on en waarboven zich een geac veerde verdieping bevindt.

Het Bolivar-voorplein zou op stadsniveau uitsluitend worden geac veerd door de mobiliteit (ingang van de metro) en op sta onsniveau door handelszaken en voorzieningen die uitgeven op de grondplaat.

Het huidige stadsniveau van het Bolivar-voorplein ligt in realiteit lager dan dat van het Bolivarplein (~2m) en ook lager dan de sta onsingang op stadsniveau (~1m) (zie onderstaande doorsnede). Het ruimtelijke alterna ef behandelt deze problema ek niet eenduidig, maar door de overdekking van deze halfondergrondse ruimte met een plaat lijkt het niet mogelijk om het sta on en het Bolivarplein op hetzelfde niveau te brengen, vooral omdat de bussen op dit niveau rijden. De toegang tot het stadsniveau van het Bolivar-voorplein, halfondergronds en onder een plaat, geschiedt aan de ene kant via trappen en aan de kant (Bolivar/sta on) zoals in de huidige toestand. Het is belangrijk dat het BBP ervoor zorgt dat deze ruimten onder de plaat, die toegang verlenen tot de enige metro-ingang en tot een sta onsingang, verzorgd worden opgevat en kwaliteitsvol zijn, ondanks het feit dat ze overdekt zijn en ondanks de niveauverschillen.

Dwarsdoorsnede in het bestaande huizenblok CCN (toekoms g Bolivar-voorplein) met het stadsniveau (in het geel) dat onder het sta onsniveau een verlaging vertoont (in het oranje) om de bestaande halve verdieping tussen het Bolivarplein en de sta onshal te compenseren - op basis van doorsnede 1010au Langs de handelszaken/voorzieningen op het stadsniveau in het huizenblok CCN zou aan de oostkant het bussta on worden geplaatst. Ze zouden dus eerder uitgeven op de kleine Vooruitgangstraat, het Bolivarplein en het Noordplein. Deze handelszaken liggen vanwege het bussta on halfondergronds (behalve op het Noordplein dat eveneens een ‘put’ vertoont), zoals is te zien op de onderstaande foto.

32 defietsparkingdiewordtvoorgesteldinhetnoordelijkedeelvandestraatlijkttechnischgezienweinigrealis sch(zieplannen van het sta on).

Hoofdstuk III / Afdeling 3 Effectenbeoordeling / B - ruimtelijke alterna even / p. 252
Stadsniveau Staonsnivea u Bolivarplein Huizenblok CCN Sta on STEDELIJKE DYNAMIEK Bus Salledes pas-perdus STEDELIJKE DYNAMIEK

Het bestaan, de posi onering en de afme ngen van de plaat (met in het verlengde daarvan de loopbrug boven de binnenstraat) impliceren dat verschillende sta onsingangen op het sta onsniveau liggen, in de open lucht, en dat devoetgangersopdezeverdiepinglangsdebinnenstraatlopen.Deorganisa evanhetsta on,eerdergecentreerd rond de sta onshal, maakt echter geen verbinding met buiten, behalve de inkomdeuren in deze zaal: de sta onsgevel op deze verdieping wordt slechts geac veerd door deze func onele ingangen. De gevels op het sta onsniveau op de plaat worden dus enkel geac veerd aan de kant van het huizenblok CCN.

Het Solvayplein zou enkel op de plaat, op het sta onsniveau, worden geac veerd. Het deel op het stadsniveau zou grotendeels worden ingenomen door het bussta on (a ankelijk van de nodige afme ngen voor het keren van de bussen) en voor de rest overdekt zijn.

Het Noordplein zou via verschillende gevels worden geac veerd. De eerste twee verdiepingen van het gebouw dat wordt ontwikkeld op het Noordplein zouden bestemd zijn voor handelszaken en voorzieningen. Het plein wordt echter voor de hel ingenomen door het bussta on.

Op het Bolivarplein zouden de gevels vooral worden geac veerd door voorzieningen. Voorzieningen van een zekere omvang zouden minder toegangen krijgen. Deze concentra e van voorzieningen op de as zal a priori een minder grote verscheidenheid aan bestemmingen genereren.

Het alterna ef stelt voor om het huizenblok van het sta on te ac veren aan de kant van de Aarschotstraat. Afgaande op de plannen van het sta on lijkt dit voorstel technisch gezien weinig realis sch.

De Kwatrech unnel is een zone die volgens de analyse van de diagnose meer zou moeten worden geac veerd. De aanwezigheid van het overdekte bussta on aan de ene kant en van een groene ruimte aan de andere kant, gekoppeldaandeontwikkeling vaneenloopbrug diedetunnelontdubbelt,lijktdeac veringvandezezoneechter niet te bevorderen. Bij het ontwerp van deze weinig kwaliteitsvolle en mogelijk weinig ac eve ruimten moet dus specifiek aandacht worden besteed aan de veiligheid.

In het algemeen is de huisves ngsfunc e voorbehouden voor de hogere verdiepingen van verschillende gebouwen, dus overal in het gebied zonder visuele link met de openbare ruimte. Buiten de openingsuren van de kantoren, handelszaken en voorzieningen zal de openbare ruimte dus niet echt worden ‘geac veerd’, of slechts punctueeldoorenkeleac viteiten/horecazaken,temeer omdathetalterna efgeen toegangtotde hogergelegen func es voorziet via de weg.

Hoofdstuk III / Afdeling 3 Effectenbeoordeling / B - ruimtelijke alterna even / p. 253
In het oranje de verdieping op het sta onsniveau in het huizenblik CCN aan de kant van het Bolivarplein, in het geel de halfondergrondse verdieping op het stadsniveau aan de kant van het Bolivarplein – BRAT 2022
STEDELIJKE DYNAMIEK STEDELIJKE DYNAMIEK

Gemengdgebiedmet handelszakenen voorzieningen

Aanbevolenlokalisae voordevoorzieningen

Gevelsindeopenbare ruimtegeacveerd,in samenhangmetde doortochtvan voetgangers

Gevelsindeopenbare ruimtegeacveerd, uitsluitendin samenhangmetde mobiliteit(ingangen staon+metro+ fietsparking)

Ac vering van de openbare ruimte via de benedenverdiepingen in alterna ef 2 - op basis van de schema’s 1010au

Hoofdstuk III / Afdeling 3 Effectenbeoordeling / B - ruimtelijke alterna even / p. 254
2 STEDELIJKE DYNAMIEK
Alterna ef
Stadsniveau
STEDELIJKE DYNAMIEK
Sta onsniveau

De binnenstraat is op het stadsniveau niet langer overdekt. Aan de kant van het sta on wordt ze geac veerd door het fietsparkeren, de sta onsingang en de handelszaken/voorzieningen. De ruimte die wordt voorgesteld in het noordelijkedeelvanhetsta onimpliceertdateenaantaltechnischelokalenmoetenwordenverplaatst.Ditvereist een technische uitvoerbaarheidsstudie en is dus minder zeker. De andere al bestaande ruimten, of de ruimten die nu worden gebruikt als kantoor, vragen minder wijzigingen en zijn a priori eenvoudiger te realiseren. Aan de kant van het CCN ligt in een derde van de zuidkant het bussta on. Voor de rest wordt de straat geac veerd via de benedenverdiepingen. Het feit dat er meer gebruikers passeren en de gevels worden geac veerd, zou de straat veiliger moeten maken. De hekken en andere ‘defensieve’ inrich ngen aan de sta onsgevel kunnen worden verwijderd zodat de gevel beter wordt geaccentueerd. Bij het openleggen van deze straat moet ook worden nagedacht over het beheer ervan. Dat is momenteel in handen van de NMBS (die de straat ‘s nachts afsluit). Het bussta on, aan de andere kant van het huizenblok, ligt langs het zuidelijke deel van de kleine Vooruitgangstraat. Het voorgestelde ruimtelijke alterna ef gee geen duidelijke informa e over de niveauverschillen. Het bussta on kan dus lager komen te liggen (zoals in de huidige toestand) of op hetzelfde niveau (dat is mogelijk als er geen plaat wordt ontwikkeld op het sta onsniveau, zie structuur van de open ruimten). De voorzieningen en handelszaken op deze plaats kunnen dus op het sta onsniveau worden geves gd, d.w.z. hoger gelegen (in het eerste geval), of op de eerste verdieping (boven het gelijkvloerse bussta on) in het tweede geval. In dit tweede geval gaat de voorkeur uit naar voorzieningen van een zekere omvang waarvan de ingang zich op de hoek van het Bolivar-voorplein/Bolivarplein zou bevinden.

Het Bolivar-voorplein hee een mooie breedte en ligt eveneens in de open lucht. Er rijden geen bussen, zodat de bestaande leemte (bussta on) op het hele plein kan worden ingevuld met gebouwen ‘op niveau’, met volledige (en geen halfondergrondse) puien. Een deel van het voorplein wordt geac veerd door de metro-ingang, de rest door de func es op de benedenverdiepingen en/of verdiepingen (bijvoorbeeld voorzieningen).

Het alterna ef voorziet geen plaat boven de openbare ruimten. De hoofdingang van het sta on bevindt zich op het sta onsniveau (sta onshal). Er moet dus een toegang naar deze verdieping worden ingericht vanaf de binnenstraat ter hoogte van het Bolivar-voorplein. De ingang op het stadsniveau is voorzien van roltrappen en li en zodat er alleen nog trappen nodig zijn. Via een rondgang (of ander systeem) kunnen deze trappen worden verbonden met de 5 dubbele deuren op deze verdieping die dienst doen als nooduitgang van het sta on.

Benedenverdieping Bolivarplein Sta on STEDELIJKE DYNAMIEK

Dwarsdoorsnede in het bestaande huizenblok CCN met plaat die doorloopt op het nieuwe Bolivar-voorplein (geel) en opgaande helling naar de sta onshal (oranje) - op basis van doorsnede 1010au

Het sta on zelf is oversteekbaar op het stadsniveau (tussen de binnenstraat en de Aarschotstraat). Volgens de plannen van het sta on lijkt dit voorstel mogelijk, maar een terreinbezoek wees anders uit voor de 2 centrale doorgangen (1010au).

HetSolvaypleinisbevrijdvan hetbussta onenwordtoverde helegevelvanhetCCNenNorthGalaxy geac veerd. De ac vering van de binnenstraat in die rich ng bevordert ook de doorgang en ac vering van het plein.

Het Noordplein wordt volledig ingenomen door het bussta on waarboven zich een gebouw bevindt.

Op het Bolivarplein zouden de gevels vooral worden geac veerd door handelszaken.

De sta onsingangen in de Aarschotstraat zouden worden gecombineerd met handelszaken. Afgaande op de plannen van het sta on lijkt dit voorstel technisch gezien weinig realis sch.

Sta onshal STEDELIJKE DYNAMIEK

Hoofdstuk III / Afdeling 3 Effectenbeoordeling / B - ruimtelijke alterna even / p. 255
De Kwatrech unnel is een zone die volgens de analyse van de diagnose meer zou moeten worden geac veerd. Het alterna ef voorziet in de ontwikkeling van een echte, geac veerde openbare ruimte op het Solvayplein, maar ook in de ac vering van de tunnel door fietsparkeerplaatsen. Deze sta onsingang wordt daardoor heel belangrijk voor heel wat fietsers in het gebied. Al deze voorstellen bevorderen de ac vering en beveiliging van de tunnel. Toegangtothet staon

De huisves ngsfunc e wordt ver caal ontwikkeld. De openbare ruimten aan de voorgestelde torens zouden rechtstreeks verbonden zijn met deze func e en ook buiten de openingsuren van de kantoren, handelszaken en voorzieningen worden geac veerd. Alleen de Bolivar-as zou dat voordeel niet genieten. Het alterna ef voorziet bovendien veelvuldige toegangen tot de hoger gelegen func es (twee per wegdeel).

Alterna ef 3

Gemengdgebiedmet handelszakenen voorzieningen

Aanbevolenlokalisae voordevoorzieningen

Gevelsindeopenbare ruimtegeacveerd,in samenhangmetde doortochtvan voetgangers

Gevelsvande halfondergrondse ruimten

Gevelsindeopenbare ruimtegeacveerd, uitsluitendin samenhangmetde mobiliteit(ingangen staon+metro+ fietsparking)

Zonesvoorhetpubliek overdektmeteen plaat

Zonesvoorhetpubliek overdektop grondplaat

Hoofdstuk III / Afdeling 3 Effectenbeoordeling / B - ruimtelijke alterna even / p. 256
STEDELIJKE DYNAMIEK
Stadsniveau
STEDELIJKE DYNAMIEK
Sta onsniveau

Ac vering van de openbare ruimte via de benedenverdiepingen in alterna ef 3 - op basis van de schema’s 1010au

De binnenstraat wordt enkel geac veerd door de ingangen van het sta on en de fietsparking. Ter hoogte van het CCN ligt het lager gelegen bussta on langs de hele straat net als in de bestaande toestand. De straat is niet overdekt maar er lopen 3 loopbruggen boven die het CCN-gebouw op het sta onsniveau verbinden met het sta onsgebouw. Bij het openleggen van deze straat moet ook worden nagedacht over het beheer ervan. Dat is momenteel in handen van de NMBS (die de straat ‘s nachts afsluit).

Het Bolivar-voorplein zou op stadsniveau uitsluitend worden geac veerd door de mobiliteit (ingang van de metro) en op sta onsniveau door handelszaken die uitgeven op de plaat.

Het huidige stadsniveau van het Bolivar-voorplein ligt in realiteit lager dan dat van het Bolivarplein (~2m) en ook lager dan de sta onsingang op stadsniveau (~1m) (zie onderstaande doorsnede). Het ruimtelijke alterna ef behandelt deze problema ek niet eenduidig, maar door de overdekking van deze halfondergrondse ruimte met een plaat lijkt het niet mogelijk om het sta on en het Bolivarplein op hetzelfde niveau te brengen, vooral omdat de bussen op dit niveau rijden. De toegang tot het stadsniveau van het Bolivar-voorplein, halfondergronds en onder een plaat, geschiedt aan de ene kant via trappen en aan de kant (Bolivar/sta on) zoals in de huidige toestand. Het is belangrijk dat het BBP ervoor zorgt dat deze ruimten onder de plaat, die toegang verlenen tot de enige metro-ingang en tot een sta onsingang, verzorgd worden opgevat en kwaliteitsvol zijn, ondanks het feit dat ze overdekt zijn en ondanks de niveauverschillen.

Hoofdstuk III / Afdeling 3 Effectenbeoordeling / B - ruimtelijke alterna even / p. 257
Stadsniveau Staonsnivea u Bolivarplein Huizenblok CCN Sta on
STEDELIJKE DY NAMIEK Bus Sta
STEDELIJKE DYNAMIEK
onshal

Dwarsdoorsnede in het bestaande huizenblok CCN met de huidige verlaging die wordt behouden op het nieuwe Bolivarvoorplein (in het geel) en het sta onsniveau dat de sta onshal verlengt tot aan het Bolivarplein (in het oranje) - naar doorsnede 1010au

Langs de handelszaken/voorzieningen op het stadsniveau in het huizenblok CCN zou aan de oostkant het bussta on worden geplaatst. Ze zouden dus eerder uitgeven op de kleine Vooruitgangstraat, het Bolivarplein en het Noordplein. Deze handelszaken liggen vanwege het bussta on halfondergronds (behalve op het Noordplein dat eveneens een ‘put’ vertoont), zoals is te zien op de onderstaande foto.

In het oranje de verdieping op het sta onsniveau in het huizenblik CCN aan de kant van het Bolivarplein, in het geel de halfondergrondse verdieping op het stadsniveau aan de kant van het Bolivarplein – BRAT 2022

De organisa e van het sta on, eerder gecentreerd rond de sta onshal, maakt geen verbinding met buiten, behalve de inkomdeuren in deze zaal. Dit is coherent met de ontwikkeling van loopbruggen die enkel publiek aantrekken naar deze toegangen en niet naar de hele binnenstraat (zoals in alterna ef 1).

Het Solvayplein is bebouwbaar. Er kan een gebouw voor voorzieningen worden ontwikkeld. De Solvay-as wordt daardoor tot op die plaats geac veerd. De mogelijkheid om er grote voorzieningen te ontwikkelen bevordert niet specifiek meerdere ingangen of een ac vering van alle gevels op deze as. Het BBP kan de projecten in die zin omkaderen.

Het Noordplein wordt voor een deel ingenomen door het bussta on, maar biedt een aanzienlijke opening en kan worden geac veerd via de huizenblokken CCN en Proximus.

Op het Bolivarplein zouden de gevels vooral worden geac veerd door handelszaken.

De ac vering van de Aarschotstraat blij ongewijzigd ten opzichte van de huidige toestand.

De Kwatrech unnel is een zone die volgens de analyse van de diagnose meer zou moeten worden geac veerd. Het alterna ef voorziet in de ontwikkeling van een gebouw van voorzieningen in de directe omgeving en van een ander gebouw op het perceel van het Medical Center maar ook in de ac vering van de tunnel door fietsparkeerplaatsen. Deze sta onsingang wordt daardoor heel belangrijk voor heel wat fietsers in het gebied. Al deze voorstellen bevorderen de ac vering en beveiliging van de tunnel.

De huisves ngsfunc e wordt ver caal ontwikkeld. De openbare ruimten aan de voorgestelde torens zouden rechtstreeks verbonden zijn met deze func e en ook buiten de openingsuren van de kantoren, handelszaken en voorzieningen worden geac veerd. Alleen de Solvay-as zou dat voordeel niet genieten.

Het alterna ef voorziet per huizenblok slechts één toegang tot de hoger gelegen func es, wat niet bevorderlijk is voor dit criterium.

Hoofdstuk III / Afdeling 3 Effectenbeoordeling / B - ruimtelijke alterna even / p. 258
STEDELIJKE DYNAMIEK STEDELIJKE DYNAMIEK

AANBEVELINGEN

Op basis van de analyse van de 3 alterna even kunnen voor dit criterium de volgende aanbevelingen worden geformuleerd:

- De stationsgevel op het stadsniveau activeren voor zover dit technisch uitvoerbaar is, indien mogelijk ook aan de kant van het Solvayplein om er publiek aan te trekken en het plein tot leven te brengen.

Voor zover dit technisch en operationeel uitvoerbaar is, de binnenstraat niet volledig overdekken met een plaat zodat de natuurlijke lichtinval en de kwaliteit van deze ruimte gegarandeerd is, de pas gerenoveerde gevel wordt geherwaardeerd en deze ruimte kan worden gebruikt als een openbare ruimte in plaats van als een technische gang.

- Het Bolivar-voorplein niet bedekken met een plaat zodat het gelijk ligt met het Bolivarplein en de stationsingang op het stadsniveau, de problematieken worden opgelost en deze grote openbare ruimte (intermodaal knooppunt) kwaliteitsvol kan worden ingericht.

- het Solvayplein niet bedekken met een plaat.

- de huidige toestand in de Aarschotstraat niet wijzigen (technisch uitvoerbaar)

- de Kwatrechttunnel activeren door er een fietsparking te ontwikkelen

- de openbare ruimten activeren door minstens punctueel woningen te vestigen op de ‘lage’ verdiepingen (evenwel rekening houdend met de andere criteria zoals het geluid - zie wisselwerkingen tussen criteria).

Voorbeeldvaneen‘korte’plaat diewordtaanbevolenalseen plaatmoetwordenbehouden.

- meerdere toegangen tot de hoger gelegen functies voorzien op de verschillende wegdelen

Als bij de keuze van de plaats van het bussta on de voorkeur zou uitgaan naar de alterna even 1 of 3, waarbij de bussen over het Bolivar-voorplein rijden en er daarom een plaat moet worden ontwikkeld, wordt aanbevolen om deze plaat te beperken tot de sta onsingang en de zone voor de bussen, het Bolivar-voorplein zoveel mogelijk in de open lucht te plaatsen en het voldoende breed te maken zodat het zijn plaats kan innemen in het centrale intermodaal knooppunt. Deze ruimte vertoont al een verlaging vanwege de doorgang van het bussta on. Er moet dus worden gezorgd voor een natuurlijke lich nval, een correcte toegankelijkheid en duidelijkheid om de risico’s dat een weinig kwaliteitsvolle ruimte wordt ontwikkeld te beperken. Bovendien zou op het Bolivarvoorplein een ‘stadsniveau’ kunnen worden gerecupereerd aan de kant van het Bolivarplein en zou de ‘put’ enkel worden behouden aan de zone voor de bussen (zie onderstaande dwarssnede). Door het niveauverschil zouden langs het voorplein ruimten kunnen worden ontwikkeld met simili-volle grond (>1m substraatdikte).

Dwarsdoorsnede in het bestaande huizenblok CCN met de beperkte verlenging van het sta onsniveau (in het oranje) en de verlaging die is beperkt tot het bussta on; het Bolivarplein wordt op gelijkvloers niveau verlengd op het nieuwe Bolivarvoorplein wat de verbinding tussen de sta onshal en Bolivar bevordert - naar doorsnede 1010au.

Hoofdstuk III / Afdeling 3 Effectenbeoordeling / B - ruimtelijke alterna even / p. 259
-
Stadsniveau Korteplaat Bolivarplein Huizenblok CCN Sta on Bus
Sta onshal STEDELIJKE DYNAMIEK

Het Bolivarplein is intrinsiek een drukke doorgangsplaats. Als er een kwaliteitsvolle groene ruimte wordt ontwikkeldenergeen busterminusmeerwordtgeplaatst,zoudekwaliteithetverblijfkunnenbevorderenendeze openbare ruimte kunnen ac veren zonder dat ac vering via voorzieningen en handelszaken noodzakelijk is. De visuele en fysieke verbinding met het Noordsta on, de afdalingen naar de metro, de fietsparking en de mobiliteitshub in het algemeen zijn van wezenlijk belang. Daarom wordt aanbevolen om de handelszaken en voorzieningen die worden ontwikkeld in het huizenblok CCN ook te richten naar het Bolivarplein: ideaal zijn ze op gelijkvloers niveau toegankelijk vanaf dit plein, zoals hierboven wordt voorgesteld (korte plaat).

Op het Solvayplein zou het ideaal zijn als het bussta on er niet meer wordt geplaatst. Zo kan de sta onsgevel worden geac veerd en kan het plein zijn voordeel doen met de ac vering van de Kwatrech unnel via de fietsparking. In alle gevallen moeten de voorzieningen en handelszaken op de omliggende benedenverdiepingen (huizenblokken CCN en North Galaxy), gelegen op hetzelfde niveau als de openbare ruimte, dit plein ac veren door een poreuze interface te bieden (meerdere ingangen, transparan e en uitzichten op het interieur ...). Het plein moet worden geac veerd door deze handelszaken/voorzieningen op de benedenverdiepingen aangezien er op de lagere verdiepingen waarschijnlijk geen woningen zullen worden geplaatst (vanwege het weg- en spoorverkeer) die het plein ‘s avonds visueel ac veren. Opdat deze gevels het plein daadwerkelijk zouden ac veren, mag het interna onale bussta on er niet opnieuw worden geplaatst. Het feit dat de binnenstraat niet meeroverdektis, bevordert ookdedoorgangtussende sta onsingang en hetSolvayplein enzalhet plein mogelijk ac veren aan de kant van het CCN.

Bovendien dient opgemerkt dat de dialoog tussen de openbare ruimte, de func es en de architectuur bepalend is voor de ac vering van de benedenverdiepingen. Voorschri en over de porositeit van de gevels (transparan e, aantal toegangen ...) zouden nu g zijn om de dialoog met de openbare ruimte te bevorderen. In de Noordwijk worden nu en in de toekomst heel wat veranderingen doorgevoerd. Bijzondere aandacht moet worden besteed aan de ac vering van de openbare ruimte, in samenhang met de vele toekoms ge werven.

Hoofdstuk III / Afdeling 3 Effectenbeoordeling / B - ruimtelijke alterna even / p. 260
STEDELIJKE DYNAMI EK STEDELIJKE DYNAMIEK

GELUID EN TRILLINGEN

ELEMENTEN UIT DE DIAGNOSE

De hele perimeter van het BBP is gelegen in een zeer lawaaierige geluidsomgeving. De belangrijkste bronnen van geluidshinder zijn het wegverkeer (waaronder de bussen) en het spoorverkeer. De wegen met de grootste geluidsimpact zijn de Albert II-laan, de Solvay-as, het noordelijke deel van de Vooruitgangstraat, de Koolbrandersstraat en de noordkant van het Bolivarplein. De Lden-geluiddrukniveaus liggen er hoger dan 70 of zelfs 75 dB(A), dus hoger dan de meer dan de noodinterven ewaarden.

De perimeter bevat geen gevoelige func es (woningen, ziekenhuizen, scholen), met uitzondering van de groene ruimte in de Albert II-laan waar de geluidshinder een impact hee op de verblijfskwaliteit.

Lden-indicatorenvoorhetspoorweggeluid(bovenaanlinks),verkeersgeluid(bovenaanrechts)enhetmulindicatorgeluid(onderaan)(LeefmilieuBrussel,2016)

TENDENTIEEL ALTERNATIEF

DeAlbertII-asendeSolvay-as zijnvolgensdeMWS-comfortwegenvoorhetauto-enhetvrachtverkeer.Hetgeluid op deze assen zal worden gehandhaafd (aanvankelijk toename en vervolgens vermoedelijk vermindering van het verkeer met 6 à 10 % tegen 2030). Ook de geleidelijke elektrifica e van de voertuigen zal bijdragen tot een daling van het geluid, maar slechts in beperkte mate33

De geleidelijke elektrifica e van de bussen van De Lijn en de MIVB zou eveneens de impact van deze voertuigen op het algemene geluidsniveau in de wijk moeten verlagen.

Het traject van de toekoms ge trams (De Lijn en MIVB) loopt over het Bolivarplein en rond het huizenblok Proximus tot aan enerzijds het Noordplein en anderzijds het westen van de Koolbrandersstraat. De trams maken

33 - de decibels worden niet rekenkundig bij elkaar opgeteld, dus bijna alle voertuigen zouden elektrisch moeten zijn om het verschil te horen,

- tegen 2035 moeten alle auto’s en bestelwagens elektrisch rijden, maar niet de vrachtwagens en autocars,

- boven een bepaalde snelheid (~30km/u zijn ook elektrische en thermische voertuigen lawaaierig omdat de rij- en aerodynamische geluiden de bovenhand hebben. Daarbij komt dat Europa oplegt dat elektrische voertuigen aan een snelheid van minder dan 20 km/u een geluid genereren tussen 56 en 75B om de veiligheid voor slechtzienden te verhogen.

Hoofdstuk III / Afdeling 3 Effectenbeoordeling / B - ruimtelijke alterna even / p. 261
MENSELIJKE OMGEVING
MENSELIJKE OMGEVING

dus 2 bochten, wat een bijkomende bron van geluid en trillingen betekent in vergelijking met de bestaande toestand.

Vanwege de globaal gezien lawaaierige context en het bestaan van de premetro in de huidige toestand, zal de toekoms ge nieuwe Metro Noord waarschijnlijk geen significante impact hebben op de perimeter. Hetzelfde geldt voor de Noord-Zuidverbinding waarvan de frequenta e de komende jaren niet significant zal toenemen.

Volgens het BBP kan het afleveren van de vergunning onderworpen worden aan de naleving van de voorwaarden betreffende de rust van het milieu en de hinder voor de buurt (art. 4) en zijn de gebouwen van overheidsdiensten en collec eve voorzieningen toegelaten voor zover ze verenigbaar zijn met de algemene bestemming van de betrokken zone (art.5).

VERGELIJKING VAN DE ALTERNATIEVEN Hypothesen

Een hypothese is dat de 3 alterna even gelijkwaardig zijn voor wat het verkeer van taxi’s en de kiss-and-ride betre .Hetgeluiddathierdoorwordtgegenereerd,zalgelijkwaardigzijnmethetgeluidin debestaandetoestand. De 3 alterna even spreken zich niet uit over de lokalisa e van het interna onale bussta on. Vermoedelijk blij het op zijn huidige plaats, namelijk het noordelijke deel van de kleine Vooruitgangstraat, ondanks de nega eve impact op andere criteria (kwaliteit van het Solvayplein, ac vering van de openbare ruimte via de benedenverdiepingen ...).

Het verkeer voor leveringen zal globaal gezien toenemen omdat er meer handelszaken en voorzieningen zullen zijn (zie analyse van de programmatorische alterna even).

Huisves ng is de func e die het meest gevoelig is voor geluidshinder. Dat geldt ook voor enkele voorzieningen (bijvoorbeeld scholen). Zonder bijkomende informa e zullen we de posi onering van deze 2 gevoelige func es analyseren ten aanzien van het geluid in het gebied.

Gemeenschappelijke punten van de 3 alterna even

In de 3 alterna even wordt voorzien dat het doorgaand verkeer viadeKoolbrandersstraatwordtverhinderd.HetNoordplein,van de Vooruitgangstraat tot aan de uitrit van de ondergrondse parking, zal dus voorbehouden blijven voor de zachte verplaatsingswijzen en het openbaar vervoer (zie hiernaast). Het geluid van het autoverkeer op deze assen zal dus eveneens afnemen. Hetzelfde geldt voor het Bolivar voorplein. Er dient opgemerkt dat het geluid en de trillingen gegenereerd door de doortocht en het halt houden van bussen aanwezig zal blijven en dat in deze ruimen ook de tram zal rijden. Het verkeer zal mogelijk verschuiven naar de meer zuidelijk gelegen Georges Matheusstraat langswaar het van de Albert II-laan naar de Vooruitgangstraat kan rijden.

Autovrijezone(geel),businhetoranje(punt +halte,arcering=staon,lijn=doortocht) entram(zalmkleurigesppellijn).

De3alterna evenstellenvoorom hetbussta on(minstensvoor een deel) te overdekken met één of meerdere gebouwen. De trillingen veroorzaakt door de bussen kunnen een impact hebben op de binnenruimten die grenzen aan het bussta on (ernaast en erboven) en op de kwaliteit en het verblijfscomfort daarvan. Deze elementen moeten worden geanalyseerd in het stadium van de projecten, maar het BBP zou dienaangaande al voorschri en kunnen voorzien.

In alle alterna even lijken er transversale openingen te worden voorzien in de sokkels van de huizenblokken Proximus en North Galaxy. Het geluid kan zich daardoor makkelijker verspreiden waardoor het geluidsniveau in deze huizenblokken zal toenemen.

A ankelijk van de exacte posi onering van de gebouwen moeten in het stadium van de concrete projecten nauwkeuriger analyses worden verricht om de schermeffecten van bepaalde gebouwen op de andere te evalueren. Bij deze analyse moet vooral rekening worden gehouden met de lokalisa e van de func es aangezien huisves ng en voorzieningen gevoelig zijn voor geluidshinder.

Hoofdstuk III / Afdeling 3 Effectenbeoordeling / B - ruimtelijke alterna even / p. 262
MENSELIJKE OMGEVING
MENSELIJKE OMGEVING

In de 3 alterna even bevindt de uitrit van de ondergrondse parking van het CCN zich aan de straatkant op het Noordplein. Omdat de alterna even slechts schema sch zijn, moet worden nagegaan of deze lokalisa e een op maal draaien van de trams (niet te scherpe bochten) mogelijk maakt en dus het geluid gegenereerd in de bochten beperkt.

Het Bolivarplein zal door de opening in het CCN-gebouw in de 3 alterna even mogelijk meer worden blootgesteld aan het geluid van het spoorverkeer. Omdat de spoorweg echter hoger ligt dan het plein, en aan de andere kant van het sta onsgebouw (dat dus een scherm vormt), zal de geluidshinder beperkt blijven. De context is bovendien al lawaaierig.

Op het Solvayplein zal het verkeersgeluid waarschijnlijk ongewijzigd blijven. Volgens de MWS is het immers een Comfortweg voor auto’s en vrachtverkeer (aanvankelijk toename en vervolgens vermoedelijk vermindering van het verkeer met 6 à 10 % tegen 2030). Omdat de ingang van de ondergrondse parking van het huizenblok CCN zich op dit plein bevindt, zal dit eveneens geluidshinder genereren gezien de noodzakelijke manoeuvres en snelheidswijzigingen. Ook de lokalisa e van het interna onale bussta on hee in de 3 alterna even a priori een nega eve impact op dit plein.

Het Noordplein zal in de 3 alterna even de impact ondergaan van de toekoms ge trams en de uitrit van de ondergrondse parking van het huizenblok CCN. Auto’s zijn op dit plein echter niet toegelaten en zullen er dus minder geluidshinder genereren.

Alterna ef 1

Alle woningen zijn gelegen op de bovenverdiepingen. Enerzijds zijn ze verderverwijderdvan degeluidsbronnen,anderzijdsondergaanzede geluidshinder van meer bronnen in een ruimere perimeter, waaronder het spoorverkeer. Op de ruimten onder het niveau van de spoorwegen hee het spoorverkeer minder impact.

Impact van de mobiliteit

De woningen zijn verdeeld over alle gebouwen. Ze zijn talrijk in de Solvay-as (Auto en VV Comfort volgens de MWS), maar ook op de knelpunten van het tramverkeer (afslagplaatsen in de kleine Vooruitgangstraat/Noordplein en kleine Vooruitgangstraat/Bolivarplein).

Het op het plein voorziene volume verhindert het op maal draaien van de tram, die dus ofwel een smallere bocht moet maken (uitvoerbaarheidonzeker),ofwelmoethetgebouwoverkragenboven de tram, wat onguns g is voor het geluids- en trillingsniveau in de binnenlokalen (a priori handel, dus geen gevoelige func e).

De 3 volumes bij het sta on omva en woningen op de bovenverdiepingen waarvan de 3 gevels sterk zijn blootgesteld aan het spoorweggeluid. A ankelijk van het gebouw is de laatste gevel blootgesteld aan ofwel het geluid van draaiende trams, ofwel het geluid van het interna onale bussta on.

De voorzieningen zijn gelegen in de Bolivar-as, waar het rus ger is.

Het verkeersgeluid in de Albert II-laan botst niet op een significant scherm in de huizenblokken en kan zich dus ruimer verspreiden in de perimeter en de huizenblokken (westelijke gevels van de huizenblokken North Galaxy en Proximus).

De posi e van het bussta on impliceert dat de busstromen over de hele lengte van het sta on worden verdeeld. De overdekte binnenstraat kan een scherm vormen tegen het geluid van de bussen voor de bovenste verdiepingen van het huizenblok CCN, maar concentreert dit geluid onder de plaat. Het keren en stoppen van de bussen op het Bolivarplein zal een nega eve impact hebben op het geluidscomfort.

Posioneringvandewoningen(groen)en devoorzieningen(rood)–1010au

Posioneringvanhetbusstaon (gearceerd),debusstromen(oranje)en detramstromen(zalmkleurigesppellijn) envandeplaatvanhetstaonsniveau (blauw)-1010au

Hoofdstuk III / Afdeling 3 Effectenbeoordeling / B - ruimtelijke alterna even / p. 263
MENSELIJKE
OMGEVING
MENSELIJKE
OMGEVING

Behalve aan het geluid van het verkeer op de Solvay-as is het Solvayplein, gelegen op het sta onsniveau meer blootgesteld aan het spoorweggeluid dan het stadsniveau. Het onderste niveau van de plaat (niveau van de openbare ruimte) is beschut tegen het geluid van het spoorverkeer maar wordt bijna volledig ingenomen door de inrit van de parking van het CCN en door de draairuimte aan het bussta on. Het geluidscomfort in deze ruimte is dus beperkt.

Het Noordplein ligt ‘ingeklemd’ tussen hoge gebouwen (die poten eel het geluid weerkaatsen), de spoorweg en het bussta on dat wordt uitgebreid (naast halte ook terminus). Ook hier is het geluidscomfort dus poten eel beperkt.

Gemengdheid

De woningen bevinden zich op de bovenverdiepingen en ondergaan waarschijnlijk weinig impact van de andere func es (voorzieningen, horeca ...).

A ankelijk van de posi onering van de gebouwen in de kleine Vooruitgangstraat zal de geluidsweerkaatsing poten eel problema sch zijn.

Groene ruimte

Dit alterna ef wil een groene ruimte ontwikkelen op het perceel van het Medical Center. Naast deze groene ruimte zal het perceel ook een zuiveringssta on, de nooduitgangen van de metrotunnel, de uitgang van de plaat op het sta onsniveau en de uitgang van de premetro omva en. Er zal dus slechts een beperkte groene ruimte kunnen worden ontwikkeld. De lokalisa e langs de spoorrails en een comfortweg voor auto’s en vrachtverkeer impliceert dat deze ruimte ruim de impact van het omgevende geluid zal ondergaan.

Leveringen

De logis eke toegangen tot de huizenblokken zijn vooral gelegen op de VV Comfortwegen (de Albert II-as en de Solvay-as). Slechts één toegang bevindt zich in de kleine Vooruitgangstraat. Er wordt aanbevolen om alle leveringen te beheren vanaf de assen en dus om de toegang via de Kleine vooruitgangstraat op te heffen. Het Solvayplein wordt omringd door logis eke toegangen die een nega eve impact zullen hebben op het geluidscomfort.

Alterna ef 2

Impact van de mobiliteit

De woningen zijn verdeeld langs de gemotoriseerde assen, namelijk Solvay en Albert II (Auto en VV Comfort volgens de MWS), op een knelpunt van de tram (afslagplaats kleine Vooruitgangsstraat/Noordplein) en ter hoogte van het interna onaal bussta on (noordelijk deel van de kleine Vooruitgangstraat). Er zijn geen woningen gelegen in de Bolivar-as, waar het rus ger is. Het Bolivarplein ondervindt weinig geluidshinder van het bussta on aangezien er gen keerzones of eindhaltes zijn gelegen.

De twee volumes bij het sta on beva en woningen, maar de gebouwen staan zo ver mogelijk van de rails en zijn slechts aan één kant blootgesteld aan het spoorweggeluid.

De voorzieningen worden bij voorkeur geplaatst in de kleine Vooruitgangstraat die het geluid en de trillingen ondergaat van de interna onale bussen en van de doortocht en het afslaan van de trams.

Posioneringvandelogiseke toegangenendetoegangentotde parkingsvandehuizenblokken

Posioneringvandewoningen(groen)en devoorzieningen(rood)–1010au

Hoofdstuk III / Afdeling 3 Effectenbeoordeling / B - ruimtelijke alterna even / p. 264
MENSELIJKE OMGEVING MENSELIJKE OMGEVING

Omdat het bussta on op het Noordplein staat, ondergaat dat daarvan de impact. Het plein concentreert dus de geluiden gegenereerd door de bussen, de trams en de trein (Noordtunnel). Er wordt aanbevolen om er geen woningen of voorzieningen te ontwikkelen.

Het Solvayplein, waarop de Amelinck-toren uitgee , is gevrijwaard van de geluidshinder a oms g van het bussta on. Dit plein, met woningen en voorzieningen, isechter wel een Auto en VV Comfortweg. Op termijn zou de vermindering van het verkeer, zoals voorzien in het plan Good Move, de impact van het wegverkeer op deze func es moeten verminderen. De spoorweg blij echter aanwezig en hee een impact op de ontwikkelde func es. Het plein ligt lager dan de spoorweg, wat guns g is voor het geluidscomfort. Het interna onaal bussta on blij echter een bron van geluidshinder.

Het Noordplein is in dit alterna ef geen groene verblijfsruimte.

Groene ruimte

Dit alterna ef stelt voor om alle eindhaltes van de bussen (De Lijn en MIVB)tegroepereninhetbussta onenomhetBolivarpleintebevrijden van deze geluidsbron. Bovendien komt zo ruimte vrij voor de ontwikkeling van een grotere groene ruimte (~3000 m²) en minder geluidshinder. Als deze ruimte van behoorlijke kwaliteit is en voldoende groen bevat, kan ze een bufferzone vormen in de wijk (een s ltegebied in een voor het overige lawaaierige stedelijke omgeving).

Leveringen

De logis eke toegangen tot de huizenblokken zijn vooral gelegen op de VV Comfortwegen (namelijk Albert II en Solvay). Slechts één toegang bevindt zich in de kleine Vooruitgangstraat. Het Solvayplein wordt omringd door logis eke toegangen die een nega eve impact zullen hebben op het geluidscomfort.

Posioneringvanhetbusstaon (gearceerd),debusstromen(oranje)en detramstromen(zalmkleurigesppellijn) -1010au

Posioneringvandelogiseke toegangenendetoegangentotde parkingvandehuizenblokken(rode pijlen)-1010au

Hoofdstuk III / Afdeling 3 Effectenbeoordeling / B - ruimtelijke alterna even / p. 265
MENSELIJKE OMGEVING
MENSELIJKE OMGEVING

Alterna ef 3

Impact van de mobiliteit

De woningen zijn hoofdzakelijk verdeeld langs het Bolivarplein, de rus gste ruimte van het onderzochte gebied. Het plein wordt verkeersvrij gemaakt,dusbeschut tegenhetgeluidveroorzaaktdoorhet autoverkeer, maar de trams en bussen blijven aanwezig. Het Bolivarplein ondervindt weinig geluidshinder van het bussta on aangezien er gen keerzones of eindhaltes zijn gelegen.

Er dient opgemerkt dat enkele woningen worden geplaatst in de gemotoriseerde Albert II-laan (Auto en VV Comfort).

Het centrale volume van het huizenblok CCN is volledig bestemd voor woningen, maar ligt dichtbij het sta on en wordt dus sterk blootgesteld aan het spoorweggeluid (aan de 3 gevels). Het gebouw in het uiterste noorden van dit huizenblok bevat eveneens woningen, maar ligt zo ver mogelijk van de rails (>50m) en slechts één gevel wordt blootgesteld aan het geluid.

De voorzieningen worden geplaatst in het noordelijke deel van de kleine Vooruitgangstraat dat het geluid en de trillingen veroorzaakt door de interna onale bussen ondergaat, en op het Solvayplein en op het perceel van het Medical Center, gelegen langs auto en VV Comfortwagen (de frequenta e van deze assen zal op korte termijn toenemen maar op lange termijn dalen als het plan Good Move zijn doelstellingen hee bereikt).

De posi e van het bussta on impliceert dat de busstromen over de hele lengte van het sta on worden verdeeld. De binnenstraat is niet langer overdekt, wat het risico meebrengt dat het geluid in de hoogte wordt weerkaatst door de gebouwen. Omdat het alterna ef aan deze kant echter vooral gebouwen van beperkte hoogte voorziet, wordt dit risico verkleind. Het gebouw met de woningen ligt echter dichtbij de spoorweg (zoals al gezegd) en zal de geluidshinder ondergaan van zowel het spoorverkeer als het bussta on. Het Solvayplein is in dit alterna ef niet langer een openbare verblijfsruimte (maar enkel een weg) aangezien het wordt bebouwd. Het gebouwdaterwordtopgetrokkenkanechterdienstdoenals schermtussen het bussta on en de Amelinck-woontoren, wat posi ef zou zijn voor de woningen.

Het Noordplein is vrij breed en ondergaat weinig impact van het bussta on. Deze configura e biedt van de 3 alterna even het grootste geluidscomfort.

Groene ruimte

Dit alterna ef voorziet niet in groene ruimten van enig belang. Leveringen

Posioneringvandewoningen(groen)en devoorzieningen(rood)–1010au

Posioneringvanhetbusstaon (gearceerd),debusstromen(oranje)en detramstromen(zalmkleurigesppellijn) envandeplaatvanhetstaonsniveau (blauw)-1010au

Hoofdstuk III / Afdeling 3 Effectenbeoordeling / B - ruimtelijke alterna even / p. 266
MENSELIJKE OMGEVING
MENSELIJKE OMGEVING

De logis eke toegangen tot de huizenblokken zijn gelegen op VV Comfortwegen (namelijk Albert II en Solvay), wat op maal is gezien de kenmerkenvanhetgebied.De toegang tothetsta onviade Solvay-aswordt opgeheven, maar dat moet worden gecontroleerd door Infrabel. Deze toegang is mogelijk noodzakelijk voor de wreking van het sta on.

Posi onering van de logis eke toegangen en de toegangen tot de parkings van de huizenblokken (rode pijlen) - 1010au

Hoofdstuk III / Afdeling 3 Effectenbeoordeling / B - ruimtelijke alterna even / p. 267
MENSELIJKE OMGEVING

AANBEVELINGEN

Structuur van de bebouwde en open ruimten en lokalisa e van de func es

Gelet op de aanzienlijke verstedelijking van het gebied en het globale geluidsniveau is het wenselijk om zones te creëren met een lager geluidsniveau, d.w.z. met rus ger gevels aan de kant die het minst is blootgesteld aan het geluid (van het wegverkeer en het spoorverkeer). Het Bolivarplein is de rus gste plaats in het gebied. Als de woningendusnaaréénkantwordengeoriënteerd,danisdat bijvoorkeurnaarhet Bolivarplein.Voordewoningen in het huizenblok CCN moet worden opgelegd dat ze doorlopend moeten zijn zodat minstens één rus ge gevel kan worden voorzien die niet naar de spoorweg is gericht. Deze ruimten zouden ook aan de kant tegenover het bussta on kunnen worden geplaatst, wat eveneens guns g is als de binnenstraat wordt blootgelegd.

Viade openingeninde sokkels vandehuizenblokken ProximusenNorth Galaxy kanhetgeluidvan het wegverkeer zich makkelijker verspreiden en dus het geluidsniveau in de huizenblokken verhogen. Bij de vermindering van de grondinname voor deze huizenblokken moet met dit criterium rekening worden gehouden om geen nega eve impact te creëren op de gevels die hier uitgeven.

Een bouwfront aan de kant van het sta on kan dienst doen als scherm tegen het geluid van het spoorverkeer voor demeerwestelijkgelegenwoningen.Achterditscherm,datpoten eelhetgeluidvanhetbussta onkanopvangen (a ankelijk van de lokalisa e en de groo e van het sta onsniveau) zouden kantoren kunnen worden geplaatst, de func e die het minst gevoelig is voor geluid.

Hetfeitdathetbussta onwordtafgeslotenbiedtbeschermingtenaanzienvandeandereruimten,maarverhoogt de geluidshinder van de ruimten onder de plaat.

Als gevoelige voorzieningen (bijvoorbeeld scholen) worden ontwikkeld (zoals wordt aanbevolen in het deel programma e) worden die bij voorkeur in de rus ge zones van het gebied geplaatst.

In de openbare ruimten van het type ‘plein’ moet het geluidscomfort beter zijn dan in de rest van de openbare ruimte. Aan de pleinen moet dus bijzondere aandacht worden besteed: Bolivarplein en voorplein, Solvayplein en/of Noordplein, a ankelijk van de bebouwbaarheid die wordt gekozen.

Er wordt aanbevolen om geen gebouwd volume te voorzien in de op male afslagzone van de tram op de hoek van het Noordplein: als de uitrit van de ondergrondse parking meer naar achter wordt geplaatst, kan de tram een grotere bocht nemen en maakt hij minder lawaai. Als een gebouw wordt opgetrokken dat overkraagt boven deze afslagzone van de tram, gaat de voorkeur uit naar handel boven de andere func es die meer gevoelig zijn voor geluid.

Materialen en architectuur

Gezien de aanwezigheid van verschillende geluidsbronnen en de ontwikkeling van woningen, moet bijzondere aandacht worden besteed aan de gevelmaterialen van de gebouwen. De weerkaatsing van het geluid moet worden vermeden, maar ook de geluidshinder in de gebouwen. Te veel glas in de gevels wordt daarom afgeraden. Ook de geluidsisola e van degebouwenmoeteenbelangrijkerolspelenvoorhet geluidscomfortin degebouwen. De norm NBN S 01-400-1 (die niet verordenend is) bepaalt de geluidscriteria waarmee rekening moet worden gehouden bij woongebouwen en een nota van het Wetenschappelijk en Technisch Centrum vermeldt de geluidspresta es die voor de ruiten moet worden bereikt, a ankelijk van de geluidsomgeving, om aan die norm te voldoen. In de geluidsomgeving van dit gebied (lokaal meer dan 75dB(A)) kan het nodig zijn om de verhouding beglaasde oppervlakte in de gevels te beperken om aan die eisen te voldoen.

Bij de architectuur moeten ook inrich ngen worden voorzien die het geluid verzachten (ruwe gevels met bijvoorbeeld balkons die een scherm vormen, absorberende materialen, luchtdichtheid ...).

Lawaaierige wegdekken, bijvoorbeeld kasseien, moeten worden vermeden.

Groene ruimte

Er wordt aanbevolen om een voldoende grote groene ruimte te voorzien, zoals wordt voorgesteld in alterna ef 2, die een bufferzone kan vormen (doelstelling s ltegebied maar in een voor het overige zeer lawaaierige stedelijke omgeving). Deze ruimte moet kwaliteitsvol worden ingericht met een voldoende plantendichtheid.

Leveringen

Er wordt aanbevolen om alle leveringen te organiseren vanaf de assen en dus geen toegang meer mogelijk te maken via de kleine Vooruitgangstraat, zeker niet als daar woningen worden ontwikkeld.

Hoofdstuk III / Afdeling 3 Effectenbeoordeling / B - ruimtelijke alterna even / p. 268
MENSELIJKE OMGEVING MENSELIJKE OMGEVING

KWALITEIT VAN DE OPENBARE RUIMTEN VOOR VERPLAATSING EN VERBLIJF

ELEMENTEN UIT DE DIAGNOSE

De gezelligheid van de openbare ruimten wordt belemmerd door de ruimtelijke structuur van de plaatsen. De openbare ruimten staan immers vooral in dienst van het gemotoriseerd verkeer en hun dimensionering is niet aangepast aan de voetgangers. De torens accentueren de effecten van de wind in de openbare ruimte. De logica van monofunc onele kantoorgebouwen vertaalt zich in het ontstaan van backstreets (kleine Vooruitgangstraat, Koolbrandersstraat).

Het Bolivarplein wordt volledig ingepalmd door de mobiliteit (talrijke taxi’s, gemotoriseerde voertuigen die mensen naar het sta on brengen, MIVB-bussen die keren en twee eindhaltes, privépendelaars naar Thurn & Taxis…), ... Dit hee een nega eve impact op de verblijfskwaliteit (geluidshinder, geuren ...). Het plein lijdt ook onder schaduwvorming, weerkaatsingen en tocht vanwege de hoge gebouwen die het omringen.

De halfondergrondse verdieping van het CCN (bussta on) is geen kwaliteitsvolle openbare ruimte (schaarse verlich ng, gevoel van een technische tunnel, onveiligheidsgevoel, geuren van uitlaatgassen en urine) en is zeer moeilijktoegankelijkvoorPBM.Ditniveauwordtdoorsnedendoorstructuren(muren,trappen...)diededoorgang tussen het Bolivarplein en het sta on bemoeilijken.

Ookdebinnenstraathee desfeervaneentechnischetunnelenkamptmeteenonveiligheidsgevoel,maarminder dan het bussta on dankzij onder meer de renova e van de straat en de gevel die enkele maanden geleden werd voltooid.

Het Noordplein en het Solvayplein, gelegen rond het CCN-gebouw, vormen vanwege het drukke verkeer (bussen, taxi's)eenweinigkwaliteitsvolleinterface.Bovendienisereenniveauverschilmetdehalfondergrondseverdieping onder het CCN. Ook het Solvayplein ondergaat de impact van de schaduwvorming door de aanwezige gebouwen in de zone.

De niveauverschillen tussen de openbare ruimte en de voetgangerstoegang tot de verschillende gebouwen creëren een barrière voor de interface gebouwen-openbare ruimte (ingang van het CCN, toegang tot het bussta on onder het CCN, ingang van de Proximustoren).

Ook de aanzienlijke verharding, het hoge geluidsniveau, het gebrek aan stadsmeubilair en het gebrek aan netheid in de straten hee een nega eve impact op de gezelligheid van de openbare ruimten.

De doorgangen onder de sporen (Kwatrecht en Noord) zijn weinig uitnodigend gezien de gebrekkige verlich ng, de tocht en de urinegeur.

De raampros tu e in de Aarschotstraat creëert een bijzondere sfeer waardoor sommige voetgangers liever een omweg maken.

TENDENTIEEL ALTERNATIEF

Het CSV 2 stelt zich tot doel om de kwaliteit van de verplaatsingen in de doorgangen onder de sporen te verbeteren.

De ontwikkeling van de tram naar Thurn & Taxi’s zal het privépendelverkeer tussen het sta on en Thurn & Taxis verminderen.

Het BBP bevat geen voorschri en over de kwaliteit van de openbare ruimten, maar beveelt aan om de voetgangersruimte (die gevoelig is voor kwaliteit) vooral te creëren in de zones voor laagbouw of op een kunstma ge grond.

VERGELIJKING VAN DE ALTERNATIEVEN

Omdat het aantal en de diversiteit van de gebruikers van het gebied (ze vergelijking van de programmatorische alterna even) aanzienlijk zal toenemen, is er nood aan een kwaliteitsvolle openbare ruimte voor verplaatsing en verblijf.

De grotere gemengdheid op de benedenverdiepingen zal globaal gezien zorgen voor een betere ac vering van de openbare ruimte. De uiteindelijke graad van ac vering hangt af van de keuze van de voorzieningen en handelszaken (in dit stadium nog niet bekend), de inrich ng van deze verschillende func es binnen de perimeter en de dialoog tussen deze func es en de openbare ruimte (zie “Ac vering van de openbare ruimte via de benedenverdiepingen”).

Hoofdstuk III / Afdeling 3 Effectenbeoordeling / B - ruimtelijke alterna even / p. 269
MENSELIJKE OMGEVING MENSELIJKE OMGEVING

Alle alterna even willen het autoverkeer op het Bolivarplein en het Noordplein beperken, wat posi ef is voor dit criterium.

Alle alterna even voorzien ook in de aanleg van nieuwe openbare groene ruimten die de leefomgeving binnen de perimeter verbeteren. Welke invloed die zullen hebben hangt af van hun reële groo e (rekening houdend met de beperkingen opgelegd door de ondergrond), van hun esthe sche en func onele kwaliteit maar ook van hun beheerstype en de adequa e tussen hun inrich ng en hun directe omgeving (lawaaierige interface, link met de tunnels, ac vering, enz.).

In de 3 alterna even blij de ontwikkeling van een kwaliteitsvolle beplante groene ruimte op het perceel van het Medical Center een uitdaging. Eerst en vooral vanwege de ligging aan de spoorweg, aan de uitgang van de tunnel en langs een VV en Auto Comfortweg (zie MWS), maar ook vanwege de uitvoerbaarheid gezien de bouw van het zuiveringssta on en andere technische beperkingen die te maken hebben met Metro Noord.

De alterna even schenken weinig aandacht aan de kwaliteit van de inrich ng, het stadsmeubilair, enz. van de verschillende ruimten. Op dat vlak worden ze daarom als iden ek beschouwd.

Alterna ef 1

Het Bolivarplein blij ‘ingepalmd’doorhetkerenvan debussenen de eindhaltes. Het blij ook verhard en de mobiliteit primeert nog steeds. De bestaande bomen worden niet behouden, terwijl net deze ruimte het meest te lijden hee onder de hi eeilandeffecten. De windeffecten op het Bolivarplein worden nog vergroot in vergelijking met de bestaande toestand. Dit is niet bevorderlijk voor het verblijf en de verplaatsing, dus voor het gebruik van het plein.

De binnenstraat en het Bolivar-voorplein (beperkt tot het stadsniveau) zijn bedekt met een plaat. Net als in de huidige toestand krijgen ze daardoor een karakter van een technische tunnel, wat een nega eve impact hee op de kwaliteit en het veiligheidsgevoel. De niveauverschillen worden in dit alterna ef a priori behouden gezien de lineaire ontwikkeling van het bussta on. Dat is niet bevorderlijk voor de verbetering van de toestand, noch voor de toegankelijkheid van deze ruimten en de kwaliteit van de verplaatsingen in deze ruimten. Het gedeelte van hetvoorpleinonderdeplaatisdaarentegenvrijvanstoringendoor luchtbewegingen. De situa e in de binnenstraat is vergelijkbaar met de bestaande.

Het Noordplein wordt verkleind en lijdt onder de schaduwvorming door het hoge gebouw dat er wordt ontwikkeld. De windeffecten op dit plein worden versterkt, maar het blij er eerder comfortabel.

Autovrijezone(oranje),zonesbedektmeteen plaat(blauw),doorgangvanhetopenbaar vervoer(rood)envande voetgangersboulevard(geel)engroene ruimten(groen)inalternaef1–1010au

Het Solvayplein is overdekt en wordt grotendeels gebruikt voor de mobiliteit (bussta on en inrit van de ondergrondse parking). De plaat die het bedekt maakt de ontwikkeling mogelijk van een openbare ruimte op het niveau van de binnenstraat, maar zonder verbinding met de rest van de openbare ruimte die lager is gelegen. De lokalisa e aan de uitgang van de Kwatrech unnel en de geëxcentreerde kant van dit plein houdt het risico in dat het weinig zal worden gebruikt. Het zal lijden onder het feit dat het niet is verbonden met de openbare ruimten van de wijk, net als in de huidige toestand. Bovendien zijn de ‘ecologische’ kwaliteiten beperkt (schaduwvorming en wind vanwege de hoogbouw die wordt ontwikkeld rond het plein).

Behalve in de zone van het Medical Center die al aanzienlijke technische beperkingen inhoudt (loopbrug, zuiveringssta on, nooduitgangen van de metrotunnel ...) wordt geen enkele groene ruimte voorzien binnen de perimeter.

Het gebruikscomfort van de openbare ruimte wordt in de Koolbrandersstraat en op de Solvay-as verbeterd door de aanwezigheid van beplan ng in de straat (leefomgeving, schaduwvorming, koelte). Op het vlak van wind gaat de toestand licht achteruit.

Hoofdstuk III / Afdeling 3 Effectenbeoordeling / B - ruimtelijke alterna even / p. 270
MENSELIJKE OMGEVING MENSELIJKE OMGEVING

Alterna ef 2

Het Bolivarplein wordt bevrijd van kerende bussen en de bushalte. Er is veel beplan ng voorzien, wat guns g is voor het gebruikscomfort (verplaatsing en verblijf).

De binnenstraat en het Bolivarplein liggen in de open lucht en genieten een natuurlijke lich nval. Ze zijn ook breder zodat er beplan ng kan worden voorzien.

De niveauverschillen staan niet meer in de weg van een ‘vlakke’ doorgang tussen het Bolivarplein en het sta on.

Het Noordplein is geen openbare ruimte meer.

HetSolvayplein isvolledigvrij enerwordteen kleine beplanteruimte ontwikkeld. Deze ruimte kan lijden onder het lawaai van het verkeer op de Solvay-as en is het minst blootgesteld op het vlak van bezonning. De windeffecten op dit plein worden versterkt, maar het blij er eerder comfortabel.

De verwijdering van de beplan ng op de assen Solvay en Koolbranders hee een nega eve impact op hun kwaliteit. Op het vlak van wind gaat de toestand ma g achteruit.

Er wordt ook een groene ruimte ontwikkeld op het terrein van het Medical Center. De kwaliteit en het comfort daarvan zullen poten eel worden beperkt door de nadelen van de doortocht van de treinen, de trams en de auto’s (geluidshinder) en door de technische beperkingen die te maken hebben met metro 3. De ruimtegeniet wel eenbehoorlijkebezonning invergelijking metde rest van de wijk.

Alterna ef 3

Het Bolivarplein wordt bevrijd van kerende bussen en van de eindhalte, wat guns g is voor het gebruikscomfort (verplaatsing en verblijf). Het alterna ef behoudt de bestaande bomen maar voorziet niet al te veel beplan ng. De windeffecten op het Bolivarplein worden nog vergroot in vergelijking met de bestaande toestand. Dit is niet bevorderlijk voor het verblijf en de verplaatsing, dus voor het gebruik van het plein.

Het Bolivar-voorplein wordt bedekt met een plaat, wat het een sfeer vaneen technischetunnelkan geven. Dithee een nega eveimpact op de kwaliteit en het veiligheidsgevoel. De niveauverschillen worden in dit alterna ef a priori behouden. Dat is niet bevorderlijk voor de verbetering van de toestand, noch voor de toegankelijkheid vandezeruimteendekwaliteitvandeverplaatsingenindezeruimte.

Anderzijds is het gedeelte van het voorplein onder de plaat vrij van storingen door luchtbewegingen. De situa e in de binnenstraat is echter zeer slecht.

Op het bovenste plein is de situa e wat betre de luchtbewegingen onguns g,maardebreedtevanhetvoorpleinmaakthetmogelijkhet probleem te verminderen.

Het Solvayplein is geen openbare ruimte meer.

Autovrije zone (oranje), zones bedekt met een plaat (blauw), doorgang van het openbaar vervoer (rood) en van de voetgangersboulevard (geel) en groene ruimten (groen) in alterna ef 2 (boven) en alterna ef 3 (onder) - 1010au

Het Noordplein vertoont kenmerken die de kwaliteit kunnen verbeteren (kleinere grondinname van het bussta on, geen autoverkeer meer, behouden bezonning, beplan ng van een deel van de ruimte ...). De windeffecten op dit plein worden versterkt, maar het blij er eerder comfortabel.

De verwijdering van de beplan ng op de assen Solvay en Koolbranders hee een nega eve impact op hun kwaliteit. Op het vlak van wind gaat de toestand ma g achteruit.

Hoofdstuk III / Afdeling 3 Effectenbeoordeling / B - ruimtelijke alterna even / p. 271
MENSELIJKE OMGEVING MENSELIJKE OMGEVING

AANBEVELINGEN

Het Noordplein en het Bolivarplein bieden een zekere kwaliteit voor verplaatsing en verblijf: het Noordplein door zijn ligging en bebouwing die bezonning bevordert en het Bolivarplein door zijn afme ngen en oriënta e. Het Noordplein ligt echter buiten de perimeter van het BBP en de verstedelijking wordt omkaderd door het GBP. Het lijkt dus belangrijk om de kwaliteit van het Bolivarplein te garanderen. Het is het enige plein dat guns ge kenmerken biedt (breedte, bezonning, beperkt windeffect, poten eel van volle grond) gezien de context van de wijk. Er wordt aanbevolen om op dit plein een grote groene ruimte te ontwikkelen en om het te bevrijden van kerendebusseneneeneindhalteenvan dedoortochtvanauto’s.Ditkandenega eveaspectenvangeluidshinder en hi e-eilanden beperken en de kwaliteit van de leefomgeving verbeteren dankzij beplan ng. Als het keren van de bussen en de eindhalte moeten worden behouden, wordt aanbevolen om de rooilijnen van de huizenblokken North Galaxy en Proximus te wijzigen om zo de beschikbare breedte te verhogen en de ontwikkeling mogelijk te maken van een groene ruimte ondanks de impact van de mobiliteit.

Voor de kwaliteit van de openbare ruimte is het beter om geen plaat te ontwikkelen boven de binnenstraat en het Bolivar-voorplein en om de problema ek van de niveauverschillen te beperken tot een kleine oppervlakte. In alle gevallen moeten de ruimten onder en boven de eventuele plaat toegankelijk zijn voor PBM.

De breedte van het Bolivar-voorplein moet coherent zijn met de hoogte van de aanpalende gebouwen om het verple erende effect te verminderen. De kwaliteit van dit plein is al beperkt (bijna permanente schaduwvorming ...). De ontwikkeling van een hoog voorplein (op een plaat), de ontwikkeling van gebouwen over de gehele lengte van het voorplein (Bolivar-as) en de versmalling van de breedte van het voorplein zijn drie elementen die het windcomfort in deze ruimte zullen tegenwerken.

Het Solvayplein biedt weinig intrinsieke kwaliteiten vanwege de ligging ten opzichte van de hoogbouw in de wijk (schaduwvorming, wind ...) en de mogelijke impact van het bussta on en de inrit van de ondergrondse parking. Als het wordt ontwikkeld als een openbare ruimte moeten aan de kwaliteit specifieke studies worden gewijd om de nega eve kenmerken te verzachten.

Aangezien alle verkeersstromen zullen toenemen, moet de kwaliteit van de verplaatsingen in alle ruimten worden gegarandeerd voor alle verplaatsingswijzen.

In de Noordwijk worden nu en in de toekomst heel wat veranderingen doorgevoerd. Bij de komende werkzaamheden moet bijzondere aandacht worden besteed aan de inrich ng van de openbare ruimten.

In het algemeen hebben heel wat criteria een invloed op de gezelligheid van de openbare ruimten voor de voetgangers. De uitdaging in deze sta onswijk met heel wat torengebouwen is bijzonder groot en er moet veel aandacht worden besteed aan de verschillende schalen. De inrich ng van de openbare ruimte is een bijzonder grote uitdaging voor de wijk en moet zorgvuldig worden bestudeerd. De werken van Jan Ghel, en meer bepaald de 12 criteria die hij aanhaalt, zijn een nu ge referen e ("Ci es for People"). Een volwaardig project voor de inrich ng van de openbare ruimte is bijzonder wenselijk.

Hoofdstuk III / Afdeling 3 Effectenbeoordeling / B - ruimtelijke alterna even / p. 272
MENSELIJKE OMGEVING MENSELIJKE OMGEVING

LUCHTKWALITEIT

ELEMENTEN UIT DE DIAGNOSE

DegrootstebronnenvanluchtverontreiniginginBrusselzijn hetwegverkeerendeverwarmingvanderesiden ële en ter aire gebouwen.

Ten aanzien van de normen die zijn vastgelegd in de Europese Richtlijn ligt de perimeter in een omgeving met een vrij hoge gemiddelde NO2concentra e en rela ef lage jaargemiddelde concentra es voor O3 en fijn stof PM10.

De Black Carbonconcentra es zijn het hoogst in het noordelijke deel van de Vooruitgangstraat en vervolgens op het Solvayplein en in de Simon Bolivarlaan. Toch zijn ze niet hoger dan gemiddeld. Hoewel de jaargemiddelde concentra es van de meeste verontreinigende stoffen in het algemeen gedaald zijn, blij de luchtkwaliteit zorgwekkend (de gemiddelde concentra es liggen per jaar hoger dan wordt aanbevolen door de WHO). Meer lokaal kan ook de vervuilde lucht die wordt afgevoerd door de ven la e van de parkings van de kantoorgebouwen een impact hebben op de luchtkwaliteit. in de meeste bestaande gebouwen binnen het BBP wordt de energie geleverd door HVAC-installa es, transformatoren en noodgroepen.

TENDENTIEEL ALTERNATIEF

Het plan Good Move mikt op een algemene vermindering van het verkeer aan de maasranden met 6 à 10 % tegen 2030.Op kortetermijnzaldeuitvoeringvandeverkeersplannenonmiskenbaarhetautoverkeerdoenverschuiven van het centrum van de maas naar de maasranden. De Albert II-laan en het Solvayplein worden beschouwd als maasranden (Auto Comfort en Vrachtverkeer Comfortwegen). Op deze wegen zal het verkeer de komende jaren dus toenemen, om tegen 2030 weer af te nemen. Ook de luchtvervuiling gegenereerd door het autoverkeer zal die tendens volgen. Het gebruik van zachte verplaatsingswijzen en elektrische voertuigen neemt geleidelijk aan toe wat geleidelijk aan een impact hee op de samenstelling en de concentra es van de luchtverontreinigende stoffen.

De huizenblokken CCN en Proximus zullen de komende jaren worden herontwikkeld. De energiepresta es zullen verbeteren en de behoe e aan verwarming en aircondi oning zal afnemen zodat de situa e lokaal zal worden verbeterd.

Het BBP bevat geen voorschri en voor dit criterium.

VERGELIJKING VAN DE ALTERNATIEVEN

De 3 alterna even stellen de ontwikkeling voor van beplan ng, wat globaal guns g is als het gaat om bomenrijen of groene ruimten. Hier dient opgemerkt dat het effect van beplan ng louter lokaal is (geen significante vermindering van de luchtverontreiniging op schaal van de stad) en dat de configura e van de beplan ng ten opzichte van de bronnen van de luchtverontreiniging doorslaggevend is. Beplan ng hee immers op 2 manieren effect op de luchtkwaliteit: ze werkt in op de luchtstromen (schermeffect) - het grootste effect - of absorbeert

en/offiltertdeverontreinigendestoffen.Voordeabsorp eenfiltering spelendeverschillendelageneenrol,maar

Hoofdstuk III / Afdeling 3 Effectenbeoordeling / B - ruimtelijke alterna even / p. 273
MENSELIJKE OMGEVING JaargemiddeldeconcentraesvanBlackCarbone,Irceline2020 MENSELIJKE OMGEVING

vooral de bomen hebben er invloed op34. Het absorberend/filterend effect neemt snel af naarmate de afstand groter wordt.

Waarschijnlijk speelt het schermeffect (inwerking op de luchtstromen) de belangrijkste rol. Over de aanleg van gepaste plantenlagen tussen de bronnen van verontreiniging (vooral het wegverkeer) en de leefruimten (openbare ruimte, ramen van gebouwen) moet in die zin worden nagedacht, maar de mogelijke schadelijke effecten van deze schermen - vooral de inslui ng van verontreinigde lucht onder de boomlaag - moet worden vermeden.

De 3 alterna even verschillen op het vlak van groene ruimten en openbare ruimten:

Lokalisa e van de groene ruimten (groen) in de alterna even 1 (links), 2 (midden) en 3 (rechts) - 1010 au Ze spreken zich echter niet uit over de kwaliteit van de groene ruimten, noch over de inrich ng ervan, het soort beplan ng, de lagen ... Op dat vlak kunnen ze dus niet met elkaar worden vergeleken.

De posi e van de woningen is in de 3 alterna even verschillend:

Posi e van de woningen (groen) in de alterna even 1 (links), 2 (midden) en 3 (rechts) - 1010 au Alterna ef 1

Eenkleinerdeelvandetypischewoongebiedenisvoorzienlangs eenVVenAuto Comfortweg(Solvay-as) metdruk gemotoriseerd verkeer en alle woningen zijn ingericht op de verdiepingen, dus verder verwijderd van de emissies van het wegverkeer.

Qua openbare ruimte is er een beplan ngszone voorzien op de Solvay-as. A ankelijk van de inrich ng - plaatsing ten opzichte van de gemotoriseerde as, soorten lagen, enz. - kan ze een scherm vormen tegen de verontreiniging,

34 A ankelijk van de gekozen soorten en de gezondheidstoestand van de bomen is de bijdrage van de beplan ng groot of minder groot (dit hangt ook af van de beoogde verontreinigende stof), maar globaal gezien zijn soorten met een hoge bladoppervlakte-index (LAI) het meest efficiënt. Coniferen, een groenblijvende soort, zijn bijzonder interessant. Ook soorten met harige afvallende bladeren (grote opnameoppervlakte) zijn efficiënt (in de zomer).

Hoofdstuk III / Afdeling 3 Effectenbeoordeling / B - ruimtelijke alterna even / p. 274
MENSELIJKE OMGEVING MENSELIJKE OMGEVING

wat in het voordeel is van de voetgangers. Omgekeerd wordt de middenberm met gras en bomen op deze as verwijderd en dat is niet bevorderlijk voor de luchtkwaliteit (het duurt enige jd voor bomen volwassen zijn, dus hun aanwezigheid is heel belangrijk).

Langs de voetgangersboulevard op het Bolivarplein is geen beplan ng voorzien.

De Vooruitgangstraat ligt zeer laag ten opzichte van de bebouwing en is nagenoeg loodrecht op de dominerende winden georiënteerd. Dat maakt haar vatbaar voor het canyoneffect. Als we beschouwen dat het canyoneffect zich laat voelen vanaf een breedte/hoogteverhouding lager dan 0,75, bestaat het risico vanaf een bouwhoogte van 22 m in het zuidelijke deel van de straat (b= 17m) en 26 m in het noordelijke deel (b = 20m). Deze straat trekt echter niet veel gemotoriseerd verkeer aan, ze wordt hoofdzakelijk gebruikt door trams, bussen en taxi’s. Bovendien zijn deze straatdelen vrij kort, zodat we kunnen veronderstellen dat het weinig waarschijnlijk is dat het effect zich zal voordoen. Daarbij komt dat de geschikte volumes niet representa ef zijn voor de daadwerkelijk gebouwde volumes en dat het canyonprofiel in de projecten misschien niet aanwezig zal zien. Dat hangt af van de lokalisa e van de gebouwen. Ook dient benadrukt dat de windeffecten als gevolg van eventuele gebouwen in dit stadium niet kunnen worden beoordeeld.

Alterna ef 2

Meer dan de hel van de typische woongebieden ligt langs een VV en Auto Comfortweg (Albert II- en Solvay) met een druk gemotoriseerd verkeer. In die zin is dit alterna ef minder guns g dan de andere. Wat de openbare ruimte betre , is langs deze assen geen bijkomende beplan ng voorzien. Het Solvayplein en het Bolivarplein krijgen wel beplan ng. Die beplan ng kan:

- het Bolivarplein vrijwaren van de effecten van de verontreiniging op de Albert II-laan.

- een scherm vormen tussen de voetgangersboulevard en het traject van de bussen op het Bolivarplein, - hetverkeersvrijeSolvaypleinvrijwarenvande effectenvanhetauto-envrachtverkeeropdeSolvayas.

Alterna ef 3

Een kleiner deel van de typische woongebieden is gelegen langs een VV en Auto Comfortweg (Albert II-laan) met druk gemotoriseerd verkeer.

Aan de kant van het Solvayplein, eveneens een VV en Auto Comfortweg, is echter een cluster van voorzieningen voorzien. De plaatsing van bepaalde meer gevoelige voorzieningen (scholen, medisch centrum) is hier niet wenselijk.

Wat de openbare ruimte betre , is langs deze assen of op de pleinen geen bijkomende beplan ng voorzien.

AANBEVELINGEN

Gevoeligeac viteitenzoalshuisves ng,horeca(terrassen)enbepaaldevoorzieningen(scholen,medischcentrum) moeten op voldoende afstand blijven van de assen Solvay en Albert II en van het noordelijke deel van de Vooruitgangstraat (Auto en VV Comfortwegen).

De luchtafvoeren van de horeca-ac viteiten op de benedenverdiepingen van de huizenblokken, in de ondergrondse parkings en op de schoorstenen van de stooklokalen kunnen hinder veroorzaken, vooral voor de woningen. Er wordt aanbevolen om de ven la e-en rookafvoeren in de mate van het mogelijke te plaatsen op de daken van de hoogste gebouwen en vrij ver van de ramen van de dichtstbij gelegen gebouwen.

Detoevoegingvangroeneruimtenisguns g,maarschema schgezienbeva enallevoorzieningenglobaalminder bomendanindehuidigetoestand.Nietslijktophettegendeeltewijzen.Er wordtaanbevolenom hettotaleaantal aanwezige bomen in de perimeter niet te verminderen. Ook het behoud van de bestaande volwassen bomen (hoge bladoppervlakte-index) wordt aangemoedigd.

De beplan ng moet bij voorkeur worden voorzien tussen de bronnen van luchtverontreiniging en de openbare ruimteomdevoetpaden,defietspadenendepleinentevrijwarenvandeeffectenvandegemotoriseerdestromen (en van de ven la emonden). Er moeten verschillende lagen en soorten worden gekozen om de efficiën e ten aanzien van talrijke verontreinigende stoffen te garanderen en om zich aan te passen aan de lokale configura es.

Hoofdstuk III / Afdeling 3 Effectenbeoordeling / B - ruimtelijke alterna even / p. 275
MENSELIJKE OMGEVING MENSELIJKE OMGEVING

VEILIGHEID

ELEMENTEN UIT DE DIAGNOSE

De logica van het Manha anplan resulteerde in blinde en logis eke sokkels op de benedenverdiepingen (backstreet). Dat is niet bevorderlijk voor de sociale controle. Ook de halfondergrondse verdieping van het CCN waar het bussta on is gelegen, biedt niets interessants aan de openbare ruimte. Vanwege de bijna uitsluitend kantoorbestemming is er geen enkele bedrijvigheid ‘s avonds en zijn er weinig mogelijkheden voor sociale controle.

De beperkte bedrijvigheid en de inrich ng/verlich ng van de Kwatrech unnel en de Noordtunnel zijn niet bevorderlijk voor het veiligheidsgevoel.

De poli e noteert in de omgeving van het Noordsta on diefstallen, agressie tussen rivaliserende bendes, agressie tussen de gebruikers van de openbare ruimte en de sekswerksters, frequen e door dealers en drugverslaafden ...

Bovendien leven er in het sta on en de directe omgeving daklozen, onder meer migranten, in zeer zorgwekkende levens- en hygiëneomstandigheden, ondanks de hulp van een aantal verenigingen.

De hoek van de Simon Bolivarlaan en de Koning Albert II-laan is het meest blootgesteld aan samenkomsten van manifestanten.

Wat de verkeersveiligheid betre , zijn enkel de kruispunten van de Albert II-laan met de Bolivar- en de Solvaylaan opgenomen als ongevalgevoelige zone met prioriteit 3 (dus niet prioritair).

De hulpdiensten (MUG en ziekenwagens) hebben toegang tot een klein pla orm aan de ingang van het CC/Ngebouw. Alleen dat pla orm biedt hen toegang tot het Noordsta on (zuidkant).

TENDENTIEEL ALTERNATIEF

Het CSV 2 stelt zich tot doel om de kwaliteit van de verplaatsingen in de doorgangen onder de sporen te verbeteren.

Het BBP bevat geen voorschri en voor dit criterium. De verhoogde kunstma ge grondplaat is voor dit criterium niet guns g.

VERGELIJKING VAN DE ALTERNATIEVEN

In de 3 alterna even is de groene ruimte die wordt gepland op het perceel van het Medical Center een aandachtspunt gezien de ligging. Aan de oostkant wordt ze begrensd door de spoorweg, aan de noordkant door de tram die hier bovengronds komt, aan de westkant door de Vooruitgangstraat die een Auto en VV Comfortweg isenaandezuidkantdoordeSolvay-as,eveneenseenAuto enVVComfortweg. Bovendienligtdezegroeneruimte aan de uitgang van de Kwatrech unnel. Al deze interfaces bemoeilijken de ac vering en houden het risico in dat de groene ruimte vooral ‘s nachts publiek zal trekken. Daarbij komt dat de lee aarheid van een groene ruimte op die plaats twijfelach g is gezien het project Metro Noord, de technische en veiligheidsbeperkingen (nooduitgangen) en het waterzuiveringssta on.

In geen enkel alterna ef is de ontwikkelde plaat toegankelijk voor de hulpdiensten aangezien ze niet is verbonden met het bestaande toegangspla orm. Ze kan dus in geen enkel alterna ef worden gebruikt om de bestaande toestand op dit punt te verbeteren.

De 3 alterna even vertonen echter verschillen die een invloed hebben op de veiligheid in de zone:

Hoofdstuk III / Afdeling 3 Effectenbeoordeling / B - ruimtelijke alterna even / p. 276
MENSELIJKE OMGEVING MENSELIJKE OMGEVING

Alterna ef 1

De overdekte binnenstraat is een weinig uitnodigende tunnel die net als in de huidige toestand een onveiligheidsgevoel genereert. Het huidige beheer door de NMBS impliceert dat deze ‘straat’ geen deel uitmaakt van het openbaar domein. ‘s Nachts wordt ze afgesloten met hekken die overdag zichtbaar zijn. Om het beheer te vergemakkelijken en om veiligheidsredenen staan er voor de gevel van het sta on hekken die ertoe bijdragen dat deze zone er uitziet als een weinig uitnodigende logis eke privéruimte.

Boven de overdekte binnenstraat ligt de loopbrug die doorloopt tot aan het Medical Center. Ook deze plaats, gelegen langs de spoorweg, is weinig uitnodigend. Het feit dat ze doorloopt tot buiten het Bolivarplein en de binnenstraat beantwoordt aan geen enkele geïden ficeerde behoe e in de wijk.

Door de verkeersvrije plaat boven het Bolivarplein ligt deze openbare ruimte geïsoleerd van de rest van het stadsweefsel (in de hoogte). Dat belemmert de ac vering van de zone. De uitstraling (op het vlak van ac vering) blij beperkt tot de eigen grenzen.

De ac vering van het Solvayplein is absoluut niet evident en doordat de bussen er moeten keren kan het moeilijk worden ingericht als plein. In dit scenario is een bouwfront boven het bussta on wenselijk. Er zou immers in het verlengde van de Solvay-as kunnen worden gebouwd waardoor de breuk gevormd door het spoorweggebied zou kunnen worden verzacht.

Openbaredoorgangszonesinhetblauw, busstaonenbusstromeninhetoranje, tramtrajectinsppellijn, voetgangersboulevardinhetgeel–1010au

De ac vering van de gevel van het sta on aan de kant van de Aarschotstraat kan posi ef zijn. Dat hangt echter af van de func es die er zullen worden geplaatst en van de technische uitvoerbaarheid (die niet reëel lijkt, zie “Ac vering van de openbare ruimten via de benedenverdiepingen”).

Dit alterna ef beantwoordt deels aan de uitdaging om het backstreeteffect te beperken door meer toegangen te voorzien. In alle delen zijn er immers toegangen tot de woningen.

Op het vlak van veiligheid van de verkeersstromen moeten de voetgangers a oms g van het Bolivarplein via het bussta on naar het sta on lopen. Ook de voetgangersboulevard kruist het bussta on.

Alterna ef 2

De binnenstraat is niet meer overdekt, wat aanzienlijk beter is dan in de huidige toestand. De ruimten op het stadsniveau (fietsparking, sta onsingang met toegang voor PBM) worden immers zichtbaar gemaakt en genieten een natuurlijke lich nval. Via deze straat kan de openbare ruimte van het Bolivarplein worden doorgetrokken tot vlak voor het sta on. Bovendien wordt een deel van de gevels van het huizenblok CCN geac veerd en omva en ze ingangen naar de hoger gelegen func es. Dat genereert mensen in het huizenblok en een gemengdheid van de gebruikers. De hekken voor de gevel van het sta on zouden moeten worden verwijderd om deze zone aantrekkelijker te maken.

Het creëren van doorgangen onder de sporen zal de gevel van het sta on aan de kant van de Aarschotstraat enigszins ac veren, maar de doorgangen kunnen ook een onveiligheidsgevoel genereren (afsnijdend effect). Dat hangt af van de ac vering. Bovendien is de technische uitvoerbaarheid twijfelach g (zie “Ac vering van de openbare ruimten via de benedenverdiepingen”). De ac vering van de Kwatrech unnel

Openbaredoorgangszonesinhetblauw, busstaonenbusstromeninhetoranje, tramtrajectinsppellijn, voetgangersboulevardinhetgeel–1010au

Hoofdstuk III / Afdeling 3 Effectenbeoordeling / B - ruimtelijke alterna even / p. 277
MENSELIJKE OMGEVING MENSELIJKE OMGEVING
MENSELIJKE OMGEVING

door fietsparkeerplaatsen, gekoppeld aan de renova e van de tunnel in het kader van het SVC2, is eveneens een voordeel van dit alterna ef.

Dit alterna ef beantwoordt uitstekend aan de uitdaging om het backstreeteffect te beperken door meer toegangen te voorzien. In alle delen zijn er immers toegangen tot de woningen. Op het vlak van veiligheid van de verkeersstromen moeten de voetgangers a oms g van het Bolivarplein niet via het bussta on naar het sta on lopen. Ook de voetgangersboulevard kruist het bussta on niet, wat een voordeel is. De voetgangersboulevard ligt ook gescheiden van het tramtraject. Het bussta on hee 2 uitritzones maar die geven niet uit op de wegen met druk gemotoriseerd of voetgangersverkeer.

Alterna ef 3

Debinnenstraat isnietmeeroverdekt,wataanzienlijk beter is dan in de huidige toestand. De ruimten op het stadsniveau (fietsparking, sta onsingang met toegang voor PBM) worden immers zichtbaar gemaakt en genieten een natuurlijke lich nval. Via deze straat kan de openbare ruimte van het Bolivarplein worden doorgetrokken tot vlak voor het sta on. Bovendien wordt een deel van de gevels van het huizenblok CCN geac veerd en omva en ze ingangen naar de hoger gelegen func es. Dat genereert mensen in het huizenblok en een gemengdheid van de gebruikers. De hekken voor de gevel van het sta on zouden moeten worden verwijderd om deze zone aantrekkelijker te maken.

De ac vering van de Kwatrech unnel door fietsparkeerplaatsen, gekoppeld aan de renova e van de tunnel in het kader van het SVC2, is eveneens een voordeel van dit alterna ef.

Dit alterna ef beantwoordt niet aan de uitdaging om het backstreeteffect te beperken. Het voorziet slechts één ingang, op het Bolivarplein, naar de hoger gelegen func es in de huizenblokken Proximus en North Galaxy.

Op het vlak van veiligheid van de verkeersstromen moeten de voetgangers a oms g van het Bolivarplein het bussta on kruisen om naar het sta on te lopen. Ook de voetgangersboulevard kruist het bussta on.

Openbaredoorgangszonesinhetblauw, busstaonenbusstromeninhetoranje, tramtrajectinsppellijn, voetgangersboulevardinhetgeel–1010au

In dit alterna ef hee het bussta on slechts 1 uitritzone (in eigen baan), wat de veiligheid bevordert.

AANBEVELINGEN

Er wordt aanbevolen om de binnenstraat open te leggen: door het tunneleffect op te heffen worden de ruimten op het stadsniveau (fietsparking en lager gelegen sta onshal) beter zichtbaar waardoor deze belangrijke zone in de perimeter aanzienlijk wordt verbeterd. Deze straat zou ideaal moeten worden geac veerd, minstens aan de kant van het sta on, a ankelijk van de plaats van het bussta on, om meer mensen aan te trekken.

Als er doorgangen onder de sporen worden gecreëerd moet de globale inrich ng daarvan (verlich ng, configura e, ac vering) worden uitgedacht om een veiligheidsgevoel te bevorderen.

Meerdere ingangen van de verschillende func es dragen globaal gezien bij tot de ac vering van de openbare ruimte en dus tot het veiligheidsgevoel.

De ac vering van de Kwatrech unnel door fietsparkeerplaatsen wordt aanbevolen, temeer omdat ze wordt gekoppeld aan de renova e in het kader van het SVC 2.

Voor de veiligheid van de verkeersstromen is het wenselijk om de voetgangersboulevard te scheiden van het tramtraject en om voor het bussta on slechts één uitritzone te voorzien (in eigen baan, aan de zuidkant).

Vanwege de beoogde dichtheid kan de aanwezigheid van toegangen voor de voertuigen van de hulpdiensten belangrijk zijn. Dat moet worden onderzocht in het stadium van de projecten.

Hoofdstuk III / Afdeling 3 Effectenbeoordeling / B - ruimtelijke alterna even / p. 278
MENSELIJKE OMGEVING
MENSELIJKE OMGEVING

In de Noordwijk worden nu en in de toekomst heel wat veranderingen doorgevoerd. Bijzondere aandacht moet worden besteed aan de veiligheid/gezelligheid van de openbare ruimten, in samenhang met de vele toekoms ge werven.

De ontwikkeling van grondplaten die met het stadsniveau zijn verbonden via toegangspla ormen kan de toegangsvoorwaarden voor de hulpdiensten verbeteren (toegang en parkeren van ziekenwagens aan de uitgang van de sta onshal).

Hoofdstuk III / Afdeling 3 Effectenbeoordeling / B - ruimtelijke alterna even / p. 279
MENSELIJKE OMGEVING MENSELIJKE OMGEVING

UITVOERING VAN DE MWS

ELEMENTEN UIT DE DIAGNOSE

Plus-wegen

Comfortwegen

Voetgangersboulevard

OV Wijkweg

Mul modale Wegenspecialisa e (MWS) voor fietsers (bovenaan links), voetgangers (bovenaan in het midden), openbaar vervoer (bovenaan rechts), auto’s (onderaan links) en vrachtverkeer (onderaan rechts).

Het Simon Bolivarplein en het zuidelijke deel van de Albert II-laan zijn belangrijk voor voetgangers, fietsers en het OV. De Albert II-laan is ook een COMFORT-weg voor het auto- en vrachtverkeer.

TENDENTIEEL ALTERNATIEF

De komende jaren zal een tram van de MIVBhet centrum verbinden met Thurn & Taxis. Het traject stemt overeen met de MWS voor het openbaar vervoer. Een tram van De Lijn, met eindhalte in de Koolbrandersstraat, zal eveneens de wijk bedienen. De Koolbrandersstraat is een eindhalte, geen doorgangshalte. De MWS zal voor dit project dus waarschijnlijk niet moeten worden gewijzigd.

VERGELIJKING VAN DE ALTERNATIEVEN

In de 3 alterna even wordt het traject van de voetgangersboulevard gewijzigd vanwege de nieuwe reorganisa e van het huizenblok CCN dat zal kunnen worden doorgestoken. Het bestaande gebouw maakt deze doorsteek immers niet mogelijk. Het doel van de voetgangersboulevard, namelijk Rogier verbinden met Thurn&Taxis, wordt in de 3 alterna even bereikt.

De 3 alterna even maken de uitvoering van de MWS mogelijk voor auto’s en fietsers en beantwoorden aan de filosofie van de MWS voor de voetgangers.

Alterna ef 1

Dit alterna ef stemt voor alle verplaatsingswijzen overeen met de MWS. Het zuidelijke deel van de kleine Vooruitgangstraat krijgt een breedte van 17 m. Dit volstaat nipt voor de voetgangersboulevard, de fiets COMFORT-as en de doortocht van de bussen en trams, op voorwaarde dat

Hoofdstuk III / Afdeling 3 Effectenbeoordeling / B - ruimtelijke alterna even / p. 280
VERPLAATSINGEN
fietsers voetgangers openbaar vervoer auto vrachtverkeer VERPLAATSINGEN

privéwagens er niet worden toegelaten. Beplan ng (die langs de voetgangersboulevard wordt aanbevolen) is met deze breedte echter niet mogelijk, evenmin als parkeerzones (bijvoorbeeld voor taxi’s).

Bovendien bestaat er een poten eel conflict tussen de beplan ng en de mobiliteit op de Solvay-as waar auto’s, vrachtverkeer, fietsers en voetgangers passeren.

Alterna ef 2

Dit alterna ef stemt overeen met de MWS, behalve voor het openbaar vervuur. De bussen rijden immers door het noordelijke deel van de Koning Albert II-laan in plaats van dor het noordelijke deel van de Vooruitgangstraat. Aangezien voor dit deel van de laan een project voor een groot stadspark wordt onderzocht, rijden de bussen misschien beter via de Antwerpsesteenweg zoals is voorzien door de MWS.

Bovendien wordt de voetgangersboulevard ‘omgeleid’ om voor het sta on te lopen.

In alterna ef 2 kan het Bolivarplein worden ontwikkeld op stadsniveau en is de binnenstraat, die uitgee op de hoofdtoegang tot het sta on voor fietsers, niet meer overdekt. Het alterna ef biedt dus een gelegenheid om de MWS te herzien voor fietsers, om het noord-zuidtraject via deze binnenstraat te bevorderen (Comfort) en om het oost-wes raject door te trekken tot aan het sta on (Plus).

Alterna ef 3

Alterna ef 3 stemt niet overeen met de MWS voor het openbaar vervoer. De bussen rijden immers door de Koolbrandersstraat en door het noordelijke deel van de Koning Albert II-laan. Aangezien voor dit noordelijke deel een project voor een groot stadspark wordt onderzocht, rijden de bussen misschien beter via de Antwerpsesteenweg zoals is voorzien door de MWS.

AANBEVELINGEN

Voorschri en opmaken die de kwaliteit van de uitvoering van de netwerken in de openbare ruimte garanderen. Het openbare deel van het zuidelijke deel van de kleine Vooruitgangsstraat (20 m) verbreden om het comfort te verzekeren voor alle verplaatsingswijzen en voor alle stromen de aanbevelingen van het plan Good Move respecteren. Een andere op e bestaat erin om de voetgangersboulevard ‘om te leiden’, zoals wordt voorgesteld in alterna ef 2. Ze loopt dan langs het Bolivarplein zodat er meer ruimte vrijkomt in de kleine Vooruitgangstraat Die kan dan haar huidige breedte behouden.

Hoofdstuk III / Afdeling 3 Effectenbeoordeling / B - ruimtelijke alterna even / p. 281
VERPLAATSINGEN VERPLAATSINGEN VERPLAATSINGEN

ACTIEVE VERPLAATSINGSWIJZEN

ELEMENTEN UIT DE DIAGNOSE

In de Noordwijk werden de openbare ruimten vooral ingericht voor het gemotoriseerd verkeer, ten nadele van de ac eve verplaatsingswijzen. De openbare ruimte is qua afme ngen dus volledig opgevat in die zin, in tegenstelling tot de oostkant van de Noord-Zuidverbinding waar de straten en voetpaden smal zijn.

De oost-westelijke toegankelijkheid van het Noordsta on wordt belemmerd door talrijke niveauverschillen. Voetgangers/fietsers die van het Bolivarplein naar het sta on willen, moeten een trap nemen, zowel naar het sta onsniveau als naar de ruimte daaronder. Er is geen enkele gelijkvloerse verbinding, wat een aanzienlijke beperking vormt.

Onderstaande doorsnede gee in het oranje het sta onsniveau aan dat de sta onshal verlengt tot aan de monumentale trap op het Bolivarplein en in het geel het stadsniveau dat een verlaging vertoont zodat het bussta on onder het sta onsniveau kon worden geplaatst.

Dwarsdoorsnede in het bestaande huizenblok CCN in de Bolivar-as - op basis van doorsnede 1010au

De noord-zuidelijke doorgang voor fietsers ter hoogte van de oude Vooruitgangstraat is een sterke troef voor het mul modale knooppunt. Ze is echter weinig zichtbaar en lijdt onder het tunneleffect in de binnenstraat.

De voetpaden in het gebied zijn duidelijk in twee gesplitst door de Noord-Zuidverbinding. Aan de oostkant zijn de straten en voetpaden smal. Aan de westkant zijn de openbare ruimten van de Noordwijk breed genoeg om een zeker comfort en/of poten eel te bieden voor de ontwikkeling van de ac eve verplaatsingswijzen.

TENDENTIEEL ALTERNATIEF

De uitvoering van het plan Good Move en van de MWS zal een modal shi teweegbrengen en het aantal fietsers en voetgangers in het algemeen verhogen.

Het BBP definieert de ‘zone voor verkeer’ als voorbehouden voor het verkeer van voertuigen en voetgangers. Hier loopt de voetgangersboulevard door. Het BBP beveelt echter aan om het voetgangersverkeer in de zones voor laagbouw te plaatsen, namelijk op een verhoogde kunstma ge grondplaat (13m). Die logica sluit echter niet meer aan bij het plan Good Move.

VERGELIJKING VAN DE ALTERNATIEVEN

Alterna ef 1

Vlo e doorstroming in oost-westelijke rich ng: De voetgangers a oms g van het Bolivarplein kunnen kiezen:

- ofwel op het stadsniveau blijven en naar de ‘bestaande’ verlaging afdalen om naar de metro of de ‘lage’ stationsingang zijn; daarbij moeten ze de busstromen kruisen.

- ofwel naar het stationsniveau klimmen waar ze rechtstreeks toegang hebben tot de stationshal. Aangezien de ‘put’ behouden blij , moeten de fietsers:

Hoofdstuk III / Afdeling 3 Effectenbeoordeling / B - ruimtelijke alterna even / p. 282
Stadsniveau Staonsnivea u Bolivarplein Huizenblok CCN Sta on VERPLAATSINGEN Bussta on Sta onshal VERPLAATSINGEN

afstappen om hun weg te kunnen vervolgen naar de fietsparking van het station, naar het fietspunt en naar de ‘lage’ stationsingang

rond de gebouwen rijden in zuidelijke of noordelijke richting en deze interessepunten bereiken via de overdekte binnenstraat.

Deze trajecten en beperkingen zijn dezelfde als in de bestaande toestand, met alle problemen van dien (toegankelijkheid, kwaliteit van de verplaatsingen, efficiën e van de doorsteek, duidelijkheid van de routes ...).

Hetalterna efgee geennaderetoelich ngbijdedoorgang onderenopdegrondplaat: trapdelen,zachtehelling, aanwezigheid van li en/roltrappen ...Er dient opgemerkt dat de aanwezigheid van de ondergrondse parking in de kleine Vooruitgangstraat de aanleg van een zachte helling op het Bolivarplein bemoeilijkt. Gezien de lokalisa e van de busstromen lijkt het moeilijk om de trap aan de kant van het sta on te vermijden.

Onderstaande doorsnede gee in het oranje het sta onsniveau aan dat de sta onshal verlengt tot aan de trap op het Bolivarplein en in het geel het stadsniveau dat een verlaging vertoont zodat het bussta on onder het sta onsniveau kan worden geplaatst.

Dwarsdoorsnede in het bestaande huizenblok CCN in de Bolivar-as - op basis van doorsnede 1010au

Coheren e met de voetgangersboulevard:

Het keren van de bussen op het Bolivarplein impliceert dat het bustraject de voetgangersboulevard tot tegen het huizenblok North Galaxy duwt. Ze wijkt dusafvanhetperspec ef/brandpunt-hetsta on-enhaartracézigzagttussen devolumesvanhetCCN.OpdehoektussendehuizenblokkenCCNenProximus ligt een comfortabele inrich ng moeilijk vanwege de breedte (17m) en de verwachte stromen (zie hiernaast).

Op het Bolivarplein wordt langs de voetgangersboulevard geen beplan ng voorzien. Ze is enkel aanwezig op de 2 hoeken van de huizenblokken Proximus en North Galaxy.

Behandeling van de binnenstraat:

De binnenstraat blij in dit alterna ef overdekt, net als in de bestaande toestand. Het tunneleffect wordt dus niet opgeheven. Door de configura e is het fietspad niet zichtbaar. Ook de fietsparking van het sta on ligt verborgen onder het sta onsniveau.

Alterna ef 2

Vlo e doorstroming in oost-westelijke rich ng:

Voetgangersboulevardinhet geel,busseninhetoranjeen tramsinsppellijn–1010au

DevoetgangersenfietsersdievanhetBolivarpleinkomenwordentotaandeingangenvandemetroenhetsta on (sta onsniveau) en tot aan de fietsparking en het fietspunt niet met niveauverschillen geconfronteerd. Tussen de kleine Vooruitgangstraat en de sta onsingang ligt wel een lichte helling (gemiddeld minder dan 2%) in de rich ng van het sta on.

Voetgangers en fietsers hoeven bovendien niet de busstromen op het stadsniveau te kruisen. Het bussta on blij immers geconcentreerd aan de kant van het Noordplein. PBM kunnen makkelijk de li en en roltrappen van het sta on bereiken.

Hoofdstuk III / Afdeling 3 Effectenbeoordeling / B - ruimtelijke alterna even / p. 283 -
-
Stadsniveau Staonsnivea u Bolivarplein Huizenblok CCN Sta on VERPLAATSINGEN Bus
Sta onshal VERPLAATSINGEN

Beide punten betekenen een aanzienlijke verbetering in vergelijking met de huidige toestand en de daaraan verbonden problemen.

De ingang via de sta onshal blij een van de belangrijkste van het sta on, maar vanaf het Bolivarplein moeten nieuwe ingangen worden voorzien (ter vervanging van de bestaande monumentale trap op het Bolivarplein). Een erfdienstbaarheid kan de uitvoering van deze verbindingen mogelijk maken (3 uitgangen ter hoogte van de sta onshal). Er dient opgemerkt dat de veranderingen in de wijk en de nieuwe verdeling van de func es zullen leiden tot een andere verdeling van de stromen (de bestaande toestand is enkel geconcentreerd op het CCN). Dit maakt een beter evenwicht mogelijk tussen de verschillende ingangen van het sta on (8 aan westkant van de rails).

In het verlengde van de oost-westelijke stroom a oms g van Bolivar kunnen voetgangers/fietsers het sta on doorwandelen/doorrijden op stadsniveau (wat ook guns g is voor PBM). Het fietsparkeren wordt uitgebreid tot aan de Aarschotstraat waar een nieuwe toegang wordt gecreëerd. Door deze rechtstreekse doorsteek van het sta on zijn ook de gebruikers van de Brabantwijk rechtstreeks verbonden met het bussta on en het Bolivarplein, wat een guns ge ontslui ng impliceert. De technische uitvoerbaarheid van deze doorbraken is op de 3 plaatsen echter niet gegarandeerd gezien de kenmerken van deze ruimten.

Coheren e met de voetgangersboulevard:

De bussen rijden op voldoende afstand van de voetgangersboulevard op Bolivar. Ze interfereren dus niet met het traject van de boulevard die op alle punten goed geposi oneerd en voldoende breed is.

Het traject van de voetgangersboulevard begeleidt het perspec ef tot aan het brandpunt - het sta on. De voetgangers genieten op de hele voetgangersboulevard voldoende ruimte. De voetgangersboulevard wijkt af van haar huidige traject. Ze loopt niet meer door de kleine Vooruitgangstraat zodat daar meer ruimte vrijkomt. De huidige breedte (17m) kan daardoor worden behouden. Toch stelt het alterna ef voor deze straat een breedte voor van 20m.

De beplan ng draagt aanzienlijk bij tot het comfort van de voetgangers en fietsers op de Bolivar-as, wat beantwoordt aan de doelstellingen van Good Move.

Behandeling van de binnenstraat:

In dit alterna ef is de binnenstraat niet meer overdekt en verdwijnt dus het tunneleffect. Door deze configura e zijn het fietspad en de fietsparkings van het sta on goed zichtbaar, in samenhang met het onoverdekte Bolivarvoorplein dat wordt aangelegd op stadsniveau.

Alterna ef 3

Vlo e doorstroming in oost-westelijke rich ng:

De voetgangers a oms g van het Bolivarplein kunnen kiezen:

- ofwel op het stadsniveau blijven en naar de bestaande verlaging afdalen om naar de metro of de ‘lage’ stationsingang te gaan; daarbij moeten ze de busstromen kruisen.

- ofwel naar het stationsniveau klimmen waar ze rechtstreeks toegang hebben tot de stationshal.

Aangezien de ‘put’ behouden blij , moeten de fietsers:

- afstappen om hun weg te kunnen vervolgen naar de fietsparking van het station, naar het fietspunt en naar de ‘lage’ stationsingang

- rond de gebouwen rijden in zuidelijke of noordelijke richting en deze interessepunten bereiken via de overdekte binnenstraat.

Deze trajecten en beperkingen zijn dezelfde als in de bestaande toestand, met alle problemen van dien (toegankelijkheid, kwaliteit van de verplaatsingen, efficiën e van de doorsteek, duidelijkheid van de routes ...).

Hetalterna efgee geennaderetoelich ngbijdedoorgang onderenopdegrondplaat: trapdelen,zachtehelling, aanwezigheid van li en/roltrappen ...Er dient opgemerkt dat de aanwezigheid van de ondergrondse parking in de kleine Vooruitgangstraat de aanleg van een zachte helling op het Bolivarplein bemoeilijkt. Gezien de lokalisa e van de busstromen lijkt het moeilijk om de trap aan de kant van het sta on te vermijden.

Onderstaande doorsnede gee in het oranje het sta onsniveau aan dat de sta onshal verlengt tot aan de monumentale trap op het Bolivarplein en in het geel het stadsniveau dat een verlaging vertoont om de doorgang onder het sta onsniveau mogelijk te maken

Hoofdstuk III / Afdeling 3 Effectenbeoordeling / B - ruimtelijke alterna even / p. 284
VERPLAATSINGEN VERPLAATSINGEN

Dwarsdoorsnede in het bestaande huizenblok CCN in de Bolivar-as - op basis van doorsnede 1010au

Voetgangers/fietsers kunnen het sta on doorwandelen/doorrijden op stadsniveau, via de fietsparking die wordt uitgebreid tot aan de Aarschotstraat waar een nieuwe toegang wordt gecreëerd. De technische uitvoerbaarheid van deze doorbraak is echter niet gegarandeerd gezien de kenmerken van deze ruimten.

Dit alterna ef voorziet ook in doorgangen door de huizenblokken Proximus en North Galaxy, maar preciseert niet of die openbaar worden of niet. Ze zijn hoe dan ook niet rechtlijnig en niet oost-westelijk georiënteerd (de te bevoorrechten stroom).

Coheren e met de voetgangersboulevard:

De bussen rijden op voldoende afstand van de voetgangersboulevard op Bolivar. Ze interfereren dus niet met het traject van de boulevard die voldoende ruimte krijgt.

Het traject van de voetgangersboulevard verlaat het perspec ef voor het sta on. Haar tracé zigzagt immers tussen de volumes van het CCN en vermijdt het brandpunt - het sta on. Ze loopt evenwijdig met de toekoms ge tram in de Vooruitgangstraat. De benedenverdieping van het CCN-gebouw staat terugwijkend. De weg krijgt daardoor een breedte van 20m, voor de bussen, de trams, de voetgangersboulevard en de fiets COMFORT-wegen. Vanuit stedenbouwkundig oogpunt zou het echter verstandiger zijn om de rooilijn aan dekantvanhethuizenblokProximusnaarachterteverplaatsen.Zokandaardeze breedte worden gecreëerd, wordt de rooilijn afgestemd op die van het huizenblok North Galaxy en hoe het gebouw niet te overkragen (zie criterium “Structuur van de open ruimten”. Via technische controles over de bochten van de trams kan worden uitgemaakt welke assen zich het best daarvoor lenen en kan deze aanbeveling eventueel worden bijgewerkt.

Langs het voetgangers- en fietserstraject op de Bolivar-as staan laanbomen, wat beantwoordt aan de doelstellingen van Good Move. Ook in de binnenstraat wordt beplan ng voorzien ten behoeve van de zachte mobiliteit.

Behandeling van de binnenstraat:

Voetgangersboulevardinhet geel,busseninhetoranjeen tramsinsppellijn,zonemet eengebouwerboveninhet blauw-1010au

In dit alterna ef is de binnenstraat grotendeels niet meer overdekt en verdwijnt dus het tunneleffect. Ze omvat echter loopbruggen tussen het sta on en het gebouw van het huizenblok CCN. Bovendien wordt het sta onsniveau verlengd inderich ngvanBolivar.Doordezeconfigura ezijnhetfietspadendefietsparkingvanhetsta ongoedzichtbaar.

De vlo e doorstroming tussen de binnenstraat en het eventuele Bolivar-voorplein hangt af van de plaatsinname van het sta onsniveau n van de behandeling van de niveauverschillen die eruit voortvloeit.

Hoofdstuk III / Afdeling 3 Effectenbeoordeling / B - ruimtelijke alterna even / p. 285
Stadsniveau Staonsnivea u Bolivarplein Huizenblok CCN Sta on VERPLAATSINGEN Bus VERPLAATSINGEN
VERPLAATSINGEN
Sta onshal

AANBEVELINGEN

Gezien de mul modale context en de verwachte toename van het aantal fietsers en voetgangers (zie het deel Programma e) moet bijzondere aandacht worden besteed aan de inrich ng van de openbare ruimte. Er wordt aanbevolen om kruisingen tussen de stromen (zelfs tussen ac eve verplaatsingswijzen) zoveel mogelijk te vermijden.

Vlo e doorstroming in oost-westelijke rich ng:

De verwijdering van het niveauverschil vanwege de doortocht van de bussen is wenselijk tussen het Bolivarplein endemetro-ingang, desta onsingang(stadsniveau) endefietsparking.Voetgangers enfietserskunnen danvanaf het Bolivarplein gelijkvloers de metro en het sta on bereiken (ingang PBM). Bovendien kunnen fietsers rechtstreeks vanaf Thurn&Taxis naar het sta on en de fietsparking.

Er wordt aanbevolen om het Bolivar-voorplein en de binnenstraat niet te overdekken Dat zou d stromen en bestemmingen verduidelijk, van dichtbij en van ver.

Een doorsteek van het sta on voor de ac eve verplaatsingswijzen op stadsniveau zou de zachte mobiliteit ten goede komen en de Brabantwijk verbinden met de kant van Bolivar. De precieze inrich ng van een dergelijke doorsteek hangt echter af van de gezelligheid en het daadwerkelijke gebruik dat ervan wordt gemaakt (uitdaging van de tunnels). Bovendien moeten er technische en opera onele kwes es worden onderzocht om de uitvoerbaarheid te garanderen.

Doorbraken doorheen de huizenblokken kunnen interessant zijn voor de ac eve verplaatsingswijzen (zeker in een context van verdich ng) en worden dus aangemoedigd, op voorwaarde dat de voetgangers er baat bij hebben (kortere weg - waarschijnlijk convergerend naar het sta on, duidelijk, aangenaam kader dat veilig aanvoelt).

Coheren e met de voetgangersboulevard:

Om voldoende gelijkvloerse ruimte te garanderen tot aan de metrotrappen en het sta on, is het wenselijk dat het traject van de voetgangersboulevard het perspec ef vanaf Bolivar begeleidt tot aan het brandpunt - het sta on.

De Bolivar-as moet worden vergroend (meer groen dan vandaag het geval is). Beplan ng maakt het traject voor voetgangers en fietsers op de Bolivar-as comfortabeler en sluit aan bij de doelstellingen van Good Move.

Behandeling van de binnenstraat:

De binnenstraat moet zoveel mogelijk niet overdekt zijn. Zo verdwijnt het tunneleffect dat vandaag bestaat. Door deze configura e zijn het fietspad en de fietsparkings van het sta on goed zichtbaar. De ingangen van de sta onshal moeten echter toegankelijk blijven.

OPENBAAR VERVOER

ELEMENTEN UIT DE DIAGNOSE

Het Noordsta on is een belangrijk intermodaal knooppunt op schaal van het Gewest. Het combineert immers treinen, premetro, trams en bussen van de MIVB en De Lijn.

Naast een groot aantal IC-, IR- en interna onale verbindingen vanaf het treinsta on omvat de site 2 premetrolijnen, 3 tramlijnen, 6 MIVB-buslijnen en een der gtal buslijnen van De Lijn.

Het interna onale bussta on dat oorspronkelijk aan de Vooruitgangstraat lag, aan de kant van het Solvayplein, werd jdelijk verplaatst omwille van de a raak van het CCN.

Het bussta on (De Lijn & MIVB) en de toegangen ertoe beslaan een volledige halfondergrondse verdieping van het CCN-gebouw. De huidige configura e is problema sch aangezien deze halfondergrondse verdieping de dialoog verhindert tussen het gebouw en de openbare ruimte en een weinig aangename plaats is voor de gebruikers die voortdurend trappen moeten nemen.

De meeste bussen die het bussta on verlaten in zuidelijke rich ng, rijden naar de Rogierstraat (in eigen baan).

Alleen MIVB-bus 20 slaat rechtsaf (geen eigen baan op het Noordplein) om naar haar halte op het Bolivarplein te rijden. De lijnen 528, 529 en 460 van De Lijn rijden het bussta on binnen en buiten langs het noorden vanaf/in de rich ng van het noordelijke deel van de Vooruitgangstraat.

Heel wat voertuigen van privébedrijven pendelen tussen het sta on en de site Thurn&Taxis en palmen de openbare ruimte op het Bolivarplein in (variabel instappunt).

Hoofdstuk III / Afdeling 3 Effectenbeoordeling / B - ruimtelijke alterna even / p. 286
VERPLAATSINGEN VERPLAATSINGEN VERPLAATSINGEN

TENDENTIEEL ALTERNATIEF

Verschillende grote projecten zullen de uitstekende bereikbaarheid van het Territorium Noord nog versterken:

- de nieuwe lijn Metro Noord tussen Albert en Bordet (de werken zijn in uitvoering);

de nieuwe tramlijn van de MIVB tussen het Centraal Station en Thurn & Taxis (via de Suzan Danielbrug): het traject zal een rechtstreekse impact hebben op de wegen binnen het BBP aangezien het rond het huizenblok Proximus zal leiden via het Bolivarplein in het noorden. De ontwikkeling van dit traject zal het privépendelverkeer tussen het station en Thurn & Taxis aanzienlijk verminderen.

- De toekomstige tramlijnen van het “Brabantnet” van De Lijn en meer bepaald de Sneltram tussen het Noordstation en Willebroek, via de Heizel (op termijn misschien via de Suzan Danielbrug). In dit alternatief ligt de eindhalte in de Koolbrandersstraat.

Voor de elektrifica e van het buspark zullen er snellaadpalen moeten worden voorzien, bij voorkeur in de open lucht.

Het BBP definieert de ‘zone voor verkeer’ als voorbehouden voor het verkeer van voertuigen en voetgangers. De zone van het CCN zal bovendien het interstedelijke en grootstedelijke treinsta on omva en, het tram- en bussta on, een taxista on en de toegangen ernaartoe. Het hele programma van het openbaar vervoer wordt dus uitgerold op de wegen en in het CCN.

VERGELIJKING VAN DE ALTERNATIEVEN

In de 3 alterna even bevinden de roltrappen naar de metro-ingang zich op het stadsniveau en gaan ze niet tot aan het sta onsniveau. Alleen op stadsniveau zullen gebruikers dus rechtstreeks toegang hebben tot de metro.

De alterna even maken geen melding van het interna onale bussta on. Vermoedelijk blij het op zijn huidige loca e, in het noordelijke deel van de kleine Vooruitgangstraat, ondanks de nega eve impact op verschillende criteria.

Het openbaar vervoer in de alterna even (1 links, 2 in het midden en 3 rechts) – 1010au

Alterna ef 1

De afdaling naar de metro, op stadsniveau, is vanaf het Bolivarplein en het sta on niet duidelijk omdat het sta onsniveau het stadsniveau overkraagt. Het alterna ef zegt niets over de manier waarop het niveauverschil

Hoofdstuk III / Afdeling 3 Effectenbeoordeling / B - ruimtelijke alterna even / p. 287
-
VERPLAATSINGEN
VERPLAATSINGEN VERPLAATSINGEN
OpenbaredoorgangbedektmeteenplaatBusstaon Bustraject

wordt beheerd (trappen van het Bolivarplein naar het sta on? verbinding tussen het stadsniveau en het sta onsniveau “in het midden” tussen beide?). Het is dus niet duidelijk of de metro-ingang toegankelijk is voor PBM (roltrappen35). De ingang van de metro bevindt zich in de gebouwen van het CCN.

Hetbussta onis lineair,meteen‘nis’ophetSolvayplein.Doordezeorganisa eblijvendebusstromenongewijzigd (uitrit naar het noorden en het zuiden) en worden de bestaande buslijnen niet omgeleid (de halte van de verschillende lijnen blij op het Bolivarplein). Ook de eindhaltes blijven zoals in de bestaande toestand (eindhalte van de bussen 14 en 57 nog steeds op het Bolivarplein). De manoeuvres bij het parkeren van de bussen in het bussta on zijn gewijzigd. Ze zijn minder comfortabel vanwege de ‘nis’, die ‘aarvormig’ parkeren impliceert.

Het bussta on biedt ongeveer 100 m parkeerruimte in de open lucht, zodat er oplaadsystemen voor elektrische bussen kunnen worden geplaatst.

De toestand in het noordelijke deel van de kleine Vooruitgangstraat blij ongewijzigd zodat het interna onale bussta on er a priori nog steeds mogelijk is.

Alterna ef 2

De afdaling naar de metro, op de benedenverdieping in de open lucht, is vanaf het Bolivarplein en het sta on heel duidelijk. Het stadsniveau loopt immers door. Door de lichte helling in de rich ng van het sta on (~2%) is deze ingang2 toegankelijk voor PBM. De afdalingen naar de metro zijn geïntegreerd in de gebouwen en de openbare ruimte.

Het bussta on is ‘gegroepeerd’ en geconcentreerd op het Noordplein. De bussen van De Lijn kunnen daardoor niet via het noorden naar de Vooruitgangstraat rijden, zoals in de bestaande toestand. Ze moeten dus worden omgeleid via de Albert II-as. Het traject wordt daardoor ongeveer 360 m langer en de haltes worden niet verplaatst.Inhetbussta onzijnook deeindhaltesvandebussen14 en57vandeMIVBgelegen.Huntraject wordt ongeveer 300 m langer. Een technische controle is nodig om zeker te zijn dat de capaciteit (perronlengte) van het bussta on volstaat om deze bijkomende lijnen te ontvangen. De repatriëring van de MIVB-lijnen verhoogt de duidelijkheid van het bussta on één halte voor inrit/uitrit ‘Noordsta on’ voor alle bussen) en bevordert de intermodaliteit. De manoeuvres bij het parkeren van de bussen in het bussta on zijn gewijzigd. Ze zijn minder comfortabel vanwege de ‘nis’, die ‘aarvormig’ parkeren impliceert.

Hetstructurelenet dat deverschuivingvandelastenvanhet gebouw dathet bussta on overkraagtmoetmogelijk maken, is een beperking voor het tracé van de perrons. De lee aarheid van het alterna ef werd door de operator van het bussta on (De Lijn) niet beves gd.

De toestand in het noordelijke deel van de kleine Vooruitgangstraat blij ongewijzigd zodat het interna onale bussta on er a priori nog steeds mogelijk is.

Alterna ef 3

De afdaling naar de metro, op stadsniveau, is vanaf het Bolivarplein en het sta on niet duidelijk omdat het sta onsniveau het stadsniveau overkraagt. Het alterna ef zegt niets over de manier waarop het niveauverschil wordt beheerd (trappen van het Bolivarplein naar het sta on? verbinding tussen het stadsniveau en het sta onsniveau “in het midden” tussen beide?). Het is dus niet duidelijk of de metro-ingang toegankelijk is voor PBM (roltrappen36). De ingang van de metro bevindt zich in de gebouwen van het CCN.

Het bussta on is lineair, met een ‘nis’ aan de noordkant van het CCN-perceel. Omdat op het Solvayplein een gebouw wordt ontwikkeld, kunnen de bussen van De Lijn het bussta on niet langs het noorden buitenrijden zoals vandaag het geval is. Ze moeten dus worden omgeleid via de Albert II-as. Het traject wordt daardoor ongeveer 360 m langer en de haltes worden niet verplaatst. In het bussta on zijn ook de eindhaltes van de bussen 14 en 57 van de MIVB gelegen. Hun traject wordt ongeveer 300 m langer. Een technische controle is nodig om zeker te zijn dat de capaciteit (perronlengte) van het bussta on volstaat om deze bijkomende lijnen te ontvangen. De repatriëring van de MIVB-lijnen verhoogt de duidelijkheid van het bussta on (één halte “Noordsta on” voor alle bussen) en bevordert de intermodaliteit. De manoeuvres bij het parkeren van de bussen in het bussta on zijn gewijzigd. Ze zijn minder comfortabel vanwege de ‘nis’, die ‘aarvormig’ parkeren impliceert.

Hoofdstuk III / Afdeling 3 Effectenbeoordeling / B - ruimtelijke alterna even / p. 288
35
36
VERPLAATSINGEN
De posi e van de toekoms ge li en is niet bekend.
De posi e van de toekoms ge li en is niet bekend.
VERPLAATSINGEN

Hetstructurelenet dat deverschuivingvandelastenvanhet gebouw dathet bussta on overkraagtmoetmogelijk maken, is een beperking voor het tracé van de perrons. De lee aarheid van het alterna ef werd door de operator van het bussta on (De Lijn) niet beves gd.

Dit alterna ef wijzigt bovendien de rooilijn van de kleine Vooruitgangstraat van het huizenblok North Galaxy, wat het risico inhoudt dat niet meer kan worden voldaan aan de behoe en van de operator van de interna onale bussen. Auto’s worden in deze straat echter niet meer toegelaten. De toegang naar de ondergrondse parking verdwijnt immers, waardoor hier geen autoverkeer meer mogelijk moet zijn (zie “Auto’s”).

AANBEVELINGEN

Een bussta on dat is geconcentreerd in het zuiden (zoals in alterna ef 2) verdient in heel wat opzichten de voorkeur. Het bevordert niet alleen de doorstroming op de verbinding Bolivar/sta on omdat de ac eve verplaatsingswijzen er geen busstromen moeten kruisen, het is ook duidelijker voor de gebruikers en bevordert de ac vering van de openbare ruimte. De technische beves gingen van de uitvoerbaarheid van de voorstellen moeten nader worden onderzocht in het kader van de ontwikkelingsprojecten in het huizenblok (exacte lengte van de beschikbare perrons, analyse van de structuren en eventuele lastenverschuiving indien nodig, helling van de perrons, uitvoerbaarheid van de manoeuvres, in- en uitri en voor de rijtuigen, comfort van de chauffeurs aan de halte ...). Deze controles voor de 3 alterna even vragen van De Lijn/de MIVB een investering die ze in dit kader nietkunnenleveren( ming).Erwerdeenvoorstelgedaanomalterna ef1teverbeteren(ziehoofdstukIVAfdeling 1 – voorstelling van de weerhouden oplossingen).

De ‘geconcentreerde’ configura e (alterna ef 2) zou bovendien moeten worden goedgekeurd door de gemeente Sint-Joost-ten-Node (gelegen buiten het BBP).

Door de lengte van de plaat op sta onsniveau (beperking tot de strikte doorgang boven de bussen, als die op e noodzakelijk is) te beperken, blij de resterende ruimte op het Bolivar-voorplein gelijkvloers en is ze comfortabel voor PBM en vanaf het Bolivarplein duidelijk voor de voetgangers.

De ontwikkeling van perrons in de open lucht, zoals in alterna ef 1, maakt de ontwikkeling mogelijk van een laadsta on. Het feit dat boven dit deel van het bussta on niet wordt gebouwd is echter niet zeker. Dit deel van het gebied wordt immers niet gedekt door een BBP en is volgens het GBP bebouwbaar.

Omdat de uiteindelijkeplaats vanhet interna onalebussta onnogniet bekendis,mag het BBP deterugkeernaar de oorspronkelijke plaats niet in de weg staan en dus de rooilijn op deze plaats niet wijzigen.

Gelet op de toekoms ge veranderingen moet bijzondere aandacht worden besteed aan de toegankelijkheid van het openbaar vervoer, onder meer jdens de werken.

Devraag op welkeplaats indetoekomstkanwordenvoldaan aandebehoe envandeinterna onalebussen,blij onbeantwoord. Het behoud van de huidige zone moet dus mogelijk blijven volgens het BBP.

Een rechtstreekse verbinding tussen de metro en het sta on is noodzakelijk, temeer omdat de roltrappen naar de metro beperkt blijven tot het stadsniveau op het Bolivarplein (dat is in de 3 alterna even het geval). Er moeten ver cale verbindingen worden voorzien tussen de sta onshal en het stadsniveau. Zij kunnen worden omkaderd in het BBP, bijvoorbeeld door de huidige formulering te hergebruiken: het aantal, de plaatsing en de kenmerken van deze verbindingen worden vastgesteld door het college van burgemeester en schepenen.

Hoofdstuk III / Afdeling 3 Effectenbeoordeling / B - ruimtelijke alterna even / p. 289
VERPLAATSINGEN VERPLAATSINGEN

AUTO’S

ELEMENTEN UIT DE DIAGNOSE

De hele perimeter is toegankelijk voor auto’s.

De Albert II-laan en de Bolivarlaan en de Solvay- en de Noord-as worden gebruikt door het doorgaand verkeer.

TENDENTIEEL ALTERNATIEF

De Bolivarlaan zal worden heraangelegd in het kader van de ontwikkeling van de tram tussen het stadscentrum en Thurn&Taxis. Het wegprofiel zal worden gewijzigd (de plannen zijn nog niet beschikbaar) en het aantal rijstroken zal worden verminderd. De plannen verkeren nog in de studiefase.

De geleidelijke uitvoering van het plan Good Move zal het doorgaand verkeer verminderen en de auto’s van het hart van de mazen weer naar de maasranden leiden. De Albert II-laan en het Solvayplein worden beschouwd als Auto Comfortwegen en vormen dus de maasranden. Zij zullen aanvankelijk bijkomende verkeersstromen moeten verwerken, maar het plan Good Move voorziet in een vermindering van de verkeerslast op de maasranden met 6 à 10% tegen 2030.

Lokaleorganisaevanhetverkeer (EffectenstudievandearaakvanhetCCN)

Het BBP definieert de ‘zone voor verkeer’ als voorbehouden voor het verkeer van voertuigen en voetgangers.

VERGELIJKING VAN DE ALTERNATIEVEN

Op het vlak van autoverkeer zijn de 3 alterna even nagenoeg iden ek. In de 3 gevallen:

- wordt het autoverkeer van het Bolivarplein geweerd; - wordt het autoverkeer ook van het Bolivar-voorplein geweerd;

- is ook de binnenstraat niet toegankelijk voor auto’s (met uitzondering van taxi’s).

- Omdat de inrit van de ondergrondse parking in het huizenblok Proximus wordt verplaatst, wordt het verkeer in het zuidelijke deel van de kleine vooruitgangstraat en op het Noordplein onderbroken tussen de Vooruitgangstraat en de uitrit van de ondergrondse parking van het huizenblok CCN:

- Als het Solvayplein niet wordt bebouwd, is het niet toegankelijk voor auto’s (zoals in de bestaande toestand);

- De Albert II-laan, de Solvay-as, het noordelijke deel van de Vooruitgangstraat en de tunnels onder de sporen behouden tweerichtingsverkeer voor de auto’s. In alterna ef 3 wordt ook de inrit van de ondergrondse parking in het huizenblok North Galaxy verplaatst en is het noordelijke deel van de kleine Vooruitgangstraat niet toegankelijk voor het autoverkeer.

Hoofdstuk III / Afdeling 3 Effectenbeoordeling / B - ruimtelijke alterna even / p. 290
VERPLAATSINGEN
VERPLAATSINGEN

Zone die niet toegankelijk is voor auto’s (in het geel), toegangen tot de ondergrondse parking en logis eke toegangen (rode pijlen), doorgang van bussen en trams (respec evelijk oranje en s ppellijn) en overdekte doorgangen (platen, tunnels ... In het blauw) - 1010au.

Het verkeer zal mogelijk verschuiven naar de meer zuidelijk gelegen Georges Matheusstraat langswaar het van de Albert II-laan naar de Vooruitgangstraat kan rijden. De as Noord/Koolbranders wordt omgevormd van een interwijkweg tot een auto-Wijkweg volgens de MWS. Deze wijziging sluit a priori aan bij de meest recente beslissingen op dit vlak.

AANBEVELINGEN

Er wordt aanbevolen om in een kleine mobiliteitsstudie de mogelijkheden te onderzoeken om in de Matheusstraat omgekeerd eenrich ngsverkeer in te voeren zodat ze niet meer als bistraject kan worden gebruikt. Deze verschillende voorstellen sluiten aan bij de doelstelling om het doorgaand verkeer tussen de Noordtunnel en de Albert II-laan te verminderen.

De aanbeveling valt echter buiten het kader van het BBP.

Hoofdstuk III / Afdeling 3 Effectenbeoordeling / B - ruimtelijke alterna even / p. 291
VERPLAATSINGEN

VRACHTWAGENS EN LEVERINGEN

ELEMENTEN UIT DE DIAGNOSE

De vrachtwagenstroom in de perimeter is zeer beperkt, onmiskenbaar beperkt tot de noodzakelijke leveringen. Het vrachtverkeer begee zich naar de huizenblokken:

Voor het huizenblok Proximus: via de kleine Vooruitgangstraat; - voor het huizenblok North Galaxy: via de kleine Vooruitgangstraat en de Solvay-as;

voor het huizenblok CCN: via de ondergrondse parking voor kleine leveringen (voertuigen met een hoogte <3m) en via het busstation voor de grotere leveringen. - voor het station: via het Solvayplein.

TENDENTIEEL ALTERNATIEF

Toegangvoorleveringen(rodepijlen)inde bestaandetoestand(ziediagnose)

De ontwikkeling van de projecten CCN en Proximus zal meer gemengdheid creëren in het gebied. Daardoor verandert het aantal vrachtwagens dat nodig is voor de leveringen.

Door de uitvoering van het plan Good Move zullen er poten eel meer vrachtwagens door het gebied rijden. De Albert II-laan, het Solvayplein en de Solvaystraat en de kleine Vooruitgangstraat (noordelijk deel) zijn ingedeeld als VV Comfortweg en zullen de voertuigen verwerken die vandaag de andere wijkwegen gebruiken om de mazen in en uit te rijden.

Het BBP omvat geen specifieke voorschri en voor dit criterium.

VERGELIJKING VAN DE ALTERNATIEVEN

De logis eke toegangen worden verplaatst (zie plannen op de volgende pagina) en samengevoegd met de inri en van de ondergrondse parkings;

- voor het huizenblok Proximus: in de Albert II-laan in de 3 alternatieven

voorhethuizenblokNorthGalaxy:indeAlbertII-laan inde3 alternatievenenin hetnoordelijkedeel van de kleine Vooruitgangstraat in de alternatieven 1 en 2

voor het huizenblok CCN: uitsluitend via de ondergrondse parking in de 3 alternatieven

voor het station: zoals in de huidige toestand voor de alternatieven 1 en 2. Alternatief 3 preciseert geen toegangen voor dit huizenblok. Het voorziet in de ontwikkeling van een gebouw op het Solvayplein, waardoor de bestaande toegang wordt verhinderd.

De3alterna evenstellenverschillendetoegangenvoortotdehuizenblokken(zieschemaopdevolgendepagina):

alternatief 1: beheer van de leveringen in de kelderverdieping, via dezelfde toegang als die van de parking De technische uitvoerbaarheid om vrachtwagenverkeer mogelijk te maken in de kelderverdiepingen moet worden onderzocht. Bij dit beheer wordt ruimte ingenomen in de ondergrond, wat niet echt plausibel is gezien de verwachtingen voor de parkeermogelijkheden (zie programmatie);

alternatief 2: beheer van de leveringen op een binnenplaats met één toegang. Het feit dat slechts één toegang wordt voorzien, maakt het mogelijk om het conflict met de andere gebruikers van de openbare ruimte te rationaliseren. De manoeuvres die moeten worden gemaakt op het perceel nemen veel ruimte in beslag. Dit strookt mogelijk niet met de oppervlakten van de handelszaken/voorzieningen die zijn voorzien in het programma. Een technische analyse is nodig om de optimale afmetingen te bepalen.

-

alternatief 3: beheer van de leveringen binnen het perceel, met in- en uitrit op twee verschillende punten. Het feit dat voor de leveringen twee toegangen worden voorzien, biedt het voordeel dat er binnen het perceel minder ruimte wordt ingenomen. Het verhoogt echter ook de conflictpunten in de openbare ruimte. Het vrachtverkeer moet zich verplaatsen in de openbare ruimten die a priori bestemd zijn voor actieve verplaatsingswijzen en het openbaar vervoer.

Hoofdstuk III / Afdeling 3 Effectenbeoordeling / B - ruimtelijke alterna even / p. 292
-
-
-
-
-
-
-
VERPLAATSINGEN VERPLAATSINGEN

AANBEVELINGEN

Om de wegen meer vrij te maken voor andere gebruiksdoeleinden en de conflictpunten tussen de verschillende gebruikers te beperken, moeten de logis eke toegangen worden gera onaliseerd en in voor elk huizenblok in aantal worden beperkt.

Gezien de breedte van de betrokken assen, de MWS en de specifieke stedelijke typologie (gebouwenhuizenblokken), dus gezien de ruimtelijke capaciteiten van de huizenblokken om de leveringen te beheren op het perceel (om het verkeer niet te belemmeren), wordt aanbevolen om de leveringen te laten plaatsvinden binnen de huizenblokken en om de toegangen (in- en uitrit) te organiseren op de assen Albert II en Solvay (VV Comfortwegen volgens het plan Good Move). Zo komt het vrachtverkeer niet op de andere wegen terecht die al een groot deel van de ac eve verplaatsingswijzen moeten verwerken.

Het lijkt van essen eel belang om voor de huizenblokken CCN en sta on ‘zware’ logis eke toegangen te voorzien (> 3m hoogte).

Omdat het sta on pas recent werd gerenoveerd en de toegangen voor vrachtwagens werden vastgelegd, lijkt het weinig opportuun om op het Solvayplein een gebouw op te trekken dat deze toegang zou belemmeren, tenzij de ligging van het sta on zou worden gewijzigd.

De technische uitvoerbaarheid van een toegang voor vrachtwagens voor leveringen in het hart van het bussta on (dat kleiner wordt dan in de huidige toestand) moet worden onderzocht om na te gaan of leveringen langs die

Hoofdstuk III / Afdeling 3 Effectenbeoordeling / B - ruimtelijke alterna even / p. 293
Logis ek en inri en op het stadsniveau in de huizenblokken in de alterna even 1 (links), 2 (midden) en 3 (rechts) – 1010au Toegang voor leveringen (rode pijlen) in de alterna even 1 (links), 2 (midden Rood 3 (rechts)– 1010au
VERPLAATSINGEN VERPLAATSINGEN

weg nog steeds mogelijk zijn. Zoniet moet een aparte toegang worden voorzien, bij voorkeur verbonden met de VV Comfortweg van de MWS. In het geval van het CCN is dat de Solvay-as. De ruimten die in de huizenblokken worden gebruikt voor logis eke doeleinden moeten worden opgenomen in de gemengde ruimten (handelszaken en voorzieningen) die zijn bepaald in het programma.

Hoofdstuk III / Afdeling 3 Effectenbeoordeling / B - ruimtelijke alterna even / p. 294
VERPLAATSINGEN

PARKEREN

ELEMENTEN UIT DE DIAGNOSE

Autoparkeren

Het gebied telt een vij igtal parkeerplaatsen op de openbare weg. De gemiddelde beze ngsgraad is vrij variabel, maar over het algemeen hoger overdag.

Buiten de weg is een openbare parking gelegen onder het CCN en alle huizenblokken beschikken over privéparkings buiten de openbare weg.

Fietsparkeren

Het onderzochte gebied telt 7 inrich ngen voor fietsparkeren op de openbare weg. ‘s Nachts wordt de vraag geraamd op minder dan 50%. Overdag is de vraag wellicht hoger, met name omdat het gebied een mul modale pool is.

Twee grote parkings buiten de openbare weg zijn gelegen op het stadsniveau van het sta on en jdens de openingsuren toegankelijk via de overdekte straat: een gra s parking en een parking voor abonnees (beide met parkeerplaatsen voor bakfietsen). Deze parkings liggen ondergronds en zijn daardoor weinig zichtbaar.

TENDENTIEEL ALTERNATIEF

Autoparkeren

Lokalisaeengrondinnamevanhetparkeren indekelderverdiepingeninhetgeel(BRAT, 2022)

Een nieuwe openbare parking met 152 plaatsen wordt aangelegd in de Kwatrechtstraat. Het ZIN-project dat aan het gebied grenst voorziet in de ontwikkeling van 316 openbare parkeerplaatsen, d.i. 293 plaatsen minder dan vóór de werken (639 plaatsen in de openbare parking waarvan er ongeveer 300 worden gebruikt door 24u/24-abonnementen37).

In de huizenblokken Proximus en CCN zullen projecten worden gerealiseerd. De milieuvergunning die een aantal parkeerplaatsen toekent in de kelderverdieping zal moeten worden vernieuwd. Voor het parkeren door het personeel van kantoren of daarmee gelijkgesteld, zal het BWLKE worden toegepast om het aantal toegekende parkeerplaatsen te berekenen volgens de toegekende oppervlakten.

Het BBP stelt geen becijferde eisen maar bepaalt als volgt: “bij elk woongebouw moeten overdekte of openluchtstandplaatsen horen voor het parkeren of bergen van voertuigen waarvan het aantal evenredig is aan het aantal woongelegenheden. Bij elk bureaugebouw moeten overdekte of openluchtstandplaatsen horen voor het parkeren of bergen van voertuigen waarvan het aantal evenredig is met de bruikbare bureau oppervlakte. De evenredigheidscoëfficiënten worden bepaald door het college van burgemeester en schepenen. In de nabijheid der collec eve uitrus ngen en der gebouwen van openbare diensten zullen de standplaatsen voorzien worden voor het parkeren der voertuigen waarvan de gebeurlijke of standvas ge aanwezigheid voortvloeit uit de bedoelde uitrus ng en gebouwen. Het afleveren van de bouwvergunning kan onderworpen worden aan alle voorwaarden die betrekking hebben op de goede aanleg van de toegangen der voertuigen tot de openbare weg “

Het BBP maakt geen melding van fietsparkeren.

VERGELIJKING VAN DE ALTERNATIEVEN

In de 3 alterna even worden de parkeerplaatsen op de openbare weg geschrapt. De toegangen tot de parkings zijn in de 3 alterna even iden ek: zoals in de huidige toestand voor het CCN en via de Albert II-as voor de huizenblokken North Galaxy en Proximus.

37 Plaatsen die de hele dag zijn ‘gereserveerd’, vaak gebruikt door bedrijven die ze ter beschikking stellen van hun personeel.

Hoofdstuk III / Afdeling 3 Effectenbeoordeling / B - ruimtelijke alterna even / p. 295
VERPLAATSINGEN
VERPLAATSINGEN

Alle alterna even verhogen het aantal fietsparkeerplaatsen onder het sta on. De lokalisa e in de 3 alterna even verschilt:

- In alternatief 1: het fietsparkeren wordt behouden aan de westkant van de rails (zoals in de bestaandetoestand)eneennieuwefietsparkingwordtontwikkeldinhetnoordelijkedeelvanhetstation. Omdat de parking ondergronds ligt is ze weinig zichtbaar en van beperkte kwaliteit (zoals in de huidige toestand).

- In de alternatieven 2 en 3: de fietsparking is rechtstreeks toegankelijk vanaf de Aarschotstraat. Niet alleen de capaciteit kan worden verhoogd, er wordt ook voorzien in een betere zichtbaarheid en een nieuwe toegang. Bovendien is de binnenstraat niet meer overdekt, zodat de zichtbaarheid van de fietsparking ook aan die kant wordt verbeterd Er wordt een fietsparking ontwikkeld in de Kwatrechttunnel, in de onmiddellijke buurt van de noordelijke stationsingang.

De technische uitvoerbaarheid van deze op es is niet bewezen. De keuze van het voorkeuralterna ef zal waarschijnlijk vooral a angen van deze uitvoerbaarheid.

Posi e van de openbare fietsparkings (in het geheel) en de overdekte ruimten (in het blauw) in de alterna even 1 (links), 2 (midden) en 3 (rechts) - 1010au

De alterna even geven geen informa e over het fietsparkeren in de openbare ruimte.

AANBEVELINGEN

In de projecten moet het gedeeld gebruik van de autoparkeerplaatsen worden aangemoedigd.

Het schrappen van parkeerplaatsen op de openbare weg is in de perimeter van het BBP relevant gezien de mobiliteitsuitdagingen. De zichtbaarheid van de fietsparking(s) van de NMBS zal worden verbeterd als de binnenstraat niet meer overdekt is.

MOBILITEITSDIENSTEN EN INTERMODALITEIT

ELEMENTEN UIT DE DIAGNOSE

Het gebied is een belangrijke openbaarvervoerspool voor het BHG. Het combineert immers trein-, premetro-, tram-enbusnetwerkenvanDeLijnendeMIVB.Dehaltes“Noordsta on” liggennietallemaalopdezelfdeplaatsen en op dezelfde niveaus (Bolivar en Noordplein, stadsniveau en sta onsniveau). Heel wat reizigers hebben het daardoor moeilijk om zich in deze pool te oriënteren.

In de buurt van het gebied liggen 3 Cambio-sta ons en twee Villo!-sta ons.

Het gebied telt 19 parkeerplaatsen voor taxi’s op het Bolivarplein (onder de trap naar het CCN-gebouw), het Noordplein, in de binnenstraat en in de Aarschotstraat (zuidelijke ingang).

Het gebied bevat geen oplaadpalen voor elektrische wagens.

TENDENTIEEL ALTERNATIEF

Het plan Good Move promoot in het algemeen de ontwikkeling van de mobiliteitsdiensten.

Hoofdstuk III / Afdeling 3 Effectenbeoordeling / B - ruimtelijke alterna even / p. 296
VERPLAATSINGEN VERPLAATSINGEN VERPLAATSINGEN

Het Taxiplan stelt zich tot doel om de ‘taxihub’ aan het Noordsta on beter zichtbaar te maken.

Door de nieuwe tramlijnen van De Lijn en de MIVBzullen er lijnen, haltes en eindhaltes worden toegevoegd in het gebied.

Het BBP beperkt zich tot het situeren van de mobiliteitshub in de CCN-zone.

VERGELIJKING VAN DE ALTERNATIEVEN

In de 3 alterna even wordt een halte behouden op het Bolivarplein, voor de bussen en de toekoms ge trams. Afgaande op het aantal bussen en trams dat wordt verwacht en op hun frequen e jdens het spitsuur, zullen ze bijna de hele lengte van het Bolivarplein innemen (tegenover het huizenblok Proximus). Alterna ef 1 stelt echter voor om op het plein 2 haltes te behouden voor het in- en uitstappen van de bussen 14 en 57. Hun eindhalte wordt behouden op het plein. Het aantal haltes ‘Noordsta on’ blij dus ongewijzigd, wat niet bevorderlijk is voor een op male intermodaliteit.

In de 3 alterna even is het in- en uitstappunt van de bussen aan de ingang/uitgang van het sta on hetzelfde, dichtbij de zuidelijke ingang van het sta on gelegen (zoals in de huidige toestand). De afstand tot de metro is vrij groot(~100 m in vogelvlucht) maar ongeveer dezelfde als in de huidige toestand. A ankelijk van de alterna even wordt de afstand tussen de bushalte en de metro al dan niet groter:

- alternatief 1: er wordt niet gepreciseerd of de metro toegankelijk is vanaf de gevel van het gebouw dat uitgeeft op het Noordplein. Als dat het geval is, is de intermodaliteit kort (~120 m) en makkelijk als deze mogelijkheid duidelijk wordt aangegeven. Deze optie impliceert beheersakkoorden over de benedenverdieping van dit gebouw en beperkt de mogelijkheid om er handelszaken/voorzieningen te vestigen. Als deze optie niet mogelijk is, moeten de gebruikers rond het gebouw lopen naar het Bolivarplein en zich vervolgens naar het stadsniveau op het Bolivar-voorplein begeven om af te dalen naar de metro (min. 196 m). Of ze moeten door de overdekte binnenstraat lopen, naar beneden gaan en de busstromen kruisen om de roltrappen te bereiken (186 m).

- alternatief 2: de gebruikers lopen door de niet meer overdekte binnenstraat naar het Bolivarvoorplein en dalen af naar de metro (186 m).

- alternatief 3: er wordt niet gepreciseerd of de metro toegankelijk is vanaf de gevel van het gebouw dat uitgeeft op het Noordplein. Als dat het geval is, is de intermodaliteit kort (~120 m) en makkelijk als deze mogelijkheid duidelijk wordt aangegeven. Deze optie impliceert beheersakkoorden over de benedenverdieping van dit gebouw en beperkt de mogelijkheid om er handelszaken/voorzieningen te vestigen. Als deze optie niet mogelijk is, moeten de gebruikers rond het gebouw lopen naar het Bolivarplein en zich vervolgens naar het stadsniveau op het Bolivar-voorplein begeven om af te dalen naar de metro (min. 190 m). Of ze moeten door de binnenstraat lopen, naar beneden gaan en de busstromen kruisen om de roltrappen te bereiken (186 m).

Mogelijke trajecten (geel) tussen de bushaltes (roze), de metro-ingang (wi e driehoeken) en het sta on (zwarte driehoeken), al dan niet onder plaat (blauw) in de alterna even 1 (links), 2 (midden) en 3 (rechts) – 1010au

Hoofdstuk III / Afdeling 3 Effectenbeoordeling / B - ruimtelijke alterna even / p. 297
VERPLAATSINGEN VERPLAATSINGEN

Voor de verbinding tussen het sta on en de metro stellen de alterna even 1 en 3 de ontwikkeling voor van een plaat, zonder de toegangsmodaliteiten tussen deze plaat en de metro-ingangen op het stadsniveau te preciseren. De busstromen moeten niet worden gekruist en de gebruikers lopen naar het stadsniveau waar zich een sta onsingang bevindt. In alterna ef 2 liggen de metro-ingangen op hetzelfde niveau en zijn ze rechtstreeks verbonden met de sta onsingang op het stadsniveau. De sta onshal is toegankelijk vanaf buiten (het alterna ef gee geen verdere informa e over de modaliteiten).

De lokalisa e van de taxista ons wordt in de alterna even niet gepreciseerd. We veronderstellen dat ze worden behouden zoals in de huidige toestand (namelijk op het Bolivarplein, in de binnenstraat en in de Aarschotstraat).

In de 3 alterna even rijden/sta oneren de taxi’s op het Bolivarplein, in het noordelijke deel van de kleine Vooruitgangstraat, in de binnenstraat en in de Aarschotstraat.

AANBEVELINGEN

De intermodaliteitsmogelijkheden moeten organisatorisch worden verduidelijkt:

- Het aantal haltes beperken en de voorkeur geven aan 1 halte “Noordstation”, gelegen aan de in/uitgang van het busstation. De eindhalte van de bussen 14 en 57 bevindt zich dan in het busstation (de lengte van de beschikbare perrons moet technisch worden geverifieerd).

- In voorkomend geval de metro-ingang toegankelijk maken vanaf het stadsniveau van het gebouw dat wordt ontwikkeld op het Noordplein of de bushaltes in de buurt van het Bolivar-voorplein plaatsen, en dus in de buurt van de metro en het station;

- zorgen voor een duidelijke bewegwijzering om de intermodaliteit te bevorderen;

- in alle gevallen de toegankelijkheid garanderen voor PBM (ook als een verlaging wordt behouden voor de doorgang van de bussen).

Als er geen plaat wordt ontwikkeld, of slechts een korte plaat, worden de toegangen tot het sta on en de metro duidelijker. Hetzelfde geldt als de binnenplaats niet meer overdekt is.

Als desondanks toch een lange plaat wordt ontwikkeld, moeten er li en en trappen worden voorzien voor de doorgang van de plaat naar de metro-ingang beneden.

Hoofdstuk III / Afdeling 3 Effectenbeoordeling / B - ruimtelijke alterna even / p. 298
VERPLAATSINGEN VERPLAATSINGEN

MICROKLIMAAT

ELEMENTEN UIT DE DIAGNOSE

De Noordwijk is gelegen in een van de stadsdelen die het meest onderhevigzijnaanhetstedelijkehi e-eilandeffect.Deoorzaakligt in de thermische kenmerken van de materialen, de stedelijke morfologie, de beperkte aanwezigheid van beplan ng en de menselijke ac viteiten.

Meer bepaald in het gebied dat wordt gedekt door het BBP ondergaat vooral het noordelijke deel van de Simon Bolivarlaan dit effect, waarschijnlijk als gevolg van de oriënta e naar het zuiden, de weerkaatsing op de beglaasde gevel van de North Galaxy-toren, de overma ge verharding en de ondoorlatendheid van de bodem. De beplante zones van de Albert II-laan zijn met hun beplan ng en bodemdoorlatendheid de koelste zones van het bestudeerde gebied.

Wathetwindcomfortbetre ,zorgthetweefselmethoofdzakelijke hoge gebouwen voor bijzonder veel tocht. De analyse van NUMFLO, gebaseerd op een simula e, toont aan dat het comfort in de bestaande toestand in de perimeter te wensen overlaat, vooral in de twee hoofdstraten: de Koning Albert II-laan en de Simon Bolivarlaan (comfortklassen C tot E). Deze straten lopen evenwijdig met de hevige en intense windrich ngen (respec evelijk in zuid-zuidwestelijke rich ng en in westnoordwestelijkerich ng),wateentunneleffectcreëertterwijlgeen enkel gebouw bescherming biedt tegen de omgevingswind. In de stratenindedirecteomgevingvanhetsta onis hetcomfortniveau merkbaar beter, maar nog onvoldoende voor ac viteiten waarbij men langdurig moet zi en.

Dit weefsel dat vooral uit hoge gebouwen bestaat, impliceert een grote impact van de slagschaduwen op de gebouwen en openbare ruimten in de wijk.

18,5° 22,5°

Hoofdstuk III / Afdeling 3 Effectenbeoordeling / B - ruimtelijke alterna even / p. 299
Stedelijkhie-eiland'snachts (VITOvoorLeefmilieuBrussel,2016)
LEEFMILIEU EN KLIMAAT LEEFMILIEU EN KLIMAAT
Contouren van comfortcategorieën in de bestaande toestand

Bezonning

Aangeziendeperimetergelegenis ineendichtweefselmethoofdzakelijkhogegebouwen,ondergaathijeengrote impact van slagschaduwen. De situa e is bijzonder kri ek in de winter, zelfs ‘s middags.

Zomerzonnewende(21/06)

Nachtevenings(21/03en21/09)

Winterzonnewende(21/12)

TENDENTIEEL ALTERNATIEF

De ambi es van de gewestelijke instan es voor de herontwikkeling van de Noordwijk omva en beplan ng en doorlatendheid, wat guns g is voor dit criterium.

Bij de realisa e van projecten is voorschri 0.2 van het GBP van toepassing: bij projecten van meer dan 5.000m² moet 10% van de oppervlakte worden ingenomen door één of meerdere ruimten van minstens 500 m² elk.

Volgens het BBP zijn verkeerszones “hoofdzakelijk voorbehouden aan het mechanische verkeer, het voetgangersverkeerendebeplan ngen”,zonderverdereindica esoverdehoeveelheden.Voordehuizenblokken legt het BBP een percentage op van minstens 30% groene ruimten die moeten worden aangelegd hetzij op de grond, hetzij boven de grond in de zone voor laagbouw van Proximus en North Galaxy. De gedeelten op de grond moeten verplicht hoogstammige bomen beva en. De groene ruimten worden aangelegd als tuintjes en mogen in de ondergrond gebruikt worden als garages, op voorwaarde dat die worden bedekt met een laag van minstens 50cm teelaarde voorzien van gras en struiken.

Voorts vereist het PPAS dat voor de gevels van alle gebouwen natuursteen, architectonisch beton, gevelstenen of geagglomereerde of synthe sche minerale materialen die door het gemeentebestuur moeten worden

Hoofdstuk III / Afdeling 3 Effectenbeoordeling / B - ruimtelijke alterna even / p. 300
9u 13u 16u LEEFMILIEU EN KLIMAAT LEEFMILIEU EN KLIMAAT

goedgekeurd, of glas en metalen materialen die van nature of door behandeling roestvrij zijn, worden gebruikt. Ten slo e vereist het PPAS dat de daken plat zijn.

Het BBP staat de voormelde ambi es dus niet in de weg.

VERGELIJKING VAN DE ALTERNATIEVEN

Voor de 3 alterna even kunnen de volgende vaststellingen worden gedaan: Hi e-eilandeffect

De in volle grond beplante ruimten vervullen een belangrijke rol in de beperking van de stedelijke hi eeilandeffecten. Ze worden in alle scenario’s ontwikkeld, wat poten eel guns g is, maar zonder verdere toelich ng over hun kwaliteit (bijvoorbeeld het soort beplan ng) of de reële oppervlakten. Ook de ontwikkeling van geïntegreerd regenwaterbeheer kan bevorderlijk zijn om dit effect te beperken, maar ook daar geven de alterna even geen verdere precisering.

De technische uitvoerbaarheid van het planten van bomenrijen in de Koolbrandersstraat is in verschillende opzichten zeer twijfelach g: enerzijds hee deze straat een beperkte breedte vanwege het project voor de eindhalte van de toekoms ge tram in dit deel, anderzijds wordt de ondergrond er ruimschoots ingenomen door tal van technische goten die naar het elektrische ondersta on ‘Markt’ leiden. Geen enkel alterna ef lijkt de bestaande volle grond op de Solvay-as te vrijwaren.

De bijzonderheden van de groene ruimten in elk alterna ef volgen hierna.

Slagschaduw

De ruimtelijke alterna even geven de mogelijke bouwprofielen waarin talloze volumes mogelijk zijn. De 3Dsimula es geven slechts één voorbeeld van hoe een project dat wordt omkaderd door het ruimtelijke alterna ef er zou kunnen uitzien. De hoge bouwdichtheid en de hoge bouwprofielen die worden beoogd, zijn globaal gezien onguns gvoor denatuurlijkelich nvalindegebouwenvoor debezonningvande openbare ruimte.Alleopenbare ruimten liggen in de 3 alterna even het hele jaar door een deel van de dag in de schaduw.

In het algemeen is de doorbreking van het huizenblok CCN guns g om slagschaduw op het Bolivarplein te vermijden.

De bijzonderheden inzake de slagschaduw in elk alterna ef volgen hierna.

Windeffecten

De hoge bouwprofielen in de wijk zijn in de bestaande toestand al globaal onguns g en de beoogde verdich ng van de bebouwing komt dit criterium niet ten goede.

Het studiebureau NUMFLO realiseerde een windstudie op basis van de 3 volumesimula es die het studiebureau belast met het BBP voorstelde in het kader van de 3 alterna even. De resultaten zijn dubbel: het ene deel gee de resultaten op 1,75m boven het grondniveau (om de impact op de voetgangers te kunnen ramen), het andere op 1,75 m boven de grondplaten die worden voorgesteld in de alterna even 1 en 3.

Bij de analyse van de resultaten zien we dat het comfortniveau in de 3 alterna even globaal gezien vrij slecht is in deassen BolivarenAlbert,metgemiddeldklasseC(slechtcomfortvoorzi endemensen)enlokaalklasseE (slecht comfort, zelfs voor mensen die louter oversteken). Deze twee hoofdassen lopen evenwijdig met de hevige en intensewindrich ngen(respec evelijkinzuid-zuidwestelijkerich ngeninwest-noordwestelijkerich ng),wateen tunneleffect creëert terwijl geen enkel gebouw bescherming biedt tegen de omgevingswind. De 3 alterna even brengen geen verandering in de conclusies die al werden gemaakt in de bestaande toestand.

Het comfortniveau is globaal gezien dus vrij slecht, net als in de bestaande toestand. Toch bestaan er aanzienlijke verschillen tussen de alterna even die we hierna zullen beschrijven.

Bij de ontwikkeling van de concrete projecten zullen er nauwkeurig windstudies moeten worden uitgevoerd. Behalve de bouwprofielen kunnen ook de architecturale verschillen een bron van windeffecten zijn die op basis van ontwerpen niet kunnen worden voorzien (luifel, ruwheid van de gevel, vormen, ...).

De bijzonderheden inzake de windeffecten in elk alterna ef volgen hierna.

Hoofdstuk III / Afdeling 3 Effectenbeoordeling / B - ruimtelijke alterna even / p. 301
LEEFMILIEU EN KLIMAAT

Alterna ef 1

Hi e-eilandeffect

De bomenrijen langs de perken in volle grond in de assen Koolbranders en Solvay dragen bij tot de beperking van het hi e-eilandeffect in de openbare ruimte. Hetzelfde geldt voor de 2 beplante hoeken tussen het Bolivarplein en het Bolivar-voorplein. Deze ruimten blijven van beperkte omvang, maar kunnen wel met volle grond worden voorzien.

VanwegedeverschillendetechnischebeperkingenopdesitevanhetMedicalCenterkanapriorislechtseenkleine beplante ruimte in volle grond worden voorzien.

De ontwikkeling van beplan ng die is voorzien in het alterna ef hee dus slechts een beperkte impact op het hi e-eilandeffect.

Windeffecten

Het comfort op het Bolivarplein zal er lokaal op achteruitgaan in vergelijking met de bestaande toestand. Langs de hele laan en ophetpleinbereikenmeerzones klasseE (slechtcomfort,zelfsbijlouteroversteken). Met dea raak van de toren in de Albert II-as verdwijnt het scherm, wat de verlenging van de windstromen a oms g van het Simon Bolivarplein inde rich ng van het sta on bevordert.

Door de lengte van de bebouwing aan de noordkant van het huizenblok CCN ontstaat een tunnel tussen dit gebouw en het sta on. Dat bevordert de versnelling van de wind en tast het comfort op deze weg aan. Boven de plaat is dat minder het geval.

Het feit dat het Bolivarplein onder een plaat is gelegen is zeer comfortabel vanwege de overdekking, maar de posi e boven de plaat is vooral vanwege de hoogte bijzonder onguns g.

Contouren van de comfortcategorieën voor alterna ef 1 op 1,75 m boven de grond (links) en op 1,75 m boven de plaat (rechts, zwarte driehoek) - NUMFLO

Hoofdstuk III / Afdeling 3 Effectenbeoordeling / B - ruimtelijke alterna even / p. 302
LEEFMILIEU EN KLIMAAT
LEEFMILIEU EN KLIMAAT

Slagschaduw

De binnenstraat en het Bolivarplein blijven overdekt en genieten geen natuurlijke lich nval. HetBolivarpleinisgemiddeldmeerblootgesteld aandezon danindebestaandetoestand.Dehogebouwprofielen zijn ten zuiden van het plein eerder beperkt. De lokalisa e van de zones die rechtstreeks bezonning genieten is gewijzigd in vergelijking met de huidige toestand.

Omgekeerd wordt het Solvayplein minder blootgesteld dan in de bestaande toestand vanwege de bouwwerken in het huizenblok CCN.

Deze bouwwerken, en de gebouwen die kunnen worden ontwikkeld in het huizenblok North Galaxy, kunnen eveneens slagschaduwen werpen op de bestaande Amelinckx-woontoren. Vooral de onderste verdiepingen van deze toren zullen daarmee worden geconfronteerd (onder meer ‘s middags in de winter zoals in onderstaande simula e). Het risico is echter kleiner dan in de andere alterna even aangezien de afstand tussen het gebouw en de Amelinckxtoren groter is.

Het Bolivar-voorplein ondergaat het grootste deel van de dag en van het jaar de slagschaduw van het hoge gebouw dat eraan grenst in het zuiden. Het Noordplein is verkleind en ondergaat de slagschaduwen van de nieuwe hoge gebouwen die er worden ontwikkeld.

De nabijheid van de gebouwen aan weerszijden van de kleine Vooruitgangstraat impliceert de hele dag lang schaduwvorming door de gebouwen.

Hoofdstuk III / Afdeling 3 Effectenbeoordeling / B - ruimtelijke alterna even / p. 303
LEEFMILIEU EN KLIMAAT
LEEFMILIEU EN KLIMAAT
Mogelijke volumetrie in alterna ef 1, 1010au

Zomerzonnewende(21/06)

Nachtevenings(21/03en21/09)

Winterzonnewende(21/12)

Hoofdstuk III / Afdeling 3 Effectenbeoordeling / B - ruimtelijke alterna even / p. 304 9u 13u 16u
LEEFMILIEU EN KLIMAAT

Alterna ef 2

Hi e-eilandeffect

De brede beplante ruimte in volle grond op het Bolivarplein dat het meest wordt getroffen door het hi eeilandeffect, is vanwege haar omvang a priori zeer guns g voor de wijk. De mogelijkheid om er geïntegreerd regenwaterbeheer en bomen te ontwikkelen die hier op maal kunnen groeien (volle grond en voldoende ruimte bovendegrond)verhoogtnog depoten ëleimpact.Deomvang vandezeruimtekaneenposi eveimpacthebben op het hele onderzochte gebied. Dit alterna ef is het meest guns ge voor de ontwikkeling van andere beplante ruimten in volle grond (Solvayplein en site van het Medical Center) die eveneens bijdragen tot de beperking van het hi e-eilandeffect in de open ruimte.

In de simula e van dit alterna ef zien we bovendien goed georiënteerde pla e daken (in de buurt van het Noordplein) die een mooi poten eel bieden voor de inrich ng van intensieve groendaken.

Slagschaduw

De binnenstraat en het Bolivarplein liggen weer in de open lucht en genieten een natuurlijke lich nval.

HetBolivarpleinisgemiddeldmeerblootgesteld aandezon danindebestaandetoestand.Dehogebouwprofielen zijn in het zuiden van het plein eerder beperkt. De lokalisa e van de zones die rechtstreeks bezonning genieten is gewijzigd in vergelijking met de huidige toestand.

Omgekeerd wordt het Solvayplein minder blootgesteld dan in de bestaande toestand vanwege de bouwwerken in het huizenblok CCN.

Deze bouwwerken, en de gebouwen die kunnen worden ontwikkeld in et huizenblok North Galaxy, kunnen slagschaduwen werpen op de bestaande Amelinckx-woontoren. Vooral de onderste verdiepingen van deze toren zullen daarmee worden geconfronteerd.

Het Bolivar-voorplein ondergaat het grootstedeelvandedag envanhetjaarde slagschaduw van het hoge gebouw dat eraan grenst in het zuiden.

Het Noordplein is in dit alterna ef geen openbare ruimte meer.

De nabijheid van de hoge gebouwen aan weerszijden van de kleine Vooruitgangstraat impliceert de hele dag lang schaduwvorming door de gebouwen.

Hoofdstuk III / Afdeling 3 Effectenbeoordeling / B - ruimtelijke alterna even / p. 305
LEEFMILIEU EN KLIMAAT
LEEFMILIEU EN KLIMAAT LEEFMILIEU EN KLIMAAT
Mogelijkevolumetrieinalternaef2,1010au

Zomerzonnewende(21/06)

Nachtevenings(21/03en21/09)

Winterzonnewende(21/12)

Windeffecten

Lokaal wordt het comfort op het Bolivarplein aanzienlijk verbeterd, met gemiddeld een overgang naar categorie B (uitstekend comfort voor de meeste ac viteiten maar ma g comfort bij langdurig zi en) in plaats van categorie C zoals in de bestaande toestand.

Alterna ef 2 stelt aan elke kant van de Albert II-laan twee evenwijdige torens voor die aan de basis met elkaar verbondenzijn(zierodepijlenhieronder).Deruimtenaandeoostkantzijndaardoorbeterbescherminvergelijking met de andere configura es (verhoging van het schermeffect voor deze windrich ng). Deze torens worden langs het Bolivarplein minder ver verlengd (zie groene pijl hieronder) dan in alterna ef 3 en hebben dus minder de neiging om een tunneleffect te creëren in deze rich ng. Dat hee een posi eve impact op het comfort op het plein.

Hoofdstuk III / Afdeling 3 Effectenbeoordeling / B - ruimtelijke alterna even / p. 306
9u 13u 16u
LEEFMILIEU EN KLIMAAT LEEFMILIEU EN KLIMAAT

Contouren van comfortcategorieën in alterna ef 2NUMFLO

Alterna ef 3

Hi e-eilandeffect

Volumetrie van alterna ef 2 en aanduiding van de guns ge elementen (de rode pijlen duiden het bijkomende bouwfront aan dat een scherm vormt, de mindere dikte van de torens wordt aangeduid met de groene pijl) - NUMFLO

Op het vlak van beplan ng dragen alleen de bomenrijen op het Bolivarplein bij tot de beperking van het hi eeilandeffect. Deze situa e is nagenoeg iden ek met de huidige toestand. Die zal nagenoeg ongewijzigd en dus problema sch blijven.

VanwegedeverschillendetechnischebeperkingenopdesitevanhetMedicalCenterkanapriorislechtseenkleine beplante ruimte in volle grond worden voorzien.

Windeffecten

Het comfort op het Bolivarplein neemt af. De analyse van dit minder goede comfort is complex en hangt af van de globale configura e. De volgende oorzaken kunnen worden geïden ficeerd:

- De torens langs het Bolivarplein worden over een aanzienlijke afstand verlengd (zie groene pijl hieronder). Zo kan er een tunneleffect ontstaan,

- De verwijdering van de sokkels die de torens met elkaar verbonden en een meer doorlopend bouwfront creëerden in de Albert II-laan (rode pijl) verzwakt de windstromen in deze laan en bevordert een ‘windlek’ van de Albert II-laan naar het Bolivarplein,

- De vorm en de organisatie van de torens in de CCN-zone kan negatieve windeffecten creëren in het noordoostelijke kwadrant, met verhoging van de frequenties als gevolg van de tunneleffecten.

Door de lengte van de bebouwing aan de noordkant van het huizenblok CCN ontstaat een tunnel tussen dit gebouw en het sta on. Dat bevordert de versnelling van de wind en tast het comfort op deze weg aan.

Het feit dat het Bolivarplein onder een plaat is gelegen is zeer comfortabel vanwege de overdekking, maar de posi e boven de plaat is vooral vanwege de hoogte onguns ger. Door de breedte van het voorplein kan dit probleem minder erg zijn.

Hoofdstuk III / Afdeling 3 Effectenbeoordeling / B - ruimtelijke alterna even / p. 307
LEEFMILIEU EN KLIMAAT LEEFMILIEU EN KLIMAAT

Slagschaduw

Het Bolivarplein blij overdekt en geniet geen natuurlijke lich nval. De slagschaduwen op het Bolivarplein worden niet gewijzigd door de gebouwen die eraan grenzen (iden ek met de huidige toestand).

Het Solvayplein is in dit alterna ef geen openbare ruimte meer.

Deze bouwwerken, en de gebouwen die kunnen worden ontwikkeld in et huizenblok North Galaxy, kunnen slagschaduwen werpen op de bestaande Amelinckxwoontoren. Vooral de onderste verdiepingenvan dezetorenzullendaarmee worden geconfronteerd.

Het Bolivar-voorplein ondergaat het grootste deel van de dag en van het jaar de slagschaduw van het hoge gebouw dat eraan grenst in het zuiden.

Het Noordplein dat in de zone het meest is blootgesteld, wordt verbreed zodat er een openbare ruimte kan worden ontwikkeld met natuurlijke lich nval.

Hoofdstuk III / Afdeling 3 Effectenbeoordeling / B - ruimtelijke alterna even / p. 308
LEEFMILIEU EN KLIMAAT LEEFMILIEU EN KLIMAAT
Mogelijkevolumetrieinalternaef3,1010au
LEEFMILIEU EN KLIMAAT
Contouren van de comfortcategorieën voor alterna ef 3 op 1,75 m boven de grond (links) en op 1,75 m boven de plaat (rechts, zwarte driehoek) - NUMFLO

Zomerzonnewende(21/06)

AANBEVELINGEN

Hi e-eilandeffect

Nachtevenings(21/03en21/09)

Winterzonnewende(21/12)

Er wordt vooral aanbevolen om overal waar mogelijk de openbare ruimte te ontharden om er volle grond aan te leggen en bomen te planten die het koelte-effect kunnen verhogen. De aanleg van een ruimte met volle grond op het Bolivarplein, een van de enige plaatsen waar volle grond beschikbaar is, en van voldoende omvang, moet dus worden bevorderd. De kwaliteit van deze ruimte en van haar beplan ng en elementen voor een geïntegreerd regenwaterbeheer moeten door het BBP worden opgelegd. Uit de diagnose bleek dat het hi e-eilandeffect op bepaalde plaatsen groter is, met name in het noorden van het Bolivarplein. Het planten van bomen op die plaats (die overeenstemt met het toekoms ge tracé van de voetgangersboulevard) kan door het BBP worden omkaderd. Indien het Solvayplein en de site van het Medical Center niet zouden worden bebouwd, moeten ook daar groene ruimten in volle grond worden voorzien (in de mate van het mogelijke gezien de beperkingen van de metro).

Het BBP zou ook kunnen aanbevelen om op de percelen het equivalent volle grond te ontwikkelen (bijvoorbeeld op de daken van de gebouwen maar ook in de achteruitbouwstroken) en er bomen te planten om het koelteeffect te verhogen.

Los van de ruimtelijke scenario’s, zou het BBP kunnen aanmoedigen om materialen te gebruiken met een hoog weerkaatsingsvermogen (lichtere kleuren), zowel voor de gevels als voor de grondbedekkingen.

Hoofdstuk III / Afdeling 3 Effectenbeoordeling / B - ruimtelijke alterna even / p. 309
9u 13u 16u
LEEFMILIEU EN KLIMAAT LEEFMILIEU EN KLIMAAT LEEFMILIEU EN KLIMAAT

Wind

Bij de ontwikkeling van de concrete projecten zullen er windstudies moeten worden uitgevoerd. Behalve de bouwprofielen kunnen ook de architecturale verschillen een bron van windeffecten zijn die op basis van ontwerpen niet kunnenwordenvoorzien (luifel, ruwheidvan degevel,architecturalevormen,...). De ontwikkeling van sokkels of andere obstakels die voorkomen dat de hoogtewinden rechtstreeks op de grond worden neergeslagen, moet worden vooropgesteld.

Omdat de rooilijnen in de Albert II- laan en de Simon Bolivarlaan in de as van de dominerende winden liggen en vanwege de aanwezigheid van hoge bouwprofielen blij de wind een problema ek die in alle toekoms ge bouwprojecten moet worden behandeld. Nieuwe bouwwerken zullen nieuwe tunneleffecten veroorzaken. De projecten kunnen echter ook een gelegenheid bieden om de situa e op sommige plaatsen te verbeteren, zoals het geval is in alterna ef 2 voor het Bolivarplein.

Als er een plaat wordt ontwikkeld, is het comfort vanwege de tocht minder dan het comfort op grondniveau.

Als het bouwfront van het huizenblok CCN lang is (bouwwerken op het Solvayplein) zal er meer tocht worden gegenereerd die het comfort in de binnenstraat aantast.

Het BBPkan,voorelk project datde volumes indeperimeter significantverandert, eisendathetwindcomfort niet slechter mag worden dan in de bestaande toestand en dat het geschikt is voor het voorziene gebruik (terrassen en zitbanken in zone A, voetgangersboulevard in zone A of B, balkons in zone A of B, enz.). Daarvoor wordt verwezen naar de comfortcriteria volgens de norm NEN 8100 :

ComfortcriteriavolgensdenormNEN8100

Voor projecten voor de heraanleg van de openbare ruimte zou het BBP inrich ngen kunnen eisen die het windcomfort verbeteren (plantenschermen, stadsmeubilair, ...) met het doel de situa e in de comfortzones van klasse C-D-E te verbeteren door ruimten te creëren die zijn beschut tegen de wind.

Afgaande op de vaststellingen voor alterna ef 3 lijkt het, om het comfort op het Bolivarplein te behouden of te verbeteren (om te zorgen voor voldoende comfort voor mensen die langdurig blijven zi en) verstandiger om in deAlbertII-laaneendoorlopendbouwfronttebehouden(torensdiedoorlagevolumesmetelkaarzijnverbonden) zodat de wind daar blij , in plaats van dit bouwfront open te trekken waardoor de windstromen zich naar het oosten kunnen verplaatsen.

Slagschaduw

Aangezien het programma voorziet in een hogere bouwdichtheid zal de schaduwvorming in de wijken toenemen. De gebouwen zullen slagschaduwen werpen op elkaar en in de openbare ruimte.

Bijdeexactelokalisa evande gebouwenmoetrekening wordengehoudenmetdegegenereerdeslagschaduwen.

Het Noordplein dat a priori de grootste natuurlijke lich nval geniet, zou moeten worden geherwaardeerd als openbare ruimte. Dit plein ligt echter buiten het BBP.

Hoofdstuk III / Afdeling 3 Effectenbeoordeling / B - ruimtelijke alterna even / p. 310
LEEFMILIEU EN KLIMAAT

BODEM

ELEMENTEN UIT DE DIAGNOSE

Het studiegebied ligt op de oostelijke oever van de oude Zennebedding, in de laagste zones van het Gewest. Geologisch gezien situeert het BBP zich in de Zennevallei. De bodem bestaat uit een heterogene afze ng van sil g tot kleihoudend zand, met enkele lagen klei. Daardoor is deze forma eweinigdoorlatend.Bovendienligtdegrondwaterlaager niet erg diep. De funderingspalen van het CCN-gebouw zoeken de stabiele grond op tot 52m diepte.

De ondoorlatendheidsgraad van de wijk is bijzonder hoog: de meeste onbebouwde ruimten liggen in de ondergrond of zijn verhard(bijna94%vandebodeminhetgebiedisondoorlatend).

Wederaanvullingen zijn aanwezig in heel het dicht verstedelijkte gebied dat bovendien door verschillende soorten nutsleidingen wordt doorkruist. In de jaren 80 bleek bij erns ge verzakkingen datzichindewederaanvullingenindezonevandeperronsgrote lege plekken bevonden, te wijten aan het feit dat de grondwaterlaag omhoog was gekomen door het obstakel van de metrowerken.

Wat de bodemgezondheid betre , is het Proximus-perceel ingedeeld als mogelijk verontreinigd (categorie 0). De CCN-site is voor het deel in Schaarbeek in de inventaris van de bodemtoestand opgenomen in categorie 0+4 en voor het deel in Sint-Joost-ten-Node in categorie 0+3. Het oostelijke deel van het Noordplein is opgenomen in categorie 3. Er werd immers een historische verontreiniging van het grondwater met chloorhoudende solventen gemeten en de site werd onderworpen aan een risicostudie en aan een behandeling van beperkte duur. Het grondwater van de site mag slechts beperkt worden gebruikt (afgravingen of bemaling).

TENDENTIEEL ALTERNATIEF

De ambi es van de gewestelijke instan es voor de herontwikkeling van de Noordwijk omva en beplan ng en doorlatendheid, wat guns g is voor dit criterium.

Gebouwderuimtenindeondergrondinhet blauw-BRAT

Inventaris van de bodemtoestand (categorie 0 in het geel, categorie 0+4 in het geel met paarse arcering, categorie 0+3 in het geel met blauwe arcering en categorie 3 in het blauw) - LB

Bij de realisa e van projecten is voorschri 0.2 van het GBP van toepassing: bij projecten van meer dan 5.000m² moet 10% van de oppervlakte worden ingenomen door één of meerdere ruimten van minstens 500 m² elk.

Volgens het BBP zijn verkeerszones “hoofdzakelijk voorbehouden aan het mechanische verkeer, het voetgangersverkeerendebeplan ngen”,zonderverdereindica esoverdehoeveelheden.Voordehuizenblokken legt het BBP een percentage op van minstens 30% groene ruimten die moeten worden aangelegd hetzij op de grond, hetzij boven de grond in de zone voor laagbouw van Proximus en North Galaxy. De gedeelten op de grond moeten verplicht hoogstammige bomen beva en. De groene ruimten worden aangelegd als tuintjes en mogen in de ondergrond gebruikt worden als garages, op voorwaarde dat die worden bedekt met een laag van minstens 50cm teelaarde voorzien van gras en struiken.

VERGELIJKING VAN DE ALTERNATIEVEN

Voor de 3 alterna even kunnen de volgende vaststellingen worden gedaan:

Complexiteit van de ondergrond De vele hoge gebouwen, de nabijheid van de metrotunnels, de vele bemalingen van de hoge grondwaterlaag, de aanwezigheid van wederaanvullingen, de gewijzigde kenmerken van de grondwaterlaag voor de geothermie, de bodem van zand en leem in samenhang met de voormalige bedding van

Hoofdstuk III / Afdeling 3 Effectenbeoordeling / B - ruimtelijke alterna even / p. 311
LEEFMILIEU EN KLIMAAT
LEEFMILIEU EN KLIMAAT

deZenne ...Aldezefactorenroepenvoorde Noordwijk inhetalgemeendevraag op ofde bodembestandistegen een hoge bouwdichtheid (vooral ten aanzien van verzakkingen). Deze beschouwingen overschrijden echter het kader van het BBP. Alle drie de alterna even voorzien in hoogbouw en geen enkel alterna ef onderscheidt zich opdatvlakvandeandere.Bijallenieuweconstruc esmoetrekeningwordengehoudenmetdebijzonderecontext van de bodem en de ondergrond en met de technische beperkingen die daaruit voortvloeien.

De bouwwerken in de ondergrond worden gebruikt voor het parkeren. Uit de effectenbeoordeling van het programma dat voor het gebied wordt voorzien blijkt dat de ondergrondse parkeerruimtes grotendeels moeten worden behouden of moeten worden omgevormd tot fietsparkings. De kelderverdiepingen moeten in het hele gebied dus worden behouden en het grondwater zal al jd moeten worden opgepompt. Hoe dat water wordt gebruikt, hangt ervan af hoe gezond het is (zie ook het criterium “Water”), maar het gebruik kan door het BBP worden omkaderd.

Bodemdoorlatendheid: De verschillende ruimtelijke alterna even spreken zich niet uit over de wil/de ambi e van ontharding in de huizenblokken North Galaxy en Proximus (bijvoorbeeld de reconversie van ondergrondse parkings). De analyse van de verschillende alterna even laat dus niet toe om aan één alterna ef de voorkeur te geven. Vanwege het gebruik van de ondergrond in de huizenblokken (zie eerder) moet dus vooral de openbare ruimte in het onderzochte gebied worden onthard om dit criterium te verbeteren. Omdat dit de enige mogelijkheid om de bodem aan te pakken en gezien de posi eve impact daarvan op andere criteria, moet het BBP dit criterium omkaderen.

Omdat de bodem bijna volledig verhard is (algemene a raakwerken, uitgravingen, wederaanvullingen ... In het hele gebied in de jaren 70 en 80) en intens wordt gebruikt, moet elke ontharding gepaard gaan met bemes ng en bodemverbetering zodat er bestendige aanplan ngen kunnen gebeuren, het water kan infiltreren, ...

Niveauverschillen: De ruimtelijke alterna even geven geen specifieke toelich ng bij de behandeling van de niveauverschillen. In hoeverre moet bijvoorbeeld de verlaging worden behouden opdat de bussen onder de plaat van het sta onsniveau zouden kunnen rijden?

Site van het Medical Center: Vanwege het recente project om een waterzuiveringssta on te bouwen in samenhang met het project voor de nieuwe tunnel Metro Noord in de buurt van de site van het voormalige Medical Center, en aangezien dit project zal grenzen aan de nooduitgangen van de tunnel en aan de rookafvoeren die al zijn voorzien, zal de technische uitvoerbaarheid om op deze plaats een groene ruimte aan te leggen en/of een gebouw op te trekken a angen van de ruimte die na het project nog beschikbaar is. Op dit ogenblik is daarovernoggeeninforma ebeschikbaar.Deonderstaandecijfersmoetenwordengerela veerdvolgensdereële mogelijkheden.

De 3 alterna even verschillen op het vlak van bodemdoorlatendheid en verankering van de gebouwen:

Alterna ef 1

Bodemdoorlatendheid

Op de hoeken van het Bolivarplein, langs de Solvay-as en ter hoogte van het Medical Center worden groene ruimten met volle grond aangelegd. De kerende bussen op het Bolivarplein beperken de mogelijkheden om op die plaats te ontharden.

Dit alterna ef voorziet ongeveer 12 500 m² volle grond in het hele gebied, dat is ongeveer 9,5 %.

Verankering van de gebouwen in de bodem

Het alterna ef stelt voor om de bestaande rooilijnen te behouden. De lasten van de gebouwen kunnen dan makkelijker worden overgedragen aan de bestaande structuur in de ondergrond.

In de huizenblokken North Galaxy en Proximus zijn de toekoms ge gebouwen niet meer voorzien op dezelfde plaats als de bestaande gebouwen (4 bestaande torens). De uitvoerbaarheid van de verankering in de bodem is dus minder evident dan wanneer het bestaande schema wordt behouden. De kans vergroot dat er nieuwe ondergrondse bouwwerken zullen nodig zijn, met alle mogelijke implica es voor de grondwaterafvoer.

Alterna ef 2

Bodemdoorlatendheid

Er worden groene ruimten met volle grond aangelegd op het Bolivarplein, het Solvayplein (in de mate van het mogelijke gezien de doortocht van de premetro in de ondergrond) en ter hoogte van het Medical Center.

Dit alterna ef voorziet iets meer dan 13 900 m² volle grond in de hele perimeter van het BP, d.i. 10,7 %.

Hoofdstuk III / Afdeling 3 Effectenbeoordeling / B - ruimtelijke alterna even / p. 312
LEEFMILIEU EN KLI MAAT LEEFMILIEU EN KLIMAAT LEEFMILIEU EN KLIMAAT

Verankering van de gebouwen in de bodem

Het alterna ef wijzigt de rooilijnen van het huizenblok CCN zowel in de Vooruitgangstraat (noordelijk en zuidelijk deel) als in de binnenstraat. Dit verhindert de overdracht van de lasten op de bestaande structuur. Bijkomende ondergrondsebouwwerkenzullenwaarschijnlijknodigzijn,metalleimplica esvandienvoordebemaling.Erdient opgemerkt dat het gebruik op het perceel wordt beperkt (uitgraving en oppomping) gezien de gezondheidstoestand van de bodem.

IndehuizenblokkenProximus enNorthGalaxy kanslechtseendeelvandemogelijkegebouwenopdezelfdeplaats worden opgetrokken als de bestaande (2 bestaande torens). Als er hoogbouw wordt geplaatst op andere plaatsen dan vandaag het geval is, zullen mogelijk nieuwe ondergrondse bouwwerken nodig zijn, met alle mogelijke implica es voor de grondwaterafvoer.

Alterna ef 3

Bodemdoorlatendheid

De enige groene ruimten met volle grond worden voorzien op het Noordplein, dus buiten de perimeter, en ter hoogte van het Medical Center. Vanwege de onzekerheden die aan deze 2 sites zijn verbonden is de aanwezigheid van groene ruimten met volle grond in dit alterna ef verwaarloosbaar: ongeveer 9 100 m² volle grond wordt voorzien in het hele gebied, dat is ongeveer 7 %. De bestaande toestand blij dus nagenoeg gehandhaafd.

Verankering van de gebouwen in de bodem

Het alterna ef wijzigt de rooilijnen van het huizenblok CCN zowel in de Vooruitgangstraat (noordelijk en zuidelijk deel) als in de binnenstraat. Dit verhindert de overdracht van de lasten op de bestaande structuur. Bijkomende ondergrondsebouwwerkenzullenwaarschijnlijknodigzijn,metalleimplica esvandienvoordebemaling.Erdient opgemerkt dat het gebruik op het perceel wordt beperkt (uitgraving en oppomping) gezien de gezondheidstoestand van de bodem.

In de huizenblokken North Galaxy en Proximus zijn de toekoms ge gebouwen onder meer voorzien op dezelfde plaats als de bestaande gebouwen (4 torens). Als er hoogbouw wordt geplaatst op andere plaatsen dan vandaag het geval is, zullen mogelijk nieuwe ondergrondse bouwwerken nodig zijn, met alle mogelijke implica es voor de grondwaterafvoer.

AANBEVELINGEN

Bodemdoorlatendheid

Volle grond voorzien op de hoeken van de huizenblokken North Galaxy en Proximus aan weerszijden van de Bolivar-as en op het Bolivarplein aangezien deze ruimten behoren tot de enige ruimten waarvan de ondergrond niet bebouwd is.

Zoals is gepreciseerd in de nota voor de herontwikkeling van het huizenblok Proximus moet bovendien worden nagedacht over strategieën om de oppervlakte met volle grond in de huizenblokken te verhogen, bijvoorbeeld door bepaalde delen van de kelderverdiepingen af te breken. Vooral de achteruitbouwstroken kunnen worden benut. Waar deze maatregel echter guns g is voor de ondergrond, impliceert ze ook een vermindering van het aantal parkeerplaatsen (zie interac e tussen de criteria).

Het BBP zou via zijn voorschri en de ontwikkeling van geïntegreerd bodembeheer in de perimeter kunnen aanmoedigen, in samenhang met de gewestelijke strategie Good Soil. Bij het beheer en de vrijwaring van de bodems moet rekening worden gehouden met alle func es die de bodem vervult, met de variabiliteit en de complexiteit van de bodems en met al de verschillende a akelingsprocessen waaraan ze onderhevig zijn. In alle gevoelen moet aandacht worden besteed aan de kwaliteit van de ontharde bodem (verluch ng, bemes ng ...zodat er bestendige aanplan ngen kunnen worden gerealiseerd, het water kan infiltreren, enz.

Verankering van de gebouwen in de bodem

Door grootschalige interven es in de ondergrond te beperken, verkleinen de risico’s die zijn verbonden aan de voormelde complexiteit van de ondergrond.

In de huizenblokken Proximus en North Galaxy wordt aanbevolen om de gebouwen niet op andere plaatsen te voorzien dan in de huidige toestand.

In het huizenblok CCN wordt aanbevolen dat het plan de ondergrondse rooilijnen van het CCN integreert als rooilijnen voor de bovengrondse bouwwerken. De Vooruitgangstraat kan daardoor enkel worden verbreed aan de kant van het huizenblok Proximus.

Hoofdstuk III / Afdeling 3 Effectenbeoordeling / B - ruimtelijke alterna even / p. 313
LEEFMILIEU EN KLIMAAT LEEFMILIEU EN KLIMAAT

ECOLOGISCH NETWERK

ELEMENTEN UIT DE DIAGNOSE

Terherinnering: degrote elementen vanhet netwerk(bovenlokale invloed)werden al aangehaaldinhet criterium “Ecologische netwerken” van het thema “Ruimtelijke organisa e”. Hier gaan we verder in op de bijzonderheden van de perimeter.

De ecologische context is globaal gezien zeer arm in de directe omgeving van het sta on Brussel-Noord. De stedelijke druk op dit intermodale knooppunt is bijzonder hoog en het grootste deel van de ondergrond is bebouwd. Bovendien is de stedelijke typologie niet erg guns g voor de kwaliteit van de beplante ruimten (schaduwvorming, wind ...).

De beplan ng in volle grond vertegenwoordigt 6,33 % van het gebied: behalve de beboomde grasperken op de middenberm van de Koning Albert II-laan (ongeveer 150 bomen), zijn de beplante elementen geconcentreerd langs de wegenassen (bomenrijen aan weerszijden vanhetvoorpleinvanhet CCN-gebouw in de Simon Bolivarlaan (een veer gtal bomen), grasvelden (~7m breed bij meer dan 100 m lang) met bomen op het Solvayplein).

Bij deze oppervlakken voegt zich de 3,46 % beplan ng op plaat: sierperken rond het huizenblok Proximus, plantenbakken op het Solvayplein, perken rond de North Galaxytorensensedum opdelagepla edakenvan het huizenblok North Galaxy.

Beplannginvollegrondenbomen

Extensievegroendaken

Semi-intensievegroendaken

Plantaardigeelementenvanhetlokaleecologischenetwerk(opbasisvan terreinmengenencartografischegegevensvanLeefmilieuBrusselen vanhetCIBG).

De ramingen van de BAF+ per huizenblok, gerealiseerd door Leefmilieu Brussel, beves gen dit. De waarde varieert van 0 tot 0,13 voor de onderzochte huizenblokken (0,12 voor het huizenblok Proximus, 0,13 voor het huizenblok North Galaxy en 0 voor de huizenblokken CCN-Noordsta on). De versnippering en de beperkte omvang van de plantaardige elementen bieden dus geen al te hoog biologisch belang voor de wijk.

Wat het Brusselse Ecologische Netwerk betre , zijn de enige elementen die ac ef moeten bijdragen tot de bescherming en het behoud van de biodiversiteit de ruimten met volle grond van de koning Albert II-laan, die worden beschouwd als verbindingszones. De aanwezige laanbomen bieden een toevluchtsoord voor de vogels. De perimeter bevat geen beschermde/opmerkelijke natuurlijke elementen.

TENDENTIEEL ALTERNATIEF

De ambi es van de gewestelijke instan es voor de herontwikkeling van de Noordwijk omva en vergroening en doorlatendheid, wat guns g is voor dit criterium. Omdat de ondergrond al grotendeels wordt ingenomen zal de toestand zonder ambi euze projecten in dit verband waarschijnlijk niet significant verbeteren.

Het plan Good Move voorziet in een voetgangersboulevard die doorheen de perimeter loopt. Een van de doelstellingen bestaat erin om de aanwezigheid van bomen en beplan ng te garanderen en een geïntegreerd regenwaterbeheer.

Het SVC 2 wil de biodiversiteit van de spoorwegtaluds ontwikkelen.

Hoofdstuk III / Afdeling 3 Effectenbeoordeling / B - ruimtelijke alterna even / p. 314
LEEFMILIEU EN KLIMAAT
LEEFMILIEU EN KLIMAAT

Bij de realisa e van projecten is voorschri 0.2 van het GBP van toepassing: bij projecten van meer dan 5.000m² moet 10% van de oppervlakte worden ingenomen door één of meerdere ruimten van minstens 500 m² elk. Volgens het BBP zijn verkeerszones “hoofdzakelijk voorbehouden aan het mechanische verkeer, het voetgangersverkeerendebeplan ngen”,zonderverdereindica esoverdehoeveelheden.Voordehuizenblokken legthetBBP deontwikkeling opvanzonesvoorlaagbouw meteenbouwhoogtevanmax.13m.Indezezonesmoet minstens 30% groene ruimte worden aangelegd, hetzij op de grond, hetzij boven de grond (in de zone voor laagbouw). De gedeelten op de grond moeten verplicht hoogstammige bomen beva en. De groene ruimten worden aangelegd als tuintjes en mogen in de ondergrond gebruikt worden als garages, op voorwaarde dat die worden bedekt met een laag van minstens 50cm teelaarde voorzien van gras en struiken.

VERGELIJKING VAN DE ALTERNATIEVEN

De verschillende ruimtelijke alterna even geven geen informa e over de wil/ambi es van vergroening in de huizenblokken North Galaxy en Proximus (eventueel verwijderen van ondergrondse parkings 38 of ontwikkeling van groendaken).

Hetisjammerdatgeenenkelalterna efdebestaandezonemetvollegrond op deSolvay-asvrijwaart, ondermeer in het licht van de gewestelijke doelstellingen van ontharding.

De 3 alterna even voorzien in de ontwikkeling van een groene ruimte (min of groot, naargelang het alterna ef) op het perceel van het Medical Center. Dit perceel is onderhevig aan technische beperkingen, zoals de nooduitgangen van de tunnel en de rookafvoeren die zijn voorzien voor metro 3, en meer recent het project voor de bouw van een waterzuiveringssta on voor de behandeling van het opgepompte water, eveneens verbonden aan de metro. De technische uitvoerbaarheid om op deze plaats een groene ruimte aan te leggen of een gebouw op te trekken zal a angen van de beschikbare ruimte gezien deze beperkingen. De beplan ng van deze ruimte blij interessant voor het ecologische netwerk, ook als de ruimte slechts van beperkte omvang is. Ze zal echter niet volstaan om te beantwoorden aan de verschillende verwach ngen op het vlak van beplan ng van de perimeter.

De 3 alterna even verschillen op het vlak van de aanleg van andere beplante ruimten, al dan niet met volle grond:

Voorgestelde groene ruimten met volle grond en bomenrijen in alterna ef 1 (links), 2 (midden) en 3 (rechts) - 1010au

Alterna ef 1

Er worden groene ruimten met volle grond aangelegd in de openbare ruimte op de hoeken van de huizenblokken North Galaxy en Proximus met het Bolivar-voorplein, langs de Solvay-as (in de mate van het mogelijke gezien de doortocht van de premetro in de ondergrond) en ter hoogte van het Medical Center. De kerende bussen op het Bolivarplein beperken de mogelijkheden om op die plaats te vergroenen.

38 zie nota Proximus, de ondergrond in deze huizenblokken is grotendeels bebouwd.

Hoofdstuk III / Afdeling 3 Effectenbeoordeling / B - ruimtelijke alterna even / p. 315
LEEFMILIEU EN KLIMAAT LEEFMILIEU EN KLIMAAT

In dit alterna ef komt er in theorie bijna 4 800 m² volle grond (assen Solvay en Koolbranders, hoeken van de huizenblokken North Galaxy en Proximus en Medical Center) bij39 de ~7 700 m² bestaande volle grond in de Albert II-laan, terwijl de ~700 m² volle grond in de Solvay-as verdwijnt. Ongeveer 9,5% van de hele perimeter ligt in volle grond.

Alterna ef 2

Er worden groene ruimten aangelegd in de openbare ruimte op het Bolivarplein, op het Solvayplein en ter hoogte van het Medical Center.

In de 3D-simula e van dit alterna ef zien we bovendien goed georiënteerde pla e daken in de buurt van het Noordplein die een mooi poten eel bieden voor de inrich ng van intensieve groendaken.

In dit alterna ef komt er in theorie meer dan 6200 m² volle grond (Bolivarplein, Solvayplein en Medical Center bij bij40 de ~7 700 m² bestaande volle grond in de Albert II-laan, terwijl de ~700 m² volle grond in de Solvay-as verdwijnt. Ongeveer 10,7% van de hele perimeter ligt in volle grond.

Alterna ef 3

Enkele groene ruimten met volle grond worden voorzien in de openbare ruimte op het Noordplein, dus buiten de perimeter, en ter hoogte van het Medical Center. Er dient opgemerkt dat de sites onderhevig zijn aan technische onzekerheden.

In dit alterna ef komt er in theorie ongeveer 1. 400 m² volle grond (Noordplein en een deel van het Medical Center)bijbij41 de~7700m²bestaandevollegrondindeAlbertII-laan,terwijlde~700 m²vollegrondindeSolvayas verdwijnt. Ongeveer 7% van de hele perimeter ligt in volle grond.

AANBEVELINGEN

Om de toename van de bevolkingsdichtheid te begeleiden en gezien de weinig guns ge stedelijke context, wordt aanbevolen om groene ruimten met open grond aan te leggen overal waar mogelijk is in de openbare ruimte, meerbepaaldop dehoekenvan dehuizenblokkenProximus enNorth Galaxy en ophetBolivarplein.Debeplan ng van het terrein van het voormalige Medical Center, ondanks het feit dat het grotendeels wordt ingenomen door infrastructuren voor het project van de tunnel Metro Noord, blij interessant voor het ecologische netwerk (verbinding met de spoorwegtaluds).

Eveneenswordtaanbevolen om degroenezone opdeSolvay-asnietteschrappen(groene ruimtemetvollegrond met een aanzienlijke breedte van bijna 7m, over een lengte van meer dan 100m). Deze zone, naast het feit dat ze albestaatenbeboomdis,isbetergeschiktvoor deontwikkelingvanvollegrond danderand vanhetperceelNorth Galaxy waar nutsleidingen in de ondergrond zi en.

Zoalsisgepreciseerdin deProximus-notamoetbovendienwordennagedacht overstrategieënom deoppervlakte met volle grond te verhogen, bijvoorbeeld door bepaalde delen van de kelderverdiepingen af te breken. Vooral de achteruitbouwstroken kunnen worden benut.

De ontwikkeling van het Bolivar-voorplein biedt kansen voor vergroening: de ruimtelijke alterna even spreken zich niet uitdrukkelijk uit over de behandeling van de niveauverschillen, vooral niet over het al dan niet behouden van de verlaging voor de doortocht van de bussen onder de plaat van het sta onsniveau; door deze zone (die vandaag halfondergronds ligt) op hetzelfde niveau te brengen als de openbare ruimte (minstens voor een deel van de beschikbare ruimte42) kunnen er zones worden gerecupereerd die kunnen worden beplant. Het bestaande niveauverschil kan immers een interessante substraatdiepte bieden die punctueel kan worden benut als er gepaste stabiliteitsmaatregelen worden genomen.

Vanwege de specifieke kenmerken van de gebouwen-huizenblokken van het gebied lijkt het relevant om voorschri 0.2 van het GBP (10% groene ruimten) en het nieuwe ontwerp van GSV (30% volle grond voor elk perceel) te staven, rekening houdend met de GemSV (waaronder het behoud van de hoogstammige bomen). Er

39 De technische uitvoerbaarheid van de beplan ng langs het voetpad in de assen Solvay en Koolbranders moet worden aangetoond gezien de nutsleidingen. Er worden ook reserves geuit bij de daadwerkelijk beplante ruimte op het perceel van het Medical Center (zie “technische netwerken”).

40 Er worden reserves geuit bij de daadwerkelijk beplante ruimte op het perceel van het Medical Center (zie “technische netwerken”)

41 Er worden reserves geuit bij de daadwerkelijk beplante ruimte op dit deel van het perceel van het Medical Center (zie “technische netwerken”)

42 Zie de criteria ‘Open ruimten’ en ‘Ac vering van de openbare ruimten via de benedenverdiepingen’.

Hoofdstuk III / Afdeling 3 Effectenbeoordeling / B - ruimtelijke alterna even / p. 316
LEEFMILIEU EN KLIMAAT LEEFMILIEU EN KLIMAAT LEEFMILIEU EN KLIMAAT

wordt aanbevolen om op de ‘lage’ bebouwde ruimten de ontwikkeling van intensieve groendaken te eisen om de biodiversiteit te bevorderen in deze wijk die voor het overige weinig mogelijkheden daartoe biedt. Ook de mogelijkheid om een minimale BAF+ op te leggen kan worden onderzocht.

Er kunnen ook kwan ta eve eisen worden opgelegd voor de openbare ruimten, al was het maar om verdere verharding van deze ruimten te vermijden.

Dekwan ta eveeisenkunnenwordenaangevuldmetkwalita eveeisen,zowelvoordeopenbaregroeneruimten als voor de beplante privéruimten: aanpassing van de beplan ng aan de bezonning en de wind, soorten plantenlagen, minimumdikte van het substraat, beperking van glas in de gevel ten voordele van de avifauna, elementen betreffende het gebruik van deze ruimten ...

Hoofdstuk III / Afdeling 3 Effectenbeoordeling / B - ruimtelijke alterna even / p. 317
LEEFMILIEU EN KLIMAAT LEEFMILIEU EN KLIMAAT

WATER

ELEMENTEN UIT DE DIAGNOSE

Het frea sch vlak van de minst diepe laag (alluviale laag van de Zennevallei in de heterogene forma es van het Quartenair) ligt tussen 2 en 8 m diepte. Deze alluviale laag wordt echter te sterk gecompar menteerd door de verstedelijking om als een volwaardige watermassa te kunnen worden beschouwd: de stroomrich ng van het grondwater wordt her en der afgeleid vanwege de lokale verstoring door de vele ondergrondse infrastructuren. Indeondergrondseverdieping vanhetCCN-gebouweninde premetrotunnel(op–3) makenpompenhetmogelijk om het geïnfiltreerde grondwater te draineren (~14,5 m³/dag) via drainerende muren (gegoten wanden) en in de openbare riolering te lozen. Ook voor het Proximus-gebouw wordt het water dat doorheen de muren van de kelderverdiepingendringtverzameldennaarderiolering gepompt.VoorNorthGalaxyzijngeendrainagegegevens beschikbaar.

93,67% van de bodem is ondoorlatend. Door het feit dat het frea sch grondwateroppervlak op lage diepte is gelegen, gekoppeld aan het feit dat de bodem door de verstedelijking wederaanvullingen en verstoringen hee ondergaan, kunnen we veronderstellen dat de infiltra e langzaam verloopt.

Het CCN-gebouw en de Proximustoren beschikken niet over regenopvangpu en, stormbekkens of andere voorzieningen die het water opvangen. In de kelderverdiepingen van het huizenblok North Galaxy daarentegen bevindt zich een opvangput van 100 m³ en onder het Noordsta on is een stormbekken gelegen.

TENDENTIEEL ALTERNATIEF

De ambi es van de gewestelijke instan es voor de herontwikkeling van de Noordwijk omva en vergroening en doorlatendheid, wat guns g is voor dit criterium. Omdat de ondergrond al grotendeels wordt ingenomen zal de toestand zonder ambi euze projecten in dit verband waarschijnlijk niet verbeteren.

Het plan Good Move voorziet in een voetgangersboulevard die doorheen de perimeter loopt. Een van de doelstellingen bestaat erin om de aanwezigheid van bomen en beplan ng te garanderen en een geïntegreerd regenwaterbeheer.

Het SVC 1 voorziet in de heraanleg van het Maximiliaanpark met herontwikkeling van de Bolivar-as tot aan de Antwerpsesteenweg, met een visie tot aan het Noordsta on. Ook de kwes e van het waterbeheer wordt geïntegreerd. Brussel Mobiliteit wil bij de ontwikkeling van de tram naar Thurn & Taxis deze as heraanleggen op basis van deze visie.

Buiten de perimeter wil het blauwe netwerk de Zenne in het Maximiliaanpark openleggen (zone voor stedelijke herwaardering van de Zenne in het GPDO). Daarvoor wordt in 2023 het project Max aan de Zenne gestart.

In de logica van het Beeldkwaliteitsplan (voor de assen die uitgeven op het kanaal wordt de inrich ng van een bovengronds regennetwerk aanbevolen zodat het water naar het kanaal kan stromen) zou het voornoemde project op Bolivar ook wadi’s omva en. Overigens zal het RWZI dat zal worden ontwikkeld ter hoogte van het Medical Center het behandelde water naar deze waterloop sturen, maar de verbinding tussen beide ligt nog niet vast.

Voor projectenzaldeGSVvan toepassingzijn voordeopvang vanhetregenwaterenhetGBPvoor deontwikkeling van groene ruimten (voorschri 0.2).

Het BBP bevat geen specifieke voorschri en voor het beheer van het regenwater, maar wel enkele aspecten aangaande de beplan ng (zie criterium Ecologische netwerken) die eveneens guns g zijn voor het criterium van het waterbeheer.

VERGELIJKING VAN DE ALTERNATIEVEN

De ruimtelijke alterna even, uitgewerkt door het studiebureau belast met het BBP, geven helaas geen informa e over de wil/specifieke ambi es op het vlak van waterbeheer, noch op schaal van het huizenblok, noch in de openbare ruimte (aanslui ng op de wadi’s van de Bolivarlaan of de Zenne). Ze verschillen op het vlak van het poten eel om het regenwater te beheren:

Alterna ef 1

De ondoorlatendheid wordt globaal gezien verminderd: 90,5% (vs 94% in de bestaande toestand).

Hoofdstuk III / Afdeling 3 Effectenbeoordeling / B - ruimtelijke alterna even / p. 318
CIRCULARITEIT LEEFMILIEU EN KLIMAAT LEEFMILIEU EN KLIMAAT

Voor het regenwaterbeheer is er geen groene ruimte die groot genoeg is voor geïntegreerd waterbeheer in de openbare ruimte.

Alterna ef 2

Deondoorlatendheidwordtglobaalgezienverminderd:89,33%(vs94%indebestaandetoestand).Deenigeplaats waar voldoende volle grond aanwezig is, het Bolivarplein, wordt benut.

De realisa e van een omvangrijke groene ruimte in de Bolivarlaan biedt mogelijkheden om het waterbeheer in de openbare ruimte te wijzigen, mogelijke verbindingen met de Zenne te bestuderen en de mogelijkheid te onderzoeken om het bij de bemaling opgepompte water te doen terugvloeien naar de Zenne. Dit kan worden onderzocht in het kader van de andere alterna even, maar die zijn minder geschikt aangezien een groot deel van de openbare ruimten verhard blij

Alterna ef 3

De ondoorlatendheid blij nagenoeg ongewijzigd: 93% (vs 94% in de bestaande toestand).

Voor het regenwaterbeheer is er geen groene ruimte die groot genoeg is voor geïntegreerd waterbeheer in de openbare ruimte.

AANBEVELINGEN

De beplan ng van het Bolivarplein is op zich posi ef voor het regenwaterbeheer, zowel voor de opslag, de buffering, de verdamping als de evapotranspira e door de planten. Deze ruimten kunnen echter ook worden aangewend om het waterbeheer in de openbare ruimte te verbeteren. De integra e van specifieke inrich ngen voor het regenwaterbeheer kan worden voorgesteld/opgelegd door het BBP.

De verschillende ruimtelijke alterna even geven geen informa e over de modaliteiten van regenwateropvang. In de toekoms ge projecten kan voor verschillende toepassingen echter regenwater (of opgepompt water) worden gebruikt in plaats van leidingwater: schoonmaken van de gemeenschappelijke ruimten, toilet, besproeiing (van onder meer de groene ruimten op plaat), enz. De voorschri en van het BBP kunnen deze aspecten omkaderen en de GSV, de GemSV en het regenplan aanvullen. Er moet worden aanbevolen om het regenwater op het perceel en in de openbare ruimte zoveel mogelijk te beheren volgens de principes van geïntegreerd beheer (zie h ps://environnement.brussels/thema ques/eau/le-professionnel-en-ac on/ou ls-et-accompagnement/faqs).

De verschillende ruimtelijke alterna even zeggen niets over de behandeling van de gevels. In de perimeter zullen echter nieuwe gebouwen worden opgetrokken. De gevels zullen een zekere graad van porositeit/reliëf vertonen enhetbufferings-enverdampingsvermogenvanhetregenwater,endusook dehoeveelheid waterdieuiteindelijk in de riolering terechtkomt, beïnvloeden. Het BBP zou voorwaarden kunnen opleggen inzake de porositeit.

Ook eenbeterbeheervan het bijdebemalingopgepompte waterkan wordenopgenomenin devoorschri en van het BBP (evenwel ondergeschikt aan de voorwaarden van de milieuvergunning): hergebruik in de gebouwen (toilet, schoonmaak) en afvloeiing van het overtollige water naar de Zenne, in samenhang met de heraanleg van de Bolivarlaan (en Max aan de Zenne). Het gekozen gebruik hangt af van de kwaliteit van dit water en van de gezondheidstoestand van de bodem.

Hoofdstuk III / Afdeling 3 Effectenbeoordeling / B - ruimtelijke alterna even / p. 319
LEEFMILIEU EN KLIMAAT LEEFMILIEU EN KLIMAAT LEEFMILIEU EN KLIMAAT

ENERGIE

ELEMENTEN UIT DE DIAGNOSE

In Brussel zijn de directe BKG-uitstoten (vooral CO2) hoofdzakelijk a oms g van de verbrandingsprocessen die fossiele brandstoffen gebruiken. De verwarming van de gebouwen voert de ranglijst aan, gevolgd door het wegverkeer. In de perimeter zijn de energiepresta es van de vrij oude gebouwen laag en het energieverbruik bijgevolg hoog.

Het zonpoten eel van de huizenblokken van het BBP is bijzonder groot: de zonnekaart raamt de buikbare oppervlakteopongeveer12000m²voorhethuizenblokNorthGalaxyen10000m²voorhetCCN,zodatcollec eve of industriële installa es kunnen worden vooropgesteld. Bijzondere aandacht moet worden besteed aan het feit dat de wijk hoge gebouwen omvat die veel slagschaduw veroorzaken.

De bodem biedt een geothermisch poten eel door de aanwezigheid van het aquifeer van de zandforma es van Hannut(7,5m dikterhoogtevan desite).Degebruikslimietenvan degrondwaterlaagzijn momenteelnietbekend, ze moeten worden geverifieerd in samenwerking met Leefmilieu Brussel.

TENDENTIEEL ALTERNATIEF

Bij grondige renova es of a raak- en wederopbouwwerken zouden de ontwikkelde gebouwen moeten voldoen aanderecenteenergienormenom deenergie-efficiën ete verbetereninvergelijkingmet debestaandetoestand. Het BBP bevat geen voorschri en voor dit criterium.

VERGELIJKING VAN DE ALTERNATIEVEN

De hoge bouwdichtheid en de hoge bouwprofielen die worden vooropgesteld zijn globaal gezien onguns g voor de ‘natuurlijke’ warmteaanvoer in de winter en voor de natuurlijke lich nval. De 3D-simula es van de verschillende alterna even geven een idee van de bouwprofielen (zie het deel microklimaat voor meer details).

In de 3 ruimtelijke alterna even zijn enkele van de ontwikkelde ‘lage’ gebouwen in het huizenblok CCN zo verdeeld, met een zodanige bouwdichtheid, dat ze grotere bouwdieptes krijgen (tot 58m), wat de natuurlijke lich nval in het gebouw verhindert. Er moet dus kunstma ge verlich ng worden voorzien, met alle energieverbruik van dien.

De ruimtelijke alterna even zeggen niets over de benu ng van het geothermische poten eel van de bodem. Vanwege de impact die een dergelijk systeem kan hebben op de grondwaterlaag (temperatuur en peil) en gezien de complexe context van de ondergrond moet elke maatregel ten gunste van een dergelijk systeem gepaard gaan met grondige studies over de gebruikslimieten van de grondwaterlaag.

Voor de 3 alterna even zal de opening van de binnenterreinen van de huizenblokken die op de plannen wordt gesuggereerd leiden tot de a raak/wijziging van de gebouwen, met een impact op de grijze energie verbonden aan de materialen. Voor een eventuele koolsto alans kan alleen een grondige kwalita eve studie op basis van concrete bouwprojecten in een latere fase informa e verstrekken over de groo e van de energiewinst en de energieverliezen die deze bouwprojecten met zich meebrengen.

Hoofdstuk III / Afdeling 3 Effectenbeoordeling / B - ruimtelijke alterna even / p. 320
LEEFMILIEU EN KLIMAAT LEEFMILIEU EN KLIMAAT
Mogelijke volumetrie in de alterna even 1, 2 & 3, 1010au

Alterna ef 1

De niet-integra e van de bouwprofielen van de 4 bestaande torens in de mogelijke bouwprofielen zal aanzienlijke a raak/wijzigingswerken met zich meebrengen. De grijze energie van de wijk zal daartoe toenemen (uitvoer gekoppeld aan de invoer van materialen).

Alterna ef 2

De niet-integra e van de bouwprofielen van 2 bestaande torens in de mogelijke bouwprofielen zal aanzienlijke a raak/wijzigingswerken met zich meebrengen. De grijze energie van de wijk zal daartoe toenemen (uitvoer gekoppeld aan de invoer van materialen).

De wijziging van de rooilijnen maakt het minder evident om de nieuwe gebouwen te doen overeenstemmen met debestaandestructuur. Bijkomendewerken in de ondergrondkunnennodig zijn waaraan eenzekerehoeveelheid grijze energie zal zijn verbonden.

Alterna ef 3

Grijze energie

Het mogelijke behoud van de torens Proximus en North Galaxy impliceert ook het behoud van de grijze energie die aan deze structuren is verbonden.

De wijziging van de rooilijnen maakt de overeenstemming met de structuur in de ondergrond minder evident. Bijkomende werken in de ondergrond kunnen nodig zijn waaraan een zekere hoeveelheid grijze energie zal zijn verbonden.

AANBEVELINGEN

Het BBP moet het behoud van de torens Proximus en North Galaxy aanmoedigen door ze te integreren als geschikte volumes. Zo kan de grijze energie verbonden aan deze vloeren worden behouden.

Het BBP moet de produc e van hernieuwbare energie opleggen (geothermie, fotovoltaïsche panelen, warmtepompen of andere technische oplossingen).

Bij de lokalisa e van de ‘ac eve’ lokalen moet op maal rekening worden gehouden met de bezonning om de passieve zonaanvoer en de natuurlijke lich nval te bevorderen (vooral in de winter), a ankelijk van de bouwprofielen.

Er moet aandacht worden besteed aan de oriënta e van de woningen, vooral op de lagere verdiepingen (de ruimtenopdehogereverdiepingenzijnbeterblootgesteldaanzonlicht) omvoldoendekwaliteitvandenatuurlijke lich nval in de lager gelegen woningen te garanderen. Bij de plaatsing van fotovoltaïsche panelen moet ook rekening worden gehouden met de slagschaduwen.

Hoofdstuk III / Afdeling 3 Effectenbeoordeling / B - ruimtelijke alterna even / p. 321
LEEFMILIEU EN KLIMAAT LEEFMILIEU EN KLIMAAT LEEFMILIEU EN KLIMAAT

CIRCULARITEIT VAN DE MATERIALEN / INKOMENDE MATERIALEN

ELEMENTEN UIT DE DIAGNOSE

In de bestaande grote, monofunc onele gebouwen die standaard en homogeen zijn georganiseerd, is de aanzienlijke hoeveelheid materialen een belangrijk element dat demontering rechtvaardigt. De minder goede presta esvandematerialenvandes jdsten aanzienvande nieuwetechnischeeisen,deaanwezigheidvan asbest en de verankering met cement kunnen het hergebruik van bepaalde elementen echter bemoeilijken. De nota inzake duurzaamheid en programma sche aanbevelingen van Leefmilieu Brussel voor de Noordwijk, voortgekomenuitdeanalysevandedienstFDW,maaktduidelijkdatdeNoordwijkkansenbiedtvoordeuitvoering van de territoriale as van het GPCE, meer bepaald door te werken rond materiaalcircuits: kantoormeubilair, organische stoffen en voeding.

TENDENTIEEL ALTERNATIEF

De ambi es van de gewestelijke instan es voor de herontwikkeling van de Noordwijk sluiten aan bij de Klimaatordonnan e (vermindering van de BKG-emissies). Renova e in plaats van volledige a raak-wederopbouw wordt aangemoedigd, evenals het hergebruik van de materialen voor de inkomende en uitgaande stromen en gebouwen die kunnen worden aangepast aan verschillende func es.

Het gebied kan niet worden heraangelegd zonder rekening te houden met de kwes es verbonden aan de waarde van het vastgoedpark dat in het kader van het Manha anplan tot stand is gekomen, vooral de torens Proximus en North Galaxy.

De aanvraag van de stedenbouwkundige vergunning voor de a raak van het CCN-gebouw is momenteel in behandeling (wijzigingen aan te brengen in het jdelijke gebruik).

Het BBP bevat geen voorschri en voor dit criterium.

Hoofdstuk III / Afdeling 3 Effectenbeoordeling / B - ruimtelijke alterna even / p. 322
CIRCULARITEIT

VERGELIJKING VAN DE ALTERNATIEVEN

In de 3 alterna even nemen de huizenblokken North Galaxy en Proximus minder plaats in (opening van de binnenterreinen van de huizenblokken). Dit moedigt aan tot verbouwing/a raak, wat indruist tegen de uitdaging van behoud van de bestaande bebouwing.

Bij a raak bieden de groo e van de oppervlakken en de monofunc onaliteit van de gebouwen een aanzienlijk poten eel om veel materialen te recupereren/recycleren.

Alterna ef 1 voorziet geen geschikt volume voor de torens Proximus en North Galaxy en moedigt aan om op termijn deze 4 torens af te breken.

In alterna ef 2 kunnen 2 torens op termijn worden behouden.

In alterna ef 3 ten slo e kunnen de 4 torens worden behouden.

Bestaande gebouwen (s ppellijn) in vergelijking met de projec es van de geschikte ‘hoge’ volumes (geel) zoals voorgesteld in de alterna even 1 (links), 2 (midden) en 3 (rechts) (1010au)

AANBEVELINGEN

Het BBP zou het behoud van de 4 bestaande torens in de huizenblokken Proximus en North Galaxy moeten aanmoedigen.

De a raakprocedures moeten aansluiten bij de toekoms ge projecten opdat zoveel mogelijk materialen ter plaatse zouden worden gerecupereerd.

Om het hergebruik van de materialen voor de inkomende en uitgaande stromen te bevorderen zou het BBP de aanbeveling van de gewestelijke instan es voor de herontwikkeling van de Noordwijk moeten staven: een studie eisen overhet poten eel om materialentehergebruikenen eeninventarisvanherbruikbarematerialenbijvoegen bij de offerteaanvraag voor het ontwerp en de verbouwing van de gebouwen.

Het BBP kan doelstellingen vastleggen aangaande de circulariteit van de materialen, bijvoorbeeld; bij a raak minstens 2% van de gedemonteerde materialen herbruikbaar en minstens 90% gerecycleerd ter plaatse of in het

BHG en bij wederopbouw 2% van de inkomende materialen a oms g uit hergebruik en 20 % uit recyclage, a oms g van de site of van een andere plaats in het BHG.

Hoofdstuk III / Afdeling 3 Effectenbeoordeling / B - ruimtelijke alterna even / p. 323
CIRCULARITEIT

CIRCULARITEIT VAN DE STROMEN

ELEMENTEN UIT DE DIAGNOSE

In de gebouwen van het BBP zijn er prak sch geen inrich ngen voor het hergebruik van afval- of regenwater, alleendeNorthGalaxy-torenbeschiktovereenregenwatertank.Degrondwaterlaag ligt indeNoodwijk vrijondiep en het opgepompte grondwater in de ondergrondse parkings komt meestal rechtstreeks in de riolering terecht. De openbare en private groene ruimten van de perimeter genereren voortdurend groenafval dat vandaag niet circulair wordt behandeld. De dichtstbij zijnde wijkcomposten bevinden zich in de Brabantwijk en in de Masuiwijk. Er is geen energie-uitwisseling bekend tussen de func es in de gebouwen van het BBP of met hun directe omgeving.

TENDENTIEEL ALTERNATIEF

De ambi es van de gewestelijke instan es voor de herontwikkeling van de Noordwijk sluiten aan bij de Klimaatordonnan e (vermindering van de BKG-emissies). Renova e in plaats van volledige a raak-wederopbouw wordt aangemoedigd, evenals het hergebruik van de materialen voor de inkomende en uitgaande stromen en gebouwen die kunnen worden aangepast aan verschillende func es.

Het BBP bevat geen voorschri en voor dit criterium.

VERGELIJKING VAN DE ALTERNATIEVEN

Wat ook de ruimtelijke organisa e van het programma is, de ontwikkeling van een gemengd gebied impliceert al jd een aanzienlijke produc e van huishoudelijk afval. Er wordt bijvoorbeeld aanbevolen om 5 groepen glasbollen te plaatsen (voor wit en gekleurd glas). Ze kunnen ook in de huizenblokken worden geplaatst zodat ze niet te veel ruimte beslaan in de openbare ruimte. De problema ek moet bij elk project geval per geval worden behandeld, maar het BBP kan in dit verband al voorschri en bepalen.

Alterna ef 1

De horizontale organisa e van de func es biedt meer mogelijkheden van energie-uitwisseling tussen de verschillende func es dan in de andere alterna even.

Deenkelebijkomendegroeneruimten(hoekenvanhetBolivarplein,bomenrijen,MedicalCenter)vangeneendeel van het regenwater op en gebruiken het ook.

Alterna ef 2

De enige plaats waar meer volle grond aanwezig is, het Bolivarplein, wordt benut. Een andere groene ruimte is voorzien op het Solvayplein (met beperkte beschikbaarheid van volle grond gezien de doortocht van de premetro in de ondergrond). Deze bijkomende groene ruimten vangen meer regenwater op dan in de andere alterna even en gebruiken het ook.

Alterna ef 3

De enkele bijkomende groene ruimten (Noordplein en Medical Center) vangen een deel van het regenwater op en gebruiken het ook.

AANBEVELINGEN

Het BBP kan bepalingen opnemen over enerzijds de opvang van regenwater en anderzijds de opvang van het opgepomptewaterzodatditnietinderiolering terechtkomtmaarnaardeZennewordtgevoerdalshetvoldoende gezond is of naar een ander gebruik (bijvoorbeeld toilet) als dat niet het geval is.

Bij de heraanleg van het Bolivarplein als groene ruimte kan het regenwater worden gebruikt voor de beplan ng (en dus ten gunste van de vele ecosystemische diensten die in de verschillende thema’s werden aangehaald).

Bovendien kan deze grondige heraanleg van het Simon Bolivarplein (in het verlengde van het project Max aan de Zenne) een gelegenheid zijn om een systeem te voorzien dat het opgepompte water naar de Zenne voert als het voldoende gezond is.

Hoofdstuk III / Afdeling 3 Effectenbeoordeling / B - ruimtelijke alterna even / p. 324
CIRCULARITEITCIRCULARITEIT

MODULARITEIT VAN DE RUIMTEN

ELEMENTEN UIT DE DIAGNOSE

De Noordwijk, gebouwd in de jaren 70, wordt gekenmerkt door de aanwezigheid van grote, func onele kantoorcomplexen. De onderzochte huizenblokken beva en geen woningen.

TENDENTIEEL ALTERNATIEF

De laatste jaren is in Brussel een debat ontstaan over de mogelijkheid om deze architectuur te hergebruiken en meer gemengdheid te creëren in de gebouwen, wat niet per se modulariteit impliceert. Het BBP bevat geen voorschri en voor dit criterium.

VERGELIJKING VAN DE ALTERNATIEVEN

De verschillende alterna even geven geen informa e over de daadwerkelijk toegestane bouwdieptes. Bovendien lijken de schema sch voorgestelde geschikte volumes bouwdieptes voor te stellen tot 30 m. In gebouwen met een diepte van meer dan 20 m kunnen geen kwaliteitsvolle woningen worden geplaatst. Onder kwaliteit wordt verstaan: niet monogeoriënteerd en met voldoende natuurlijke lich nval.

In alterna ef 1 vergemakkelijkt de ver cale organisa e van de func es de latere omvorming van een deel van de kantoren tot woningen. De technieken verbonden aan de woningen lopen immers door de kantoren.

Organisa e van de func es in de 3 alterna even (1010 au)

AANBEVELINGEN

De volumes en structuren moeten worden aangepast aan de kantoor- en huisves ngsfunc es om een daadwerkelijke modulariteit te verkrijgen (beperkte bouwdieptes, eerder draagkolommen dan draagmuren (open plan),voldoendehoogtetussendevloeren...).Erwordtmet nameaanbevolenom debouwdieptesvan denieuwe gebouwen te beperken tot ongeveer 18 m. Voor de bestaande torens van de huizenblokken Proximus en North Galaxy hoeven deze aanbevelingen niet te worden gevolgd gezien de impact op de circulariteit (zie Circulariteit van de materialen/inkomende materialen).

Hoofdstuk III / Afdeling 3 Effectenbeoordeling / B - ruimtelijke alterna even / p. 325
CIRCULARITEIT
Hoofdstuk III / Afdeling 3 Effectenbeoordeling / B - ruimtelijke alterna even / p. 326
CONCLUSIE

SAMENVATTING VAN DE AANBEVELINGEN EN WISSELWERKINGEN TUSSEN DE CRITERIA

De voorgestelde alterna even voor ruimtelijke ordening hebben tot doel de organisa e van de structuur van de bebouwde en open ruimten te wijzigen en voorstellen te doen betreffende de mobiliteit en de begroeiing van de omtrek, met als doel een wijk te ontwikkelen met een meer kwalita eve leefomgeving, waarbij het vastgestelde programma kan worden geïntegreerd. In die zin zijn de voorgestelde spa alisa e-alterna even:

- De opwaardering van het Gare du Nord en de Koninklijke Sainte-Marie Kerk mogelijk maken door de opening van het CCN-blok rechts van de Bolivar-as, terwijl een nieuwe open ruimte wordt ontwikkeld die de wijk structureert;

- De identiteit van de wijk versterken door torens te ontwikkelen en door de in het Manhattanplan gedefinieerde volumetrie globaal te behouden;

- Het Bolivarplein herinrichten om de werking van het openbaar vervoer te optimaliseren en tegelijk de ontwikkeling van het voetgangersmagisterium mogelijk te maken;

- In het algemeen de reisomstandigheden voor actieve vervoerswijzen verbeteren;

- Het niveau van de vegetatie (min of meer gemineraliseerd) in het district verhogen, waardoor de microklimatologische omstandigheden verbeteren en het leefklimaat wordt verbeterd;

- Beperken van verkeer en parkeren in het gebied, waardoor ruimte ontstaat voor andere stedelijke functies en de leefomgeving wordt verbeterd;

- De logistieke toegang (levering en parkeren) binnen de blokken rationaliseren en de begane grond activeren, met een positief effect op de kwaliteit van de openbare ruimte en het gevoel van veiligheid;

- De ontvangst van alle soorten voorzieningen, van verschillende grootte, mogelijk maken;

- Ontwikkelenvanopenruimtesbinnendeblokken,minofmeermobiliseerbaarvoorpubliekenvegetatie ; Anderzijds zullen de structuren en organisa es die in de 3 alterna even zijn gepland, dezelfde effecten hebben:

- De ontwikkeling van grote volumes (hoogte en/of lengte en/of breedte) in het licht van het gekozen programma, met de gevolgen daarvan voor het stadslandschap, de wind, de schaduwwerking en de gevolgen voor de kwaliteit van de openbare ruimte;

- De locatie van geluidsgevoelige functies in een lawaaiige stedelijke omgeving vanwege de ligging (zelfs in de minst lawaaiige gebieden zijn de stedelijke omstandigheden van invloed op de levenskwaliteit ;

- Een reorganisatie van de particuliere mobiliteit (auto's), met waarschijnlijke verschuivingen naar bepaalde wegen binnen de perimeter of daaraan grenzend;

- De afbraak van een (min of meer belangrijk) deel van de bestaande gebouwen om de geplande herontwikkelingen mogelijk te maken.

Op basis van de analyse van de alterna even zijn enkele aanbevelingen gedaan om de keuzes te sturen in de rich ng van een voorkeursscenario voor een programma dat zo weinig mogelijk gevolgen hee voor de bestudeerde criteria. Dit deel bevat alle aanbevelingen die in de analyse van de spa alisa ealterna even zijn gedaan. Sommige van de aanbevelingen zijn structureel voor het bestudeerde gebied, andere zijn meer triviaal of vertegenwoordigen kansen in het kader van de wijziging van het PPAS.

De aanbevelingen zijn samengevat in de hiernavolgende tabellen, maar worden niet opnieuw toegelicht. Meer details vindt men op de voorgaande pagina’s van het punt in Afdeling III.

Een eerste deel bevat de aanbevelingen voor de organisa e van de func es, ruimten en gebouwen die dus een invloed hebben op het plan van het BBP. Het tweede deel bevat eerder aanbevelingen die in de schri elijke voorschri en of het strategisch deel van het BBP moeten of kunnen worden opgenomen om de projecten te omkaderen die op de site zullen worden ontwikkeld.

Enkele aanbevelingen hebben een impact op een specifiek criterium, andere op meerdere criteria. Die impact kan posi ef of nega ef zijn. Enkele aanbevelingen druisen tegen elkaar in of hebben een impact op andere aanbevelingen. De impact op de criteria, de specifieke aandachtspunten en de impact op andere aanbevelingen worden aangegeven in een overzichtstabel waarmee we dit punt besluiten.

Hoofdstuk III / Afdeling 3 Effectenbeoordeling / B - ruimtelijke alterna even / p. 327

AANBEVELINGEN VOOR DE ORGANISATIE VAN DE FUNCTIES, RUIMTEN EN GEBOUWEN (PLAN VAN HET

VOORKEURSCENARIO EN DAARAAN VERBONDEN VOORSCHRIFTEN)

Bouwprofielen:

RS1

RS2

RS3

RS4

Het behoud van de 4 bestaande torens in de huizenblokken North Galaxy en Proximus mogelijk maken en aanmoedigen (ze opnemen in de geschikte volumes voor hoogbouw).

In de huizenblokken North Galaxy en Proximus enkel hoogbouw mogelijk maken waar die al bestaat om grote interven es in de ondergrond en dus de risico’s verbonden aan de complexiteit van de ondergrond te beperken.

In het huizenblok CCN de ondergrondse structuren van het CCN en de metro integreren als basis voor bovengrondse bouwwerken. Omdat de ondergrond weinig geschikt is, de ontwikkeling van nieuwe gebouwen buiten deze structuur beperken.

In de Albert II-laan een doorlopend bouwfront behouden (torens verbonden door lage volumes) om er de wind tegen te houden (beter comfort op het Bolivarplein).

RS5 De hoogtes in west-oostelijke rich ng geleidelijk aan verlagen om te vermijden dat het Noordsta on wordt ‘verple erd’ door te hoge gebouwen in de onmiddellijke omgeving.

RS6 Rekening houden met het risico van geluidverspreiding in de huizenblokken als de sokkels van de huizenblokken Proximus en North Galaxy worden doorbroken.

RS7

Een bouwfront ontwikkelen aan de kant van het sta on (zelfs lager dan de gebouwen meer in het westen) om een scherm te vormen tegen het spoorweggeluid (en poten eel het geluid van het bussta on) voor de gebouwen in de rest van het gebied.

RS8 De kenmerkende hoge schaal van het Noordplein vrijwaren en zorgen voor een evenwicht tussen de hoge en de lage schaal op de openbare pleinen (Bolivarplein, Bolivar-voorplein en Noord- en/of Solvayplein); een muureffect vermijden door de bouwprofielen te variëren en beperkingen op te leggen voor het doorlopen van de geschikte volumes (eerder ‘toreneffect’ dan ‘blokeffect’).

RS9 De aanwezigheid van een symmetrie aan weerszijden van het Bolivar-voorplein kan het uitzicht vanaf de laan accentueren en benadrukt het sta on en de Sint-Mariakerk (erfgoed).

RS10 De hoogtes van de gebouwen rond het Noordplein moeten worden afgestemd op de afme ngen van het plein en de sta onstoren herwaarderen.

RS11

Bij de lokalisa e van de hoogbouw rekening houden met de afstand tussen de gebouwen (inkijk) en tot de bestaande gebouwen en met de slagschaduwen op de openbare ruimten, tussen de gebouwen en op de bestaande gebouwen.

RS12 De bouwdieptes moeten een natuurlijke lich nval garanderen op alle verdiepingen, ook op de lagere, voor alle ‘leefruimten’ (behalve in gangen, technische ruimten, enz.). Voor een op male modulariteit van de ruimten mag de bouwdiepte van nieuwe gebouwen niet groter zijn dan 18 m.

Ruimtelijke organisa e:

RS13 De oost-westelijke visuele link tussen het Bolivarplein en hst sta on Bolivar moet worden vrijgemaakt.

RS14

Het Noordplein, dat betere intrinsieke kenmerken hee dan het Solvayplein (grote natuurlijke lich nval, beter windcomfort ...) behouden als brede open ademruimte rond de sta onstoren en het plein ontwikkelen voor het publiek, zorgen voor een op male intermodaliteit (één halte aan het bussta on en een van de hoofdingangen van het sta on).

NB: dit plein valt buiten het BBP.

RS15

RS16

Geen gebouwd volume voorzien in de op male afslagzone van de tram op de hoek van het Noordplein: als de uitrit van de ondergrondse parking meer naar achter wordt geplaatst, kan de tram een grotere bocht nemen en maakt hij minder lawaai.

Als een gegroepeerd bussta on mogelijk is, het Solvayplein ontwikkelen als een kwaliteitsvol en geac veerd plein.

Hoofdstuk III / Afdeling 3 Effectenbeoordeling / B - ruimtelijke alterna even / p. 328

RS17

Als het bussta on ruimte inneemt op het Solvayplein dit plein niet bedekken met een plaat boven de kerende bussen, een openbare ruimte die niet is verbonden met de grond (ongeveer zoals in de huidige toestand, nega ef), maar een laag gebouw ontwikkelen waarvan de buitenruimten toegankelijk zijn voor het publiek maar verband houden met een ac viteit (openingsuren).

RS18

De breedte van het Bolivar-voorplein afstemmen op de hoogte van de omliggende gebouwen om het verple erende effect en de windeffecten te vermijden (tunneleffect versterkt door de hoogte van de omliggende gebouwen) en de toegangen tot de metro te verduidelijken, het hiërarchische statuut beves gen (hoger statuut dan de kleine Vooruitgangstraat en de binnenstraat).

RS19 Het niveauverschil vanwege de doortocht van de bussen verwijderen tussen het Bolivarplein en de metro-ingang, de sta onsingang (stadsniveau) en de fietsparking (Bolivar-voorplein).

RS20 De voorkeur geven aan een Bolivar-voorplein in de open lucht op het stadsniveau (korte plaat vanaf de sta onshal zodat indien nodig boven de bussen kan worden gelopen).

RS21 De binnenstraat verbreden.

RS22 De binnenstraat wordt bij voorkeur niet overdekt.

RS23 Het Medical Center niet met een loopbrug verbinden met het huizenblok CCN.

RS24 De breedte van de kleine Vooruitgangstraat aanpassen aan de hoogte en lengte van de omliggende gebouwen (een canyonstraat en verple erend effect vermijden) en aan de vervoerswijzen die er worden toegelaten (a ankelijk van de organisa e van de rest van het gebied).

RS25 Beplan ng in volle grond ontwikkelen op de hoeken van de huizenblokken Proximus en North Galaxy.

RS26 Op de Solvay-as de bestaande beplan ng in volle grond behouden.

RS27 Beplan ng voorzien op de as Koolbranders.

RS28 Op het Bolivarplein de ontwikkeling opleggen van een grote groene ruimte.

RS29

De achteruitbouwstroken van de huizenblokken Proximus en North Galaxy benu en voor de biodiversiteit (bij behoud van het niveauverschil van de inri en of bij a raak van de ondergrondse parkings, twee op es die een dik substraat mogelijk maken) of de openbare ruimte (verbreding van het Bolivarplein).

Verplaatsingen:

RS30 De eindhalte op het Bolivarplein niet behouden (alles verenigen in het sta on) en de haltes uniformiseren.

RS31 Geen personenwagens toelaten op het Bolivarplein (voor meer ruimte en minder hinder).

RS32 De parkeerplaatsen op de openbare weg schrappen (behalve voor taxi’s).

RS33 Hetbussta onconcentreren(alterna ef2)om deverdereorganisa evandewijk tevergemakkelijken. NB: grotendeels buiten het BBP.

RS34 De mogelijkheid voorzien om de interna onale bussen in het gebied te plaatsen …++ ?

RS35 Het kruisen van de stromen (Ov/voetgangersboulevard/fietsers) beperken.

RS36 De voetgangersboulevard doortrekken op het centrale voorplein tot aan de ingang van het sta on, zorgen voor een universele, comfortabele, gelijkvloerse, duidelijke toegang tot de mobiliteitshub in zijn geheel, vooral tot de lager gelegen metro-ingangen, de sta onshal, de fietsparking van de NMBS.

Func es:

RS37

De oriënta e en de lich nval voor de woningen diversifiëren, enkele woningen voorzien in de hoogte (horizontaal) en andere ver caal (meer aankoopmogelijkheden en dus een ruimer doelpubliek), verbonden met de grond (onder de 5de verdieping), in ‘contact’ met de openbare ruimten op de rus ger plaatsen (Bolivarplein, gevel die uitgee op een ‘binnenterrein’ van een huizenblok ...)

RS38 Het aantal woningen binnen een afstand van 50m van de sporen beperken (daar de voorkeur geven aan economische ac viteiten), behalve als een bouwfront de geluidshinder beperkt.

Hoofdstuk III / Afdeling 3 Effectenbeoordeling / B - ruimtelijke alterna even / p. 329

RS39 Ervoor zorgendatallewoningenbeschikkenovereenrus gegevelenprivébuitenruimten bij voorkeur ook aan deze gevel plaatsen.

Op het Bolivarplein voorzieningen groeperen om het plein te ac veren, de mogelijkheid voorzien om er grote voorzieningen te ontwikkelen.

RS40

NB: Omdat in de huizenblokken Proximus en CCN op korte termijn projecten zijn gepland, impliceert de ontwikkeling van voorzieningen dat deze eveneens op korte termijn moeten worden geïden ficeerd en dat er projectdragers voor moeten worden gevonden. Uit de gesprekken in het kader van onze opdracht tot wijziging van het BBP blijkt niet dat deze voorzieningen en projectdragers al duidelijk geïden ficeerd zijn. De lokalisa e van voorzieningen, onder meer met een bovenlokale uitstraling, rond het Solvayplein (op het Solvayplein dat nog niet gekadastreerd is, in het huizenblok North Galaxy en op het openbare perceel van het Medical Center, zoals wordt voorgesteld in alterna ef 3), laat meer jd voor beslissingen over specifieke voorzieningen. De ontwikkeling van voorzieningen in de huizenblokken Proximus en CCN moet mogelijk blijven en worden opgelegd, minstens voor voorzieningen in ‘standaardformaat’. De voorzieningen ‘buiten de normen’ worden echter bij voorkeur in het huizenblok North Galaxy en/of op het Solvayplein en/of op de site van het Medical Center geplaatst en los van de huidige grote projecten ontwikkeld, naargelang de mogelijkheden.

RS41 Inhethelegebiedzorgenvooreengemengdheidvanfunc es(handelszakenen(kleine)voorzieningen) op de onderste verdiepingen.

RS42 De gevoelige voorzieningen (bijvoorbeeld scholen of gezondheidscentra) plaatsen in de rus ger zones (binnenterrein van huizenblokken, Bolivarplein), a ankelijk van de specifieke behoe en (natuurlijke lich nval in de buitenruimten ...).

RS43 De handelszaken aan de straatkant plaatsen en de voorzieningen erboven of erachter, naargelang de mogelijkheden, met ingangen aan de straatkant.

RS44 Het stadsniveau aan de kant van het sta on ac veren, zowel in het noorden als in het zuiden, om de binnenstraat te ac veren en de verbinding met het Solvayplein te versterken.

RS45 De Kwatrech unnel ac veren door er een fietsparking te voorzien.

RS46 Een infrastructuur ontwikkelen die de site van het Medical Center ac veert (voorziening, skatepark ...) en verenigbaar is met de lokalisa e tussen openbare weg, trams en treinen.

RS47 Geen func e die gevoelig is voor geluid en trillingen ontwikkelen boven het bussta on of boven eventuele bochten voor de tram op de hoek van het Noordplein.

Omdat in de huizenblokken Proximus en CCN op korte termijn projecten zijn gepland, impliceert de ontwikkeling van voorzieningen dat deze eveneens op korte termijn moeten worden geïden ficeerd en dat er projectdragers voor moeten worden gevonden. Uit de gesprekken in het kader van onze opdracht tot wijziging van het BBP blijkt niet dat deze voorzieningen en projectdragers al duidelijk geïden ficeerd zijn. De lokalisa e van voorzieningen, onder meer met een bovenlokale uitstraling, rond het Solvayplein (op het Solvayplein dat nog niet gekadastreerd is, in het huizenblok North Galaxy en op het openbare perceel van het Medical Center, zoals wordt voorgesteld in alterna ef 3), laat meer jd voor beslissingen over specifieke voorzieningen. De ontwikkeling van voorzieningen in de huizenblokken Proximus en CCN moet mogelijk blijven en worden opgelegd, minstens voor voorzieningen in ‘standaardformaat’. De voorzieningen ‘buiten de normen’ worden echter bij voorkeur in het huizenblok North Galaxy en/of op het Solvayplein geplaatst en los van de huidige grote projecten ontwikkeld, naargelang de mogelijkheden.

AANBEVELINGEN VOOR DE SCHRIFTELIJKE VOORSCHRIFTEN OF HET STRATEGISCH DEEL VAN HET BBP

Verplaatsingen:

RS48 De in- en uitri en voor vrachtwagens/leveringen in alle huizenblokken concentreren op de assen Albert II en Solvay, ervoor zorgen dat het lossen gebeurt binnen de huizenblokken.

RS49 De toegangen tot de ondergrondse parkings concentreren op de assen Albert II en Solvay.

RS50 Het bussta on (randen) afsluiten om de gegenereerde geluidshinder te beperken.

Hoofdstuk III / Afdeling 3 Effectenbeoordeling / B - ruimtelijke alterna even / p. 330

RS51

In voorkomend geval de metro-ingang toegankelijk maken vanaf het stadsniveau van het gebouw dat wordt ontwikkeld op het Noordplein of de bushaltes in de buurt van het Bolivar-voorplein plaatsen, en dus in de buurt van de metro en het sta on.

RS52 Zorgen voor een duidelijke bewegwijzering om de intermodaliteit te bevorderen

RS53 in alle gevallen de toegankelijkheid garanderen voor PBM (ook als een ‘verlaging’ wordt behouden voor de doorgang van de bussen.

RS54 Zorgen voor een rechtstreekse verbinding tussen het sta on en de metro (toegang op het stadsniveau in geval van een korte plaat of op sta onsniveau in geval van een lange plaat)

RS55 Via de voorschri en de uitvoering van de MWS en de kwaliteit ervan garanderen (voetgangersboulevard met beplan ng, kwaliteit van de grondbedekkingen ...).

RS56

In een kleine mobiliteitsstudie de mogelijkheden onderzoeken om in de Matheusstraat omgekeerd eenrich ngverkeer in te voeren zodat ze niet meer kan worden gebruikt als bistraject (dit sluit aan bij dedoelstelling om hetdoorgaandverkeertussendeNoordtunnel endeAlbertII-laan teverminderen).

NB: buiten het BBP.

RS57

De uitvoerbaarheidsvoorwaarden van de 3 mogelijkheden voor het bussta on bestuderen (exacte lengte van de beschikbare perrons, analyse van de structuren en eventuele lastenverschuiving indien nodig, helling van de perrons, uitvoerbaarheid van de manoeuvres, in- en uitri en voor de rijtuigen, comfort van de chauffeurs aan de halte ...)

Kadastrale percelen / architectuur:

RS58

Rekening houden met het risico van geluidverspreiding/verspreiding van vervuilende stoffen in de huizenblokken bij het doorbreken van de sokkels van de huizenblokken Proximus en North Galaxy.

RS59 Meerdere toegangen tot de func es op de benedenverdiepingen voorzien en een poreuze interface bevorderen (meerdere ingangen, transparan e en uitzicht op het interieur ...).

RS60 Verschillende soorten woningen ontwikkelen (koopwoningen, huurwoningen, sociale en daarmee gelijkgestelde woningen, middelgrote woningen ...).

RS61 Detoegangtoteenkwaliteitsvolle buitenruimtegaranderen voorallewoningen,vooral op hetvlakvan wind, ook de woningen op de hoogste verdiepingen.

RS62 Geval per geval een goede natuurlijke lich nval garanderen in alle woningen (oriënta e, gebouwen, hoeken ...)

RS63 De volumes en structuren aanpassen aan de kantoor- en huisves ngsfunc es om een daadwerkelijke modulariteit te verkrijgen (beperkte bouwdieptes, eerder draagkolommen dan draagmuren (open plan), voldoende hoogte tussen de vloeren ...)

RS64 Rekening houden met de specifieke behoe en van bepaalde voorzieningen voor een kwaliteitsvolle uitvoering (bijvoorbeeld voor de scholen: natuurlijke lich nval, kwaliteitsvolle buitenruimten, lokalisa e in een rus ge zone ...).

RS65

Zich posi oneren ten aanzien van de eis van groene ruimten in zowel het huidige BBP (30% groene ruimten) als in het GBP (10% van de grondoppervlakte) en het ontwerp van GSV (30% volle grond voor elk perceel): groene ruimten ontwikkelen en deze ruimten plaatsen in de verschillende huizenblokken (lokalisa e, kwaliteitseisen …). Bijvoorbeeld intensieve of semi-intensieve groendaken opleggen (equivalent volle grond) in de bebouwde ruimten van de lage schaal die niet worden ingericht (terrassen, technische ruimten) of een minimale BAF+ opleggen.

RS66 Regenwaterbeheer op schaal van het perceel opleggen (stockerende daken, porositeit van de gevels en de grondbedekkingen ...).

RS67

Een beheer opleggen dat het opgepompte water nu g toepast (hergebruik in de gebouwen, afvoeren naar de Zenne doorheen de openbare ruimten); dit blij ondergeschikt aan de voorwaarden van de MV.

RS68 Een vegetale link garanderen tussen de site en de spoorwegtaluds tussen het perceel van het Medical Center, ongeacht of dit (deels) wordt bebouwd of niet.

Hoofdstuk III / Afdeling 3 Effectenbeoordeling / B - ruimtelijke alterna even / p. 331

RS69

RS70

Nadenken over het goede ontwerp en beheer van de beplante zones (wind, schaduw, vandalisme, hygiëne, aangepaste soorten ...) en over de bodem (bemes ng, bescherming tegen verzakking, voldoende substraatdikte ...)

Langsdezonesvoorgemotoriseerdverkeerdebeplan ngplaatsentussendevoertuigenende‘zachte’ openbare ruimte om een scherm te vormen tegen verontreiniging. Verschillende lagen en soorten selecteren voor een grotere veerkracht, diversiteit van de soorten vervuilende stoffen, efficiën e in alle seizoenen en aanpassing aan de specifieke ligging van elke plaats.

RS71 De a raakprocedures matchen met de toekoms ge projecten opdat zoveel mogelijk materialen ter plaatse zouden worden gerecupereerd.

RS72

Doelstellingen vastleggen aangaande de circulariteit van de materialen, bijvoorbeeld : bij a raak minstens 2% van de gedemonteerde materialen herbruikbaar en minstens 90% gerecycleerd ter plaatse of in het BHG en bij wederopbouw 2% van de inkomende materialen a oms g uit hergebruik en 20 % uit recyclage, a oms g van de site of van een andere plaats in het BHG

RS73 De produc e opleggen van hernieuwbare energie (geothermie, fotovoltaïsche panelen, warmtepompen of andere technische oplossingen)

RS74 De behandeling van de gevels omkaderen (porositeit, anima e, ruwheid, weerkaatsing van geluid en licht, materialen (glas vermijden, geluidsabsorp e) ...).

RS75 Ervoor zorgen dat het windcomfort in de openbare ruimten (zie norm NEN 8100) niet achteruitgaat of wordt verbeterd (via de aanbevelingen van windstudies zoals luifels, ruwe materialen, architecturale vormen ...)

RS76 Een hoog weerkaatsingsvermogen opleggen voor de horizontale en ver cale bekledingsmaterialen.

RS77 Gedeeld gebruik van de ondergrondse parkeerplaatsen bevorderen.

RS78 Gezien de lawaaierige context van de wijk zorgen voor een goede akoes sche isola e van de gebouwen (bijvoorbeeld norm NBN S 01-400-1 voor de woongebouwen).

RS79

Als het Noordplein wordt bebouwd, ervoor zorgen dat het Solvayplein openbaar wordt, dat er een openbare ruimte wordt ontwikkeld op grondniveau of een laag gebouw (openbare voorziening met buitentoegang voor het publiek, ook als die wordt ‘omkaderd’ door de voorziening).

Openbare ruimte:

RS80 De visie van het BKP voor de Bolivar-as integreren (geïntegreerd waterbeheer aanmoedigen, overeenstemming met het Bolivar-project).

RS81 Het totale aantal bomen in de perimeter niet verminderen en de bestaande ‘volwassen’ bomen behouden.

RS82 Toezien op de con nuïteit tussen de boomkruinen en de lagen diversifiëren om de groene verbindingen te op maliseren.

RS83 Toezien op een zekere ontharding van het Bolivarplein en op kwaliteitsvolle bodems.

RS84

Ervoor zorgen dat eventuele inrich ngen om het windcomfort te verbeteren worden geïntegreerd in de projecten voor de openbare ruimte of in ieder geval dit gegeven integreren in de komende denkoefeningen.

RS85 Het veiligheidsgevoel bevorderen in de doorgangen onder de sporen (globale inrich ng voor voldoende verlich ng, configura e, ac vering).

RS86

Een heus inrich ngsproject ui ekenen voor de openbare ruimten in het gebied (coheren e, kwaliteit, gezelligheid ...) zodat ze geen restruimten worden en hun rol zullen vervullen in dit gebied waar de dichtheid aanzienlijk zal worden verhoogd.

RS87 Poreuze grondbedekkingen opleggen die geen geluidshinder genereren.

Hoofdstuk III / Afdeling 3 Effectenbeoordeling / B - ruimtelijke alterna even / p. 332

Werken:

In de Noordwijk worden heel wat veranderingen doorgevoerd of gepland. Onder meer jdens de werken moet bijzondere aandacht worden besteed aan de toegankelijkheid met het openbaar vervoer en aan de veiligheid/gezelligheid/kwaliteit/ac vering van de openbare ruimten.

De tabel op de volgende pagina’s bevat de mogelijke wisselwerkingen tussen de aanbevelingen onderling en met de verschillende criteria:

Hoofdstuk III / Afdeling 3 Effectenbeoordeling / B - ruimtelijke alterna even / p. 333

RUIMTELIJKE ORGANISATIE STEDELIJKE DYNAMIEK MENSELIJKE OMGEVING VERPLAATSINGEN LEEFMILIEU EN KLIMAAT CIRCULARITEIT

BevolkingHuisvesngVoorzieningen en handelszaken Economische ac viteiten en transi e Ac vering van de openbare ruimte via de benedenverdiepingenGeluid en trillingen Kwaliteit van de openbare ruimten voor verplaatsing en verblijfLuchtkwaliteitVeiligheidUitvoering van de MWS Ac eve ver plaatsingswijzenOpenbaar

vervoerAuto'sVrachtverkeerParkerenIntermodaliteitMobiliteitsdienstenMicroklimaatBodem

en ondergrondEcologischnetwerkWaterEnergie

RS1 + + + + + -

RS2 + +

Modulariteit van de ruimten

Opmerkingen of impact op andere aanbevelingen

- Als een verbreding van de Progrèsstraat nodig is, moet die plaatsvinden aan de kant van het Proximus-blok.

RS3 /!\ /!\ + + +

- Beperkt de mogelijkheden om de binnenstraat te verbred

- bevestigt de RS14

RS4 - + +

RS5 + +

RS6

RS7 /!\ +

RS8 + /!\ +

RS9 + /!\ /!\ /!\

- risico van een "bar" effect als het volume te hoog is en continu over het hele eiland gaat

- risico van toenemende geluidsverspreiding door de ontwikkeling van een niet-doorlopende gebouwgevel

- De accentuering van dit perspectief is interessant, maar mag niet prevaleren boven overwegingen in verband met het comfort van de gebruikers: beschaduwing van openbare ruimten en tussen gebouwen, blootstelling aan lawaai of wind, enz.

RS10 /!\ + +

RS11 /!\ + +

RS12 + + + + +

RS13 + + + + + + + +

RS14

RS15 /!\ + + /!\

- gaat weer naar de geconcentreerde bushub

RS16 + + + + + + /!\ + + - in verband met RS33 over de positie van de bushub

Hoofdstuk III / Afdeling 3 Effectenbeoordeling / B - ruimtelijke alterna even / p. 334
Zachte mobiliteitsnetwerkenEcologische netwerken Technische netwerken Structuur van
bebouwde ruimten Structuur
open ruimten Stedelijk landschap
symbolische richtpunten
de
van de
en
Circulariteit van de materialen Inkomende materialen Circulariteit van
stromen
de
/!\ /!\ +
+ /!\ + + + + + + + + +

- mag de toegang voor vrachtwagens tot het Noordstation niet blokkeren (of verplaatsen)

- zicht houden op de ingang van het station en de tunnel (samenhangende structuur)

- indien RS33 niet wordt gevolgd (geconcentreerde bushub) RS18

- controlehoogte De Lijn

- waarschuwing: geen verbetering van de toegang voor veiligheidsdiensten

- indien SR niet wordt gevolgd (lange plaat), ervoor zorgen dat liften en trappen de doorgang van de plaat naar de metro-ingang eronder mogelijk maken

- de technische/operationele haalbaarheid controleren

- aandacht voor geluid naar gelang van de vorm van de bushub en de behandeling van de "randen" ervan

- mogelijke tegenspraak met RS3 indien hetzelfde programma moet worden toegepast zonder verdere verhoging van de hoogten RS22

- wederzijdse versterking met RS16 (kwalitatief Solvayplein) en RS44 (activering van de binnenstraat)

- indien RS niet wordt gevolgd, verhoogt het doortrekken van de plaat naar een oprit voor hulpdiensten het veiligheidscriterium aanzienlijk

RS23

RS24

RS25

- in overeenstemming te brengen met RS18 (breedte van het Bolivarplein)

- de technische haalbaarheid controleren RS28

- het effect hangt af van wat wordt gekozen (openbare ruimte of biodiversiteit) RS30

RS31

RS34

RS35

RS36

RS37

RS38

RS39

RS40

- controle van de ruimtelijke haalbaarheid van de hub (strekkende meter kade)

- versterken RS29

- indien niet mogelijk, dan Proximus en North Galaxy terugwinnen om het plein te verbreden.

- de technische haalbaarheid controleren

- staat geen openluchtstation voor de electrische voeding toe

- controleer de haalbaarheid volgens de naafvorm

Hoofdstuk III / Afdeling 3 Effectenbeoordeling / B - ruimtelijke alterna even / p. 335
/!\ - + + + + + + /!\ - -
RS17
+ + + + + + + + + +
+ + + + + + + +
RS19
+ + + + + + +
RS20
+ /!\ + + + + + + + + + + /!\ +
RS21
+ + + /!\ + + + + + + +
+ + + + +
+ /!\ + + + + + + +
+ + + + + + +
+ + + + + + +
+ + + + + +
RS26
RS27
+ + + + + + + + + +
+ + ? + ? + ? ? + ? ?
RS29
+ + + + + +
+ + + + +
+ + + + -
+ /!\ +/- + + + + + + /!\ +
RS32
RS33
- - - - + +
+ + + +
+ + + + +
+ + +
+
+
+ +

- de technische en operationele haalbaarheid controleren

- de technische en operationele haalbaarheid controleren

het effect hangt af van wat voor activering van de site wordt gekozen

effect op het microklimaat niet als zodanig beoordeeld

- belang van het waarborgen van de duurzaamheid en het positieve effect van ontwikkelde vegetatiegebieden (die anders een negatief effect zouden kunnen hebben)

Hoofdstuk III / Afdeling 3 Effectenbeoordeling / B - ruimtelijke alterna even / p. 336
+ + RS42 + RS43 + + RS44 + + + +
RS41
+ + + + +
RS46 ? ? ? ? + +
RS47 + RS48 + + + + + + + RS49 + + + + + + RS50 - + + + ? -
RS51 + + + RS52 RS53 + + + RS54 + RS55 + + + + + + RS56 + RS57 + + RS58 + + + RS59 + + + RS60 + + RS61 + RS62 + RS63 + RS64 + RS65 + + + + + RS66 + + RS67 + + - controles
RS68 + + + + + RS69 + + +
RS45
-
op mogelijke verontreiniging
RS70 + + RS71 + RS72 + RS73 + + RS74 + + + + RS75 + + RS76 + RS77 + RS78 + + RS79 + + + + RS80 + + + + RS81 + + + + + RS82 + + +
Hoofdstuk III / Afdeling 3 Effectenbeoordeling / B - ruimtelijke alterna even / p. 337 RS83 + + + + + + + + + + RS84 + RS85 + + RS86 + + + RS87 + + +

AFDELING3.

EFFECTENBEOORDELING

C/ ONTWERP VAN BBP

Version octobre 2022

Hoofdstuk III / Afdeling 3 Effectenbeoordeling / C – ontwerp van BBP / p. 338

Inhoudsopgave van het MER

HOOFDSTUK I – PRESENTATIE VAN HET ONTWERPPLAN

Afdeling 0. Algemene methode

Afdeling 1. Beschrijving van de strategische doelstellingen van het plan

Afdeling 2. Samenva ng van de inhoud van het plan

HOOFDSTUK II – DIAGNOSE VAN DE BESTAANDE TOESTAND EN IDENTIFICATIE VAN DE UITDAGINGEN

Afdeling 1. Methodologie voor de vaststelling van de bestaande toestand

Delen 2-3-4. Overzicht van de rechtstoestand en van de feitelijke toestand en waarschijnlijke evolu e

HOOFDSTUK III – BESPREKING VAN DE MILIEUEFFECTEN

Afdeling 1. Methodologie

Afdeling 2. Presenta e van de redelijke alterna even en van de geselecteerde beoordelingsmethode

Afdeling 3. Effectenbeoordeling

A/ PROGRAMMATORISCHE ALTERNATIEVEN

B/ RUIMTELIJKE ALTERNATIEVEN

C/ ONTWERP VAN BBP

Afdeling 4. Overzicht van specifieke milieueffecten

HOOFDSTUK IV - CONCLUSIE, AANBEVELINGEN EN OPVOLGINGSMAATREGELEN

Afdeling 1. Presenta e van de gekozen oplossingen

Afdeling 2. Aanbevelingen

Afdeling 3. Opvolgingsmaatregelen

Hoofdstuk III / Afdeling 3 Effectenbeoordeling

/ C – ontwerp van BBP / p. 339
Hoofdstuk III / Afdeling 3 Effectenbeoordeling / C – ontwerp van BBP / p. 340 INHOUDSOPGAVE INLEIDING 341 Presenta e van het voorkeurscenario 343 PRESENTATIE VAN HET ONTWERP VAN BBP 353 Verantwoording van de gemaakte keuzen ten opzichte van de aanbevelingen 354 ANALYSE VAN DE EFFECTEN VAN HET ONTWERP VAN BBP 377 Evalua e met betrekking tot het reglementaire kader 379 Verwachte impact van het plan............................................................................................................................. 388 Ruimtelijke organisa e 389 Structuur van de bebouwde en de open ruimten 389 Stedelijk landschap en symbolische richtpunten 395 Stedelijke dynamiek 398 Bevolking en huisves ng 398 Uitrus ngen en handelszaken 401 Economische ac viteiten en transi e 405 Menselijke omgeving 407 Kwaliteit van de openbare ruimte, en dan meer bepaald voor de verplaatsing en het verblijf en ac vering via de benedenverdiepingen 407 Geluid en trillingen 411 Luchtkwaliteit 412 Veiligheid 413 VERPLAATSINGEN....................................................................................................................................................... 414 Invoering van de MSW en netwerk van zachte mobiliteit 418 Ac eve verplaatsingswijzen en fietsenstallingen 421 Openbaar vervoer 425 Auto's en parkeermogelijkheden 427 Vrachtwagens en leveringen 431 Mobiliteitsdiensten en intermodaliteit 432 Leefmilieu en klimaat 433 Microklimaat 433 Bodem..................................................................................................................................................................... 435 Ecoligsch netwerk en milieunetwerken 436 Water, circulariteit van de stromen en technische netwerken 438 Energie en circulariteit van de stromen 441 Circulariteit 443 Circulariteit van de materialen en stromen/ inkomende materialen 443 Modulariteit van de ruimten 445 INTERACTIE TUSSEN DE CRITERIA 446 Interac es tussen de criteria 447 INLEIDING
Hoofdstuk III / Afdeling 3 Effectenbeoordeling / C – ontwerp van BBP / p. 341 INLEIDING

Na de analyses van de programmatorische en de ruimtelijke alterna even werden de aanbevelingen uit het MER (zie hoofdstuk III – Afdeling 3 – conclusies van de punten A en B) gebruikt als basis om na te denken over de bepaling van een voorkeursscenario. Daarbij werd ook een geheel van inlich ngen a oms g van externe actoren geïntegreerd, zoals de technische eisen voor het bussta on die door De Lijn werden uitgewerkt, de structurele eisen voor de plaat boven de binnenstraat die door de ontwikkelaar (CCN developement) werden onderzocht, de feedback vandeDBDMH,de mobiliteitsbehoe endiedoor BrusselMobiliteitonderdeaandachtwerdengebracht ... Uitleg hierover vindt u in de tabel “Aanbevelingen in verband met de analyses van de programmatorische alterna even aan het einde van de presenta e van het project van BBP.

Het voorkeurscenario werd dan ook opgesteld rekening houdend met enerzijds de gemeentelijke en de gewestelijke poli eke oriënta es en anderzijds de aanbevelingen van dit MER en ten slo e feitelijke technische elementen. Daaruit werd een scenario gedis lleerd dat technisch haalbaar is, dat een poli eke draagvlak hee en dat zo goed mogelijk de sterke punten van de verschillende alterna even (die in Hoofdstuk III, Afdeling 2 worden gepresenteerd) met elkaar combineert en dat gelijk jdig bepaalde43 nega eve aspecten die door het MER naar voren werden gebracht (Hoofdstuk III, Afdeling 3, Punten B en C) zoveel mogelijk beperkt.

Dit voorkeurscenario legt een reeks punten ‘vast’, zoals de hoogten, de lokalisa e van de hoogbouw, de vloeroppervlakten per func e enz. In dat opzicht vormt dit voorkeurscenario één voorkeursvorm. Merk op dat het ontwerp van BBP omkaderend, maar minder streng zal zijn: hierbij zal het mogelijk zijn om niet alleen het voorkeurscenario te ontwikkelen, maar ook andere projecten, die vergelijkbaar maar niet iden ek zijn, en die een reeks essen ële punten respecteren die zelf door het BBP worden omkaderd. Het voorkeurscenario legt bij voorbeeld het aandeel van de vloeroppervlakten voor woningen vast op 33%, terwijl het BBP een minimum van 33% oplegt.

Na de uitwerking van het voorkeurscenario werd het BBP opgebouwd met de bedoeling om dat scenario te realiseren. Een aantal punten die in het voorkeurscenario zijn opgenomen, worden niet omkaderd door de BBPtool of zijn te nauwkeurig om erin te worden opgenomen. Het BBP is met andere woorden een kader waarin het voorkeurscenario kan worden ontwikkeld, maar waar ook andere vormen en keuzen voor het gebied kunnen worden geselecteerd, waardoor ontwikkelaars de kans krijgen om over hun projecten na te denken en ze te op maliseren naarmate de stad zich ontwikkelt. In de vergunningsaanvragen moeten de door het BBP vermelde voorschri en worden nageleefd en de aanvragen zullen bovendien moeten geïnspireerd zijn op de voorstellen die in de begeleidende maatregelen worden vermeld; deze zijn weliswaar niet bindend, maar bieden wel een zicht op de inten es van de gemeente voor het betreffende gebied.

Dit deel van het document begint met een presenta e van het voorkeurscenario en presenteert vervolgens het ontwerp van BBP dat op basis daarvan werd ontwikkeld. Het MER stree er vervolgens naar om de impact van het ontwerp van BBP op het milieu te analyseren ten aanzien van dezelfde criteria als voorheen. Ten slo e vermeldt een punt de interac es tussen de criteria.

43 Sommige aanbevelingen worden niet opgevolgd in het stadium van het voorkeursscenario, maar wel in het ontwerp-BBP en/of zullen moeten worden behandeld in het stadium van de projecten zelf (zie mo veringen onderaan).

Hoofdstuk III / Afdeling 3 Effectenbeoordeling / C – ontwerp van BBP / p. 342

PRESENTATIE VAN HET VOORKEURSCENARIO

PROGRAMMATORISCHE ASPECTEN

De wijzigingen door het ‘demografische’ GBP bieden onder meer de mogelijkheid om huisves ng te beschouwen als een hoofdbestemming, net als kantoren in een administra egebied. Hierdoor past het voorkeurscenario in de bestaande bestemming en legthet de specifieke oppervlakkenvoor deverschillendefunc esper huizenblokvast. De definitie van de programmering voor het preferentiële scenario is vastgesteld na een analyse van de gevolgen voor de programmeringsalternatieven en rekening houdend met de studies voor het Northern Territory die door perspective.brussels in overleg met de regionale autoriteiten zijn verricht.

- Voor het huizenblok CCN: maximaal 165 000 m² vloeroppervlakte ;

- voor het huizenblok Proximus en het huizenblok CCN:

o mogelijke toename van de vloeroppervlakten met 5% (met afname van de grondinname met 10%)

o programmatorische cocktail van hoogstens 50% van de vloeroppervlakte bestemd voor kantoren, minstens 33% bestemd voor woningen en minstens 10% bestemd voor openbare voorzieningen.

Het voorkeurscenario neemt die aanbevelingen over en spreidt de rest van de bestemming van de vloeroppervlakten op de volgende manier: 3% van de vloeroppervlakte bestemd voor immateriële productieactiviteiten en 4% voor handelszaken.

Zo geldt het volgende voor het voorkeurscenario:

- toegewezen vloeroppervlakten44:

o 114 801 m² vloeroppervlakte voor North Galaxy met een beperking van de grondinname met 10%;

o 119 971 m² vloeroppervlakte voor Proximus (waarvan 49 225 m² in het BBP) met een beperking van de grondinname met 10%;

o 165 000 m² vloeroppervlakte voor het CCN-perceel (waarvan 119 378 m² in het BBP).

o Nieuw bebouwbaar gebied met 5.000 m² vloeroppervlakte op het Solvayplein, waar de bussen rechtsomkeer kunnen maken.

Hetzij in totaal 404 772 m² (waarvan 288 404 m² in het BBP).

- Bestemmingen voor de verschillende betrokken huizenblokken (behalve het Solvayplein, dat bestemd is voor voorzieningen):

o 50% van de vloeroppervlakte bestemd voor kantoren;

o 33% van de vloeroppervlakte bestemd voor woningen;

o 10% van de vloeroppervlakte bestemd voor openbare voorzieningen;

o 3% van de vloeroppervlakte bestemd voor productieactiviteiten van immateriële goederen en ambachtelijke productieactiviteiten;

o 4% van de vloeroppervlakte bestemd voor handel.

44 De berekening is ook gebaseerd op een geschatte hoogte van de begane grond van 6 m en 3,4 m per verdieping. Er zijn echter uitzonderingen in sommige blokken, zoals North Galaxy, waar een blok een begane grond van 3,4 m heeft. Bij de berekening van het station is rekening gehouden met de begane grond (momenteel ingenomen door de bushub).

Hoofdstuk III / Afdeling 3 Effectenbeoordeling / C – ontwerp van BBP / p. 343

BOUWPROFIELEN EN ORGANISATIE VAN DE FUNCTIES

Voor het huizenblok North Galaxy en het huizenblok Proximus stelt het voorkeurscenario voor om de bestaande torengebouwen te behouden met het oog op de circulariteit en het respect voor de ondergrond (behoud van de verankering van de bestaande gebouwen in de bodem). Zoals hierboven werd uitgelegd, wordt de vloeroppervlaktevermeerderdmet5%incombina emetdeafnamevandegrondinnamemet10%.Datimpliceert dat de bestaande torengebouwen hoger kunnen worden opgetrokken dan nu het geval is (107 m in het voorkeurscenario t.o.v. 102 m in de bestaande toestand).

In het geval van CCN opteert het voorkeurscenario gezien de lopende afbraakvergunning en een gebouw dat niet meer aan de huidige behoeften is aangepast, ervoor om:

- de gemiddelde hoogten van de naburige gebouwen niet te overschrijden en om de hoogte van de hoogbouw op 93 en 102 m vast te leggen;

- de hoogte van de gebouwen in de nabijheid van het station op 20 tot 46 m te beperken en een insprong van minstens 6 m op te leggen om de hoogte voor de rest van het huizenblok tot 107 m op te trekken;

- de voorkeur te geven aan een bebouwde diepte van 22 tot 35 m voor de nieuwe bouwwerken.

Wat de verdeling van de func es betre , opteert het voorkeurscenario voor:

- de ontwikkeling van een lineair busstation over de volledige lengte van het station, enerzijds langs de binnenstraat, anderzijds langs deonderstehalveverdieping vanhethuizenblok CCN op ongeveer1/3van de diepte van het perceel, waarbij beide ‘lanen’ doorlopen tot een gebied waar op het Solvayplein rechtsomkeer kan worden gemaakt;

- de ontwikkeling van voorzieningen en handelszaken over de volledige eerste twee verdiepingen over het volledige huizenblok om het ‘backstreeteffect’ te vermijden en om gebruikers te stimuleren om zich de openbare ruimte eigen te maken;

- de afstand van de residentiële ontwikkeling (huizenblok CCN) ten opzichte van de spoorweg om de geluidshinder zoveel mogelijk te beperken;

- de ontwikkeling van ‘hoge’ woningen in de torengebouwen van het huizenblok North Galaxy en het huizenblok Proximus en ‘lage’ woningen in een deel van de gebieden van de lage bovenste muurlaag van het huizenblok North Galaxy om een diversiteit van liggingen van de woningen te verzekeren;

- de ontwikkeling van een ‘afzonderlijke’ voorziening op het Solvayplein (zie specifiek punt verder) in de nabijheid van de noordelijke ingang van het treinstation met de bedoeling om de gebruikersstromen te herverdelenende ingangvanafdeSimonBolivarlaannaarde stationshalniet teoverbelasten enintussen het Solvayplein te activeren en de verbinding met de Brabant- en de Gaucheretwijk te verbeteren.

De volgende schema’s verduidelijken op een grafische manier de vorm van het voorkeurscenario:

Organisa e van de bouwprofielen waarmee kan worden ingespeeld op het gedefinieerde programma en de verdeling van de func es (bron: 1010au)

Hoofdstuk III / Afdeling 3 Effectenbeoordeling / C – ontwerp van BBP / p. 344
N N

RUIMTELIJKE ORGANISATIE

Hetvoorkeurscenariobehoudtbepaaldebasisprincipesdiedeopstellingvande3ruimtelijkealterna evenhebben gestructureerd:

- Valorisatie van de aanwezigheid van het station als ruimtelijk richtpunt, historisch overblijfsel en intermodaal station dat duidelijker leesbaar moet zijn vanaf de Bolivaras: het huizenblok CCN wordt ter hoogte van de Bolivarlaan doorbroken zodat een visuele continuïteit ontstaat vanaf het kanaal tot aan de Koninklijke Sint-Mariakerk;

- Valorisatie van de identiteit van de wijk waarbij de voorkeur eerder gaat naar torengebouwen dan grote, langwerpige flatgebouwen en door een volumetrie te behouden die de bovenste muurlaagniveaus overneemt die in het Manhattanplan werden gedefinieerd;

- Herinrichting van het verkeer en de parkeermogelijkheden voor auto's en openbaar vervoer, teneinde meer plaats vrij te maken voor voetgangers en fietsers op het Bolivarplein;

- Beperking van het aandeel verharde oppervlakte en uitbreiding van de oppervlakte groene ruimten om de microklimaatomstandigheden te verbeteren, een duurzaam beheer van het (regen- en opgepompte) water te vergemakkelijken en er een aantrekkelijker locatie van te maken. Gezien de context van de ondergrond maakt het voorkeurscenario een onderscheid tussen groene oppervlakken in volle grond en oppervlakkige inrichtingen op de bodem of op de daken.

Concreet stelt het voorkeurscenario in die zin voor om:

- het huizenblok CCN ‘op te delen’ (gebieden voor openbare doorgang op privéterrein) om er doorkijken en doorgangen doorheen het lineaire station in te richten;

o enerzijdsinhetmiddenvanhetperceel,datnaardeBolivarlaan isgericht,waardoorhetlichaam van het station en de ingang van de stationshal tot hun recht komen. Deze 30 m brede ruimte is overdekt, waarbij het stationsniveau toegang biedt tot de stationshal en het stadsniveau tot de metro en de ingang voor PBM’s van het station door het lineaire busstation te doorkruisen;

o anderzijds op de gemeentegrens (Schaarbeek/Sint-Joost), gericht naar de klokkentoren van het station die daarbij extra tot zijn recht komt. Die 15 m brede ruimten (slechts gedeeltelijk in het BBP opgenomen) is niet overdekt;

o ten slotte op de perceelgrens van CCN aan de kant van het Solvayplein, die uitziet op de ingang van het station langs de Quatrechtstraat. Die 12 m brede ruimte is overdekt en verbindt het huizenblok CCN met de nieuwe voorziening van het Solvayplein (ter hoogte van het stationsniveau, verhoogd ten opzichte van het busstation) en aan de noordelijke ingang van het station (op het stationsniveau);

- de groene gebieden binnen het BBP in stand te houden en verder te ontwikkelen:

o de bestaande bomenrijen op het Bolivarplein, op het Solvayplein en langs de Vooruitgangstraat in stand te houden en te versterken;

o een grote groene ruimte te ontwikkelen op het Bolivarplein: mogelijkerwijs in volle grond en de kans biedend om een systeem te voorzien dat het regenwater en het opgepompte water naar de Zenne afvoert in het verlengde van het ‘Max-sur-Senne’-project. Het is nochtans belangrijk datdieruimtedeanderevoordezeruimtevoorzienefunctiesniethindert-endanmeerbepaald de doorgang van het openbaar vervoer en de inrichting van de stopplaatsen.

o eengroeneruimteteontwikkelenophetterreinvanhetMedicalCenter(“Vooruitgangsruimte”) en het niet-bebouwde noordelijke gedeelte van het Solvayplein te beplanten, om op die manier een ecologische verbinding tot stand te brengen tussen het Bolivarplein (en de rest van de laan) en de taluds van de spoorweg;

o beplantingen mogelijk te maken in het huizenblok North Galaxy en het huizenblok Proximus, en dan meer bepaald in de achteruitbouwzones.

Hoofdstuk III / Afdeling 3 Effectenbeoordeling / C – ontwerp van BBP / p. 345

Wat het beheer van de niveaus en het bestaande hoogteverschil op het perceel van het huizenblok CCN betre , houdt het voorkeurscenario de bestaande toestand in stand:

- op het stationsniveau wordt een plaat behouden, waardoor een open doorgang ontstaat langs de volledige gevel van het station (‘zwevende’ straat boven de binnenstraat) en waarbij de 3 ingangen op dat niveau met elkaar worden verbonden (op het Noordplein (buiten de perimeter), naar de stationshal en op het Solvayplein). Die plaat loopt door tussen de gebouwen in het huizenblok CCN, vanaf de stationshal naar de Bolivaresplanade, met de aanleg van een ‘hoger gelegen Bolivarvoorplein’ in de as vandielaan.Degevelsvandenieuwegebouwenlangsdezeplaatwordengeactiveerddoorhandelszaken, voorzieningen en toegangen tot de woningen;

- in deze plaat worden verticale relaties geïntegreerd tussen de ‘hogere’ ruimten die worden behouden en aangelegd, naar dezelfde ‘lagere’ overdekte ruimten - en dit op twee plaatsen: ter hoogte van het Bolivarvoorplein enterhoogte van dedoorgang tussenhetCCN-perceelen denieuwevoorziening op het Solvayplein;

- op het stadsniveau (het ‘lagere’ niveau) wordt het bestaande hoogteverschil behouden, het dalende grondniveau vanaf het Bolivarplein naar de uitsprong van het busstation en opnieuw stijgend in de binnenplaats naar de toegang van het station voor BPM's. Die ruimten onder de plaat worden zo georganiseerd om de werking van de mobiliteitsinfrastructuren mogelijk te maken (busterminal, toegang gebruikers en logistiek van het station, taxidiensten, kiss and ride, toegang tot de fietsparking ...).

Hoofdstuk III / Afdeling 3 Effectenbeoordeling / C – ontwerp van BBP / p. 346
Doorsnede van het huizenblok CCN tegenover de Bolivarlaan, waarbij het beheer van de niveaus wordt uitgelegd. In oranje arcering: het bussta on (bron: 1010au)

Grens van de BBP

Eigendomslijn

Rooilijn

Grens van de par jlijn

Structuur van de CCN

Metro zone

Privé groenzones

Openbare groene ruimte

Bebouwde gebied

Mul modaal knooppunt

Recht van overpad

De klokkentoren

Sta on ingangen

Logis eke ingangen

Metro toegang

CCN-Parking oprijhelling – autos

Bestaande bomen

Nieuwe bomen

Visuele perspec even

Ver cale verbindingen

Projec e van de hoge construc es

Hoofdstuk III / Afdeling 3 Effectenbeoordeling / C – ontwerp van BBP / p. 347
Voorkeurscenario/ruimtelijke organisa e op het stadsniveau (bron: 1010au) Voorkeurscenario/ruimtelijke organisa e op het sta onsniveau (bron: 1010au)

MOBILITEIT

Het voorkeurscenario behoudt de basisprincipes die de opstelling van de 3 alterna even hebben gestructureerd:

- het doorgaand verkeer is sterk beperkt in de perimeter: het Bolivarplein en het voorplein en de binnenstraat en de kleine Vooruitgangstraat zijn niet toegankelijk voor privévoertuigen. Hetzelfde geldt voorhetdeelvanhetNoordpleintussendeVooruitgangstraatendeuitgangvandeondergrondseparking van het CCN;

- er mag niet worden geparkeerd langs de openbare weg;

- de toegangen tot de ondergrondse parkeergarages worden geoptimaliseerd: één ingang voor het huizenblok North Galaxy en het huizenblok Proximus op de Albert II-as en één toegang aan elke kant (noord en zuid) van het huizenblok CCN.

Overigens werd om technische redenen de voorkeur gegeven aan een lineair bussta on: dit loopt langs de binnenstraat en in het onderste halve niveau van het CCN en loopt verder over het Solvayplein, zodat de bussen er rechtsomkeer kunnen maken.

Het voorkeurscenario spreekt zich niet explicieter uit over de ac eve mobiliteit (ligging van de hoofdvoetgangerszone, doorgang voor fietsers, ligging van de bus- en taxistopplaatsen ...), maar beveelt een algemene toegankelijkheid in de openbare ruimten in de naaste omgeving en naar het sta on aan en een faciliteit voor de intermodaliteit over de volledige perimeter (comfort en zichtbaarheid van de stopplaatsen en de trajecten).

Wat de logistieke toegangen betreft, kiest het voorkeurscenario ervoor om - met de bedoeling om wegen vrij te maken voor andere toepassingen en om de conflictpunten met de verschillende gebruikers te beperken - de logistieke ingangen te optimaliseren en het aantal voor elk huizenblok zoveel mogelijk te beperken. Gezien de breedte van de betreffende assen, de MSW en de specifieke stedelijke typologie (gebouwen-huizenblokken) en dus de ruimtelijke capaciteiten van de huizenblokken die de leveringen op het perceel moeten beheren en het verkeer niet hinderen, organiseert het voorkeurscenario de leveringen binnen de huizenblokken en ontwikkelt er detoegangen(ingangenuitgang)vanopdeAlbertII-endeSolvay-as(dieophetGoodMove-planalsVrachtwagen Comfort worden gedefinieerd).

Het lijkt van essen eel belang om voor de huizenblokken CCN en sta on ‘zware’ logis eke toegangen te voorzien (> 3 m hoogte). Aangezien het sta on onlangs werd gerenoveerd en de toegangen voor de vrachtwagens aan de kant van het Solvayplein werden gedefinieerd, mogen het nieuwe gebouw op het Solvayplein en de organisa e van het bussta on (rechtsomkeer) deze toegang niet hinderen en op termijn naar de Aarschotstraat worden verplaatst.

BEBOUWBAARHEID VAN HET SOLVAYPLEIN

Zoals al werd verduidelijkt in het punt ‘bouwprofielen en organisa e van de func es’, wordt het Solvayplein, dat gedeeltelijk wordt gemobiliseerd om de bussen rechtsomkeer te laten maken, bebouwbaar gemaakt.

Voor de ‘gescheiden’ voorzieningen op dit nieuwe perceel werden meerdere mogelijke inplan ngen onderzocht in het kader van de opstelling van het voorkeurscenario. De omkaderingselementen die aldus worden gedefinieerd, zijn:

- de ontwikkeling van sportvoorzieningen (2 plateaus met een grote zaal) of cultuurvoorzieningen (drie plateaus);

- de overdekking van de plaats waar de bussen op het stadsniveau rechtsomkeer kunnen maken;

- de beperking van de globale hoogte van het gebouw enerzijds om een volumetrische verbinding tot stand te brengen tussen de nieuwe gebouwen van het perceel CCN en de gebouwen errond en anderzijds om de uitzichten met patrimoniale waarde te behouden (zijaanzicht op de gevel van het station en de Koninklijke Sint-Mariakerk);

- hetbehoudvandebodemruimtenophetplein,indienmogelijkinvolleaarde(afhankelijkvandebeperkingen met betrekking tot de ondergrond);

- de activering van het stadsniveau op minstens een van de gevels van de voorziening;

- de aansluiting van het gebouw op de plaat op het stationsniveau, en dit zowel in de richting van de Vooruitgangstraat als in de richting van het Solvayplein.

Hoofdstuk III / Afdeling 3 Effectenbeoordeling / C – ontwerp van BBP / p. 348

Principedoorsnede binnen de geïsoleerde voorzieningen (bron: 1010au)

Hoofdstuk III / Afdeling 3 Effectenbeoordeling / C – ontwerp van BBP / p. 349

Sportfaciliteiten G+2

H=16m

Totalebinnen oppervlakte =3129m²

Bebouwde oppervlakte uitrust. = 429 m² (+660m²vanvollegrond+1186m²busomloop= 2275m²)

V/T=1.37 E/T=0.18

Culturele uitrusting G+2

H=16m

Totalebinnen oppervlakte =4479m²

Bebouwde oppervlakte uitrust. = 429 m² (+660m²vanvollegrond+1186m²busomloop= 2275m²)met 652m² volle grond

V/T=1.96 E/T=0.18

Sportfacliteiten G+1

H=18.5m

Totalebinnen oppervlakte =1986m²

Bebouwdeoppervlakteuitrust.= 687 m²

V/T=0.87 E/T=0.30

Algemene uitzichten (links), vanaf het noorden van de Vooruitgangstraat (in het midden) en vanaf de Solvay-as in de rich ng van de tunnel (rechts), voor twee geteste inplan ngen: cultuur- (G+3) of sportvoorzieningen (G+2) bovenaan en sportvoorzieningen G+1 onderaan (bron: 1010au)

HoofdstukIII/Afdeling3Effectenbeoordeling/C–ontwerpvanBBP/p.350

Hoofdstuk III / Afdeling 3 Effectenbeoordeling / C – ontwerp van BBP / p. 351 OVERIGE VISUALS (DOORSNEDEN)
Hoofdstuk III / Afdeling 3 Effectenbeoordeling / C – ontwerp van BBP / p. 352
Hoofdstuk III / Afdeling 3 Effectenbeoordeling / C – ontwerp van BBP / p. 353
HET ONTWERP
BBP
PRESENTATIE VAN
VAN

PRÉSENTATIE VAN HET ONTWERP VAN BBP

Deze wijziging van het PPAS definieert grafische en le erlijke vereisten, die beide regelgevende waarde hebben. De grafische voorschri en bestaan uit twee toewijzingsplannen. De eerste bestrijkt alle zones van het PPAS en gee de algemene grafische voorschri en van de perimeter weer (met inbegrip van de begane grond en het niveau van de mul modale hub rechts van blok 72 (zone C en D)). De tweede gee alleen de specifieke grafische voorschri en van de begane grond van het sta on voor blok 72 (zone C en D) weer. Deze plannen zijn weergegeven op de volgende bladzijden.

De le erlijke voorschri en begeleiden de grafische voorschri en. Ze zijn gedetailleerd in de pagina's die volgen op de plannen. Voor de bebouwbare zones staat het ontwerp-PPSAS samengevat het volgende toe:

Toegestane percentages per func e per zone en maximaal toegestane oppervlakte per zone

/ percentage/gebied dat niet in het PPAS is vastgesteld Niet door de PPAS toegestane overdracht

Hoofdstuk
Effectenbeoordeling / C – ontwerp van BBP / p. 354
III / Afdeling 3
Func es: ZONE A ZONE B ZONE C ZONE D C1 C2 min. (%) max. (%) min. (%) max. (%) min. (%) max. (%) min. (%) max. (%) min. (%) max. (%) Kantoor 40 50 40 50 40 50 / / Huisves ng 33 / 33 / 33 / / / Voorziening 8 / 8 / 8 / / / / / Handelszaken / 5 / 5 / 5 / / Andere func es / / / / / / / / MAXIMALE TOEGESTANE OPPERVLAKTE (m²) / 114 800 / 49 250 / 119 400 / / / /
Maximaal toegestane doorgangsrechten Ra os Zone A Zone B Zone C C1 C2 Zone D (S)Oppervlakte zone (m²) 11 996 3 942 10 975 2 265 26 380 (E) Maximaal toegestaan vloeroppervlak (m²) 8 400 2 170 8 775 1 900 26 380 E/S max 0,70 0,55 0,80 0,84 1,00

HoofdstukIII/Afdeling3Effectenbeoordeling/C–ontwerpvanBBP/p.355

HoofdstukIII/Afdeling3Effectenbeoordeling/C–ontwerpvanBBP/p.356

De schri elijke voorschri en hebben de volgende inhoud:

1) Algemene voorschriften

Het eerste deel van de schri elijke voorschri en bevat de algemene voorschri en die essen eel zijn voor de verwezenlijking van de doelstellingen van het plan en die van toepassing zijn op alle bouwwerken, verbouwingen en ontwikkelingen die binnen de perimeter van het plan worden uitgevoerd. Deze voorschri en beantwoorden voornamelijk aan de kwaliteitsdoelstellingen van de gebouwen en de openbare ruimten, aan de doelstellingen inzake erfgoed, esthe ek en landschap en ten slo e aan de milieudoelstellingen van het plan;

2) Bijzondere voorschriften betreffende de openbare ruimte

Het tweede deel van de schri elijke voorschri en bevat de specifieke voorschri en voor de zones van de openbare ruimte.

De belangrijkste punten van deze voorschri en betreffen de mul func onaliteit van deze ruimten en met name de integra e van het openbaar vervoer, de vergroening (inclusief het onderhoud/aanleg van open ruimten waar mogelijk) en de ac vering van de openbare ruimten. Evenzo wordt in de voorschri en rekening gehouden met het feit dat de openbare ruimte als een samenhangend geheel moet worden ontwikkeld met als doel het sta onsknooppunt als mul modaal pla orm te versterken.

De meeste openbare ruimten zijn opgenomen in de wegzone. In deze gebieden beoogt de regelgeving te voldoen aan de beginselen van het huidige regionale mobiliteitsplan en milieudoelstellingen te verwezenlijken op het gebied van duurzaamheid van materialen, vegeta e en waterbeheer.

Een openbare ruimte is onderworpen aan bijzondere voorschri en in opleggende vorm die de bijzondere voorschri en voor de wegzones specificeren:

- Voor het Bolivarplein (verlenging van de Simon Bolivarlaan tussen de Koning Albert II-laan en het tracé van blok 72) is het de bedoeling te voldoen aan de behoeften van een evenwichtige organisatie tussen openbaar vervoer en actieve vervoerswijzen, met inachtneming van de doelstellingen inzake behoud van open terrein, maximale vegetatie en geïntegreerd waterbeheer.

Voor twee openbare ruimten gelden bijzondere voorschri en buiten de wegzone:

- Het gebied “Vooruitgang” (de ruimte langs het spoor aan de overzijde van de noordelijke toegangshelling tot het Gare du Nord vanaf de onderdoorgang Quatrecht) is het de bedoeling deze ruimte te consolideren als openbare ruimte voor recreatieve doeleinden en de ecologische continuïteit op dit punt van de perimeter te bevorderen. Indien nodig maakt de regelgeving de installatie van apparatuur van collectief belang mogelijk, waaronder met name infrastructuur in verband met mobiliteit.

- Ten slotte wordt de (bestaande) Albert II-parkzone zoals bepaald in het PRAS gehandhaafd.

3) Bijzondere voorschriften betreffende de bouwterreinen

Het derde deel van de le erlijke voorschri en bevat de bijzondere voorschri en met betrekking tot de bouwzones.

Deze omva en de specifieke voorschri en voor de 4 zones van het plan die overeenkomen met de blokken voor hun deel van Schaarbeek, alsmede de bovenliggende voorschri en die de voorschri en specificeren voor bepaalde delen van de bouwzones waarvan de bestemming essen eel is voor de algemene samenhang van het plan.

De 4 bouwzones zijn als volgt:

- Zone A - blok 68 wordt begrensd door de Simon Bolivarlaan, de Koning Albert II-laan, het Solvayplein en de Progrèsstraat.

- Zone B - een deel van blok 71 wordt begrensd door de Koning Albert II-laan, de Simon Bolivarlaan, de Progrèsstraat en de gemeentegrens met de gemeente Sint-Joost-ten-Node.

Hoofdstuk III / Afdeling 3 Effectenbeoordeling / C – ontwerp van BBP / p. 357

- Zone C - een deel van blok 72 wordt begrensd door het deel van het Solvayplein dat in het verlengde ligt van de Rue de Quatrecht en de doorgang onder de sporen, de voormalige Rue du Progrès die langs het Gare du Nord loopt aan de westelijke gevel, de gemeentegrens met de gemeente Sint-Joost-tenNode en de Rue du Progrès. Zone C is verdeeld in een C1-zone, die overeenkomt met de door het CCNgebouw ingenomen ruimte (waarvoor op 9 mei 2022 een ontmantelingsvergunning is verkregen en waarvan de uitvoering is begonnen), en een zone C2, bestaande uit het gedeelte van het Solvayplein dat grenst aan de bebouwde kom en de noordelijke toegangshelling tot de ondergrondse parkeergarage.

- Zone D - een deel van blok 72, dat de ruimte omvat die wordt ingenomen door het Noordstationgebouw en de spoorwegzone.

Pour chacune des zones sont définies les affecta ons (superficies maximales et répar ons des fonc ons (des na ons) dans la zone exprimée en pourcentage des superficies de plancher bâ es), les implanta ons et les gabarits.

En ce qui concerne les zones A, B et C1, la répar on des fonc ons répond aux objec fs de mixité iden fiés à l’échelle du quar er et visés par les instances régionales et communales.

La fonc on logement est confortée dans le périmètre par rapport au PPAS ini al puisqu’un pourcentage minimum doit être a eint. Ce e fonc on est équilibrée avec des fonc ons économiques diversifiées : bureau, commerces et ac vités produc ves de bien immatériels et/ou de type ar sanal. La fonc on bureau dispose d’un seuil minimum en termes de programma on rela vement élevé afin de maintenir un pôle de bureau d’importance régionale tel que visé par le PRDD et le PRAS. Les fonc ons engendrant des flux de véhicules lourds importants tels que le commerce de gros et les ac vités produc ves de biens matériels ont été exclues afin de ne pas augmenter la pression sur les voiries situées à proximité de la gare. Enfin, les établissements hôteliers sont également autorisables.

La zone C2 pourra être occupée au RDV par l'espace nécessaire au retournement des bus desservant la gare. La réduc on de l’emprise de ce retournement sera recherchée afin de libérer au maximum la zone pour d’autres usages. Afin de garan r une ac vité publique qualita ve sur tous les bords de cet espace et son intégra on dans les parcours urbains tant au RDV qu’au RDG, un équipement d’intérêt collec f ou de service public peut être construit notamment en rehausse du retournement bus. La toiture de ce bâ ment pourrait être accessible et accessoire à la fonc on d’équipement.

La par e non bâ e de la zone C2 est des née à être aménagée en espace public végétalisé disposant de pleine terre.

Concernant la zone D (gare) etzone dechemin de fer, les prescrip ons du PPAS ne modifient pas les prescrip ons du PRAS en termes d’affecta ons, à savoir zone administra ve et zone de chemin de fer, sans autres précisions. En termes de gabarits, pour les zones A et B, l’objec f est de s’inscrire dans la con nuité du plan Manha an : les gabarits élevés existants doivent être globalement maintenus et leur rénova on est encouragée pour des enjeux de circularité. Les gabarits autorisables sur ces zones sont de maximum 110m (hauteur sous corniche). Les autres gabaritsautorisablessurceszonessontpluslimités(maximum50m)afind’observeruneruptureentrelesgabarits élevés, le reste de l’îlot et les îlots avoisinants.

Pour la zone C1, les gabarits maximums autorisables sont iden ques à ceux des bâ ments élevés situés sur les zones A et B. Pour la zone C2, les gabarits autorisés sont en rupture avec les gabarits sur les zones C1 et A. Ils doivent perme re la transi on avec les bâ ments hauts alentours (en zone C1 et au niveau de la Résidence Nord, place Solvay).

Pour la zone D (la gare du Nord) les modifica ons de gabarits qui pourraient être permises doivent respecter les caractéris ques patrimoniales de la gare ainsi que les percées visuelles obligatoires reprises dans le plan.

En termes d’implanta ons, les principes appliqués aux zones A et B visent à a eindre une réduc on de l’emprise au sol dans le cas de nouveaux projets sur ces zones. L’objec f poursuivi est de réaffecter ces espaces aux planta ons, à la desserte des bâ ments et à l’ac va on des rez-de chaussée dans une op que de durabilité.

La zone C1 est divisée en 2 zones où l’implanta on de construc ons est autorisée. Ces deux zones s’implantent symétriquement de part et d’autre de l’entrée principale de la gare du Nord. Entre ces deux implanta ons se trouve le hub mul modal et la dalle projetée du rez-de-gare, correspondant à la zone d’usage public sur sol privé sur le plan d’affecta on correspondant.

Hoofdstuk III / Afdeling 3 Effectenbeoordeling / C – ontwerp van BBP / p. 358

La zone C2 est des née à accueillir une ac vité publique qualita ve : elle doit perme re la construc on d’un équipement en rehausse du retournement bus, dans le cas où l’emprise combinée du retournement bus et des trémies de parkings le perme ent, l’aménagement d’un espace public qualita f et appropriable pour le quar er. L’emprise autorisée pour la construc on (1.900m²) doit perme re de développer un équipement d’ampleur ainsi que d’intégrer les espaces nécessaires à son accroche aux différents niveaux d’espaces publics qui le bordent : le niveaudesespacespublics(RDV) côtéruedu ProgrèsetPlace Solvay,le niveau RDGdu côté CCN etruesuspendue (passage Progrès). En fonc on de l’emprise du retournement bus et trémie de parking du bâ ment CCN, les surfaces au sol restant libres devront être aménagée en espace public végétalisé.

Enfin les emprises sur la zone D visent essen ellement le main en de la situa on existante. Les zones en surimpression qui s’appliquent aux zones construc bles et en précisent les prescrip ons sont les suivantes :

 Le hub multimodal couvre au RDV les parties du bâtiment C1 devant rester accessibles pour les fonctions de transports publics, à savoir, la zone située dans l’axe de l’entrée centrale de la gare (non constructible à partir du niveau RDG) et la zone longitudinale longeant la voie sous dalle (ancienne rue du progrès) ; la zone hub multimodal comprend également l’espace entre ce bâtiment et le bâtiment de la gare (voie sous dalle) et enfin la partie de la place Solvay nécessaire au retournement des bus. Les prescriptions pour cette zone visent à assurer un aménagement optimal pour des transports publics, à savoir : l’organisation des terminus de bus De Lijn et STIB, le fonctionnement de la gare (accès usagers et logistiques, kiss and ride, taxis) et l'usage par les modes actifs (accès et passages vélos, accès piétons), en ce comprend les espaces techniques et logistiques nécessaires aux opérateurs de transports.

 Les zones de recul45 concernent les espaces situés entre la limite du domaine public et les fronts de bâtisse. Elles concernent les îlots 71 et 68. Les prescriptions visent à maintenir la présence de végétation dans ces zones mais également à contribuer à la qualité des espaces publics qu’elles bordent (boulevard du Roi Albert II, Place Simon Bolivar, rue du progrès) en favorisant la mobilité active et contribuant à l’activation des rez-de-chaussée.

 Les zones d’usage public sur sol privé concernent les zones de circulation publique sur la zone C1 mais également sur l’espace situé entre les zones C et D. Elles visent principalement à maintenir l’accès public à la gare et les connexions entre la gare et les autres arrêts de transports publics. Les prescriptions qui s’y appliquent visent à garantir l’accessibilité de ces espaces aux PMR et modes actifs.

Les surimpressions suivantes donnent des prescrip ons quant à certains aménagements imposés dans les zones qu’elles concernent :

 les connexions verticales visent à imposer les nécessaires liaisons entre le RDV et RDG ainsi qu’avec les espaces publics alentours

 les percées visuelles obligatoires inscrivent les ouvertures dans les zones bâties nécessaires à la création/préservation des axes paysagers à valeur patrimoniale ;

 les limites de gabarits précisent les gabarits maximum autorisables pour les différentes zones.

 Le passage sous voies Quatrecht, visent essentiellement à améliorer son aménagement en garantissant un sentiment de sécurité plus important qu’en situation existante.

45 Notons que les prescrip ons des zones de recul du PPAS s’écartent de celles du RRU. A ce sujet, les disposi ons générales du présent PPAS men onnent que les prescrip ons des règlements régionaux et communaux en vigueur au moment de la délivrance des permis et cer ficats, pour les projets situés au sein du périmètre du PPAS n° 19, ne sont d’applica on sur le territoire couvert par le présent Plan que dans la mesure où elles ne sont pas contraires à ses prescrip ons réglementaires.

Hoofdstuk III / Afdeling 3 Effectenbeoordeling / C – ontwerp van BBP / p. 359

VERANTWOORDING VAN DE GEMAAKTE KEUZEN TEN OPZICHTE VAN DE AANBEVELINGEN

In de volgende tabellen zijn de aanbevelingen overgenomen van de delen B en C van dit deel (analyses van de programmatorische en ruimtelijke alterna even), die verduidelijken via de volgende kleurencode of rekening werd gehouden met de aanbevelingen voor de opstelling van het ontwerp van BBP en hoe en in voorkomend geval de redenen uiteenze en waarom de aanbevelingen niet werden gevolgd.

Hierbij werd de volgende kleurcode gebruikt:

Geïntegreerd in de voorschri en van het ontwerp van BBP;

Geïntegreerd in de begeleidende maatregelen van het ontwerp van BBP;

Niet opgenomen in de voorschri en noch in de begeleidende maatregelen, maar wel mogelijk gemaakt;

Niet geïntegreerd in het ontwerp van BBP of onmogelijkheid van realisa e;

Niet relevant (buiten de grenzen van het BBP, buiten het reglementaire kader van een BBP (onderwerpen of stappen) of in verband met andere, niet-gevolgde aanbevelingen)

Hoofdstuk III / Afdeling 3 Effectenbeoordeling / C – ontwerp van BBP / p. 360

AANBEVELINGEN IN VERBAND MET DE ANALYSES VAN DE PROGRAMMATORISCHE ALTERNATIEVEN

Bestemmingen

RP1

Om de bouwhoogtes in het huizenblok CCN te beperken en er de kwaliteit van de binnenruimtentegaranderen,ofweldegrondinnametevergroten,wattenkostegaatvan andere criteria (open ruimten, bodem, water, ecologisch netwerk, ...), ofwel de vloeroppervlakten te verkleinen die worden toegekenddoor hetprogramma (minstens de alterna evendiedekleinstevloeroppervlaktentoestaanvoorhethuizenblokCCN).

Strevennaareenverminderingvandehuidigekantoorvoorraadmet20tot35%,d.w.z.dat 200000tot246000m²kantooroppervlaktewordtbehouden.

In gebied C1 mag de grondinname niet worden vergroot, aangezien dit ten koste van de visuele doorkijken zou gaan die werden gecreëerd vanaf de Bolivaras en de kleine Vooruitgangstraatinderich ngvanhetsta on.

Degewestelijkedoelstellingenintermenvanverdich ngvan hethuizenblokCCNwordeninhetBBPbehouden.

RP2

RP3

VoorhethuizenblokGalaxy:dekantorenalsdusdanigbehoudenofdekantoren renoveren betekent minder verbruik over een periode van 20 jaar (tussenop e voor wat de impact betre )danwanneerereengemengdprogrammazouwordenontwikkeld.

Hetmaximalepercentagevoorkantorendatinhetgebiedis toegelaten(endatop50%werdvastgelegd),vloeitvoortuit de gewestelijke doelstellingen. Er werd overigens ook een minimale drempelwaarde gehanteerd met het oog op het behoudvaneenkantoorpoolinditgebieddatbijzondergoed bereikbaarismethetopenbaarvervoer.

RP4

Eenvoldoendegrootaandeelwoningenopdeschaalvanhetprojectteverzekerenomerde levendigheid van te verzekeren (minstens 20%), maar de totale produc e van woningen beperken gezien de specifieke typologie en het aantal woningen met een vergelijkbare typologiedieeldersindewijkwordenverwacht.

Hetminimalepercentagevoorwoningendatinhetgebiedis toegelaten(endatop33%werdvastgelegd),vloeitvoortuit degewestelijkedoelstellingen.

Na de besprekingen met de gewestelijke operatoren werd geen enkele plafondwaarde ingevoerd, maar er zal wel rekening moeten worden gehouden met minimumwaarden dievoordeanderefunc esmoetenwordennageleefd.

RP5

De produc eac viteiten beperken tot de produc e van immateriële goederen of tot ambachtelijkeac viteitendieverenigbaarzijnmetdewoning-endekantoorfunc eendie voorhunwerkinggeenzwaarverkeerimpliceren.

RP6

De oppervlakten voor voorzieningen en/of handelszaken en/of ambachtelijke ac viteiten verminderen, zodat deze func es enkel de onderste 2 verdiepingen van de gebouwen innemen (3 in het huizenblok CCN gezien het poten ële bestaan van 2 benedenverdiepingen).

Er werd beslist om voor deze secundaire func es de mogelijkheidopentelatenomzichopandereverdiepingen te ves gen - en dan meer bepaald hogere verdiepingen (roo op). Dat standpunt hee een invloed gehad op de toegelatenpercentages,waarvoorgeenduidelijkeafspraken

HoofdstukIII/Afdeling3Effectenbeoordeling/C–ontwerpvanBBP/p.361

RP7

De handelszaken (en ambachtelijke ac viteiten met verkoop) op de benedenverdiepingen lokaliserenende2e(en3e)verdiepingindiennodigtegebruikenvoordevoorzieningen,met behoudvandeingangenopstraatniveau.

werden gemaakt over hun inname op de geplande oppervlakten van de benedenverdiepingen. Voor de handelszakenishetvastgelegdepercentagevan5%weleen plafondwaarde. Voor de ambachtelijke ac viteiten zal de ontwikkelingopeennatuurlijkemanierwordenbeperktdoor devraagnaardezeac viteitenendoordeandereaanwezige func es.

Dit wordt mogelijk gemaakt door het BBP, maar wordt niet opgelegd. Er werd de voorkeur aan gegeven om de projecten, a ankelijk van de soorten handelszaken, voorzieningen en ambachtelijke ac viteiten die er concreet worden ontwikkeld, de kans te bieden om zich zo coherent mogelijk te organiseren. De voorschri en en de begeleidende maatregelen vermelden daarentegen de doelstellingenvanac veringvandebenedenverdiepingen.

RP8

Zorgen voor minstens 18 000 m² voorzieningen, het bussta on niet meegerekend, om te voldoenaandebestaandebehoe eaanbuurtvoorzieningenenaandebehoe ediewordt geïnduceerddoordevastgoedontwikkelingvanhetgebied.

RP9

Gezien de centrale ligging en de uitstekende bereikbaarheid van het gebied, bijkomende oppervlaktenvoorvoorzieningenvoorzienomtevoldoenaandebovenlokale/gewestelijke behoe en.

NB: Hier moet nogmaals worden gewezen op de aandachtspunten in verband met de projectdragersendeontwikkelingvanscholen.

RP10

Om de winstgevendheid van de handelszaken te verzekeren en in een gemiddeld commercieelaanbodteblijven,zoudendevloeroppervlaktenvandehandelszakenmoeten worden afgestemd op de ontwikkelde woonoppervlakten (handelsoppervlakten moeten gelijk zijn aan 4 tot 11% van de oppervlakten voor de woningen, uitgaande van 2,17 huishoudensper100m²woningen)

DitwordtglobaalgenomenmogelijkgemaaktdoorhetBBP, maar wordt niet opgelegd. Het BBP legt een maximum van 5% handelszaken op voor de gebieden A, Ben C1.Afgezien vandieplafondwaardewerderdevoorkeuraangegevenom deprojectverantwoordelijkendemogelijkheidtebiedenom het aantal handelszaken die als noodzakelijk worden beschouwd, te scha en a ankelijk van de evolu e van de marktendeandereconcreetontwikkeldefunc es.

RP11

Om concurren e met de handelspool van de Nieuwstraat te vermijden, zou bovendien vooral aan de dagelijkse behoe en moeten worden voldaan met de ontwikkeling van buurtwinkels, diensten en horecazaken, in plaats van kledingwinkels en andere grote handelszaken.

HoofdstukIII/Afdeling3Effectenbeoordeling/C–ontwerpvanBBP/p.362

RP12

Nietmeerderesupermarktenontwikkelen(~1000m²),maardeoppervlaktenbeperkenper project.

Aanvullendevoorschri en

Gediversifieerdewoningenontwikkelen:grotewoningentegen‘middelhoge’prijzen(tussen deprijzen/huurprijzenvandesocialewoningendieindewijkalgoedvertegenwoordigdzijn en de prijzen/huurprijzen die worden voorgesteld in de nieuwe ontwikkelingen langs het kanaal).

RP13

Omdat de prijzen door de markt worden bepaald, is deze aanbeveling aangaande de huurprijzenmoeilijkuittevoeren.Datkanwaarschijnlijkalleenviadeontwikkelingvangoed omkaderde openbare woningen. De klassieke vastgoedprak jken moeten daarbij goed wordenomkaderdomrealis scheenduurzameontwikkelingentewaarborgen.

RP14 Toezienopeenkwaliteitsvolleuitvoeringvandenetwerkenindeopenbareruimte

RP15

RP16

RP17

Toezienopeenkwaliteitsvolleopenbareruimtevoordeac eveverplaatsingswijzen

Afwijken van de GSV voor wat het aantal parkeerplaatsen voor de woningen betre : het aantalverminderentot0,37tot0,64parkeerplaatsperwoning.

Deparkeerplaatsenvoordekantorenenproduc eac viteitennietomkaderen(hetBWLKE toepassen).

Comfortabele en beschu e fietsparkeerplaatsen voorzien voor de werknemers van de produc eac viteiten,voorzieningenenhandelszaken.

RP18

RP19

De fietsenstallingen van andere func es behalve woningen wordennietomkaderddoorhetBBP.Hetisaandeaanvrager om het antwoord op de geplande behoe e te verantwoorden, rekening houdend met de voorziene func esendeanderegeldendevoorschri en.

Ervoorzorgendatminstens50%vanhetfietsparkeeraanbodvoordebezoekersbeschutis. Deze aanbeveling is niet in het BBP geïntegreerd, maar dit laatstebeletook nietderealisa eervan jdensdefase van devergunningsaanvragen.

HoofdstukIII/Afdeling3Effectenbeoordeling/C–ontwerpvanBBP/p.363

RP20

Degrondinnamevandeondergrondseparkingsverkleinen:doorzeaftebreken,terhoogte van de gebieden die na de verkleining van de grondinname van de gebouwen zijn vrijgekomen,kunnenopdepercelengebiedenmetvollegrondwordenontwikkeld.

RP21

De ontwikkeling van geïntegreerd bodembeheer in de perimeter aanmoedigen, in samenhangmetdegewestelijkestrategieGoodSoil.

RP22

Zorgenvoordenu getoepassingeneenmaximaalgeïntegreerdbeheervanhetwaterop het perceel (regenwater en opgepompt water als de waterkwaliteit dat toelaat) om zo de algemenelozingeninhetrioleringsnetteverminderen.

RP23

Het overtollige water afvoerennaar de Zenne in plaats van naar de riolering,althans voor zoverdegezondheidstoestandvanhetwaterdattoelaat.

RP24

Ervoorzorgendatopdepercelenbeplan ngwordtontwikkeld.Bijbeplan ngopplaatmoet het substraat voldoende dik zijn om te kunnen worden gelijkgesteld met volle grond (intensiefgroendak).

RP25

Voor het huizenblok Proximus: eerder zware renova e aanbevelen dan a raak en wederopbouw.

RP26

VoorhethuizenblokNorthGalaxy:alswordtgekozenvoorgemengdeprogramma eeerder zwarerenova eaanbevelen(keuzemetdekleinsteimpact) dana raakenwederopbouw (keuzemetdegrootsteimpact).

RP27

Omdat voor dergelijke gebouwen grote oppervlakten en structuren nodig zijn, de vier bestaande torens van het huizenblok North Galaxy en het huizenblok Proximus behouden en indiennodig zware renova e bevorderen metzoveelmogelijk recupera e (hergebruik, recyclage)vandematerialen.

RP28

RP29

Bija raak,geziendekenmerkenvandeaanwezigegebouwen,demonterenvoorzoverde reëletechnischekenmerkenvandebestaandegebouwendattoelaten.

‘Horizontale’ gemengdheid (verschillende func es in eenzelfde gebouw) verhoogt de mogelijkheidtotuitwisselingvanstromentussendefunc es.

Andereaanbevelingenvoordebepalingvanderuimtelijkealterna even,hetvoorkeurscenarioen/ofhetstrategischedeelvanhetBBP

RP30

Het comfort aan de haltes en de leesbaarheid van de intermodale pool verbeteren, alle bushaltes ‘Noordsta on’ op één plaats groeperen en zorgen voor een behoorlijke bewegwijzering en verplaatsingscomfort tussen deze bushalte en de ingangen van de premetroenhetsta on.

HoofdstukIII/Afdeling3Effectenbeoordeling/C–ontwerpvanBBP/p.364

RP31 ErvoorzorgendatdeleveringenkunnenplaatsvindenvanafdeVrachtwagen-Comfort-assen.

RP32

Gebouwen ontwikkelen met variabele hoogten, zodat op meerdere niveaus groendaken kunnen worden ontwikkeld en niet alleen boven op de toekoms ge torens (ontkoppeling tussendebeplan ngopdegrondendebeplan ngopdedaken).

HoofdstukIII/Afdeling3Effectenbeoordeling/C–ontwerpvanBBP/p.365

AANBEVELINGEN IN VERBAND MET DE ANALYSES VAN DE RUIMTELIJKE ALTERNATIEVEN

Bouwprofielen:

AanbevelingenvanhetMER statuut Verantwoordingindiennietgevolgd

RS1

Hetbehoud vande 4 bestaande torens in het huizenblok North Galaxy en het huizenblok Proximus mogelijk maken en aanmoedigen (ze opnemen in de geschikte volumes voor hoogbouw).

RS2

In het huizenblok North Galaxy en het huizenblok Proximus enkel hoogbouw mogelijk maken waar die al bestaat om grote interven es in de ondergrond en dus de risico’s verbondenaandecomplexiteitvandeondergrondtebeperken.

RS3

In het huizenblok CCN de ondergrondse structuren van CCN en de metro als basis voor bovengrondse bouwwerken integreren. Aangezien de ondergrond weinig geschikt is, de ontwikkelingvannieuwegebouwenbuitendezestructuurbeperken.

RS4

IndeAlbertII-laaneendoorlopendbouwfrontbehouden(torengebouwenverbondendoor lagevolumes)omerdewindtegentehouden(betercomfortophetBolivarplein).

RS5 De hoogten in west-oostelijke rich ng geleidelijk aan verlagen om te vermijden dat het Noordsta onwordt‘verple erd’doortehogegebouwenindeonmiddellijkeomgeving.

RS6

Rekeninghoudenmethetrisicovangeluidverspreidingindehuizenblokkenalsdesokkels vanhethuizenblokProximusenhethuizenblokNorthGalaxywordendoorbroken.

RS7

Eenbouwfrontontwikkelenaandekantvanhetsta on(zelfslagerdandegebouwenmeer in het westen), dat een scherm moet helpen vormen tegen het spoorweggeluid (en poten eelhetgeluidvanhetbussta on)voordegebouweninderestvanhetgebied.

RS8

DekenmerkendehogeschaalvanhetNoordpleinvrijwarenenzorgenvooreenevenwicht tussendehogeendelageschaalopdeopenbarepleinen(Bolivarplein,Bolivarvoorpleinen Noord-en/ofSolvayplein);eenmuureffectvermijdendoordebouwprofielentevariërenen beperkingen op te leggen voor het doorlopen van de geschikte volumes (eerder ‘toreneffect’dan‘blokeffect’).

De aanwezigheid van een symmetrie aan weerszijden van het Bolivarvoorplein kan het uitzichtvanafdelaanaccentuerenenbenadrukthetsta onendeSint-Mariakerk(erfgoed).

RS9

HoofdstukIII/Afdeling3Effectenbeoordeling/C–ontwerpvanBBP/p.366

Eenvandevoorschri enbepaaltdatdeopenruimtetussen de gebouwendie aanbeide zijdenvan hetBolivarvoorplein worden ontwikkeld, op de toegang tot het sta on moet gecentreerd zijn. De ontwikkelde gebouwen zullen niet verplicht dezelfde hoogte moeten hebben, maar hun

RS10 De hoogten van de gebouwen rond het Noordplein moeten worden afgestemd op de afme ngenvanhetpleinendesta onstorenherwaarderen.

RS11

Bijde lokalisa evandehoogbouwrekeninghoudenmetde onderlinge afstandtussende gebouwen(inkijk)endeafstandtotdebestaandegebouwenenmetdeslagschaduwenop deopenbareruimten,tussendegebouwenenopdebestaandegebouwen.

Debouwdieptenmoeteneennatuurlijkelich nvalgaranderenopalleverdiepingen,ookop delagere,vooralle‘leefruimten’(behalveingangen,technischeruimtenenz.).

bouwfrontenzullendemogelijkheidmoetenbiedenomhet sta ontecentreren. De volledige volumetrie jdens de fase van de ontwerpen (opschaalvandehuizenbouw)beoordelen,inhetkadervan deinstruc evandevergunningsaanvragen.

RS12

Vooreenop malemodulariteitvanderuimtenmagdebouwdieptevannieuwegebouwen nietmeerbedragendan18m.

Ruimtelijkeorganisa e:

RS13 De oost-westelijke visuele link tussen het Bolivarplein en het sta on Bolivar moet worden vrijgemaakt.

Demaximaledieptevan22mblij aanvaardbaarintermen van bewoonbaarheid middels andere inrich ngsomstandigheden, die in andere voorschri en en aanbevelingen van het plan worden behandeld. Die diepte biedt meer flexibiliteit in het geval van reconversie naar kantoorruimten.

RS14

Het Noordplein, dat betere intrinsieke kenmerken hee dan het Solvayplein (grote natuurlijkelich nval,beterwindcomfort...)behoudenalsbredeopenademruimterondde sta onstoren en het plein ontwikkelen voor het publiek, zorgen voor een op male intermodaliteit(éénenkelehalteaanhetbussta oneneenvandehoofdingangenvanhet sta on).

RS15

Geen gebouwdvolumevoorzienindeop maleafslagzonevandetramopdehoekvanhet Noordplein:alsdeuitritvandeondergrondseparkingmeernaarachterenwordtgeplaatst, kandetrameengroterebochtnemenenmaakthijminderlawaai.

RS16

RS17

Alseengegroepeerdbussta onmogelijkis,hetSolvaypleinontwikkelenalseenkwaliteitsvol engeac veerdplein.

Alshetbussta onruimteinneemtophetSolvayplein,ditpleinnietbedekkenmeteenplaat boven de kerende bussen, een openbare ruimte die niet is verbonden met de grond

HoofdstukIII/Afdeling3Effectenbeoordeling/C–ontwerpvanBBP/p.367

(ongeveer zoals in de huidige toestand, nega ef), maar een laag gebouw ontwikkelen waarvan de buitenruimten toegankelijk zijn voor het publiek en verband houden met een ac viteit(openingsuren).

DebreedtevanhetBolivarvoorpleinafstemmenopdehoogtevandeomliggendegebouwen om hetoverweldigingseffect ende windeffectente vermijden(tunneleffectversterkt door dehoogtevandeomliggendegebouwen)endetoegangentotdemetroteverduidelijken, hethiërarchischestatuutbeves gen(hoger statuutdande kleineVooruitgangstraaten de binnenstraat).

De in het plan voorgestelde breedte van 30 m is een minimale breedte. Maatregelen waarmee de windeffecten opdebebouwingenindeopenbareruimtekunnenworden gemilderd, zijn in de voorschri en en de maatregelen geïntegreerd.Devoorgesteldebreedtebiedtdemogelijkheid om de uitzichten op het sta on te omkaderen en de leesbaarheid ervan te verzekeren. De leesbaarheid van de toegangen tot de metro is in de voorschri en en de begeleidendemaatregelenvoorzien.

Devolledigevolumetrie jdensdefasevandeontwerpen(op schaal van het huizenblok) beoordelen, in het kader van de instruc evandevergunningsaanvragen.

Het niveauverschilvanwegededoortochtvandebussenverwijderentussenhetBolivarplein endemetro-ingang,desta onsingang(stadsniveau)endefietsparking(Bolivarvoorplein).

Sommige voorschri en zijn erop gericht om de nega eve impactvandatniveauverschiltebeperken,zonderdaarvoor te verplichten of voor te stellen om dat niveauverschil volledigwegtewerken.

De begeleidende maatregelen voorzien een globale mobiliteitsstudie waarin de haalbaarheid en de technische voorwaarden van de niveauverschillen zouden moeten zijn opgenomen.Dieaanbevelingmoetookwordengeverifieerd op het niveau van de projecten met betrekking tot de ac viteiten die op het stadsniveau zijn geïnstalleerd en de inrich ngsprojectenvanopenbareruimten.

De voorkeur geven aan een onoverdekt Bolivarvoorplein op het stadsniveau (korte plaat vanafdesta onshalzodatindiennodigbovendebussenkanwordengelopen).

Degrondinnamevandeinhetplanvoorgesteldeplaatsisde maximalegrondinname.Devoorschri eninverbandmetde ver cale rela es bieden de mogelijkheid om de nodige omstandighedenvoordeopeningvandieplaatuittevoeren. Dat wordt aan het project gelaten, in het kader van de instruc evandevergunningsaanvragen.

HoofdstukIII/Afdeling3Effectenbeoordeling/C–ontwerpvanBBP/p.368

RS18 RS19 RS20

RS21

Deinterven evoorwaardenvandeDBDMHmoetenworden gegarandeerd ter hoogte van het sta onsniveau (mogelijkheidomrechtsomkeertemaken).

Debinnenstraatverbreden. De uitlijning behouden op de dragende structuur van CCN/metro in de ondergrond lijkt vanuittechnisch oogpunt eenredelijkeop etezijn.

Biedtdemogelijkheidomdebebouwbaregrondinnamevan hethuizenblokCCNniettebeperken.

RS22

Debinnenstraatwordtbijvoorkeurnietoverdekt.

RS23

HetMedicalCenternietmeteenloopbrugmethethuizenblokCCNverbinden.

DebreedtevandekleineVooruitgangstraataanpassenaan dehoogteendelengtevande omliggende gebouwen (een canyonstraat en overweldigingseffect vermijden) en aan de vervoerswijzendieerwordentoegelaten(a ankelijkvandeorganisa evanderestvanhet gebied).

De interven evoorwaarden van de DBDMH en voor de toegangtotdesta onshalmoetenwordengewaarborgd.

Onbekende factoren in verband met de technische lee aarheidvandeverwijderingvandeoverdekkingvande binnenstraat (structurele implica es) en de ruimtelijke organisa evanhetopenbaarvervoer.

RS24

RS25

Beplan ng in volle grond ontwikkelen op de hoeken van het huizenblok Proximus en het huizenblokNorthGalaxy.

Het grootste gedeelte van de kleine Vooruitgangstraat bevindtzichophetgrondgebiedvandegemeenteSint-Joost endeverbredingtot20mhee geenzinalszealleenophet grondgebied van Schaarbeek wordt voorzien. De voorschri en in verband met de inrich ng van de achteruitbouwzonesbiedenevenweldemogelijkheidomde voorhetpubliektoegankelijkeruimteteverbreden,zoalsdit hetgevalisinhethuizenblokNorthGalaxy.

Een van de voorschri en legt een maximale beplan ng in volle grond van het Bolivarplein op, maar de precieze gebiedenwordennietgespecificeerd.

Aan de projecten van de openbare ruimte de mogelijkheid bieden om de beplante gebieden zoveel mogelijk op het Bolivarpleintelokaliseren.

RS26 OpdeSolvay-asdebestaandebeplan nginvollegrondbehouden.

RS27 Beplan ngvoorzienopdeKoolbranders-as.

RS28

OphetBolivarpleindeontwikkelingopleggenvaneengrotegroeneruimte.

Een van de voorschri en legt een maximale beplan ng in volle grond van het Bolivarplein op; de juiste groo e ervan

HoofdstukIII/Afdeling3Effectenbeoordeling/C–ontwerpvanBBP/p.369

RS29

De achteruitbouwstroken van het huizenblok Proximus en het huizenblok North Galaxy benu en voor de biodiversiteit (bij behoud van het niveauverschil van de inri en of bij a raakvandeondergrondseparkings,tweeop esdieeendiksubstraatmogelijkmaken)of deopenbareruimte(verbredingvanhetBolivarplein).

Verplaatsingen:

RS30

DeeindhalteophetBolivarpleinnietbehouden(allesverenigeninhetsta on)endehalten uniformiseren.

RS31 GeenpersonenwagenstoelatenophetBolivarplein(voormeerruimteenminderhinder).

Deparkeerplaatsenopdeopenbarewegschrappen(behalvevoortaxi’s).

wordtnietgespecificeerd,aangezienhetgebiedindeeerste plaatsmul func oneelzalzijn.

Aan de projecten van de openbare ruimte de mogelijkheid bieden om de beplante gebieden zoveel mogelijk op het Bolivarpleintedimensioneren.

RS32

Het bussta on concentreren (alterna ef 2) om de verdere organisa e van de wijk te vergemakkelijken.

HetBBPspreektzichindiezinuitvoordeVooruitgangstraat enhetBolivarplein,watzinhee rekeninghoudendmetde ambi esinverbandmetdieruimtenenwatdemogelijkheid laatopdeAlbertII-endeSolvay-as.

Hetvoorstelvanhetgegroepeerdebussta onisgrotendeels buitenhetBBPgelegen.

RS33

RS34

Demogelijkheidvoorzienomdeinterna onalebusseninhetgebiedteplaatsen

RS35 Hetkruisenvandestromen(OV/voetgangersboulevard/fietsers)beperken.

RS36 Devoetgangersboulevarddoortrekkenophetcentralevoorpleintotaandeingangvanhet sta on, zorgen voor een universele, comfortabele, gelijkvloerse, duidelijke toegang tot de

Detechnischehaalbaarheidomhetvolledigebussta onten zuiden van de Bolivar-as te groeperen werd niet beves gd door de voorstudies die De Lijn binnen de ming van het dossier uitvoerde. Bovendien lijkt deze op e de minst guns ge voor de inrich ng van een uitbreiding van het bussta onindienditnodigblijkt.

Het BBP is niet bedoeld om dit onderwerp te behandelen, maar de voorschri en bieden de mogelijkheid om het interna onalebussta oninhetgebiedteposi oneren.

HoofdstukIII/Afdeling3Effectenbeoordeling/C–ontwerpvanBBP/p.370

mobiliteitshubinzijngeheel,vooraltotdelagergelegenmetro-ingangen,desta onshalen defietsparkingvandeNMBS.

RS48 Dein-endeuitri envoorvrachtwagens/leveringeninallehuizenblokkenconcentrerenop deAlbertII-endeSolvay-as,ervoorzorgendathetlossenbinnendehuizenblokkengebeurt.

RS49 De toegangen tot de ondergrondse parkings concentrerenop de AlbertII-as en de Solvayas.

RS50 Hetbussta on(randen)afsluitenomdevoortgebrachtegeluidshindertebeperken.

RS51

In voorkomend geval de metro-ingang toegankelijk maken vanaf het stadsniveau van het gebouw dat wordt ontwikkeld op het Noordplein of de bushalten in de buurt van het Bolivarvoorplein,endusindebuurtvandemetroenhetsta on,inrichten.

RS52 Zorgenvooreenduidelijkebewegwijzeringomdeintermodaliteittebevorderen

RS53 inallegevallendetoegankelijkheidgaranderenvoorPBM's(ookalseenlagerniveauwordt behoudenvoordedoorgangvandebussen).

RS54 Zorgenvoor eenrechtstreekseverbinding tussenhetsta onendemetro(toegangophet stadsniveauingevalvaneenkorteplaatofopsta onsniveauingevalvaneenlangeplaat)

RS55 Via de voorschri en de uitvoering van de MWS en de kwaliteit ervan garanderen (voetgangersboulevardmetbeplan ng,kwaliteitvandegrondbedekkingen...).

RS56

In een kleine mobiliteitsstudie de mogelijkheden onderzoeken om in de Matheusstraat omgekeerd eenrich ngverkeer in te voeren, zodat ze niet meer kan worden gebruikt als bistraject(ditsluitaanbijdedoelstellingomhetdoorgaandverkeertussendeNoordtunnel endeAlbertIi-laanteverminderen).

De uitvoerbaarheidsvoorwaarden van de 3 mogelijkheden voor het bussta onbestuderen (exacte lengte van de beschikbare perrons, analyse van de structuren en eventuele lastenverschuivingindiennodig,hellingvandeperrons,uitvoerbaarheidvandemanoeuvres, in-enuitri envoorderijtuigen,comfortvandechauffeursaandehalte...)

RS57

HoofdstukIII/Afdeling3Effectenbeoordeling/C–ontwerpvanBBP/p.371

De technische haalbaarheid van de 3 mogelijkheden werd nietbeves gddoor devoorstudiesdiedoordeoperator De Lijnwerdenuitgevoerd.De mingvanhetdossierboodniet demogelijkheidomgedetailleerdestudiesuittevoeren.De begeleidende maatregelen voorzien een globale mobiliteitsstudie, die op een gedetailleerde manier de haalbaarheidsvoorwaarden van die 3 mogelijkheden zou moetenonderzoeken.

Func es:

RS37

Deoriënta eendelich nvalvoordewoningendiversifiëren,enkelewoningenvoorzienin dehoogte(horizontaal)enanderever caal(meeraankoopmogelijkhedenenduseenruimer doelpubliek), verbonden met de grond (onder de 5e verdieping), in ‘contact’ met de openbare ruimten op de rus gere plaatsen (Bolivarplein, gevel die uitgee op een ‘binnenterrein’vaneenhuizenblok...)

Het aantal woningen binnen een afstand van 50 m van de sporen beperken (daar de voorkeurgevenaaneconomischeac viteiten),behalvealseenbouwfrontdegeluidshinder beperkt.

Devoorschri enendemaatregelenintermenvankwaliteit vandewoningenengeluidentrillingengaanindierich ng, zonderdebufferzonevan50mtevermelden.

RS38

RS39

Ervoor zorgen dat alle woningenbeschikkenover een rus ge gevelenprivébuitenruimten bijvoorkeurookaandezegevelplaatsen.

Devolledigevolumetrie jdensdefasevandeontwerpen(op schaal van het huizenblok) beoordelen, in het kader van de instruc evandevergunningsaanvragen.

Weinig realis sch in termen van concrete haalbaarheid, gezien de luidruch ge context van de wijk. Toch gaan de voorschri enendebegeleidendemaatregelenintermenvan kwaliteitvandewoningenvanhetgeluidentrillingenindie rich ng.

RS40 OphetBolivarpleinvoorzieningengroeperenomhetpleinteac veren,doordemogelijkheid tevoorzienomergrotevoorzieningenteontwikkelen.

RS41 In het hele gebied zorgen voor een gemengdheid van func es (handelszaken en (kleine) voorzieningen)opdeondersteverdiepingen.

RS42

Degevoeligevoorzieningen(bijvoorbeeldscholenofgezondheidscentra)inderus gerzones (binnenterrein van huizenblokken, Bolivarplein) plaatsen, a ankelijk van de specifieke behoe en(natuurlijkelich nvalindebuitenruimten...).

De handelszaken aan de straatkant lokaliseren en de voorzieningen erboven of erachter, naargelangdemogelijkheden,metingangenaandestraatkant.

RS43

HoofdstukIII/Afdeling3Effectenbeoordeling/C–ontwerpvanBBP/p.372

Aan de projecten overlaten om, a ankelijk van de handelszaken en de soorten voorzieningen die concreet worden ontwikkeld, om zich zo coherent mogelijk te organiseren. De voorschri en en de begeleidende maatregelen vermelden de doelstellingen van de ac vering van de benedenverdieping, die door deze aanbeveling wordenbedoeld.

Hetstadsniveauaandekantvanhetsta onac veren,zowelinhetnoordenalsinhetzuiden, om debinnenstraatteac verenendeverbindingmethetSolvaypleinteversterken.

RS44

RS45

RS46

RS47

Deopera oneleendetechnischehaalbaarheidomdegevel vanhetsta onopRDVteac verendoorfunc es,wordtniet verzekerd. De ac vering blij evenwel mogelijk in voorkomendgeval.

DeKwatrech unnelac verendoorereenfietsparkingtevoorzien. De opera onele en de technische haalbaarheid is niet verzekerd. De ac vering wordt mogelijk gemaakt door de voorschri en,indematevanhetrespectvanderuimtendie nodig zijn voor het verkeer. Er worden maatregelen voorgeschreven die ten doel hebben om het veiligheidsgevoelindetunnelteverbeteren.

EeninfrastructuurontwikkelendiehetterreinvanhetMedicalCenterac veert(voorziening, skatepark...)endieverenigbaarismetdelokalisa etussenopenbareweg,tramsentreinen.

Geen func e die gevoelig is voor geluid en trillingen ontwikkelen boven het bussta on of boveneventuelebochtenvoordetramopdehoekvanhetNoordplein.

Kadastralepercelen/architectuur:

RS58

Rekeninghoudenmethetrisicovangeluidverspreiding/verspreidingvanvervuilendestoffen indehuizenblokkenbijhetdoorbrekenvandesokkelsvanhethuizenblokProximusenhet huizenblokNorthGalaxy.

RS59

RS60

Meerderetoegangentotdefunc esopdebenedenverdiepingenvoorzieneneenporeuze interfacebevorderen(meerdereingangen,transparan eenuitzichtophetinterieur...).

Verschillende soorten woningen ontwikkelen (koopwoningen, huurwoningen, sociale en daarmeegelijkgesteldewoningen,middelgrotewoningen...).

RS61 Detoegang toteenkwaliteitsvollebuitenruimtegaranderenvoor allewoningen,vooral op hetvlakvanwind-ookvoordewoningenopdehoogsteverdiepingen.

RS62

RS63

Geval per geval een goede natuurlijke lich nval garanderen in alle woningen (oriënta e, gebouwen,hoeken...)

De volumes en structuren aanpassen aan de kantoor- en de huisves ngsfunc es om een daadwerkelijke modulariteit te verkrijgen (beperkte bouwdiepten, eerder draagkolommen dandraagmuren(openplan),voldoendehoogtetussendevloeren...)

HoofdstukIII/Afdeling3Effectenbeoordeling/C–ontwerpvanBBP/p.373

RS64

Rekening houden met de specifieke behoe en van bepaalde voorzieningen voor een kwaliteitsvolleuitvoering(bijvoorbeeldvoordescholen:natuurlijkelich nval,kwaliteitsvolle buitenruimten,liggingineenrus ggebied...).

RS65

Zichposi onerentenaanzienvandeeisvangroeneruimteninzowelhethuidigeBBP(30% groeneruimten)alsinhetGBP(10%vandegrondoppervlakte)enhetontwerpvanGSV(30% volle grond voor elk perceel): groene ruimten ontwikkelen en deze ruimten in de verschillende huizenblokken (lokalisa e, kwaliteitseisen …) posi oneren. Bijvoorbeeld intensieveofsemi-intensievegroendakenopleggen(equivalentvollegrond)indebebouwde ruimtenvandelageschaaldienietwordeningericht(terrassen,technischeruimten)ofeen minimaleBAF+opleggen.

RS66 Regenwaterbeheerop schaalvanhetperceelopleggen(stockerendedaken,porositeitvan degevelsendegrondbedekkingen...).

RS67

Eenbeheeropleggendathetopgepomptewaternu gtoepast(hergebruikindegebouwen, afvoeren naar de Zenne doorheen de openbare ruimten); dit blij ondergeschikt aan de voorwaardenvandeMV.

RS68 Een groene link waarborgen tussen de site en de spoorwegtaluds op het perceel van het MedicalCenter,ongeachtofdit(deels)wordtbebouwdofniet.

RS69

Overwegingen integreren over het juiste ontwerp en het beheer van de groene gebieden (wind,schaduw,vandalisme,hygiëne,aangepastesoorten...) enhunbodem(meststoffen,beschermingtegeninzakking,voldoendediksubstraat...)

Sommige voorschri en en begeleidende maatregelen gaan indierich ng,zonderzostrengofzonauwkeurigtezijn.

RS70

Langsdegebiedenvoorgemotoriseerdverkeerbeplan ngvoorzientussendevoertuigenen de ‘zachte’ openbare ruimte, die een scherm moet vormen tegen verontreiniging. Verschillende lagen en soorten selecteren voor een grotere veerkracht, diversiteit van de soorten vervuilende stoffen, efficiën e in alle seizoenen en aanpassing aan de specifieke liggingvanelkeplaats.

RS71 De a raakprocedures matchen met de toekoms ge projecten opdat zoveel mogelijk materialenterplaatsewordengerecupereerd.

RS72

Doelstellingen vastleggen aangaande de circulariteit van de materialen, bijvoorbeeld deze die zijn vastgelegd in de gewestelijke guidelines voor het Proximus-project (bij a raak minstens2%vandegedemonteerdematerialenherbruikbaarenminstens90%gerecycleerd terplaatseofinhetBHGenbijwederopbouw2%vandeinkomendematerialena oms g uithergebruik en 20% uitrecyclage, a oms g vanhetterreinof vaneen andere plaats in hetBHG)

RS73

De produc e opleggen van hernieuwbare energie (geothermie, fotovoltaïsche panelen, warmtepompenofanderetechnischeoplossingen)

De voorschri en leggen ‘het gebruik van’ of ‘de produc e van’ hernieuwbare energie, maar niet uitsluitend de produc eop

HoofdstukIII/Afdeling3Effectenbeoordeling/C–ontwerpvanBBP/p.374

RS74 Debehandelingvandegevels omkaderen(porositeit,anima e,ruwheid,weerkaatsingvan geluidenlicht,materialen(glasvermijden,geluidsabsorp e)...).

RS75

Ervoor zorgen dat het windcomfort in de openbare ruimten (zie norm NEN 8100) niet achteruitgaatofzelfsverbeteren(viade aanbevelingen van windstudieszoals luifels, ruwe materialen,architecturalevormen...)

RS76 Een hoog weerkaatsingsvermogen opleggen voor de horizontale en de ver cale bekledingsmaterialen.

RS77 Gedeeldgebruikvandeondergrondseparkeerplaatsenbevorderen.

RS78

Gezien de lawaaierige context van de wijk zorgen voor een goede geluidsisola e van de gebouwen(bijvoorbeeldnormNBNS01-400-1voordewoongebouwen).

De voorschri en leggen een studie op, maar niet de opvolging van de aanbevelingen. Dat wordt aanhet project overgelaten.

RS79

AlshetNoordpleinwordtbebouwd,ervoorzorgendathetSolvaypleinopenbaartoegankelijk wordt, dat er een openbareruimte wordt ontwikkeld op grondniveau of een laag gebouw (openbare voorziening met buitentoegang voor het publiek, ook als die wordt door de voorzieningwordt‘omkaderd’).

Openbareruimte:

RS80

DevisievanhetBKPvoordeBolivar-asintegreren(geïntegreerdwaterbeheeraanmoedigen, overeenstemmingmethetBolivar-project).

RS81 Het totale aantal bomen in de perimeter niet verminderen en de bestaande ‘volwassen’ bomenbehouden.

RS82 Toezienopdecon nuïteittussendeboomkruinenendelagendiversifiërenomdegroene verbindingenteop maliseren.

RS83 EenzekereonthardingopdeBolivaresplanadeverzekeren, evenalseenkwaliteitvandehervondenbodems.

RS84

Ervoor zorgen dat eventuele inrich ngen om het windcomfort te verbeteren worden geïntegreerd in de projecten voor de openbare ruimte of in ieder geval dit gegeven integrerenindekomendedenkoefeningen.

RS85

Hetveiligheidsgevoelbevorderenindedoorgangenonderdesporen(globaleinrich ngvoor voldoendeverlich ng,configura e,ac vering).

HoofdstukIII/Afdeling3Effectenbeoordeling/C–ontwerpvanBBP/p.375

RS86

Eenheusinrich ngsprojectui ekenenvoordeopenbareruimteninhetgebied(coheren e, kwaliteit, gezelligheid ...), zodat ze geen restruimten worden en zodat ze hun rol zullen vervulleninditgebiedwaardedichtheidaanzienlijkzalwordenverhoogd.

RS87 Poreuzegrondbedekkingenopleggendiegeengeluidshindergenereren.

HoofdstukIII/Afdeling3Effectenbeoordeling/C–ontwerpvanBBP/p.376

Hoofdstuk III / Afdeling 3 Effectenbeoordeling / C – ontwerp van BBP / p. 377
ANALYSE VAN DE EFFECTEN VAN HET ONTWERPVANBBP

De impact van het ontwerp van GBP (voorschri en en begeleidende maatregelen) wordt in eerste instan e geanalyseerd met betrekking tot de andere plannen en programma’s. Er worden vergelijkende tabellen met het bestaandereglementairekaderopgesteldtussendevoorschri envanhetontwerpvanBBP, deGSVendeGemSV.

In tweede instan e worden de effecten van de voorschri en van het ontwerp van BBP op de verschillende domeinen van het milieu geanalyseerd (criteria van het MER). De analyse is onder meer gebaseerd op de analysefase van de programmatorische en ruimtelijke alterna even: de veronderstellingen waarmee de berekeningen kunnen worden uitgevoerd, zijn dezelfde en de keuzen die door het BBP worden voorgesteld, worden vergeleken met de aanbevelingen die in deze fase worden geformuleerd. Merk op dat een deel van die aanbevelingen om technische redenen niet werden gevolgd, aangezien het BBP plaats neemt in een specifiek ‘opera oneel’ kader en een ander deel van de aanbevelingen niet toe te passen waren in de fase van het BBP, maarwelvandeprojecten(tepreciesvooreenplanologisch documentofbuitendeperimeter).Dieaanbevelingen worden hier dan ook niet overgenomen en worden ook niet vergeleken met de voorschri en van het ontwerp van BBP.

De analyse die op de volgende pagina’s wordt vermeld, hee betrekking op de recentste versie van het BBP. Tijdens het itera eve proces werden meerdere versies van de voorschri en en de begeleidende maatregelen opgesteld, met daarin opmerkingen of voorstellen die a oms g waren van de MER-analyse of de herlezing door een juridisch kantoor. De aanbevelingen die in het kader van het analyseproces van de effecten werden geformuleerd en die al in de voorschri en of de begeleidende maatregelen zijn geïntegreerd, worden dan ook niet vermeld op de volgende pagina’s.

Deze analysefase wordt, net als de vorige, afgesloten met een tabel waarin de voorgestelde aanbevelingen en de geanalyseerde criteria duidelijk worden weergegeven, waarbij we opmerken dat de eerstgenoemden vaak een impact hebben op meerdere criteria.

NB: de namen van de huizenblokken en de ruimten die in dit deel van de analyse worden gebruikt, zijn met het oog op meer duidelijkheid in dit document dezelfde als de namen die in de vorige analyses worden gebruikt. Merk op dat die ruimten in het ontwerp van BBP een andere naam hebben gekregen. Ter herinnering worden hier de verschillende terminologieën vermeld:

- Huizenblok North Galaxy = huizenblok 68 = bebouwbaar gebied A in het BBP

- Huizenblok Proximus = huizenblok 71 = bebouwbaar gebied B in het BBP

- Huizenblok CCN = huizenblok 72 = bebouwbaar gebied C1 in het BBP

- Huizenblok station = huizenblok 72 = bebouwbaar gebied D in het BBP

- Solvayplein = bebouwbaar gebied C2 in het BBP

- Medical Center = Vooruitgangsruimte in het BBP

- Binnenstraat en voorplein Bolivar = deel van het multimodale station in het BBP

- Bolivaresplanade = Bolivarplein in het BBP

Hoofdstuk III / Afdeling 3 Effectenbeoordeling / C – ontwerp van BBP / p. 378

EVALUATIE MET BETREKKING TOT HET REGLEMENTAIRE KADER

Ophetmomentvandeuitvoering vandestudiegeldenophetniveauvan deperimeterdevolgendevoorschri en: het GBP, het BBP 19 van het einde van de jaren ‘70, de GSV en de GemSV. Punt 1 ‘Reglementeringen en bepalingen’ van de reglementaire voorschri en van het BBP verduidelijkt het volgende:

- “De algemene voorschriften van het Gewestelijk Bestemmingsplan (GBP) dat van kracht is op het moment van de uitreiking van de vergunningen en de certificaten voor de percelen gelegen binnen de perimeter van BBP nr. 19 zijn van toepassing en vormen essentiële gegevens die niet mogen aangetast worden.

- De algemene en bijzondere voorschriften van het GBP dat van kracht is op het moment van de uitreiking van de vergunningen en de certificaten voor de projecten gelegen binnen de perimeter van BBP nr. 19 blijven van toepassing binnen de perimeter van onderhavig Plan. De specifieke voorschriften van het BBP vormen een aanvulling van de voorschriften van het GBP in de omvang van de mogelijkheden die door hoofdstuk 5 van titel II van het BWRO worden geboden;

- De voorschriften van de gewestelijke en de gemeentelijke reglementen die van kracht zijn op het moment van de uitreiking van de vergunningen en de certificaten voor de projecten gelegen binnen de perimeter van BBP nr. 19 zijn alleen van toepassing op het grondgebied waarop onderhavig Plan betrekking heeft voor zover ze niet indruisen tegen de reglementaire voorschriften.

- Voor elke definitie van een term die niet in onderhavige woordenlijst isopgenomen, dient men te verwijzen naar het GBP en de definities van de reglementen die van kracht zijn op het moment van de goedkeuring van het Plan. In geval van incompatibiliteit wordt voorrang verleend aan de definities van het GBP. ”

We herinneren hier ook aan ar kel 94 van het BWRO, dat het volgende verduidelijkt: "De voorschri en van de vigerende gewestelijke en gemeentelijke verordeningen zijn enkel van toepassing op het grondgebied gedekt door een overeenkoms g tel II opgemaakt plan of door een verkavelingsvergunning in de mate dat ze niet strijdig zijn met de verordenende voorschri en van deze plannen of die verkavelingsvergunning”.

Menmag dus verwachtendatdewijziging vanhetBBPverenigbaar is methetreglementairekaderwaarinhet past of in voorkomend geval de reglementaire voorschri en van de GSV of de GemSV vervangt als de bepalingen van het BBP er strijdig mee zijn.

De tabellen hieronder vermelden de verschillen en de aandachtspunten tussen de voorschri en van het BBP en die van zijn reglementaire kader, rekening houdend met de hiërarchie van de plannen en de reglementen. De analyse houdt geen rekening met het bestaande BBP 19, aangezien dit laatste zal worden vervangen door onderhavigewijziging van hetBBP.Merk opdatdevoorschri envandewijzigingvanhetBBPdienietin dezetabel zijn opgenomen, volledig verenigbaar zijn met hun reglementaire kader. In deze analyse wordt geen rekening gehouden met de begeleidende maatregelen, die geen reglementair statuut hebben. Indelaatstekolomvanhettabelwordteeneventueleposi eve(+)ofnega eve(-)waarschijnlijkeimpactvermeld, waarbij de criteria waarop een impact is, worden vermeld. De gedetailleerde analyse van de effecten wordt in het volgende punt ‘Verwachte effecten van het plan’ vermeld.

Hoofdstuk III / Afdeling 3 Effectenbeoordeling / C – ontwerp van BBP / p. 379

ANALYSE TEN OPZICHTE VAN HET GBP

BBP GBP Conformiteit Milieu-impact AV 1.4 Ac vering van de benedenverdiepingen:

c)Deuitrus ngenvancollec efbelangofvan openbare diensten, de handelszaken en de produc eac viteiten van het ambachtelijke type en immateriële goederen krijgen er voorrang (niveau van het sta on en van de stad).

BV7Administra egebieden en BV 22 overdruk ‘G’ (galerie) voor huizenblok 72, waar het GBP een galerie voorziet, wat impliceert dat de benedenverdiepingen van de gebouwen prioritairalshandelszakenzijnbestemd.

Het BBP verduidelijkt het GBP, dat de lokalisa e van de func se in de gebouwen nietbehandelt,behalvewatdecommerciële func evanhuizenblok72betre

(+)Ac veringvande openbareruimteviade benedenverdiepingen

BV2.1wegengebieden BV 25 Wegen en openbaar vervoer/Algemeen.25.3

Het BBP verduidelijkt het GBP met bepalingen van milieu-orde (beplan ng, verharding,waterbeheer...).

(+)Water

(+)Ecologischnetwerk

(+)Bodem

(+)Microklimaat

[…]3°deparkeerproblema ekintegreren, met inbegrip van de bestelvoertuigen, de taxi’sendefietsen

Overigens verbiedt het BBP elk soort langdurigparkerenophetBolivarpleinenin de Vooruitgangstraat, wat niet verhindert datdeproblema ekvanhetparkerenophet niveau van het BBP wordt onderzocht en beheerd.

Het BBP verduidelijkt niet dat de wegengebieden de parkeerproblema ek voor leveringen, taxi’s of fietsen moeten integreren. Deze verduidelijking door het GBP zal dan ook het BBP over dit thema vervangen.

(+)Kwaliteitvande openbareruimtevoor verplaatsingenenverblijven

BV2.1wegengebieden BV 26 Wegen en openbaar vervoer/Het wegennet

Het GBP verwijst naar de hiërarchie van de wegendievantoepassingisophetmoment van de goedkeuring (primair, interwijken, wijk), terwijl het BBP verwijst naar de mul modalespecialisa evandewegen,die recenteris.

HoofdstukIII/Afdeling3Effectenbeoordeling/C–ontwerpvanBBP/p.380

(+)UitvoeringvandeMSW

BV2.4.1Bolivarplein BV 25 Wegen en openbaar vervoer/Algemeenen

BV24Structurerenderuimten

Het BBP verduidelijkt het GBP door bepalingenteintegrereninverbandmetzijn statuut van voetgangerszone en zijn rol op het vlak van het visuele en het landschappelijkeuitzichtendoorbepalingen van milieu-orde toe te voegen (beplan ng, verharding, waterbeheer ...). Het BBP verduidelijktechternietdathetpleinopeen doorlopende en regelma ge manier moet wordenbeplant,zoalshetGBPweldoetvoor de structurerende ruimten. Deze verduidelijkingdoorhetGBPzaldanookhet BBPoverditthemavervangen.

BV2.4.1Bolivarplein BV7Administra egebieden Het BBP wijzigt de gevellijn van het perceel van het CCN en schrapt het deel van het perceel dat de toegangstrap tot het CCN omvat. Hierdoor wordt zijn bestemming in het BGP als administra egebied niet langer gerespecteerd, aangezienhetinhetBBPals wegengebied wordt vermeld (met in overdruk‘Bolivarplein’).

BV'sinverbandmetdebebouwbaregebieden

3.1ZoneA

3.2ZoneB

3.3.1ZoneC1

Het gebied is bestemd voor kantoren, woningen, uitrus ngen van collec ef belang en openbare dienstverlening, produc eac viteiten van immateriële goederen en produc eac viteiten van het ambachtelijke type, handelszaken (met uitzondering van groothandel) en hotelinrich ngen.

BV7Administra egebieden

7.1. Deze gebieden zijn bestemd voor kantoren en woningen. Zij kunnen ook wordenbestemdvoorhotelinrich ngenen voorzieningen van collec ef belang of van openbarediensten.

7.2. Deze gebieden kunnen worden bestemd voor produc eac viteiten voor zover ze verenigbaar zijn met de bestemmingenbedoeldin7.1.

7.3. Deze gebieden kunnen ook worden bestemd voor handelszaken waarvan de vloeroppervlakte niet meer dan 1.000m² per project en per gebouw

Het BBP bestemt het gebied voor alle func es,zonderzeineenhiërarchieonderte brengen, zoalsinhetGBPgebeurt. De tabel diedeverdelingvandefunc esverduidelijkt, leidtevenweltotdezehiërarchie:

-HetBBPvoorzieteenminimumpercentage voor kantoren enwoningen enverduidelijkt opdie manier de bedoeling vanhetGBP op dit vlak. Wat de kantoren betre , voorziet het plan een maximum, wat het GBP niet doet;

-HetBBPvoorzieteenminimumpercentage voor de uitrus ngen, waarvoor het dus duidelijkerisdanhetGBP;

HoofdstukIII/Afdeling3Effectenbeoordeling/C–ontwerpvanBBP/p.381

(+)UitvoeringvandeMSW

(+)Stedelijklandschapen

symbolischerichtpunten

(+)Water

(+)Ecologischenetwerken

(+)Bodem

(+)Microklimaat

(+)Kwaliteitvande

openbareruimtevoor

verplaatsingenenverblijven

(+)Stedelijklandschapen

symbolischerichtpunten

(+)Kwaliteitvande

openbareruimtevoor

verplaatsingenenverblijven

(+)Huisves ng

(-)Economischeac viteiten

(+)Voorzieningenen handelszaken

(-)Parkeren

(-)Auto’s

bedraagt. De

BV'sinverbandmetdebebouwbaregebieden

3.3.1GebiedC1

Het BBP voorziet een maximum van 5% oppervlakte handelszaken voor gebied C146 , hetzijmaximaal5.970m².

De maximale oppervlakten voor de handelszaken die toegelaten zijn, moeten wordenbeschouwdoverhetvolledigegebied, ongeachtdeverdelingingebouwen.

vergro ng van de vloeroppervlakte kan worden toegelaten nadat de handelingen enwerkenzullenonderworpenzijnaande specialeregelenvanopenbaarmaking.

-HetBBPvoorzieteenmaximumpercentage voor handelszaken en verduidelijkt op die manier de inten es van het GBP. Gezien de betreffende oppervlakken zal de vloeroppervlakte bestemd voor de handelszaken per gebouw en per project evenwel meer dan 1.000 m² bedragen (van ~2.500tot~6.000m²),watimpliceertdatde projecten aan MPP’s zullen onderworpen zijn,zelfsalshetBBPdittoelaat.

Het BBP verduidelijkt niet dat de produc eac viteiten verenigbaar moeten zijn met de andere func es. Deze verduidelijkingdoorhetGBPzaldanookhet BBPoverditthemavervangen.

BV7Administra egebieden enBV22overdruk‘G’(galerie)

Devloeroppervlaktevoor handelszakenis, per project en per gebouw, beperkt tot 1.000m².

De vergro ng van die oppervlakte tot 2.500m² kanwordentoegelatenwanneer de plaatselijke omstandigheden dat toelaten en nadat de handelingen en de werkenaandebijzonderemaatregelenvan bekendmakingzijnonderworpen.

Devergro ngvandieoppervlaktetotmeer dan 2.500 m² kan slechts worden toegelaten als […] deze mogelijkheid door eenBBPisvoorzien.

Het BBP past in BV 22 van het GBP, waangezien het meer dan 2.500 m² handelszaken toelaat zonder beperkingen perprojectenpergebouw.

(+)Handelszaken

HoofdstukIII/Afdeling3Effectenbeoordeling/C–ontwerpvanBBP/p.382

46 OpvoorwaardedatdeprogrammeringwordtberekendopdeC1-zoneennietopdeblokschaal(metuitzonderingvandeC2-enD-zones).

BV'sinverbandmetdebebouwbaregebieden

3.3.2GebiedC2

Gebied C2 is uitsluitend bestemd voor uitrus ngenvancollec efbelangenopenbare dienstverlening en bijbehorende bestemmingen.

Het gebied omvat de ruimten die nodig zijn voor de werking van het mul modale sta on (draaigebied van de bussen, perrons, logis eke toegangen tot het sta on en de bijbehorende func es (taxi’s, kiss and ride, fietsenstallingenenz.)).

BV'sinverbandmetdebebouwbaregebieden

3.3.1ZoneC1en

3.6.1Mul modaalsta on

BV 25 Wegen en openbaar vervoer/Algemeen

Bij verandering van bestemming van een weg, respecteren de handelingen en de bijbehorende werken de voorschri en die van toepassing zijn op een van de aangrenzende gebieden, middels bijzondere maatregelen van bekendmaking.

Het gebied dat langs deze weg ligt die een andere bestemming krijgt, is het administra egebied. Het algemene voorschri 0.7 laat de realisa e toe van uitrus ngen in alle gebieden, maar het BBP verduidelijkt dat deze bestemming hier de enigeisdieermagplaatsvinden.

(+)Uitrus ng

(-)Structuurvandeopen ruimten

BV'sinverbandmetdebebouwbaregebieden

3.6.8DoorgangondersporenQuatrecht

BV7Administra egebieden Het BBP verduidelijkt dat het deel van het mul modalesta onopdegrondinnamevan degeplandegebouweningebiedC1meetelt als vloeroppervlakte, waardoor het verenigbaar is met de voorschri en in verbandmetdeadministra egebieden.

BV 25 Wegen en openbaar vervoer/Algemeen

Het BBP verduidelijkt het GBP door er de veiligheidsbepalingen in te integreren (verlich ng,anima e).

(+)Veiligheid

(+)Kwaliteitvande openbareruimtenvoor verplaatsingenverblijf

HoofdstukIII/Afdeling3Effectenbeoordeling/C–ontwerpvanBBP/p.383

ANALYSE TEN OPZICHTE VAN DE GSV47 EN DE GEMSV

BBP

AV1.1Algemeen

d)Dedieptevandenieuwbouwwerken bedraagtmaximaal22m,[…].

enBV'sinverbandmetdebebouwbare gebieden

3.6.6Bouwlijnen

a) De bouwlijn legt de mogelijke limiet vast voor de inplan ng van de bouwwerken.

GSV/GemSV Verenigbaarheid Milieu-impact

GSVTitel1–art.4Diepte

§ 1. Ter hoogte van de benedenverdieping en de bovenverdiepingen voldoet de maximale dieptebovendegrondvanhetbouwwerk aandevolgendevoorwaarden:

1°nietdieperzijndandriekwartvande dieptevanhetgemetenterrein,buitende achteruitbouwzone,inde

mediaanasvanhetterrein;

en GSV art. 7 Inplan ng van de alleenstaandebouwwerken

Het bovengrondse bouwwerk wordt geplaatst op een gepaste afstand van de terreingrenzen, rekening houdend met de bouwhoogte van de omringende bouwwerken,metdeeigenbouwhoogte, met de bestaande bouwlijn en met de vrijwaring van de bezonning van de naastliggendeterreinen.

Het BBP wijkt af van de GSV en de GemSV, die de diepten van de bouwwerken beperken a ankelijk vandeomliggendebouwwerkenentot2/3vanhet perceel in het geval van gemene bouwwerken (gebieden C1 en C2) of volgens de context voor de alleenstaandebouwwerken(gebiedenAenB).

HetBBPdefinieertoverigenspreciesdelimietvande bebouwde grondinname (op plan), maar laat ook een achteruitbouw ten opzichte van deze laatste toe:

-VoordegebiedenAenBlegthetBBPeenminimale achteruitbouw op voor de inplan ng van de mogelijkebouwlijn.

-VoorhetgebiedC(aangeziendebebouwingopC1 enC2aansluitendis),biedthetBBPdemogelijkheid om zich op de gevellijn te plaatsen, zonder te verduidelijkendatrekeningmoetwordengehouden methetbouwprofielvandenaburigebouwwerken, het bouwprofiel en de bezonning van de naburige terreinen.

GebiedenAenB:

(+)Ecologischenetwerken

(+)Water

(+)Microklimaat

GebiedC:

(-)Microklimaat

(-)Kwaliteitvandeopenbare ruimtenvoorverplaatsingen verblijf

(-)Structuurvande bebouwderuimten

AV1.2Kwaliteitvandewoningen en1.1Algemeen–punte)

GSVTitel2 Het BBP vervolledigt Titel 2 van de GSV via zijn verplich ngen met betrekking tot de normen van bewoonbaarheidvandewoningen:

(+)Woningen

(+)Geluid

47 Ter herinnering: de GSV is niet het geschikte stedenbouwkundige instrument om de bouw van blokgebouwen te regelen, en een reeks bepalingen (hoogte, indeling, enz.) met betrekking tot de betrokken gebouwen zullen beter in het SPP worden geregeld. Zoals hierboven uiteengezet, zullen de GSV (en de GemSV) derhalve alleen van toepassing zijn op de gebieden die onder de BBP vallen, voor zover zij niet in strijd zijn met de BBP.

HoofdstukIII/Afdeling3Effectenbeoordeling/C–ontwerpvanBBP/p.384

GSV Titel 1 – art. 5 (alleenstaande gebouwen)

AV1.5Daken

De daken worden beplant en/of ingericht als toegankelijke terrassen en/of bedoeld om de technische installa esvoordewarmteproduc een de elektriciteit of het waterbeheer. Ze kunnen ook voor stadslandbouw wordengebruikt.

GSVTitel1–art.13(groenedaken)

[…] Ontoegankelijke pla e daken van meer dan 100 m² moeten worden ingerichtalsgroenedaken.

GSVTitel1–art.9(pla edaken)

- toegangtoteenbuitenruimte;

- inachtnemingvandegeluidshinder;

- doorlopendofopenkarakterop2gevelsvande woningen;

- gemengde karakter van de typologieën woningen.

Het BBP wijkt af van de GSV en de GemSV door, behalvedebeplan ngvandeontoegankelijkepla e daken ze te gebruiken voor het onthaal van technische installa es voor dewarmteproduc e en de elektriciteit (behalve de zonnepanelen die door deGSVzijnvoorzien)ofhetwaterbeheerenvoorde stadslandbouw.

HetBBPwijktoverigensafvandeGSVendeGemSV doordat het semi-intensieve groendaken met gediversifieerdelagenverplichtstelt.

(+)Energie

(+)Water

(+) Circulariteit van de stromen

(+)Ecologischenetwerken

AV1.9Waterbeheer GSV Titel 1 - art. 16 Opvangen van regenwater

GSVTitel1–art.35

AV1.11Parkeernormenvoordeauto’s GSV Titel 8 – art. 6 Parkeren voor motorvoertuigen in gebouwen met meerderewoningen

Het BBP wikt van de GSV en de GemSV af met betrekking tot de verplichte afme ngen van de regenput. Het BBP is veel preciezer dan de GSV en deGemSVmetbetrekkingtothetwaterbeheer.Het ismeeraangepastaandemomenteelinhetBrussels Hoofdstedelijk Gewest gebruikte/gehanteerde normen.

HetBBPwijktvandeGSVafdoorhetaantalplaatsen per woning tot 0,5 te beperken en door de mogelijkheid te bieden om de verhouding nog te verlagen (a ankelijk van de omstandigheden). Het legt het mutualiseerbare karakter van de parkings op.

(+)Water

(+) Circulariteit van de stromen

AV1.12Parkeernormenvoordefietsen GSV Titel 2 – art. 17 - Lokaal voor tweewielersenkinderwagens

Het BBP voorziet strengere verhoudingen dan de GSV en voorziet bepalingen voor bakfietsen. Het is meer aangepast aan de normen die momenteel in het Brussels Hoofdstedelijk Gewest worden gebruikt/toegepast.

Parkeren

HoofdstukIII/Afdeling3Effectenbeoordeling/C–ontwerpvanBBP/p.385

(+)Parkeren

(+) Ac eve verplaatsingswijzen

BV2.1Wegengebiedenen

2.4 Voorschri en in overdruk voor de wegengebieden

GSVTitel7

Het BBP vervolledigt Titel 7 over de wegen, zijn toegangen en zijn naaste omgevingen door er milieubepalingen aan toe te voegen zoals de beplan ng van de wegen, hun verharding, het waterbeheer, de keuze van de materialen (om de warmte-eilandeffecten en de geluidshinder te beperken...).

(+)Water

(+)Ecologischenetwerken

(+)Bodem

(+)Microklimaat

(+)Kwaliteitvandeopenbare

ruimtenvoorverplaatsingen verblijf

(+)Geluidentrillingen

BV's in verband met de bebouwbare gebieden(gebiedenAtotD)

b)Inplan ng

en 3.6.6 Limiet van de bebouwde grondinname

BV's in verband met de bebouwbare gebieden(gebiedenAtotD)

c)Bouwprofielen

GSVTitel1–art.4Diepte

GSV Titel 1 – art. 7 Inplan ng van de geïsoleerdegebouwen

Het BBP wijkt af van de GSV door nauwkeurig het bebouwde gebied en de limiet van de bebouwde grondinname (op het plan) te definiëren en de maximalegrondinnametebeperken.

BV's in verband met de bebouwbare gebieden

3.6.2Achteruitbouwstroken

GSV Titel 1 – art. 8 Hoogte van de geïsoleerdegebouwen

Het BBP definieert in meters de toegelaten maximale hoogten per gebied.Het wijkt dus af van de GSV, en dan meer bepaald omdat die hoogte, voordegebiedenA,BenC,hetgemiddeldevande hoogten van de bouwwerken op de terreinen rond debeschouwdeterreinenoverschrijdt.

Structuur van de bebouwde ruimten

(-) Stedelijk landschap en symbolischerichtpunten

GSV Titel 1 – art. 11 Inrich ng en onderhoudvandeachteruitbouwstrook

GSVTitel1–art.38

Het BBP en de GSV streven dezelfde doelstellingen na op het vlak van de inrich ng van de achteruitbouwstroken. De GSV laat slechts een inrich ng van de achteruitbouwstroken als siertuinen en toegangen tot de bouwwerken toe. HetBBPlaatevenwelondergrondsebouwwerkenen inrich ngen toe waarmee de aangrenzende commerciële ruimten kunnen worden geac veerd. DeGSVendeGemSVwordendusverworpen.

(-)Ecologischenetwerken

(-)Bodems

(-)Water

(-)Microklimaat

BV's in verband met de bebouwbare gebieden(gebiedenAenB)

b)Inplan ng

en3.6.2Achteruitbouwstroken

GSV Titel 1 – art. 7 Inplan ng van de geïsoleerdegebouwen

HetBBPendeGSVstrevendezelfdedoelstellingna, maar het BBP is strenger, aangezien het een laag teelaarde van minstens 0,8 m diep oplegt voor de groene delen van de niet bovengronds, maar wel ondergrondsbebouwdegebieden.

HoofdstukIII/Afdeling3Effectenbeoordeling/C–ontwerpvanBBP/p.386

(+)Ecologischenetwerken

(+)Water

(+)Microklimaat

CONCLUSIE

Het BBP is conform het GBP. Geen enkele van zijn bepalingen verhindert immers de voorziene inrich ng voor het gebied of laat bestemmingen toe die niet door het gewestelijke plan worden goedgekeurd. Het BBP verduidelijkt overigens het GBP in een reeks bepalingen, zodat ze conform de specificiteiten van het gebied waar het ontwerp van plan betrekking hee , zijn. We kunnen meer bepaald vermelden dat:

- het BBP verduidelijkt het GBP met bepalingen op het vlak van milieu (beplanting, verharding, waterbeheer ...), landschap en erfgoed;

- hetBBPpreciezerisdanhetGBPindebepalingenoverdebelangrijksteinteplantenfuncties.Hetbeperkt de inplanting van kantoren en legt de inplanting op van een minimum aan woningen, terwijl het GBP beide functies onbeperkt als hoofdbestemming toelaat;

- Het BBP verandert de bestemming van een weg en beperkt er de functies tot de uitrusting en de openbare dienstverlening, terwijl ze als administratiegebied zou moeten worden bestemd.

- Het BBP is nauwkeuriger dan het GBP met betrekking tot de secundaire functies:

o Voor de handelszaken is het BBP gunstiger voor de inplanting van die functie dan het GBP, voor een grote mogelijke overschrijding van de commerciële functie ten opzichte van wat het GBP toelaat (~ 6.000 m² vs 2.500 m² met MPP);

o VoordevoorzieningenvoorziethetBBPeenminimumpercentageengeeftdaarbijblijkvanmeer ambitie dan het GBP;

o Het BBP beperkt het soort productieactiviteiten die kunnen worden ingeplant, maar verduidelijkt niet of deze al dan niet verenigbaar moeten zijn met de andere functies;

- Het BBP omvat bepalingen over de lokalisatie van de functies die meer bepaald gericht zijn op de activering van de openbare ruimte;

- Ten opzichte van de wegen omvat het BBP bepalingen met betrekking tot het parkeren van auto's, het veiligheidsgevoel en de link met de nieuwe hiërarchie die in het Good Move-plan wordt vastgelegd.

Het BBP wijkt op een reeks punten van de GSV en de GemSV af:

- Het BBP omvat milieuaspecten (beplanting, waterbeheer ...) en dit zowel met betrekking tot de behandeling van de bebouwde ruimten als die van de open ruimten waarop bijkomende of andere beheerbepalingen ten opzichte van de reglementen gebaseerd zijn;

- Het BBP laat grotere hoogten toe dan de hoogten die zouden toegelaten zijn in toepassing van de GSV, die algemeen in het omliggende bebouwde kader worden geïntegreerd;

- Het BBP voorziet inplantingsregels die afwijken van die van de GSV/GemSV, die verband houden met de bijzondere configuratie van de bebouwing in de wijk;

- Het BBP voorziet strengere normen op het vlak van de bewoonbaarheid van de woningen dan de GSV;

- Het BBP is strenger met betrekking tot de parkeermogelijkheden van de voertuigen (lagere verhouding) en de fietsenstallingen (hogere verhouding), ten aanzien van de goede bereikbaarheid met het openbaar vervoer en de centrale ligging van de wijk;

- Behalve hun toegangsfuncties tot de gebouwen, worden de achteruitbouwzones door het BBP beschouwd als een element dat deelneemt aan de landschappelijke kwaliteit van de openbare ruimte, of aan zijn animatie of aan de actieve mobiliteit - en niet alleen de beplanting.

Ter herinnering: de milieueffecten verbonden met die verschillen worden op een gedetailleerde manier in de analyses op de volgende pagina’s beschreven.

Hoofdstuk III / Afdeling 3 Effectenbeoordeling / C – ontwerp van BBP / p. 387

VERWACHTE IMPACT VAN HET PLAN

Opbasisvan deervaring en de feedback overdevorigeanalysefasenenmethetoog op duidelijkheid en ontlas ng van het document hee de RvB beslist dat bepaalde geanalyseerde criteria worden gegroepeerd, waardoor het aantal criteria nu nog 22 bedraagt (in plaats van 30). De gegroepeerde criteria zijn dan ook:

Structuur van de bebouwde ruimten en van de open ruimten

Stedelijk landschap en symbolische richtpunten

Bevolking en huisves ng

Voorzieningen en handelszaken

Economische ac viteiten en transi e

Kwaliteit van de openbare ruimte en dan meer bepaald voor verplaatsingen en verblijf en ac vering via de benedenverdiepingen

Geluid en trillingen

Luchtkwaliteit

Veiligheid

Invoering van de MSW en netwerken voor de zachte mobiliteit

Ac eve verplaatsingswijzen en fietsenstallingen

Openbaar vervoer

Auto's en parkeermogelijkheden

Vrachtwagens en leveringen

Mobiliteitsdiensten en intermodaliteit

Microklimaat

Bodems

Ecologisch netwerk en milieunetwerken

Water en technische netwerken en circulariteit van de stromen

Energie en circulariteit van de stromen

Circulariteit van de materialen en van de binnenkomende materialen/stromen

Modulariteit van de ruimten

De analyse van de impact van het planontwerp werd uitgevoerd op basis van dezelfde veronderstellingen en methoden als voor de analyse van de impact van de programmerings- en ruimtelijke alterna even. De herinnering aan de diagnose en de inze en die door deze laatste aan het licht werden gebracht, wordt hier niet vermeld om het document zoveel mogelijk te verlichten. Voor elk criterium vermeldt de analyse daarom:

- De voorstellen van het planontwerp (voorschriften en begeleidende maatregelen) op een samenvattende/verklarende manier en hun verwachte impact. Ter herinnering: de voorschriften zijn reglementair, terwijl de begeleidende maatregelen geen verplichtende waarde hebben. In deze fase van het project zal de aanvrager echter moeten verantwoorden in welke mate hij die maatregelen al dan niet respecteert. De mogelijkheid bestaat evenwel om ze niet te volgen. ;

- De conclusies en daarmee verbonden aanbevelingen.

Ter herinnering: de analyses hebben hier uitsluitend betrekking op het gebied dat door het BBP wordt behandeld en niet meer op de volledige huizenblokken (zoals in het deel betreffende de programmatorische en ruimtelijke alterna even). De reële impact van de ontwikkeling van de huizenblokken zal dus groter zijn in realiteit dan de hiergemaaktescha ngen(slechts 30% vanhethuizenblok Proximusen67% vanhethuizenblok CCN wordendoor het BBP bestreken). De becijferde scha ngen worden gegeven volgens de minimum- en de maximumwaarden die door het BBP worden toegelaten, maar ook voor het voorkeurscenario (in het BBP).

Hoofdstuk III / Afdeling 3 Effectenbeoordeling / C – ontwerp van BBP / p. 388

STRUCTUUR VAN DE BEBOUWDE EN

DE OPEN RUIMTEN

ANALYSES

Wat de open en de bebouwde ruimten betre , behoudt het BBP bepaalde basisprincipes die de opstelling van de ruimtelijke alterna even hebben gestructureerd: doorsteek van het huizenblok CCN recht tegenover de Bolivarlaan om een visuele con nuïteit mogelijk te maken vanaf het kanaal tot aan de Koninklijke Sint-Maria Kerk, een opwaardering van het sta onsgebouw en een betere algemene leesbaarheid van de wijk, valorisa e van de iden teit van de wijk met behoud van de bestaande torengebouwen op de huizenblokken North Galaxy en Proximus en reorganisa e van het verkeer en de parkeermogelijkheden voor auto's teneinde meer plaats vrij te maken voor de ac eve verplaatsingswijzen op het Bolivarplein.

Algemeen gesteld biedt het ontwerp van BBP de mogelijkheid om de totale vloeroppervlakten van alle bestaande huizenblokken(behalvehetsta on) tevergroten,endanmeerbepaald inhethuizenblok CN,terwijlhunmaximale grondinneming wordtbeperkt.Hetgevolgvandezevoorschri enishetverkrijgenvaneenglobaalgenomenhoger bebouwd kader dan de huidige situa e, met een vergro ng van de gemiddelde niveaus voor alle huizenblokken. In totaal wordt iet smeer dan 43.000 m² extra vloeroppervlakte toegeltan, voor een globale verkleining van de grondinname van bijna 600 m².

48 Met inbegrip van de gebieden die verband houden met het mul modale knooppunt

49 9029 m² in de bouwvergunning, waarvan 445 en 126 m² open ruimtes op de begane grond in het hart van het blok.

50 Vloeroppervlak / voetafdruk

51 Berekend op basis van het plan

52 Oppervlakte bebouwbaar gebied - max. voetafdruk

Hoofdstuk III / Afdeling 3 Effectenbeoordeling / C – ontwerp van BBP / p. 389 Ruimtelijke organisa e
Gebied A (NG) Gebied B (Prox) Gebied C1 (CCN) Gebied C2 (Solvay) TOTAAL Bestaande vloeroppervlakte ~109 300 m² ~45 100 m² ~92 40048 m² 0 m² Geplande max. vloeroppervlakte ~114 800 m² ~49 250 m² ~119 400³ m² / Max. vergro ng vloeroppervlakte ~7 100 m² ~4 100 m² ~27 000 m² / ~43 100 m² Bestaande grondinname ~8 50049 m² ~2 600 m² ~10 700 m² 0 m² Max. geplande grondinname 8 400 m² 2 170 m² 8 775 m² 1 900 m² Vermindering van de grondinname ~60 m² ~470 m² ~1 970 m² - 1900 m² ~600 m² Gemiddeld aantal verdiepingen50 van de bestaande gebouwen 12,9 17 8,6 / Gemiddeld aantal verdiepingen5 van de geplande gebouwen 13,7 22,7 13,6 2,6 Oppervlakte van het bebouwbare gebied51 ~9 400 m² ~2 600 m² ~8 775 m² ~2 200 m² Min. vrije ruimte op de grond in het bebouwbare52 gebied ~1 000 m² ~400 m² ~0 m² ~300 m² ~1 700 m² Achteruitbouwstrook7 ~2 300 m² ~1 100 m² / / ~3 400 m²
RUIMTELIJKE ORGANISATIE

Structuur van de bebouwde ruimten

De visie voor het Territorium Noord stelt zich onder meer tot doel om voor de nieuwe gebouwen in de wijk het principe van de dubbele skyline te respecteren: zowel op lage schaal ten opzichte van de openbare ruimte als op hoge schaal ten opzichte van het bredere stedelijke silhouet wordt er gebouwd. In het ontwerp van BBP:

- de kenmerkende hoge schaal van de Noordwijk is globaal gezien goed behouden, met het behoud (en lichte toename van de hoogte) van de bestaande hoogbouw in de huizenblokken North Galaxy en Proximus en de ontwikkeling van nieuwe hoogbouw met dezelfde hoogte in het huizenblok CCN;

- de verzekering om een lage schaal te behouden wordt evenwel tenietgedaan door de algemene verhoging van de mogelijke hoogten van de sokkels tot 50 m (~14 verdiepingen) in plaats van max. 13 m en 23 m die door het huidige BBP worden opgelegd voor de huizenblokken North Galaxy en Proximus (in realiteit zijn die sokkels 6 tot 10 of 23 m hoog). Voor het huizenblok CCN is de ontwikkeling van een lage schaalooknietlangerverzekerd,aangezienhetvolledigebebouwbaregebiedtot110mhoogkanworden ontwikkeld. De lage schaal zal daarentegen worden verzekerd op het Solvayplein, met de ontwikkeling van een voorziening met een maximale hoogte van 18 m (iets meer dan 5 verdiepingen).

Merk op dat het feit om de ontwikkeling van uitrustingen op te leggen en de lokalisatie van de uitrustingen, handelszaken en productieactiviteiten op de benedenverdieping te bevorderen, in het voordeel zal spelen van de ontwikkeling van de menselijke dimensie in alle openbare ruimten, maar die functies zullen kunnen worden ondergebracht in volumes die niet ‘laag’ zijn (50 m, of ~14 verdiepingen). De begeleidende maatregelen ten slotte stellen voor om op de verschillende openbare pleinen een evenwicht te verzekeren tussen de bouwwerken met een hoge schaal en met een lage schaal.

Voor de huizenblokken Proximus en North Galaxy wordt de maximale toegelaten hoogte van de bestaande torengebouwen met 8 m vergroot tot 110 m. De hoogte van de sokkel wordt met maximaal 50 m vermeerderd, hetzij een vermeerdering met 44 tot 26 m volgens de gebieden. Voor het huizenblok CCN is de maximale hoogte iden ek in het hele bebouwbare gebied en ook gelijk aan 110 m. Dat stemt overeen met een verhoging met ~57 m (bestaand gebouw van ~53 m).

In termen van bebouwde structuur in de huizenblokken zijn dit de ‘extreme’ situa es:

- in het huizenblok North Galaxy het behoud van de torengebouwen en de vergroting van hun hoogte, zodat er ~93 600 m² vloeroppervlakte kan worden ondergebracht, waarmee dus bijna 21 200 m² vloeroppervlakte kan worden ontwikkeld in de sokkels53. Aangezien de maximale grondinname voor die sokkels 5 377 m² bedraagt, zou men dus (in theorie) 3,9 verdiepingen kunnen bouwen op de volledige sokkel (waarbij op de grond 3 600 m² vrij wordt gehouden op het volledige perceel, met inbegrip van de achteruitbouwzones,hetzij30%)oféénofmeerderegebouwenvan50mhoogop~1500m²opdegrond (waardoorbijna7 500 m²vrijblijftophetvolledigeperceel,metinbegripvandeachteruitbouwzones,hetzij 62%);

- in het huizenblok Proximus, biedt het behoud van het torengebouw en de vergroting van de hoogte de mogelijkheid om er ~46 800 m² vloeroppervlakte onder te brengen, waardoordusietsmeerdan2400m² vloeroppervlakte in de sokkel54 moet worden ontwikkeld. Aangezien de maximale grondinname voor die sokkel658m²bedraagt,zoumendus(intheorie)3,7verdiepingenkunnenbouwenopdevolledigesokkel (waarbij op de grond 1 774 m² vrij wordt gehouden op het volledige perceel, met inbegrip van de achteruitbouwzones, hetzij45%) of een gebouw van 50mhoog op ~172m² op de grond(waardoor bijna 2 300 m² vrij blijft op het volledige perceel, met inbegrip van de achteruitbouwzones, hetzij 57%);

- voor het huizenblok CCN kan de volledige vloeroppervlakte worden ondergebracht in één of meerdere gebouwen van 110 m hoog met een grondinname van 3 850 m², hetzij 175 strekken meter, aangezien de diepte van de bebouwing beperkt is tot 22 m. Hierdoor zou bijna 7 300 m² vrij blijven op de grond, hetzij 66% van het perceel55. De begeleidende maatregelen stellen evenwel voor om de voorgestelde

53 Maximaal toegestane oppervlakte (8 397 m²) - 2*torenoppervlakte (1 510 m²)

54 Maximaal toegestane oppervlakte (2 168 m²) - torenoppervlakte (1 510 m²)

55 Er zij op gewezen dat de gebieden die betrekking hebben op het mul modale knooppunt binnen het perceel bij deze berekening als vloeroppervlak worden meegerekend.

Hoofdstuk III / Afdeling 3 Effectenbeoordeling / C – ontwerp van BBP / p. 390
RUIMTELIJKE ORGANISATIE RUIMTELIJKE ORGANISATIE

bouwprofielen te laten variëren en hun doorlopende karakter te beperken (het ‘staafeffect’ vermijden en het ‘toreneffect’ bevorderen), wat deze extreme situatie zou moeten beperken. Indewest-oostelijkeaszienweduseenvastehoogte(110m)vandegebouwenlangsdeBolivar-asdielagerwordt in de rich ng van de toren (van ~50 m) en het ‘lichaam’ van het sta onsgebouw (van ~30 m), wat een verple eringseffect bevordert.

In het huizenblok CCN zal nieuwe hoogbouw worden ontwikkeld:

- deze zal op minstens 40 m van de bestaande hoogbouw in de huizenblokken Proximus en North Galaxy gelegen zijn, en mogelijkerwijs op 15 m van het station. In het gebied C1 is het overigens mogelijk om hoogbouw op een afstand van 30 m te ontwikkelen (rond het Bolivarvoorplein);

- hun diepte is beperkt tot 22 m, zodat ze kunnen worden aangepast voor andere functies en minimale kwaliteiten binnen kunnen waarborgen. Bovendien moeten de diepte van de bebouwing (zelfs zonder de hoogbouw) en het ontwerp van de binnenruimten een natuurlijke verlichting mogelijk maken van de lokalen waar mensen langdurig verblijven (woningen, kantoren ...);

- De begeleidende maatregelen stellen voor om rekening te houden met de nabijheid van de hoogbouw onderling en met de bestaande hoogbouw (inkijk), maar ook om een verlaging van de hoogten in de richting van het station te bevorderen om zo het effect van verpletting van dit laatste, dat veel lager is, te voorkomen.

Op het Solvayplein wordt een gebouw ontwikkeld. De hoogte ervan is beperkt tot 18 m en ongeveer 40% van zijn sokkel kan dienen voor de ontwikkeling van het mul modale sta on. Overigens wordt de toegang tot de ondergrondse parkeergarage voorzien in de overblijvende oppervlakte, wat impliceert dat de meeste ac viteiten die in het gebouw worden gehouden, ter hoogte van het sta on plaatsvinden. Dit gebouw grenst aan het gebouw dat in het huizenblok CCN wordt ontwikkeld op het niveau van het sta on. Er zal een bijzondere aandacht moeten worden besteed aan de overgang tussen de gebieden C1 en C2 op het niveau van de stad als die gebieden niet gelijk jdig worden ontwikkeld, teneinde de nega eve impact te beperken van de ontwikkeling van een puntgevel indewachtopeennaburiggebouwin hetgebiedC1datuitkijktopgebiedC2(Solvayplein)ennognietisgebouwd. Merk op dat het mul modale sta on ook kan worden bestemd als lokalen die de gebruikelijke aanvulling bijbehorend bij mobiliteitsinfrastructuren zijn, en die dus (gedeeltelijk) kunnen worden bebouwd.

Structuur van de open ruimten

Het BBP zal de volgende impact hebben:

- alle bestaande open ruimten behalve het Solvayplein behouden: achteruitbouwzones, Bolivarplein, Solvay-as, Albert II-as en kleine Vooruitgangstraat;

- overdekte openbare ruimten behouden (door ze te hermodelleren): Quatrechttunnel, binnenstraat/multimodaal station;

- nieuwe open openbare ruimten creëren: Bolivar voorplein, site van het Medical center, binnenstraat en nieuw steegje;

- nieuwe open ruimten creëren in de huizenblokken Proximus en North Galaxy. De vorm en het gebruik (openbaar/privaat) wordt niet verduidelijkt door het BBP.

De gebieden A en B vertegenwoordigen respec evelijk minimaal ~1 000 m² en ~400 m² niet bebouwde ruimten opdegrondnaast de achteruitbouwzones (respec evelijk ~2 300m²en 1 100 m²),ten opzichtevan een maximale grondinname van de bouwwerken van respec evelijk ~8 400 en ~2 200 m². De maatregel 0.2 van het GBP zal dus aprioriinvoorkomendgevalopgebiedAkunnenwordentoegepast.VoorgebiedBisdeontwikkeldegrondinname op het perceel dat in het BBP is opgenomen, minder dan 5 000 m², maar aangezien het project ook het deel van het huizenblok betre op het grondgebied van Sint-Joost, zullen de berekeningen op de schaal van het huizenblok worden gemaakt.

Het BBP voorziet dat gebied C1 volledig kan worden bebouwd (bebouwbaar gebied en grondinname met dezelfde oppervlakte) en dat het geen achteruitbouwzones bevat. De toepassing van maatregel 0.2 van het GBP zou dan ook impliceren dat deze maximale grondinname niet maximaal zou worden bebouwd. De ontwikkelde ruimte zou niet in volle grond zijn en zou poten eel kunnen plaatsvinden in de hoogte (niveau van het sta on).

Hoofdstuk III / Afdeling 3 Effectenbeoordeling / C – ontwerp van BBP / p. 391
RUIMTELIJKE ORGANISATIE

Poteneelbebouwde ruimten

Openruimtenopde grond

Openbareoverdekte doorgangsgebieden

Openbare doorgangsgebieden opplaat

Hoofdstuk III / Afdeling 3 Effectenbeoordeling / C – ontwerp van BBP / p. 392
Sta onsniveau u
Stadsnivea RUIMTELIJKE ORGANISATIE
Openbare (open) ruimten in het ontwerp van BBPop basis van het bestemmingsplan

Ten opzichte van de openbare ruimten:

- De afmetingen van de Bolivaresplanade veranderen niet ingrijpend. De bestaande gevellijn die het bestaan van de toegangstrap tot CCN mogelijk maakt, wordt door het BBP geschrapt, waardoor de esplanade kan worden vergroot. Het plein zal dankzij zijn kenmerken relatief rustig zijn: aanplanting (niet gekwantificeerd) en schrappen van het private autoverkeer en de parkeermogelijkheden. De esplanade kanechterookindetoekomst vrij druk zijnalskeerplaats met busterminal,dieheelwatopenbareruimte inneemt.

- Het Solvayplein is volledig bebouwd. Die configuratie draagt bij aan een meer coherente bebouwde structuur (ontwikkeling van een gebouw over het multimodale station en tot de ondergrondse parkeergarage), die op stationsniveau aansluit op de openbare ruimte.

- De volumes van het CCN staan ter hoogte van de binnenstraat, die overdekt blijft (technische gang) nog steeds terugwijkend ten opzichte van het station. In een visie van een bovenlokaal netwerk van de open ruimten moedigt deze configuratie geenszins aan tot het oversteken van het plein en vervult dus niet haar rol van ‘verbindende’ ruimte vanaf het station naar het Noord/Rogierplein en het Solvayplein. Merk overigens op dat het multimodale station ook kan worden bestemd als lokalen die de gebruikelijke aanvulling bijbehorend bij mobiliteitsinfrastructuren zijn, en die dus (gedeeltelijk) kunnen worden bebouwd. ;

- De weg die op de plaat wordt ontwikkeld (rue suspendue) biedt niet de mogelijkheid om het Rogierplein (aangezien de opgelegde limiet van deze plaat de gemeentegrens is, zonder verzekering dat ze dus meer naar het zuiden zal worden voortgezet), maar maakt wel een verbinding met het Solvayplein. De verbindingsmodaliteiten naar het stadsniveau worden niet verduidelijkt, maar wel degelijk gelokaliseerd, op het einde van de plaat, tussen de uitrusting die op het Solvayplein en het gebouw van het CCN wordt ontwikkeld. De rue suspendue is minstens 15 m breed (niet vaste bouwlijn) over een lengte van 230 m. Deze lange ruimte wordt aan de oostkant afgezoomd door het stationsgebouw (~25 m hoog) en aan de westkant door het ontwikkelde gebouw in het huizenblok CCN (mx. iets meer dan 100 m hoog). De bouwprofielendieindithuizenblok worden ontwikkeld,evenalsdepotentiëleverbreding vandezestraat door de insprong in dit huizenblok zullen onder meer bij de voetgangers een sterk gevoel van verpletting oproepen. In het noordelijke gedeelte zal de binnenstraat slechts worden afgezoomd door het (lagere, ~15 m) gebouw dat in gebied C2 wordt ontwikkeld. Tussen de gebouwen van de gebieden C1 en C2 zal een ‘arm’ van de straat worden ontwikkeld. Die straatarm zal een aansluiting bieden naar het stadsniveau. Hij zal ~57 m lang zijn en minstens 12 m breed. Hij zal aan het noorden worden afgebakend door de uitrusting die op het Solvayplein wordt ontwikkeld (~15 m) en in het zuiden door het gebouw dat in het huizenblok CCN wordt ontwikkeld (max. iets meer dan 100 m hoog);

- Het Bolivarvoorplein is maximaal 57 m lang en minstens 30 m breed. Het wordt afgezoomd door gebouwen die maximaal een honderdtal meter boven de plaat uitkomen en heeft dus een potentieel sterk ingesloten profiel. Het is verbonden met de binnenstraat, maar niet met de openbare ruimte ‘op de grond’ (het ligt op een plaat), hoewel verbindingen moeten worden behouden of ontwikkeld naar die ruimten binnen het voorplein. Merk overigens op dat het multimodale station ook kan worden bestemd als lokalen die de gebruikelijke aanvulling bijbehorend bij mobiliteitsinfrastructuren zijn, en die dus (gedeeltelijk) kunnen worden bebouwd. ;

- De kleine Vooruitgangstraat heeft een ongewijzigde lengte (20 tot 23 m recht tegenover het huizenblok North Galaxy en 17 m recht tegenover het huizenblok Proximus). Recht tegenover het huizenblok North Galaxy wordt de achteruitbouwzone momenteel als openbare ruimte beschouwd - en dit is nog altijd mogelijk volgens het ontwerp van BBP. De gebouwen langs deze ruimte zullen evenwel potentieel veel hoger zijn dan in de huidige situatie (50 m in de huizenblokken North Galaxy en Proximus in plaats van 6 tot 23 m en 110 op het huizenblok CCN in plaats van 53 m). Deze straat wordt dus potentieel zeer ingesloten in vergelijking met de huidige toestand. De juiste bouw van de gebouwen die in de verschillende huizenblokken wordt ontwikkeld, zal de impact op die straat zeer nauwkeurig definiëren;

- De Solvay- en de Albert II-as blijven ongewijzigd en behouden hun stroken met bomen in volle grond. De maximale hoogte van de gebouwen langs die assen zal toenemen tot 50 m (in plaats van 6 tot 23 m in de huidige toestand), maar ze zijn wel breed genoeg om een kleiner/geen ‘verpletteringseffect’ te ondergaan.

- Op het terrein van het Medical Center wordt een nieuwe open ruimte ontwikkeld. Het groene gedeelte zal zeker kleiner zijn wegens de infrastructuren die zullen moeten worden voorzien voor het project van de tunnel van Metro Noord (zuiveringsstations, rookafvoeren, zone voor voertuigen van de hulpdiensten ...). Hierdoor dreigt deze ruimte een beperkte aangepaste grootte te krijgen en een functieorganisatie waardoor ze residueel wordt;

Hoofdstuk III / Afdeling 3 Effectenbeoordeling / C – ontwerp van BBP / p. 393
RUIMTELIJKE ORGANISATIE

- In het zuidelijke deel van het perceel van CCN wordt een nieuw steegje aangelegd. Dat steegje wordt niet overdekt en komt uit op het multimodale station. Het is 2,5 tot 7 m breed en ~38 m lang. Het is mogelijk dat langs het steegje in het noorden een 110 m hoge hoogbouw zal verrijzen. De ligging en de vorm van hetsteegje ten opzichtevandegemeentegrens inhetzuidenwerptvragen op wegens het ontbrekenvan formele intenties op het grondgebied van de gemeente Sint-Joost-ten-Node. De effecten van een vaste bouwlijn in het noorden van dit steegje kunnen slechts worden beoordeeld onder voorbehoud van een coherente stadsstructuur aan de andere kant van de gemeentegrens. Deze bouwlijn verdient de nodige aandacht in het BBP. De begeleidende maatregelen suggereren in dat verband om een coherente verstedelijking te verzekeren in het huizenblok CCN in de gemeente Sint-Joost-ten-Node (geen bouwlijn op de gemeentegrens, rekening houden met de ligging van de bestaande hoogbouw om er nieuwe te ontwikkelen, coherente verlenging van de plaat ...), waardoor de kransen toenemen dat het nieuwe steegje dat uitziet op de toren van het station voldoende breed is en dat er geen potentieel problematische inkijken ontstaan met een gebouw dat er eventueel recht tegenover zou worden ontwikkeld in de gemeente Sint-Joost.

Er zal een bijzondere aandacht moeten worden besteed aan de overgang tussen de gebieden C1 en C2 op het niveau van de stad als die gebieden niet gelijk jdig worden ontwikkeld, teneinde de nega eve impact te beperken van de ontwikkeling van een puntgevel in de wacht op een naburig gebouw in het gebied C1 dat uitkijkt op gebied C2 (Solvayplein) en nog niet is gebouwd en een coherente en beveiligde plaat, zelfs als het gebied C2 nog niet is ontwikkeld. Die aandachtspunten werden in de begeleidende maatregelen geïntegreerd.

Als de plaat als een openbare ruimte wordt beschouwd, kunnen de stedenbouwkundige lasten worden gebruikt om de ontwikkeling en de inrich ng ervan te financieren.

AANBEVELINGEN

Het BBP zou aan het Bolivarvoorplein een breedte moeten verzekeren die coherent is met de hoogte van de aangrenzende gebouwen, om het effect van verple ering te beperken. De inkijken tussen beide bebouwbare gebieden van gebied C1 zouden door het BBP kunnen worden omkaderd.

Hoofdstuk III / Afdeling 3 Effectenbeoordeling / C – ontwerp van BBP / p. 394
RUIMTEL IJKE ORGANISATIE

STEDELIJK LANDSCHAP EN SYMBOLISCHE RICHTPUNTEN

ANALYSES

In het BBP wordt de aanwezigheid van hoogbouw globaal genomen behouden, waarmee de hoge schaal van de dubbele skyline wordt verzekerd. Het meer precieze behoud va nde 3 torengebouwen van de Manha anvlakte (met een mogelijke verhoging met 8 m) is ook voorzien, waardoor het huidige plaatselijke landschap van de Noordwijk en die elementen die door de inventaris van IrisMonument worden erkend, kan behouden blijven. Wat de verre uitzichtpunten op de Noordwijk betre , stellen de begeleidende maatregelen overigens voor om de voorgestelde bouwprofielen te laten variëren en hun doorlopende karakter te beperken (het ‘staafeffect’ vermijden en het ‘toreneffect’ bevorderen).

Doordeaanlegvan hetBolivarvoorplein,datdebebouwinginhethuizenblok CCNindeas vanBolivaronderbreekt enhetzichtopentophetsta onsgebouwwordtdezelaatsteopnieuweenvisueelrichtpuntindieas.Dezeopening gee ook uitzicht op de Sint-Mariakerk op de Sint-Lazarusheuvel, eveneens een stedelijk richtpunt.

Concreet gesteld is het BBP erop gericht om binnen de perimeter 4 uitzichten te beschermen/recreëren en op te waarderen, door te bepalen dat de gebieden waarop de visuele doorkijken betrekking hebben en die op het plan worden aangeduid, de duidelijk omschreven uitzcihten waarborgen:

Verplichte uitzichten naar

1 – de Koninklijke SintMariakerk

2 – de historische gevel van het sta onsgebouw

3 – de gevel van het sta onsgebouw (sta onshal)

4 – de klokkentoren van het sta on

(1) Het verre uitzicht in de Bolivar- en de Solvay-as naar de Koninklijke Sint-Mariakerk;

-

- (2) Het verre uitzicht vanaf het noorden van de Vooruitgangstraat op de historische gevel van het stationsgebouw (zicht in de lengterichting). Dit zicht bestaat al, maar wordt gedeeltelijk belemmerd door het bestaande verbindingsblok tussen het station en CCN. Het openleggen van de rue suspendue zal dan ook tot gevolg hebben om de gevel van het stationsgebouw op die verdieping te renoveren (zie foto's hieronder).Datzichtzaloverigenswordenbeïnvloed(natuurlijkeverlichtingenverpletteringseffect)door de ontwikkeling van hoogbouw (potentieel tot 110 m) in de onmiddellijke nabijheid van het station (15 m);

Hoofdstuk III / Afdeling 3 Effectenbeoordeling / C – ontwerp van BBP / p. 395
Stadsnivea u 1 2 3 4 RUIMTELIJKE ORGANISATIE 1

(4) Het zicht vanaf de kleine Vooruitgangstraat naar de toren van het stationsgebouw via het nieuwe steegje;

(3) Het zicht op de gevel van het station (stationshal) vanaf de Bolivaresplanade.

Bestaand zicht in de lengterich ng op de gevel van het sta onsgebouw, belemmerd door het verbindingsblok tussen CCN en het sta on (bovenaan - Google Street View, 2022) en huidige gevel van het sta on in die verbinding, die moet worden hersteld na de openlegging van de binnenstraat (BRAT, 2022).

Bovendien bepaalt het BBP dat de inrich ng van het Bolivarplein de landschappelijke en stedelijke opwaardering van de Bolivaras naar de hoofdingang (en de gevel) van het sta onsgebouw en het verre uitzicht naar de Koninklijke Sint-Mariakerk integreert.

Het BBP laat overigens toe dat de bouwprofielen in het huizenblok van het sta on worden gewijzigd, als daarmee de architecturale, historische en esthe sche kwaliteiten van de gebouwen kunnen worden opgewaardeerd en zonder dat dit ten koste gaat van de uitzichten die door de opgelegde visuele uitzichten (zie hieronder).

In het BBP worden een nieuw steegje door het huizenblok CCN tussen de kleine Vooruitgangstraat en het mul modale sta on ten opzichte van de klokkentoren gecreëerd om dit laatste op te waarderen. De kwaliteit van deze doorgang en het landschappelijke belang ervan zullen in hoge mate worden bepaald door de concrete inrich ng van het steegje (o.m. breedte), gezien de zeer nauwe geometrie ten gevolge van de ligging ten opzichte van de limieten van het BBP (zie Structuur van de bebouwde en de open ruimten).

De ontwikkeling van een gebouw op het Solvayplein dreigt echter de uitzichten op de noordelijke ingang van het sta on en het coherente kunstwerk van de Quatrech unnel te verstoren:

Simula e van een 16 m hoog gebouw op het Solvayplein (zie presenta e van het voorkeurscenario)

De voorschri en met betrekking tot gebied C2 en de visuele uitzichten leggen evenwel de verplich ng op om het zicht op de Koninklijke Sint-Mariakerk en het zicht in de lengterich ng naar de gevel van het sta onsgebouw vanaf de Vooruitgangstraat niet te belemmeren.

In de Quatrech unnel bepaalt het BBP dat een bijzondere aandacht moet worden besteed aan de architecturale en de stedelijke integra e met het sta onsgebouw en zijn naaste omgeving.

Overigens impliceert de ontwikkeling van het mul modale sta on dat het ondergrondse effect blij bestaan, wat de lezing van de gevel van het sta onsgebouw op het stadsniveau verstoort - ondanks het feit dat deze onlangs werd gerenoveerd.

Hoofdstuk III / Afdeling 3 Effectenbeoordeling / C – ontwerp van BBP / p. 396 -
-
RUIMTELIJKE ORGANISATIE

Specifieker laat het BBP toe dat de in het terrein geïntegreerde kunstwerken op het Bolivarplein en in het gebied voor openbaar gebruik op privaat terrein worden geplaatst en opgewaardeerd, voor zover ze de vlotheid van de verplaatsingen en de interven es van de hulpdiensten niet bemoeilijken.

De middenbermen van de Albert II-laan, een plaatselijk symbolisch richtpunt, worden beschermd door hun registra e als parkgebied (zoals in het GBP).

Binnen depercelenzelfvoorziethetBBP geen echte landschappelijke opening doorde opening van de sokkels van de huizenblokken, zoals die worden voorgesteld in de gewestelijke Guidelines voor het huizenblok Proximus. Het BBPvermeldtevenweldatindegevelsopdebenedenverdiepingendoorkijkenentoegangentothetbinnenterrein van de huizenblokken kunnen worden voorzien.

Het BBP bepaalt ook dat de groendaken die vanaf de openbare ruimte of vanaf andere gebouwen zichtbaar zijn, een voldoende dik substraat moeten hebben om semi-intensief te zijn en ook gediversifieerde lagen moeten beva en (10 tot 30 cm volgens de Gids Duurzame Gebouwen), wat een guns ge invloed zal hebben op het plaatselijke landschap en de uitzichten vanaf de binnenkant van de percelen op de wijk.

De begeleidende maatregelen stellen dan weer voor om een geleidelijke vermindering van de hoogten van west naar oost tot aan het sta on te bevorderen, aangezien dit laatste rela ef laag is in vergelijking met de andere gebouwen in de wijk. Het is de bedoeling dat de gebouwen in het huizenblok CCN net vóór het sta on (aangezien de binnenstraat tot 15 m breed kan worden beperkt) niet te hoog zijn, zodat een verple eringseffect van het sta on en zijn toren kan worden voorkomen.

AANBEVELINGEN

De aanwezigheid van een symmetrie aan weerszijden van het Bolivarvoorplein zou het uitzicht vanaf de laan kunnen accentueren en de erfgoedelementen en stedelijke richtpunten - nl. het sta onsgebouw en de SintMariakerk die erachter zichtbaar is - kunnen benadrukken. Het accentueren van dit uitzicht is interessant maar mag niet primeren op het gebruikscomfort: slagschaduw op de openbare ruimten en tussen de gebouwen, blootstelling aan geluid of de wind, enz.

Hoofdstuk III / Afdeling 3 Effectenbeoordeling / C – ontwerp van BBP / p. 397
RUIMTELIJKE ORGANISAT IE

BEVOLKING EN HUISVESTING

ANALYSES

In kwan ta eve termen legt het ontwerp van BBP de ontwikkeling op van minstens 33% huisves ng in elk van de huizenblokken die in het BBP (buiten het huizenblok van het sta on) zijn opgenomen, zonder er een maximum voor op te leggen. Bovendien:

- legt het BBPeenminimum van 40% en een maximum van50% kantooroppervlakte op,een minimum van 8% voor uitrustingen en een maximum van 5% voor handelszaken;

- op de benedenverdiepingen krijgen uitrustingen van collectief belang of van openbare diensten, de handelszaken en de productieactiviteiten van het ambachtelijke type en van immateriële goederen voorrang, maar het BBP voorziet niet om een minimumoppervlakte voor de handelszaken op te leggen.

Vandaar:

- verplicht de ontwikkeling van het strikte minimum van 33% huisvesting om 12 tot 27% uitrustingen te ontwikkelen, afhankelijk van de ontwikkeling van kantoorruimten (40 tot 50%) en handelszaken (0 tot 5%), wat weinig waarschijnlijk en ook niet wenselijk is;

- indien geen enkele handelszaak wordt ontwikkeld - wat weinig waarschijnlijk en ook niet wenselijk isbedraagt het mogelijke maximale aandeel van huisvesting 52% (minimum kantoren en uitrustingen).

Indiendemaximalevloeroppervlaktenvoor allehuizenblokkenworden ontwikkeld,kan hetaantal voortgebrachte woningen en het aantal bijbehorende bewoners worden geschat op:

Het aantal bewoners in de perimeter zal sterk s jgen, van 0 in de huidige toestand tot ~2 000 à ~3 200 in de geplande toestand. Door die bevolkingstoename zal de dichtheid van de Noordwijk s jgen van ~121 bew/ha tot 136 à 145 bew/ha (waarbij geen rekening wordt gehouden met de woningen die zullen worden gebouwd in de delen van de huizenblokken CCN en Proximus buiten het BBP), wat onderaan de vork van de wijken in de eerste kroon (144 à 313 bew/ha) past. Ter vergelijking: in het geval van het voorkeurscenario (beperkt tot het BBP) is het aantal ontwikkelde woningen gelijk aan het minimum dat door het BBP wordt opgelegd. De opvang van bijkomende bewoners zal de mogelijkheid bieden om de levendigheid en het gemengde karakter van de wijk aanzienlijk te versterken. De toename van de dichtheid gaat overigens gepaard met de ontwikkeling van uitrus ngen en een uitstekende bereikbaarheid van de wijk met het openbaar vervoer, die in de toekomst nogzalverbeteren-stukvoorstukelemententengunstevaneen‘gecontroleerde’verdich ng.Degroeneruimten die op het Bolivarplein en de site van het Medical Center kunnen worden ontwikkeld, zouden de ‘houdbaarheid’ van de verdich ng van de wijk ondersteunen.

Hoofdstuk III / Afdeling 3 Effectenbeoordeling / C – ontwerp van BBP / p. 398
Stedelijke dynamiek
Maximale vloeroppervlakten per huizenblok Percentages BBP voor huisves ng Vloeroppervlakten voor huisves ng Aantal woningen (~ 100m²) Aantal bewoners (2,17 personen per gezin) Gebied A (North Galaxy) ~145 800 m² Min. 33% Max. 52% Min. ~38 000 m² Max. ~60 000 m² Min. 380 Max. 600 Min. 825 Max. 1 302 Gebied B (Proximus) ~49 250 m² Min. ~16 000 m² Max. ~26 000 m² Min. 160 Max. 260 Min. 348 Max. 565 Gebied C (huizenblok CCN) ~119 400 m² Min. ~40 000 m² Max. ~62 000 m² Min. 400 Max. 620 Min. 868 Max. 1 346 TOTAAL Min. ~94 000 m² Max. ~147 000 m² Min. 940 Max. 1 470 Min. 2041 Max. 3 213
STEDELIJKE DYNAMIEK

Geplandegroeneruimtenindewijk(Max-sur-Senne,2022)enbestaandeengeplandespeel-ensporerreinen(paarse sppen,LeefmilieuBrussel,2022)

In termen van huisves ng kan de produc e van woningen tegen het jaar 2030 worden berekend, aangezien de huizenblokken Proximus en CCN zich nog in de projec ase bevinden. Voor het huizenblok North Galaxy is nog geen enkel project bekend. Bovendien is het momenteel nog bezet, dus de woningen kunnen er worden gepland tegen 2050. Deze woningproduc e kunnen we toetsen aan de behoe en die door BISA werden geraamd voor de 3 betrokken gemeenten (tegen 2030) en voor het Gewest (tegen 2030 en 2050):

Vooruitzichten BISA Voorzien door het BBP Door het BBP ingevulde verhouding

Woningen tegen het jaar 2030

Gemeentelijke behoe en: 4 313

Gewestelijke behoe en: 7 029

Min. 560 Max. 880

Gemeentelijke behoe en: 13 à 20%

Gewestelijke behoe en: 8 à 12%

Woningen tegen

het jaar 2050

Gewestelijke behoe en: 19 000 Min 940 Max 1 470 5 à 8%

Het aantal ontwikkelde woningen beantwoordt aan een groot deel van de vraag naar woningen tegen de jaren 2030 en 2050 op een smal grondgebied met een zeer specifieke typologie (torens), te meer daar die cijfers geen rekening houden met de delen waarop het BBP of andere huisves ngsprojecten die in de wijk zijn vorozien (ZIN, Ferraris enz.) geen betrekking hebben. De maximumcijfers zijn overigens belangrijker dan de gescha e cijfers in de programmatorische alterna even. Dezelfde vragen kunnen worden gesteld over het belang van het aantal te

Hoofdstuk III / Afdeling 3 Effectenbeoordeling / C – ontwerp van BBP / p. 399
STEDELIJKE DYNAMIEK

bouwen woningen, te meer daar hun impact op het vlak van de mobiliteit belangrijk is (zie ‘verplaatsingen’) en de zeer luidruch ge omgeving van het gebied waarschijnlijk een invloed zal hebben op de kwaliteit van de gebouwde woningen(zie‘lawaaientrillingen’).Debegeleidendemaatregelenendevoorschri eninverbandmetdekwaliteit van de woningen zouden de mogelijkheid moeten bieden om een zekere kwaliteit te waarborgen, maar de stadsomgeving daar zal hoe dan ook luidruch g blijven.

Overigens wordt een minimum van 20% eengezinswoningen met 3 slaapkamers of meer verplicht gesteld, hetzij tussen 188 en 294 minimum indien alle vloeroppervlakten worden ontwikkeld (minimumaantal in het geval van het voorkeurscenario binnen het BBP). De voorschri en leggen overigens de verplich ng op om 20% van de woningen openbaar of met sociaal doeleinde te maken, hetzij tussen 188 en 294 minimum indien alle vloeroppervlakten worden ontwikkeld (minimum aantal in het geval van het voorkeurscenario, binnen het BBP). De stedenbouwkundige lasten die door de projecten ontstaan, zullen kunnen worden toegewezen aan de realisa evanopenbareofsocialewoningenbinnenofindenaasteomgevingvandeperimeter,indiendeopera es met betrekking tot de openbare ruimte en de openbare voorzieningen minder hoog liggen dan die kosten of in het geval van onmogelijkheid om ze te realiseren.

Deopname vandievoorschri enin het BBPverzekert deontwikkeling vaneenbepaaldegemengdheid indetypes woningen. De begeleidende maatregelen leggen ook de nadruk op het belang om een gediversifieerd woningaanbod te waarborgen op het vlak van de typologie (groo e, PBM, senioren, studenten, intergenera oneel, gezinnen).

De begeleidende maatregelen vermelden overigens dat de kosten van de sociale woningen beperkt moeten blijven,waardooreengrens opdiekostenzoukunnenwordenverzekerd(hogekostenindetypologievandehoge gebouwen). Het aandachtspunt in verband met de ontwikkeling van een zekere ‘ver cale sociale segrega e’ (waarbij de verkoop/verhuur van de laagste appartementen met een lagere prijs mogelijk wordt gemaakt door de verkoop/verhuur van de hoge appartementen tegen een hoge prijs, wat mogelijk is door hun kenmerken) blij van toepassing.

In kwalita eve termen leggen de voorschri en in verband met de algemene bepalingen de verplich ng op dat de verdiepingennietdieperdan22mzijnteneindedeminimalekwaliteitenbinnentewaarborgenendathetontwerp van de ruimten een natuurlijke verlich ng mogelijk maakt van de lokalen die bedoeld zijn om langdurig te worden gebruikt, onder meer voor de woningen. Punt 1.2 omvat overigens de voorschri en in verband met de kwaliteit van de woningen, zoals de toegang tot een kwalita eve buitenruimte, de inachtneming van het lawaai voor de lokalisa eendeinrich ng, het doorlopendekarakterofhetgebruik van minstens2gevelseneenverscheidenheid van de typologie van de woningen. De begeleidende maatregelen stellen overigens voor om een diversiteit van oriënta e en ligging te voorzien (woningen op de laagste verdiepingen, die uitzien op minder luidruch ge omgevingen ...).

AANBEVELINGEN

De aanbeveling die werd geformuleerd bij de analyse van de programmatorische alterna even met betrekking tot het aantal geproduceerde woningen blij actueel: het past om een voldoende grote verhouding woningen op de schaalvan hetproject tevoorzien(minstens20%) omdelevendigheidteverzekeren,maaranderzijdsishetgepast om de totale produc e van de woningen te beperken gezien de specifieke typologie en het aantal woningen met een vergelijkbare typologie die elders in de wijk wordt verwacht.

Bij de opstelling van de voorschri en en de begeleidende maatregelen werd rekening gehouden met de andere aanbevelingen die jdens de analyse van de analyses werden geformuleerd.

Hoofdstuk III / Afdeling 3 Effectenbeoordeling / C – ontwerp van BBP / p. 400
STEDELIJKE DYNAMIEK

UITRUSTINGEN EN HANDELSZAKEN ANALYSES

Het ontwerp van BBP legt de verplich ng op van de ontwikkeling van minstens 8% uitrus ngen en hoogstens 5% handelszaken in elk van de bestaande huizenblokken in het BBP (buiten het huizenblok van het sta on) en maakt de verstedelijking van het Solvayplein mogelijk om er uitrus ngen te ontwikkelen.

Overigens:

- legt het BBP een minimum van 40% en een maximum van 50% kantooroppervlakte en een minimum van 33% voor woningen op;

- krijgen op de benedenverdiepingen uitrustingen van collectief belang of van openbare diensten en handelszaken voorrang, maar het BBP voorziet niet om een minimumoppervlakte voor de handelszaken op te leggen;

- voor het huizenblok CCN, wordt het intermodale station tot de uitrustingen gerekend;

- is de vestiging van groothandelszaken niet toegelaten.

Vandaar:

- is het mogelijk om geen handelszaken in het gebied te ontwikkelen (d.w.z. uitsluitend de bestaande handelszaken in het station te behouden);

- de maximale verhouding voor de uitrustingen bedraagt 27%, die bepaalt dat geen enkele handelszaak mag worden ontwikkeld en dat slechts de verplichte minimale verhoudingen voor de huisvesting en de kantoren worden ontwikkeld, wat weinig waarschijnlijk en niet wenselijk is.

Men kan dus de minimale en de maximale oppervlakten van de handelszaken en de uitrus ngen berekenen die binnen het BBP kunnen worden ontwikkeld:

Ter vergelijking: in het kader van het voorkeurscenario (beperkt tot de perimeter van het BBP) zouden 33 340 m² uitrus ngen en 11 336 m² handelszaken worden ontwikkeld.

Hoofdstuk III / Afdeling 3 Effectenbeoordeling / C – ontwerp van BBP / p. 401
Maximale vloeroppervlakten per huizenblok Percentages BBP uitrus ngen Vloeroppervlakten uitrus ngen Percentages BBP handelszaken Vloeroppervlakten handelszaken Gebied A (North Galaxy) ~145 800 m² Min. 8% Max. 27% Min. ~9 200 m² Max. ~31 000 m² Min. 0% Max. 5% Min. 0 m² Max. ~5 700 m² Gebied B (Proximus) ~49 250 m² Min. ~4 000 m² Max. ~13 300 m² Min. 0 m² Max. ~2 500 m² Gebied C1 (huizenblok CCN) ~119 400 m² Min. ~9 500 m² Max. ~32 200 m² Min. 0 m² Max. ~6 000 m² Gebied C2 (Solvayplein) / 100% / 0% 0 m² TOTAAL Min. ~22 700 m² Max. ~76 500 m² Min. 0 m² Max. ~14 200 m²
STEDELIJKE DYNAMIEK

Aangezien de grondinname van de gebouwen door het BBP worden beperkt, is het mogelijk om de verhouding van die maximale verhouding die door handelszaken en uitrus ngen wordt gebruikt, voor elk van de huizenblokken (buiten gebied C2, dat uitsluitend bestemd is voor uitrus ngen) te berekenen:

Maximale grondinname per huizenblok

Gebied A (North Galaxy) 8 400 m²

Gebied B (Proximus) 2 170 m²

Gebied C1 (huizenblok CCN) 8 775 m²

Deel dat door uitrus ngen wordt ingenomen

Min. 109%

Max. 369% VO56: 137%

Min. 182%

Max. 613%

VO: 227%

Min. 109%

Max. 367%

VO: 136%

Deel dat door handelszaken wordt ingenomen

Min. 0%

Max. 68%

VO: 55%

Min. 0%

Max. 114%

SP: 91%

Min. 0%

Max. 68%

VO: 54%

Diefunc eskrijgenvoorrangopdebenedenverdiepingen,maarinsommigegevallennemenzeteveeloppervlakte in om alleen op de benedenverdiepingen te worden ondergebracht: die func es zouden dan ook op de enkele eerste verdiepingen (1,1 tot 7,3 verdiepingen) worden ontwikkeld. In het geval van het voorkeurscenario zouden diefunc esworden beperkt totdelaagstetweeverdiepingenvoor het huizenblokNorth Galaxyen het huizenblok CCN, maar zouden ze meer dan 3 verdiepingen innemen voor het huizenblok Proximus (binnen het BBP). Merk op dat het huizenblok Proximus en het huizenblok North Galaxy slechts ‘één enkele’ benedenverdieping hebben, terwijl het huizenblok CCN er twee hee (de verdieping op stadsniveau zal evenwel gedeeltelijk door het mul modale sta on worden gebruikt).

Voorzieningen

Net als bij de analyse van de alterna even kan een berekening worden gemaakt om de oppervlakte van de buurtvoorzieningen te scha en die zullen moeten worden voorzien ten gevolge van de komst van nieuwe bewoners in de wijk (a ankelijk van de lee ijdsgroepen).

De behoe e aan buurtvoorzieningen die zullen moeten worden voorzien door de komst van de nieuwe bewoners wordt dus geraamd op:

III / Afdeling 3 Effectenbeoordeling / C – ontwerp van BBP / p. 402
Hoofdstuk
Lee ijdsgroepen 0-2 3-5 6-11 12-17 18-29 30-44 45-64 65-79 80 en + Min. ( = SP13) 83 82 158 137 348 484 470 184 82 Max. 131 130 250 217 549 762 741 290 129
BBP Plaatsen in crèches 28 tot 43 Oppervlakte-equivalent 330 tot 520 m² Plaatsen in rust- en verzorgingstehuizen 20 tot 32 Oppervlakte-equivalent 1 024 tot 1 483,5 m² Plaatsen in de basisscholen
onderwijs) 241
Plaatsen in de middelbare scholen 137
Aantal huisartsen 3 tot 4 56 Voorkeurscenario STEDELIJKE DYNAMIEK
(kleuter + lager
tot 379
tot 217

De al bestaande en de geïnduceerde behoe en aan plaatsen in de crèche kunnen bij elkaar worden opgeteld. In het BBP kunnen een of meerdere crèches worden ontwikkeld van een groo e die is afgestemd op de vraag.

Watdeplaatsen inderust-enverzorgingstehuizen betre ,kanhet BBP deontwikkelingvanzo’ntehuisopvangen, waarin aan de bestaande en de geïnduceerde behoe en kan worden voldaan.

Wat de scholen betre , kan de behoe e die wordt gegenereerd door de herontwikkeling van het gebied worden opgevangen door de ontwikkeling van voorzieningen waar ook in de huidige toestand al nood aan is. De ontwikkeling van een basisschool (475 leerlingen) en een middelbare school (622 leerlingen) zou moeten worden voorzien. Merk evenwel op dat niet volledig aan de bestaande behoe en zou kunnen worden voldaan.

Op het vlak van gezondheidszorg zou in het BBP een gezondheidscentrum kunnen worden ontwikkeld (al bestaandebehoe e)metondermeerde3tot4huisartsendie‘nodig’zoudenzijnvoordenieuwebuurtbewoners.

De totale behoe en aan nabijheidsvoorzieningen (combina e van de geïnduceerde behoe en en de bestaande behoe en) kan op die manier worden geschat op min. ~18 000 (geval van voorkeurscenario) en max. ~18 300 m². Bij die oppervlakten worden de oppervlakten van het mul modale sta on gevoegd, die hier worden geteld als voorzieningen (namelijk ~4500 m² in gebied C1 en ~1000 m² in gebied C2). In totaal zijn dus bijna 23 500 à 23 800 m² uitrus ngen ‘nodig’ gezien de ontwikkeling van het gebied en de toename van zijn gemengdheid. HetontwerpvanBBPverplichtdeontwikkelingvanminstens ~27700m²,waardooraandiebehoe enkanworden voldaan. Bovendien zal tussen 3 900 en 4 200 m² beschikbaar zijn voor de ontwikkeling van andere uitrus ngen (waarvan een reeks in de richtlijnen voor de herontwikkeling van het gebied werd geïden ficeerd). In het geval van het voorkeurscenario bedragen de ontwikkelde oppervlakten voor uitrus ngen 33 340 m², die dus de ontwikkeling mogelijk maken van ‘bijbehorende’ uitrus ngen op een oppervlakte van bijna 10 000 m².

Merk op dat, gezien de ontwikkeling van de gemengdheid van het gebied, ook het aantal bezoekers sterk zal s jgen. A ankelijk van de ontwikkelde voorzieningen kunnen die hun verplaatsingen combineren om deze voorzieningentegebruiken,ookalszenietspeciaalhetdoelpubliek(buurtbewoners)zijn.Depoten ëlevraagnaar voorzieningen,dus degeïnduceerdebehoe en,zalduspoten eelgroterzijndanhierwerd berekend.Defactoren die deze vraag beïnvloeden zijn in dit stadium (of in het BBP) niet gespecificeerd. We kunnen deze vraag van de bezoekers dus niet ramen, alleen vermelden.

Omgekeerd is het zo dat indien de maximale oppervlakte van de uitrus ngen wordt ontwikkeld, ongeveer 81 500 m² voorzieningen beschikbaar zouden zijn, hetzij ~57 500 m² beschikbaar voor ruimere behoe en. Indien alle andere in de richtlijnen geïden ficeerde behoe en worden ontwikkeld (lokaal sportcentrum (de gemeente Schaarbeek hee al belangstelling getoond voor dit soort voorzieningen), opvangcentrum voor NGO's en nieuwkomers (specifiek voor de ligging van de onderzochte perimeter), huiswerkschool, opleidingscentrum voor maatschappelijk werkers, culturele voorzieningen, speelbibliotheek en opvangstructuur voor geestelijke gezondheidszorg), zou er nog 33 500 m² beschikbaar blijven voor voorzieningen. De beschikbare oppervlakten in het BBP zouden dus ook - gezien de centrale ligging en de uitstekende bereikbaarheid van de wijk met het openbaar vervoer - de mogelijkheid bieden om grote gewestelijke voorzieningen te ontwikkelen. Gezien de ontwikkelde totale oppervlaktenlijkthet datditdeelvoorzieningentegrootis(verantwoordelijken,financieringen ...).

Merk op dat de aandachtspunten die jdens de vorige fasen van het MER werden vermeld (namelijk het belang om voldoende verantwoordelijken en human resource te vinden voor de ontwikkeling van de voorzieningen en de specifieke behoe en van de scholen in verhouding tot de stedelijke typologie) in de begeleidende maatregelen werden behandeld.

Ten slo e merken we op dat de lasten van de stedenbouw die door het project worden voortgebracht, prioritair zullenwordenbestemdvoorderealisa evaneenuitrus ngvancollec efbelangof vanopenbaredienstenbinnen de perimeter. Deze zullen dus bijvoorbeeld kunnen worden gebruikt voor de realisa e van het mul modale sta on,waarvandeoppervlaktenbinnenhetBBP worden geteldalsuitrus ngenendiegelegenzijn ophetperceel van CCN, dat door een private par j wordt ontwikkeld.

Hoofdstuk III / Afdeling 3 Effectenbeoordeling / C – ontwerp van BBP / p. 403
STEDELIJKE DYNAMIEK

Handelszaken

Dehandelszakenwordenvoornamelijk inde huizenblokken NorthGalaxy enProximus ontwikkeld57,aangezienhet BBP in het huizenblok CCN (gebied C1) de ontwikkeling voorziet van maximaal ~6 000 m² en er momenteel (vóórd e a raakwerken) ~5 000 m² van bestaat.

Indien maximaal 5 % van de handelsaken wordt ontwikkeld (hetzij 14 200 m²), bedraagt het maximale deel van de woningen 47%, wat overeenstemt met de komst van ongeveer 2 900 omwonenden. In het geval van het voorkeurscenario worden 11 336 m² ontwikkeld voor ongeveer 2 030 omwonenden. Men kan de behoe en aan handelszaken inscha en op basis van het aantal bewoners volgens dezelfde veronderstellingen die worden gehanteerdindefasevanvergelijking vandeimpactvandealterna even.Devloeroppervlaktenvanhandelszaken met betrekking tot:

- eenequivalent‘grotestedenenbelangrijkecommerciëlecentra’bedragen15200m²(35,8handelszaken van 146 m² voor 1 000 bewoners) en 10 600 m² voor het voorkeurscenario (beperkt tot het BBP);

- een equivalent ‘dicht bevolkte delen van grote steden’ bedragen 5 510 m² (15,2 handelszaken van 125 m² voor 1 000 bewoners) en 3 855 m² voor het voorkeurscenario (beperkt tot het BBP); In verhouding tot het verwachte aantal bijkomende bewoners in het gebied en gezien het voorziene aantal m² handelszaken,voorzienhetontwerpvanBBPenhetvoorkeurscenariodeontwikkelingvaneengrotecommerciële pool (gelijkwaardig met ‘grote steden en grote commerciële centra’) die de behoe en aan buurtwinkels in de wijk en de limieten die door het GBP worden opgelegd, ruimschoots overtreffen.

Anderzijds biedt het BBP de mogelijkheid om geen handelszaken te ontwikkelen, waardoor de beschikbare oppervlakte voor huisves ng of uitrus ngen toeneemt. In dat geval kan men het aantal handelszaken scha en op het aantal bestaande handelszaken in het sta on, die beantwoorden aan de behoe e aan die bijzondere func e. Het aantal buurtwinkels zou dus niet volstaan om aan de behoe en te voldoen.

Merk op dat de begeleidende maatregelen voortellen om geen kledingwinkels en andere grote handelszaken van grote merken of meerdere supermarkten te ontwikkelen, wat beantwoordt aan de aanbevelingen van de vorige stappen van het MER.

Merk ook op dat het BBP zich niet uitspreekt over het beheer van de bestaande hoogteverschillen. De bestaande toestand op het CCN op het stadsniveau zal dan ook meer dan waarschijnlijk behouden blijven: de handelszaken/uitrus ngen die plaats innemen op het stadsniveau en die uitzien op de kleine Vooruitgangstraat en de Bolivaresplanade zullen wegens de aanleg van het bussta on ondergronds, zullen half ingegraven worden (in het geel aangeduid op de foto hieronder). Deze gevel is voor de zaken in deze as de enige bron van natuurlijke lich nval. De binnenruimten zullen daardoor van vrij ma ge kwaliteit zijn en de technische infrastructuren om het publiek van de openbare ruimte naar de binnenruimte te brengen (een trap of een andere infrastructuur) zullen minder ruimte laten voor de ac viteiten. Om dit probleem zoveel mogelijk te beperken zou dezelfde handelszaak/uitrus ng over meerdere verdiepingen kunnen worden ontwikkeld.

57 NB: De bestaande winkels in het sta on (ongeveer 4.000m²) worden hier niet meegerekend omdat zij veeleer verband houden met de specifieke behoe en van dit mul modale knooppunt en in die zin "leven" bij de bezoekers van de wijk (zonder de plaatselijke bewoners).

Hoofdstuk III / Afdeling 3 Effectenbeoordeling / C – ontwerp van BBP / p. 404
STEDELIJKE DYNAMIEK

De handelszaken/voorzieningen

het sta

toegankelijk zijn via de

In de kleine Vooruitgangstraat en het Noord/Solvayplein zullen die voorzieningen/handelszaken

het Bolivarvoorplein, de binnenstraat en het

gemakkelijk toegankelijk zijn wegens het niveauverschil (deze zullen 'op de verdieping’ liggen - zie oranje markering op de foto hierboven).

Deze toestand is niet op maal -niet alleen op het vlak van de ac vering van de openbare ruimte, maar ook op het vlak van de dialoog en de werking van de handelszaken/voorzieningen met de omliggende wijk.

AANBEVELINGEN

Hoewel het weinig waarschijnlijk is dat de hier geanalyseerde uitersten worden gerealiseerd, zou het relevant kunnenzijnomeenmaximaalkadervoortestellenvoordevoorzieningen.Delimietvan12%biedtdemogelijkheid om ~39 000 m² voorzieningen te genereren, hetzij ~15 000 m² beschikbaar voor de minder lokale behoe en. Alle behoe en die in de richtlijnen voor het gebied worden vermeld, zouden in dit kader kunnen worden ontwikkeld. De oppervlakten stemmen overeen met iets minder dan twee verdiepingen (1,75) voor de gebieden A, B en C2 als de grondinname van de gebouwen door de projecten wordt gemaximaliseerd. In verband met de handelszaken bestond de aanbeveling die jdens de analysefase van de programmatorische alterna even werd geformuleerd, erin om de oppervlakten van de handelszaken te beperken tot 4 à 11% van de oppervlakten die bestemd zijn voor de woningen. Hoewel het weinig waarschijnlijk is dat de hier geanalyseerde uitersten worden gerealiseerd, zou het relevant kunnen zijn om een minimaal kader voor te stellen voor de handelszaken. De grenswaarde van 1,5% biedt de mogelijkheid om een antwoord te bieden op de behoe en van buurtwinkels (4%, hetzij gemiddeld voor de dicht bevolkte delen van de grote steden) in het geval van de ontwikkeling van 37,5% woningen, wat relevant blij zelfs als er minder huisves ng wordt ontwikkeld, aangezien de reële behoe en aan handelszaken slechts van toepassing zijn op de omwonenden in dit specifieke geval van een dichtbevolkte stadspool emt belangrijke voorzienings- en kantoorfunc es.

ECONOMISCHE ACTIVITEITEN EN TRANSITIE ANALYSES

Het ontwerp van BBP legt een minimum van 40% en een maximum van 50% kantoren op (geval van voorkeurscenario).

Bovendien:

- legt het ontwerp van BBP een minimum van 33% woningen en 8% voorzieningen op;

- zijn andere economische activiteiten die toegelaten zijn, de productieactiviteiten van immateriële goederen en productieactiviteiten van het ambachtelijke type, zonder dat hiervoor een minimaal of maximaal aandeel voor die activiteiten is voorgeschreven.

Hoofdstuk III / Afdeling 3 Effectenbeoordeling / C – ontwerp van BBP / p. 405
In het oranje de verdieping op het sta onsniveau in het huizenblok CCN aan de kant van de Bolivaresplanade, in het geel de halfondergrondse verdieping op het stadsniveau van het huizenblok CCN aan de kant van de Bolivaresplanade – BRAT 2022 op onsniveau in het huizenblok CCN zullen grondplaat op Solvayplein. niet
STEDELIJKE DYNAMIEK

STEDELIJKE DYNAMIEK

Het maximale aandeel voor de produc eac viteiten bedraagt dan ook 19%, dat bepaalt dat geen enkele handelszaak mag worden ontwikkeld en dat slechts de verplichte minimale verhoudingen voor huisves ng, kantoren en voorzieningen worden ontwikkeld, wat weinig waarschijnlijk en niet wenselijk is.

Men kan dus de minimale en de maximale oppervlakten van de kantoren en de produc eac viteiten berekenen die binnen het BBP kunnen worden ontwikkeld:

Maximale vloeroppervlakten per huizenblok

Percentages BBP voor kantoren

kantoren

Gebied

Vloeroppervlakten produc eac Max. ~21 800 m² Max. 330 Gebied B (Proximus) ~50 000 m² Max. ~9 300 m² Max. 140 Gebied C (huizenblok CCN)

Maximale vloeroppervlakten per

viteiten ~120 000 m² Max. ~22 700 m² Max. 340 TOTAAL Max. ~53 800 m² Max. 810

In het voorkeurscenario binnen het BBP worden 50% kantoren en 3% produc eac viteiten ontwikkeld, hetzij respec evelijk 141 700 m² en 8 500 m², waar werk kan worden gecreëerd voor 7 000 en 128 mensen.

De aanbevelingen die werden geformuleerd in de fase van de analyses van de programmatorische alterna even waren gericht op een kantorenoppervlakte van 200 000 tot 246 000 m² in alle huizenblokken. Aangezien het BBP betrekking hee op slechts 30% van het huizenblok Proximus en 67% van het huizenblok CCN, bedraagt deze vork voor het gebied dat in het BBP is opgenomen, ~138 000 tot ~170 000 m². De minimumlimiet die door het BBP wordt opgelegd, biedt niet de mogelijkheid om die oppervlakten te behalen en de maximale limiet biedt de mogelijkheid om de minimale aanbeveling licht te overschrijden.

Teneinde de aanbevolen vloeroppervlakten voor de kantoren te bereiken, zouden de kantoren in het ontwerp van BBP tot minstens 49 en hoogstens 60% moeten worden beperkt.

Hoofdstuk III / Afdeling 3 Effectenbeoordeling / C – ontwerp van BBP / p. 406
werknemers
Vloeroppervlakten
Aantal
(1/20m²)
A (North Galaxy) ~115 000 m² Min. 40% Max. 50% Min. ~46 000 m² Max. ~57 400 m² Min. 2 300 Max. 2 900
B (Proximus) ~50 000 m² Min. ~19 700 m² Max. ~24 600 m² Min. 1 000 Max. 1 200 Gebied C (huizenblok CCN) ~120 000 m² Min. ~47 800 m² Max. ~60 000 m² Min. 2 400 Max. 3 000 TOTAAL Min. ~113 400 m² Max. ~141 700 m² Min. 5 700 Max. 7 000
Gebied
huizenblok
Percentages BP voor de produc eac viteiten Aantal werknemers (1,5/ 100m²) Gebied A (North Galaxy) ~115 000 m² Min. 0% Max. 19%
AANBEVELINGEN

KWALITEIT VAN DE OPENBARE RUIMTE, EN DAN MEER BEPAALD VOOR DE VERPLAATSING EN HET VERBLIJF EN ACTIVERING VIA DE BENEDENVERDIEPINGEN

ANALYSES

De grotere gemengdheid op de benedenverdiepingen zal globaal gezien zorgen voor een betere ac vering van de openbare ruimte.

Meer dan de volledige benedenverdiepingen van de gebouwen zal worden toegewezen aan handelszaken en voorzieningen (zie Voorzieningen en handelszaken). Die func es krijgen voorrang op de benedenverdieping met de bedoeling omd e gevels te ac veren, wat het volgende impliceert:

- het gebruik van de benedenverdiepingen en de lagere verdiepingen voor de voormelde functies in de huizenblokken Proximus en North Galaxy.

- het gebruik van een deel van het stadsniveau dat niet wordt ingenomen door het multimodale station en van minstens het geheel van het stadsniveau.

Alle benedenverdiepingen zullen dus a priori worden geac veerd door handelszaken en voorzieningen langs alle wegen van de perimeter.

Algemeen gesteld krijgt de huisves ngsfunc e a priori voorrang op de hogere verdiepingen van de verschillende gebouwen. De begeleidende maatregelen stellen evenwel voor om een deel van de woningen onder de 5e verdieping te lokaliseren, ‘in contact’ met de openbare ruimte, wat in het voordeel van dit criterium zou spelen.

De uiteindelijke ac veringsgraad zal a ankelijk zijn van de keuze van de uitrus ngen en de handelszaken (die in deze fase onbekend zijn), de inrich ng van die verschillende func es en de dialoog die ze onderhouden met de openbare ruimte. De begeleidende maatregelen stellen in die zin voor om meer toegangen te voorzien tot de verschillende func es van de gebouwen via de benedenverdiepingen en een poreuze interface te bevorderen van de gevels met de openbare ruimte (mul pliciteit van de toegangen, doorzich gheid en uitzichten op de binnenkant...),maarbevorderenook deaanlegvantoegangen voorvoetgangersin elkegevalvandebouwwerken en de ra onalisa e van de verharde toegangen (parking en logis ek).

NB: De kwaliteit van de openbare ruimten voor verplaatsingen en verblijf zal onder meer a ankelijk zijn van de windeffecten, die worden bepaald door de ontwikkeling van de bebouwde ruimten. De bouwwerken, die a priori van het type ‘torengebouw’ zijn, zullen een zeker effect op de luchtverplaatsingen en een impact op de kwaliteit van de verplaatsing en het verblijf in de openbare ruimte hebben, zonder dat het mogelijk is om ze in deze fase nauwkeuriger te analyseren (a ankelijkheid van de precieze vorm van de gebouwen, hun opstelling ...).

De voorschri en van het ontwerp van BBP zullen verschillende toestanden creëren voor de verschillende openbare ruimten in het gebied:

Op de Bolivaresplanade en de Albert II-laan zullen de gevels worden geac veerd door de aanwezigheid van handelszaken, voorzieningen en produc eac viteiten en door de toegangen tot de kantoren en de woningen. De Bolivaresplanade zal voor 60% doordringbaar moeten zijn, hetzij iets meer dan 5 000 m² (op de bijna 8 500 m² vanhetplein).Dezelimietmaaktondermeerde ontwikkeling vanondoordringbareverhardewegenmogelijk voor hetverkeer(enindiennodighetparkeren)vandebussen.Hetautoverkeerwordtopdeesplanadeaprioribeperkt, aangezien de voorschri en het behoud van verharde wegen voorzien voor de doorgang van openbaar vervoer en de hulpdiensten. Parkeren op de weg is er overigens niet toegelaten. Dit speelt in het voordeel van het gebruikscomfort (verplaatsing en verblijf) en a priori van de kwaliteit. De voorschri en in verband met de aanplan ng (maximalisa e, hoogstammige bomen, verscheidenheid van de lagen) zullen een posi eve invloed hebben op de kwaliteit van de verplaatsingen en het verblijf in deze ruimte. De impact van de aanplan ngen op het comfort (en dan meer bepaald het warmte-eilandeffect) zal niet alleen a ankelijk zijn van de werkelijke omvang van de groene ruimte, het soort ontwikkelde aanplan ng, maar ook van het soort beheer. De keuze van de materialen, de organisa e van de inrich ngen en hun toepassing, evenals de overeenstemming met de nabije omgeving, zullen ook van doorslaggevend belang zijn om een zekere kwaliteit van die openbare ruimte mogelijk temaken.Debeslissingeninverbandmethetopenbaarvervoer(behoudvandeterminalendraaienvandebussen op de esplanade) spelen ook een rol in de kwaliteit van deze ruimte. Dit valt echter buiten het toepassingsgebied van het BBP.

Hoofdstuk III / Afdeling 3 Effectenbeoordeling / C – ontwerp van BBP / p. 407 Menselijke omgeving
MENSELIJKE OMGEVING

Het Solvayplein is bebouwbaar geworden voor de ontwikkeling van een gebouw waarin voorzieningen zijn ondergebracht en dat gedeeltelijk over het mul modale sta on uitsteekt. De band met de Brabant- en de Gaucheretwijk zal hierdoor worden verbeterd, maar doordat de ruimte op stadsniveau door het mul modale sta on en de ingang tot de ondergrondse parkeergarage worden gemobiliseerd, zullen de Solvayas en de kleine Vooruitgangstraat hierdoor slechts weinig worden geac veerd.

Handelszakenen/of uitrusngenen/of produceacviteiten Voorziening

Gevelsindeopenbare ruimtegeacveerd,in samenhangmetde doortochtvan voetgangers

Gevelsvande halfondergrondse ruimten

Gevelsindeopenbare ruimtegeacveerd,in samenhangmetde mobiliteit(ingangen staon+metro+ fietsparking)

Gevelsindeopenbare ruimtediedoorde voorzieningworden geacveerd

Doorgangsgebieden voorhetpubliek overdektmeteen plaat

Doorgangsgebieden voorhetpubliekop eenplaat

Hoofdstuk III / Afdeling 3 Effectenbeoordeling / C – ontwerp van BBP / p. 408
MENSELIJKE OMGEVING
Stadsniveau

Ac vering van de openbare ruimte via de benedenverdiepingen in het ontwerp van BBP - op basis van het bestemmingsplan

De Kwatrech unnel is een gebied dat volgens de analyse van de diagnose meer zou moeten worden geac veerd. De vorm van het mul modale sta on biedt voldoende ruimte voor de bussen om in het huizenblok te keren aan de uitgang van de tunnel, wat a priori niet in het voordeel van deze laatste speelt. Dit sta on zal evenwel worden overdekt en verlengd door een voorziening, waardoor de doorgang en de sociale controle in dit deel van de perimeter zou moeten kunnen verbeteren. De impact van de ontwikkeling van een groene en/of open ruimte op het terrein van de Medical Center (Vooruitgangsruimte) zal worden bepaald door de kwaliteit van de uitvoering en van de ac viteiten die er zullen worden voorgesteld. Deze ruimte zal echter ver van de uitrit van de tunnel liggen ten gevolge van de poten ële ontwikkeling van de StEp en de technische uitgangen verbonden met de metro noord.

De ac vering van de Aarschotstraat blij ongewijzigd ten opzichte van de huidige toestand.

Op het terrein van het Medical Center wordt ook een groene en/of open ruimte ontwikkeld. De ontwikkeling van een hoogwaardige ruimte blij niet alleen een uitdaging wegens de ligging aan de rand van de spoorweg, aan de uitrit van de tunnel en aan de rand van de wegen voor vrachtwagens en Auto Confort (zie SMV), 3 elementen die lawaai veroorzaken, maar ook in termen van haalbaarheid gezien het ontwerp van zuiveringssta on en anderen technische beperkingen die verband houden met metro noord (zuiveringssta on, nooduitgangen van de tunnel).

De ruimte geniet wel een behoorlijke bezonning in vergelijking met de rest van de wijk. Het ‘laaggelegen’ Bolivar-voorplein en de binnenstraat/intermodaal sta on, op het stadsniveau, die beide overdekt zijn, blijven veeleer monofunc oneel: ze zijn bedoeld voor het mul modale sta on en worden afgezoomd door het CCN en/of de geval van het sta onsgebouw. De ruimte wordt a priori niet geac veerd door andere ac viteiten dan mobiliteit en de technische installa es die nodig zijn voor het sta on. De organisa e van hetmul modale sta onzalvandoorslaggevend belang zijn voorde kwaliteitvan deze openbareruimteondereen plaat (al dan niet slui ng ter hoogte van de doorgang/bushalte, door een al dan niet blinde muur, beheer van het inspringende gedeelte, verlich ng, ligging van de halten, organisa e van de stromen van de ac eve verplaatsingswijzen, kwaliteit van de materialen en hun toepassing ...). Merk op dat de bestaande niveauverschillen (tussen de Bolivaresplanade, het huidige bussta on en de ingang van het sta on via de binnenstraat) in beginsel gehandhaafd blijven: door deze ruimte te bedekken met een plaat is het niet mogelijk deze tussen het sta on en de esplanade Bolivar gelijk te trekken, te meer daar de bussen over dit niveau rijden

Hoofdstuk III / Afdeling 3 Effectenbeoordeling / C – ontwerp van BBP / p. 409
MENSELIJKE OMGEVING

(mul modaal sta on). Dat speelt niet in het voordeel van een verbetering van de kwaliteit en het comfort van de verplaatsingen.

Het ‘hooggelegen’ Bolivar-voorplein en de binnenstraat op het sta onsniveau zullen worden geac veerd door handelszaken en uitrus ngen die uitkijken op de plaat. De indeling van het sta on, die veeleer gecentreerd is rond de sta onshal, is niet verbonden met de buitenkant op het sta onsniveau, met uitzondering van de toegangsdeuren in het sta on: de gevel van het sta onsgebouw op die verdieping zal alleen worden geac veerd door die func onele ingangen. Het BBP voorziet dat deze gevel een buitengevel is, terwijl hij momenteel een binnengevel is (ziet uit op CCN, overdekt) en dat ze jdens de renova ewerken van het sta on niet werd vernieuwd. Een aandachtspunt is dus dat deze gevel zal moeten worden vernieuw als hij opnieuw 'in open lucht’ wordt geplaatst. De gevels op sta onsniveau op de plaat zullen dus slechts worden geac veerd aan de kant van het huizenblok CCN (gebieden C1 en C2).

Het BBP laatoverigensslechts toedathetBolivarvoorplein30m breedisvooreenbouwvergunning inde naburige gebieden tot 110 m. Deze verhouding lijkt niet de mogelijkheid te bieden om het verple eringseffect te beperken, aangezien deze ruimte al beperkte kwaliteiten hee (bijna permanente beschaduwing ...). Bovendien zijn de ontwikkeling van een voorplein in de hoogte (op een plaat), die voorzien is door het ontwerp van BBP, de ontwikkeling van gebouwen langs het voorplein over de volledige lengte (Bolivar-as), dat door het ontwerp van BBP is voorzien en de beperkte breedte van het voorplein, dat door het ontwerp van BBP mogelijk is gemaakt, drie elementen die in het nadeel van het windcomfort in die ruimte zullen spelen.

HetnieuwesteegjedatwordtaangelegdtussendekleineVooruitgangstraatenhetmul modalesta onterhoogte van de toren van het sta onsgebouw, vormt een zeker risico op het vlak van de kwaliteit. Door de limiet die door de gemeentegrens wordt gevormd, voorziet het BBP slechts een trapeziumvormig steegje, waarvan de breedte58 varieertvan~2,5tot7movereenlengtevan~37m.Ditsteegjekaninhetnoordelijkegedeeltewordenafgezoomd door een hoogbouw die tot 110 m hoogte kan reiken. De zuidelijke limiet van dit steegje wordt gevormd door de gemeentegrenstussenSchaarbeekenSint-Joost-ten-Node. Tenzuidenvandezegemeentegrensishetgebied niet opgenomen in een BBP en ligt het in een administra egebied van het GBP, waardoor het volledig kan worden verstedelijkt. Hoewel dit weinig waarschijnlijk is, bestaat het risico dat een aanvraag tot stedenbouwkundige vergunning leidt tot een steegje zoals dat in onderhavig BBP is getekend, dat in het noorden en in het zuiden door hoge hoogbouw wordt afgezoomd. Bovendien mondt dit steegje in het westen uit op de kleine Vooruitgangstraat en in het oosten op het mul modale sta on dat door een plaat is overdekt. De concrete indeling van het sta on en van het grondgebied van de gemeente Sint-Joost zijn van doorslaggevend belang om een beslissing te nemen over de kwaliteit van deze ruimte. De begeleidende maatregelen suggereren in dat verband om een coherente verstedelijking te verzekeren in het huizenblok CCN in de gemeente Sint-Joost-ten-Node (geen bouwlijn op de gemeentegrens, rekening houden met de ligging van de bestaande hoogbouw om er nieuwe te ontwikkelen, coherente verlenging van de plaat ...), waardoor de kransen toenemen dat het nieuwe steegje dat uitziet op de toren van het sta on voldoende breed is en dat er geen hoge en recht tegenover elkaar staande hoogbouwgebouwen worden ontwikkeld in de gemeente Sint-Joost-ten-Node.

De kleine Vooruitgangstraat zal via de benedenverdiepingen worden geac veerd en zou dezelfde bouw als momenteelkunnenbehouden.RechttegenoverhethuizenblokNorthGalaxyisdeachteruitbouwzonemomenteel immers openbare ruimte. Als het de bedoeling is om deze bouw te behouden, impliceert dit in dat de andere achteruitbouwzones in dit huizenblok de nodige groene ruimten voor het huizenblok zouden moeten worden aangelegd (50%, hetzij iets meer dan 1 100 m²). De achteruitbouwzones die niet langs de kleine Vooruitgangstraat liggen, zouden daarom voor bijna 68% moeten worden beplant.

Er zal een bijzondere aandacht moeten worden besteed aan de overgang tussen de gebieden C1 en C2 op het niveau van de stad als die gebieden niet gelijk jdig worden ontwikkeld, teneinde de nega eve impact te beperken van de ontwikkeling van een puntgevel in de wacht op een naburig gebouw in het gebied C1 dat uitkijkt op gebied C2 (Solvayplein) en nog niet is gebouwd en een coherente en beveiligde plaat, zelfs als het gebied C2 nog niet is ontwikkeld. Die aandachtspunten werden in de begeleidende maatregelen geïntegreerd.

Merk op dat de lasten van de stedenbouw die door het project worden voortgebracht, prioritair zullen worden bestemd voor de realisa e/herinrich ng van openbare ruimten binnen de perimeter.

58 Er zij op gewezen dat de breedte inderdaad 2,5 m kan bedragen, met de eis van 5 m alleen wanneer "de configura e van het gebied dit toelaat".

Hoofdstuk III / Afdeling 3 Effectenbeoordeling / C – ontwerp van BBP / p. 410
MENSELIJKE OMGEVING

AANBEVELINGEN

Ter herinnering: de grote groei van het aantal gebruikers en hun diversiteit van de zone vergroot de noodzaak om de kwaliteit van de openbare ruimte voor verplaatsingen en verblijf te verzekeren in het strategische gebied dat door het BBP wordt behandeld.

De meeste aanbevelingen die jdens de analyse van de alterna even werden geformuleerd (vermijden van de ontwikkeling van een plaat, de voorkeur geven aan een compact en gedecentreerd mul modaal sta on, de binnenstraatontdekken...)werdenomtechnischeredenennietgevolgd.Dieaanbevelingenzijndanooknietmeer relevant.

Toch kunnen sommige aanbevelingen worden herhaald, terwijl andere, voortvloeiend uit de analyse van het ontwerp van BBP hier worden geformuleerd:

- ten minste in de begeleidende maatregelen de lengte van de plaat op het Bolivarvoorplein beperken, zodat ze slechts de zone die door de bussen wordt gebruikt, bedekt. Op die manier zou een natuurlijke verlichting kunnen worden verzekerd, zouden de insprongen kunnen worden beheerd en zou de toegankelijkheid van het multimodale station worden verbeterd, zouden kwalitatief meer hoogstaande handelszaken langs de Vooruitgangstraat kunnen worden ontwikkeld en zouden hoogwaardige groene ruimten en een betere leesbaarheid kunnen worden ontwikkeld;

- een voldoende breedte verzekeren voor het Bolivarvoorplein, die coherent is met de mogelijke hoogte van de naburige gebouwen, om het verpletteringseffect en de windeffecten te beperken;

- behalve de verplichte uitvoering van een onderzoek over de windeffecten bij de vastgoedontwikkelingen zou het BBP moeten bepalen dat er maatregelen moeten worden getroffen op basis van de resultaten van die onderzoeken om de bestaande toestand te verbeteren of om te vermijden dat ze slechter wordt en op zijn minst de voortgebrachte negatieve effecten verminderen;

- gezien de talrijke metamorfoses die momenteel aan de gang zijn en die nog zullen plaatsvinden in de Noordwijk, dient een bijzondere aandacht te worden besteed aan de activering van de openbare ruimte in verband met de talrijke werken in de toekomst.

GELUID EN TRILLINGEN

ANALYSES

Het ontwerp van BBP voorziet een verhoging van de oppervlakten die bestemd zijn voor handelszaken, produc eac viteiten en uitrus ngen, wat impliceert dat het bijbehorende verkeer (omwonenden, werknemers, bezoekers) ook zal s jgen, evenals het verkeer in verband met de leveringen. Dit zal leiden tot een algemene s jging van het niveau en van het soort verwacht lawaai (in een reeds aanzienlijk luidruch ge stadsomgeving (spoorweg, bussen en toekoms ge trams, verkeersassen voor vrachtwagens en PL +)).

Daarnaast voorziet het ontwerp van BBP de ontwikkeling van woningen, een geluidsgevoelige func e, in de huizenblokken North Galaxy, Proximus en CCN, en in een stadstypologie die niet guns g is voor dit criterium (torengebouwen). De voorschri en en de begeleidende maatregelen van het BBP zijn erop gericht om de impact vanhetlawaaiopdeontwikkeldewoningentebeperken(hunontwikkelingmoetrekeninghoudenmetdebronnen van lawaai, er moeten beschermingsmaatregelen worden getroffen ten opzichte van geluidshinder), maar de specifieke omgeving van de wijk blij een nega ef punt in verband met dit criterium.

Het BBP voorziet in zijn voorschri en en begeleidende maatregelen aandacht voord e keuze van de materialen en de indeling van de bebouwing a ankelijk van het lawaai.

Specifieker zullen verschillende dekten waarop het BBP betrekking hee , hun toestand zien evolueren. De Bolivaresplanade zal bevrijd worden van het verkeer van personenauto’s. Merk op dat het lawaai en de trillingen die verband houden met voorbijrijdende en tot s lstand komende bussen (met soms langdurig verblijf aan de halten) al jd aanwezig zal zijn en dat in de ruimte ook de tram hoorbaar zal zijn. Gelijk jdig zal deze ruimte poten eel meer worden blootgesteld aan lawaai van de spoorweg wegens de opening in de bebouwing van het huizenblok CCN. Omdat de spoorweg echter hoger ligt dan het plein, en aan de andere kant van het sta onsgebouw (dat dus een scherm vormt), zal de geluidshinder beperkt blijven. De context is bovendien al lawaaierig. Door de beplan ng die in deze ruimte wordt ontwikkeld (‘te maximaliseren’) zal het mogelijk zijn om

Hoofdstuk III / Afdeling 3 Effectenbeoordeling / C – ontwerp van BBP / p. 411
MENSELIJKE
OMGEVING OMGEVING

een bufferzone aan te leggen (doelstelling van s lle zone, maar in een stadsomgeving die voor het overige te luidruch g is). De omvang van zijn impact zal a ankelijk zijn van de toepassing.

Het mul modale sta on (met inbegrip dus van de busterminal) wordt overdekt door gebouwen en een plaat, waardoor het betreffende geluid onder de plaat kan worden gehouden. Het lawaai en de trillingen in verband met de bussen zullen echter poten eel een invloed hebben op de kwaliteit van de naburige binnen- en buitenruimten rond het sta on (ernaast en erboven, hetzij voor de handelszaken en de voorzieningen in gebied C (1 en 2) en voor de voetgangers en de fietsers in het mul modale sta on). Die elementen zullen moeten worden geanalyseerd in de ontwerpfase (exacte indeling van het sta on, al dan niet afsluiten van de boorden ...) en het BBPvermeldtditalinzijnbegeleidendemaatregelen.Dezelaatstestellenoverigensvooromaanderandenboven het mul modale sta on geen func es te ontwikkelen die gevoelig zijn voor lawaai en trillingen. Er mag worden verwacht dat het verkeerslawaai op de Solvay-as en de Vooruitgangsas algemeen gesteld behouden zal blijven, aangezien dit verkeersassen zijn voor personenauto’sen vrachtwagens in de zin van de SMV (toename in eerste instan e en vervolgens afname van naar veronderstelling 6 tot 10% van het verkeer tegen het jaar 2030). De kwaliteit van de groene ruimte die op het terrein van het Medical Center wordt ontwikkeld, zal dus worden beïnvloed door het lawaai en de trillingen die met deze assen verband houden, naast de uitgang van de tram en de aanwezigheid van de spoorweg.

A ankelijk van de posi onering van de hoogbouw langs de kleine Vooruitgangstraat zal de weergalm van het geluid poten eel problema sch zijn, maar het BBP vermeldt in de begeleidende maatregelen dat het er de nodige aandacht aan zal besteden.

AANBEVELINGEN

Net als bij de vorige stappen, roept de analyse van dit criterium vragen op over de ontwikkeling van woningen in de perimeter en vooral over de manier waarop ze zullen worden ingeplant (met name in de torengebouwen) gezien het algemene geluidsniveau in de wijk en de ligging van de geluidsbronnen (wegen en spoorwegen, dus overal in het gebied).

LUCHTKWALITEIT

ANALYSES

Het ontwerp van BBP voorziet in de inperking van de kantooroppervlakten ten gunste van de ontwikkeling van woningen. Gelet op de bestaande en de geplande modale aandelen (Good Move) zal het autogebruik in de wijk toenemen (zie het thema Verplaatsingen), wat een nega ef effect zal hebben op de lokale luchtkwaliteit.

Het ontwerp van BBP voorziet overigens de toename van de vloeroppervlakken op een algemene manier, maar ook een wijziging van de func es, die moeten leiden tot een zware renova e of een a raak-heropbouw, wat een posi eve impact hee op de beperking van het energieverbruik bij gebruik (zie Energie).

Het ontwerp van BBP bevordert overigens de ontwikkeling van beplan ng, hoogstammige bomen en gevarieerde lagen,watglobaalgenomenguns gis,ongeachtofhetgaatomrijbomenofgroeneruimten.Hierdientopgemerkt dat het effect van beplan ng louter lokaal is (geen significante vermindering van de luchtverontreiniging op schaal van de stad) en dat de configura e van de beplan ng ten opzichte van de bronnen van de luchtverontreiniging doorslaggevend is. Overigens wordt het behoud van bestaande volwassen bomen (hoge bladindex) en de lokalisa e en het type van de beplan ng langs de wegen aangemoedigd in de begeleidende maatregelen, wat een posi eve impact hee op dit criterimu.

AANBEVELINGEN

Sommige aanbevelingen die jdens de vorige stappen werden geformuleerd, kunnen hier worden herhaald:

- Gevoelige activiteiten zoals huisvesting, horeca (terrassen) en bepaalde voorzieningen (scholen, medisch centrum) moeten op voldoende afstand blijven van de assen Solvay en Albert II en van het noordelijke deel van de Vooruitgangstraat (Auto en VV Comfortwegen);

- De luchtafvoeren van de horeca-activiteiten op de benedenverdiepingen van de huizenblokken, in de ondergrondse parkings en op de schoorstenen van de stooklokalen kunnen hinder veroorzaken, vooral voor de woningen. Er wordt aanbevolen om de ventilatie- en rookafvoeren in de mate van het mogelijke

Hoofdstuk III / Afdeling 3 Effectenbeoordeling / C – ontwerp van BBP / p. 412
MENSELIJKE OMGEVING

te plaatsen op de daken van de hoogste gebouwen en vrij ver van de ramen van de dichtstbij gelegen gebouwen. Dit maakt a priori het voorwerp uit van andere reglementeringen (GSV).

VEILIGHEID ANALYSES

Het ontwerp van BBP speelt in op de uitdaging om het backstreeteffect te beperken door meer toegangen in de verschillende gevels te voorzien, aangezien de voorschri en en de begeleidende maatregelen dit vermelden. DegroeneruimtediewordtgeplandophetperceelvanhetMedicalCenteriseenaandachtspuntgeziendeligging. Aandeoostkantwordtzebegrensddoordespoorweg,aandenoordkantdoordetramdiehierbovengrondskomt, aan de westkant door de Vooruitgangstraat die een Auto en VV Comfortweg is en aan de zuidkant door de Solvayas, eveneens een Auto en VV Comfortweg. Bovendien ligt deze groene ruimte aan de uitgang van de Kwatrech unnel.Aldezeinterfacesbemoeilijkendeac veringenhoudenhetrisicoindatdegroeneruimtevooral ‘s nachts publiek zal trekken. Daarbij komt dat de lee aarheid van een groene ruimte op die plaats twijfelach g is gezien het project Metro Noord, de technische en veiligheidsbeperkingen (nooduitgangen) en het waterzuiveringssta on. De bouw van de bouwlijn naast en boven het mul modale sta on op het Solvayplein zal de mogelijkheid bieden om dit gebied te ac veren en er publiek naar toe te brengen - een gebied waarvan de kwaliteit en de veiligheid waarschijnlijk een van de meest complexe zal zijn om te verzekeren. De inrich ng van het mul modale sta on en de akkoorden over het beheer ervan (slui ng 's nachts, plaatsing van hekken ...) zullen van doorslaggevend belang zijn voor de (objec eve en de subjec eve) veiligheid bij de doorgang onder de plaat (binnenstraat/overdekt mul modaal sta on en laaggelegen Bolivarvoorplein), maar ook in het nieuwe aangelegde steegje en dit zowel op het vlak van de verkeersveiligheid als de veiligheid van personen. De voorschri en van het ontwerp van BBP voorzien dat de algemene inrich ng (verlich ng, configura e, ac vering) van de overdekte ruimten, namelijk het mul modale sta on en de Quatrech unnel, zo zal moeten worden ontworpen om een veiligheidsgevoel te bevorderen (verlich ng, comfort ...) en dat een beheerovereenkomst zal moeten worden gesloten voordat de vergunningen worden uitgereikt.

Het hooggelegen Bolivarvoorplein neemt een posi e van geïsoleerde openbare ruimte in ten opzichte van de rest van het stadsweefsel (in de hoogte), wat zijn rol op het vlak van de ac vering van het gebied, zal bemoeilijken, aangezien zijn uitstraling (op het vlak van de ac vering) zich tot zijn eigen grenzen zal beperken. Gezien zijn geografische ligging en zijn onmiddellijke context zou de ontwikkelde plaat poten eel niet meer toegankelijk zijn voor de hulpdiensten, als ze wordt ontkoppeld van de bestaande toegangshelling (Noordplein). Ze zou dus niet kunnen worden gebruikt om de bestaande toestand op dit punt te verbeteren. Aangezien het BBP dit knooppunt niet bestrijkt (gelegen op het grondgebied van de gemeente Sint-Joost), kan dit mogelijke verbeteringspunt niet worden verzekerd. De begeleidende maatregelen vermelden dit punt evenwel.

AANBEVELINGEN

De meeste aanbevelingen die jdens de analyse van de alterna even werden geformuleerd (vermijden van de ontwikkeling van een plaat, de voorkeur geven aan een compact en gedecentreerd mul modaal sta on, de binnenstraatontdekken...)werdenomtechnischeredenennietgevolgd.Dieaanbevelingenzijndanooknietmeer relevant.

In de Noordwijk worden nu en in de toekomst heel wat veranderingen doorgevoerd. Bijzondere aandacht moet worden besteed aan de veiligheid/gezelligheid van de openbare ruimten, in samenhang met de vele toekoms ge werven.

Hoofdstuk III / Afdeling 3 Effectenbeoordeling / C – ontwerp van BBP / p. 413
MENSELIJKE OMGEVING MENSELIJKE OMGEVING

VERPLAATSINGEN

Hier worden de berekeningen opgenomen in verband met het aantal verplaatsingen (per dag en jdens de piekperiode), die zullen worden gehanteerd in het geheel van de criteria in verband met de verplaatsingen.

Ter herinnering: in de volgende tabel is een scha ng opgenomen van het aantal verplaatsingen in de huidige toestand (site C, zie analyses van de programmatorische alterna even voor de andere) voor alle huizenblokken59:

De berekeningen kunnen worden uitgevoerd voor het voorkeurscenario, voor alle huizenblokken (buiten het BBP dus, zodat de vergelijking kan worden gemaakt met de berekende cijfers in de bestaande toestand):

In de volgende tabellen zijn de waarschijnlijke verplich ngen opgenomen die werden voortgebracht door het programma dat in het ontwerp van BBP is voorzien:

59 Net als bij de analyses van de alterna even is het sta onsblok buiten deze ramingen gehouden omdat het een specifieke aantrekkingskracht en verplaatsing hee die verband houdt met zijn aanwezigheid en die niet gerelateerd is aan de andere stedelijke func es. Het PPAS en de voorschri en ervan hebben geen directe gevolgen voor de aantrekkelijkheid van het Gare du Nord, een regionaal mobiliteitsknooppunt, en het is daarom buiten de analyse gehouden.

Hoofdstuk III / Afdeling 3 Effectenbeoordeling / C – ontwerp van BBP / p. 414
dag Tijdens
(verpl./uur) werknemers / bewoners bezoekers TOTAAL werknemers / bewoners bezoekers TOTAAL Kantoor 36 691 2 621 39 312 7 338 66 7 404 Huisves ng 0 0 0 0 0 0 Voorzieningen 121 433 555 24 11 35 Handelszaken 408 5 830 6 238 82 146 227 Produc eac vite iten 0 0 0 0 0 0 TOTAAL 46 105 7 666
Per
het spitsuur
Verplaatsingen per dag Verplaatsingen jdens het spitsuur (verpl./uur) werknemers / bewoners bezoekers TOTAAL werknemers / bewoners bezoekers TOTAAL Kantoor 23 786 1 699 25 485 4 757 42 4 800 Huisves ng 8 016 528 8 543 1 403 0 1 403 Voorzieningen 2 519 8 995 11 514 504 225 729 Handelszaken 672 9 595 10 266 134 240 374 Produc eac vite iten 504 1 199 1 703 101 30 131 TOTAAL 57 512 7 436
Per dag: MIN MAX werknemers / bewoners bezoekers TOTAAL werknemers / bewoners bezoekers TOTAAL Kantoor 13 490 964 14 545 16 863 1 204 18 067 Huisves ng 5 682 374 6 057 Voorzieningen 1 550 5 534 7 084 Handelszaken 595 8 502 9 097 Produc eac vite iten
VERPLAATSINGEN

Tijdens het spitsuur (verpl./uur):

In deze fase bestaan er te veel mogelijke combina es tussen de verschillende func es om de plausibele minimale en maximale globale verplaatsingen te berekenen (waarbij we bijvoorbeeld uitsluiten dat 0% van de handelszaken of 27% van de uitrus ngen ontwikkeld zijn).

Merk evenwel op dat de minimale aantallen bewoners en de minimale en maximale aantallen werknemers lager liggen dan de waarden die werden geschat jdens de programmeringsfase of in het geval van het voorkeurscenario(huizenblokken)hierboven,aangeziendiecijfersdevolledigehuizenblokkenbetreffen(Proximus en CCN). De impact die voor dit deel van de studie (limieten van het BBP) wordt gemeten, is dus algemeen gesteld kleiner dan jdens de programmeringsfase (kleinere s jging van het aantal verplaatsingen). Die delen van huizenblokken, buiten het BBP, worden hier niet meegeteld, maar er moet wel rekening mee worden gehouden om de algemene omvang van de impact van de projecten te scha en.

De noemenswaardige algemene trend in deze fase is het feit dat de toename van de gemengdheid een wijziging metzichzalbrengenvandecijfersinverbandmetdeverplaatsingenindewijk:sterkedalingvandeverplaatsingen in verband met de kantoren en sterke s jging van de verplaatsingen in verband met andere func es. Door de afname van het aantal verplaatsingen in verband met de kantoren is het mogelijk om het aantal verplaatsingen jdens de spitsuren globaal te doen dalen. In verhouding tot de onderzochte programmatorische alterna even levert het voorkeurscenario waarden o die vergelijkbaar zijn met het alterna ef met de grootste impact.

Door de modale aandelen toe te passen op de geraamde verplaatsingen krijgen we de verdeling van de verplaatsingen per dag en per vervoermiddel (incl. de werknemers, de bewoners en de bezoekers van de verschillende func es).

Ter herinnering: de tabel hieronder vermeldt de verdeling van de dagelijkse verplaatsingen per verplaatsingswijze in de bestaande toestand C (zie analyse van de programmatorische alterna even voor de andere) voor alle huizenblokken:

60 Aangezien de bestaande winkels zich bijna allemaal in het station en het CCN bevinden, is het modale aandeel van de auto in feite bijna nul voor bezoekers. De verplaatsingen in verband met deze vervoerswijze zijn aan de andere vervoerswijzen toegewezen in verhouding tot hun percentages. Gezien de algemene ontwikkeling van het gebied, bijvoorbeeld op het gebied van winkels, is deze veronderstelling niet toegepast in de geraamde situaties.

Hoofdstuk III / Afdeling 3 Effectenbeoordeling / C – ontwerp van BBP / p. 415
MIN MAX werknemers / bewoners bezoekers TOTAAL werknemers / bewoners bezoekers TOTAAL Kantoor 2 698 24 2 722 3 373 30 3 403 Huisves ng 994 0 994 Voorzieningen 310 138 448 Handelszaken 119 213 332 Produc eac vite iten
OV Fietsers Voetgangers Auto's Kantoren (werknemers + bezoekers) 19 881 786 6 683 8 411 Huisves ng 0 0 0 0 Voorzieningen (werknemers + bezoekers) 288 11 94 122 Handelszaken (werknemers + bezoekers) 60 4 183 161 1 368 90 Produc e ac viteiten (werknemers + bezoekers) 0 0 0 0 TOTAAL 24 353 958 8 145 8 623
VERPLAATSINGEN

In de tabellen op de volgende pagina werd voor de verplaatsingswijze fiets, voetgangers en auto een extra kolom toegevoegd (met index +)voor de cijfers die betrekking hebben op horizon 2030 als de doelstellingen van het plan Good Move daadwerkelijk worden gehaald.

Hoofdstuk III / Afdeling 3 Effectenbeoordeling / C – ontwerp van BBP / p. 416
VERPLAATSINGEN

Verdeling van de dagelijkse verplaatsingen per verplaatsingswijze voor het programma dat voor het voorkeurscenario (huizenblokken) is voorzien, ter vergelijking:

We zien al een algemene toename voor alle verplaatsingswijzen, die nie emin fel opvalt voor de auto (aangezien hetmodaleaandeelvanhetOVvandewerknemersindewijkenuitstekend is,leidthetverliesvandiewerknemers tot een toename van het algemene modale aandeel van de personenauto). In verhouding tot de onderzochte programmatorische alterna even levert het voorkeurscenario waarden o die vergelijkbaar zijn met het alterna ef met de grootste impact.

Voor het ontwerp van BBP ziet de verdeling van de dagelijkse verplaatsingen per verplaatsingswijze voor het voorziene programma er als volgt uit:

61 Aangezien de bestaande winkels zich bijna allemaal in het sta on en het CCN bevinden, is het modale aandeel van de auto in feite bijna nul voor bezoekers. De verplaatsingen in verband met deze vervoerswijze zijn aan de andere vervoerswijzen toegewezen in verhouding tot hun percentages. Gezien de algemene ontwikkeling van het gebied, bijvoorbeeld op het gebied van winkels, is deze veronderstelling niet toegepast in de geraamde situa es

Hoofdstuk III / Afdeling 3 Effectenbeoordeling / C – ontwerp van BBP / p. 417
OV OV+ Fiets Fiets+ Voetgangers Voetgangers+ Auto's Auto’s+ Kantoren (werknemers + bezoekers) 13.252 12.998 510 2.294 4.333 4.078 5.607 5.505 Huisves ng 4.443 4.357 171 769 1.452 1.367 1.880 1.367 Voorzieningen (werknemers + bezoekers) 5.987 5.872 230 1 036 1 957 1 842 2 533 1 842 Handelszaken (werknemers + bezoekers) 61 5 338 5 236 205 924 1 745 1 643 2 259 1 643 Produc e ac viteiten (werknemers + bezoekers) 886 869 34 153 290 272 375 272 TOTAAL 29906 29 331 1 150 5 176 9 777 9 202 12 653 10 629
OV OV+ Fiets Fiets+ Voetgang ers Voetgang ers+ Auto Auto+ Kantoor MIN 7 516 7 371 289 1 301 2 457 2 313 3 180 3 122 Kantoor MAX. 9 395 9 214 361 1 626 3 071 2 891 3 975 3 902 Huisves ng MIN. 3 149 3 089 121 545 1 030 969 1 332 969 Huisves ng MAX. Uitrus ng MIN. 3 684 3 613 142 638 1 204 1 133 1 559 1 133 Uitrus ng MAX. Handelszaak MIN Handelszaak MAX 4 731 4 640 182 819 1 547 1 456 2 001 1 456 Produc e ac viteiten
VERPLAATSINGEN

INVOERING VAN DE MSW EN NETWERK VAN ZACHTE MOBILITEIT

ANALYSES

Het BBP spreekt zich als dusdanig niet uit over de organisa e van de stromen, zoals dat wel het geval was in de onderzochte alterna even (omleiding van de voetgangerszone, wijziging van de fietsassen ...). Sommige voorschri en zullen evenwel een impact hebben op de trajecten en de stromen van de verschillende transportwijzen: de wegen moeten worden ingericht in overeenstemming met de principes van de MSW, de ac eve verplaatsingswijzen en het openbaar vervoer krijgen voorrang op de Bolivaresplanade, die overigens moet voldoen aan de voorschri en voor de voetgangerszone ...

Het BBP biedt algemeen gesteld de invoering van de MSW op de perimeter:

- De voetgangerszone kan haar tracé behouden en zal kunnen worden aangevuld met bomen en beplantingen, waarmee het regenwater op de Bolivaresplanade kan worden beheerd;

- De verplaatsingen met personenwagens en vrachtwagens blijven mogelijk op de Albert II- en de Solvayas, die hun huidige kenmerken behouden;

- Het openbaar vervoer kan blijven werken zoals in de huidige toestand, aangezien alle wegen toegankelijk zijn voor hen;

- De fietstrajecten worden niet omkaderd door het BBP, waardoor ze dus plaats kunnen innemen op de assen die doorde MSWworden gedefinieerd. Bovendienblijftde bestaanderoutetussenhetnoordelijke en het zuidelijke gedeelte van de Vooruitgangstraat via de binnenstraat mogelijk gezien de voorschriften.

De begeleidende maatregelen stellen overigens voor om een algemene mobiliteitsstudie uit te voeren over de volledige sta onspool om de inrich ngen te op maliseren in een totaalvisie in het gebied en een evenwich ge organisa e van de verschillende verplaatsingswijzen in de perimeter voor te stellen (openbaar vervoer en ac eve verplaatsingswijzen), wat ten voordele van dit criterium zal spelen.

Een moeilijk punt, dat ook al werd belicht jdens de vorige analysefases, blij de doorgang van de verschillende verplaatsingswijzen via het zuidelijke gedeelte van de kleine Vooruitgangstraat, tussen het huizenblok Proximus en het huizenblok CCN: op deze 17 m brede straat moet de voetgangerszone worden ingericht (minimaal 5 m breed, normaal in combina e met beplan ng), een fietsas comfort (3 m breed + 0,5 m buffer met de weg in theorie) en de doorgang in twee rich ngen van de buslijnen en de toekoms ge tramlijnen (als de trams en de bussenoverdezelfderijstrookrijden,volstaateenbreedtevan7,2m).Dezewegzouookmoetenwordenvoorzien van een tro oir aan de kant van de weg tegenover de voetgangerszone (minimale breedte van 1,5 m, maar vaker 1,8 m). Momenteel laat ze ook de doorgang van personenauto's en vrachtwagens toe, die leveringen uitvoeren voor het huizenblok Proximus ter hoogte van de gemeentegrens. De kwaliteit en de veiligheid van al die func es behoudenenverzekerenzalnietmogelijkzijnwegensdebreedtevandeweg.Erzalduseenkeuzemoetenworden gemaakt: sommige verplaatsingswijzen (personenauto’s en vrachtwagens) en parkeren verbieden en het doorgangscomfort voor de andere wijzen beperken of een manier vinden om de openbare ruimte te recupereren via de inrich ng van de achteruitbouwzone in het huizenblok Proximus, zoals dat het geval is recht tegenover het huizenblok North Galaxy (verbreding van de weg tot 22 m via de integra e van de achteruitbouwzone in de openbare ruimte), wat door het BBP mogelijk is gemaakt.

Hoofdstuk III / Afdeling 3 Effectenbeoordeling / C – ontwerp van BBP / p. 418
VERPLAATSINGEN
Hoofdstuk III / Afdeling 3 Effectenbeoordeling / C – ontwerp van BBP / p. 419
VERPLAATSINGEN
Inrich ng van de achteruitbouwzones in de huidige toestand recht tegenover het huizenblok Proximus (bovenaan) en het huizenblok North Galaxy (onderaan) - Google Street View Bestemmingsplan 17 m 22 m 24 m 22 m 17 m

AANBEVELINGEN

In het kader van de projecten het openbare deel van het zuidelijke deel van de kleine Vooruitgangstraat, via de inrich ng van de achteruitbouwzones met bestemming openbare ruimte, om alle verplaatsingswijzen op een comfortabele manier en met naleving van de aanbevelingen van het Good Move-plan voor de verschillende verplaatsingswijzen te respecteren. Een andere op e bestaat erin om de voetgangerszone ‘om te leiden’ via het Bolivar-voorpleinendekleineVooruitgangstraatteontlasten,diedanhaarhuidigebreedtezoukunnenbehouden. Het zou een goede zaak zijn als de voetgangerszone vóór het sta on zou lopen, via het mul modale sta on of de plaat, maar door de plaatselijke omstandigheden (niveauverschillen in zowel de hoge als de lage op e, overdekking door een plaat en kruising met het busverkeer voor de lage op e, beschikbare breedte langs het sta on voor de lage op e) is deze mogelijkheid zeer weinig waarschijnlijk. Als er nie emin technische oplossingen

kunnen worden gevonden om de kwaliteit van de omleiding tussen Rogier en Tour et Taxis via het Noordsta on, moet deze op e voorrang krijgen.

Hoofdstuk III / Afdeling 3 Effectenbeoordeling / C – ontwerp van BBP / p. 420
Simula e van de breedten en de verplaatsingswijzen die via de kleine Vooruitgangstraat moeten rijden (Streetmix, 2022)
VERPLAATSINGEN

ACTIEVE VERPLAATSINGSWIJZEN EN FIETSENSTALLINGEN

ANALYSES

Stromen

In kwan ta eve termen is het niet relevant om in deze fase de minimum- of de maximumwaarden te berekenen, aangezien het BBP de minimum- en de maximumwaarden van elke func e niet kadert. Nie emin en op basis van de analyses die in de vorige stappen werden uitgevoerd en de overeenkomsten van het voorgestelde programma met de geanalyseerde programma's, lijkt het relevant om te bevs gen dat het ontwerp van BBP zal leiden tot een toename van het aantal voetgangers en fietsers in het gebied, in verband met de gemengdheid van de opgelegde func es.

Bovendien dient opgemerkt dat de ontwikkeling van de fiets in de rest van het Gewest, zoals aanbevolen door het Good Move-plan, ook een impact zal hebben op het gebied. Behalve de gemengde func es die er zullen worden ontwikkeld, is het immers een belangrijk intermodaal knooppunt op gewestelijk niveau. Het beschikt over een fietspunt en is een doorgangsplaats voor fietsers. Het aantal verplaatsingen verbonden aan andere func es dan deze die worden ontwikkeld in het BBP en doorheen het gebied gaan, zal toenemen.

De toename van het aantal verplaatsingen te voet en met de fiets zal dan ook moeten gepaard gaan met een grondige overweging over de plaats van die verplaatsingswijzen in het gebied, de infrastructuren en inrich ngen die werden uitgevoerd, de doorgang via de zone en tot aan het Noordsta on.

Hiervoor voorzien de voorschri en van het BBP dat

- de inrichting van de wegengebieden het comfort van de gebruikers en de actieve verplaatsingswijzen moet verzekeren en dat dat de conflicten met het openbaar vervoer moeten worden vermeden;

- het Bolivarplein moet beantwoorden aan de voorschriften in verband met de inrichting van de voetgangerszone en denodigeinrichtingen moeten integrerenom deniveauverschillen tussenopenbare ruimten en het multimodale station en in voorkomend geval tussen RDV en RDG op te lossen. Er zouden dan ook een trap of roltrappen kunnen worden ontwikkeld op het plein, waarmee men de ruimte onder de plaat en de ruimte die op de plaat werd ontwikkeld, kan bereiken;

- de plat bestemd is voor de verplaatsingen van de actieve verplaatsingswijzen, minstens 5 m breed zijn waar de configuratie dat toelaat en van verhardingen, stadsmeubilair en beplantingen moet zijn voorzien die aangepast zijn aan de verplaatsingsfunctie;

- deverticaleverbindingen(metro-RDV-plaat-openbareruimte)moetentoegankelijkzijnvoorpersonen met beperkte mobiliteit en fietsers die naast hun fiets wandelen, en moeten uitgerust zijn met trappen en/of hellingen en/of comfortabele mechanische liften;

- in het station moeten alle uitgevoerde werken bijdragen aan een betere toegankelijkheid van het station voor personen met beperkte mobiliteit;

- de achteruitbouwzones gedeeltelijk bedoeld zijn voor verkeersruimten voor de actieve verplaatsingswijzen (onder meer toegang tot de gebouwen);

- het multimodale station vooral bedoeld is voor de actieve verplaatsingswijzen (naast het openbare vervoer) en het comfort en de toegankelijkheid waarborgt voor de gebruikers van het openbaar vervoer (voetgangers voordat ze op een bus/tram stappen) en algemener gesteld goede verkeers- en veiligheidsomstandigheden creëren voor de actieve verplaatsingswijzen.

Overigens stellen de begeleidende maatregelen voor om

- een algemene mobiliteitsstudie uit te voeren over de volledige stationspool om de inrichtingen te optimaliseren in een totaalvisie in het gebied en een evenwichtige organisatie van de verschillende verplaatsingswijzen in de perimeter voor te stellen (openbaar vervoer en actieve verplaatsingswijzen);

- de kruisingen van stromen tussen het openbaar vervoer, de voetgangerszone en de fietsen zoveel mogelijk te beperken;

- de voorkeur te geven aan doorlopende inrichtingen van de openbare ruimte, van gevel tot gevel, en intussen zoveel mogelijk de hoogteverschillen te vermijden;

- het hoogteverschil tussen het Bolivarplein, de toegang tot de metro, de toegang (stadsniveau) van het station en de fietsparking van het station om een comfortabele toegang te bieden voor alle verplaatsingswijzen.

Hoofdstuk III / Afdeling 3 Effectenbeoordeling / C – ontwerp van BBP / p. 421
VERPLAATSINGEN

Al deze voorschri en en begeleidende maatregelen zullen in het voordeel van dit criterium spelen. Zoals grafisch wordt weergegeven op de a eelding hieronder dreigt het behoud van de insprongen onder CCN (in het geel op stadshoogte) en de kruising van de E-O stromen tussen de ac eve verplaatsingswijzen en de bussen (mul modaal sta on in de lengterich ng dat meer dan waarschijnlijk het behoud van het trapdeel aan de kant van het sta on) een nega ef punt te blijven voor het verplaatsingscomfort van de voetgangers en de fietsers en voor de op maliteit van de toegankelijkheid. De concrete inrich ng van de ver cale verbindingen zal ook van doorslaggevende aard zijn ten opzichte van de toegankelijkheid van de verschillende niveaus voor de zachte verplaatsingswijzen.

Fietsparkeren

Naast de overwegingen over het comfort en de veiligheid van de doorgang voor de fietsers, zal de toename van het aantal verplaatsingen met de fiets ook gepaard moeten gaan met een echte overweging over het parkeren, en dit zowel op het private perceel als in de openbare gebieden (binnen of buiten).

Hiertoe legt het BBP het volgende op:

- voor nieuwbouw of zware renovaties de ontwikkeling van één parkeerplaats voor fietsen per kamer (met inbegrip van de studio’s);

- dat één plaats op 10 bovendien gedimensioneerd moet zijn voor bakfietsen;

- dat één plaats moet zijn voorzien voor de bezoekers per 10 woningen;

- dat die plaatsen worden beveiligd en gemakkelijk toegankelijk zijn op het gelijkvloers (maar niet noodzakelijkerwijs op de benedenverdieping).

Voor de andere func es legt het BBP geen te voorziene aantallen voor en laat de GSV van toepassing zijn. Het BBP vermeldt ook geen verplich ngen met betrekking tot de ontwikkeling van fietsparkeermogelijkheden in de openbare ruimte.

Hoofdstuk III / Afdeling 3 Effectenbeoordeling / C – ontwerp van BBP / p. 422
Dwarsdoorsnede in het bestaande huizenblok CCN in de as van het Bolivarplein - op basis van doorsnede 1010au
Staonsnivea u Bolivarplein
on
VERPLAATSINGEN
Stadsniveau
Huizenblok CCN Sta
Bus Sta onshal sta onshal

Het minimale aantal te voorziene plaatsen (volgens het programma van het BBP) bedraagt:

(Proximus)

De plaatsen zullen dus kunnen worden ontwikkeld door een deel van een ondergrondse verdieping te gebruiken als het aantal parkeerplaatsen voor auto's wordt verlaagd ten opzichte van de huidige toestand.

Voor het voorkeurscenario (BBP) worden de cijfers geschat op:

Zone A (North Galaxy)

Zone B (Proximus)

Zone C (huizenblok CCN)

62 Er zij op gewezen dat het PPAS voorschrij dat de woningtypologieën gevarieerd moeten zijn en aan de behoe en moeten voldoen, zonder een minimum- of maximumwaarde voor de verschillende woninggroo es op te leggen. Het vereist echter wel de ontwikkeling van minimaal 20% eengezinswoningen met 3 slaapkamers (of meer). Een andere manier om het aantal benodigde parkeerplaatsen te berekenen zou kunnen zijn om deze cijfers te gebruiken (tussen 188 en 294 woningen, d.w.z. tussen 564 en 882 fietsparkeerplaatsen, als minimum, als alle woonoppervlaktes worden ontwikkeld), maar daarbij moeten de benodigde plaatsen voor kleinere woningen (1 en 2 slaapkamers) worden opgeteld, in verhoudingen die niet zijn vastgesteld en dus in dit stadium niet kunnen worden berekend.

63 Er zij op gewezen dat het PPAS voorschrij dat de woningtypologieën gevarieerd moeten zijn en aan de behoe en moeten voldoen, zonder een minimum- of maximumwaarde voor de verschillende woninggroo es op te leggen. Het vereist echter wel de ontwikkeling van minimaal 20% eengezinswoningen met 3 slaapkamers (of meer). Een andere manier om het aantal benodigde parkeerplaatsen te berekenen zou kunnen zijn om deze cijfers te gebruiken (tussen 188 en 294 woningen, d.w.z. tussen 564 en 882 fietsparkeerplaatsen, als minimum, als alle woonoppervlaktes worden ontwikkeld), maar daarbij moeten de benodigde plaatsen voor kleinere woningen (1 en 2 slaapkamers) worden opgeteld, in verhoudingen die niet zijn vastgesteld en dus in dit stadium niet kunnen worden berekend.

Hoofdstuk III / Afdeling 3 Effectenbeoordeling / C – ontwerp van BBP / p. 423
Zone
Zone B
Zone C
TOTAAL Aantal woningen (~100m²)62 Min. ~380 Min. ~160 Min. ~400 Min. ~940 Aantal slaapkamers en dus fietsparkeerplaatsen (2 per woning)BBP Min. 760 Min. 320 Min. 800 Min. 1 880 Aantal parkeerplaatsen voor bezoekers (BBP) Min. 38 Min. 16 Min. 40 Min. 94 Min. kantooroppervlakte ~45 900 m² ~19 700 m² ~47 800 m² ~113 400 m² Aantal parkeerplaatsen voor kantoren (GSV: 1/200 m²) Min. 230 Min. 100 Min. 240 Min. 570 Totaal aantal plaatsen Min. 1 028 Min. 436 Min. 1 080 Min. 2 544 Nodige oppervlakte (2 m²/fiets) Min. ~ 2 100 m² Min. 900 m² Min. ~2 200 m² Min. 5 200 m² Grondinnamevandebestaandeparking op de benedenverdieping ~12 000 m² ~4 000 m² ~9 300 m²
A (North Galaxy)
(huizenblok CCN)
TOTAAL Aantal woningen (~100 m²)63 379 162 394 935 Aantal slaapkamers en dus fietsparkeerplaatsen (2 per woning)BBP 758 324 788 1 870
VERPLAATSINGEN

Bovenop die cijfers komen nog de te verantwoorden plaatsen voor de handelszaken, uitrus ngen en produc eac viteiten, die niet door een reglement of een plan worden omkaderd.

AANBEVELINGEN

Het wegwerken van het hoogteverschil ten gevolge van de huidige insprong blij wenselijk. De begeleidende maatregelen zouden dit kunnen vermelden en voorstellen om technische oplossingen te onderzoeken om dat doel te bereiken.

Naast de kantoren en de woningen zal ook het aantal werknemers en bezoekers van de andere func es van de wijk (handelszaken, voorzieningen en produc eac viteiten) sterk s jgen (van ~4 700 in de bestaande toestand tot ~11 200 voor het voorkeurscenario, hetzij bijna 1,5 keer meer), die er min of meer lang verblijven. Het BBP zou dan ook via voorschri en of begeleidende maatregelen de ontwikkeling van ‘openbare’ fietsparkeerplaatsen verzekeren - ongeacht of dat binnen- of buitenruimten betre (openbare ruimte) en de kwaliteit van minstens een deel van die plaatsen (overdekt, beveiligd ... cf. masterplannen fietsparkeerplaatsen en bakfietsen) verzekeren.

Hoofdstuk III / Afdeling 3 Effectenbeoordeling / C – ontwerp van BBP / p. 424 Aantal parkeerplaatsen voor bezoekers (BBP) 38 16 40 94 Min. kantooroppervlakte 57 401 m² 24 613 m² 59 689 m² 141 702 m² Aantal parkeerplaatsen voor kantoren (GSV: 1/200 m²) 287 123 299 709 Totaal aantal plaatsen 1 083 463 1 127 2 673 Nodige oppervlakte (2 m²/fiets) 2 166 m² 926 m² 2 254 m² 5 346 m²
VERPLAATSINGEN

OPENBAAR VERVOER

ANALYSES

In kwan ta eve termen is het niet relevant om in deze fase de minimum- of de maximumwaarden te berekenen, aangezien het BBP de minimum- en de maximumwaarden van elke func e niet kadert. Nie emin en op basis van de analyses die in de vorige stappen werden uitgevoerd en de overeenkomsten van het voorgestelde programma met de geanalyseerde programma's, lijkt het relevant om te beves gen dat het ontwerp van BBP zal leiden tot een toename van het aantal gebruikers van het OV in het gebied, in verband met de gemengdheid van de opgelegde func es. Net als bij de vorige analyses en gezien het huidige en het toekoms ge aanbod (ontwikkeling van de metro) zal het netwerk van het openbaar vervoer de toename van het aantal gebruikers in verband met de invoering van het BBP kunnen opvangen.

Omdat het aantal verplaatsingen met het openbaar vervoer in het gebied zal toenemen, zal het comfort aan de haltes en de leesbaarheid van de intermodale pool moeten worden verbeterd in vergelijking met de huidige toestand.

Het BBP bepaalt daarom dat:

- de inrichting van de wegengebieden een optimale werking moet verzekeren van het openbaar vervoer en dat conflicten met de actieve verplaatsingswijzen moeten worden vermeden;

- het comfort van de gebruikers van het OV verzekerd is in de wegengebieden en dan meer bepaald door de laadonderbrekingen te vergemakkelijken (overstaptijden) tussen de verschillende openbare transportlijnen en door de veiligheid en de leesbaarheid van de parcours tussen de halten en naar de toegangen van het Noordstation te waarborgen;

- meer specifiek op het Bolivarplein de doeltreffendheid van het bovengronds openbaar vervoer (verkeer, halte) voorrang krijgt (bijvoorbeeld behoud van verharde banen om het verkeer van het openbaar vervoer te waarborgen) en dat de inrichting van het plein de leesbaarheid en de toegankelijkheid naar alle vormen van openbaar vervoer mogelijk maakt (bovengronds transport, maar ook station en metro). Op dat plein is elke vorm van langdurig parkeren nochtans verboden, waardoor de huidige terminussen van de twee MIVB-lijnen niet behouden kunnen blijven. Die terminussen zullen dus moeten worden verplaatst (teruggebracht naar het multimodale station of verder ingericht op de Bolivarlaan);

- ophetterreinvanhetMedicalCenterdeinplantingvanuitrustingenvancollectiefbelangofvanopenbare dienstentoegelatenis,waarondertechnischeinfrastructurendieverbandhoudenmetdemobiliteit.Men kan daaruit afleiden dat de premetro er altijd zal kunnen doorrijden, dat de nooduitgangen en de rookafvoeren of zelfs het zuiveringsstation dat met het metroproject is verbonden, er plaats zullen kunnen vinden, dat er eventueel een biberonnage in vrije lucht zou kunnen worden ontwikkeld, dat het station voor de internationale bussen zou kunnen worden gelokaliseerd, zolang de handelingen en werken de ontwikkeling van het ecologische potentieel van het gebied bevorderen (bijvoorbeeld via de aanleg van een talud of de beplanting van de keermuur van de sporen);

- de ontwikkeling van een lineair multimodaal station over de volledige lengte van het station, enerzijds langsdebinnenstraat,anderzijdslangsdeonderstehalveverdiepingvanhethuizenblok CCNopongeveer 1/3 van de diepte van het perceel, waarbij beide ‘dreven’ doorlopen tot een gebied waar op het Solvayplein rechtsomkeer kan worden gemaakt;

- dit multimodale station bedoeld is voor het verkeer, de halten en de terminuszones van het openbaar vervoer, de logistiek die nodig is voor de werking van het openbaar vervoer, maar ook voor de actieve verplaatsingswijzen. Merk op dat het gebied van het station ook kan worden bestemd als lokalen die de gebruikelijke aanvulling bijbehorend bij mobiliteitsinfrastructuren zijn, en die dus (gedeeltelijk) kunnen worden bebouwd;

- de inrichting van het multimodale station het comfort en de toegankelijkheid voor de gebruikers van het openbaar vervoer moet waarborgen en dan meer bepaald de transferts vergemakkelijk tussen de verschillende wijzen en lijnen (spoorweg, (pre)metro en bovengronds transport) en de zichtbaarheid van de toegangen en de halten waarborgen;

- de achteruitbouwzones kunnen worden bestemd voor het verkeer van de actieve verplaatsingswijzen, waardoor een inrichting van het type ‘openbare ruimte’ kan behouden blijven over de volledige huidige grondinname van het noordelijke gedeelte van de kleine Vooruitgangstraat en dus het gebruik van het gebied door het station voor de internationale bussen kan behouden blijven;

- verticale aansluitingen die het verkeer mogelijk maken tussen de verschillende niveaus waar OV wordt aangeboden (ondergrond, stationsniveau, stadsniveau). Die verkeersstromen kunnen echter binnen

Hoofdstuk III / Afdeling 3 Effectenbeoordeling / C – ontwerp van BBP / p. 425
VERPLAATSINGEN

private gebouwen worden ontwikkeld, maar de voorschriften bepalen dat de voorwaarden voor openbare toegankelijkheid, dienstroosters en beheer worden verzekerd. Dat impliceert evenwel dat het mogelijk is dat alleen de aansluiting op het einde van het Bolivarvoorplein buiten ligt.

Bovendien stellen de begeleidende maatregelen het volgende voor:

- een algemene mobiliteitsstudie uit te voeren over de volledige stationspool om de inrichtingen te optimaliseren in een totaalvisie in het gebied en een evenwichtige organisatie van de verschillende verplaatsingswijzen in de perimeter voor te stellen (openbaar vervoer en actieve verplaatsingswijzen);

- de halten van het openbaar vervoer zoveel mogelijk groeperen om de modale keuzen van de passagiers te vergemakkelijken;

- de bushaltes van alle operatoren, doorgangslijnen en terminussen rationaliseren;

- in voorkomend geval de toegang tot de metro mogelijk maken via het stadsniveau van het gebouw dat ten zuiden van het Bolivarvoorplein wordt ontwikkeld;

- een rechtstreekse verbinding verzekeren tussen het station en de metro (ondergronds/stationsniveau), buiten de gebouwen.

Al deze voorschri en en voorstellen zullen in het voordeel van dit criterium spelen.

AANBEVELINGEN

Door de lengte van de plaat op sta onsniveau (beperking tot de strikte doorgang boven de bussen, als die op e noodzakelijk is) te beperken, blij de resterende ruimte op het Bolivar-voorplein gelijkvloers en is ze comfortabel voor PBM en vanaf het Bolivarplein duidelijk voor de voetgangers.

Een aandachtspunt is het feit dat het terugbrengen van de bestaande terminussen naar het Bolivarplein (beide MIVB buslijnen) moet kunnen worden verzekerd in het mul modale sta on (lengte van het perron) voor de op maliteit van het intermodale sta on (vermijden dat die terminussen verder op de Bolivarlaan worden verplaatst).

Gelet op de toekoms ge veranderingen moet bijzondere aandacht worden besteed aan de toegankelijkheid van het openbaar vervoer, onder meer jdens de werken.

Hoofdstuk III / Afdeling 3 Effectenbeoordeling / C – ontwerp van BBP / p. 426
VERPLAATSINGEN

AUTO'S EN PARKEERMOGELIJKHEDEN ANALYSES

Logischerwijze (reglementair document van stedelijke planning dat geen kwes es van opera onele mobiliteit behandelt) spreekt het BBP zich slechts in beperkte mate uit over de organisa e van de mobiliteitsstromen

Uit de voorschri en van het BBP kan men echter afleiden dat het Bolivarplein ontoegankelijk zal worden gemaakt voor personenauto's. De binnenstraat en het laaggelegen Bolivarvoorplein (hetzij het volledige mul modale sta on) zijn poten eel toegankelijk voor personenauto's, aangezien er jdelijk kan worden geparkeerd (kiss & ride).

Overigens zijn in de begeleidende maatregelen de aanbevelingen die jdens de vorige analysefases zijn gemaakt, geïntegreerd: een globale mobiliteitsstudie uitvoeren, lokalisa e van de inri en van de ondergrondse parkeergarages ...

In kwan ta eve termen is het niet relevant om in deze fase de minimum- of de maximumwaarden voor verplaatsingen met de auto te berekenen, aangezien het BBP de minimum- en de maximumwaarden van elke func e niet kadert.

Zoalsindeeffectbeoordeling vandeprogrammeringsalterna evenisgeanalyseerd, ishetaandeelvande autovan kantoorpersoneel (de overgrote meerderheid van de gebruikers van de wijk) in de bestaande toestand zeer laag, gezien de uitstekende verbindingen met het openbaar vervoer, en in deze fase kan worden gesteld dat de door het ontwerp van BBP opgelegde vermindering van het aantal kantoorpersoneel tot gevolg zal hebben dat het aandeel van de auto van de gebruikers van de wijk (bewoners, werknemers van de kantoren, winkels en voorzieningen, en bezoekers) zal toenemen.

Het aantal auto’s dat zich in de wijk verplaatst, zal dus waarschijnlijk toenemen - in elk geval wat het aantal voertuigendatdewijkverlaatbetre .Tegenhetjaar2030ishetechterwaarschijnlijkdathetaantalverplaatsingen met de auto zal afnemen, indien de veronderstellingen van het Good Move-plan bewaarheid worden.

Voor het voorkeursscenario (zie inleiding bij het thema) s jgt het aantal dagelijkse autori en namelijk van 8.623 in de bestaande situa e (C) tot 12.653 a priori (+47%), maar bereikt het Good Move-effect een piek van 10.629 in 2030 (+9%). De toename van het verkeer in verband met de toename van de wijkmix is derhalve op korte termijn aanzienlijk, maar op langere termijn niet erg belangrijk. Aangezien de loca e wordt begrensd door 3 "comfort"wegen, kan worden geschat dat de ~4.000 extra auto's (op korte termijn, maar ~2.000 op langere termijn) over deze 3 wegen zullen worden gespreid, d.w.z. een toename van ~1.300 auto's (~700 op langere termijn) per weg over de gehele dag. Gezien de belas ng van deze routes64 is deze toename te verwaarlozen. Hetzelfde geldt voor de "Plus"-wegen die deze comfortwegen verzamelen op de schaal van het noordelijke grondgebied (d.w.z. de binnenring, de groene laan en de Koninginnelaan). Met name in de ochtendspits zal het aantal auto's in verband met de opdrachten van het gebied toenemen van 1.655 auto's/uur (sitex C, 100% inkomend) tot 1.636 auto's/uur (1.327 inkomend en 309 uitgaand). Het verschil is dus verwaarloosbaar in de spits, hetgeen de conclusie versterkt. Gezien de ligging van het gebied binnen de netwerken (de wegen van Auto Confort lopen langs het gebied) en de uitvoering van het Good Move-plan zou de capaciteit van het wegennet de gevolgen van het voorgestelde PPASprogramma dus moeten kunnen opvangen.

64 Zie diagnose en analyse van programma sche alterna even: 400 tot 750 UVP per uur in de spits in beide rich ngen op de Boulevard Bolivar, 300 tot 500 UVP per uur in HPM/HPS op Albert II en tussen 100 en 200 UVP per uur in HPM/HPS op de Rue du Progrès.

Hoofdstuk III / Afdeling 3 Effectenbeoordeling / C – ontwerp van BBP / p. 427
VERPLAATSINGEN

Parkeren

Het BBP verbiedt het langdurig parkeren op het Bolivarplein en in de Vooruitgangstraat, waardoor in theorie 4 bestaande parkeerplaatsen in die straat worden geschrapt (deel ten noorden van het sta on), hoewel die in de prak jk niet meer bestaan (metrowerken op het terrein van het Medical Center, waarbij alle aanwezige parkeerplaatsen door machines en voertuigen van de bouwplaats worden ingenomen). Dit voorschri zal in de prak jk dus geen impact hebben. Het kleine zeven gtal andere bestaande parkeerplaatsen op de openbare weg kunnen dus behouden blijven.

Binnen de percelen bepaalt het BBP dat:

- bij nieuwbouw of zware renovatie het aantal parkeerplaatsen moet worden beperkt tot maximaal 0,5 plaatsen per woning, maar dat dit cijfer kan worden verlaagd indien alternatieve verplaatsingswijzen ter beschikking worden gesteld aan de toekomstige bewoners (deelauto’s en/of -fietsen, meer dan één fietsenparkeerplaats per kamer ...);

- de normen van de andere voorschriften van toepassing zijn op de andere functies (namelijk het BWLKE voor kantoren en de GSV voor handelszaken, voorzieningen en productieactiviteiten);

- de parkings zo worden ingericht dat ze mutualiseerbaar zijn en ook voor het publiek toegankelijk moeten zijn.

De behoe en aan parkeerplaatsen voor auto’s die door het BBP worden voortgebracht, kunnen worden geschat en met de vermelde bepalingen worden vergeleken:

- De behoefte aan parkeerplaatsen in verband met de woningen zal toenemen door de aanleg van oppervlakten die aan deze functie worden toegewezen.

De behoeften kunnen worden geschat op basis van de gemiddelde motorisatiepercentages in het BHG (maximalistische veronderstelling van 0,633 voertuigen/gezin) of in de wijk (minimalistische veronderstelling van 0,362 voertuigen/gezin):

Logischerwijze bieden de parkeerplaatsen die door het BBP worden opgelegd, de mogelijkheid om aan de behoe en te voldoen indien de motorisa egraad van de toekoms ge bewoners laag is (gemiddelde van de wijk), maar niet als deze waarde meer dan 0,5 auto/gezin bedraagt.

Hoofdstuk III / Afdeling 3 Effectenbeoordeling / C – ontwerp van BBP / p. 428
Gebied A (NG) Gebied B (Prox) Zone C1 (CCN) Aantal woningen min. 379 162 394 Parkeerbehoe e voor woningen (maximalis sche hypothese) 240 103 250 Parkeerbehoe e voor woningen (minimalis sche hypothese) 138 59 143 Aantal plaatsen opgelegd door de GSV (2 plaatsen/woning) 190 82 197
VERPLAATSINGEN

- De behoefte aan parkeerplaatsen in verband met kantoren en productieactiviteiten zal afnemen door de beperking van de oppervlakten die voor deze functie zullen worden bestemd. De schatting van de behoeften kan worden uitgevoerd via de toepassing van de modale aandelen van de auto (22% in de huidige toetand en 16% volgens het Good Move-plan) op het aantal werknemers in de

zijn (85%):

die door het BWLKE wordt opgelegd, ligt in elk geval lager dan de gescha e behoe en.Aangezieneenvan dedoelstellingenvanhetBWLKE erinbestaatomwerknemersteontraden om de auto te nemen voor het woon-werkverkeer, lijkt dat logisch. Het modale aandeel van de auto voor de werknemers zou dan ook moeten zakken tot iets minder dan 12% (wat op mis scher is dan de cijfers van Good Move), met het risico dat de werknemers hun auto's in de openbare parkings of op straat in de omgeving zullen parkeren. Als dat het geval is, zullen de modale aandelen van de verplaatsingen met het OV en met de ac eve verplaatsingswijzen s jgen en op die manier des te meer de conclusies en de aanbevelingen met betrekking tot deze criteria versterken.

- De werknemers van en de bezoekers aan de handelszaken, de voorzieningen en de productieactiviteiten zullen ook de vraag naar parkeerplaatsen beïnvloeden. Merk op dat het aantal bezoekers in hoge mate schommelt afhankelijk van het soort handelszaak en het soort voorzieningen en dat de aandelen van die functies slechts gedeeltelijk door het BBP worden omkaderd, waardoor het op dit moment niet mogelijk is om daarover plausibele schattingen te maken.

In deze fase bestaan er te veel mogelijke combina es tussen de verschillende func es om het opgelegde of het noodzakelijke aantal globale parkeerplaatsen op een plausibele manier te berekenen (waarbij we bijvoorbeeld uitsluiten dat 0% van de handelszaken of 27% van de uitrus ngen ontwikkeld zijn). Bovendien hebben de berekeningen met betrekking tot het huizenblok Proximus en het huizenblok CCN slechts betrekking op het gedeelte dat door het CCN wordt ingenomen, wat weinig relevant is ten opzichte van de behoe en aan parkeerplaatsen.

Hoofdstuk III / Afdeling 3 Effectenbeoordeling / C – ontwerp van BBP / p. 429
Gebied A (NG) Gebied B (Prox) Zone C1 (CCN) Gescha e MIN. behoe en aan parkeerplaatsen voor de werknemers in de kantoren 429 184 446 Gescha e MIN. behoe en aan parkeerplaatsen voor de werknemers in de kantoren (Good Move) 312 134 325 MIN. aantal plaatsen die door het BWLE worden opgelegd 231 100 240 Gescha e MAX. behoe en aan parkeerplaatsen voor de werknemers in de kantoren 537 230 558 Gescha e MAX. behoe en aan parkeerplaatsen voor de werknemers in de kantoren (Good Move) 390 167 406 MAX. aantal plaatsen die door het BWLE worden opgelegd 288 124 301 Het aantal parkeerplaatsen
kantoren die elke dag gelijktijdig aanwezig
VERPLAATSINGEN

Het is op dit moment dus niet mogelijk om na te gaan of het opgelegde aantal parkeerplaatsen lager ligt dan het bestaande aantal parkeerplaatsen, of om te controleren hoeveel ondergrondse ruimte er beschikbaar is voor een ombouw tot fietsenstalling. De berekeningen kunnen echter wel worden uitgevoerd voor het voorkeurscenario, dat een verdeling toepast van 50% voor de kantoren (het max. dat door het BBP is toegelaten) en 33% voor de woningen (het min. dat door het BBP is toegelaten). De conclusies zijn iden ek met betrekking tot de voldoening van de behoe en, maar het is wel mogelijk om het aantal opgelegde parkeerplaatsen te berekenen:

Gebied A (NG) Gebied B (Prox) Zone C1 (CCN)

* Deze cijfers hebben weinig zin op de schaal van het BBP, aangezien ze betrekking hebben op 33% van het gebouw-huizenblok Proximus

Derhalve kan worden vastgesteld dat de geraamde behoe en hoger zijn dan de opgelegde plaatsen (zelfs in het geval van de minimalis sche veronderstellingen): 478 opgelegde plaatsen voor het North Galaxy-blok, om te voorzien in een minimumbehoe e van 527 plaatsen, en 498 opgelegde plaatsen voor 758 (min) vereiste plaatsen voor het CCN-blok.

In het geval van het North Galaxy-blok (en dus niet van het Proximus-blok, dat een soortgelijke typologie hee , maar dat in zijn huidige vorm niet kan worden behandeld omdat het in tweeën is "geknipt") zouden de bestaande ruimten het mogelijk maken het overschot op te vangen, of zelfs in andere behoe en te voorzien (werknemers van winkels en voorzieningen, fietsenstalling).

Voor het huizenblok CCN daarentegen impliceert de ontwikkeling van de vloeroppervlakten die door het programmazijnvoorzien,uitsluitendophetdeeldatdoorhetBBPwordtbestreken,deontwikkelingvaneenhoger aantal parkeerplaatsen dan wat het huizenblok momenteel in totaal kan bieden. Er bestaan wel bijkomende plaatsen voor het publiek (115 plaatsen). Men zou dus kunnen overwegen om een deel van die parking te priva seren, maar dat gaat dan wel ten koste van de openbare parkeermogelijkheden. Bovendien zijn de behoe en op het vlak van de voorzieningen, de handelszaken en de eventuele economische ac viteiten niet in deze cijfers opgenomen.

AANBEVELINGEN

De verkleining van de vloeroppervlakten die toegestaan zijn voor het huizenblok CCN of de wijziging van de aandelen die toegewezen zijn aan de verschillende func es (meer kantoren toelaten) is nodig om voldoende parkeergelegenheid te verzekeren voor dit huizenblok.

Hoofdstuk III / Afdeling 3 Effectenbeoordeling / C – ontwerp van BBP / p. 430
Opgelegd aantal plaatsen voor de woningen 190 82* 197 Opgelegd aantal plaatsen voor de werknemers van de kantoren 288 124* 301 Totaal aantal opgelegde plaatsen 478 206* 498 Bestaande plaatsen 611 249* 447
VERPLAATSINGEN

VRACHTWAGENS EN LEVERINGEN ANALYSES

De toename van de gemengdheid in het wijk zal waarschijnlijk leiden tot een toename van het aantal leveringen die nodig zijn voor de goede werking van de verschillende bestemmingen. Het is momenteel niet mogelijk om het totale aantal vrachtwagens per dag te scha en voor alle func es (geen aanwijzingen over het minimum en het maximum van alle func es waarvoor leveringen moeten worden uitgevoerd), maar de volgende cijfers kunnen wel al worden geschat:

Bestaand Min. Max.

Kantoren 16 vrachtwagens per dag 8 vrachtwagens per dag 9 vrachtwagens per dag

Handelszaken 38 vrachtwagens per dag 68 vrachtwagens per dag

Voorzieningen

Produc eac viteiten

Ter herinnering: in de bestaande toestand (huizenblokken) kan men scha en dat het aantal leveringen per dag 47 bedraagt voor de handelszaken en 21 voor de kantoren, hetzij 67 vrachtwagens per dag. Voor het voorkeurscenario (huizenblokken) s jgen die cijfers naar 77 voor de handelszaken, 31 voor de produc eac viteiten en 8 voor de kantoren, hetzij in totaal 116 vrachtwagens per dag. Deze cijfers liggen veel hoger dan in de bestaande toestand en ook ten opzichte van de gescha e impact van de programmatorische alterna even, aangezien de toegekende vloeroppervlakten groter zijn.

In termen van kwaliteit bepaalt het BBP dat de logis eke toegangen tot de huizenblokken zoveel mogelijk worden beperkt en gera onaliseerd teneinde de impact van die toegangen op de ac vering van de benedenverdiepingen te beperken.

Gezien de ligging van het gebied binnen de netwerken (Vrachtwagens Comfort-wegen langs de huizenblokken) en debreedtevandewegenzou decapaciteitvanhetwegennetinstaatmoetenzijnomdeimpactvanhetopgelegde programma op te vangen. Gezien de ligging van de verkeersassen voor de Vrachtwagens Comfort, de oppervlakte en de typologie van het onderzochte gebied (3 gebouwen huizenblokken), zouden de leveringen voor alle huizenblokken plaats moeten hebben vanaf die assen (Albert II en Solvay), zodat de vrachtwagens geen toegang krijgen tot de andere wegen, waar overigens onder meer een groot aantal gebruikers van ac eve verplaatsingswijzen moeten worden opgevangen en zouden die leveringen binnen de huizenblokken moeten plaatsvinden, zodat het verkeer op die assen niet wordt gehinderd. Dat is wat de begeleidende maatregelen voorstellen.

Merk op dat het mul modale sta on in haar noordelijke gedeelte gelegen is op de plaats waar de leveringen worden uitgevoerd en de logis eke toegangen voor het huizenblok sta on zich bevinden. De voorschri en van het mul modale sta on zorgen ervoor dat ‘de nodige logis ek voor de werking van het openbaar vervoer’ er kan plaatsvinden, wat doet vermoeden dat de leveringen en de toegangen door vrachtwagens er nog al jd mogelijk zullenzien(dusookvoordeontwikkelingvaneentoegangtothethuizenblokCCN).Geziendebouwvanhetsta on evenwel (lineair met mogelijkheid voor de bussen om rechtsomkeer te maken op het Solvayplein) zou de gelijk jdige aanwezigheid van de vrachtwagens voor problemen kunnen zorgen.

AANBEVELINGEN

Bij de indiening van de vergunningen voor het huizenblok CCN, moet het gelijk jdig verlopen van de leveringen van de huizenblokken van het sta on en de organisa e van het mul modale sta on een aandachtspunt moeten zijn dat niet mag worden verwaarloosd.

Hoofdstuk III / Afdeling 3 Effectenbeoordeling / C – ontwerp van BBP / p. 431
VERPLAATSINGEN

MOBILITEITSDIENSTEN EN INTERMODALITEIT

ANALYSES

Wat het aantal deelauto's betre , zijn naar scha ng minstens 37 personen carsharers, voor 2 noodzakelijke gedeelde auto’s.

De toename van de gemengdheid en de ontwikkeling van woningen op het terrein zullen zijn rol als gewestelijke pool voor openbaar en intermodaal vervoer nog versterken. Hierdoor zullen helderheid en leesbaarheid nog aan belang winnen. Het BBP bepaalt hiervoor dat de inrich ng van het mul modale sta on de overstappen tussen de verschillende wijzen en transportlijnen (spoorweg, (pre)metro en bovengronds transport) moet vergemakkelijken en dat de zichtbaarheid van de toegangen en de haltes gewaarborgd is. Zonder de stromen van het busverkeer en hun organisa e te definiëren en te omkaderen binnen de perimeter, biedt het BBP de mogelijkheid dat het openbaar vervoer over het Bolivarplein kan rijden en er halthouden, maar langdurig parkeren is er verboden, waardoor de huidige terminussen van de twee MIVB-lijnen niet kunnen behouden blijven, wat in het voordeel speelt van de intermodaliteit indien deze terminussen naar het mul modale sta on worden verplaatst, maar in het nadeel van de intermodaliteit indien ze verder langs de Bolivarlaan65 worden ingericht. Bovendien zal de inrich ng van die ruimte de leesbaarheid en de toegankelijkheid van de parcours naar al het openbaar vervoer mogelijk maken.

Tijdens de vorige analysefases bestond een van de aanbevelingen erin om alle bushalten ‘Noordsta on’ op één punt samen te brengen (bijvoorbeeld vóór de ingang op stadsniveau van het sta on binnen het mul modale sta on) en dat de signalisa e en het verplaatsingscomfort tussen die halte en de ingangen tot de premetro en het sta on verzekerd moeten zijn. De begeleidende maatregelen stellen die verschillende punten voor en stellen ook voor om de halten tussen de operatoren te ra onaliseren, wat in het voordeel van de intermodaliteit zal spelen.

De voorschri en en de begeleidende maatregelen omkaderen het behoud en de ontwikkeling van ver cale verbindingen tussen de plaat van het sta onsniveau, het stadsniveau en de metro ten gunste van een betere intermodaliteit. Bovendien biedt het volledige door het mul modale sta on overdekte gebied plaats om jdelijk te parkeren (taxi, kiss and ride), wat ook in het voordeel speelt van de intermodaliteit en de mobiliteitsdiensten.

AANBEVELINGEN

De concrete inrich ng van het mul modale sta on, het Bolivarplein (doorgang/halte) en de verschillende terminussen van de lijnen die deze ruimten gebruiken, zullen van doorslaggevend belang zijn voor dit criterium, dat een specifiek aandachtspunt verdient bij de gesprekken over de verkrijging van een stedenbouwkundige vergunning. Een aandachtpunt is ook dat de verplaatsing van de bestaande terminussen voor de twee MIVB buslijnen op het Bolivarplein moet worden verzekerd in het mul modale sta on (lengte van het perron) voor een betere intermodaliteit.

Het BBP zou kunnen opleggen of voorstellen om minstens de bekabeling te voorzien voor het elektrisch opladen van de auto's in de ondergrondse parkings.

65 De organisa e van de terminals zal dus een bepalende factor zijn voor dit criterium, maar dat is in dit stadium niet bekend.

Hoofdstuk III / Afdeling 3 Effectenbeoordeling / C – ontwerp van BBP / p. 432
VERPLAATSINGEN

ANALYSES

Algemeen gesteld maakt het BBP ons bewust van de impact van de herontwikkeling van de wijk door een gedetailleerde studie op te leggen in verband met (onder meer) de schaduwvorming en het microklimaat voor elke nieuwbouw of verhoging of uitbreiding van bestaande gebouwen.

De begeleidende maatregelen stellen dan weer voor de aanbevelingen van deze studies uit te voeren (zoals de plaatsing van luifels, de ruwheid van de gevels, architectonische vormen voor de wind enz.), wijzen erop dat het behoud van een bebouwde gevel aan de Albert II-laan het mogelijk maakt de luchtbewegingen uit deze rich ng af te schermen, waardoor een toename van de overlast in de hele omtrek wordt beperkt, stellen voor eventuele voorzieningen ter verbetering van het comfort in de wind te integreren in de projecten voor de openbare ruimte en deze gegevens/beperkingen voor de toekomst te integreren. Ten slo e moedigen ze het gebruik van materialen met hoge albedoverhoudingen (0,3 tot 0,8) en een lage emissiviteit aan, zodat de absorp e door de oppervlakken en het warmte-effect dat eruit voortvloeit, wordt beperkt.

Schaduwvorming en wind

Het ontwerp van BBP vermeldt mogelijke bouwprofielen waarbinnen de mogelijkheden van reële volumetrie ontelbaar zijn. De realiseerbare analyse is hier dus beperkt. De hoge bouwprofielen in de wijk zijn in de bestaande toestand al globaal onguns g en de beoogde verdich ng van de bebouwing komt dit criterium niet ten goede. Het BBP voorziet immers een algemene verkleining van de grondinname in combina e met een algemene vergro ng van de vloeroppervlakten. De bebouwde dichtheid die is toegestaan in het huizenblok CCN (gebied C2) zal leiden tot de ontwikkeling van heel grote bouwprofielen, van dezelfde orde als in het huizenblok Proximus en het huizenblok North Galaxy, wat een grote verandering is ten opzichte van de bestaande toestand:

De bouw van nieuwe hoogbouw zal enerzijds schaduwvorming met zich brengen - zowel op de gebouwen onderling als op de openbare ruimten, en nieuwe tunnel- en omleidingseffecten. Er mag dus een impact worden verwacht op het vlak van luch urbulen es en schaduw voor het volledige gebied dat door het BBP wordt behandeld, zonder dat het mogelijk is om daar momenteel iets meer over te vertellen.

In het algemeen is de doorbreking van het huizenblok CCN guns g om slagschaduw op het Bolivarplein te vermijden.

66 Met inbegrip van de gebieden die verband houden met het mul modale knooppunt

67 9029 m² in de bouwvergunning, waarvan 445 en 126 m² open ruimtes op de begane grond in het hart van het blok.

Hoofdstuk III / Afdeling 3 Effectenbeoordeling / C – ontwerp van BBP / p. 433
Leefmilieu en klimaat MICROKLIMAAT
Gebied A (NG) Zone B (Proximus) Zone C1 (CCN) Vloeroppervlakte ~109 300 m² ~45 100 m² ~92 40066 m² Grondinname van de bestaande gebouwen 8 45867 m² 2 643 m² 10 738 m² Gemiddeld aantal verdiepingen van de gebouwen (vloeren/grondinname) 12,9 17 8,6 Toegelaten max. vloeroppervlakten ~114 800 m² ~49 250 m² ~119 400³ m² Toegelaten max. grondinname van de gebouwen 8 400 m² 2 170 m² 8 775 m² Gemiddeld aantal verdiepingen van de gebouwen (vloeren/grondinname) 13,7 22,7 13,6
LEEFMILIEU EN KLIMAAT

HetBolivarvoorpleincreëertdaarentegengezienzijnoriënta eenzijnvoorzienebouwprofieleninhuizenblokCCN (gebied C1) een risico van beperkte kwaliteiten doordat het bijna voortdurend in de schaduw ligt. Het BBP biedt overigens de mogelijkheid dat dit voorplein slechts 30 m breed is, voor een bouwvergunning tot 110 m in de naburige gebieden. De ontwikkeling van een voorplein in de hoogte (op een plaat), die voorzien is door het ontwerpvanBBP,de ontwikkeling vangebouwen langshetvoorplein overdevolledigelengte(Bolivaras),datdoor hetontwerpvan BBPisvoorzienendebeperktebreedtevan hetvoorplein,datdoorhetontwerpvanBBPmogelijk is gemaakt (30 m), zijn drie elementen die in het nadeel van het windcomfort in die ruimte zullen spelen.

Stedelijk hi e-eiland

Bij de opstelling van het BBP werden talrijke aanbevelingen geformuleerd in verband met het stedelijke hi eeilandeffect. Het BBP bepaalt immers dat de waterdoordringbare oppervlakte van het Bolivarplein in de rich ng van 60% evolueert, dat een maximale beplan ng in volle grond verzekerd is, dat er hoogstambomen en gediversifieerdelagenendatereensysteemwordtontwikkeldvoorhetbovengrondseregenwaterbeheer.Aldeze elementen zullen in het voordeel van dit criterium spelen, zelfs al bieden ze niet de mogelijkheid om de ontwikkeling van een grote groene ruimte in volle grond te verzekeren (het begrip doordringbaar biedt de mogelijkheid van de ontwikkeling van niet beplantbare gebieden en een systeem voor het bovengrondse geïntegreerde beheer van het regenwater is dat ook niet noodzakelijkerwijs). Doordat deze ruimte een van de weinige plaatsen is waar de volle grond beschikbaar is en gelijk jdig de ruimte die het meest geraakt wordt door het hi e-eilandeffect, zullen deze maatregelen in het voordeel van dit criterium spelen. Indien werkelijk een grote groene ruimte wordt ontwikkeld op het plein, wat mogelijk wordt gemaakt door de voorschri en, kan de impact ervan op het hi e-eilandeffect zich uitstrekken over een groot deel van de perimeter van het BBP en zelfs verder. Behalve deze ‘cluster’ worden de groene ruimten van de Albert II-laan behouden en is ook een groene ruimte voorzien voor het terrein van het voormalige Medical Center (dat in de voorschri en de nieuwe naam Vooruitgangsruimte krijgt). Wegens de verschillende technische beperkingen die voor dit terrein gelden, wordt de omvang van de groene ruimte a priori beperkt, maar hee ze wel de verdienste dat ze bestaat.

Het BBP bepaalt at minstens 50% van de achteruitbouwzones groen moeten zijn en een substraat van minstens 0,8 m moeten hebben). Grote bomen en de diversifica e van de lagen worden er aangemoedigd.

Het BBP bepaalt ook dat de onbebouwde gebieden binnen de bebouwbare gebieden A en B ten minste 0,8 m substraat moeten hebben en ‘hoofdzakelijk’ begroeid zijn, dat de daken moeten begroeid zijn (indien zij niet door andere func es worden ingenomen) en semi-intensief moeten zijn voor de daken die zichtbaar zijn vanuit andere gebouwen (d.w.z. tussen 10 en 30 cm substraat), dat de begroeiing van de wegen moet worden gemaximaliseerd (diversifica e van de lagen enz.), dat de bestaande open ruimten op de wegen (d.w.z. op de Solvay-as) zoveel mogelijkmoetenwordenbehoudenentenslo edatdematerialendiewordengebruiktomdewegentebedekken het stedelijke hi e-eilandeffect moeten beperken. Al deze voorschri en zullen in het voordeel van dit criterium spelen.

In kwan ta eve termen zullen de ~4 300 m² groene ruimte van de Albert II-laan behouden blijven en zouden ook de ~700 m² volle aarde op de Solvay-as ook moeten behouden blijven. Een oppervlakte van ongeveer 5 000 m² zou waterdoordringbaar moeten worden gemaakt op het Bolivarplein (60%), minimum ~1 700 m² achteruitbouwzones (50%) zouden moeten worden beplant (substraat van minstens 0,8 m, met plaatselijk 1,2 m voorgrotebomen,maar waaraprioribovendeplaatwordtgebleven)enmin.~1400m²vrijeruimteopdebodem (zie Structuur van de bebouwde ruimten en de open ruimten) zullen moeten worden beplant op minstens 0,8 m substraat (waar a priori boven de plaat wordt gebleven) binnen de gebieden A en B.

AANBEVELINGEN

Het BBP zou - minstens in zijn begeleidende maatregelen - kunnen vermelden dat voor elk project dat op een ingrijpende manier de volumes op de perimeter wijzigt, het windcomfort niet mag worden verminderd ten opzichte van de bestaande toestand en dat het conform het voorziene gebruik is (terrassen en openbare banken in gebied A, voetgangerszone in gebied A of B, balkons in gebied A of B enz.).

Teneinde een positeive impact te verzekeren op het hi e-eilandeffect zou het ontwerp van BBP kunnen bepalen dat 50% van de oppervlakte die waterdoordringbaar kan worden gemaakt op het Bolivarplein in volle aarde wordt beplant.

Hoofdstuk III / Afdeling 3 Effectenbeoordeling / C – ontwerp van BBP / p. 434
LEEFMILIEU EN KLIMAAT

BODEM ANALYSES

Op het Bolivarplein bepaalt het BBP dat de waterdoordringbare oppervlakte moet neigen naar 60%, dat een maximalebeplan nginvollegrondmetgediversifieerdelagenmoetwordenverzekerdendatereenbovengronds systeem voor het geïntegreerde regenwaterbeheer moet worden ontwikkeld. Hoewel deze elementen niet de mogelijkheid bieden om de ontwikkeling van een grote groene ruimte in volle aarde te ontwikkelen (het begrip waterdoordringbaar biedt de mogelijkheid om niet beplantbare gebieden/gebieden in volle aarde), zullen ze in het voordeel van dit criterium spelen, aangezien deze ruimte een van de weinige plaatsen is waar volle grond beschikbaar is.

Overigens worden de groene ruimten in volle grond van de Albert II-laan behouden en wordt de aanleg van een groene ruimte ook mogelijk gemaakt op het terrein van het Medical Center (Vooruitgangsruimte). Wegens de verschillende technische beperkingen die voor dit terrein gelden, wordt de omvang van de groene ruimte a priori beperkt, maar hee ze wel de verdienste dat ze bestaat.

Het BBP bepaalt dat minstens 50% van de achteruitbouwzones (dus in de gebieden A en B) moet beplant worden enminstenseensubstraatvan0,8mzalhebbenendatdeniet-bebouwdegebiedenbinnendiegebiedenminstens 0,8 m substraat hebben en ‘voornamelijk’ worden beplant. Gezien het bestaan van de ondergronden en het ontwikkelde programma (dus van de bijbehorende behoe en aan parkeermogelijkheden), zullen deze ruimten op de plaat blijven liggen (ondergrondse parking).

Overigens vraagt het BBP dat de beplan ng van de wegen wordt gemaximaliseerd (diversifica e van de lagen ...) en dat de bestaande ruimten in volle grond in de weg (en dan meer bepaald op de Solvay-as) zoveel mogelijk behouden blijven of dat de verdwijning ervan wordt gecompenseerd.

In zijn voorschri en in verband met de ontwikkeling van de biotoop bepaalt het BBP ook dat elke inrich ng van de openbare ruimte, nieuw bouwwerk of renova e moet bijdragen [...] aan het behoud van de bestaande groene ruimten en de aanleg van volle grond.

Overigens stellen de begeleidende maatregelen voor om de kwaliteit van de bodems in de open lucht (meststoffen, verluch ng, beplan ng ...) te verzekeren, zodat ze levendige bodems worden.

In kwan ta eve termen zouden de ~4 300 m² groene ruimte van de Albert II-laan en de ~700 m² volle aarde op de Solvay-as moeten behouden blijven. Een oppervlakte van ongeveer 5 000 m² zou waterdoordringbaar moeten worden gemaakt op het Bolivarplein (60%), maximaal 700 m² zullen in volle grond zijn op het terrein van het Medical Center, minimaal ~1 700 m² achteruitbouwzones (50%) zouden moeten worden beplant (substraat van minstens 0,8 m, met plaatselijk 1,2 m voor grote bomen, maar waar a priori boven de plaat wordt gebleven) en min. ~1 400 m² vrije ruimte op de bodem (zie Structuur van de bebouwde ruimten en de open ruimten) zullen moeten worden beplant op minstens 0,8 m substraat (met plaatselijk 1,2 m substraat voor grote bomen, maar waar a priori boven de plaat wordt gebleven) binnen de gebieden A en B.

De ondoorlatendheid wordt globaal gezien verminderd: 88 % (tegenover 94% in de bestaande toestand, hetzij twee keer meer waterdoordringbare ruimte dan in de bestaande toestand), met daar bovenop de ~3 100 m² op de plaat (~0,03% van het BBP) ontwikkeld binnen de percelen en de groene daken (niet kwan ficeerbaar).

De voorschri en van het ontwerp van BBP zouden geen impact mogen hebben op de bodemverontreiniging (beperking van de produc eac viteiten die kunnen worden ontwikkeld, maar geen andere voorschri en of begeleidende maatregelen in verhouding met dit thema).

AANBEVELINGEN

Teneinde een posi eve impact te verzekeren op de bodem en de kwaliteit ervan zou het ontwerp van BBP kunnen bepalen dat 50% van de oppervlakte die waterdoordringbaar kan worden gemaakt op het Bolivarplein in volle aarde wordt beplant.

Hoofdstuk III / Afdeling 3 Effectenbeoordeling / C – ontwerp van BBP / p. 435
LEEFMILIEU EN KLIMAAT

ECOLIGSCH NETWERK EN MILIEUNETWERKEN

ANALYSES

Talrijke voorschri en van het BBP -ongeacht of ze nu duidelijk of vager zijn in kwan ta eve termen - spelen in het voordeel van dit criterium:

- Algemeen gesteld moet elke inrichting van de openbare ruimte, nieuw bouwwerk of renovatie erop gericht zijn om bij te dragen aan de ontwikkeling van het groene netwerk, het behoud van de bestaande groene ruimten, de ecologische ontwikkeling (biotoop) en de aanleg van volle grond. Bovendien zijn de beplante soorten in de perimeter gevarieerd, inheems en gekozen volgens de context van de beplantingen;

- Specifiek in de openbare ruimte

o Op de weg: de bestaande ruimten in volle grond behouden of compenseren, de beplanting maximaliseren, gediversifieerde lagen die gunstig zijn voor de biodiversiteit, soorten zijn gevarieerd, inheems en gekozen volgens de context van de beplanting, invasieve soorten verboden;

o Bolivarplein: doordringbare oppervlakte in de richting van 60%, maximale beplanting in volle grond, hoogstambomen en gediversifieerde lagen, gunstig voor de biodiversiteit, gevarieerde en inheemse soorten die aangepast zijn aan de context van de beplanting, invasieve soorten verboden;

o Albert II: groene ruimte in volle aarde behouden

o Medical Center (Vooruitgangsruimte): groene en/of open ruimte voorzien, ontwikkeling van het ecologische potentieel van het gebied als overgangsgebied tussen het talud van de spoorweg en de andere groene ruimten in de nabijheid. Wegens de verschillende technische beperkingen die voor dit terrein gelden, wordt de omvang van de groene ruimte a priori beperkt, maar heeft ze wel de verdienste dat ze bestaat gezien haar zeer belangrijke ligging.

- Binnen de privéruimte:

o Naaste omgeving: maximaal beplant, en dan meer bepaald via de aanplanting van hoogstammige bomen, teneinde de ontwikkeling van de biotoop te optimaliseren. Elk project ziet erop toe om de biotoopcoëfficiënt per oppervlakte te maximaliseren.

o Achteruitbouwzones (gebieden A en B): minstens 50% is beplant en heeft een substraat van minstens 0,8 m. Grote bomen (op 1,2 m substraat) en de diversificatie van de lagen worden er aangemoedigd. De soorten zijn gevarieerd en inheems en worden gekozen volgens de context van de beplanting en invasieve soorten zijn verboden. Merk op dat het burgerlijk wetboek bepaalt dat een hoogstamboom op minstens 2 m van de grens van het eigendom wordt geplant (midden van de stam/boord van het perceel). Aangezien de achteruitbouwzones een lineaire geometrie hebben die varieert van 2 tot 9 m, kan dit soort beplantingen niet overal gebeuren en zal moeten worden nagedacht over de best mogelijke groeimogelijkheden;

o Niet bebouwde gebieden binnen de bebouwbare gebieden A en B: deze gebieden zijn ‘hoofdzakelijk’ beplant en moeten een substraat van minstens 0,8 m hebben. Gezien de bepalingen in verband met de parkeermogelijkheden zullen deze gebieden waarschijnlijk niet in volle grond zijn (behoud van de ondergrondse parking). Dat zou de toepassing van het ontwerp van de nieuwe GSV in de weg staan (30% volle grond voor elk perceel);

o Daken: groen als ze niet worden ingenomen door andere functies en als ze vanaf andere gebouwen zichtbaar zijn, moeten ze semi-intensief zijn (hetzij tussen 10 en 30 cm substraat) en voor de biodiversiteit gunstige gediversifieerde lagen hebben. Invasieve soorten zijn verboden. Merk op dat het belang van de daken voor het ecologische netwerk en het groene netwerk afhankelijk zal zijn van hun niveau (hoogte) en hun verbinding met de bodem, de andere groendaken en de groene ruimten rondom.

o Het regenwater dat niet wordt gevaloriseerd (opslag of hergebruik) wordt zoveel mogelijk op het perceel zelf beheerd, in opvangbouwwerken die prioritair werden ontworpen volgens de geïntegreerde beheerprincipes van het regenwater (of met beplanting).

o De begeleidende maatregelen stellen voor om het gebruik van grote glazen of reflecterende oppervlakken in de gevel zoveel mogelijk te beperken om de impact op de vogelpopulatie te beperken (beperking van botsingen).

Hoofdstuk III / Afdeling 3 Effectenbeoordeling / C – ontwerp van BBP / p. 436
LEEFMILIEU EN KLIMAAT

Behalvedevoorschri enzullendebegeleidendemaatregelenvan hetBBPook inhetvoordeelvanhetecologische netwerk en het groene netwerk spelen, in die zin dat ze vragen om de bestaande volwassen bomen te behouden en om een con nuïteit te verzekeren tussen de kronen van de rijbomen.

In kwan ta eve termen zouden de ~4 300 m² groene ruimte van de Albert II-laan en de ~700 m² volle aarde op de Solvay-as moeten behouden blijven. Een oppervlakte van ongeveer 5 000 m² zou waterdoordringbaar moeten worden gemaakt op het Bolivarplein (60%), minimum ~1 700 m² achteruitbouwzones (50%) zouden moeten worden beplant (substraat van minstens 0,8 m, met plaatselijk 1,2 m voor grote bomen, maar waar a priori boven de plaat wordt gebleven) en min. ~1 400 m² vrije ruimte op de bodem (zie Structuur van de bebouwde ruimten en de open ruimten) zullen moeten worden beplant op minstens 0,8 m substraat (met plaatselijk 1,2 m voor de grote bomen, maar waar a priori boven de plaat wordt gebleven) binnen de gebieden A en B.

Gelet op de maximale grondinname ten opzichte van de bebouwbare oppervlakten zie Structuur van de open en de bebouwde ruimten) en de bepalingen met betrekking tot de niet-bebouwde gebieden binnen de bebouwbare gebieden A en B zullen beide bebouwbare gebieden maatregel 0.2 van het GBP68 kunnen respecteren, met minstens ~900 m² grondinname in de vrije grond (voor max. ~8 400 m² grondinname) voor gebied A en minstens ~500 m² grondinname in de vrije grond (voor max. ~2 200 m² grondinname) voor gebied B (maar deze maatregel zal a priori van toepassing zijn op de schaal van het ontwerp, dus voor het volledige perceel-huizenblok). Gebied C1 zal dan weer volledig kunnen worden bebouwd en hee geen achteruitbouwzones; ze zal dus niet de mogelijkheid bieden om deze maatregel te respecteren noch om bij te dragen aan de ontwikkeling van het plaatselijke ecologische netwerk (maar deze maatregel zal a priori op de schaal van het project van toepassing zijn en dus op het volledige perceel-huizenblok, waardoor mogelijkheden ontstaan).

Het poten eel op het vlak van de kwaliteit en de groei van de beplan ng en dus het belang van deze laatste voor het ecologische netwerk en het groene netwerk zal a ankelijk zijn van de organisa e van de open en de bebouwde ruimten en de impact die ze op de belich ng (schaduwen) en de luchtstromen zullen hebben. Er moet met die omstandigheden rekening worden gehouden om de aan te planten soorten te definiëren, zoals de algemene voorschri en voor de ontwikkeling van de biotoop en de wegengebieden verduidelijken (‘de soorten moeten worden gekozen op basis van de context van de beplan ng’).

AANBEVELINGEN

Bij de opstelling van het ontwerp van BBP werd rekening gehouden met de meeste aanbevelingen die jdens de vorige stappen werden geformuleerd.

Teneinde een kwan ta eve posi eve impact op het ecologische netwerk te verzekeren, zou het ontwerp van BBP kunnen

- bepalen dat 50% van de oppervlakte die waterdoordringbaar kan worden gemaakt op het Bolivarplein, ni volle grond wordt beplant;

- de maximale grondinname (en dus ook de bebouwde dichtheid, gezien de beperkte bouwhoogte in het gebied) in gebied C1 beperken, teneinde de toepassing van maatregelen 0.2 van het GBP mogelijk te maken/te verplichten;

- bepalen dat 30% van de daken intensief moet worden beplant en dat er verbindingen zijn tussen die daken en de omliggende plantaardige elementen (in de grond of op de andere daken) om het feit te compenseren dat men geen volle grond in de bodem recupereert.

68 10% groenvoorzieningen voor projecten van > 5000 m² op de grond, met een minimum van 500m² aan één stuk

Hoofdstuk III / Afdeling 3 Effectenbeoordeling / C – ontwerp van BBP / p. 437
LEEFMILIEU EN KLIMAAT

WATER, CIRCULARITEIT VAN DE STROMEN EN TECHNISCHE NETWERKEN

ANALYSES

Ondoordringbaarheidsgraad van de bodem en regenwater

Op het niveau van de percelen voorziet het BBP een verkleining van de grondinname van de gebouwen, maar de bestaandetoestandondergronds(bebouwdebijnatotaliteitvoordemetroen/ofparkeergelegenheden)biedtniet de mogelijkheid om deze verkleining van de grondinname te koppelen met een toename van de waterdoordringbaarheid van de bodem binnen de percelen. Het beheer van het regenwater zal hierdoor worden verbeterd (opslag van water en verdamping-transpira e), zij het in een mindere mate dan als de bodem van volle aarde zou zijn.

Op het niveau van de openbare ruimte zouden de bestaande groene ruimten in volle grond op de Albert II-as en de Solvayas moeten behouden blijven (respec evelijk ~4 300 en ~700 m²). Een van de voorschri en bepaalt overigens dat de doordringbare oppervlakte op het Bolivarplein in de rich ng van 60% gaat (en dat er een bovengronds systeem voorhetbeheervanhetregenwaterzalwordengeïnstalleerd),hetzij ~5000m².Eengroene ruimteisookmogelijkvoorhetterreinvanhetMedicalCenter(Vooruitgangsruimte),maargeziendeverschillende technischebeperkingenopditterrein,wordtdeomvangvandegroeneruimteinvollegrondaprioribeperkt(max. ~700m²).

De ondoorlatendheid wordt globaal gezien verminderd: 88%. Merk op dat dit percentage in de bestaande toestand bijna 94% bedraagt. In de geplande toestand zal dus twee keer meer doordringbare ruimte beschikbaar zijn dan in de bestaande toestand.

De voorschri en van het ontwerp van BBP spelen sterk in het voordeel van dit criterium:

- Elke nieuwbouw of zware renovatie zal zijn impact op de natuurlijke stroomrichting van de grondwaterlaag zoveel mogelijk moeten beperken.

- Elke inrichting van de openbare ruimte, nieuwbouw of renovatie moet erop gericht zijn om bij te dragen aan het geïntegreerde beheer van het water in de perimeter en zijn naaste omgeving;

- Scheiding van het afvalwater en het regenwater (daken en gevels) en (in voorkomend geval) bemaling in geval van nieuwbouw of zware renovatie, met verplichting om het water prioritair in de bodem te laten wegsijpelenofhetopteslaan(dimensioneringomminstens90%vanhetwatertevaloriserenofomminstens 90% van de behoeften te dekken);

- Beheervandeoverloopvandetanksophetperceelviaopvangbouwwerken,inprioriteitvolgensdeprincipes van het geïntegreerde waterbeheer (bouwwerken gedimensioneerd om minstens regenbuien die om de 100 jaar voorkomen te beheren en op basis van doordringbaarheidstests);

- Bij overschot, oriëntatie van het water naar een openbaar wateropvangsysteem voor infiltratie en/of afvoer naar het plaatselijke hydrografische netwerk en in laatste instantie naar de riolering (geregeld lekdebiet van 5 l/s.ha);

- De verharding en de inrichting van de wegengebieden moeten erop gericht zijn om het regenwater naar het natuurlijke milieu terug te voeren ((half)doordringbare verhardingen, opvang-/infiltratie/evapotranspiratiesystemen)

Verbruik en afvoer van water

Ter herinnering: de cijfers voor het verbruik en de afvoer in de huidige toestand (sitex C, zie analyse van de programmatorische alterna even voor de andere) werden geschat op iets meer dan 173 200 m³ water per jaar voor de werknemers in de kantoren in de wijk (huizenblokken). Daarbij komen nog de bijna 3 400 m³ water die per jaar worden verbruikt door de bezoekers. In totaal kan men dus scha en dat er elk jaar 176 600 m³ wordt verbruikt, of bijna 484 m³/dag.

Hoofdstuk III / Afdeling 3 Effectenbeoordeling / C – ontwerp van BBP / p. 438
LEEFMILIEU EN KLIMAAT LEEFMILIEU EN KLIMAAT

Voor het voorkeurscenario (huizenblok) kan het waterverbruik per type gebruiker worden geschat op: SP (huizenblokken)

Aantal inwoners 2 863

Aantal werknemers 11 314

Aantal bezoekers 11 158

Verbruik 236 674 m³/jaar

d.i. 648 m³/dag

We noteren dus een toename met 164 m³/dag, of een s jging met ~34% in verhouding tot de huidige verbruikscijfers, wat belangrijker is dan de alterna even die bij de vorige fasen werden onderzocht.

Het waterverbruik69 kan voor het BBP per type gebruiker van de wijk op: Bewoners en bezoekers Werknemers van en bezoekers aan de kantoren

Werknemers van en bezoekers aan de handelszaken

Werknemers van en bezoekers aan de voorzieningen

MIN. Aantal ~2 000 + ~190 ~5 700 + ~600 ~550 +

NB: aangezien de oppervlakten in verband met de produc eac viteiten niet worden omkaderd door het BBP, kunnen deze scha ngen niet worden berekend voor deze fucn e.

In deze fase bestaan er te veel mogelijke combina es tussen de verschillende func es om de plausibele minimale enmaximaleglobaleverbruikscijfersteberekenen(waarbij webijvoorbeeld uitsluitendat0%vandehandelszaken of 27% van de uitrus ngen ontwikkeld zijn). Aangezien het minimale aantal bewoners en het minimale en maximale aantal werknemers lager ligt dan de waarden die jdens de programmeringsfase70 werden geschat, kunnen we inscha en dat het rioleringsnet en het zuiveringssta on noord in staat zijn om de algemene toename van het verbruik en de afvoer op te vangen - enerzijds doordat ze voorzien waren voor hogere waarden en anderzijds doordat de bepalingen voor het beheer van regen- en pompwater binnen het perceel de opgevangen volumes zullen verlagen.

69 De ramingen worden gemaakt op basis van de minimum- of maximumpercentages die door de PPAS worden opgelegd. Aangezien voor sommige func es geen minimum en/of maximum geldt, kan de tabel niet voor alle func es worden ingevuld.

70 Er zij op gewezen dat deze cijfers betrekking hebben op alle blokken (Proximus en CCN). Deze delen van het blok buiten het PPAS worden hier niet meegerekend, maar moeten in aanmerking worden genomen om de totale omvang van het effect van de projecten te ramen

Hoofdstuk III / Afdeling 3 Effectenbeoordeling / C – ontwerp van BBP / p. 439
~2800 Verbruik ~ 73 200 m³/jaar d.i. ~ 200 m³/dag ~ 63 300 m³/jaar d.i. ~ 170 m³/dag ~ 8 100 m³/jaar d.i. ~ 22 m³/dag Afvoer van grijs water ~ 51 200 m³/jaar d.i. ~ 140 m³/dag ~ 22 100 m³/jaar d.i. ~61 ³/jour ~ 2 800 m³/jaar d.i. ~ 8 m³/dag Afvoer van zwart water ~ 22 000 m³/jaar d.i. ~ 60 m³/dag ~ 41 100 m³/jaar d.i. ~ 113 m³/dag ~ 5 300 m³/jaar d.i. ~ 14 m³/dag MAX. Aantal 7 085 213 Verbruik ~ 79 100 m³/jaar d.i. ~ 217 m³/dag ~ 5 400 m³/jaar d.i. ~ 15 m³/dag Afvoer van grijs water ~ 27 700 m³/jaar d.i. ~76 m³/jaar ~ 1 900 m³/jaar d.i. ~ 5 m³/dag Afvoer van zwart water ~ 51 500 m³/jaar d.i. ~ 141 m³/dag ~ 3 500 m³/jaar d.i. ~ 10 m³/dag
LEEFMILIEU EN KLIMAAT

Merk op dat een deel van het verbruik a oms g is van regenwater dat op de percelen is opgevangen of pompwater, waardoor het verbruik van stadswater met zoveel afnam.

AANBEVELINGEN

Er wordt aanbevolen om de grondinname van de ondergrondse parkings te verkleinen ter hoogte van de vrijgekomen zones in de grondinname van de gebouwen, zodat er te beplanten zones met volle grond kunnen worden ontwikkeld die bijdragen tot een geïntegreerd regenwaterbeheer. De bepalingen over het parkeren beperken echter de mogelijkheden op dit vlak (aantal nodige parkeerplaatsen voor auto’s en parkeerplaatsen omgevormd tot fietsparkeerplaatsen).

Hoofdstuk III / Afdeling 3 Effectenbeoordeling / C – ontwerp van BBP / p. 440
LEEFMILIEU EN KLIMAAT LEEFMILIEU EN KLIMAAT

ENERGIE EN CIRCULARITEIT VAN DE STROMEN ANALYSES

Verbruik, uitwisselingen en produc e Globaalgenomenzijndegrotedichtheidendehogebouwprofielendiewordengepland,nietgoedvoordetoevoer van ‘natuurlijke’ warmte jdens de winter en voor de natuurlijke verlich ng van de binnenruimten - en dan vooral de lage gedeelten van de gebouwen. Bovendien is de bebouwde dichtheid die op het huizenblok CCN is voorzien, dusdanig dat de volumes van de ‘lage’ gebouwen op sommige plaatsen vrij diep zullen moeten worden gebouwd, waardoor hetdaglichtdebinnenkantvan debebouwingniet bereikt,waardoordaarkunstlichtzalmoetenworden gebruikt, met alle energiekosten van dien. Om die problema ek te beperken, bepaalt het BBP dat de diepten van de bebouwing en het ontwerp van de binnenruimten een natuurlijke verlich ng moeten toelaten van de lokalen die bedoeld zijn voor langdurig verblijf. Deze regel geldt zowel voor de woningen (salons, slaapkamers, kantoren, eetkamers...) als voor deanderefunc es(lokalenwaarwerksta onszijn ondergebracht). Dezebepaling geldt niet voor de technische ruimten, de verplaatsingsruimten, de handelszaken en de voorzieningen. Het BBP bepaalt overigens dat nieuwbouw- en renova eprojecten van gebouwen de recentste gewestelijke voorschri en en aanbevelingen naleven - en dan meer bepaald met betrekking tot passieve architectuur en energieneutraliteit, zodat de impact op het vlak van het energieverbruik zoveel mogelijk kan worden beperkt.

In kwan ta eve termen wijzen we op een toename van de vloeroppervlakten met ~40 000 m² binnen het BBP, gecombineerdmetdewijziging vandeverdelingentussende func es.Hetenergieverbruik datdaaruitvoortvloeit, kan als volgt worden geschat71 voor het BBP:

CO2

Produc eac viteiten

In deze fase bestaan er te veel mogelijke combina es tussen de verschillende func es om de plausibele minimale enmaximaleglobaleverbruikscijfersteberekenen(waarbij webijvoorbeeld uitsluitendat0%vandehandelszaken of 27% van de uitrus ngen ontwikkeld zijn). Aangezien de oppervlakten die voor de verschillende func es werden geanalyseerd, lager liggen dan de waarden die jdens de programmeringsfase72, werden geschat, kunnen we veronderstellen dat de impact vergelijkbaar of zelfs minder groot zal zijn: algemene daling van het verbruik.

71 De ramingen worden gemaakt op basis van de minimum- of maximumpercentages die door de PPAS worden opgelegd. Aangezien voor sommige func es geen minimum en/of maximum geldt, kan de tabel niet voor alle func es worden ingevuld.

72 Er zij op gewezen dat deze cijfers betrekking hebben op alle blokken (Proximus en CCN). Deze delen van het blok buiten het PPAS worden hier niet meegerekend, maar moeten in aanmerking worden genomen om de totale omvang van het effect van de projecten te ramen

Hoofdstuk III / Afdeling 3 Effectenbeoordeling / C – ontwerp van BBP / p. 441
Min Max Oppervlakten Jaarlijks verbruik Oppervlakten Jaarlijks verbruik Kantoren ~113 400 m² ~6 800 000 kWh voor ~1 660 T CO2 ~142 000 m² ~8 500 000 kWh voor ~2 000 T CO2 Woningen ~93 500 m² ~5 000 000 kWh voor ~1 200 T CO2 Handelszaken ~96 000 m² ~10 700 000 kWh voor ~2 600 T CO2 Voorzieningen ~27 700 m² ~3 100 000 kWh voor ~750 T
LEEFMILIEU EN KLIMAAT LEEFMILIEU EN KLIMAAT

Dezelfde berekening kan worden gemaakt voor het voorkeurscenario (huizenblokken): Kantoren Woningen Andere func es Jaarlijks verbruik

SP (huizenblokken) 199 886 m² 131 925 m² 72 961 m² 27 288 756 kWh voor 6 658 T CO2

Dezecijferszijnbeterdande huidigetoestand,aangezien de energiepresta esvandetoekoms gegebouwen ook beter zullen zijn. Merk evenwel op dat de waarden die voor het voorkeurscenario werden berekend, hoger liggen dan de waarden die werden berekend bij de analyse van de programmatorische alterna even, aangezien de toegekende vloeroppervlakten groter waren.

Overigens legt het ontwerp van BBP een bepaalde gemengdheid op, wat de uitwisseling van warmte tussen verschillende func es in de hand zou kunnen werken. De kwan ficering van die mogelijkheden is echter pas mogelijk jdens de ontwerpfase. De begeleidende maatregelen stellen voor om voorrang te verlenen aan de synergie tussen ac viteiten en de mutualisa e van hun energiesystemen.

Het BBP legt ten slo e het gebruik en/of de produc e van hernieuwbare energie wordt gemaximaliseerd (geen kwan ficering) en dat de technische installa es voor de produc e van warmte en elektriciteit indien nodig op de daken kunnen plaatsvinden. De begeleidende maatregelen stellen overigens voor om het verbruik te beperken en de restvraag te dekken met hernieuwbare energiebronnen.

Grijze energie

Naast het energieverbruik zal de herontwikkeling van de huizenblokken in het gebied energieverbruik impliceren dat verband houdt met de werken die zullen moeten worden uitgevoerd in de verschillende huizenblokken om ze conformdedoorhetontwerpvanBBPvoorzienefunc estemaken(geendifferen a evolgensdehuizenblokken):

- het huizenblok Proximus maakt momenteel het voorwerp uit van een herontwikkelingsproject. Het ontwerp van BBP geeft voorrang aan het behoud van de bestaande bebouwing en lokaliseert de mogelijke hoogbouw op de plaats van de bestaande hoogbouw, wat het behoud van het bestaande torengebouw en een zware renovatie in plaats van een afbraak-heropbouw voor dit huizenblok bevordert;

- Er is geen enkel project bekend voor het huizenblok North Galaxy. Het ontwerp van BBP geeft voorrang aan het behoud van de bestaande bebouwing en lokaliseert de mogelijke hoogbouw op de plaats van de bestaande hoogbouw, wat in geval van herontwikkeling van dit huizenblok het behoud van de bestaande torengebouwen en een zware renovatie in plaats van een afbraak-heropbouw bevordert.

- Aangezien het huizenblok CCN momenteel deel uitmaakt van het project, waarbij al een afbraakvergunning werd uitgereikt, mag men verwachten dat er één of meerdere nieuwe gebouwen zullen worden opgetrokken. Het behoud van de rooilijnen noord-zuid in het huizenblok CCN biedt de mogelijkheid om de nieuwe gebouwen te laten overeenstemmen met de bestaande ondergrondse structuur, waarmee het potentieel mogelijk is om de ontwikkeling van bijkomende bouwwerken in de ondergrond te voorkomen waarmee een bepaalde hoeveelheid grijze energie is verbonden;

In deze fase bestaan er te veel mogelijke combina es tussen de verschillende func es en te veel mogelijkheden met betrekking tot de behouden of afgebroken elementen (bv. sokkels) om de plausibele minimale en maximale globale CO2-cijfers te berekenen (waarbij we bijvoorbeeld uitsluiten dat 0% van de handelszaken of 27% van de uitrus ngen ontwikkeld zijn). Toch impliceren de ontwikkeling van gevarieerde func es enerzijds en het feit dat de betreffende oppervlakten kleiner zijn dan degene die eerder werden geanalyseerd (strikte limiet van de perimeter van het BBP) dat de conclusies die kunnen worden getrokken voor deze fase van de analyse vergelijkbaar zijn: het is beter om de huizenblokken zwaar te renoveren dan ze af te breken/herop te bouwen. Voor het huizenblok blij de combina e van een renova e en een behoud van de kantoorfunc e op de verdiepingen een op e waarvan de impact op het vlak van tonnen CO2 vergelijkbaar is met een zware renova e met wijziging van de func es. AANBEVELINGEN

Hoofdstuk III / Afdeling 3 Effectenbeoordeling / C – ontwerp van BBP / p. 442
/ LEEFMILIEU EN KLIMAAT

CIRCULARITEIT VAN DE MATERIALEN EN STROMEN/ INKOMENDE MATERIALEN

ANALYSES

Bouw

Het ontwerp van BBP maakt een toename van ~40 000 m² vloeroppervlakte mogelijk, legt een grotere gemengdheid van de func es op, evenals een verkleining van de grondinname van de gebieden A, B en C1 en een vergro ng van de grondinname van gebied C; het ontwerp stree wel het behoud van de bestaande bebouwing na. Die voorschri en impliceren een zware renova e van de bestaande gebouwen in het geval een project (zie Energie), of zelfs een a raak-heropbouw, of toch minstens voor delen van de huizenblokken (sokkels ...), die ook een nega eve impact zullen hebben op dit criterium: voortbrenging van te verwerken afval en vraag naar binnenkomende materialen.

Merk op dat bij werken de omvang van de oppervlakten en de monofunc onaliteit van de bestaande gebouwen een poten eel van recupera e/recyclage van aanzienlijke hoeveelheden materialen impliceren. Het ontwerp van BBP voorziet dat in geval van gedeeltelijke of totale a raak van de gebouwen ter plaatse een inventaris van de herbruikbare materialen (en dan meer bepaald ter plaatse) en een afvalbeheerplan moeten worden opgesteld, die een posi eve impact zal hebben op dit criterium.

Overigens bepaalt het BBP dat elke inrich ng van openbare ruimten, nieuwbouw of renova e erop gericht is om de principes van de circulariteit (omzetbaarheid, hergebruik enz.) toe te passen, wat een posi eve impact zal hebben op dat criterium. De begeleidende maatregelen stellen dan weer voor om de a raakprocedures (vergunningen) met de toekoms ge projecten te verbinden teneinde de recupera e van materialen ter plaatse te op maliseren en de doelstellingen na te leven die in de gewestelijke richtlijnen zijn vastgelegd (minimumpercentages van gedemonteerde materialen die herbruikbaar zijn, ter plaatse of in het BHG zijn gerecycleerd, toegevoerde materialen uit hergebruik, recyclage, a oms g van de site zelf of het BHG).

Hoofdstuk III / Afdeling 3 Effectenbeoordeling / C – ontwerp van BBP / p. 443 Circulariteit
CIRCULARITEIT

Afval (dagelijks gebruik van de wijk)

De opgelegde gemengdheid zal de produc e van ‘afval’ beïnvloeden door de soorten afval te wijzigen die binnen het BBP worden voortgebracht en de vermeerdering van de toegelaten vloeroppervlakten zal de hoeveelheid geproduceerd afval doen toenemen. Het gewicht van het afval dat per type gebruiker van de wijk wordt voortgebracht, kan als volgt worden geschat73:

Het afval dat door de bezoekers wordt voortgebracht (vuilnisbakken in de openbare ruimte) worden niet in deze cijfers opgenomen.

In deze fase bestaan er te veel mogelijke combina es tussen de verschillende func es om de plausibele minimale enmaximaleglobaleverbruikscijfersteberekenen(waarbij webijvoorbeeld uitsluitendat0%vandehandelszaken of 27% van de uitrus ngen ontwikkeld zijn).

Voor het voorkeurscenario kunnen de volgende waarden worden geschat:

73 De ramingen worden gemaakt op basis van de minimum- of maximumpercentages die door de PPAS worden opgelegd. Aangezien voor sommige func es geen minimum en/of maximum geldt, kan de tabel niet voor alle func es worden ingevuld.

Hoofdstuk III / Afdeling 3 Effectenbeoordeling / C – ontwerp van BBP / p. 444
Werknemers van de kantoren Handelszaken Voorzieningen Produc eac viteiten MIN. Restafval + 500 T + 990 T + 290 T Papierkarton + 65 T + 280 T + 83 T PMD + 30 T + 38 T + 11 T Bederfelijk afval + 50 T + 13 T + 4 T Glas + 67 T / / Grof huisvuil + 89 T + 39 T + 11 T Totaal + 1400 T 1 360 T + 400 T MAX Restafval + 1250 T + 150 T Papierkarton + 350 T + 42 T PMD + 48 T + 6 T Bederfelijk afval + 16 T + 2 T Glas / / Grof huisvuil + 48 T + 6 T Totaal + 1700 T + 200 T
Bewoners
Max Max (i) Restafval 2 244 T Papier/ karton 554 T PMD 97 T Bederfelijk afval 74 T Glas 67 T Gegroepeerde glasbollen 4 Grof huisvuil 157 T Totaal 3 193 T
CIRCULARITEIT

Teneinde de openbare ruimte niet te overstelpen (gezien de hoeveelheid voortgebracht afval), stellen de begeleidende maatregelen voor om een ophaling van alle types afval op een gedifferen eerde manier in de huizenblokken te verzekeren (met inbegrip van het bederfelijke afval, glas en grof huisvuil).

AANBEVELINGEN / MODULARITEIT VAN DE RUIMTEN

ANALYSES

Het BBP bepaalt dat de maximale diepte van de nieuwe bouwwerken niet meer dan 22 m mag bedragen, “waardoor ze aan andere func es kunnen worden aangepast met gegarandeerd behoud van de minimale kwaliteit binnen (bv. gekruiste ven la e en voldoende verlich ng)”. Bovendien zal elke inrich ng van de openbare ruimte, nieuwbouw of renova e erop gericht zijn om de circulariteitsprincipes toe te passen, zoals de omzetbaarheid. Debegeleidendemaatregelenstellenoverigensvooromdevolumesendestructurenvandenieuwebouwwerken aan te passen aan de kantoor- en woonfunc es om een echte modulariteit mogelijk te maken in de jd (dragende kolommen in plaats van dragende muren (open plan), voldoende hoogte tussen vloeren ...).

De inhoud van het ontwerp van BBP zul dan ook in het voordeel van dit criterium spelen.

AANBEVELINGEN

Methetzelfdedoelvoorogen alswatdoorhetBBP wordtnagestreefd,luiddedeaanbeveling in devorigestappen, die hier moeten worden herhaald, om de diepten van de nieuwe gebouwen tot ongeveer 18 m te beperken. De bestaande torengebouwen van het huizenblok Proximus en het huizenblok North Galaxy zouden deze aanbevelingen niet moeten volgen gezien de impact op het vlak van de circulariteit (zie Circulariteit van de materialen/Binnenkomende materialen).

Hoofdstuk III / Afdeling 3 Effectenbeoordeling / C – ontwerp van BBP / p. 445
CIRCULARITEIT

INTERACTIETUSSENDECRITERIA

Hoofdstuk III / Afdeling 3 Effectenbeoordeling / C – ontwerp van BBP / p. 446

INTERACTIES TUSSEN DE CRITERIA

RUIMTELIJKE ORGANISATIE STEDELIJKE DYNAMIEK MENSELIJKE OMGEVING VERPLAATSINGEN

Zachte mobiliteitsnetwerkenEcologische

Ervoor zorgen dat de breedte van het Bolivarvoorplein in overeenstemming is met de hoogte van de aangrenzende gebouwen.

De omlijsting van de zones tussen de twee bouwzones in zone C1

Vermindering van het toegestane vloeroppervlak, voornamelijk op het CCN-blok

Symmetrie ontwikkelen aan beide zijden van het Bolivarplein

De pijlen met betrekking tot de visuele openingen nr. 2 en nr. 3 aanpassen

Structuur van de bebouwde ruimten

Structuur van de open ruimten

Stedelijk landschap en symbolische richtpuntenBevolkingHuisvesngVoorzieningen en handelszaken

Economische ac viteiten en transi e

Ac vering van de openbare ruimte via de benedenverdiepingenGeluid en trillingen

LEEFMILIEU EN KLIMAAT CIRCULARITEIT

Kwaliteit van de openbare ruimten voor verplaatsing en verblijfLuchtkwaliteitVeiligheidUitvoering van de MWS Ac eve ver plaatsingswijzenOpenbaarvervoerAuto'sVrachtverkeerParkerenIntermodaliteitMobiliteitsdienstenMicroklimaatBodem en ondergrondEcologisch

netwerkWaterEnergie

Circulariteit van de materialen

Inkomende materialen

Circulariteit van de stromen

Modulariteit van de ruimten

Opmerking / Verklaring

Verlaagt het aantal woningen, maar beperkt de ontwikkeling van woningen van een weinig geschikte typologie Voeg maximaal 12% uitrusting en minimaal 1,5% handel toe.

Minimaal 20% huisvesting (geen 33%)

het minimum- en maximumpercentage kantoorruimte aanpassen tot minimaal 49% en maximaal 60

De lengte van de plaat op het Bolivarplein beperken tot het gebied dat door bussen wordt gebruikt.

ten opzichte van de ac vering van de benedenverdiepingen: minder benedenverdiepingen beschikbaar om de ac viteiten in te planten, maar betere kwaliteit van de benedenverdiepingen opleggen dat maatregelen worden genomen overeenkomstig de resultaten van de opgelegde studies

Bijzondere aandacht voor de activering en de veiligheid/gezelligheid van de openbare ruimte, en de toegankelijkheid van het openbaar vervoer in verband met de talrijke bouwplaatsen die er komen

Ne pas développer d’activités sensibles (logement, horeca (terrasses), certains équipements (écoles, centre de santé)) sur les axes confort Auto et PL

Hoofdstuk III / Afdeling 3 Effectenbeoordeling / C – ontwerp van BBP / p. 447
netwerken Technische netwerken
+ + + + +
+ +
+ + + + + + + + + + +
+ ?
+
~ + + +
+ +
+ + + + +
? + + ~ + + + + + +
? + + + + + + + + + +
+ + + + + + +
+ + + + +

Elargir la partie publique de la partie sud de la petite rue du Progrès, via l’aménagement des zones de recul à destination de l’espace public

Als het mogelijk is technische oplossingen te vinden om de kwaliteit van de wandeling tussen Rogier en Tour et Taxis te waarborgen door voor het Gare du Nord langs te lopen, de Magistrale omleiden door deze voor het station langs te laten lopen.

Wegwerken van het niveauverschil als gevolg van de stroomdaling: voorstellen om technische oplossingen te bestuderen om dit doel te bereiken.

Zorgen voor de ontwikkeling van "openbare" fietsparkeerplaatsen (binnen of buiten), en de kwaliteit van ten minste enkele van deze plaatsen waarborgen (beschut, veilig, enz. - zie masterplannen voor fietsen en bakfietsen).

Ervoor zorgen dat de repatriëring van de bestaande terminals op het Bolivarplein naar de multimodale hub mogelijk is (lengte van het platform).

De aan het CCN-blok toegekende vloeroppervlakte verminderen of de aan de verschillende functies toegekende verhoudingen wijzigen (meer kantoorruimte toestaan).

Verifiëren van de geplande regelingen om het samengaan van de leveringen met de organisatie van het multimodale knooppunt te waarborgen.

Concrete inrichting van de multimodale hub en het Bolivarplein voor het verkeer, haltes en terminals voor de verschillende lijnen van het openbaar vervoer.

Ten minste de bedrading voor het elektrisch opladen van auto's op de parkeerplaatsen aanleggen

De aantasting van het windcomfort van de bestaande situatie verbieden en ervoor zorgen dat deze in overeenstemming is met het beoogde gebruik.

Opleggen dat 50% van de doorlaatbare oppervlakte van het Bolivarplein in de volle grond wordt beplant.

de maximale voetafdruk (en dus ook de bebouwde dichtheid, gezien de beperkte hoogte van de gebouwen in het gebied) in zone C1 beperken, of via een voorschri maatregel 0.2 van de PRAS specificeren om een minimumkwaliteit van deze ruimten te waarborgen.

Hoofdstuk III / Afdeling 3 Effectenbeoordeling / C – ontwerp van BBP / p. 448
+ + + +
+ +
+ + +
+ + + +
+ +
+
+ +
+ +
+
? + +
+ + + + + + + + +
+ + + + +

opleggen dat 30% van de daken intensief begroeid is en opleggen dat er verbindingen zijn tussen deze daken en de omringende vegetatie (op de grond of op de andere daken)

De voetafdruk van ondergrondse parkeergarages verkleinen in gebieden die vrijgemaakt zijn van gebouwen om open gebieden te herontwikkelen.

Hoofdstuk III / Afdeling 3 Effectenbeoordeling / C – ontwerp van BBP / p. 449
+ + +
? + +
Hoofdstuk III / Afdeling 3 - Effectenbeoordeling / A - Alterna even voor de lokalisa e / p. 450
MILIEUEFFECTEN
AFDELING4. OVERZICHT VAN SPECIFIEKE

In ditverband is geen enkel effect te melden, aangezien de site en het programma van het BBP geen betrekking hebben op en ook niet in de nabijheid liggen van:

- gebiedendiebijzonderbelangrijkzijnvoorhetmilieuzoalsdegebiedendiewerdenaangeduidovereenkomstig de richtlijnen 79/409/EEG van de Raad van 2 april 1979 betreffende het behoud van de in het wild levende vogels en 92/43/EEG van de Raad van 21 mei 1992 betreffende het behoud van de natuurlijke habitat evenals van de ongerepte fauna en flora;

- de gebieden waarbinnen vestigingen toegelaten zijn die een risico van zware ongevallen inhouden waarbij gevaarlijke stoffen zijn betrokken in de zin van de richtlijn 96/82/EEG van de Raad van 9 december 1996 betreffende de beheersing van de gevaren verbonden aan de zware ongevallen waarbij gevaarlijke stoffen zijn betrokken, of, indien het plan geen dergelijke gebieden omvat, de milieuproblemen die verbonden zijn aan de inschrijving op het plan van gebieden die voor huisvesting zijn bestemd of door het publiek worden bezocht of die een bijzondere natuurlijke waarde hebben, of die verbindingswegen bevatten en die gelegen zijn in de nabijheid van dergelijke etablissementen of gebieden waarin deze toegelaten zijn.

Hoofdstuk III / Afdeling 3 - Effectenbeoordeling / A - Alterna even voor de lokalisa e / p. 451

MILIEUEFFECTENRAPPORT (MER)

VAN HET BIJZONDER BESTEMMINGSPLAN NR. 19

“WESTWIJK VAN HET NOORDSTATION”

HOOFDSTUK IV

Conclusie, aanbevelingen en opvolgingsmaatregelen

HoofdstukIVConclusies,aanbevelingenenopvolgingsmaatregelen/p.431

Gemeente Schaarbeek Versie 05/10/2022

Inhoud van het MER

HOOFDSTUK I – PRESENTATIE VAN HET ONTWERPPLAN

Afdeling 0. Algemene methode

Afdeling 1. Beschrijving van de strategische doelstellingen van het plan

Afdeling 2. Samenvatting van de inhoud van het plan

HOOFDSTUK II – DIAGNOSE VAN DE BESTAANDE TOESTAND EN IDENTIFICATIE VAN DE UITDAGINGEN

Afdeling 1. Methodologie voor de vaststelling van de bestaande toestand

Delen 2-3-4. Overzicht van de rechtstoestand en van de feitelijke toestand en waarschijnlijke evolutie

HOOFDSTUK III – BESPREKING VAN DE MILIEUEFFECTEN

Afdeling 1. Methodologie

Afdeling 2. Presentatie van de redelijke alternatieven en van de geselecteerde beoordelingsmethode

Afdeling 3. Effectenbeoordeling

A/ PROGRAMMATORISCHE ALTERNATIEVEN

B/ RUIMTELIJKE ALTERNATIEVEN

C/ ONTWERP VAN BBP

Afdeling 4. Overzicht van specifieke milieueffecten

HOOFDSTUK IV - CONCLUSIE, AANBEVELINGEN EN OPVOLGINGSMAATREGELEN

Afdeling 1. Presentatie van de gekozen oplossingen

Afdeling 2. Aanbevelingen

Afdeling 3. Opvolgingsmaatregelen

Hoofdstuk IV Conclusies, aanbevelingen en opvolgingsmaatregelen / p. 453

Hoofdstuk IV Conclusies, aanbevelingen en opvolgingsmaatregelen / p. 454 Inhoud van hoofdstuk IV HOOFDSTUK IV– CONCLUSIES, AANBEVELINGEN EN OPVOLGINGSMAATREGELEN Conclusie en presentatie van de gekozen oplossingen 456 Aanbevelingen 461 Opvolgingsmaatregelen 466

Afdeling 1. CONCLUSIE EN PRESENTATIE VAN DE GEKOZEN OPLOSSINGEN

Hoofdstuk IV / Afdeling 1 Presentatie van de gekozen oplossingen / p. 455

CONCLUSIE EN PRESENTATIE VAN DE GEKOZEN OPLOSSINGEN

Het BBP 19 dateert van eind jaren ‘60 en werd oorspronkelijk uitgewerkt voor de ontwikkeling van de Noordwijk. De traditionele Brusselse structuur van deze wijk moest plaats ruimen voor een ‘kantoorwijk’ met vooral hoogbouw. De oorspronkelijke perimeter van het BBP was ruimer dan de huidige. Het BBP had bovendien een equivalent in de gemeente Sint-Joost-ten-Node. In de loop der jaren werden verschillende delen van deze BBP’s opgeheven. Voor het BBP 19 rest nog enkel het deel van de huizenblokken North Galaxy, CCN en Proximus dat 1 in de gemeente Schaarbeek is gelegen, recht tegenover het Noordstation.

De wijziging van het bestaande BBP is erop gericht om, met het oog op de stedelijke herontwikkeling van de zone, het bestaande verordenend kader aan te passen aan de nieuwe belangen van de herontwikkeling van de stationspool tot belangrijk intermodaal knooppunt in een levendige wijk die zowel beantwoordt aan grootstedelijke als aan lokale behoeften. De wijziging van het BBP stelt zich tot doel om de functionele gemengdheid te kunnen opvoeren, meer kwaliteitsvolle ruimten te kunnen inrichten en te zorgen voor een optimale en geïntegreerde organisatie van de verplaatsingen. Ook de perimeter van het huidige BBP zou kunnen worden herzien om het hele huizenblok CCN dat is gelegen in de gemeente Schaarbeek en de overgang tot het stationsgebouw te integreren, maar ook de site van het voormalige Medical Center en de directe omgeving van het Solvayplein. Dit garandeert een betere coherentie met de openbare ruimten en de lokale stedelijke structuren met meer mogelijkheden om de wijk te verbinden met de omliggende wijken. Een moeilijkheid die we tijdens het hele proces hebben ervaren blijft echter het feit dat het BBP beperkt blijft tot de gemeentegrenzen. Er moeten ruimere strategieën worden ontwikkeld (volledige huizenblokken om te beantwoorden aan bovenlokale of gewestelijke uitdagingen), maar binnen de ruimtelijke reikwijdte van de voorschriften.

Het proces tot wijziging van het BBP en het MER ging begin 2021 van start om te eindigen in de zomer van 2022. Gezien de recente en huidige ontwikkelingen van de wijk moest de wijziging van het BBP gelijktijdig gebeuren met de opmaak van een visie voor het Territorium Noord in het kader van de wijziging van het BBP 19 en de uitwerking van het RPA Maximiliaan-Vergote, met de afbraak-wederopbouw van het huizenblok CCN, de grondige renovatie van het huizenblok Proximus en de werken voor metro 3 op de site van het voormalige Medical Center. In bijna de hele betrokken zone liepen er bij de redactie van deze conclusie dus projecten, zowel strategische als operationele. Ook dat was een moeilijkheid tijdens de studie.

Tijdens de procedure werd ruim overleg gepleegd met alle lokale actoren en actieve operatoren in het gebied: perspective.brussels, urban.brussels, Leefmilieu Brussel, de MSI, Brussel Mobiliteit, de gemeenten Schaarbeek en Sint-Joost-ten-Node en de Stad Brussel, de bMa, De Lijn, de MIVB en de NMBS. Leden van deze instanties hebben actief meegewerkt aan de uitwerking van het proces door bestaande gegevens te verstrekken, enkele uitdagingen en/of specifieke vereisten onder de aandacht te brengen (bv. openbaar vervoer), alternatieven en/of voorstellen te bespreken en voor te stellen, een aantal punten in vraag te stellen, andere punten te valideren ... Ook de betrokkenheid van de openbaarvervoersactoren bleek een moeilijkheid vanwege het zeer operationele karakter van de besprekingen terwijl een BBP een strak strategisch karakter heeft.

De analyses van de diagnose voor de uitwerking van het BBP en het MER werden parallel gevoerd, op basis van een aantal gedeelde gegevens. Die werden in de twee documenten, die elk een ander doel hadden, op een andere manier behandeld. Voor het MER brachten de analyses van de bestaande toestand een aantal specifieke uitdagingen voor de wijk aan het licht. De stadskwaliteit laat te wensen over,maar er is potentieel voor verbetering van die kwaliteit en van de relatie met de omliggende wijken.

Een van de grote uitdagingen, specifiek voor de zone, bestaat erin om de intermodale pool van het Noordstation (intergewestelijk treinverkeer, gewestelijk busverkeer, doorgangs- en bestemmingsplaats voor heel wat

1 De beperkte perimeter van dit BBP (3 huizenblokken waarvan 2 slechts gedeeltelijk) bemoeilijkte het proces. Zich losmaken van de operationele realiteit (bv: niveauverschillen, organisatie van het busstation ...) om zich louter te concentreren op de strategie - het voorwerp van het BBP - was geen makkelijke opdracht. Deze

‘noodzaak’ tot operationalisering is bovendien zeer tijdrovend en het tijdsbestek voor de wijziging van het BBP was te kort om de operationele elementen te onderzoeken volgens de regels van de kunst.

Hoofdstuk IV / Afdeling 1 Presentatie van de gekozen oplossingen / p. 456

werknemers in de wijk) optimaal te organiseren. Het station ligt ook in een netwerk van de actieve mobiliteit in het Gewest, maar kampt met niveauverschillen en een mobiliteitsorganisatie die een grote impact heeft op de kwaliteit van de verplaatsingen en van de leefomgeving. Een tweede grote uitdaging is om de wijk een zekere vitaliteit te geven. Vandaag is ze eerder monofunctioneel, dus het komt erop aan om de gemengdheid van functies te verhogen. Ook de kwaliteit van de leefomgeving is belangrijk, zeker gezien de zeer lawaaierige context van de wijk. Het betreft hier de kwaliteit van de woningen of van de verplaatsings- en verblijfsvoorwaarden in de openbare ruimte, in een stadsweefsel dat daarvoor niet echt bevorderlijk is. De vele hoge gebouwen hebben immers een negatieve impact op enerzijds het lokale microklimaat en anderzijds de menselijke schaal in de openbare ruimten. Andere uitdagingen die daarmee verband houden zijn de activering van de openbare ruimte via de benedenverdiepingen en de bestrijding van het “backstreet-effect”. Deze aspecten hebben een impact op de veiligheid en het veiligheidsgevoel die vandaag in de wijk niet optimaal zijn. Ook de instandhouding en herwaardering van het erfgoed werd als uitdaging geïdentificeerd (Noordstation, torens van de huizenblokken North Galaxy en Proximus, uitzichten op de omliggende stadspolen (Rogier, Thurn & Taxis, Koninklijke SintMariakerk, Sint-Lazarus ...)).

Naast deze uitdagingen zou de herziening van het BBP onder meer de mogelijkheid bieden om in de wijk een reële gemengdheid en sociale cohesie te ontwikkelen, een grote gewestelijke voorziening (gezien de uitstekende ligging van de wijk), te beantwoorden aan de al bestaande behoeften aan lokale voorzieningen, de biotoop te ontwikkelen in deze scharnierrruimte tussen het kanaal en de spoorwegtaluds en het circulariteitsbeleid van het Gewest in de praktijk te brengen.

Om aan al die verschillende uitdagingen te beantwoorden, stelt het bureau belast met de uitwerking van het BBP vier programmatorische alternatieven voor. Daarnaast identificeerde het bureau belast met het BBP ook verschillende ruimtelijke opties. Het betrof hier de plaats van de voorzieningen, de groene ruimten, de woningen, het busstation en de organisatie van de mobiliteit. Die opties werden geanalyseerd in het MER en op basis van de meest gunstige opties werden enkele ruimtelijke alternatieven uitgewerkt. Ook die ruimtelijke alternatieven werden geanalyseerd Uit de analyse van de alternatieven bleek bijvoorbeeld dat meer gemengdheid in de wijk een positieve impact zou hebben op de activering van de benedenverdiepingen en de ‘diversificatie’ van de leefomgeving, maar ook dat de ontwikkeling van een grootschalig programma waarschijnlijk de gemiddelde hoogte van de gebouwen zou opvoeren, met negatieve effecten op het microklimaat en dus de kwaliteit van het verblijf en de verplaatsing in de openbare ruimten. Alle geanalyseerde criteria leidden in het MER tot aanbevelingen voor de programmatie en de lokalisatie van het programma.

Er werd een voorkeurscenario uitgewerkt dat de sterke punten zoveel mogelijk maximaliseert en de zwakke punten zoveel mogelijk beperkt en rekening houdt met verschillende technische en beleidsvereisten.

Dat scenario was de basis voor de uitwerking van de voorschriften van het BBP. Een eerste versie van de voorschriften en van het plan werd voorgesteld aan de openbare actoren die de impact ondergaan van de dwingende regels van het BBP. Op basis van de besprekingen en debatten kon een tweede versie worden uitgewerkt. Deze versie (plan, voorschriften en begeleidende maatregelen) werd onderworpen aan de analyses van het MER, wat weer leidde tot een aantal aanbevelingen. Enkele daarvan werden geïntegreerd in de verschillende documenten van het BBP en resulteerden in een definitieve versie die werd onderworpen aan de analyses van hoofdstuk II – Afdeling 3 van dit MER.

In het algemeen hebben de uitgebreide iteratieve aard en het vele (formele en informele) heen-en-weergeloop in het proces en tussen documenten de MER-analyses in staat gesteld de ontwikkeling van het BBP werkelijk te sturen, binnen de bestaande beperkingen.

Inderdaad:

- Door een aantal technische vereisten konden sommige aanbevelingen voor de ruimtelijke organisatie (groepering van het busstation in het zuidelijke deel van het huizenblok CCN en ontwikkeling van een Bolivar-voorplein en een niet-overdekte binnenstraat ...) niet worden gevolgd,

Hoofdstuk IV / Afdeling 1 Presentatie van de gekozen oplossingen / p. 457

- Bij de beleidskeuzes2 werden een aantal aanbevelingen voor de programmatie niet gevolgd (verhoging van de toegestane vloeroppervlakten ten opzichte van de onderzochte alternatieven, met verhoudingsgewijze verhoging van de impact, grotere verhouding behouden kantoren, verlaging van het minimum voor huisvesting ...);

- de typologie zelf van de wijk en de bestaande situatie vormen in feite beperkingen voor de ontwikkeling van een kwalitatieve leefomgeving (met name wat betreft microklimaat, bebouwingsdichtheid, kelder en dus open ruimte, lawaai, enz.)

Naast dit restrictieve kader en de ontwikkeling van de negatieve gevolgen van het ontwerpplan, werden de aanbevelingen, die werden geformuleerd tijdens de verschillende analysestadia, in de voorschriften en/of begeleidende maatregelen geïntegreerd om de negatieve impact te beperken en de positieve impact te maximaliseren. De voorschriften van het BBP voorzien bijvoorbeeld in het behoud van de bestaande torens in de huizenblokken North Galaxy en Proximus, de beperking van de bouwdiepte voor nieuwe gebouwen, het creëren van een visuele verbinding tussen de Bolivarlaan en het Noordstation en de Sint-Mariakerk die erachter ligt, het behoud en de verbetering van de bestaande zones met volle grond, maatregelen om een zekere kwaliteit voor de woningen te garanderen, de aanpassing van de volumes en structuren om de modulariteit van de nieuwe gebouwen mogelijk te maken, een ambitieus geïntegreerd beheer van het regenwater, ontharding van de openbare ruimte ... Bovendien verplicht het BBP om een grondig aanvraagdossier voor de stedenbouwkundige vergunning op te maken, met een aantal studies die de autoriteiten in staat stellen om de aanvragen op te volgen en te meten. De begeleidende maatregelen van hun kant stellen een aantal elementen voor die eveneens kunnen bijdragen tot de beperking van de impact van de toekomstige projecten op het leefmilieu, zoals de lokalisatie van de logistieke toegangen tot de gebouwen, de organisatie van de multimodale hub, de leesbaarheid en intermodaliteit, de realisatie van een algemene mobiliteitsstudie en een totaalproject voor de openbare ruimte, de circulariteit van de materialen en de stromen, de integratie van geluidsfactoren bij de ontwikkeling van de verschillende functies in de wijk...

Veel van de gedane aanbevelingen zijn te specifiek, te prescriptief of van toepassing op andere stadia dan het plan zelf. De begeleidende maatregelen nemen veel van deze aanbevelingen over. Aangezien zij niet bindend zijn maar een reëel potentieel hebben om de positieve effecten te verbeteren/ de negatieve effecten van het plan te verminderen, is de monitoring en uitvoering ervan van bijzonder belang: indien zij niet worden nageleefd, kunnen de mogelijkheden om het milieu en de leefomgeving van deze specifieke wijk te verbeteren, verder worden beperkt.

De finale aanbevelingen, geformuleerd bij de analyse van de laatste versie van het BBP3 en aangegeven in het volgende punt, betreffen de aanbevelingen die niet zijn opgenomen in de voorschriften, plannen en begeleidende maatregelen van het BBP en de aanbevelingen die niet rechtstreeks van toepassing zijn op het BBP (stadium van

2 De details van de gemaakte keuzes worden op synoptische wijze gepresenteerd in het punt "Presentatie van het ontwerp-BBP en motivering van de keuzes" van punt C van afdeling 3 van hoofdstuk III (blz. 350), en waar nodig wordt een motivering gegeven voor het niet volgen van de aanbevelingen van het MER.

3 De analyses in het kader van de diagnose en de programmatorische en ruimtelijke alternatieven hebben betrekking op de hele “zone“, dus alle betrokken huizenblokken en de aangrenzende openbare ruimten, om de coherentie met de rest van de wijk en de relevantie in het kader van de analyses te garanderen (op het vlak van mobiliteit bijvoorbeeld zijn de effecten niet beperkt tot het BBP op zich, maar hangen ze af van de organisatie van de volledige huizenblokken Proximus en CCN). Door deze verbreding van de basisgegevens en analyses konden we conclusies trekken en globale aanbevelingen formuleren waarvan de impact verder gaat dan louter de zone van het BBP.

De ‘finale’ analyses, verbonden aan het ontwerp-BBP, hebben enkel betrekking op de delen die strikt onder het BBP vallen. Ze omvatten dus enkel de delen van huizenblokken die binnen de fysieke grenzen van het BBP liggen aangezien de voorschriften en het plan enkel gelden voor deze zone. De becijferde impact van het ontwerp-BBP is in het algemeen dus kleiner dan de impact die werd geanalyseerd tijdens de programmatiefasen.

Hoofdstuk IV
Afdeling 1 Presentatie van de gekozen oplossingen / p. 458
/

aanvraag van de SV, aanbevelingen voor de omgeving van het BBP maar buiten de perimeter, buiten het verordenende kader van een BBP …).

Hoewel een aantal aanbevelingen dus niet werden gevolgd, heeft de wijziging van het BBP hoe dan ook alle betrokken actoren rond de tafel gebracht en zal de tenuitvoerlegging van het BBP de bestaande toestand onmiskenbaar verbeteren, zowel op het vlak van milieu (waterbeheer, ontwikkeling van de biotoop, bodemkwaliteit…) als op het vlak van het landschap, het erfgoed, de levenskwaliteit en de organisatie van de mobiliteit. Het nieuwe verordenende kader zal het immers meer dan de oude versie van het BBP mogelijk maken om beter in te spelen op de huidige uitdagingen, terwijl lopende of verwachte projecten (openbare en privé) kunnen worden bijgesteld en globaal gezien coherenter zullen zijn op technisch en operationeel niveau.

Hoofdstuk IV / Afdeling 1 Presentatie van de gekozen oplossingen / p. 459

Afdeling 2. AANBEVELINGEN

Hoofdstuk IV / Afdeling 2 Aanbevelingen / p. 460

AANBEVELINGEN

Om de negatieve effecten van het ontwerp-BBP op het leefmilieu te beperken, werden er enkele ‘finale’ aanbevelingen geformuleerd 4. Er dient opgemerkt dat een aantal van hen al dateren van de vorige fasen van de analyse. De verantwoording van de gemaakte keuzes zit dus minstens voor een deel in de inleidende tabel van de analyse van de effecten van het ontwerp-BBP (Hoofdstuk III – Afdeling 3 – C/Ontwerp van BBP - Presentatie van het ontwerp-BBP).

In de volgende tabel worden de finale aanbevelingen herhaald en beknopt in hun context geplaatst. De eerste kolom beschrijft in het kort5 het belang van de aanbeveling, het criterium dat er de impact van ondergaat en/of het type impact waarvoor de aanbeveling wordt geformuleerd. Dit vastgestelde effect vertegenwoordigt ook het verwachte positieve effect van de aanbevelingen6 De tweede kolom bevat de aanbeveling, en de derde kolom de toepassingsmodaliteiten ervan, d.w.z. het stadium waarop de aanbevelingen betrekking hebben: wijzigingen die moeten worden aangebracht in de plannen, voorschriften en/of begeleidende maatregelen (dus nog in het stadium van de uitwerking van het BBP), aandachtspunten / uit te voeren controles bij het onderzoek van de aanvragen van de stedenbouwkundige vergunningen (SV) en aandachtspunten tijdens de werken. In de laatste kolom worden de aanbevelingen gerangschikt volgens hun mate van doeltreffendheid op het gebied van milieubescherming (A is het belangrijkst en C het minst belangrijk).

Geïdentificeerde impact / belang van de aanbeveling Aanbeveling

‘Verplettering’ van de voetgangers en de windeffecten vermijden (comfort van verblijf en verplaatsingen)

De hoge gebouwen niet te dicht bij elkaar plaatsen en potentieel problematische uitzichten op andere gebouwen vermijden

Voor alle becijferde ramingen (water, energie, verplaatsingen, parkeren ...) de impact verhogen ten opzichte van de analyse van de alternatieven

Ervoor zorgen dat de breedte van het Bolivar-voorplein coherent is met de hoogte van de aangrenzende gebouwen

Toepassingsmodaliteiten Hiërarchie

Voorschriften of begeleidende maatregelen

A

Het uitzicht tussen de twee bebouwbare zones van zone C1 omkaderen (bv: voorschriften over de lengte van de ruimte tussen twee hoge gebouwen naargelang hun afmetingen en onderlinge afstand).

De toegestane vloeroppervlakten verminderen, vooral voor het huizenblok CCN, temeer omdat ze niet worden omkaderd in het deel dat is gelegen in de gemeente Sint-Joost-ten-Node

Voorschriften of begeleidende maatregelen

C

Voorschriften A

4 Ter herinnering: tijdens de analyses van het ontwerp-BBP werden enkele aanbevelingen geformuleerd. Een deel daarvan werd geleidelijk aan geïntegreerd in het iteratieve werkproces tussen het MER en de uitwerking van het BBP. Die aanbevelingen zullen we dus hier niet meer herhalen. Wat volgt zijn de aanbevelingen over de ‘finale’ versie van het ontwerp-BBP. Ze werden al besproken bij de opmaak van de voorschriften en er werd besloten om ze er niet in op te nemen.

5 Meer details vindt men in de analyse (Hoofdstuk III – Afdeling 3 – C/Ontwerp van BBP - voorspelbare effecten van het plan)

6 De potentiële effecten van de definitieve aanbevelingen zijn opgenomen in de tabel met de interactie tussen de criteria die in de conclusie van punt C van deel 3 van hoofdstuk III wordt gepresenteerd (zie blz. 431).

Hoofdstuk IV / Afdeling 2 Aanbevelingen / p. 461

Het uitzicht vanaf de laan accentueren en de erfgoedelementen en stedelijke richtpunten, het stationsgebouw en de Sint-Mariakerk die er zichtbaar achter staat, benadrukken.

Zorgen voor een levendige wijk met beperking van de woningproductie gezien de specifieke typologie en het aantal woningen met eenzelfde typologie die in de wijk worden verwacht.

Levenskwaliteit en woningen (manier waarop de woningen worden geplaatst (torengebouwen) en gezien het algemene geluidsniveau in de wijk en de ligging van de geluidsbronnen (wegen en spoorwegen, dus overal in de zone))

Extremen vermijden (helemaal geen handelszaken, voorzieningen met een zeer grote vloeroppervlakte)

Symmetrie ontwikkelen aan weerszijden van het Bolivar-voorplein. NB: Het accentueren van dit uitzicht is interessant maar mag niet primeren op het gebruikscomfort: slagschaduw op de openbare ruimten en tussen de gebouwen, blootstelling aan geluid of de wind, enz.

Minstens 20% huisvesting (en niet 33%)

Begeleidende maatregelen C

Voorschriften B

De nood aan ontwikkeling van huisvesting in de perimeter in vraag stellen B

Maximaal 12% voorzieningen en minimaal 1,5% handelszaken toevoegen

Voorschriften of begeleidende maatregelen

B

Een belangrijke kantoorpool behouden (GPDO), het aanbod verminderen of handhaven maar niet verhogen, rekening houden met de evoluties van de wijk De impact op de verplaatsingen beperken (zeer laag modaal aandeel van de auto voor de kantoorfunctie in deze pool die nationale lijnen concentreert)

Zorgen voor natuurlijke lichtinval, de niveauverschillen beheren en de multimodale hub beter toegankelijk maken, betere handelszaken ontwikkelen in de Vooruitgangstraat, betere beplante ruimten en een betere leesbaarheid ontwikkelen, zorgen voor comfortabele en duidelijke toegangen

De min en max percentages van de kantoren aanpassen: minimaal 49% en maximaal 60%

Voorschriften B

De lengte van de plaat op het Bolivar-voorplein beperken zodat enkel de zone wordt overdekt die wordt gebruikt door de bussen (langwerpige doorgang)

Voorschriften of begeleidende maatregelen

B

Hoofdstuk IV / Afdeling 2 Aanbevelingen / p. 462

tot de metro voor PBM en voetgangers vanaf het Bolivarplein

Zorgen voor een positieve impact (vermijden dat de bestaande toestand verergert en minstens de negatieve effecten verminderen) na de studies

In de Noordwijk verandert er heel wat of zal er nog heel wat veranderen, met het risico van een negatieve impact tijdens de werken

Voor alle verplaatsingswijzen het comfort verzekeren en de aanbevelingen van het plan Good Move respecteren.

Opleggen dat maatregelen worden genomen op basis van de resultaten van deze studies (aanbevelingen)

Voorschriften of begeleidende maatregelen

A

Bijzondere aandacht besteden aan de activering en de veiligheid/aantrekkelijkheid van de openbare ruimte en aan de toegankelijkheid van het openbaar vervoer gezien de vele bouwwerven in de toekomst

Het openbare deel van het zuidelijke deel van de Kleine Vooruitgangstraat verbreden door insprongen te voorzien in de openbare ruimte

Als er technische oplossingen kunnen worden gevonden om de wandelkwaliteit tussen Rogier en Thurn&Taxis te garanderen, met doorgang voor het Noordstation, de voetgangersboulevard omleiden en voor het station laten lopen

SV, werf B

Begeleidende maatregelen, SV B

Begeleidende maatregelen, SV B

Kwaliteit van de verplaatsingen voor de actieve vervoerswijzen en toegankelijkheid van het station en de metro

Toenemend aantal werknemers en bezoekers van de verschillende functies in de wijk (min of meer lange verblijfsduur)

De nodige parkeerruimte beperken tot de bestaande ruimten en vermijden dat de bestaande ondergrondse parkings moeten worden uitgebreid

Zorgen voor de logistieke organisatie van de huizenblokken station en CCN en van de multimodale hub (conflictrisico)

Het huidige niveauverschil wegwerken: voorstellen om daarvoor technische oplossingen te bestuderen

Begeleidende maatregelen B

Zorgen voor ‘openbare’ fietsparkeerplaatsen in binnen- of buitenruimten (openbare ruimte) en voor een behoorlijke kwaliteit van minstens een deel van deze fietsparkeerplaatsen .(beschut, beveiligd ... zie masterplan fietsparkeren en bakfietsen).

Vermindering van de toegestane vloeroppervlakten voor het huizenblok CCN of wijziging van de verhoudingen toegekend aan de verschillende functies (meer kantoren mogelijk maken)

De inrichtingen voorzien voor de cohabitatie van de leveringen en de organisatie van de multimodale hub controleren

Begeleidende maatregelen, SV C

Voorschriften A

SV C

Hoofdstuk IV / Afdeling 2 Aanbevelingen / p. 463

De intermodaliteit en de functionering van het openbaar vervoer optimaliseren.

Inspelen op de uitfasering van voertuigen met verbrandingsmotor in het BHG (2030-2035)

Kwaliteit van de openbare ruimten (comfort voor verplaatsing en verblijf)

Positieve impact op het microklimaat, de bodem, het water, de ecologische netwerken

Positieve impact op de bodem, het water en de ecologische netwerken, het groene netwerk (maatschappelijk belang van groene ruimten)

Positieve impact op het water en de ecologische netwerken

Positieve impact op het water en de ecologische netwerken

Zorgen dat de bestaande terminussen terug op het Bolivarplein kunnen worden geplaatst (twee buslijnen van de MIVB, perronlengte)

A Specifiek aandachtspunt bij de concrete inrichting van de multimodale hub en het Bolivarplein voor het verkeer, de haltes en de terminussen van de verschillende openbaarvervoerslijnen

Minstens de bekabeling voorzien voor het elektrisch opladen van voertuigen in de ondergrondse parkings

Vermijden dat de bestaande toestand op het vlak van windcomfort wordt verergerd bij elk project dat de volumes in de perimeter aanzienlijk wijzigt en rekening houden met de voorziene gebruiksdoeleinden zijn (terrassen en openbare banken in zone A, voetgangersboulevard in zone A of B, balkons in zone A of B, enz.).

Verplichten om 50% van de doorlatende oppervlakte op het Bolivarplein te beplanten in volle grond

De maximale grondinname in zone C1 beperken (dus ook de bouwdichtheid gezien de beperking van de bouwdichtheid in de zone) of maatregel 0.2 van de GBP specificeren door middel van een voorschrift om een minimumkwaliteit van deze ruimten te waarborgen, voor hun sociale en/of biodiversiteitsaspecten (dikte van de ondergrond, plaatsing van de gegenereerde ruimten, enz.)

Verplichten om 30% van de daken in te richten als intensieve groendaken en om deze daken te verbinden met de omgevende plantaardige elementen (op de grond of op de andere daken) om te compenseren dat er geen volle grond wordt gerecupereerd op grondniveau.

De grondinname van de ondergrondse parkings verkleinen ter hoogte van de vrijgekomen zones in de grondinname van de gebouwen, zodat er te beplanten zones met volle grond kunnen worden ontwikkeld die bijdragen tot een geïntegreerd regenwaterbeheer. De vaststellingen over het parkeren zullen echter de mogelijkheden op dit vlak waarschijnlijk beperken.

Begeleidende maatregelen, SV A

Voorschriften of begeleidende maatregelen

A

Hoofdstuk IV / Afdeling 2 Aanbevelingen / p. 464

Voorschriften of begeleidende maatregelen

Voorschriften of begeleidende maatregelen

A

A

Voorschriften of begeleidende maatregelen

A

Begeleidende maatregelen

Bestemmingsplan (oppervlakte toegekend aan het busstation), SV C
Hoofdstuk IV/ Afdeling 3 Opvolgingsmaatregelen / p. 465
Afdeling 3. OPVOLGINGSMAATREGELEN

OPVOLGINGSMAATREGELEN

Een nauwkeurige evaluatie van een plan door middel van toezichtmaatregelen kan aanzienlijke middelen vergen. Een mogelijke toezichtmaatregel is het toezicht op indicatoren, dat minder complex en tijdrovend kan zijn dan andere maatregelen, afhankelijk van de keuze van de indicatoren: bijvoorbeeld de keuze van indicatoren die door regionale instanties worden bijgewerkt en op planniveau kunnen worden waargenomen.

Ter herinnering, tijdens de diagnose werden een veertigtal indicatoren geïdentificeerd die voor enkele thema’s becijferde referentiewaarden opleveren. Deze indicatoren zijn hier opgenomen als een mogelijk controleinstrument voor de uitvoering van het BBP. Ze geven immers een beeld van de grote effecten van de tenuitvoerlegging van het BBP en in mindere mate van de efficiëntie van de aanbevelingen die erin zijn opgenomen, en bovendien ook van eventuele effecten die in deze studie niet werden voorzien. Zoals altijd als wordt gewerkt met indicatoren, moeten de resultaten voorzichtig worden geïnterpreteerd. Ze tonen immers slechts een deel van de werkelijkheid.

Het is bijvoorbeeld niet mogelijk om becijferde indicatoren te bepalen voor criteria die betrekking hebben op kwaliteit. Voor een aantal van die criteria kunnen dus geen opvolgingsindicatoren worden bepaald. Voor andere criteria zijn enkele voorgestelde indicatoren niet becijferd, maar houden ze rekening met de kenmerken van bepaalde locaties of evalueren ze bijvoorbeeld die kenmerken.

Van sommige indicatoren zal de waarde evolueren zonder dat het BBP en de tenuitvoerlegging een reële impact hebben op de zone. Afhankelijk van de bron en de nauwkeurigheid van de gegevens kunnen ze immers betrekking hebben op een ruimere perimeter dan de zone die wordt gedekt door het BBP en die slechts een kleine oppervlakte bestrijkt (bv: dichtheid in de wijk). Andere projecten in de omgeving zullen een invloed hebben op bepaalde indicatoren en de impact van de tenuitvoerlegging van het BBP op zich zal soms beperkt zijn.

De tabel op de volgende pagina’s bevat de voorgestelde indicatoren, de redenen/uitdagingen die eraan verbonden zijn, de berekende waarde in de bestaande toestand, de doelstellingen van het BBP in dat verband en de gegevensbronnen7 die moeten worden aangewend om de evolutie van de indicatoren te berekenen.

Naast deze indicatoren is ook de analyse van de uitgereikte stedenbouwkundige vergunningen een middel om de situatie op te volgen. Die analyse kan bijvoorbeeld enkele afwijkingen aan het licht brengen die zeer vaak zouden worden toegestaan en dus een beeld geven van voorschriften die in vraag kunnen worden gesteld, van het aantal en het type van de begeleidende maatregelen die nooit zouden worden gevolgd en van de gevolgen die daaruit zouden voortvloeien...

Er zij op gewezen dat de vervolgmaatregel die het meeste effect op het milieu zal hebben, is of de begeleidende maatregelen al dan niet worden nageleefd.

7 Deze bronnen geven niet altijd het resultaat van de indicator zelf zodat soms contextualisering nodig is (bijvoorbeeld berekening in verhouding tot de perimeter). Voor verdere berekeningen bedraagt de oppervlakte van het BBP ~9,12 ha.

Hoofdstuk IV/ Afdeling 3 Opvolgingsmaatregelen / p. 466

Geïmpacteerd/opgevolgd

criterium Indicator

Structuur van de open ruimten en de bebouwde ruimten, bodem

Structuur van de open ruimten en de bebouwde ruimten

Grondinname van de constructies

Waarde in de bestaande toestand

~58 700 m², d.i. ~64 % van de perimeter van het BBP en ~97 % van de percelen (bovengrondse en ondergrondse constructies, incl. de tunnels)

Doelstellingen van het BBP Gegevensbron

/ SV

Aandeel van de open ruimten binnen de perimeter

~42 500 m², d.i. ~46,6 % van het BBP Min ~34 500 m² SV

Structuur van de bebouwde ruimten Vloeroppervlakte

~ 256 000m² (buiten Noordstation)

Max~ 400 000m² (buiten Noordstation) SV Landschap, microklimaat Maximumhoogte in huizenblok 72 (CCN)

in huizenblokken 68 en 71

Bevolking Bevolkingsdichtheid 0 inwoners/ha in de perimeter

121 inwoners/ha in de wijk

/ BISA (Wijkmonitoring en statistieken van de statistische sectoren)

Bevolking (beheersing en duurzaamheid van de verdichting)

Voldoende aanwezigheid van groene ruimten per inwoner nvt. (geen inwoners) (in m²/inw. Op minder dan 400 m wandelen) / geodata

Huisvesting Percentage woningen in de perimeter per typologie (aantal slaapkamers, woningen van gemiddelde standing, sociale of daarmee gelijkgestelde woningen, woningen voor PBM)

Handelszaken Aantal buurtwinkels 5 (2 superettes, een apotheek en 2 boekhandels in het station) /

Activering van de benedenverdiepingen en kwaliteit van de openbare ruimten

Activering van de benedenverdiepingen en kwaliteit van de openbare ruimten

Percentage strekkende meter van voetpaden met actieve benedenverdiepingen

~200 m op ~1 500 m, d.i. ~13 % (Aarschotstraat niet meegerekend) Maximaliseren SV

Aantal actieve ingangen (handelszaken kantoren) 6 / SV

Geluid en trillingen Aantal woningen met een rustige gevel 0

Uitvoering van de MWS Wegen waarvan de inrichting overeenstemt met de doelstellingen van het plan Good Move

Fiets Voetganger OV Auto Vrachtverkeer

Koning Albert IIlaan V (breedte)

V V V V

S. Bolivarlaan X V V - -

Streven naar 100 % SV

V op alle wegen Terreinmetingen

Hoofdstuk IV/ Afdeling
3 Opvolgingsmaatregelen / p. 467
Maximumhoogte
54 m 102 m Max
Max
SV
110 m
110 m
~
0 / 0 / 0 / 0
%
SV, Wijkmonitoring
20
grote woningen (3 slpk. of +) 20% sociale woningen
Voorziening
Min
EP Economische activiteiten
~238 000 m², d.i. ~93 % 40 à 50% SV Economische activiteiten
0 m² / SV
SV, hub.brussels, terreinmetingen
m² vloeroppervlakte voorzieningen 0
8%
m² vloeroppervlakte kantoren
m² vloeroppervlakte productieactiviteiten

V

V V

Actieve verplaatsingswijzen Aantal strekkende meter vrijliggend/gescheiden fietspad 975 m / Mobigis, SV

Actieve verplaatsingswijzen Verhouding autovrije zones in de openbare ruimte (voetpaden en pleinen)

~18 500 m² op ~38 200 m² openbare ruimte, d.i. ~48 % / SV, Urbis (Sw)

Openbaar vervoer Aantal stopplaatsen van het OV (alle modi samen) 6 plaatsen:

 2 bushaltes op het Bolivarplein

 1 bushalte op het Noordplein

 Busstation De Lijn onder het CCN (-1)

 Trams en premetro’s in de ondergrondse verdieping (-2)

 NMBS-station

- OS Wijk: 128 pwe

- OS Comfort: 276 pwe

- AS Wijk: 116 pwe

Minimum MIVB, Google

Auto's Aantal en belang van de ZACA in de zone 2 ZACA met prioriteit 3 Minimum Mobigis Vrachtverkeer Aantal parkeerplaatsen voor leveringen op de openbare weg 0 Streven naar 0 Mobigis, terreinmetingen Vrachtverkeer

en activering van de benedenverdiepingen en kwaliteit van de openbare

ruimten % gebouwen met leveringszones binnen

Parkeren Aantal autoparkeerplaatsen op de openbare weg

van de ontwikkelde vloeroppervlakten SV, MV

66 parkeerplaatsen / Mobigis, terreinmetingen

Parkeren Aantal fietsparkeerplaatsen buiten de openbare weg 500 (waarvan 40 voor bakfietsen) Afhankelijk van de ontwikkelde vloeroppervlakten SV, MV

Intermodaliteit Belangrijke obstakels voor intermodaliteit Trappen (ingangen CCN / trap station), geen verbinding tussen het busstation en de metro-ingang Minimaliseren Terreinmetingen, SV

Ecologische netwerken, luchtkwaliteit, bodem, microklimaat, water

Aantal bomen 260 Maximaliseren PU, Mobigis, terreinmetingen

Hoofdstuk IV/ Afdeling 3 Opvolgingsmaatregelen
p. 468
/
Solvayplein V (breedte) -
Vooruitgangstraat X X V V V (breedte)
Auto's Stromen op de verschillende wegen van de perimeter (gemiddelde pwe op de wijkwegen' en gemiddelde pwe op de 'comfortwegen')
100% 100% SV
124
0
Mobigis,
2
- AS Comfort: 299 pwe Afhankelijk
/ Brussel Mobiliteit, Studies in het kader van de SV’s
pwe
op het Bolivarplein en in de Vooruitgangstraat
terreinmetingen
Parkeren Aantal autoparkeerplaatsen buiten de openbare weg
108 parkeerplaatsen
Parkeren Aantal fietsparkeerplaatsen op de openbare weg

Ecologische netwerken, luchtkwaliteit, bodem, microklimaat, water

Verhouding beplante / niet-kunstmatige oppervlakken Volle grond: ~5 800 m² d.i. ~6,3 % van de perimeter van het BBP Boven de grond: ~3 400 m² d.i. ~3,7 % van de perimeter van het BBP

Microklimaat en kwaliteit van de openbare ruimten Verhouding voetgangersruimten op oncomfortabele plaatsen vanwege de wind ~36% (niet verenigbaar met flaneren en langdurig zitten: Klassen CD-E)

Ecologische netwerken, bodem, microklimaat, water Ondoorlatendheid ~85 500 m² d.i. ~93,7 % van de perimeter van het BBP

Bodem Aantal percelen opgenomen in de inventaris van de bodemtoestand per categorie Cat. 0: 1 perceel Cat. 0+4: 2 percelen

Maximaliseren Terreinmetingen, SV, analyse van de orthofotoplannen

Minimaliseren Studies in het kader van de SV’s

Minimaliseren SV

Minimaliseren Geodata van Leefmilieu Brussel

Ecologische netwerken Waarde BAF+ 0,07 Maximaliseren SV, Geodata van Leefmilieu Brussel

Energie Verhouding gebouwen die voldoen aan de geldende EPBstandaards 0% 100% SV

Energie geproduceerde kW binnen de perimeter Informatie niet beschikbaar (vandaag enkel productie van zonneenergie in het huizenblok Proximus)

Circulariteit van de materialen en inkomende materialen percentage (in massa) van hergebruikte uitgaande / inkomende materialen

Inkomende materialen percentage (in massa) van gerecycleerde/gelabelde/C2Cgecertificeerde inkomende materialen

Energie CO2 /m² voor bouw-/renovatieprojecten

Maximaliseren Studies in het kader van de SV’s

Maximaliseren Studies in het kader van de SV’s

Maximaliseren Studies in het kader van de SV’s

Minimaliseren Studies in het kader van de SV’s

IV/ Afdeling
Hoofdstuk
3 Opvolgingsmaatregelen / p. 469
nvt.
nvt.
nvt.

Turn static files into dynamic content formats.

Create a flipbook
Issuu converts static files into: digital portfolios, online yearbooks, online catalogs, digital photo albums and more. Sign up and create your flipbook.