KATANA'S PORTFOLIO

Page 1

WORK SELECTED 2022-2023

PORTFOLIO

ERICK .K. KATANA

ARCHITECTURAL DESIGNER

PORTFOLIO ERICK.K.KATANA vvv vvv 01 02 03 04 01 02 03 04 PROPOSED SWAHILI RESIDENTIAL HOUSE PROPOSED MODERN RESIDENTIAL VILLA PROPOSED SDA CHURCH PROPOSED MOMBASA ART GALLERY
ERICK.K.KATANA
PORTFOLIO

Skills

The floor plans and the 3D were designed in Archicad and rendered in Lumion

vvv
PORTFOLIO ERICK.K.KATANA
Isometric Veiw
project is a proposed swahili house with seven typical units. Each unit consist up to two stories. Three Bedrooms spread in the ground and the first floor, while the last floor takes in the family lounge and a barbaque area. 01 PROPOSED SWAHILI RESIDENTIAL
01
This
HOUSE
PROPOSED SWAHILI HOUSE

PORTFOLIO ERICK.K.KATANA PROPOSED SWAHILI HOUSE

PROPOSED GROUND FLOOR PLAN

PROPOSED FIRST FLOOR PLAN

vvv
02
GSPublisherVersion 0.0.100.100 1 2 3 10 11 12 13 14 15 DOWN UP 15R x 0.200 14G x 0.250 1 2 3 5 6 10 11 12 13 14 15 DOWN UP 15R x 0.200 14G x 0.250 GSPublisherVersion 0.0.100.100 1 2 3 4 5 6 10 11 13 14 15 DOWN UP 15R 0.200 14G x 0.250 1 2 3 4 5 6 10 12 13 14 15 DOWN UP 15R 0.200 14G 0.250
vvv PORTFOLIO ERICK.K.KATANA PROPOSED SECOND FLOOR PLAN On this floor it consists of a family lounge, a washroom area and barbaque area 03 SEVENTHDAY SADVENTIST CHURCH GSPublisherVersion 0.0.100.100 1 2 3 4 5 6 10 11 12 13 14 15 DOWN UP 15R x 0.200 14G x 0.250 1 2 3 4 5 6 10 11 12 13 14 15 DOWN UP 15R x 0.200 14G x 0.250
vvv
04
The initial design proposal for the Swahili house incorporates straight angles for the walls, showcasing a modern architectural approach. PORTFOLIO ERICK.K.KATANA PORTFOLIO ERICK.K.KATANA

PORTFOLIO ERICK.K.KATANA

PROPOSED SWAHILI HOUSE

PROPOSED SITE/GROUND LAYOUT FLOOR PLAN

PROPOSED FIRST LAYOUT FLOOR PLAN

vvv
05
GSPublisherVersion 0.0.100.100 client signature KCB BLDG Drawing title Job Drawing No st FLOOR 1533 TEL ymail 4B SUITE - 80100 MOMBASA MARCH, 202 @ BOX O 254 0725 799 949 mastadesigns Drawn by Scale 384 AWITI Architects Schematic drawing O Designed by 1:100 Project client Reg Date N. M. BABU PROPOSED RESIDENTIAL DEVELOPMENT ON PLOT LR. NO 834 MR. BRIAN 34,000 1,500 400 2,800 CAR PARK DINING mx3. m) KITCHEN mx3.5m) DSQ (2. mx m) SLIDING GATE STAIRCASE WIMMING POOL LOUNGE mx5.0m) BEDROOM 01 ENTRY WARDROBE WHB WARDROBE W WHB SHR SHR up CLK up down BATH CAR PARK DINING mx3. m) KITCHEN mx3.5m) DSQ (2. mx m) SLIDING GATE STAIRCASE LOUNGE mx5.0m) mx3.5m) ENTRY WARDROBE WHB WARDROBE WHB SHR up down CLK BATH MASTA D-SIGNS LTD W W 833 841 842 GBE ROAD SITE/GROUND FLOOR LAYOUT PLAN B 02 D 04 03 01 E C A 05 06 07 GSPublisherVersion 0.0.100.100 client signature KCB BLDG Drawing title Job Drawing No 1533 .+ TEL ymail - 80100 MARCH, 202 A @ BOX 254 0725 799 949 mastadesigns Drawn by Scale C 384 AWITI Architects Schematic drawing O Designed by 1:100 Project com client Reg Date N. M. BABU PROPOSED RESIDENTIAL DEVELOPMENT ON PLOT LR. NO........ MR. BRIAN Custom Text 10 BEDROOM 02 (5.0m 3. m) BEDROOM 3 .0m 0m) OPEN TO BELOW LOUNGE W BATH BALCONY BALCONY WHB BATH MASTA D-SIGNS LTD (5.0m 3. m) .0m 0m) OPEN TO BELOW LOUNGE BATH SHR BALCONY BALCONY C WHB BATH C LOBBY ff. cer tiles LOBBY ff. tiles Passage Passage B 02 D 04 03 01 E C A 05 06 07 FIRST FLOOR LAYOUT PLAN

This image showcases the finalized design of a modern Swahili house, achieved through a collaborative process involving consultations and revisions with both the director of Masta D Designs and the client. The incorporation of curved edges enhances the modernistic elements of Swahili architecture.

PROPOSED SECOND LAYOUT FLOOR PLAN

vvv
06 PORTFOLIO ERICK.K.KATANA PORTFOLIO SWAHILI HOUSE GSPublisherVersion 0.0.100.100 client signature KCB BLDG Drawing title Job no Drawing No st FLOOR 1533 .+ TEL ymail B SUITE - 80100 MOMBASA MARCH, 202 A @ s BOX 254 0725 799 949 mastadesigns Drawn by Scale C 384 AWITI Architects Schematic drawing O Designed by 1:100 Project client Reg Date N. M. BABU PROPOSED RESIDENTIAL DEVELOPMENT ON PLOT LR. NO 834 MR. BRIAN FAMILY LOUNGE MASTA D-SIGNS LTD BBQ TV UNIT OPEN TERRACE FAMILY LOUNGE .4mx5.0m) BBQ AREA TV UNIT OPEN TERRACE WHB LOBBY ff. tiles LOBBY ff. tiles B 02 D 04 03 01 E C A 05 06 07 SECOND FLOOR LAYOUT PLAN GSPublisherVersion 0.0.100.100

PORTFOLIO ERICK.K.KATANA

PROPOSED MODERN RESIDENTIAL VILLA Skills

The floor plans and the 3D were designed in Archicad and rendered in Lumion

PROPOSED MODERN VILLA

This project is a proposed contemporary modern house design with eight typical units.

Each unit consist up to one storey Four Bedrooms spread in the ground floor and the first floor, which includes the guest room on the ground floor and the three which includes the master bedroom and two bedroom.

vvv
02 07

PORTFOLIO ERICK.K.KATANA PROPOSED MODERN VILLA

PROPOSED GROUND FLOOR PLAN

PROPOSED FIRST FLOOR PLAN 08

vvv
GSPublisherVersion 0.8.100.100 F 10 11 12 13 14 15 16 17 18 C D E F G 2 3 4 5 4,040 800 207 1,200 1,130 800 2,303 800 5,900 200 3,297 150 1,200 200 1,630 200 4,903 200 5,000 200 17,180 3,000 200 1,800 200 4,200 200 2,200 920 1,200 1,450 2,500 950 12,750 13,510 900 200 347 200 4,130 200 1,600 200 4,903 200 2,500 200 17,180 2,500 2,500 1,180 900 620 1,200 750 3,250 250 1,050 2,500 1,050 200 2,000 200 1,800 200 3,750 200 4,200 200 12,750 wordrobe DINING AREA Lounge Ceramic floor tiles and 100mm high skirting GUEST ROOM Ceramic floor tiles and 100mm high skirting Kitchen Yard Pantry Kitchen LIVING ROOM Ceramic floor tiles and 100mm high skirting Cloak Rm W/c Shwr Foyer Shoe rack Planter GSPublisherVersion 0.8.100.100 1 2 3 4 5 6 7 8 9 10 11 12 13 14 15 16 17 18 A B C D E F G 1 2 3 4 5 1,700 450 800 2,320 800 1,475 800 1,370 1,500 1,215 800 1,130 800 2,470 800 550 1,100 200 1,500 200 5,045 200 1,600 200 3,035 200 1,300 200 5,000 200 1,000 200 20,080 200 2,047 200 2,098 200 1,800 200 2,000 200 4,535 200 5,000 200 1,000 200 449 1,200 251 800 830 2,200 3,420 3,000 600 200 2,750 200 3,000 200 1,800 200 4,200 200 12,750 595 3,200 880 1,000 975 1,000 1,065 3,200 835 200 5,750 200 2,000 200 4,200 200 1,700 7,495 1,000 2,035 1,000 450 2,500 200 2,600 1,100 20,080 100 12,750 100
vvv PORTFOLIO ERICK.K.KATANA PROPOSED MODERN VILLA 09

PORTFOLIO ERICK.K.KATANA PROPOSED MODERN VILLA

vvv 10

PROPOSED SEVENTH DAY ADVENNTIST CHURCH

The proposed SDA church in Vikobani, Mariakani, had its initial plans for the basement to the first floor already onsite, but they were incomplete. To create a more modern and updated design, the proposed project required us to make significant alterations to the original plans. The aim was to develop a modern and innovative church that would better serve the needs of the community and enhance the overall spiritual experience for its members.

PORTFOLIO
ERICK.K.KATANA
03
PROPOSED SDA CHURCH
11

PORTFOLIO ERICK.K.KATANA PROPOSED SDA CHURCH

PROPOSED GROUND FLOOR PLAN

PROPOSED FIRST FLOOR PLAN

12 GSPublisherVersion 0.0.100.100 8 9 10 12 13 14 17 18 UP 19G 304 11 12 14 15 18 19 UP 19G 300 A B C D E F G 1 2 3 200 1,140 130 750 200 840 180 750 200 3,800 180 3,810 180 3,850 180 3,820 180 3,776 200 200 750 2,700 1,220 1,080 501 1,929 3,060 150 3,600 400 400 608 1,619 1,164 1,265 1,620 1,146 1,235 1,617 1,148 873 1,549 379 899 1,990 488 1,080 300 201 1,929 3,060 150 3,600 400 400 3,390 4,030 4,000 5,690 26 200 144 117 1,080 501 1,929 3,060 150 3,600 400 400 3,390 4,030 4,000 5,690 488 28,718 217 12 171 7 412 450 6,853 200 3,681 450 592 217 12 590 450 7,053 3,681 450 592 13,045 1,080 505 7 4,848 4,080 600 615 1,619 1,162 1,263 1,620 1,150 1,239 1,617 1,145 870 1,549 379 899 1,979 491 1,080 300 205 7 4,848 4,080 600 3,397 4,033 4,001 5,677 199 31 144 117 1,080 505 7 4,848 4,080 600 3,397 4,033 4,001 5,677 491 28,718 400 7 0 47 63 45 31 40 29 81 88 12 552 577 9,879 577 577 38 2 400 7 0 155 45 55 169 12 552 577 9,879 577 577 38 2 400 7 0 155 100 169 12 552 577 9,879 577 577 38 2 13,045 E-02 E-03 S-01 S-01 E-01 S-01 S-01 GSPublisherVersion 0.0.100.100 10 11 12 15 16 17 19 20 DOWN UP 20R 150 10 11 12 13 14 15 16 17 DOWN UP 17R 176 16G 297 A B C D E F G 1 2 3 E-02 450 501 499 1,400 4,840 1,400 600 400 400 233 1,400 2,590 1,400 3,020 1,400 2,620 1,400 3,048 488 450 120 180 201 8,738 400 400 17,110 26 200 144 117 450 501 8,738 400 400 17,110 488 28,088 217 12 590 593 510 1,400 157 1,667 1,489 1,489 1,824 1,400 510 593 593 217 12 171 7 412 593 2,067 1,497 170 2,979 170 1,654 1,910 593 300 293 217 12 590 593 2,067 6,470 1,910 593 593 13,045 450 505 7 3,404 1,400 44 1,329 1,400 1,350 600 783 1,399 1,214 1,431 1,400 1,202 1,362 1,397 1,242 870 1,399 3,407 491 450 120 180 205 7 4,848 4,080 600 3,397 4,033 4,001 5,677 199 31 144 117 450 505 7 4,848 4,080 600 3,397 4,033 4,001 5,677 491 28,088 400 7 54 54 47 36 35 30 89 80 12 552 577 9,879 577 577 38 2 400 7 0 155 45 55 169 12 552 577 9,879 577 577 38 2 400 7 155 100 169 12 552 577 9,879 577 577 38 2 13,045 E-03 S-01 S-01 E-01 S-01 S-01

PORTFOLIO ERICK.K.KATANA PROPOSED SDA CHURCH

PROPOSED SECOND FLOOR PLAN PROPOSED THIRD FLOOR PLAN

13 GSPublisherVersion 0.0.100.100 10 11 12 13 14 15 16 17 DOWN UP 17R 176 16G x 297 10 11 12 13 14 15 16 17 DOWN 17R 168 16G x 294 A B C D E F G 2 3 E-02 E-03 450 505 7 3,404 1,400 44 1,329 1,400 1,350 600 783 1,399 1,214 1,431 1,400 1,202 1,362 1,397 1,242 870 1,399 3,407 491 450 120 180 205 7 4,848 4,080 600 3,397 4,033 4,001 5,677 199 31 144 117 450 505 7 4,848 4,080 600 3,397 4,033 4,001 5,677 491 28,088 217 12 590 593 495 15 1,385 15 157 1,668 1,488 1,488 1,824 1,400 510 593 593 217 12 171 7 412 593 2,067 6,470 1,910 593 300 293 217 12 590 593 2,067 6,470 1,910 593 593 13,045 450 501 499 1,400 4,840 1,400 600 400 400 233 1,400 2,590 1,400 3,020 1,400 2,620 1,400 3,048 488 450 120 180 201 8,738 400 400 17,110 26 200 144 117 450 501 8,738 400 400 17,110 488 28,088 400 54 54 47 36 35 30 89 80 12 552 577 9,879 577 577 38 400 155 45 55 169 12 552 577 9,879 577 577 38 400 155 100 169 12 552 577 9,879 577 577 38 13,045 S-01 S-01 E-01 S-01 S-01 GSPublisherVersion 0.0.100.100 1 2 3 4 5 6 7 8 9 10 11 12 13 14 15 16 17 DOWN UP 16G 294 A B C D E F G 1 2 3 E-02 E-03 450 300 700 1,400 4,842 1,400 598 400 400 889 2,500 2,500 2,500 2,500 2,500 2,500 1,048 0 0 0 0 0 0 0 0 0 173 188 300 450 120 180 150 50 8,740 400 0 400 16,936 0 0 0 0 0 0 0 0 0 173 26 161 300 450 300 8,940 400 400 16,936 0 0 0 0 0 0 0 0 0 173 188 300 28,088 217 12 590 593 495 1,400 172 1,668 1,488 2 1,488 1,824 1,400 510 593 593 217 12 171 7 412 593 2,067 6,470 1,910 593 292 293 217 12 590 593 2,067 6,470 1,910 593 593 13,045 450 505 7 3,404 1,400 44 1,329 1,400 1,350 600 890 2,500 2,500 2,500 2,500 2,500 2,500 944 99 168 7 491 450 120 180 205 7 4,848 4,080 600 16,833 95 3 168 7 491 450 505 7 4,848 4,080 600 16,833 99 168 7 491 28,088 400 200 224 12 552 11,032 577 39 400 7 424 12 552 11,032 577 39 13,045 S-01 S-01 E-01 S-01 S-01 wc wc Confrence Hall whb whb

PORTFOLIO ERICK.K.KATANA PROPOSED SDA CHURCH

PROPOSED FOURTH FLOOR PLAN

GSPublisherVersion 0.0.100.100 A B C D E F G 2 3 F E-02 E-03 S-01 S-01 E-01 S-01 S-01 200 3,275 150 1,390 200 1,140 150 2,635 200 2,100 6,834 8,934 1,400 4,816 3,225 1,403 200 2,810 200 2,707 150 1,650 200 1,078 150 3,000 200 9,340 200 2,929 200 1,686 200 3,925 200 4,980 4,033 1,509 12,352 3,317 1,500 3,462 500 1,373 1,800 400 200 2,810 200 3,108 150 1,249 200 1,245 150 2,833 200 12,230 Master Bedroom wc s/t whb Kitchen Bedroom Bedroom wc whb wc whb Wardrobe Wardrobe Wardrobe Living Room
14

PROPOSED ART GALLERY

My envisioned art gallery project seeks to create a captivating space that celebrates creativity and fosters a meaningful connection between artists and art enthusiasts. The gallery’s primary objective is to showcase a diverse range of artistic expressions, spanning traditional and contemporary forms, from both established and emerging talents. With carefully curated exhibitions, interactive installations, and thoughtfully designed spaces, visitors will embark on a stimulating visual journey that evokes emotions and sparks conversations. By promoting inclusivity and embracing artistic innovation, this art gallery aims to become a vibrant cultural hub, nurturing artistic growth while inviting individuals from all walks of life to appreciate and engage with the power of art.

PROPOSED THIRD FLOOR PLAN

PROPOSED SECOND FLOOR PLAN

PORTFOLIO ERICK.K.KATANA PROPOSED ART GALLERY 15
04

PORTFOLIO ERICK.K.KATANA PROPOSED ART GALLERY

GROUND FLOOR PROPOSED GROUND/SITE FLOOR PLAN

name: ERICK KALAMA KATANA reg. no: DARC/0100/2019

PROPOSED FIRST FLOOR PLAN 16

95,391 95,391 49,128 49,128 E-03 West Elevation TEMPORARY EXHIBITION INTERACTION SPACE ENTRANCE LOBBY RECEPTION CAFETERIA KITCHEN LOBBY ART WORKSHOP TEMPORARY EXHIBITION MULTI-PURPOSE HALL ADMINSTRATION TOILETS COURTYARD ATRIUM LOBBY 1 4 9 1 B C D 1 9 1 4 4 4 4 4 4 4 4 4 4 4 4 4 STORE E-01 North Elevation E-02 South Elevation E-04 East Elevation SECTIONXX SECTIONXX D E SECTION-YY SECTION-YY
14G DOWN 49.638 49.638 E02 West Elevation E-01 North Elevation E-04 South Elevation E03 East Elevation SECTIONXX SECTIONXX LOBBY LIBRARY LIBRARY ART SHOP CAFETERIA TEMPORARY EXHIBITION TEMPORARY EXHIBITION ART STORE MEDIA ROOM ART STUDIO TOILETS LOBBY COURTYARD ATRIUM 1 2 3 4 5 6 7 8 9 1 0 A B C D E F G 1 2 3 4 5 6 7 8 9 1 0 1ST FLOOR name: ERICK KALAMA KATANA reg. no: DARC/0100/2019 SECTION-YY6 SECTION-YY6 A B C D E F G

PROPOSED SECOND FLOOR PLAN

PROPOSED THIRD FLOOR PLAN

PORTFOLIO ERICK.K.KATANA PROPOSED ART GALLERY 17
DOWN-05 -05 07-E -10 permanent exhibition permanent exhibition permanent exhibition permanent exhibition gents ladies art workshop art workshop lobby graphic collection art store room name : ERICK KALAMA KATANA reg . no : DARC / 0100 / 2019-05 -05 07-E E-09 E-10 11permanent exhibition permanent exhibition permanent exhibition permanent exhibition lobby art studio painting room name : ERICK KALAMA KATANA reg . no : DARC / 0100 / 2019
PORTFOLIO ERICK.K.KATANA PROPOSED ART GALLERY NORTH ELEVATION WEST ELEVATION 18
PORTFOLIO ERICK.K.KATANA PROPOSED ART GALLERY 19 EAST
ELEVATION
SOUTH ELEVATION

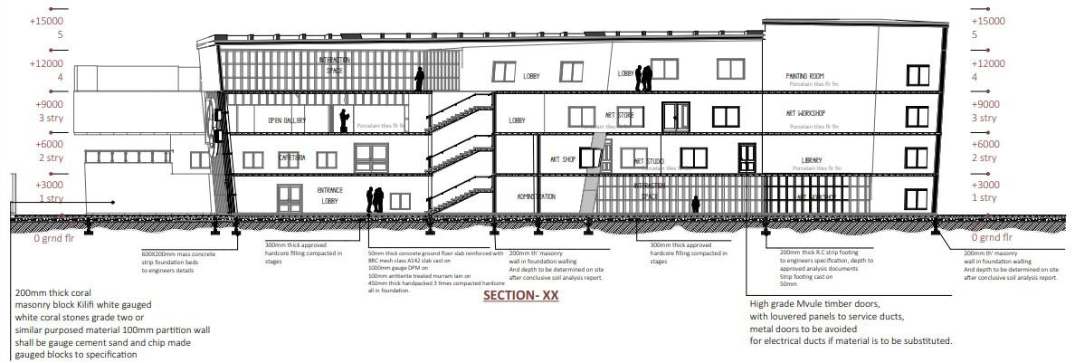
SECTION YY

SECTION XX

PORTFOLIO ERICK.K.KATANA PROPOSED ART GALLERY
20
PORTFOLIO ERICK.K.KATANA PROPOSED ART GALLERY 21
PORTFOLIO ERICK.K.KATANA PROPOSED ART GALLERY 22

THANK YOU

Turn static files into dynamic content formats.

Create a flipbook
Issuu converts static files into: digital portfolios, online yearbooks, online catalogs, digital photo albums and more. Sign up and create your flipbook.