KATANA'S PORTFOLIO

Page 1

Academic portfolio page 1 Academic Portfolio Technical Unversity of Mombasa 2019-22
Erick Katana

ERICK KATANA

Phone number (+254) 743695197/ (+254) 768142201

Email: erickkatana4787@gmail.com

Linkedin: www.linkedin.com/in/erick-katana

PROFILE

An ambitious, responsible, and deligent DARC graduand from the technical university of mombasa who enjoys taking on new challenges and learning new things. I firmly believe that architecture is bringing change in the world and I aspire to be part of that transformation. I am currently looking for a postion of an intern architect to help me gain experience in project-related technicalities, coordinate with consultants and to gain general exposure in the professional field of architecture.

Software Skills

Archicad

Lumion

Photoshop

Illustrator

Indesign

Core Skills

Creative

Communication

Teamwork

Experience Education

2020 -2022

Darc Student

Working with my fellow students and gaining more knowledge from my lecturers, I was able to learn and acquire more experience in archicad and other rendering software.

2019 -2020

Working independently, I was able to learn basic knowledge about archicad

2019 -2022

Diploma in Architecture

Technical University Of Mombasa

Tom Mboya Street Tudor, Msa P.O BOX. 90420-80100

2015 -2022

Kaaga Boys High school

P.O.BOX 278, 60200 - MERU

TEL 0708-153-930

Academic portfolio page 1
page 1 Erick Katana Mombasa Art Gallery art studio Research and Innovation centre School of Architecture Marine Block 15-26 03-14 27-35 Contents
Academic portfolio page 1

Mombasa Art Gallery

Art Studio

Mombasa, Kenya

The proposed project is located in Mombasa County. The art gallery is designed to provide a pleasant facility that will inspire and support young amateurs and professional artist in the art community. In accordance with the national and county government, the art gallery will sponsor art shows and competitions, art and craft affairs, scholarships for local artists to continue with their formal education and other community events. This will also facilitate, organize and offer creative workshops and classes. This will especially help the newcomer artists who lack skills and those who face a lot of competition, platform such as this, can mean a big move up on the career ladder.

page 1 Erick Katana
Academic portfolio page 1
page 1 Erick Katana

Title: ART GALLERY

Location: Mombasa, Kenya

Semister: Academic | sem 3.2

Art is something that has potential to make peoples mind free. This project would be such a platform where people would share their ideas and will certainly help to make the citizens think for the society in a broader perspective. There are many people in Mombasa, who are involved in creative works. Therefore, this project can contribute a great significance locally and nationally, and can play as a good urban center for the city.

The below diagram is a axonometric 3D floor plans.this showcases each plan of the building(art gallery) in 3D .

Academic portfolio

Ground floor

1st floor

page 1 Erick Katana

Elevation of the building

Elavation of the building

Academic portfolio page 1
page 1 Erick Katana 2nd 3rd floor

section of the building

section of the building

Academic portfolio page 1
page 1 Erick Katana

section of the building

Academic portfolio page 1
section of the building

Research & Innovation Center

Marine Mombasa, Kenya

Durring the covid 19 pandemic, Kenya in general faced alot of challenges one of them being facilitatation of spaces for research and innovation to provide for localized and to some extent global solutions to manage the crisis that was brought by the pandemic. The aim of the project was to provide the scientists and researchers with functional research and innovation facility to be able to apply their skills and deliver solutions to the problem that was facing the society.

The project is located at the Technical University of Mombasa located in Tudor, Mombasa, along Tom Mboya avenue.

GROUND FLOOR

page 1 Erick Katana 1ST FLOOR
Academic portfolio page 1

2ND FLOOR

page 1 Erick Katana 3RDFLOOR
Academic portfolio page 1
page 1 Erick Katana

The below diagram is a axonometric 3D floor plans.this showcases each plan of the building(art gallery) in 3D .

Academic portfolio page 1

NORTH ELEVATION

page 1 Erick Katana EAST
ELEVATION
Academic portfolio page 1
WEST ELEVATION
page 1 Erick Katana
Academic portfolio page 1

School of Architecture

Marine

Mombasa, Kenya

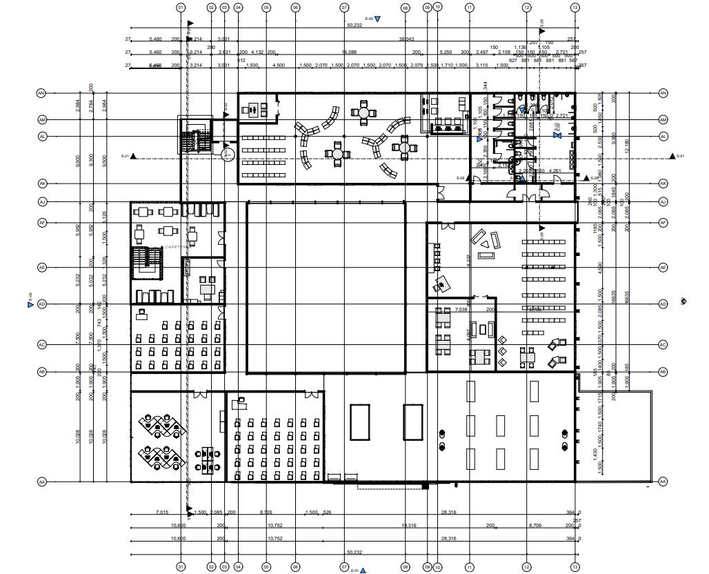
The designed is a proposed school of architecture that was able to cater for around 450 students. The school consisted of a bookshop, cafeteria, washroom, lecture rooms, boardrooms, seminar rooms, workshops, staffrooms, offices and computer lab. The main purposed for this project was to understand how the spaces are related, how to provide enough and required lighting designs for specific spaces. In this project, I used some both horizontal and vertical shading devices. As for lighting, I applied a courtyard, through this all the floors can receive direct natural light and free circulation of air. The circulation spaces such as the staircases and the elevators, which are used to move around the school. The use of the elevator also favors the disabled perrson as they can easily access the building. The usage of large windows was to maximize use of natural lighting.

Academic portfolio page 1

GROUND FLOOR

page 1 Erick Katana

1ST FLOOR

Academic portfolio page 1

2RD FLOOR

page 1 Erick Katana
Academic portfolio page 1

SECTION OF THE BUILDING

page 1 Erick Katana
Academic portfolio page 1
page 1 Erick Katana
Academic portfolio page 1

Turn static files into dynamic content formats.

Create a flipbook
Issuu converts static files into: digital portfolios, online yearbooks, online catalogs, digital photo albums and more. Sign up and create your flipbook.
KATANA'S PORTFOLIO by Katana Erick - Issuu