SA Building Review - Volume 13 I 2025

Page 138


CEMENTING SUCCESS THROUGH MEANINGFUL CUSTOMER ENGAGEMENT

Top three construction TRENDS FOR 2025

CONSTRUCTION CONFIDENCE hits new heights

Trends

Alliance, backed nationwide by the trusted Fourways Group, offers a versatile range of Light and Heavy Commercial Inverter air conditioners.

Designed with energy-saving inverter technology, these solutions provide reliable heating and cooling for every space, including large buildings, offices, retail stores, homes, conference rooms, and hotels.

With eco-saving features and a 5-year warranty, Alliance ensures superior climate control, exceptional efficiency, and peace of mind for all your climate control needs.

Alliance Rooftop Inverter

Alliance R32 Cassette Light Commercial INVERTER

Alliance Light Commercial MSP Inverter Ducted

Alliance Light Commercial Underceiling Inverter

Elroy van Heerden-Mays editor@sabuildingreview.co.za 021 424 3625

Designing for tomorrow

Welcome to the 2025 annual edition of SA Building Review, a publication that continues to stand as a testament to South Africa’s evolving architectural brilliance, engineering ingenuity, and construction excellence.

This year, we celebrate the dynamic interplay between innovation and sustainability, showcasing projects that redefine how we design and build for a better future. As global challenges push us toward smarter, greener solutions, South Africa’s industry leaders have risen to the occasion, crafting spaces that are not only functional but also deeply mindful of the environment and communities they serve.

Inside these pages, you will find stories of perseverance and creativity: from state-of-the-art commercial developments to residential marvels that merge luxury with eco-consciousness. We also highlight the top three construction trends for 2025, including trends shaping the future of design.

At SA Building Review, our mission remains to provide a platform for innovation, collaboration, and inspiration. Whether you’re an architect, engineer, builder, or simply someone passionate about the built environment, this edition is a tribute to the incredible work being done and a reminder of what we can achieve when we build with purpose.

Here’s to a year of progress and possibility!

Warm regards,

Live Beautifully. Live Luxury.

Fenster creates elegant living spaces with the world’s finest fenestration systems.

Aluminium WINDOWS Aluminium DOORS SUPPLEMENTARY

The power of architecture: shaping lives; uplifting communities

My fellow Imagineers, dreamers of forms and shapers of spaces, it is a true delight to write to a collective of creative minds and visionaries who etch the skyline of our beloved country into something remarkable.

Architectural professionals are not only creators of structures but also stewards of the environment and custodians of culture. We are tasked with creating spaces that foster dignity, connection, and harmony - spaces that tell the story of who we are as people and where we aspire to go.

Every day is a celebration of the weird and wonderful world we occupy - one where bricks and mortar meet imagination and heart. We exist in that magical space between what is and what could be.

Every project, whether grand or modest, holds the potential to elevate the human experience. That’s why we do what we do: to create something that transcends the ordinary.

The spaces we create have the power to shape lives, influence behaviour, and uplift communities.

Let us continue to dream, to innovate, and to build a country that is resilient and beautiful, where every person has a place to call home, every child has a school that inspires learning, and every community thrives in spaces that uplift the human spirit.

We are not just architectural professionals; we are storytellers. Every building, every space we design is a narrative in three dimensions. It’s a tale of who we are as people and where we are going. The great architects of the world have always understood this, and so must we. Our work speaks to history, to culture, and to future generations.

The future belongs to those who dare to dream, and as architectural professionals, we are professional dreamers. It’s our responsibility to dream of a sustainable world, where buildings are not just monuments to human achievement, but living, breathing parts of the environment. It’s our task to imagine inclusive spaces where every person, regardless of background, feels seen and valued. And yes, it’s up to us to dream up cities that are both functional and fantastic – where the streets are lined with trees and laughter.

Let us continue to build, not just with our heads, but with our hearts. Let us embrace the whimsy in our work, for it is that playful spirit that drives innovation, fosters creativity, and reminds us why we fell in love with architecture in the first place.

With enthusiasm and gratitude,

EDITORIAL

4 Industry message: The power of architecture: shaping lives; uplifting communities

12 Cover feature: AfriSam – Cementing success through meaningful customer engagement

14

Top three construction trends for 2025

24 Construction confidence hits new heights

32

From old to bold: Trends shaping the future of design

42 Uplift your space with the dopamine decor trend

52 The benefits of fibre-enhanced concrete

62 Rustic meets modern in the barndominium boom

76 An in-depth look at thermal zinc diffusion

84 Futureproofing infrastructure with galvanised steel

148 The “Fire Trend”

PROJECT

18

Ebony & Ivory: Harmonising home and habitat

26 Nokuthula Centre and Special School: A state-of-the-art learning haven for pupils with special needs

36 Kural Vista

46 The Revo Project: Where Bryanston’s charm meets modern luxury

54 Savannah Park: A premier investment opportunity in the heart of Umhlanga

58 Plato Coffee: A new era of coffee culture

66 La‘Mare: Hout Bay’s new coastal gem

68 Morning Glen Mall’s fresh new look

72 The transformation of the CCB Head Office

80 MotorDeal showroom: Where creativity meets horsepower

86 Gentleman’s Estate: A scenic retreat in the Paarl-Franschhoek Valley

92 Pinotage Villas

94 A totally unique residence in Sandhurst, Sandton

98 LCP Solar delivers seamless power for complex needs

102 Sunbird Drive

108 Standard Bank’s bold office makeover

110 Copperleaf Golf Estate & Spa

112 West Coast Retreat: A sanctuary on the shores of Yzerfontein

118 Mpumalanga International Fresh Produce Market: The fresh hub transforming agriculture in Mpumalanga

122 ARRCC transforms a contemporary Cape Town home into a harmonious urban resort

128 Lagoon Crescent

134 Balwin Properties: KZN’s North Coast on the rise

136 The Friendly Plant: The impact of a welldesigned garden

140 Leaping Frog Retail Centre

144 The Friendly Plant: Turning unused spaces into dream gardens 150 West End Office Park 154 Casa á Beiramar 160 La Cantina at Fancourt 164 Widenham Retirement Village: Top tips for securing the perfect retirement home

168 Rallim Secondary School

ADVERTORIAL

22 O-line OBO Bettermann Group offers the smarter solution for every electrical installation challenge 34 Maximise road lifespan with advanced solutions from Fibertex 50 Ring offers advanced smart home security 64 Take your home to the next level with Lifta SA

78 Technical Finishes: Flooring for the food and beverage industry 90 Contru Solutions: Eliminating the practice of “chasing” for plumbing & electrical 106 Duroplastic Technologies elevates Woodlands Lifestyle Centre

116 Comfort redefined: The Nautica Shopping Centre Project with Fourways Group

172 Sabie Poles: Celebrating 30 years of timber excellence

181 Rand Water: Healthy wetlands, thriving communities

AfriSam

Cementing success

through meaningful customer engagement

AfriSam, a leading supplier of construction materials, has sustained its success by placing customers at the heart of its operations. This customer-centric approach has not only strengthened its market presence but also contributed to broader societal benefits that are often unnoticed.

In an industry where cement is frequently seen as a commoditised product, price often dominates purchasing decisions. Recognising this, AfriSam has focused on enhancing its customer experience to deliver value beyond the product itself. According to Richard Tomes, AfriSam’s Sales and Marketing Executive, “AfriSam has leveraged our 90 years in this industry by structuring ourselves around the whole customer experience. Today, this includes using the latest technology to streamline a customer’s journey with us – from enquiries and quotes, through order placement and technical advice, to payments and delivery tracking.”

AfriSam’s ClickToGo platform, for instance, offers realtime account management, streamlining processes such as order placement, payment, and delivery tracking. Yet, as Tomes emphasises, “Technology can be efficient and useful, but computers do not understand the complexity of our real-life human working environment. Customers often need a person to talk to, who will understand what needs to be done in any situation.”

To meet this need, AfriSam maintains a centralised, well-trained contact centre, ensuring responsive and personalised service.

Understanding customers through research

AfriSam’s commitment to understanding its customers is reflected in its Voice of Customer surveys, conducted biannually to gather independent feedback. Combined with daily engagements, these surveys help the company stay attuned to evolving customer preferences and industry trends.

A notable trend is the increasing share of cement sales through retailers, which has grown to 60-70% since 2020. This shift highlights the rise of DIY buyers and small builders, who often lack expertise in choosing and using cement products. “An aspect to remember about retail sales is that this suggests a DIY buyer or small builder – and not everyone in these segments is an expert in the selection and use of cement and concrete.”

AfriSam addresses these challenges by ensuring its products, such as its All-Purpose Cement, meet a wide range of application needs, including structural requirements.

Education and guidance for safer choices

AfriSam goes beyond product sales by investing in customer education. The company provides training for retail staff, enabling them to guide buyers in selecting the right products. This effort not only promotes safety but also supports the construction of durable, cost-effective structures.

“In South Africa as well as cities in Africa, we see the tragic consequences of buildings collapsing due to the use of poor building materials and practices. It shows the importance of informed decision-making when it comes to cement.”

Supporting major projects with expertise

AfriSam’s commitment to quality extends to large-scale civil engineering and public infrastructure projects. With nearly a century of experience in research, testing, and innovation, the company’s brand is synonymous with technical excellence. Its adherence to global and local standards further reinforces this reputation.

“Adding to the confidence that we can give customers in their journey with us are our offerings across the range of construction materials they need,” notes Tomes. “This is not just about the convenience of sourcing from a single reliable supplier, but we also bring high-value expertise about how these materials interact with each other for the best results.”

The company also provides specialised support through its Centre for Product Excellence, where experts offer technical advice, concrete mix designs, and material compatibility insights.

Building skills and supporting nation-building

AfriSam’s impact extends beyond its customers to benefit the broader economy. The company actively supports industry bodies and educational institutions, sponsoring students to become the next generation of engineers and technologists. This investment in skills development reflects AfriSam’s commitment to fostering economic growth and innovation.

In addition, the company participates in transformative initiatives such as the Youth Employment Service (YES) programme, recently sponsoring 40 candidates to gain work experience. This aligns with its broader mission of promoting inclusive development and job creation, essential in a country grappling with high unemployment rates.

Commitment

to local development and sustainability

As a South African cement producer, AfriSam shoulders unique responsibilities compared to importers. While cement producers find solutions with government to ensure a level playing field for international trade, the company continues to invest in transformative initiatives that empower communities and reduce impacts on the environment.

“This is all part of our value proposition to customers,” says Tomes. “It starts with listening to the needs, but goes much further – to help them achieve their dreams.” ■

AfriSam shares its knowledge through training.
AfriSam’s e-experience platform, ClickToGo, is a first of its kind in the industry.
AfriSam has a fully staffed contact centre of trained and experienced people.

Top three

construction trends for 2025

Key shifts within the infrastructure development landscape mean positive tailwinds for South Africa’s construction industry, with more than a quarter billion rand planned for public infrastructure projects in 2025 alone.

According to Roelof van den Berg, CEO of the Gap Infrastructure Corporation (GIC), the positive outlook for South Africa’s construction industry is driven by R322.2 billion planned for public infrastructure projects this year. This growth is underpinned by technological advancements and evolving market dynamics that are fostering important innovations. Additionally, new streamlined regulations for public-private partnerships (PPP) are reducing project approval times, while the government’s renewed focus on transforming South Africa into a “construction site” further accelerates the industry's expansion.

“These changes mark the start of what the late and former Finance Minister Tito Mboweni is said to have called the ‘infrastructure years’ – a period that could reshape the country’s built environment more dramatically than at any other time in the past decade,” he says.

year will strategically target specific developmental areas critical to progress. The top three areas of spending will be transport and logistics, with R115.1 billion allocated to strengthening port, rail, and road infrastructure; energy, with R70.5 billion; and water and sanitation infrastructure, with R57.6 billion.

Rises in public spending will be further complemented by the commitment reinforced in the recent Medium Term Budget Policy Statement (MTBPS), which promised far-reaching regulatory reforms to reduce complex red tape, stimulate infrastructure investments, and expedite project rollouts.

Additionally, the Budget Facility for Infrastructure (BFI) will shift from one annual window to continuous evaluation, ensuring a more regular and predictable pipeline.

Intense competition within the industry means that companies will have to rely more heavily on advanced tools and AI to streamline processes, optimise procurement, and protect profit margins.

“The benefit of this for communities could be exponential. Not only does it mean expanded service delivery, but the construction industry, as a major employer and economic contributor, will also thrive. A rapid influx of new projects supported and driven by public-private partnerships could act as the lever needed to accelerate economic growth.”

Looking to the year ahead, Van den Berg points to three trends likely to shape and influence the industry:

Increased government investment and regulatory changes

Building on the reported 82 strategic integrated projects (SIPs) valued at R437 billion currently under construction, the industry anticipates substantial increases in public infrastructure spending, with significant implications for job creation and socioeconomic development.

As outlined within the 2024 National Budget Speech, spending in the 2025/2026 financial

“These changes mean fewer barriers, predictable timelines, a healthier project pipeline, and more stable deals – all translating into stronger incentives and better margins for private infrastructure developers, as well as greater value for public sector clients,” notes Van den Berg.

Purpose-built homes for solar and EV integration

In terms of innovations, the growing affordability of solar systems, and the rising emphasis on environmentally-friendly energy solutions, it’s likely that there will be a strong demand for “green” homes.

“In response, 2025 will likely see a more pronounced shift toward integrating renewable energy systems directly into the design and construction of new homes,” he states.

Construction industry forecast

“Instead of owners adding solar panels and electric vehicle (EV) chargers after the fact, developers will increasingly integrate these features from the project’s outset. Expect dedicated wiring conduits, pre-installed charging ports in garages, inverters hidden in utility rooms, and roof angles optimised for peak solar capture.”

Additionally, as electric vehicles (EVs) enter the mainstream, forward-thinking developers will anticipate the changing needs of future residents. Integrated EV infrastructure in new builds will accelerate South Africa’s EV market by removing key adoption barriers – if a buyer knows they can charge at home without expensive retrofitting, opting for an EV becomes simpler and more cost-effective, making these homes more attractive to buyers.

Technology-driven efficiencies in construction

Under the weight of global supply chain pressures, rising material costs, and persistent inflation, the construction industry will be compelled to move beyond incremental improvements, and embrace new levels of technologydriven efficiency.

Statistics South Africa’s latest construction input price index (CIPI) reveals, for example, that while total costs rose an average of just 3.4% year-on-year in October 2024, a number of essential materials and inputs have

seen substantial increases in expense. Construction pipes, tubes, and fittings surged 13.9% year-on-year, bricks by 7.9%, electrical components by 11.4%, and plants and equipment by 7.7%.

“Intense competition within the industry means that companies will have to rely more heavily on advanced tools and AI to streamline processes, optimise procurement, and protect profit margins. This shift will be crucial in delivering projects faster, more affordably, and with greater reliability,” explains Van den Berg.

For instance, firms can integrate digital procurement processes and logistics, automate operations with drones and machine-led fabrication, incorporate prefabricated components, and upskill teams to leverage real-time data analytics. These measures will reduce waste, accelerate delivery, enhance on-site safety, and enable continuous refinement of project strategies, helping South African developers meet intensified market demands more efficiently and cost-effectively than ever before.

“Ultimately, the general outlook for 2025 is optimistic and we expect enormous opportunities for the industry. Some risks remain, but if construction businesses and infrastructure developers remain agile and innovationfocussed, we may see a new boom in the industry with enormous benefits for the country as a whole,” he concludes. ■

Ebony & Ivory:

Harmonising home and habitat

Life near the city means families can forget about fresh air and vast stretches of vibrant greenery – or does it? Country and equestrian estates like Blue Hills in Midrand, are challenging statements like these quite successfully. Here, homeowners are offered the best of both worlds: spacious freehold stands in the peaceful countryside.

Sarah de Pina Chantel Venter

Project brief

The client’s requested the design of a four-bedroom home nestled within a 5 000m² property, where their two sons could grow up in harmony with nature.

The goal was to create a space inspired by a passion for industrialstyle aesthetics and sustainable gardening, integrating a tranquil sanctuary with a vibrant social playground – perfect for large family gatherings and intimate moments.

Subtle details with impact

Sustainability lies at the core of the firm’s design ethos, making it a central theme of the Ebony & Ivory project, showcasing how a home can embody luxury and environmental responsibility.

The residence features a range of eco-friendly innovations, including underground rainwater harvesting for garden irrigation and solar panels for electricity generation. The structure is strategically oriented to maximise northern light exposure, ensuring optimal natural lighting and effective temperature control.

By incorporating principles of natural ventilation, the design allows the family to enjoy yearround comfort. Traditional crossventilation techniques alongside stack ventilation were utilised, enabling warm air to rise and escape through higher openings while cooler air flow through lower openings.

The garden includes a thoughtfully curated selection of droughtresistant plants, many of which are indigenous to South Africa. Additionally, an inner courtyard has been designed for the family to transform into a productive vegetable garden, reflecting their passion for homegrown produce.

Windows to the soul

Natural sunlight has no substitute as it brings warmth and soul into every corner, and the Ebony & Ivory residence is a masterclass of this. Unlike artificial lighting, which struggles to capture the essence of a space (or the ‘genius loci’), natural sunlight animates the rooms, emphasising character, and atmosphere.

A standout feature of this project was the design of the windows. The use of narrow strip windows provides fleeting glimpses of the world beyond while expansive glass panes frame the stunning vistas of Blue Hills.

The glass box in the main bedroom immerses the residents further into the natural allure of The Estate, creating an intimate connection with the environment. Inside, window boxes function as stylish shelves for trinkets and books.

The strategic placement of large windows, combined with the building’s optimal orientation, ensures that sunlight permeates deeply into every room.

Tiny details offering dramatic effect

Added to this, the interplay between transparent glass and dark metal frames creates a captivating contrast, casting playful shadows throughout the interior. This dynamic interaction between light and dark adds further depth and visual delight to every room.

Attention to detail, both subtle and bold, defines this residence. While the overall design embraces openness and breeziness, the interiors are thoughtfully embellished with small and minimalistic modern details that pay homage to industrial design and local craftsmanship.

These subtle touches guide the eye from one space to another without overwhelming the senses.

Metal, brick, and wood accented with hints of pastel hues soften the industrial edges and introduce warmth.

The custom terrazzo tiles used in the kitchen, add a unique character to this space, combining practicality with a touch of artistic flair. In contrast, the entrance hall and other in-between spaces feature durable, warm vinyl flooring.

Specific colours were chosen for accent walls and custom-designed elements like the built-in cupboards and vanities. By using colour so selectively, these elements become focal points, almost like displayed artworks.

Furthermore, the dominant white palette, used inside and out, amplifies the abundance of natural light, and adds to the property’s sense of spaciousness.

Connecting family and nature

The home embodies the spirit of ‘ubuntu’, with its thoughtful balance between communal and private spaces. Large, open volumes transition into more intimate areas, allowing for social gatherings and personal retreats.

A loft space connecting the boys’ rooms encourages sibling bonding, while a corner window in the main bedroom invites shared moments.

The open-plan kitchen, dining, and sitting room, along with stacker doors leading to the patio and pool area, seamlessly connect the entertainment areas to the landscape beyond.

On a more personal note, the home is decorated with the family’s cherished objects. These include art, vintage furniture, heirloom pieces, and handcrafted ceramics that have either been handed down, carrying the weight of family history, or thoughtfully purchased, bringing with them the memory of a precious moment or travel.

Every item reflects a connection to the past or a sentiment. Together, they help to turn this house into a home that oozes character and personal significance.

The Ebony & Ivory residence stands as a shining example of how thoughtful architecture can create a living space that is not only beautiful to look at but also sustainable, functional, and deeply connected to its surroundings. It embodies a perfect balance between industrial chic and natural beauty, offering the clients a truly peaceful, yet modern way of life. ■

O-line OBO Bettermann Group offers

the smarter solution for every electrical installation challenge

Cable trays, power skirting and underfloor systems

O-line OBO Bettermann Group offers a diverse portfolio with solutions for every installation challenge – high quality and aesthetically pleasing products which are designed for a faster installation to save on labour costs.

OBO RKS Magic Tray : It’s “magic” – the trick with a “click”

The diverse OBO cable tray systems stand for efficiency, load-bearing capacity and safety according to DIN EN 61537. The self-splicing and central hanger system allows for a sizeable saving on installation time and eliminates the need to construct an unsightly trapeze hanger on which the lay the tray.

The RKS Magic cable tray is available with a 35mm and 60mm high side rail, with a wide variety of accessories to complete any project.

OBO Rapid 45-2 Power Skirting: Saving you time – saving you money

Available in three sizes with a single compartment or twin compartment to suite your installation requirements and manufactured to ISO standards both 14001 and 18001. Only making use of virgin polymer ensures colour consistency on both the white and grey variants. An extensive range of modules for power, data and multimedia installations are available, which

clip directly into the body of the power skirting – this eliminates the need for unsightly cover plates. Rapid 45-2 is supplied with a protective cover which is left on during installation to prevent any paint being messed on the skirting. At the end of the installation the protective cover can be removed before hand over.

OBO underfloor Trunking systems: Elegant

and robust

The OBO underfloor systems offer solutions that are elegant yet robust for power, data and multimedia connections. The underfloor boxes are supplied in both square and round options. The GES R2 range of round under floor units allows for a discrete power solution in copper, brass, chrome or nickel finish for both residential and commercial application with space for one power socket and data module. They are IP66 rated to stop dust and moisture ingress when closed and not in use.

The GES 4 and 6 range of square under floor boxes has more power module space especially required in commercial installations for extra power sockets and data modules. The lid is recessed to allow for a tile, wood or carpet finish to match the rest of the floor installation.

The GES range is complimented by the UD Home 2 and 4 range which is manufactured in SS304 stainless steel material for installations that require a more robust product. These floor boxes are available in both recessed and non-recessed lids, depending on the finish required. ■

www.o-line.com

From the ceiling to the floor

Attractive and functional:

Device installation trunking

Fast, simple installation, reliable functionality and contemporary design are all united in the Rapid 45-2. With two different variants of plastic and aluminium, the perfect Dado trunking can be found for every installation. The trunking is both attractive and functional, and suits every office environment.

Power from above: Ceiling installation

OBO has been developing products and solutions for electrical installations for over 110 years. One of our main focuses has always been on ceiling-mounted installation systems such as cable tray systems. With these many years of experience, OBO is one of the leading manufacturers in this field.

Floor installation systems from OBO enable safe and flexible cable routing in the floor, considering the structural and normative requirements. The systems offer maximum functionality while at the same time meet high design requirements.

Construction confidence

hits new heights

The construction industries in the Middle East and Africa have faced economic uncertainty, rising costs, and regulatory challenges, with South Africa also battling construction mafias. However, strategic investments in infrastructure, technology, and sustainability are fostering confidence and paving the way for transformation.

This optimism is echoed in RIB Software’s 2025 Industry Outlook Survey, which highlights a wave of positivity within the construction sector. With 97.6% of respondents forecasting revenue growth and a robust project pipeline, the industry is poised to capitalise on fresh opportunities.

Optimism fuels growth projections

Peter Damhuis, Vice President of RIB Software, emphasises the resilience and adaptability of the construction sector, noting that optimism is underpinned by a commitment to leveraging technology and innovation to overcome challenges and drive growth.

“It’s fantastic to see such optimism from our 251 survey respondents, with 98% predicting increased revenue and project activity in 2025,” says Damhuis.

The building sector, accounting for 28% of respondents, and civil contracting, representing 26%, is leading the charge. General contractors, making up 18%, also express strong confidence. A majority of respondents anticipate revenue growth of at least 5%, with nearly 39% predicting increases exceeding 15%. This optimism extends to project pipelines, with over 97% expecting expansion.

Drivers behind the surge

Several factors are driving this surge in confidence. Government-led infrastructure spending, cited by 30.6% of respondents, is creating substantial opportunities for civil and general contractors. Meanwhile, increased private sector activity, highlighted by 42.6% of respondents, is enabling the building sector to scale up its operations.

Private funding through PublicPrivate Partnerships (PPPs) is also accelerating project launches and fostering innovative solutions. Additionally, sustainability has emerged as a key priority, with 40.6% of respondents integrating environmentally conscious practices to align with global environmental goals.

Overcoming industry challenges

Despite this positive outlook, the industry continues to grapple with challenges. Attracting and retaining qualified professionals was a concern for 31% of respondents, while 34.2% noted rising input costs as a significant issue.

“Apart from rising costs due to global unrest and the impact of construction mafias in South Africa, 15% of participants highlighted regulatory complexities and power-generation constraints as key risks,” explains Damhuis. “However, over 58% of respondents identified digital transformation as a top strategic priority for 2025, leveraging advanced technologies to address these challenges, mitigate risks, and enhance efficiency.”

Private funding through Public-Private Partnerships (PPPs) is also accelerating project launches and fostering innovative solutions.

The role of technology and sustainability

The survey underscores the construction industry’s focus on adopting digital solutions to maintain a competitive edge. A significant number of respondents plan to implement Building Information Modelling (BIM) to enhance design accuracy and cost estimation.

Cloud technologies and real-time collaboration tools are also considered essential for driving greater integration and efficiency across projects. Moreover, digital transformation strategies – selected by 58.1% of respondents – are shaping the future of construction practices.

Sustainability remains a key focus, with 137 companies implementing carbon-reduction strategies. Notably, 74% of these firms reported progress in reducing their carbon footprints over the past year.

A promising year ahead

The survey reveals that firms are planning significant investments in technology and expansion. Approximately 61.3% of respondents expect to increase their IT budgets for 2025, reflecting a strong commitment to innovation. Diversification of offerings and geographic expansion are strategic priorities for 46.6% and 35.8% of respondents, respectively. Safety also remains a critical focus, with 35.4% of participants identifying it as a top priority.

“With technology, innovation, and collaboration reshaping the construction landscape, the industry is set for a transformative 2025,” concludes Damhuis. “Strategic investments, sustainability initiatives, and cutting-edge digital tools will enable the sector not only to recover but thrive. Firms that embrace these opportunities are well-positioned to lead the way, making 2025 a milestone year for growth and progress.” ■

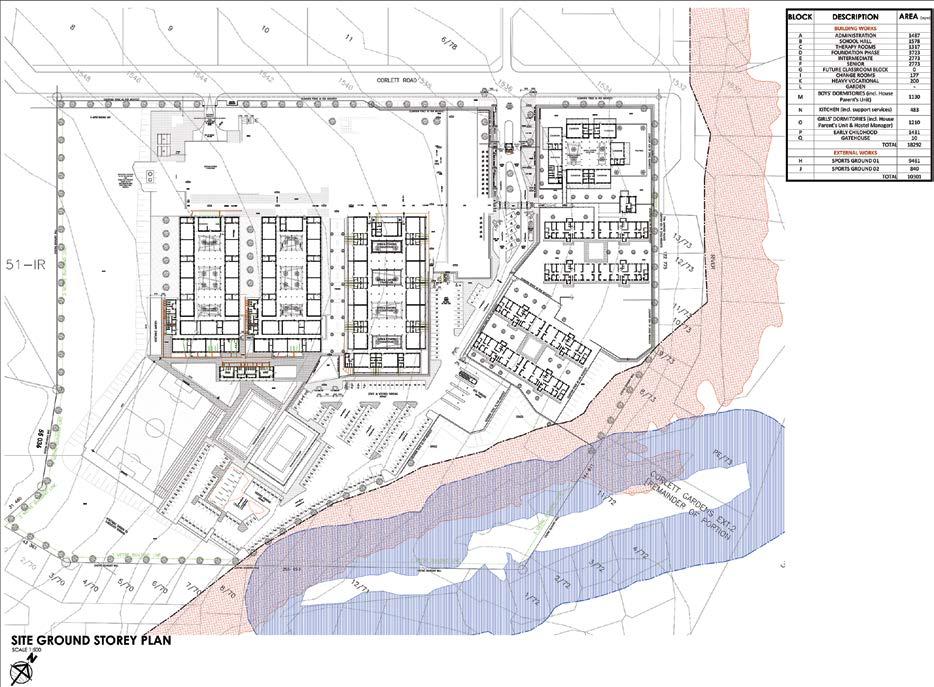
A state-of-the-art learning

haven for pupils with special needs

In 2012, three classrooms at the Nokuthula Centre and Special School were destroyed in a fire. The school, which provides services to pupils with severe intellectual disabilities, was rebuilt in Lyndhurst by Basil Read and designed by TKDS. Construction of the 10 301m² school began in February 2015 and was completed in October 2017. The new school caters to 560 pupils, aged three to 18, who represent the South African population.

Project lead company: TKDS Consulting CC

Project name: Nokuthula School for Learners with Special Education Needs (LSEN)

Project erf number: 80 Corlett Gardens Ext 4

Project address: 462 Corlett Drive, Corlette Gardens, Johannesburg

The original Nokuthula facility was located in Alexandra Township, north of Johannesburg. Initially a warehouse, it was converted into a school. However, space limitations and the need to provide additional services for the learners have always posed significant challenges. The project aimed to address these issues and build upon the school’s achievements.

In addition to meeting the urgent needs of Nokuthula Special School, the facility was designed to serve as a resource centre for special schools in the district, supporting them through teaching and educator training. Specialised care facilities such as therapeutic swimming pools, will be available for use by learners from other special schools.

Furthermore, the facility clearly distinguishes between day spaces and night spaces, while also separating children according to their learning levels. Each learning level provides a sense of individuality, security and belonging.

The school, which complies with “SMART” standards defined by the Gauteng Department of Education (GDE), also includes suitable sporting facilities to accommodate learners with special needs.

It is a combined school with all levels of learning. Part of its offering is a boarding facility and most importantly vocational facilities.

Extensive research, both local and international, was conducted for this project, with every detail carefully considered. A key objective was to shift the stigma surrounding facilities for people with disabilities, transforming the perception from negative to positive.

Ultimately, the school was designed to equip learners with essential skills to foster independence and

enable them to participate fully in society – socially, economically, and otherwise. This is one of a few projects with an all-encompassing ESG component in the public schooling sector.

Types of disabilities catered for by the school:

• moderate to severe intellectual disabilities

• epilepsy

• cerebral palsy

• physical disability

• hard of hearing

• deafness

The following key design aspects were taken into consideration to ensure the following:

• Incorporate universal access standards and specifications into all design elements, ensuring platforms and ramps are relatively flat, access roads and services are user-friendly, and adequately protected, among other considerations.

• Design the foundations of all buildings in line with recommendations from geotechnical investigations.

• Upgrade existing bulk services to meet the increased requirements for the new school, as determined by water and sewer demand calculations.

• Enhance the existing stormwater network to ensure it has sufficient capacity to manage the additional runoff generated by the new school.

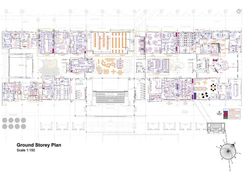
Designed by infrastructure solutions firm TKDS, the new school accommodates 560 pupils in a safe and secure environment. Circulation between buildings was carefully planned, with each building assigned a distinct functional identity to create a sense of place. The architects incorporated visual touchpoints throughout the school, such as the entrance to the administration block, which is the most identifiable feature upon arrival. This entrance serves as the primary access point to the school’s main activity areas, including the classrooms, vocational, and therapy centres, and stands as a prominent structure defining the school’s identity.

We also created landmarks with other buildings, such as the Therapy Centre and the School Hall. This was important because these buildings are most visible from the main street into the school. Security and observation were major considerations, as the design had to ensure that each learner was contained in a space where a teacher or supervisor could easily observe them.

The facility is attractive, functional, and stimulating, offering safe, secure, and environmentally friendly accommodation. The specifications for finishes and accessories are durable and suitable for the learners’ needs, and health and safety issues have been carefully addressed. Apart from construction-induced challenges, the project was a success.

As this is a public institution, the project had to provide low-maintenance solutions. The design of the buildings was such that each space uses natural light and ventilation, while deep overhangs to all walkways help to keep the harsh afternoon heat from the classroom spaces. As part of the project‘s green initiatives, the school makes use of solar geysers and borehole facilities, as well as having its own solar farm on site. Face brick was the material of choice for this project.

The choice of materials was critically important, as they needed to meet the specific needs of children with special requirements. Sensory awareness, visual contrast, texture, cost, and maintenance were key considerations. Face brick fulfilled all these criteria, particularly due to its low-maintenance properties. With 90% of the external wall façade constructed from face brick, it serves as the most recognisable feature upon arrival at the school.

To complement the face brick, we incorporated other distinctive elements, such as an aluminium structure at the main entrance of the administration block, concrete aprons, and stone cladding. Additionally, we introduced colour play by using two different types of face brick on each façade. ■

Vendor Name Trade

Corobrik Bricks

Msezane Security

Basil Read Plumbing Plumbing

Cassidy Solutions Electrical

Friction Retaining Structures Retaining walls

Zibuzele MK Construction Steel fixing

Nzama Construction Brickwork and plaster

Diphuka Consulting Brickwork and plasters

Khan-Malat Formwork

Nugget Steel Structural steel

Belrone Sales Roof trusses

Makgale

Soil poisoning

Maneri Concrete placing

Dumisiphi Construction Brickwork and plaster

Quake Seal Waterproofing

Esolezwe Construction Steel fixing

Rooms for Africa Roof sheeting

FROM OLD TO BOLD:

Trends shaping the future of design

Architects, developers, and planners are redefining what it means to build for the future, creating designs that meet functional needs while addressing global challenges and enriching everyday life.

As a dynamic and ever-evolving field, architecture adapts to the shifting needs, values, and technologies of society. The key trends for 2025 will further transform how we live, work, and connect with our environments, shaping a future that is both innovative and responsive.

“The architectural world is increasingly embracing innovations that prioritise sustainability, functionality, and aesthetics in equal measure,” says Claude McKirby, Co-Principal for Lew Geffen Sotheby’s International Realty in Cape Town’s Southern Suburbs and False Bay.

“The most prominent trends not only reflect the industry’s response to pressing global challenges like climate change and urbanisation but also cater to the growing demand for personalised and adaptable spaces, prioritising minimalism, resourceful reuse and liveability.

“And, beyond practical considerations, there is a renewed focus on creating spaces that inspire us, nurture well-being and foster a sense of community. In South Africa, these trends resonate with local priorities such as affordability and blending modern design with local heritage and natural surroundings.”

McKirby cites the following as key trends to follow in 2025 and beyond:

1 Breathing new life into old buildings

Adaptive reuse repurposes old, often historic buildings for new functions, such as turning warehouses into offices or factories into housing. This sustainable approach preserves architectural heritage, reduces waste, and optimises existing infrastructure. It also saves developers costs and avoids delays tied to new construction permits.

By maintaining urban character and fostering continuity, adaptive reuse revitalises neighbourhoods, boosts local economies, and enhances community connection. As architects innovate in 2025, this trend will play a pivotal role in sustainable urban development worldwide.

2

Less is more

Minimalism in architecture is a design philosophy that promotes simplicity, functionality, and clarity, focusing on clean lines, open spaces, natural light, and high-quality materials like wood, stone, and glass. It aligns with sustainable design by efficiently using resources and eliminating unnecessary elements without sacrificing comfort.

In residential spaces, minimalist design prioritises quality furniture, multipurpose areas, and connections to nature, while in commercial settings, it fosters a clutter-free environment that enhances productivity and mindfulness.

3

Cost-effective efficiency

Modular construction is revolutionising the architectural landscape, offering an efficient and sustainable approach to building design. This method involves constructing sections, or “modules”, of a building in a controlled factory setting before transporting and assembling them on-site. The result is a streamlined construction process that significantly reduces building time, material waste, and labour costs.

One of the key benefits of modular construction is its flexibility as modules can be customised to suit a wide range of architectural styles, from residential homes and office spaces to schools and healthcare facilities. Advances in technology have also enabled the use of high-quality materials, ensuring durability and aesthetic appeal comparable to traditional construction.

In South Africa, modular construction is gaining traction due to its cost-effectiveness and potential to address housing shortages quickly. Additionally, its eco-friendly nature aligns with the growing emphasis on sustainable building practices, making it a forward-thinking choice for modern architecture.

4

Live, work and play

Mixed-use developments, combining residential, commercial, and recreational spaces, are becoming a cornerstone of urban architecture in 2025. These projects address the need for sustainable, efficient, and vibrant urban living by reducing commuting, promoting walkability, and encouraging community interaction.

In South Africa, mixed-use spaces are already gaining traction, driven by urbanisation, rising property costs, and the demand for innovative housing solutions. Cities like Johannesburg and Cape Town are embracing these developments to optimise land use and revitalise urban centres. For developers and architects, mixed-use spaces offer a forward-thinking approach to balancing growth, sustainability, and social well-being.

5 Building for people

Community-focused design is a response to the growing recognition of mental and emotional wellbeing in urban environments, aiming to create “liveable cities” that prioritise residents’ well-being and a sense of belonging. It fosters human connection, accessibility, and inclusivity by creating welcoming spaces for everyone.

This trend often includes shared spaces, such as courtyards and common rooms, to encourage interaction and community engagement. It also ensures accessibility for people of all ages and abilities and incorporates pedestrian-friendly layouts and safety features in public spaces.

“These architectural trends represent a forward-thinking approach to addressing the social, environmental, and economic challenges of our time and, going forward, they are likely to shape cities in profound ways, creating urban environments that are sustainable, inclusive, and resilient,” concludes McKirby.

“Architects, developers and planners are reimagining what it means to build for the future, moving towards an architecture that not only meets functional needs but also addresses global challenges while enhancing everyday life.” ■

Maximise road lifespan

with advanced solutions from Fibertex

Fibertex Nonwovens South Africa is leading the way in road pavement maintenance with advanced solutions, including the manufacture and supply of Fibertex AM-2, a flexible nonwoven paving fabric specially designed for African road engineering conditions.

Reflective cracking and water damage significantly contribute to pavement deterioration in both rigid and flexible road systems. Brian Potgieter, Technical Sales Engineer at Fibertex Nonwovens South Africa, emphasises the impact of existing cracks in old asphalt layers. “When new asphalt is overlaid, water can infiltrate through these cracks, compromising the overall lifespan and driving quality of the road,” he explains.

To address these challenges, Fibertex has developed Fibertex AM-2, which functions both as a waterproofing membrane and a Stress Absorbing Membrane Interlayer (SAMI). “As a waterproofing barrier, this advanced solution substantially reduces water permeation through the asphalt overlay and into the underlying pavement structure, mitigating the harmful effects of water ingress. Additionally, it absorbs stress caused by differential loads on the road surface, preventing the propagation of existing cracks from the lower pavement layers to the newly installed overlay,” adds Potgieter.

This dual functionality leads to significant benefits, including extended pavement life and reduced maintenance costs. By minimising reflective cracking, Fibertex AM-2 allows for longer intervals between maintenance projects, resulting in considerable cost savings. The material’s versatility enables mechanical application for large-scale projects or manual installation for narrower applications.

In addition to Fibertex AM-2, the company offers the F-range nonwoven geotextiles – F34 and F46 –which serve as essential separator layers within the road base. These geotextiles optimise road design by enhancing load distribution and durability, preventing intermixing between engineered fill and subgrade, and allowing for a thinner load-bearing layer design without sacrificing load capacity.

Fibertex geotextiles are UV-stabilised and certified for over 100 years of durability according to the latest EN standards. This long-lasting performance ensures minimal project costs and environmental concerns related to product failure.

Beyond basal stabilisation, Fibertex offers a comprehensive range of geosynthetic products that address various civil engineering challenges. Their experts provide technical advisory and support services throughout Africa, ensuring optimal solutions for every project. ■

Fibertex solutions for road pavement maintenance include the manufacture and supply of Fibertex AM-2, which is a flexible nonwoven paving fabric, specifically developed for road engineering conditions in Africa. Fibertex F-range nonwoven geotextiles – including F34 and F 46 –function as a separator layer within the road base (prism).

ASSURED PERFORMANCE AND ENVIRONMENTAL EXCELLENCE IN CIVIL ENGINEERING

The Fibertex range of geotextiles encompasses dependable solutions for road construction and maintenance. Our geotextiles are used for filtration and separation in road construction, to prevent mingling of fines, which would reduce the bearing capacity of the structure.

Fibertex geotextiles minimise the thickness of different layers, reducing material requirements and saving costs. Our environmentally-friendly products have a reduced CO 2 footprint and lower energy consumption.

KURAL VISTA

On the iconic Palm Jumeirah in Dubai, KURAL VISTA is a masterclass in luxury living, seamlessly blending sophisticated design, stunning vistas and unparalleled opulence, redefining the ultimate residential experience.

Alpago Properties

Looking eastwards towards the Dubai skyline from the G Frond of the iconic Palm Jumeirah, this villa, conceived by SAOTA for developer Alpago Properties, in collaboration with Executive Architects CK Architecture Interiors (also the project’s interior designers and contractors) exudes sophisticated understatement in its unassuming silhouette.

A blank canvas

The brief was to design a home that would maximise the allowable space while embodying a sense of refined luxury, leaving room for creative interpretation from a design perspective. This allowed the team freedom to interpret the notion of residential luxury freely in the context of this exclusive enclave.

Not being limited by design restrictions, due to the absence of a designated end user, provided an opportunity to create something architectural and expressive, while still maintaining the prestige of the neighbourhood.

Blurring boundaries

The team drew inspiration from the striking waterfront site, harnessing its impressive views, to design a villa that blends with the urban landscape and, in true SAOTA style, seamlessly integrates indoor and outdoor spaces.

One of the primary goals of the project was to incorporate the landscaping and views in various ways, ensuring they became an integral part of the inhabitants’ daily experience. The initial building concept was inspired by the site’s proximity to the water, taking the form of a stacked structure designed to mimic the erosion of travertine over time (a nod to the developer’s Turkish roots) or the texture of coral (a reference to the villa’s island location).

A study on contrast

Upon closer inspection, the bulk of the structure is broken up to some extent by a deliberate fracturing of the form. This is achieved through a combination of light and dark materials, vertical layering with exposed slab edges, metallic and matte surfaces, transparent and perforated detailing, and solid forms balanced by negative spaces. These contrasting elements introduce the idea of porousness present throughout the design.

This theme is extended, and expanded on within, the sense of solidity on the street giving way to openness on the sea-facing side, where the spaces ultimately become hyper transparent. By carving out of the mass of the structure, the architects have created double-volume covered terraces and voids to inspire a sense of curiosity – through these, the landscape is visually woven through the space. Once you step through the door on the ground floor, this sense of permeability becomes clearly apparent in social spaces centred on a triple-volume central landscaped courtyard that allows in abundant light.

Designing for flow

Spanning four levels, the villa is designed to optimise the function of each floor. The ground and first floors accommodate living spaces and bedrooms, with easy access to the outdoor terrace. The basement level houses a garage and spa, while the rooftop level features a bar, entertainment area, and pool, all benefiting from the views.

Working within a relatively small footprint, the challenge of creating a sense of expansiveness was addressed through an open-plan design that flows throughout. This not only fosters visual connectivity, both vertically and laterally, between spaces and floors but also extends to the generous outdoor living areas. To achieve this, the physical and material boundaries between indoor and outdoor spaces were blurred. With no clear distinction between the formal lounge and the terrace, the living area flows seamlessly outwards, with doors effortlessly slotting into wall cavities. The ultimate effect is a seamless connection from the living space to the pool, landscaping, and, beyond, the sea and skyline.

Outdoor living and sustainability

The natural material palette reinforces this connection with the outdoors – large-format unfilled vein-cut travertine tiles, wood, and earth-toned marble are luxurious but not ostentatious and link tonally to the landscape. Deliberately pared-back and quietly sophisticated in the public spaces to complement the sculptural character of the building, the materials are more opulent in the private zones to imbue these with an enhanced sense of luxury.

The outdoor areas – being so intricately linked to the indoors – were designed and optimised for liveability. Pergolas and terraces filter and moderate light on the rooftop, which is essential in this climate, while internal courtyards and deep overhangs aid passive cooling and promote comfortable outdoor living. The setting-sensitive design enables its occupants to fully enjoy the views and the elements throughout.

ASP Fire is able to conduct fire-risk assessments and Rational Fire Designs for shopping centers.

Fire plans have to be resubmitted for approval whenever a tenant changes, or if the internal layout of a shop changes.

Ceiling void smoke detection, void fire protection and the activation of smoke extraction systems by tenant fire panels are areas often ignored when shopping centers are built.

Most tenants are not aware of the specific requirements for automatic fire detection and alarmsystems and their obligation to install them.

your space with the dopamine decor trend

In a world of increasing turmoil, dopamine decor aims to evoke feelings of positivity, happiness and well-being by enabling you to infuse your space with what makes you feel joyful and at home – a neurotransmitter associated with pleasure and reward, says Yael Geffen, CEO of Lew Geffen Sotheby’s International Realty.

“This style is about creating spaces that make you smile, sparking joy through bright colours, playful patterns, and a blend of personal mementos. Just as dopamine floods the brain with positive feelings, dopamine decor aims to create an environment where positive emotions thrive,” says Geffen.

“Inspired by colour psychology, dopamine decor encourages bold hues that evoke energy and positivity – think bright yellows, energising oranges, rich greens, and dynamic blues,” he explains. “It’s a design approach that’s unafraid of a little chaos. Instead of looking for perfectly matched items, dopamine decor invites a curated clash of textures, patterns, and colours that feel both spontaneous and intentional.”

Key elements of dopamine decor

Dopamine decor is a layered approach to design that emphasises several elements:

• Vibrant colours: Bright, happy colours like fuchsia, teal, mustard yellow, and cobalt blue are foundational. Instead of limiting these to accent pieces, dopamine decor embraces larger statements, such as painted walls, colourful sofas, or vibrant rugs.

• Playful patterns: Mixing patterns is key in dopamine decor. Florals, stripes, geometric shapes, and abstract prints come together in a quirky yet cohesive way. This can be seen in throw pillows, wallpaper, and art pieces.

• Sentimental items: Beyond colour and pattern, personal mementos make the style truly yours. Displaying items that bring personal joy –such as a vintage record player, travel souvenirs, or framed family photos – gives the space a warm, nostalgic feel.

• Unique textures: Layers of different textures, from velvet couches to wool throws and textured wallpaper, add visual interest and make a space feel dynamic and multidimensional.

How to incorporate dopamine decor in your home

“Integrating dopamine decor into your space doesn’t mean you need to do a complete overhaul,” says Geffen. “The style is flexible and can be adapted in small ways or with sweeping changes, depending on how bold you want to go.”

Start small with colourful accents

If you’re hesitant to go all-in, start with small accents like throw pillows, blankets, or rugs in bold colours. This allows you to experiment with the dopamine decor vibe without making a major commitment.

Create a feature wall

Choose a colour that sparks joy for you – whether it’s a rich teal, a sunny orange, or a cheerful pink – and use it to cover one wall in a room. Alternatively, experiment with bold-patterned wallpaper to add energy to the space. Complement it with framed art that echoes similar colours or add a few personal photos for a touch of nostalgia.

Mix and match patterns

Florals paired with polka dots, or stripes against abstract designs, create a fun, eclectic vibe. Try mixing patterned throw pillows on your couch or layering different styles of rugs to give your room depth and texture. The trick is to stick to patterns that share a common colour palette to avoid overwhelming the space.

Display personal items and sentimental decor

From family heirlooms to travel souvenirs, decorating with personal items can make your space feel uniquely yours. Incorporate a favourite piece of furniture, a treasured collection, or framed memories from special moments in your life.

Play with unique furniture and lighting

Bold furniture pieces, like a vibrant velvet sofa or a patterned armchair, make striking focal points in a room. Dopamine decor encourages creativity, so explore playful shapes, bold fabrics, and unconventional styles. Lighting is also essential – incorporate statement pieces like lamps, neon lights, or even disco balls to bring a whimsical touch to the space.

Layer in plants for a natural boost

Plants can serve as a natural, grounding element among all the colours and patterns. Opt for vibrant pots or hanging planters to add a creative touch to your greenery. Plants also enhance the energy of a room, promoting relaxation and positive vibes.

“Dopamine decor is about infusing your space with what makes you feel joyful and at home. It’s a style that encourages personalisation and emotional connection, blending colour and comfort with nostalgia and selfexpression,” says Geffen.

“As you start experimenting, remember that there are no strict rules in dopamine decor – just an emphasis on creating a space that feels happy and authentic to you.

Whether you choose to fully embrace the trend or add touches here and there, dopamine decor offers a way to make your home a place of warmth, joy, and endless inspiration,” Geffen adds. ■

Complete coating system. Complete professional service.

Reliability is at the heart of our industry, and our Professional range is no different. Product innovation coupled with our value added services gives you a distinct advantage.

Our complete coating system, spanning preparation, trim, wall and textured coatings, is designed to ensure guaranteed product performance and value from start to finish.

All Plascon Professional products with the Ecokind logo have VOC levels within the GBCSA standards for Green building ratings.

Designed for professionals.

Where Bryanston’s

charm meets modern luxury

The Revo Project in Bryanston offers stylish urban living in a prime location. With lush tree-lined streets, excellent schools and close proximity to Sandton’s bustling business hub, it’s perfect for young professionals, families, and investors.

Project description

Located at 170 Grosvenor Street in the sought-after neighbourhood of Bryanston, this development embodies the pinnacle of modern urban living. Bryanston is renowned for its tranquil yet cosmopolitan atmosphere, offering residents a balance between suburban serenity and city convenience.

The project overview

The property offers a range of thoughtfully designed residences, including studios, onebedroom, and two-bedroom apartments. These homes cater to a variety of lifestyles, making them ideal for young professionals building their careers in Johannesburg or savvy investors looking to tap into the area’s impressive rental market. Investors can expect average yields of 10–13%, a testament to the development’s strategic location and high demand.

The result is a building that tells a story of transformation, blending old-world charm with cutting-edge aesthetics. It’s an architectural dialogue that reflects both the heritage and progress of the neighbourhood.

Unique features and amenities

Adding to its appeal, the development is situated within a short distance of top schools, making it an attractive option for families. It’s also just minutes away from Sandton, Africa’s financial hub, where world-class dining, shopping, and business opportunities abound.

Design inspiration

The design of 170 Grosvenor seamlessly merges heritage and modernity. The preserved white façade at the base of the building pays homage to the area’s rich history, exuding timeless charm. Above this, the sleek charcoal and black upper levels introduce clean, modern lines, creating a striking visual contrast that embodies contemporary sophistication. This thoughtful design is a nod to Bryanston’s evolution – a community that respects its roots while embracing the future.

Ground-floor apartments boast private gardens, offering a tranquil retreat for residents who value outdoor space. On the other end of the spectrum, the penthouses feature expansive entertainment balconies, perfect for hosting gatherings or simply enjoying the panoramic views.

The development also caters to the demands of modern urban living with a host of amenities designed to enhance convenience and community. Retail spaces and a coffee bar provide on-the-doorstep convenience, while co-living spaces foster a sense of connection among residents. Families will appreciate the play area, and pet owners will love the pet-friendly policy, ensuring every member of the household feels at home.

Supplier list

Urban living redefined

Nestled in the heart of Bryanston, 170 Grosvenor embodies the essence of urban living, seamlessly blending luxury, functionality and community. Whether you’re looking for a home that offers modern comforts or an investment with exceptional returns, the property stands out as a beacon of innovation and elegance in the heart of Bryanston. ■

Developer: Merelava, headquartered in Sandton, Johannesburg, operates across South Africa and aborad.

Architects: LYT Architecture

The Quantity Surveyor & Engineers are still to be appointed for this project.

Ring offers advanced

smart home security

Security remains a major concern for South African consumers and should be top of mind when designing a home. Ring’s wide range of stylish camera devices offers the perfect solution for protecting what's important.

Ring’s products are designed with aesthetics, convenience, and ease of use in mind. The Ring range of smart video doorbells, cameras, and alarm kits enables homeowners to monitor their property remotely through the Ring App on their mobile phones. These security devices come equipped with advanced features, including Live View, Two-Way Talk, motion-activated alerts, and Night Vision.

Ring offers a product for every area of your property, allowing you to create a customised security ecosystem. Outdoor options include the next-generation Spotlight Cam, featuring wide-angle 1080p HD video and a built-in security siren. Users can set up notifications on their phone for motion detection and trigger the siren remotely if something seems suspicious.

For indoor use, the Pan-Tilt Indoor Camera allows users to ‘look around’ via the Ring App, which activates the camera’s motorised pan-tilt base. The camera tilts up or down and pans left or right, providing a full view of the surroundings.

Ring products are incredibly easy to set up: simply plug in, position them where needed, and enjoy HD Live View. With Two-Way Talk, you can communicate with anyone in the camera’s range, ideal for a video doorbell. Night Vision ensures clear surveillance even after dark, allowing you to monitor your property from the comfort of your home.

Comprehensive home surveillance is now an essential feature of modern homes. Ring’s advanced technology gives users peace of mind when travelling and the ability to check in on their homes, pets, and family in real-time with a quick glance at their phone. ■

Visit Takealot for more information on Ring products.

PAN-TILT INDOOR CAM

The benefits of

fibre-enhanced concrete

Fibre-reinforced concrete offers a sustainable alternative to steel, reducing carbon emissions and waste. Chryso’s Adfil fibre solutions enhance concrete performance, improving durability and structural integrity for a greener future.

In today’s construction industry, the twin imperatives of sustainability and efficiency are driving transformative innovations. One such advancement making waves is the use of fibre in concrete, which replaces traditional steel reinforcement. This shift not only results in substantial time and labour savings, leading to significant cost efficiencies, but also plays a pivotal role in reducing the carbon footprint associated with construction projects.

Steel reinforcement, while indispensable for its strength and durability, has a significant environmental impact. The production of steel requires substantial energy consumption and emits considerable amounts of carbon dioxide (CO2). According to the World Steel Association, the steel industry accounts for approximately 8% of global CO2 emissions, making it a major contributor to climate change.

A sustainable alternative

Michelle Fick, Business Development Manager: Concrete Aesthetics at Chryso Southern Africa, notes that fibres, made from synthetic and natural materials, offer a far more sustainable alternative. “Concrete containing fibres can be easily recycled and reused as crushed aggregates for other projects,” she explains.

The environmental benefits of this shift are substantial. Notably, the production of fibre materials, especially synthetic ones, generates significantly less CO2 than steel production. Furthermore, fibre manufacturing requires considerably less energy.

Fibre-reinforced concrete minimises labour, time and waste, resulting in long-term savings for infrastructure projects.
Using fibre in construction helps companies reduce carbon emissions, minimise energy consumption and cut waste, significantly lowering their environmental impact.

“By substituting steel with fibres, construction companies can markedly decrease their carbon emissions,” Fick says. “Unlike steel reinforcement, which often involves cutting and fitting, resulting in substantial scrap material, our Advil fibres can be precisely mixed into concrete, minimising waste on construction sites. This reduction in waste further enhances the sustainability credentials of fibre-reinforced concrete.” Beyond the environmental advantages, fibre reinforced concrete offers several practical benefits that enhance construction efficiency. Integrating fibres into concrete is straightforward and can be done during mixing, eliminating the labour-intensive steps of placing and tying steel reinforcement.

This streamlined process significantly accelerates construction timelines. The simplicity of using fibres reduces the need for specialised labour typically required for handling and installing steel reinforcement. This not only cuts down on labour costs but also mitigates the risk of on-site injuries associated with traditional steel handling.

Fick says that while the initial cost of fibres may be close to that of traditional steel reinforcement, the overall savings in labour, time and reduced waste translate into lower total project costs over the lifecycle of the construction project.

Fibre in concrete is transforming the construction industry, providing contractors with a sustainable and efficient alternative to traditional steel reinforcement.

Embracing innovative materials like fibre is key to a sustainable construction sector, aligning with global environmental goals and positioning companies at the forefront of eco-friendly practices.

Real-world applications

Fibre-reinforced concrete has been successfully deployed in numerous projects globally as well as locally, highlighting both its practical and environmental benefits. Infrastructure projects like roadways and bridges have reported enhanced durability and reduced maintenance costs due to the use of fibres.

Moreover, residential and commercial buildings have benefited from faster construction times and improved structural performance, highlighting the versatility and effectiveness of fibre-reinforced concrete across diverse applications.

Available from Chryso, Adfil’s range of high quality fibre reinforcement solutions are designed to enhance the performance of concrete by improving its durability, reducing cracking and increasing its structural integrity. By integrating Adfil fibres into concrete, construction projects can achieve superior results while also benefiting from the environmental advantages of reduced carbon emissions and lower energy consumption.

Adfil offers a range of fibres tailored to various construction needs including macro-synthetic fibres, micro-synthetic fibres and steel fibres. These products are engineered to provide optimal reinforcement, ensuring that concrete structures can withstand the demands of modern construction without the drawbacks associated with traditional steel reinforcement.

Industry impact

“We believe that the adoption of fibre in concrete represents a paradigm shift in the construction industry, and offers contractors a sustainable and efficient alternative to traditional steel reinforcement,” Fick says. “By reducing carbon emissions, minimising energy consumption and cutting down on waste, construction companies can significantly lessen their environmental impact while bolstering their operational efficiencies.”

“As the construction sector continues to prioritise sustainability, embracing innovative materials like fibre will be pivotal in fostering a greener future. These advancements not only align with global environmental goals but also position construction companies at the forefront of sustainable practices, driving both environmental stewardship and economic viability,” Fick concludes. ■

Savannah Park: A premier investment opportunity in the heart of Umhlanga

Trapezoid Property Development, renowned for its significant contributions to the transformation of Umhlanga through nine prestigious developments, is excited about the recent launch for sales of their Savannah Park units to the market.

This established and conveniently located residential estate, completed in 2018, is in one of KwaZulu-Natal’s most sought-after locations. It offers beautifully designed one- and two-bedroom apartments starting from R1 295 000 – making it an attractive opportunity for both homeowners and investors alike.

With a growing interest from buyers looking to purchase property within the North Coast, Savannah Park presents a unique opportunity for investors looking to buy

directly from the developer within a fully developed estate. According to Lightstone data (2024), Umhlanga has consistently demonstrated robust expansion, with an 84% good standing ratio on rentals (7% above the KwaZulu-Natal average) and a remarkable 95% annual occupancy rate for residential properties. This is mainly due to the walkable safe precinct and the thriving leisure activities within the area.

For investors, potential buyers can rest assured that they are purchasing from established and trusted developers. Trapezoid Property Development’s commitment to quality and excellence is evident in every detail of their projects. Chico Premjee, Co-developer of Savannah Park states, “We pride ourselves on creating exceptional living

spaces and mixed-use developments that offer both luxury and practicality. Savannah Park is a prime example of our dedication to providing residents with secure, comfortable and aesthetically pleasing homes.”

The estate is designed with a strong community focus, featuring upmarket, modern, open-plan kitchens that lead into spacious living areas and welcoming balconies. Ample parking is provided, along with plenty of space within the estate, offering safe areas for children to play, ride bicycles and for residents to exercise or jog. “At the heart of our community is a central pool area, creating a communal space where families can relax and connect. In addition, residents can enjoy a thriving work-life balance living close to business hubs, with the added benefit of leisure spaces within the estate,” explains Premjee.

Situated within an urban managed precinct, the estate offers peace of mind with triple-tier security, 24-hour surveillance and comprehensive maintenance services. Speaking to the security aspects, Rasik Soni, Codeveloper of Savannah Park explains, “We understand the importance of security and peace of mind for our residents, which is why we have invested heavily in top-notch security features and maintenance services to ensure our residents feel safe and secure.”

The community-focused design ensures residents have access to a variety of amenities outside the estate, including parks, walking paths and recreational areas. Additional features within the surrounding neighbourhood include CCTV monitoring, security patrols, efficient landscaping, pothole repairs, precinct maintenance, cleaning and litter control, well-maintained streetlights, and strict urban management principles. “Our commitment to enhancing the living experience extends beyond the estate itself. We work closely with local authorities and community organisations to ensure the surrounding area is kept safe, clean and generally well-maintained,” adds Soni.

In addition, Savannah Park’s prime location provides residents with easy access to a range of amenities in their ‘backyard’, including Gateway Theatre of Shopping, Park Square and Chris Saunders Park, ensuring a vibrant lifestyle with excellent shopping, dining, and recreational options just a short walk away.

Savvy investors will also be pleased to know that Trapezoid Property Group offers a hassle-free rental management solution, complete with a one-year rental guarantee. Through a seasoned vetting process, qualified tenants are sourced, and the rental process is seamlessly navigated. “Before deciding to sell the units so we can reinvest our capital from this estate into new, upcoming projects – our rentals of Savannah Park were consistently around the 90% mark, highlighting the strong demand for this product and the returns to be gained by investors. Our rental management solution is designed to offer a stress-free experience for investors and our dedicated Savannah Park sales agents handle everything from tenant vetting to maintenance, ensuring that your investment is in safe hands,” states Premjee.

Residences within this secure Umhlanga estate start from R1 295 000, with potential savings of up to R120 000 on bond costs, transfer costs and transfer duty. With three different layout options available for purchase –prospective buyers can easily secure their already-built apartment by visiting the website, navigating the online marketplace platform and paying a R20 000 deposit. ■

A new era of

coffee culture

When Plato Coffee, a proudly South African brand, sought to curate a distinctive aesthetic footprint in 2021, they turned to the creative expertise of Indigen Architects.

Tasked with shaping a brand experience unlike any other, Indigen Architects began by crafting a unique identity that would resonate across the South African retail landscape. In just two years, Plato Coffee rapidly expanded to over 40 locations nationwide.

A dreamlike coffee experience

The journey began with the establishment of a brand identity that would elevate the everyday coffee run into something transcendent. Indigen Architects envisioned a clean, luminescent space that offered more than just coffee – it aimed to provide a dreamlike experience. Drawing inspiration from the design principle of “white

space,” each Plato Coffee location was conceived as a serene environment, a blank canvas where the focus is on creating the perfect beverage. The architectural identity of the brand is rooted in this ethereal void, which is not merely an empty space, but a space designed to inspire clarity, calm and focus.

The luminescence of the space, from carefully considered lighting to a minimalist approach, ensures that every visit offers a sensory journey. The aim was to create an atmosphere of peace and tranquillity, allowing customers to sit back, relax, and immerse themselves fully in the experience of enjoying their coffee.

Human-centric design for consumers and baristas

While the aesthetic and sensory qualities of the space were of paramount importance, so too was the functionality of the design. Indigen Architects took a human-centric approach to both consumer and barista experiences, ensuring that the spaces were not only beautiful but highly functional. Every store was designed with careful attention to ergonomics, optimising the movement of staff and streamlining the coffee brewing process.

A unique challenge at each location was to find innovative ways to use space efficiently while accommodating the complex operations that go into the art of coffee making. Custom-designed elements such as knockboxes, drip trays, pitcher cleaners, and condiment stands were implemented to enhance the workflow, benefiting both the baristas and the customers they serve.

A store for every location

No two Plato Coffee locations are identical – each store is a reflection of its community. Local materials, textures, and elements play a key role in making each location feel unique, while still tying back to the overarching brand identity. The stores feature bespoke tiles, locally sourced joinery, and artisanal touches, all curated to create memorable environments that seamlessly blend with their surroundings. Rich textures and curated pops of colour add vibrancy to the spaces, making each one stand out while still fitting into the Plato Coffee family.

The modular nature of Plato Coffee’s design allowed the brand to experiment with innovative concepts. This flexibility was key in

creating the Plato POD – a freestanding, mobile unit with a unique off-shutter concrete exterior and sleek interior. The Plato POD allows the brand to immerse itself in various local communities, bringing the Plato Coffee experience to open areas that may lack the necessary infrastructure for a full-scale store. This modular unit can be placed in virtually any environment, further extending Plato Coffee’s reach and reinforcing its commitment to creating spaces that embody its aesthetic and community spirit.

In another bold move, Indigen Architects transformed a vintage Land Rover into a mobile coffee experience. Painted in a striking green hue, this mobile unit showcases the ingenuity of Plato Coffee’s design approach and introduces an exciting new way to enjoy their signature beverages on the go.

Seamless execution for expansion

As Plato Coffee rapidly expanded, seamless execution became increasingly critical. Indigen Architects coordinated every detail of the design and construction process to ensure each store was completed on time, within budget and met the brand’s high standards. The integration of local contractors, artisans, and suppliers played a key role in bringing each unique design vision to life while maintaining consistency across the brand’s growing footprint.

The careful planning of timelines and construction schedules ensured that every project was executed efficiently, from the initial concept to the grand opening. Every step of the process – from demolition to the final placement of plants – was carefully coordinated by the full team to guarantee that each store provided the same consistent, high-quality Plato Coffee experience.

A visionary brand

In just two years, Plato Coffee became a recognisable and celebrated brand, not only for its high-quality coffee but for its commitment to community, art and entrepreneurship. Through collaborations with emerging artists, investment in local talent, and a dedication to crafting exceptional spaces, Plato Coffee has created a platform for South African creativity to shine.

As the brand continues to grow, its presence in carefully curated spaces ensures that each new store – whether a modular POD or a full-scale location – remains true to Plato Coffee’s ethos. It is more than just coffee; it is an experience that brings people together, celebrates local culture and inspires a new generation in the retail industry.

Indigen Architects’ role in bringing Plato Coffee’s vision to life is a testament to the power of thoughtful, humancentric design in shaping the future of brand identity. ■

Rustic meets modern in the

barndominium boom

A new property style has been gaining popularity in recent years, especially in rural and semi-rural areas as more and more people move away from cities in search of space and a quieter lifestyle. In South Africa, which has an abundance of rural and semi-rural landscapes, the barndominium is the perfect home for country living.

A barndominium, derived from ‘barn’ and ‘condominium’, is a type of building that combines a barn’s design with modern home features and, in addition to living quarters, it typically includes a large garage, workshop, or other utilitarian space.

Originally popularised in the United States, these buildings were initially constructed by converting existing barns into living spaces, maintaining the rustic charm of the original structures. Nowadays, however, many are new constructions, designed from scratch to be both highly functional and aesthetically pleasing.

They are typically built from metal or wood, with high ceilings, open floor plans and large open spaces, making them ideal for those who appreciate airy interiors, and these structures often feature large windows, sliding doors, and loft spaces.

With the additional utilitarian area, they serve multiple purposes, housing both living areas and workspaces under the same roof. Whether used as a single-family home, guest house, rental property, or even a combination of living and workshop space, barndominiums offer flexibility that appeals to a wide range of lifestyles.

Over and above the flexibility and the appeal for those with hobbies requiring a workplace these structures are resonating with buyers for several other compelling reasons.

One of the main reasons is affordability as they are usually more affordable to construct than traditional homes due to their simple, modular design. The cost savings come from using metal or timber frames, which are less labour-intensive and require fewer materials than brick and mortar so for those who want a unique, customised space without breaking the bank, barndominiums present an attractive option.

They also allow for flexibility in design as they offer nearly endless possibilities. With open floor plans, homeowners can arrange spaces to suit their preferences and needs, and the large interiors make it easy to include lofts, high ceilings, and even industrial elements, lending the property a modern, minimalist appeal.

Another key advantage is that barndominiums offer durability and lower maintenance. Materials like steel and metal or wood cladding, are exceptionally durable and resistant to the elements, which makes them especially well-suited to rural or exposed areas where traditional materials might

be more vulnerable. Additionally, these materials are low-maintenance, meaning that homeowners spend less on repairs over time.

They also lend themselves to multifunctional lifestyles and, with South Africa’s entrepreneurial spirit and the growing work-from-home trend, barndominiums meet the demand for properties that can accommodate multiple purposes. Their large, open interiors offer the flexibility to incorporate office spaces, studios, or workshops without sacrificing comfort and this multifunctional aspect is ideal for homeowners who need space for both living and working, particularly in areas where property may otherwise be costly.

The structures also offer a great opportunity for green construction. Many barndominium designs incorporate recycled materials and they can easily be equipped with energy-efficient features such as solar panels, rainwater harvesting systems, and insulation to reduce energy consumption.

While barndominiums do present many advantages there are a few factors that prospective owners/builders should keep in mind:

• Zoning and building regulations: Ensure that the property meets local zoning and building regulations as some areas may have restrictions. It's essential to consult local authorities before construction begins.

• Insulation and ventilation: Since metal buildings can become hot in summer and cold in winter, proper insulation and ventilation are necessary to make the home comfortable year-round.

• Resale value and market familiarity: It is still a relatively new concept in South Africa, so resale value may vary depending on location and demand. However, as awareness grows, barndominiums could attract a unique niche of buyers seeking unconventional living spaces.

As more South Africans seek affordable, spacious and sustainable housing options, its popularity is likely to grow. “Their versatility, durability, and rustic charm make them an attractive choice, especially for those looking to live outside of urban areas. Also, as sustainability and multifunctional living spaces become priorities, barndominiums align with these trends, offering a modern solution to traditional housing challenges.” ■

Take your home to the

next level with Lifta SA

Founded in 2007, Lifta SA is the South African subsidiary of Liftstar GmbH, a familyowned German company. With a commitment to innovation and style, Lifta SA has become a leader in the residential lift solutions market. Backed by its German shareholders, the company delivers European-quality engineering and design, complemented by a personalised, proudly South African level of service.

As the exclusive distributor of the award-winning Stiltz Home Lift in Southern Africa, Lifta SA brings cutting-edge lift technology to double-storey homes. Stiltz, a UK-based company, is renowned for its innovative and versatile lift designs.

Duo and Trio Home Lifts

Lifta SA offers two main Home Lift options:

• The Duo: Designed for two passengers, the Duo boasts the smallest footprint in the market at just 0.8m² and has a weight capacity of 170kg.

• The Trio: This wheelchair-friendly product has a footprint of 1.3m² and a weight capacity of 250kg.

A standout feature of these lifts is their ability to be installed retrospectively – perfect for homes that are already built and occupied. Lifta’s expert technicians can complete installation within two days, ensuring minimal disruption to your daily routine.

Unlike traditional lifts, the Home Lift doesn’t require a shaft, motor room, or pit, which significantly reduces construction costs. Powered by a standard 220V residential plug, the lift is energy-efficient and compatible with inverters and solar power.

Versatile placement and use

Thanks to their compact size and lack of structural requirements, Home Lifts can be installed almost anywhere in your home – from braai rooms and bedrooms to entertainment areas and kitchens. These lifts aren’t just practical; they’re versatile. Use them to improve mobility for wheelchair users, transport groceries or pets, or simply as a stylish alternative to a stairlift if stairs are becoming a challenge.

With offices in Johannesburg and Cape Town and representation across South Africa, Lifta SA is well-positioned to meet your residential lift and mobility needs. Join the hundreds of South African families who have trusted Lifta SA to enhance their homes.

Contact us today on 080 737 3737 for a free, noobligation on-site assessment, and let us help you find the perfect location for your Home Lift. ■

Hout Bay’s

new coastal gem

La’Mare presents stylish one- and two-bedroom apartments in Hout Bay, merging luxury with breathtaking mountain and ocean views. Ideally situated near local attractions, this exclusive development will set a new standard for coastal living when completed in 2026.

Project description

Nestled on the serene edges of Hout Bay, La’Mare introduces a new paradigm of coastal living through thoughtfully designed apartments. Located just moments from the harbour and a variety of vibrant local attractions, this exclusive development offers a unique lifestyle opportunity. It captures the essence of a tranquil seaside retreat while being conveniently close to an array of beaches, restaurants and retail experiences.

Supplier list

Developer: Merelava, headquartered in Sandton, Johannesburg, operates across South Africa and internationally.

Architects: LYT Architecture

The Quantity Surveyor & Engineers are still to be appointed for this project.

An exclusive residential offering

La’Mare comprises seven elegant blocks, each housing 12 apartments. The development offers a range of oneand two-bedroom units, including ground-floor garden apartments that provide a peaceful connection to the outdoors. Upper-level apartments boast expansive views of the ocean, blending modern living with the natural beauty of the coast. Perfectly suited to investors, families, empty nesters and retirees, La’Mare provides the ideal setting for those seeking a low-maintenance, high-quality lifestyle. For investors, the projected monthly rentals range from R19 000 to R36 000, making this an appealing opportunity with strong potential returns.

Design inspired by coastal elegance

Sandy, beach-inspired neutrals set the tone for a serene and inviting aesthetic, while wooden accents and stone walls add depth and warmth. This interplay of textures creates a rich visual and tactile experience, evoking the charm of seaside living. The interiors continue this theme, echoing soft, sandy tones while incorporating modern design elements. Premium kitchen specifications, wooden flooring and customisable finishes allow residents to personalise their homes while enjoying contemporary luxury.

Amenities for modern living

Designed with convenience, security and lifestyle in mind, the development offers secure parking, 24-hour security with access control, and pet-friendly policies, making it the perfect home for every member of the family. Additional storage units cater to modern storage needs, while the development’s premium finishes and fittings ensure a high standard of living throughout.

A vision for the future

La’Mare is set for completion in Q3 2026, offering prospective homeowners and investors an opportunity to secure their place in this highly anticipated coastal development. ■

Morning Glen Mall’s

fresh new look

MDS Architecture has transformed Morning Glen Mall in Johannesburg’s Gallo Manor into a vibrant lifestyle destination. The refurbished centre boasts a contemporary design, improved circulation, and enhanced amenities, creating a fresh and inviting shopping experience for the community.

Morning Glen Mall, centrally located in Johannesburg’s Gallo Manor, has been reconfigured and refurbished and now offers a contemporary, convenient shopping experience. The refurbishment was designed by MDS Architecture for SA Corporate Real Estate and completed in two phases.

Strategically located at the corner of Bowling and Kelvin Roads in the upmarket Johannesburg neighbourhood of Gallo Manor, the site benefits from primary access routes and proximity to public transport nodes. Positioned at the top of a hill, Morning Glen offers expansive 360° views, with a particular focus towards the north.

The first phase of the development, completed in 2017, accommodated the relocation of Food Lover’s Market

into the shopping centre and the creation of suitable retail space for hardware specialist Mica. Food Lover’s Market and the relocated Mica serve as anchor tenants on the eastern side of the building and acted as catalysts for further development.

The second phase involved the reconfiguration of the mall and a new entrance accessed via a parkade. This phase introduced an entertainment node with a north-facing viewing deck, new sports and recreation facilities, and significant improvements to vehicular access and flow from Bowling and Kelvin Roads. Shoppers’ vertical circulation was enhanced with the addition of two scenic lifts, connecting the padel courts and basement parking in the new parkade to the restaurants above.

Pierre Lahaye, MDS Architecture’s partner heading the project, says the shopping centre has been repositioned to create a lifestyle destination. The tenant mix and location aim to increase traffic flow and create a more vibrant atmosphere for tenants. The entrances have been reconfigured to make them more inviting to shoppers. The external façades have been upgraded to create a sense of place at this prominent intersection.

Evolution and a family gathering space

“From a design point of view, the centre’s fresh lease of life was achieved by eliminating any crossover between service and public entrances, reconfiguring the parking and ensuring better views to develop a contemporary shopping centre with energy and vibrancy,” says Lahaye.

The parking garage was added to provide ample, convenient parking facilities for over 600 cars, as well as improved lighting and convenience for shoppers who now have direct access to restaurants and lifestyle offerings. With Mica moving from its previous location and another tenant vacating the west wing of the centre, the developers managed to secure several restaurants upstairs such as Blueberry Beacon, a children-friendly restaurant with a play area and covered seating deck, and South Africa’s indoor golf entertainment venue, The Golden Tee, which has culminated in the creation of a unique offering that buzzes on weekends, replete with an adventure area, health and fitness offerings, padel courts, and a culinary market called The Foodies Feast.

Exterior presence

Crisp white translucent cladding and clean lines draw patrons in towards the two covered entrances at Morning Glen, which provide a sense of arrival and welcoming greenery. The signature curve of the building at the entrance to Food Lover’s Market is emphasised by the signage that wraps around the corner using individual letters in the name Morning Glen.

Interior

With the first phase in need of some maintenance, MDS Architecture took the sophistication of the building up a notch. Says Lahaye, “High quality design was an important consideration, as were convenience and flow.” The spaces were softened through the use of clerestory windows, allowing natural light to flow into the interior, as well as the introduction of a contemporary mall floor tiling pattern. The classic monotone colour combination of white with black and grey accents in the interior provides interest and brings together Morning Glen’s visual elements. Bulkheads in organic shapes, as well as lighting and colourful pendants hanging from the ceiling, provide vertical interest, while polished porcelain tiles laid in patterns create interest on the floor. New shopfronts and bulkheads at various levels provide a much more enticing interior space, which is complemented by new mobiles and furniture for a more tactile experience.

“Natural light from clerestory windows complements artificial lighting on the shopfront and ceiling bulkheads. Lighting has been given a lot of attention – inaccessible lights were removed, and additional lighting was added in coves and parking areas to avoid any dark patches,” explains Lahaye.

New escalators were introduced, ensuring both ends of the building are vertically linked for better connectivity and circulation. The escalator opens up views down the mall.

The repositioned Morning Glen Shopping Centre offers a contemporary shopping experience with a new energy and vibrancy. “With a focus on quality finishes and experiences, Morning Glen is an asset in the area,” concludes Lahaye. ■

Time for a touch of nature.

ST40 Feelwood Oakgrain

Looks and feels like oak: Thanks to the new matt-on-matt-finish, the look and feel is realistic and natural. ST40 Eurodekor Faced Chipboards are made using 76 % wood from the circular economy.

» Discover our Decorative Collection 24+: to.egger.link/decorative-collection

All our shown and mentioned decors are reproductions.

The transformation of the

CCB Head Office

AMA Architects’ refurbishment of the CCB Head Office in Sandton blends local identity with international excellence, elevating the existing facility into a modern banking headquarters that sets a new standard for office spaces through innovative design, technology, and refined aesthetics.

Located in the heart of Sandton, the pristine office building stands as a proud representation of a global banking group, embodying both local identity and international excellence.

When the opportunity arose to refurbish this existing facility into a modern and forwardlooking banking headquarters, AMA Architects embraced the challenge, driven by a commitment to architectural innovation, new technologies, and a refinement of the current architectural aesthetics.

Transforming the office space

AMA Architects’ journey with this building began back in 2010, when they designed the building, initially without a specific tenant in mind. Fast forward to 2024, and the client who has graced this location since its inception, set forth on a transformative journey to create a state-ofthe-art facility that reflects its dynamic aspirations.

Meticulous work encompassed a comprehensive overhaul, both internally and externally, thanks to AMA Architects and the professional team, the building’s exterior has undergone a metamorphosis, now adorned with elegant Dekton slabs that redefine its visual narrative. These impressive 3m x 1.2m slabs were thoughtfully affixed to the existing façade, breathing new life into its architectural expression.

An axial entrance, featuring a flush-glazed element that extends from the base to the pinnacle of the roof, symbolises the building’s reimagined identity. The harmonious balance of solid and void within its design evokes a bold and contemporary architectural language, underscored by intricate detailing that includes refined aluminium trim and refurbished window frames. These enhancements culminate in a crisp, commanding presence that resonates throughout Sandton.

As visitors approach, they are greeted by a new porte cochère, which heralds guests’ arrival with its doublevolume door portals at the top of a floating staircase. This entrance creates a sense of anticipation, while a soothing water feature to the left invites guests to embark on a journey within the building’s interior.

Creating a sense of community

The expansive floor plate envelops a dignified atrium, which has been thoughtfully reimagined with new materials and an exquisite acoustic ceiling. A bespoke mobile lighting feature, suspended from a sleek underslung steel structure, adds a touch of sophistication, illuminating the heart of this vibrant space.

Rich timber cladding, soft wall textures, and perimeter LED lighting coalesce to foster an inviting atmosphere, enhancing the office environment’s character. Every facet of this refurbishment has been crafted with care, including the elegantly upgraded restrooms, which feature mirrors, wall panelling, and large-format tiles that exude refinement.

The strategically placed glazing throughout the atrium maintains a dynamic connection between the floors, encouraging vertical engagement and fostering a sense of community. This inherent spatial intelligence nurtures interactions among occupants and visitors alike.

The carefully curated palette of colours and textures exemplifies the ethos of a global banking leader, reflecting a deliberate selection of materials made long before the project's launch. AMA Architects proudly present this refurbishment as a testament to the evolution of office space, demonstrating a renewed purpose that resonates with contemporary work culture.

Ultimately, the legacy of this project will serve as a lasting tribute to the dedicated client's team. ■

3D - South West

BOTSWANA ICON URBANISM

GLENHOVE OFFICES ICONIC ARCHITECTURE

An in-depth look at

thermal zinc diffusion

Thermal zinc diffusion, also known as sherardising or thermal diffusion galvanising (TDG), is a well-established process for applying a protective zinc coating to steel components. Unlike electroplating, which deposits a surface layer, thermal zinc diffusion creates a deeper, more permanent bond between the zinc and the steel through a diffusion process at elevated temperatures.

“This method offers superior corrosion resistance and durability, making it a valuable tool for various industries,” comments International Zinc Association (IZA) Africa Director Simon Norton. A number of South African firms offer zinc thermal diffusion, including Distek in Johannesburg.

The process and benefits of thermal zinc diffusion

At the heart of thermal zinc diffusion lies the concept of diffusion, which allows zinc atoms to penetrate the steel’s surface at elevated temperatures. It creates a zinc-iron alloy layer that becomes an integral part of the steel, offering superior protection against corrosion. Thermal zinc diffusion is used across a variety of industries due to its exceptional corrosion resistance.

In the automotive industry, it protects fasteners, brackets, and other small automotive components from corrosion. In construction, threaded rods, screws, nails, and other hardware benefit from the longlasting protection provided by thermal zinc diffusion. In appliance manufacturing, components exposed to moisture, such as washing machine parts or refrigerator shelves, can be shielded from corrosion through thermal zinc diffusion. Threaded fittings, enclosures, and other electrical components can also be protected from environmental factors using this process. Components

used in harsh offshore environments, such as in the oil and gas industry, benefit from the superior corrosion resistance offered by thermal zinc diffusion.

Application and coating variations

The process begins with thorough cleaning of the steel parts. Any dirt, oil, or contaminants on the surface can hinder the diffusion process, so degreasing, grit blasting, or chemical cleaning is essential.

The cleaned parts are loaded into a tumbling barrel, or a static container filled with a specially formulated zinc powder. The powder plays a crucial role, as its composition can influence the final coating properties.

Zinc powder variations include:

• Zinc dust: The most common type, a fine, grey powder produced by grinding zinc metal. Zinc dust offers a good balance between cost and performance.

• Zinc-aluminium mischmetal powder: A blend of zinc and aluminium. The addition of aluminium can enhance the corrosion resistance of the coating and improve its high-temperature performance.

• Pre-alloyed zinc powders: These powders contain specific elements pre-alloyed with zinc, offering tailored properties for specific applications. For example, adding rare earth elements can further enhance corrosion resistance.

The container is sealed and heated to a temperature range typically between 300°C to 430°C. The specific temperature selected depends on factors like the desired coating thickness and the type of zinc powder used. As the temperature increases, the zinc powder vapourises. These zinc vapours then come into contact with the hot steel surface.

Advantages of thermal zinc diffusion

“Thermal zinc diffusion offers several advantages over other corrosion protection methods,” confirms Norton. The deep, diffused zinc layer offers excellent protection against rust and corrosion, even in harsh environments. This is because the zinc becomes an integral part of the steel, providing long-lasting protection.

The process also ensures a consistent and uniform coating, even on complex-shaped components with intricate details. The tumbling motion in barrels or the rotation of static containers allows for good contact between the zinc vapour and all surfaces of the parts.

As the zinc diffuses into the steel, there is minimal change in component dimensions, unlike electroplating, which can add a layer of material. It makes thermal zinc diffusion ideal for applications where precise tolerances are crucial.

Thermal zinc diffusion eliminates the need for hazardous chemicals like those used in electroplating. The zinc powder is typically the only material consumed in the process, making it a much eco-friendlier option.

The diffused zinc-iron layer is an integral part of the steel substrate, reducing the risk of flaking or peeling, even under harsh conditions. Thermal zinc diffusion coatings can last for decades, depending on the application and environmental conditions. The deep diffusion and excellent adhesion contribute to the longlasting performance of these coatings.

“Thermal zinc diffusion is a highly effective method to protect steel components in a variety of industries,” highlights Norton. “Its ability to provide a deep, durable and environment friendly coating makes it an invaluable technology for ensuring the longevity and performance of critical steel parts,” he concludes. ■

The zinc atoms readily dissolve into the crystal structure of the steel to form a zinc-iron alloy layer on the surface. The depth of this layer depends on the process parameters like temperature and duration. The longer the parts are exposed to the high temperature, the deeper the diffusion, resulting in a thicker and more corrosion-resistant coating.

Once the required diffusion time is over, the container is cooled down. The cooling rate can also influence the final properties of the coating. The parts are removed, including any excess zinc powder. Depending on the application, a post-treatment like a passivation conversion coating or a paint layer might be applied for additional protection or aesthetics.

About the International Zinc Association (IZA)

The IZA is the only global industry association dedicated exclusively to the interests of zinc and its users. Operating internationally and locally in Africa through the IZA Africa Desk, the IZA helps sustain the long-term global demand for zinc and its markets by promoting such key end uses as corrosion protection for steel and zinc as essential in human health and crop nutrition. IZA’s main programmes are Zinc Use Research, Sustainability & Environment, Technology & Market Development and technical Communications.

In South Africa, the IZA plays a vital role in establishing the basis for the successful growth of the zinc industry by increasing awareness of zinc and its applications and benefits in key sectors and markets.

Flooring for the food and beverage industry: From the ground, up

In the food and beverage industry, choosing a flooring system is not just a matter of aesthetics – it also impacts operations and overall facility compliance.

Polyscreed® polyurethane (PU) industrial flooring from Technical Finishes is the ideal solution. It provides benefits that meet the unique demands of this industry. Our range includes polyurethane systems ranging from 2.5 to 4mm self-levelling systems designed for dry process areas, to heavy-duty 9mm polyurethane screeds designed for areas with high traffic volumes requiring ultimate chemical and slip resistance. In addition, we also offer a decorative flake system sealed with a highperformance, UV-stable MMA resin, ideal for applications where durability and fast turnaround are required.

Built-in hygiene technology

Hygiene is of utmost importance in food-processing and preparation spaces. What makes Polyscreed® PU flooring systems superior is the incorporation of silverion technology. This inhibits the growth of bacteria and micro-organisms on the floor’s surface.

This unique additive remains active for the entire lifespan of the floor. Its non-porous finish prevents liquids and food particles from penetrating the surface, making cleaning easier and reducing the risk of potential contamination.

The flooring is Hazard Analysis and Critical Control Points (HACCP)-approved for handling, processing and production areas involving both wet and dry food.

Durability characteristics

Polyscreed® PU flooring systems are engineered to withstand heavy equipment, frequent foot traffic and exposure to chemicals commonly found in industrial settings. Their resistance to abrasion, impact and chemical spills ensures long-term performance.

Additionally, the ability to endure thermal shock and fluctuations in temperature makes these systems wellsuited to environments where temperature variations occur during cleaning processes and operations.

Safety

Polyscreed® PU flooring systems enhance safety in food and beverage environments by offering customisable surface profiles with broadcast aggregates that improve slip resistance.

This significantly reduces the risk of accidents, particularly in areas prone to wet conditions – a crucial consideration for maintaining workplace safety.

Selecting the right flooring system is a pivotal decision for any food and beverage operation. Polyscreed® polyurethane industrial flooring meets and exceeds industry standards, offering unparalleled durability, hygiene and safety benefits.

Technical

and quality backup

Backed by a reputation for quality and commitment, and 35 years in the industry, Technical Finishes ensures peace of mind and operational success from the ground up. We deliver tailored, specialist flooring solutions that prioritise performance and reliability. ■

LONG-LIFE INDUSTRIAL FLOORING

- Superior, tough, durable flooring

Leaders in specialist epoxy and polyurethane flooring for the food and beverage industry.

Our Polyscreed® flooring range has been designed to withstand the most stringent environmental demands commonly found in food and beverage processing facilities. By incorporating silver ion technology, our flooring solutions effectively prevent the growth of microorganisms and bacteria that may come into contact with the floor surface.

Eastern Cape

+27 (0)41 451 3944

InfoEC@saint-gobain.com 13 Hammond Road Sidwell, Port Elizabeth

Where creativity meets

horsepower

A4 Advisory and Consulting’s latest project, the MotorDeal showroom, sets a new standard in design and innovation. This modern, sustainable and aesthetically remarkable space showcases the firm’s dedication to crafting functional and inspiring environments that leave a lasting impression.

A4 Advisory and Consulting successfully completed the MotorDeal showroom in Vereeniging. Tasked with delivering comprehensive design services, A4 served as the principal agent and architect, overseeing the project from conceptualisation to completion. This milestone reflects the firm’s dedication to crafting spaces that are not only functional but also sustainable, modern, and aesthetically remarkable.

A4 Advisory and Consulting

Overcoming challenges through innovation

One of the primary challenges of the MotorDeal project was its dolomitic rock foundation. Rather than opting for costly and disruptive excavation, A4 Advisory and Consulting adopted an innovative solution: raising the site level. This approach addressed both economic and environmental concerns, reducing earthwork costs while minimising disruption to the natural terrain.

By aligning the floor level with the adjacent Old Johannesburg Road, the showroom achieves both functional efficiency and aesthetic appeal, offering seamless views from the freeway. This solution optimised the construction process and reinforced A4’s reputation for creative problem-solving.

Elevating spaces

The architectural vision for the MotorDeal showroom aimed to enhance the brand’s visibility while uplifting the surrounding area. The glass façade serves as a beacon of transparency and openness, blurring the lines between the interior and the external environment. Blue accents energise the space, establishing the showroom as a dynamic landmark.

The design creates a space that is both a building and a statement, reflecting MotorDeal’s commitment to excellence and innovation.

Interior sophistication and practicality Step inside, and the showroom’s interior reveals a blend of sophistication and functionality. The open-plan design features a double-volume layout that enhances the sense of space. Blue LED lighting highlights key architectural features, adding a modern touch that embodies the MotorDeal brand.

Central to the interior is the suspended staircase, a structural and aesthetic masterpiece. The minimalist railings and indoor planter at its base provide a natural counterbalance to the industrial elements, creating a harmonious and inviting environment.

Glass partitions foster transparency and connectivity throughout the interior, allowing for fluid movement and a welcoming atmosphere for customers and staff alike. Every detail, from the polished finishes to the strategic lighting, has been thoughtfully designed to enhance both form and function.

Construction efficiency and sustainability

The choice to use prefabricated elements was a cornerstone of the project’s construction strategy. Precast floors for the mezzanine level allowed for faster assembly, improved quality control, and minimised onsite disruptions. This innovative approach underscored A4’s commitment to efficiency and precision.

The building’s steel frame and trussed roof were optimised for durability and cost-effectiveness, striking a balance between strength and economic feasibility. Brickwork was selected for the external envelope, offering resilience and a timeless sense of permanence, while internal spaces feature extensive

glazing to maximise natural light and create an open, airy environment.

Sustainability was at the forefront of the project. The glazing incorporates a low-emissivity (low-e) layer to enhance energy efficiency by reducing heat transfer. This design choice minimises the building’s reliance on artificial heating and cooling systems, lowering energy consumption.

Additionally, the semi-enclosed external showroom utilises natural ventilation, ensuring occupant comfort while reducing environmental impact. The building’s orientation takes full advantage of northern light, further enhancing its energy performance.

A lasting impression

The MotorDeal showroom represents the pinnacle of modern design and engineering, achieved through innovative solutions, a meticulous design process, and a strong commitment to community engagement. By integrating prefabrication, sustainability, and local involvement, A4 Advisory and Consulting has delivered a showroom that is as functional as it is inspiring.

This project is more than a building; it showcases A4’s ability to envision and execute spaces that leave a lasting impression on businesses and communities alike. ■

DESIGNING FOR TODAY, BUILDING FOR TOMORROW

Transforming visions into reality, A4 Advisory & Consulting is a trusted leader in the built environment. Established in 2015, this 100% Black female-owned, Level 1 B-BBEE professional consultancy firm provides multidisciplinary services across architecture, engineering, urban planning, project management, and more.

From concept to completion, A4 delivers tailored, innovative solutions that meet clients' goals while embracing sustainability, efficiency, and excellence. Its extensive portfolio includes residential, commercial, institutional, and infrastructure projectseach a testament to its commitment to quality and innovation.

Backed by a team of highly skilled professionals, A4 integrates cutting-edge practices and collaborative approaches to design spaces that inspire and endure. Whether managing large-scale urban developments, delivering energy-efficient designs, or navigating complex regulatory requirements, A4 is your partner in building resilient, thriving communities.

Rooted in empowerment and social responsibility, A4 fosters growth through mentorship, community development, and transformative impact on the South African market.

Partner with A4 Advisory & Consulting to bring your projects to life and shape a better tomorrow.

CORE SERVICES:

Project Management

Architecture

Civil/Structural Engineering

Electrical Engineering

Town Planning Services

Quantity Surveying

Consultancy and Advisory Services

CONTACT: +27 (0)87 056 0100

info@a4consulting.co.za

The MotorDeal showroom represents the pinnacle of modern design and engineering achieved through innovative solutions...

www.a4consulting.co.za

Futureproofing infrastructure

with galvanised steel

In South Africa, where ageing waterworks, sewage systems, and railways urgently require upgrades, new and refurbished infrastructure must not only endure for decades but thrive under demanding conditions.

Hot-dip galvanised steel has become central to achieving this. “Galvanising is about more than just corrosion protection,” says Simon Norton, Director of the International Zinc Association (Africa). “It’s about creating infrastructure that stands the test of time, with reduced maintenance, greater resilience, and significant savings for taxpayers.”

Galvanised steel is essential for sustainable development, particularly in coastal areas, where galvanised rebar in concrete resists the corrosive effects of salt and carbonation. Cape Town’s seafacing retaining walls at Clovelly on the False Bay coast demonstrate how galvanised steel rebar performs under extreme conditions.

Bridges and the protection against corrosion

In coastal areas, bridges are exposed to high humidity and chlorides. Galvanised rebar has been successfully used in bridge construction to ensure long-term durability and prevent corrosion-related failures. In Cape Town, all new bridge construction or repairs require the use of hot-dip galvanised rebar in concrete structures.

Luxury apartments along the prestigious Mouille Point, Sea Point and Camps Bay beachfronts in Cape Town have suffered damage to columns and balconies due to the absence of galvanised rebar in the original concrete. “With property prices reaching astronomical levels and owners facing hefty repair costs, all concrete along the East and West Coasts should contain hot-dip galvanised reinforcing steel. Nothing less will suffice,” urges Norton.

Structures exposed to seawater, such as wharfs and docks, are particularly vulnerable to corrosion. Galvanised rebar offers exceptional protection against marine corrosion, extending the service life of these concrete structures.

Environmental resilience and cost efficiency

The sacrificial nature of zinc ensures that galvanised steel rebar in concrete structures withstands the

harshest corrosion environments. By extending the lifespan of infrastructure, galvanising reduces repair costs and disruptions while supporting the circular economy by minimising replacements and the materials consumed in maintenance.

Galvanised steel is not just about addressing current challenges; it is about anticipating future needs. “As we build infrastructure that must last, reduce capital costs, and remain durable for decades, galvanised rebar is indispensable,” concludes Norton. Its role in sustainability, cost-saving, and environmental resilience secures its place in the future of construction. ■

A scenic retreat in the

Paarl-Franschhoek Valley

Winelands Villa, nestled in the Gentleman’s Estate at Val de Vie in the PaarlFranschhoek Valley, offers breathtaking views of the Drakenstein, Simonsberg, and Paarl Rock Mountains. Surrounded by rehabilitated fynbos, this luxurious residence blends Provençal and Cape vernacular architecture, featuring pitched roofs, exposed timber rafters, and a natural material palette of timber cladding, off-shutter concrete, and stone accents against white-plastered walls.

ARRCC, working within the estate’s aesthetic guidelines, transformed the original H-shaped layout into a sophisticated cruciform design of five interlocking squares. The central square houses the living and dining areas, while the outer squares accommodate bedrooms, the kitchen, and utilities. This geometry optimises views, creates sheltered terraces, and integrates the villa seamlessly into its natural surroundings. Floorto-ceiling glass doors slide into pocket walls, blurring the boundaries between indoor and outdoor spaces and creating a pavilion-like ambience. This design also forms green pockets and courtyards around the house, embedding it further into the landscape.

sense of openness while framing the vast surrounding

The villa’s interiors exude understated luxury. The grand, double-volume entrance and lounge feature a highpitched ceiling and clerestory windows, enhancing the sense of openness while framing the vast surrounding scenery. Subtle ceiling height variations balance the proportions, creating intimate, human-scaled spaces within the open-plan layout. At the heart of the lounge

PROJECT

ARRCC Winelands Villa

lies a bespoke, hand-chiselled sandstone fireplace, complemented by natural materials such as timber, screed floors, and raw off-shutter concrete. ARRCC refined rustic elements with modern touches, cladding exposed roof beams in sleek timber and introducing dynamic, asymmetrical ceiling details near the apex.

Entertainment spaces are imbued with a resort-like quality, including a floating island above the pool and a graceful canopy that provides shelter while framing panoramic views. The design emphasises horizontal lines to balance the villa's verticality, achieving harmony with the landscape. The master bedroom’s en-suite bathroom underscores the villa’s connection to nature, featuring a symmetrical layout that centres on a focal point view.

While respecting the estate’s architectural guidelines, Winelands Villa demonstrates ARRCC’s ingenuity in harmonising the client’s lifestyle needs with its environment. This project showcases how stylistic limitations can inspire unique and innovative design solutions.

ARRCC, based in Cape Town, is a globally acclaimed studio specialising in interior architecture, design, and decor. Known for redefining laid-back luxury, ARRCC’s human-centric approach creates exclusive, lifeenhancing spaces that respond to their architecture, context, and environment. With a commitment to sustainable practices, the studio integrates innovative materials, energy-efficient technologies, and community-focused design principles to craft spaces that reflect clients’ visions while contributing positively to the planet.

With a presence in 54 countries across six continents, ARRCC’s portfolio spans leading residential, hospitality, and leisure interiors. The studio’s ceaseless curiosity and commitment to challenging boundaries have earned it numerous accolades, including recognition in the Andrew Martin Interior Design Review and awards for luxury hospitality design. This dedication ensures that each ARRCC project remains a timeless expression of creativity and sophistication. ■

Project details

Project name: Winelands Villa

Location: Cape Town, South Africa

Design teams:

Architecture design: ARRCC and SAOTA

Interior architecture: Michele Rhoda, Leigh Daniels, Maajidah Sait, Stefan Antoni

Interior decor: Salomé Interiors

Site architect: Warren Labuschagne

Key information:

Completion year: 2020

Total built area: 742m²

Photographer: Adam Letch

Copywriter: Graham Wood

Supplier information

The following suppliers contributed to the decor elements of Winelands Villa. While ARRCC designed the architecture (interior and exterior), the interior decor was executed by Salomé Interiors.

Kitchen

Chandelier: Stephen Pikus

Kitchen chairs: Okha

Entertainment space – lounge

Scatter cushions: Incanda

Rug: Paco Rugs

Couches: Leon @ CCXIX

Coffee tables: Il Lusso

Artwork: Galia Gluckman

Dining area

Dining table: Casarredo

Dining chairs: Leon @ CCXIX

Pendant: Stephen Pikus

Rug: Paco Rugs

Outdoor decor – furniture suppliers

Lounge furniture (couches, coffee table, ottomans): Cane

Time (Dedon Furniture)

Pool loungers with triangle

Cushions: Leon @ CCXIX

Lanterns: The Grand Living

Outdoor furniture and lights in the master bedroom

Outdoor coffee table: Weylandts

Light fittings: High Horn

Lanterns: The Grand Living

Playpen

Hanging bench: High Thorn

Side tables: Incanda and Weylandts

Blinds: The Best Blind Company

Windows and doors: JBC

Landscaping design: DDS

Fireplace: SwissFirePlace

Wood suppliers: Franzsenwood

Eliminating the practice of “chasing” for plumbing & electrical

The introduction of NMC marks a significant advancement in the building industry, offering a modern solution to an age-old problem. Traditionally, installing plumbing and electrical services required “chasing” walls – cutting into newly built walls. This practice not only undermines the integrity of the construction but also increases costs.

NMC offers a revolutionary alternative that redefines traditional construction methods. It preserves the structural integrity of walls while streamlining the installation process, saving time, labour, and costs. By adopting NMC, builders and developers can embrace a modern solution that embodies the technological advancements of the twenty-first century.

Chasing in construction creates challenges and drawbacks that significantly impact the built environment and the surrounding ecosystem. Firstly, cutting into walls compromises the structural integrity of brickwork, leading to issues such as hairline cracks. The generation of dust and debris not only poses a health hazard to workers and hampers progress for other trades but also adds an environmental burden due to the disposal of rubble. The high energy consumption associated with chasing exacerbates costs and undermines energy conservation efforts.

Safety is another critical concern, as the operation of dangerous tools like angle grinders increases the risk of accidents on site. Regulations such as the NHBRC limit architectural flexibility and complicate design layouts. Inefficient documentation and poor execution can lead to alignment issues, creating ongoing complications in construction projects.

Chasing was the norm for years, let’s stop it now. The NMC system offers the solution to “chasing” in construction, providing a multitude of benefits. First, it ensures the continuity of brick force on both sides when installed vertically, thanks to its integrated serrated hoop irons. Its rough finish enhances bonding with mortar joints and plaster, strengthening the brickwork since it's made from durable 25MPa concrete with fibre. The system reduces rubble by up to 90%, boosting ecofriendliness and increasing the green footprint. It keeps the work area clean, reducing the need for drying time and minimising dust pollution, which allows trades to commence, saving time and electricity usage by 90%. It also minimises health and safety risks to personnel.

The system provides a solid surface for attaching essential services, offering architects and designers more freedom in layout planning. Thorough documentation during the planning phase ensures benefits are to all trades. Overall, the NMC system is the way forward.

The NMC system is NHBRC-approved, patented, and Agrément-certified, meeting stringent industry standards. Builders can confidently integrate this technology, knowing they are investing in superior quality, cost-efficiency, and safety.

By making use of the NMC system you will save time and money!

No more chase – just build it in!

Contact Person: Francios Janse van Vuuren

Contact Number: 082 495 7513

Pinotage Villas

Devco Group has consistently demonstrated its commitment to creating high-quality, value-enhancing housing solutions in South Africa. Their mission is clear: to design secure, sustainable, and homely environments that meet the needs of all residents within the affordable housing bracket. With Pinotage Villas, this vision has not only become a reality but also a gold standard for future affordable housing developments in the Western Cape.

In the scenic region of Klapmuts, Western Cape, the Pinotage Villas development has become a shining example of what can be achieved in affordable housing. Spearheaded by Devco Group, this pioneering estate has successfully completed the sale of 196 houses, marking it as the first security-focused affordable development in the area – a project that sold out by February 2021. Pinotage Villas stands as a testament to innovative design, sustainability, and community-focused living, making it a jewel in South Africa’s real estate crown.

The visionary behind the development

The development has transformed the landscape of affordable housing, providing individuals and families with the opportunity to purchase their first home, with all costs included in the purchase price. This approach has made homeownership more attainable for many, reflecting Devco’s understanding of the financial challenges faced by South African buyers.

The purchasing price for the Pinotage Villa units was below R1 million, and all commercial banks offered 100% turnkey financing for qualifying buyers.

The project is still managed by one of Devco Group’s affiliates, Surevest Financial Services, which oversees the Homeowners’ Association (HOA).

A prime location for secure and affordable living

Pinotage Villas is strategically located in Klapmuts, nestled between the historic towns of Paarl and Stellenbosch, both renowned for their rich heritage and vibrant wine culture. The estate boasts easy access to major routes, including the R44 and N1 highway, making it a convenient choice for commuters and families alike.

Residents of Pinotage Villas can enjoy a range of nearby amenities. A primary school is located just 200 metres away, while a train station is within a short 900-metre walk. Furthermore, the development’s proximity to local shopping centres and amenities, such as filling stations, ensures that residents have everything they need within easy reach. This careful consideration of location further enhances the development’s appeal to prospective homeowners.

A community-centric estate

Pinotage Villas is more than just a collection of houses; it is a lifestyle estate comprising 197 units, designed with community and security in mind. Although the estate was not initially planned as a gated community, the decision to build a gate was made based on homeowners’ demand. As the first security-focused affordable housing development in the area, it naturally attracts individuals seeking a safe environment to raise their families.

The design etho’s of Pinotage Villas encourages a sense of community, offering shared spaces where residents can engage with one another, fostering connections and relationships that enrich their living experience. This focus on community is a deliberate aspect of Devco Group’s planning and development strategy, emphasising the importance of both physical space and social interaction in creating a thriving neighborhood.

Exceptional features and amenities

Every home in Pinotage Villas is designed with comfort and convenience in mind. The development features two- and three-bedroom houses, with bond registration and transfer costs included in the purchase price. Each home comes equipped with modern amenities that ensure a high quality of living:

• Stove/oven and hob: Essential kitchen appliances that cater to everyday cooking needs.

• Boundary walls: Enhancing privacy and security for all residents.

• Security gates: Installed on both front and back doors for added safety.

• Burglar bars: Providing an extra layer of protection. (Optional)

• Cupboards: Ample storage solutions in kitchens and main bedrooms.

• Landscaping: Front lawns and side garden gates illustrate a commitment to an inviting outdoor environment.

• High-pressure solar geyser system: Promoting energy efficiency and sustainability, aligning with modern living practices while reducing carbon footprints.

The inclusion of these features highlights Devco’s dedication to quality and affordability, ensuring that every resident can enjoy a comfortable home without compromising on modern conveniences.

A deep-rooted connection to winemaking

Pinotage Villas is deeply intertwined with the cultural richness of the Western Cape’s wine region. The development is situated near renowned vineyards, creating an environment ripe for exploration and enjoyment of South Africa’s celebrated Pinotage grape. The opportunity for residents and guests to partake in wine tastings and vineyard tours enhances their connection to the region’s heritage.

Making a lasting impact on the community

By successfully completing the Pinotage Villas project, Devco Group has set a new standard in South Africa’s housing market. Their approach to affordable and secure housing has proven to be not only feasible but immensely beneficial for the community. The soldout status of the development serves as a powerful indicator of demand for similar projects, inspiring other developers to follow suit.

In conclusion, Pinotage Villas not only exemplifies a successful affordable housing project but also serves as an inspiration for future developments in the region, reinforcing the belief that innovative solutions in housing can lead to thriving communities. Through ongoing commitment and visionary planning, the Devco Group is ensuring that affordable housing remains a viable solution for many South Africans seeking a better quality of life. ■

A totally unique residence in

Sandhurst, Sandton

This home for a multi-generational family breaks the mould for luxury homes with a skull in the pool and an abstract roofline.

In the world of architecture, the boundaries of what a family home can be are constantly being pushed. A striking example of this is a modern, angular multi-family home clad in perforated metal panels.

Designed by Werner van der Meulen of Nico van der Meulen Architects for a couple with two adult children and their families, the home serves as a multi-generational compound.

This distinctive property, situated in Sandhurst, Sandton, on 6 000m2 (66 000ft2) of land, the 3 200m2. (35 000ft2) home is enveloped by large, ancient trees, and sets a new standard in luxury boutique residential living by blending artistic, abstract, sculptural design with practical living space and modern amenities, making it a standout in any neighbourhood.

Unlike traditional residential designs, this extraordinary architectural apartment concept features a shared

basement and ground level housing a protected portecochère, entertainment spaces, a barbecue area with an outdoor pool, a commercial kitchen, and a dining area suitable for large-scale catering, a large gymnasium, an indoor swimming pool, parking for 12 vehicles, as well as a private theatre accommodating 18 guests, complete with an entertainment area and bar.

The outdoor pool features a scull in the floor, created with mosaic next to a water feature and open-air firepit.

The upper two floors consist of three private apartments for the owners and their two children’s families: each apartment features a spacious living room with an open-plan kitchen, dining room, study, and four suites.

The northern elevations on all three floors are entirely glazed, offering a unique and breathtaking treehouse experience while bringing in natural light and providing a sense of warmth and grandeur within the home.

Being in the southern hemisphere facing the building north allows winter sun into the house, while the roof overhangs screen the glass from the summer sun.

The use of black aluminium panels on the exterior of the home not only provides an aesthetic appeal and a touch of sophistication but also serves a functional purpose, shading/insulating and protecting the home from harsh weather elements, making it a durable and low-maintenance option.

In conclusion, this modern, angular home constructed in steel, concrete and glass, clad in aluminium panels over a structural steel frame, is a stunning example of how architecture can push the boundaries of what a home can be.

Its unique design and functional features make it not only aesthetically pleasing but also energy-efficient and sustainable, setting a new standard in luxurious residential living. ■

LCP Solar

LCP Solar delivers seamless power

for complex needs

LCP Solar completed a solar PV installation for a 24/7 multifunctional property, overcoming challenges with innovative design and expert execution to deliver a high-performance solution aligned with the client’s sustainability goals.

Our brief was to design, supply, and install a solar PV system to supplement the client’s power usage from the grid. The client required a grid-tied solution that included a backup system.

The site operates 24 hours a day and accommodates a veterinary clinic, offices, a restaurant, and luxury apartments. The client was highly specific about their requirements, having already conducted budgetary calculations based on previous projects commissioned for other properties within their group.

From the outset, utilising the rooftops posed a significant challenge, as only one surface was suitable for a large array. An alternative ground-mounted solution in the front parking area was dismissed at the first site meeting, as the client wished to preserve the professional, clean, and upmarket appearance of the property. After several iterations of the layout, it was agreed to maximise the use of all available roof surfaces.

Although the structural integrity of the roof was a concern, it did not present a significant technical challenge. As experts in the field, we performed the necessary remedial work to ensure that the roof could safely support the installation.

A query regarding fire regulations was raised, leading to an investigation with a fire consultant. It was confirmed that PV modules do not fall within the definition of combustible products, and batteries are not specifically mentioned in the regulations. As a result, fire suppression was therefore not required in the inverter room.

Administrative and procurement challenges

Small-scale embedded generation (SSEG) registration in South Africa remains challenging. While 44% of municipalities officially accept SSEG applications as of 2024, only 17% are registered on the SSEG portal. Although the municipal power company servicing the property is listed on the portal, no official was aware of its existence. Obtaining paper-based application forms from the local authority proved difficult, highlighting the administrative hurdles faced by PV solution providers.

Procurement delays also posed challenges. A critical 2400A DC switch, ordered early in the project due to a four-to-six-week lead time, was not ordered by the supplier as promised. This caused significant frustration but was resolved by air-freighting the unit in time to avoid delays in the council switchover date.

Unplanned site challenges also arose. During trenching for new cables, a worker accidentally damaged the main supply cable. The repair, undertaken after hours, incurred additional unforeseen costs.

System design and implementation

The initial system design proposed a 99.00kWp installation with 180 PV modules (550Wp each) facing north. This was later revised to accommodate additional roof surfaces, increasing the system to 216 modules. The

client approved the variation, as the additional cost was minimal.

To maximise roof surface utilisation, varying numbers of modules were planned, which required 24 MPPTs in total. Stringing on roof surfaces resulted in the Voc of the modules to exceed the allowed MPPT limits. The issue was resolved by selecting modules with lower open circuit voltage (Voc) and higher short circuit current (Isc), alongside an optimised cable plan to mitigate rising copper costs.

The final layouts were approved, with some modules installed in a landscape orientation due to space constraints near the inverter location.

Installation and completion

The inverter and battery room were repurposed from a converted storeroom. A detailed construction programme was prepared, including lead times and interdependent activities. After five layout revisions, the most efficient solution was finalised in collaboration with the client.

The switchover day began at 6am, with the property disconnected from the grid at 8am. Final connections were completed by 9pm, although troubleshooting on the external anti-islanding relay delayed the switchover back to the grid until 11.30pm.

The Certificate of Compliance (CoC) and its test report required substantial effort, especially after the withdrawal of SANS 10142-1-2, which was initially introduced to expand on the SANS 10142-1 standard for low-voltage electrical systems and included a test report for PV systems. However, due to issues with the standard, it was withdrawn shortly after its release. This left the industry without an official PV test report, and many companies resorted to creating their own.

Before this project, LCP Solar developed a comprehensive PV test report from scratch, investing over 100 hours refining and expanding it. This report is now used on our projects and will serve as a reference for future inspections. As a result, we are recognised as an authority on this subject.

For safety and quality reasons, the property’s main kiosk supply breakers and secondary distribution board, initially out of scope, were rewired, and new switchgear was installed.

Equipment installed

• Longi 575Wp Modules – 124kWp

• Victron Quattro 90kVA DC-coupled inverters

• Fronius 40kW AC-coupled inverters

• Victron RS450/200 charge controllers

• Victron Ekrano GX device

• Ziehl voltage and frequency relay for anti-islanding applications

• SolarMD LiFePO4 rack-mounted storage battery – 172.80kWh

• Solar MD Logger V2

• ABB Energy Meter

• Telergon DC Isolator Switch – 2400A

• RUUVI temperature and humidity sensors

• Sonoff independent temperature monitoring system

• Sinclair 48,000BTU ceiling-mounted air conditioner

Design

areas included:

• Irradiance calculations

• Module layout design

• Inverter room layout design

• Design of inverter and charge controller mounting framework

• AC and DC electrical design and calculations

• AC main cable design

Our company mission:

• We will offer the most compelling value in the renewable energy industry

• Our offerings will be driven by solid professional assessments and advice.

• By using the best tools and equipment, our customers will rest assured that we care about their investment.

• Aim to exceed industry standards thereby ensuring that reliability and safety of systems are paramount.

• To develop our employees to be proud of their work and focus on service and quality.

Our core values:

• LCP Solar is to be known as an authority on PV systems

• Being an authority means that we will consistently develop our knowledge and competency.

• The outcome of our knowledge and competency is that we will be efficient and dependable

• With efficiency and dependability comes growth and success

• Successful people have a high level of accountability, responsibility and self respect

• Finally, the continuing theme in our group means that we will not promote, allow or tolerate unprofessional, dishonest or unethical behaviour from either our management, staff, clients, suppliers or subcontractors.

Project outcome

The project was a resounding success, completed on time and within budget. The system is achieving exceptional efficiencies, and the client’s goals for sustainability and energy security have been met. ■

DRIVE Sunbird

A coastal oasis in Langebaan along the Cape’s West Coast

Set against the stunning backdrop of Langebaan, Sunbird Drive is a contemporary architectural sanctuary, blending tranquillity, transparency, and natural beauty. It complements the client’s lifestyle while showcasing sustainable innovation and refined design.

The vision behind sunbird drive

The initial concept for Sunbird Drive was guided by the spectacular views offered by its prominent location. Perched high above Langebaan’s picturesque landscape, the site demanded a design that would amplify its connection to the outdoors while providing a serene retreat for the owners.

From the outset, the focus was on creating an architectural language that exudes simplicity and elegance. This vision was manifested in the interplay of clean, white, horizontal floor plates and bold timber elements, a combination that frames the views while anchoring the design in its natural context. Transparency was another key consideration, with the use of expansive glass ensuring an uninterrupted flow of light and a continuous visual dialogue with the surrounding environment.

Design philosophy and intent

Sunbird Drive’s design philosophy is rooted in balance and harmony. The horizontal planes form the core of the architectural composition, creating a sense of stability and grounding. These planes extend outward, visually and physically drawing the eye toward the horizon. Timber elements provide a warm contrast, introducing texture and natural tones that soften the overall aesthetic.

The house was designed to accommodate the client’s lifestyle, featuring an expansive outdoor living area that acts as an extension of the indoor spaces, offering the perfect setting for both intimate gatherings and largescale entertainment. This integration of indoor and outdoor living reflects a broader trend in contemporary architecture, where the boundaries between the two are intentionally blurred.

The design process

The journey to bring Sunbird Drive to life was a collaboration of local expertise and craftsmanship, resulting in a building that is deeply rooted in its surroundings – a testament to our commitment to environmentally sensitive and sustainable design. The design process began with a detailed analysis of the site, focusing on factors such as topography, prevailing winds, and sun orientation. These considerations informed the positioning and layout of the house, ensuring that every space maximised the views and natural light.

The design team approached each element of the project with meticulous attention to detail. The floor plates and timber screens were carefully calibrated to create uninterrupted sightlines while providing sufficient overhangs for both privacy and shading, thereby enhancing comfort while maintaining a sense of openness. This reflects BOSS Architects’ dedication to creating structures that honour and enhance their natural surroundings.

Architectural features and materials

Sunbird Drive’s architecture is characterised by its minimalist lines and understated elegance. The structure is anchored by horizontal planes that appear to float effortlessly, creating an impression of lightness. These planes are juxtaposed with vertical timber cladding, which adds depth and a tactile quality to the design.

The material palette was carefully chosen to complement the natural surroundings. White render was selected for its purity and timelessness, providing a neutral canvas that enhances the visual impact of the lagoon views. Locally sourced and sustainably harvested timber was chosen for its warmth and durability. Glass plays a pivotal role, with floor-to-ceiling panels creating a seamless connection between the indoor and outdoor spaces.

The attention to detail extends to the interiors, where natural materials and neutral tones create a calm, inviting atmosphere. The open-plan layout encourages fluid movement between spaces, while carefully positioned furniture and decor enhance the sense of tranquillity.

The outdoor living experience

One of Sunbird Drive’s standout features is its expansive outdoor living area, which serves as a dynamic extension of the indoor living spaces. Complete with lounge seating, a dining area, and a state-of-the-art outdoor kitchen and braai, this area offers the perfect setting for relaxation and entertainment.

A sleek infinity-edge pool reflects the sky and lagoon, creating a visual connection between the built and

natural environments. At night, integrated lighting transforms the outdoor area into a magical setting, ideal for hosting gatherings under the stars.

The landscaping around the outdoor spaces was designed to be both low-maintenance and complementary to the local environment. Indigenous plants were carefully selected to blend seamlessly with the natural surroundings, further enhancing the house's connection to its context.

Sustainability and innovation

Sustainability was a key consideration throughout the project. The design incorporates passive cooling and heating strategies, such as cross-ventilation and shading, to reduce energy consumption. The extensive use of glass ensures maximum natural light, minimising the need for artificial lighting during the day.

Materials were selected for their environmental credentials, with an emphasis on durability and local sourcing. The incorporation of rainwater harvesting, solar panels, and energy-efficient appliances further enhances the house’s eco-friendly credentials, ensuring it aligns with the principles of sustainable living.

The innovative use of materials and space also reflects the team’s commitment to pushing the boundaries of design. For instance, the timber screens are not only functional but also sculptural, adding an artistic dimension to the architecture. Similarly, the integration of technology, including automated blinds and smart home systems, enhances convenience and efficiency.

Photography and presentation

The essence of Sunbird Drive has been beautifully captured through the lens of photographer Jacques van Schalkwyk. His work highlights the interplay of light and shadow, the relationship between the built and natural environments, and the house’s sculptural quality.

These images not only document the project but also serve as a powerful testament to the team’s vision and craftsmanship. They reveal the thoughtfulness behind every detail, from the precision of the architectural lines to the careful curation of textures and finishes.

A legacy of contemporary elegance

With its minimalist design, exceptional attention to detail, and seamless integration with its environment, Sunbird Drive sets a new standard for residential architecture in Langebaan. This house not only fulfils the practical needs of its occupants but also elevates their everyday experience, offering a tranquil oasis that celebrates the beauty of nature.

As a case study in modern coastal living, Sunbird Drive demonstrates how thoughtful design can transform a site into a sanctuary, showcasing the power of architecture to inspire, connect, and create a lasting legacy. ■

Duroplastic Technologies

Duroplastic Technologies

elevates Woodlands Lifestyle Centre

Duroplastic Technologies proudly contributed to the Woodlands Lifestyle Centre project by providing innovative, lightweight Multiwall sheeting solutions for the canopy and walkway roofing, ensuring a balance of natural light and weather protection.

This project began in the initial design phase where the client and the professional specifying team sought a lightweight solution for canopy and walkway roofing that would still allow natural light to filter through. Given the anchor tenant's requirements and the inclusion of a large double-volume restaurant area, it was decided to use Multiwall sheeting in both 10mm and 16mm, with commercial glazing bars in areas where over-purlin application was necessary.

The 16mm polycarbonate Clickloc sheeting was used for both roofing and vertical façade cladding at the restaurant, providing a well-lit atmosphere while protecting patrons and clients from inclement weather. Meanwhile, the covered walkways, which protected the shopping centre's shopfronts, were clad in 10mm Multiwall, resulting in an elegant yet practical thermal barrier and roofing solution that satisfied both the professional team and the client.

Duro would like to take this opportunity to congratulate Jakupa Architects and Emcon Construction on another successful project. ■

Main contractor: Emcon Construction

Material: Multiwall 16mm, 10mm

Contact details: Libra Close, Brackenfell South, 7560 (+27) 21 981 1440 www.duro.co.za

Architect: Jakupa Architects, Cape Town

DUROPLASTIC IS A LEADING MANUFACTURER AND DISTRIBUTOR OF FIBREGLASS AND POLYCARBONATE SHEETING, CATERING TO THE NEEDS OF THE RETAIL AND CONSTRUCTION INDUSTRIES. WITH A STRONG PRESENCE ACROSS A WIDE RANGE OF SECTORS, THE COMPANY’S HEADQUARTERS AND MANUFACTURING FACILITIES ARE LOCATED IN BRACKENFELL, WESTERN CAPE. IT ALSO HAS DISTRIBUTION BRANCHES IN JOHANNESBURG, GEORGE, DURBAN, AND PORT ELIZABETH. THIS EXTENSIVE DISTRIBUTION NETWORK ENABLES US TO PROVIDE NATIONWIDE SERVICES AND DELIVERIES, AS WELL AS HANDLE ALL AFRICAN EXPORT ENQUIRIES.

Standard Bank’s bold office makeover

The refurbishment and alteration of Standard Bank’s head office in Msunduzi, Pietermaritzburg, brings a fresh, dynamic blend of modern design, cutting-edge technology, and functionality, inspiring collaboration and innovation.

Client meeting rooms and boardrooms

Recognising the importance of client engagement, the design incorporates a range of client meeting rooms and boardrooms, each equipped with the latest audio-visual and video conferencing (AV/VC) technology. These rooms are designed with a high degree of professionalism and comfort, ensuring meetings are conducted in an efficient and impressive setting. Each space features high-tech booking systems, streamlining scheduling and enhancing user experience. The integration of advanced technology also provides clients with an interactive and seamless meeting experience, further positioning Standard Bank as a leader in the financial sector.

The open-plan canteen: a place for relaxation and connectivity

The canteen area has been reimagined as an open-plan space that promotes both relaxation and connectivity. This vibrant area serves as a social hub for employees, offering them a break from their work routine while fostering a

sense of community. The design incorporates modern furnishings and ample seating, ensuring employees can recharge in a comfortable and inviting atmosphere. The canteen also provides opportunities for informal meetings and networking, further enhancing the collaborative environment within the office.

Wealth and investment area

A dedicated section of the office has been set aside for the wealth and investment team, providing an exclusive and sophisticated environment tailored to the needs of high-net-worth clients. The design of this area focuses on creating a sense of privacy and security, ensuring sensitive financial discussions take place in an atmosphere of trust. The aesthetic combines luxurious finishes with a sleek, modern design, reflecting the premium services offered by the bank.

Design aesthetic

A key design element that ties the office together is the use of Standard Bank’s signature blue as a dominant accent colour. This distinctive shade not only reinforces the bank’s brand identity but also creates a calming

and professional environment throughout the space. The blue accents are contrasted against warm timber finishes, adding a natural, inviting touch to the office. These materials work in harmony with the modern finishes, providing a balanced and contemporary feel that aligns with the bank’s commitment to innovation and quality.

The refurbishment and alteration of Standard Bank’s head office in Msunduzi represents a significant investment in the future of the workspace. By blending modern design, state-of-the-art technology, and a focus on employee and client needs, the project delivers an environment that is both functional and aesthetically appealing. The incorporation of Standard Bank’s blue accents and timber finishes ensures the space reflects the bank’s core values while enhancing the overall work experience. This innovative redesign sets the stage for a new era of banking in Pietermaritzburg, where collaboration, efficiency, and luxury converge to create a truly exceptional office environment. ■

Project name: SBSA Msunduzi Office Revamp

Project description: Upgrade and Refurbishment

Location: First Floor, 31 Chatterton Road, Msunduzi

Office Park, Standard Bank Building on ERF 9147

Town Hill, Pietermaritzburg.

Project Phase 2 Size: 855m²

SBSA Project Manager: Oliver Carey

Contractor: TKDS

Golf Estate & Spa Copperleaf

Devco Group's innovative development of the first Ernie Els Golf Estate in Gauteng exemplifies their commitment to luxury and excellence, setting a new benchmark for golf estate living in South Africa.

Devco Group has set a precedent for successful luxury golf estates, most notably through the transformation of the Ernie Els Golf Estate, formerly known as Gardener Ross Golf & Country Estate.

In the luxury industry of real estate and golf course development, few names are as esteemed as Devco Group. Their visionary approach and unwavering commitment to excellence have left an indelible mark on South Africa’s landscape, particularly through their pivotal role in the creation of the first Ernie Els Golf Estate in Gauteng.This landmark project, which began as Gardener Ross Golf & Country Estate in June 2003 and later evolved into the prestigious Copperleaf Golf Estate & Spa, stands as a testament to their expertise and innovative spirit.

There is a fascinating story behind the group’s acquisition of the land and securing the rights for the 18-hole golf course. Interestingly, Devco Group discovered that Ernie Els’s grandfather had actually resided on this specific piece of land in the 1910s. As we often say in South Africa, what a small world! Devco Group had the opportunity to meet with Ernie Els’s grandfather for an interview in Herolds Bay, where he lived during the 2000s.

From the very inception of this ambitious venture, the team at Devco demonstrated their comprehensive capabilities. Their involvement extended beyond land acquisition, as they successfully negotiated and executed the agreement with golfing legend Ernie Els, setting the stage for what would become one of Gauteng’s most celebrated golf destinations.

Image credit: Mark Sampson

Devco Group, as development managers, orchestrated the transformation of vacant land into a fully serviced site, culminating in a world-class golf course designed by Ernie Els himself. Their meticulous attention to detail and commitment to quality earned significant recognition, with the golf course receiving the prestigious “Best New Golf Course in Gauteng” award in 2008 – a clear validation of their vision and execution.

The scale of the project was impressive, encompassing 1 131 plots and paving the way for the later addition of the Els Club, which was renamed Copperleaf Golf Estate, complete with a clubhouse and spa. Devco Group’s multifaceted role as development manager, financial advisor, and marketing strategist was instrumental in steering the project toward success during its critical formative years, from 2003 to 2008.

What sets this development apart is not just its scale or amenities, but the deep personal connection it holds for Ernie Els. The 690-hectare estate is situated on the very land where Els’s grandfather, Ernie Vermaak, spent his formative years around 1918. This poignant family history enriches the project, making it more than just another luxury development – it’s a tribute to legacy and family heritage.

The golf course is a masterpiece, seamlessly blending with the natural topography of the area. Wide fairways wind through grasslands and rocky outcrops, while water hazards and strategically placed bunkers challenge golfers of all skill levels. This integration of world-class facilities with the raw beauty of the South African landscape exemplifies Devco Group’s approach to development.

Beyond the golf course, Devco Group’s vision extended to creating a comprehensive lifestyle destination. The estate’s location – just 12 km from Fourways, 20 km from Centurion, and 22 km from Midrand – offers residents an ideal balance of accessibility and seclusion. Once inside the high-security gates, the bustle of city life fades away, replaced by the tranquility of country living.

The success of this project underscores Devco Group’s ability to exceed expectations in the highly competitive

field of luxury real estate. Their holistic approach, combining financial acumen, marketing expertise, and a deep understanding of what discerning buyers seek in a luxury estate, has set a new standard in the industry.

While Devco Group’s direct involvement with the project concluded in 2009, the foundation they laid has allowed the estate to flourish and evolve. The subsequent rebranding to Copperleaf Golf Estate & Spa, and the construction of the Ernie Els Clubhouse under Investec’s stewardship, are testaments to the groundwork Devco Group established.

The Els Club at Copperleaf stands today as a shining example of modern design principles. Its exceptional facilities offer golfers and residents a place to relax, unwind, and enjoy the fruits of Devco Group’s labour. The five-star golfing experience promised by the Els Club is the product of the meticulous planning and execution that characterised their involvement from the outset.

A key element in the success of Copperleaf’s golf course was the collaborative effort between renowned golf course architect Greg Letsche and Ernie Els. In 2003, Letsche brought his expertise to the project, working closely with Els to create a course that challenges and delights players of all skill levels. Letsche’s ability to interpret Els’s vision and translate it into a practical, playable design was instrumental in crafting a course that seamlessly integrates with the natural landscape while offering an exceptional golfing experience. This partnership resulted in a golf course that meets the highest standards of design and playability, capturing the essence of Els’s golfing philosophy. The success of this collaboration is evident in every carefully crafted hole, strategic bunker placement, and thoughtfully designed green, making this course a testament to the power of combining architectural expertise with professional insight.

Reflecting on this project, it's clear that Devco Group’s contribution extends far beyond the physical development of the estate. Devco Group has created a legacy – a place where families can build homes, where golf enthusiasts can pursue their passion, and where the natural beauty of Gauteng is preserved and celebrated.

The success of this project serves as a blueprint for future luxury developments, highlighting the importance of visionary planning, respect for the environment, and a commitment to creating lasting value. Devco Group’s ability to navigate the complex challenges of large-scale development while focusing on quality and sustainability has set us apart as pioneers in the field. ■

Gardener Ross: Ernie Els opening course

A sanctuary on the shores of Yzerfontein West Coast Retreat:

Nestled on the rugged and dramatic beachfront of Yzerfontein in the Cape, the West Coast Retreat is an architectural transformation that marries the untamed beauty of its surroundings with refined design. This renovation and alteration project is an ode to the natural world, creating a haven that optimises ocean views, embraces natural light, and withstands the challenges posed by its unique coastal location.

Concept and vision

The vision for the West Coast Retreat was to create a space where the architecture would not only reflect the raw beauty of the coastline but also provide a warm and elegant sanctuary from the elements. The goal was to design a home that felt effortlessly integrated into its environment – both aesthetically and functionally – while offering its occupants a sense of comfort and tranquillity.

Inspired by the organic flow of nature, the design concept focused on subtle curves and a warm, tactile material palette. These elements come together to create a cohesive narrative: one of resilience and harmony, a space where the interplay between light, shadow, and texture is celebrated.

Design process

The design process began with a thorough analysis of the site, paying particular attention to its orientation, natural light and durability. The robust West Coast is known for its powerful winds and breathtaking vistas, and the design had to address both the challenges and opportunities presented by these factors.

To achieve this, the team employed strategies that optimised views while ensuring the home remained a protected sanctuary. Key architectural elements, such as the frameless glass bay windows and curved walls, were introduced to connect the home with the surrounding landscape while creating sheltered, intimate spaces.

Material selection played a crucial role in the design process. Warm timber, soft lighting, and a palette of elegant, muted tones were chosen to create a cosy yet sophisticated atmosphere. Contrasting textures and finishes were used strategically to evoke tension and intrigue, particularly at the entrance.

Unique features

The frameless glass bay window

One of the standout features of this renovation is the frameless glass bay window in the main living area. This design choice creates a seamless connection between the interior and the stunning ocean views. Acting as a “picture frame” for the natural scenery, the bay window invites the beauty of the coastline into the home while maintaining a sense of protection from the elements.

Main bedroom innovations

In the main bedroom, fixed frameless glass windows were introduced to provide uninterrupted views of the ocean without the visual clutter of mullions. This design choice not only enhances the connection to the outdoors but also offers a clever solution to the persistent ocean breeze, ensuring the room remains comfortable and tranquil.

Curved architectural elements

Curved walls are a recurring motif throughout the design, guiding occupants through the home with a fluidity that echoes the natural flow of the coastline. These curves are not only aesthetic but also functional,

helping to create sheltered spaces that feel intimate and inviting. The curved walls lead from the entrance into a central courtyard, past the pool and landscaping, and through a double-volume foyer that frames the ocean beyond.

The curvilinear theme extends to the roof slab cutouts, which mirror the organic shapes found in nature.

Entrance and threshold

Soldier-stacked tiles with a light vertical texture adorn the curved entrance wall, juxtaposed against the clean horizontal lines of dark aluminium panels on the flush garage door. This interplay of textures and forms creates a sense of tension and anticipation, setting the stage for the light-filled spaces that unfold beyond the threshold.

On the ocean-facing lower level, black glass was used as wall cladding to address a unique challenge: the invasive algae that tend to grow on textured surfaces in this coastal environment. The smooth, reflective surface not only solves this problem but also adds a sleek, modern aesthetic to the home’s exterior.

Central fireplace and interior warmth

At the heart of the home lies a doublesided wood-burning fireplace, a feature that embodies warmth and comfort. This central element connects the main living spaces while providing a sense of cosiness, especially on chilly coastal evenings.

The outdoor spaces were designed to complement the architecture and enhance the experience of the natural surroundings. The central courtyard serves as a sheltered haven, complete with a pool, jacuzzi and braai area surrounded by curated landscaping. These elements work together to create a flow between indoor and outdoor living spaces, inviting occupants to immerse themselves in the beauty of the West Coast.

Sustainability and sensitivity

The design prioritises sustainability and environmental sensitivity, with features that minimise the home’s impact on its surroundings. By using durable, lowmaintenance materials and innovative solutions like solar power and double glazing to protect against the elements, the project ensures longevity and harmony with the environment.

A celebration of place

The West Coast Retreat is more than just a renovation; it’s a celebration of its breathtaking surroundings. Every design choice, from the sweeping curves to the natural materials, honours the rugged beauty of the coastline. It’s a space that invites its occupants to disconnect from the world and reconnect with nature.

This project proves the power of architecture to shape how we experience a place. It blends practicality, design, and environmental respect into a seamless whole. Here, the rhythm of the ocean and the flow of the space come together, offering a tranquil escape that feels at one with its setting. ■

Comfort Redefined:

The Nautica Shopping Centre Project with Fourways Group

Situated in the heart of the beautiful coastal town of Langebaan, the Nautica Shopping Centre is evidence of the beauty of modern convenience set against the backdrop of the peaceful and beautiful West Coast. Langebaan’s picturesque lagoon and the bustling life of the West Coast National Park provide a natural spectacle. They are complemented by a comprehensive retail complex, with Nautica Shopping Centre a pivotal part of this offering.

In July 2023, Fourways Group partnered with visionary minds to embark on a transformative journey at the Nautica Shopping Centre. We were thrilled to be part of a project that shared our vision of redefining comfort through innovative air conditioning solutions. Recognising the pivotal role of indoor climate control in shaping customer experiences, we embraced the opportunity to contribute our expertise toward realising this ambitious vision. Nautica Shopping Centre was the perfect canvas for creating a welcoming, comfortable, and sustainable environment.

Fourways, accredited distributor of leading air conditioners Samsung and Alliance, played a crucial role in providing the cutting-edge units that formed the backbone of the Nautica Shopping Centre’s climate control system. With a reputation for excellence, Fourways Group’s involvement underscored a commitment to delivering top-of-the-line solutions, prioritising performance, reliability, and sustainability.

The state-of-the-art Alliance Rooftop and Air curtain units and Samsung ducted and windfree cassette

units were central to the Nautica Shopping Centre’s climate control strategy. Chosen meticulously to optimise efficiency, comfort, and sustainability, they were strategically positioned to create a welcoming environment conducive to prolonged stays.

Alliance Air Curtain Units, renowned for maintaining temperature control and energy efficiency, do exactly as the name implies and create an invisible barrier or curtain of high-velocity air, preventing the exchange of air between different environments. These units prevent the exchange of air between indoor and outdoor environments, which is particularly useful in spaces like shopping centres, restaurants, and warehouses, where doors are frequently opened. In winter, they keep warm air inside and cold air outside and conversely in summer prevent hot air from entering and keep the cool, conditioned air inside. This means not only contributing to cost efficiencies but also improving air quality. The Alliance air curtains feature remote-controlled operation and advanced airflow management, which seamlessly integrate into retail spaces, ensuring a pleasant shopping

Nautica Shopping Centre in the beautiful coastal town of Langebaan
Samsung outdoor condensers seamlessly installed by Airvent Airconditioning & Ventilation Cape

experience for patrons while reducing operational costs for businesses.

The Alliance Rooftop Non-Inverter unit complements these units – a technological marvel designed to meet the diverse heating, cooling, and air treatment needs of large-scale commercial spaces up to 2 467m2 in moderate climate areas. Its centralised approach to climate control ensures uniform temperature distribution and enhances indoor air quality, creating an environment that promotes well-being and productivity. Engineered for versatility, they can be installed on rooftops or outdoor grounds, ideally suited for expansive sites such as the Nautica Shopping Centre. Their distinguishing feature lies in their ability to obviate the need for additional cooling infrastructure, such as cooling towers, cooling water pumps, chilled water pipes, and chilled water pumps. This characteristic renders them particularly advantageous for waterstressed areas, which the Western Cape is known for.

The Samsung units designed to meet various cooling requirements include the Samsung DVM S unit, renowned for its versatility in large commercial and industrial environments, system combinations, and control options. In addition, ducted units offer efficient and discreet cooling solutions, while the Mini and 4-Way Windfree Cassettes are all engineered to cool rapidly without direct airflow, ensuring comfort while minimising energy consumption. Finally, the Samsung AR4500 Inverter Midwalls boast advanced features such as Digital Inverter technology for up to 70% energy savings, a Hidden Temperature Display for seamless integration, and functions like Auto Mode, Timer Function, and Fast Cooling mode, providing tailored and efficient cooling and heating solutions for shoppers.

As we celebrate the successful completion of the Nautica Shopping Centre project, Fourways extends our sincere appreciation to the key contributors. ESB Construction & Building’s unwavering commitment paved the way for this transformative initiative, while Airvent Airconditioning & Ventilation Cape’s technical proficiency ensured seamless installation and optimal performance of all the HVAC

units. Riccardo Scarpiline, the Building Owner, demonstrated outstanding leadership, bringing our shared vision to life and setting new standards for comfort and sustainability. Smith Architects’ innovative designs blended form and function, creating an aesthetically pleasing and functional space for its patrons. Each partner brought unique expertise, creating a synergy essential to the project’s success.

Together with our esteemed partners, we have realised a shared vision and continue to strive to set benchmarks for excellence in retail design. Fourways remains committed to pushing what is possible in air conditioning technology. Our goal is to continue developing solutions that enhance comfort and efficiency and contribute to a more sustainable future. The success of the Nautica Shopping Centre project is a powerful reminder of the impact that innovative technology and strong partnerships can have, and we are excited to build on this momentum in all our HVAC projects. Fourways is proud to have played a part in this transformation, and we look forward to continuing our mission of redefining comfort through cuttingedge air conditioning solutions. ■

Alliance air curtains installed in the Spar retail store creating a barrier between indoor and outdoor environments
The Alliance Non-Inverter Rooftop unit installed on the shopping centre rooftop obviating the need for water cooling towers
Whether suspended from or flush against the ceiling the Samsung windfree 4-way cassettes are unobtrusive and seamlessly blend into their decor

The fresh hub transforming agriculture in Mpumalanga

The Mpumalanga International Fresh Produce Market is revolutionising agriculture in the Lowveld. With 17 state-of-the-art buildings, it is driving job creation, supporting local businesses, and addressing food insecurity, all while setting a new standard for fresh produce markets in South Africa.

True to the principle “form follows function,” the Mpumalanga International Fresh Produce Market’s design is flexible, catering to current operations while allowing for future expansion. This vision is reflected in the market’s 17 purpose-built buildings, each designed to optimise operations with improved infrastructure and innovative design, positioning it as a forward-thinking “market of the future”.

Recognising the collaboration between architects, designers, engineers, and construction companies, the Southern African Institute of Steel Construction’s 2023 Steel Awards honoured this worldclass project for its design excellence.

The market’s roof design follows the same philosophy, ensuring both functionality and flexibility. The main building features three-dimensional triangular tubular arch trusses, spanning 220 metres, with support columns 68 metres apart. This design provides the necessary space for optimising operations, such as cold rooms and racking systems, while accommodating future modifications.

The roof structure incorporates translucent modular sheeting on the southern side to maximise natural light while reducing heat transmission, with insulated sandwich panels providing excellent temperature control.

The market’s layout has been designed to allow for future growth, with gridline numbering facilitating seamless integration of new extensions. A sail material roof at the rear connects lightly with the back-end gable, offering flexibility for further expansion. ■

ARRCC transforms a

contemporary Cape Town home into a harmonious urban resort

ARRCC, a renowned design studio based in Cape Town, has brought a new lease of life to a contemporary home nestled at the foot of Table Mountain. Specialising in interior architecture, design, and decor, ARRCC is known for its innovative approach to creating life-enhancing spaces that transcend borders. The studio’s portfolio spans 54 countries, with a reputation for redefining luxury through thoughtful, sustainable design. Known for blending raw materials with refined finishes, ARRCC has created a serene and timeless environment that draws inspiration from its natural surroundings.

ARRCC’s vision for Glen Villa

The transformation of the Glen Villa home respects the original architecture by Antonio Zaninovic while enhancing its connection to the surrounding landscape. The addition of a new garden pavilion and the conversion of an upper bedroom into a penthouse master suite have brought fresh energy to the space. Throughout the main house, the interiors have been redesigned to create a cohesive flow between the architecture and its environment, with an enclosed wine room and a newly designed terraced lawn.

The approach to this project was to harness the dynamic contrast between the contemporary design of the house and the powerful presence of Table Mountain. As Jon Case, ARRCC Director, explains, “To be in an urban setting yet surrounded by the powerful natural presence of Table Mountain inspired us to create an ‘urban resort’.” The design captures the tranquillity of the mountain while incorporating the elegance of a contemporary home. The new pavilion,

The design captures the tranquillity of the mountain while incorporating the elegance of a contemporary home.

designed to extend the architectural language of the main house, features chamfered eaves, floor-to-ceiling glass doors, and raw materials that connects the structure to its setting.

Suspended in the tree canopy, the pavilion includes a variety of spaces, such as a bar, dining area, lounge, pizza oven, and barbecue zones, all designed to complement the environment. One of the standout features of the pavilion is a bespoke brass fireplace designed with metal smith Barry Ashmole, which draws inspiration from a 1920s copper diving helmet and incorporates vintage ship portholes.

ARRCC Glen Villa

PROJECT

Bespoke interiors

The interior design of Glen Villa, crafted by ARRCC Interior Designers Mark Rielly and Nina Sierra Rubia, embodies a refined yet natural aesthetic. The team collaborated with local artisans to create bespoke pieces that highlight the raw beauty of materials while elevating them into objects of luxury. Smooth marble, bleached timber, and brushed metals contrast with the rugged concrete and stone walls, blending organic textures with polished finishes.

ARRCC’s Afro-minimalist style brings together the home’s bold, raw architecture with its thoughtfully designed interiors, creating a timeless elegance that always feels effortless, never overdone. “The interiors are a collaborative vision, working with local artisans to highlight materials in their natural beauty and purest form,” says Rielly.

The design brings together a mix of materials like textured timber, leather, fur, and textiles that reflect the beauty of the surrounding landscape. Little touches, like fur draped over kitchen chairs, really bring that outdoor vibe indoors. Polished metallic details and mirrors nod to the nearby city, while the custom dining light, with its glass orbs, captures the sparkle of the city lights after dark.

ARRCC Glen Villa

A particular highlight of the design is the wine room, which serves as a jewel-like space within the home. With its gold-leaf ceiling, bronze domed lights, ebonised oak, and velvet upholstery, the wine room offers an atmosphere of moody glamour. This refined yet cosy space encapsulates ARRCC’s ability to create intimate yet luxurious experiences within a home.

The master suite, located on the upper level, reflects the company’s signature relaxed luxury. The room features custom-designed furniture, including a bed elevated on a marble base, which enhances the appreciation of the city views. A continuity of design is evident, with

echoes of cedar strip and bronze cladding in the pajama lounge, while the bathroom features marble vanities and soft matte travertine for a subtle sense of glamour. Strategically placed mirrors amplify the feeling of space, while the central feature bath enhances the room’s relaxing atmosphere.

ARRCC’s ability to layer architecture, interior design, and bespoke furnishings results in a serene, characterful space that feels deeply connected to its setting. Glen Villa is a testament to the studio’s commitment to creating spaces that balance contemporary design with natural beauty, offering an inspiring experience of place.

ARRCC Glen Villa

Supplier information

OKHA: Furniture – dining room table chairs

OKHA and Martin Doller: Lights – dining room balls

Cape Wood Interiors: Wood panelling – dining room

Garage Studio by Barry Ashmole: Fireplace –pavilion fireplace helmet

David Reade and Martin Doller: Lights – main bedroom side tables

OKHA and Martin Doller: Lights – wine room

Oggie: Flooring – extended pavilion and internal renovated areas

WOMAG: Marble – kitchen counter tops

Haus of Machine: Desk – customised desk in main bedroom suite

Coral & Hive: Rugs – all areas

Pierre Cronje: Architectural fittings, wood installation – all main areas

Project details

Project name: Glen Villa

Project location: Cape Town, South Africa

Interior designer: ARRCC

Interior design team: Jon Case, Wade Nelsen, Clive Schulze

Interior decor team: Mark Rielly, Nina Sierra

Rubia, Gabriella Duarte

Additional team member: Anna Katharina Schoenberger

Completion year: Completed September 2022. Occupational certificate awarded in December 2022.

Total built area (m²):

• Site Area: 5 215m²

• Built Area: 300m²

Photographer: Adam Letch

Copy by: Graham Wood

Crescent Lagoon

Where minimalist design meets breathtaking natural beauty, creating a luxurious retreat that harmoniously blends architecture, nature, and contemporary living.

Nestled along the serene shores of Langebaan on the Cape’s West Coast, Lagoon Crescent represents the harmonious intersection of architecture, nature, and contemporary living. This project was designed to celebrate its spectacular surroundings while offering occupants a seamless, immersive experience. From the outset, the project was envisioned as an ode to simplicity, timelessness, and the breathtaking beauty of Langebaan’s coastal landscape.

Conceptual beginnings

The design concept emerged from a deep respect for the site’s natural attributes. The Langebaan Lagoon, with its vibrant blue waters and tranquil ambiance, served as both inspiration and muse. The goal was clear: to craft a structure that would complement its environment while enhancing the living experience by framing and interacting with the surrounding views.

To achieve this, BOSS Architects employed a minimalist approach characterised by clean lines, graceful horizontal planes, and an understated material palette. These design elements were carefully curated to ensure the architecture would integrate seamlessly with the natural landscape. The result is a design that appears to float effortlessly above the ground, merging indoors and outdoors into a cohesive whole.

The design process

Designing Lagoon Crescent was an iterative process marked by meticulous attention to detail and a collaborative ethos. Led by Johan Basson, the team approached the project with a clear focus on creating spaces that evoke a sense of calm and connection.

The journey began with extensive site studies, including analysing the movement of light, wind patterns, and the lagoon’s tidal rhythms. These insights informed the placement and orientation of the two residential units, ensuring optimal views, privacy, and natural ventilation.

The horizontal projections that define the architectural silhouette were designed with a dual purpose. They create striking visual lines that frame the lagoon and beyond, while also providing functional shading, reducing heat gain, and enhancing energy efficiency. The overhangs extend outward like protective arms, blurring the boundary between indoor and outdoor living spaces.

Interior spaces flow intuitively, with open-plan living areas leading seamlessly to outdoor terraces. Each room was positioned to capture specific views of the lagoon, creating moments of pause and reflection. At the heart of the design philosophy was the concept of barefoot luxury, encouraging occupants to slow down and immerse themselves in the tranquil beauty of their surroundings.

Material palette and craftsmanship

The material palette combines natural and locally sourced materials, chosen to establish a dialogue between the built form and its environment. The restrained selection includes concrete, timber, and glass, which together create a sophisticated and timeless aesthetic.

Concrete was used for its durability and sculptural qualities, forming the base of the structure and defining its architectural character. Timber elements, sourced sustainably, were incorporated to add warmth and texture, softening the design’s stark lines. Expansive glass panels maximise natural light and establish a direct visual connection with the lagoon, creating a sense of openness and fluidity.

Craftsmanship was paramount throughout the project, with Niel Builders bringing exceptional skill and precision to the construction process. The bespoke decking by Decks for Life enhances the outdoor spaces, providing a natural platform for relaxation and entertainment. Province Lighting’s carefully integrated lighting accentuates architectural features and creates a welcoming ambiance during the evening hours.

Key engineering contributions came from ES Consulting Engineers, who delivered innovative solutions throughout the project. Lagoon Electrical and Lagoon Plumbing ensured seamless integration of essential systems, while Flush Bathrooms brought elegance and functionality to the bathroom and kitchen spaces. Stiles added refined finishes with their exceptional products.

A dialogue with nature

One of the most compelling aspects of Lagoon Crescent is its seamless connection with nature. BOSS Architects prioritised integrating the design with the surrounding landscape, allowing the structure to coexist harmoniously with the lagoon’s unique ecosystem.

Outdoor spaces were designed as extensions of the indoor living areas, encouraging a lifestyle that embraces the outdoors. Terraces, balconies, and decks invite residents to engage with their surroundings, whether it’s enjoying a sunrise over the water or watching the play of light on the lagoon during sunset.

The landscaping was approached with a light touch, incorporating indigenous plant species to preserve the

site’s ecological integrity. These plants enhance the property’s visual appeal and support local biodiversity.

Unique features and innovations

Lagoon Crescent is distinguished by several unique features that elevate it beyond conventional residential architecture. One of its standout innovations is the use of curated thresholds – transitional spaces that guide movement and create moments of anticipation. These thresholds include sheltered walkways, frameless glass doors, and pivoting panels, each designed to enhance the spatial experience while sheltering occupants from the elements.

The project also incorporates cutting-edge sustainability practices. Passive design principles, such as strategic shading, cross-ventilation, and natural insulation, reduce the building’s reliance on artificial heating and cooling systems. Solar panels and energy-efficient lighting further minimise the environmental footprint, aligning with BOSS Architects’ commitment to responsible design.

Another noteworthy feature is the attention to acoustics. Given the lagoon’s breezy conditions and the potential for outdoor noise, the design team implemented soundabsorbing materials and double glazing to ensure a peaceful interior environment.

The final result

Completed in 2022, Lagoon Crescent stands as a beacon of thoughtful, contemporary design. The two single residential units, each spanning 600m², offer a unique blend of luxury, comfort, and connection with nature.

The project’s success is a testament to the collaborative efforts of an exceptional team, a beautiful site, and, most importantly, fantastic clients.

A legacy of minimalist excellence

Lagoon Crescent embodies a design philosophy that prioritises harmony, balance, and a deep respect for nature, elevating the human experience by creating spaces that inspire and connect.

Whether viewed from the water, the surrounding landscape, or within its walls, Lagoon Crescent celebrates Langebaan’s unique beauty and the limitless possibilities of contemporary architecture. ■

I don’t want to walk this road alone.

As the construction industry stakeholders, we have the responsibility to preserve the family one bread winner at a time by ensuring “zero” work-related accidents in the industry, so a loved one can return home, to the embrace of family and friends. It ensures a child does not walk this journey called life without the foundation of self, acceptance, unconditional sacrifices, joy, support and love – that we call family.

ZERO is the commitment to achieving 100% compliance to the Compensation for Occupational Injuries and Diseases Act (COIDA), in the construction industry.

For more information visit www.zeroisnoaccident.co.za

Heavy Commercial Rooftop Ranges.

KZN’s North Coast on the rise

New phases in Ballito and Umhlanga developments are fuelling the North Coast property boom.

The KwaZulu-Natal North Coast has firmly established itself as a high-growth area for property investment, attracting a diverse range of buyers from young families to retirees. A combination of lifestyle appeal, premium amenities, and the allure of coastal living has seen key pockets such as Ballito and Umhlanga experience a steady influx of new residents. Supporting this trend, developers like Balwin Properties are contributing to the region’s growth by releasing new phases in their sought-after developments.

In the most recent Property Market Reports by Rainmaker Marketing, Ballito and Umhlanga are highlighted as two of the fastest-growing nodes on

the North Coast, both in terms of property demand and infrastructure investment. While these areas have long been popular, the growing wave of property developments in these areas over the past decade is still not at saturation point to meet the increasing appetite for high-quality, community-driven estates on offer. One savvy developer looking to capitalise on this demand is Balwin Properties, who have just recently announced the release of Phase 20 within Ballito Hills and Phase 10 for Izinga Eco-Estate. According to Kyle Gallagher, General Manager for KZN, at the show weekend that took place in the last weekend of September 2024 was much busier than usual, indicating that both newly released phases are already receiving substantial interest from buyers.

Ballito: A thriving node for young families and retirees

Ballito’s growth continues to attract a diverse demographic. According to Rainmaker Marketing’s North Coast report, 36% of buyers in Ballito fall into the 36-49 age group, many drawn by the area’s reputation for excellent schools and family-friendly amenities. Additionally, 45% of buyers in Ballito and 41% in nearby Salt Rock are over the age of 50, signalling a growing demand for lifestyle and retirement options. On average, the region welcomes 102 new adults each month – roughly 41 families.

Ballito Hills includes apartment options ranging from R1 329 900. In a competitive market, the offering also presents buyers with significant financial advantages, including an estimated saving of up to R187 000 on bond, transfer and appliance costs, a move aimed at making premium lifestyle estates more accessible. Gallagher explains, “The North Coast is seeing continued demand from buyers across different life stages. With Ballito Hills, we are proud to offer a living experience that blends modern convenience with community, making it attractive to both young families and those seeking a vibrant lifestyle.”

Umhlanga: A growing hub for professionals

In parallel, Umhlanga continues to set the standard for premium living in KwaZulu-Natal. The most recently released Rainmaker Marketing Property Report emphasises Umhlanga’s position as a top-performing area for sectional title sales, particularly in Umhlanga Ridgeside, where properties are selling for between R1.8

million and R3.5 million, with 62% of sales falling within this range. The live-work-play lifestyle that defines Umhlanga makes it a magnet for professionals seeking urban convenience combined with coastal serenity.

“Izinga Eco-Estate reflects the unique blend of nature and luxury that Umhlanga is known for. The demand for this kind of secure, premium living space continues to grow, and the response to our Phase 10 release has already exceeded our expectations,” states Gallagher.

Apartments at Izinga Eco-Estate range from R2 349 900 and buyers can expect bond, transfer and appliance savings of up to R266 085 – a key incentive for those seeking luxury living in a competitive market.

A broader trend in property development

The ongoing property boom on the North Coast is driven by a combination of factors, including the region’s growing reputation as a lifestyle destination, its proximity to key infrastructure, and the broad appeal of coastal living. Both Ballito and Umhlanga are playing leading roles in this growth, with established developers like Balwin Properties, responding to the sustained demand for well-located, modern estates that cater to a range of buyers.

As more individuals and families look to these areas for both investment and living opportunities, the continued release of new phases in developments such as Ballito Hills and Izinga Eco-Estate is a clear signal that the North Coast will remain a property hotspot for the foreseeable future. ■

The impact of a

WELL-DESIGNED garden

A garden is the heart of any property. As a landscaping company, our passion for thriving, vibrant havens full of flourishing flora might make us a bit biased. However, the reality is that a well-designed garden can significantly enhance your property’s value while enriching your lifestyle. This intangible benefit is invaluable and should not be overlooked.

Your garden is the first and last feature visitors notice. For homeowners, it becomes the space where cherished memories are made.

When considering a garden, it’s easy to focus solely on the plants. While they are indeed essential, to add colour, softness, movement, and fragrance, plants also provide a bountiful harvest, depending on what you choose to grow. However, simply planting without creating user-friendly spaces limits your garden's full potential.

Incorporating a designer outdoor space can transform your garden from a visual delight into an immersive experience.

A new perspective on garden spaces

Many believe that if a home has a patio, additional outdoor features aren’t necessary. But being out in the garden, away from the house, creates a distinctly different atmosphere. Similarly, you don’t need a large garden to have an inviting, practical outdoor space. Even small, overlooked corners can be transformed, enhancing how you use and enjoy your garden.

This particular garden demonstrates how a small area can become a bold, beautiful, and practical feature, perfect for both relaxation and entertainment.

Design elements and inspiration

Our design uses minimal ground space but makes a big statement. The garden revolves around the four basic elements: earth, fire, water, and wind.

• Earth is represented by the garden’s planting and the bag-washed finish we used instead of plaster. We selected a mix of grasses and succulents to create an attractive, hardy, water-wise garden that’s easy to maintain. The bag-washed walls expose the underlying brickwork, offering a more organic look than perfectly plastered walls. This finish creates a wonderful texture that contrasts with the hard, flat paving and looks fantastic at night when the lighting highlights the wall’s imperfections.

• Fire is a lively, warming element that creates a wonderful atmosphere in a garden or entertainment space. The focus of this space is the fire, a central feature. We used a FireBlades fire pit as a design element that adds detail to the space. This stylish, brazier-style fire pit allows viewing the fire from all sides, and its open design facilitates the movement of warm air well beyond the immediate area.

• Water provides a calming, relaxing soundtrack to any space. We integrated the fire pit with a water feature, creating an interesting and unique focal point at the garden’s centre. The water gently spills

PROJECT

over the edges of the fire pit into a pond hidden beneath the gravel area, making it a child-friendly feature, as no standing water could pose a hazard to curious youngsters.

• Wind (or air) is represented by our pergola design, which is open to the elements and allows a breeze to flow through the space. While it doesn’t protect from the sun or rain, it creates a cosy, inviting atmosphere. The pergola adds an X-factor to the way you experience the patio area.

Finishing touches

The patio area includes a constructed bench towards the back and some decorative steelwork to continue the theme of a modern, linear design. It is tiled using concrete flagstone pavers and bullnose tiles to finish off the edges. The patio space behind the fire pit is perfectly suitable for housing a small dining area.

This is a dynamic space which can be configured in several ways. If the fire pit is the element that is in demand, additional chairs around the gravelled area in front of the fire pit can facilitate more guests. Alternatively, if you are using the space for outdoor dining, a table, and chairs can be placed on the patio area and the fire pit would still provide the space with a much sought-after atmosphere and mood lighting.

It should be noted that the gravelled area could also be replaced with beach sand. This would create an even more relaxed atmosphere as you could comfortably lie down or squeeze the sand between your toes while enjoying the flickering fire.

As designers, our imagination and creativity know no bounds. Every new project ignites our excitement and drive to push boundaries. However, it's often the budget that sets the limits. With a larger space and a more generous budget, we could transform the gravelled areas into a stunning swimming pool, connecting a water feature that flows from the fire pit into the pool, creating a breathtaking design. ■

Suppliers:

Paving stones: Creative Stone Company

Fire pit: FireBlades Designer Fire Pits

Designer: The Friendly Plant

Installer: The Friendly Plant

Abcon Developments and Dorpstraat

Retail Centre Leaping Frog

Located in the heart of Fourways, Leaping Frog Retail Centre has transformed into a vibrant and convenient shopping destination. The retail centre is well-positioned on a prominent arterial road, with excellent visibility from Winnie Mandela Drive (formerly William Nicol Drive).

Leaping Frog Retail Centre has been part of the Fourways community for years and has been there for family dinners, birthday celebrations, first dates, and so many more of life’s special moments. With a modern redesign and enhanced amenities, The centre offers an unparalleled shopping experience. Leaping Frog Retail Centre allows for seamless parking, easy access, and a vibrant community atmosphere. The shopping centre,

anchored by Checkers, features an exquisite selection of stores and dining options.

Design concept and challenges

The initial design concept for the new Leaping Frog Retail Centre was to retain the elements that had made the centre successful and build upon them to create an even better experience for the community going forward.

Some of the initial challenges we identified with the existing centre were:

• Hidden and challenging access to the centre

• Disjointed parking

• Poor centre layout

• Unattractive tenant mix

• The perceived overtraded nature of Fourways/ Lonehill

The strengths identified were:

• The shopping centre is well-located on a prominent arterial road with good visibility from Winnie Mandela Road.

• It is a “gateway” site, attracting shoppers on their homeward route as well as passing traffic.

• Overall, the centre was well-positioned to be the dominant convenience retail centre in the area, but it needed significant investment in redevelopment.

Redevelopment strategy

We understood that the node was well-traded, with several competing shopping centres located nearby. To compete, the shopping centre would need to either differentiate itself from the competition or dominate them. We chose the differentiating route and aimed to position Leaping Frog as the go-to centre for convenience shopping. Furthermore, we sought to create a new ‘heart’ for the centre by designing a new ‘people's space’. This sense of place was formalised in the new piazza, a place

to play, entertain, and connect. The new piazza area links the centre together, creating a communal space for the community to meet. From the outset, our concept ideas focused on creating a new heart for the centre, enabling it to establish a new identity.

Restaurants can now spill out into the new piazza, enhancing the people-friendly space with a variety of dining options. Some additional key design aspects include:

• Increasing the size of Checkers

• Making the walkways more usable

• Improving the parking layout in terms of flow and levels

• Redesigning and refurbishing the existing parking areas to enhance access, traffic flow, and parking capacity

• Providing ample parking that is easily accessible and visible to passing customers

• Replacing old and stale tenancies with fresh convenience retail options

• Emphasising easy and visible parking and access

• Creating a vibrant “people space” through the restaurant and piazza area, increasing dwell times

• Enhancing visibility of access to the centre

• Designing a strong visual entrance for the anchor tenant, making the centre easy to navigate

• Opening up the centre to connect the main entrance with the rest of the centre.

PROJECT

Abcon Developments and Dorpstraat

The redeveloped centre

The redevelopment of the Leaping Frog Shopping Centre has truly transformed it into a vibrant and exciting destination. Whether you're looking to indulge in some delicious food or do some shopping, this centre has something for everyone.

As part of our commitment to ensuring safety, Leaping Frog Retail Centre has implemented enhanced security measures, including 24/7 monitoring, strategically placed cameras, and well-trained staff. The improved design focuses on accessibility and open spaces, ensuring a comfortable and secure shopping environment for all visitors.

The redevelopment has also forged a meaningful impact on local employment. Hundreds of jobs were created during the planning and construction phases, and the opening of new stores is set to generate numerous retail and service positions. ■

Co-developed by Abcon Developments and Dorpstraat

Owners: POD Property Fund & Dorpstraat Capital Growth Fund

Professional team:

Architects: BAR Architects (Greg Reid and Francois Bredenkamp)

QS: Quanticost PTA

Structural and civil engineer: L&S Consulting Engineers

Project manager: Abcon Developments

Electrical engineers: Ingplan

Mechanical engineers: Ingplan

Fire engineers: Ingplan

Wet services engineers: WFP Consulting Engineers

Town planner: Craft Homes

Health and safety: Cairnmead

Tenant coordinator: Abcon Developments

Main contractor: Probest Projects

Project type: Acquisition & Redevelopment project

Project commencement: 7 November 2023

Reopened to the public: 14 November 2024

The Friendly Plant

TURNING UNUSED SPACES INTO

dream gardens

Imagine the perfect summer day: warm weather with a gentle breeze, trees swaying softly, and a light blue sky above. Occasional clouds drift by, providing relief from the heat. This idyllic scene is a common occurrence in South Africa, which enjoys delightful weather for much of the year.

Professional team

Paving stones: Creative Stone Company

Braai: Home Fires

Timber: Maple Street Timbers

Pizza oven: Keith Hamilton Pottery

Designer: The Friendly Plant

Installer: The Friendly Plant

Now, imagine experiencing such a day locked indoors, where the weather is always the same and the view never changes.

To achieve this, we needed clients to sign up for designs, allowing us to navigate the design process and make necessary adjustments during the lockdown. Once restrictions are lifted, we could then schedule installations.

With a large social media following, we utilised this time to engage our audience. As the novelty of being at home faded, many people found themselves with extra time on their hands and realised that their outdoor spaces weren’t enhancing their property. The longer we were

in lockdown, the busier we became, as more individuals sought to transform their neglected gardens into valuable extensions of their homes.

A recurring conversation during that time was that many people had usable garden spaces but still spent most of their time indoors. It wasn’t that they didn’t want to enjoy the outdoors; rather, their gardens felt uninviting and underutilised. These spaces were often just barren patches outside the house - sandy and desolate, with only the hardiest plants surviving.

This garden is an example of how we turned a longforgotten corner of the garden into a destination for the family to entertain guests and create memories.

PROJECT

Our starting point was essentially a blank canvas and an awkward triangle-shaped space. The existing planting consisted of a little bamboo on the perimeter wall and a thread-bare lawn.

Our client loves to entertain. They had a wish list for us to include in their design that included, an outdoor bar area, braai, pizza oven, and a fire pit area.

This was a reasonably large list of items to fit into the small available space. In scenarios like this with limited space, we try to let the space guide our design. It leads to a product in harmony with its surroundings and does not look like an afterthought.

The result of our efforts is a contemporary-styled outdoor space that is very much an entertainer’s garden which includes:

• An outdoor bar area with a built-in braai and bar counter.

• A steel overhead structure that includes integrated lighting. This gently lights up the bar area without killing the atmosphere created by the nearby fire pit.

• A fire pit area with a cantilever bench that appears to hover over the patio. This bench is lit from below using LED lighting that provides a soft glow under the floating seating.

The finished installation looks very clean and almost simplistic. However, a lot is going on underground to make the cantilever seating possible. We had to excavate extensively to install the underground steel substructure. We then filled the excavation with concrete to keep it weighted down and in one place.

These elements can be tricky to construct as we need to go above and beyond when fabricating the structure to cater to the exception. We don’t want our clients to have a party and they end up with everyone sitting on a bench that ends up collapsing.

• We decided to use unpainted plaster as the main finish. We sealed the plaster to protect it and to enhance the different shades of grey that are created during plastering. This gives an almost cloudy, organic look that is not as ‘flat’ as paint.

• The fire pit uses kiln-fired bricks as a decorative element that contrasts with the smooth plaster finish in colour and texture. The bricks are also far more resistant to damage by the heat of the fire. A plastered finish would easily crack due to the expansion and contraction produced by a fire pit.

• We used concrete flagstone pavers from Creative Stone to pave the area between this area and the house. The large pavers create the illusion of space and in a tight space like this, it does make a big difference to the feel of the space.

• Opposite the bar, on the far end of the space, we installed a Keith Hamilton pizza oven. These are hand-built on-site and offer another dimension to outdoor entertaining. A pizza oven is not a one-trick pony. It can be used for baked pasta, bread, roasts, and, of course, pizza.

There is minimal planting in this garden because of the confined nature of the area together with the constructed elements that now populate it. The house is in an estate and privacy is a concern for our clients. The garden originally had some bamboo along the perimeter walls, and we added to this to create a better screening of the area.

There are a few small beds around the space where we used succulents and other hardy plants.

We also included a small, raised plant bed between the bar and the fire pit. This adds a little detail to the space.

The result is a garden space that is not only a beautiful addition to the house but also a practical space that caters to the lifestyle of our client – a better place to survive a lockdown. ■

The “Fire Trend”

Thermal Insulation Products and Systems Association has implemented the SANS 53501-1 standard in order to improve fire safety and ensure compliance with international classification standards for thermal insulation products and systems in South Africa’s building industry.

The Thermal Insulation Products and Systems Association (TIPSASA) has announced the implementation of the SANS 53501-1 standard, effective from 1 January 2025. This new classification standard, which utilises data from reaction to fire tests, aims to enhance consistency, quality, and compliance within the South African thermal insulation industry.

The newly adopted standard aligns with the European reaction to fire classification for construction products, reinforcing TIPSASA’s commitment to improving fire safety and sustainability in the building sector. While the standard applies primarily to thermal insulation products and systems, it marks a significant step in standardising fire safety protocols in construction, ensuring all relevant operations meet stringent safety requirements.

Scope of application

The standard pertains to thermal insulation products and systems manufactured in South Africa. It provides a clear classification procedure for reaction to fire for all construction products and building elements.

Compliance requirements

Companies must comply with SANS 10400-T: 2024 Edition 5, Fire Protection. Adhering to these requirements will meet the obligations of Part T of the National Building Regulations under the National Building Regulations and Building Standards Act of 1977.

Support and resources

TIPSASA has been offering training sessions and guidance documents since 2024 to assist businesses in implementing the standard.

TIPSASA stresses that this new initiative will significantly improve fire safety measures within the South

African building industry, aligning local practices with international standards. The association has urged all industry stakeholders to fully cooperate with the transition and adhere to the new requirements.

For more information or to access support, industry professionals can visit TIPSASA’s website at www.tipsasa.co.za or contact the support team at des@tipsasa.co.za or call (012) 663 1480.

This update serves as a critical move towards enhancing building safety and is expected to positively impact fire risk management across the construction industry. ■

West End

Office Park

Experience premier office space at West End Office Park, located at 250 Hall Street, Die Hoewes, Centurion, offering seamless access, amenities, and unparalleled connectivity.

West End Office Park is a premier office address that offers seamless access and prominent visibility along the N14 highway. Strategically located, the park is within walking distance of the Centurion Gautrain Station, with a convenient shuttle service also available. Tenants can enjoy a range of amenities, including a coffee shop, rooftop entertainment areas, a car wash, and inviting braai areas. The park’s infrastructure is designed to ensure uninterrupted business operations, with each building fortified with backup water facilities, a generator, and fibre.

The office park is easily accessible to several major highways, including the N1 and N14, as well as the Centurion Gautrain Station. It is also conveniently located near several amenities, including Centurion Mall, hotels, Jean Crossing Centre, schools, Unitas Hospital, and Midstream Estate. Overall, West End Office Park offers a centrally located and wellconnected office space, ideal for businesses seeking a premier address in the Centurion area.

Building E is scheduled for occupation on 1 November 2025.

Area schedule:

Ground floor: 1 453m²

First floor: 1 578m²

Second floor: 1 630m²

Roof: 101m²

Total GLA: 4 762m²

Parking:

Basement parking: 116 bays

Covered parking: 61 bays

Open parking: 62 bays

Total bays: 239 bays (5,02 bays / 100m²)

Net monthly rental rate:

Offices: R150/m²

Basement: R995/bay

Covered parking: R750/bay

Open parking: R650/bay

Storage: R115/m²

Balconies: R100/m²

Operating costs (estimate): R28/m²

Rates and taxes (estimate): R18/m²

Lease period: Minimum 5 years

Escalation: 7%

Occupation date: 1 November 2025

Description Rate/m² (Usable Area)

Tenant specific allowance

Floor finishes R200

Ceilings R200

Partitioning including doors R260

Blinds to perimeter windows R60

Wall finishes R80

Tea kitchen (R30 000 allowance per 600m²) R90

Sub-total R890

Base building items

Electrical installation R510

Hideaway air conditioning including power outlet R850

Sub-total R1 360

Total tenant allowance per m² of useable area (excluding VAT) R2 250

Note to base building items:

1. These items will be purchased installed by the developer. Should these items not be required, no cash credit will be granted.

2. All prices are exclusive of VAT.

3. Air-conditioning will be a combination of consol type units to perimeter (one 9 000 BTU unit / 20m²) and hideaway units to deep space areas for 25 % of the area.

Operating cost breakdown:

• Building insurance premiums

• Building security

• Cleaning (common areas)

• Cleaning consumables (common areas)

• Garden maintenance

• Management fees

• Metre reading fees

• Repairs and maintenance – lifts

• Repairs and maintenance – access control

• Repairs and maintenance – electricity

• Repairs and maintenance – plumbing

• Repairs and maintenance – security systems

Estimated sub-total operating costs: R28/m²

GRA estimated rates and taxes: R18/m²

GRA estimated total operating costs: R46/m²

Additional costs:

• Electricity and water as metred

• Effluent

• Generator diesel usage

• Refuse removal

• Servicing of air-conditioning ■

Experience

The Daikin Di erence

At Daikin, we’ve spent nearly a century perfecting the art of climate control. Our mission? To create environments in which you can live, work, and unwind in complete comfort. From homes to o ces, shopping centres to leisure facilities, our cutting-edge technology delivers the perfect climate –silently, invisibly, and e ortlessly.

Our innovative solutions aren’t just about temperature control; they’re about enhancing your life. By providing energy-e cient heating, cooling, and air puri cation, we ensure that every breath you take is cleaner, and every space you enter feels just right.

For us, it’s not just about creating great products – it’s about creating moments that matter. That’s the Daikin promise.

Low CO2 Footprint

Decarbonise your building and save on your energy bills. Complete Building Solution

Wide range of heat pumps delivering heating, cooling,

and

Peace of Mind

Relax and enjoy the bene ts of our future-proof, easy-to-use solutions.

Expert Support

We support you from design, through installation, to maintenance.

This is the Daikin Promise.

Daikin Cape Town Sales O ce Block C Estuaries, Oxbow Cres, Century Ave, Century City, Cape Town
Daikin Johannesburg Sales O ce
Daikin Durban Sales O ce

Casa á

Beiramar

Casa á Beiramar, envisioned by Metropole Architects, is a 750m² modern four-bedroom home situated in the prestigious Simbithi Golf Estate on KwaZulu-Natal’s North Coast of South Africa.

The design philosophy revolves around a harmonious blend of modern aesthetics and the natural environment. The house is a bold testament to refined modernism, utilising materials like steel, glass, and concrete with meticulous detail. Clean lines juxtaposed with tactile elements such as timber and stone create a sophisticated yet understated ambience. Upon approach, the house commands attention, perched proudly on its site with a cantilevered form emphasising horizontality, making a distinct statement in the streetscape.

An elegant, gently sloping driveway leads from the estate road towards the home into a stylishly arranged driveway court adorned with polished aggregate concrete panels and strips of artificial turf, setting the stage for an aesthetically pleasing arrival experience.

The public entrance façade is intentionally low-slung and minimalist, featuring a triple garage clad in horizontal slatted timber. This façade guides the eye towards a covered entrance walkway roof hovering over a porcelain tile-clad feature blade wall and the primary entry point to the home. A large pivot entrance door, clad in dark porcelain tile slabs, provides a secure transition into the private realm of the home.

The intentional solidity of the entrance façade serves multiple purposes. It not only provides an element of surprise to the act of entering but also enhances privacy for the inhabitants and provides effective protection against the elements, particularly the prevailing strong winds from the southwest. This ensures that the open and sheltered private spaces designed for living, entertainment, relaxation, and enjoying the sea views remain comfortable and enjoyable.

Moving through the entrance, the architecture unfolds into a voluminous space at the upper level. An open-plan living, kitchen, and dining area seamlessly integrates with the outdoor spaces through sliding glass doors. The covered verandah, supported by a striking steel ‘spider’ column, extends the living space outdoors, offering shelter for an entertainment area, braai space, a pool, and a small garden. The expansive oak timber-clad ceiling above adds warmth and visual continuity to the internal spaces.

The master suite at this level is orientated towards the sea view and is a haven for private rest and relaxation

PROJECT

Metropole Architects

complete with a walk-in dressing room and an opulent full master en-suite bathroom. An adjacent balcony allows one to venture outside to the edges of the cantilever on a veritable ‘lookout point’ and engage with the sun, sea and breeze. A standout feature of Casa á Beiramar is the sensual, organic, curved, oak timber-clad ceiling. This provides the ‘wow factor’ on entry, enhancing the vertical volume of the entrance hall and open-plan living areas. Coupled with clerestory windows, it allows natural light to penetrate deep into the plan, creating a visually engaging experience.

Descending via the main staircase, the spatial experience transitions to a more intimate experience. A TV lounge, study, double-sided Neolith-clad fireplace, and a wine cellar offer a cosy retreat. Three en-suite bedrooms, each with garden access, cater to privacy while providing glimpses of the adjacent forest and distant sea views.

The material and colour palette of Casa á Beiramar is a delicate balance between man-made interventions and the natural landscape. The extensive use of glass for building enclosure and balustrading breaks down the traditional visual barriers between inside and out promoting the immersion of oneself in the sights and sounds of the coastal forest context as well as providing reflections of the natural vegetation that is its context.

Generous overhangs allow for effective solar screening. The combination of solid slabs and pergola extensions in steel and aluminium overhead provide a variety of experience and graded exposure to the sun and a dynamic interplay of light and shadow.

Internally, the fusion of colour and texture in styling, furniture, and finishes complements the architectural spaces, presenting a cohesive and contemporary aesthetic. Considerations such as views, orientation, privacy, and the response to the subtropical climate extend the overall success of the product.

Casa á Beiramar transcends mere functionality. It offers a visually captivating, comfortable, and intimate living experience that seamlessly integrates with its natural surroundings, reflecting the artistry and thoughtful design of Metropole Architects. ■

Water Conservation in Summer Essential Strategies for Sustainable Buildings

Water scarcity has emerged as a concerning issue globally, with climate change at the center of attention, driving the need for urgent and effective water conservation measures. Water-saving techniques can be effectively incorporated into building design and maintenance to help developers, architects, and facility managers to meet sustainability targets, save on operating expenses, and increase on the long-term value of real estate.

• Implement smart irrigation systems:

functionality. Installing these fixtures in older buildings is an affordable approach to reduce water usage and encourage sustainability.

• Harvest Rainwater

Rainwater harvesting is a useful way to save water, particularly in the rainy season. Rainwater can be collected and stored in rain barrels, JoJo tanks or underground cisterns for non-potable needs such as flushing the toilet (which uses 6 – 9 litres of water per flush) or irrigating the garden. This method can drastically reduce the pressure on the use of municipal water supply.

• Conduct a Water Audit

A comprehensive water audit of the building/home can help pinpoint the source of water wastage and suggest ways to reduce it. For this audit, in addition to checking for leaks, monitor the base (nighttime flow rate) when no actual water use should be occurring. Any night flows indicate potential unseen leaks that need to be addressed.

In recent years, smart irrigation systems have been developed to tackle unnecessary water wastage. Imagine returning home on a rainy day, only to discover your sprinkler system running! These systems are equipped with weather sensors and automated controls, ensuring that your landscape receives just the right amount of water when needed. After switching to these smarter systems, many homeowners report saving up to 50% on water usage. Smart irrigation systems utilise real-time weather data and soil moisture levels, to customise your watering schedule. Additionally, they provide insights into your water consumption and can even detect leaks within your system. Planting and watering according to hydrozones saves and ensures even more efficient water use.

• Upgrade to water efficient fixtures:

Re-evaluate and upgrade water fixtures in your building or home. The incorporation of low flow showerheads, dual-flush toilets, and low-flow faucets can all drastically cut water up to 50% – 70% in your building/households without sacrificing

• Educate Building Occupants

At the 2002 World Summit on Sustainable Development (WSSD), it was reported that the water usage in the kitchen was reduced by 70% in just two weeks by educating staff on water efficiency and installing a water meter to monitor consumption. A substantial amount of water is wasted due to a lack of awareness. Thus, awareness remains the key to successful water conservation. How to achieve this: educate tenants, employees, and visitors about the importance of water-saving practices and how they can contribute. Simple actions like turning off taps, reporting leaks, and using water efficient appliances can collectively make a significant impact.

Sources: 1. https://plantscreative.com 2. Green building Africa 3. www.dffe.gov.za

AT FANCOURT La Cantina

Xperiencemakers’ La Cantina at Fancourt is a masterclass in intentional design, blending sustainability, craftsmanship, and timeless aesthetics to create an immersive dining experience that harmonises with its serene surroundings.

La Cantina is more than just a renovation; it is a testament to Xperiencemakers’ philosophy that thoughtful design transforms spaces into immersive experiences. Nestled within the renowned Fancourt estate, famous for its undulating gardens and prestigious golf courses, La Cantina offers a sensory journey that harmonises with its serene surroundings. This project reimagined an underutilised space, transforming it into a vibrant dining haven that celebrates sustainability, craftsmanship, and timeless design.

The vision for La Cantina was to craft an interior that blends old-world charm with modern elegance whilst adhering to a deep-rooted commitment to sustainability. Every element was carefully considered to foster a sense of warmth and authenticity, mirroring the ethos of a traditional Italian trattoria.

Design process

The design journey began with an assessment of the existing structure to identify opportunities for repurposing and revitalisation. This process was guided by Xperiencemakers’ proven approach, which starts with a comprehensive creative audit. This phase ensures that the client’s vision is at the forefront of every design decision. Through strategic questioning, and in-depth discussions, Xperiencemakers aim to unlock the potential of each space whilst aligning with the client’s needs and aspirations.

A crucial factor in La Cantina’s success was the collaboration between the client, Fancourt, and Xperiencemakers. The client’s vision and trust in the process allowed Xperiencemakers to create a space that reflects shared values of quality, sustainability, and craftsmanship. As Rachel Naomi Remen once

said, “Listening creates a holy silence. When you listen generously to people, they can hear truth in themselves, often for the first time.” Xperiencemakers embraces this philosophy by helping its clients “hear themselves better,” ensuring that the clients’ vision forms the foundation of the design concept.

The primary challenge was to retain the building’s essence while creating an environment that resonates with contemporary luxury and sustainability. During the creative audit, Xperiencemakers established three core components that guided the project:

• Spatial planning: Xperiencemakers optimised La Cantina for both privacy and socialising, ensuring functionality and flow.

• Budgeting: From the outset, a line-itemised broad budget was defined. This allowed Xperiencemakers to carefully manage the budget, delivering premium, bespoke design solutions without compromising on quality or sustainability. Every element, from materials to furnishings, was thoughtfully selected to align with the project’s investment parameters.

• Compelling visual aesthetic references: Xperiencemakers curated design elements that reflected Fancourt’s discerning taste and unique heritage, serving as the North Star during the design and drawing development stages.

Xperiencemakers’ design process is highly collaborative, intentional, and strategic. They invested time in understanding the cultural and heritage context of Fancourt, identifying the unique opportunities presented by La Cantina’s existing structure. This foundational understanding enabled Xperiencemakers to develop a cohesive vision for the project.

From the insights gathered during the creative audit, Xperiencemakers progressed to the Create & Develop stage. Here, they focused on the meticulous sourcing and curation of furniture, fixtures, and equipment (FF&E), as well as the development of detailed design and technical drawings. Every decision was made with sensitivity and care, ensuring that the space would offer a meaningful and immersive experience.

The end result is a singular, story-rich environment that seamlessly blends aesthetics, functionality, and sustainability. La Cantina’s design reflects the collaborative journey Xperiencemakers embarked on with their client, creating a space that meaningfully connects with its guests and stands as a testament to timeless, intentional design.

Sustainability at the core

At the heart of La Cantina lies an unwavering commitment to sustainability. Xperiencemakers repurposed existing structures and carefully curated materials that align with ecological responsibility.

• Sustainable teak flooring: One of the first transformative steps was replacing the flooring with sustainably sourced teak wood. Known for its durability and timeless appeal, teak not only reduces environmental impact but also ensures that the floor withstands the rigors of a hightraffic hospitality setting.

• Thoughtful repurposing: Rather than discarding existing structures, Xperiencemakers transformed them, breathing new life into the space and maximising its potential. This innovative approach minimises waste and exemplifies our commitment to sustainability.

• Reclaimed elements: Instead of opting for mass-produced furnishings, Xperiencemakers revitalised existing pieces. The combination of reupholstered furniture with bespoke, handcrafted additions reflects Xperiencemakers’ belief in minimising waste while celebrating artisanal craftsmanship.

Xperiencemakers

The sustainability of craft

True sustainability goes beyond materials; it is about the enduring value of craftsmanship. At Xperiencemakers, they emphasise the importance of bespoke elements made through artisanal techniques. These pieces are not just design elements but stories brought to life, creating a timeless atmosphere that outlasts fleeting trends.

La Cantina embodies a holistic approach to innovation – one that blends creative design solutions with sustainable practices and artisanal craftsmanship:

• Artisanal craftsmanship: Bespoke, handcrafted elements are at the core of La Cantina’s design. From custom furniture to artisanal tiles, these features not only add beauty but also tell a story of skill and tradition.

• Handcrafted tiles: The existing bar and buffet areas were adorned with artisanal, hand-made tiles. These elements introduce a tactile quality, imbuing the space with character and depth.

• Blending old and new: Xperiencemakers sourced unique antique pieces, which, when combined with contemporary furnishings, add layers of narrative to the space. This interplay between old and new ensures the design feels both fresh and timeless, evoking a sense of history and authenticity.

Aesthetic appeal and experiential design

La Cantina’s design harmonises aesthetics and functionality, offering patrons a rich sensory experience. The goal was to create a space that transitions seamlessly from day to night, offering different moods and experiences depending on the time of day.

• Warm and serene ambience: The interior reflects authentic Italian warmth featuring bricked walls, nature-inspired colours, and textural fabrics. These elements evoke the rustic charm of an Italian countryside trattoria, while modern touches, such as custom lighting and refreshed built-in units introduce a sense of contemporary luxury.

• Layered decor: Xperiencemakers meticulously curated a blend of antique and modern elements. Antique cabinets and decor infuse the space with soul, while modern artworks from the client’s collection add a fresh, sophisticated touch. This mindful curation results in an ambience that is alive and layered, inviting guests to explore and connect with the space.

• Sensory experiences: Pockets of varied sensory experiences are seamlessly integrated, enhancing the dining atmosphere. Textural contrasts, ambient lighting, and carefully chosen art pieces engage the senses, creating an environment that nurtures the spirit.

Functionality and durability

In the hustle and bustle of a hospitality setting, durability is paramount. Every design choice at La Cantina was made with longevity and functionality in mind:

• Wear-resistant surfaces: The solid teak floors, chosen for their durability, ensure that the space remains resilient under constant use.

• Functional layout: The spatial arrangement was optimised to facilitate smooth service flow, enhancing both the operational efficiency and the guest experience.

Impact and recognition

The transformation of La Cantina has not gone unnoticed. The project was honoured with the prestigious 2024 Luxury Lifestyle Award for Best Luxury Restaurant Interior Design. The judges praised the project for its warm and serene atmosphere, the use of natural colours, and the seamless integration of sustainability into the design. This recognition underscores Xperiencemakers’ dedication to creating spaces that are not only aesthetically pleasing but also sustainable and emotionally engaging.

La Cantina is more than just a restaurant; it is an experience. Through thoughtful design, sustainable practices, and a deep respect for craftsmanship, we transformed an underutilised property into a vibrant dining destination. This project stands as a testament to Xperiencemakers’ commitment to innovation, sustainability, and aesthetic excellence – values that resonate deeply with their firm. ■

Supplier list

Builder: Timbrick Construction

Shopfitting: Uriah Designs

Re-upholstery: Kommaweer Chairs: Woodbender

Custom fabrics: Lula Fabrics

Artwork printing and framing: Orms & Smart Art

Antiques: Randall Hare, Mandy’s Vintage, Light fittings: ADA Lighting, Morgan & Associates

Custom copper warmer light: Pieter Van Dijk

Handmade and painted tiles: Fired Up Pottery

Signage: Rhosigns

the perfect retirement home Top tips for securing

As more retirees seek to secure their future living arrangements, choosing the right retirement village becomes a crucial decision. A recent survey conducted by Rainmaker Marketing reports that retirees prioritise location, affordability and living within an estate when making the decision to purchase.

In this thought leadership piece, Andrew Crooks, CEO of Hibiscus Retirement Village, offers valuable insights from a retirement living perspective, delving into several other key factors to consider when making this selection.

Evaluating the property

The property itself plays a key role in the decision-making process. When evaluating a retirement village, it’s essential to consider the design and layout of the residences. Modern, spacious and adaptable living spaces that can accommodate future mobility needs are ideal. Features like step-free access, wide doorways and well-equipped kitchens and bathrooms designed for ease of use can significantly enhance daily living.

Additionally, the overall maintenance and appearance of the property are vital. A well-maintained property with attractive landscaping and clean, well-lit communal areas can improve the quality of life for residents. Retirees should also consider the availability of private outdoor spaces such as balconies, patios, or gardens, which provide personal space for relaxation and enjoyment.

Property ownership models are another critical aspect to consider. Retirement villages may offer different types of ownership arrangements, including freehold, sectional title and life rights. Each model has its own financial and legal implications. Freehold ownership means retirees

own their property outright, giving them full control but also full responsibility for maintenance and property taxes. Sectional Title ownership means retirees own their unit and share ownership of common areas with other residents. This model often includes a body corporate that manages the property and imposes levies for maintenance and communal services.

Life Rights on the other hand entails retirees purchasing the right to live in a property for the rest of their lives. Ownership does not transfer, and the property typically reverts to the village operator after the resident vacates, with the life right holder or estate receiving a refund of the original life right.

PROJECT

Widenham Retirement Village

Financial considerations

Special levies and regular maintenance fees are common in retirement villages with sectional titles or life rights. These levies cover expenses such as repairs, landscaping, security, and facility upgrades. It’s important for retirees to understand the financial obligations associated with these levies and how they may impact their budget.

Potential retirees should also do their homework regarding the track record and longevity of retirement villages/organisations they are interested in, to be confident that their retirement dreams are secure and will provide a long, happy, comfortable and care-free retirement. Hibiscus Retirement Villages, as an example, have a track record of over 60 years in the retirement village arena, across four thriving villages.

Engagement and security

Community amenities significantly enhance the quality of life in a retirement village and are another important consideration. For instance, Widenham Retirement Village, located on the beautiful South Coast of KwaZulu-Natal, offers extensive communal areas and attractions, a wide variety of sporting, social and recreational facilities and activity clubs, offering opportunities for new hobbies and personal growth. These all contribute to a very fulfilling and engaging retirement experience.

Safety is a top priority for retirees and their families. Evaluating the security measures in place, such as perimeter security fencing, surveillance systems and on-site personnel, emergency response protocols, and the general safety of the neighbourhood and surrounding areas, provides peace of mind and ensures a secure living environment.

Lastly, the overall quality of life in a retirement village is greatly influenced by resident satisfaction and engagement, staff professionalism and care quality, and opportunities for social interaction and community engagement. At Widenham Retirement Village, we prioritise these aspects to create a supportive and vibrant community where residents can thrive. Our village offers a blend of luxurious living, comprehensive healthcare services, and a vibrant community to ensure a fulfilling retirement experience. ■

Secondary School Rallim

Rallim Secondary School, a collaboration with Xperiencemakers, redefines educational design, blending biophilic principles, neuropsychology, and innovative thinking to create a nurturing environment that fosters lifelong learning and personal growth.

Rallim Secondary School is a groundbreaking example of how thoughtful, intentional design can profoundly impact education and shape young minds. Building on the biophilic theme established in Rallim’s primary school, this project expands on the connection between design, nature, and human psychology. Xperiencemakers’ approach, deeply rooted in neuropsychology, goes beyond aesthetics to create spaces that harmonise with students’ cognitive and emotional well-being. Inspired by Rallim’s commitment to student development and identity building, Xperiencemakers’ goal was to craft an environment that nurtures lifelong learners, fostering resilience, curiosity, and self-expression in a dynamic world.

Creative audit: The foundation of the design process

At Xperiencemakers, every design journey begins with a comprehensive creative audit. This strategic phase ensures that the client’s vision and needs are the foundation of every design decision. For Rallim Secondary School, Xperiencemakers conducted in-depth discussions and collaborative workshops to unlock the project’s potential.

The creative audit defined three core components that shaped the design process:

• Spatial planning: Optimised for functionality, privacy, and social interaction, the spaces were designed to foster both focused learning and collaborative engagement. The layout encourages exploration and creates a sanctuary for students, balancing academic rigor with emotional wellbeing.

• Budgetary planning: In every project, there is a sweet spot of budget optimisation, to ensure resources are correctly allocated, through effective design solutions. Material selections and bespoke elements were strategically selected to ensure durability while staying within budget boundaries.

• Compelling visual aesthetic references: Reflecting Rallim’s ethos, Xperiencemakers curated a visual narrative grounded in neuro-design principles, that celebrates student individuality and promotes a connection to nature. This holistic approach ensures that every element aligns with the school’s educational philosophy.

The design process was highly collaborative to create an environment that truly meets the needs of students. Xperiencemakers’ focus was on integrating biophilic and neuropsychological principles to foster cognitive, emotional, and social development.

Biophilic design: Learning through the senses

Rallim’s design emphasises a deep connection with nature. Biophilic elements, such as layered textures, natural lighting, and integrated greenery mirror the natural world, creating a calming and restorative environment. This approach has proven benefits.

• Stress reduction: Natural elements reduce stress and promote mental well-being, creating a serene atmosphere conducive to learning.

• Enhanced cognitive function: Exposure to natural light and organic textures improves concentration and cognitive performance, fostering a positive learning experience.

• Sensory engagement: Beyond traditional learning tools, Rallim incorporates writable surfaces, tactile materials, and interactive elements that engage all five senses. This multisensory approach enhances information retention and encourages exploration.

Empowering the individual: Studentcentric design

At Rallim, every student’s journey is unique. The design celebrates individuality and fosters a sense of autonomy:

• Modular furniture and flexible layouts: The varied seating options cater to different learning styles, from focused individual work to collaborative projects. Curved corners and ergonomic furniture provide comfort and safety, allowing students to relax and focus on their growth.

• Engaging graphics and wayfinding: Clear wayfinding systems and inspiring graphics empower students to navigate the space with confidence. This reduces anxiety and helps them feel in control, promoting independence and self-assurance.

• Custom fingerprint graphics: Subtle fingerprint motifs throughout the school symbolise the uniqueness of each student, reinforcing Rallim’s commitment to personal development and identity building.

Building a supportive ecosystem: Community and collaboration

Learning is a social endeavour, and Rallim’s design fosters a sense of community and belonging.

• Collaborative spaces: The school features a variety of communal areas designed to promote teamwork and social interaction. Flexible furniture arrangements create zones for group discussions, creative projects, and peer-to-peer learning.

• Diverse learning environments: Dedicated zones cater to different learning preferences, from quiet study nooks to vibrant collaborative hubs. This adaptability ensures that every student finds a space where they feel comfortable and supported.

• Curved and geometric furniture: Strategically placed furniture encourages both focused tasks and relaxed conversations, fostering a balanced learning environment that supports academic and social development.

Design for the future: Innovation and durability

Rallim Secondary School is designed to withstand the demands of a dynamic educational landscape.

• Durable materials: Laminated boards, hardwearing fabrics, and robust finishes ensure longevity and resilience. These materials were chosen not only for their durability but also for their sustainable qualities, aligning with the school’s commitment to environmental responsibility.

• Integrated technology: The design incorporates state-of-the-art technology, preparing students for the future by providing them with the tools they need to succeed in a digital world.

The impact of neuropsychological design

Xperiencemakers’ approach, rooted in neuropsychology, recognises that the environment plays a crucial role in cognitive and emotional development. By creating spaces that promote well-being and reduce stress, they fostered an atmosphere where students can thrive.

• Safety and comfort: Curved corners and soft textures create a sense of safety, helping students feel supported and relaxed. This emotional comfort is essential for effective learning and personal growth.

• Dynamic learning environments: The interplay of textures, colours, and interactive elements engages

different neural pathways, making learning more engaging and memorable.

A living example of educational innovation

Rallim Secondary School is more than just a building; it is a living example of how design can empower education. By leveraging biophilic principles, neuropsychology, and Rallim’s core ethos, Xperiencemakers have created a space that nurtures individuality, fosters community, and ignites a passion for lifelong learning.

Every element – from the sustainable materials to the custom graphics – reflects our commitment to creating an environment that supports the cognitive, emotional, and social well-being of students. Rallim stands as a testament to the power of intentional design in shaping the future of education. ■

Supplier list

Shopfitting and custom furniture: Uriah Designs

Furniture and custom furniture: Cecil Nurse, Chair Crazy & MIJA Furniture

Artwork printing and framing: Artlab

Blinds: Shutter Supreme

Custom wall-graphics: Cape Town Signwritting

Vinyl artwork: Rhosigns

Graphic design: Anje Van Zyl Graphics

Plant holders: Plantr

Celebrating 30 years of timber excellence

For three decades, Sabie Poles has been a leader in the timber industry, known for highquality treated and untreated timber. Our passion for wood drives us to provide durable products treated with CCA or Tanalith E for superior weather and insect resistance.

We take pride in the values that have brought us this far: a commitment to quality, sustainable practices, and a deep appreciation for the natural beauty of timber. More than just a building material, timber reflects nature’s strength, beauty, and textures, reminding us of the importance of preserving this resource for future generations.

Starting with just a handful of employees, we have grown into a global supplier of tested, graded, and certified poles and timber products, with a continued focus on quality and customer satisfaction in everything we do.

Among our wide variety of poles and timber products, our recently introduced square-cut beams are a testament to this commitment. These premium beams are exceptionally durable and robust, making them the ideal choice for striking main features in modern designs. The natural grain patterns, combined with clean, precise lines, create an unmatched aesthetic that enhances any project with elegance and sophistication.

A family built on integrity and passion

At Sabie Poles, we are more than just a business - we are a family. Our team works together seamlessly, combining expertise, passion, and a shared vision of excellence. Our core values are our integrity and honesty. This collaborative spirit has enabled us to build long-term relationships with our clients and the community, earning their trust through quality products and exceptional service.

As we celebrate this significant milestone, we are proud to reflect on how far we have come and are excited about the future. With a continued focus on innovation and sustainability, much more can be expected from Sabie Poles. We invite you to join us on this journey and discover the endless possibilities that timber has to offer.

For more information, visit www.sabiepoles.co.za, call or WhatsApp 072 838 2838, or email sales@sabietimber.co.za. Visit us at our plant: 25 Bandsaag St, Sabie, Mpumalanga, South Africa, 1260. ■

HC

Specialists in the design, development and production of HVAC-R equipment – from air handling units and rooftop packaged units to CO2 heat pump chillers.

8 Amber Road, Elandsfontein, Germiston

T: +27 (0)11 674 1237

E: sales@hcaircon.com www.hcaircon.hcgroup.co.za

Krazi Door

Where elegance meets strength. Exquisite designs. Precision crafted. Bespoke elegance for every entrance. Garage doors that elevate your home’s style.

T: +27 (0)11 786 2849

E: sales@krazidoor.co.za www.krazidoor.co.za

Supertec ceilings and boards

Supertec is one of the leading ceiling and partitioning manufacturers and distributors in the country, featuring a world-class manufacturing facility and extensive distribution network.

T: +27 (0)11 868 4901

E: info@supertecceilings.co.za www.supertecceilings.co.za

NOËL & MARQUET

Noël & Marquet’s high-quality design elements provide solutions for creative interior design. Our extensive range of cornices, chair rails, 3D wall panels, skirtings, and indirect lighting profiles cater to every taste, allowing you to create unique spaces full of character.

T: +27 (0) 11 466 0003 / +27 (0) 82 681 7266

E: sales@nmcsa.co.za www.noel-marquet.net

Taylor Blinds

We are specialist advisors. Our industry specialists have exceptional skills, expertise and know how to advance competitiveness. Lyra Consulting provides legal consulting services, contract management services, international business services, corporate finance and valuation services.

T: +27 (0)79 885 2626

E: info@lyra-consulting.co.za www.lyra-consulting.co.za

Gunnebo Safe Storage

Gunnebo is a provider of security products and services. Our safe storage business, provides products under the Chubbsafes brand, protecting your valuables and confidential data with a range of security doors, safes and automated and mechanical safe deposit lockers.

T: +27 (0)11 878 2300

E: info.africa@gunnebo.com https://www.chubbsafes.com/en-za/

AMA Architects

AMA Architects, a top South African firm, creates sustainable, human-centred architecture focused on design excellence and environmental responsibility across diverse projects.

T: +27 (0)11 807 7505 / +27 (0)83 378 2891 (WhatsApp)

E: adrian@amagroup.co.za www.amagroup.co.za

Global Innovative Systems

Global Innovative Systems specialise in distributing high-quality asphalt roofing shingles, oriented strand board (OSB), industrial and building insulation, and Gyproc/Nutec Everite products, offering a comprehensive range of thermal and acoustic solutions for construction and renovation projects.

T: +27 (0)11 903 7080 / +27 (0)83 229 4841

E: tammy@gissa.co.za www.gissa.co.za

RLB @amaarchitects_za

RLB is an independent global construction and property consultancy providing management and advice throughout the built environment.

T: +27 (0)12 348 1040

E: info@za.rlb.com www.rlb.com

Palram South Africa

Palram South Africa provides durable polycarbonate and PVC solutions, including roofing, cladding, and glazing products for agricultural, industrial, and commercial applications.

T: 27 (0)11 397 7771 (Johannesburg) / +27 (0)78 450 7793 (Durban) / +27 (0)78 800 5133 (Cape Town)

E: dawn.goossens@palram.com / jolene@palram.com www.palram.com/za/

SAQCC Gas

The South African Qualification and Certification Committee for Gas (SAQCC Gas) has been officially appointed and mandated by the Department of Employment and Labour to register gas practitioners on its behalf within the following gas industries: Natural Gas, Liquefied Petroleum Gas, Air Conditioning and Refrigeration Gas, Compressed Industrial and Medical Gases

T: +27 (0)11 285 0038

E: info@saqccgas.co.za www.saqccgas.co.za

HBS Aluminium Systems

HBS Aluminium Systems is a trusted stockist of premium architectural systems, favoured by architects and fabricators for their quality and reliability.

T: +27 (0) 83 289 8812

E: michelle@hbs.co.za www.hbs.co.za

Jax Oleum

Proudly manufactured in South Africa. It is easy to apply in a single coat and can be used for both interior and exterior applications. There are currently 87 different colours in our range, with excellent stock availability. We have distributors and stockists nationwide. For technical advice, please visit our website or call the office, and we will be happy to assist you.

T: +27 (0)11 444 7221 / +27 (0)71 112 1494

E: info@jaxoleum.co.za www.jaxoleum.co.za

A.Shak Construction

A.Shak Construction has been a trusted supplier of premium mould release agents and concrete additives to the construction industry for over 66 years.

T: +27 (0) 86 112 7425

E: sales@ashak.co.za www.ashak.co.za

Eagle Lighting

Suppliers of lighting and lighting accessories for domestic and commercial projects, also offering a wide range of LED energy efficient solutions.

T: +27 (0)21 440 7100

E: info-sales@eagle-lighting.co.za www.eaglelighting.co.za

Stumbelbloc

Stumbelbloc moulds produce interlocking, concrete building blocks. The blocks can be used in small DIY projects and large-scale construction.

T: +27 (0)84 414 6255 / +27 (0)21 551 1011

E: info@stumbelbloc.com www.stumbelbloc.com

MacLaren Air

MacLarens’ new range of air conditioners stands out with its unique no outdoor unit design, a feature that sets it apart from conventional systems. This design eliminates the need for an external compressor, making it an ideal solution for buildings where exterior aesthetics are a priority.

T: +27 (0)11 315 4348

E: maclaren@ust.co.za www.ust.co.za

Wallpaper Inn

Importers of high-end wallpaper for domestic and contract use. Pre-mixed and flake paste and wallpapering tools. Showrooms in Joburg, Cape Town and East London.

T: +27 (0)87 359 1682

E: clare@wallpaperinn.co.za www.wallpaperinn.co.za

Green Fibre Insulation (Pty) Ltd

Green Fibre Insulation (Pty) Ltd is a proudly South African company specialising in high-quality thermal insulation solutions. We manufacture, distribute, and install eco-friendly, fire-safe, 100% biodegradable and nontoxic cellulose-fibre thermal ceiling insulation.

T: +27 (0)11 018 7800

E: info@gfinsulation.co.za www.gfinsulation.co.za

Boomgate Systems

Boomgate Systems is a manufacturer of Vehicles and Pedestrian Access Control Equipment and High Security Equipment, Hostile Vehicle Mitigation Systems e.g. Traffic Barriers, Spike Barriers, Turnstiles, Speedstiles, Road Blockers and Bollards

Boomgate Systems Experience Centre

686 Joseph Lister Street, Constantia Kloof Ext 21, Roodepoort

T: +27 (0)11 674 4441

E: boomgate@global.co.za www.boomgatesystems.co.za

thriving communities Healthy wetlands,

Observed on 2 February, World Wetlands Day (WWD) raises awareness about the importance of wetlands and inspire action to protect them. The theme for 2025, “Protecting wetlands for our common future”, underscored the urgency of safeguarding these vital ecosystems for the well-being of current and future generations.

Wetlands cover just 2.4% of South Africa’s land area, but nearly half of the nation’s native wetlands have been lost. Out of 791 wetland ecosystem types in South Africa, nearly half are critically endangered or under threat.

Urbanisation is a major driver of wetland loss, as the country’s urban population continues to grow. By 2030, 71% of South Africans will live in urban areas, and by 2050, that figure will rise to 80%. This expansion increases demand for land for housing, infrastructure, and other services, leading to the degradation of natural areas like wetlands. Wetlands, being highly sensitive ecosystems, are especially vulnerable to these pressures.

Urban wetlands, which exist in or around cities, play crucial roles in water purification, flood mitigation, urban cooling, and maintaining biodiversity. They can be natural (rivers, lakes, marshes, etc.) or artificial (constructed ponds, stormwater treatment sites, etc.). These wetlands benefit urban areas by improving water quality, reducing flood risks, regulating local climates,

and providing economic opportunities through fishing and the sale of wetland products. They also support local ecosystems and offer recreational and employment opportunities.

To help protect urban wetlands, individuals and communities can take several actions:

• Control pollution by preventing waste from entering wetlands.

• Support natural water flow and avoid disrupting wetland hydrology.

• Implement sustainable urban planning, avoiding construction near wetlands and using green infrastructure.

• Collaborate with local communities, scientists, and authorities to develop conservation strategies.

• Advocate for policies that protect wetlands and raise awareness about their value.

• Support the creation of additional wetland habitats, such as constructed wetlands for greywater treatment.

Despite these efforts, challenges remain. Only 11% of South Africa’s wetlands are protected, and more than 70% remain unprotected. As water scarcity becomes an increasing concern, the need to conserve wetlands is critical. To learn more about how you can contribute to the conservation of wetlands, visit the Rand Water site at www.randwater.co.za and click on Water Wise Logo.

Be #RandWaterWaterWise

South Africa’s water security is under increasing pressure due to climate change, urban expansion, and rising water demand. To meet these challenges, embracing alternative water sources is key to reducing dependency on conventional supplies. Whether you’re landscaping for commercial spaces, public parks, or private homes, adopting these alternatives can make a transformative difference.

Engineering

Structural

Asbestos

Waterproofing

Insulation

The power to take control of your electricity costs and supply is all around you.

Solar PV Systems Battery Solutions Energy Audits Solar Geysers Heat Pumps Bulk Water Heating

Commercial & Residential Solar Solutions Over 14 000 perfect installations Established 2011 Finance & Rent-to-Own options available 011 894 2209 or 083 789 7839 (Christo) christok@oneenergy.co.za sales@oneenergy.co.za www.oneenergy.co.za

The SAISC has a clear and focused mission: To develop, promote, and sustain the health and wealth of the steel construction industry in Southern Africa.

The Southern African Institute of Steel Constructio n is the sole steel design technical and advisory organisation in Africa. We have been serving the Steel Industry since 1956 and are dedicated to promoting and supporting the use of steel in the construction industry.

TRANSFORM YOUR OUTDOOR SPACE WITH ECLIPSE ADJUSTABLE LOUVRE AWNINGS!

Enjoy customisable shade with durable aluminium louvres, seamless motorised control, and a weather-resistant design. Maximise comfort, control sunlight, and protect your space with cutting-edge style and functionality – tailored for modern living. Experience innovation and elegance with Eclipse! Quality speaks for itself.

Western Cape • Gauteng • KwaZulu-Natal

Services:

• Air-conditioning Maintenance

• Remote Monitoring on HVAC Plants

• Chiller Plants

• Building Management Systems (BMS)

• Retrofit projects for HVAC systems

• Water Treatment

• Energy Optimisation

• IAQ (Indoor Air Quality) monitoring

Unit J6, Centurion Business Park, Bosmansdam Road, Montague Gardens, Western Cape, 7441 t: 0860 555 734 | f: 0860 444 734 | e: info@sfigroup.co.za | www.sfigroup.co.za

Making Buildings Healthier... Together

Smar t Airconditioning Solutions

D i s c over t h e

P o wer o f Ac ti ve

A I with DVM S 2

Ac ti ve AI P res s u re C o nt ro l *

Ac ti ve AI Ref r i g e ra nt A nalys i s

Ac ti ve A I D ef ro s t

O n- D evi c e I nver ter Chec k T M

Ac ti ve A I P re s s u re C o nt ro l *

Maintaining optimal refrigerant condensing pressure is crucial for stable cool ing and heating. The Samsung DVM S2 util ises Active AI Pressure Control* to dynamically adjust pressure based on pipe length, elevation, and environmental conditions. By learning user patterns, it optimises condensing

15%* energy when pressure is lowered by 12% (Cumulative energy consumption over 4 hours)

Ac ti ve A I Ref r ig e ra nt A nal ysi s

Active AI Refrigerant Analysis

system malfunctions and environmental harm. The DVM S2’s Active AI Refrigerant Analysis, powered by Deep Learning technology*, continuously gathers and analyses operational data in real time It promptly alerts installers or service engineers to low refrigerant levels This proactive monitoring ensures timely maintenance, optimal refrigerant levels, and system reliability, effectively addressing these challenges and enhancing overall system performance

leaks out, due to any error in installation, operation or maintenance, it also impacts global warming and may even cause the system to stop working. Using Deep Learning technology*, the Active AI Refrigerant Analysis of the DVM S2 collects and analyzes various operational data in real time, and proactively alerts you with an error message if the amount of refrigerant is too low So, an installer or a service engineer can maintain the optimal level of refrigerant.

Heats for longer with less defro Active AI Defrost

remove any ice, air conditioning systems normally pause the heating and run a defrost operation, so the indoor environment feels less comfortable. Samsung’s Active AI Defrost technology analyzes various operating data, including the system’s air precisely As a result, it reduces wasted energy and increases the

Keeps you comfortable, even if there’s a malfunction

Emergency Operation

The DVM S2 Active AI Defrost technology analyses operational data like air resistance and operating cycles to defrost outdoor units

When the air conditioning system consists of multiple Samsung DVM S2 outdoor units, its refrigerant regulating control technology ensures that you can continue working using only one compressor in an emergency So, if every unit except one is not working or getting serviced and any compressor on the remaining one is working properly, it will keep cooling or heating for up to 8 hours. It ensures that you can maintain a comfortable indoor environment until the whole system is functioning properly again.

t

Turn static files into dynamic content formats.

Create a flipbook
Issuu converts static files into: digital portfolios, online yearbooks, online catalogs, digital photo albums and more. Sign up and create your flipbook.