HSC Campus Master Plan

Page 5

HILLFIELD

STRATHALLAN COLLEGE CAMPUS
June 1, 2022
MASTER PLAN
2 HILLFIELD STRATHALLAN COLLEGE CAMPUS MASTER PLAN
EXECUTIVE SUMMARY 5 7 13 17 27 33 65 1. A VISION FOR HSC’S CAMPUS Introduction Vision and Guiding Principles 2. THE
PLANNING
Campus
3. THE
A
4. THE PROGRAM Program Summary Spatial Relationships 5. THE PLAN Conceptual Approach Site Plan Circulation Learning Landscape Built Form Civil Sustainability 6. IMPLEMENTATION Phasing HILLFIELD STRATHALLAN COLLEGE CAMPUS MASTER PLAN 3 TABLE OF CONTENTS
CAMPUS
PROCESS
Planning Process
EXISTING CAMPUS A Growing and Evolving Campus
Connected Urban Oasis One College Four Schools A 50-Acre Educational Canvas
4 HILLFIELD STRATHALLAN COLLEGE CAMPUS MASTER PLAN

Executive Summary

Hillfield Strathallan College (HSC) has a remarkable campus of 50 acres, which is seen by many in its community as an urban oasis within Hamilton. Serving learners from 18 months to 18 years within its four schools, the College is looking to the future and considering how to leverage its campus to meet its educational objectives. The campus master plan sets out a framework for the campus’s future development as it replaces aging facilities and embraces the full potential of its 50 acres as a “learning landscape.”

The 17-month process to develop the campus master plan engaged the College community so that the future of the campus is built on the history, people, values and mission of HSC. The plan’s vision and guiding principles reflect the College’s Strategic Plan and the aspirations of College leadership, faculty, staff and students.

The campus master plan is grounded in the defining features of the existing campus. These include the remnants of the past life of the site as a farm associated with the Hamilton Psychiatric Hospital, the clustering of College buildings in the south-east of the site where they are generously buffered from surrounding streets, the circulation spine and communal spaces that bring the four schools together and the vast 50-acre site that distinguishes the College from other independent schools.

The program for the campus master plan maintains the current student population of approximately 1,250 students but increases the built area of the College to accommodate modern teaching spaces. It includes a new Junior School, Middle School and combined Dining Hall, administration and Learning Commons / innovation space.

The campus master plan embraces the existing circulation network of exterior breezeways that join interior corridors as a structuring feature, extending the network to connect new buildings and create a circulation “pinwheel.” Programmatic elements are strategically located so that all arms of the pinwheel are

anchored with communal spaces, with flexible teaching spaces inserted to allow maximum connection between indoor and outdoor learning. A new campus entrance is added from Garth Street, taking pressure off a reconfigured entry sequence from Fennell Avenue West.

The campus master plan also embraces the concept of a “learning landscape,” which has been developed by HSC staff. It locates different landscape types in zones across the campus to allow the College to capitalize on the unique asset of its 50 acres. The campus is designed to educate the whole child in active landscapes, social landscapes, instructional landscapes, exploration landscapes, edible landscapes and storytelling landscapes, and to define a sense of arrival to the campus with entry landscapes. Built form guidelines are designed to ensure that future development creates a cohesive campus character within which each of the constituent parts has its own identity. Sustainability guidelines support HSC’s aspiration to be a leader in environmental sustainability and to teach students about climate change prevention and environmental stewardship through the campus. The phasing strategy for the campus master plan is based on the principle of minimizing disruption to the student experience by avoiding use of temporary learning spaces such as portables. Each of the three new buildings and associated landscape is defined as a phase, with additional landscape elements flexible to be implemented at any time. A Class D cost estimate for the campus master plan is intended to be a guide on construction costs and help the College to assess the relative value of building components and the overall infrastructure investment.

The HSC campus master plan lays out a path for the development of a physical campus that embodies the spirit of the College and will allow it to continue to deliver an exceptional educational experience for decades to come.

HILLFIELD STRATHALLAN COLLEGE CAMPUS MASTER PLAN 5
6 HILLFIELD STRATHALLAN COLLEGE CAMPUS MASTER PLAN

A Vision for HSC’s Campus

HILLFIELD STRATHALLAN COLLEGE CAMPUS MASTER PLAN 7 01
8 HILLFIELD STRATHALLAN COLLEGE CAMPUS MASTER PLAN

Introduction

Located in Hamilton, Ontario, HSC has a remarkable campus of 50 acres, including approximately 14.5 acres of “Shared Lands” that are owned jointly with the neighbouring Mohawk College. Distinguished by being “One College, Four Schools,” HSC provides education to students from 18 months to 18 years at its Montessori, Junior, Middle and Senior Schools. With several aging facilities, the College is comprehensively reconsidering how to develop its campus to support its mission to develop joyful and engaged students who live life with purpose.

The HSC campus master plan sets out a framework for the phased redevelopment of the campus to provide a new Middle School, Junior School, and College-wide building that encompasses a dining hall, administration space and innovation space, all embedded within a 50acre learning landscape. It builds on the architectural language already present on the campus in the Senior School to create a cohesive College identity within which each building is distinct. It strives to translate the College’s strategic objectives regarding personalized learning, purposeful and sustainable learning environments, resilience and wellbeing and an inclusive and connected College into physical spaces that will support those objectives.

The campus master plan was developed with the guidance of a Steering Committee composed of College leadership and representation from the HSC Board. The process actively engaged the participation of the entire

HSC community—faculty, staff and students—to imagine the future of the campus. The Perkins&Will design team was supported by PMA Landscape Architects for landscape design, R.V. Anderson Associates for civil and transportation, Smith + Anderson for mechanical and electrical and A.W. Hooker Quantity Surveyors for costing to create a plan that is not only beautiful but also functional and realistic.

The campus master plan is divided into six sections:

01. A Vision for HSC’s Campus provides the vision and guiding principles that were developed to guide the campus master plan.

02. The Campus Planning Process describes the key steps in the 17-month process to develop the campus master plan.

03. The Existing Campus outlines the most important findings from the discovery process that influenced the campus master plan.

04. The Program summarizes the desired program for the future campus and important spatial relationships between program elements.

05. The Plan presents the preferred design for the campus master plan and includes guidelines for built form and sustainability.

06. Implementation sets out the proposed phasing for the campus master plan and summarizes the Class D Cost Estimate.

HILLFIELD STRATHALLAN COLLEGE CAMPUS MASTER PLAN 9
12
HILLFIELD STRATHALLAN COLLEGE CAMPUS MASTER PLAN

The Campus Planning Process

HILLFIELD STRATHALLAN COLLEGE CAMPUS MASTER PLAN 13
02
16 HILLFIELD STRATHALLAN COLLEGE CAMPUS MASTER PLAN

The Existing Campus

03
HILLFIELD STRATHALLAN COLLEGE CAMPUS MASTER PLAN 17

A Growing and Evolving Campus

HSC was established in 1962 when the Hillfield School for boys and the Strathallan School for girls moved to the current location on top of the escarpment at Fennell Avenue West. Prior to the establishment of the College, the land had been part of the sprawling farm associated with the Ontario Hospital / Hamilton Psychiatric Hospital. The College buildings were built in the south-east corner of the 50-acre property, well removed from the edges at Fennell Avenue West and Garth Street and with remnants of the historic orchard remaining to their north and to

their east. The built campus has gradually expanded to the west with the construction of the Junior School, Virtue-Fitzgerald Arts Complex, Montessori School and finally Senior School in 2012. The construction of the Senior School created a new east-west dimension to the campus circulation network and established a precedent of College-wide courtyard spaces (Central College Quad) and school-specific courtyard spaces (DeGroote Courtyard), which all play a role in defining the campus as what it is today.

18 HILLFIELD STRATHALLAN COLLEGE CAMPUS MASTER PLAN
Figure 3. Site map (1938) Figure 4. Site aerial (1999) Figure 5. Site map (Campus Establishment, 1962) Figure 6. Site aerial (2010) Figure 7. Site map (1973) Figure 8. Site aerial (2018)
0 100 m
STRATHALLAN COLLEGE CAMPUS MASTER PLAN 19 Figure
Campus
HILLFIELD
9.
additions by year

A Connected Urban Oasis

As noted in the College’s land acknowledgement, HSC is situated on Haudenosaunee and Anishinaabe territory, as recognized and documented by the Upper Canada Treaty Agreements, adjacent to the Haldimand Treaty Territory. Within Hamilton, it sits atop the escarpment in the West Mountain area, necessitating a scenic drive up the escarpment to approach the College from most directions. Seen by many in the school community as an oasis within the city, the campus sits at the nexus between established residential communities to its north, west and south and the growing institutional node including Mohawk College and St. Joseph’s Healthcare Centre to its east and north-east. It is well connected to the rest of the city via municipal bus routes on Garth Street and Fennell Avenue West and major upgrades are planned to activate transportation infrastructure in the area. A new Mixed-Use Path will extend along the campus boundary on Fennell Avenue West and part of Garth Street, eventually connecting to the larger Mountain Brow Trail.

NEIGHBOURHOOD CONTEXT LEGEND

Green Space Hospital

Mohawk College

Provincially-Owned Land Planned for Redevelopment

HSC Campus Site

Mohawk Future Residence Site

Bus Stop

Future Mountain Brow Trail Mohawk College Mixed-Use Path

20 HILLFIELD STRATHALLAN COLLEGE CAMPUS MASTER PLAN
Figure 10. West Hamilton Niagara escarpment
Figure 11. Neighbourhood context 0 100 m
PLAN 21
HILLFIELD STRATHALLAN COLLEGE CAMPUS MASTER

One College Four Schools

As “one college, four schools,” HSC offers a unique learning experience where students can spend their entire educational career from starting preschool at 18 months to graduating high school at 18 years. The Junior School, Montessori School, Middle School and Senior School each offer a distinct experience within HSC and many students move through two or more of the schools during their time at the College. Important to campus cohesiveness are the things which tie the four schools of the College together. These things can be experiential, like the HSC busing program, where students of all ages ride to campus together before dispersing to their own school, forming bonds with each other and their driver as they do so. College cohesiveness also comes from the spaces and connections of the campus itself—the communal spaces like the DeGroote Athletic Complex where the entire College can meet for assemblies, or the shared outdoor space of the Central College Quad. The schools have also historically been tied together through the connective “spines” of the circulation system, which link each school physically and in school mythology, as alumni are brought together by memories of walking down the non-heated hallways in winter long after graduating.

Junior School Middle School

CAMPUS STRUCTURE LEGEND BUILDINGS AND COMMUNAL SPACES LEGEND College-Wide Administration Montessori School Senior School Maintenance Communal Space Circulation Solid Volumes Void Spaces 22 HILLFIELD STRATHALLAN COLLEGE CAMPUS MASTER PLAN
Figure 12. Campus structure Figure 13. HSC school buses

100 m Figure 14. Buildings and communal spaces within the four schools

HILLFIELD STRATHALLAN COLLEGE CAMPUS MASTER PLAN 23
0

A 50-Acre Educational Canvas

HSC is also distinguished by its exceptional 50-acre campus, a key differentiator for the College among urban independent schools. The generously sized campus allows for a state-of-the-art athletics program for HSC students and for shared use of the College’s facilities with the local educational community for intramural programs and summer camps. Beyond physical education, HSC strives to use its entire campus as a “learning landscape,” creating an indoor-outdoor educational experience for its students. The COVID-19 pandemic has prompted more creative use of the campus’s outdoor space as part of students’ daily school experience and the College has actively been making changes to promote indooroutdoor learning, such as by making more seamless connections from the Junior School classrooms to the outdoors. The HSC campus offers a 50-acre canvas for educational opportunities of all kinds—outdoor classrooms, quiet work spaces, performance spaces, food cultivation, biodiversity studies and more.

LANDSCAPE TYPES LEGEND

24 HILLFIELD STRATHALLAN COLLEGE CAMPUS MASTER PLAN
Edible
Sports
Orchards Groves Rainwater Retention Memorial Play Areas Terrace
Cultivated Landscape
Landscape
Field
Figure 15. Growing food on campus
HILLFIELD STRATHALLAN COLLEGE CAMPUS MASTER PLAN 25 0 100 m Figure 16. Landscape types
26
HILLFIELD STRATHALLAN COLLEGE CAMPUS MASTER PLAN

04 The Program

HILLFIELD STRATHALLAN COLLEGE CAMPUS MASTER PLAN 27

Program Summary

Program Summary

Montessori School

Total Gross Area

Junior School Athletics Space Non-Athletics Space

Total Gross Area Middle School Athletics Space Non-Athletics Space

Total Gross Area Senior School

The HSC campus master plan program details the indoor spaces that the College needs to deliver a first-class 21st-century education to its students and provide an excellent school experience. It provides the basis of the space allocation and the locations of new facilities in the campus master plan.

The program is designed to maintain the current student population of approximately 1,250 students while allowing for yearly fluctuations by school of up to ten percent.

The program was developed by taking into account the following:

Existing spaces by school and function

How spaces are performing based on a staff audit

Utilization of spaces across the day and week

Building conditions assessments that considered factors such as state of repair, fire safety, mechanical systems, accessibility and energy use

The ability of spaces to achieve the College’s sustainability goals

New or replacement spaces needed to achieve the College’s educational objectives

Classroom sizes consistent with modern teaching standards

Relationships between indoor and outdoor spaces that facilitate outdoor learning

Spaces that promote experiential learning and project-based learning

Total Gross Area Food Services

2,440 sm26,260 sf2,440 sm26,260

1,930 sm20,810 sf0 sm0 sf3,420

5,440 sm58,490 sf0 sm0 sf8,560

Communal spaces that foster College-wide community building and meet accessibility requirements

Total Gross Area Learning Commons Total Gross Area Arts

12,490 sm134,380 sf12,490 sm134,380 830 sm8,930 sf0 sm0 sf2,210

Faculty and administration spaces suited to staff needs

410 sm4,440 sf0 sm0 sf1,530

Total Gross Area College Administration

Total Gross Area Storage Total Gross Area Services

2,100 sm22,560 sf2,100 sm22,560

2,220 sm 23,860 sf0 sm0 sf1,950

170 sm1,800 sf170 sm1,800 sf0

The table on the right summarizes the program for the HSC campus master plan by school and space function. New or replacement space is required for the Junior School, Middle School, Dining Hall, Learning Commons and College administration. In most cases, new spaces will be larger than those they replace to meet modern teaching standards or to incorporate new elements such as an experiential learning centre combined with the Learning Commons. The exception is the College administration space, which currently occupies retrofitted classroom space in the Holton Building and can be downsized to meet staff needs more efficiently.

Total Gross Area College Total Total Gross Area

309,710 sf17,950 sm193,190

No Change New Construction

The program has been prepared at a level of detail to inform the overall campus master plan. As each phase of development proceeds, detailed programming will be required for individual buildings. A summary of the assumptions underlying the program can be found in the Appendix.

760 sm8,190 sf760 sm8,190 sf0 28,780 sm School

Montessori School

Junior School Middle School Senior School Total

28 HILLFIELD STRATHALLAN COLLEGE CAMPUS MASTER PLAN
Figure 17. Student population
Approximate Enrollment (+/10%)
200 200 320 530
1,250
Current Existing RetainedNew

Program Summary

Montessori School

Total Gross Area

Total Gross Area

Change

Change

2,440 sm26,260 sf2,440 sm26,260 sf0 sm0 sf2,440 sm26,260 sf0%

2,440 sm26,260 sf2,440 sm26,260 sf0 sm0 sf2,440 sm26,260 sf0%

Junior School Athletics Space Non-Athletics Space

Junior School

Athletics Space Non-Athletics Space

Total Gross Area Middle School

Total Gross Area Middle School Athletics Space Non-Athletics Space

Athletics Space Non-Athletics Space

Total Gross Area

Total Gross Area Senior School

Senior School

Total Gross Area Food Services

Total Gross Area Food Services

Total Gross Area Learning Commons

Total Gross Area Learning Commons

Total Gross Area Arts

Total Gross Area Arts

Total Gross Area College Administration

Total Gross Area College Administration

Total Gross Area Storage

Total Gross Area Storage

Total Gross Area Services

Total Gross Area Services

Total Gross Area College Total

Total Gross Area College Total

Total Gross Area

Total Gross Area

No Change

760 sm8,140 sf760 sm8,140 sf 2,660 sm28,620 sf2,660 sm28,620 sf 1,930 sm20,810 sf0 sm0 sf3,420 sm36,760 sf3,420 sm36,760 sf77%

760 sm8,140 sf760 sm8,140 sf 2,660 sm28,620 sf2,660 sm28,620 sf 1,930 sm20,810 sf0 sm0 sf3,420 sm36,760 sf3,420 sm36,760 sf77% 3,610 sm38,870 sf3,610 sm38,870 sf 4,950 sm53,240 sf4,950 sm53,240sf 5,440 sm58,490 sf0 sm0 sf8,560 sm92,110 sf8,560 sm92,110 sf57% 12,490 sm134,380 sf12,490 sm134,380 sf0.0 sm0 sf12,490 sm134,380 sf0% 830 sm8,930 sf0 sm0 sf2,210 sm23,750 sf2,210 sm23,750 sf166% 410 sm4,440 sf0 sm0 sf1,530 sm16,460 sf1,530 sm16,460 sf271%

3,610 sm38,870 sf3,610 sm38,870 sf 4,950 sm53,240 sf4,950 sm53,240sf 5,440 sm58,490 sf0 sm0 sf8,560 sm92,110 sf8,560 sm92,110 sf57% 12,490 sm134,380 sf12,490 sm134,380 sf0.0 sm0 sf12,490 sm134,380 sf0% 830 sm8,930 sf0 sm0 sf2,210 sm23,750 sf2,210 sm23,750 sf166% 410 sm4,440 sf0 sm0 sf1,530 sm16,460 sf1,530 sm16,460 sf271%

2,100 sm22,560 sf2,100 sm22,560 sf0 sm0 sf2,100 sm22,560 sf0% 2,220 sm 23,860 sf0 sm0 sf1,950 sm21,010 sf1,950 sm21,010 sf-12% 170 sm1,800 sf170 sm1,800 sf0 sm0 sf170 sm1,800 sf0% 760 sm8,190 sf760 sm8,190 sf0 sm0 sf760 sm8,190 sf0% 28,780 sm

2,100 sm22,560 sf2,100 sm22,560 sf0 sm0 sf2,100 sm22,560 sf0%

2,220 sm 23,860 sf0 sm0 sf1,950 sm21,010 sf1,950 sm21,010 sf-12% 170 sm1,800 sf170 sm1,800 sf0 sm0 sf170 sm1,800 sf0% 760 sm8,190 sf760 sm8,190 sf0 sm0 sf760 sm8,190 sf0% 28,780 sm

309,710 sf17,950 sm193,190 sf17,670 sm190,090 sf35,620 sm383,270 sf

Construction 61% Current Existing RetainedNew ConstructionFuture Total Figure 18. Program summary by school and

School Approximate Enrollment (+/10%)

Montessori School

Montessori School

Junior School

Middle School

Middle School

Senior School

Senior School

Total No Change New Construction

200 200 320 530 1,250 RetainedNew ConstructionFuture Total

HILLFIELD STRATHALLAN COLLEGE CAMPUS MASTER PLAN 29
School Approximate Enrollment (+/10%)
Total New
200 200 320 530 1,250 space
function
Montessori School
Program Summary
Junior School
309,710 sf17,950 sm193,190 sf17,670 sm190,090 sf35,620 sm383,270 sf
61% Current Existing

Spatial Relationships

In addition to the size requirements for each element of the campus, the master plan is also informed by an understanding of the spatial relationships between elements as summarized by the diagram on the right. Each of the four schools is independent and has or will have its own school-specific administration staff and space. Each school will also be connected to or have easy access to gym space appropriate to the age and stage of its students.

It is important for students at all of the four schools to have access to the facilities that have a College-wide function, which are shown in the centre of the diagram. These include the Dining Hall, Artsplex, Learning Commons and College-wide administration space. Three of these—the Dining Hall, Learning Commons, and College-wide administration space—are planned to be replaced. The spatial organization of the campus master plan strives to locate these facilities centrally with convenient connections from each of the schools.

Finally, the Dining Hall is unique among campus elements in its servicing requirements. It requires a “back of house” servicing area for frequent deliveries and waste pick up, which should be kept away from pedestrian circulation areas to ensure safety and avoid conflicts.

Figure 19. Learning Commons
30 HILLFIELD STRATHALLAN COLLEGE CAMPUS MASTER PLAN
Figure 20. Artsplex

school admin.

gym junior school

senior school admin. artsplex learning commons

college -wide

school admin.

school admin.

dining Senior School Administration

21. Adjacency diagram

College-Wide Junior School Middle School

gym

middle school mont.

school admin.

ser vice gym

LEGEND Gym Artsplex Montessori School Learning Centre

Dining Hall

HILLFIELD STRATHALLAN COLLEGE CAMPUS MASTER PLAN 31
Figure
32
HILLFIELD STRATHALLAN COLLEGE CAMPUS MASTER PLAN

05 The Plan

HILLFIELD STRATHALLAN COLLEGE CAMPUS MASTER PLAN 33

Conceptual Approach

The campus master plan seeks to build from what already exists on the site, amplifying what is successful and augmenting it to meet HSC’s vision for the future. The existing circulation network of exterior breezeways that join interior corridors is an iconic campus element that embodies the concept of “one college, four schools.”

The campus master plan embraces this element as a structuring feature, extending the existing circulation network to connect new buildings and create a circulation “pinwheel.” Programmatic elements are strategically located so that all arms of the pinwheel are anchored with communal spaces, with flexible teaching spaces inserted to allow maximum connection between indoor and outdoor learning. The 50 acres of the campus surrounding the four schools is designed and programmed as a learning landscape with flexible zones allowing for all types of outdoor learning.

The pinwheel is dynamic, reaching out to the edges while anchored at its centre. Playful, simple, and intuitive, the pinwheel offers a compelling metaphor for Hillfield Stathallan College as it seeks to develop and structure its campus. Each blade of the pinwheel works together—if one is missing it becomes unbalanced and the whole ceases to function harmoniously. The pinwheel also implies a relationship with the outside world. Acted upon by its surroundings, the pinwheel is beautiful in its own right, but it is at its most when the wind is blowing.

34 HILLFIELD STRATHALLAN COLLEGE CAMPUS MASTER PLAN
Figure 22. Pinwheel conceptual approach

Strengthen and extend existing circulation

Anchor the circulation network with the communal program

Insert flexible places for learning

Connect teaching spaces to the exterior

Link the four schools within a learning landscape

HILLFIELD STRATHALLAN COLLEGE CAMPUS MASTER PLAN 35
Conceptual Moves

Site Plan

The future HSC campus includes three major new built components—a new Middle School, Junior School and College-Wide Hub that combines dining space, administration space and the Learning Commons / innovation space. The built footprint remains primarily clustered in the south-east corner of the campus with a generous buffer of landscaped space between buildings and Fennell Avenue West and Garth Street, preserving the “country in the city” feeling valued by the College community. The buildings are located along extensions of the existing circulation network and are placed to maximize direct connections to the outdoors, with the character of the surrounding landscape aligned with the adjacent interior program. Building placement also allows for a logical phasing process, limiting the need for temporary facilities for students.

A landscaped entry sequence from the existing Fennell Avenue West gates creates a sense of arrival culminating in a new entry forecourt and clearly defined “front door” to the College in the College-wide administration /

dining / innovation building. A new secondary entrance from Garth Street at the south end of the campus provides relief to the main entrance and more direct and convenient access for the Montessori School, Junior School and Artsplex. A “thickened” landscaped edge along Fennell Avenue West and Garth Street provides stronger boundary definition for the campus. New buildings and the extension of the covered circulation network frame a series of new open spaces that can be programmed for outdoor learning of various kinds. The number and size of sports fields on the campus is maintained, with slight adjustments to accommodate landscape features and consolidated parking lots adjacent to each of the campus entrances. The site plan maintains the Shared Lands at the south of the campus for use as sports fields.

Existing Senior School

Existing College-Wide Spaces Junior School Existing Montessori School PROGRAM DIAGRAM LEGEND

Figure 23. Existing internal-facing campus Figure 24. Proposed campus open to the periphery
Figure 25. Site axonometric program diagram 36 HILLFIELD STRATHALLAN COLLEGE CAMPUS MASTER PLAN
Middle School Middle School Gym College-Wide Hub

01 02

Middle School Middle School Gym College-Wide Hub

Junior School 04 06 05 07

Existing Senior School Existing Artsplex

Existing Montessori School

GARTH
FENNELL
W
MASTER PLAN 37
0 100 m Figure 26. Site plan
ST
AVE
HILLFIELD STRATHALLAN COLLEGE CAMPUS
04 06 07 01 05 03 02 03

Circulation

Pedestrian Circulation and Parent Drop Off

Pedestrian and vehicular circulation in the campus master plan is inspired by the existing circulation on campus but enhanced to respond to challenges and pinch points. The internal circulation routes are extensions of the existing east-to-west corridors in the Senior School that work in conjunction with new southto-north corridors that recall the existing circulation of the campus. The resultant pattern uses the pinwheel circulation concept to tie the four schools together. The pinwheel allows for open ended connections of the new and existing buildings to the site, enabling students to access the fields, courtyards and parent drop offs.

A winding campus loop encircles the four schools and meanders into the landscape of the campus, its character changing along its length depending on the adjacent context. Immediately west of the Senior School and new Middle School, it takes the form of a pedestrianfocused woonerf that creates a softer and safer interface for students moving between the schools and sports fields. The most significant proposition of the vehicular circulation system in the campus master plan is the

provision of a second entry to the campus from Garth Street. This was reviewed by City of Hamilton planning and transportation staff and supported provided it is right in and right out access only. Providing the two entries enables the campus to have a parent drop off to the south and to the north. This would support daily routines of arriving and collecting from the Junior School and Montessori School as a separate activity from the drop off to the main entry and the Middle / Senior Schools. It is anticipated that parents with both older and younger students would use the south drop off point, delivering their younger children directly to their school while their older children use the covered circulation network to travel to the Middle or Senior School. This limits the need for vehicular travel along the woonerf and components such as bollards can be used to control vehicular use of this route.

The intended result of this approach to campus circulation is to build upon current patterns, strengthen the experience and improve efficiency of movement.

Figure 27. HSC’s characteristic covered corridor system
38 HILLFIELD STRATHALLAN COLLEGE CAMPUS MASTER PLAN

0 100 m Figure 28. Pedestrian circulation and parent drop off

MASTER PLAN 39
GARTH ST FENNELL AVE W HILLFIELD STRATHALLAN COLLEGE CAMPUS

Parking, Servicing and Bus Movement

The main campus entry from Fennell Avenue West remains in its current location but has been rerouted to accommodate a relocated north parking lot and create a more formal entry sequence. The location of the north parking lot is connected to the driveway and the north drop off area. The existing south parking lot is extended as it will become more heavily used due to the new Garth Street entrance.

Service movement for deliveries and trash removal was reviewed in context of overall vehicle circulation and location of loading areas for the new buildings. There are two driving factors for service movement: entry off Fennell Avenue West and connecting to the loading area. As noted previously, the loading area is aligned with service connections to the Dining Hall in the CollegeWide Hub, which requires frequent delivery of food and removal of waste. Currently, it is assumed that there will be one loading dock and that garbage and recycling will be rolled out in bins. The vehicles would follow the route denoted in blue on the diagrammatic plan.

The loading zone allows for full turn around of service vehicles enabling them to exit without resorting to three point turns. It is sized to accommodate singular use at any one time and as such loading would happen at separate times from waste collection or bus refueling.

Bus movement is central to the daily activities and the experience of HSC. Buses will continue to enter off Fennell Avenue West at the existing driveway location. They would follow a route that pauses at a bus drop off aligned with a primary entry point to the campus complex. This location allows for short term parking for seven buses.

After drop off, the buses can continue on to park in the north-east lot or drive to the loading area for refueling. The existing underground fuel tanks are not being relocated in this campus master plan design.

When the College is ready to proceed with the first phase of development a traffic study will be required to verify and refine circulation patterns through the campus.

40 HILLFIELD STRATHALLAN COLLEGE CAMPUS MASTER PLAN
Figure 29. Existing campus paved vs. green space Figure 30. Proposed campus paved vs. green space
servicing
CAMPUS MASTER PLAN 41
0 100 m Figure 31. Parking,
and bus movement GARTH ST FENNELL AVE W HILLFIELD STRATHALLAN COLLEGE

Learning Landscape

The campus master plan’s landscape proposals are inspired by the Learning Landscape concept that College faculty have been developing for several years.

The concept of a Learning Landscape is based on the understanding that a connection to nature and the outdoors is fundamental to all aspects of human development and is a key component to building optimal mental, emotional, social and physical health for every child. It also recognizes that the connection to nature represents a key building block for the future of a sustainable society, especially in the midst of a global climate crisis and the COVID-19 pandemic. Research shows that when a child’s connection with nature is nurtured, the child flourishes: child obesity decreases, bullying rates decrease, child injury rates decrease, academic achievement rises, physical fitness and activity rates increase, attention spans improve, physical and social / cultural barriers melt away and environmental stewards of the future emerge. All of these benefits increase with more time spent outdoors in green space and HSC is perfectly positioned to leverage its 50-acre

campus by creating and enhancing the spaces and living infrastructure that will support these highly desired student outcomes.

To optimize these positive benefits for the academic, physical, and overall wellness of the entire HSC community and enhance the resilience and adaptation of the campus to climate change, the College is committed to developing, nurturing and leveraging the power of a Learning Landscape. This intentional and comprehensively planned approach to managing the campus will optimize its attributes for learning and curriculum support and integration, student and staff health and wellness, environmental sustainability, and climate change adaptation and mitigation. The Learning Landscape will serve current and future students and staff from all four schools across every curriculum area by enhancing and enriching educational experiences, supporting biodiversity and human wellness, and ameliorating the impacts of climate change on our campus and in the community.

42
PLAN
Paraphrased from the Hillfield Strathallan College Learning Landscape Positioning Statement
HILLFIELD STRATHALLAN
COLLEGE CAMPUS MASTER Figure 32. Learning Landscape activities underway on the campus (above and right)
MASTER PLAN 43
HILLFIELD STRATHALLAN COLLEGE CAMPUS

Landscape Types

HSC’s 50-acre campus offers abundant opportunity to create a Learning Landscape for its students that is beautiful, functional and educational. Different landscape types serving different purposes can be flexibly located across the campus in various landscape zones. Unifying the landscape strategy will be a focus on native species, biodiversity, low-impact development and four season useability. Some of the landscape types that can be deployed across the campus include:

Entry Landscapes create a sense of arrival and provide subtle wayfinding signals to direct visitors to the “front door.” Key features include seating, shade trees, open paved areas and wayfinding elements.

Social Landscapes provide space for students and faculty to socialize at recess and lunch and for formal College events to spill out from indoors. Key features include formal and informal seating, shade, and opportunity for large and small gatherings.

Active Landscapes are an important part of nurturing the whole child. A variety of active landscapes allow for a range of activities to improve fitness of students of all ages. These include new and improved sports facilities, natural play environments and traditional playgrounds.

44 HILLFIELD STRATHALLAN COLLEGE CAMPUS MASTER PLAN

Informational and Storytelling Landscapes can be used to share the legacy and stories of HSC like with the war monument in the Central College Quad. Plaques or monuments along the HSC Trail can tell the stories of alumni, donors, student achievements or key events.

Instructional Landscapes incorporate outdoor teaching spaces that can accommodate different age groups, class sizes and times of year. These can be immediately adjacent to indoor teaching spaces for seamless indoor-outdoor flows or set in a naturalistic setting.

Exploration Landscapes are particularly important for the learning of younger students. Landscape areas such as woodland clearings and bioswales could be populated with logs, stumps, boulders and small bridges to create an open canvas for exploration and creative play.

Edible Landscapes foster a unique connection to nature by growing and learning about food, which can then be incorporated into culinary programs. Edible landscapes on the campus can include the historic orchard, nursery spaces, raised planters and rooftop edible gardens.

HILLFIELD STRATHALLAN COLLEGE CAMPUS MASTER PLAN 45

Campus Renaturalization

Building on the fantastic renaturalization efforts made by HSC staff and students, new ecologies could systematically and gradually be introduced, to create a living campus. Coordinated with the overall phasing strategy, the renaturalization blueprint capitalizes on student and staff participation to create new experiential and pedagogical opportunities and strengthen campus identity. A well-defined maintenance regime is required to support various ecologies and programming, which are:

Vegetation layers = Native wildflowers and grasses Spaces = Buffer areas between fields, clearings in woodlands

Implementation= Mass seeding of native seeds Maintenance = Mow in early spring

Vegetation layers = Open tree canopies over meadows Spaces = Interstitial spaces, natural play areas, social areas

Implementation= Plant apex tree species over meadows Maintenance = Mow in early spring

46 HILLFIELD STRATHALLAN COLLEGE CAMPUS MASTER PLAN
Meadows Savannahs

Woodlands

Vegetation layers = Moderately dense tree and shrub layers in meadow or mown areas

Spaces = Buffer areas, exploration, outdoor contemplation, used to define outdoor classes

Implementation= Plant pioneer trees and shrubs

Maintenance = Mow as needed to carve out paths and outdoor classrooms

Microforests

Vegetation layers = Full range of vegetation layers, densely planted

Spaces =Protected microforests, sites of intensive renaturalization

Implementation= Dense planting of vegetation grown in school nursery in pockets within woodlands

Maintenance = Removal of weeds, replanting of native species as needed

Wetlands

Vegetation layers = Full range of water-loving plant layers Spaces = Bioswales, stormwater ponds, filterstrips

Implementation= Seed native plant species and fortify with campus-grown native species

Maintenance = Removal of weeds, replanting of native species as needed

HILLFIELD STRATHALLAN COLLEGE CAMPUS MASTER PLAN 47

Built Form

The built form strategy is designed to create a cohesive campus character within which each of the constituent parts has its own identity. It learns from the visual vocabulary of the Senior School, which uses iron spot brick as a dominant material and a clear anodized aluminum as a secondary material and has a clearly defined rhythm of fenestration. It also extends the massing strategy of the Senior School as a series of legible masses that are brought together to form a whole. Building elements are located to form strong visual and physical connections into the landscape and create a relationship between social spaces and adjacent public realms.

The unifying circulation system between schools has a clear, highly glazed character. When it enters a building a glazed node is expressed at the meeting point. Glazing is also used to enhance indoor-outdoor connections at key moments.

Each of the three new buildings (College-Wide Hub, Middle School and Junior School) will be individually designed when the College is ready to move forward with them. The campus master plan’s built form strategy provides broad guidelines for their design to ensure that key design principles are maintained and that the campus has a cohesive visual identity.

50 HILLFIELD STRATHALLAN COLLEGE CAMPUS MASTER PLAN
Figure 34. Existing campus materiality Figure 35. Materiality and fenestration strategies

FENNELLAVEW

01 02

Middle School Middle School Gym College-Wide Hub

GARTHST

Existing Senior School Existing Artsplex

Junior School 04 06 05 07

Existing Montessori School

HILLFIELD STRATHALLAN COLLEGE CAMPUS MASTER PLAN 51 Figure 36. Site axonometric
01 02 03 07 05 06
Shared Lands 04 03

Middle School

The new three-storey Middle School building is located north of the Senior School, allowing for continued use of the current Middle School buildings on the east side of the campus until the new facility is complete. The placement of the Middle School next to the Senior School also clusters all the older students close to the outdoor athletics facilities on the west side of the campus that are appropriate to their age and stage.

As summarized in the program, the new Middle School will accommodate approximately 320-350 students. It will contain approximately 8,500m² of space, of which 3,600m² will be for athletics. The mass of the double and single gym is wrapped by classrooms and administration space to the north and east, creating a positive frontage to the new entry forecourt and allowing for interaction between classrooms and adjacent outdoor space. The key design features of the Middle School are summarized in the diagrams on the right.

52 HILLFIELD STRATHALLAN COLLEGE CAMPUS MASTER PLAN
Figure 37. North approach

PV panels

Glazed walkway connecting schools

Ordered and systematic windows establishing a consistent rhythm

Create connections to exterior

Create connections between classrooms and landscape

Rooftop access

Green roof

Strong connections to the landscape and athletic fields

Middle School

Celebrate collaborative and social space on the exterior

Respect existing pine grove to Senior School

Bring in daylight to gym

Glazed volumes define entries and connection points and become places for vertical circulation

Middle School Gymnasium

CAMPUS MASTER PLAN 53
HILLFIELD STRATHALLAN COLLEGE

Junior School

The new Junior School building replaces the existing aging Killip building adjacent to the Montessori School with a more efficient two-storey building. The youngest students at the College thus remain clustered together and both indoor and outdoor facilities appropriate to their age and stage can be shared. A reconfigured entry for the Montessori School, Junior School and Artsplex is created at the north of the new facility, with easy access from the existing south parent drop off. The phasing strategy allows for temporary use of the current Middle School to house Junior School students while the new building is being constructed.

As summarized in the program, the new Junior School will accommodate approximately 200-220 students. It will contain approximately 3,400m² of space, of which 750m² will house a new Junior School / Montessori School shared gym placed to have equal accessibility from both of the schools. The key design features of the Junior School are summarized in the diagrams on the right.

54 HILLFIELD STRATHALLAN COLLEGE CAMPUS MASTER PLAN
Figure 38. Junior School south side

PV panels

Green roof

Brick tone to complement existing Montessori School

Create opportunities for classrooms to connect to the exterior landscape

Glazed walkway

to CollegeWide Hub

Glazed volume defines vertical circulation node

Strategic introduction of daylight into gym

Connection to Shared Lands

Rooftop access

SENIOR SCHOOL

South entry is articulated as glass volume and access as a connector for the Artsplex

EXISTING MONTESSORI SCHOOL

to CollegeWide Hub

Facade openings respond to orientation

Create connection of classrooms to exterior landscape

HILLFIELD STRATHALLAN COLLEGE CAMPUS MASTER PLAN 55
Junior School South Side Junior School North Side

College-Wide Hub

The College-Wide Hub combines the new Dining Hall (approximately 2,200m²), College-wide administration space (approximately 2,000m²) and Innovation Hub (approximately 1,500m²) into a single facility. Along with the new Middle School, the College-Wide Hub frames the new entry forecourt and creates a “front door” for the College. The combined facility provides efficiencies and takes advantage of synergies between functions. For example, easy proximity for touring the state-of-the-art Innovation Hub as part of campus tours or fundraising events. Its location north of Lawson Hall allows for continued use of that facility until the new Dining Hall is completed while the administration functions currently in the Holton and Strathallan Buildings are temporarily rehoused.

39. Dining Hall

56 HILLFIELD STRATHALLAN COLLEGE CAMPUS MASTER PLAN
Figure

Green roof

Green roof PV panels

Glazing adjacent to exterior circulation puts programs on display

Administration

to Junior School and Artsplex

Dining Hall

Rooftop access

Entry under cantilever

Rooftop access

Clerestory windows

Exterior walkway

Vertical fins to control solar heat gain

Glazed volume defines intersection of walkways and creates waiting space outside dining

to Junior School and Artsplex to Senior School

to Senior School to Senior School to Junior School and Artsplex

Innovation Hub, Loading and Servicing

Locate loading and refuel on south side away from front entry

New entry forecourt

Entry under cantilever

Bus unloading adjacent to new entry

Cantilevers and overhangs define entry and walkways

HILLFIELD
CAMPUS MASTER PLAN 57
STRATHALLAN COLLEGE

The three future building locations will require civil servicing changes to support the proposed construction on the campus.

The proposed Middle School should be able to be serviced via existing service mains that run adjacent to the proposed building site but an existing electrical duct would need to be relocated to allow for the construction of this building. The new Dining Hall and Innovation Hub conflicts with a number of existing site services. The currently proposed phasing would require these services to continue to be in use while the proposed Dining Hall and Innovation Hub are being constructed. Therefore, the existing services will need to be relocated to run outside of the footprint of the proposed new building before construction can begin on the building itself.

These relocated services would also ultimately service the proposed Junior School. This building location does not conflict with any existing site services that are utilized otherwise by the campus.

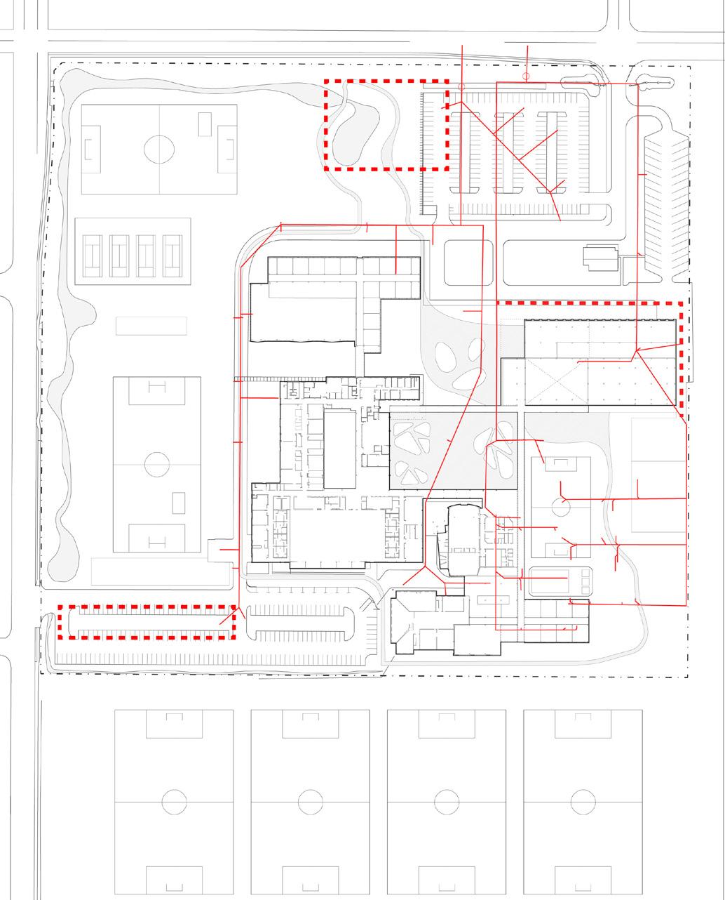
Three new or expanded parking lots are proposed to be constructed on the HSC campus property. Construction of the new north parking lot overlaps with the campus’s existing storm dry pond. Due to space limitations, this means the existing dry pond will need to be decommissioned. The stormwater quantity control volume provided by this dry pond can be replaced by utilizing an underground chamber system. The proposed parking lot at the south-west corner of the property can use a strategy for stormwater management similar to the existing adjacent parking lot. An infiltration gallery can be constructed in the middle of the parking lot to receive stormwater runoff and allow it to infiltrate into the ground. All new parking lots will require quality control run systems like oil-grit separators, bioswales or infiltration galleries.

Civil 58 HILLFIELD STRATHALLAN COLLEGE CAMPUS MASTER PLAN Figure 40. Water service Existing Water Line 01 02 01 Relocated water service Proposed watermain installation to compensate for lines removed due to construction of Dining Hall 02 GARTH ST FENNELL AVE W
HILLFIELD STRATHALLAN COLLEGE CAMPUS MASTER PLAN 59 Figure 41. Stormwater service Figure 42. Sanitary service Existing Sanitary Service Stormwater Sewer Existing Sub-Drain Existing Retention Pond 01 01 02 03 01 Proposed underground stormwater system to replace capacity from removal of existing storm dry pond Relocated stormwater service
infiltration gallery to support proposed parking lot 02 03 01 Relocated sanitary service GARTH ST FENNELL AVE W GARTH ST FENNELL AVE W
Proposed

Sustainability

HSC aspires to be a leader in environmental sustainability through education, construction, and ongoing operations. To support this goal, each building on campus will be designed to be constructed and operated to a high standard, and to teach students about climate change prevention and environmental stewardship. These ideals will serve current and future students and staff from all four schools across every grade and curriculum area by enhancing and enriching educational experiences, supporting biodiversity and human wellness, and ameliorating the impacts of climate change on campus and within the community. This approach to sustainable thinking will ensure that HSC remains a leader within K-12 schools in Canada in the approach to sustainability.

Codes, standards and green building rating systems are constantly changing. Specific strategies are to be viewed

as minimum targets, and reviewed in the planning of each project to determine the most current best practices within the industry. Examples of current standards that would meet the intent of this section include Passive House, LEED Gold or better, and the Canada Green Building Council’s Zero Carbon Building Standard. HSC recognizes that education for a sustainable future is essential to the fate of our society as our world faces the growing challenges posed by climate change.

“HSC is perfectly positioned to leverage our entire 50acre campus as an educational resource. By enhancing and imagining how our physical spaces can function as green infrastructure and rich learning spaces, we can simultaneously address the United Nations’ Sustainable Development Goals.”

Purposeful and Sustainable Learning EnvironmentsStrategic Plan Journey

60 HILLFIELD STRATHALLAN COLLEGE CAMPUS MASTER PLAN
HILLFIELD STRATHALLAN COLLEGE CAMPUS MASTER PLAN 61
Figure 43. Sources of embodied carbon Credit: oneclicklca.com

Sustainability Guidelines

Sustainable Site & Transportation Water Conservation

Require an Erosion and Sediment Control Plan for Construction

Protect and restore habitat – Design landscaping to be naturalized and promote local habitat

Implement green roofs on roof areas not occupied by PV rray. Consider installing green roofs with PV array concurrently

Stormwater management

Designate minimum of 5% of all parking spaces as preferred parking for green vehicles, equipped with electric vehicle charging equipment

Provide bicycle storage racks for at least 5% of students and staff, but no fewer than four spaces per building

Manage on site the runoff from the developed site for the 95th percentile of regional or local rainfall events using low-impact development (LID) and green infrastructure

Achieve minimum 40% indoor potable water reduction through use of low flow fixtures (max faucet 1.9 LPM, WC 4.2 LPF, Urinals 0.5 LPF)

Install permanent building level water metering, and meters for two or more water subsystems: Irrigation, indoor plumbing fixtures, domestic hot water, reclaimed water, other process water

Install naturalized, local, and drought tolerant landscaping as to not require permanent irrigation system

Energy & Whole Life Cycle Carbon

Net Zero Operational Carbon & Energy Reduction Targets

Commission a campus decarbonization study and renewable energy strategy to establish formal targets and strategies to achieve a net zero carbon campus by 2040

Consider purchase of green power and carbon offsets in interim

Disconnect buildings from unclean GHG intensive fuel sources for heating and cooling

Consider decarbonization of central district energy system, or consider high efficiency stand alone HVAC systems

Implement ultra high performance building envelope to achieve a minimum Thermal Energy Demand Intensity (TEDI) of 32 kWh/sq.m/yr, and construction phase airtightness testing

Limit window to wall ratio to maximum 40%

Install building-level energy meters, as well as meter all energy uses representing min 10% of total building energy

Utilize refrigerants with Global Warming Potential (GWP) of 1.0 or 0

Maximize installation of renewable energy systems

Embodied Carbon

Embodied carbon (EC) consists of all the GHG emissions associated with building construction, including those that arise from extracting, transporting, manufacturing, and installing building materials on site, as well as the operational and end-of-life emissions associated with those materials

Stepped Targets:

Until 2025: min 20% EC reduction

2025 to 2030: min 50% EC reduction

2030 to 2040: min 70% EC reduction

2040 to 2050: min 80% EC reduction

Materials Selection

Establish storage and collection of recyclables plan for each building

Select interior finishes which are low emitting (low to no VOC), are screened for impact on human and environmental health (P&W Precautionary List, LBC Red List, MindfulMaterials), have low embodied carbon, FSC certified, and high regional and recycled content

Require material transparency information –Environmental Product Declarations (EPDs) and Health Product Declarations (HPDs)

Develop Construction and Demolition Waste Management Plan, with minimum 80% waste diversion target

Opportunities for student education

62 HILLFIELD STRATHALLAN COLLEGE CAMPUS MASTER PLAN

Indoor Environmental Quality

Implement interior cross contamination prevention strategies, CO2 monitoring, and enhanced air filtration

Develop Construction Indoor Air Quality Management Plan

Indoor air quality testing prior to occupancy to ensure better quality air

Thermal comfort controls

Interior lighting controls

Carry out daylight and quality views analysis

Third Party Certification Systems

Certify each building to CaGBC LEED BD+C Gold minimum, using most current version

Consider:

CaGBC Zero Carbon Building Certification

Passive House Certification

Living Building Challenge

Fitwel Health & Wellness Certification

Promote visual connection to the exterior

Promote connections between program

HILLFIELD STRATHALLAN COLLEGE CAMPUS MASTER PLAN 63 01 02 03 04 05 06 07 08 09 10 Low impact development Rooftop PV Extensive green roof Rainwater harvesting Mass timber structure Triple glaze curtain wall 07 10 04 01 08 09 05 06 02 03 High performance envelope with 200mm insulation
Encourage pedestrian movement Figure 44. Sustainability tactics
64 HILLFIELD STRATHALLAN COLLEGE CAMPUS MASTER PLAN

05 Implementation

HILLFIELD STRATHALLAN COLLEGE CAMPUS MASTER PLAN 65

Phasing

The phasing strategy is based on the principle of minimizing disruption to the student experience by avoiding use of temporary learning spaces such as portables. While adhering to that principle, phasing of the campus master plan is flexible. Either the new Middle School or College-Wide Hub could be built first depending on fundraising interest. The phasing plans in this section propose that the Middle School be developed as Phase 1 based on a number of factors including program demand; impact on daily operations; and level of interference with existing civil, mechanical and electrical services. This is a conceptual approach that has not been assessed in the context of other factors such as enrollment, fundraising and academic plans. Revising this sequence to develop the College-Wide Hub first is possible, provided the issue of maintaining existing servicing is resolved and temporary space is found or

added in the form of portables for staff displaced from the Holton and Strathallan buildings. In either phasing scenario, students could remain in existing classroom spaces, with the Middle School acting as temporary space for Junior School students.

Figure 45 shows Phases 1 to 3 and A to D. Phases 1 to 3 include each of the new buildings and associated landscape / site work that needs to be completed at the same time. Phases A to D include additional landscape / site work elements that can be done independently of the phasing of the buildings. Figures 46 to 48 and the cost estimate in Figure 49 allocate Phases A to D to one of the three primary phases based on the recommendation of the landscape team, however these items can be done at any time.

66 HILLFIELD STRATHALLAN COLLEGE CAMPUS MASTER PLAN

PHASE A BIOSWALE

PHASE B SPORTS FIELDS

PHASE 1 BOUNDARY

FENNELL AVE W 0 100 m

Figure 45. Phasing

PHASE 1 BOUNDARY

PHASE C COURTYARD

PHASE D SPORTS FIELDS PHASE 3 JUNIOR SCHOOL

PHASE 2 BOUNDARY GARTH ST HILLFIELD STRATHALLAN COLLEGE CAMPUS MASTER PLAN 67

Phase 1: Middle School

The new Middle School will be least disruptive to construct first because it is located on the current north parking lot and therefore does not require demolition of existing facilities. The new secondary entrance from Garth Street should be constructed in Phase 1 to ease the impact of construction on traffic circulation on the campus and the south parking lot expanded to replace the parking spots lost.

Construct the Middle School on the existing parking lot.

Middle School students move to the new Middle School and administrative staff move temporarily to the Heaven, Young and Collinson buildings. Demolish the Holton and Strathallan buildings.

68 HILLFIELD STRATHALLAN COLLEGE CAMPUS MASTER PLAN
01 03 02 Figure 46. Phase 1 building diagram Temporary nursery and greenhouse Outdoor classrooms and further naturalization
Phase A North and west buffer including bioswales Rooftop edible garden Optional
1 2 3
Expand south parking lot
Phase Boundary Line
GARTHST FENNELLAVEW

Phase 2: College-Wide Hub

The new College-Wide Hub encompassing administrative space, a new Dining Hall and Innovation Hub will be constructed prior to the demolition of Lawson Hall to ensure there is no disruption in the dining experience for students. Phase 2 will also require the reconfiguration of the entry from Fennell Street West, along with development of the new north parking lot and bus parking area and creation of the entry forecourt.

Construct the College-Wide Hub and move staff into the new administration space.

Demolish the existing Page Building and Lawson Hall.

Junior School students move temporarily to the Heaven, Young and Collinson buildings.

Demolish the Killip building.

05 04 06 07 Figure 47. Phase 2 building diagram 4 5 6 7
HILLFIELD STRATHALLAN COLLEGE CAMPUS MASTER PLAN 69 Entry sequence landscape and orchard Rooftop edible garden North parking lot Phas e C Central Q uad Phase B Woonerf, savannah corridor and adjacent amenities Phase B Basketball courts Phase B Improve sports fields and install new track Relocate nursery to final location Optional GARTHST FENNELLAVEW Phase Boundary Line

Phase 3: Junior School

Construction of the new Junior School will be the final phase of the campus master plan. Once no longer needed as temporary space, the Heaven, Young and Collinson buildings can be demolished to make room for sports fields and landscape improvements on the east side of the campus.

8 9

Construct the Junior School on the site of the former Killip building and move Junior School students to their new space.

Demolish the Heaven, Young and Collinson buildings.

Phase D Junior sports facilities, naturalization and outdoor classrooms

Montessori playground and Junior outdoor classrooms

Naturalized buffer in Shared Lands

is not costed and is to be done as part of school greening program

09 08 Figure 48. Phase 3 building diagram
Optional Phase Boundary Line 70 HILLFIELD STRATHALLAN COLLEGE CAMPUS MASTER PLAN
GARTHST FENNELLAVEW
PLAN 71
HILLFIELD STRATHALLAN COLLEGE CAMPUS MASTER

Turn static files into dynamic content formats.

Create a flipbook
Issuu converts static files into: digital portfolios, online yearbooks, online catalogs, digital photo albums and more. Sign up and create your flipbook.
HSC Campus Master Plan by Hillfield Strathallan College - Issuu