
1 minute read
BCHA- The Spoke on Coffman | RNN Architects
Design Development - Construction Documentation
Project Lead: Jerry Boland, Rea Jackson
Advertisement
Softwares: Revit
Program: Affordable Multi-Family housing
Project Overview
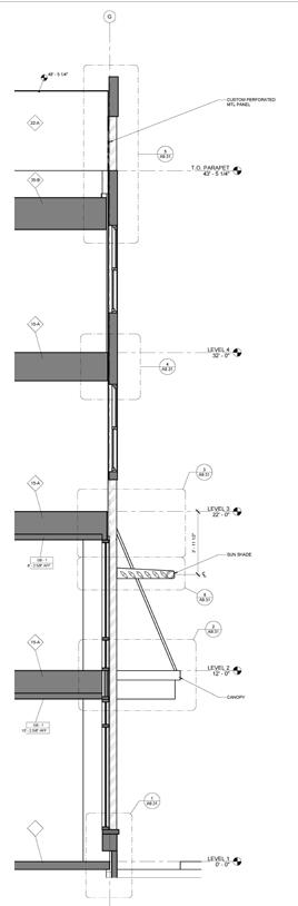
Boulder County Housing Authority developed 518 Coffman Street which is approximately a 1.3-acre site into a mixed-use facility. The design is to become an integral part of the City of Longmont’s Coffman Street redevelopment-improvement project. The project site is located on the city block located along Coffman Street between 5th and 6th Street in Longmont’s Central Business District (CBD). The “mixed-use” facility has an approximate building area of 180,000 Sq. Ft, 240 parking garage spaces, approximately 10,000 Sq. Ft of commercial/office space, 75 affordable housing dwelling units (one, two and three bedrooms), leasing office, community room, various resident amenities and building services functions. The “Residence” portion of the building includes a centralized courtyard open to the weather, providing daylight to internally located dwelling units surrounding the courtyard perimeter and provide sat gathering space including amenities for residence and private groups to enjoy. This multi-family affordable housing portion of the project is to be constructed with conventional wood framing four stories in height as a modular of panelized system.
Personal Duties:
• BIM Production in DD and CD Phases
• Developed 3D views for client review.
• Produced axonometric drawings to convey design intent
• Attended coordination meetings between MEP and structural.
• Reviewed Shop Drawings




