
2 minute read
Urban cohesion
Mixed use complex
site : Tainan, Taiwan 22°99'39.1"N 120°19'50.9"E status : acadamic studio research
Advertisement
2022 winter - 2023 spring create a volume to assemble community of each corner pyramid create floor plans that enable to view what’s happening in the community light light into the volume create a spiritual space which open a sense of ceremony a half transparent volume makes the pyramind less oppress and create a way letting light in structure pattern create a sense of ceremony of entering the center which finds lost fee four
The base is located in the canal activity area of Tainan City, which used to be one of the city's centers known as "Old China Town" with a concentration of entertainment such as restaurants, department stores, amusement parks, and theaters, as well as hotels. However, in 1993, the widening of Hai'an Road caused a reduction in pedestrian traffic between China Town and Zhongzheng Road, leading to a gradual decline in activity and a disconnect between the base and Tainan City.
We are considering how to revitalize the energy in the city's peripheral areas, absorb urban vitality, establish daily life rituals, and convey information, treating buildings as the city's living room and the ground floor as a playground where people can gather and reconnect without cost. The buildings would become a unifying force for the city.

In contrast to most urban blocks in Tainan — which are typically inward and mixed — this project forms a penetrating force.
The gaps between the skin and the spatial units produce semi-outdoor spaces, conveying a permeable and breathable image, where views, air, and people intersect between the building and the city.
The building absorbs the life of the city.
The urban route through the building leads to unpredictable interactions between the building and the city, residents and tourists, connecting the culturally rich base with Tainan's various museums, libraries, and historical sites.
This project plan serves as an urban absorber, consisting of two components: a mixeduse commercial building and a community center.
The latter includes exhibition spaces, offices, co-working spaces, hotels, cafes, bookstores, fitness centers, restaurants, green spaces for recreation, and an underground public parking lot.
The mixed-use commercial building incorporates coworking spaces, fashion brand headquarters, and hotel management cooperation, creating a new start-up office space and tourist hub in the city.
The brand show itself forms the core of this project, located in the center, and is organized into an embedded space sequence that runs through the entire building and surrounds functions: housing, offices, and penetrable corridors.











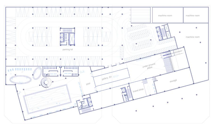
The passage : starts from the underground, with a swimming pool and skateboarding terrain, echoing the elements of fun in the plaza, and forming a relationship between the ground and the strata.
The upward movement connects the panoramic view of the entire Tainan waterfront and the overall development of the Tainan city’s edge. The roof skin expresses the absorbing symbol that brings people together and forms an active rooftop plaza, reflecting activity at both the top and bottom.














The community center introduces a new symbolic element: the creation of a mass between the building and the city.
The trapezoidal mass conveys a sense of cohesiveness and is embedded in the upper part, forming an open plane as the city's living room.

The lower level features a sheltered public square, providing a venue for cultural activities related to surrounding temples.
As visitors enter the mass, they pass through the community and enter the transparent outer layer, finally reaching deep inside the mass, creating a ritualistic sense of spatial transformation, similar to switching between daily life routines, allowing the building and the city to begin functioning.





