Buurtinformatiesessie
NIEUWBOUW VESALIUS
donderdag 13 november 2025


![]()
donderdag 13 november 2025


1.Voorstelling Zorgbedrijf Brasschaat
2.Bouwprogramma
3.Impact voor de buurt
4.Verdere verloop
5.Communicatie buurt
6.Zijn er nog vragen?

Huidig aanbod:
Woonzorgcentrum Vesalius: 132 bewoners
waarvan 2 kamers voor kortverblijf
Dagverzorgingscentrum Brasschaat: 15 klanten
Assistentiewoningen Balderhof: 20 flats
> beschikbaar tot 30 juni 2032
Vesalius verhuist van ziekenhuis naar woonomgeving Kleinschalig wonen in het woonzorgcentrum



Renovatie van het huidige Sint Jozef-gebouw en de kapel: dagverzorgingscentrum Brasschaat voor 15 personen ondersteunende functies woonzorgcentrum Vesalius cultuurprogramma gemeente Brasschaat
Nieuw woonzorgcentrum voor 132 bewoners
35 parkeerplaatsen waarvan 32 ondergronds (volgens verordening en mobiliteitstoets)
Buitenaanleg met maximaal behoud van open ruimte
Aangesteld voor de opmaak van het masterplan: Van Roey NV – Osar Architects NV
Bestaande inplanting

Toekomstige inplanting
A u g u s t l i j n s l e i

A u gustl i jnslei

Dodenhuisje

Kapel cultuurprogramma

Sint-Jozef
dagverzorgingscentrum ondersteunende functies woonzorgcentrum
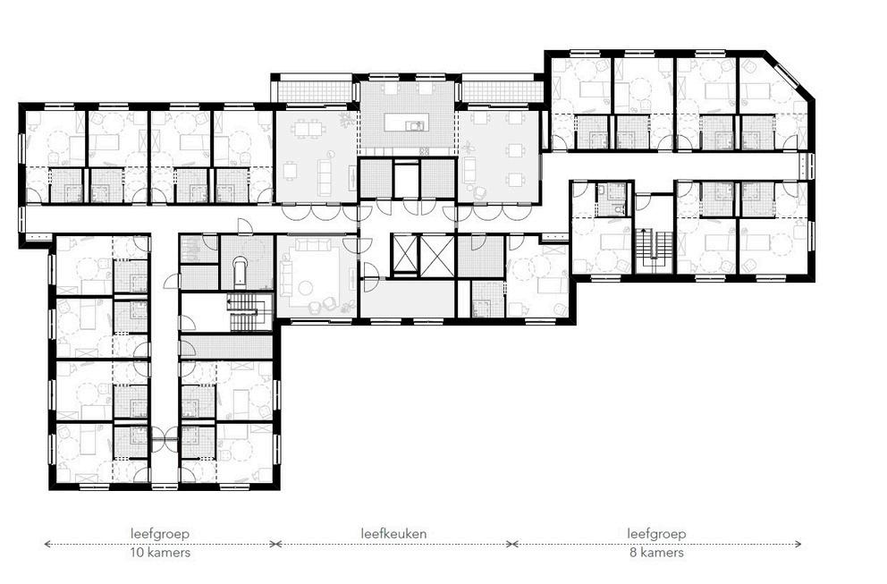
Gebouw B leefgroepen


Gebouw A leefgroepen

inrit parking
Zicht vanuit Augustijnslei:
Uitzicht blijft behouden
Kapel en Sint Jozef worden gerenoveerd met respect voor het erfgoedkarakter


Sfeerbeeld binnengebied met zicht op Sint Jozef



Voor 15 personen: idem zoals heden










Zicht vanuit Van Hemelrijcklei:
Nieuwbouw van 3 verdiepingen
Materialisatie: volledig metselwerk


Zicht vanuit OLO Rotonde:
Nieuwbouw van 2 verdiepingen
Materialisatie: combinatie van metselwerk en pleister


Materialisatie: combinatie van metselwerk en pleister
Zicht vanuit Van Hemelrijcklei: 3 verdiepingen



Gevelfragment
Materialisatie: combinatie van metselwerk en pleister
Zicht vanuit OLO Rotonde: 2 verdiepingen



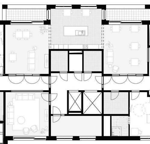
Kleinschalig wonen in het woonzorgcentrum
Leefgroepen van 8 tot 11 bewoners met eigen leefruimte
Koppeling 2 leefgroepen met gemeenschappelijke keuken
Korte gangen en korte loopafstanden
Grote open leefruimtes met veel daglicht en zicht naar buiten
Elke leefgroep heeft een eigen ‘inkom’
Mogelijkheid tot koppelkamers
Comfortplus kamers (eigen sanitair)
Inrichting kamer naar keuze bewoner
Koken op de afdelingen
Maaltijden bereid in de keuken van de leefgroep
Samen koken: voor en met de bewoners










Performante buitenschil
Isolatie
Zonwering
Buitenschrijnwerk
Zonnepanelen
Gezond en aangenaam binnenklimaat door ventilatiesysteem
Gasloos verwarmen door geothermie
In onderzoek voor de toekomst: warmtenet voor de gehele Zorgdriehoek
Waterhuishouding
Hemelwater opvangen voor hergebruik
Hemelwater bufferen via groendak en wadi
Gesloten bouwput en aanstelling bomenspecialist om bestaande bomengordel te behouden
Geen technische installaties op het dak
Aandacht v landschap openbaar
Levendige
Maximaal bestaande buurtweg
Behoud M
Parkeren o terrein (on


Cultuur
Cafetaria
Leefgroepen

Ondergrondse parking
Dagverzorgingscentrum
Toegang binnentuin
voetgangers + brandweer / ambulance / …


laden en lossen
Sint Jozef en kapel
A u gustl i jnslei

afvalstraat ingebed in groene zone


laden en lossen gebouw
A en B
Maximaal behoud van bestaande bomen en buurtweg
We planten méér nieuwe bomen aan dan we rooien


Huidige groenvoorziening:
Te rooien bomen aangeduid in rood
Te verplaatsen boom naar Arboretum in oranje

Toekomstige groenvoorziening: Nieuw aan te planten: hoogstammen, bloesembomen en grote meerstammen
Zicht blijft behouden
Hellingen en groen worden vernieuwd


Bestaand gevelaanzicht Augustijnslei

Uitbreiding groen door afbraak aanbouw


Toekomstig gevelaanzicht Augustijnslei


Bestaand gevelaanzicht Van Hemelrijcklei

open zicht
Toekomstig gevelaanzicht Van Hemelrijcklei

ondergrondse parking

Behoud buurtweg en groenbuffer

Nieuw gebouw staat 10 m verder van de straat
Maximale bouwhoogte blijft gelijk
Bestaande aanbouw
Sint Jozef



Bestaande doorsnede Van Hemelrijcklei
Nieuw woonzorgcentrum
Toekomstige doorsnede Van Hemelrijcklei + 10 meter
3 verdiepingen
Bestaande appartementen
3 verdiepingen onder schuin dak

Van Hemelrijcklei

Van Hemelrijcklei

Bestaande appartementen
3 verdiepingen onder schuin dak
Groenbuffer en buurtweg blijven behouden
Buurtweg

Bestaande doorsnede Prins Kavelhof




Buurtweg



Om het project te realiseren werden twee stedenbouwkundige vergunningen
bekomen:
een 1ste voor de sloop: verkregen op 2 april 2025
een 2de voor de bouw van het project: verkregen op 9 oktober 2025
Verloop bouwwerkzaamheden:
Afbraakwerken afgerond op 31 december 2025
Bouwwerken nieuwbouw starten op 25 november 2025
Prognose timing verhuis: zomer 2027
De bouwwerken zullen starten op 25 november 2025
Voorafgaandelijk aan de start van de werken wordt boombeschermingsplan opgemaakt
Werkuren van 06.50u tot 17u (arbeiders komen toe vanaf 06.30u)
Leveringen niet op schooldagen tussen 07.30u en 9u en tussen 15u en 17u
Op piekmomenten kan afgeweken worden van bovenstaande. Hierover zal voorafgaandelijk gecommuniceerd worden.

in&uitritwerfverkeer viaschuifpoort parkeerverbodVanHemelrijcklei


2 torenkranen
in&uitritwerfverkeer viaschuifpoort parkeerverbodVanHemelrijkclei

tijdelijke omlegging voor fietsers en voetgangers
huidige buurtweg afgesloten tijdens de bouwwerken

We organiseren ca. elke 6 maanden een buurtinformatievergadering
Bij piekmomenten in werfverkeer/werkzaamheden worden buurtbewoners telkens vooraf verwittigd door de aannemer
Van Roey / Osar maakt voor specifieke situaties afspraken met de verkeerspolitie voor de verkeersafwikkeling




Erwin Callens
Voorzitter
Zorgbedrijf Brasschaat
0486 31 78 24
Erwin.Callens@zorgbedrijf.be
Karina Hans
Ondervoorzitter
Zorgbedrijf Brasschaat Schepen sociale zaken
Dirk Bervoets
Algemeen directeur Zorgbedrijf Brasschaat

Miquel
Joseph Directeur vastgoed en investeringen Zorgbedrijf Brasschaat

Niels
Monnier
Buurtzorgmanager Zorgbedrijf Brasschaat

Jo Dreezen
Senior Projectmanager Vastgoedontwikkeling Zorgbedrijf Brasschaat

Els Vodderie Projectmanager vastgoedontwikkeling
Zorgbedrijf Brasschaat
Vanaf 14 november vind je de presentatie
op www.zorgbedrijfbrasschaat.be en op www.brasschaat.be

