
1 minute read
FRUITS’ CULTURAL CENTER
Located over a highly transited highway, in a very extreme-climate city in Mexico, this sustainable center aims to serve as a groundbreaking landmark for families to learn about local industrial processes regarding endemic fruits.
Location: Monterrey, Nuevo Leon, Mexico.
Advertisement
Size: 12.3 acres
Type: Mixed Use
Collaboration: Diego Cabrera, David Aguirre

Investigation Center
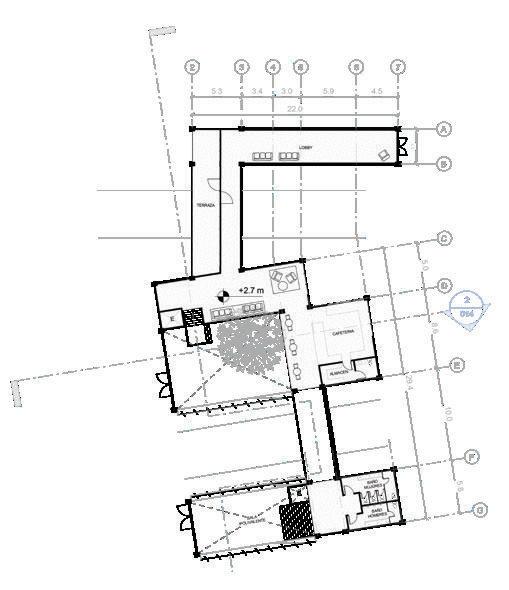
Serving as a noise and pollution-mitigating buffer that separates the highway and the rest of the project, the investigation center contains labs, meeting, class and respite rooms, administrative offices and a cafeteria. Spaces to ensure efficient pre-operational processes.

Respecting all surrounding trees, the museum is located at the center of the site, connecting to adjecent buildings and ensuring, as well, communication with the



The museum serves as a magnet for the youngest demographic groups to interactively learn about the history and processes involved in local fruit production chains.














