Xinyue (Mary) Zhu_Portfolio_20250315

Page 1


XINYUE ZHU

Uiversity of British Columbia Bachelor of Design in Architecture Landscape Architecture and Urbanism 2025

PROJECT I. TIDAL LIBARY

PROJECT

FOREST

PROJECT V. SOUND WAVE

HOUSE

PROJECT VII. INTERN WORK

IV. PLAY, CREATE AND ART

PROJECT VI. VISUALIZATION

PROJECT VIII. CREATIVE WORK AND POSTERS

PROJECT 1

TIDAL

LIBRARY

Project type: Individual Acadmic Work

Project time line: 8 Weeks

Software: Handdrawing, Rhino, Adobe Suite, Enscape, Grasshopper

The project aimed to construct a library in the central housing area, integrating the landscape with the library. The campus can be classified into three types of landscape- architecture relationship: Pure landscape with paths, Architecture in landscape and Landscape in architecture. The project was situated between the architecture

EXTERIOR VIEW FROM THE ENTRANCE

EXTERIOR VIEW FROM THE ENTRANCE

RELATIONSHIP BETWEEN TREES AND BUILDINGS

EXTERIOR VIEW FROM THE BACKYARD

PROJECT 2 THRESHOLD IN FOREST

The project is situated in the forest to the Totem Park in the UBC campus. Overall, the project aimed to construct a performancing and communicating center for the students in the Totem forest on the UBC campus and to provide facilities for recreational activities in the forest.

Project type: Individual Acadmic Work

Project time line: 6 Weeks

Software: Handdrawing, Physical Model, Camera

SKETCH

THREE EMOTION CONCEPTS

The design concept is inspired by my feeling about the forest. Three abstract emotional concepts, namely “Layers”, “Twist”, and “Endlessness” were derived from these feelings. Additionally, I explored to implant landscape buildings into the natural forest in this project.

The feeling of "Twist" usually is typically evoked by the imagery of branches and roots of the trees, "Endlessness" is mostly associated with the trunkas in the forests, and the "Layer" is likely triggered by the leaves.

SITE AND PLAN PROGRAMS

There are two kind of landscape buildings in the project, they are bridges for walking vertically among several different levels and performance facilities involved stage which are created based on the three emotional concepts inspired by the natural forests.

Elevated Corridor
Lookout
Cafe
Quiet Seats

PERFORMANCE CENTRE MODEL CORRIDOR CORRIDOR CORRIDOR PERSPECTIVE

PERFORMANCE CENTER PLAN

DESIGN SEGMENTS

The Performance Center its the facilities showcase a stage area where people can walk, sit, and enjoy their time observing causal plays within a forest setting. The location has been designed with the twist element in mind, constructed along the topography by flattening the contour lines to create a circular space for the stage. The stage serves as a highlight of the entire design. The corridor shows the walking place where people can pass through the topography and have a view to interact with the forest.

PROJECT 3 GREEN HOUSE

Project type: Individual Academic

Work

Project time line: 8 Weeks

Software: Handdrawing, Rhino, Adobe Suite, Enscape, Grasshopper

Location: Intersection of Prince Edward Road and East 21st Avenue, Vancouver.

The project aimed to introduce and educating the community about green residential properties through green building, green running, and green living. The goal was to promote environmentally conscious lifestyles by establishing an open space for educational activities and implementing energy recyling methods in the residence.

PERSPECTIVE

SECTION PERSPECTIVE AND TECHNICAL DRAWINGS

Location: Connaught Park between West 10th avenue and West 12th avenue at Larch street and Vine street, Vancouver.

The project aimed to connect with the urban greenway system to create a community of interactive, artsitic, creative activities for families nearby.

PROJECT 4

PLAY, CREATE AND ART

CONNAUGHT PARK RENEWAL

Project type: Individual Acadmic Work (Design Tenets shown has been extended from group urban project)

Project time line: 8 Weeks

Software: Handdrawing, Physical Model, Rhino, Adobe Suite

BACKGROUND

This design is the architectrual propersal on Connaught Park which constitutes Module 3 of the overall project following Module 1 and Module 2. Module 3's design was undertaken individually after the completion of Module 1 and Module 2, which were collaborative efforts among three students. In Module 2, we proposed a more effective use of the greenway to bridge the gaps and create additional community spaces for all residents, ensuring a sense of safety in these unbanspces. There are three sites in the greenway system, and I have chosen Connaught Park to further development.

The threshold of the city around the school contains dense residential boundaries, comprising single houses and mid- rise buildings. Although, the schools host numerous art and creative clubs, the entire Kitslano area lacks art institutions.

Residents can collaborate with Delmont Park food lab to provide different kinds of food vendors and they can sell in farmer markets.

Residents can collaborate with Granville Park to work on their art pieces. The fabrication workshop has provided more possibilities and reduece the restrictions to explore potential of industrial materials.

Residents can collaborate with Delmont Park food lab to provide different kinds of food vendors and they can sell in farmer markets.

Interactive Art Studios and exhibition centers have provided places for artists to create and exhibit food art pieces. Residents can also interact with artwork about tastes that artists/ students produced from Delmont Park.

URBAN PLANNING

PROPOSED GREEN WAY URBAN SPACE

PERSPECTIVE

PERSPECTIVE STAGE SECTION

Stage: Show the outdoor visual art and perfomance area.

AI Wall: Show the outdoor night light installations and exhibition on the building of Food Court, and temporary market along walk greenway.

Main Pathway: Outdoor view of Visual Art Building along green walkway.

PROJECT 5 SOUND WAVE

Project type: Individual Acadmic Work

Ptoject time line: 2 Weeks

Software: Handdrawing, Physical Model, Camera

CDs and DVDs provided me with wonderful moments, immersing myself in the world of music during my childhood. Inspired by these experiences, I decided to transforme them into a sculpture representing a typical audio track unit for nostalgic purposes. The original materials for this project included CD/DVD boxes in two different sizes (as depiced in the sketches). Additionally, CDs and DVDs were utilized to connect between the upper and lower levels of the sculpture. Concerning the CD/DVD boxes, the larger ones can rotate 180° while the smaller ones can rotate at an angle is 270°. However, the larger CD boxes are prone to overturning and can rotate at any degree. Considering this and the abundance of the arge boxes, I opted to use them as the primary material, while the smaller boxes serve as supplementary materials.

FRONT VIEW

PROJECT 6 VISUALIZATION

Project type: Individual Acadmic Work

Ptoject time line: 2 Weeks

Software: Handdrawing, Physical Model, Camera.

PERSPECTIVE

The inspiration for this work came from the novel “Up and Down”, which revolves around a competition to send someone to an international space station near the sun. I chose a dispenser with an embeded tap as my object. In this context, I utilized the dispenser to represent the space station near the sun and the tape as the earth, surrounded by curved stairs symbolizing orbits around the Sun and the Earth. The terrace has three contact points with the objects, allowing visitors to enter the space station (madefrom dispenser) and observe those outside through the transparent facade. The work can be viewed as an artifact from the top and as a model from side view.

SKETCH
FRONT VIEW

PROJECT 7

INTERN WORK

Project type: Shopping Mall Technical Drawings

Period Participated: 2 Months

Software: Auto CAD, Rhino, Sketchup

The shopping mall aims to construct an oasis in the city for business dinners and casual night life.

I’ve joined the project to do technical drawings, including creating design iterations of some solids, and design landscape area for casual and formal dinners. Between these drawings, it is a meaningful chance to practice designing boundaries of an architecture in practice.

FRONT VIEW

SKETCHUP MODEL

DRAFT RENDER

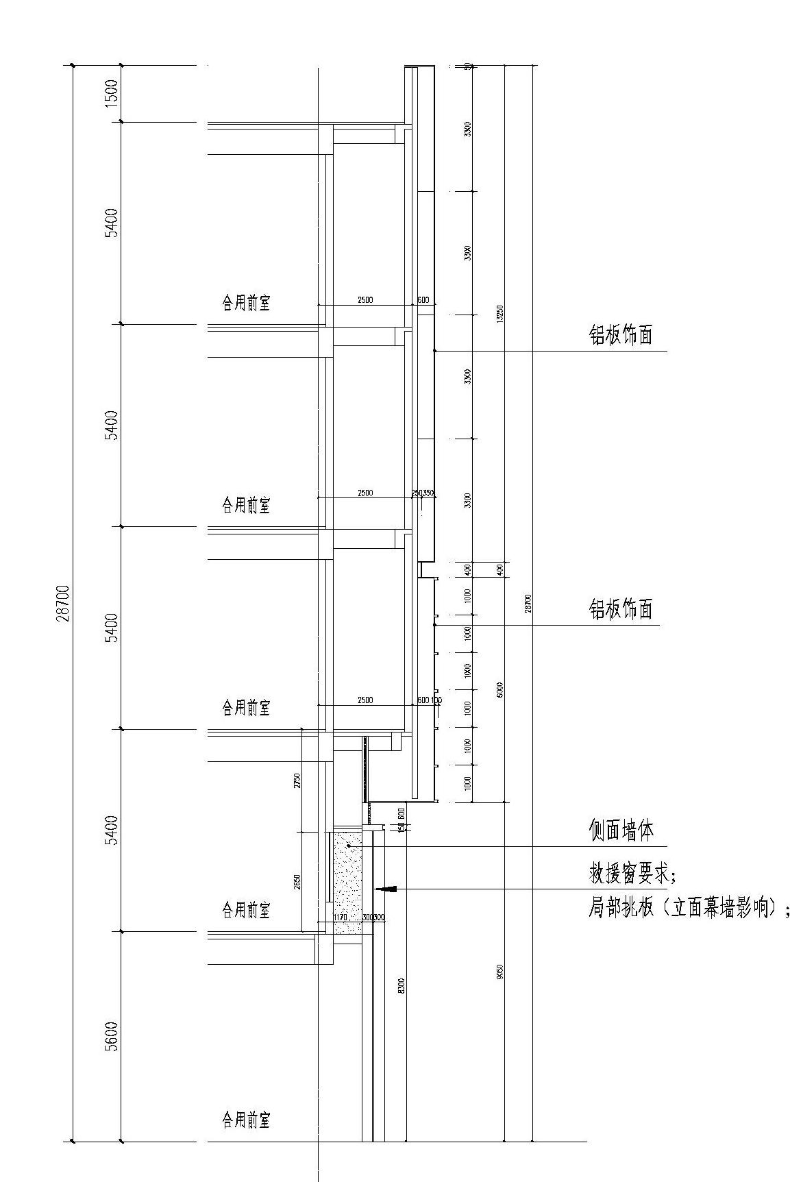
DETAILED SECTION

PROJECT 8 CREATIVE WORK

INSPIRED BY UNDERGROUD GLASS PRISMS IN VANCOUVER

DRESS MADE FROM INSULATION PAPER AND EMERGENCY BLANKET

II. INDIVIDUAL WORK: TYPOLOGY OF CUBES

TYPOLOGY I: SITTING
TYPOLOGY II. PLAYING

PROJECT 9

POSTER DESIGN

Turn static files into dynamic content formats.

Create a flipbook
Issuu converts static files into: digital portfolios, online yearbooks, online catalogs, digital photo albums and more. Sign up and create your flipbook.