LIO

CONTACT
+32 474 91 67 06
cvschandevyl@outlook.be
www.linkedin.com/in/caroline-van-schandevyl

Animée par une passion profonde pour l’architecture intérieur et le design, je suis architecte d’intérieur diplomée de l’ESA StLuc à Bruxelles. Mon parcours m’a permis d’acquéir une mâitrise approfondie des espaces, des matériaux et des techniques de conception.
Créative et déterminée, chaque projet est pour moi une occasion de repousser mes limites, d’innover et d’ailier esthétique et fonctionnalité.
Ce portfolio reflète mon parcours, mes compétences et ma détermination à relever de nouveaux défis pour continuer à évoluer professionnellement.
EXPERIENCES
STAGE/ATELIER LIONEL JADOT, ZAVENTEM
SOFTWARE SKILLS
STAGE/ARTER ARCHITECTS, BRUXELLES
FREELANCE PEINTRE DE BÂTIMENT
20182019 2024
PEINTRE DE BÂTIMENT/PIPERATA ZURICH,
2014-2018
EDUCATION
DESSIN ET TECHNOLOGIE EN ARCHITECTURE
ESA SAINT-LUC, BRUXELLES
2024 -2025
CREATION D’INTERIEUR AVEC DISTINCTION
ESA SAINT-LUC, BRUXELLES
2021-2024
COMPLEMENT CESS
INSTITUT PAUL HANKAR, BRUXELLES
2019-2020
TECHNICIEN EN DECORATION ET AMENAGEMENT
D’ESPACE INSTITUT PAUL HANKAR, BRUXELLES
2018-2019
FORMATION PEINTRE DE BÂTIMENT
PIPERATA ZURICH, SUISSE
2014-2018
PLAN MODELISATION
RENDUS GRAPHIQUES/ PRESENTATION
LANGUES
AUTOCAD SKETCHUP
TWINMOTION
ADOBE INDESIGN ENSCAPE
ADOBE PHOTOSHOP
ADOBE ILLUSTRATOR
ALLEMAND MATERNELLE
FRANCAIS
ANGLAIS
NEERLANDAIS
BILINGUE AVANCE INTERMEDIAIRE
CENTRE D’INTERETS
COUTURE
LECTURE
MODELISATION 3D
DESIGN MOBILIER
CALLISTHENIE




TABULA RASA INK
FLEXISHELF
LA CAPSULE TEMPORELLE DU DAILY-BUL
PROJETS PERSONNELS
TABULA RASA INK
Aménagemant d’une péniche 2023
Tabula Rasa Ink repense le tatouage blackout en transformant une péniche en sanctuaire de renaissance personnelle. Bien plus qu’une simple expression corporelle, ce tatouage devient un moyen de réécrire son histoire, d’effacer le passé et d’accueillir une nouvelle identité. Cette transformation, à la fois physique et symbolique, est au cœur de l’expérience.
Au centre de l’espace, une structure en forme d’incubateur incarne cette métamorphose. Elle marque la transition entre l’ancien et le nouveau soi, faisant de chaque tatouage un rituel visuel de réinvention. L’incubateur symbolise ce passage, où l’individu se libère du passé pour embrasser une version affirmée et renouvelée de luimême.




FLEXISHELF
Modules d’exposition réutilisables pour l’ESA St-Luc
2024
Dans le cadre du cours de design, l’objectif était de concevoir des supports scénographiques réutilisables, économiques et écoresponsables pour les expositions au Local M30 de l’ESA St-Luc.
Plutôt que de créer de nouveaux supports, j’ai choisi de réutiliser un élément existant : les étagères Sencys de Brico, déjà présentes dans les salles de classe. En les adaptant, elles se transforment en modules polyvalents, capables d’exposer des maquettes, affiches et autres travaux étudiants. Cette approche permet de maximiser les ressources disponibles tout en réduisant le gaspillage.
Grâce à leur modularité, ces structures assurent une circulation fluide et une flexibilité d’agencement pour s’adapter aux différentes expositions. Ce projet propose ainsi une solution durable et fonctionnelle, en réutilisant intelligemment du mobilier existant.
FLEXISHELF

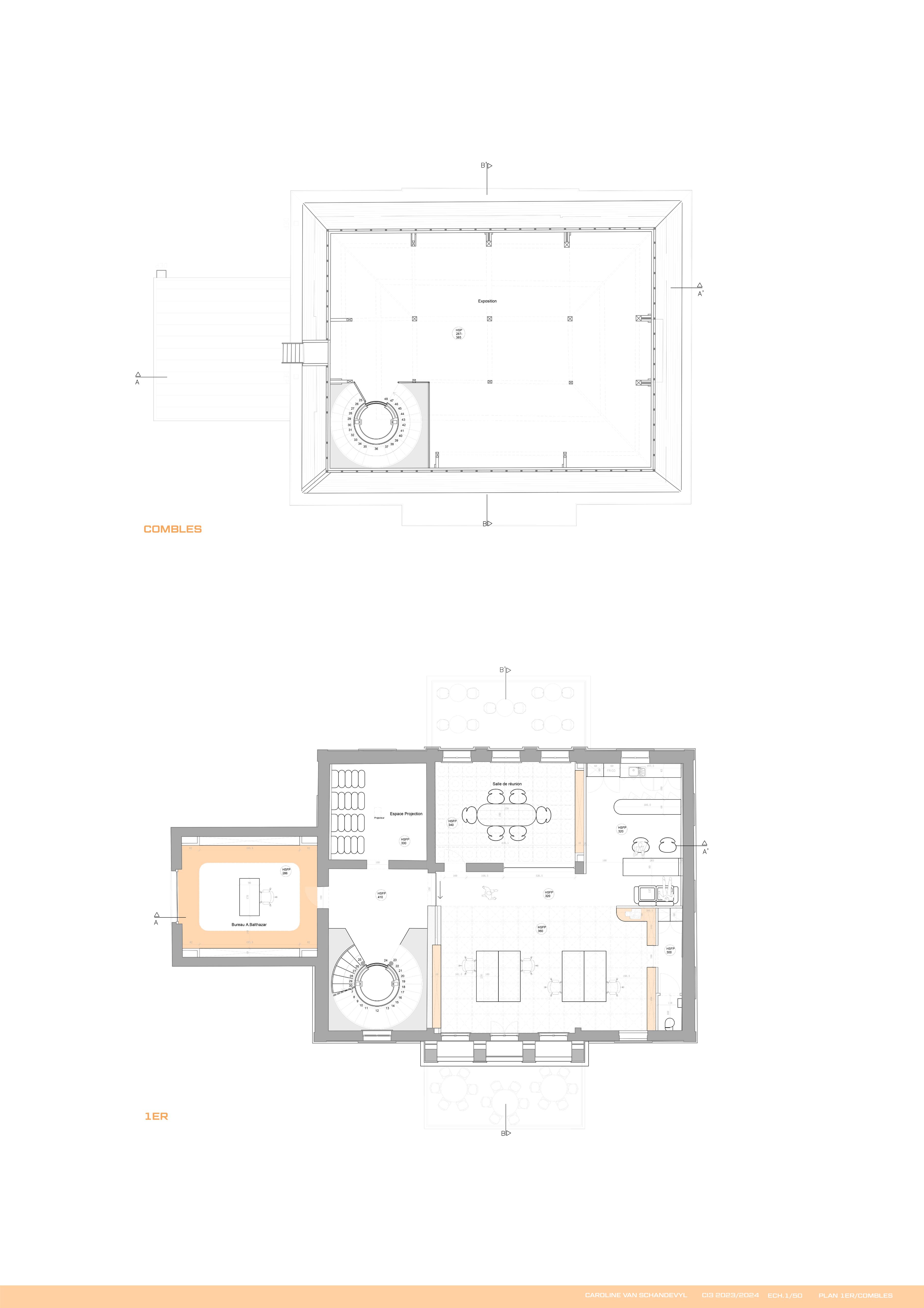
LA CAPSULE TEMPORELLE DU DAILY-BUL
Aménagemant du Château Gilson
Gagnant du Prix de l’Administrateur Délégué
2024
Le concept de la Capsule Temporelle du Daily-Bul célèbre l’avant-garde et l’innovation de ce mouvement artistique à travers une histoire imaginaire. Dans les années 60/70, une fusée aurait été envoyée dans l’espace avec des objets emblématiques de l’époque. Après un long voyage, elle réapparaît en 2024 au château Gilson, révélant ces trésors du passé.
Le musée, au style rétro-futuriste inspiré de la science-fiction des années 60/70, crée une atmosphère immersive qui stimule l’imagination. Il offre un cadre propice à l’apprentissage tout en rendant hommage à l’esprit pionnier du Daily-Bul. La plupart des meubles, conçus sur mesure, s’intègrent parfaitement à l’esthétique du lieu, renforçant le lien entre passé et futur et enrichissant l’expérience des visiteurs.










Poignée LMC ref. POI9409106AL
multiplex 18mm peint en NCS S 0585 Y 40R
Panneau multiplex 2x22mm peint en blanc satiné
Panneau multiplex 22mm peint en NCS S 0585 Y 40R
Poignée LMC ref. POI35104BL



PROJETS PERSONNELS
Rendus 3D
2023-2025
Cette section présente des images 3D réalisées par moi, reflétant ma passion pour le design d’intérieur ainsi que mon intérêt pour la dimension théâtral de l’image. À travers ces rendus, je manipule les lumières et les ambiances pour explorer différentes scènes et atmosphères.
Chaque projet devient une expérimentation où l’espace, la lumière et les objets s’harmonisent pour créer des compositions visuelles uniques.


