PROTECTO D8

Page 1

SOLANARCHITECTURE

SOLANARCHITECTURE

ESTUDIANTE VERONICA MARIA TEJADA SOLANA

MATRÍCULA 21-0775

ASIGNATURA

DISENO VIII ESTANDARES Y SISTEMAS

DOCENTE ARQ. JUAN RUFINO CASTILLO MOLINA, DR. ING

INSTITUTO UNIVERSIDAD IBEROAMERICANA UNIBE

MIERCOLES 10 DE ABRIL DEL 2024 | SANTO DOMINGO, DISTRITO NACIONAL, REPUBLICA DOMINICANA
FINAL TORRE CALIZA SOLANARCHITECTURE
PROYECTO
PROFUNDIDAD + ALTURA = ESPACIO

ÍNDICE

RELACIÒN CON EL ENTORNO

CONCEPTO

PLANIMETRIA | PLANTAS

PLANIMETRIA | ELEVACIONES Y SECCIONES

PLANIMETRIA | DETALLES

PLANIMETRIA | DETALLES

CONTENTS

INTEGRATION WITH THE CONTEXT

CONCEPT

FLOOR PLANS

ELEVATIONS AND SECTIONS

DETAILING

UTALISMO EN EL LOGO URBANO

estilo brutalista, vas y hormigón y refinados. Esta crea una tensión as convenciones rar la imponente entorno urbano entre lo antiguo es nobles y líneas encia residencial ico se funde con

FLOOR PLANS

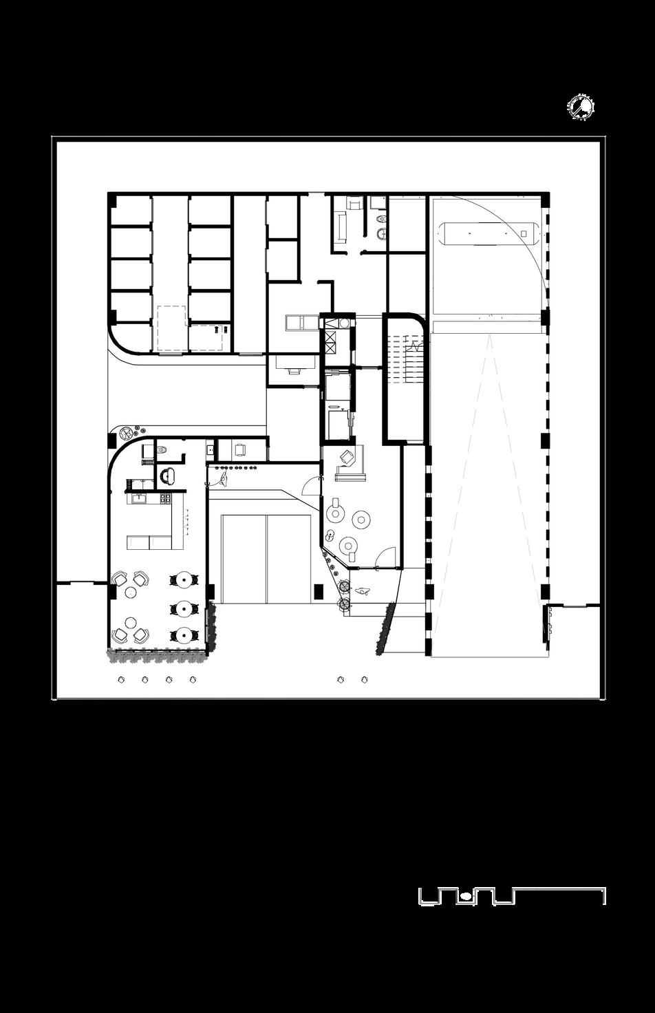
012345 10m LEVEL 1 1 BISTROANDLOBBY
DN UP 0 1 2 3 4 5 10 LEVEL 2 PARKING 2
PARKING
UP UP 0 1 2 3 4 5 10 LEVEL 3 PARKING 3
B LEVEL 7-13 4 PLANTATIPO 0 1 2 3 4 5 10
Balcon Fronta Apartamento A Bal Hab
LEVEL 7-13 012345 10m WD D W D W Balcon Frontal Apartamento A Balcon de Habitacion 13 14 40 41 15 1 8 1 6 17 12 39 19 37 38 5 9 36 10 11 42 2 34 35 1 7 4 6 8 4 29 3 28 27 20 31 23 26 32 22 33 30 21 24 25 Balcon frontal Apartamento B 5 PENTHHOUSEN14 NO NOMBREAPARTA NO NOMBRE 1 2 3 4 5 6 7 8 AREADEVESTIBULOLOBBY ACCESO APARTAMENTO A ACCESO APARTAMENTO B ACCESO APARTAMENTO C SALA COMEDOR COCINA AREADESERVICIO 1 2 3 4 5 6 7 8 AREADEVESTIBULOLOBBY ACCESO APARTAMENTO A ACCESO APARTAMENTO B ACCESO APARTAMENTO C SALA COMEDOR COCINA AREADESERVICIO NO NOMBREAPARTB NO NOMBRE 20 21 23 25 24 27 26 28 COMEDOR SALA COCINA AREADESERVICIO LAVANDERIA 1/2BANO STUDIO HABITACION PRINCIPAL 29 30 31 32 33 35 BANOHP CLOSETHP HABITACION2 CLOSETH2 BANOH2 BALCONERIA HP NO NOMBREAPARTC NO NOMBRE 42 34 36 37 37 38 39 COMEDOR SALA COCINA AREADESERVICIO LAVANDERIA 1/2BANO HABITACIONPRINCIPAL 40 41 42 BANOHP CLOSETHP BANOSERVICIO
--LEVEL 14 ARRIBA ARRIBA D W W D 11 7 9 4 12 8 3 6 13 1 10 22 21 2 14 20 19 6 PENTHOUSE AANDB 0 1 2 3 4 5 10

VIGUETASDEHORMIGON

ESTRUCTURAMETALICA SOSTIENEELTECHOFALSO

DENSGLASSCEILINGFINISH

ESTRUCTURAMETALICAINTERIOR

VIGAS080 LOSA INSOLATION

PERFILESMETALICOS

DETAILING 7

BALCONYSECB

BLOQUESDECONCRETO6' MURO010M

COLUMNAHORMIGON

---
Level2 380m Level 1 000 m
--LEVEL 14 5 4 1 2 8 7 3 6 0 12 9 11 17 22 19 21 16 15 20 23 14 13 24 8 BALCONESDE HABITACIONVISTA MESSANINI 8 PENTHOUSE SECONDFLOORAANDB 0 1 2 3 4 5 10
0 1 2 3 4 5 10 --LEVEL 15 9 PLANTADEAMENIDADES
JARDINTECHO GIMNASIO ÁREASOCIAL ABAJO SAUNA AREADEEQUIPOS VESTIDORES
--LEVEL 16 10 PLANTADETECHO 0 1 2 3 4 5 10
--SECCIÓN LONGITUDINAL 1 0 1 2 3 4 5 10

Turn static files into dynamic content formats.

Create a flipbook
Issuu converts static files into: digital portfolios, online yearbooks, online catalogs, digital photo albums and more. Sign up and create your flipbook.