Portfolio 2018-2023

Page 1

PORTFOLIO

SELECTED WORKS 2018 - 2023

VENUS KWOK

page. 2 Professional Works

CONTENTS

Professional Works

i. Architectural Services Department (2020-2023)

ii. DLN Architects Limited (2017-2018)

iii. LAAB Limited (2014)

Master Thesis

i. Bath Center at Swanscombe Peninsula (2018-2019)

ii. The Momery Archive of Canterbury (2019-2020)

page. 3 Professional Works

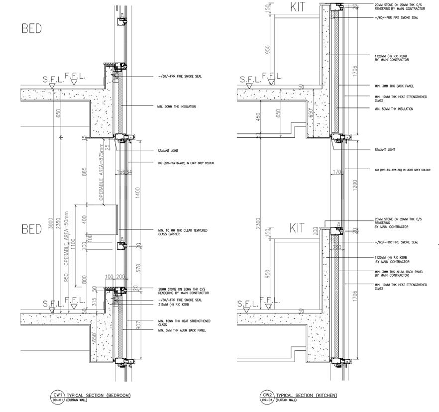
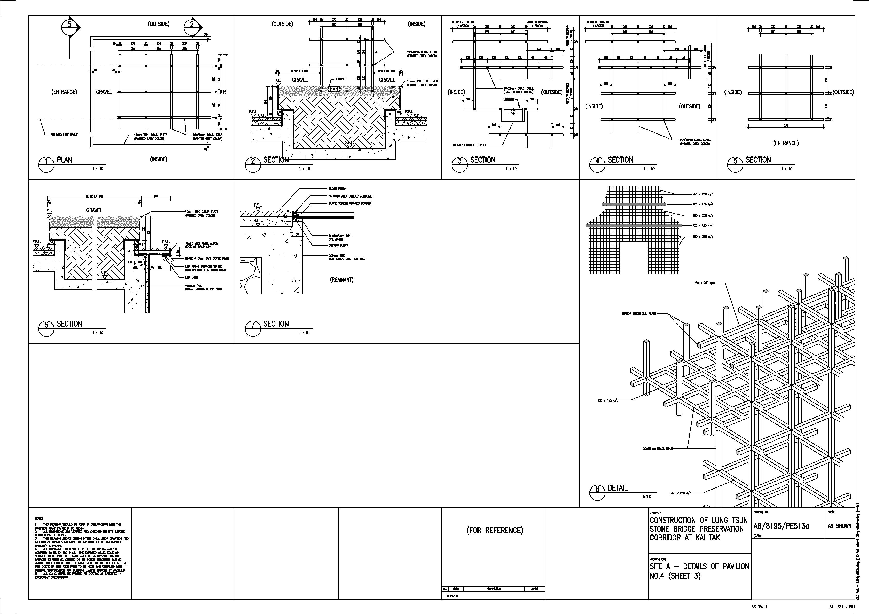
LUNG TSUN STONE BRIDGE

A PRESERVATION CORRIDOR AT KAI TAK

Site: Muk Lai Street, Kai Tak, Hong Kong

Architects: Architectural Services Department

Area: 11400 m²

Year: 2025 (Expected) 1

page. 4 Professional Works

Lung

During Japanese occupation in World War II, Stone Bridge was partly buried to make way for the reclamation of Kowloon Bay and the construction of Kai Tak Airfield in 1927.

After the relocation of the airport to Chek Lap Kok in 1998, some archaeological investigations were conducted. A Preservation Corridor was planned to exhibit the remnants in-situ for public appreciation and leisure.

page. 5 Professional Works
1873 - 1875 Construction of Lung Tsun Stone Bridge. 1956 Kai Tak Airport was constructed. Lung Tsun Stone Bridge was covered up. 2023 Lung Tsun Stone Bridge was revealed to connect the history of Kai Tak and the future of Kai Tak Development. Tsun Bridge served as a linkage to the main gate of the Kowloon Walled City and the Kowloon Street, with Kowloon Bay in the late 19th to early 20th century. 1: Rendering (Ariel view of LTSB) 2: Photo of LTSB in 1875 3: Rendering (View from entrance gate) 4: Rendering (View at LG1) 5: Rendering (View of remnants)
4 5 6 3 2
6: Rendering (Ariel view of LTSB)

FEATURE WALL DESIGN IN SUNKEN GARDEN

The Urban Valley design concept was make reference to traditional Chinese garden. For example, the famous Chinese garden in Suzhou, natural stone landscape along the pool surrounding by tall trees and plants with the pavilion situated above, overlooking the Chinese garden.

For the design of sunken garden, the lower ground floor preserve the remnants in situ, surrounded by water mist and natural landscape. It creates a poetic ambience to exhibit the History of old Kai Tak and Nature.

At night, the water mist together with the feature lighting at the granite wall and reflective pool creates an imaginary atmosphere to experience the garden nature with remnants. Visitors can enjoy the peacefulness when they stroll along the urban valley.

page. 6 Professional Works
1: Photo of 1:50 physical model (View of remnants) 2: Photo of 1:50 physical model (View at LG1)
1 2 3
3: Photo of 1:50 physical model (Aerial of the LTSB)
page. 7 Professional Works Extracted From Drg. No.: Scale : Project No. : CONSTRUCTION OF LUNG TSUN STONE BRIDGE PRESERVATION CORRIDOR AT KAI TAK CONTRACT NO. SS H506 470 RO Drawing Title : Sketch No. : Approved by (D.T.L. PA)
6:
7: Detail
of
8:
4 4 5 6 8 7 4
4: Photo of mock-up (View of feature wall)
5:
Photo of mock-up (View of a section of feature wall)
Detail axonometric view of feature wall
axonometric view
feature wall
Section of feature wall

PAVILION FOR GREETING OFFICIALS

By responding to the characters of the remnants, geography and the surrounding activities, experiences are generated along the sunken Urban Valley. The entrance plaza of the urban valley is designed with a portal in fairface finish, welcoming visitors to experience the garden and archaeological exhibition. A silhouette to symbolize the Pavilion for Greeting Officials will appear together with its remnants, as a reminiscence of the Pavilion in the past history.

1: Rendering (View of entrance gate) 2: Rendering (View of reconstructed pavilion)
1 3 2
3: Photo of 1:1 3D print testing model

‘‘LUNG TSUN’’ SIGNAGE

In order to design the ‘‘Lung Tsun’’ signage, different testing methods have been adopted. From hand cut foam board model, 3D print model to mock-up construction to test the font and the engraved depth in the fairface concrete. Since this signage will be display in the entrance portal, it would place a landmark in this site.

page. 9 Professional Works
1. Photo of CNC milled woodern mold of ’’Lung Tsun’’ 4. Photo of worker applying waterproofing sealant 3. Photo of worker drilling out the woodern mold
Original Signage Front Elevation 1:5 3D Print Model Side Elevation 1:1 Foam Model 1:1 Fairface Mock-Up 2700 1200 240 approx. 500
2. Photo of fairface concrete removed from formwork

VISUALIZATION

CAVE AUTOMATIC VIRTUAL ENVIRONMENT (CAVE)

In order to have virtual stimulate and educate the public. This project is selected as a of the pilot project to exhibit in CAVE (Cave Automatic Virtual Environment), which is a virtual reality (VR) environment consisting of a cube-shaped VR room or a room-scale area in which the walls, floors and ceilings are projection screens.

The interface is carefully designed with five buttons, including introducing the history of LTSB, the preservation corridor, to showcase the point cloud data recorded by CEDD in 2013, to switch day and night view and can experience AR.

2500 2000

page. 10 Professional Works
1: Photo of CAVE’s interface 2: Photo of CAVE (sunset view) 3: Photo of CAVE (night view) 4: Photo of CAVE (History sence)
3 1 4 2
5: Photo of CAVE (AR mode) 5 Isometric diagram of CAVE

MULTI-MEDIA EXPERIENCES

To help promote public awareness on heritage conservation, this site also include heritage interpretation design from exhibition display areas, outdoor projection show, to multi-media for virtual presentation to facilitate public appreciation of the LTSB remnants and the relationship between LTSB and Kowloon Walled City (“KWC”).

page. 11 Professional Works
6: Rendering of projection show 7: Rendering of AR 8: Pavilion for Greeting Officials in 1875 9: Rendering of AR
6 7 8 9 10
10: Rendering of using AR app

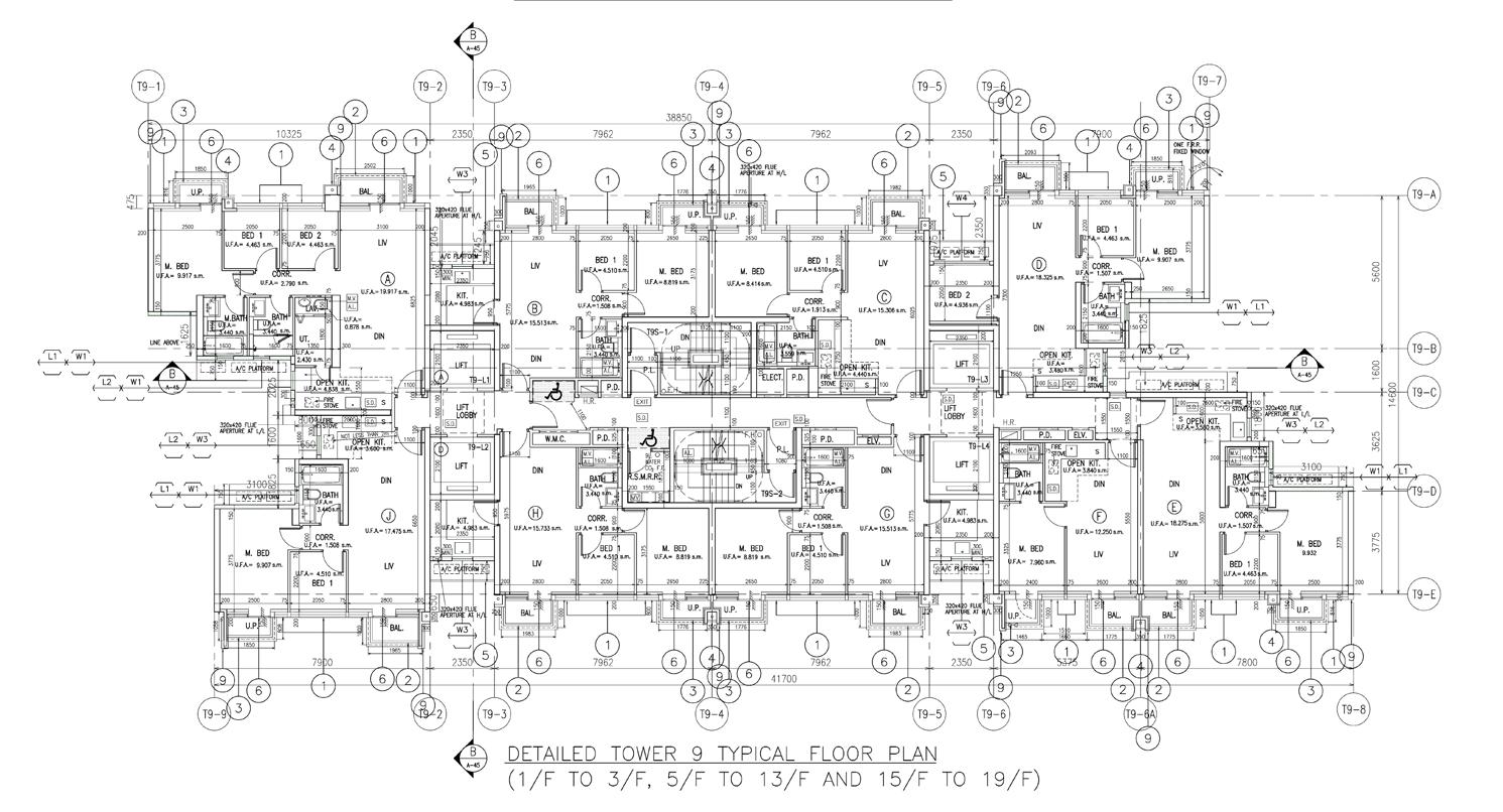
The Regent

Residential Development At Tai Po

Site: Shang Tong Road, Lai Chi Shan, Tai Po, New Territories

Architects: DLN Architects Limited

Area: 37697 m²

Year: 2022

page. 12 Professional Works
1 2

PHYSICL MODELS

Physical models were made in order to have a visualization of different color combination of facade design and roof top design.

page. 13 Professional Works
1: Rendering (View of clubhouse) 2: Rendering (Ariel view) 3: Ariel Photo 4: Photo of physical model 5: Tender drawing of detail section 6: Tender drawing of typical floor plan
3 4 6 5

Site: Taipei, Tokyo, Guam

Architects: LAAB Limited

Year: 2016

page. 14 Professional Works
Window Art Installation Hermes Air Craft Rendezvous 1/2/3: Photos of shop front 4: Photo of physical model
1 3 2 4 6 5
5: Photo of 1:1 mock-up

Small Home Smart Home

Interior Design

page. 15 Professional Works
1/2/3: Photos of interior 4/5: Photo of physical model Site: Central, Hong Kong Architects: LAAB Limited
1 3 2 4 5
Year: 2016

Bath Center at Swanscombe Peninsula

Master Thesis I - True Stories

Site: Swanscombe Peninsula, Kent, UK

University of Kent, Studio One

Academic Year: 2018-2019

1 page. 16 Professional Works
Thesis
Master

Water Temperature: 42°C

Depth: 1000mm

Salinity: 3%

Since the turn of the century, awareness of trans people has increased, and with that new visibility comes a cavalcade of mainstream mediocrity in the cinema. From Transamerica (2005) to The Danish Girl (2015), films about transgender people that reach a wide audience tend to serve as distorted guides for cis people to pity us.

Water Temperature: 38°C

Depth: 500mm

1: Site plan

Salinity: 3%

2/3: Rendering (View of hot bathing pool)

Water Temperature: 38°C

Depth: 500mm

Salinity: 3%

UNI-SEX BATH CENTRE
OT
ARRIVAL BATHING POOL
HOT
5 ARRIVAL HOT BATHING POOL
8
BATHING POOL
2 3 page. 17 Professional Works
Master Thesis

POWER PLANT & POOL

The project connects with the first part of a plower plant to the future London Resort in additional supplies of energy. The plant will exhuast steam as a by-product of the generation of electricity. From water to electricity and steam; from sea to plant to bath, this would be the major idea of the bath centre. The diagram shows the consumption relationship of the project with the future london resort. The project would be a generator as well as the releaser.

gutter water pipes heating/ pumping page. 18 Professional Works
Thermal power plant Distillation tower Fine filtration pool
1 2
Sand filtration pool Sedimentation pool 1: Overall section 2: Site plan 3: Detail section
Master Thesis Pedestrian Flow Water Flow Steam Flow 4
4. Axonometric diagram

BATHING MACHINE

Bathing Machine is developed to protect privacy in 18th century, bathing machine was popular for people changing from their usual clothes into swimwear. Some bathing machines were wooden carts powered by horses, little by men and rolled into the sea. The use of bathing machines as part of the etiquette for sea-bathing was more rigorously enforced upon women than men, but it was to be observed by both sexes among those who wished to behave respectably.

1. Preforated flooring 2. Japanese rug 3. Bag for wet bathing-togs 4. Toilet shelf 5. Square stool 6. Mirror 7A/B. Entry and exit door 8. Small side windows 9. For connecting horses
7B 7A 8 9 3 4 6 2 1 5 page. 19 Professional Works 6 5 7 8
5: Section of a bathing machine 6: Axonometric diagram of a bathing machine 7: Photo of bathing machine in 1892 8: Drawing of bathing machine in 1829
Master Thesis 10 9
9/10: Rendering of bathing machine

The Memory Archive of Canterbury

Master

Thesis II - Gothic

Site: Canterbury, Kent, UK

University of Kent, Studio One

Academic Year: 2019-2020

1 2 page. 20 Professional Works Master Thesis

This is a conceptual arrangement to response the site condition, almost dark mysterious and eclectic. However active nor built on the site. A memorial museum of Canterbury which showcases an artifact in a large and deep basement, also renders a hollow and empty atmosphere of what Canterbury could sometimes make people feel.

SECOND WORLD WAR MAPPING OF BAEDEKER BLITZ (1942-45)

Bomb map of canterbury in second world war. The red dots represent the prediction track of the bombs from the fighter aircraft. Baedeker raids were the name given to German air attacks on the English cathedral cities of Exeter, Bath, York, Canterbury and Norwich, carried out mainly during spring and summer 1942. The main attack on Canterbury took place on 1 June 1942, shortly after the Cologne bombing

1: Rendering (View of basement)

2: Rendering (View of entrance plaza)

3: Photo of bomb mapping model

4/5: Collage of ruined Canterbury

page. 21 Professional Works
AN UNDERGROUND MAPPING ROOM 3 5 4 Master Thesis
page. 22 Professional Works Basement Plan 1 2 Scetion
Master Thesis
Modelmaking Process of the Patterned Plaster Model
page. 23 Professional Works
Steel columns stand on the retaining wall Overall structural system Steel diagonal braced frame structure (300mm(w)x 300mm(d)) Pile foundations Waffle floor slab with 600mm depth Flat slab and column system
PRODUCED BY AN AUTODESK STUDENT VERSION Scetion Master Thesis
Piled Retaining Walls 500mm

Turn static files into dynamic content formats.

Create a flipbook
Issuu converts static files into: digital portfolios, online yearbooks, online catalogs, digital photo albums and more. Sign up and create your flipbook.