Valeria Palomo - Portafolio

Page 1

VALERIA PALOMO

PORTAFOLIO ARQUITECTÓNICO PORTAFOLIO ARQUITECTÓNICO

CONTENIDO CONTENIDO

CV - Valeria Palomo 03 - 04 Terra Bianca - Edi cio de usos múltiples 05 - 10 Kaajal - Investigación 11 - 14 Hotel San Juan - Levantamiento 15 - 20

CURRICULUM VITAE CURRICULUM VITAE

Valeria Palomo

ARQUITECTA

Febrero 2020 - Agosto 2021

SERVICIO SOCIAL / ARQ. DAVID MIR Universidad Anáhuac Mayab, Mérida, Yucatán

• Apoyar en el diseño de proyectos

• Realizar planos arquitectónicos y ejecutivos

• Visita de obra y levantamiento de bitácora

• Elaboración de estudios de mercado

• Ayudar en la creación de nuevas oportunidades de negocio

Enero 2020 - Septiembre 2020

PRÁCTICAS PROFESIONALES / ARQ. DAVID MIR

Universidad Anáhuac Mayab, Mérida, Yucatán

Soy una persona alegre, creativa y curiosa. Me interesa mucho el diseño de interiores al igual que la construcción. Me gusta trabajar en equipo de una manera coordinada y responsable. De igual manera me gusta liderar buscando innovar. Considero que los valores más importantes son la honestidad, empatía y dedicación.

• Apoyar en el diseño de proyectos

• Realizar planos arquitectónicos y ejecutivos

• Visita de obra y levantamiento de bitácora

Septiembre 2019

LEVANTAMIENTO EN REVIT DEL HOTEL SAN JUAN / ARQ. FERNANDO CÁRDENAS

Calle 58 497, Mérida, Yucatán

• Apoyar en campo

• Realizar planos arquitectónicos

+52 (999) 277 1201

PERFIL CONTACTO IDIOMAS

CELULAR CORREO valepalomo11@gmail.com

Presente DIMPLOMADO EN REVIT ARQUITECTURA

TRESSO, Mérida, Yucatán

2017-2022 LICENCIATURA EN ARQUITECTURA

Universidad Anáhuac Mayab, Mérida, Yucatán

FORMACIÓN HABILIDADES

EXPERIENCIA
REVIT SKETCHUPAUTOCADESPAÑOL FRANCÉSINGLÉS MICROSOFT OFFICE ENSCAPE ADOBE ILLUSTRATOR

Terra Bianca

Edi cio de usos mixtos

El complejo de usos mixtos Terra Bianca, fue un proyecto que se desarrolló en el último año de la carrera. Terra Bianca toma lugar en un terreno ubicado en la Av. Reforma en el Centro de Mérida, Yucatán. Dicho terreno presentó un gran reto debido a su forma irregular, y sus dos componentes naturales que le brindan carácter: el cenote y el algarrobo.

Tras haber hecho un estudio, se determinó que el proyecto tendría uso habitacion al y comercial, ya que es una zona de alta plusvalía y con mucho valor cultural. Por lo que se decidió incluir departamentos de semilujo que cuentan con amenidades como un spa, gimnaso, coworking, área para niños y terraza. Para complementar el complejo, se anexa una zona comercial que presta servicios a la vivienda y al públi co externo. Cuenta con el primer nivel siendo el de comercio, el segundo nivel donde se ubican las amenidades y arriba de eso, 3 niveles de departamentos con dos departamentos por nivel.

Este proyecto nace de la necesidad de unir y preservar tanto a la comunidad como a la naturaleza que lo rodea. Existen muchos ejes rectores que de nieron la forma del proyecto siendo los principales el algarrobo y el cenote. Era claro que debia existir una conexion tanto visual como espacial y funcional entre estos dos. Es por esto que como intención de diseño se buscó conectar todas las áreas del complejo hacia la naturaleza. Por otra parte, el uso de arcos de medio punto hace connotación al estilo arquitectónico del área.

Zoni cación del proyecto. Área pública y comercial del primer nivel, ubicados entre el cenote y el árbol, rodeada de área jardinada.

Área privada en la parte del fondo del terreno, priorizando la privacidad del usuario de los departamentos.

Av. Reforma y Av. Cúpules, Centro Mérida, Yucatán
01

Ubicación del estacionamiento

Estacionamiento público ubicado al lado derecho del terreno, mien tras que el privado se encuentra en la parte del fondo. Creando así un circuito vehicular dentro del complejo

Área jardinada

Adaptación al contexto

Se crea una cubierta orgánica en el área de comercio que termina de realzar la conexión tanto visual como física entre el cenote y el algarrobo.

Circulación vertical

Área de comercio
Área de amenidades
Área de vivienda privada
Volumetría

Plano

1 Cuarto

Baño

Caseta de viglancia

Área de empleados

Baño público

Área de alimentos

arquitectónico

Vestíbulo

Recepción

O cina de administración

Área social privada

Terraza

Área de co-working

Baños

Área para niños

Enfermería

Recepción de gimnasio

Lockers

Gimnasio

Baño

Sala de espera

Módulo de masaje

Bodega

arquitectónico - Nivel 0 / Comercio N Plano
- Nivel
de máquinas 2 Vestíbulo 3
para empleados 4
5 Local comercial 6
7
8
9 Cocina 10 Bar 11 Área de comensales interior 12 Área de comensales exterior 13 Bodega 14 Escenario al exterior 15 Área pública y de comensales 16 Cenote 17 Estacionamiento privado 18 Estacionamiento público 1
2
3
4
5
6
7
8
9
10
y spa 11
12
13
14
15
16
1 1516 12 5 2 3 4 5 6 5 6 7 7 3 89 10 11 12 16 15 15 15 14 17 18 6 5 6 5 6 5 6 5 13 4
2 Nivel 1 / Amenidades Plano arquitectónico - Nivel 2-4 / Depts. 1 Vestíbulo 2 Terraza 3 Vestíbulo de departamento 4 Alacena 5 Lavandería 6 Baño 7 Cocina / Comedor / Sala 8 Recámara 9 Baño 1 2 2 3 34 4 55 7 7 9 9 99 8 8 8 8 66 1 7 7 4 11 11 10 14 13 15 15 15 3 3 6 8 9 N N

Corte Longitudinal A-A’

Fachada Sur

Isométrico de sistema estructuralCorte por fachada

Kaajal Caucel análisis y estrategias

Investigación

En tercer año de la carrera se nos pidió realizar un estudio urbano del municipio de Caucel. Este estudio se llevó a cabo con el n no solo de analizar las problemáticas del lugar, sino para proponer soluciones mediante cierta estretegias que mejor se adaptaran al problema.

Dicho análisis se presentó como un gran reto, pues fue el año en el que iniciaba la pandemia del Covid-19, por lo que la mayor parte de la investigación se llevó a cabo utilizando herramientas digitales, como INEGI, google maps para recorrer la zona entre otros. De igual manera se lograron hacer entrevistas con los ciudadanos de Caucel, lo cual nos ayudó a obtener información y un punto de vista mas personal.

El principal problema de la zona en aquel entonces, era que se estaba creando un choque de estilos de vida entre la ciudad de Mérida y Caucel. Esto se debía a que a través de los años, Mérida se ha mostrado como una ciudad muy importante y atractiva para la gente externa. Ya sea por su educación, su seguridad, se economía o sociedad. Esto ha hecho que Mérida crezca de una manera desctontrolada. Que si bien el crecimiento no es lo negativo, si lo es la manera en la que lo ha hecho sin ninguna planeación urbana. Esto ha llevado a que tanto el municipio de Caucel como sus habitantes se sientan consumidos.

Tras haber profundizado en el análisis, notamos que lo que hacía falta y debíamos mejorar en Caucel y sus habitantes, era el sentido de pertenencia. Para poder llegar a esto, se tomaron en cuenta lineas de acción como: el crecimiento económico, la cultura, espacio público, sostenibilidad, mobilidad urbana y la redensi cación. Se decidió dividir el municipio en 5 partes: centro, cuadrante noreste, sureste, suroeste y noroeste. Cada sección seria abordada con alguna de las 6 líneas de acción previamente mencionadas. Esto se haría a través de la mejora y creación de parques y áreas verdes, proponiendo ciclovías, redensi cando el área y creando espacios culturales.

Todo este estudio y soluciones se muestran en 3 láminas en inglés, en donde las primeras dos contienen el análisis de la zona y la tercera las estrategias urbanas que ayudarían a mejorar la situación.

02

Vivian Cortés Pasos

Valeria Palomo

Proyectos IIV: Diseño

01

MÉXICO MÉRIDA, YUCATÁN CAUCEL INTRODUCTION

URBAN GROWTH OVER YEARS

This urban growth that goes beyond the city s current borders begins connect with the towns found tion between Caucel and Ciudad Caucel and Santa Fe

Our aim is to improve the areas of opportunity in Caucel in a way we are able to g ve not only the people of Caucel a strong sense of belonging but also anyone who comes to visit For this reason, the proyect is named Kajaal , which means town in maya. We desire to improve the town but without losing its escence

SITE ANALYSIS

Caucel is located in the western part of the city of

FLORA AND FAUNA

ECONOMIC ASPECTS

SECTOR

TERTIARY SECTOR

CAUCEL DIAGNOSTIC RESEARCHCAUCEL DIAGNOSTIC RESEARCHKAAJAL: KAAJAL:
SOCIAL ASPECTS 70.74%29.26% 29.26% 0-14 ears old 30.91% 15-29 years old 34.80% 30-59 ears old 3.21% 60+ years old 1.80% People with disabili y DEMOGRAPHICS DISTRIBUTION In the town there are approximately 3483 men and 3505 women, the total population is approximately 6,988 inhabitants The fertility rate is 2.42 children per woman who is of fertility 59.33% of the population is indigenous, and 24,34% of the population speaks an indige nous language, being only Maya.
Lázaro
urbano
- Dic - 2020 PROLOGUE In the past few years Mérida has been an attractive spot and has been experienc such as education, society and economy In one hand, this is not a bad thing, but in the other, this growth hasn t been correctly planned therefore what makes it a bad thing is the way the city is growing This situation has brought problems of its own, we can say that housing demand has increased, thus infraestructure and equipment as well
Mérida and it has a median alti north east whilts the warm wind come from the south east In terms of tempera ture it is highest between 12:00 to 14:00, being 26°C the annual average tempera ture Finally, it s precipitation is 1.100mm per year the rainy season is from June to October
The warm humid climate allows the development of henequen cultivation, the most common trees in the area are balach, jabin, chaká orange, mango sapote pich, alamo among others And in its fauna there are birds insects rodents and reptiles Mérida is the capital and most populous city in the state of Yucatan, Mexico It is located in the municipality of the same name n 2010 the city had a population of 777,615. In 2019 it was considered the second safest city in the Americas behind only Quebec City contrasting with high insecurity rates in the rest of the country In the last 10 years merida has had in dizzying growth. 01/25/2005 04/27/2006 08/23/2008 12/14/2012 02/26/2017 09/24/2020 Total population Denser areas Popul tion om 15 to 29 years old Denser a eas Popul tion with disabilities Denser areas Average number of occupants per home Denser a eas Total number of houses Denser a eas Total number of inhabi ed homes Denser a eas Total number of uninhabited homes Denser a eas Population rom 0 o 14 years old Denser a eas Population rom 30 o 59 years old Denser a eas CUTOMS AND TRADITIONS HOUSING TYPOLOGY People at Caucel celebrate a festivity in honor to “Our lady of Bethlehem” A so well known festivity that people from other places come to Caucel to celebrate Places such as: Sierra Papaca , Suy tunchén, Cosgaya, Noc Ac Cheuman, Yaxché, Ucú Ciudad Caucel and others Sie ra Papacal Suytunchén Cosgaya No A Cheuman Yaxché Ucú Ciudad Caucel SYMBOLOGY This celebration begins with a mass and the corona tion of the religious image outside the church. Then the image visits the four cardinal points of the village with processions the custom sneaks into the k tchen where mothers and daughters prepare typi cal meals to spread through the streets where the the image walks on shoulders guarded by the two banner of the lowered guild, who protect her as dances masses, etc SECONDARY
Manufacturing ndust ial fu nace factory Dorantrub Building Dist ibution SYMBOLOGY 1 Prepa ation of dairy der va tives and e ments 2 Services Automovile se vice Rejon Gove nmen activities SYMBOLOGY 1 Cemen e y of Caucel2 Wholesale t ade Ciber tienda Xbox Retail rade T anspo t post and s o age SYMBOLOGY 1 Tienda Divino Niño2
t s growth began with a simple highway that only connected Caucel to Mérida and a thin non-importanta road that connected this highway to the beginnings of Ciudad Cauce Road 70 rises in importance becomes wider as well as road 59 which is also con nected to Mérida as the principal highway Roads 37, 70 and 80 are developed in facilitating the connection between roads 59 and the principal highway Road 39 begins to appear around Caucel creating a man made barrier Ciudad Caucel grows around the roads previously made and around Cauce This dispersed and uncontrolled growth might be due to the increasing population in Mérida. People who see the lands near the peripheral ring which connects to roads 59 and the principal highway Making Ciudad Caucel appealing due to its easy access A similar situation occurs with Santa Fe. Now Caucel is surrounded by man made barriers making the people in Caucel feel nvaded shows resistant to this urban growth and modernization. Ciudad Caucel grows even more in a dispersed and uncontrolled way Ciudad Caucel began as a solution for the increasing popula tion but now it's beginning to create other problems Up to date Caucel is almost completely surrounded by what they might consider as “unwanted neighbours” Areas near the peripheral ring begin to grow, almost eliminating the distance between Mérida and Santa Fe and Ciudad Cauce P incipal high ay Road 70 SYMBOLOGY P incipal high y Road 70 Road 59 Roads 37, 70, 80 Road 39 SYMBOLOGY P incipal high y Road 70 Road 59 Roads 37, 70, 80 Road 39 Ciudad C el U ban b tion SYMBOLOGY Principal highway Road 70 Road 59 Roads 37, 70, 80 Road 39 Ciudad Caucel Urban conu bation S ta F SYMBOLOGY Principal highway Road 70 Road 59 Roads 37, 70, 80 Road 39 Ciudad Caucel U ban conu bation S ta F SYMBOLOGY P incipal highway Road 70 Road 59 Roads 37, 70, 80 Road 39 Ciudad Caucel U ban conurbation Sa ta F Road SYMBOLOGY nsects Rodents Birds Reptiles ChakáHenequen

SYNTHESIS

EQUIPMENT

PLAN INFRASTRUCTURE
PRESCHOOL PRIMARY SCHOOL MIDDLE SCHOOL HIGH SCHOOLRECREATIONAL SPORTS MARKET HEALTH ROADSSERVICES STREET COATING SIDEWALKS WHEELCHAIR RAMPS Houses with elect ic power Houses with drainage Houses with health ca e Denser areas Houses with piped water Denser a eas Denser areas Denser areas Available Not available Doesn t apply Housing comple SYMBOLOGY 1 2 Available Not available Doesn apply Housing complex SYMBOLOGY 1 2 A ailable Not available Doesn apply Housing ompl SYMBOLOGY 1 2 NEIGHIBORHOODS Ciudad Caucel Caucel Santa Fe Mexican Federal Hwy 281 (80 Km/h) 20th Street (80 Km/h) ROADS Mexican Federal Hwy 281 (60 Km/h) 40 Km/h street 21st Street (40 Km/h) 20th Street (40 Km/h) BORDERS SYMBOLOGY Man made border Natural boder NODES AND LANDMARKS Vehicular node Landmark Commercial node Urban void Park Archeological reserve Cenote Archeological site Ecological reserve Wrong land use C Educational Health care Market Religious Sport facilities EQUIPMENT Commercial Institution Preschool radius (750m) SYMBOLOGY Institution Secondary school radius (1.5km) SYMBOLOGY Institution Secondary school radius (1.5km) SYMBOLOGY Recreational radius (2km) SYMBOLOGY Institution Sports radius (2km) SYMBOLOGY Institution Primary school radius (500m) SYMBOLOGY Institution Public market radius (750m) SYMBOLOGY Institution Urban health centre service radio (1km) Development centre service radio (700m) After this analysis we can see that Caucel lacks of cultural and health care equipment This analysis showed us that Cauce s infraestructure is in bad conditions Specially the side walksand as seen in the pcitures the quality of street lighting and complete streets Perhaps this security the people at Caucel experience Also we can say it is non inclusive to all people specially people with disabilities GENERAL LAND USE ARCHEOLOGICAL LAND USE LAND USE Last update of this land use map was in 2016. Obtained from PMDU of Mérida, Yucatán. According to the following analysis on land use some in the map they either have no equipped area or an equipment that doesn t belong, such as houses This is an abandoned archeological site On Sundays it works as a public parking due to the high demand created by the tianguis t is categorized as a dangerous place to walk by People have reported this to the recurring place but the city hall hasn t done anything to help 1 Space destined o public equippment used as habit tional equippment URBAN IMAGE NEIGHIBORHOODS Ciudad Caucel Caucel Santa Fe Mexican Federal Hwy 281 (80 Km/h) 20th Street (80 Km/h) ROADS Mexican Federal Hwy 281 (60 Km/h) 40 Km/h street 21st Street (40 Km/h) 20th Street (40 Km/h) BORDERS Man made border Natural boder NODES AND LANDMARKS Vehicular node Landmark Commercial node CHROMATICLandmark Vehicular node Aproximate averge hight per house of 2.5 meters Houses have channge over the years but the disrtibution maintaings in a similar way

Our aim is to improve the areas of oppor tunity in Caucel in a way we are able to give not only the people of Caucel a strong sense of belonging but also anyone who comes to visit All of this trhough a fully equipped space in order to improve the cultural, economic, environmental and trans por t conditions We hope to desintegrate both physical and psicological barrier generated by the previous lack of urban planning, thus, improving the quality of spaces in which the citizens of Caucel interact, which will improve the quality of life

URBAN DESIGN PRINCIPLES

PROBLEMATICS

Thanks to the previous analysis we were able to spot the follwing main problematics due to the current situation caused par tly by the continuous urban growth which takes over Caucel

LINES OF ACTION

PLAN

Our plan is to divide Caucel in 5. This division comes from the vehicular and comercial borders, and from there, create 5 subcenters which will aid the interaction be tween the citizens

MÉXICO MÉRIDA, YUCATÁN CAUCEL
Lack of cultural Lack of sustainable public space Lack of space for commerce Lack of urban mobility Insecurity Lack of water collection
Sustainability Urban mobility Economic growth Public spaceCultural Cultural Economic growth Sustainability Public space
People centered design
STRATEGIC AREAS Adequate and Increased density Mixed land use Social mixing New housing model Ecological landscape Walkable spaces Alternative energy use Energy saving principles Sustainable urban infraestructure Spaces for community life Inclusive urban funiture Limited specialised land use Technological innovation Active front Regional construction materials Complete public spaces
INTRODUCTION Areas of opportunity Caucel Urban conurbation Vivian Cortés Pasos Valeria Palomo Lázaro Proyectos IIV: Diseño urbano 01 - Dic - 2020 4 1 3 2 Regeneration of existing land with new and /or underused build ings that can accommodate more people URBAN TRANSFORMATION AND INTENSIFICATION Preserving the quality of the natural environment by imple menting measures compatible with sustainable development and a high level of environmental protection environment and human health. IMRPOVEMENT / RECOV ERY OF THE NATURAL ENVIRONMENT Encourage the use of alter native transport to the car through infrastructure and devel opment plans ENHACING SUSTAIN ABLE MOBILITY Recovery and creation of public spaces ensuring wooded areas and maintaining the existing plant cover IMPROVEMENT OF NATURAL AREAS AND PROVI SION OF GREEN AREAS Transformation of building and public space nto a well functioning economic and green spot tion, economic growth, urban mobility quality of public space, culture and sustainability 1 3 Transformation of park into a well equipped public space for economic activity Aim: Enhance cultural iden tity through sport and social coexistence as well as eco nomic growth. Proposal of green spot as well as public space and main center of water collec tion. Aim: Higlight the impor tance a sustainability and public spaces in our daily lives 54 Proposal of cultural equip ment such as workshops as well as an exhibition space Aim: Enhance union through cultural activities as well as public space for social interaction. 2 Improvement of public space Aim: Higlight the impor tance of public spaces in our daily lives as well as social interaction. STRATEGIESKAAJAL:

Hotel San Juan

Levantamiento

Calle 58 497, 97000 Mérida, Yucatán

Con un equipo de colegas, liderado por el Arq. Fernando Cárdenas, se llevó a cabo el levantamiento del Hotel San Juan. Este se encuentra ubicado en el centro de Mérida por lo que su arquitectura es colo nial.

El trabajo incluía tomar medidas del Hotel, al igual que un reporte fotográ co y realizar lo planos arquitectónicos y modelo 3D utilizando el programa Revit.

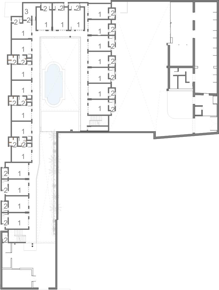
El hotel es un edi cio de 3 pisos que cuenta con un lobby, un patio central, 63 habitaciones y un estacionamiento.

Modelo 3D en Revit

03

1 Lobby

de

Bodega

1 Habitación

Plano arquitectónico - Nivel 0 Plano arquitectónico - Nivel 8 Jardín 9 Alberca 10 Terraza 11 Estacionamiento 12 Bodega 13 Caseta de seguridad14 Área de basura
2 Sala de espera 3 Recepción 4 Sala
espera 2 5
de recepción 6 Baño 7 Habitación
2 Baño 3 Bodega NN

Plano arquitectónico - Nivel

Nivel 1
2 1 Habitación 2 Baño 3 Bodega N

Corte Longitudinal A-A’

Corte Transversal B-B’

Turn static files into dynamic content formats.

Create a flipbook
Issuu converts static files into: digital portfolios, online yearbooks, online catalogs, digital photo albums and more. Sign up and create your flipbook.
Valeria Palomo - Portafolio by Valeria Palomo - Issuu