

ULIANA TRISHCHUK PORTFOLIO


VZDĚLANÍ:
2018-2022 SPŠ Stavební Josefa Gočára, Praha 2022-dosud Fakulta architektury ČVUT v Praze, Architektura a urbanismus
PRAXE:
2019 Atribut solution s.r.o. Praha - Praktikantka 2022-dosud Airstay, Prague s.r.o. - Interiérová designérka
DOVEDNOSTI:
AutoCAD, ArchiCAD, Sketchup, InDesign, Photoshop, Lumion




školní projekty 42-61
STUDENTSKÁ
Tento návrh vychází z výzvy pracovat s velmi malou plochou střešního bytu o velikosti pouhých 18,5 m², kterou navíc výrazně ovlivňuje šikmý strop a tím i omezená užitná výška. Cílem bylo vytvořit plnohodnotné a útulné bydlení, které i na minimální ploše nabídne vše potřebné – úložný prostor s pračkou, kuchyňskou linku, jídelní stůl i pohodlné místo pro spaní a odpočinek.
Dispozice byla řešena tak, aby se jednotlivé funkce přirozeně prolínaly a prostor nepůsobil stísněně. Místo na spaní bylo navrženo tak, aby mohlo sloužit zároveň jako pohovka během dne, a tím se maximalizovala flexibilita celého interiéru. Kuchyňská linka je zakončena zaobleným rohem, který zjemňuje linie a umožňuje plynulý pohyb v malém prostoru.
Interiér kombinuje přírodní dřevo, bílou a světle modrou s terrazovou dlažbou. Červené akcenty dodávají energii, zlaté detaily eleganci a celek působí útulně, hravě a zároveň prakticky.
18,5 m² PRAHA, DEJVICE 2024








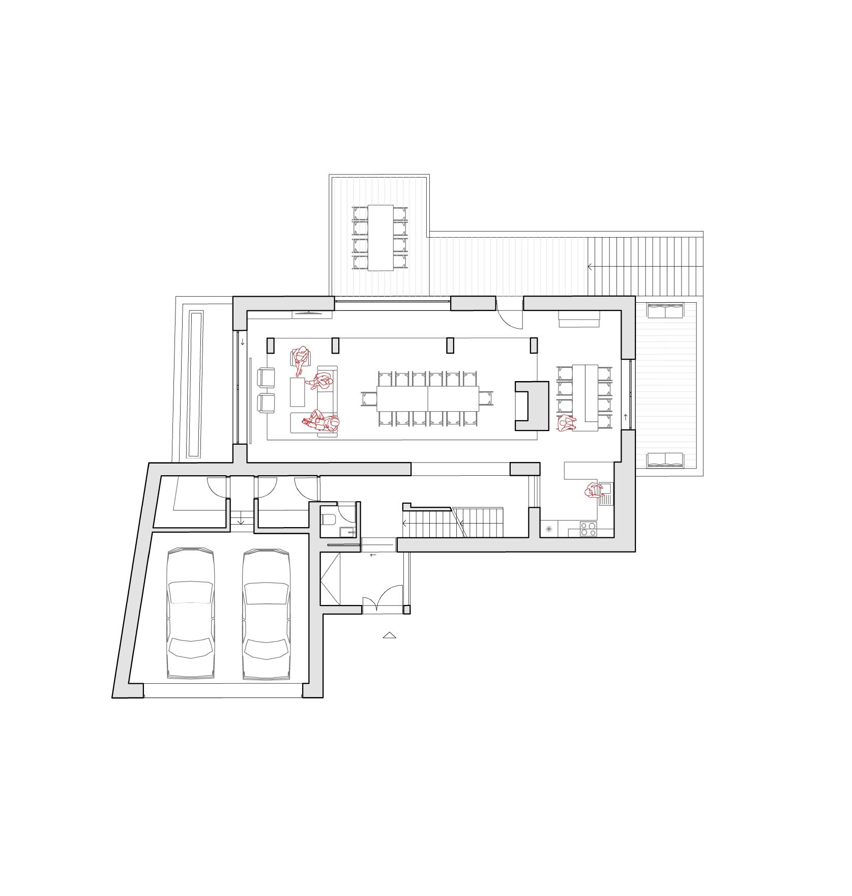
VILA BARRANDOV
Úkolem bylo kompletně vybavit čtyřpatrovou vilu určenou ke krátkodobým pronájmům. Hlavním cílem návrhu bylo navýšit kapacitu domu, ale zároveň zachovat útulný a domácký dojem, díky němuž se hosté budou cítit příjemně a pohodlně.
Interiér pracuje s kontrastem tmavého a světlého dřeva, které společně vytváří vyváženou a harmonickou atmosféru. Použité textilie jsou laděny do světlých tónů a doplněny měkkými, zaoblenými tvary nábytku i doplňků. Tyto prvky zjemňují celkový prostor a podporují pocit komfortu.
Každé patro bylo řešeno tak, aby nabídlo dostatek úložného i obytného prostoru a umožnilo pohodlný pobyt více osob, aniž by byla narušena vzdušnost a vizuální lehkost interiéru. Výsledkem je interiér, který spojuje praktickou funkčnost s příjemnou domácí atmosférou, a odpovídá tak potřebám krátkodobého pronájmu i očekávání hostů.








ELIŠKY KRÁSNOHORSKÉ
Když jsem byt poprvé viděla, měl tmavě červené stěny, které prostor opticky zmenšovaly. Hned jsem ale viděla jeho potenciál – vysoké stropy a velký okna, která propouštěla sluneční světlo, Návrh vycházel z toho, aby prostor působil lehce, svěže a klidně.
Inspirovala mě skandinávská jednoduchost a japonská filozofie, které se v interiéru propojují – čisté linie, přírodní materiály a harmonická atmosféra. Obytná místnost byla navržena tak, aby spojovala každodenní život s večerním odpočinkem. Naproti pohovce je biokrb, který večer dodává prostoru hřejivou a útulnou atmosféru.
Barevná a materiálová koncepce vycházela ze světlých tónů, dřeva a jemných textilií, doplněných drobnými akcenty, které dodávají prostoru osobitost. Výsledek je harmonický, klidný a inspirativní – místo, kde se člověk cítí jako doma.
74,2 m² PRAHA, JOSEFOV 2024








KORUNNÍ
Byt byl navržen tak, aby na malé ploše poskytl komfortní a funkční zázemí. Hlavní obytná místnost je členěna na spací část s úložným prostorem a kuchyni s jídelním koutem.
Výrazným prvkem dispozice je skleněná příčka, která vizuálně odděluje postel od kuchyně. Díky své průsvitnosti propouští a přirozeně přelamuje světlo, takže prostor působí otevřeně a vzdušně. Naproti posteli je umístěno projekční plátno, které kromě promítání filmů slouží i jako variabilní clona zakrývající šatní skříň.
Materiálové řešení kombinuje olivově zelenou kuchyňskou linku s prvky ze dřeva a se světle žlutými akcenty, které interiér zjemňují a prosvětlují. Dřevo dodává prostoru přírodní charakter a pocit útulnosti, zatímco žlutá barva vnáší do místnosti svěžest a optimismus.
Velký důraz byl kladen na úložné kapacity, aby bylo možné byt snadno udržovat v pořádku. Celkový koncept spojuje funkčnost s estetickou jednoduchostí a vytváří harmonické prostředí, které působí příjemně i přes omezenou plochu.
23,2 m² PRAHA, VINOHRADY 2025







KORUNNÍ
Menší byt 2+kk je navržen s důrazem na optické zvětšení a maximální funkčnost. Na kuchyňském panelu je použito zrcadlo, které odráží světlo z okna a tím prostor prosvětluje a zvětšuje. V jídelní části je umístěna lavice, jež šetří místo a zároveň poskytuje pohodlné sezení. Nad lavicí je instalována televize typu „frame“, která v klidovém režimu působí jako obraz a přirozeně zapadá do interiéru.
Celý byt je koncipován ve světlých tónech s výrazným podílem dřeva, což vytváří přírodní a harmonickou atmosféru. Velký důraz byl kladen na úložné prostory, aby interiér zůstal praktický a přehledný. V ložnici zaujme hravé čelo postele s jemnými vlnkami, které dodává prostoru osobitý charakter a lehkost.
35,2 m² PRAHA, VINOHRADY 2025







MYSLBEKOVA
Dispozice bytu byla zachována; mým úkolem bylo vybavit byt nábytkem. Koncept interiéru byl vytvořit nostalgickou atmosféru, která kombinuje hravé a světlé prvky s moderním a praktickým pojetím. Interiér je laděn do světlých, hravých tónů – světle modrá a světle žlutá barva dodávají prostoru optimismus a lehkost. Kombinace dřevěných prvků a detailů z mosazi podtrhuje přírodní a zároveň sofistikovaný charakter bytu.
Inspirací pro návrh byla původní podlaha v chodbě, která byla zachována na přání majitele a vytváří spojení mezi historií a současným designem. Dispozice byla řešena tak, aby jednotlivé zóny – obytná, jídelní a spací – spolu plynule komunikovaly a zároveň si zachovaly svoji samostatnost. Praktickým prvkem je lavice u jídelního stolu, která šetří místo a zároveň zajišťuje komfortní sezení. Celý interiér působí hravě, vzdušně a harmonicky, přičemž každý detail byl navržen tak, aby podtrhl charakter prostoru a zajistil pohodlné každodenní užívání.







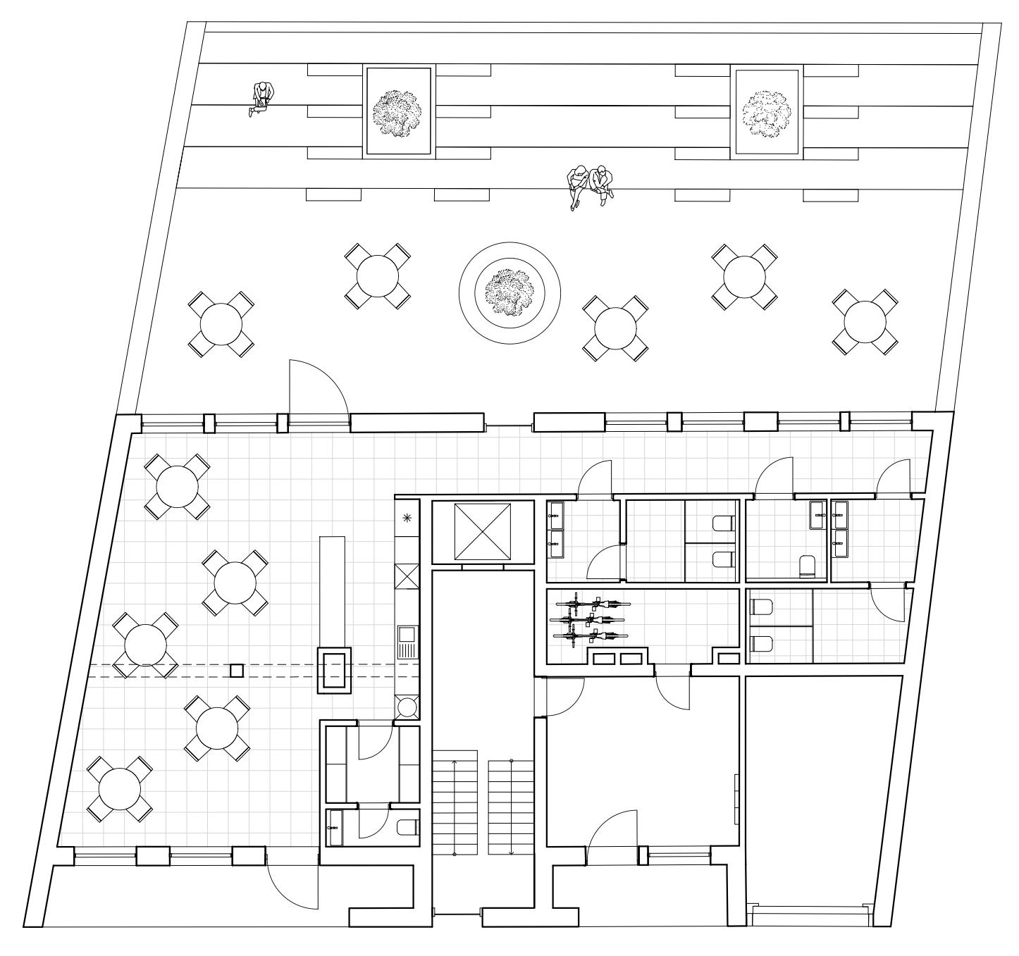
PROLUKA POD ZÁMKEM
Představovaný nízkopodlažní bytový dům v historickém centru Náchoda vychází z potřeby řešit rostoucí poptávku po moderním bydlení, přičemž klíčovým omezením bylo zachování kulturní a architektonické hodnoty místa.
Návrh s zaměřuje na začlenění do kontextu historického centra. Obytná část bytového komplexu se skládá ze šesti jednotek, navržených pro 1 až 2 osoby, s důrazem na efektivitu prostoru a využívání přirozeného světla. Fasáda budovy respektuje tradiční stavební materiály a architektonické prvky, zajišťující harmonický soulad s okolní zástavbou. V suterénu je vyhrazena garážová část, řešící parkovací potřeby obyvatel a minimalizující dopad na vizuální estetiku města. Komunitní aspekt projektu je zdůrazněn umístěním kavárny v přízemí s přilehlou zahrádkou, nabízející nejen služby pro obyvatele, ale také oživující veřejný prostor a podporující společenské interakce.
Celkově navržený bytový dům reprezentuje snahu o propojení moderních životních standardů s respektem k kulturnímu a historickému dědictví. Projekt reflektuje potřebu nacházet vyvážený kompromis mezi inovací a uchováním identity místa, aby se obyvatelé cítili nejen doma, ale také součástí jedinečného kulturního prostředí historického centra Náchoda.


situace

půdorys 1.NP

půdorys přízemí


pohled východojižní







pohled severozápadní





































KLÁŠTER VILÉMOV
Návrh klášterního komplexu ve Vilémově, který se nachází na poutní cestě Via Czechia, propojuje spiritualitu, přírodu a jednoduchou architekturu. Hlavním sjednocujícím prvkem areálu je rybník, kolem něhož jsou rozmístěny klíčové části komplexu. Kaple, jako duchovní dominanta, stojí samostatně na břehu rybníka a je ze dřeva. Samotný klášter, navržený z dusané hlíny, vyjadřuje skromnost a harmonii s přírodou. Pivovar a ubytování pro poutníky vytvářejí pomyslnou bránu do původně barokního dvora, který tvoří centrální prostor komplexu. Návrh klade důraz na jednoduchost, udržitelnost a podporu duchovní obnovy na poutní cestě.
město Vilémov
Ateliér Stempel-Beneš, FA ČVUT
2024



axonometrie



půdorys přízemí

pohled severovýchodní
pohled jihozápadní


pohled východojižní



pohled západoseverní


řez příčný

