PORTFOLIO ARQUITECTURA

Page 1


rabajos seleccionado 2024

toapantapbelgica@gmail.com

+593 0984530880 Quito, Latacunga, Ecuador

En esta colección se presentan los proyectos más destacados en arquitectura, donde se refleja mi pasión por el diseño

2024

2024

2023

+Arquitectura

Universidad Central del Ecuador / Quito

+Taller de Sistemas de Construcción en Tierra El sindicato arquitectura, Defrente Studio / Quito

+Fotografía Taller de fotografìa con perspectiva de gènero / Andrea Murcia

+Escuela de Diálogo Formaciòn continua UDA/ESQUEL 2023

2023

2021

2024

2024-2024

2023-2023

2023-2023

2023-2023

2022-2022

2021-2021

2021-2021

+Escuela de Formación de Jóvenes Líderes y Lideresas "Fundación Regional de Asesoría en Derechos Humanos – INREDH

+Diseño de infografías: Creatividad y Narración visual

Taller con Ana Cuna

+Coordinadora general del proyecto Laboratorio creativo Colectiva Allullas Verdes Cotopaxi

+Asistente de investigación, comunicación e incidencia Colectiva Allullas Verdes Cotopaxi

+Especialista en visualización arquitectónica 2D y 3D

Gabriela Cornejo Arquitecta

+Diseñadora y especialista en visualización arquitectónica 2D y 3D

Cristina Granda Arquitecta

+Diseñadora en remodelación residencial Proyecto propio

+Diseñadora y especialista en visualización arquitectónica 2D y 3D HIDROVIAS Diseño & Construcción

+Asistente de investigación en la revista Arquitectura y Sociedad edición 20 Facultad de Arquitectura y Urbanismo / Universidad Central del Ecuador

+Grupo de trabajo en el proyecto "Plan de vida de la Nacionalidad Achuar del Ecuador NAE" NAE

+MS Office

Word/Power Point/Excel

+Adobe CC

Photoshop/Illustrator/Premier Pro

+2D/3D

Autocad/Revit/Archicad/Sketchup

+Rendering

Enscape/Vray/Twinmotion/Materialize

+GIS

Arcgis/Qgis/Global Mapper

nominación selección participante publicación ponente

+BIENAL Categoría Intervención en Arquitectura preexistente Espacios intermedios

Facultad de Arquitectura y Urbanismo / Universidad Central del Ecuador

+Medalla de oro categoría Paisaje Proyecto de Fin de Carrera Espacios intermedios aplicados al diseño del remate de la calle Guayaquil en la ciudad de Latacunga

Facultad de Arquitectura y Urbanismo / Universidad Central del Ecuador 2024

2024

+Asamblea Participativa de Diagnóstico del Plan de Desarrollo y Ordenamiento Territorial

Municipio de Latacunga Cotopaxi

+Festival Internacional Zarelia de periodismo, medios digitales, género y feminismos

FLACSO / Universidad Andina Simón Bolivar

+Foro Juvenil Esto es Valiente / Perú

Planned Parenthood Global

+Festival de cortometrajes nacional YO DECIDO Fundación EQUIS 2024

2024

2022

+Festival de cortometrajes internacional VI edición de Dona'm Cine ASOCIACIÓN ENTREPUEBLOS , PRODUCCIONES DOBLE BANDA

+Exposición fotográfica “Somos el paro dentro del paro”

Centro de Arte Contemporáneo CAC / Quito

+Participación en el estudio y exposición de la "Imagen de la Ciudad de Quito"

Centro Cultural Metropolitano CCM / Quito

+Medalla de oro Taller 9 Residencia para artistas + Centro Cultural Facultad de Arquitectura y Urbanismo / Universidad Central del Ecuador 2021

+Exposición Procesos FAU 2021 – Taller Vertical 1

Facultad de Arquitectura y Urbanismo / Universidad Central del Ecuador 2021

2020

+Medalla de oro Taller 7 Vivienda Colectiva

Facultad de Arquitectura y Urbanismo / Universidad Central del Ecuador

+Proyecto urbano Sinergia Biofìsica del Borde Laderas del Pichincha

Facultad de Arquitectura y Urbanismo / Universidad Central del Ecuador 2020

Facultad de Arquitectura y Urbanismo / Universidad Central del Ecuador 2020

+METROCULTURA Accesibilidad Universal uso del espacio público y mobiliario urbano

+Fotografía

+Maquetería +Paste-up

+Stencil +Bordado

+Tejido +Inglés - B2

+Espacios intermedios en remate arquitectónico / Latacunga

Proyecto urbano-arquitectónico

+Sinergia Biofísica del Borde / Laderas del Pichincha

Proyecto urbano

+Residencia para artistas+Centro Cultural / Quito

Proyecto arquitectónico

+El segundo corredor seguro / Latacunga

Cartografía crítica

+Figura Maqueta vista general

Espacios intermedios en remate arquitectónico

Proyecto urbano-arquitectónico

2023

Latacunga-Cotopaxi

Idea, diseño y visualización

El proyecto busca articular el tejido urbano, mediante un conjunto de ESPACIOS INTERMEDIOS, que consolidan la relación entre la calle y la casa, liberando los límites de la manzana y diversificando los lugares urbanos colectivos. Dando como resultado, un conjunto de VIVIENDA COLECTIVA, con espacios intermedios que integran el tejido, mediante una planta baja permeable que se abre a la ciudad, enlazando los diferentes niveles topográficos, construyendo una continuidad en los recorridos y dinamizando las actividades con nuevos espacios públicos.

El proyecto activa y alberga las relaciones entre los habitantes, y las preexistencias.

APROXIMACIONES AL LUGAR

escala ciudad

EJE DE INTERVENCIÓN

Se proyectan nuevos elementos de la imagen urbana, de los cuales se elige el nodo 1 un espacio que REMATA LA CALLE GUAYAQUIL un remate urbano

de intervención Espacios intermedios Elementos

ESPACIOS INTERMEDIOS

escala conjunt o

CONJUNTO

Avenida Oriente

cse a laarquitectó n aci

LÍNEAS DE APROXIMACIÓN

calle-gradas manzanas manzana-escalinata

SECTOR D

SECTOR A

SECTOR B SECTOR C

Eje
Manzana
Espacios intermedios
Área
SECCIÓN POR LA CALLE ISLA TORTUGA (CONEXIÓN CALLE-ESCALINATA)
SECCIÓN POR EL ESPACIO PÚBLICO (CONEXIÓN MANZANA-ESCALINATA)
escalinata
calle Guayaquil
parque
escalinata
pasaje

CONFIGURACIÓN DEL CONJUNTO

SECTOR A

SECTOR B

SECTOR C

SECTOR D

TERRAZA VESTÍBULO

TERRAZA PUENTE

PORTAL VESTÍBULO

VESTÍBULO PLAZA TERRAZA

Proyección de la estructura

Guardería PATIO PLAZA Doble altura

PORTAL Cubierto PASAJE

TERRAZA BALCÓN

Espacio

Conexión de RAMPA

BALCÓN

ESCALINATA Ingreso al bloque

PORTAL Límite de la manzana

PUENTE PLAZA

PASAJE Conexión de bloques

CALLE ISLA TORTUGA

Existente ESCALINATA

ESCALINATA

PARQUE

PORTAL

Ingreso al parque

Conexión

PASAJE ESCULTURA PASAJE PLAZA Existente PASAJE Existente ESCALINATA

ESCALINATA

Remate visual PLAZA PLAZA Cubierto PASAJE

IMAGENES URBANAS

A nivel urbano se configuran nuevos: nodos, hitos y sendas que refuerzan las relaciones visuales y físicas del conjunto con la ciudad

+Reconfiguración y ordenamiento de la ocupación

1 2 3 4

+Figura

Implantación/esquemas

Sinergia Biofísica del Borde

Proyecto urbano

2020

Laderas del Pichincha

Idea, diseño y visualización

En los últimos 70 años los asentamientos humanos del sector occidental de Quito han hido ocupando las faldas del Pichincha, produciendo un ddesequilibrio espacia y socioeconómico, pues la concentración de ocupación irregular refleja la falta de organización y estudio de los procesos naturales del volcán. El proyecto busca regularizar la densidad poblacional y establecer centralidades con la capacidad de brindar servicios inmediatos, además de una continuidad del sistema biótico equilibrada con la zona antropizada.

parcelario

trazado

hidrología quebradas

morfometría territorio

Transectos de la secuencia del borde

1

Control del modo de crecimiento y consolidación de centralidades con intensidades de ocupaciòn altas en el límite de la ciudad

2

Tratamiento del borde, mediante la consolidación de zonas de cultivo como elemento de transiciòn hacia el bosque

3

Consolidación del sistema de movilidad, mediante la apertura de rutas peatonales horizontales que conectan los barrios

Territorio natural

Estructuración del sistema intermodal

Proximidad de abiertos urbanos

Sistema ecológico del volcán Pichincha

+Figura Ilustración

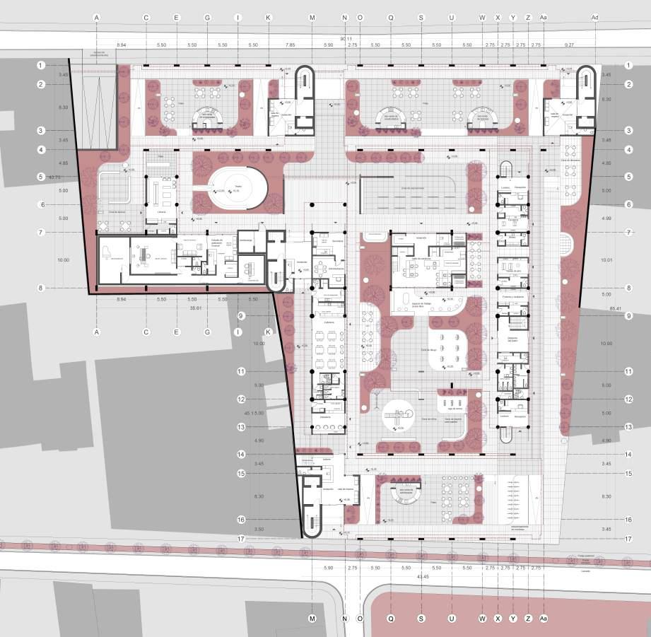
Residencia para artistas+Centro Cultural

Proyecto arquitectónico

2020

Quito-Pichincha

Idea, diseño y visualización

La residencia para artistas y centro cultural es un proyecto estructurante dentro de un eje urbano marcado por la calle Jacinto Morán, que busca otorgar un nuevo rol a los barrios Santa Clara y La Mariscal, articulando espacios y diversificando las actividades, que acogan a toda la gente. Esta implantado dentro de una vacío urbano con una morfología compleja, donde la continuidad se va construyendo a partir de elevar la arquitectura y configurar una planta baja libre, con diversos espacio colectivos, además, la programación responde a las nuevas actividades, que en conjunto configuran una pequeña ciudad.

Condicionantes

Lógica de implantación

EJES ESTRUCTURANTES

servicio + residencia investigación + residencia 10 de Agosto manzana de oportunidad

Lote de oportunidad Medianeras

edificaciones patrimoniales equipamientos parque área de oportunidad

PERFIL URBANO CALLE ALONSO DE MERCADILLO principal secundario conexión

coordinación modulación ventanabalcón

coordinación modulación ventanas

Luis Cordero

Estructura principal

Vigas principales

Riostra

Diafragma

Estructura secundaria

Cables tensores

Columnas circulares

Programa

Residencia + taller artistas escénicos, plásticos, visuales y digitales

Creación, investigación, producción individual y colectiva (taller, aula, estudio, teatro, biblioteca)

Difusión (sala de exposiciones, terrazas)

Comercio (locales de arte, cafetería, librería, frutería, ferretería)

N

N

N

N

N

N

N

N

N

N

HABITACIONES TIPO

Habitación individual

Habitación duplex

Habitación satélite

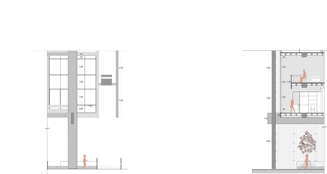
DETALLE ARQUITECTÓNICO

Mampara de vidrio claro laminado de 3 lineas con estructura modulada en horizontal @ 128cm; vertical @90cm @180 cm de perfiles de aluminio color negro mate

Pasamanos de hormigón visto con una perforación corrida de 22 cm de alto sujetados con tubo de acero negro galvanizado d= 0,30 cm

Cielo falso raso de planchas de gypsum de 121,9 cm* 243,8 cm e= 0,94cm con orilla cuadrada color blanco mate sujetado con tensores de aluminio galvanizado color natural h= 600cm ;una estructura con perfiles de aluminio galvanizado de 800 *800 cm y juntas de 0,2 cm

Porcelanato gris de 50*100cm, entramado horizontal, con terminado mate y juntas de 0,3cm selladas con empore color gris mate

Faldón de hormigón visto de 8*52cm con media caña superior e inferior de 0,7* 0,7cm

Losa de hormigón alivianado con casetones plásticos recuperables de 60*60*25cm

Diafragma de 40*100cm de hormigón visto con encofrado mixto con marco metálico galvanizado, vigas VM 20 @10 cm y un tablero de madera fenólica de 40 *1000cm con terminación de entramado vertical

Barredera rehundido de 1cm con terminación de hormigón visto

+Figura Cartografía de la plaza

El segundo corredor seguro

Cartografía crítica

2024

Latacunga-Cotopaxi

“I Concurso de Fotografía, Cartografía Critica y Collage” ¿Derecho a la ciudad? Espacios en disputa

La lucha por el espacio público en el centro de la ciudad de Latacunga, se materializa en el fragmento presentado, el remate del “segundo corredor seguro”, donde se observa la relación de las estructuras y l@s habitantes, donde se disputan los espacios normados por la Seguridad Municipal, parte de los espacios urbanos también lo componen las ausencias, con derrumbes y prohibiciones a lo largo de los años, que hacen a los habitantes agentes activos de reconstrucción del espacio.

+GRACIAS

Turn static files into dynamic content formats.

Create a flipbook
Issuu converts static files into: digital portfolios, online yearbooks, online catalogs, digital photo albums and more. Sign up and create your flipbook.