









Space is the breadth of art. -Frank Lloyd Wright
![]()










Space is the breadth of art. -Frank Lloyd Wright
This is a report that is prepare as the final assignment of the practicum that I practiced as course of study for the 4th Year, 1st Part, in context of my Bachelor in Architecture.
The Practicum course intends to provide the students of architecture on overview of professional practice, this enables them to perceive the challenges and seek the ways of enhancing our knowledge. The aim of practicum is to make us students ready for the reality of architecture which can be contradictory to students life and to re-energize the students for the final year thesis. The report details the projects I was involved in, the challenges faced, and the solutions developed. This experience has deepened my comprehension of the architectural workflow, improved my technical and creative skills, and prepared me for a professional career in architecture.
This report covers the insight on how work is done at Design Station (DS) and the projects. I got to be involved in during my working period like Aarunya Nature Resort, Simara Hotel, Nice Consultancy, Premier Apartment, Maharajgunj Complex etc. The works includes Architectural, Detail Drawings of Aarunya Nature Resort, Nice Consultancy, It also includes Municipal Drawings of Kuleshwor Abhilekhikaran, A-Frame and Maharjgunj Complex. The Perspective Drawings of Aarunya Nature Resort, Nice Consultancy, A-Frame, Maharajgunj Complex. Site observation and Site Measurements of 6 sites including Site Supervision of Nice Education Consultancy, The BOQ, Sub Contractor bills, Client Bill were made for Nice Consultancy.
First of all, I would like to acknowledge the support of Department of Architecture, Himalaya College of Engineering for providing is with a platform to work as a Trainee Architect as a part of IV/I curriculum. This has helped me gained practical knowledge v this field and also has given me a chance to work in a professional manner.
I would like to offer my gratitude to the firm Design Station for accepting me to guide through my practical knowledge intake and making my internship tenure a fulfilled one and not forgetting about the working environment they provided.
I would like to show my sincere gratitude to Ar.Nabin Krishna Shrestha, the Principal architect for granting me an opportunity to enhance and expand my knowledge in architecture. My sincere gratitude goes to Ar.Sabina Khadka, Ar.Archana Kumari Shah, Er.Pramila Shrestha, Er.Prashant Paudel, Ar.Anusha Timalsina and Ar. Mandira Kafle for continually motivating me to give my best in the practicum time period. I would also like to extend my gratitude towards my fellow interns Piyush Sharma, Nisha Yadav and Sneha Agrawal for helping me along this shared journey of practicum. Without them my journey would not have been this fruitful and fun.
I would like to express my sincere gratitude to Ar. Sajana Lamichhane (Practicum Supervisor) for assisting me to achieve an insightful decision, providing feedback and providing required counsel and direction for the entirely of my work term.
Thank You
Suyog Karmacharya 077BAR048
• To gain experience in professional responsibilities, opportunities, and increase confidence.
• To improve our communal and other professional skills.
• To familiarize with the organization process, project management, and legal procedures.
• To understand team work with good co-ordination and management
• To understand what truly is an Architect’s profession and the ways around practice.
• To understand the range of field up to which an architectural and constructional firm should deal with project.
• To compare and contrast between academic learnings and professional life.
• To gain proficiency in using architectural softwares and tools which are commonly used in the field.
• To build professional relationships within the architecture and construction industry by networking with architects, engineers, contractors, and other professionals.

Contact Address: Chakupat, Lalitpur, Nepal 44600
Contact No: 9851196786, 9849544877
E-mail: designstation72@gmail.com
Architects and Engineers
1: Chief Architect: Ar. Nabin Krishna Shrestha
2: Senior Architect: Ar. Sabina Khadka
3: Senior Architect: Ar. Archana Kumari Shah
4: Civil Engineer: Er. Pramila Shrestha
5: Civil Engineer: Er. Prashant Paudel
6: Junior Architect: Ar. Anusha Timalsina
7: Junior Architect: Ar. Mandira Kafle
Architecture and building
Landscape design
Interior design
Low-cost design
Visualization and interpretation
Structural and constructional works

As a student, I wanted to join a firm that elevates my career in multiple aspects besides the core architectural drafting and designing. I wanted to join a firm with where the one’s creativity would flourish through but also focus on the construction techniques, management, structural and constructional works and MEP (Mechanical, Electrical, Plumbing). Design Station is one of the fast growing and recognized firms in Nepal.
The environment that DS provides in unique, friendly. It has everything to offer to intern students. It is well equipped with the required resources with their friendly environment and constant guidance. It covers wide ranges of activities with conceptual documentation, research, construction, structural works, bill making etc. It aims to sort out the ambiguous scenario of the present architecture style with various innovative ideas and practices. The friendly environment and constantly supporting culture help newbies to overcome design problems and seek out new innovative ideas form each other. Also with the aim of motivating ethical norms and standards for the best interest of the client, it covers a wide range of activities including architecture, estimation, contract documentation, construction supervision, landscape and overall interior and construction.
1. Client Meeting: Initial Programs and requirements
2. Feasibility Study
3. Site Visit:
Site Survey: Architecture, Topographic, Services
4. Literature Review and Case Study
5. Program Formulation
6. Conceptual Drawing:
Initial idea generation
3D Visualization
Preliminary Prop osal
7. Detail Drawings:
Architecture Drawings
Structural Drawi ngs
MEP Drawings
8. Tender Documents
9. Structural Drawings
10. Construction
• Design Development
• Working Drawing
• 3D Modeling
• Landscape Design
• Research and Report Writing
• Material Study and Market Survey
• Site Visit, Site Measurements and Site Supervision
• Client Meeting and Discussion
• Preparation
• Rendering
• Communication with Procurement
• Site Drawings

Architecture is what I see, feel, touch, and smell as I move towards any place. I would prefer to call it a 7th sense. Designing a space needs a abstract sense to take into reality. The intricate details, carvings, textures of materials, echoes in the amphitheater, coziness, warmth, comfort, or surprise; can transform the interaction between people and the built environment into something even deeper. Proper sounding can make spaces sing. Different sounds can add a different sensation to an environment. Choice of color can define a vibe of a place to trigger emotions. Smells have the power of nostalgia in a way of creating emotional memories. Architecture is created to touch, unlike the arts. Surfaces of floors, walls and furniture can define the comfort related to touch. Architecture has power.
Architecture to me means “Solving problems.” Like a Rubik’s cube, Starting with the wish list, we dig more into the user requirement to create spaces and systems that allow them to achieve their goals. The final challenge is to lack all those individual solutions together as a harmonious, workable whole. Hence, Architecture is a dichotomy of proficiency and technicalities. It requires an extreme passion for creativity combined with technicalities to be able for the design to flourish in the real world. Architecture can be gloomy if neglected with context. Hence, for me Architecture shall respect its surroundings.






NICE EDUCATION CONSULTANCY
18 - 43 44 - 59 60 - 67
68 - 73
74 - 81
BUDDHANAGAR OFFICE
82 - 85






Introduction
Main Block
Reception Area Design
Mockup Room Design
Resort Display Board
Peace Park
Buddha Statue
Container Resturant
What I learned
Introduction
Plan Developement
3D Visualization
Design Development
Site Supervision
Market Survey
What I learned
Introduction
3D Visualization
Bill of Qunatity
What I learned
Introduction Municipal Drawings Form Development
What I learned Introduction Plan Development Form Development
3D Visualization
What I learned Introduction Floor Plans
3D Visualtion
Bill of Quantity
What I learned



Role: Participating in landscape design and planning, Guest block planning and layout, 3D modeling, Detail drawings of Main block and guest block and its rooms.

ARCHITECTURE, LANDSCAPE, EXTERIOR, INTERIOR
LOCATION: NAGI DANDA, BANEPA
CLIENT: MR GYANENDRA LAL PARADHAN
STATUS: UNDER CONSTRUCTION






SITE AREA: 11774.23 SQ.FT
SITE SURROUNDINGS:
• GODARGAUN
• BANEPA
• SANGHA
TOPOGRAPHY: 1820M - 1795M






Naming Board
Swimming Pool
Main Block
Guest Block


Peace Park
Container Restaurant
Kiosks and Amphitheater
Buffer Zone
A 11774.23 sq.ft resort is proposed at Nagi danda, Banepa in between the forest area, accessible by two roads. The design of the resort is inspired by the site’s topography and geography with natural elements such as mountains, trees and contours guiding the design process.
The design of the resort is carried out in different phases:
• First phase or initial phase conceptual design includes overall conceptual zoning of the master plan which includes stupa, main block and guest block.
• Second phase includes overall design and construction of the main block and the guest block.
• Third phase includes the design and construction of stupa



Orientation: South
Architecture style: Pairie Style
Floor Area: 8841 Sq.ft
Materials used: Brick, concrete, metals, decra sheets, woods.
Construction Started: 2022
Status: Under Construction
















Direct Circulation Indirect Cirulation
The Main Block of the resort lies between the kiosks area and the guest block. The main block porch has capacity to stand by 2 cars. The main block has two basements, a ground floor and a first floor. This building is made in prairie style influenced by the master architect Frank Llyod Wright. It has big opening influenced by this style with newari influenced akhi jhya. The slope hipped roof indicates the newari styled roof that is made up of decra sheets.
The main block has spaces like: Reception, luggage room, waiting area, bar area, vip room, gamer room, resturant dining,fire place, souvenir shops, travel desks for visitors. It has some officials rooms like operation department, sales department, meeting room, conference rooms etc. The vertical circulation takes place through 3 staircase and a lift. The basement floors are provided for kitchen, staff rooms, electrical room, changing rooms etc. Outside of the main block, a staircase leads to swimming pool. The open terrace dining and swimming pool directs the visitor’s vision towards the peace parks which is one of the zoning strategies. There are electrical rooms in each floors.


Gold Gajur
Slopped Roof
Wooden Carved Door
Fireplace
Outdoor Bar
Table tennis court









Requirements:
The space needed to exude traditional and modern vibes, Grand in its presentation and create a warm, inviting atmosphere



The illustration showing the lobby space and reception area tradtional design with double floor height.
and tides wall art

Waiting Area
The reception desk and some parts of the walls are made of beautifully carved wood, inspired by traditional Newari designs. This adds a warm and cultural touch to the space. The ceiling has a detailed wooden grid that reflects traditional craftsmanship, making the area feel more connected to the local culture. The display of masks on the wall is a nod to local traditions and adds a bit of cultural character to the space.
The large chandelier in the center is modern and elegant, adding a luxurious feel. The smaller lights above the desk focus on the reception area, making it bright and welcoming. The reception area is open and roomy, has artwork that looks like mountains or waves, connecting the design to nature and giving it a modern twist. The wall art behind the reception desk, resembling mountains or waves, ties the design back to nature, aligning with the resort’s theme. The artistic elements provide a modern twist to the otherwise traditional space.
The reception area combines the beauty of traditional Newari design with modern elements, creating a space that feels both culturally rich and stylish. It’s a place where guests can immediately feel the unique blend of heritage and contemporary comfort.

Hanging light was too small and didn’t give the sense of grandness.
Reception back wall was simple and doesn;t refelect traditonal styles.
Showcase doesn’t complement the reception area.
Flooring looked simple and matte, was changed to glossy finishing.




The fusion of traditional and contemporary elements creates a welcoming space that resonates with cultural significance while offering a fresh and inviting atmosphere for guests. The use of locally sourced materials and architectural features, such as intricate wood carvings and brick textures, honors the heritage of the region, while modern furniture and lighting add comfort and sophistication. This thoughtful design ensures that the reception area serves as a harmonious introduction to the resort’s overall aesthetic, setting the tone for a memorable guest experience.




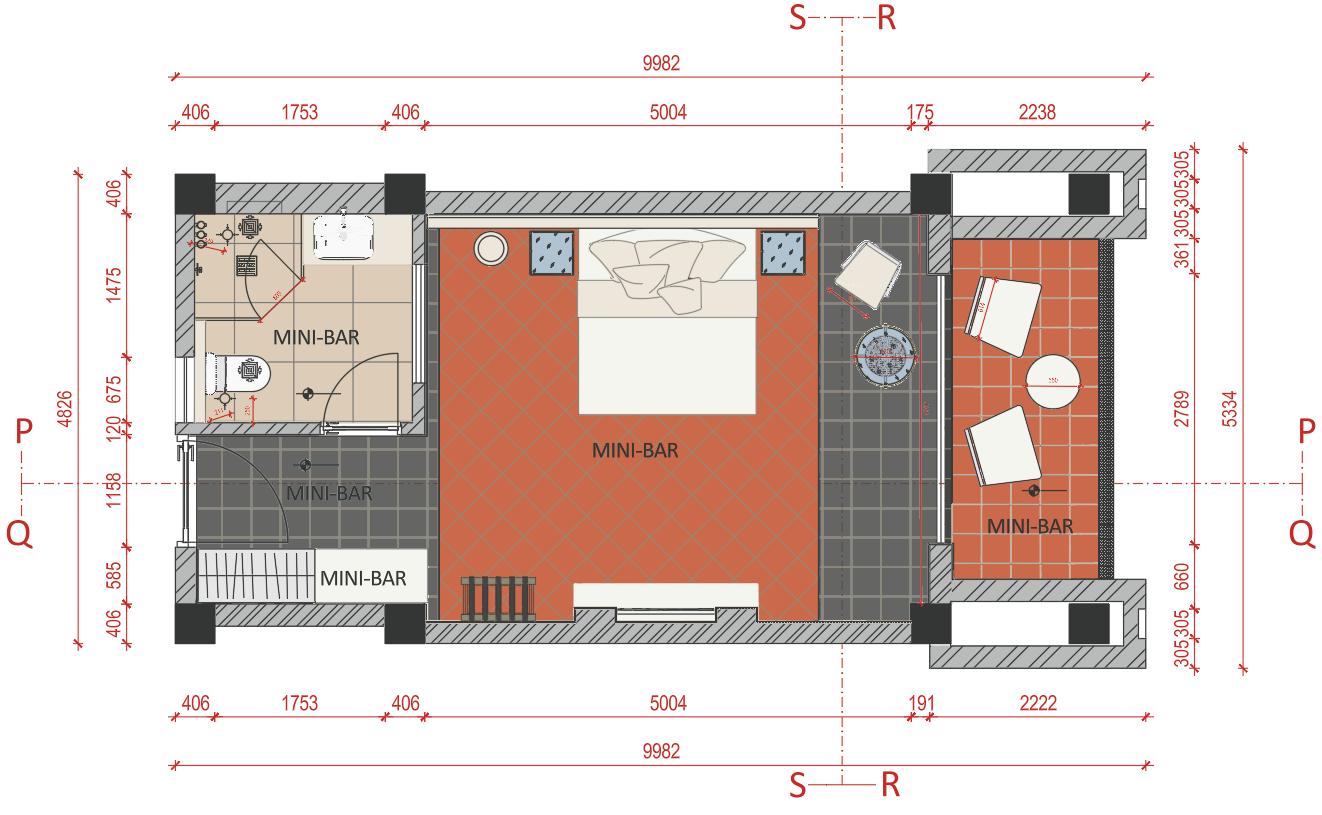
PLAN PROVIDED:
SQ.MW
The mockup room in the guest block of Aarunya Nature Resort was designed with focus on minimalistic aesthetics fused with traditional architecture
The Design Requirements were:
• Proper functional zoning and flow.
• Ensures that each space from the bedroom to the balcony and the washroom is seamlessly connected.
• Traditional materials were carefully selected to enhance the cultural vibes while maintaining a simple modern and elegant theme throughout.



The mockup room in the guest block of Aarunya Nature Resort reflects a harmonious blend of themes, drawing inspiration from the mustang region. The room incorporates minimalistic design elements while staying true to the traditonal aesthetic of the reosrt. The bedroom, balcoy, and washroom all features this integrated theme, creating a space that is both rich and contemporaraily elegant. The interior comes to match the exterior making the overal project blend between the outer facade with the interior.









Note: For further details, please refer drawing A1 and A2 from annex report.



Copper side light
inlay
Full length portrait of Mustang
Telia tile in diagonal pattern
Solid wood + veneer headboard with fabric panelling



The room in the guest block of Aarunya Nature Resort embraces a minimal color palette while infusing traditional vibes that echoes the rich heritage of local architecture. The design incorporates local and traditional materials, creating a space that honors cultural roots while maintaining a simple and elegant aesthetic.









Note: For further details, please refer drawing A1 and A2 from annex report.



The display board of Aarunya Nature Resort is the starting point for the visitors, setting the tone for their experience, made with brick and stone. It matches the resort’s aesthetic, creating a consistent and inviting atmosphere from the entrance. The gold buddha statue reflects the vibes of the peace park.
• Buddha Statue with Water Body
• Grand and visually perpendicular from the road
• Traditional vibes
• Blends with the resort structure
The display board showcases the peaceful and beautiful atmosphere of Aarunya Nature Resort, which blends traditional Newari architecture with modern design. At the center is a Buddha statue, representing calm and serenity, which matches the style of the resort’s design.
Behind the statue, there’s a brick wall that combines traditional Newari brick patterns with modern touches, showing how the resort mixes old and new styles. This wall helps connect the design to the rich cultural heritage of Newar architecture. Water bodies are also featured on the board, reflecting the gentle water features found throughout the resort. These water elements add a sense of calm and purity, enhancing the relaxing atmosphere of the resort.
All these elements—the Buddha statue, brick wall, and water bodies—come together to give a clear picture of what Aarunya Nature Resort is all about: a peaceful place that honors tradition while embracing modern design.




Concptual sketch of display board design. the budhha staute was included which represent peace and maintained a proper view angle so, that visiot can easily see the naming board. The brick wall, fair faced wall, profile lights were added to the naming board. Some niches were added and water bodies were added at sides of the statue. Above the statue, the reosrt ‘s name and logo were made.


Conceptual Sketch and Design
• From concept to model making was done for the visual representation
• Analyzing the size and height of the display board.
• Fusion of brick and stone which creates a traditional vibes.
The display board features retaining wall, fair face wall, brick wall, a concrete with floor finish platform. The statue platform has 4 small sprouts fountain with the herbs planted on the both ends. The six niches are divided in symmetry with profile light inside of it. The overall looks provides seamless blending with the resort and other areas.


PLAN


ELEVATION


Note: For further details, please refer drawing A10 from annex report.



Orientation: North
Spaces: Public Area, Spaces for kiosks, Dining space, garden and amphitheater.
Inspiration: A space where a business can be run, that attracts visitors and provides a joyful environment.
Status: Construction on going

BUBBLE DIAGRAM


Direct Circulation Indirect Cirulation
Peace park is carefully conceived landscape design project positioned between a resort and a statue area. This strategic location enables the park to serve as a free public space, drawing visitors into the area and providing the resort with valuable exposure without additional costs.
The park features a harmonious blend of green spaces, gardens, kiosks, work together to create a peaceful and inviting environment where visitors can relax and enjoy nature. The abundance of greenery not only enhances the aesthetic appeal but also contributes to the environmental sustainability of the area. A unique aspect of peace park is the inclusion of kiosks made from containers. These kiosks are operated by local villagers, providing them with employment opportunities and strengthening the local economy. This approach not only supports sustainability but also promotes community engagement by involving local people in the park’s operations.


Zoning of Peace Park
Peace park acts as an urban interaction zone which connects resort and peace park


Internal Zoninvg
Kiosks idea is to attract outside people and guest of resort which helps to make free advertisement of resort.






Entrance of Peace Park
First the entrance was on east but changed to south for the statue views from display board
KIOSKS GRASS PAVED PATHWAY


Alignment of Kiosks
Kiosks are now aligned in a staight line irrespective to the contour present in hte site






Overall, peace park is designed to be a vital link between nature, culture, and commercial. Its thoughtful design ensures that it meets the needs of the resort, the local community, and the environment, making it a model for future public space developments.



STAGE 1
CONCEPTUAL SKETCH
In Nepal Satal is known for resting place and urban interaction place, it is inspired from satal.


STAGE 2
DESIGN DEVELOPMENT
Kiosks design was mainly focused on traditional vibes of Banepa with vernacular materials and urban Interaction zone


STAGE 3
MOVABLE KIOSKS DESIGN
Kiosks design then changed into movable concept with low cost material and small in volume. Kiosks will be operated by near village people


STAGE 4
MOVABLE CONTAINER DESIGN
Kiosks design then changed into container style which contain large volume and unique design. This type of design will compliment the container Restaurant







Buddha statue is a view point of Aarunya Nature Resort. The main concept was to create a landmark in resort by which is visually connected with peace park and resort.
From placement of statue perspective it was placed on the top of the site to make visual connection between all the part of the resort and to create a landmark of that resort. Platform of Buddha Statue is inspired from buddha foot at dharmachakra statue will be located.

BUDDHA STATUE
ENTRANCE
BUBBLE DIAGRAM




Direct Circulation Indirect Cirulation
SOUVENIR KIOSKS
BUDDHA STATUE
MAYADEVI TEMPLE MODEL
FOUNTAIN






Concept of platform: Footprint of Buddha
The Statue area was to built at the highest point of the site so that it can be visible from far away as the attraction. The statue faced towards south west which can be seen in the diagram which was the main ideology of zoning.



The souvenir kiosks were added then to engage the visitors to local products and locals which can also help the economy activities of the local people. The plat form was made in the shape of Buddha’s foot which gave an interesting connection to the existing contour.



The entrance was then shifter to southwest to contribute the higher slope towards both. The Chautaras were added as resting place and conserve the existing trees in the site.










STAGE 1
CONCEPTUAL PLANNING
First statue platform was designed on circular base with the reference of stupa. It had four small statue surrounding the main statue. Then the circular base was removed with square base with the stag-erred platform. The base was 74’ X 74’.









The platform changed to square, The staggered platform has 7 steps. The Buddha statue and base is in the ratio of 2:1. The final can be seen being focused on harmony and balance.










Source: Design Station



Note: For further details, please refer drawing A11 from annex report.







The container restaurant is located on the hilltop of Banepa and is connected to the Buddha statue via a common junction point. This design element creates a clear link between the two spaces while also serving as a point of focus for visitors.
The restaurant is built from containers, giving it a modern and eco friendly appeal. It features a two storey structure with a rooftop dining area that offers beautiful views of the surrounding area. The design takes advantage of the elevated location to provides customers with scenic views of the resort, peace park and the buddha statue. The visual connection not only enhances the restaurant’s appeal but also makes it central hub for experiencing the site’s cultural and natural beauty. The combination of modern design with the natural landscape creates a unique and inviting destination that encourages visitors to explore the hilltop fully.







1. DESIGN PROCESS (OFFICE)
• Feasibility Study
• Site Visit Site Survey Access Bye Laws Site information
• Literature review and case study
• Program Formulation
• Conceptual Design
• Construction drawing
2. BUILDING MATERIALS
• Roof Decra sheeting (54” X 16”) Rs, 1050/piece
• Brass inlay in flooring
• Telia tiles
• Wooden louvers
3. DESIGN APPROACH
• Design thinking and development of main block interior, peace park, buddha statue, container restaurant
• Traditional themed (Slpoe rrof, brick facades, wooden elements)
• Blend of different materials and styles
• Merge with nature, tackling the existing contour by creating a circulation through the existing contour.
• Link between public, semi-public and private zones.
• Resort type landscape, view from the site concept
4. CONSTRUCTION KNOWLDEGE
• Retaining Wall
• Strut Fixing
• Bar Bending Schedules
• For compression member (columns) the lap length should be taken as 60D
• For tension member(beam) overlapping should be taken as 50D.










Role: Participating in planning,layout, 3d models, market survey, site supervision, interaction with clients and procurement,preparation of BOQ, sub-contractor bills and client bill


ARCHITECTURE, INTERIOR
LOCATION: PEEPAL BOT, DILLIBAZAR
CLIENT: MR KUMAR DHAREL
STATUS: COMPLETED

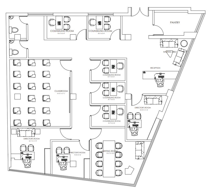
Counselling Area
Classrooom


Parking
Circulation
Pantry
Reception Area




Requirements of the project:
• Reception
• 3 Directors’ room
• Classroom for 20 studnets
• Meeting room
• Printing area
• Pantry
• 2 W/C


CONCEPT AND INSPIRATION
INDUSTRIAL THEME
• Materials
Exposed brick, concrete, metal, wood
• Neutral Color: Shades of grey, black and white
• Lighting: Warm lights (Penant lights, edison bulbs)
• Furniture
Simple and Functional
• Architectural Elments
Open Floor Plan
• Decorative Elements Indoor plants, Oakwood Panelling
Office Area
The planning stage ran through different stages from allocation of spaces, introduction of corridor, minimization of negative spaces and arrangement, distribution of spaces according to their importance in commercial field. All those substitutes and changes are mentioned below:



Placement of reception and meeting room was not in proper order and the reception was directly visible from the entrance .




2
Counselling area is in public area and classroom is linked to the counselling area. The unsual positioning of the doors made the circulation conjusted.



DEVELOPMENT
Placement of reception and meeting room was not in proper order. Reception is still not visible from the main entrance. The meeting room covered more space making it less functional.


Area: 1692.72 sq.ft
The final plan mitigates all the before plans problems. The meeting room covers less area. The place of reception is in perfect place which is clearly visible from the main entrance. The classroom is separated from other area make it less conjusted circulation.
Note: For further details, please refer drawing B1 in annexreport.